Скачать Типовой проект 902-1-104.86 Альбом 7. Электротехническая часть. Технологический контроль. СвязьДата актуализации: 01.01.2021
|
| Обозначение: | Типовой проект 902-1-104.86 |
| Обозначение англ: | 902-1-104.86 |
| Статус: | не определен законодательством |
| Название рус.: | Альбом 7. Электротехническая часть. Технологический контроль. Связь |
| Дата добавления в базу: | 01.09.2013 |
| Дата актуализации: | 01.01.2021 |
| Дата введения: | 27.10.1986 |
| Дата окончания срока действия: | 30.06.2003 |
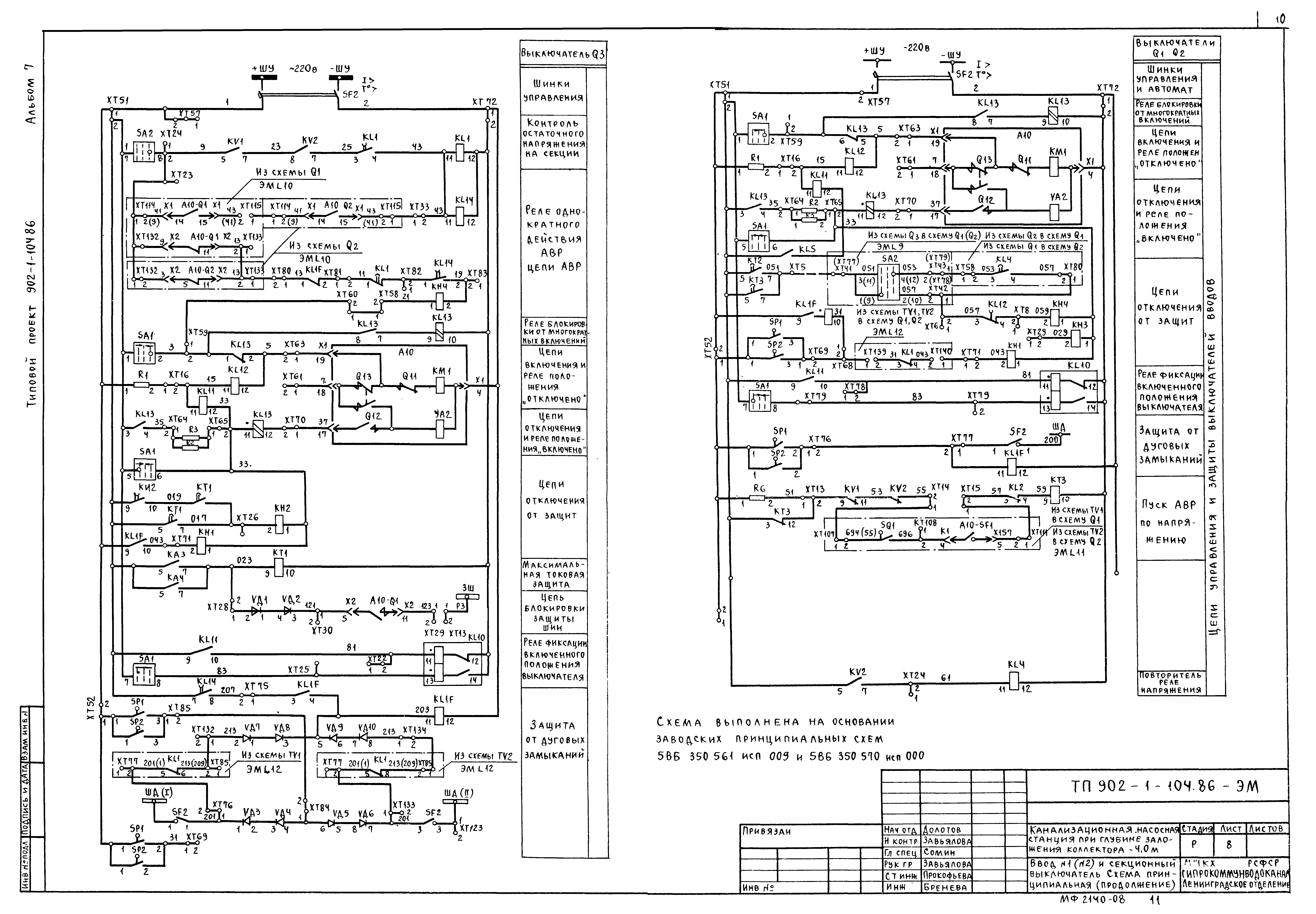
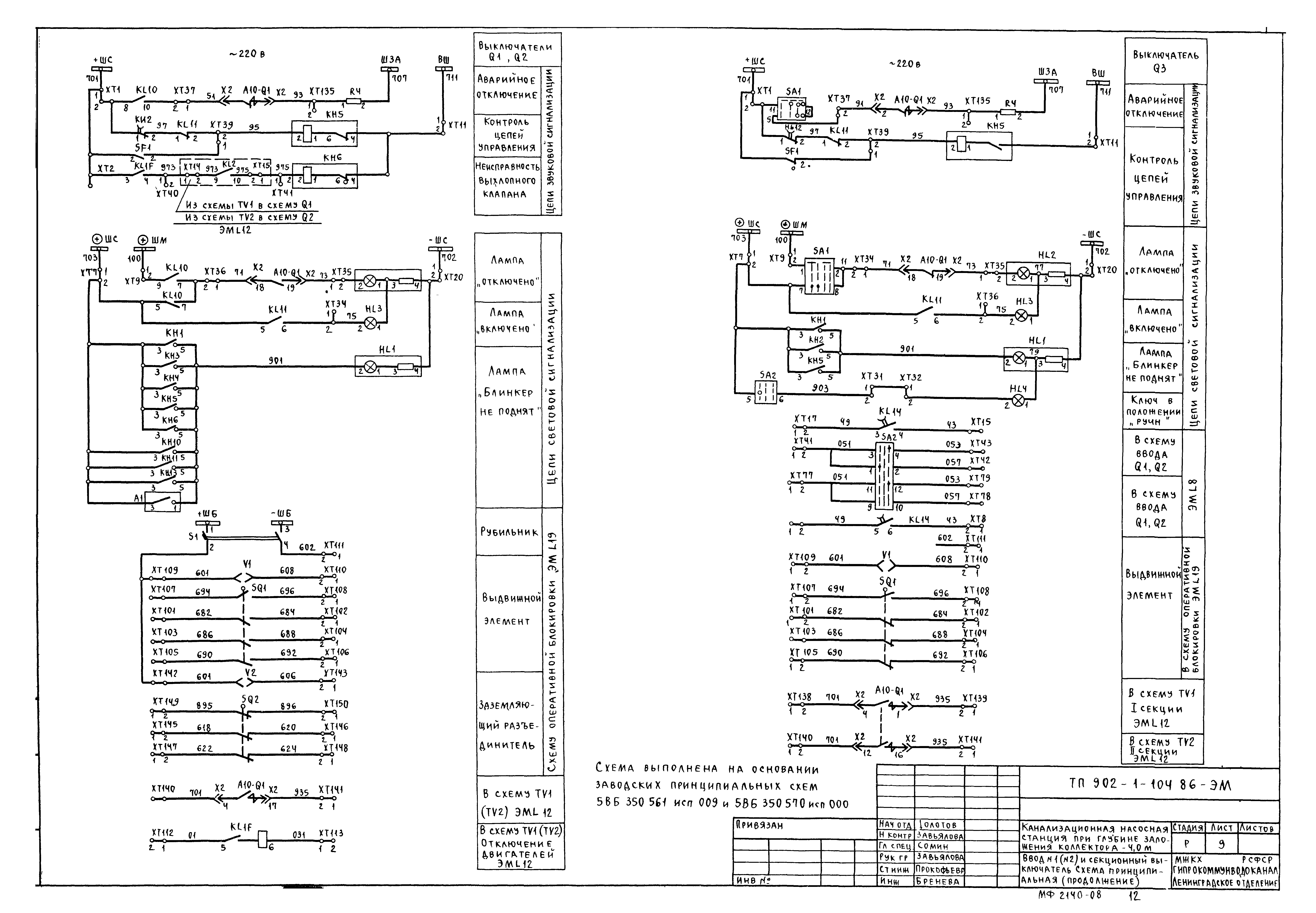
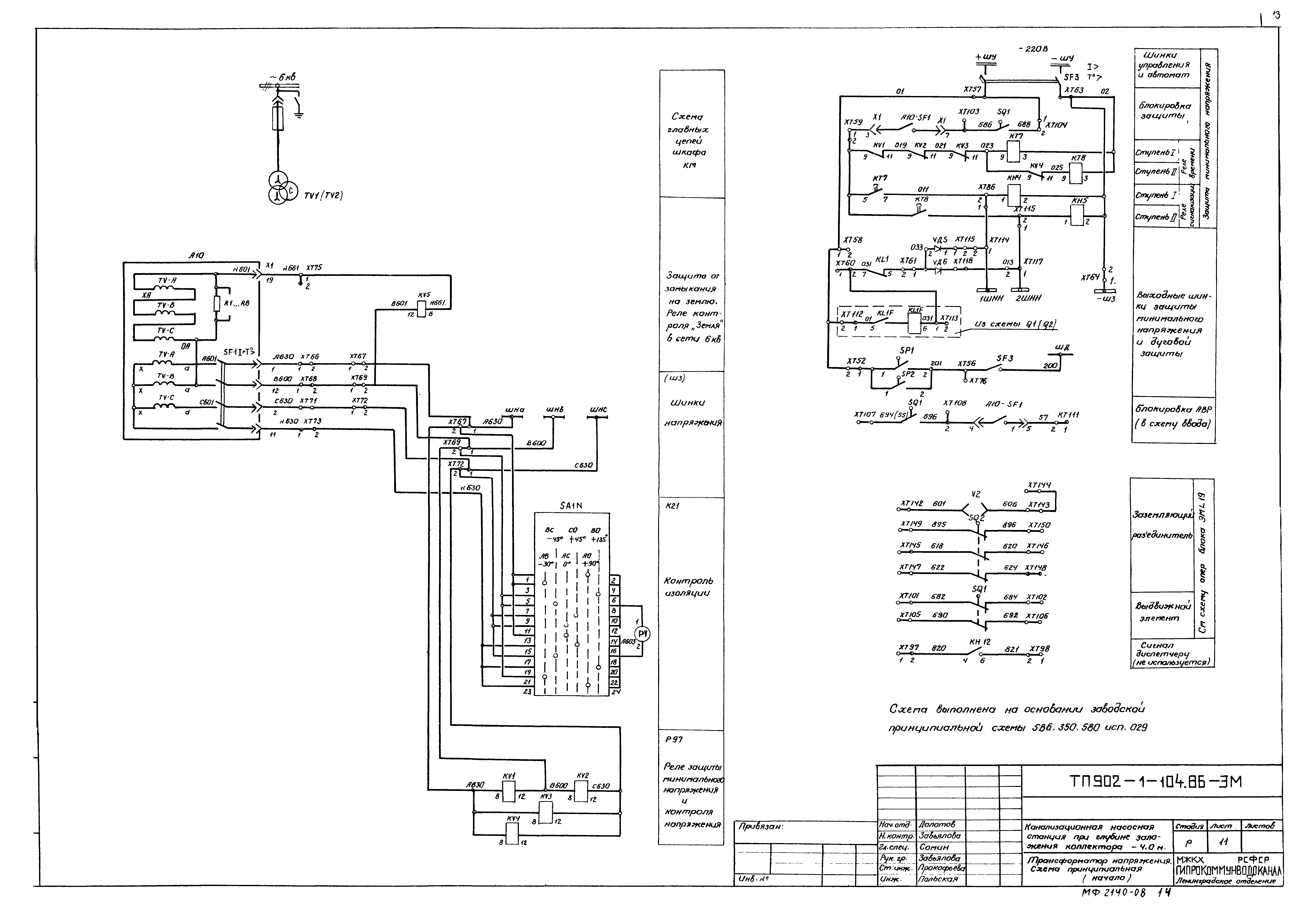
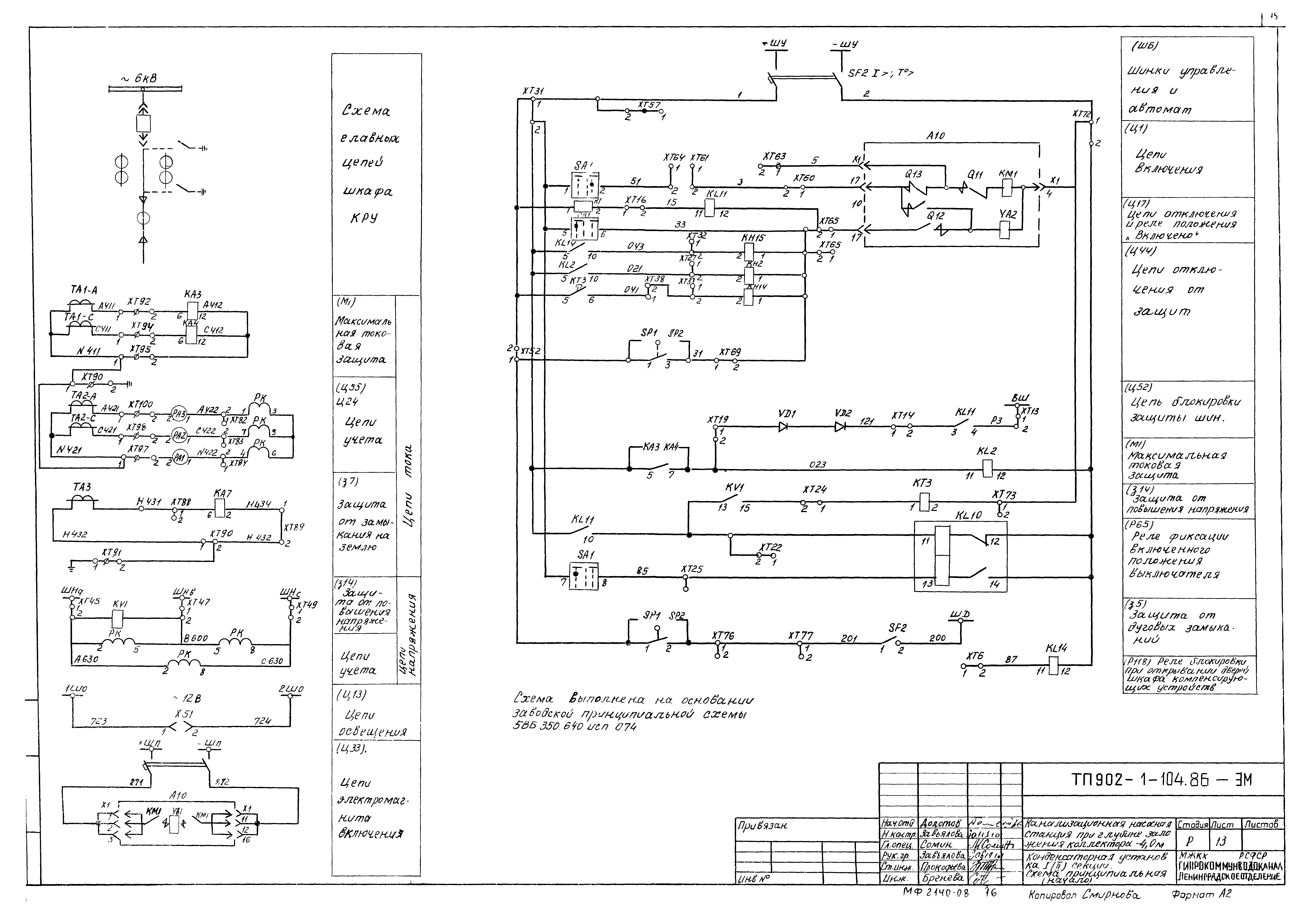
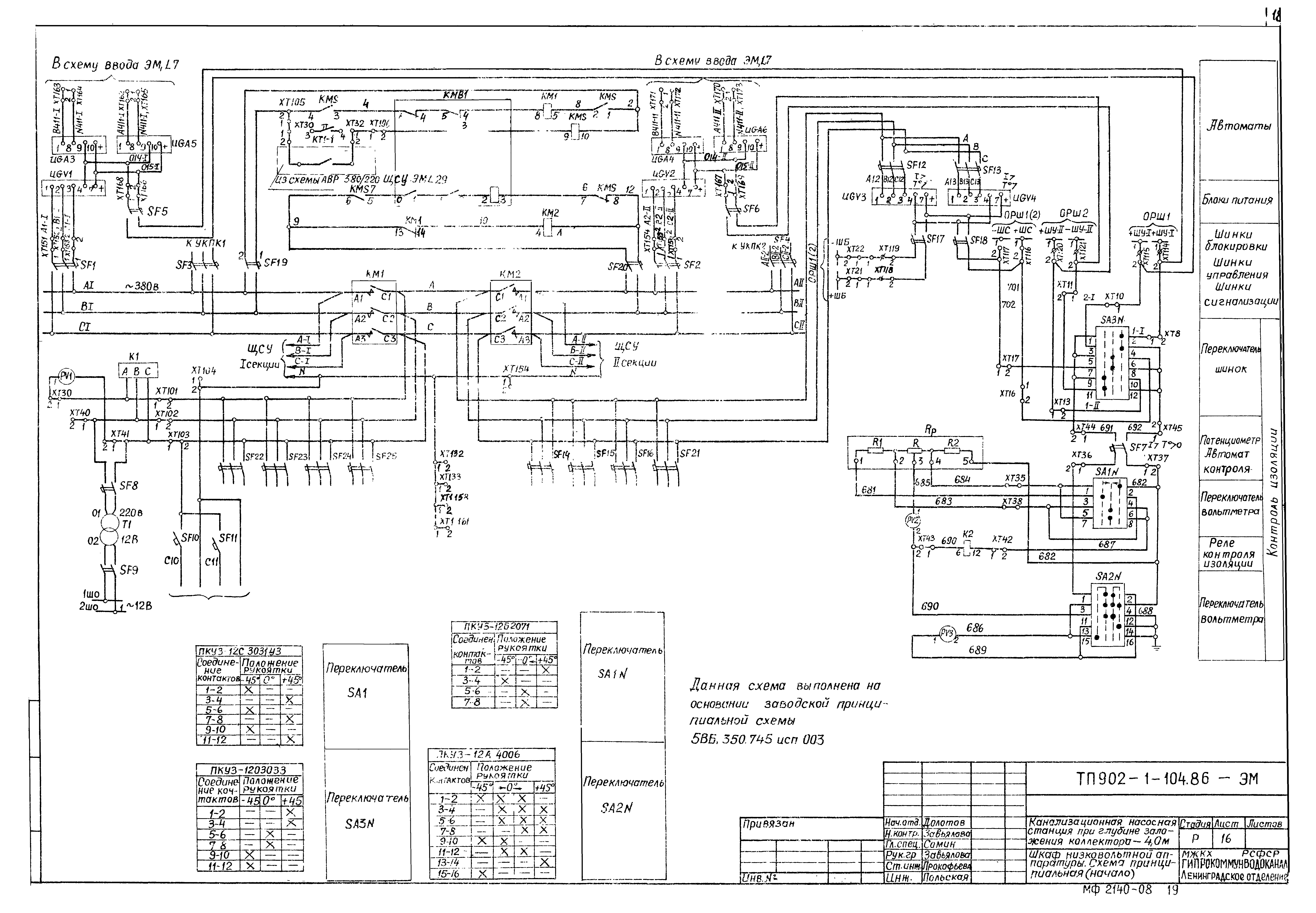
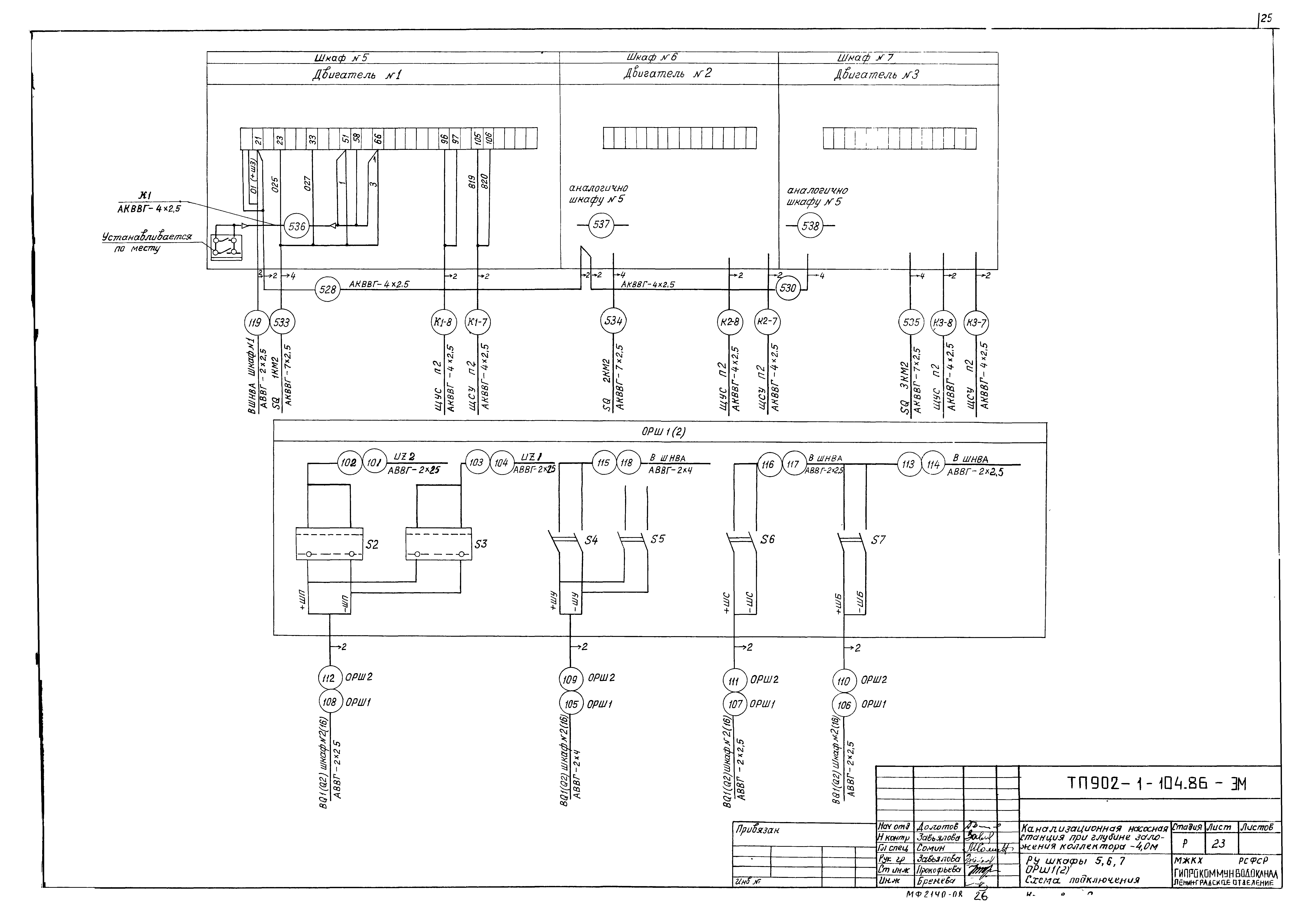
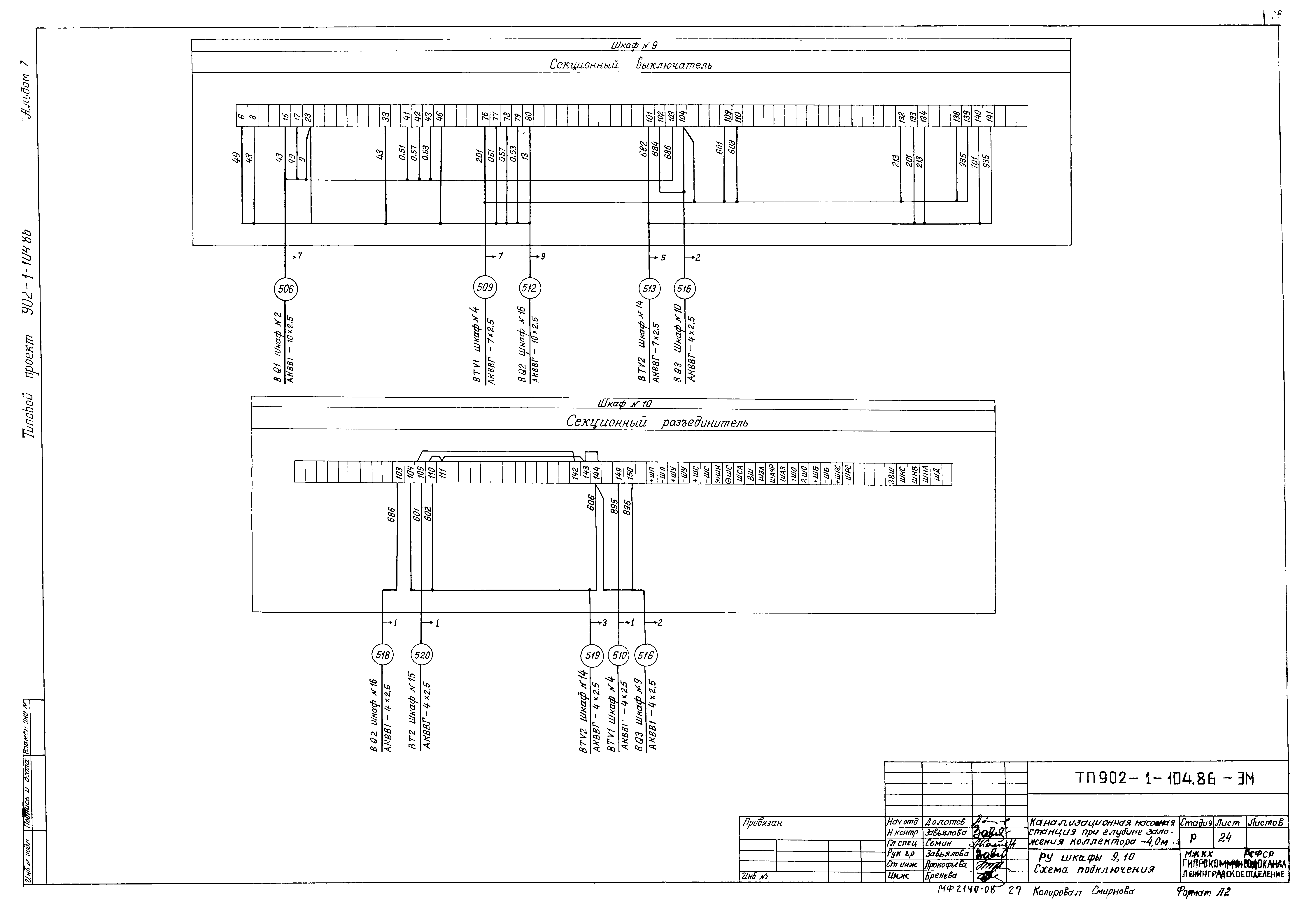
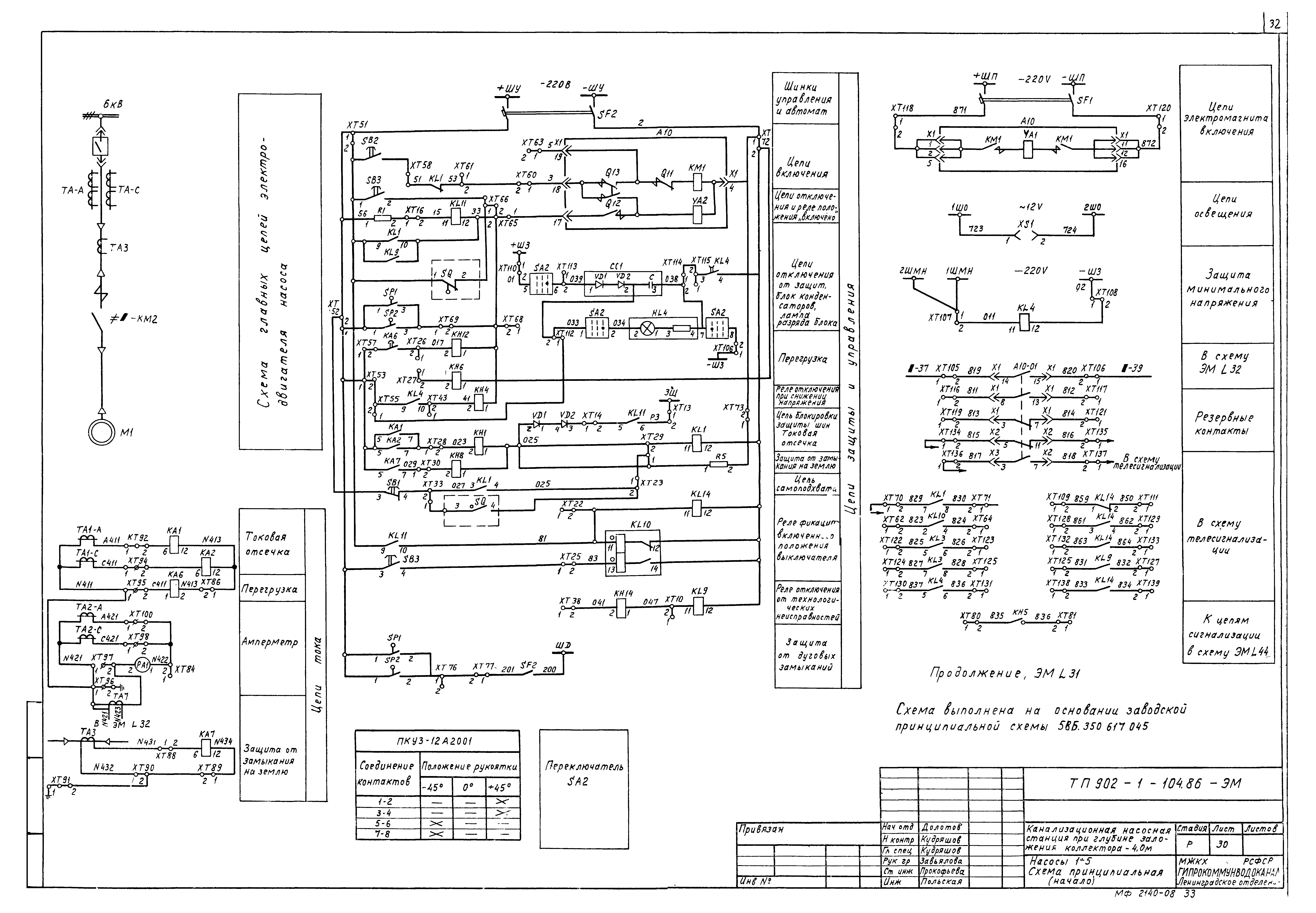
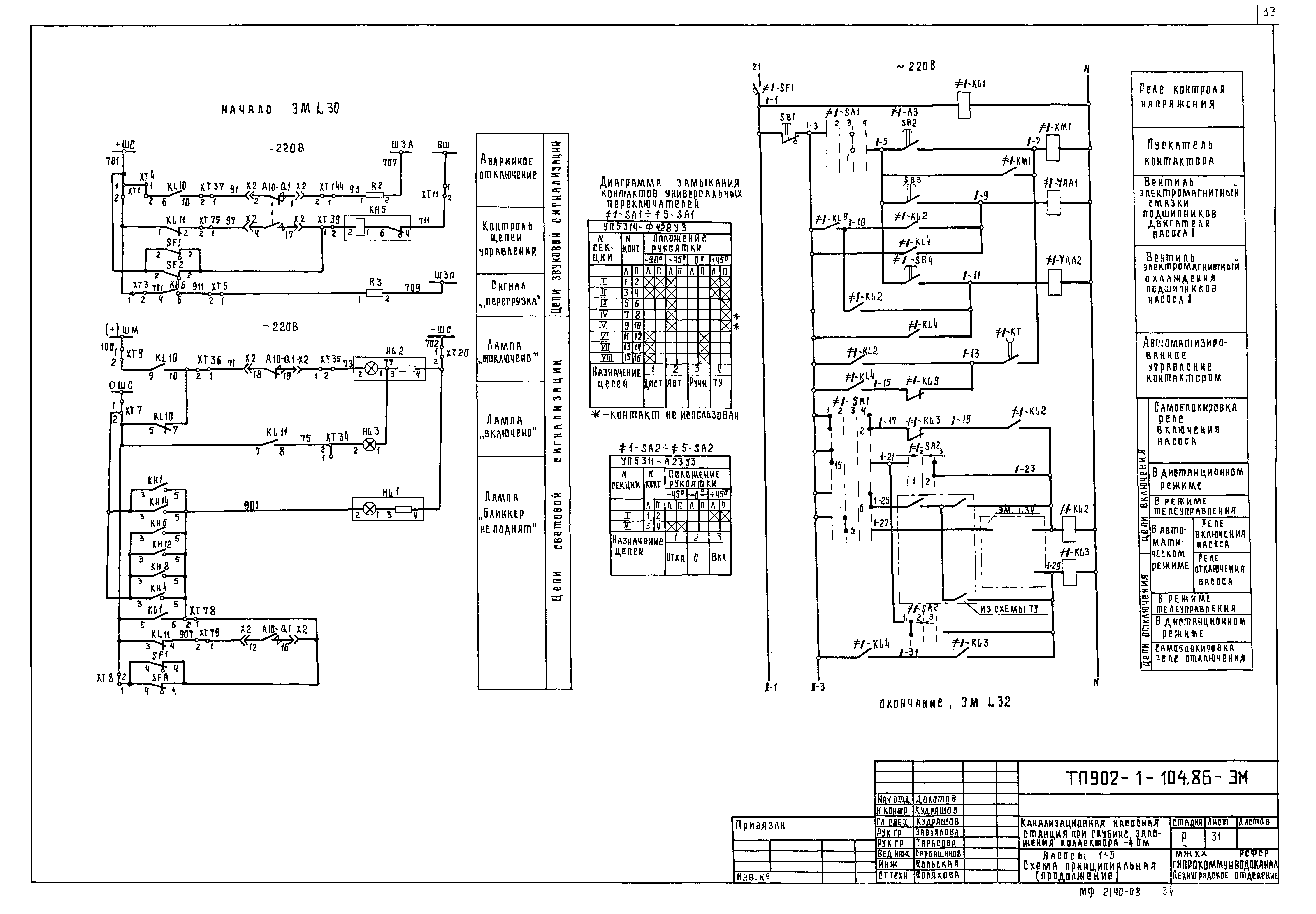
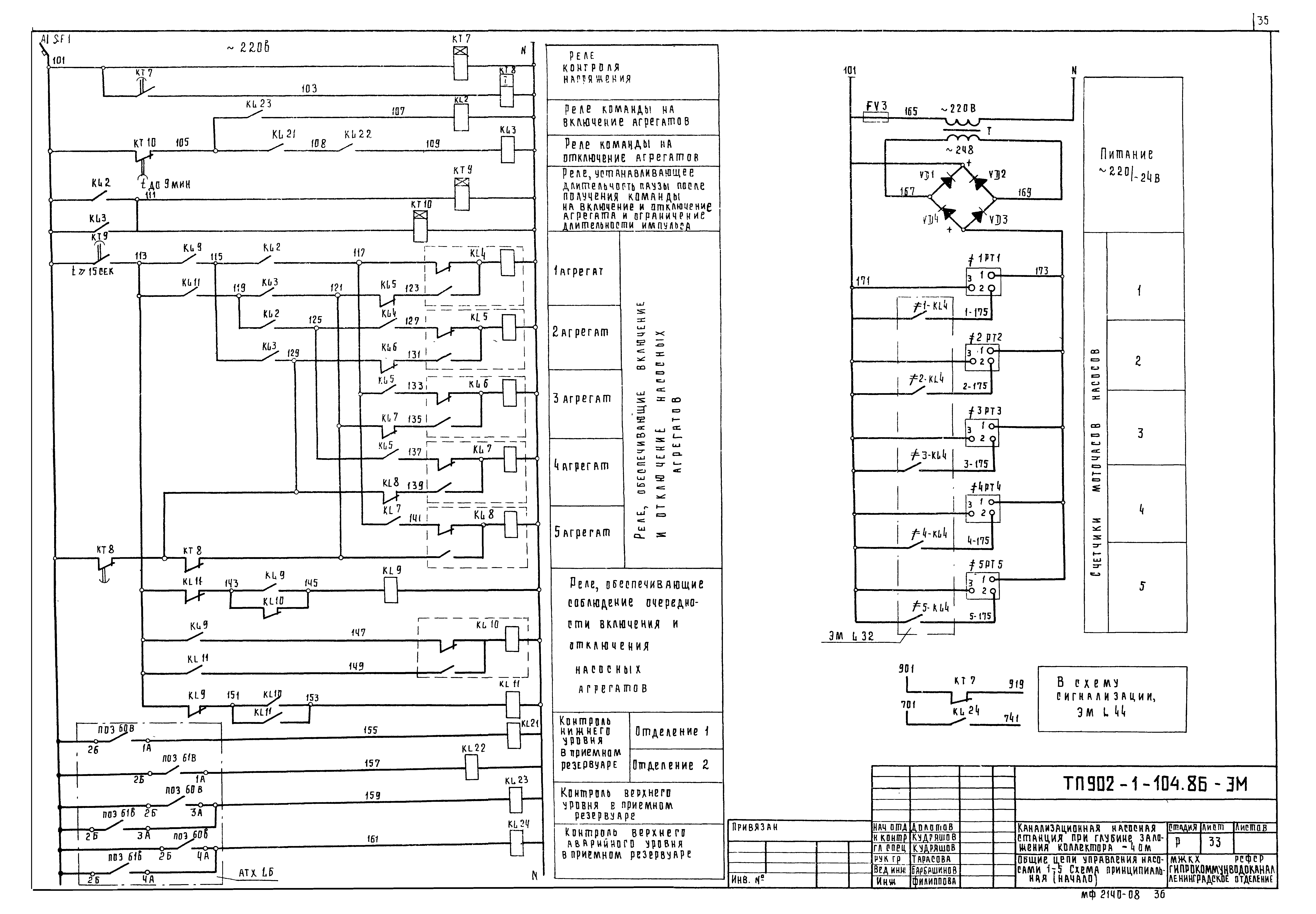
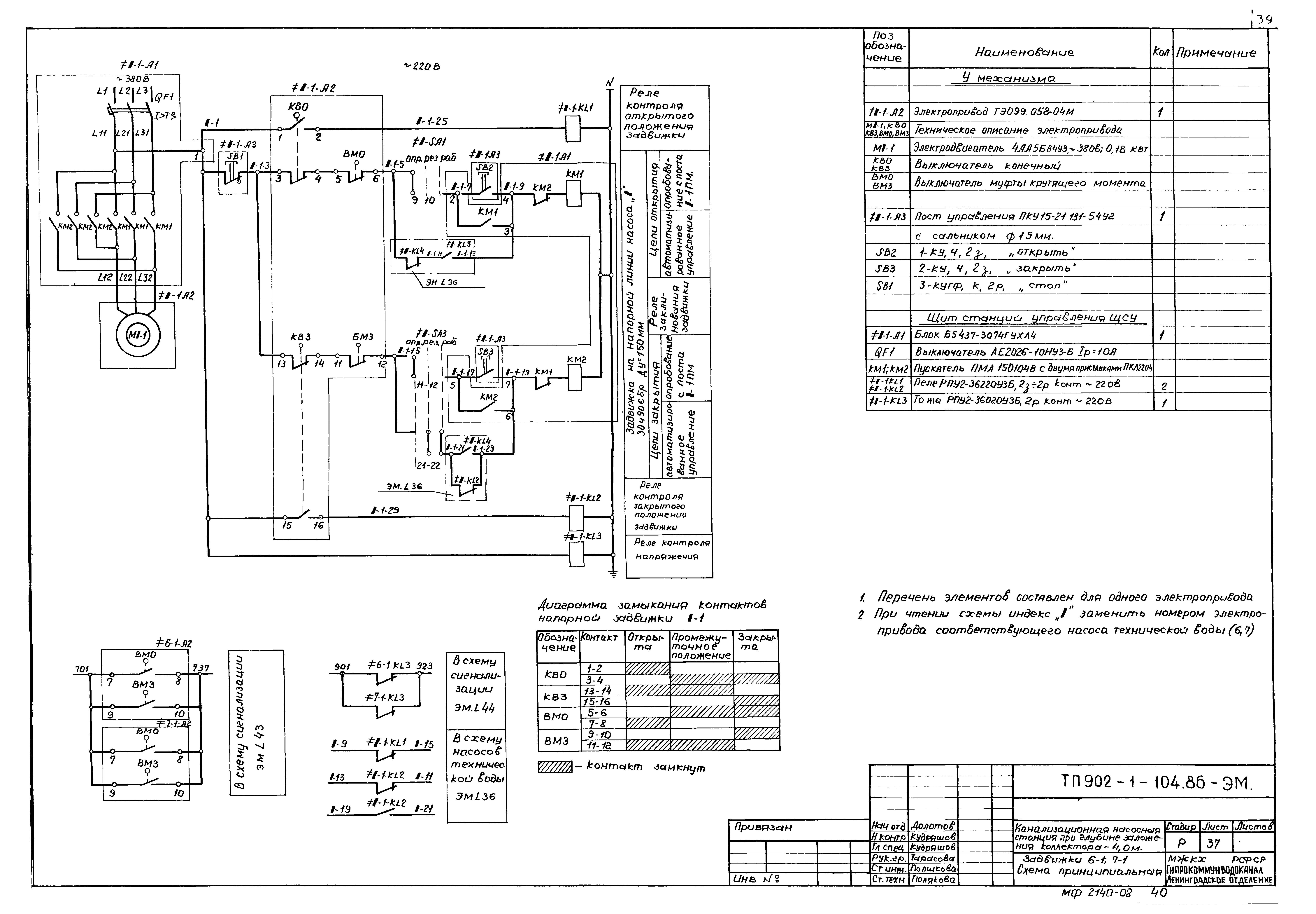
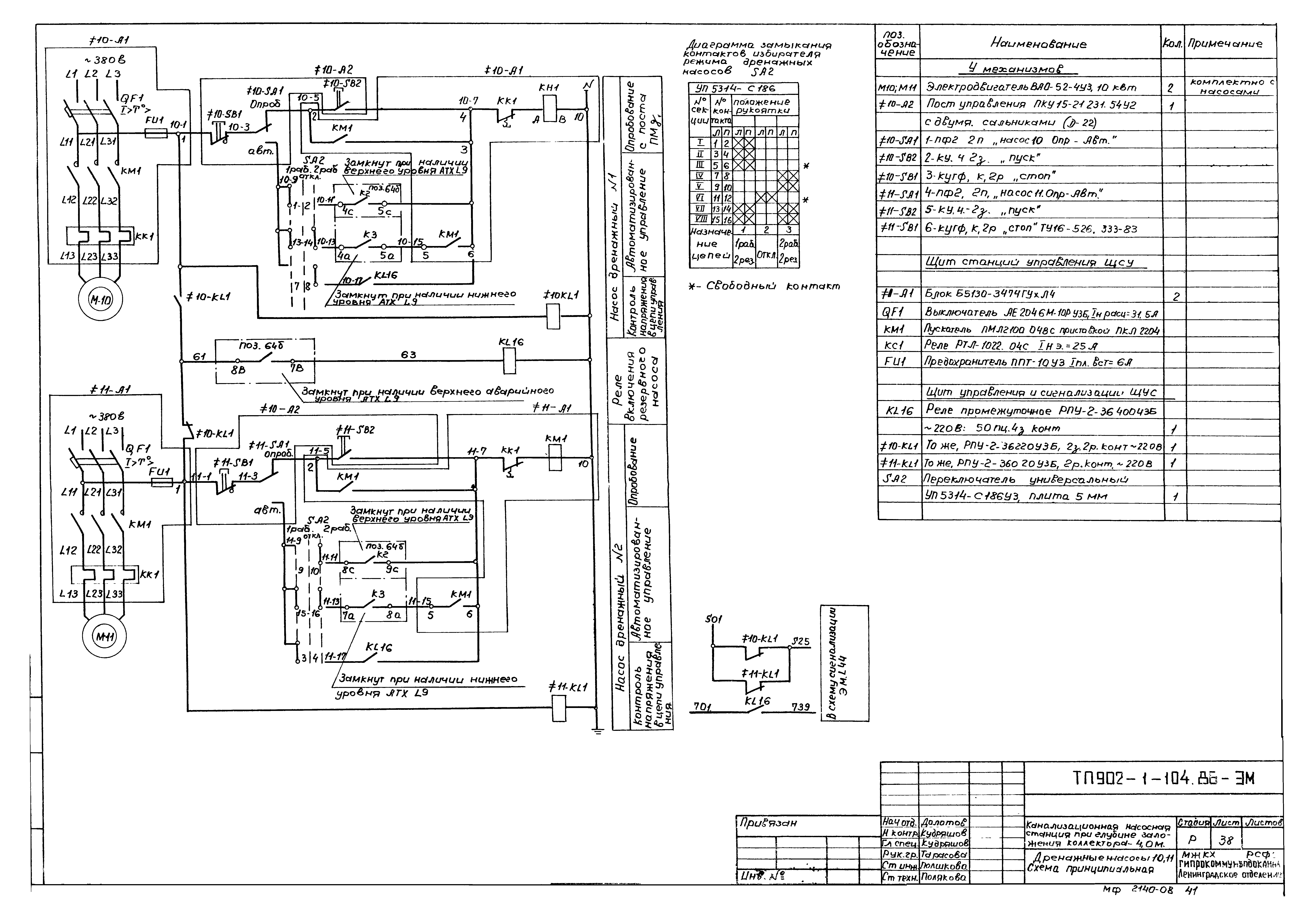
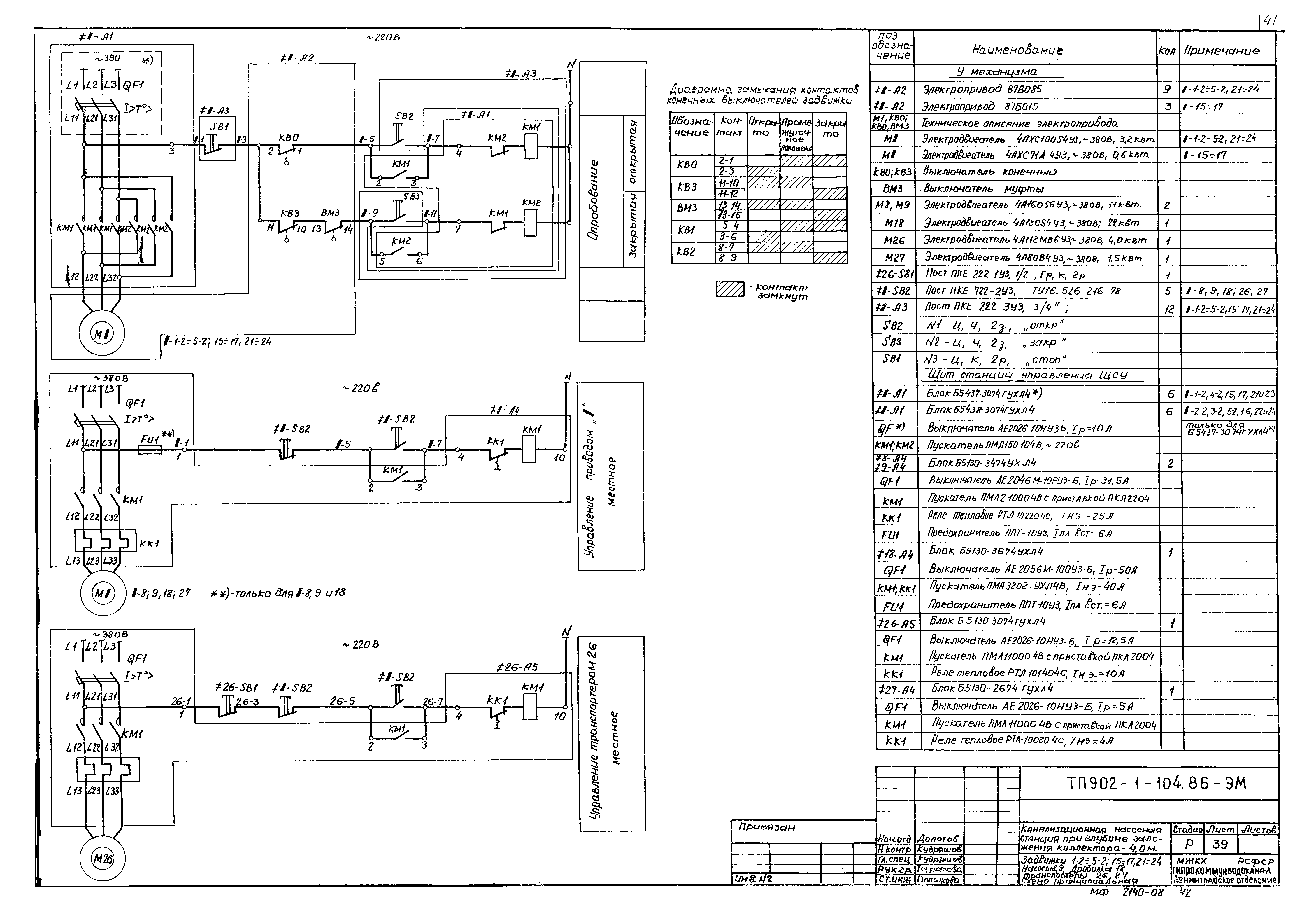
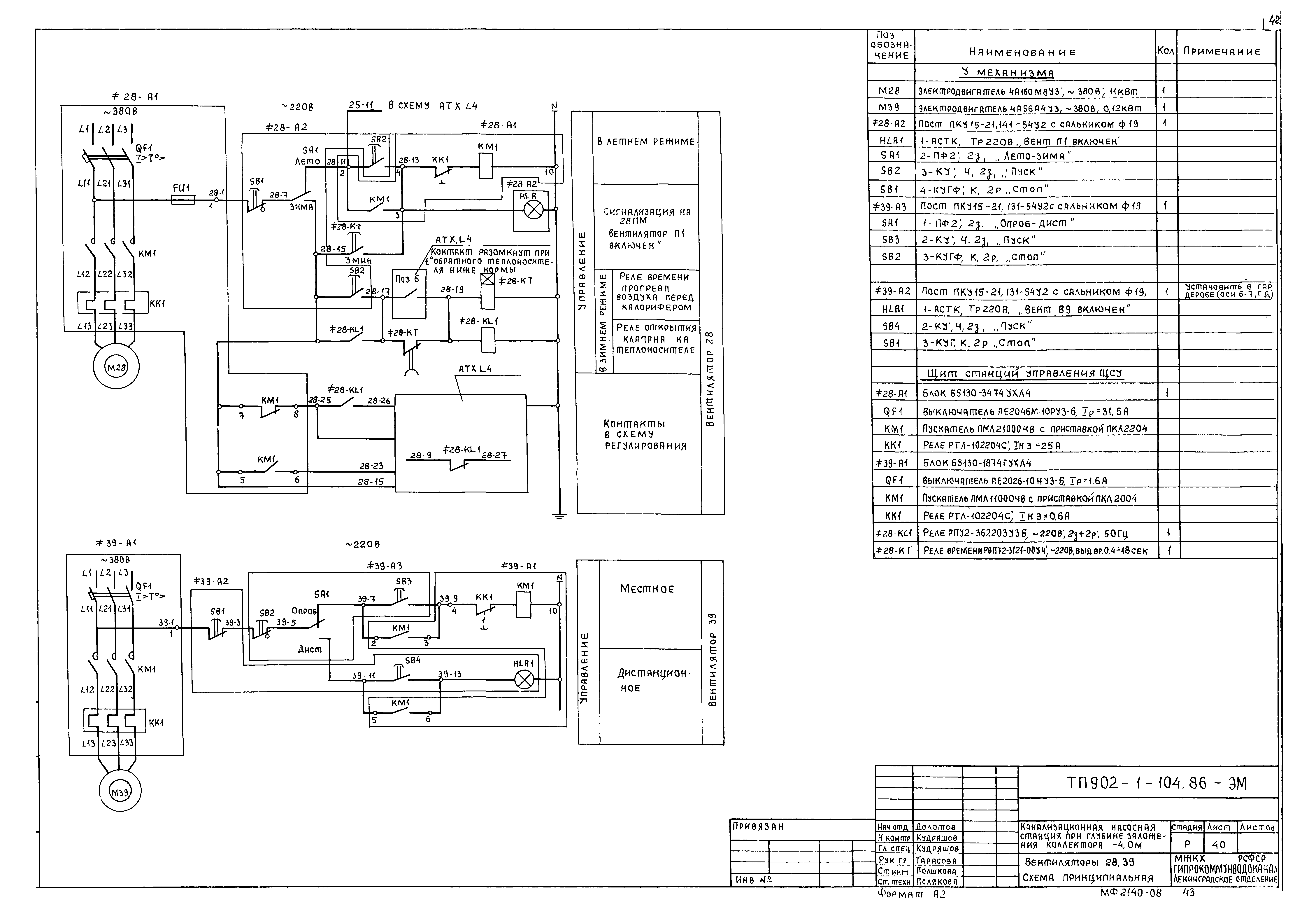
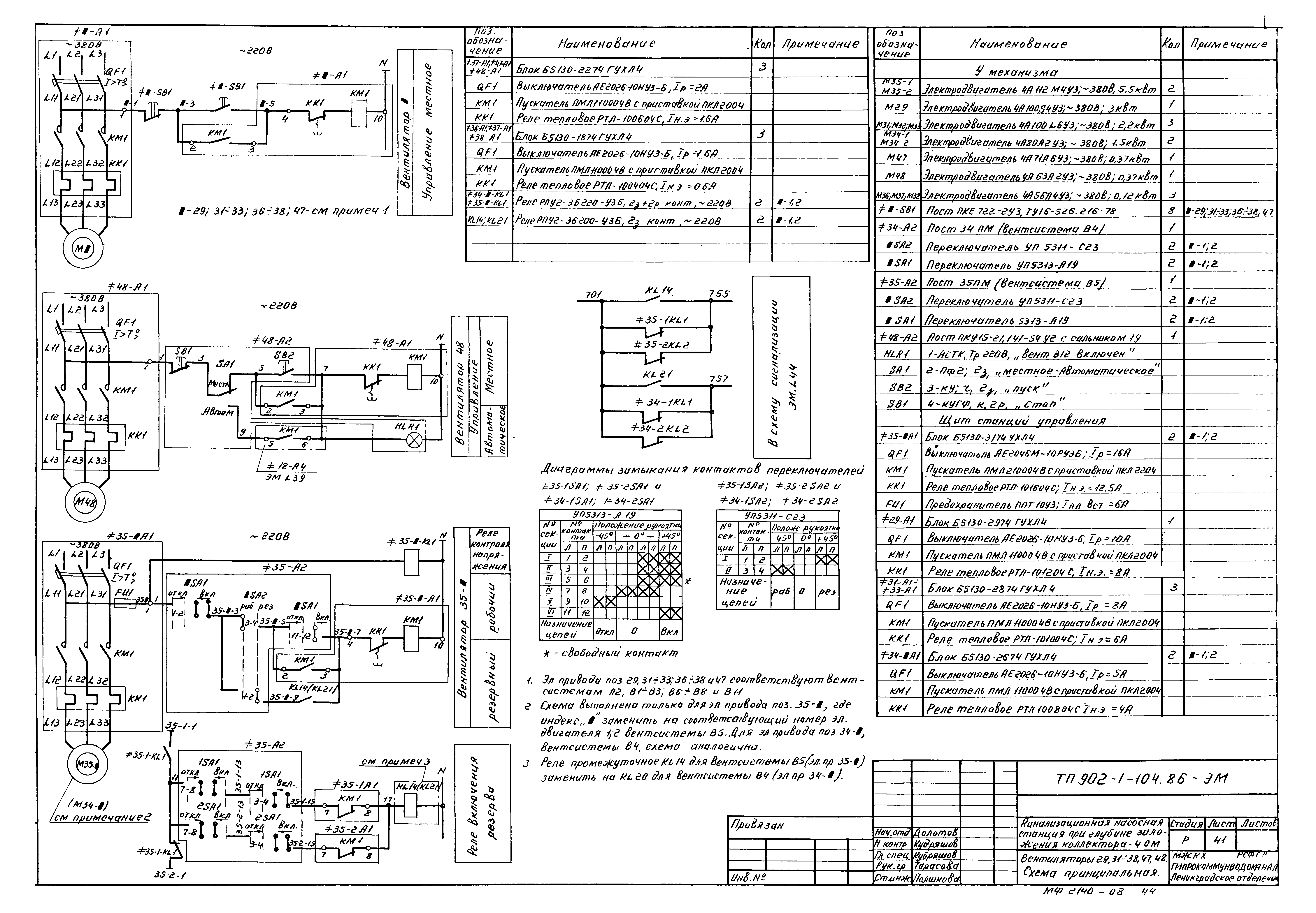
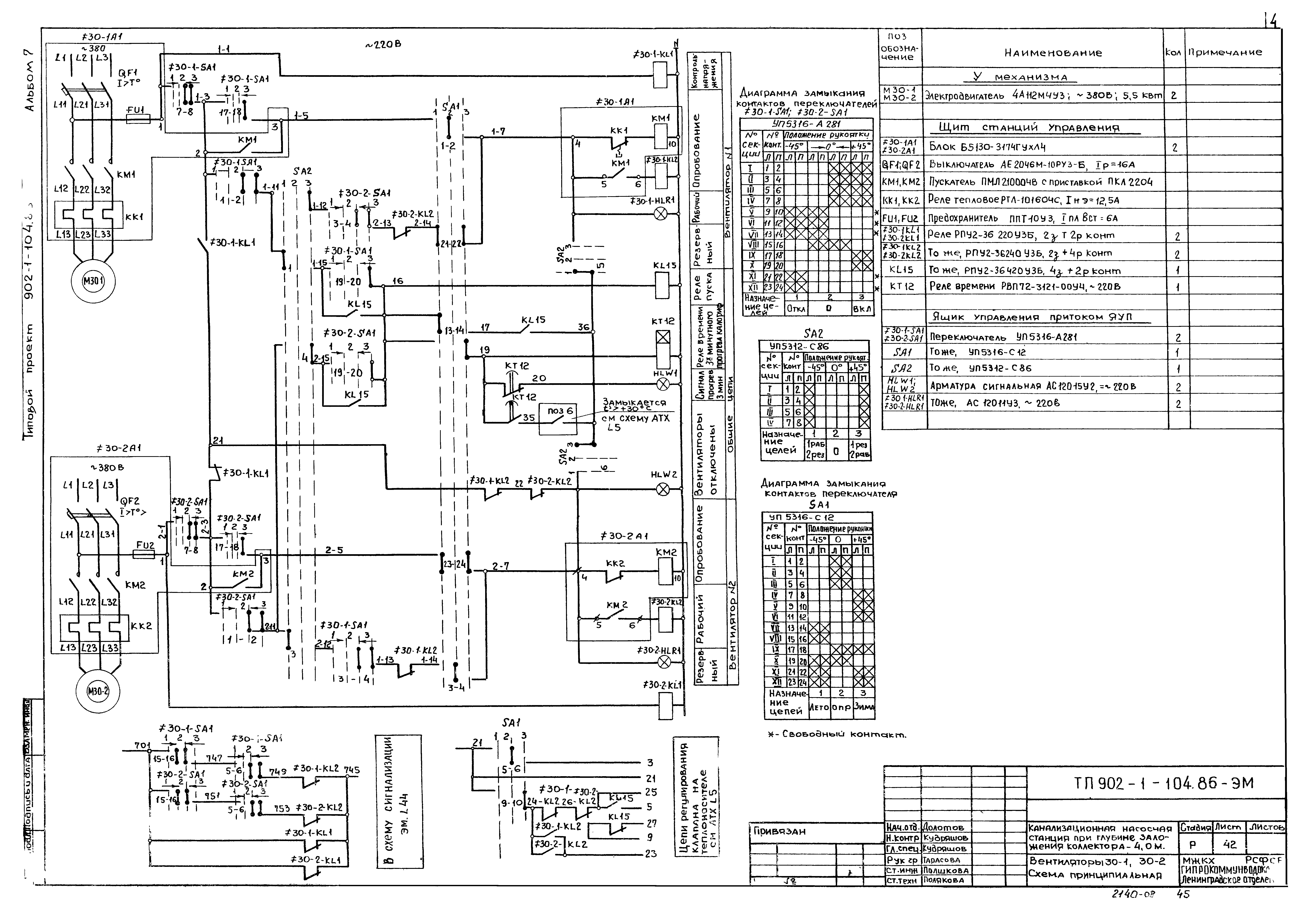
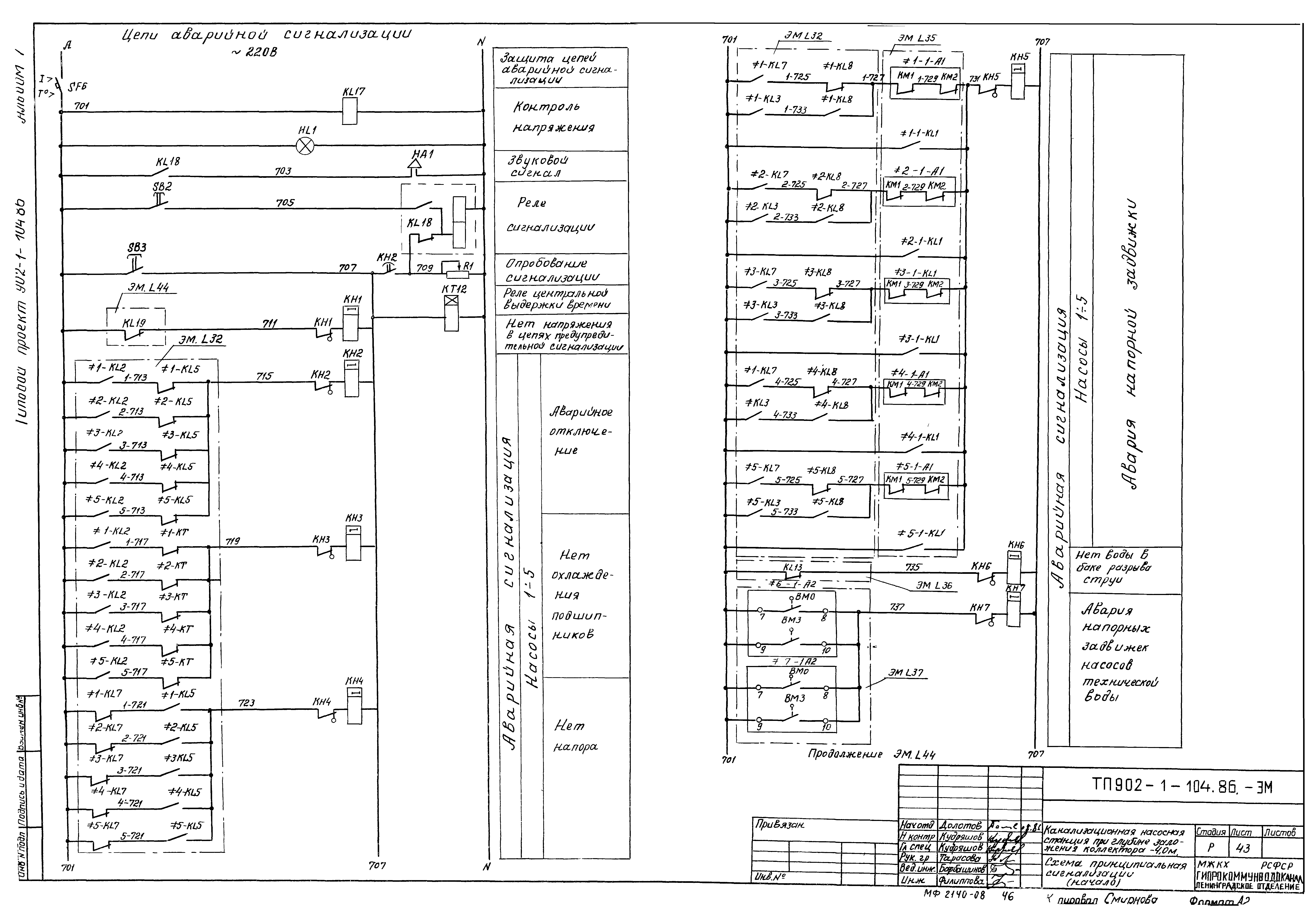
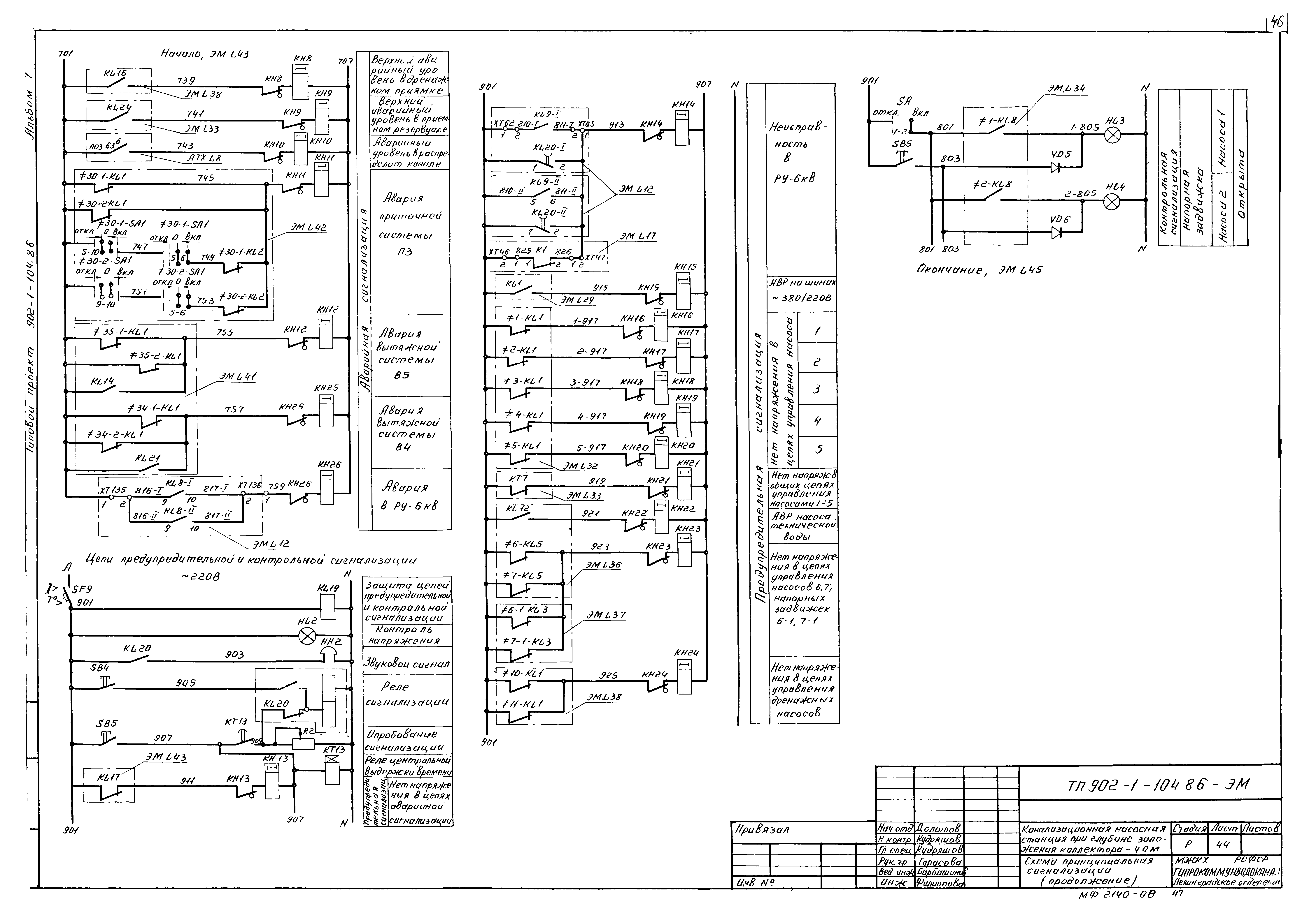
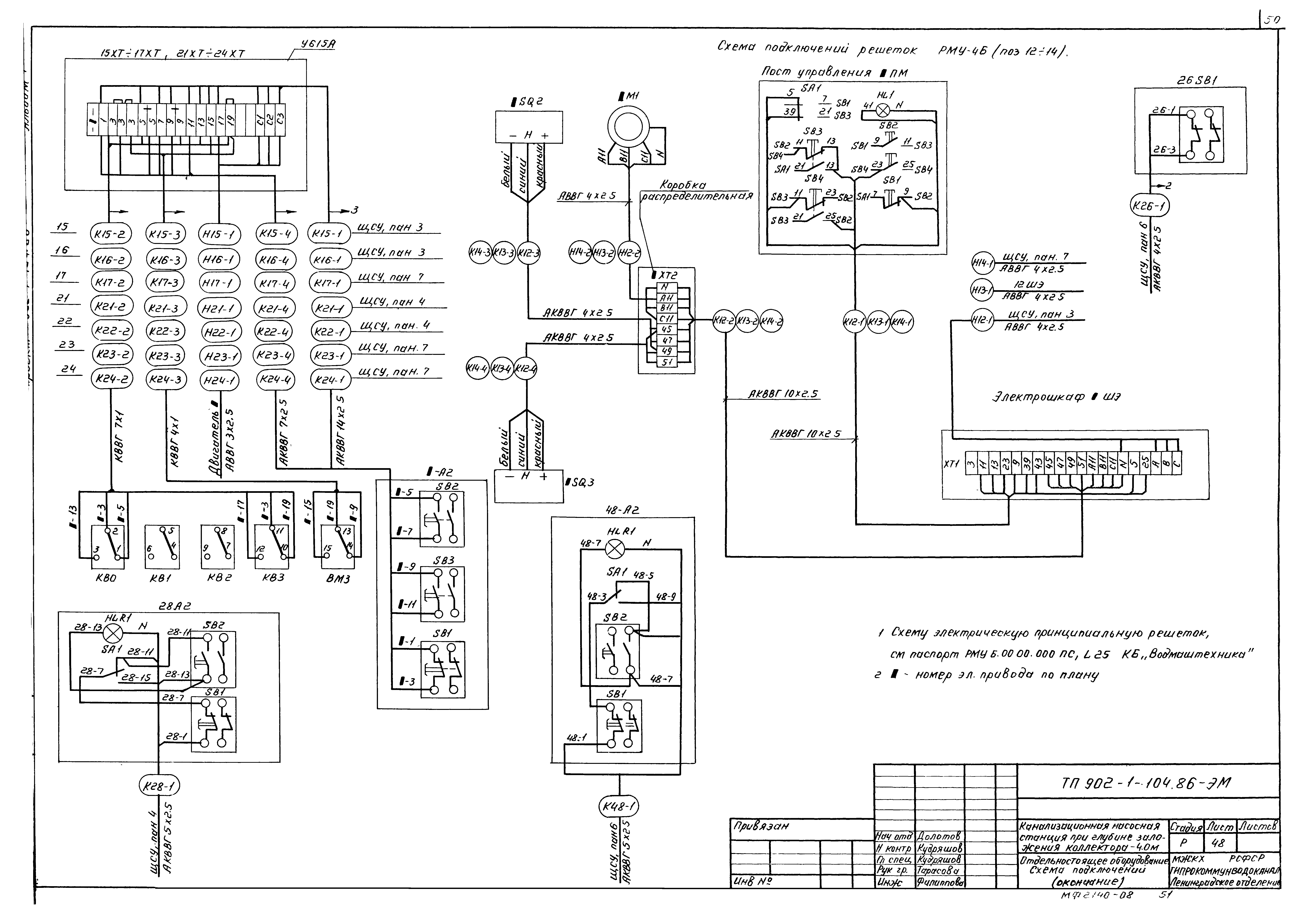
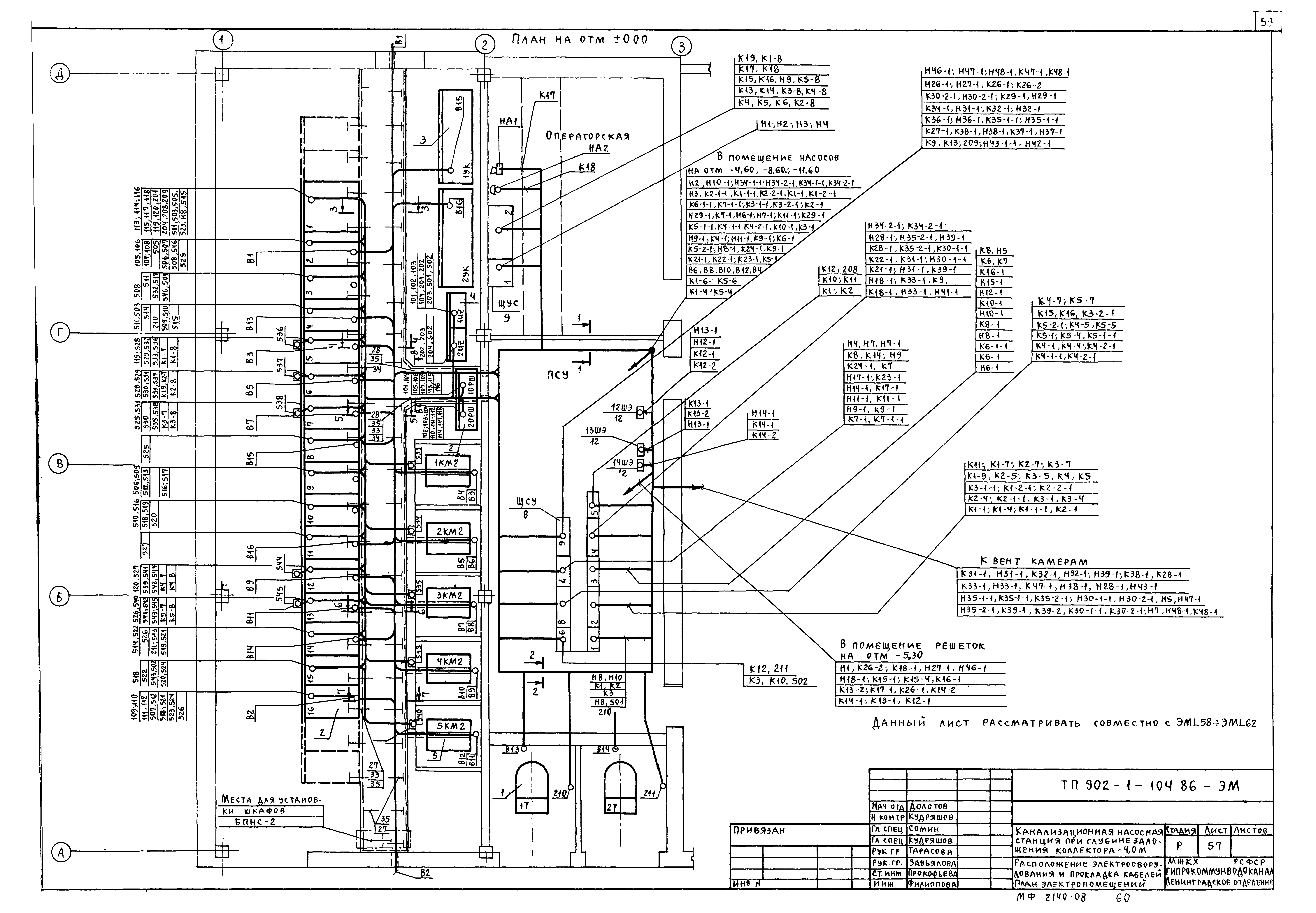
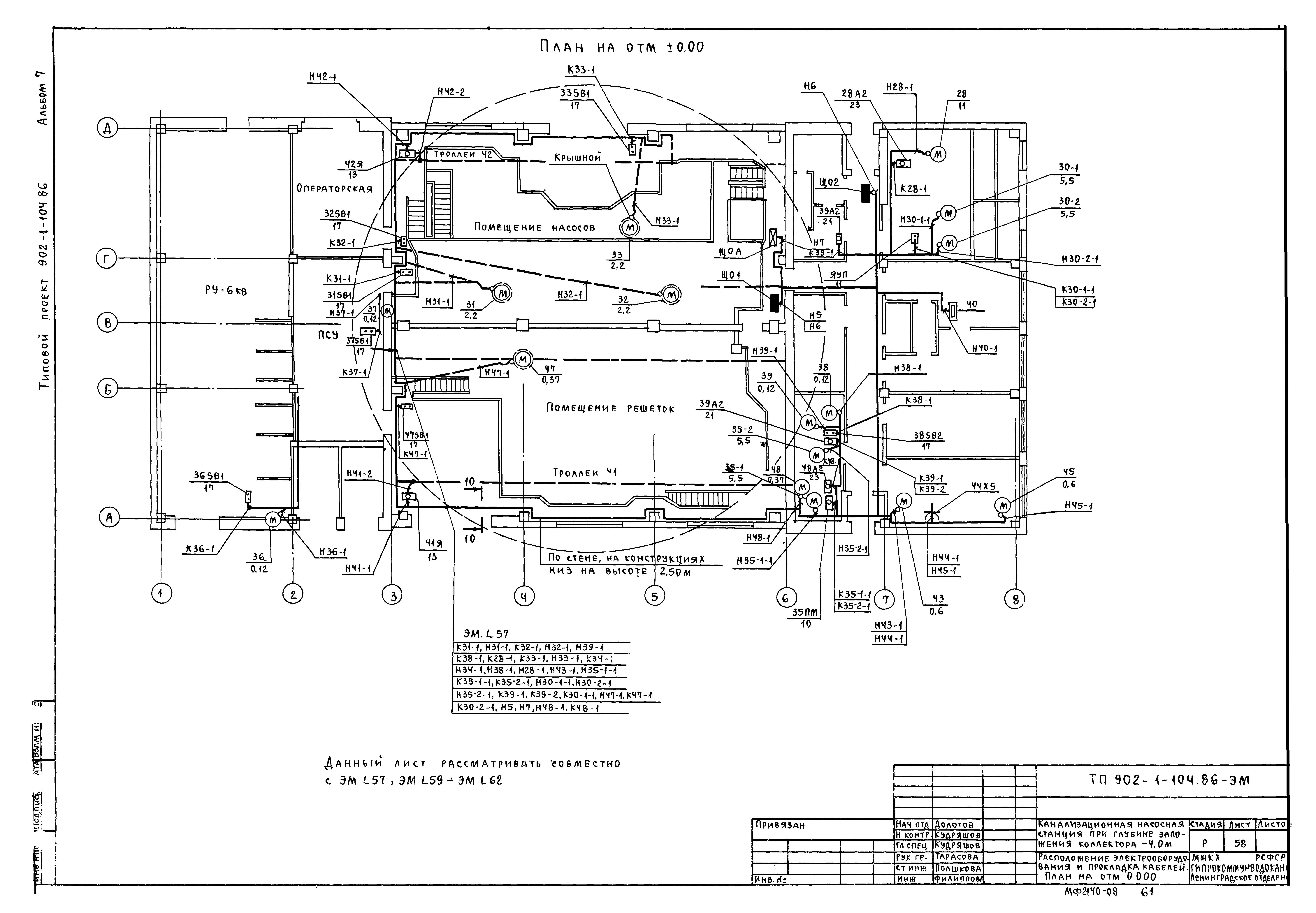
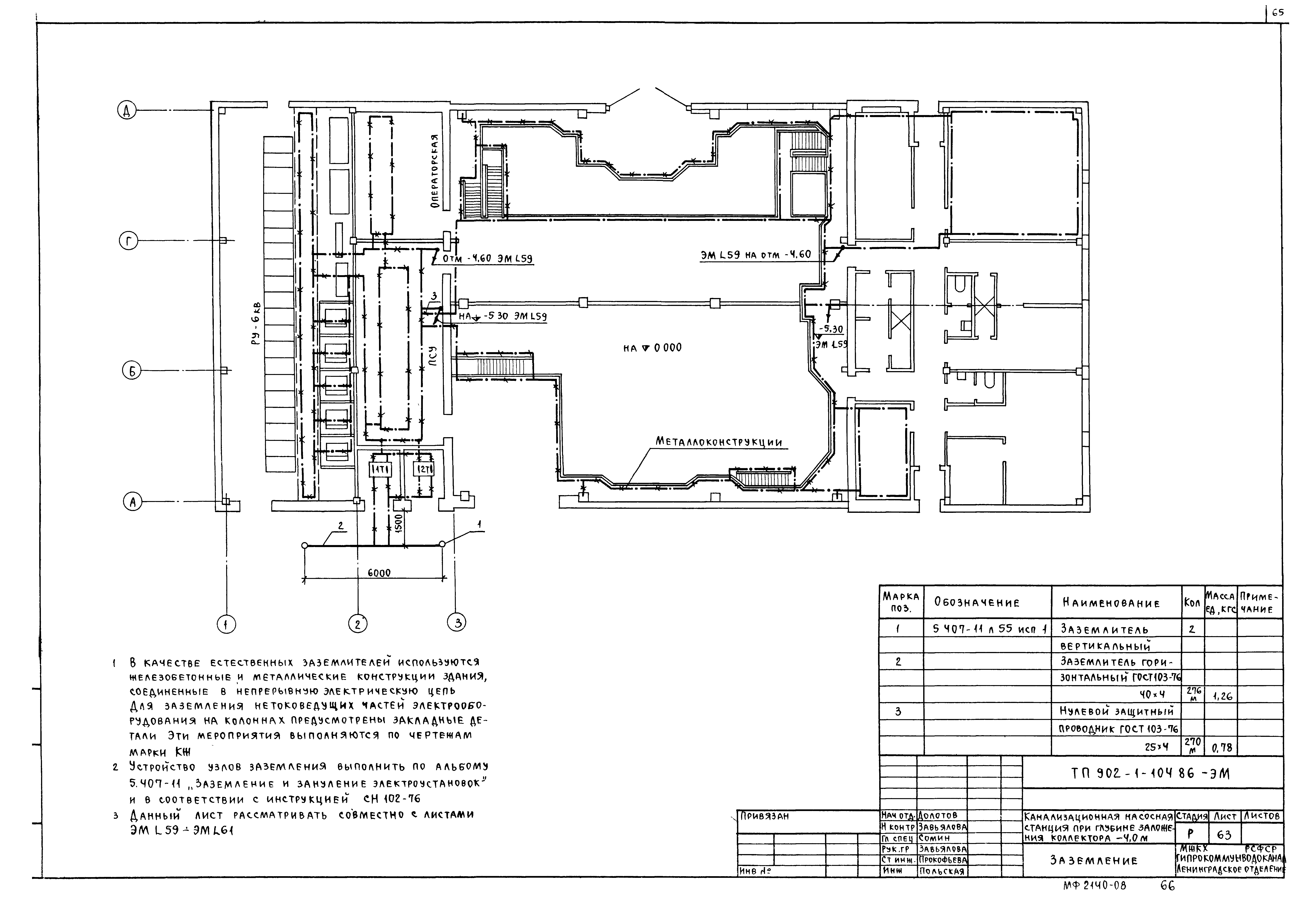
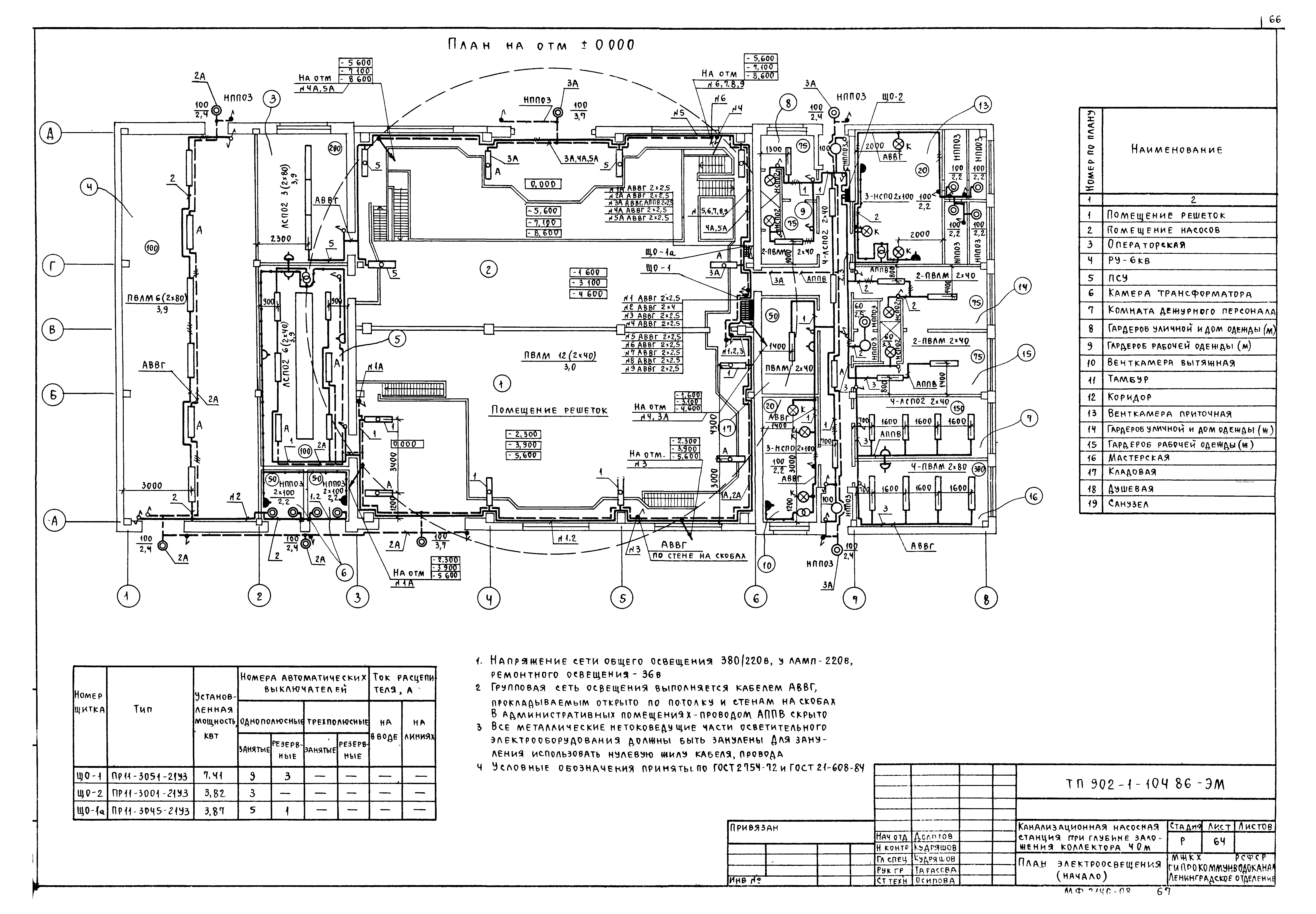
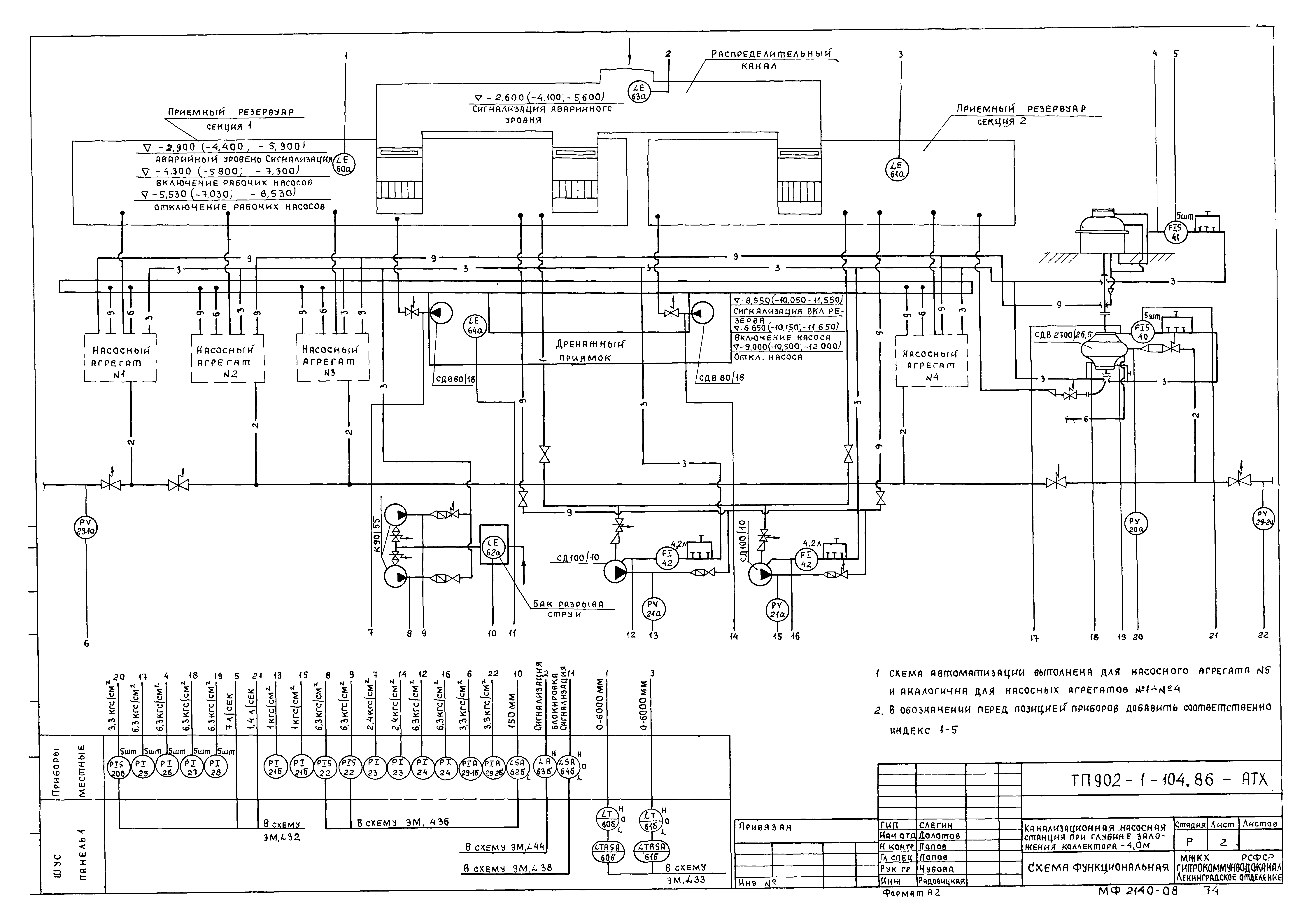
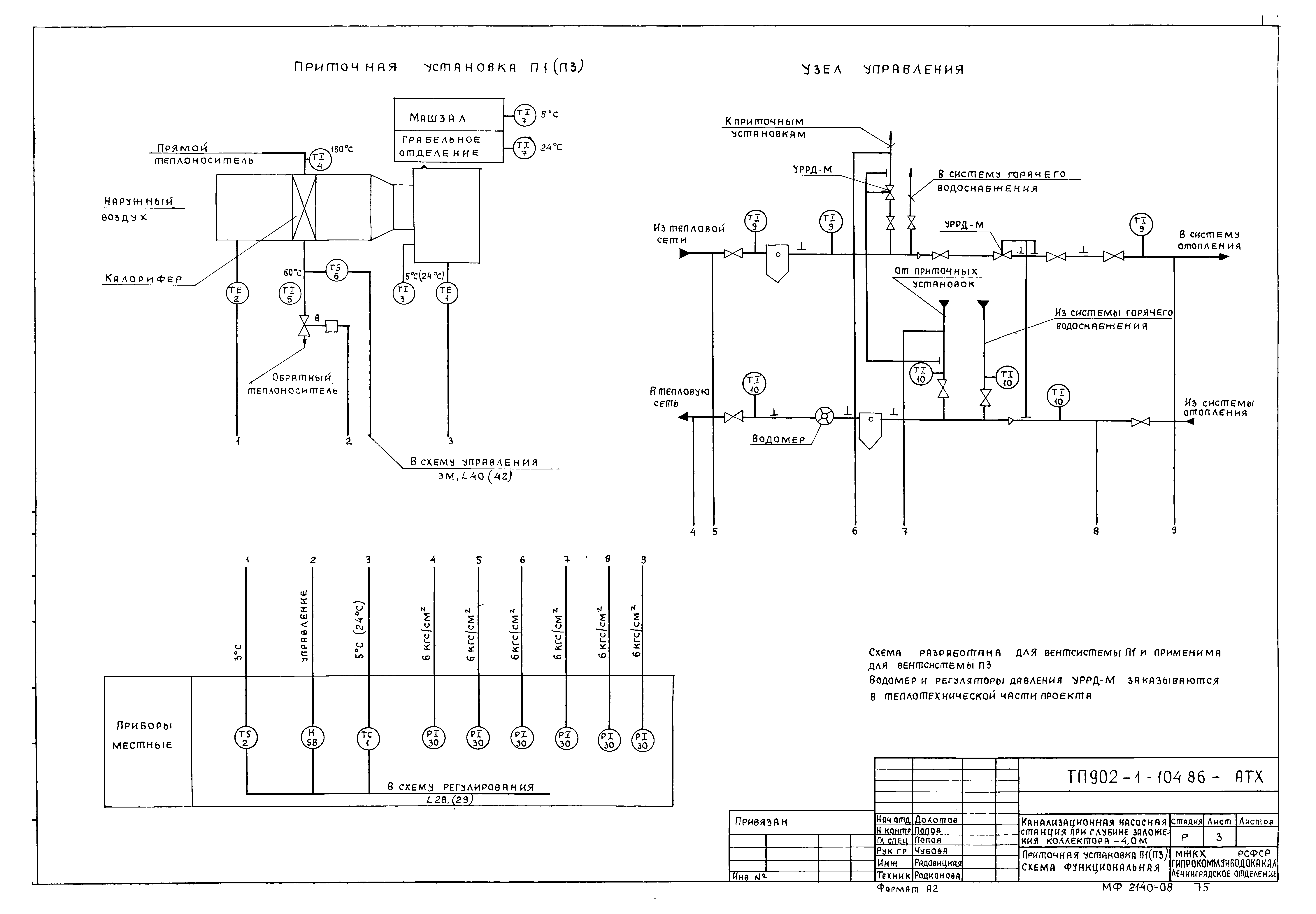
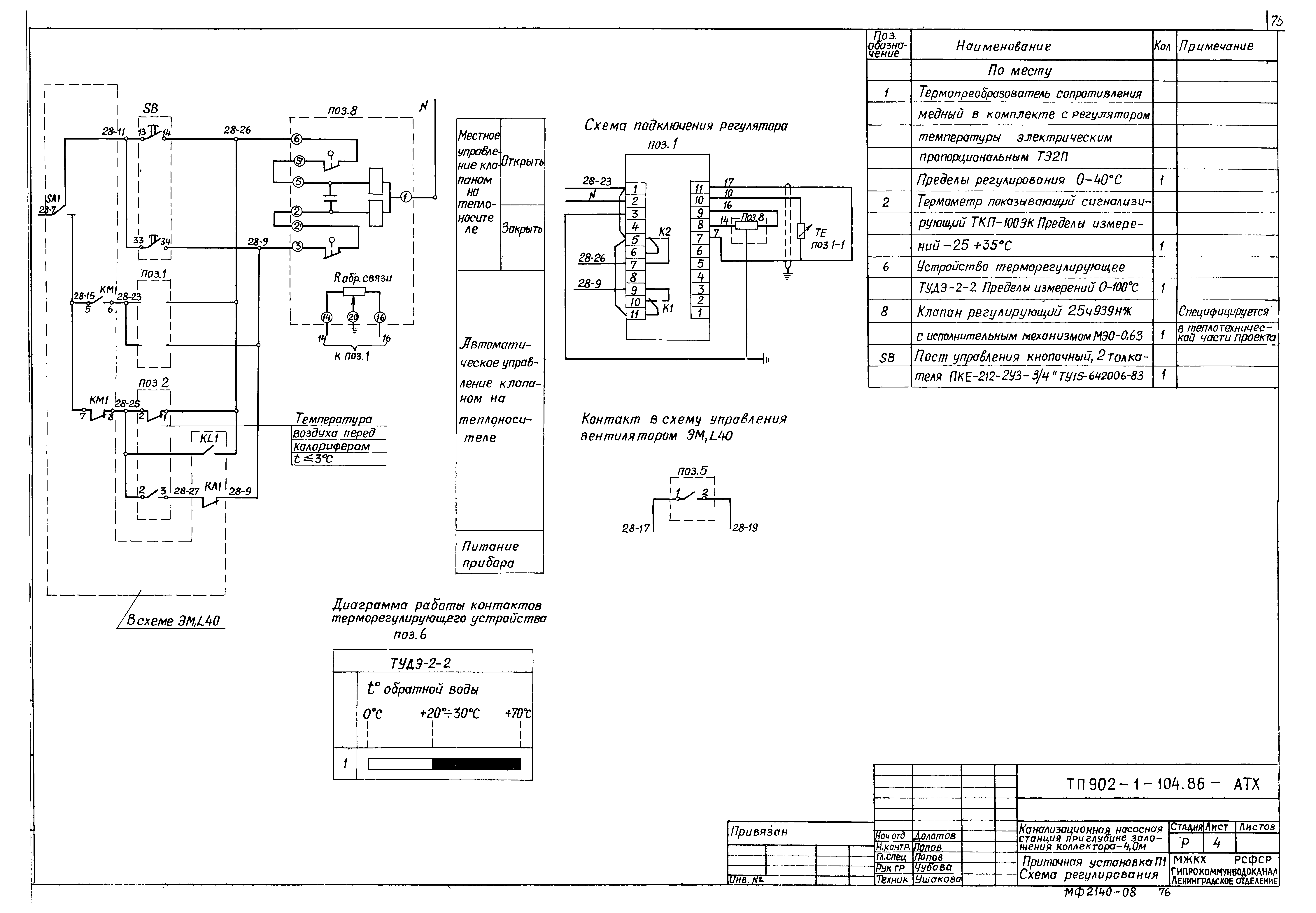
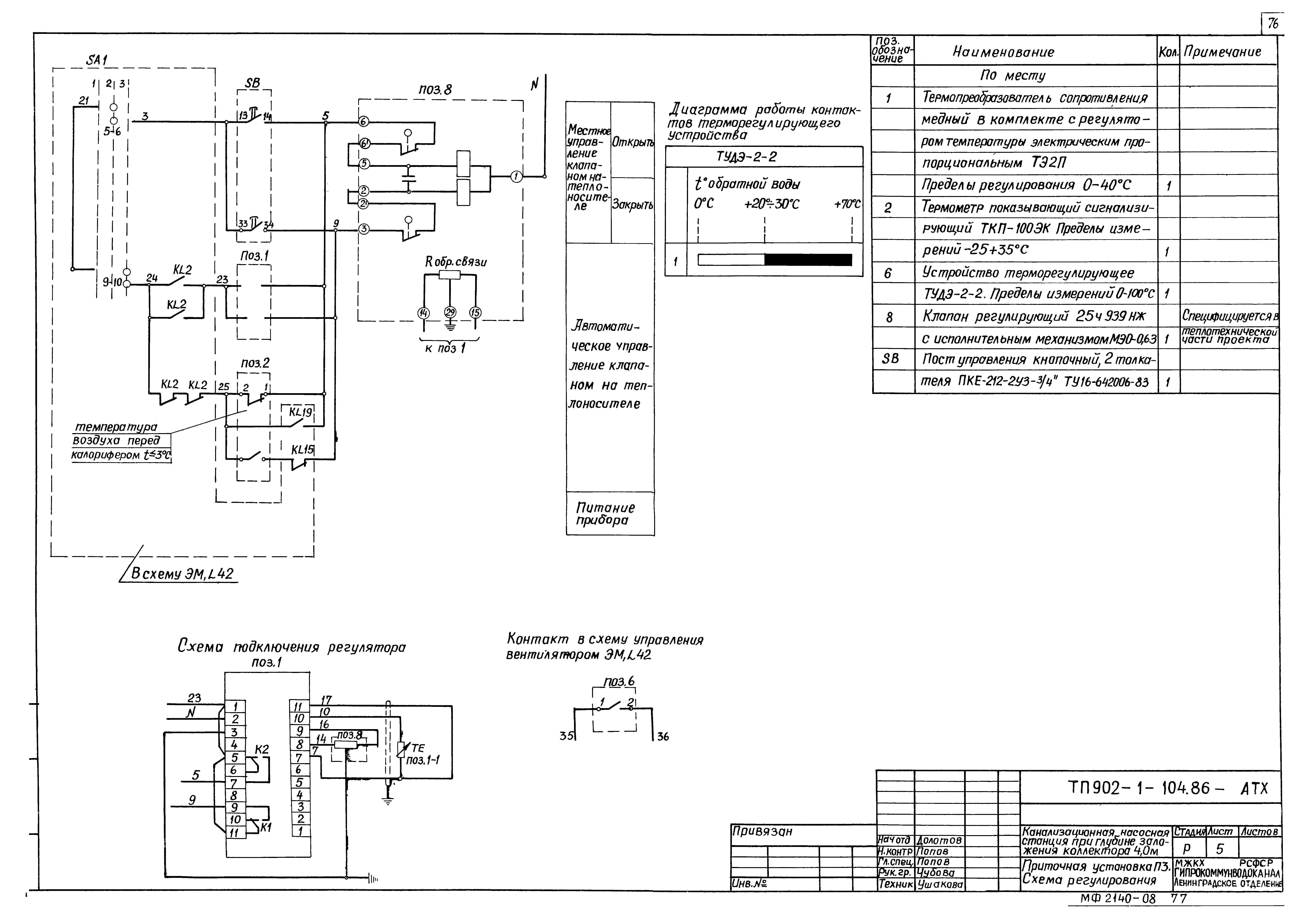
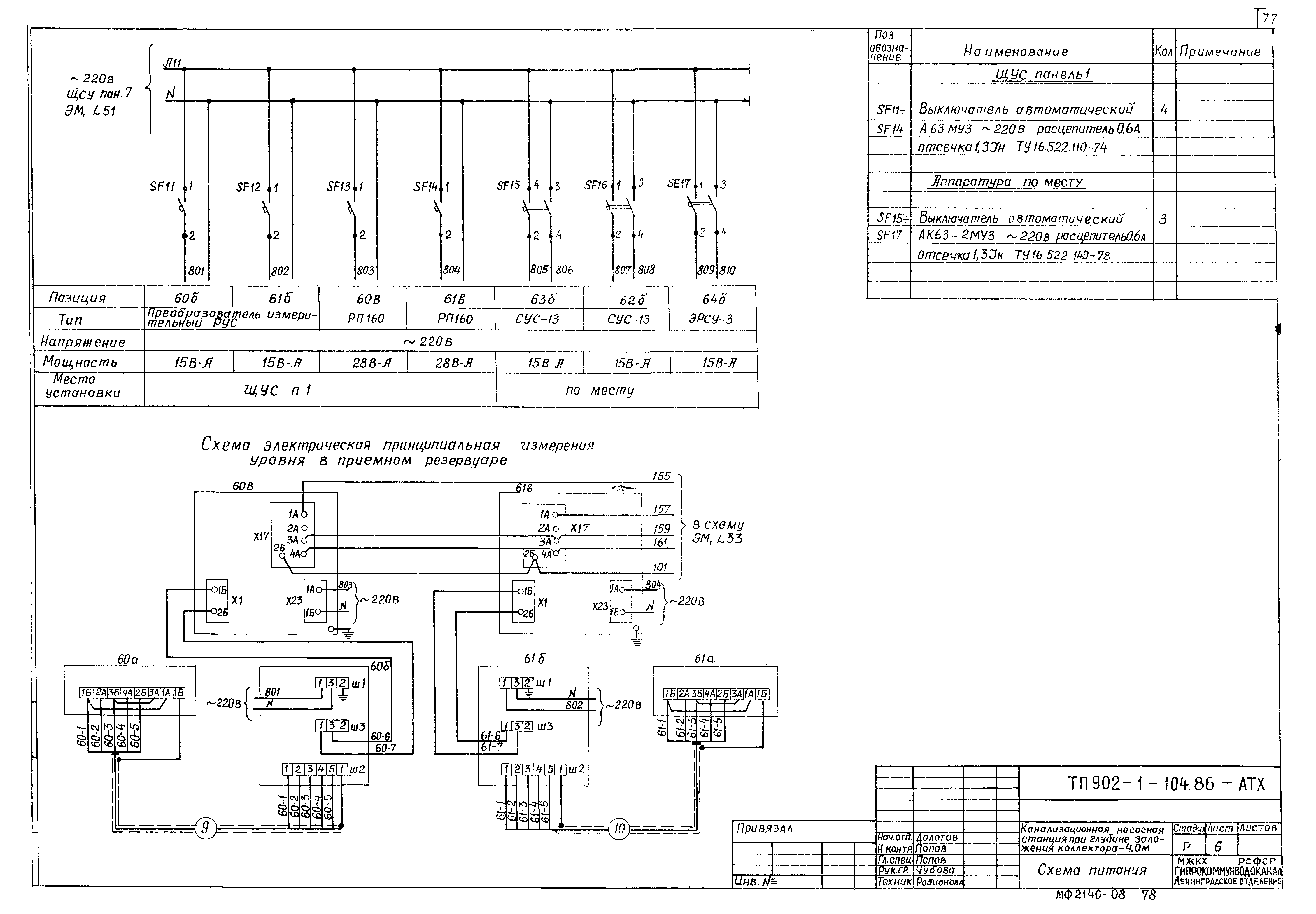
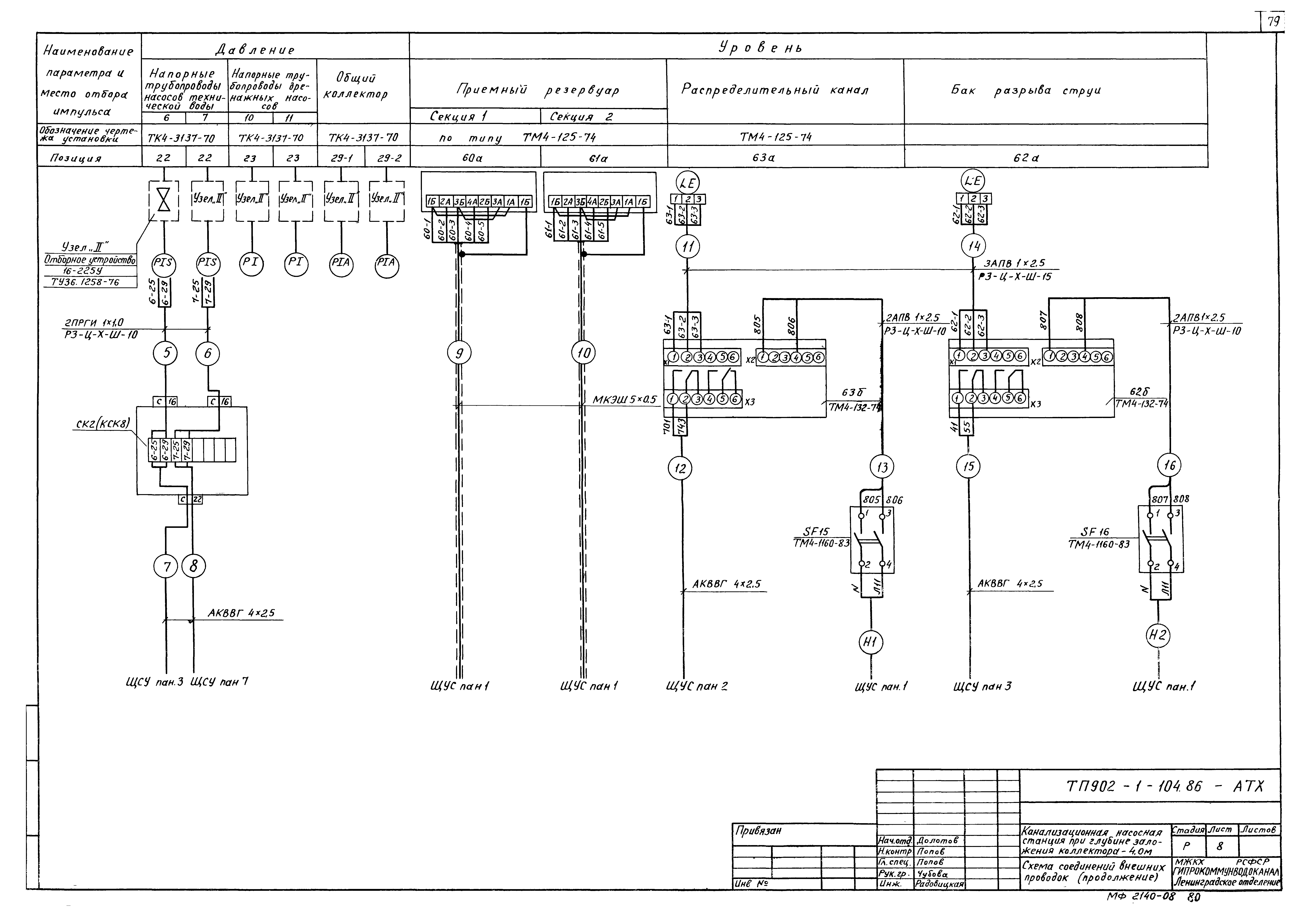
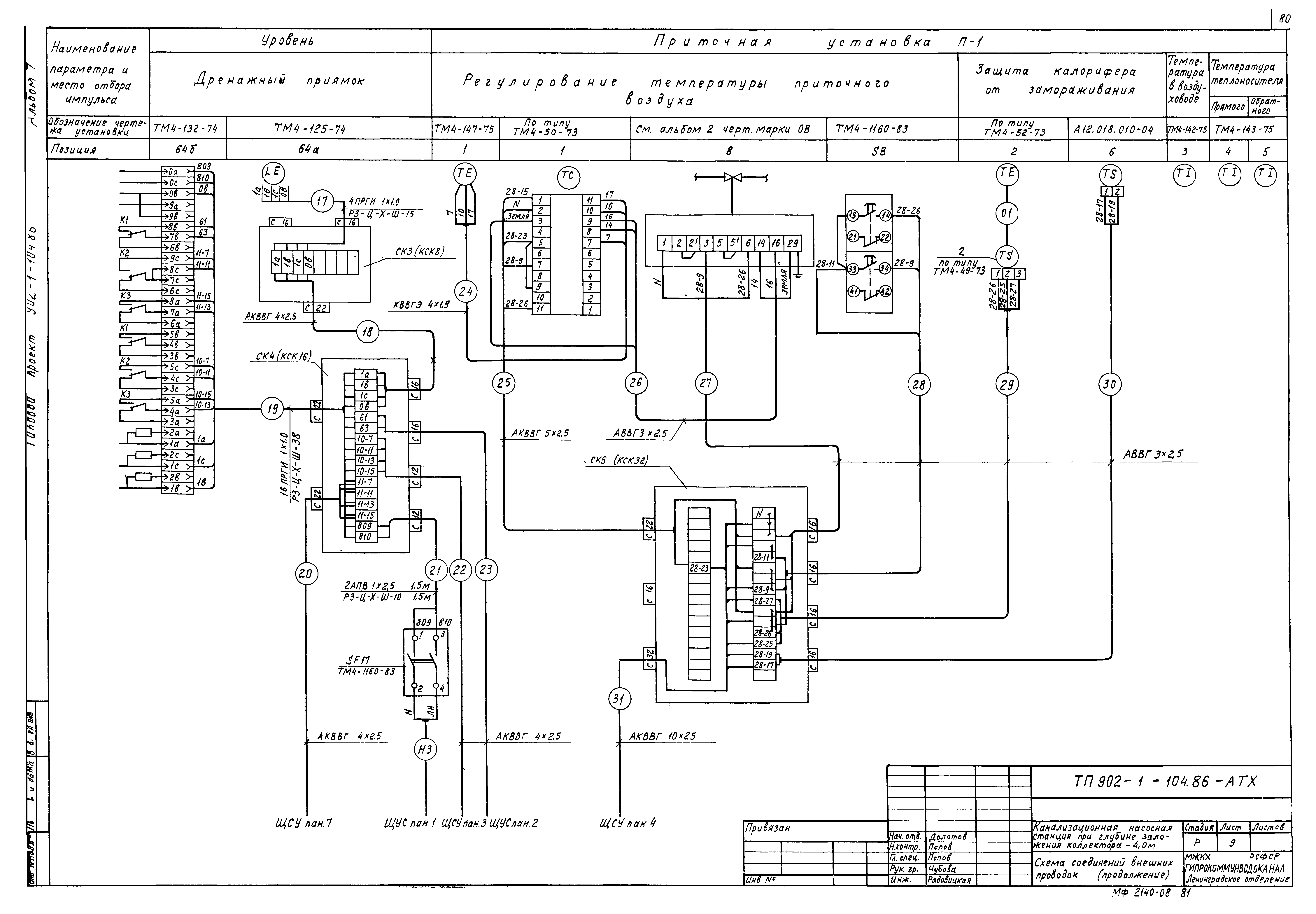
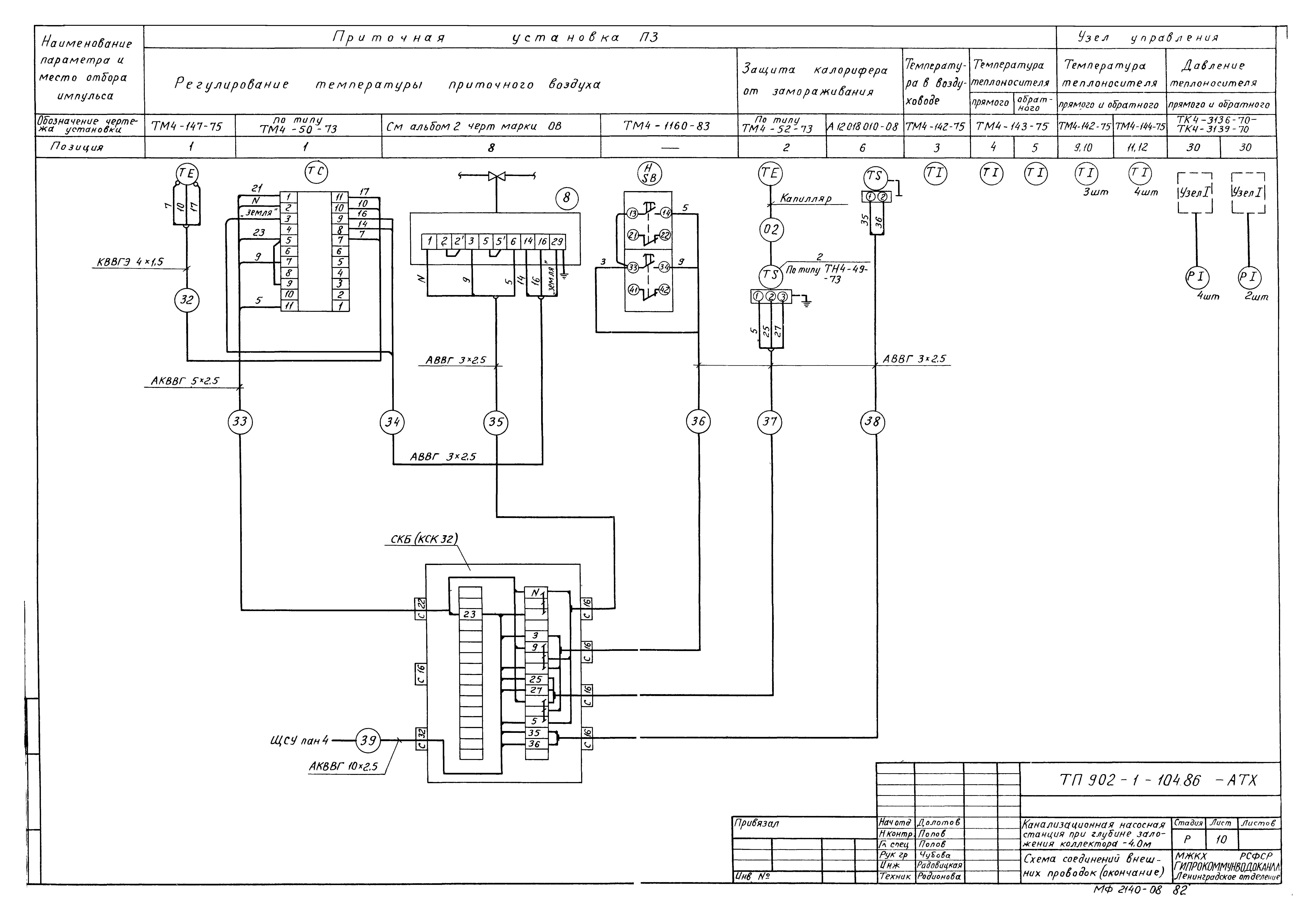
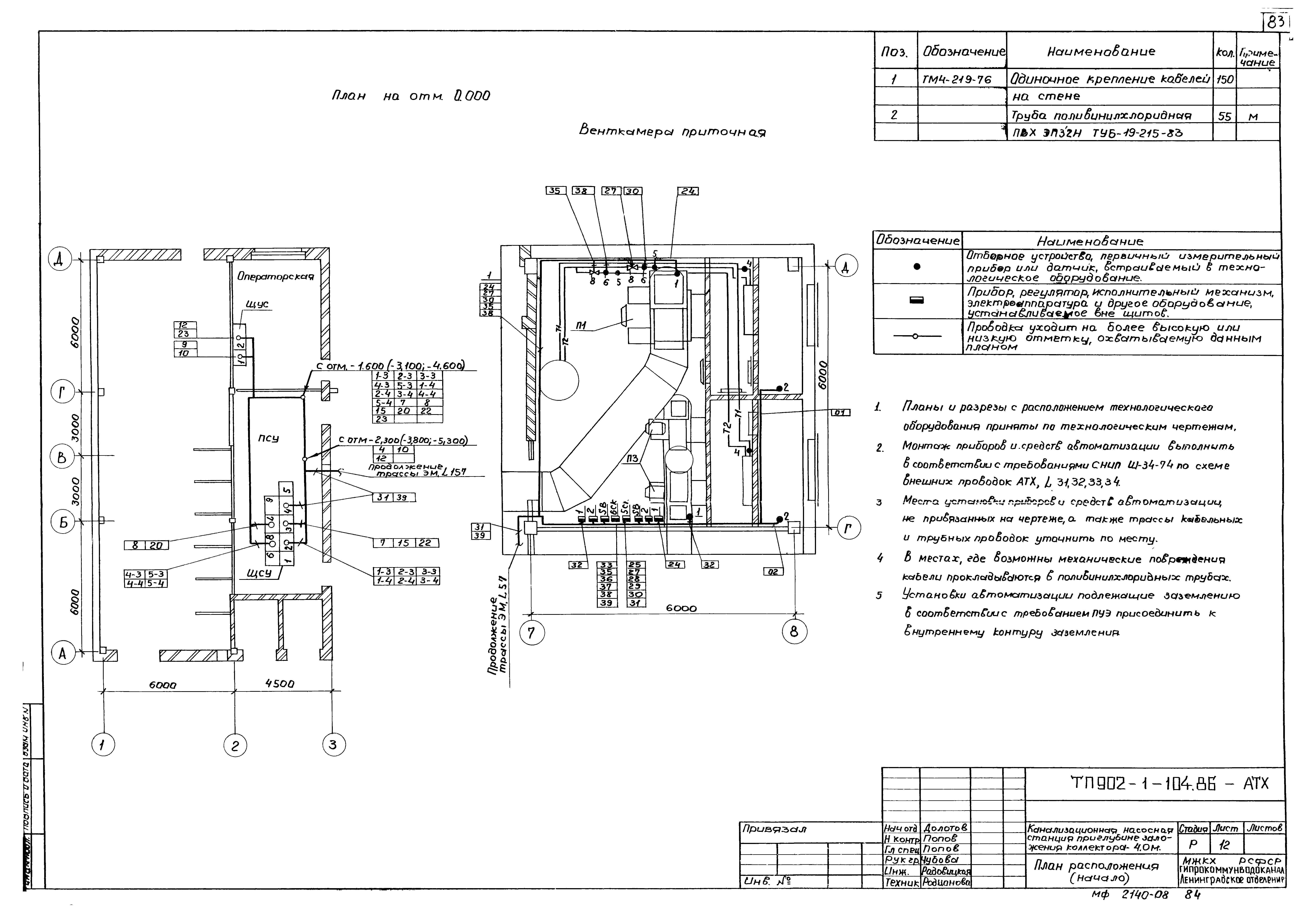
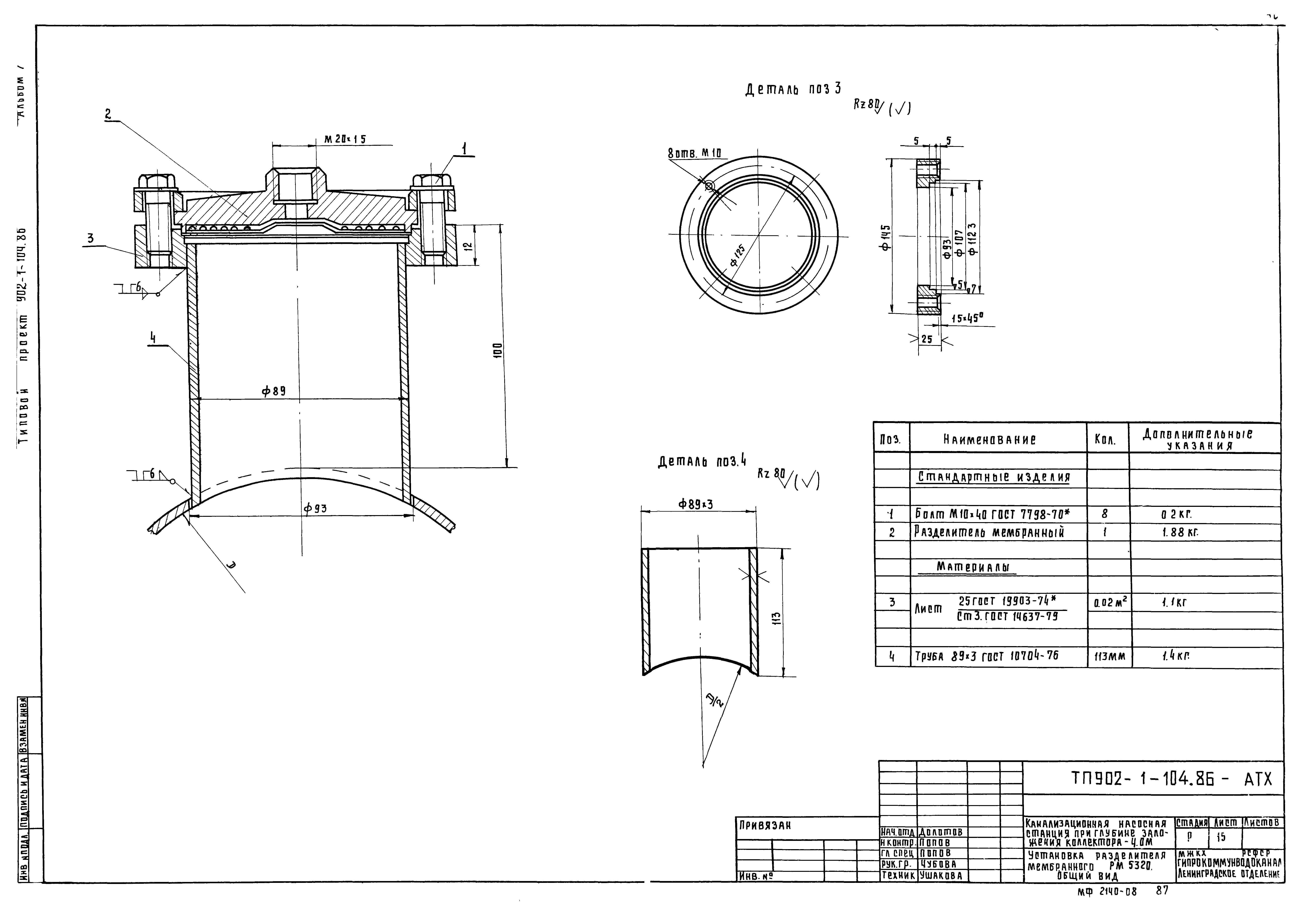
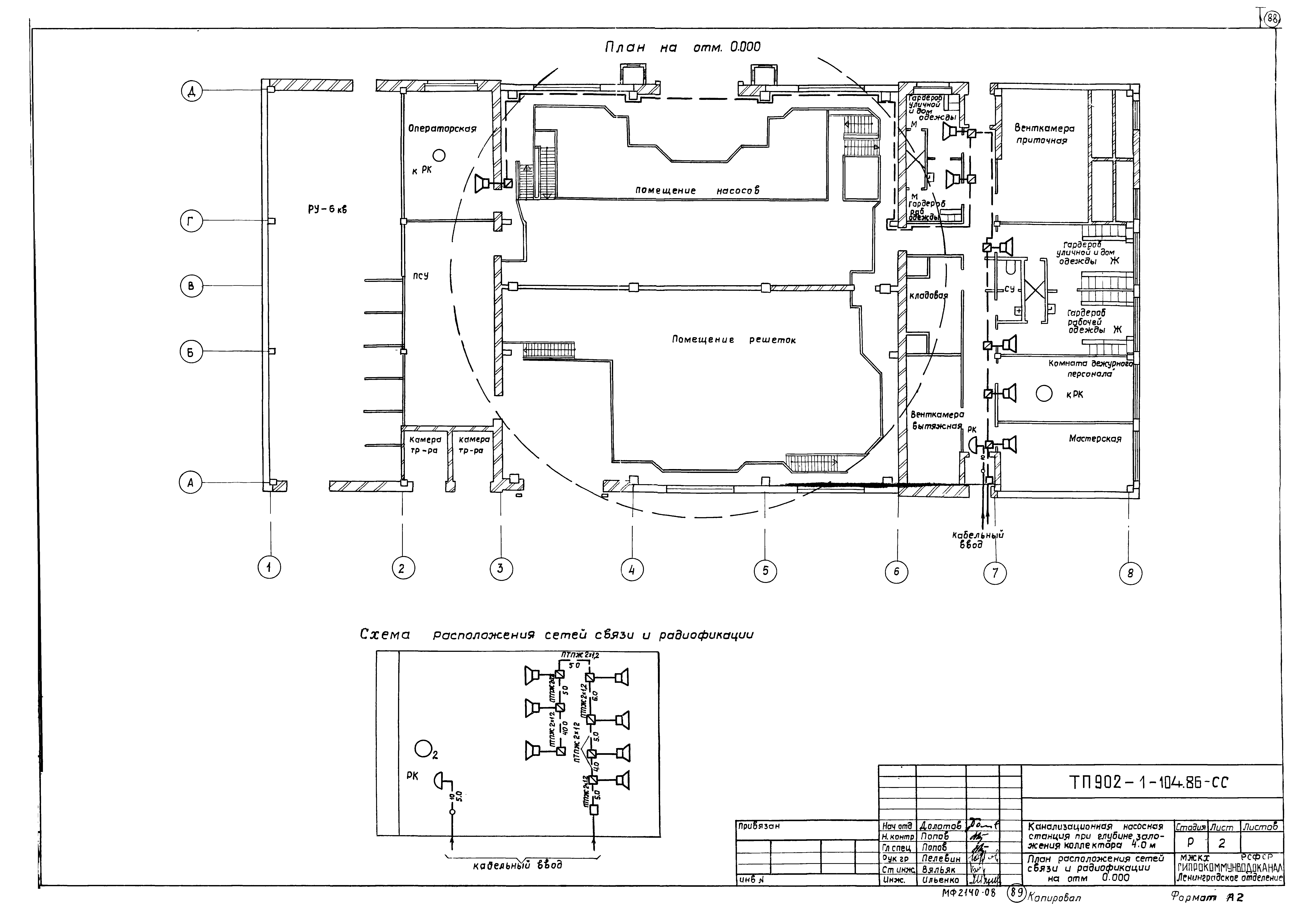
| Оглавление: | ТП 902-1-104.86 Содержание альбома ТП 902-1-104.86-ЭМ Комплект марки ЭМ ТП 902-1-104.86-ЭМ Общие данные (начало) ТП 902-1-104.86-ЭМ Общие данные (окончание) ТП 902-1-104.86-ЭМ Выбор высоковольтных кабелей. Расчет токов К3. Проверка работы блоков питания ТП 902-1-104.86-ЭМ Расчет прямого пуска двигателя ТП 902-1-104.86-ЭМ Расчет релейной защиты. Проверка устойчивости трансформаторов тока к токам К3 ТП 902-1-104.86-ЭМ Схема принципиальная однолинейная сети 6 кВ ТП 902-1-104.86-ЭМ Ввод №1(№2) и секционный выключатель. Схема принципиальная (начало) ТП 902-1-104.86-ЭМ Ввод №1(№2) и секционный выключатель. Схема принципиальная (продолжение) ТП 902-1-104.86-ЭМ Ввод №1(№2) и секционный выключатель. Схема принципиальная (окончание) ТП 902-1-104.86-ЭМ Трансформатор напряжения. Схема принципиальная (начало) ТП 902-1-104.86-ЭМ Трансформатор напряжения. Схема принципиальная (окончание) ТП 902-1-104.86-ЭМ Конденсаторная установка I(II) секции. Схема принципиальная (начало) ТП 902-1-104.86-ЭМ Конденсаторная установка I(II) секции. Схема принципиальная (окончание) ТП 902-1-104.86-ЭМ Секционный разъединитель и трансформатор I(II) секции. Схема принципиальная ТП 902-1-104.86-ЭМ Шкаф низковольтной аппаратуры. Схема принципиальная (начало) ТП 902-1-104.86-ЭМ Шкаф низковольтной аппаратуры. Схема принципиальная (окончание) ТП 902-1-104.86-ЭМ Навесной релейный шкаф ОРШ1,ОРШ2 и выпрямительное устройство VZ1,VZ2. Схема принципиальная ТП 902-1-104.86-ЭМ Схема принципиальная оперативной блокировки ТП 902-1-104.86-ЭМ Схема подключения шинок выпрямленного тока ТП 902-1-104.86-ЭМ РУ. Шкафы 1,2. Схема подключения ТП 902-1-104.86-ЭМ РУ. Шкафы 3,4,12,13,15. Схема подключения ТП 902-1-104.86-ЭМ РУ. Шкафы 5,6,7. ОРШ1(2).Схема подключения ТП 902-1-104.86-ЭМ РУ. Шкафы 9,10. ОРШ1(2).Схема подключения ТП 902-1-104.86-ЭМ РУ. Шкафы 14,16. ОРШ1(2).Схема подключения ТП 902-1-104.86-ЭМ Схема принципиальная однолинейная ~380/220В (начало) ТП 902-1-104.86-ЭМ Схема принципиальная однолинейная ~380/220В (продолжение) ТП 902-1-104.86-ЭМ Схема принципиальная однолинейная ~380/220В (окончание) ТП 902-1-104.86-ЭМ Схема принципиальная вводов ~380/220В с АВР ТП 902-1-104.86-ЭМ Насосы 1-5. Схема принципиальная (начало) ТП 902-1-104.86-ЭМ Насосы 1-5. Схема принципиальная (продолжение) ТП 902-1-104.86-ЭМ Насосы 1-5. Схема принципиальная (окончание) ТП 902-1-104.86-ЭМ Общие цепи управления насосами 1-5. Схема принципиальная (начало) ТП 902-1-104.86-ЭМ Общие цепи управления насосами 1-5. Схема принципиальная (окончание) ТП 902-1-104.86-ЭМ Задвижки 1-1÷5-1. Схема принципиальная ТП 902-1-104.86-ЭМ Насосы технической воды 6,7. Схема принципиальная ТП 902-1-104.86-ЭМ Задвижки 6-1,7-1. Схема принципиальная ТП 902-1-104.86-ЭМ Дренажные насосы 10,11. Схема принципиальная ТП 902-1-104.86-ЭМ Задвижки 1-1÷5-2,15-17,21-24. Насосы 8,9. Дробилка 18. Транспортеры 26,27.Схема принципиальная ТП 902-1-104.86-ЭМ Вентиляторы 28,39. Схема принципиальная ТП 902-1-104.86-ЭМ Вентиляторы 29,31-38. Схема принципиальная ТП 902-1-104.86-ЭМ Вентиляторы 30-1,30-2. Схема принципиальная ТП 902-1-104.86-ЭМ Схема принципиальная сигнализации (начало) ТП 902-1-104.86-ЭМ Схема принципиальная сигнализации (продолжение) ТП 902-1-104.86-ЭМ Схема принципиальная сигнализации (окончание) ТП 902-1-104.86-ЭМ Отдельностоящее оборудование. Схема подключения (начало) ТП 902-1-104.86-ЭМ Отдельностоящее оборудование. Схема подключения (продолжение) ТП 902-1-104.86-ЭМ Отдельностоящее оборудование. Схема подключения (окончание) ТП 902-1-104.86-ЭМ Щит ЩУС. Щит ЩСУ. Панели 1,2. Схема подключения ТП 902-1-104.86-ЭМ Щит ЩУС, панели 3-5. Схема подключения ТП 902-1-104.86-ЭМ Щит ЩУС, панели 6-9. Схема подключения ТП 902-1-104.86-ЭМ Кабельный журнал (начало) ТП 902-1-104.86-ЭМ Кабельный журнал (продолжение) ТП 902-1-104.86-ЭМ Кабельный журнал (окончание) ТП 902-1-104.86-ЭМ Расположение электрооборудования и прокладка кабелей. План электропомещений ТП 902-1-104.86-ЭМ Расположение электрооборудования и прокладка кабелей. План на отм. 0.00 ТП 902-1-104.86-ЭМ Расположение электрооборудования и прокладка кабелей. План на отм. -4.60;-5.30 ТП 902-1-104.86-ЭМ Расположение электрооборудования и прокладка кабелей. План на отм. -8.60 ТП 902-1-104.86-ЭМ Расположение электрооборудования и прокладка кабелей. План на отм. -11.50 ТП 902-1-104.86-ЭМ Расположение электрооборудования и прокладка кабелей. Сечения ТП 902-1-104.86-ЭМ Заземление ТП 902-1-104.86-ЭМ План электроосвещения (начало) ТП 902-1-104.86-ЭМ План электроосвещения (окончание) ТП 902-1-104.86-ЭМН Щиты ЩСУ,ЩУС. Ящики ЯУП,35ПМ. Эскизы общих видов ТП 902-1-104.86-ЭМ.ЛО Опросный лист для заказа КРУ серии КМ-1Ф ЭМ.ЛО ТП 902-1-104.86-ЭМ.И Конструкция для установки контактора в камере ЭМ.И ТП 902-1-104.86-ЭМ.ВР Ведомость объемов строительный и монтажных работ ЭМ.ВР ТП 902-1-104.86-АТХ Комплект марки АТХ ТП 902-1-104.86-АТХ Общие данные ТП 902-1-104.86-АТХ Схема функциональная ТП 902-1-104.86-АТХ Приточная установка П1(П3). Схема функциональная ТП 902-1-104.86-АТХ Приточная установка П1. Схема регулирования ТП 902-1-104.86-АТХ Приточная установка П3. Схема регулирования ТП 902-1-104.86-АТХ Схема питания ТП 902-1-104.86-АТХ Схема соединения внешних проводок (начало) ТП 902-1-104.86-АТХ Схема соединения внешних проводок (продолжение) ТП 902-1-104.86-АТХ Схема соединения внешних проводок (окончание) ТП 902-1-104.86-АТХ Кабельный журнал ТП 902-1-104.86-АТХ План расположения (начало) ТП 902-1-104.86-АТХ План расположения (продолжение) ТП 902-1-104.86-АТХ План расположения (окончание) ТП 902-1-104.86-АТХ Установка разделителя мембранного РМ5320. Общий вид ТП 902-1-104.86-СС Комплект марки СС ТП 902-1-104.86-СС Общие данные ТП 902-1-104.86-СС План расположения сетей связи и радиофикации на отм. 0.000 |
| Разработан: | Ленинградское отделение Гипрокоммунводоканала |
| Утверждён: | 27.10.1986 МЖКХ РСФСР (462) |
























































































