Скачать Типовой проект 902-2-263 Альбом II. Производственное здание. Пояснительная записка. ЧертежиДата актуализации: 01.01.2021
|
| Обозначение: | Типовой проект 902-2-263 |
| Обозначение англ: | 902-2-263 |
| Статус: | не определен законодательством |
| Название рус.: | Альбом II. Производственное здание. Пояснительная записка. Чертежи |
| Дата добавления в базу: | 01.09.2013 |
| Дата актуализации: | 01.01.2021 |
| Дата введения: | 25.02.1976 |
| Дата окончания срока действия: | 30.06.2003 |
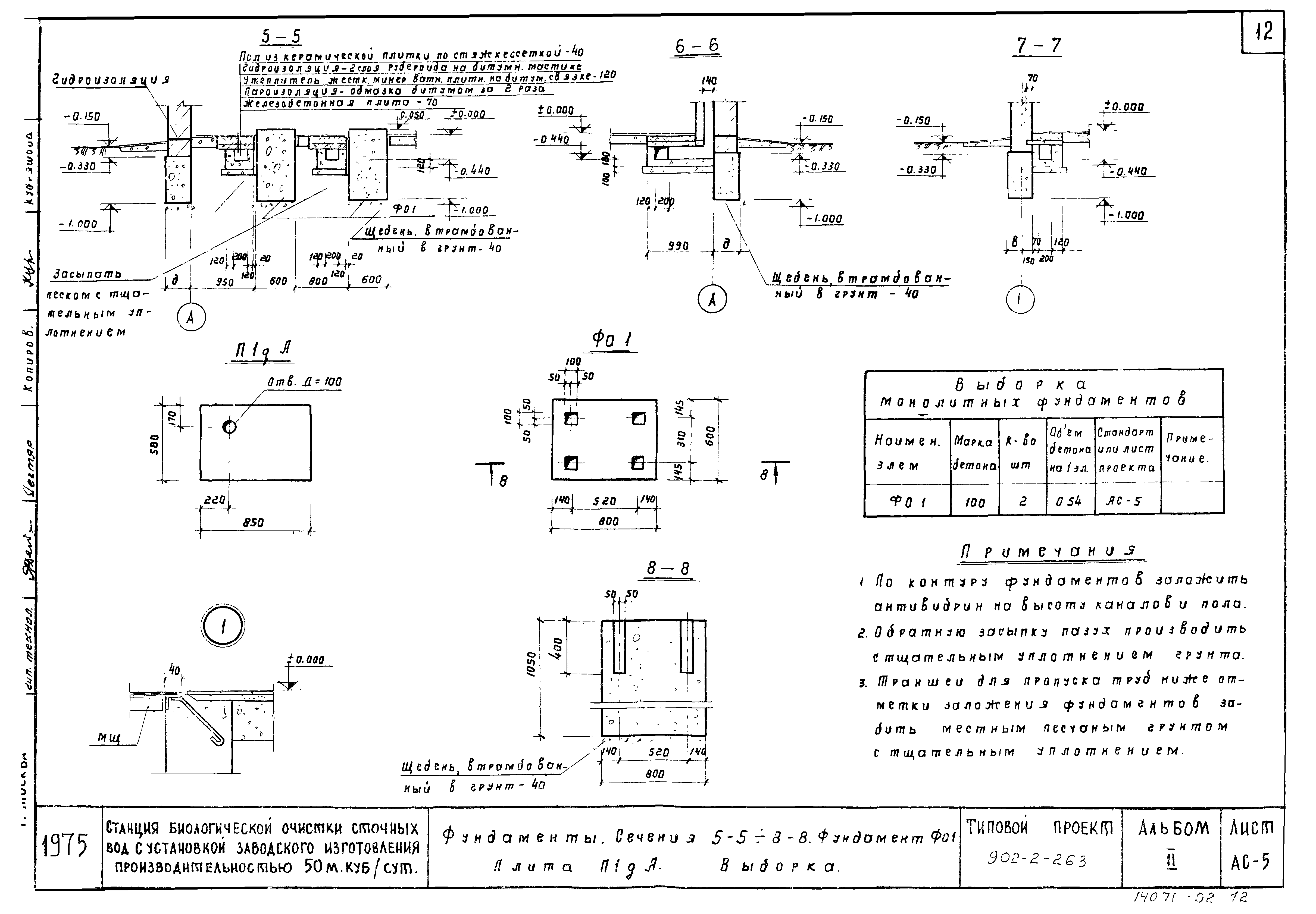
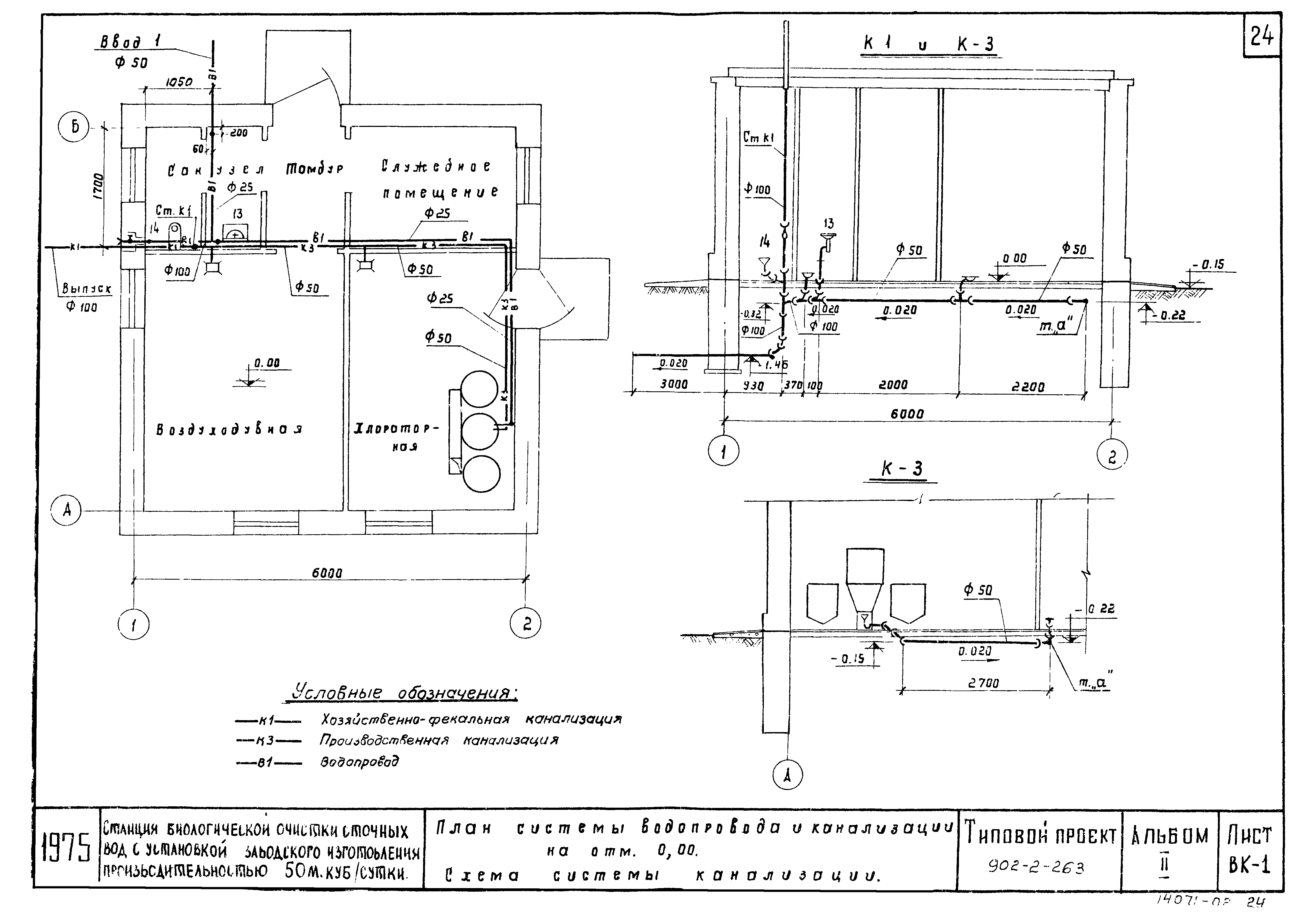
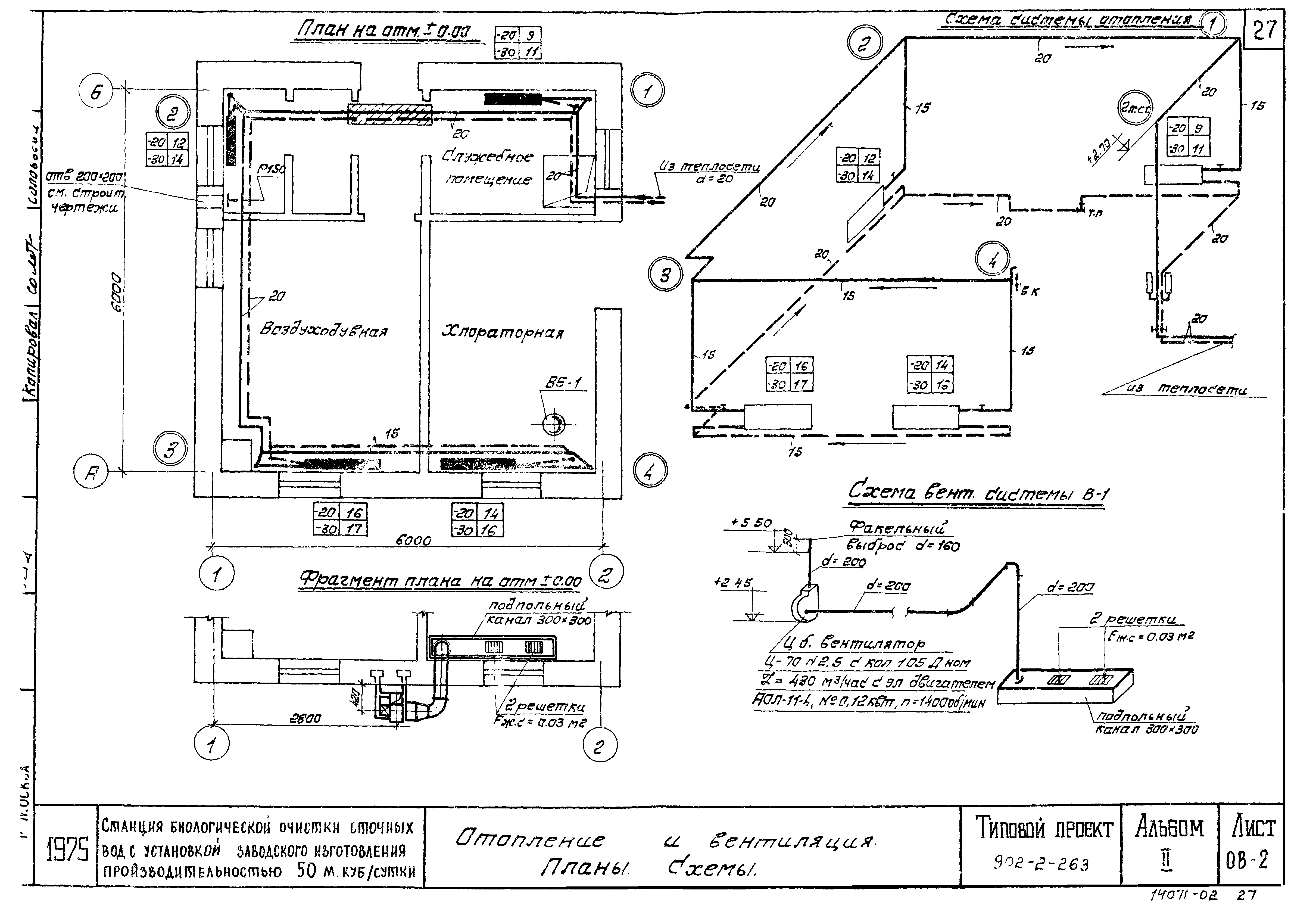
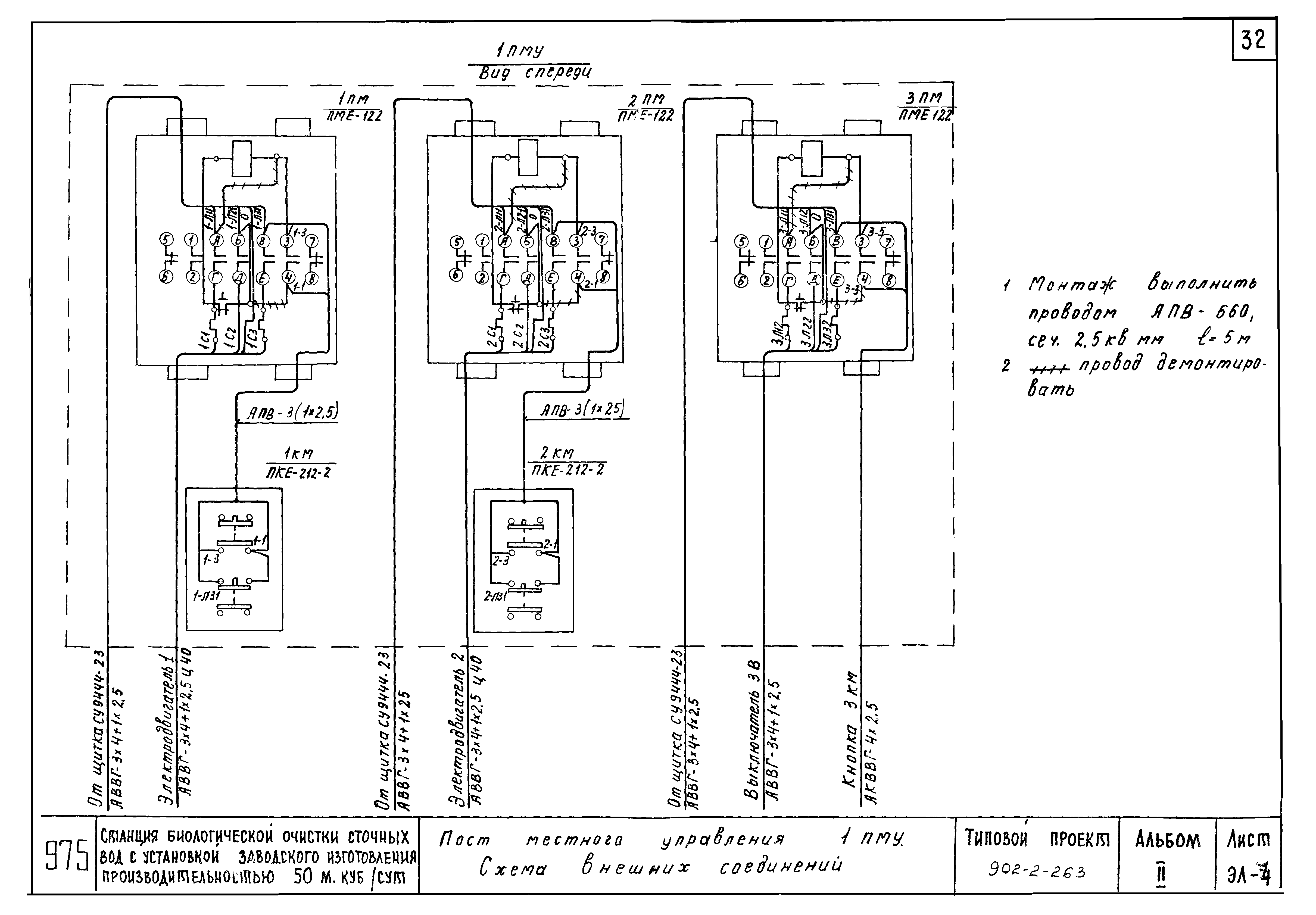
| Оглавление: | ТП 902-2-263 С-1 Содержание альбома ТП 902-2-263 ПЗ1-5 Пояснительная записка ТП 902-2-263 АС-1 Заглавный лист ТП 902-2-263 АС-2 План на отм. ±0.000. Фасады, разрез 1-1 ТП 902-2-263 АС-3 План кровли, план перемычек и полов. Спецификации. Детали 1,2,3,4,5 ТП 902-2-263 АС-4 Фундаменты. План. Сечения 1-1÷4-4. Выборка ТП 902-2-263 АС-5 Фундаменты. Сечения 5-5÷8-8. Фундаменты ФО1. Плита П1дА. Выборка ТП 902-2-263 АС-6 Площадки монолитные ПМ1,ПМ2. Планы. Сечения. Спецификация. Выборка стали. Расход материалов ТП 902-2-263 АС-7 Фундаменты. Металлические щиты МЩ1,МЩ2. Закладная деталь М1. Деревянная решетка ДР1. Спецификация и выборка стали ТП 902-2-263 АС-8 Покрытие. План. Спецификация стали. Выборки ТП 902-2-263 АС-9 Покрытие, монолитная плита покрытия ППм1. Сечения 1-1÷3-3. Спецификация арматуры. Расход материалов ТП 902-2-263 АС-10 Смотровой колодец выпуска канализации ТП 902-2-263 ТХ-1 Воздуходувная. План на отм. 0.00. Разрез 1-1 ТП 902-2-263 ТХ-2 Воздуходувная. Разрез 2-2. Спецификация оборудования и материалов ТП 902-2-263 ТХ-3 Воздуходувная. Опора приварная неподвижная для трубы Ду80 ТП 902-2-263 ТХ-4 Хлораторная. Установка для хлорирования. План на отм. 0.00. Разрез 1-1 ТП 902-2-263 ТХ-5 Хлораторная. Установка для хлорирования. Разрез 2-2. Спецификация оборудования и материалов ТП 902-2-263 ТХ-6 Смотровой колодец выпуска канализации. Корыто дырчатое. Корпус. Стенка боковая ТП 902-2-263 ВК-1 План системы водопровода и канализации на отм. 0.00. Схема системы канализации ТП 902-2-263 ВК-2 Схема системы водопровода. Сводная спецификация систем водопровода и канализации ТП 902-2-263 ОВ-1 Отопление и вентиляция. Заглавный лист ТП 902-2-263 ОВ-2 Отопление и вентиляция. Планы. Схемы ТП 902-2-263 ОВ-3 Отопление и вентиляция. Спецификация ТП 902-2-263 ЭЛ-1 Принципиальная однолинейная схема сети 380/220 В ТП 902-2-263 ЭЛ-2 Принципиальная схема управления газодувкой и вентилятором ТП 902-2-263 ЭЛ-3 Принципиальная схема управления решеткой-дробилкой ТП 902-2-263 ЭЛ-4 Пост местного управления 1ПМУ. Схема внешних соединений ТП 902-2-263 ЭЛ-5 Схема внешних соединений отдельно стоящих сооружений ТП 902-2-263 ЭЛ-6 Расположение электрооборудования и прокладка кабелей ТП 902-2-263 ЭЛ-7 Электроосвещение. План ТП 902-2-263 ЭЛ-8 Пост местного управления 1ПМУ. Общий вид |
| Разработан: | Гипрокоммунводоканал Минжилкомхоза РСФСР |
| Утверждён: | 30.12.1975 МЖКХ РСФСР (23-ТД) |




































