Скачать Типовой проект 902-2-223 Альбом I. Пояснительная записка. Здания и сооруженияДата актуализации: 01.01.2021
|
| Обозначение: | Типовой проект 902-2-223 |
| Обозначение англ: | 902-2-223 |
| Статус: | не определен законодательством |
| Название рус.: | Альбом I. Пояснительная записка. Здания и сооружения |
| Дата добавления в базу: | 01.09.2013 |
| Дата актуализации: | 01.01.2021 |
| Дата введения: | 30.04.1975 |
| Дата окончания срока действия: | 30.06.2003 |
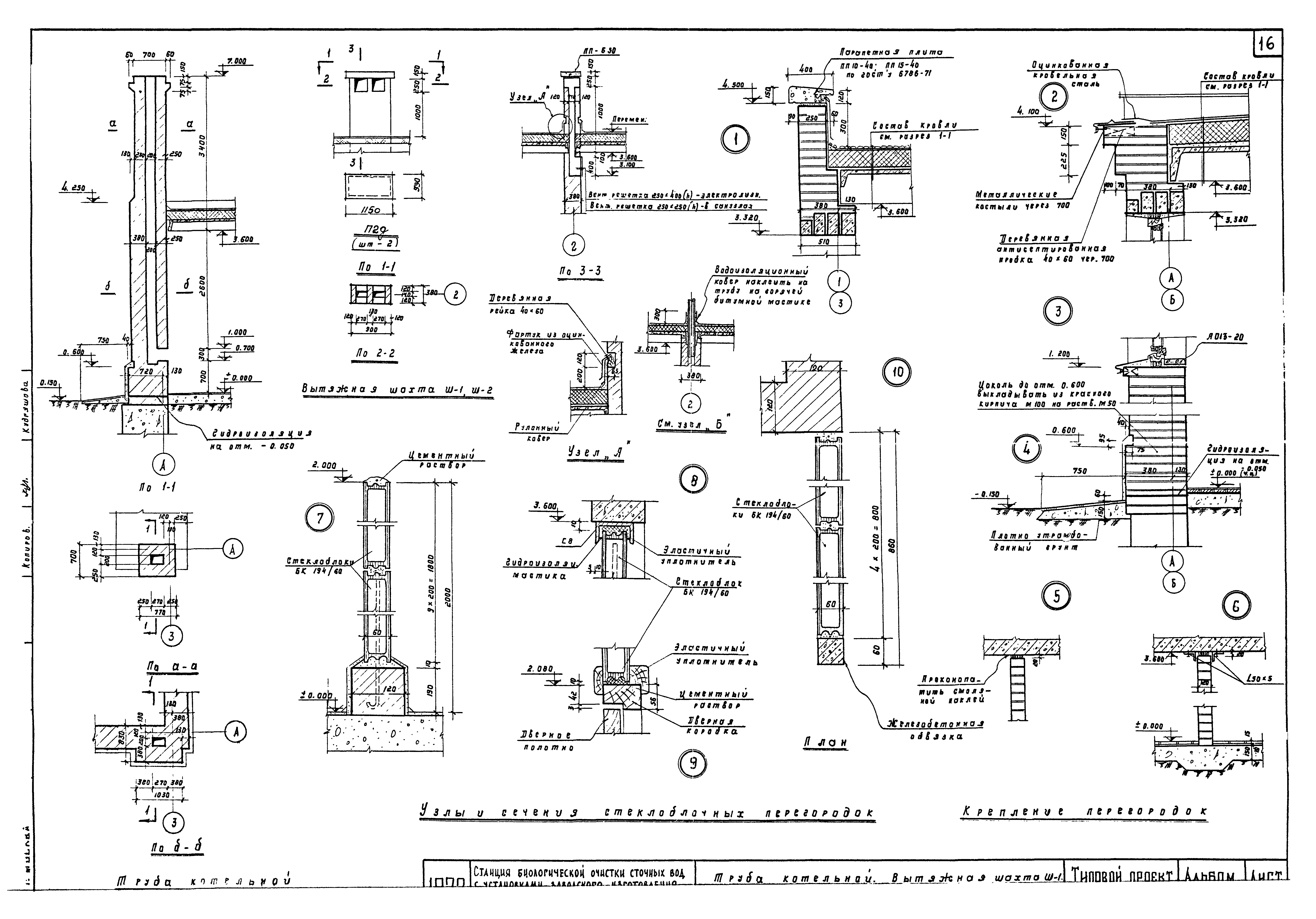
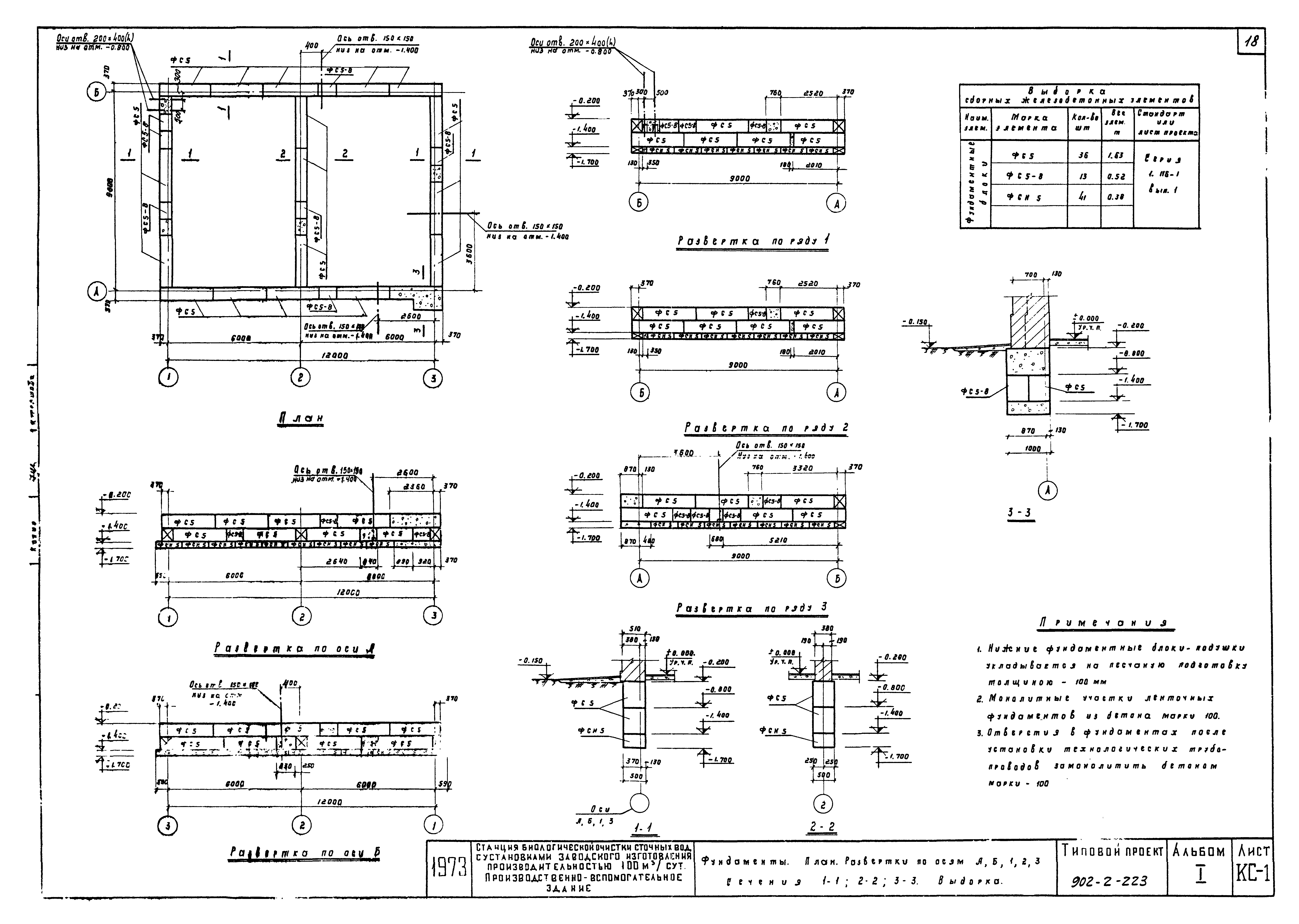
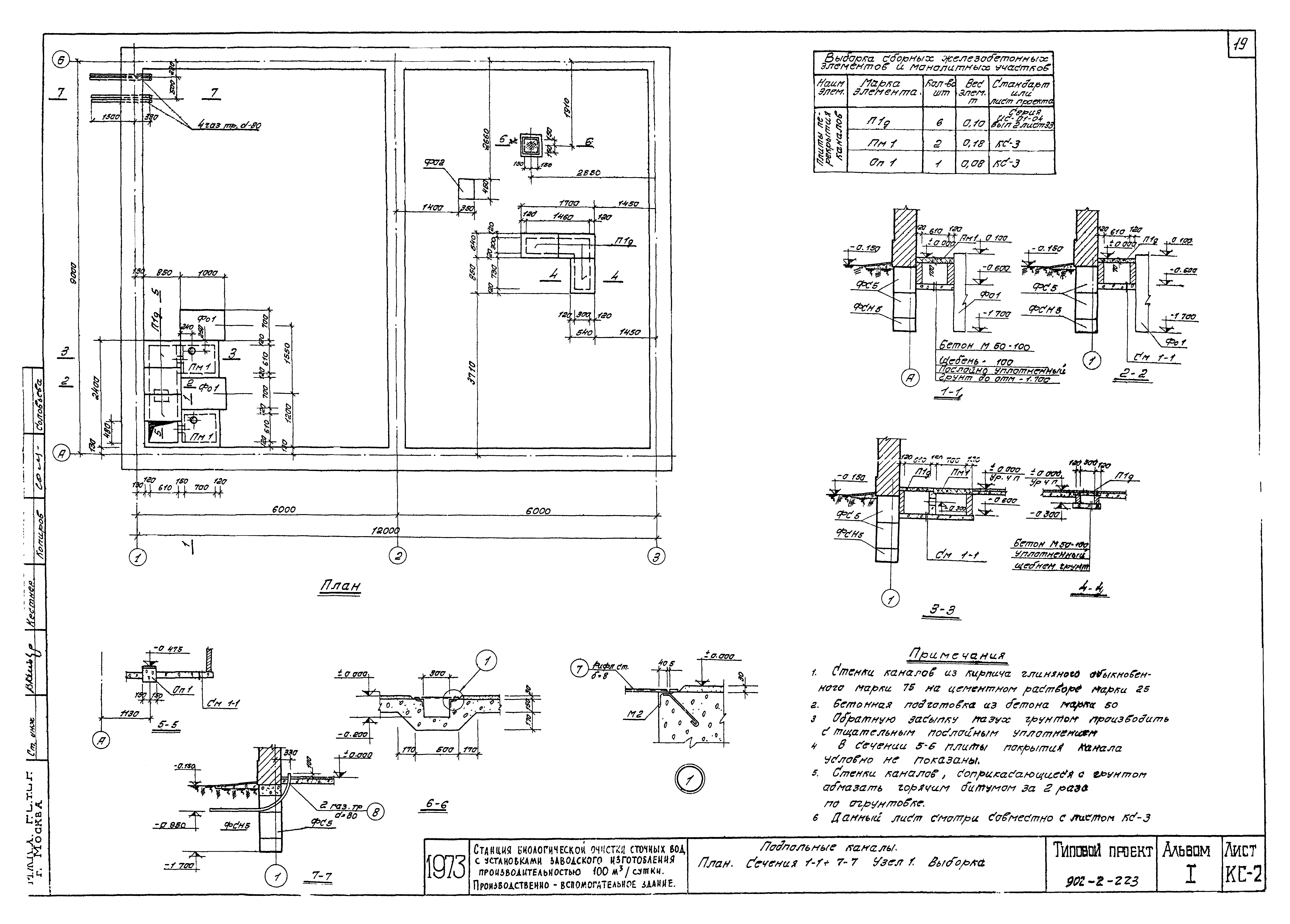
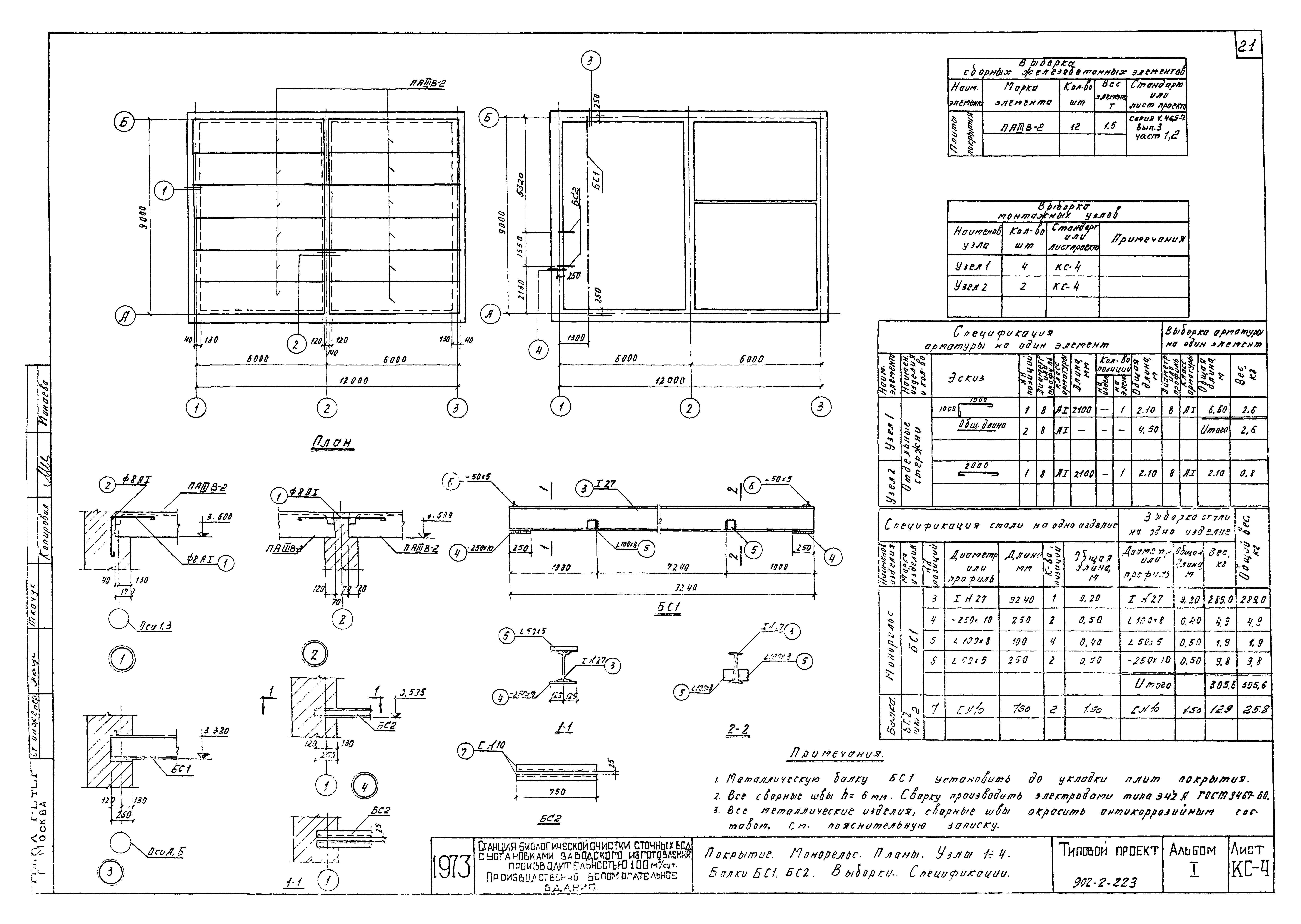
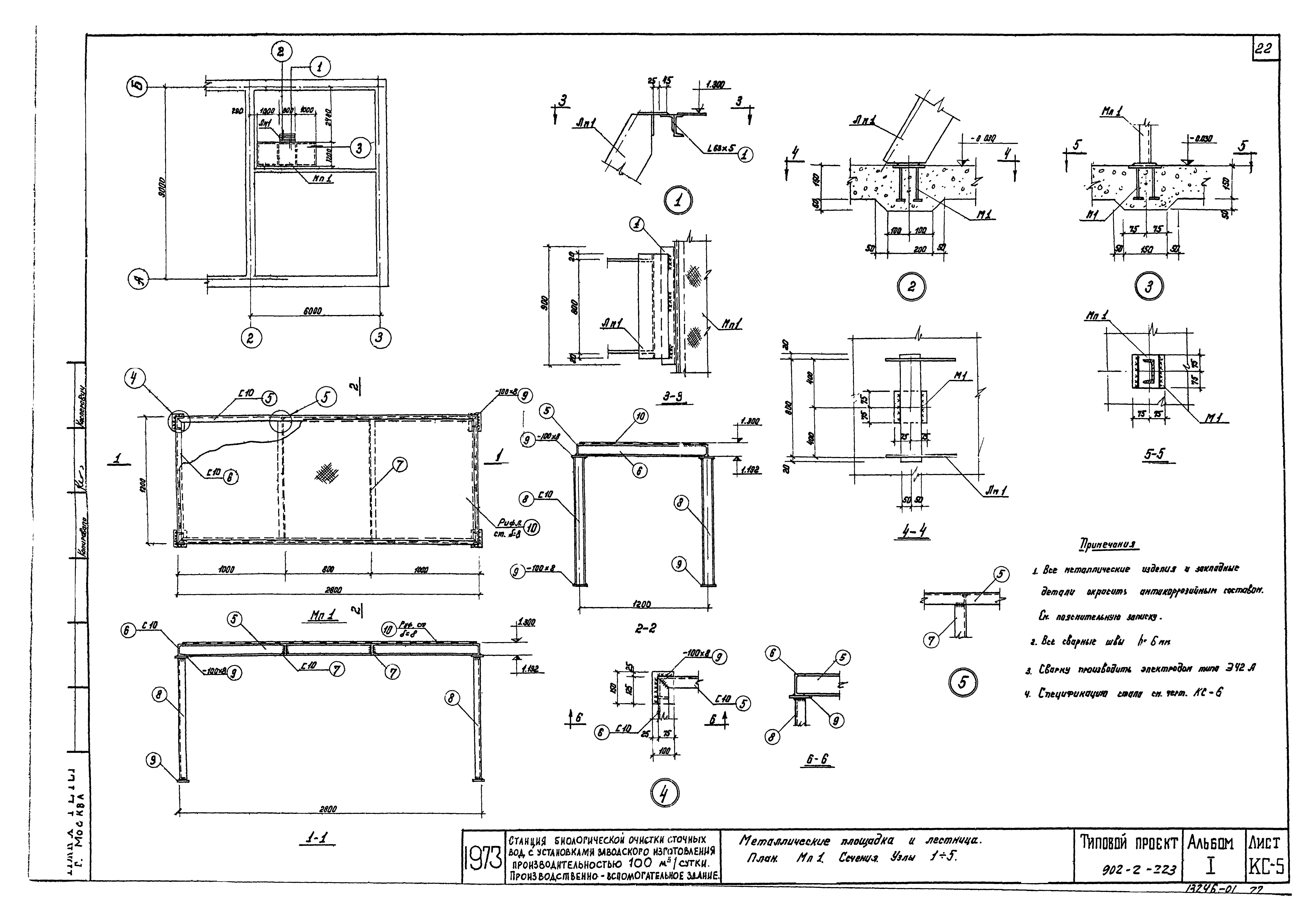
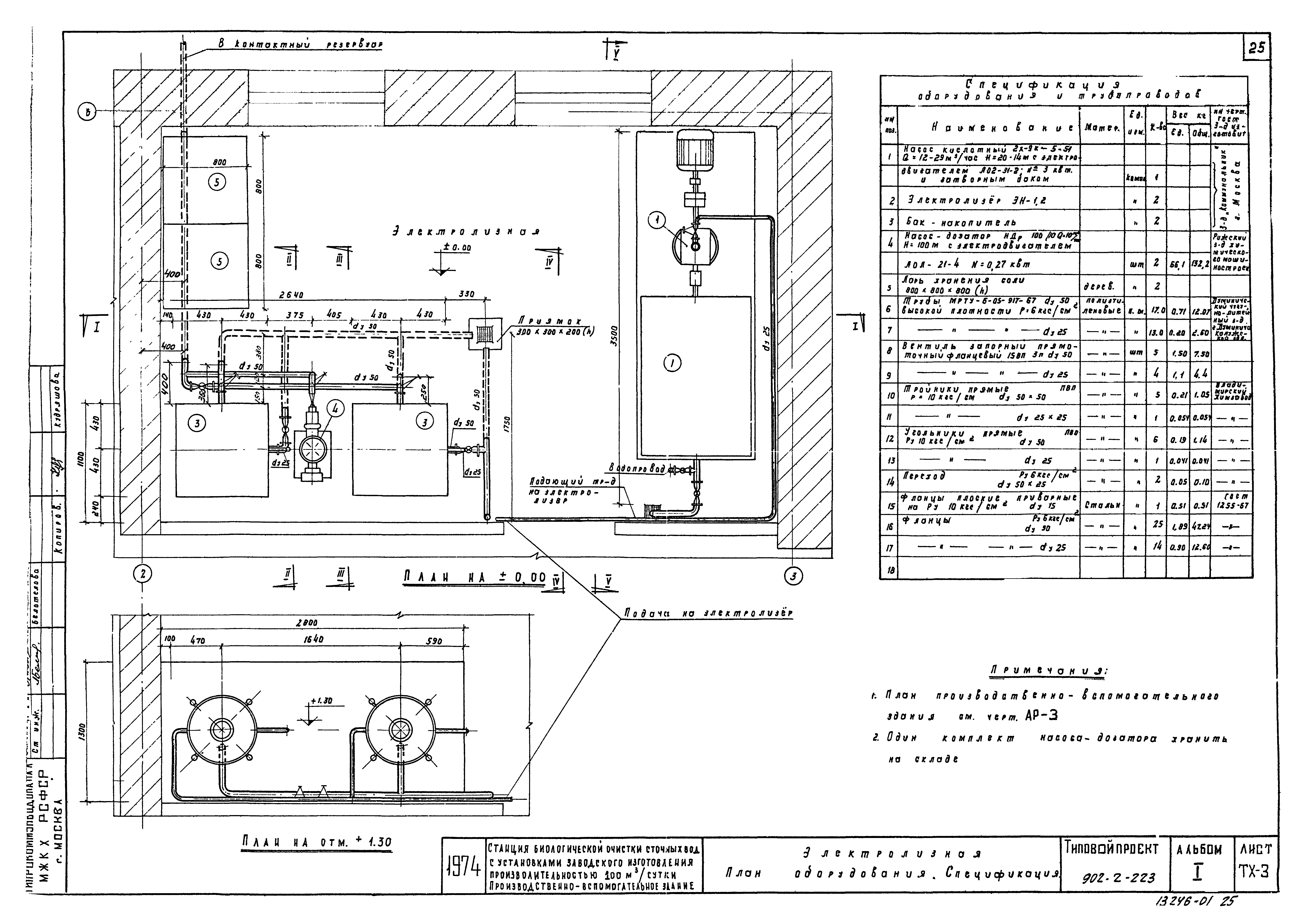
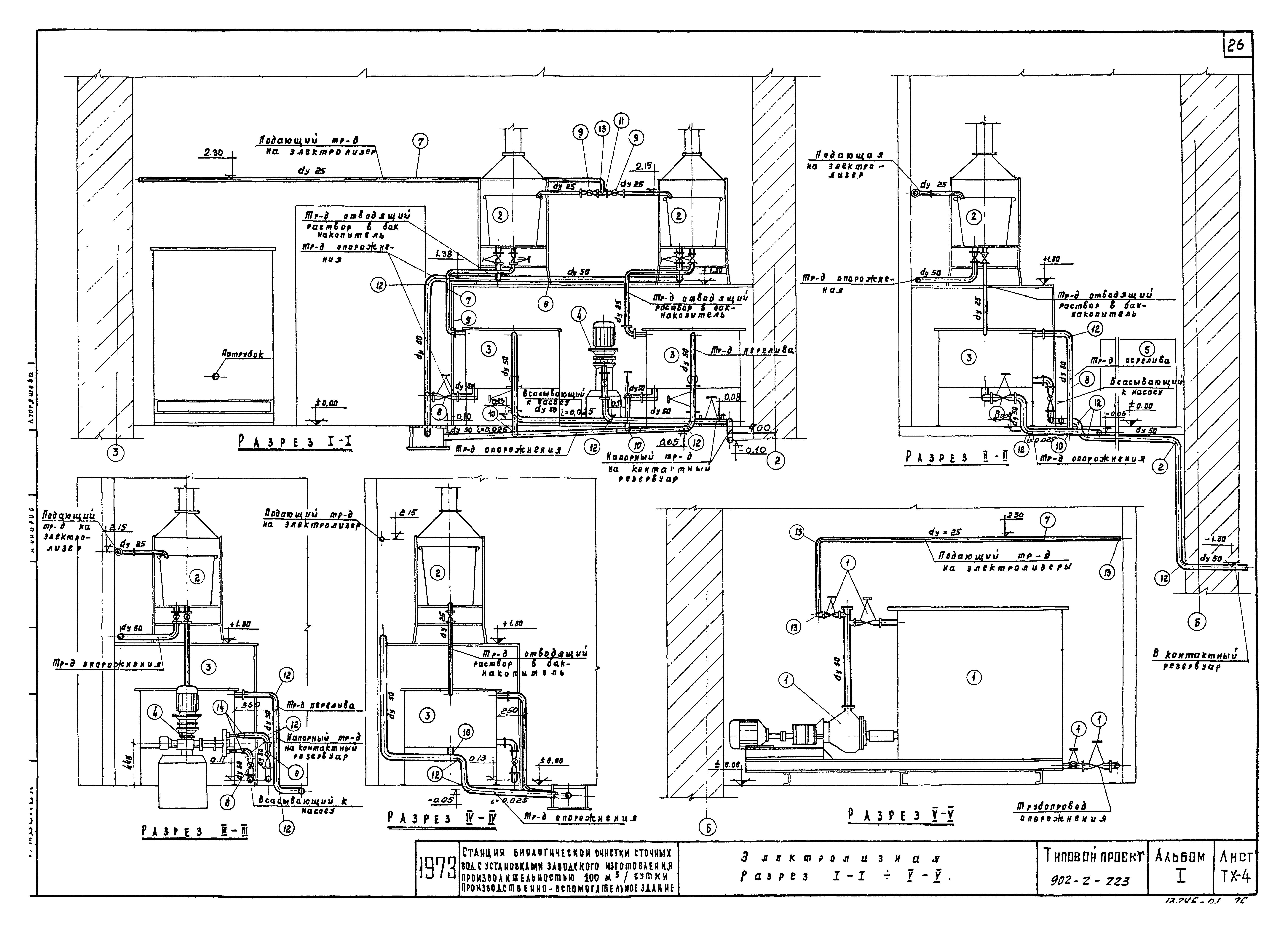
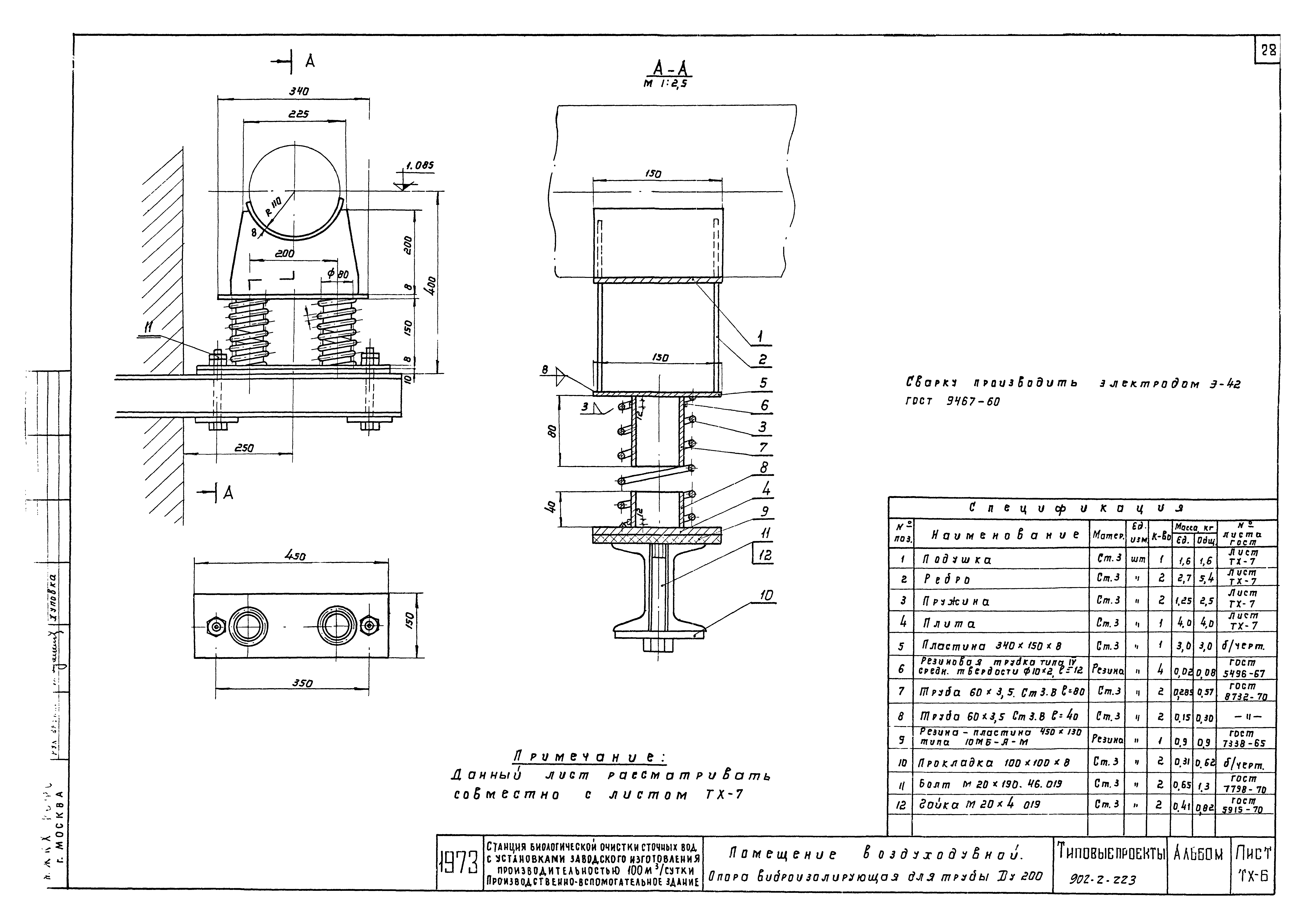
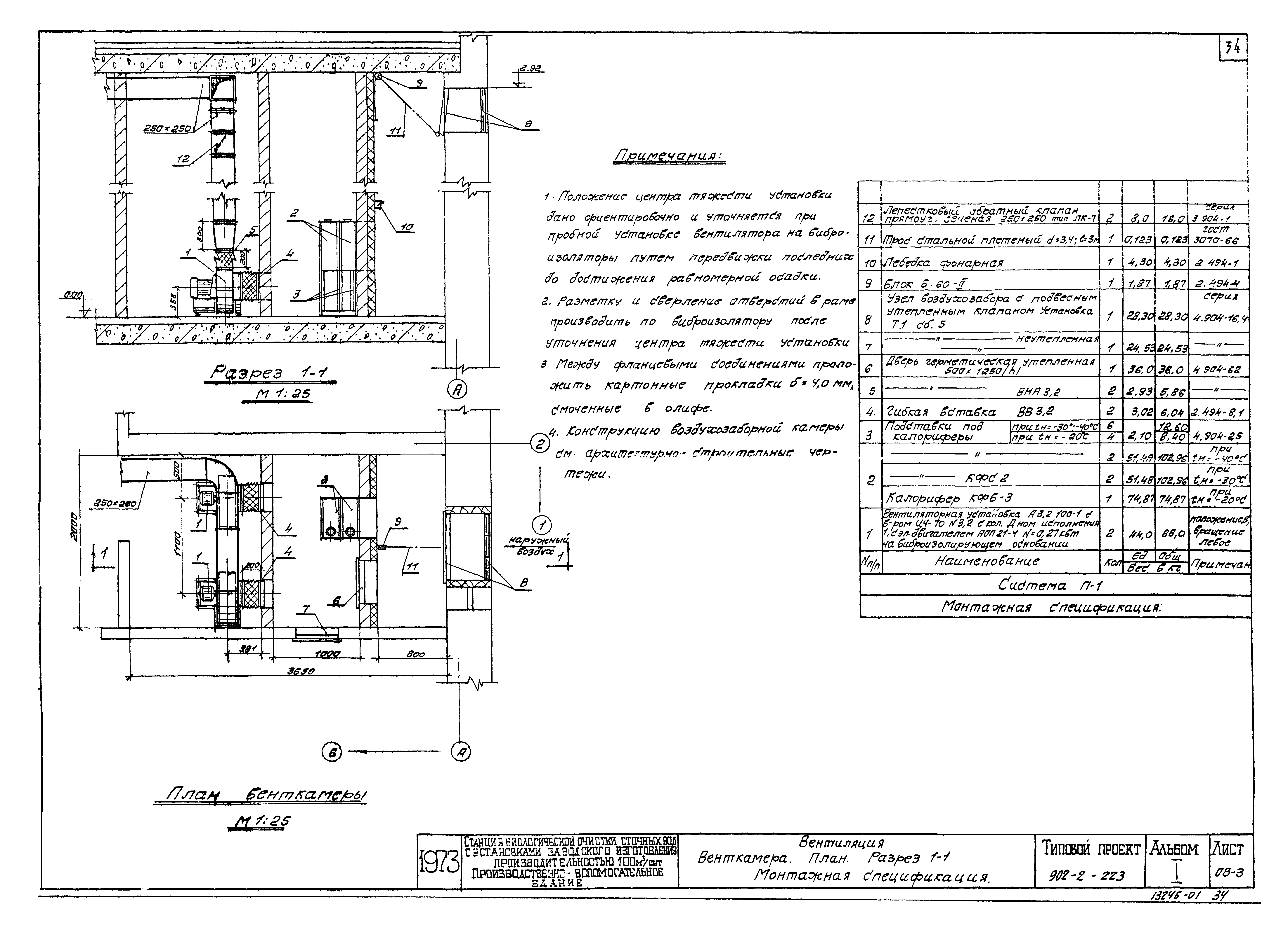
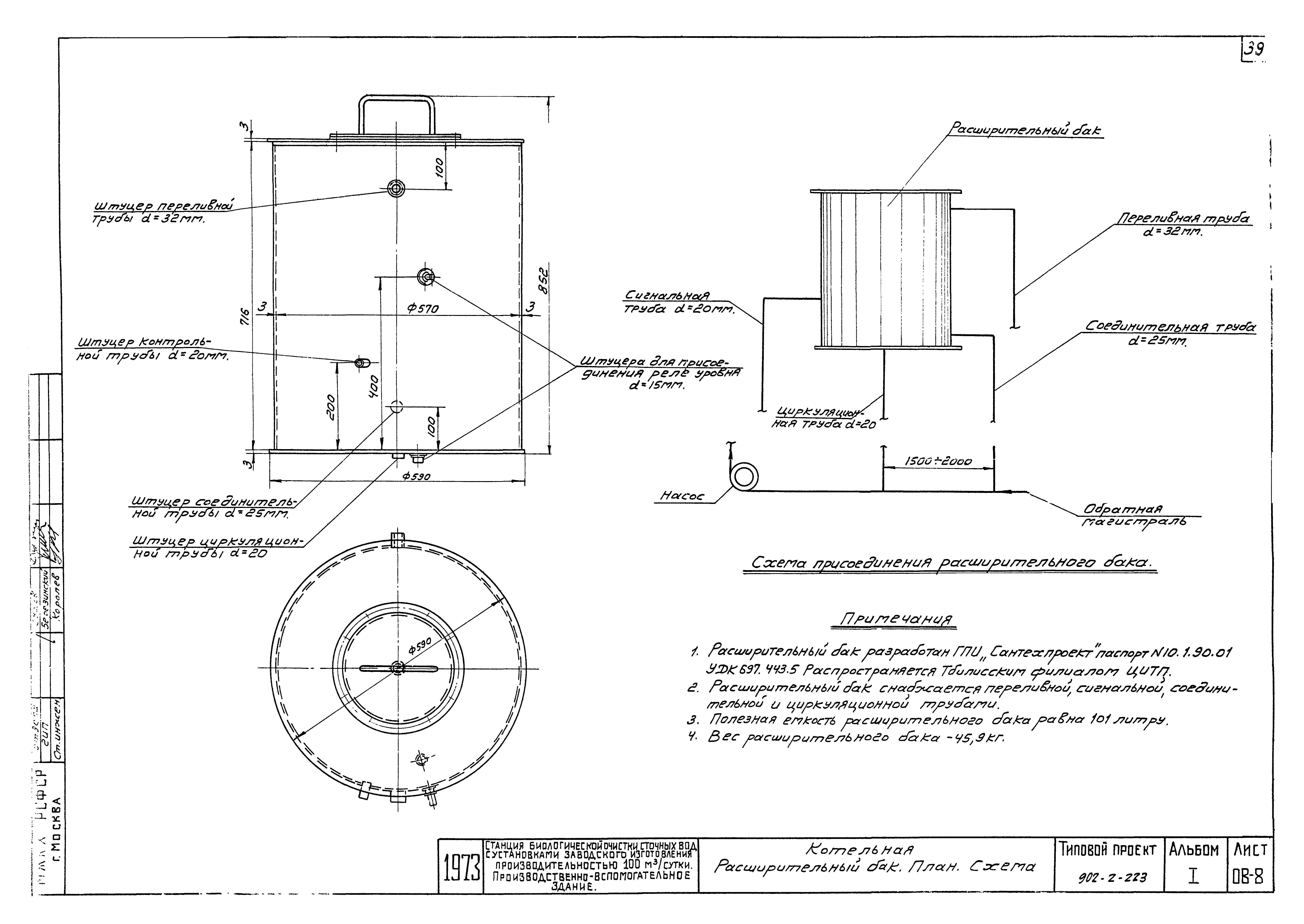
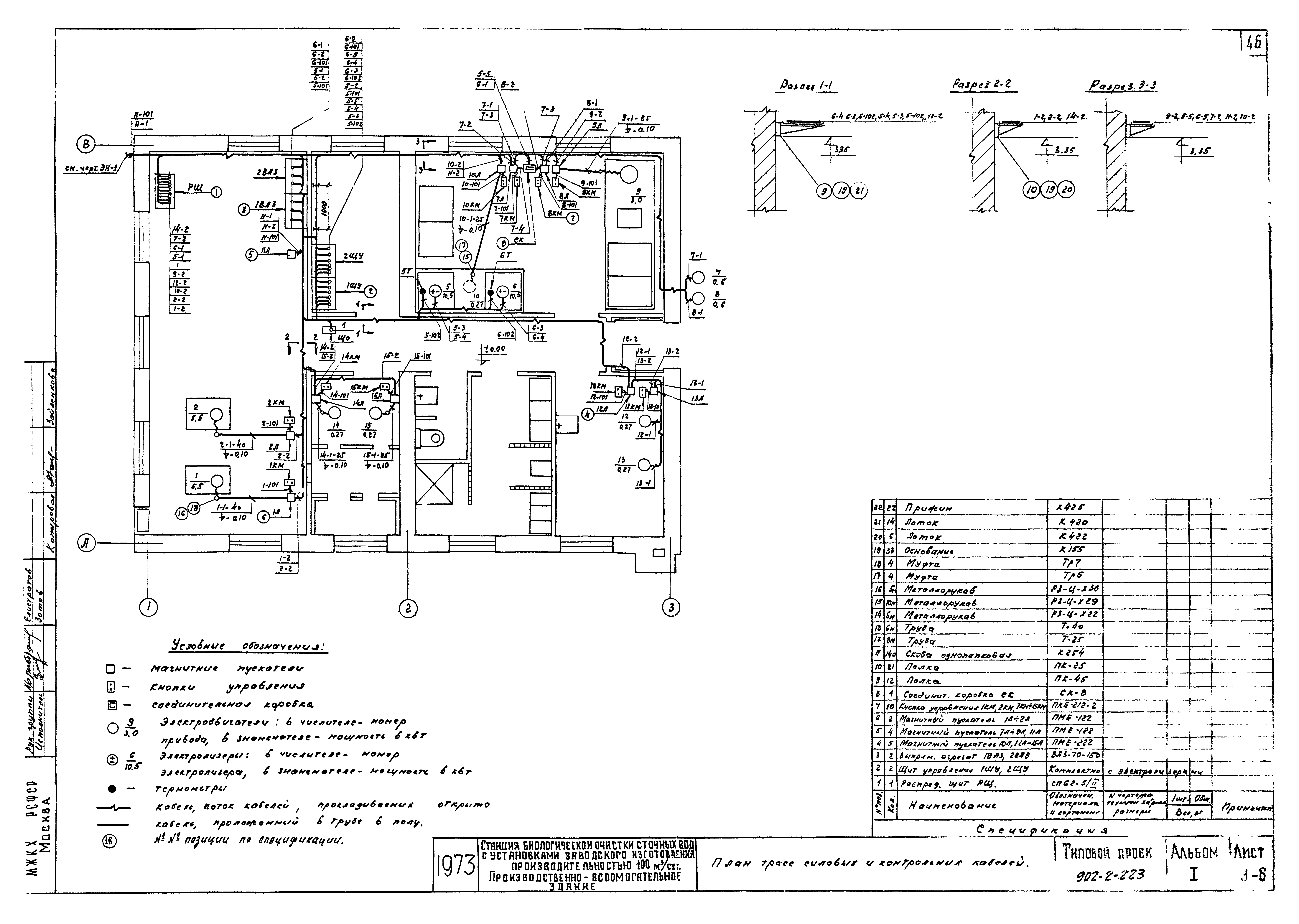
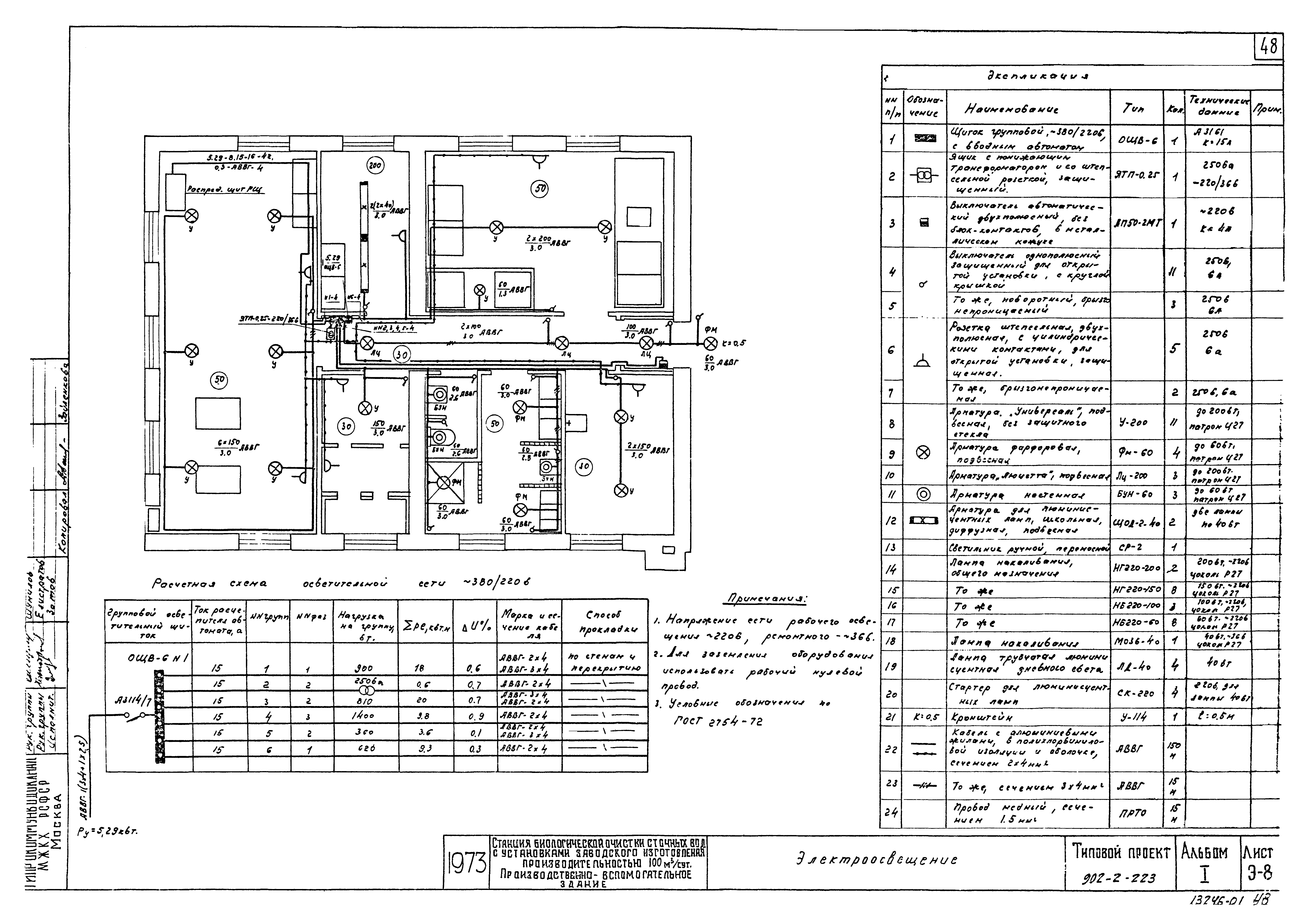
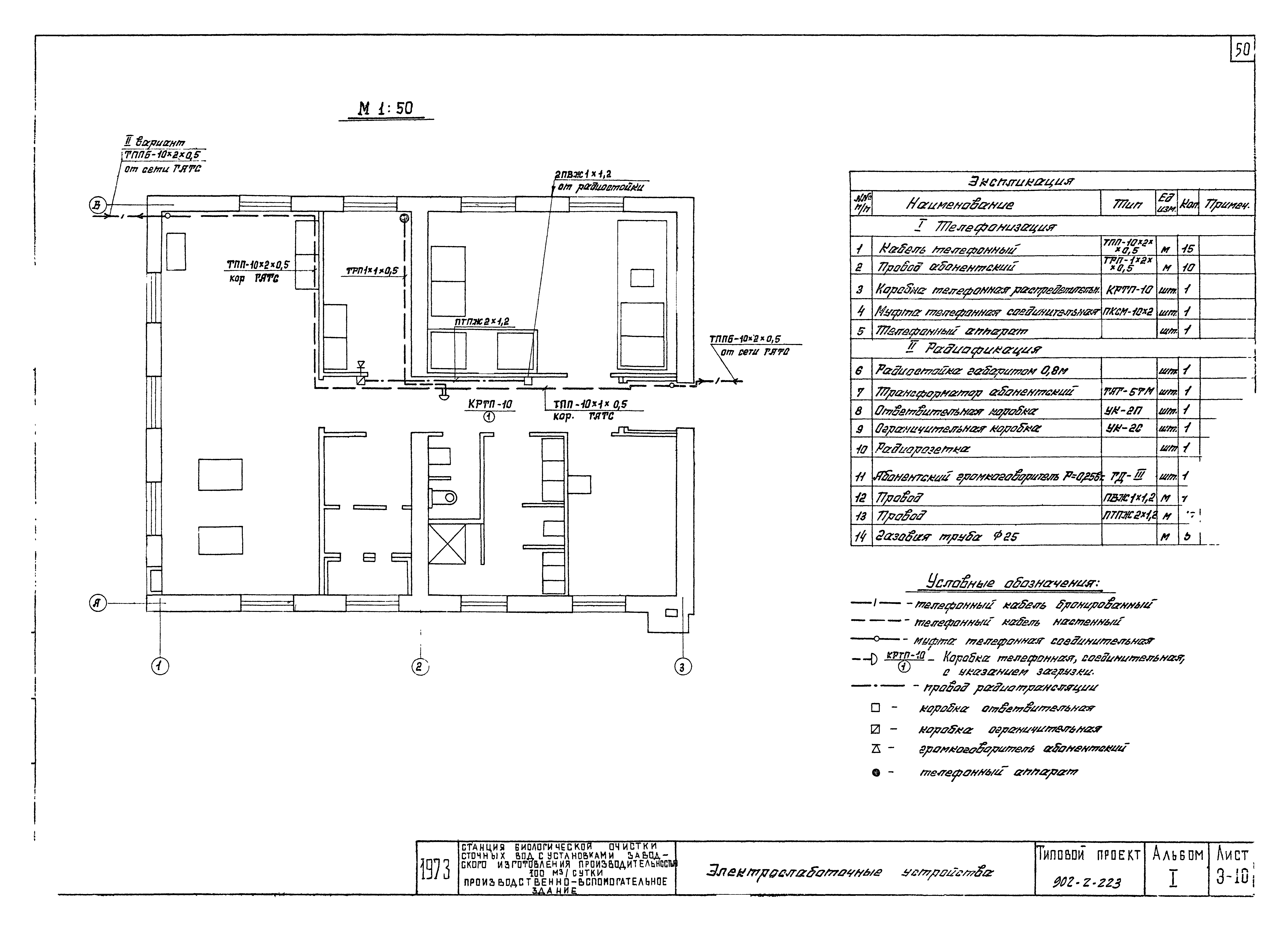
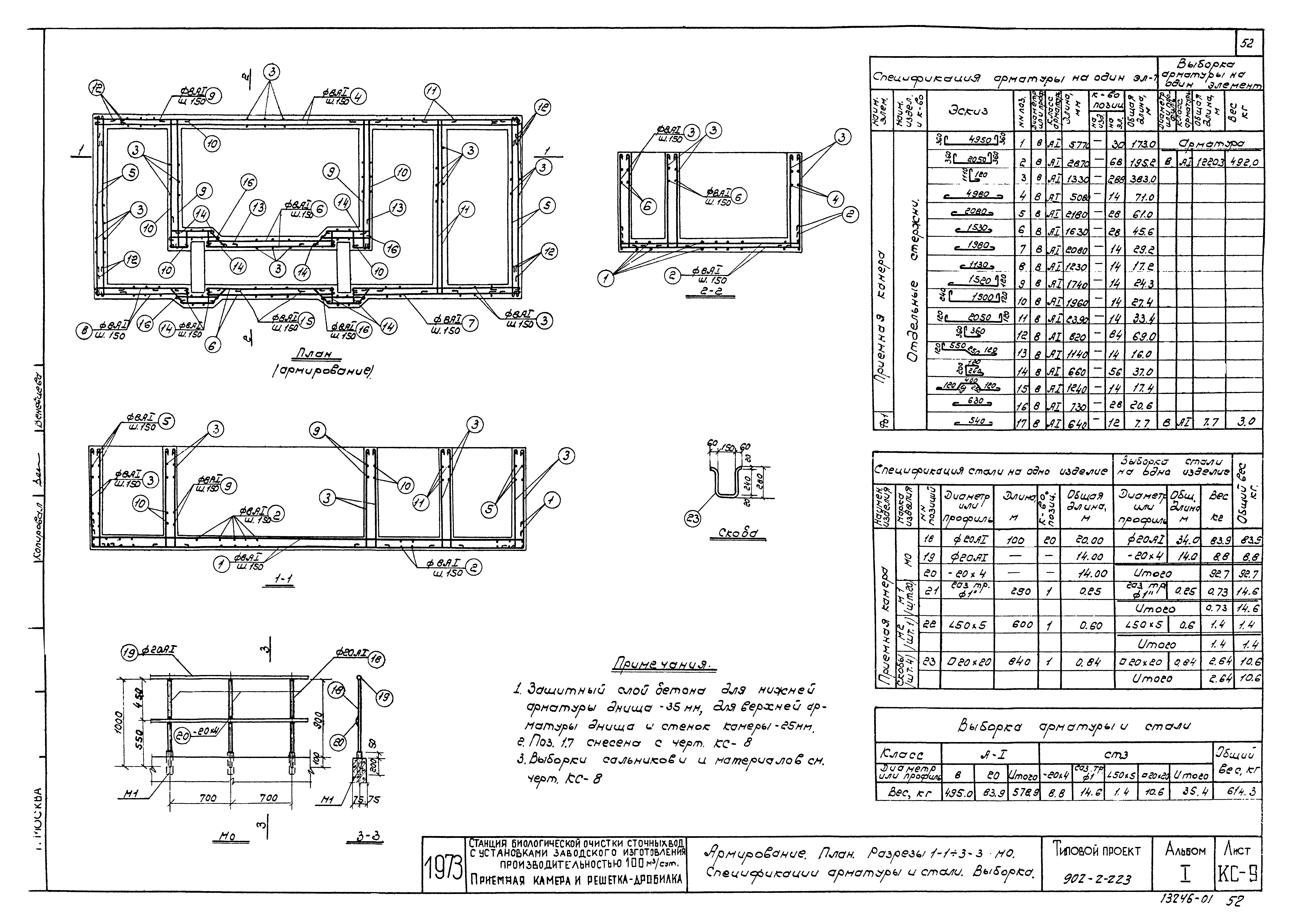
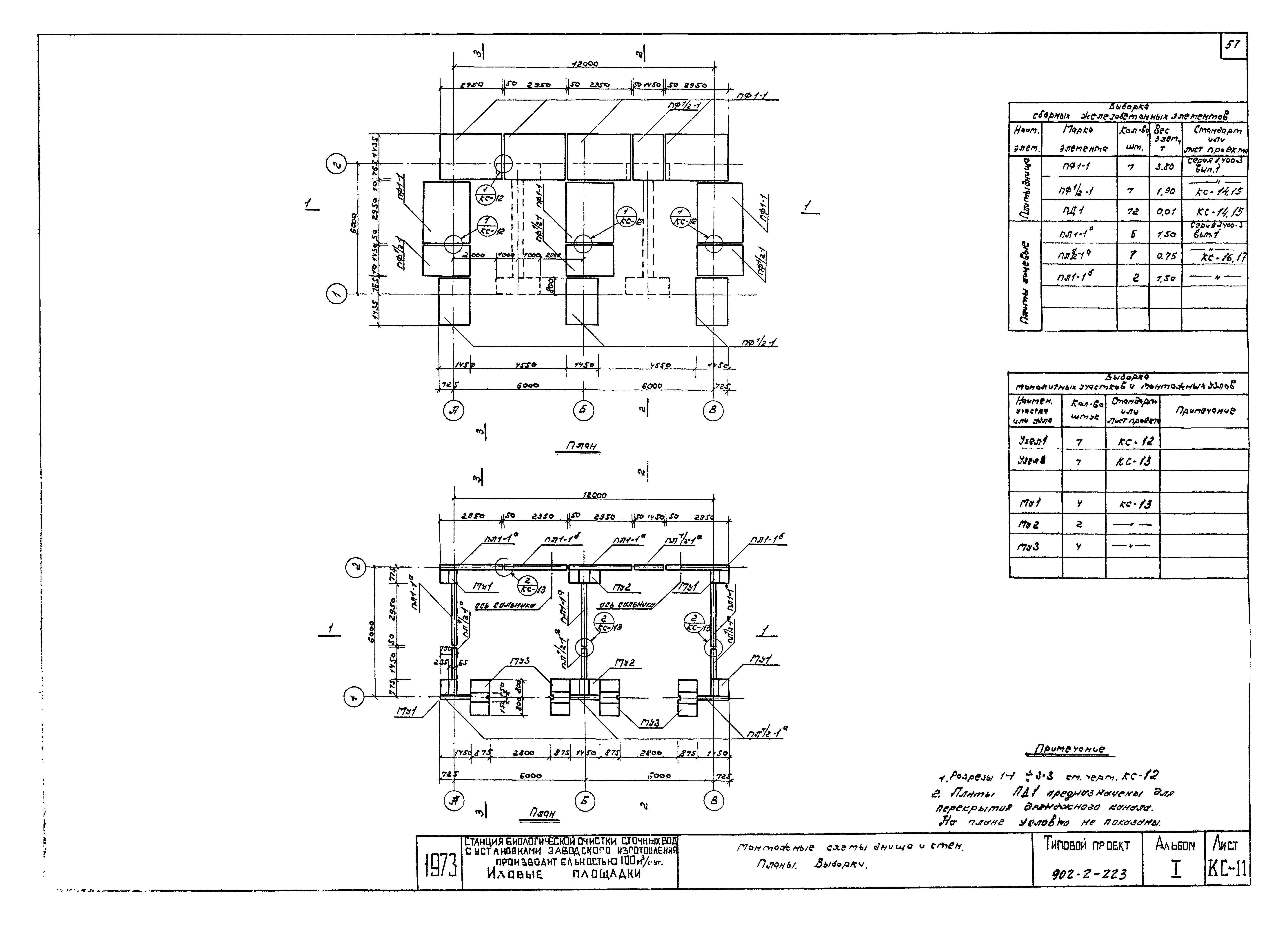
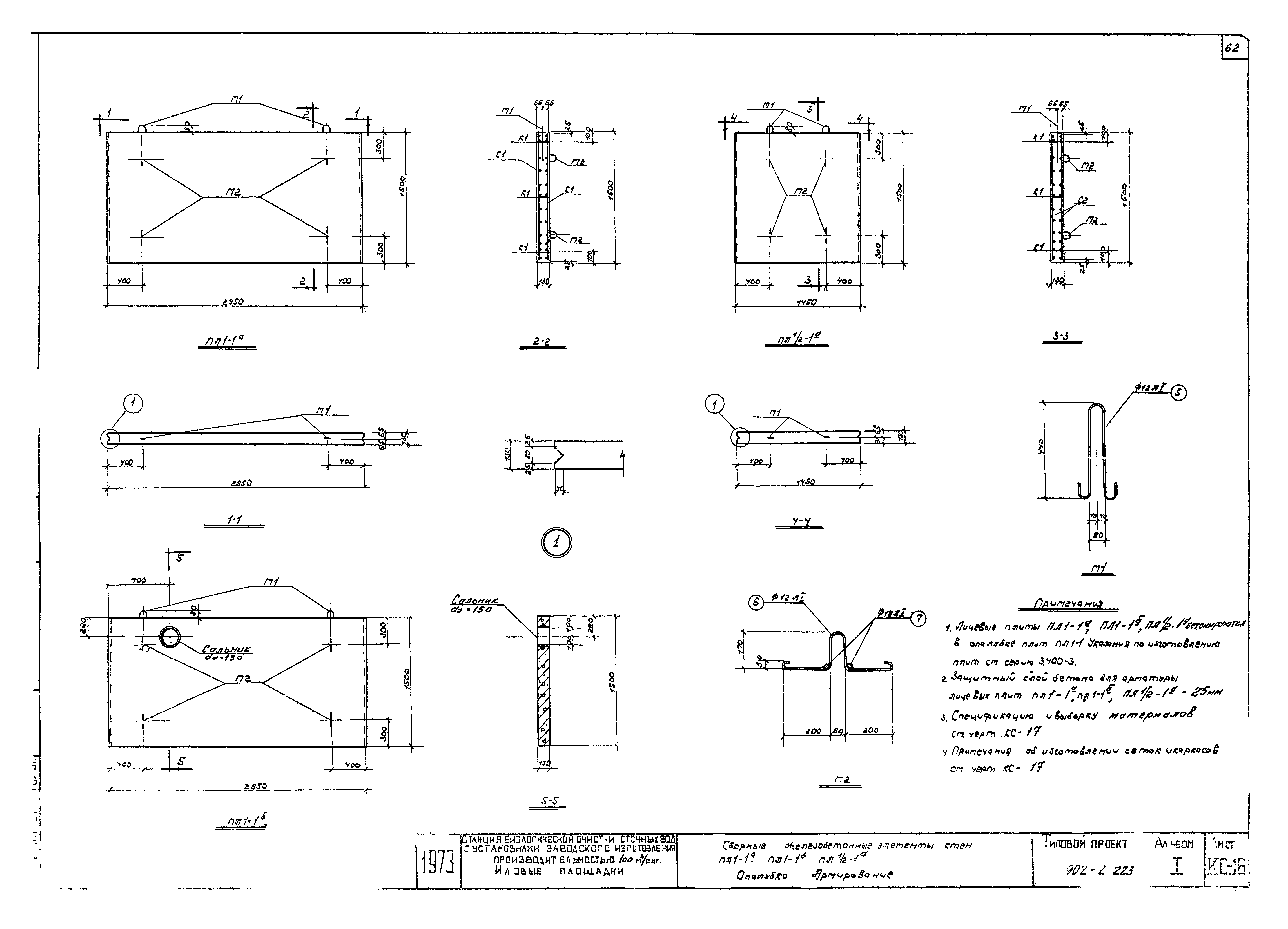
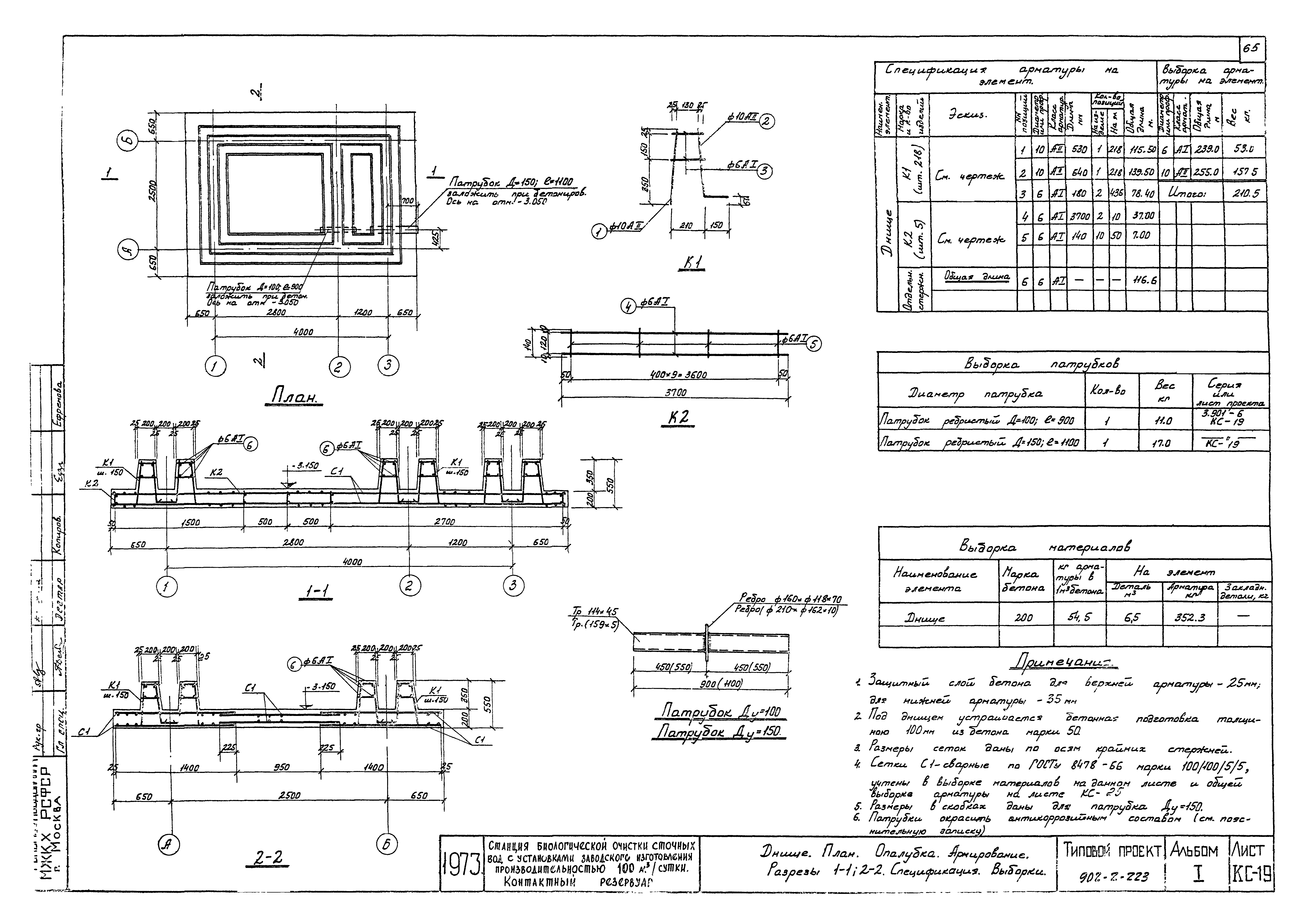
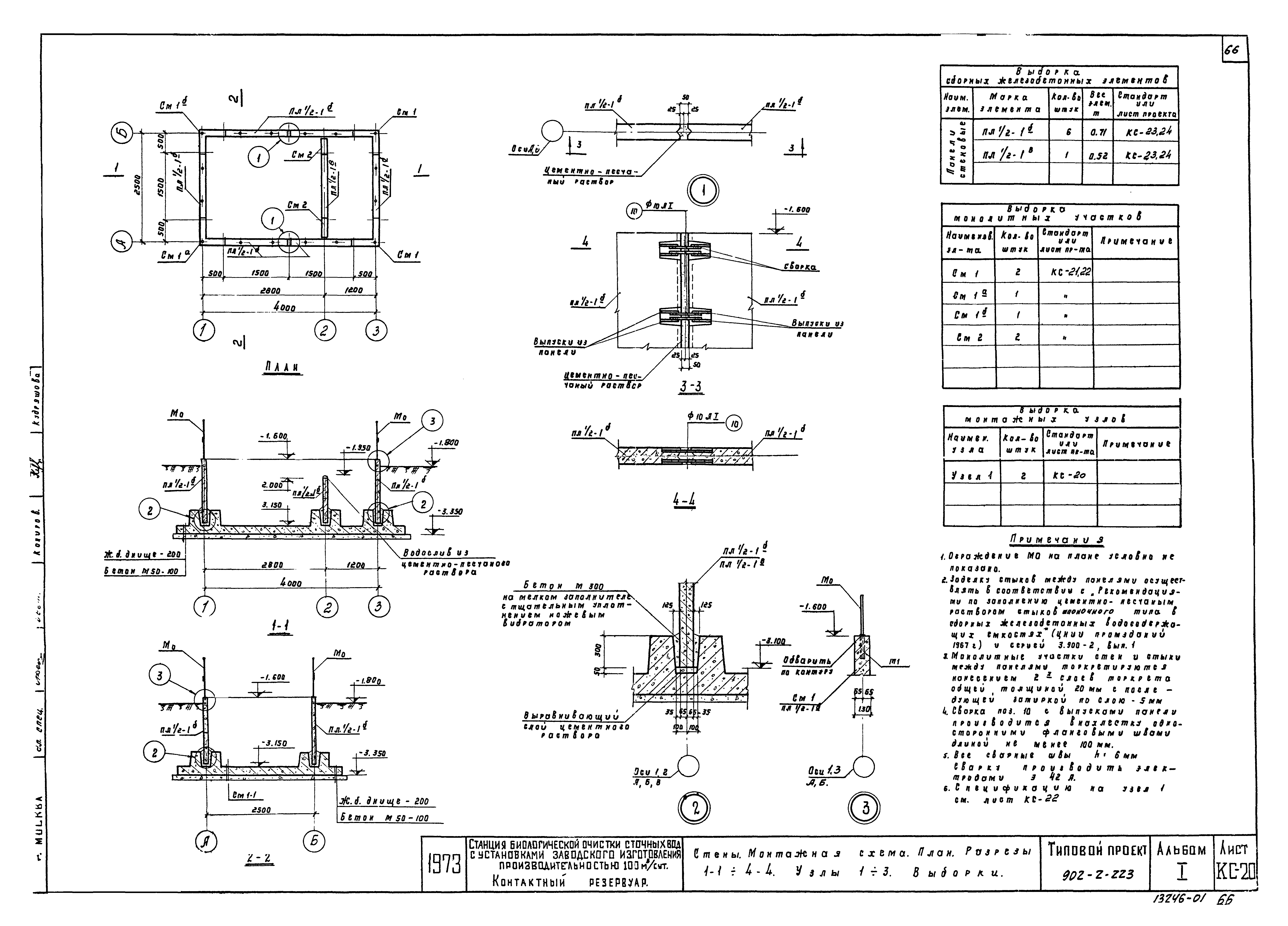
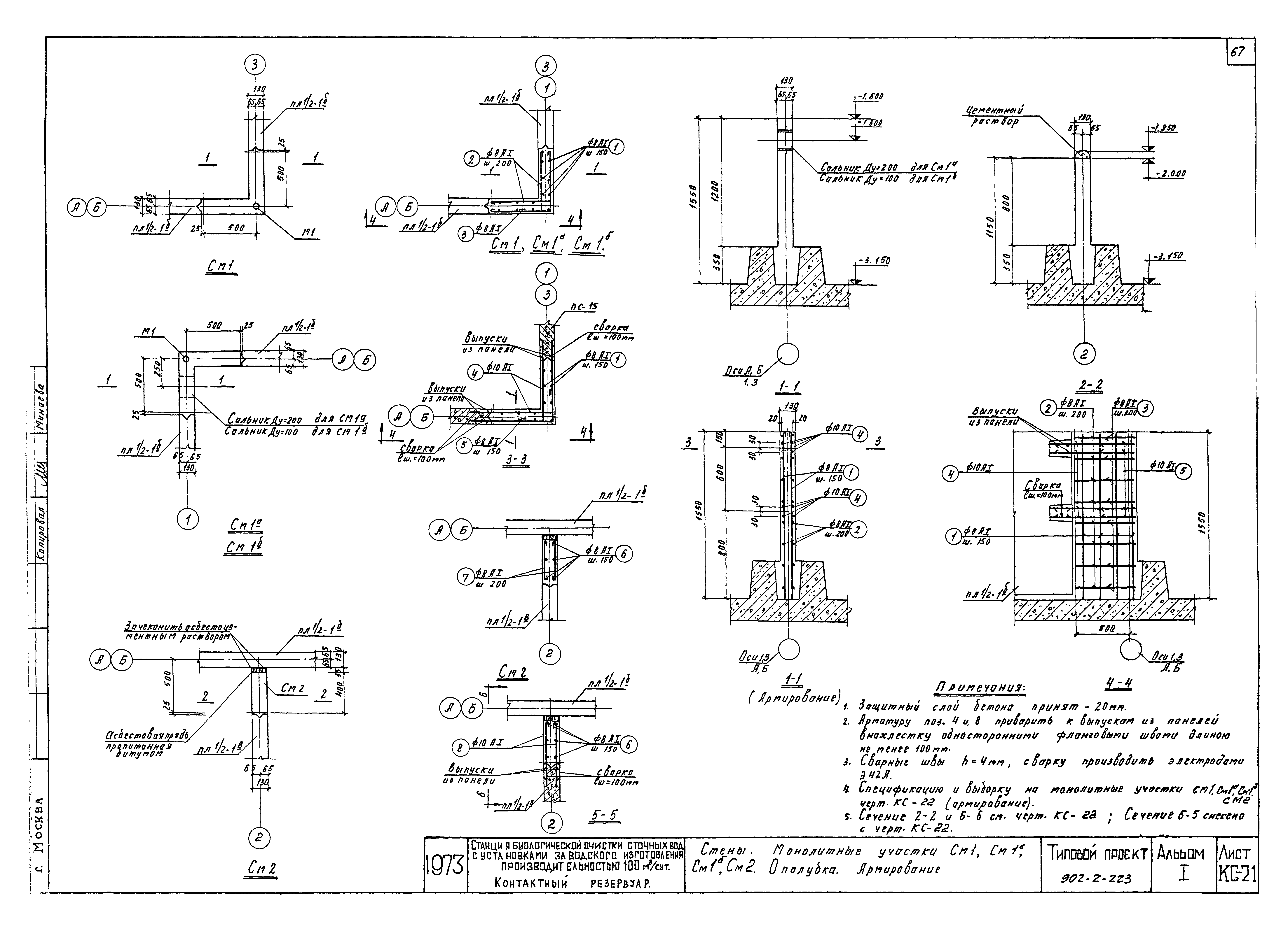
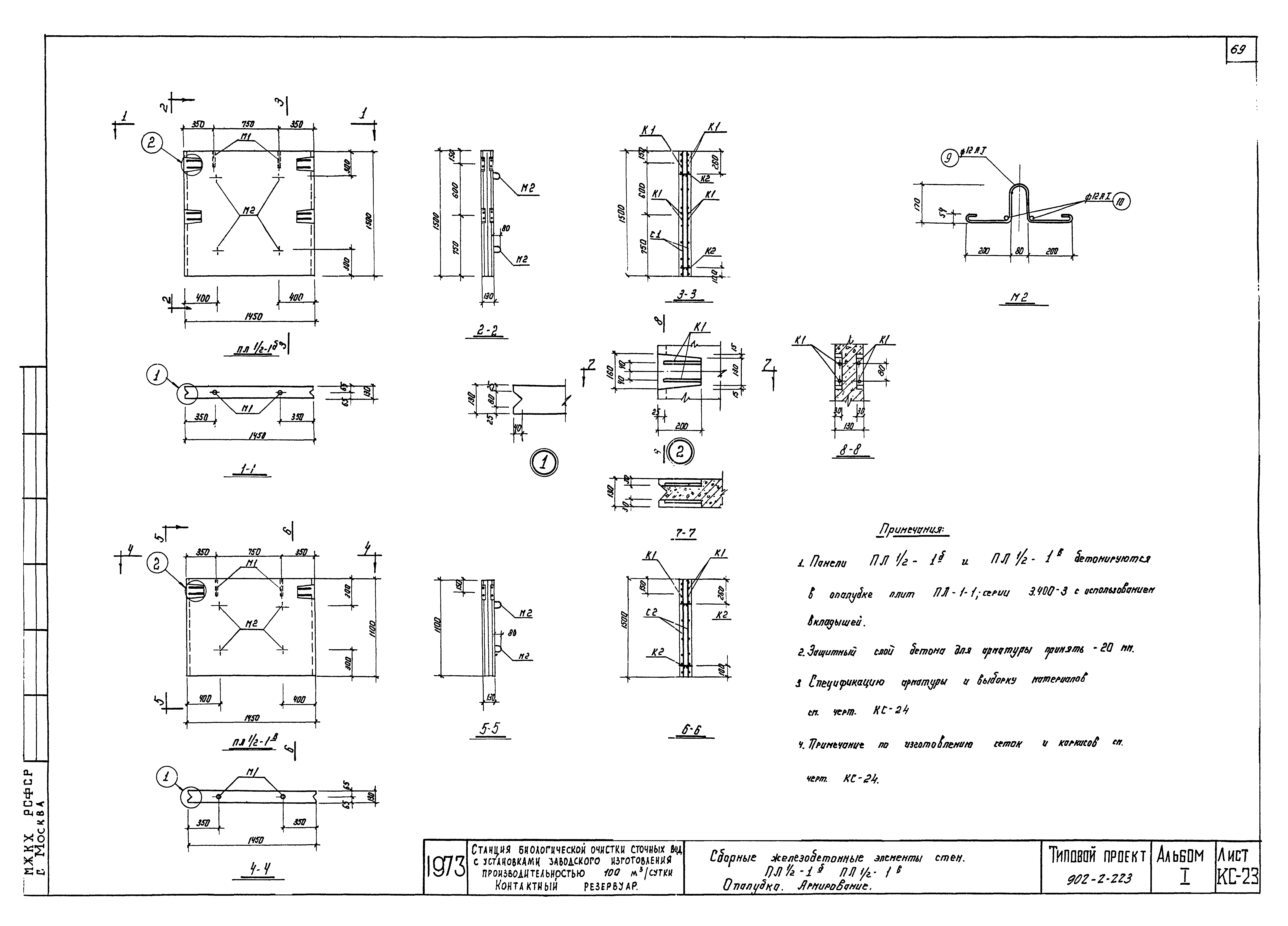
| Оглавление: | ТП 902-2-223 Обложка ТП 902-2-223 С-1 Содержание альбома ТП 902-2-223 ПЗ1-ПЗ5 Пояснительная записка ТП 902-2-223 ГП-1 Примерный генплан ТП 902-2-223 ТХ-1 Примерный генплан с коммуникациями ТП 902-2-223 ТХ-2 Профиль движения воды и ила ТП 902-2-223 ЭН-1 План наружных электросетей ТП 902-2-223 Производственно-вспомагательное здание ТП 902-2-223 АР-1 Заглавный лист ТП 902-2-223 АР-2 План кровли. План полов на отм. ±0.000. Схема сборных железобетонных перемычек. Спецификация перемычек. Детали полов. Ведомость внутренних отделочных работ ТП 902-2-223 АР-3 План на отм. ±0.000 ТП 902-2-223 АР-4 Фасады 1-1;3-1;Б-А;А-6. Разрез 1-1 ТП 902-2-223 АР-5 Труба котельной. Вытяжная шахта Ш-1. Детали 1-10 ТП 902-2-223 АР-6 Жалюзийная решетка р-1 по оси 1. Детали кирпичной кладки. Детали 11,12,13,14 ТП 902-2-223 КС-1 Фундаменты. План. Развертки по осям А,Б,1,2,3. Сечения 1-1;2-2;3-3. Выборка ТП 902-2-223 КС-2 Подпольные каналы. План сечения 1-1÷7-7. Узел 1. Выборка ТП 902-2-223 КС-3 Подпольные каналы. Фундаменты ФО-1ФО-2. Плита ПМ1. Опора ОП-1. Спецификация арматуры и стали. Выборка материалов ТП 902-2-223 КС-4 Покрытие. Монорельс. Планы. Узлы 1-4. Балки БС-1;БС-2. Выборки. Спецификация ТП 902-2-223 КС-5 Металлические площадки и лестница. План МП1. Сечения. Узлы 1-5 ТП 902-2-223 КС-6 Металлические площадки и лестница ЛМ1,МО,РМ-1. Спецификация стали ТП 902-2-223 КС-7 Выборки ТП 902-2-223 ТХ-3 Электролизная. План оборудования. Спецификация ТП 902-2-223 ТХ-4 Электролизная. Разрезы I-I÷V-V ТП 902-2-223 ТХ-5 Помещение воздуходувной. Монтажный чертеж ТП 902-2-223 ТХ-6 Помещение воздуходувной. Опора виброизолирующая для трубы dу200 ТП 902-2-223 ТХ-7 Помещение воздуходувной. Подушка. Ребра. Пружина. Плита ТП 902-2-223 ТХ-8 Помещение воздуходувной. Трубы перфорированные dу100 и 150. Опоры скользящие для трубы dу150 ТП 902-2-223 ВК-1 Водопровод и канализация. План. Разрезы. Схема. Спецификация ТП 902-2-223 ОВ-1 Отопление и вентиляция. Заглавный лист ТП 902-2-223 ОВ-2 Отопление и вентиляция. Планы. Схемы ТП 902-2-223 ОВ-3 Вентиляция. Венткамера. План. Разрез 1-1. Монтажная. Спецификация ТП 902-2-223 ОВ-4 Котельная. План. Разрезы 1-1;2-2. Схема обвязки котельной. Экспликация основного оборудования ТП 902-2-223 ОВ-5 Отопление и вентиляция. Спецификация оборудования и материалов ТП 902-2-223 ОВ-6 Горячее водоснабжение. Индивидуальный водоводяной подогреватель. Общий вид ТП 902-2-223 ОВ-7 Детали ТП 902-2-223 ОВ-8 Котельная. Расширительный бак. План. Схема ТП 902-2-223 ОВ-9 Вытяжная вентиляция электролизеров. План. Разрез 1-1. Схема системы В-1. Спецификация ТП 902-2-223 Э-1 Расчетная схема силовой сети 380/220В ТП 902-2-223 Э-2 Принципиальная схема управления электродвигателя ТП 902-2-223 Э-3 Схема подключений электролизера ТП 902-2-223 Э-4 Схема подключений ТП 902-2-223 Э-5 Схема подключений ТП 902-2-223 Э-6 План трасс силовых и контрольных кабелей ТП 902-2-223 Э-7 Кабельный журнал ТП 902-2-223 Э-8 Электроосвещение ТП 902-2-223 Э-9 Контур заземления ТП 902-2-223 Э-10 Электрослаботочные устройства ТП 902-2-223 Блок приемной камеры и решетки дробилки ТП 902-2-223 КС-8 Опалубка. План. Разрезы 1-1÷6-6. ФО1. Выборки сальников и материалов ТП 902-2-223 КС-9 Армирование. План. Разрезы 1-1÷3-3, Мо. Спецификации арматуры и стали. Выборка ТП 902-2-223 ТХ-9 Монтажный чертеж ТП 902-2-223 ТХ-10 Шибер в сборе. Болт анкерный. Пластина ТП 902-2-223 ТХ-11 Решетка. Опора ТП 902-2-223 Основание под компактные установки ТП 902-2-223 КС-10 Раскладка плит основания. План. Разрез. Выборка ТП 902-2-223 Иловые площадки ТП 902-2-223 КС-11 Монтажные схемы днища и стен. План. Выборки ТП 902-2-223 КС-12 Монтажные схемы днища и стен. Разрезы 1-1÷3-3. Узлы 1-8 ТП 902-2-223 КС-13 Монтажные участки стен Му1-Му3. Монтажные узлы ТП 902-2-223 КС-14 Сборные железобетонные элементы днища ПФ1/2-1;ПД-1. Опалубка. Армирование ТП 902-2-223 КС-15 Сборные железобетонные элементы днища ПФ1/2-1;ПД-1. Спецификация. Выборки ТП 902-2-223 КС-16 Сборные железобетонные элементы стен. ПЛ1-1а;ПЛ1-1б;ПЛ1/2-1а. Опалубка. Армирование ТП 902-2-223 КС-17 Сборные железобетонные элементы стен. ПЛ1-1а;ПЛ1-1а;ПЛ1/2-1а. Спецификация. Выборки ТП 902-2-223 КС-18 Выборки ТП 902-2-223 Контактный резервуар ТП 902-2-223 КС-19 Днище. План. Опалубка. Армирование. Разрезы 1-1;2-2. Спецификация. Выборка ТП 902-2-223 КС-20 Стены. Монтажная схема. План. Разрезы 1-1;2-2. Узлы 1-4. Выборка ТП 902-2-223 КС-21 Стены. Монолитные участки СМ-1;СМ-1а;СМ-1б;СМ-2. Опалубка. Армирование ТП 902-2-223 КС-22 Стены. Монолитные участки СМ-1;СМ-1а;СМ-1б;СМ-2. Спецификации арматуры и стали. Выборки материалов и сальников ТП 902-2-223 КС-23 Сборные железобетонные элементы стен ПЛ1/2-1б;ПЛ1/2-1в. Опалубка. Армирование ТП 902-2-223 КС-24 Сборные железобетонные элементы стен ПЛ1/2-1б;ПЛ1/2-1в. Спецификация арматуры. Выборка материалов ТП 902-2-223 КС-25 Выборки ТП 902-2-223 ТХ-12 План. Разрезы. Спецификация |
| Разработан: | Гипрокоммунводоканал Минжилкомхоза РСФСР |
| Утверждён: | 19.12.1974 МЖКХ РСФСР (31-ТД) |








































































