Скачать Типовой проект 904-1-54.83 Альбом II. Архитектурно-строительные решения. Отопление и вентиляцияДата актуализации: 01.01.2021
|
| Обозначение: | Типовой проект 904-1-54.83 |
| Обозначение англ: | 904-1-54.83 |
| Статус: | заменен |
| Название рус.: | Альбом II. Архитектурно-строительные решения. Отопление и вентиляция |
| Дата добавления в базу: | 01.09.2013 |
| Дата актуализации: | 01.01.2021 |
| Дата введения: | 30.06.1983 |
| Дата окончания срока действия: | 07.10.1992 |
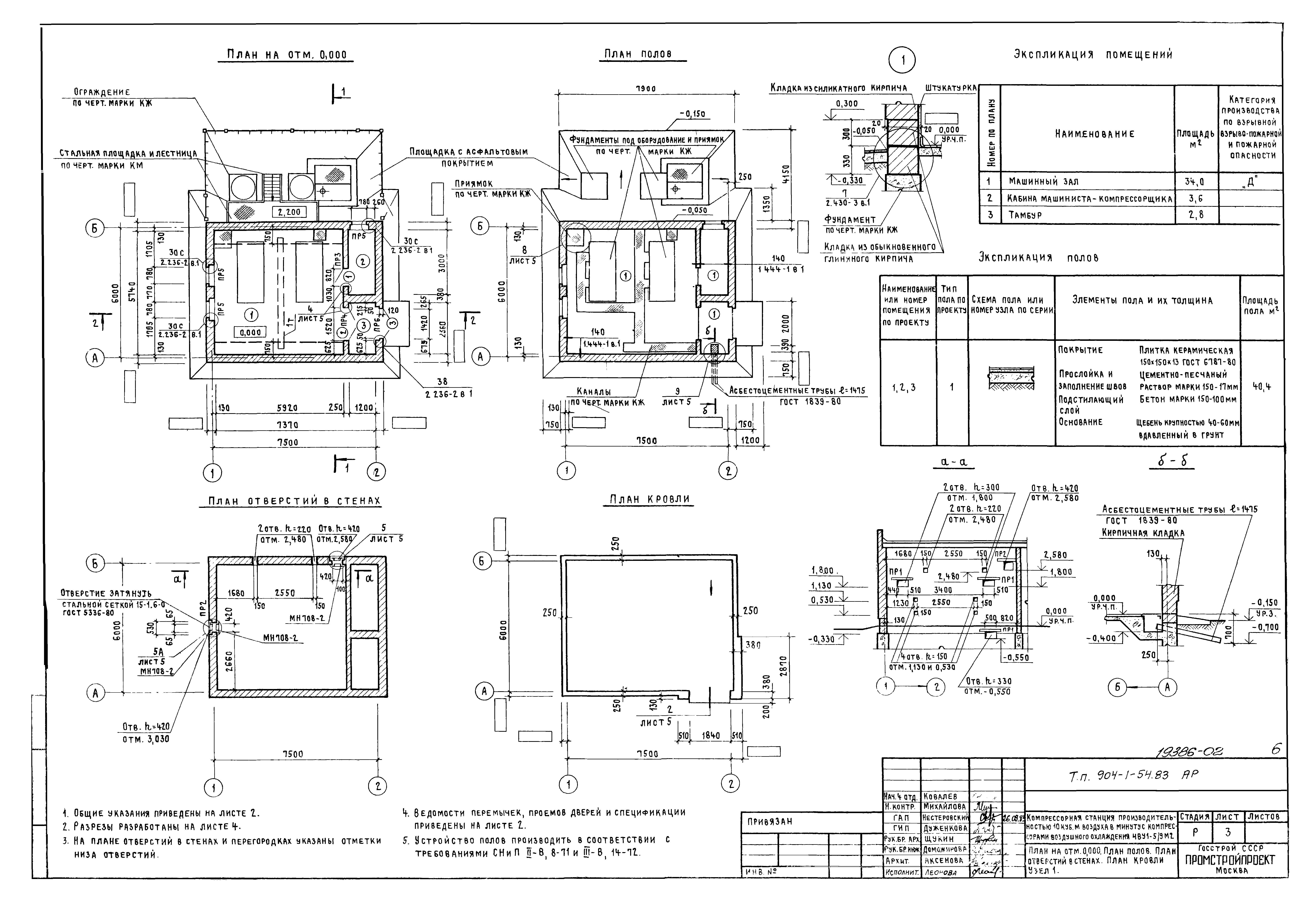
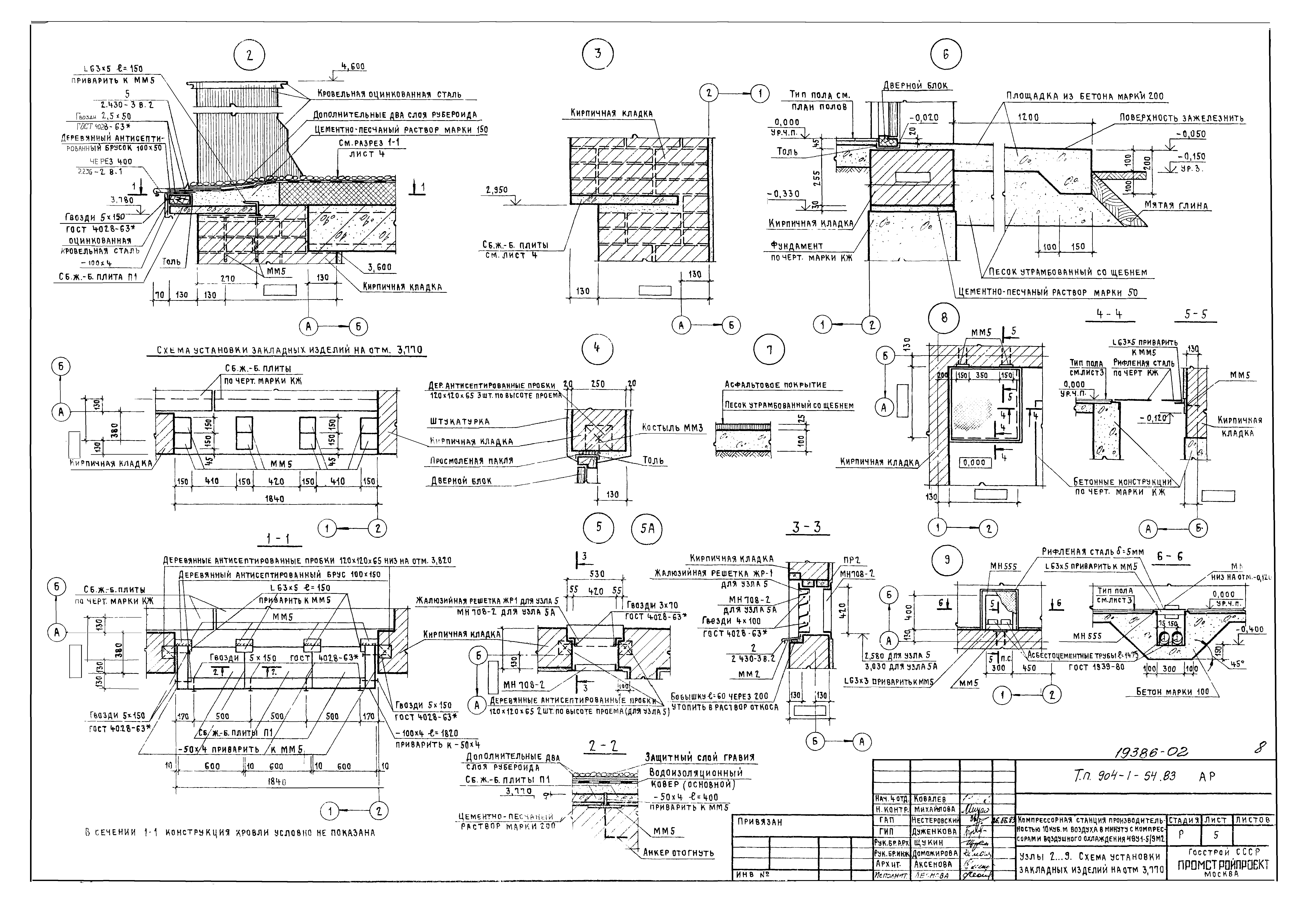
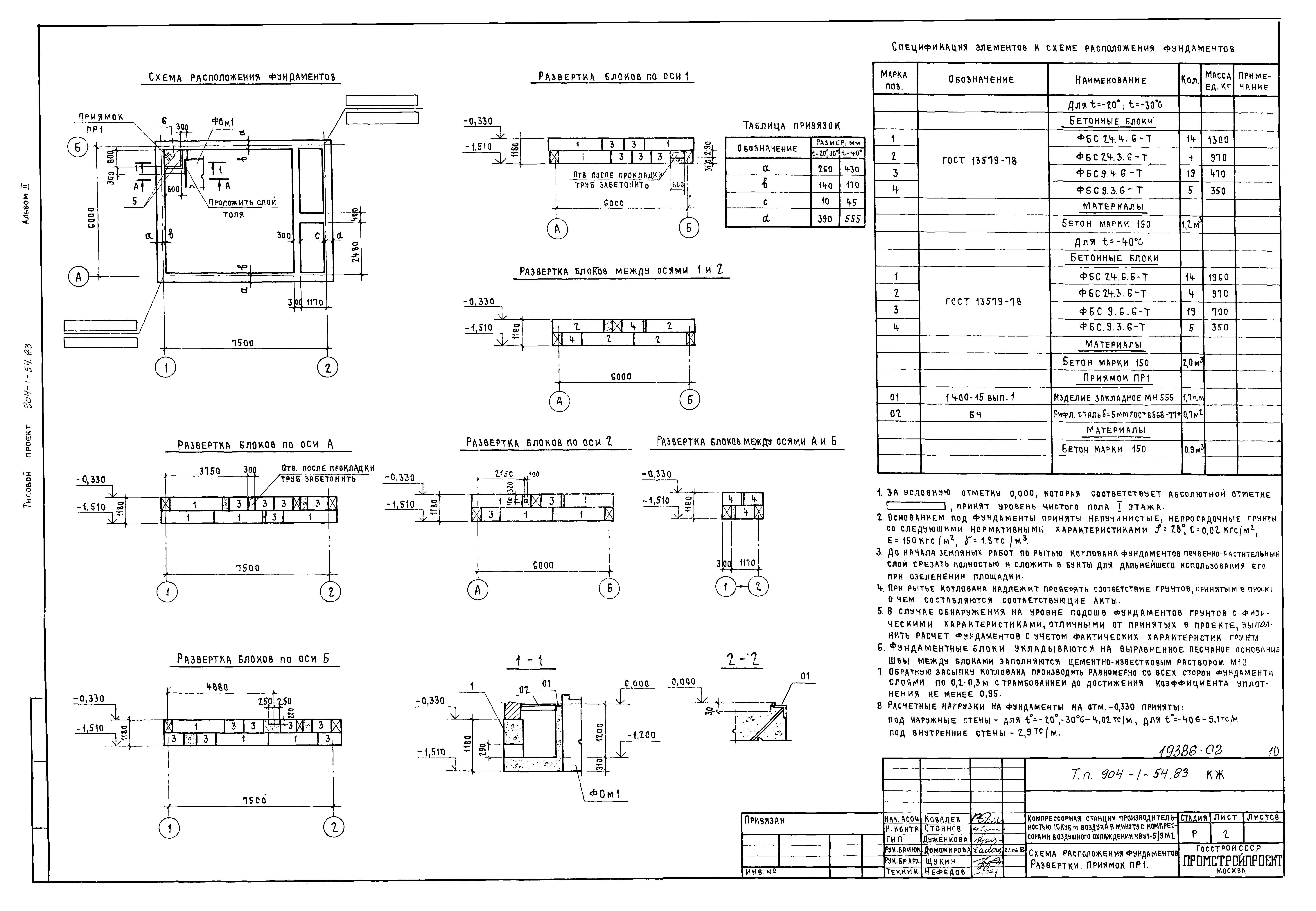
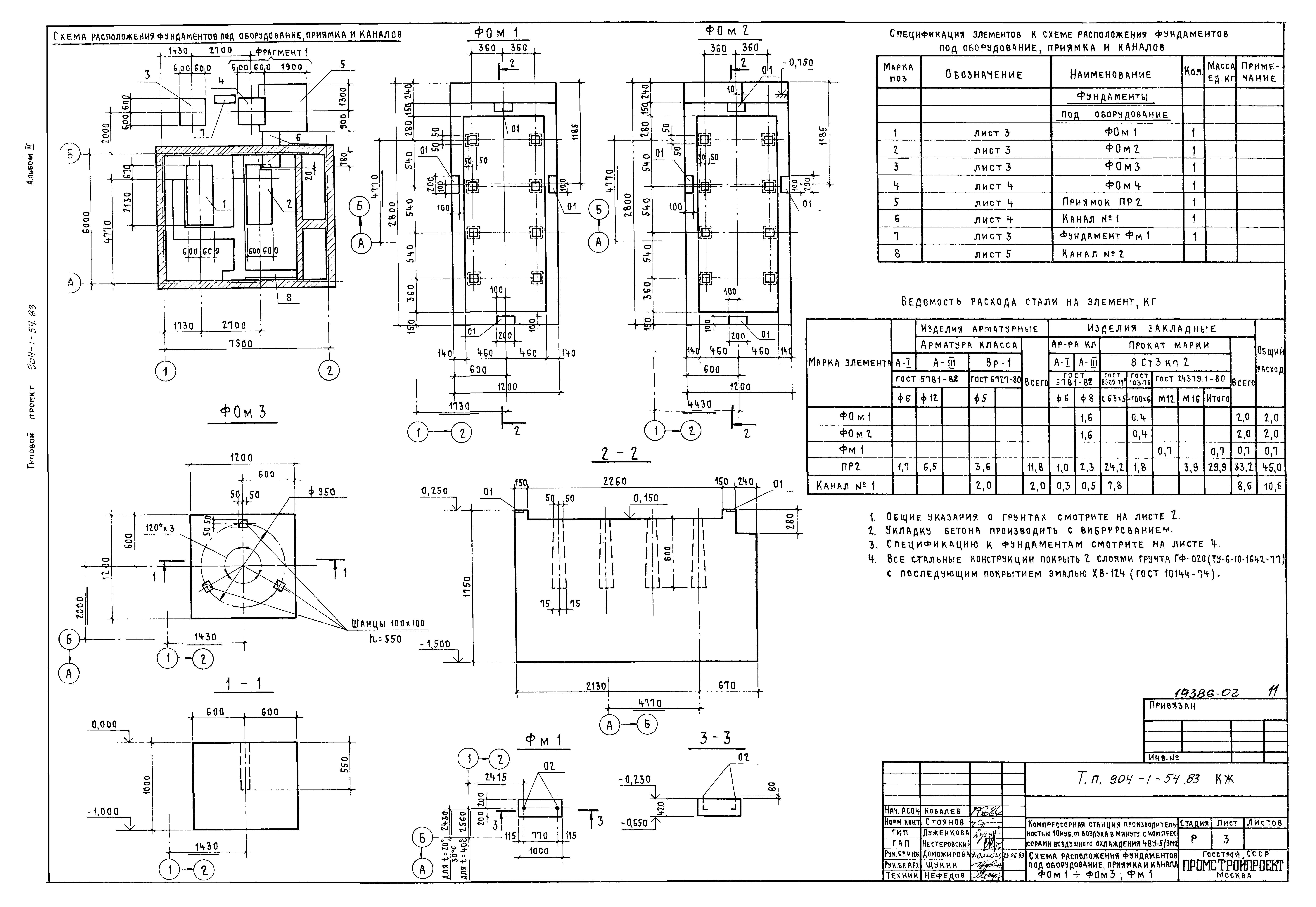
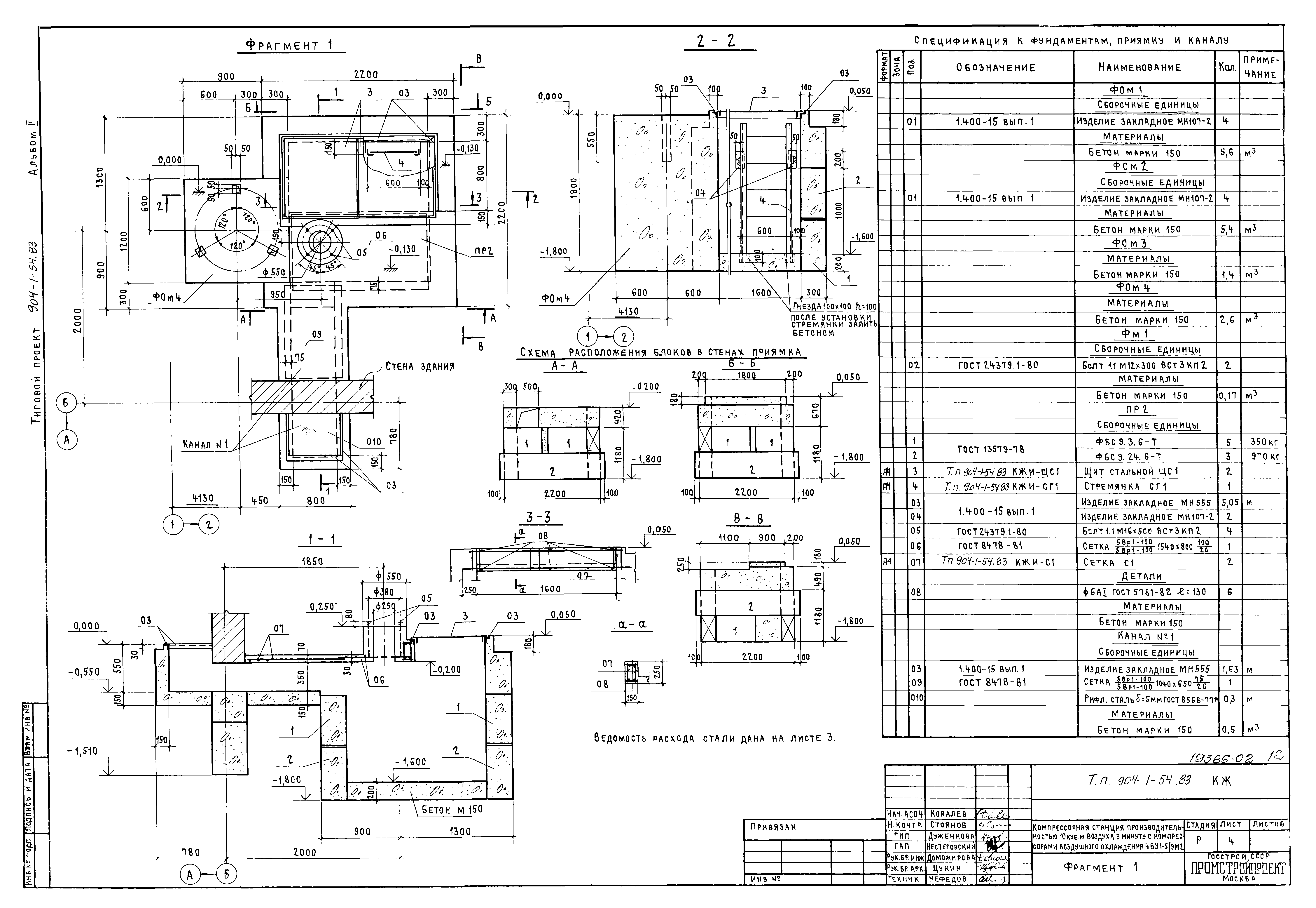
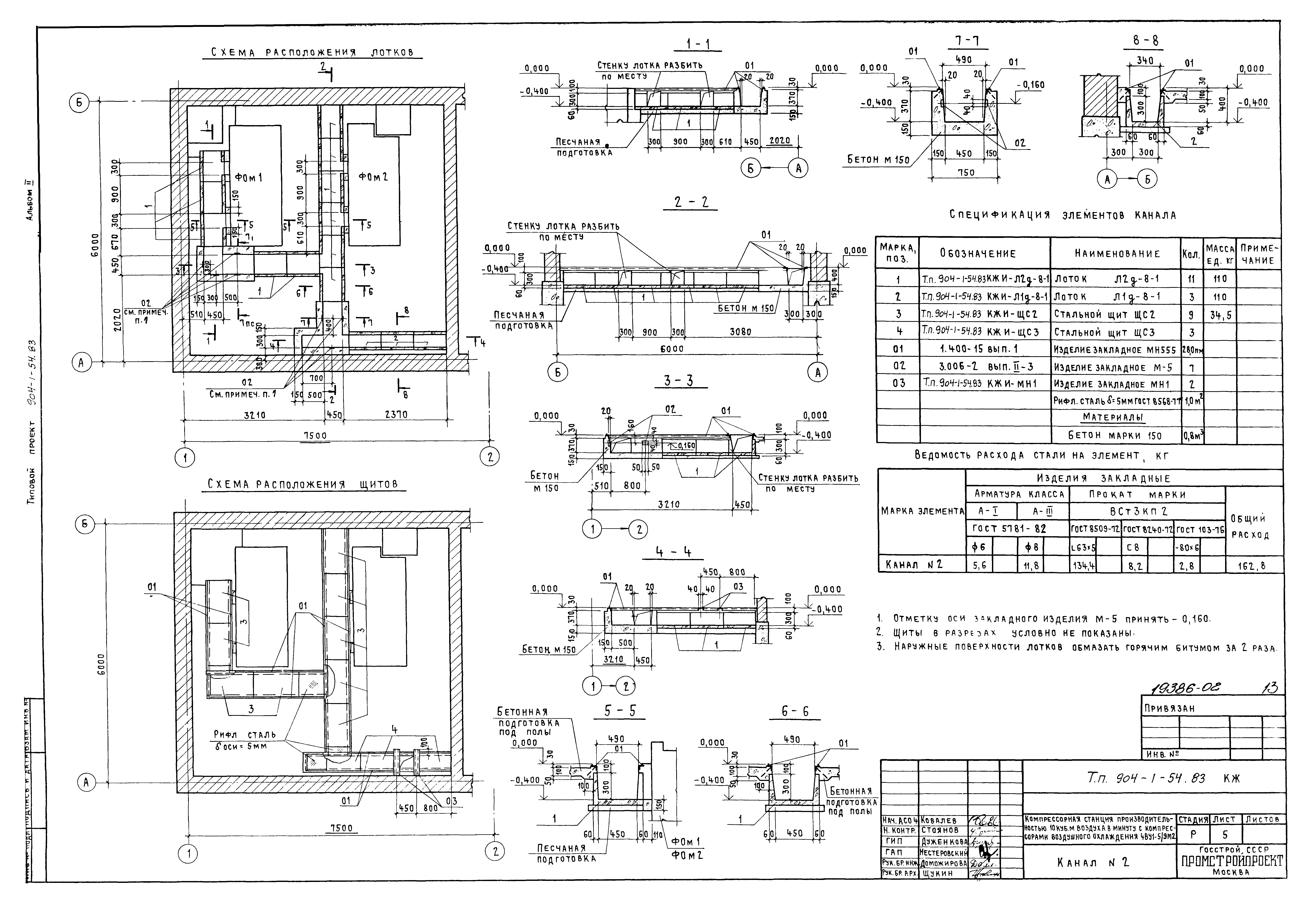
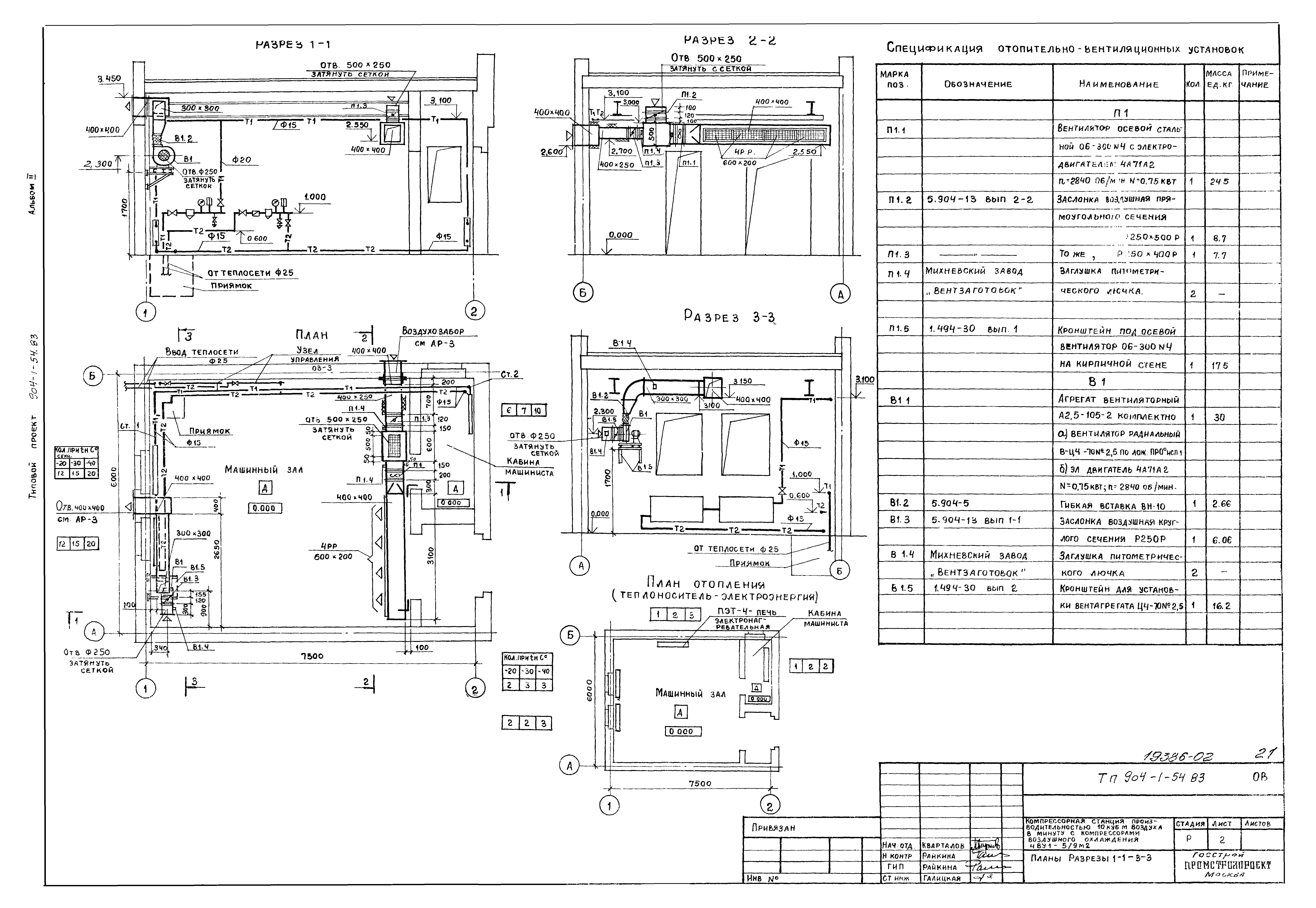
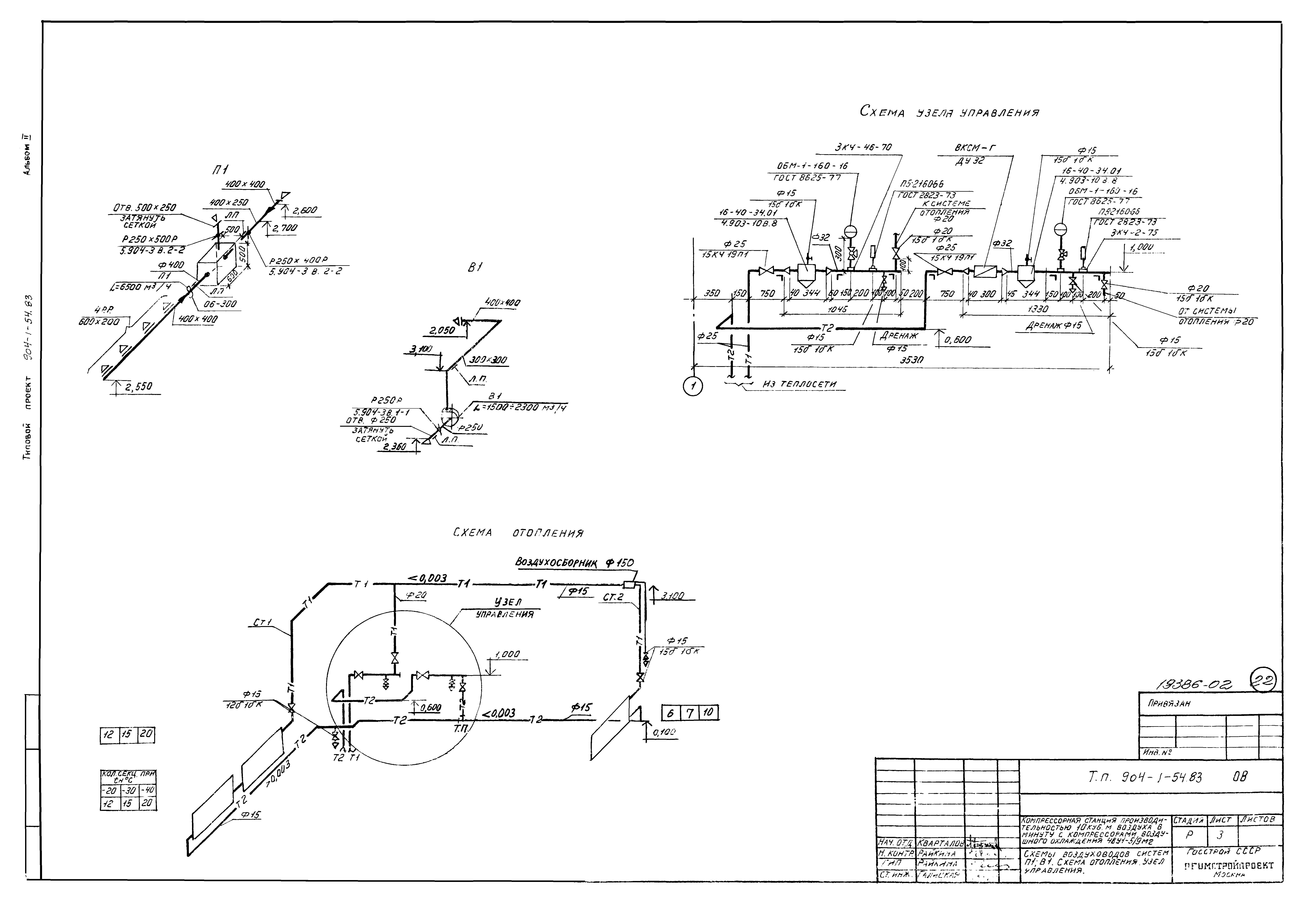
| Оглавление: | ТП 904-1-54.83 Титульный лист ТП 904-1-54.83 Опись альбома ТП 904-1-54.83 ПЗ1 Пояснительная записка ТП 904-1-54.83 АР Архитектурно-строительные решения ТП 904-1-54.83 АР-1 Общие данные ТП 904-1-54.83 АР-2 Спецификации ведомости ТП 904-1-54.83 АР-3 План на отм. 0.000. План полов. План отверстий в стенах. План кровли. Узел 1 ТП 904-1-54.83 АР-4 Фасады 1-2,А-Б,2-1,Б-1. Разрезы 1-1,2-2. Схема заполнения оконных проемов и установки сб. ж.-б. и стальных элементов ТП 904-1-54.83 АР-5 Узлы 2...9. Схема установки закладных изделий на отм. 3.770 ТП 904-1-54.83 КЖ Конструкции железобетонные ТП 904-1-54.83 КЖ-1 Общие данные ТП 904-1-54.83 КЖ-2 Схема расположения фундаментов. Развертки. Приямок ПР1 ТП 904-1-54.83 КЖ-3 Схема расположения фундаментов под оборудование, приямка и канала ФЛм1...ФОм3;Фм1 ТП 904-1-54.83 КЖ-4 Фрагмент 1 ТП 904-1-54.83 КЖ-5 Канал №2 ТП 904-1-54.83 КЖ-6 Схемы расположения плит покрытия и ограждения ТП 904-1-54.83 КЖИ-Д1д-8-1,Л2д-8-1 Лотки Л1д-8-1,Л2д-8-1 ТП 904-1-54.83 КЖИ-ТТ1 Технические требования по изготовлению стальных изделий ТП 904-1-54.83 КЖИ-ЩС1 Щит стальной ЩС1 ТП 904-1-54.83 КЖИ-ЩС2 Щит стальной ЩС2 ТП 904-1-54.83 КЖИ-ЩС3 Щит стальной ЩС3 ТП 904-1-54.83 КЖИ-СГ1 Стремянка СГ1 ТП 904-1-54.83 КЖИ-ЖР1 Жалюзийная решетка ЖР1 ТП 904-1-54.83 КЖИ-МН1 Изделие закладное МН1 ТП 904-1-54.83 КЖИ-С1 Сетка арматурная С1 ТП 904-1-54.83 КМ Конструкции металлические ТП 904-1-54.83 КМ-1 Общие данные ТП 904-1-54.83 КМ-2 Схемы расположения путей подвесного крана, площадки и лестницы ТП 904-1-54.83 ОВ Отопление и вентиляция ТП 904-1-54.83 ОВ-1 Общие данные ТП 904-1-54.83 ОВ-2 Планы. Разрезы 1-1...3-3. Спецификация отопительно-вентиляционных установок ТП 904-1-54.83 ОВ-3 Схемы воздуховодов систем П1,8.1. Схема отопления. Узел управления. Спецификация узла управления |
| Разработан: | Промстройпроект |
| Утверждён: | 28.10.1980 МПС (Ministry of Railroads Ш-35604) |
| Чем заменён: |























