Скачать Типовой проект 902-2-381.84 Альбом II. Архитектурно-строительная частьДата актуализации: 01.01.2021
|
| Обозначение: | Типовой проект 902-2-381.84 |
| Обозначение англ: | 902-2-381.84 |
| Статус: | не действует |
| Название рус.: | Альбом II. Архитектурно-строительная часть |
| Дата добавления в базу: | 01.09.2013 |
| Дата актуализации: | 01.01.2021 |
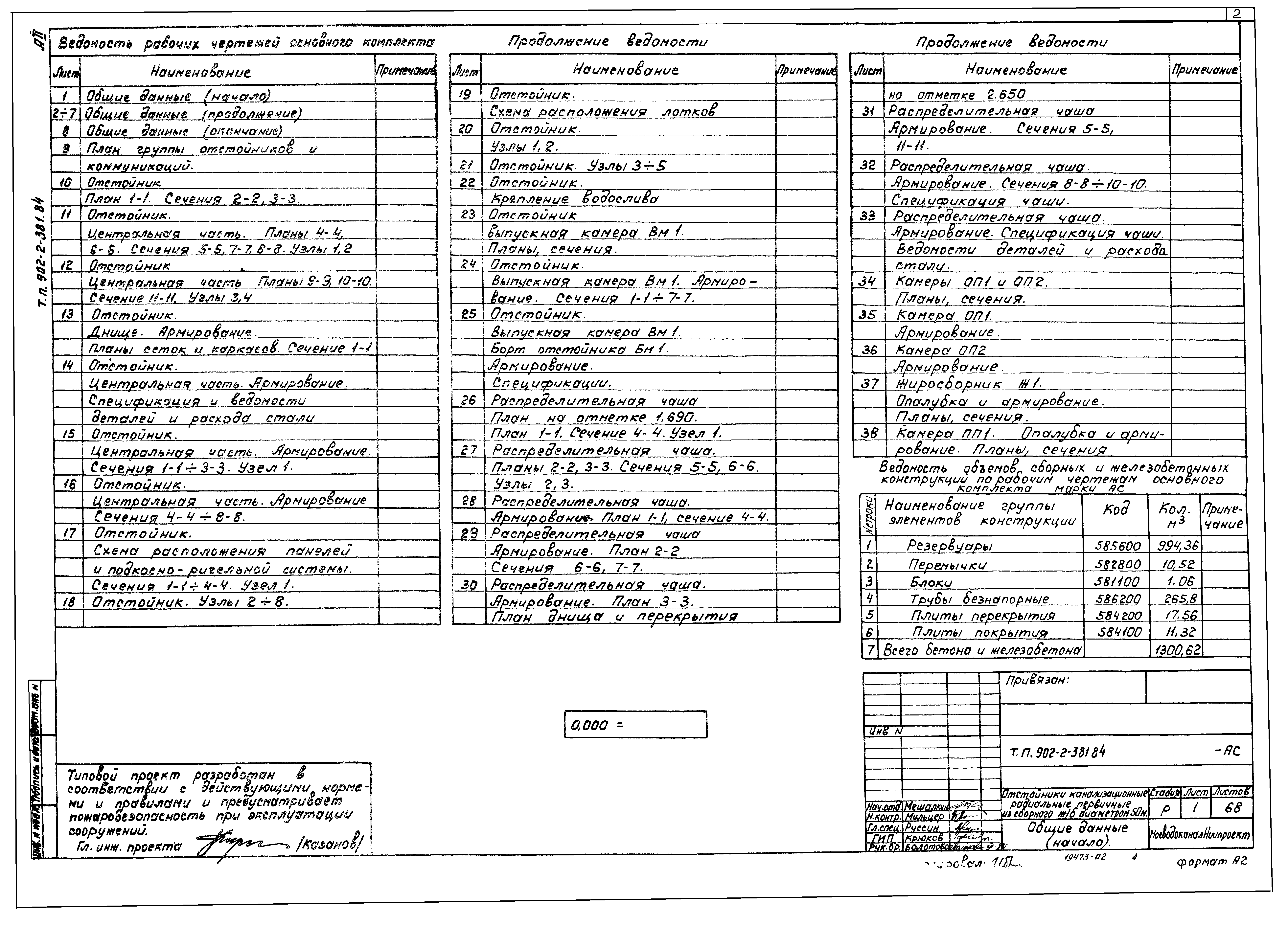
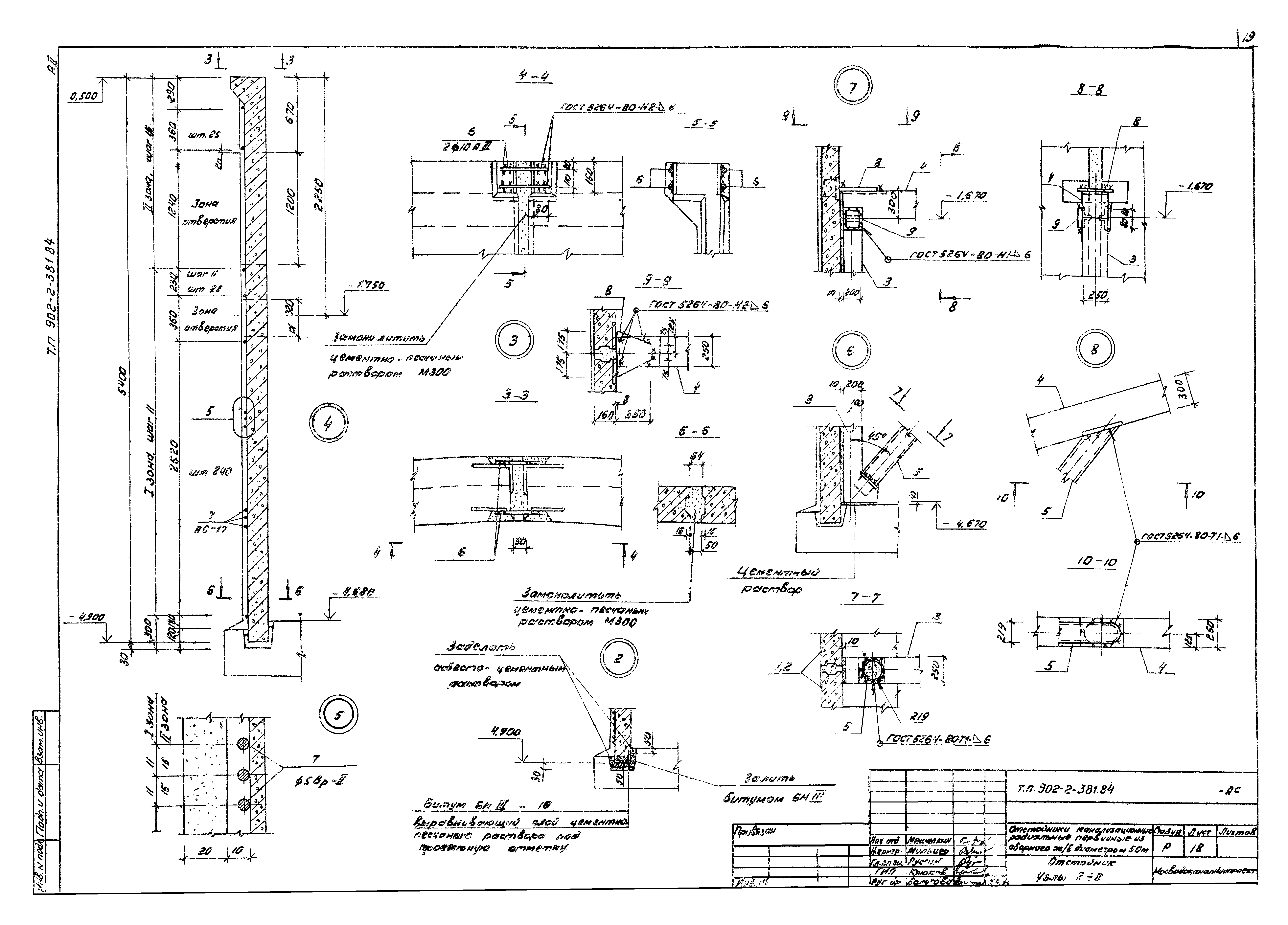
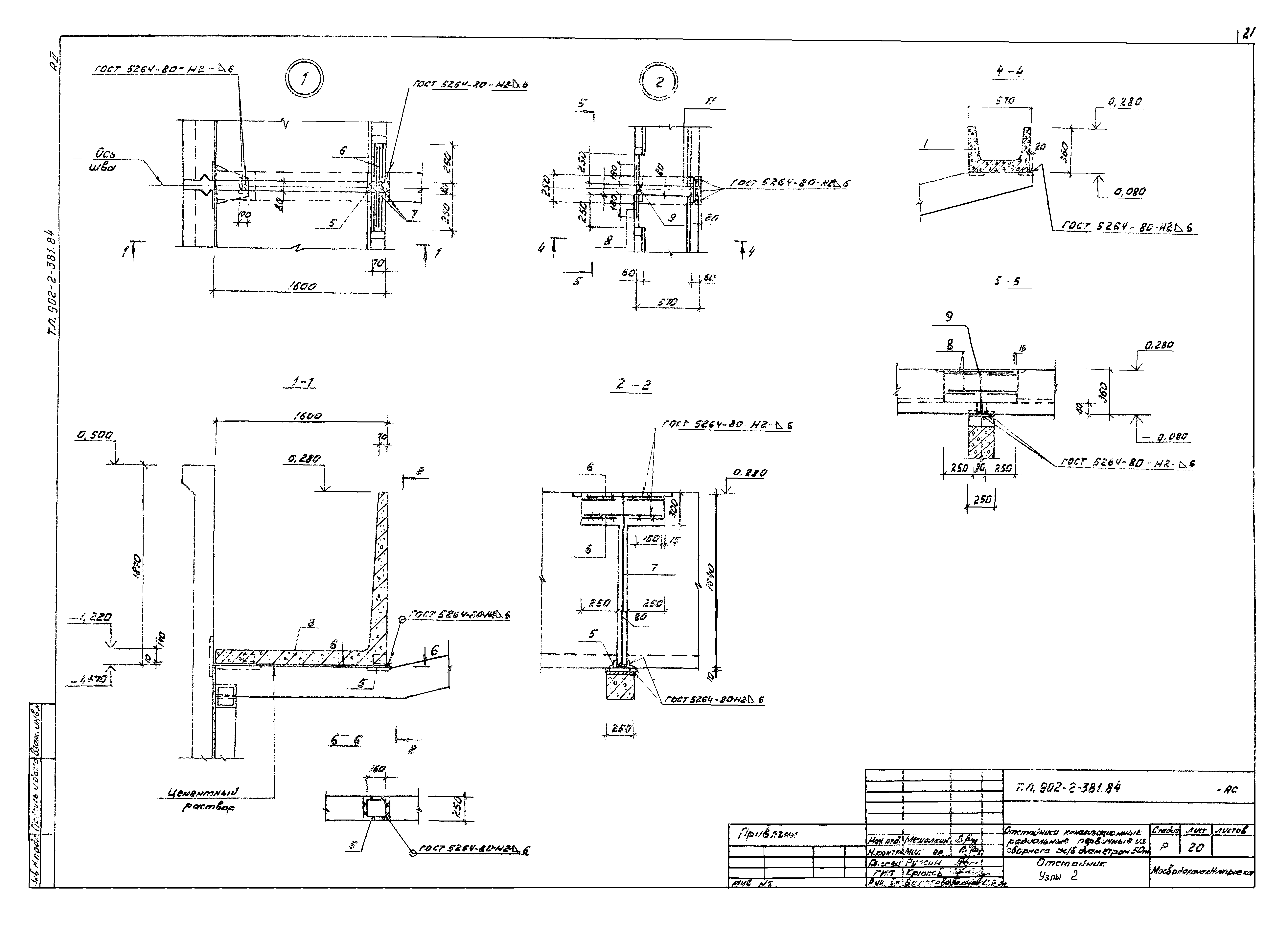
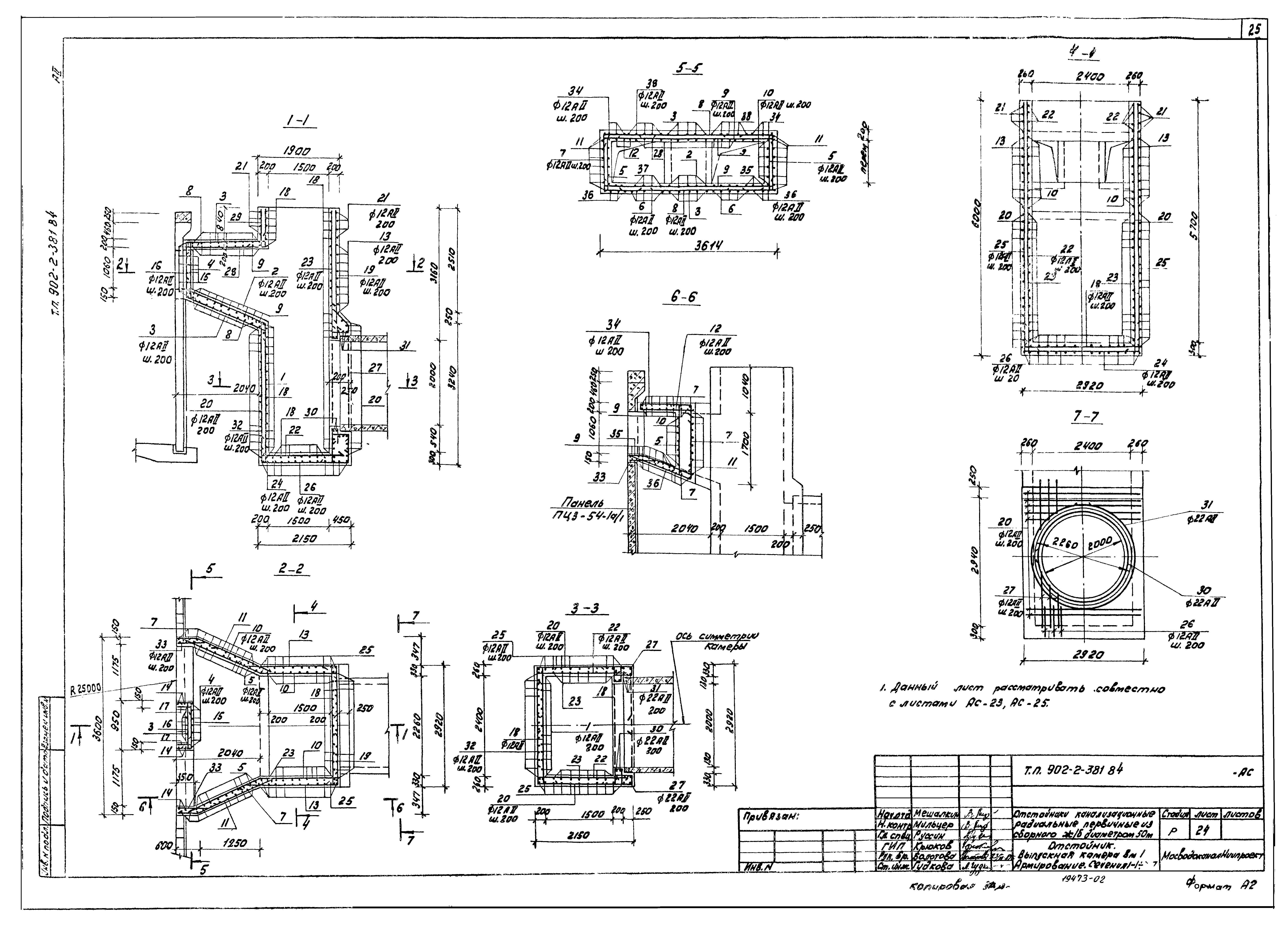
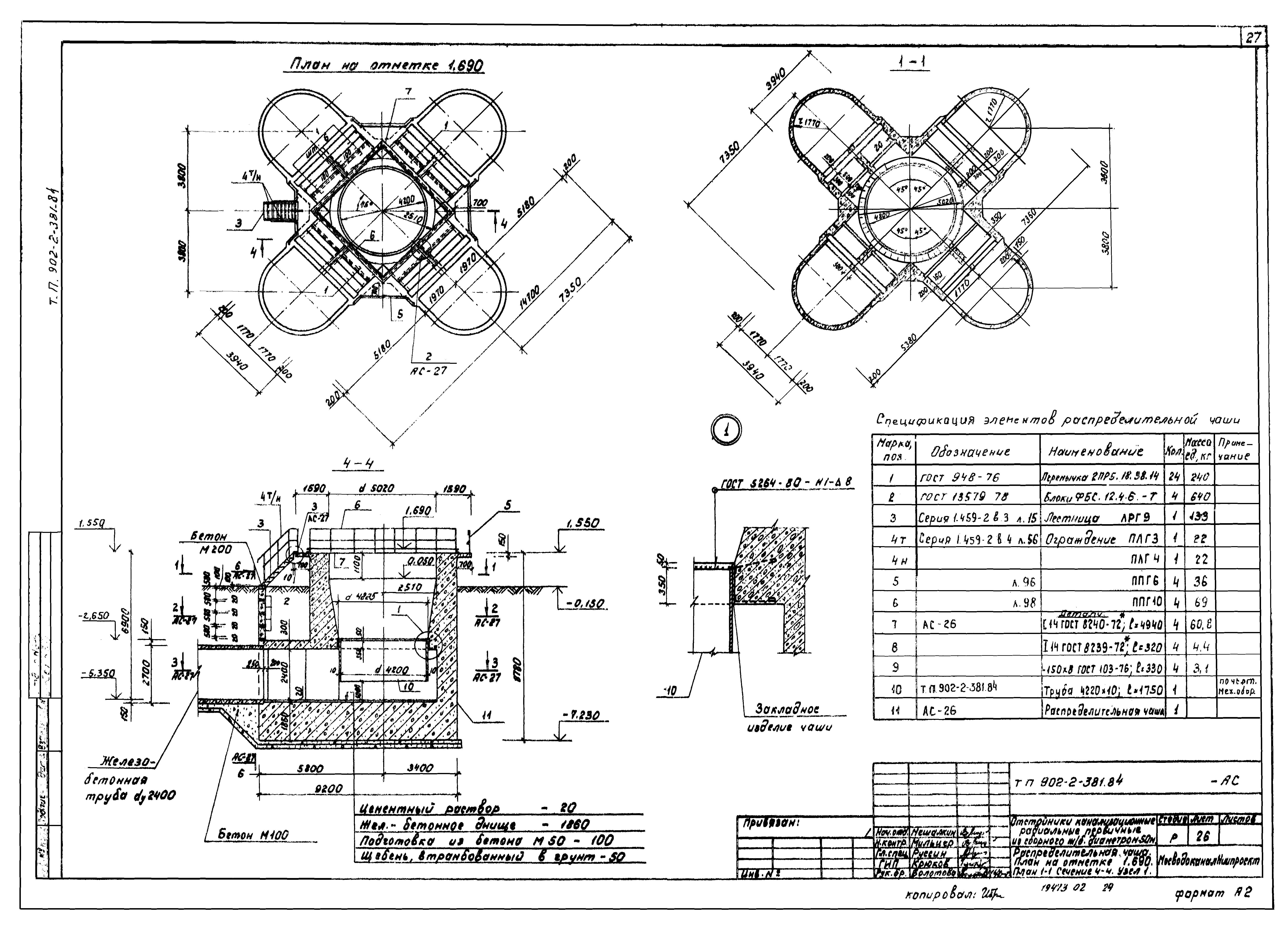
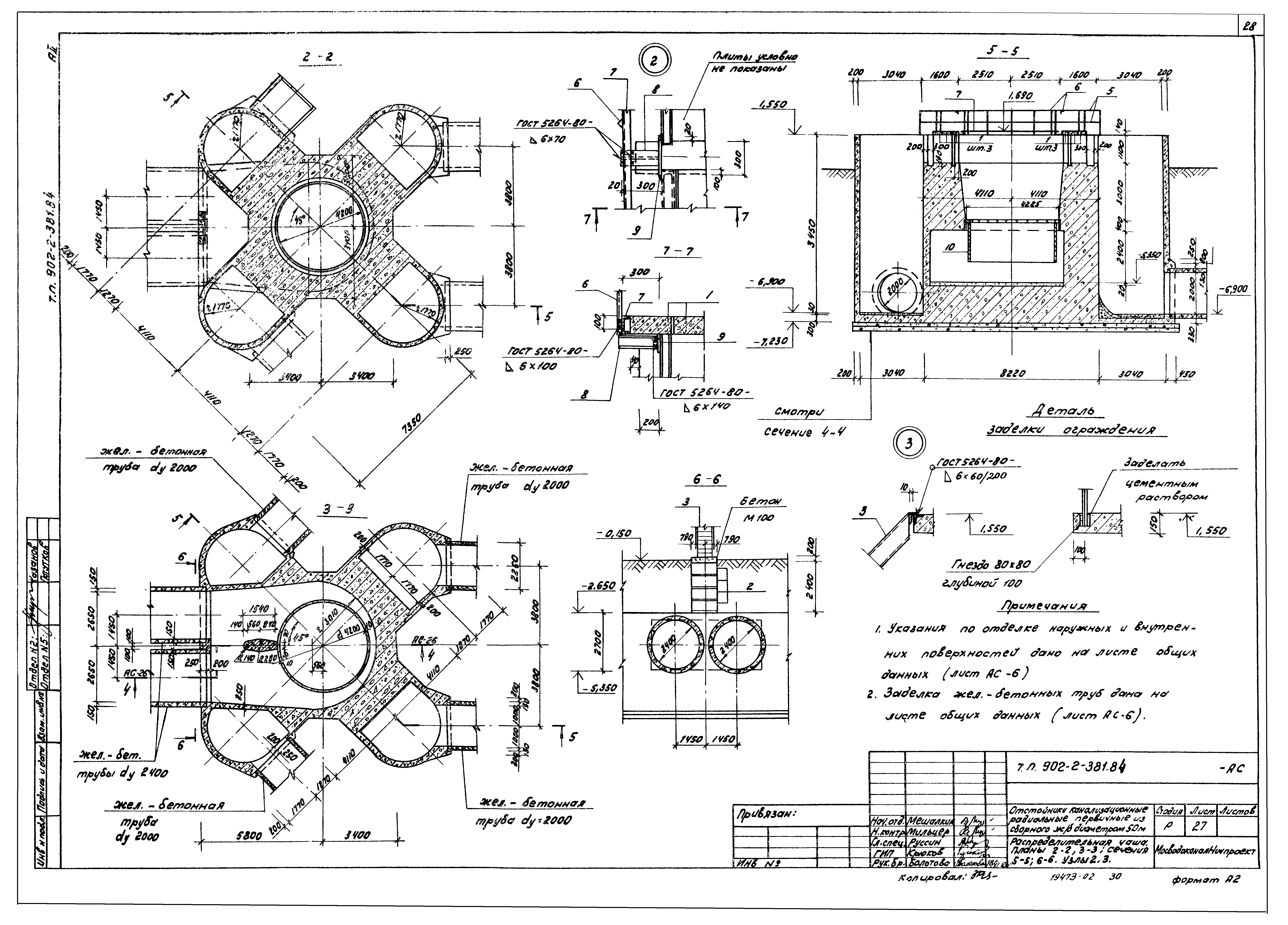
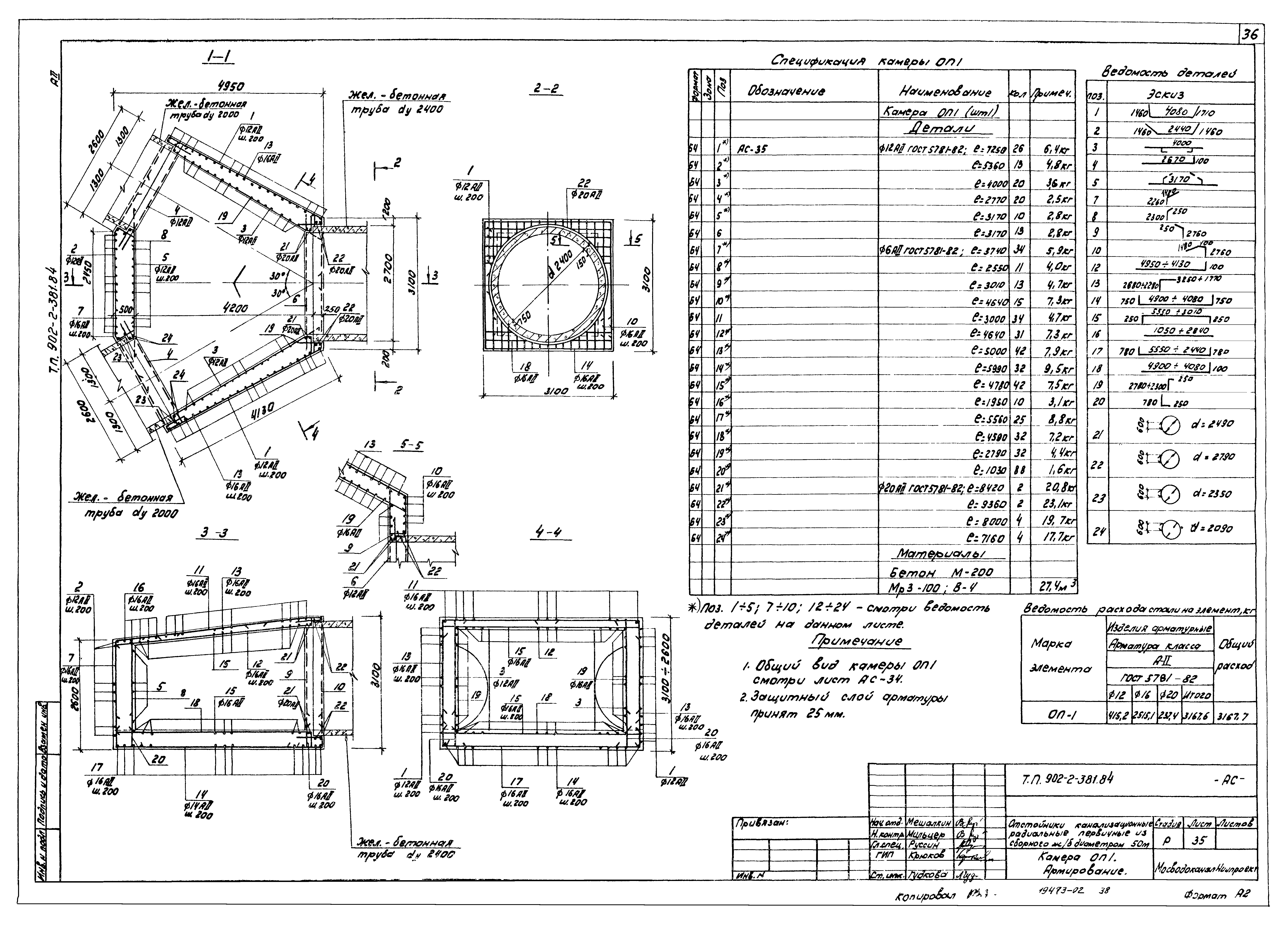
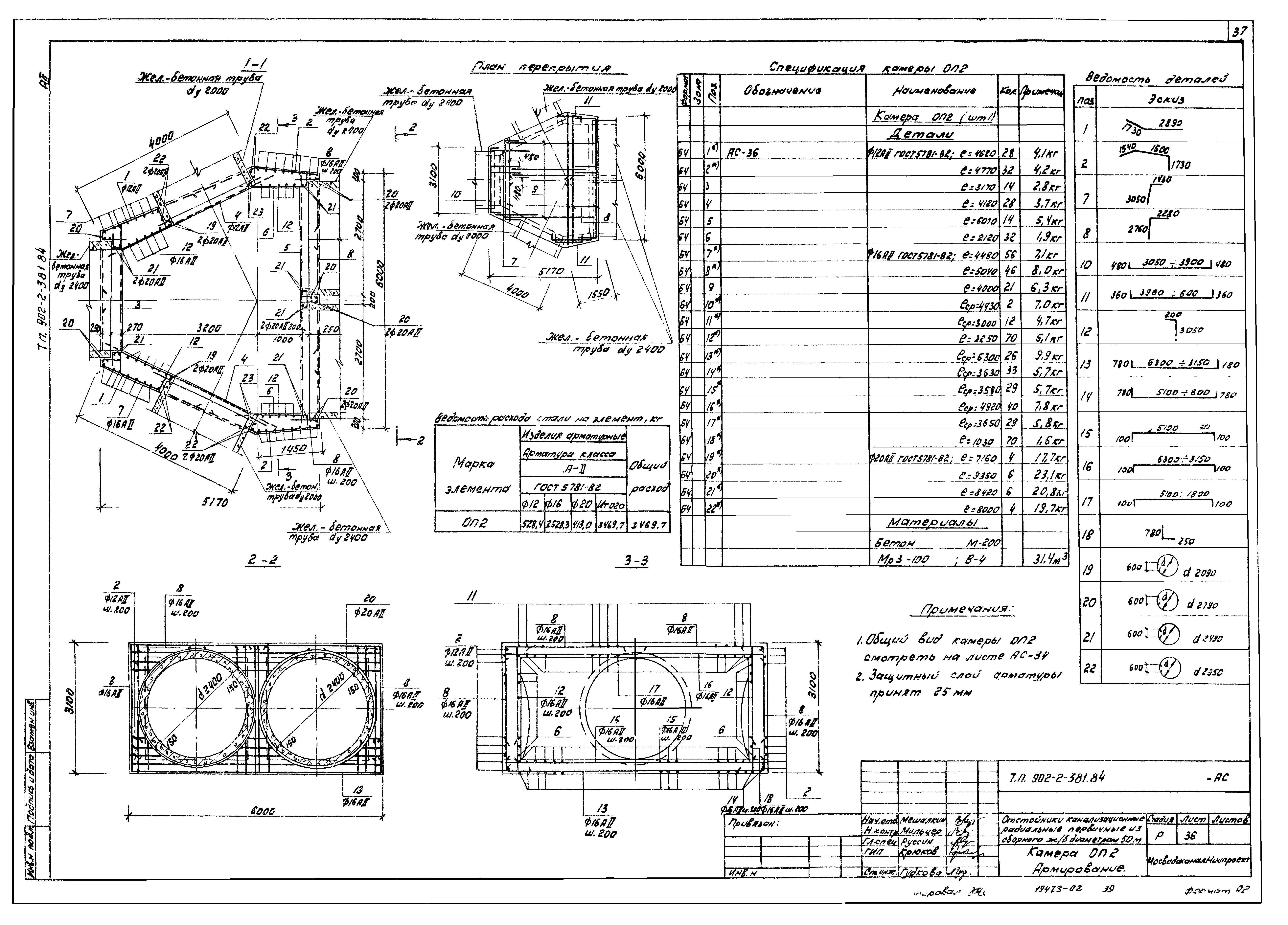
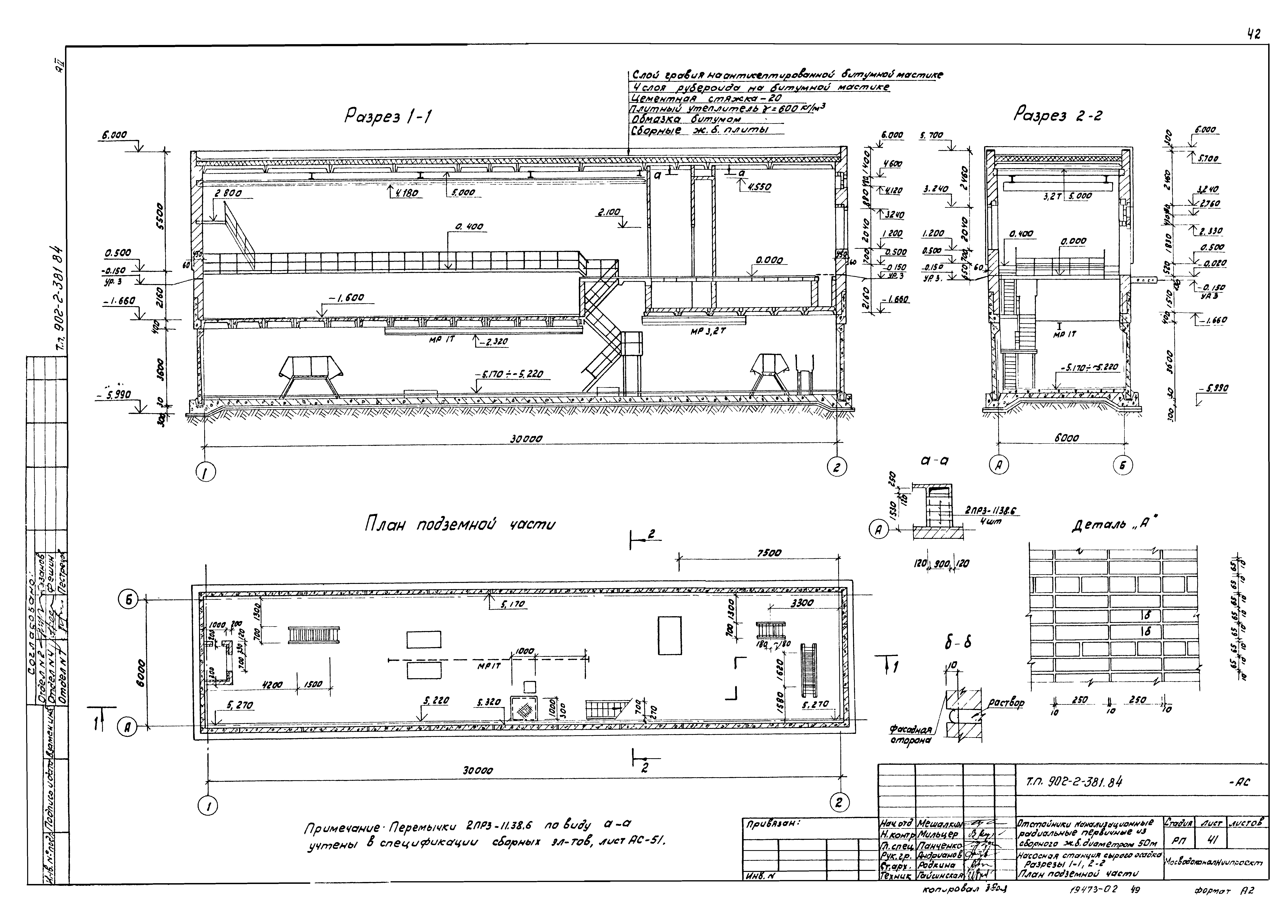
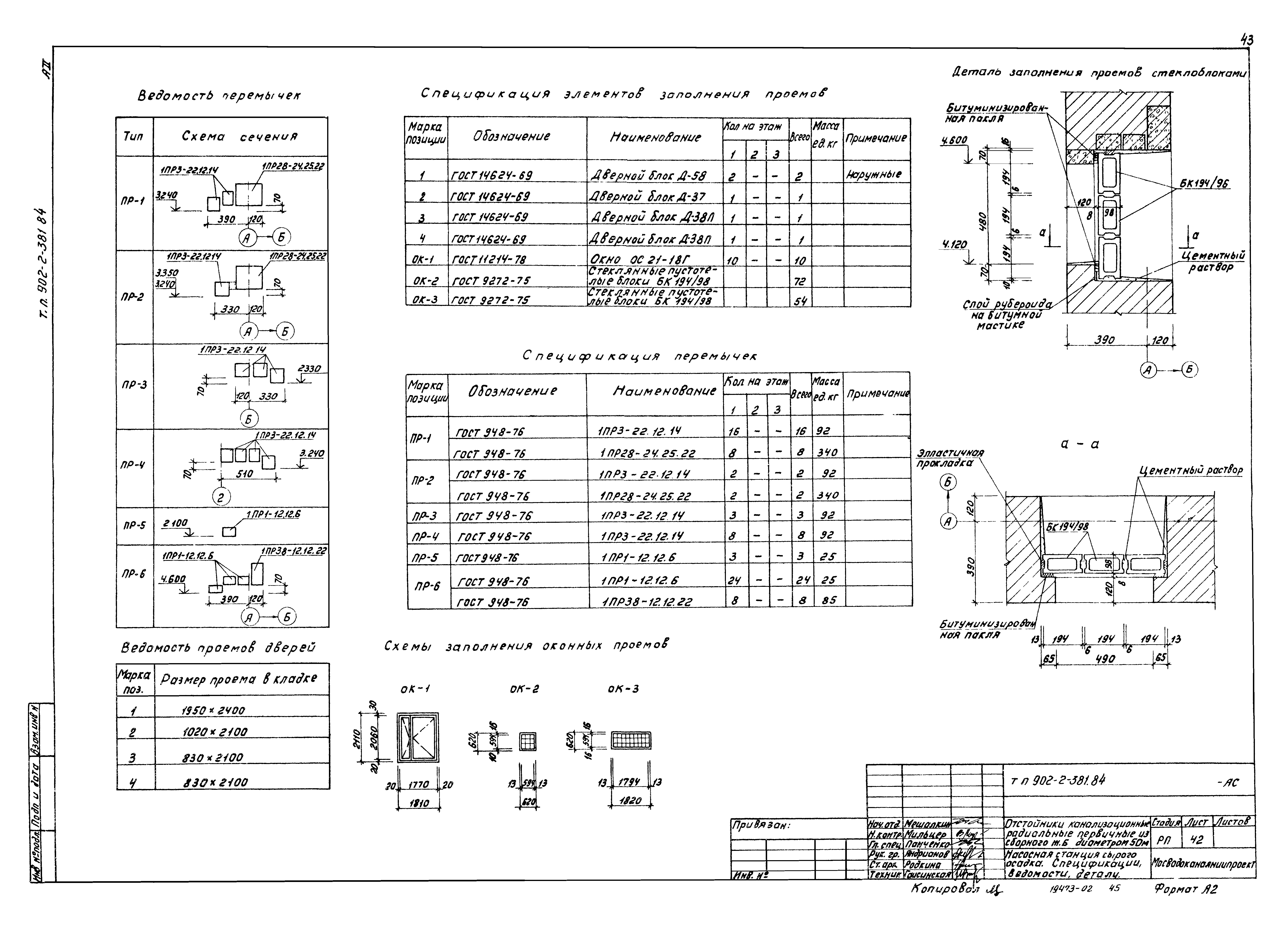
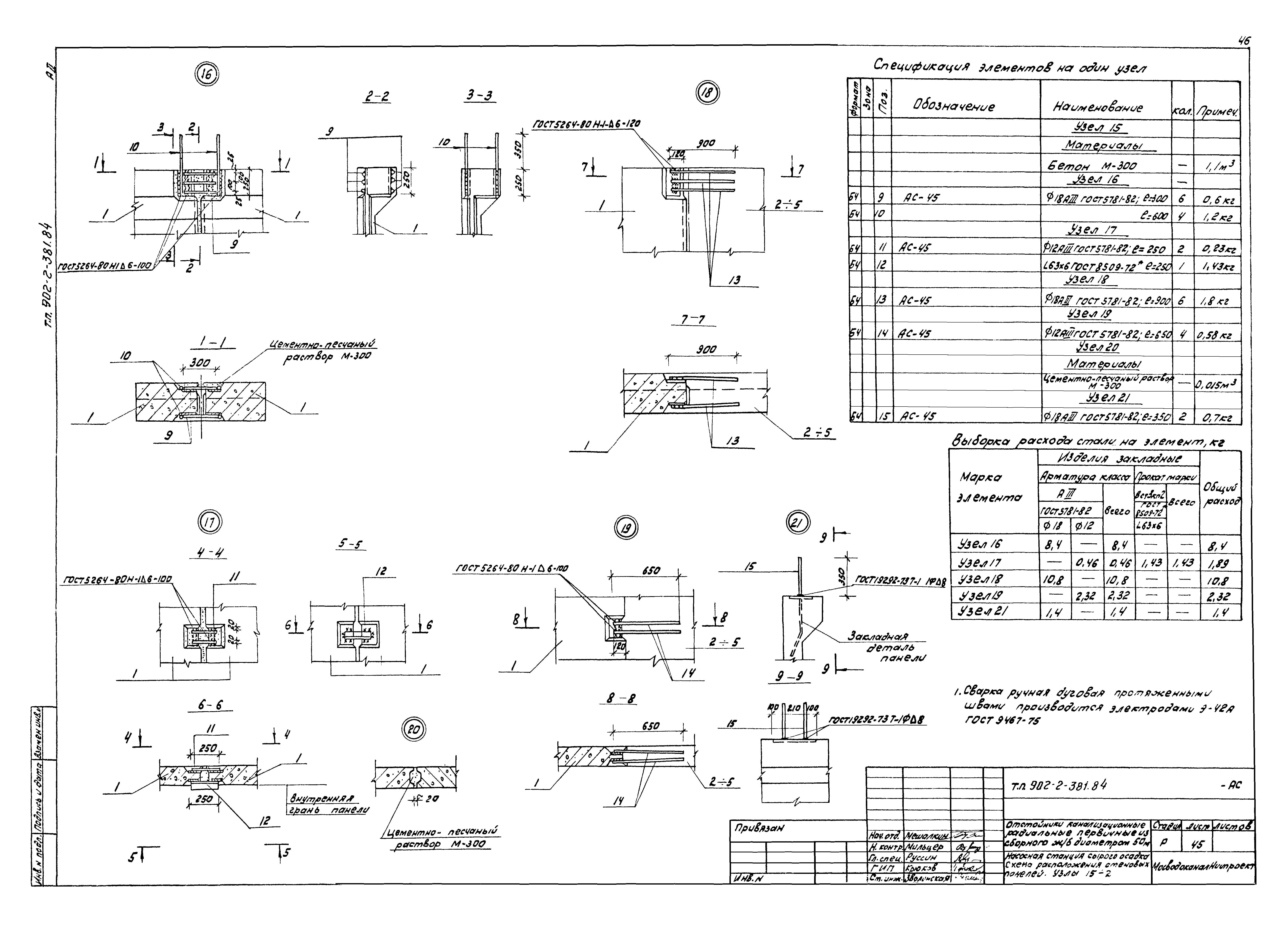
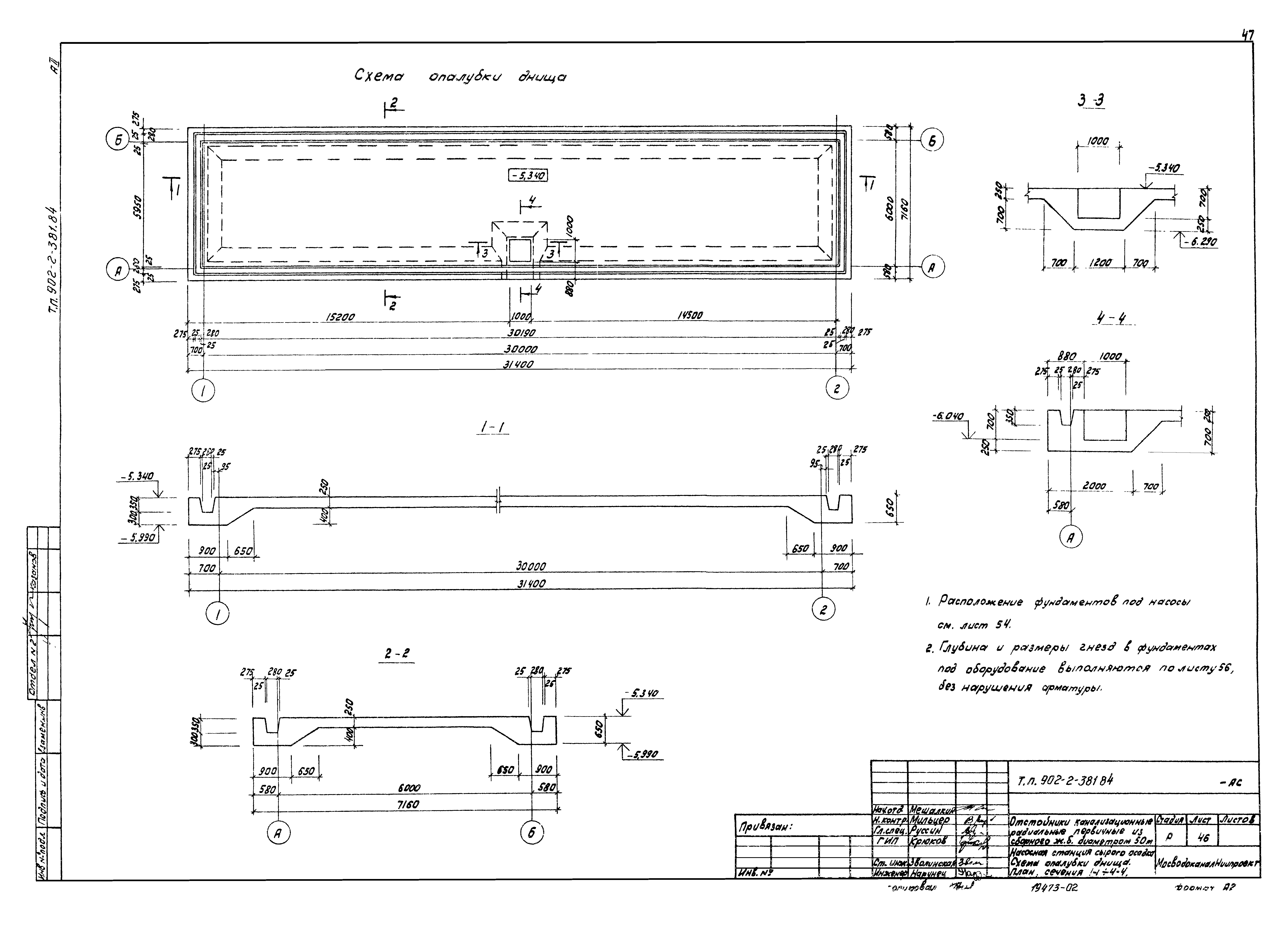
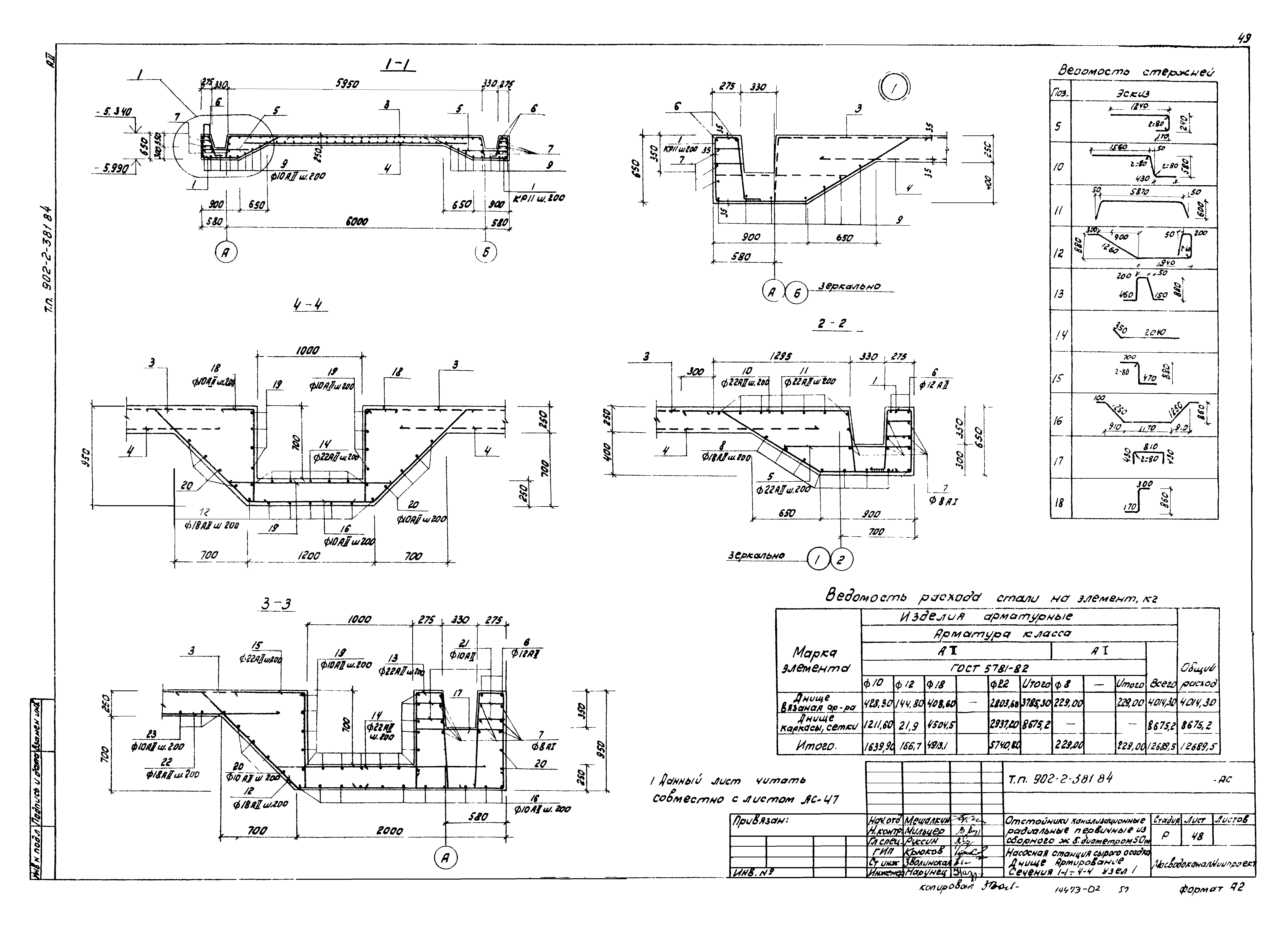
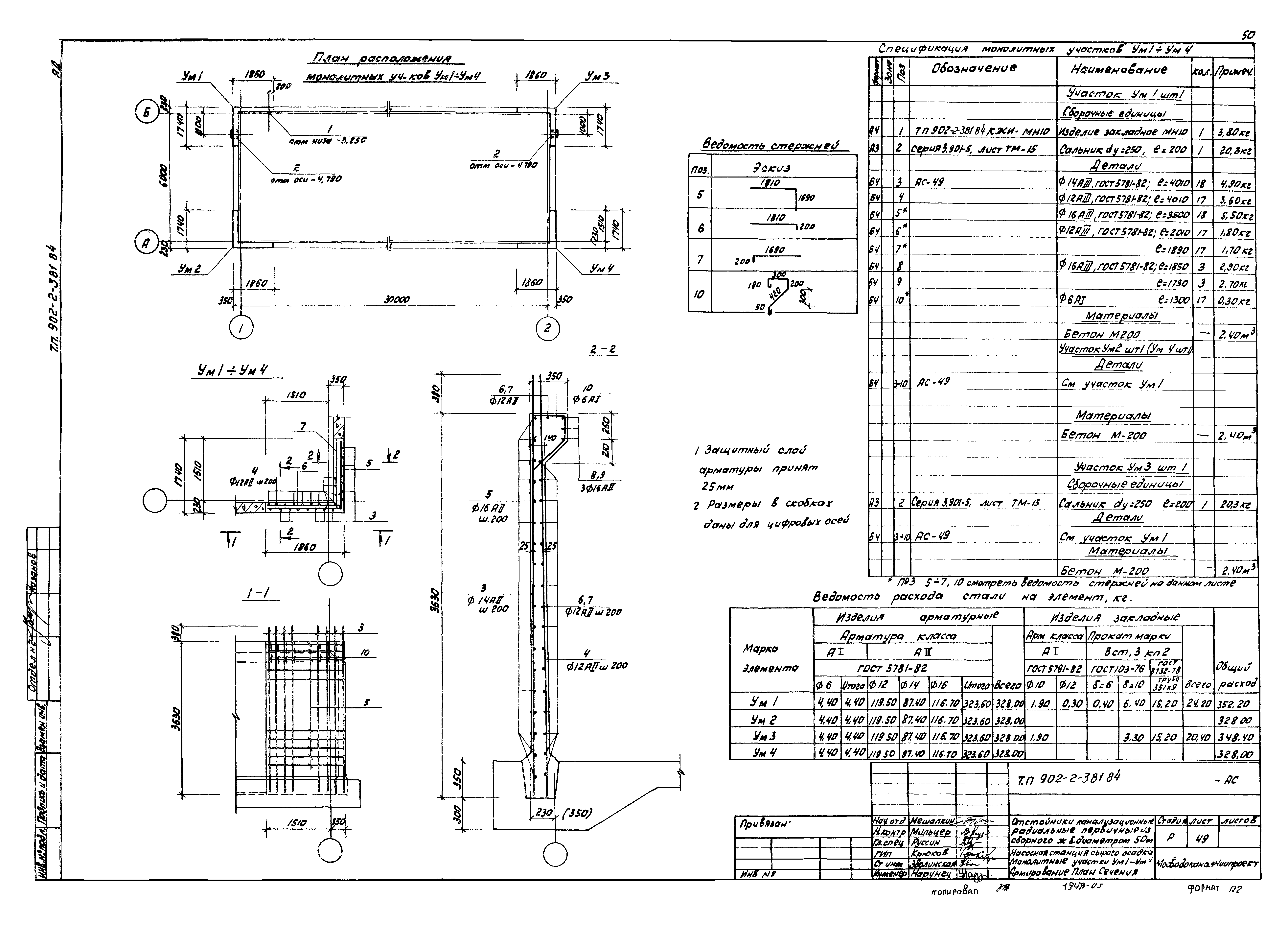
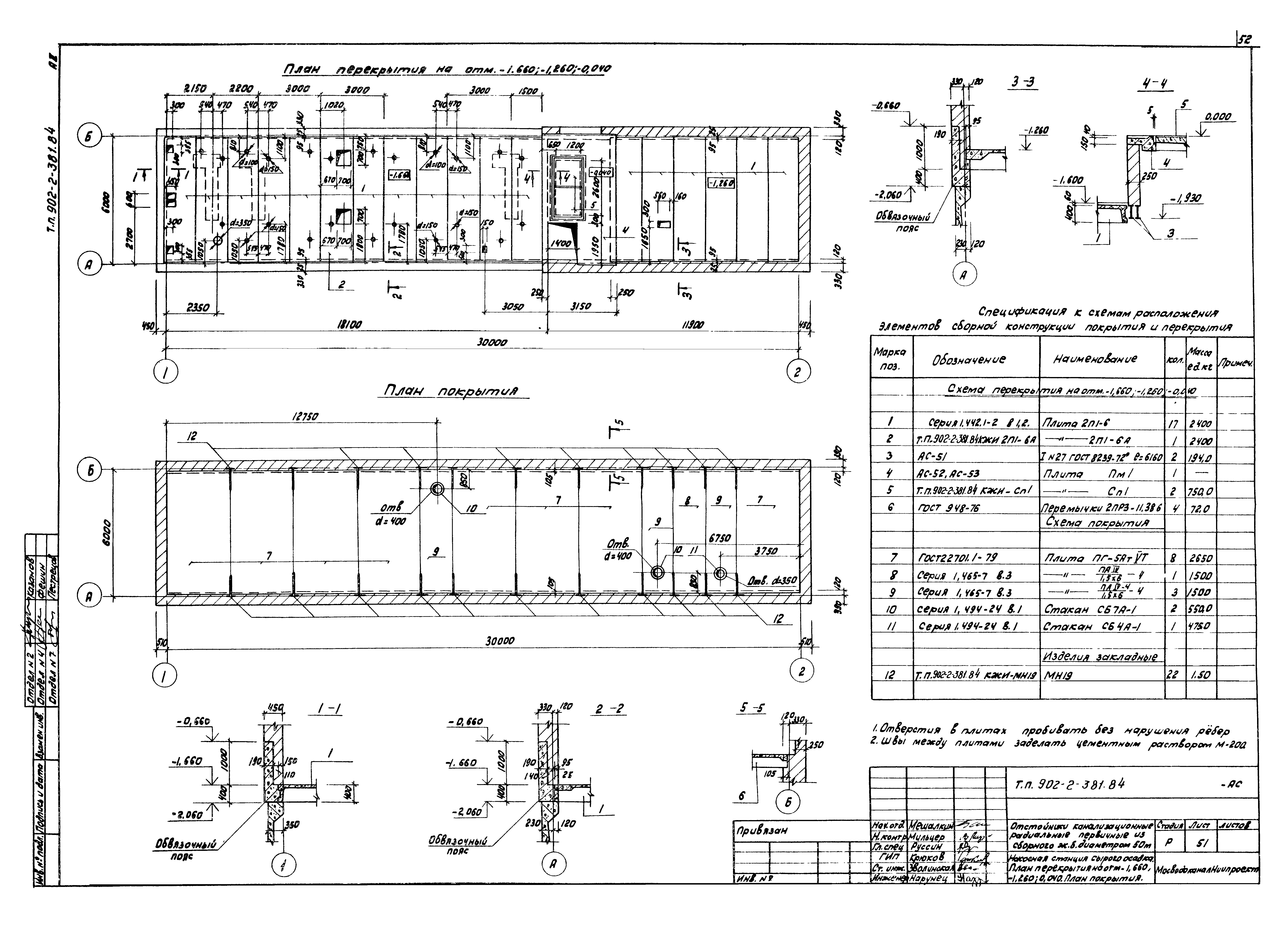
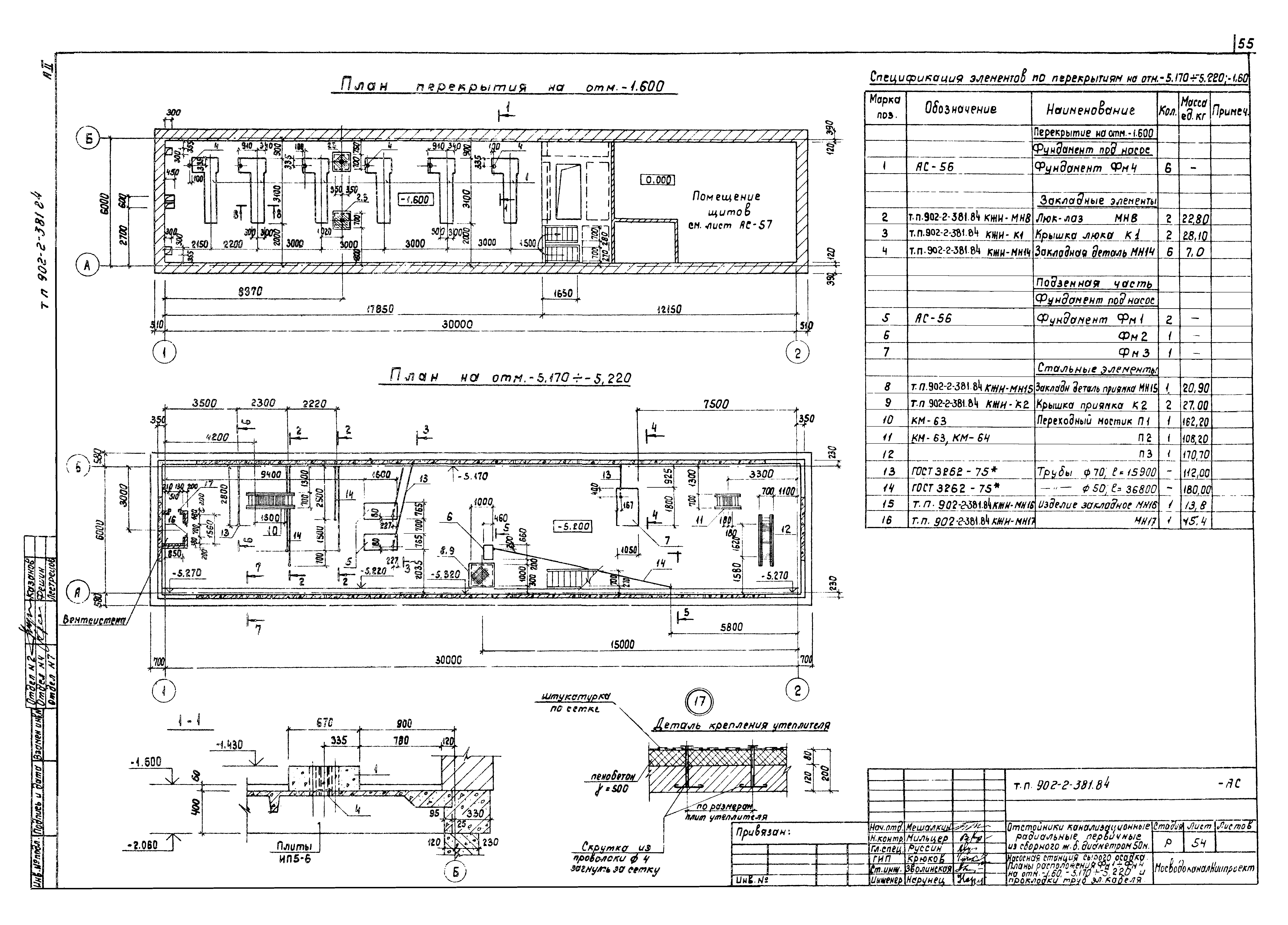
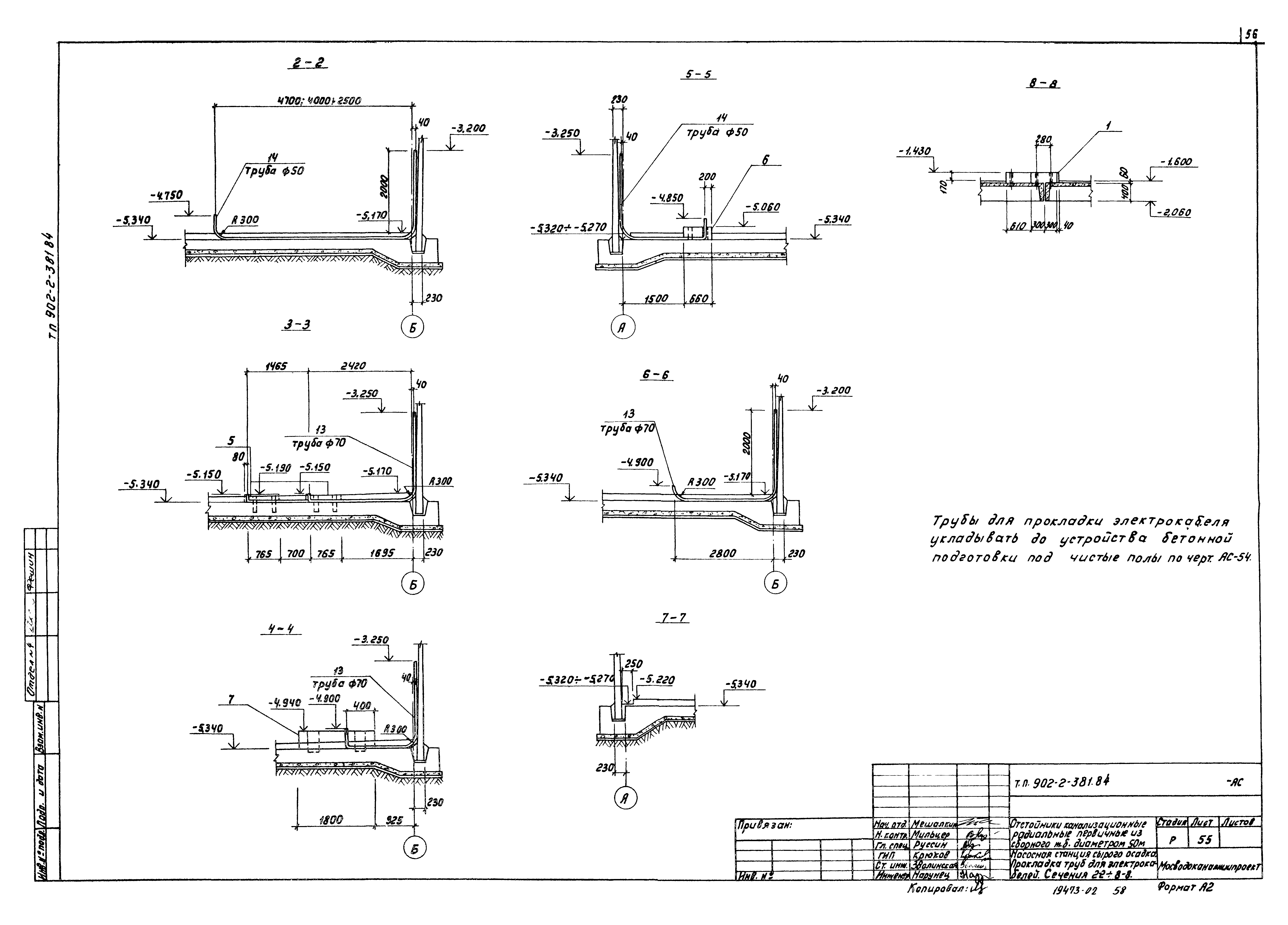
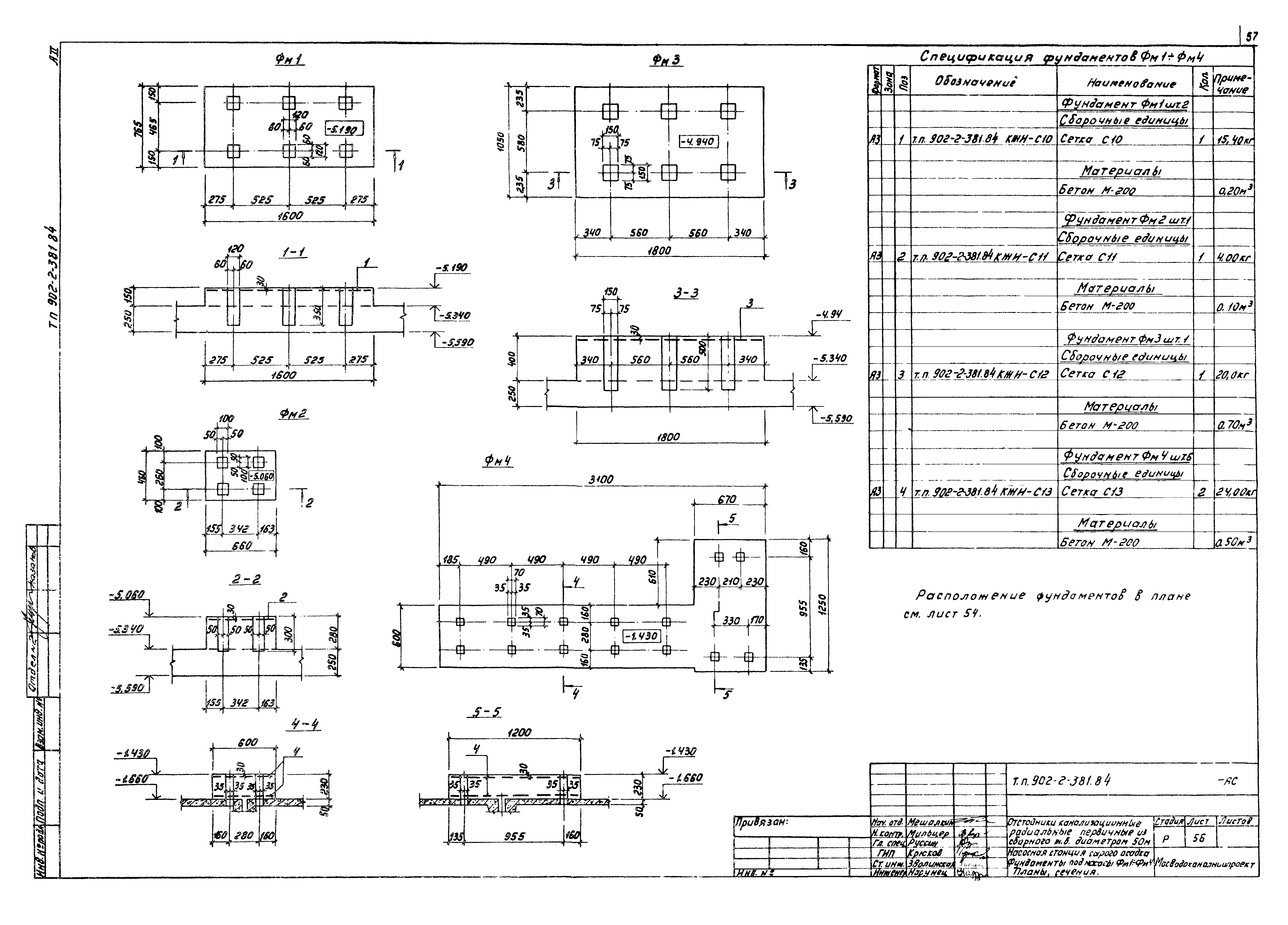
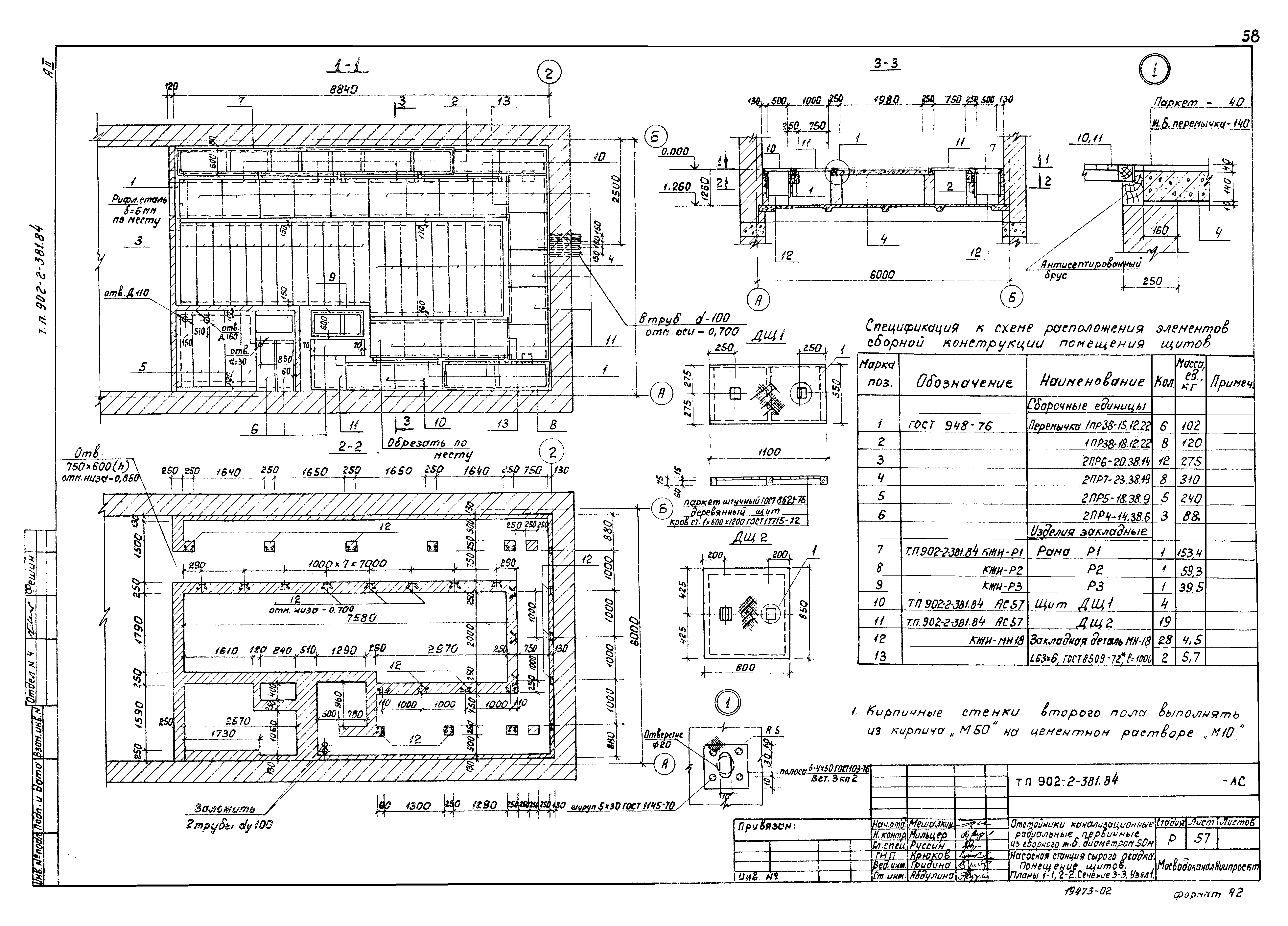
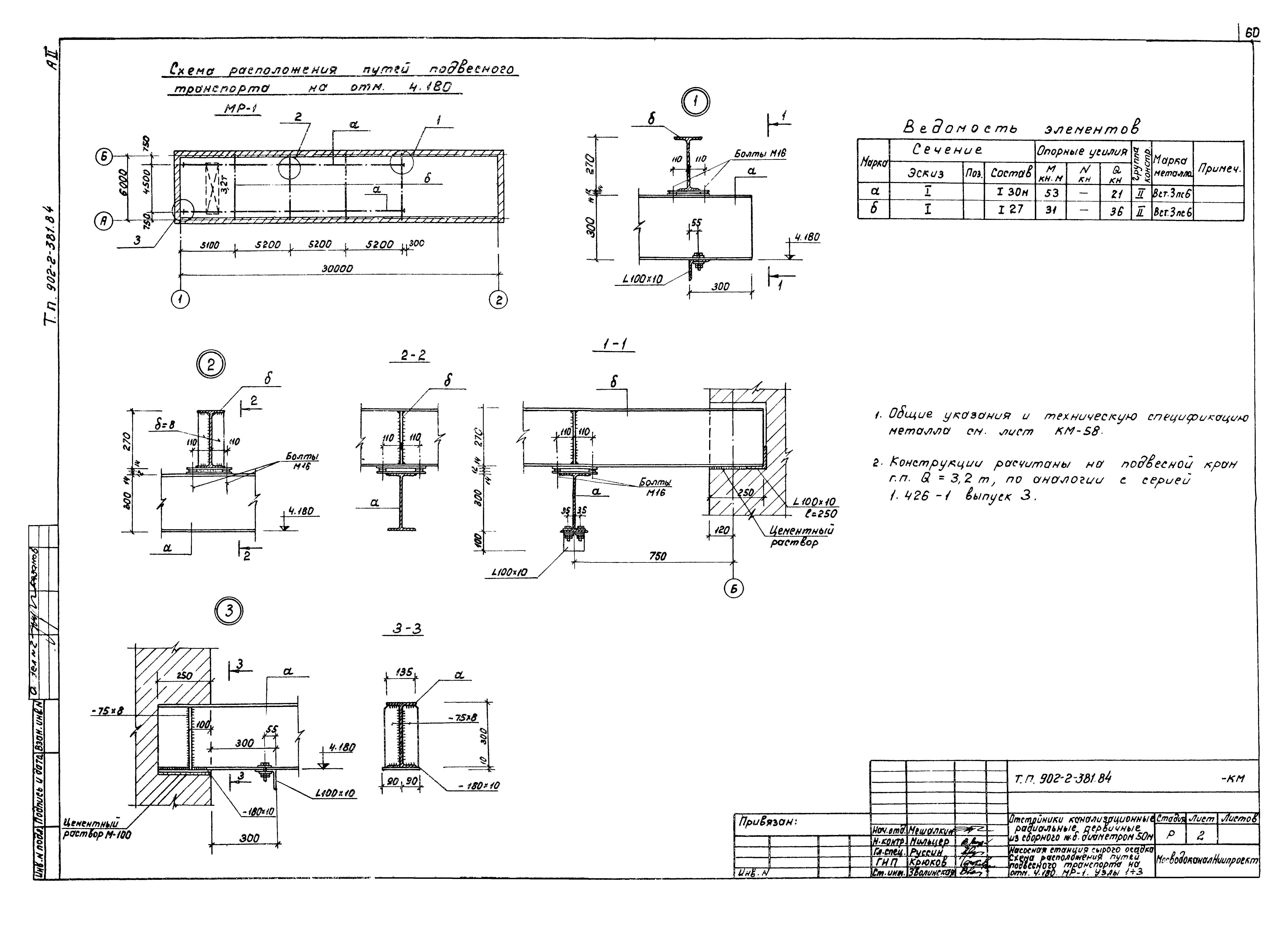
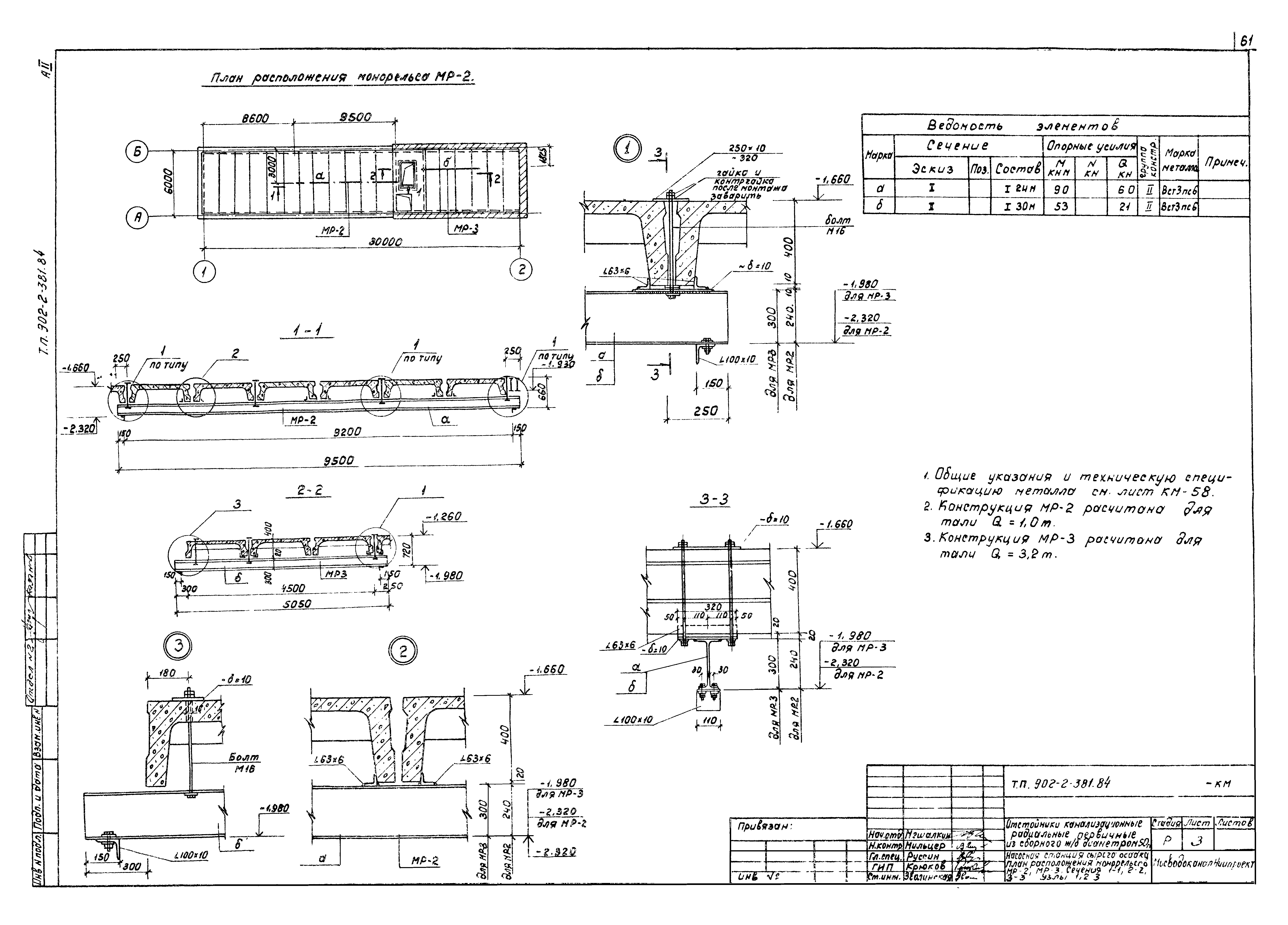
| Оглавление: | ТП 902-2-381.84 Содержание альбома ТП 902-2-381.84 АС Архитектурно-строительные решения ТП 902-2-381.84 АС-1 Общие данные (начало) ТП 902-2-381.84 АС-2 Общие данные (продолжение) ТП 902-2-381.84 АС-3 Общие данные (продолжение) ТП 902-2-381.84 АС-4 Общие данные (продолжение) ТП 902-2-381.84 АС-5 Общие данные (продолжение) ТП 902-2-381.84 АС-6 Общие данные (продолжение) ТП 902-2-381.84 АС-7 Общие данные (продолжение) ТП 902-2-381.84 АС-8 Общие данные (окончание) ТП 902-2-381.84 АС-9 План группы отстойников и коммуникаций ТП 902-2-381.84 АС-10 Отстойник. План 1-1. Сечения 2-8, 3-3 ТП 902-2-381.84 АС-11 Отстойник. Центральная часть. Планы 4-4,6-6. Сечения 5-5,7-7,8-8. Узлы 1,2 ТП 902-2-381.84 АС-12 Отстойник. Центральная часть. Планы 9-9,10-10. Сечение 11-11. Узлы 3,4 ТП 902-2-381.84 АС-13 Отстойник. Днище. Армирование. Планы сеток и каркасов. Сечение 1-1 ТП 902-2-381.84 АС-14 Отстойник. Центральная часть. Армирование. Спецификация и ведомость деталей и расходы стали ТП 902-2-381.84 АС-15 Отстойник. Центральная часть. Армирование. Сечения 1-1÷3-3. Узел 1 ТП 902-2-381.84 АС-16 Отстойник. Центральная часть. Армирование. Сечения 4-4÷8-8 ТП 902-2-381.84 АС-17 Отстойник. Схема расположения панелей и подкосно-ригельной системы. Сечения 1-1÷4-4. Узел 1 ТП 902-2-381.84 АС-18 Отстойник. Узлы 2-8 ТП 902-2-381.84 АС-19 Отстойник. Схема расположения лотков ТП 902-2-381.84 АС-20 Отстойник. Узлы 1,2 ТП 902-2-381.84 АС-21 Отстойник. Узлы 3-5 ТП 902-2-381.84 АС-22 Отстойник. Крепление водослива ТП 902-2-381.84 АС-23 Отстойник. Выпускная камера Вм1. Планы, сечения ТП 902-2-381.84 АС-24 Отстойник. Выпускная камера Вм1. Армирование. Сечения 1-1÷7-7 ТП 902-2-381.84 АС-25 Отстойник. Выпускная камера Вм1 и борт отстойника Бм1. Армирование. Спецификации ТП 902-2-381.84 АС-26 Распределительная чаша. План на отметке 1.690. План Н. Сечение 4-4. Узел 1 ТП 902-2-381.84 АС-27 Распределительная чаша. Планы 2-2,3-3. Сечения 5-5,6-6. Узлы 2,3 ТП 902-2-381.84 АС-28 Распределительная чаша. Армирование. План 1-1. Сечение 4-4 ТП 902-2-381.84 АС-29 Распределительная чаша. Армирование. План 2-2. Сечение 6-6, 7-7 ТП 902-2-381.84 АС-30 Распределительная чаша. Армирование. План 3-3. План днища и перекрытия на отметке - 2.650 ТП 902-2-381.84 АС-31 Распределительная чаша. Армирование. Сечения 5-5,11-11 ТП 902-2-381.84 АС-32 Распределительная чаша. Армирование. Сечения 8-8÷10-10. Спецификация чаши ТП 902-2-381.84 АС-33 Распределительная чаша. Армирование. Спецификация чаши. Ведомости деталей, расхода стали ТП 902-2-381.84 АС-34 Камеры ОП1 и ОП2. Планы, сечения ТП 902-2-381.84 АС-35 Камера ОП1. Армирование ТП 902-2-381.84 АС-36 Камера ОП2. Армирование ТП 902-2-381.84 АС-37 Жиросборник Ж1. Опалубка и армирование. Планы, сечения ТП 902-2-381.84 АС-38 Камера ПП1. Опалубка и армирование. Планы, сечения ТП 902-2-381.84 АС-39 Насосная станция сырого осадка. Общие данные ТП 902-2-381.84 АС-40 Насосная станция сырого осадка. Фасады 1-2,2-1,А-5,5-А. План надземной части ТП 902-2-381.84 АС-41 Насосная станция сырого осадка. Разрезы 1-1,2-2. План подземной части ТП 902-2-381.84 АС-42 Насосная станция сырого осадка. Спецификация. Ведомости, детали ТП 902-2-381.84 АС-43 Насосная станция сырого осадка. Схема расположения стеновых панелей. Сечения 1-1,2-2 ТП 902-2-381.84 АС-44 Насосная станция сырого осадка. Схема расположения стеновых панелей. Сечения 3-3,4-4 ТП 902-2-381.84 АС-45 Насосная станция сырого осадка. Схема расположения стеновых панелей. Узлы 15-21 ТП 902-2-381.84 АС-46 Насосная станция сырого осадка. Схема опалубки днища. План, сечения 1-1÷4-4 ТП 902-2-381.84 АС-47 Насосная станция сырого осадка. Днище. Армирование. Планы раскладки сеток, каркасов ТП 902-2-381.84 АС-48 Насосная станция сырого осадка. Днище. Армирование. Сечения 1-1÷4-4. Узел 1 ТП 902-2-381.84 АС-49 Насосная станция сырого осадка. Монолитные участки Ум1-=Ум4. Армирование. План. Сечения ТП 902-2-381.84 АС-50 Насосная станция сырого осадка. Обвязочный пояс Опм1. Опалубка, армирование ТП 902-2-381.84 АС-51 Насосная станция сырого осадка. План перекрытия на отметках - 1.660, -1.260, 0.040. План перекрытия ТП 902-2-381.84 АС-52 Насосная станция сырого осадка. Перекрытие на отметке 0.000. Плита Пм1. Армирование ТП 902-2-381.84 АС-53 Насосная станция сырого осадка. Перекрытие на отметке 0.000. Плита Пм1. Балки 5м2-5м4. Таблицы ТП 902-2-381.84 АС-54 Насосная станция сырого осадка. Планы расположения Фм1-Фм4 на отметках -1.600; -5.170÷-3.220 и прокладки труб электрокабеля ТП 902-2-381.84 АС-55 Насосная станция сырого осадка. Прокладка труб для электрокабелей. Сечения 2-2÷8-8 ТП 902-2-381.84 АС-56 Насосная станция сырого осадка. Фундаменты под насосы Фм1-Фм4. Планы, сечения ТП 902-2-381.84 АС-57 Насосная станция сырого осадка. Помещение щитов. Планы 1-1,2-2. Сечение 3-3. Узел 1 ТП 902-2-381.84 КМ Конструкции металлические ТП 902-2-381.84 КМ-1 Насосная станция сырого осадка. Общие данные ТП 902-2-381.84 КМ-2 Насосная станция сырого осадка. Схема расположения путей подвесного транспорта на отметке 4.180. МР-1. Узлы 1-3 ТП 902-2-381.84 КМ-3 Насосная станция сырого осадка. План расположения монорельсов МР-2,МР-3. Сечения 1-1,2-2,3-2. Узлы 1,2,3 ТП 902-2-381.84 КМ-4 Насосная станция сырого осадка. Площадка и лестницы. Планы, сечения ТП 902-2-381.84 КМ-5 Насосная станция сырого осадка. Площадки на отметках 0.400, 2.800 и лестницы. План и разрезы ТП 902-2-381.84 КМ-6 Насосная станция сырого осадка. Схема переходных мостиков П-1÷П-3. Переходной мостик П-1 ТП 902-2-381.84 КМ-7 Насосная станция сырого осадка. Переходные мостики П-2,П-3. Планы, сечения ТП 902-2-381.84 КМ-8 Насосная станция сырого осадка. Подвеска и крепление технологических трубопроводов. План. Сечения. Узлы 1,2 ТП 902-2-381.84 КМ-9 Насосная станция сырого осадка. Подвеска и крепление технологических трубопроводов. Узлы 3-5 ТП 902-2-381.84 КМ-10 Насосная станция сырого осадка. Техническая спецификация металла ТП 902-2-381.84 КМ-11 Насосная станция сырого осадка. Ведомость конструкции по видам профилей |
| Разработан: | МосводоканалНИИпроект |
| Утверждён: | 20.12.1983 МосводоканалНИИпроект (312) |






































































