Скачать Типовой проект 902-2-381.84 Альбом IV. Электротехническая частьДата актуализации: 01.01.2021
|
| Обозначение: | Типовой проект 902-2-381.84 |
| Обозначение англ: | 902-2-381.84 |
| Статус: | не действует |
| Название рус.: | Альбом IV. Электротехническая часть |
| Дата добавления в базу: | 01.09.2013 |
| Дата актуализации: | 01.01.2021 |
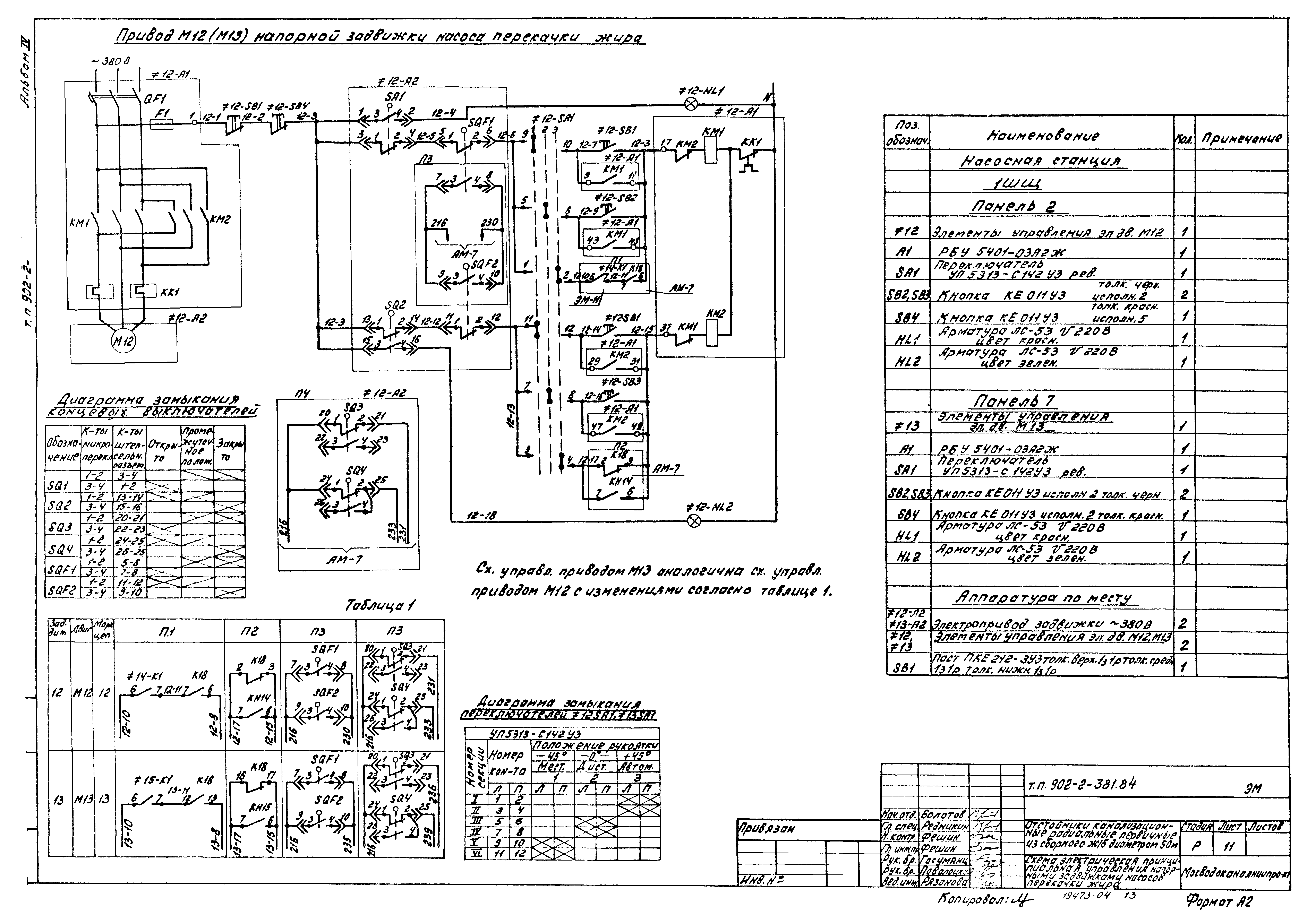
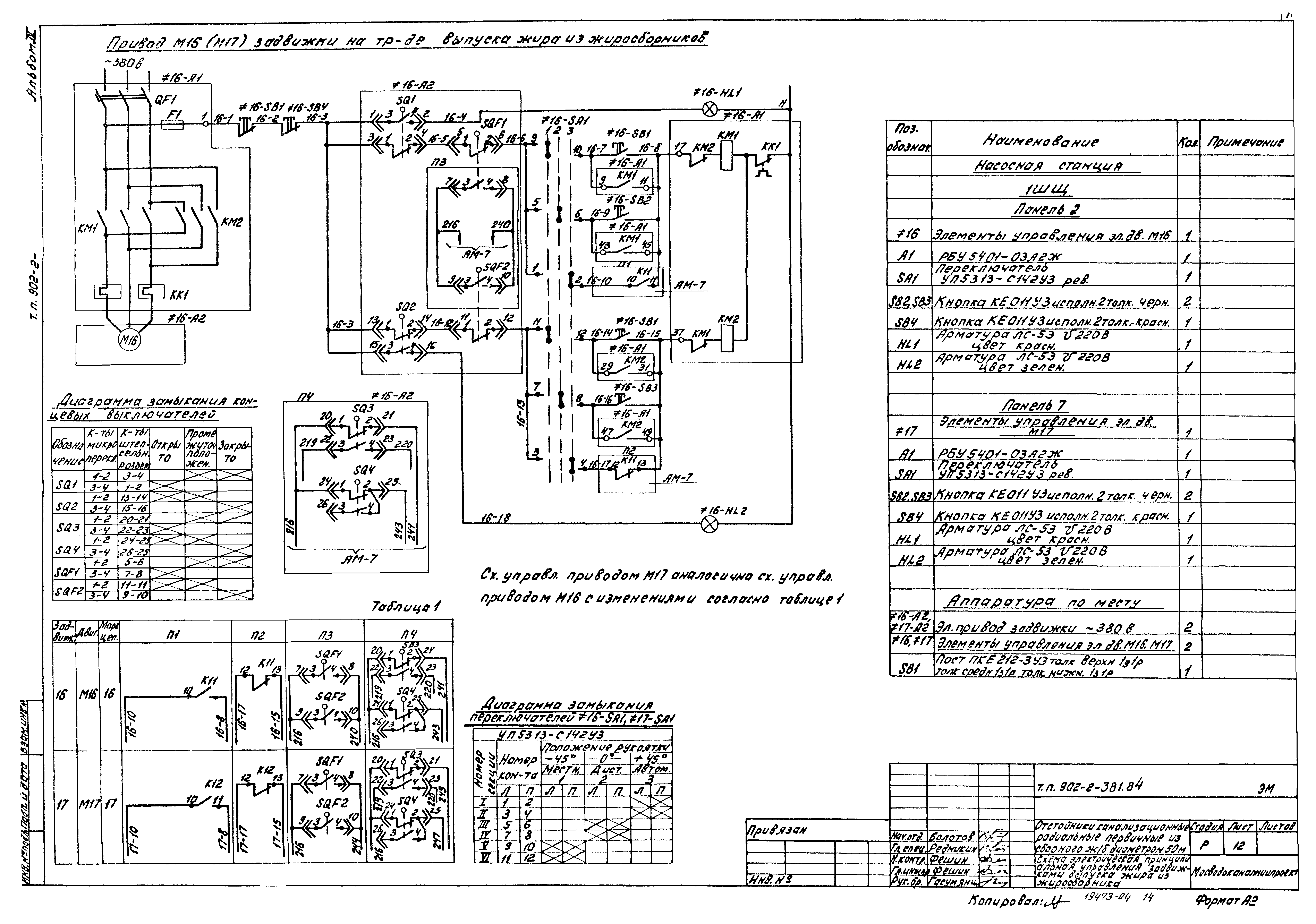
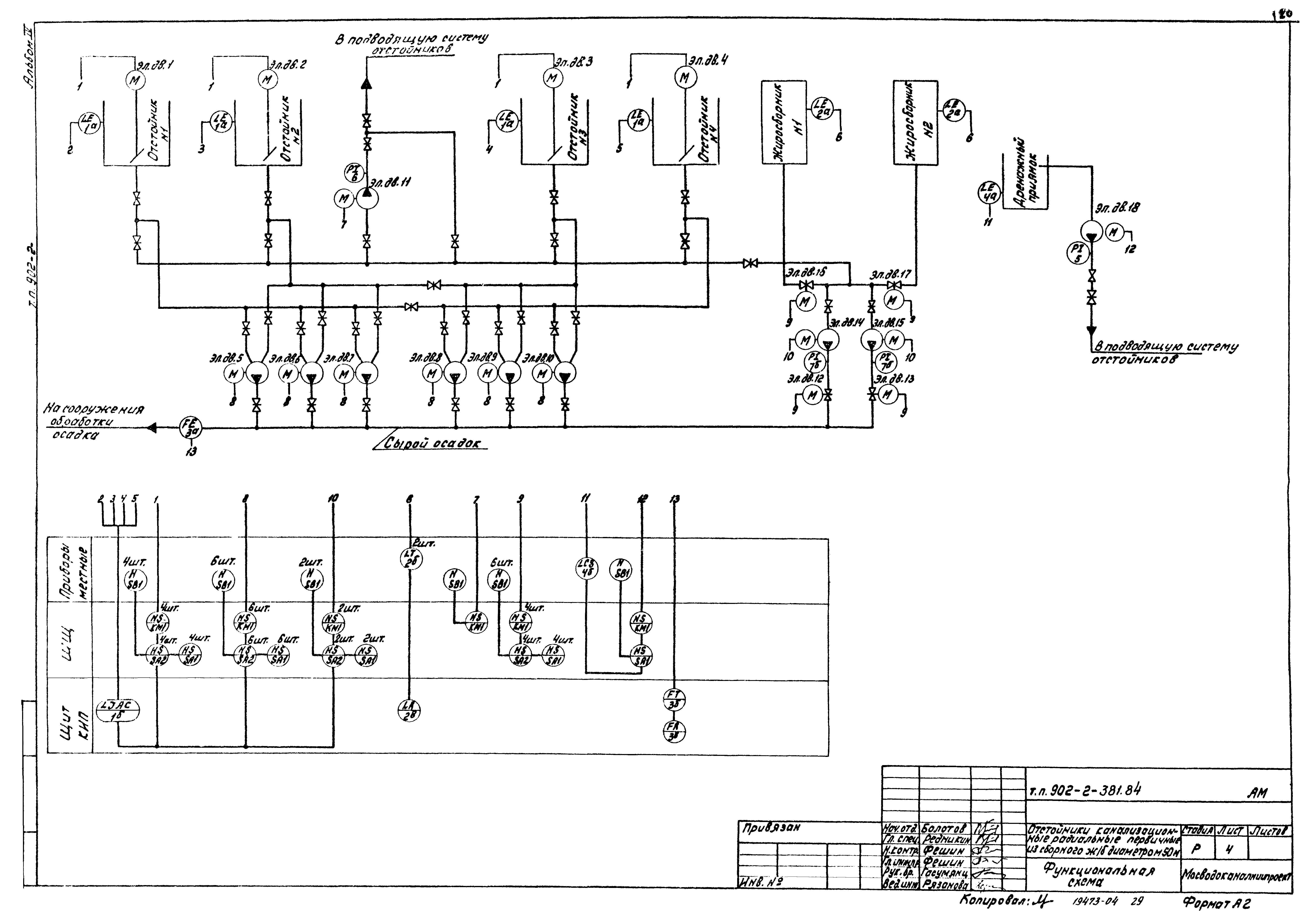
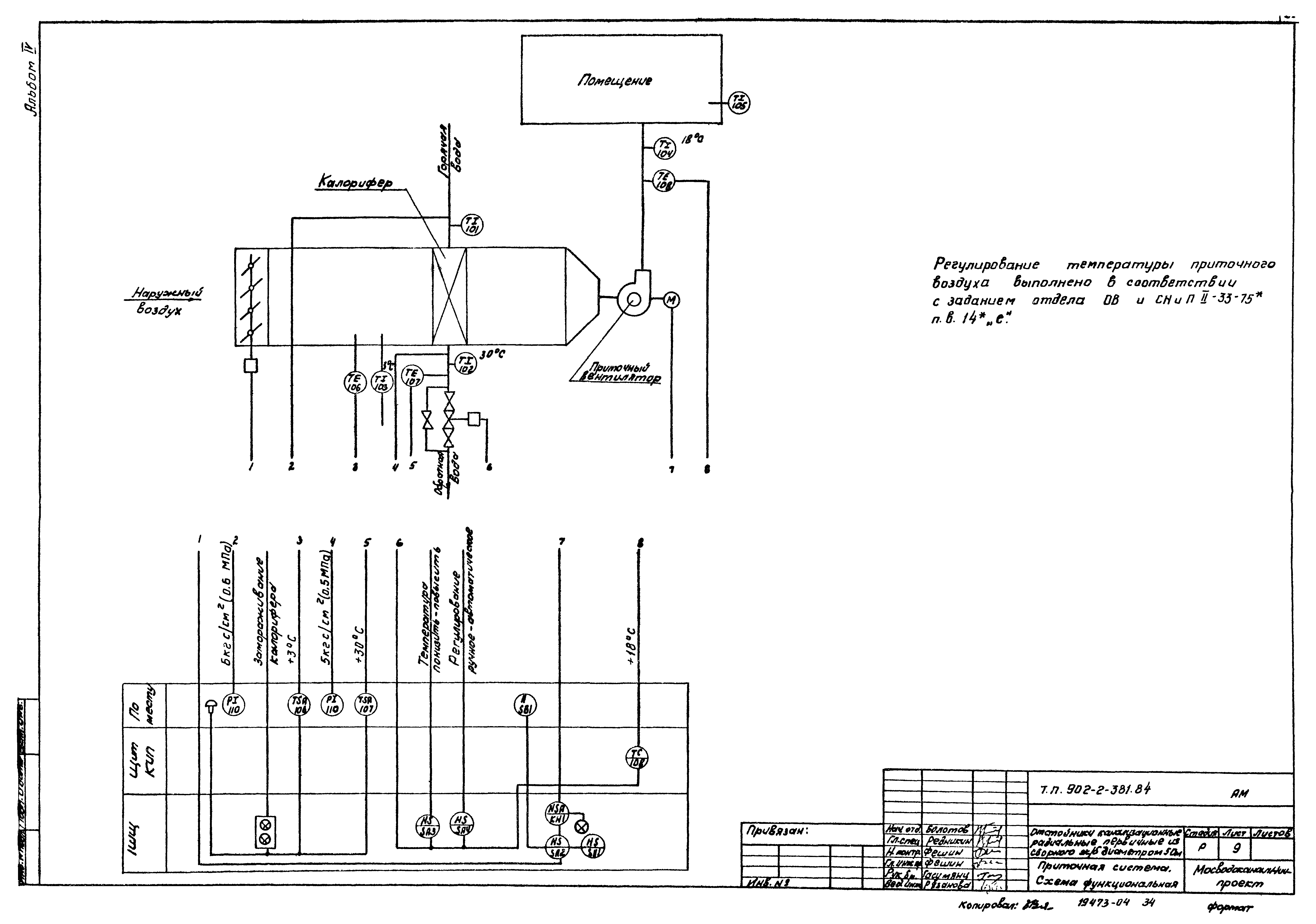
| Оглавление: | ТП 902-2-381.84 ЭМ-1 Общие данные (начало) ТП 902-2-381.84 ЭМ-2 Общие данные (окончание) ТП 902-2-381.84 ЭМ-3 Ведомость эл/обор. каб. изделий и материалов. Ведомость объемов эл/монт. работ (начало) ТП 902-2-381.84 ЭМ-4 Ведомость эл/обор. каб. изделий и материалов. Ведомость объемов эл/монт. работ (окончание) ТП 902-2-381.84 ЭМ-5 Схема электрическая принципиальная распределительной сети 380/220В (начало) ТП 902-2-381.84 ЭМ-6 Схема электрическая принципиальная распределительной сети 380/220В (окончание) ТП 902-2-381.84 ЭМ-7 Схема электрическая принципиальная АВР ТП 902-2-381.84 ЭМ-8 Схема электрическая принципиальная управления илоскребами ТП 902-2-381.84 ЭМ-9 Схема электрическая принципиальная управления насосами перекачки осадка ТП 902-2-381.84 ЭМ-10 Схема электрическая принципиальная управления насосами перекачки жира ТП 902-2-381.84 ЭМ-11 Схема электрическая принципиальная управления напорными задвижками насосов перекачки жира ТП 902-2-381.84 ЭМ-12 Схема электрическая принципиальная управления задвижками на трубопроводе выпуска жира из жиросборников ТП 902-2-381.84 ЭМ-13 Схема электрическая принципиальная управления дренажным насосом, насосом опорожнения и вытяжными вентиляторами ТП 902-2-381.84 ЭМ-14 1ШЩ. Схема подключения внешних проводок (начало) ТП 902-2-381.84 ЭМ-15 1ШЩ. Схема подключения внешних проводок (продолжение) ТП 902-2-381.84 ЭМ-16 1ШЩ. Схема подключения внешних проводок (окончание) ТП 902-2-381.84 ЭМ-17 Схема электрических подключений аппаратуры, расположенной у электроприводов (начало) ТП 902-2-381.84 ЭМ-18 Схема электрических подключений аппаратуры, расположенной у электроприводов (окончание) ТП 902-2-381.84 ЭМ-19 Кабельный журнал (начало) ТП 902-2-381.84 ЭМ-20 Кабельный журнал (окончание) ТП 902-2-381.84 ЭМ-21 План расположения оборудования и электрических проводок (начало) ТП 902-2-381.84 ЭМ-22 План расположения оборудования и электрических проводок (окончание) ТП 902-2-381.84 ЭМ-23 План насосной с нанесением сети освещения ТП 902-2-381.84 АМ-1 Общие данные (начало) ТП 902-2-381.84 АМ-2 Общие данные (окончание) ТП 902-2-381.84 АМ-3 Ведомость оборудования и материалов ТП 902-2-381.84 АМ-4 Схема функциональная ТП 902-2-381.84 АМ-5 Схема электрическая принципиальная откачки осадка из отстойников (начало) ТП 902-2-381.84 АМ-6 Схема электрическая принципиальная откачки осадка из отстойников (окончание) ТП 902-2-381.84 АМ-7 Схема электрическая принципиальная перекачки жира из жиросборников ТП 902-2-381.84 АМ-8 Схема питания. Схема электрическая принципиальная измерения расходов и уровней ТП 902-2-381.84 АМ-9 Приточная система. Схема функциональная ТП 902-2-381.84 АМ-10 Приточная система. Схема электрическая принципиальная управления и регулирования (начало) ТП 902-2-381.84 АМ-11 Приточная система. Схема электрическая принципиальная управления и регулирования (окончание) ТП 902-2-381.84 АМ-12 Схема электрическая принципиальная аварийной сигнализации (начало) ТП 902-2-381.84 АМ-13 Схема электрическая принципиальная аварийной сигнализации (окончание) ТП 902-2-381.84 АМ-14 Схема соединений внешних проводок (начало) ТП 902-2-381.84 АМ-15 Схема соединений внешних проводок (окончание) ТП 902-2-381.84 АМ-16 2ШЩ. Схема подключения внешних проводов ТП 902-2-381.84 АМ-17 План расположения оборудования и электрических проводок (начало) ТП 902-2-381.84 АМ-18 План расположения оборудования и электрических проводок (окончание) |
| Разработан: | МосводоканалНИИпроект |
| Утверждён: | 20.12.1983 МосводоканалНИИпроект (312) |











































