Скачать Типовой проект 503-4-17 Альбом I. Для грузовых автомобилей. Пояснительная записка. Чертежи технологические, архитектурно-строительные и электротехническиеДата актуализации: 01.01.2021
|
| Обозначение: | Типовой проект 503-4-17 |
| Обозначение англ: | 503-4-17 |
| Статус: | не действует |
| Название рус.: | Альбом I. Для грузовых автомобилей. Пояснительная записка. Чертежи технологические, архитектурно-строительные и электротехнические |
| Дата добавления в базу: | 01.09.2013 |
| Дата актуализации: | 01.01.2021 |
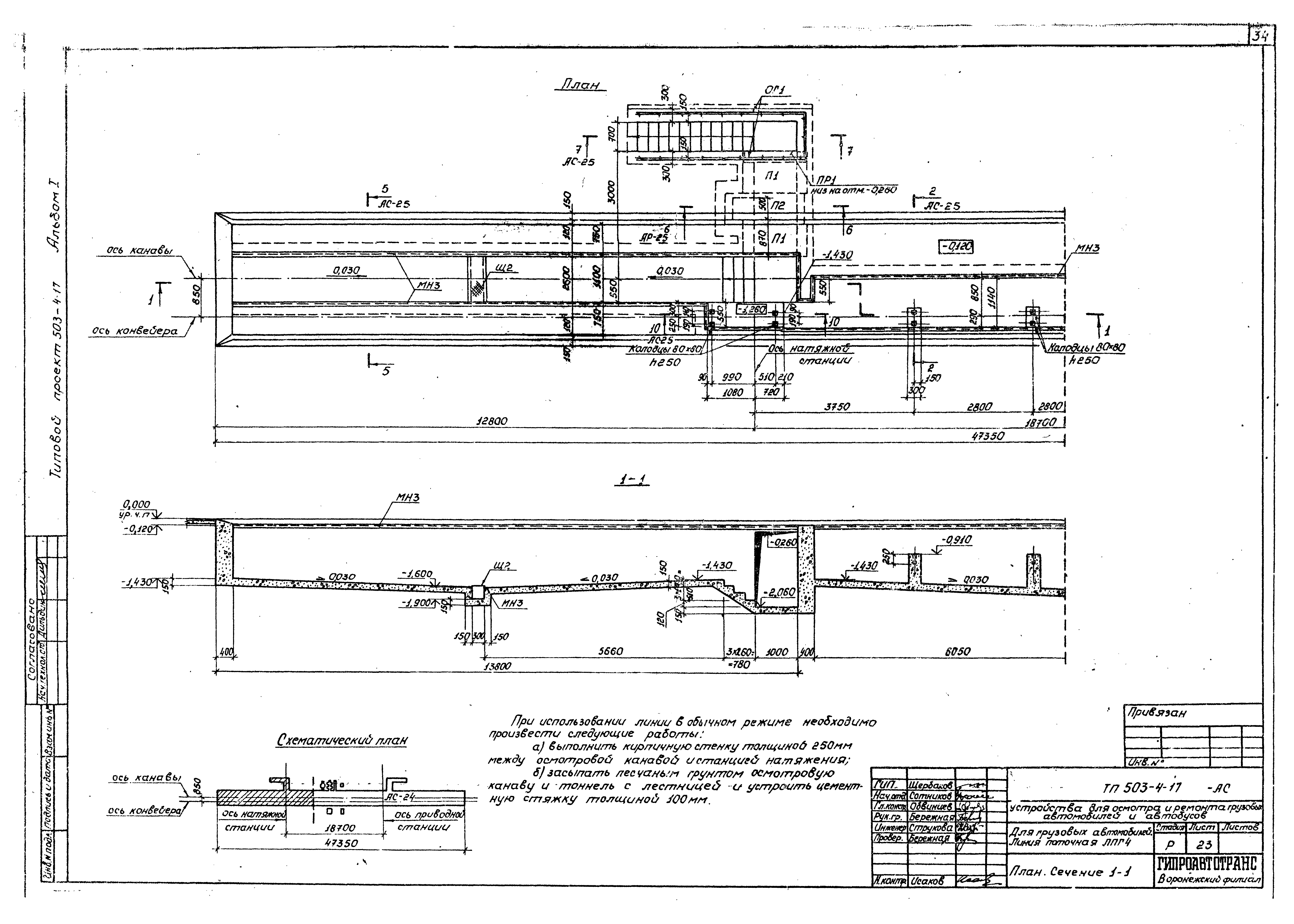
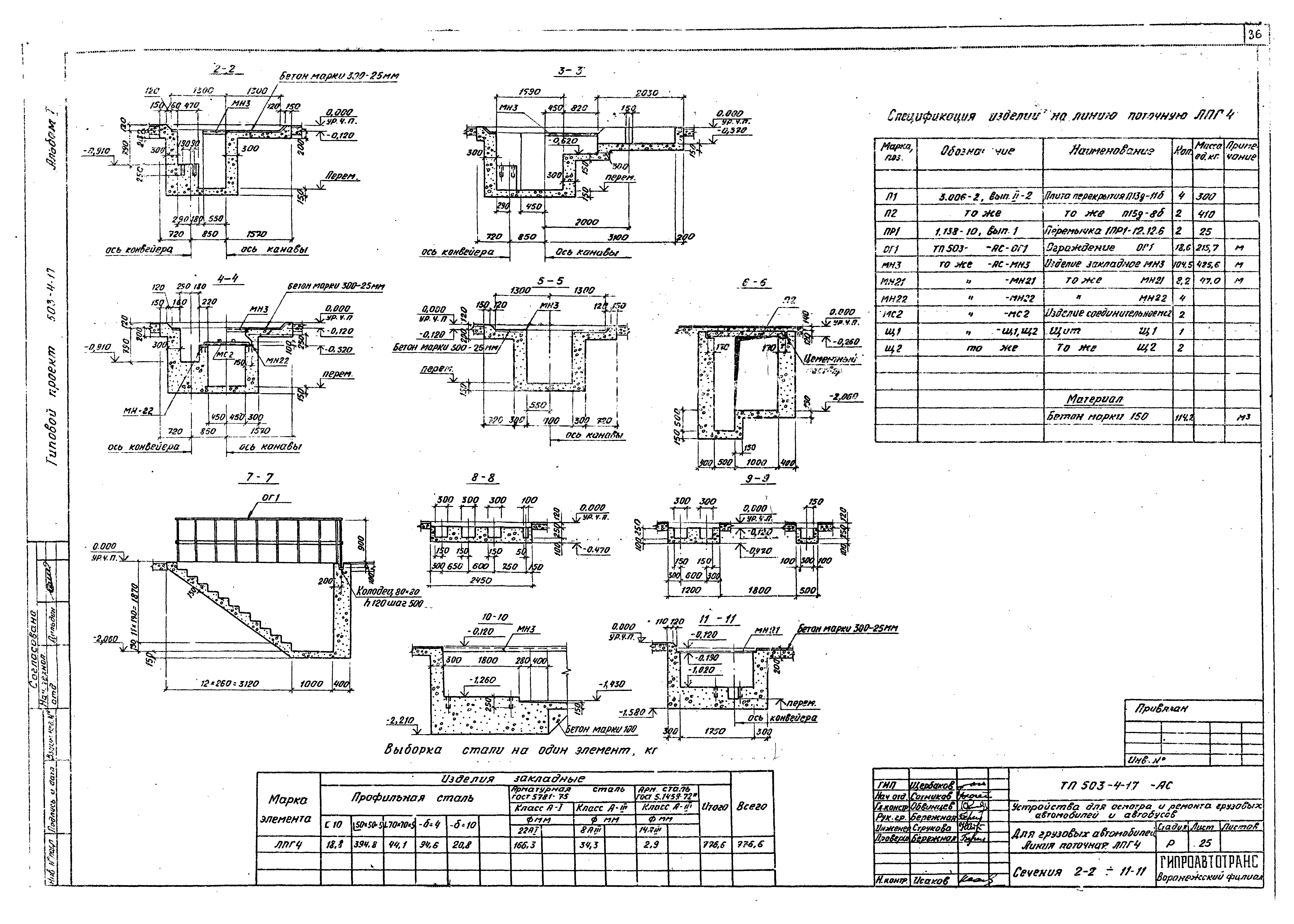
| Оглавление: | Содержание Общие данные Чертежи основного комплекта марки ТХ Общие данные. Спецификация Линии поточные ЛПГ1 - ЛПГ4, посты тупиковые ПТГ1 - ПТГ2. Технологические схемы Посты тупиковые ПТГ3 и ПТГ4, посты проездные ППГ1. Технологические схемы Посты тупиковые ПТГ5, посты проездные ППГ2. Технологические схемы Посты проездные ППГ3, эстакады ЭТГ1, ЭТГ4, ЭПГ1 и ЭПГ2. Технологические схемы Варианты компоновок постов Чертежи основного комплекта марки АС Общие данные Линия поточная ЛПГ1. План на отм. 0.000. Сечения 1-1, 2-2 Линия поточная ЛПГ1. План на отм. 0.000. Сечения 3-3 - 5-5 Линия поточная ЛПГ1. План на отм. - 0.400. Сечения 9-9 Линия поточная ЛПГ1. План на отм. - 0.400. Сечения 6-6 - 9-9 Линии поточные ЛПГ1 - ЛПГ3. Фрагмент плана 1. Сечения 10-10 - 14-14 Линии поточные ЛПГ1 - ЛПГ3. Сечения 15-15 - 20-20 Линии поточные ЛПГ1 - ЛПГ3. Узлы 1 - 5 Линия поточная ЛПГ1. Спецификация изделий и выборка стали на ЛПГ1 Линия поточная ЛПГ2. План на отм. 0.000. Сечения 1-1, 2-2 Линия поточная ЛПГ2. План на отм. 0.000. Сечения 3-3 - 5-5 Линия поточная ЛПГ2. План на отм. 0.000. Сечения 6-6 - 8-8 Линия поточная ЛПГ2. План на отм. - 0.400. Сечение 9-9 Линия поточная ЛПГ2. Спецификация изделий и выборка стали на ЛПГ2 Линия поточная ЛПГ3. План на отм. 0.000. Сечения 1-1, 2-2 Линия поточная ЛПГ3. План на отм. 0.000. Сечения 3-3 - 5-5 Линия поточная ЛПГ3. План на отм. 0.000. Сечения 6-6 - 8-8 Линия поточная ЛПГ3. План на отм. - 0.400. Сечение 9-9 Линия поточная ЛПГ3. Спецификация изделий и выборка стали на ЛПГ3 Линия поточная ЛПГ4. План. Сечение 1-1 Линия поточная ЛПГ4. Сечения 2-2 - 11-11 Пост тупиковый ПТГ1, ПТГ3. Канава К1. План на отм. 0.000 и - 0.400. Сечения 1-1, 2-2 Пост тупиковый ПТГ2, ПТГ4. Канава К2. План на отм. 0.000 и - 0.400. Сечение 1-1 Пост тупиковый ПТГ5. Канава К3. План на отм. 0.000 и - 0.400. Сечение 1-1, 3-3 Посты проездные ППГ1 - ППГ3. Канава К4. План на отм. 0.000 и - 0.400. Сечение 1-1 Посты тупиковые ПТГ1 - ПТГ4. Посты проездные ППГ1 - ППГ4. Канавы К1 - К4. Сечения 2-2, 4-4 - 7-7. Узлы 6 - 8 Посты тупиковые ПТГ1 - ПТГ4. Лестница Л1. Траншеи ТР1 - ТР4. План на отм. 0.000 и - 0.150. Сечения 1-1, 2-2 Посты тупиковые ПТГ3 - ПТГ4. Траншея ТР5, ТР6. План на отм. 0.000 и - 0.150 Пост тупиковый ПТГ5. Траншеи ТР7 - ТР10. План на отм. 0.000 и - 0.150 Пост тупиковый ПТГ5. Траншея ТР11, ТР12. План на отм. 0.000 и - 0.150 Пост проездной ППГ1. Тоннели Т1, Т2. План на отм. 0.000 и - 0.400. Сечения 1-1 - 5-5 Пост проездной ППГ2. Тоннели Т3 - Т5. План на отм. 0.000 и - 0.400 Пост проездной ППГ2. Тоннель Т6, Т7. План на отм. 0.000 и - 0.400 Пост проездной ППГ2. Тоннель Т3. План на отм. 0.000 и - 0.400 Пост проездной ППГ3. Тоннели Т9 - Т11. План на отм. 0.000 и - 0.400 Пост проездной ППГ3. Тоннель Т12, Т13. План на отм. 0.000 и - 0.400 Пост проездной ППГ3. Тоннель Т14. План на отм. 0.000 и - 0.400 Пост проездной ППГ2. Тоннели Т1 - Т14. Сечения 1-1 - 4-4. Ум1, Ум2. Узел 9, 10 Эстакада тупиковая ЭТГ1. План. Сечение 1-1 Эстакада тупиковая ЭТГ2. План. Сечение 1-1 Эстакада тупиковая ЭТГ3. План. Сечение 1-1 Эстакада тупиковая ЭТГ4. План. Сечение 1-1 Эстакада тупиковая ЭПГ1. План. Сечение 1-1 Эстакада тупиковая ЭПГ2. План. Сечение 1-1 Эстакады. Сечения 2-2 - 5-5 Изделия Чертежи основного комплекта марки ЭЛ Общие данные Силовое электрооборудование. План-схема Электроосвещение. План-схема канав Электроосвещение. План-схема тоннелей Электроосвещение. Ведомость электрооборудования кабельных изделий и материалов, поставляемых заказчиком Электроосвещение. Уточненная ведомость изделий и материалов, поставляемых электромонтажной организацией |
| Разработан: | Воронежский филиал Гипроавтотранс |
| Утверждён: | 16.03.1981 Минавтотранс РСФСР (Russian Federation Minavtotrans 19) |














































































