Скачать Типовой проект 902-2-373.83 Альбом II. Технологическая, строительная и электротехническая частиДата актуализации: 01.01.2021
|
| Обозначение: | Типовой проект 902-2-373.83 |
| Обозначение англ: | 902-2-373.83 |
| Статус: | не определен законодательством |
| Название рус.: | Альбом II. Технологическая, строительная и электротехническая части |
| Дата добавления в базу: | 01.09.2013 |
| Дата актуализации: | 01.01.2021 |
| Дата введения: | 17.05.1992 |
| Дата окончания срока действия: | 30.06.2003 |
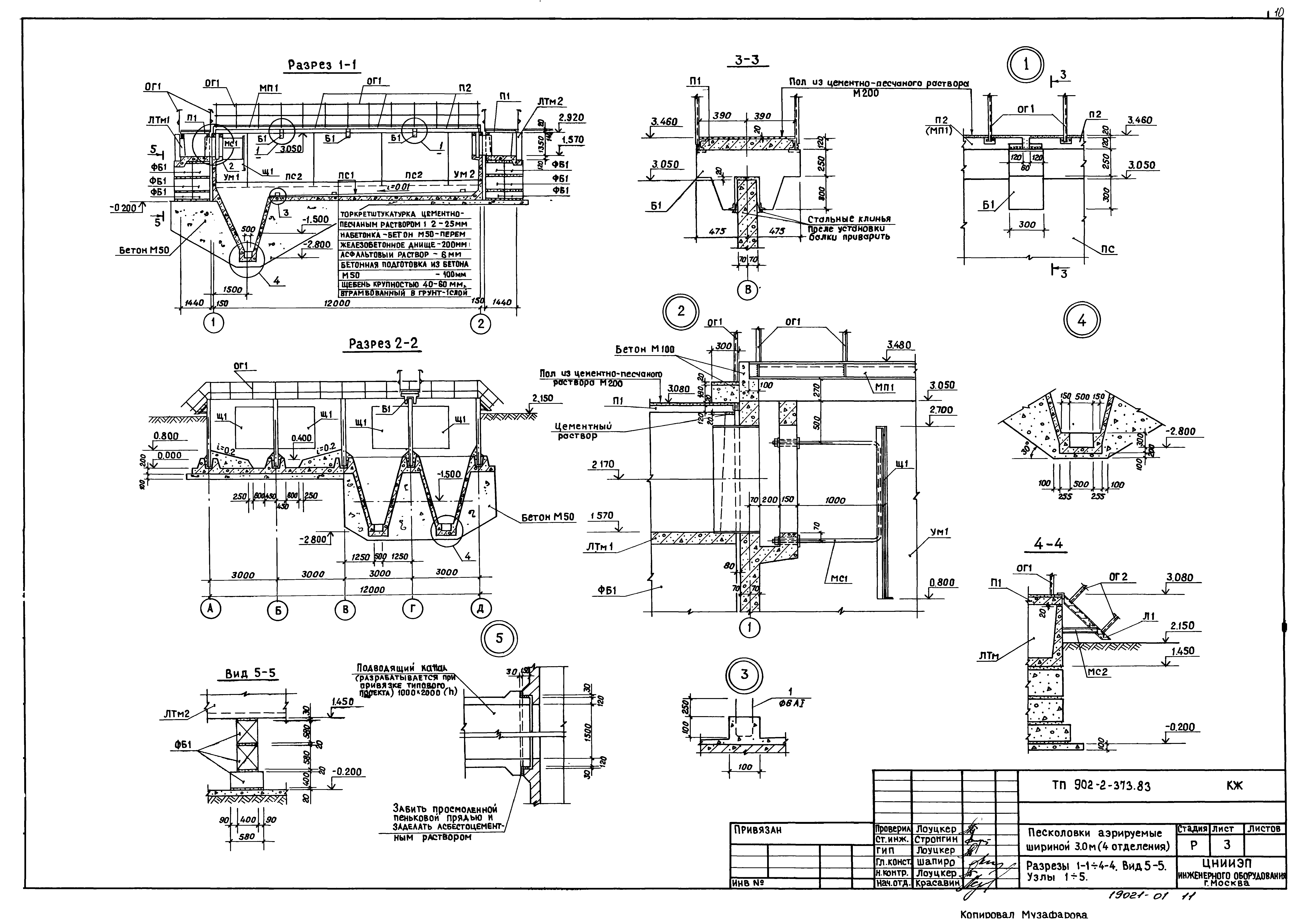
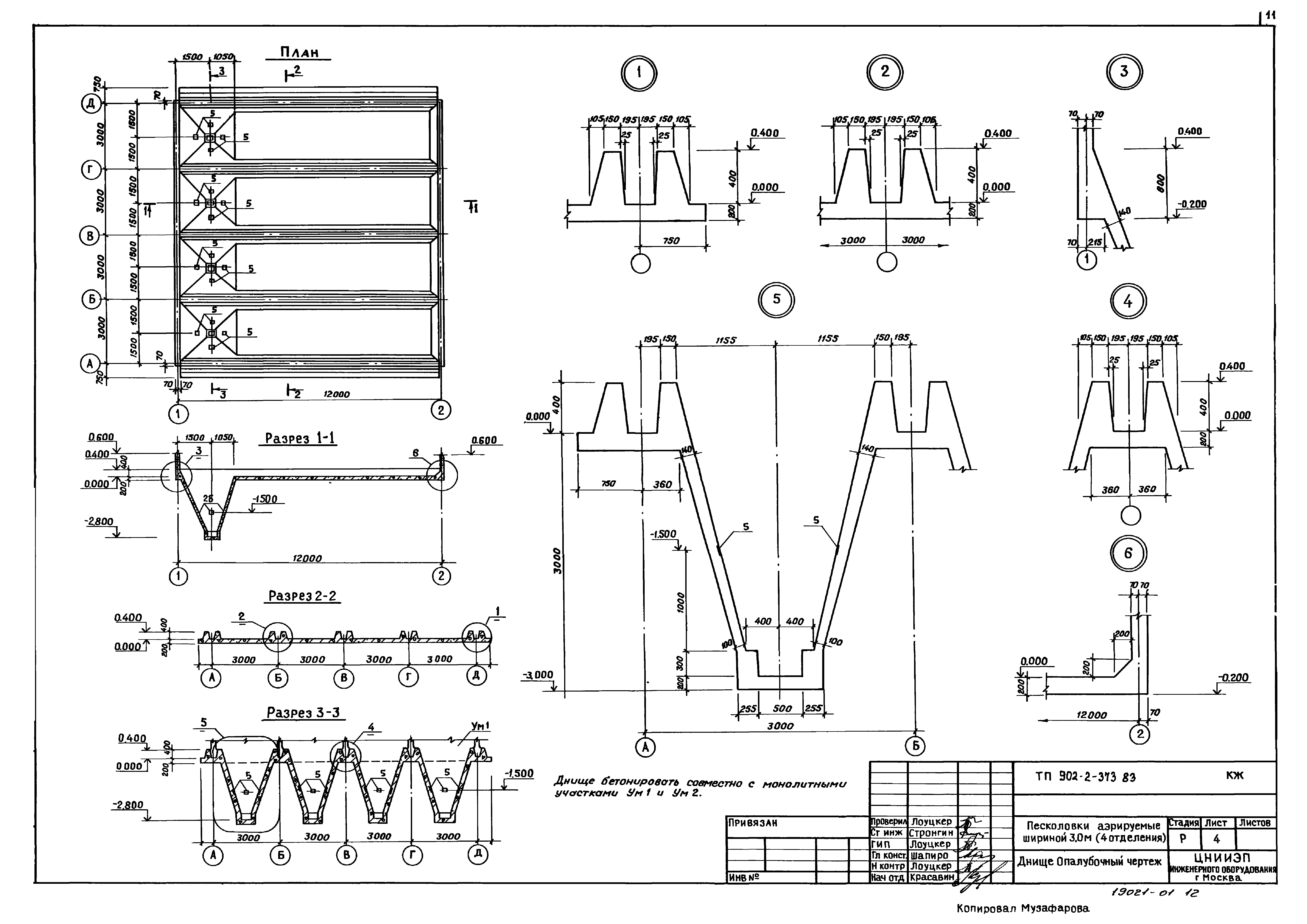
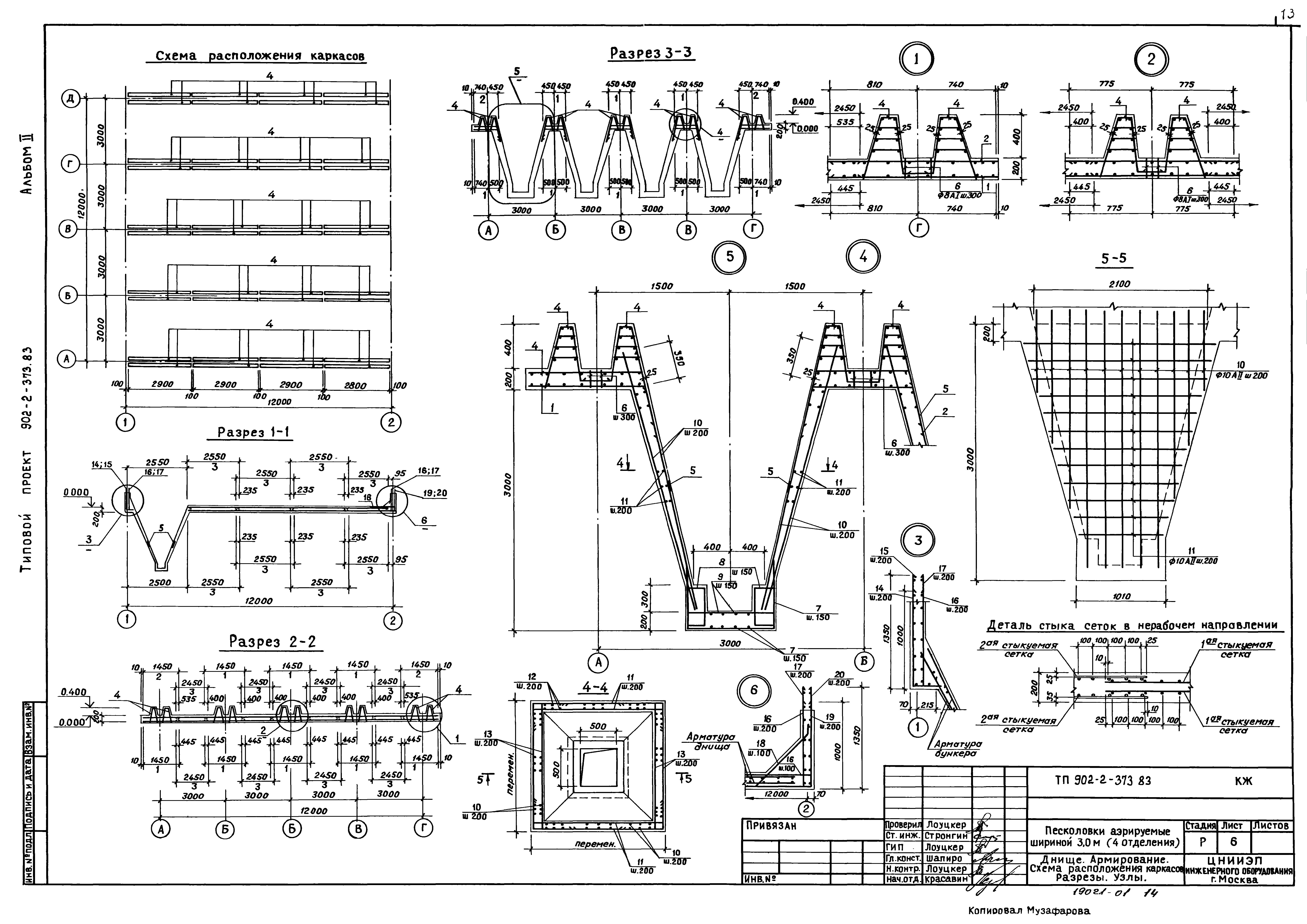
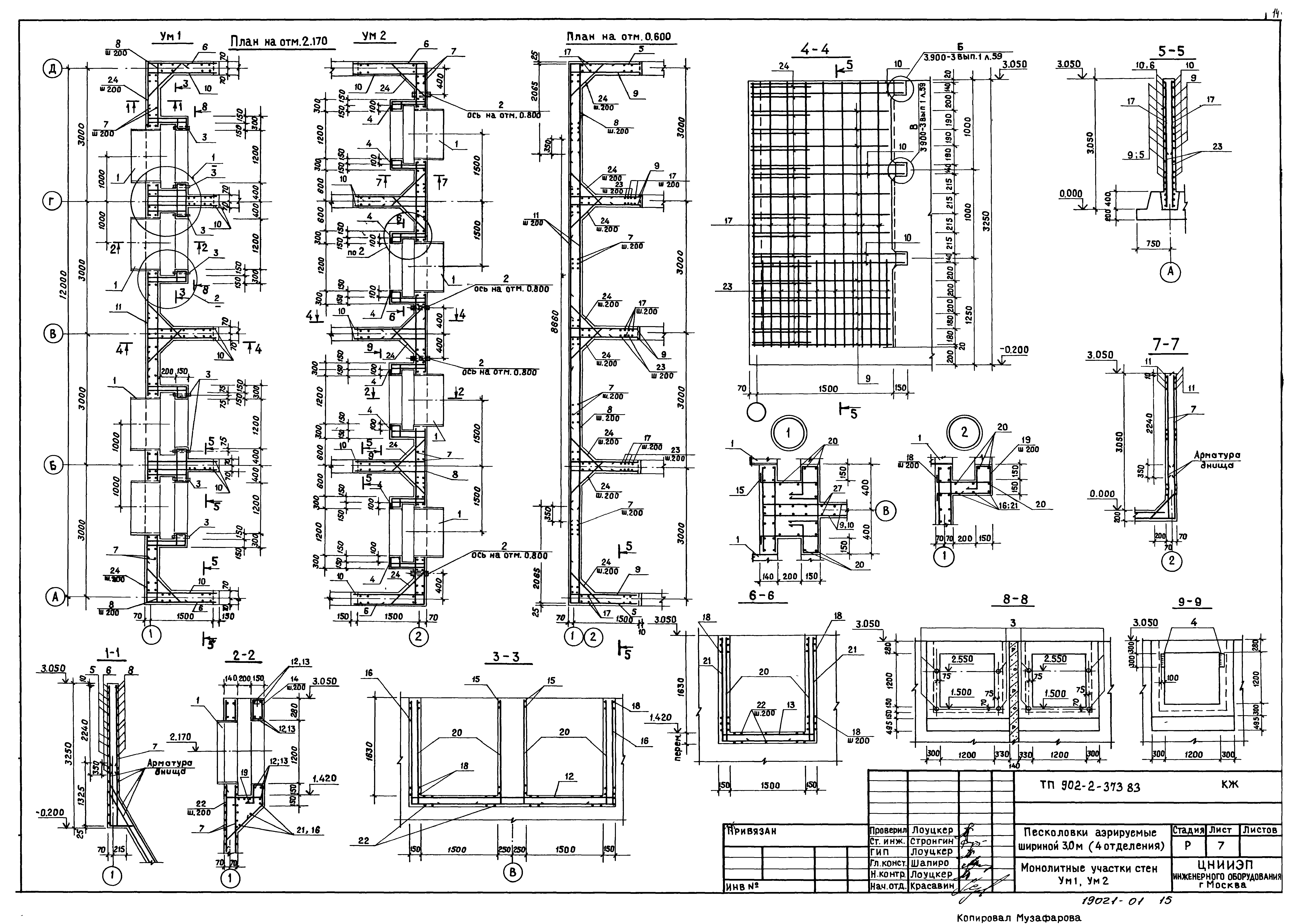
| Оглавление: | ТП 902-2-373.83 Содержание альбома ТП 902-2-373.83 ТХ Технологическая часть ТП 902-2-373.83 ТХ-1 Общие данные ТП 902-2-373.83 ТХ-2 План. Разрезы 1-1,2-2. Детали ТП 902-2-373.83 ТХ-3 Схемы систем: 1В9:И1;2В9;АО:И2 ТП 902-2-373.83 ТХ-4 Спецификация систем: 1В9:И1;2В9;АО:И2 ТП 902-2-373.83 ТХ-5 Спецификация систем: 1В9:И1;2В9;АО:И2 (продолжение) ТП 902-2-373.83 КЖ Строительная часть. Конструкции железобетонные ТП 902-2-373.83 КЖ-1 Общие данные ТП 902-2-373.83 КЖ-2 Схема расположения стеновых панелей, лотков и ходовых мостиков ТП 902-2-373.83 КЖ-3 Разрезы 1-1÷4-4. Вид 5-5. Узлы 1-5 ТП 902-2-373.83 КЖ-4 Днище. Опалубочный чертеж ТП 902-2-373.83 КЖ-5 Днище. Армирование. Схемы расположения нижних и верхних сеток ТП 902-2-373.83 КЖ-6 Днище. Армирование. Схемы расположения каркасов. Разрезы. Узлы ТП 902-2-373.83 КЖ-7 Монолитные участки стен Ум1;Ум2 ТП 902-2-373.83 КЖ-8 Монолитные участки стен Ум1;Ум2. Спецификации ТП 902-2-373.83 КЖ-9 Лотки монолитные ЛТМ1;ЛТМ2 ТП 902-2-373.83 КЖ-10 Вставка длиной 3 м ТП 902-2-373.83 ЭМ Электротехническая часть ТП 902-2-373.83 ЭМ-1 Общие данные. Схема электрическая принципиальная питания электрооборудования ТП 902-2-373.83 ЭМ-2 Схемы электрические принципиальные управления задвижками и насосами. Лист 1 ТП 902-2-373.83 ЭМ-3 Схемы электрические принципиальные управления задвижками и насосами. Лист 2 ТП 902-2-373.83 ЭМ-4 Схема подключения электрооборудования ТП 902-2-373.83 ЭМ-5 Кабельный журнал ТП 902-2-373.83 ЭМ-6 Расположение электрооборудования и прокладка кабеля |
| Разработан: | ЦНИИЭП |
| Утверждён: | 22.07.1974 Госгражданстрой (Gosgrazhdanstroy 184) |
























