Скачать Типовые проектные решения 902-03-31м.83 Альбом II. ЧертежиДата актуализации: 01.01.2021
|
| Обозначение: | Типовые проектные решения 902-03-31м.83 |
| Обозначение англ: | 902-03-31м.83 |
| Статус: | справочные материалы, мп, тпр |
| Название рус.: | Альбом II. Чертежи |
| Дата добавления в базу: | 01.09.2013 |
| Дата актуализации: | 01.01.2021 |
| Дата введения: | 14.02.1983 |
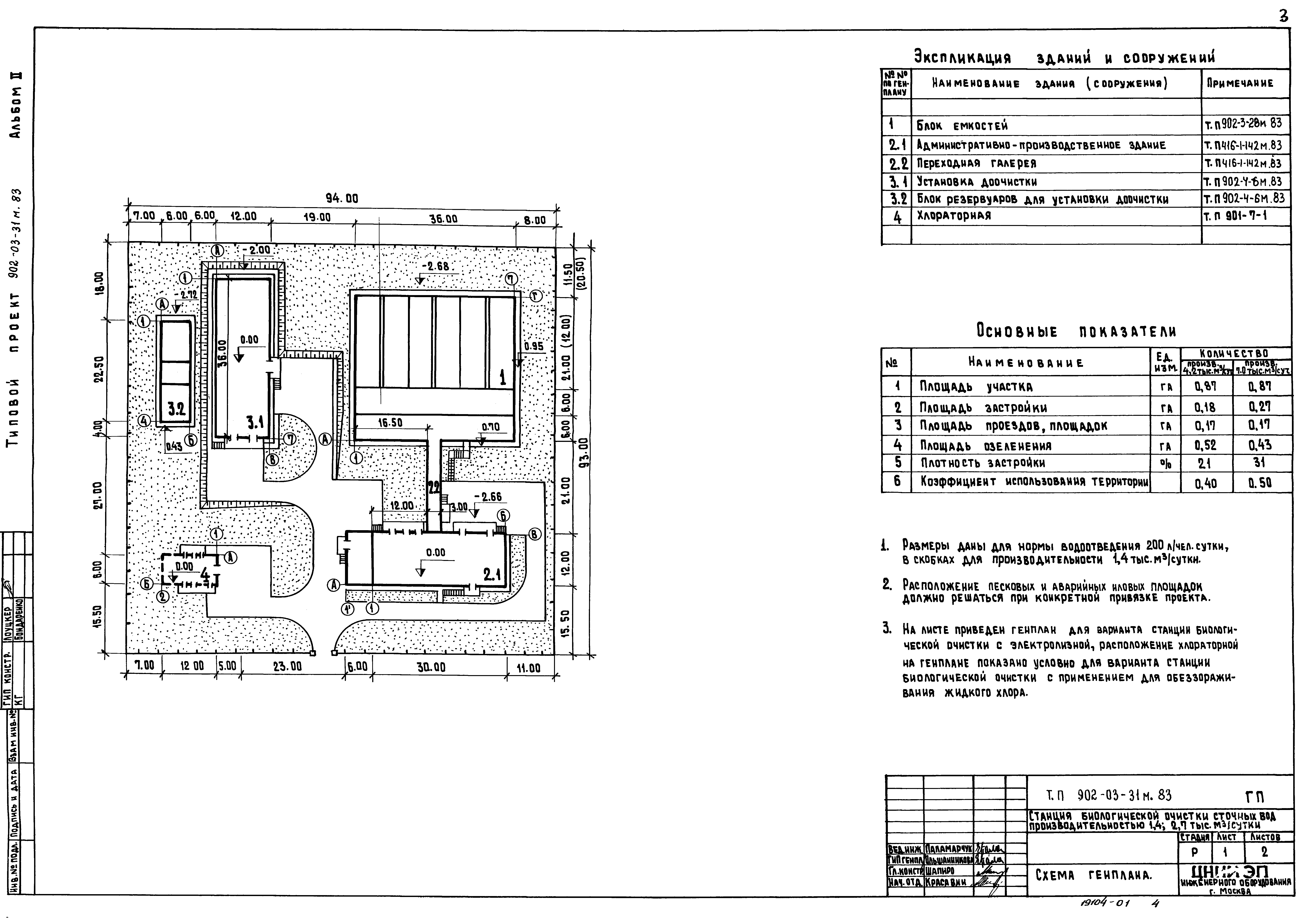
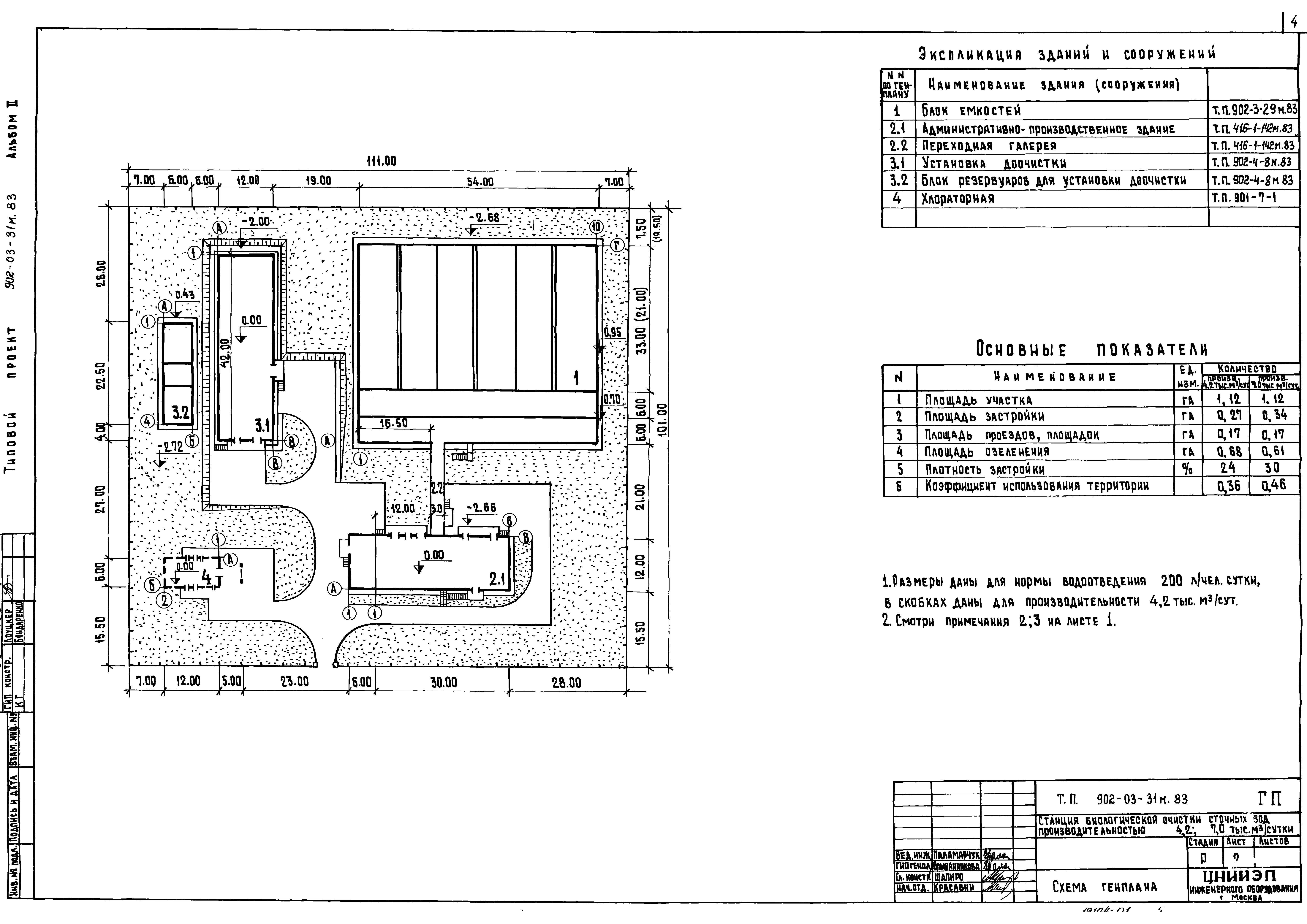
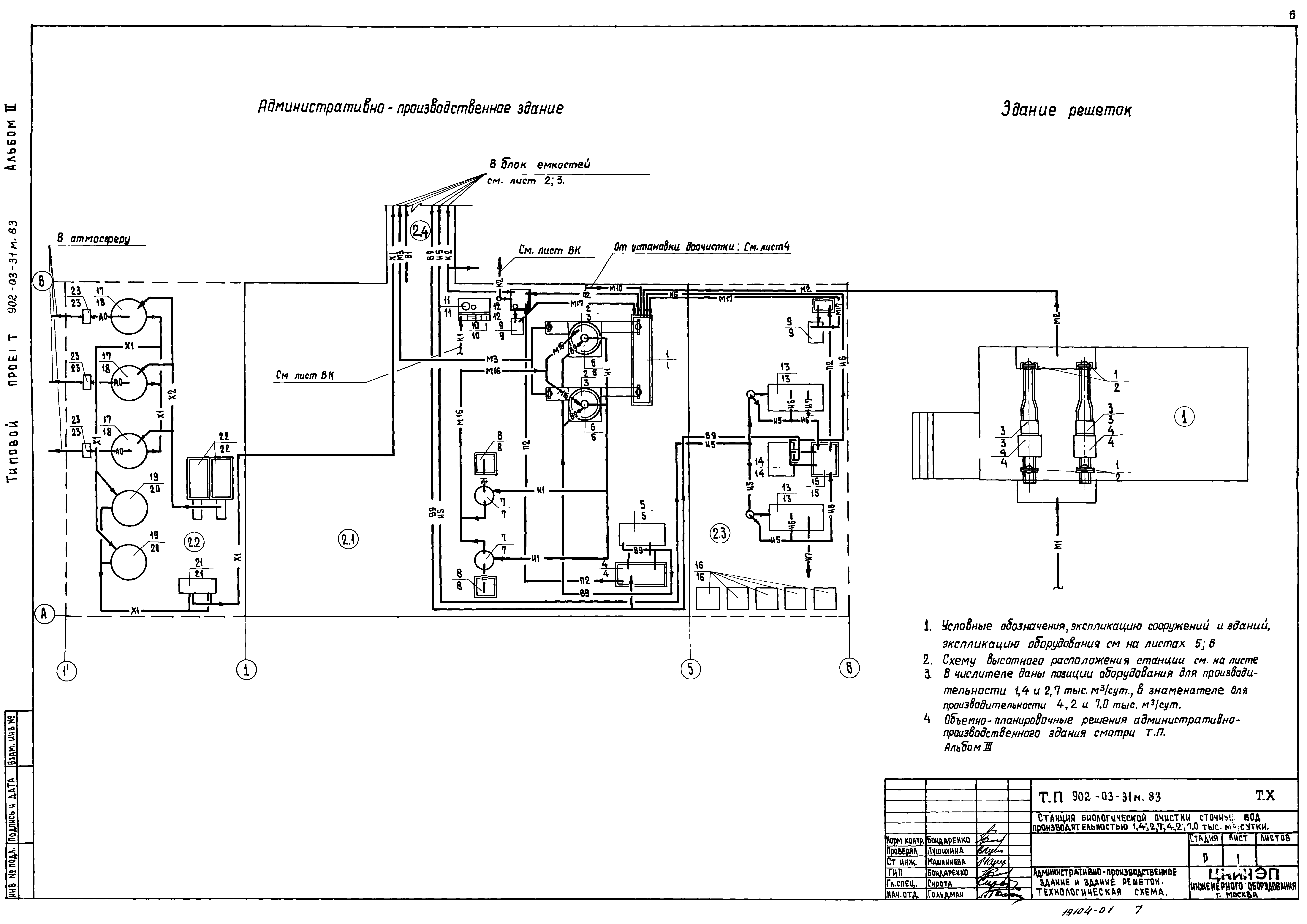
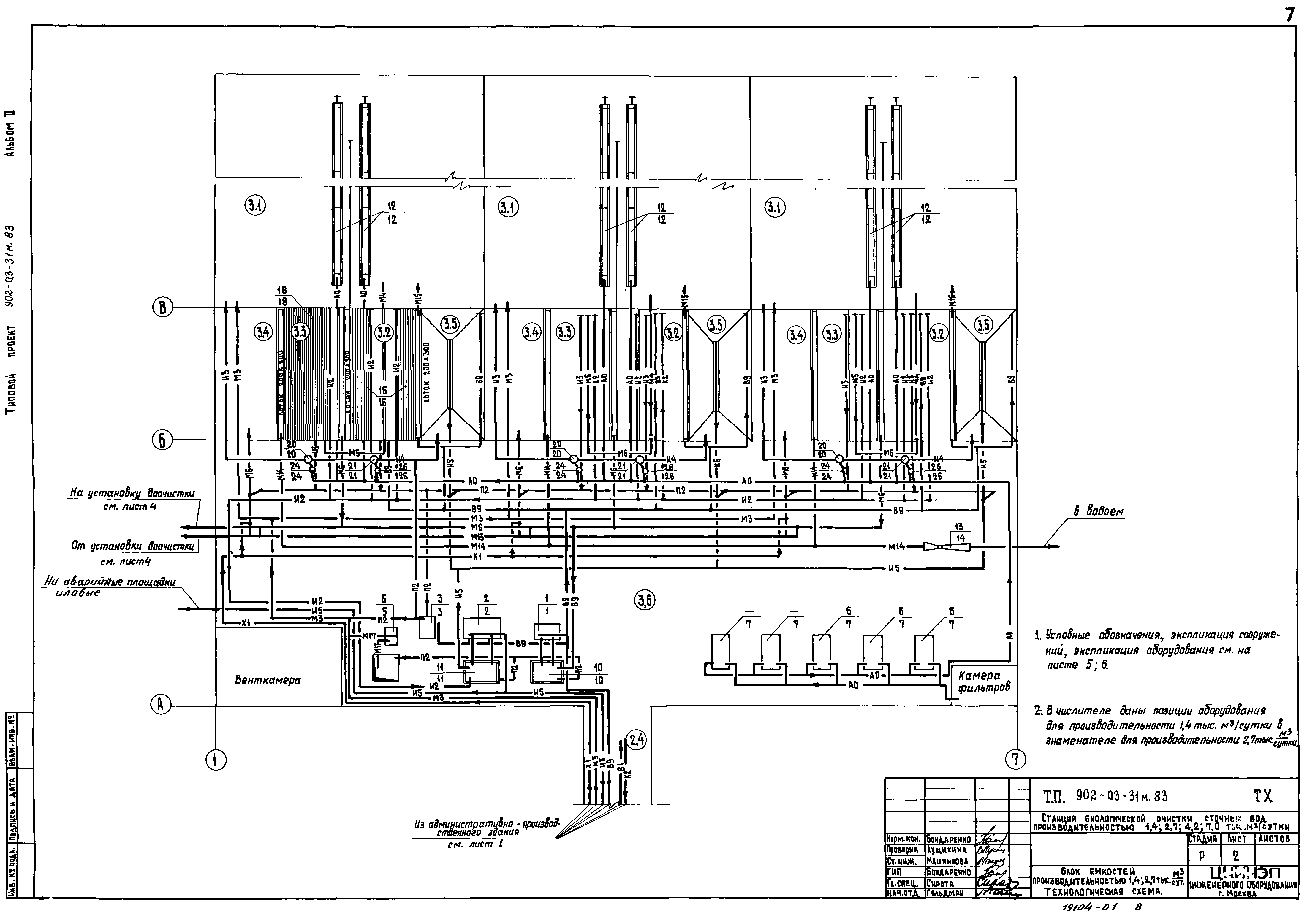
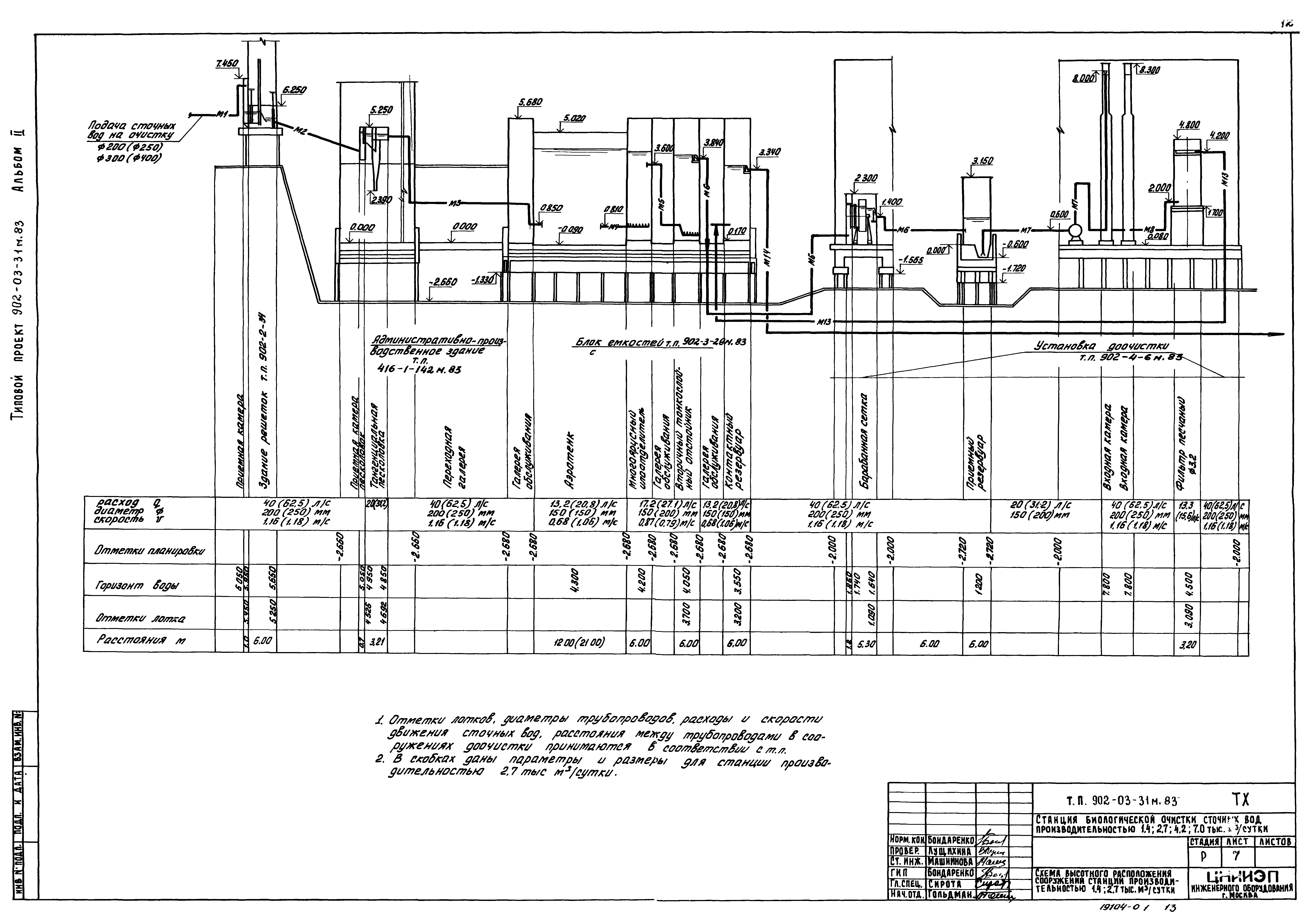
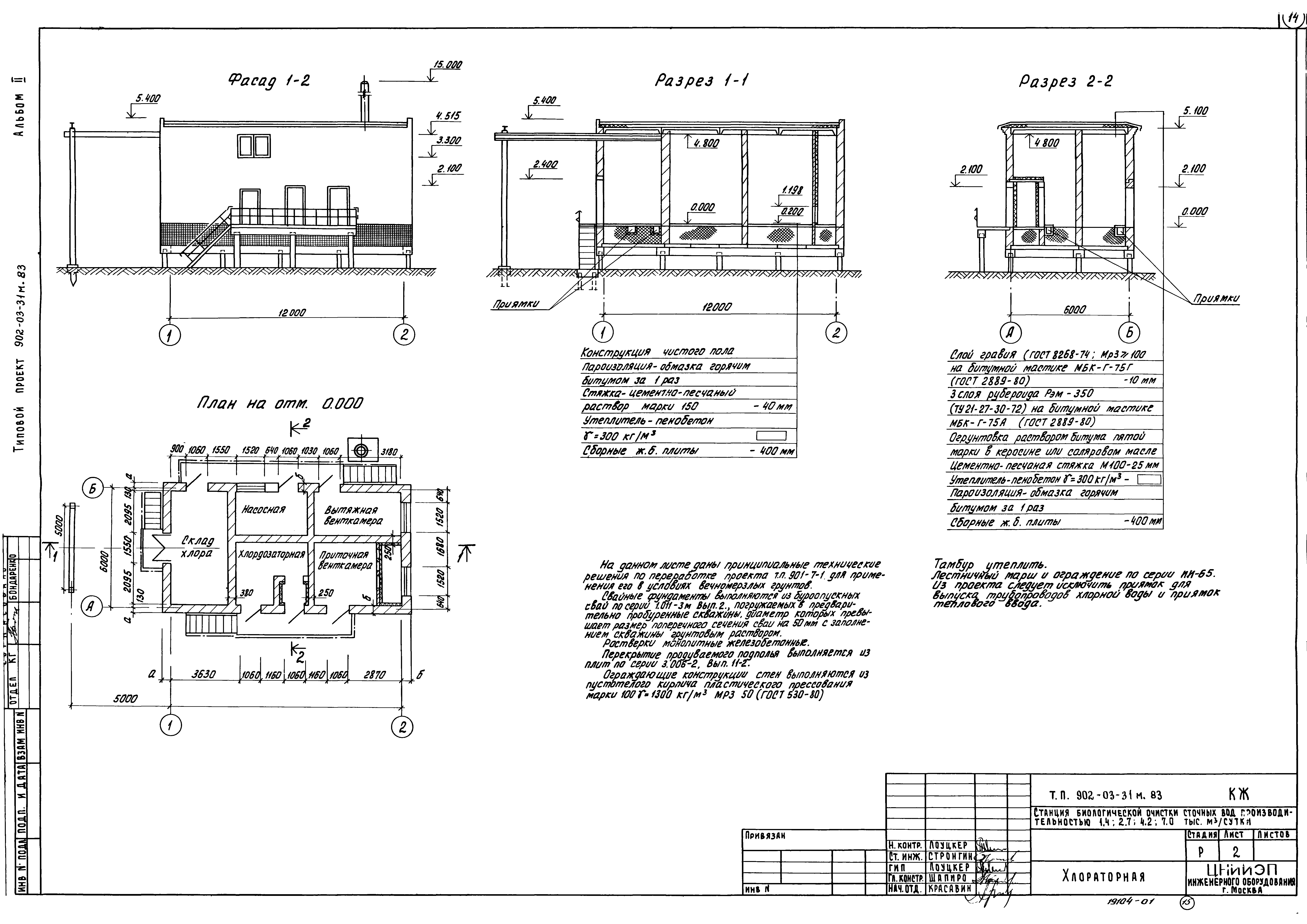
| Оглавление: | ТП 902-03-31м.83 Содержание альбома ТП 902-03-31м.83 ТП1 Станция производительностью 1.4;2.7 тыс. м³/сутки. Схема генплана ТП 902-03-31м.83 ТП2 Станция производительностью 4.2;7.0 тыс. м³/сутки. Схема генплана ТП 902-03-31м.83 ТП3 Аварийные иловые площадки ТП 902-03-31м.83 ТХ1 Административно-производственное здание и здание решеток. Технологическая схема ТП 902-03-31м.83 ТХ2 Блок емкостей производительностью 1.4;2.7 тыс. м³/сутки. Технологическая схема ТП 902-03-31м.83 ТХ3 Блок емкостей производительностью 4.2;7.0 тыс. м³/сутки. Технологическая схема ТП 902-03-31м.83 ТХ4 Установка водоочистки производительностью 4.2;7.0 тыс. м³/сутки. Блок резервуаров установки доочистки. Технологическая схема ТП 902-03-31м.83 ТХ5 Условные обозначения. Экспликация зданий и сооружений ТП 902-03-31м.83 ТХ6 Экспликация основного оборудования ТП 902-03-31м.83 ТХ7 Схема высотного расположения станции производительностью 1.4;2.87 тыс. м³/сутки ТП 902-03-31м.83 КЖ1 Здание решеток ТП 902-03-31м.83 КЖ2 Хлораторная |
| Разработан: | ЦНИИЭП |
| Утверждён: | 14.02.1983 Госгражданстрой (Gosgrazhdanstroy 49) |















