Скачать Типовой проект 902-4-8м.83 Альбом II. Технологическая часть, санитарно-техническая часть. Нестандартизированное оборудование (из ТП 902-4-7.83)Дата актуализации: 01.01.2021
|
| Обозначение: | Типовой проект 902-4-8м.83 |
| Обозначение англ: | 902-4-8м.83 |
| Статус: | не определен законодательством |
| Название рус.: | Альбом II. Технологическая часть, санитарно-техническая часть. Нестандартизированное оборудование (из ТП 902-4-7.83) |
| Дата добавления в базу: | 01.09.2013 |
| Дата актуализации: | 01.01.2021 |
| Дата введения: | 27.06.1983 |
| Дата окончания срока действия: | 30.06.2003 |
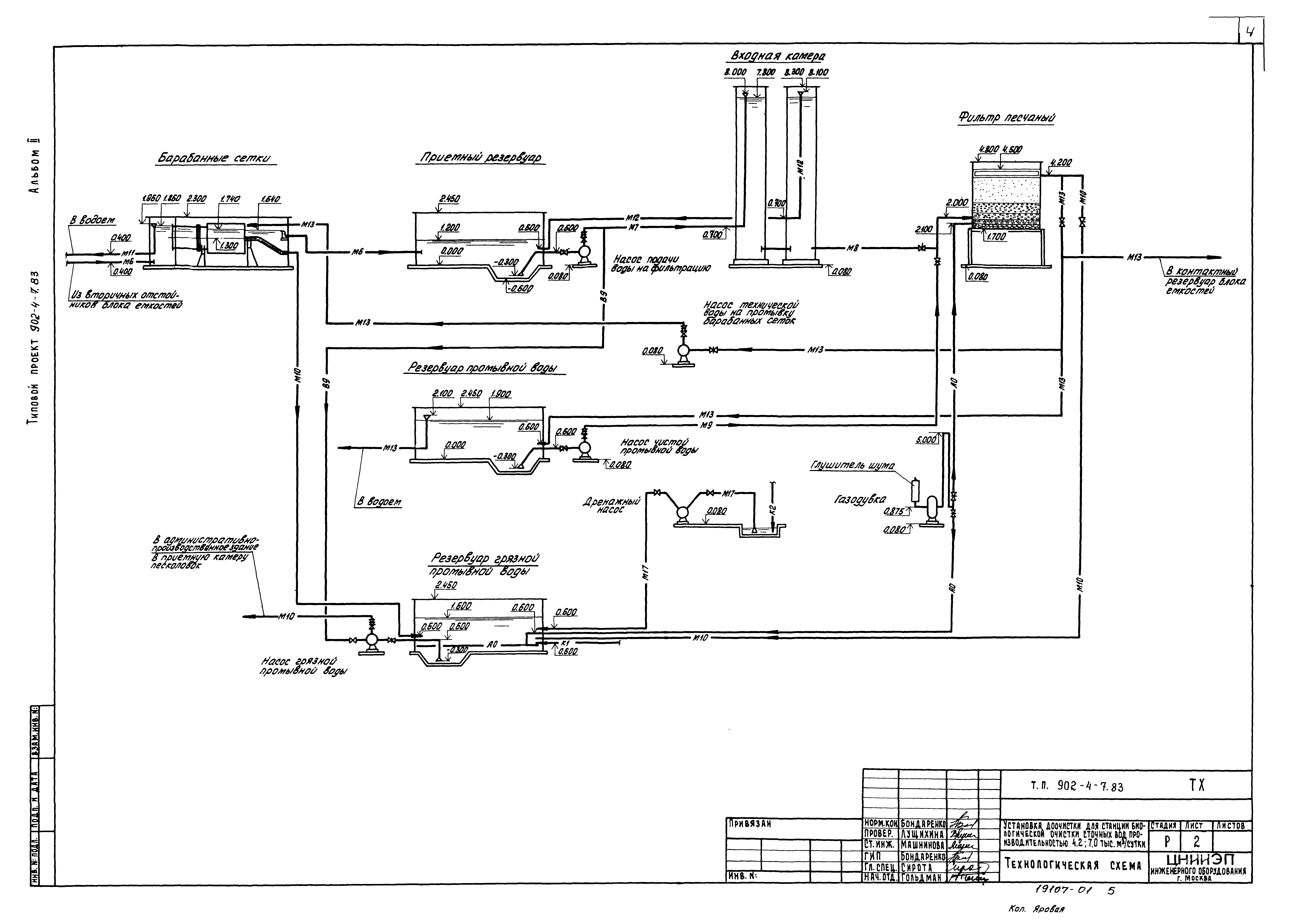
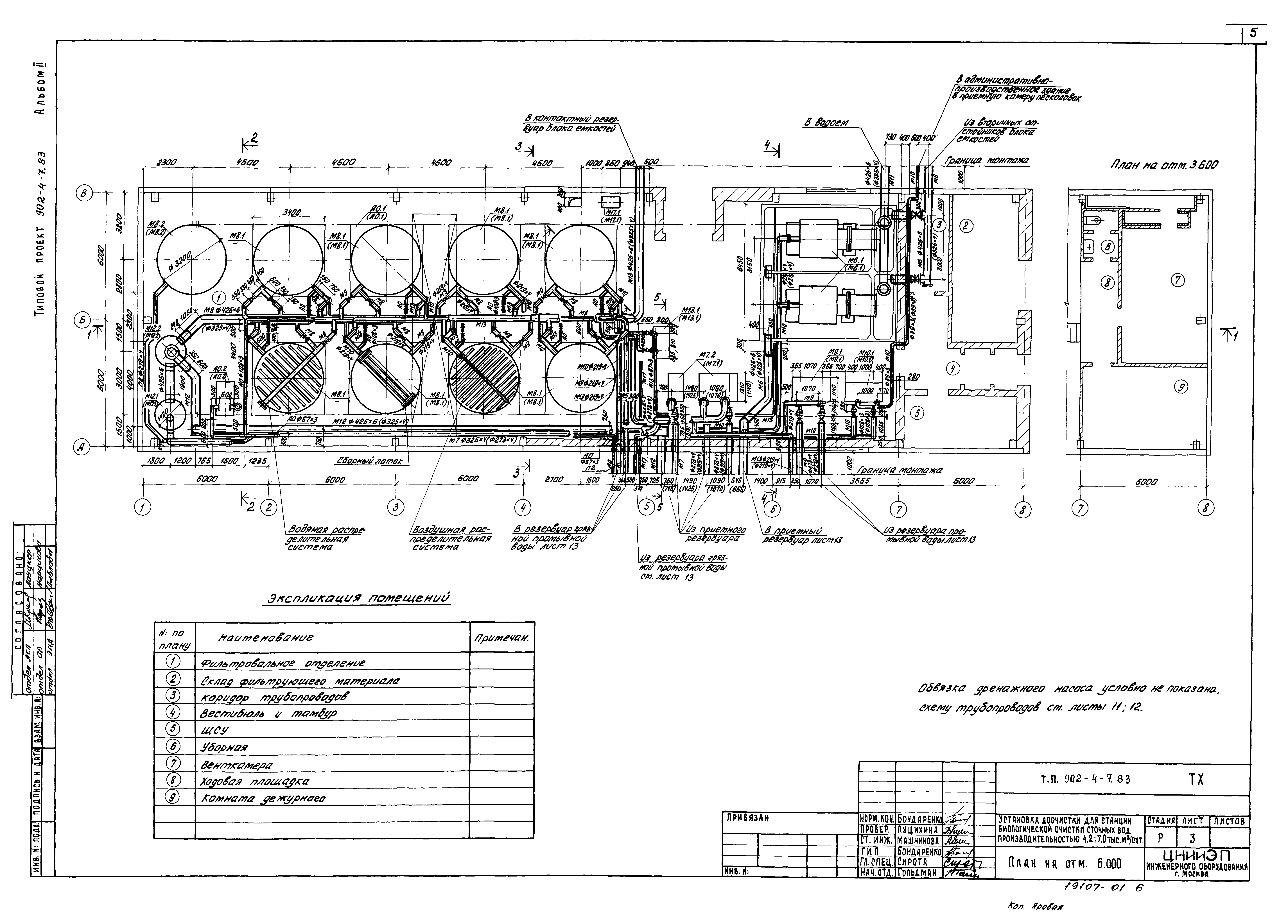
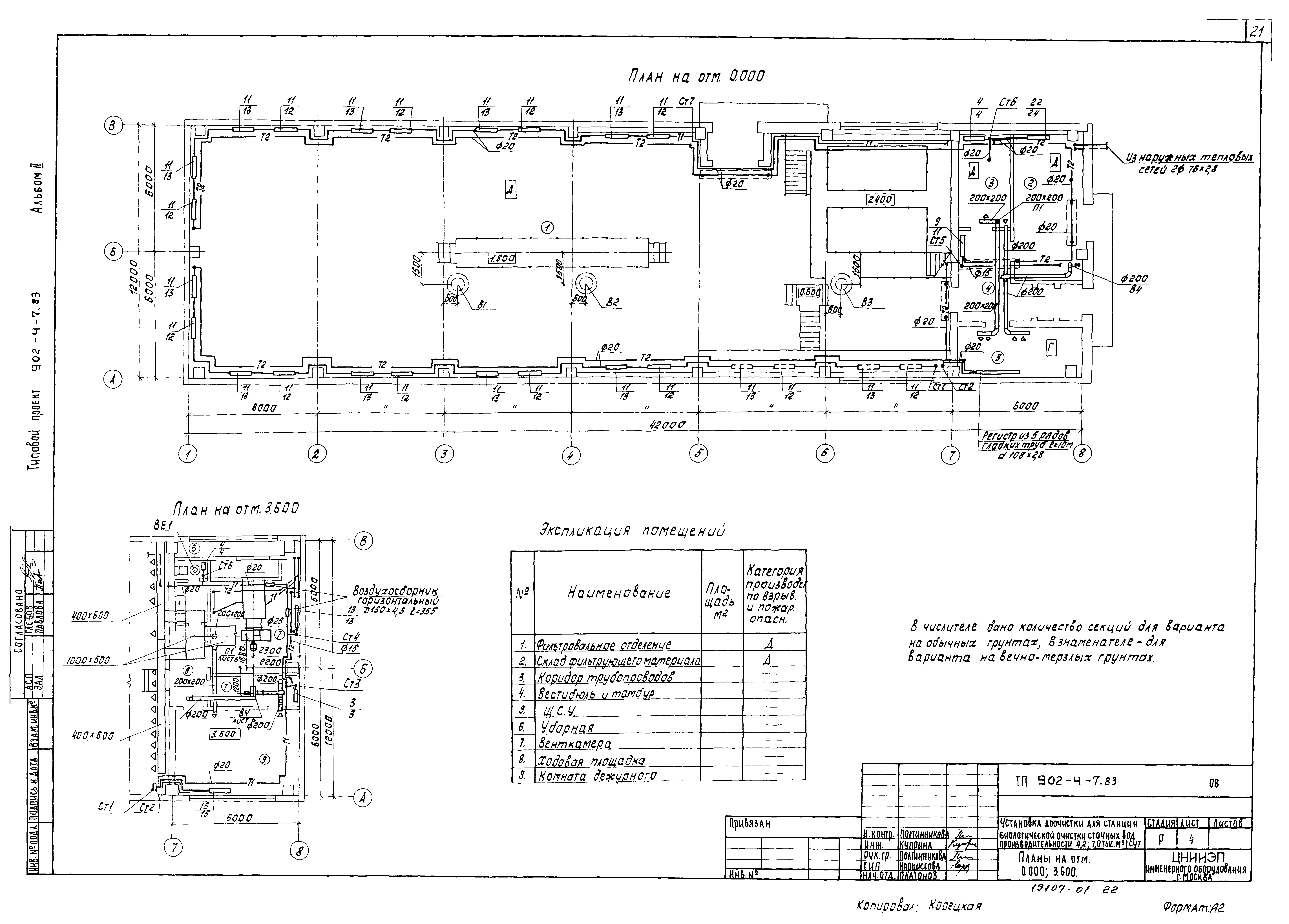
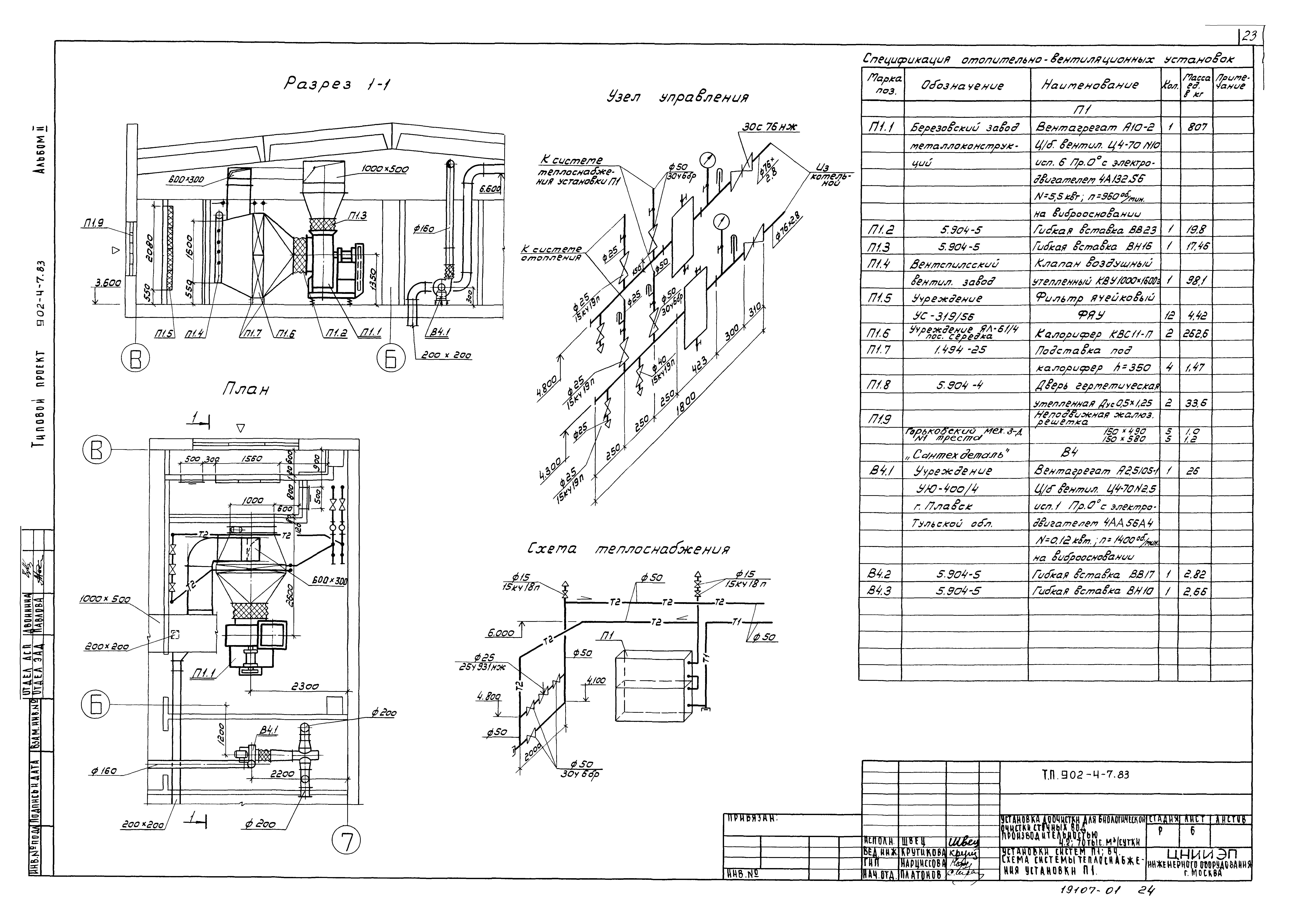
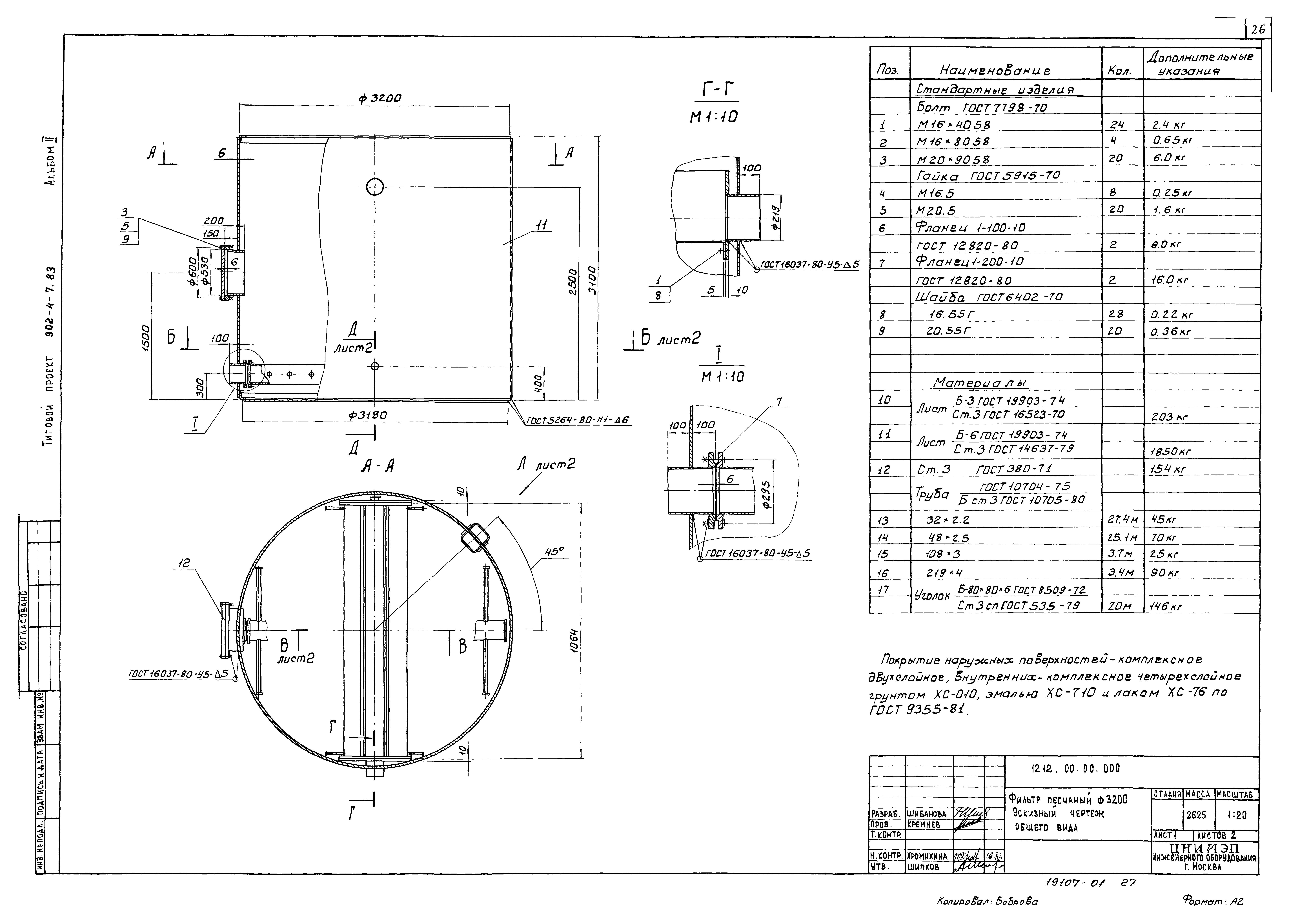
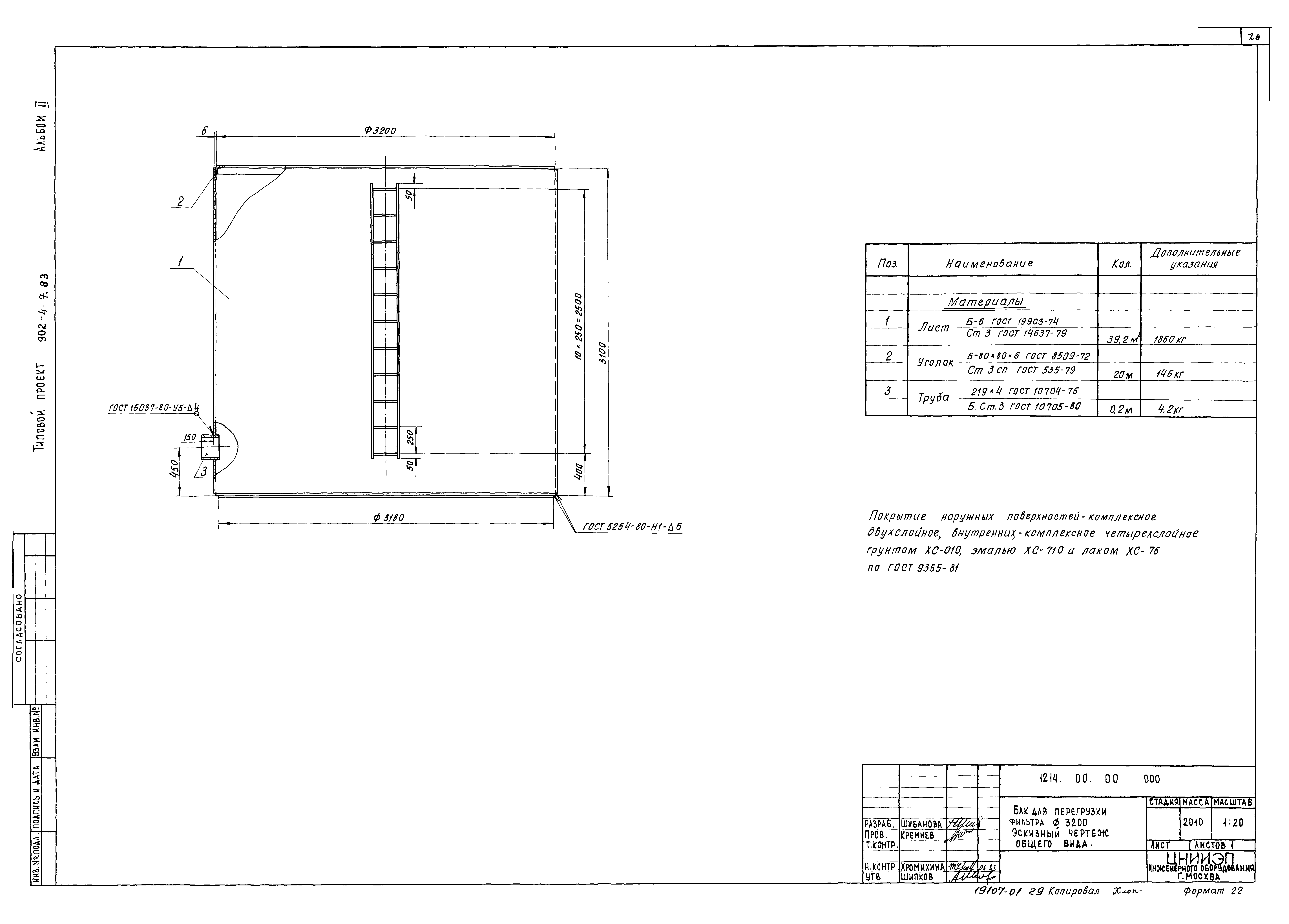
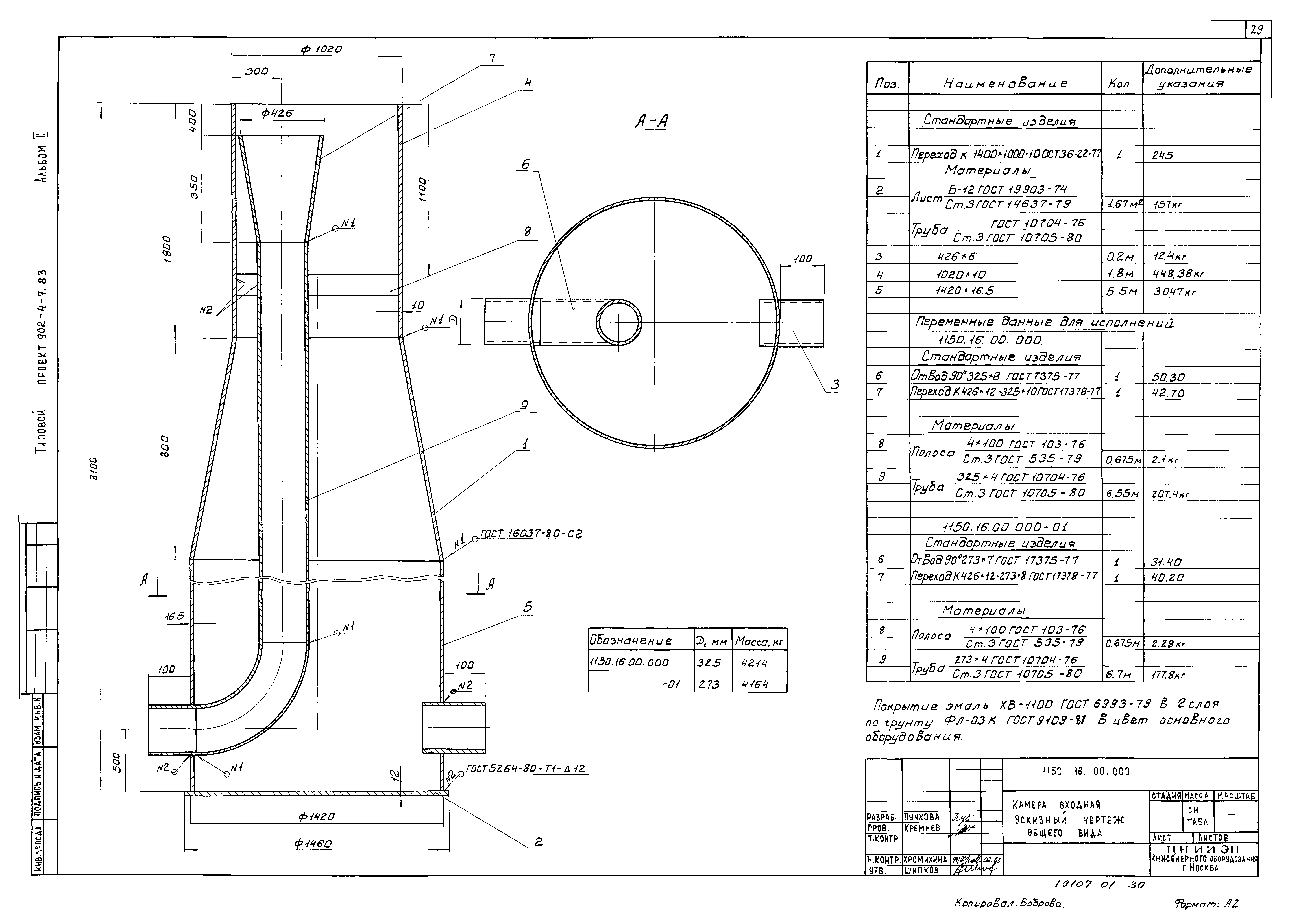
| Оглавление: | ТП 902-4-7.83 Содержание альбома ТП 902-4-7.83 ТХ Технологическая часть ТП 902-4-7.83 ТХ.1 Общие данные ТП 902-4-7.83 ТХ.2 Технологическая схема ТП 902-4-7.83 ТХ.3 План на отм. 6000 ТП 902-4-7.83 ТХ.4 Разрезы 1-1;2-2;3-3;4-4 ТП 902-4-7.83 ТХ.5 Схемы трубопроводов М6;М7;М8;М11;М12 ТП 902-4-7.83 ТХ.6 Спецификация систем М6;М7 ТП 902-4-7.83 ТХ.7 Спецификация систем М8;М11;М12 ТП 902-4-7.83 ТХ.8 Схема трубопровода М13 ТП 902-4-7.83 ТХ.9 Схемы трубопроводов М9;В9;АО ТП 902-4-7.83 ТХ.10 Спецификации систем М9;В9;АО;П2 ТП 902-4-7.83 ТХ.11 Схемы трубопроводов М10;М17 ТП 902-4-7.83 ТХ.12 Спецификации систем М10;М17 ТП 902-4-7.83 ТХ.13 Фильтр. План. Разрезы 1-1;2-2. Глушитель шума ТП 902-4-7.83 ТХ.14 Блок резервуаров. План на отм. 0.000. Разрезы 1-1,2-2;3-3. Схемы трубопроводов ТП 902-4-7.83 ОВ Отопление и вентиляция ТП 902-4-7.83 ОВН Рама для крепления фильтра. Переходы ТП 902-4-7.83 ОВ.1 Общие данные (начало) ТП 902-4-7.83 ОВ.2 Общие данные (продолжение) ТП 902-4-7.83 ОВ.3 Общие данные (окончание) ТП 902-4-7.83 ОВ.4 Планы на отм. 0.000; 3.600 ТП 902-4-7.83 ОВ.5 Схема системы отопления. Схемы систем П1;В1;В2;В3;В4;ВЕ1 ТП 902-4-7.83 ОВ.6 Установка систем П1.В4. Схема системы теплоснабжения установки П1 ТП 902-4-7.83 ВК Внутренний водопровод и канализация ТП 902-4-7.83 ВК.1 Общие данные ТП 902-4-7.83 ВК.2 Схемы трубопроводов К1;К2;В1 Нестандартизированное оборудование 1212.00.00.000 Фильтр песчаный. Чертеж общего вида 1212.00.00.000ВО. Лист 1 1212.00.00.000 Фильтр песчаный. Чертеж общего вида 1212.00.00.000ВО. Лист 2 1214.00.00.000 Бак для перегрузки фильтра ø3200. Чертеж общего вида 1214.00.00000ВО 1150.16.00.000 Камера входная. Чертеж общего вида 1150.16.00.000ВО 1150.17.00.000 Камера входная. Чертеж общего вида 1150.17.00.000ВО |
| Разработан: | ЦНИИЭП |
| Утверждён: | 14.02.1983 Госгражданстрой (Gosgrazhdanstroy 49) |































