Скачать Типовой проект 902-4-8м.83 Альбом III. Архитектурно-строительные решенияДата актуализации: 01.01.2021
|
| Обозначение: | Типовой проект 902-4-8м.83 |
| Обозначение англ: | 902-4-8м.83 |
| Статус: | не определен законодательством |
| Название рус.: | Альбом III. Архитектурно-строительные решения |
| Дата добавления в базу: | 01.09.2013 |
| Дата актуализации: | 01.01.2021 |
| Дата введения: | 27.06.1983 |
| Дата окончания срока действия: | 30.06.2003 |
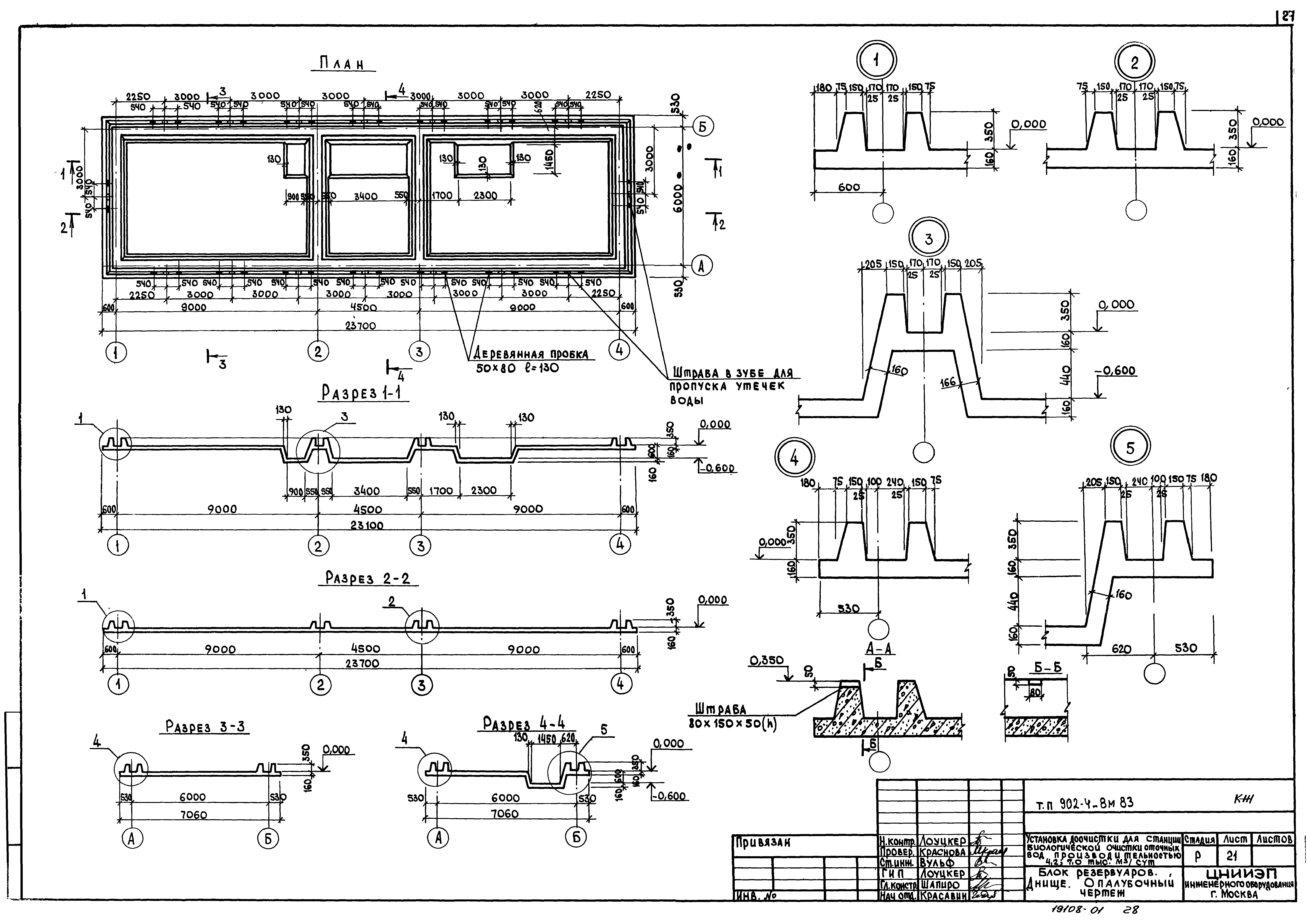
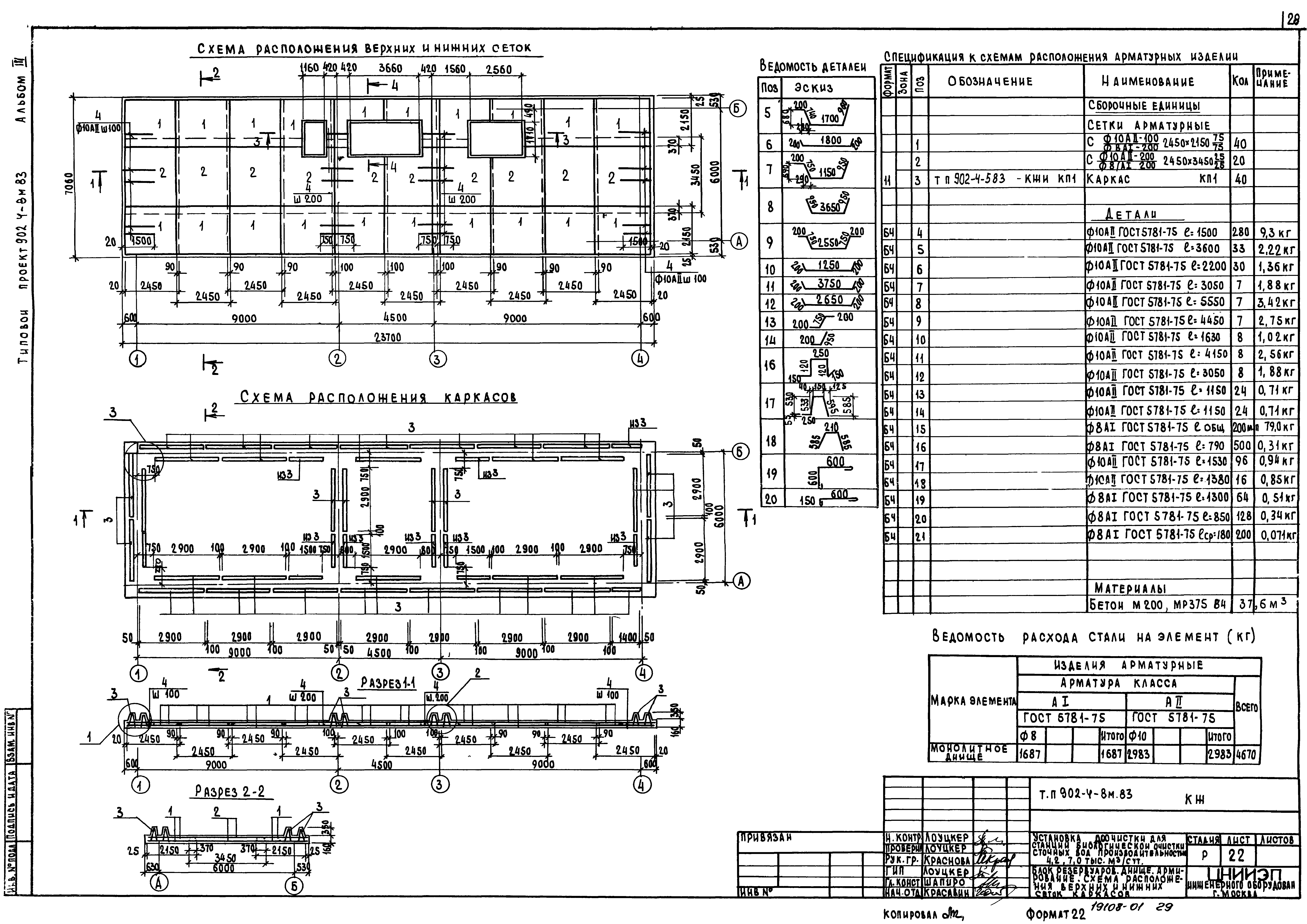
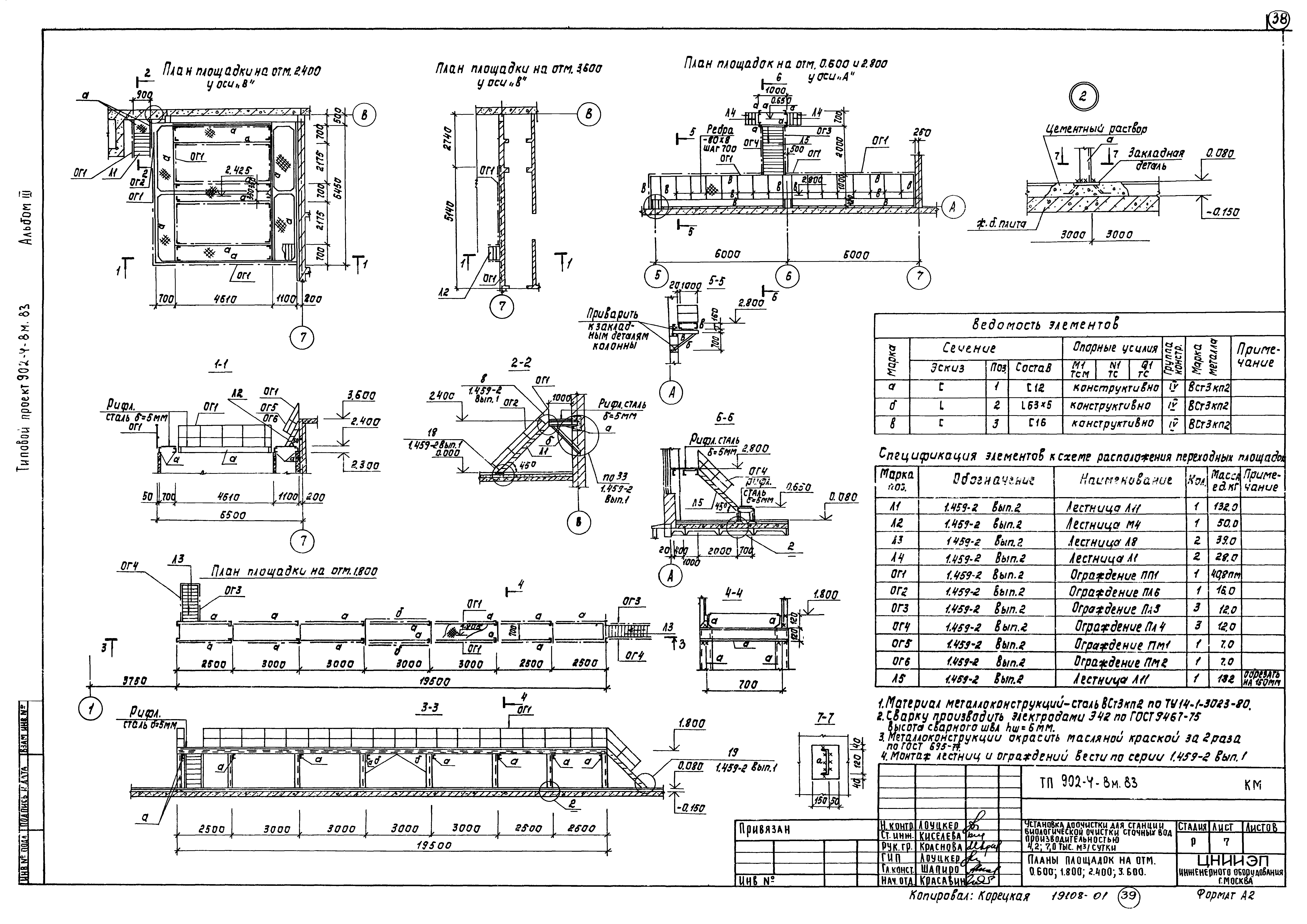
| Оглавление: | ТП 902-4-8м.83 Содержание альбома ТП 902-4-8м.83 АР Архитектурно-строительная часть ТП 902-4-8м.83 АР-1 Общие данные ТП 902-4-8м.83 АР-2 Планы на отм. 0.000;3.600. Разрезы 1-1;2-2 ТП 902-4-8м.83 АР-3 Фасады 1-8;8-1;В-А;А-В ТП 902-4-8м.83 АР-4 План кровли. План полов на отм. 0.000;3.600. Экспликация полов. Ведомость отделки помещений. Спецификация и ведомость перемычек ТП 902-4-8м.83 КЖ Конструкции железобетонные ТП 902-4-8м.83 КЖ-1 Общие данные ТП 902-4-8м.83 КЖ-2 Схема расположения свай ТП 902-4-8м.83 КЖ-3 Схема расположения монолитных ростверков и фундаментных балок. Узлы 1-4 ТП 902-4-8м.83 КЖ-4 Узлы 5-7. Монолитные ростверки Рм-Рм4 ТП 902-4-8м.83 КЖ-5 Монолитные ростверки Рм5-Рм14 ТП 902-4-8м.83 КЖ-6 Монолитные ростверки. Спецификации ТП 902-4-8м.83 КЖ-7 Схема расположения плит перекрытия и ригелей над подпольем ТП 902-4-8м.83 КЖ-8 Разрезы 2-2÷3-3. Монолитный участок Ум1 ТП 902-4-8м.83 КЖ-9 Схема расположения фундаментов под оборудование ТП 902-4-8м.83 КЖ-10 Фундаменты ФО1-ФО7 ТП 902-4-8м.83 КЖ-11 Отделение барабанных стенок. Монолитный резервуар. Опалубочный чертеж ТП 902-4-8м.83 КЖ-12 Отделение барабанных сеток. Монолитный резервуар. Армирование ТП 902-4-8м.83 КЖ-13 Схема расположения колонн и балок покрытия ТП 902-4-8м.83 КЖ-14 Схема расположения плит покрытия и перекрытия ТП 902-4-8м.83 КЖ-15 Схема расположения стеновых панелей ТП 902-4-8м.83 КЖ-16 Венткамера. Схема расположения плит перекрытия тамбура ТП 902-4-8м.83 КЖ-17 Блок резервуаров. Схема расположения стеновых панелей и плит покрытия. Разрезы 1-1;2-2 ТП 902-4-8м.83 КЖ-18 Блок резервуаров. Разрезы 3-3;4-4. Узлы 3,4 ТП 902-4-8м.83 КЖ-19 Блок резервуаров. Схема расположения утепляющих панелей. Разрез 1-1 ТП 902-4-8м.83 КЖ-20 Блок резервуаров. Схема расположения утепляющих панелей. Разрез 2-2 ТП 902-4-8м.83 КЖ-21 Блок резервуаров. Днище. Опалубочный чертеж ТП 902-4-8м.83 КЖ-22 Блок резервуаров. Днище. Армирование. Схема расположения верхних и нижних стенок каркасов ТП 902-4-8м.83 КЖ-23 Блок резервуаров. Днище. Армирование. Разрезы 3-3÷5-5. Узлы ТП 902-4-8м.83 КЖ-24 Блок резервуаров. Монолитные участки стен Ум1-Ум3. Опалубочный чертеж и армирование ТП 902-4-8м.83 КЖ-25 Блок резервуаров. Монолитный железобетонный поддон-ростверок ТП 902-4-8м.83 КЖ-26 Блок резервуаров. Рм1,РМ2,ПРМ1. Армирование ТП 902-4-8м.83 КЖ-27 Блок резервуаров. Схема расположения свай ТП 902-4-8м.83 КМ Конструкции металлические ТП 902-4-8м.83 КМ-1 Общие данные ТП 902-4-8м.83 КМ-2 Техническая спецификация металла (начало) ТП 902-4-8м.83 КМ-3 Техническая спецификация металла (окончание) ТП 902-4-8м.83 КМ-4 Техническая спецификация металла на типовые конструкции ТП 902-4-8м.83 КМ-5 Выборка сталей по видам профилей ТП 902-4-8м.83 КМ-6 Схема расположения металлических балок путей подвесного транспорта ТП 902-4-8м.83 КМ-7 Планы площадок на отм. 0.600;1.800;2.400;3.600 |
| Разработан: | ЦНИИЭП |
| Утверждён: | 14.02.1983 Госгражданстрой (Gosgrazhdanstroy 49) |






































