Скачать Типовой проект 902-4-6м.83 Альбом V. Электротехническая часть. Чертежи монтажной зоны и заготовительного участка (из ТП 902-4-5.83)Дата актуализации: 01.01.2021
|
| Обозначение: | Типовой проект 902-4-6м.83 |
| Обозначение англ: | 902-4-6м.83 |
| Статус: | не определен законодательством |
| Название рус.: | Альбом V. Электротехническая часть. Чертежи монтажной зоны и заготовительного участка (из ТП 902-4-5.83) |
| Дата добавления в базу: | 01.09.2013 |
| Дата актуализации: | 01.01.2021 |
| Дата введения: | 27.06.1983 |
| Дата окончания срока действия: | 30.06.2003 |
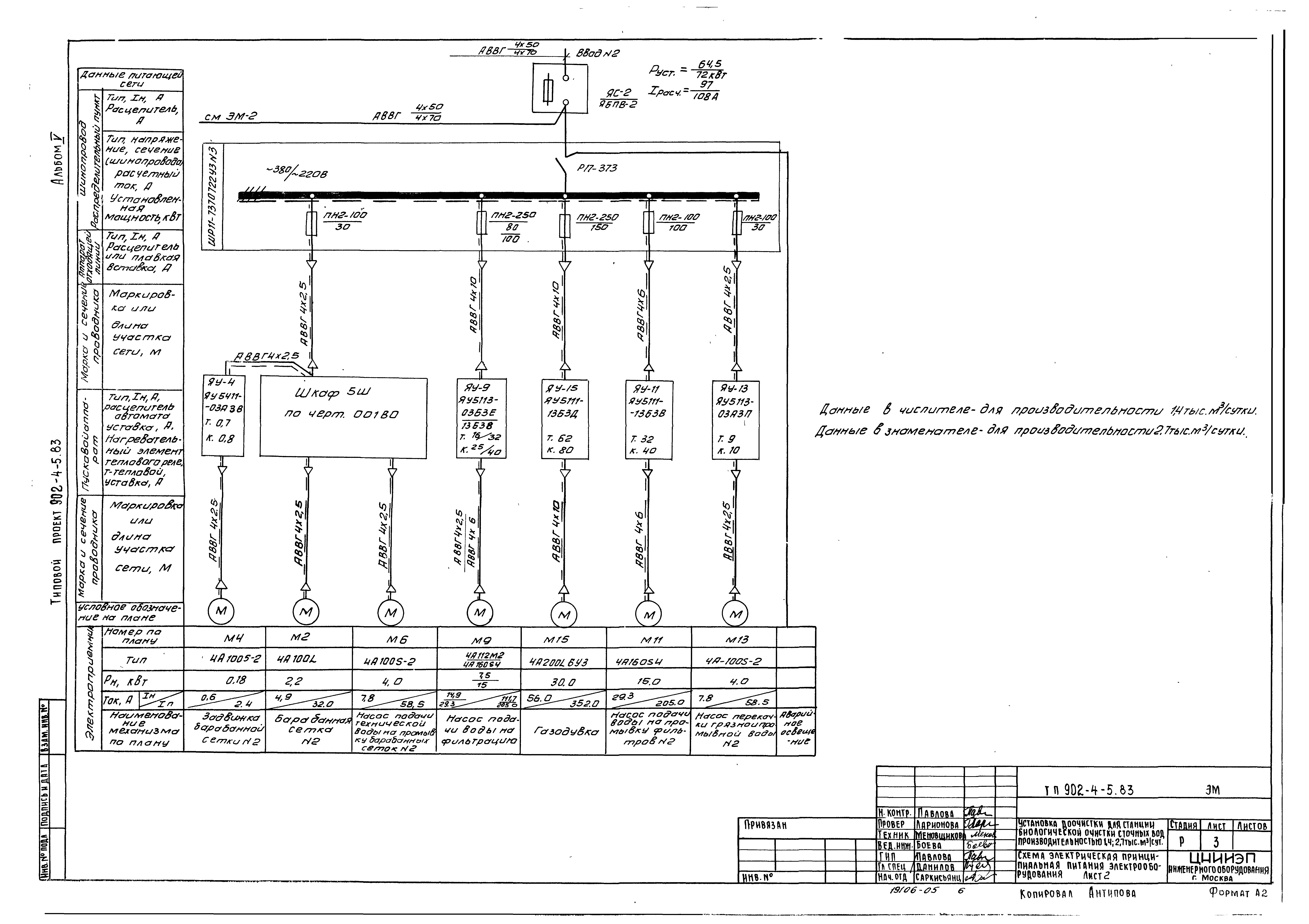
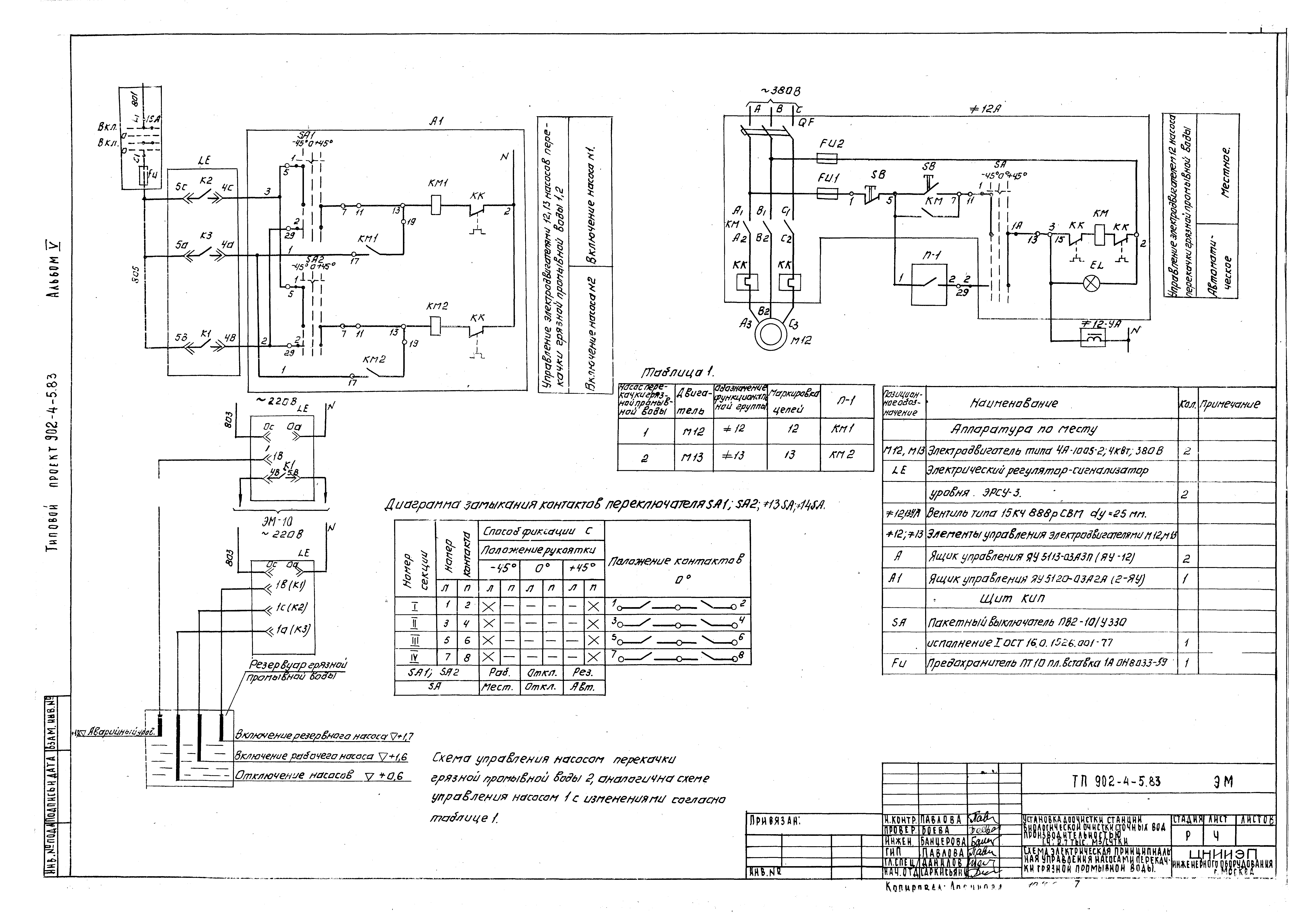
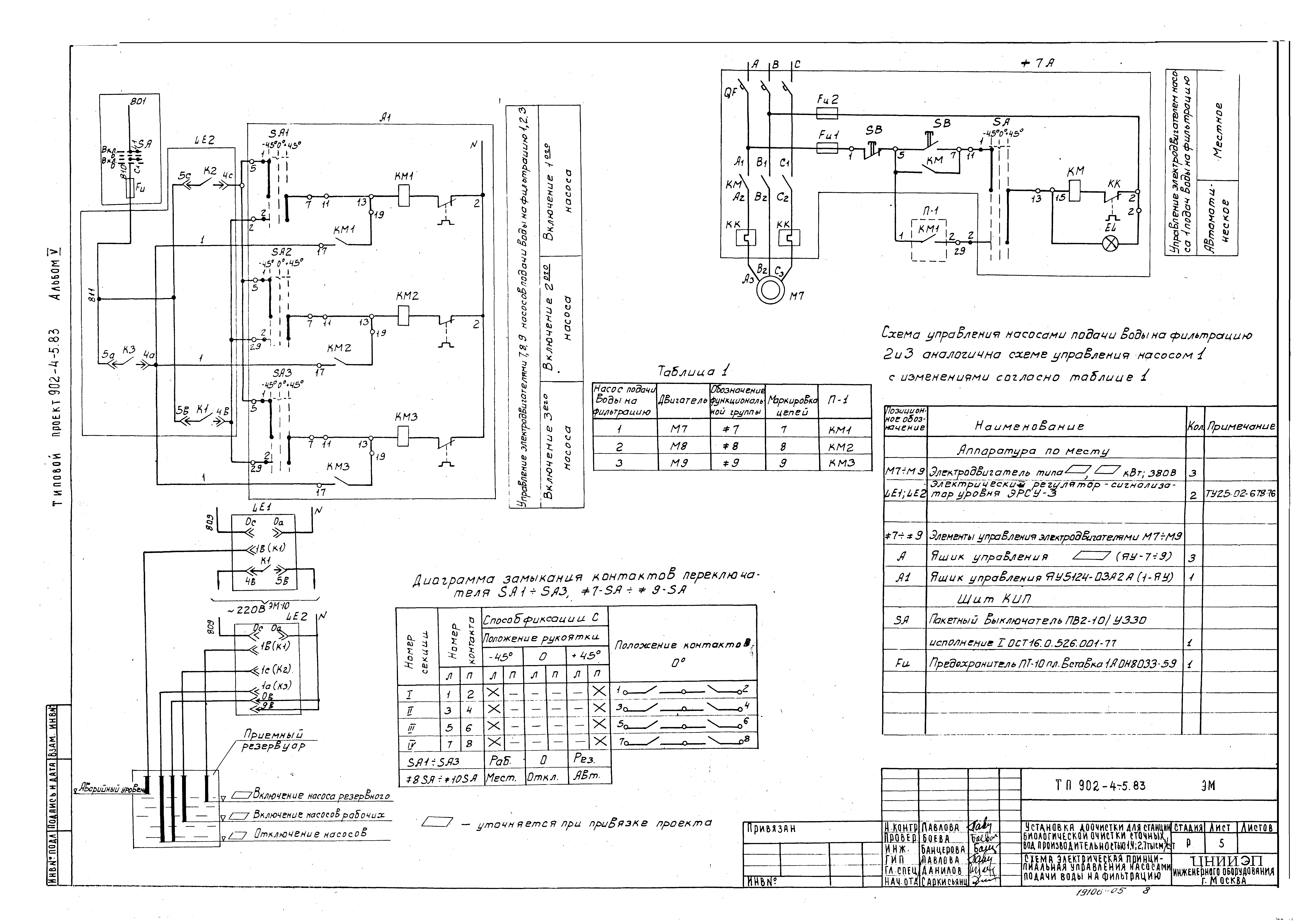
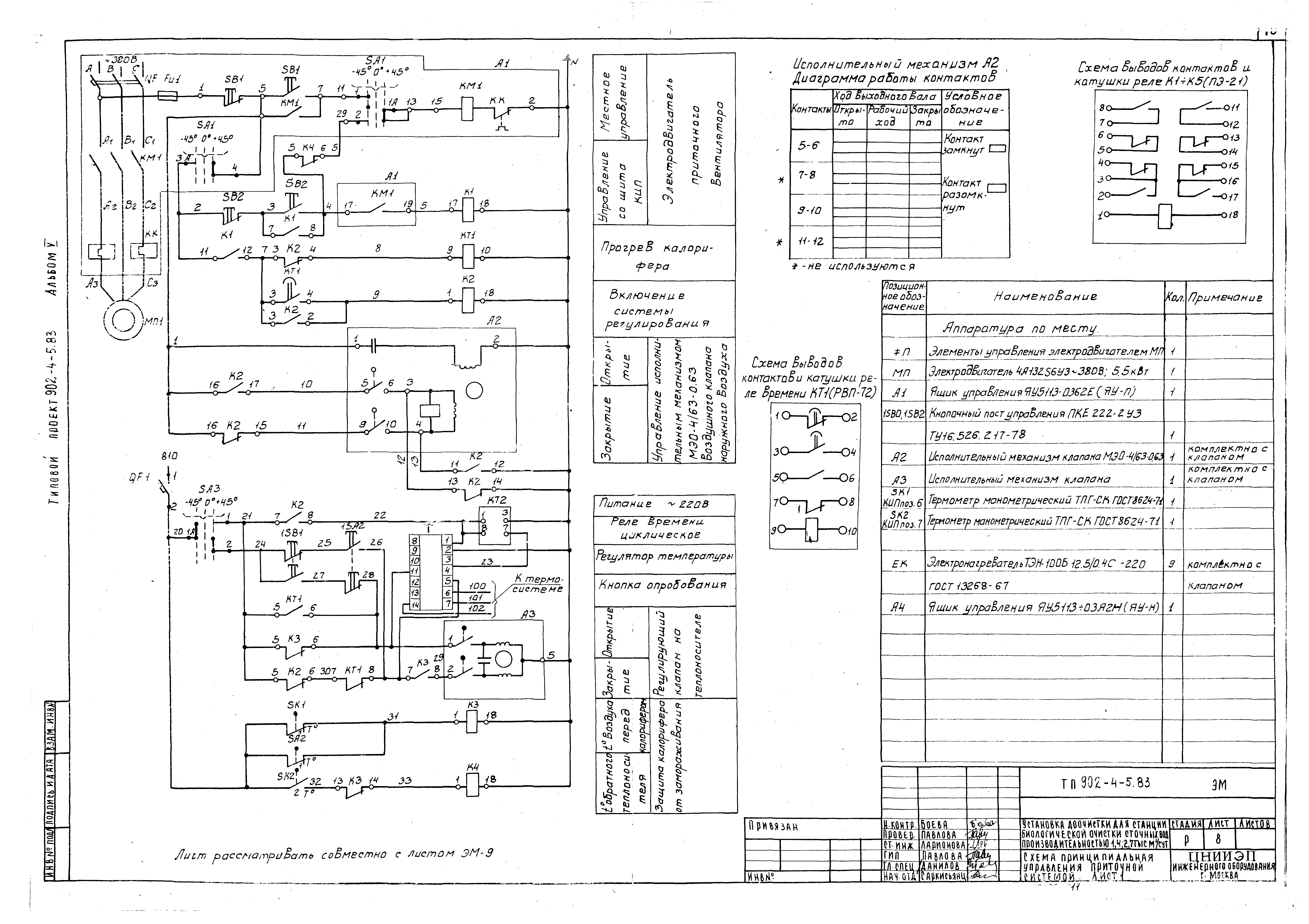
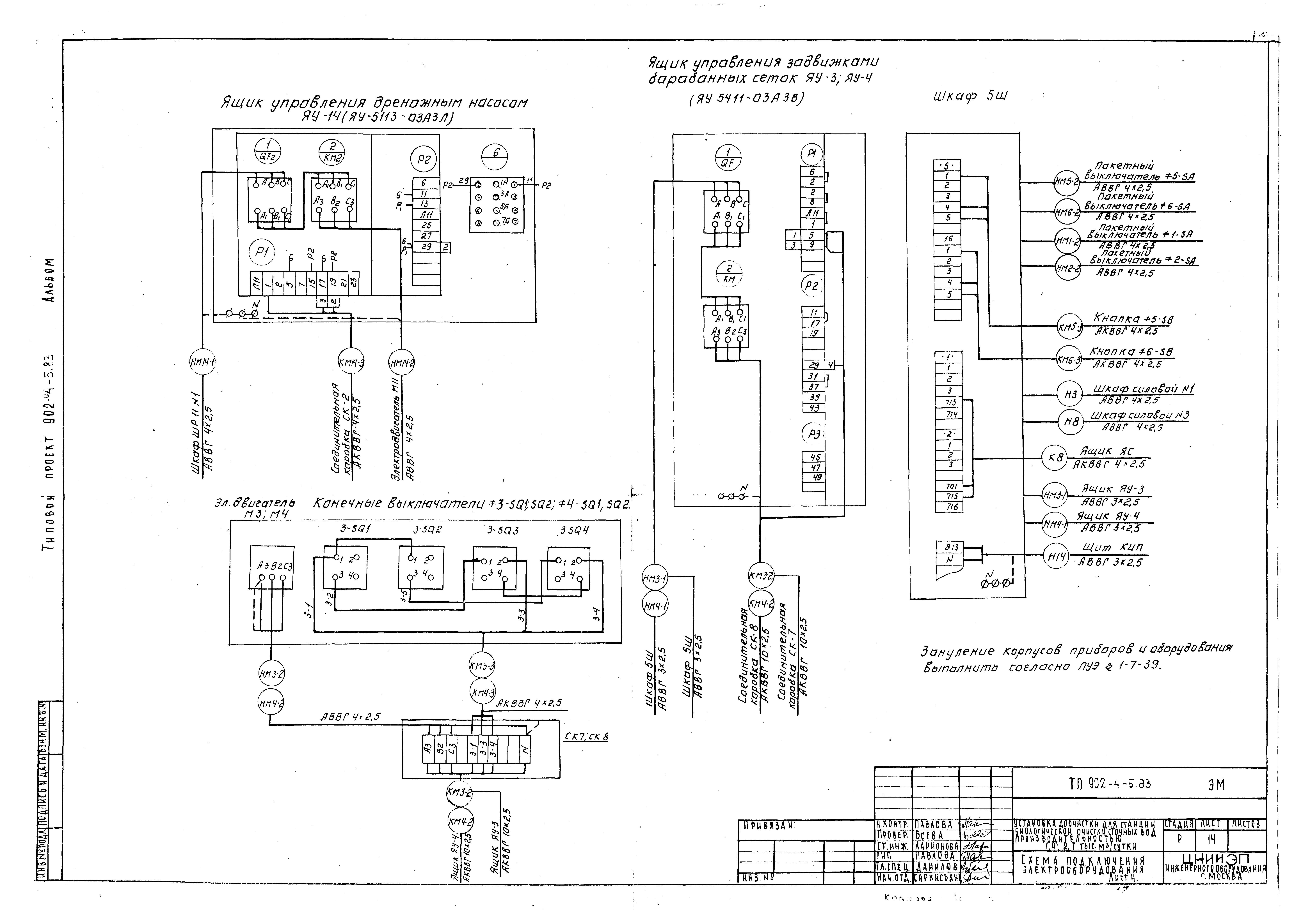
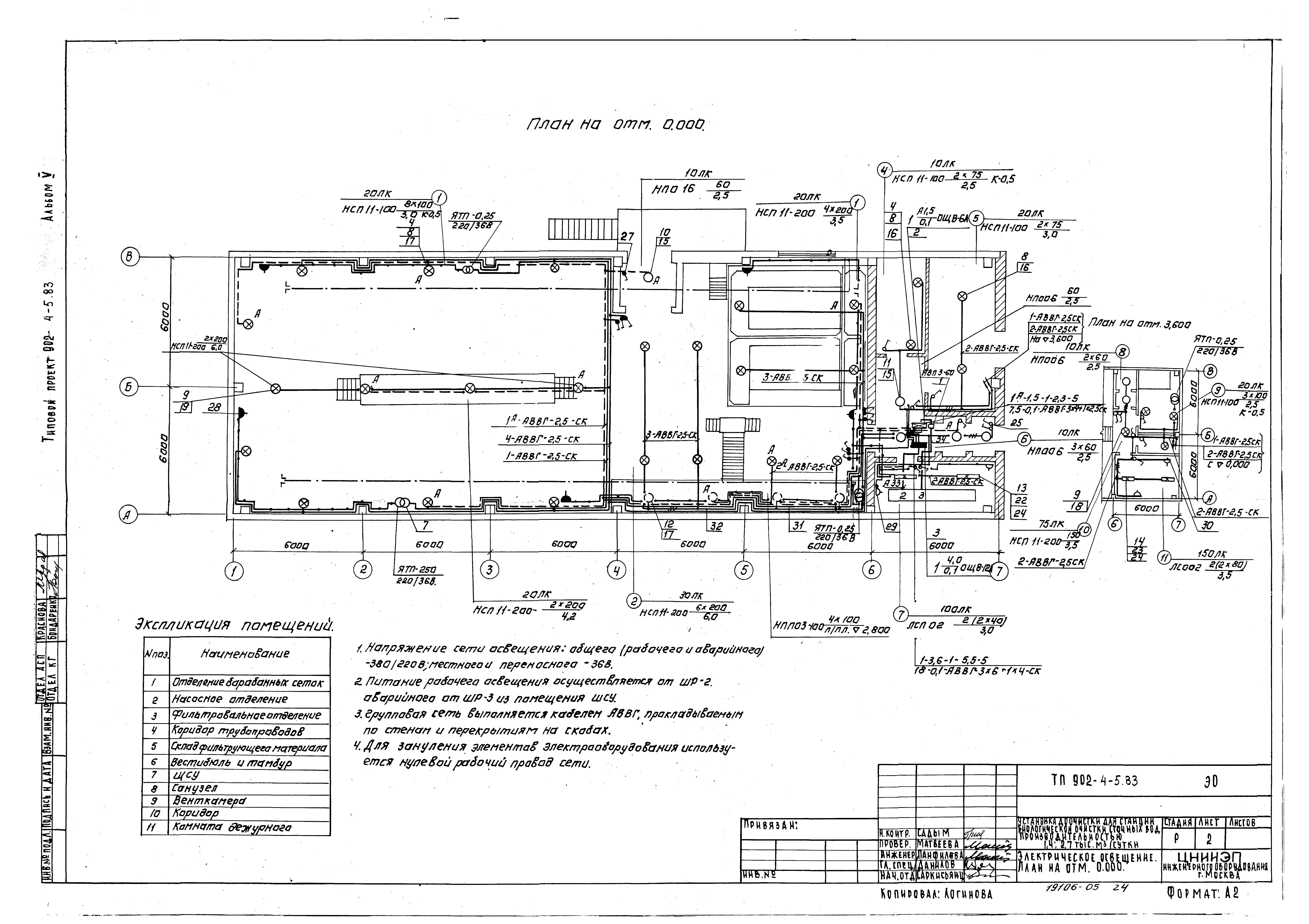
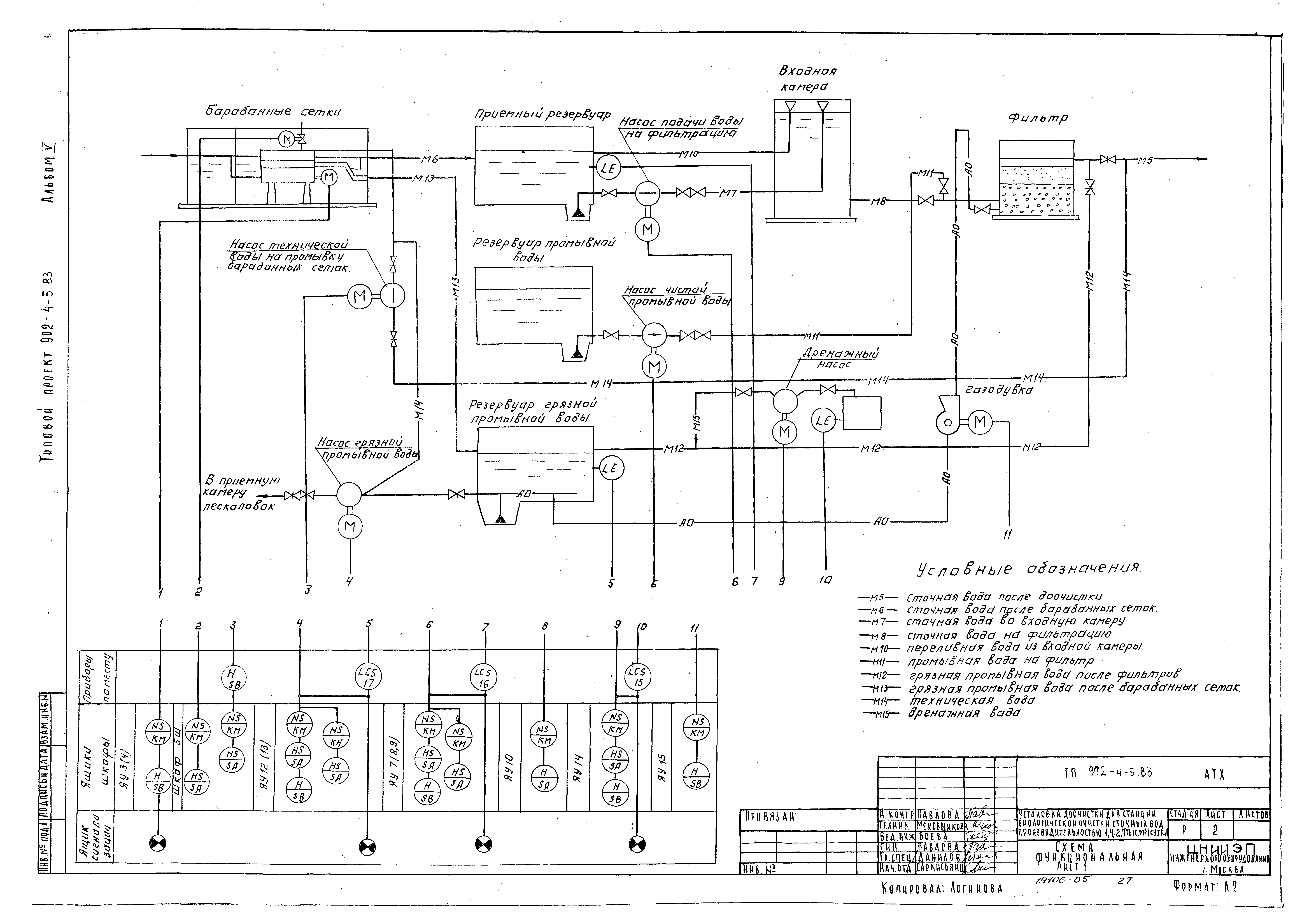
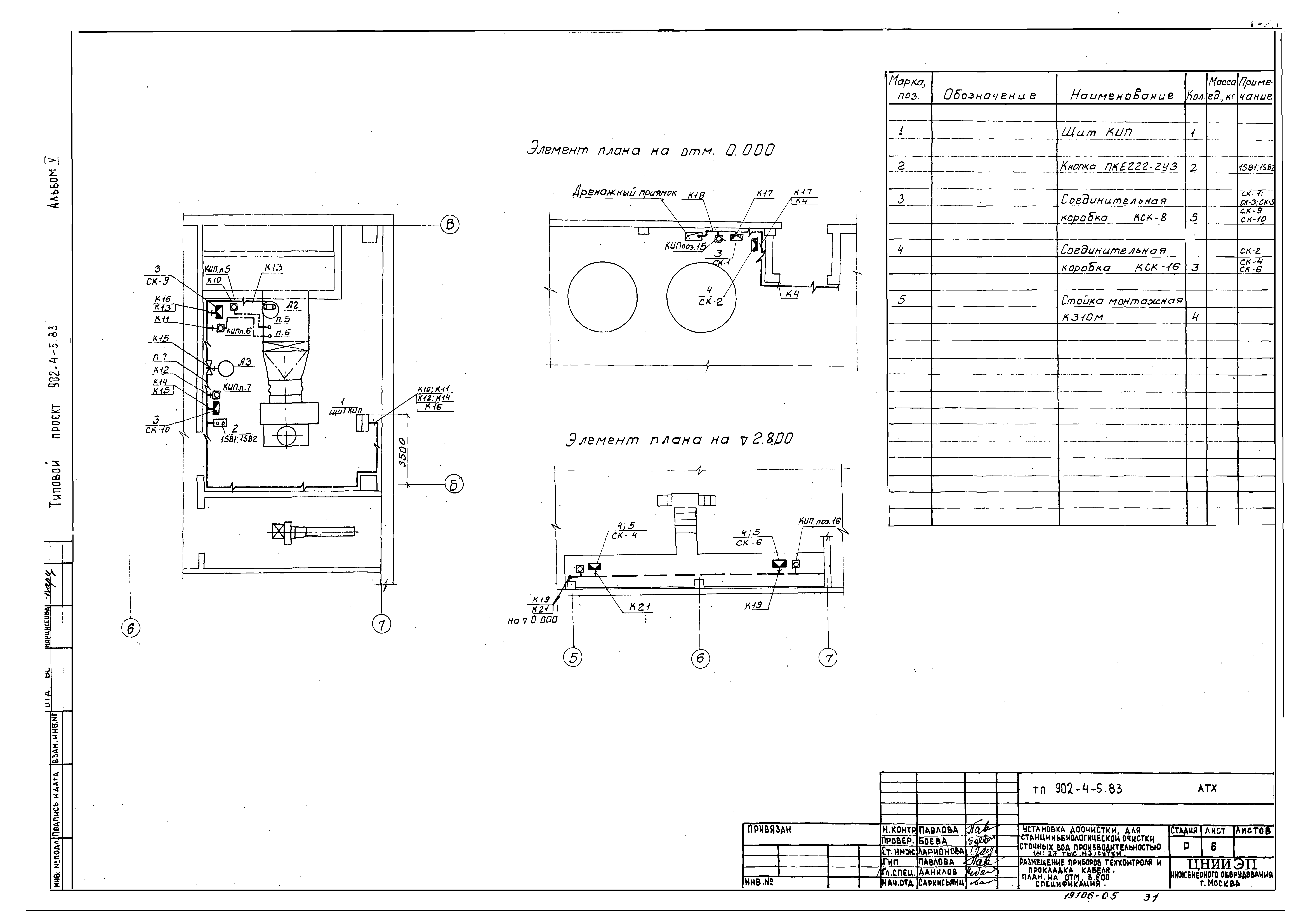
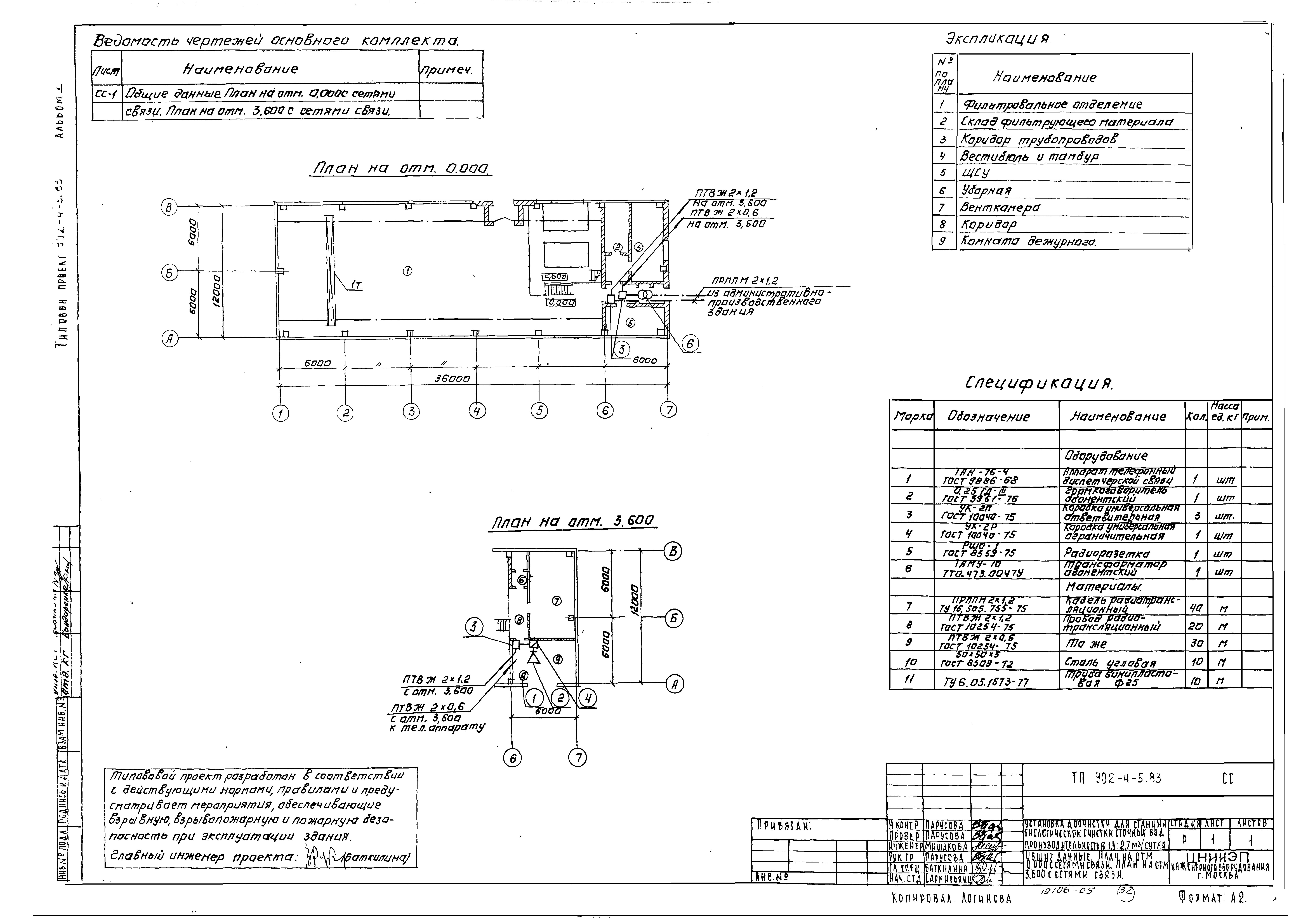
| Оглавление: | ТП 902-4-7.83 ЭМ-1 Общие данные ТП 902-4-7.83 ЭМ-2 Схема питания электрооборудования. Лист 1 ТП 902-4-7.83 ЭМ-3 Схема питания электрооборудования. Лист 2 ТП 902-4-7.83 ЭМ-4 Схема электрическая принципиальная управления насосами перекачки грязной промывной воды ТП 902-4-7.83 ЭМ-5 Схема электрическая принципиальная управления насосами подачи воды на фильтрацию ТП 902-4-7.83 ЭМ-6 Схема электрическая принципиальная управления дренажными насосами ТП 902-4-7.83 ЭМ-7 Схемы электрические принципиальные управления барабанной сеткой и насосами подачи технической воды на промывку барабанных сеток ТП 902-4-7.83 ЭМ-8 Схема электрическая принципиальная управления приточной системой. Лист 1 ТП 902-4-7.83 ЭМ-9 Схема электрическая принципиальная управления приточной системой. Лист 2 ТП 902-4-7.83 ЭМ-10 Схема электрическая принципиальная аварийной сигнализации ТП 902-4-7.83 ЭМ-11 Схема подключения электрооборудования. Лист 1 ТП 902-4-7.83 ЭМ-12 Схема подключения электрооборудования. Лист 2 ТП 902-4-7.83 ЭМ-13 Схема подключения электрооборудования. Лист 3 ТП 902-4-7.83 ЭМ-14 Схема подключения электрооборудования. Лист 4 ТП 902-4-7.83 ЭМ-15 Кабельный журнал. Лист 1 ТП 902-4-7.83 ЭМ-16 Кабельный журнал. Лист 2 ТП 902-4-7.83 ЭМ-17 Кабельный журнал. Лист 3 ТП 902-4-7.83 ЭМ-18 Размещение электрооборудования и прокладка кабеля. План на отм. 0.000 ТП 902-4-7.83 ЭМ-19 Размещение электрооборудования и прокладка кабеля. План на отм. 3.600. Спецификация ТП 902-4-7.83 ЭО-1 Общие данные ТП 902-4-7.83 ЭО-2 Электрическое освещение. План на отм. 0.000 и 3.600 ТП 902-4-7.83 ЭО-3 Электрическое освещение. Спецификация ТП 902-4-7.83 АТХ-1 Общие данные ТП 902-4-7.83 АТХ-2 Схема функциональная. Лист 1. Схема питания приборов ТП 902-4-7.83 АТХ-3 Схема функциональная. Лист 2 ТП 902-4-7.83 АТХ-4 Схема подключения приборов технологического контроля ТП 902-4-7.83 АТХ-5 Схема подключения приборов технологического контроля ТП 902-4-7.83 АТХ-6 Размещение приборов технологического контроля и раскладка кабеля. План на отм. 0.000 и 3.600. Спецификация ТП 902-4-7.83 СС-1 Общие данные. План на отм. 0.000 с сетями связи. План на отм. 3.600 с сетями связи |
| Разработан: | ЦНИИЭП |
| Утверждён: | 14.02.1983 Госгражданстрой (Gosgrazhdanstroy 49) |































