Скачать Типовой проект 703-1-5.86 Альбом 1. Пояснительная записка. Схема генерального плана. Технология. Холодоснабжение. Отопление и вентиляция. Внутренние водопровод и канализация. Электрооборудование. Автоматизация. Связь и сигнализацияДата актуализации: 01.01.2021
|
| Обозначение: | Типовой проект 703-1-5.86 |
| Обозначение англ: | 703-1-5.86 |
| Статус: | не определен законодательством |
| Название рус.: | Альбом 1. Пояснительная записка. Схема генерального плана. Технология. Холодоснабжение. Отопление и вентиляция. Внутренние водопровод и канализация. Электрооборудование. Автоматизация. Связь и сигнализация |
| Дата добавления в базу: | 01.09.2013 |
| Дата актуализации: | 01.01.2021 |
| Дата введения: | 23.05.1986 |
| Дата окончания срока действия: | 30.06.2003 |
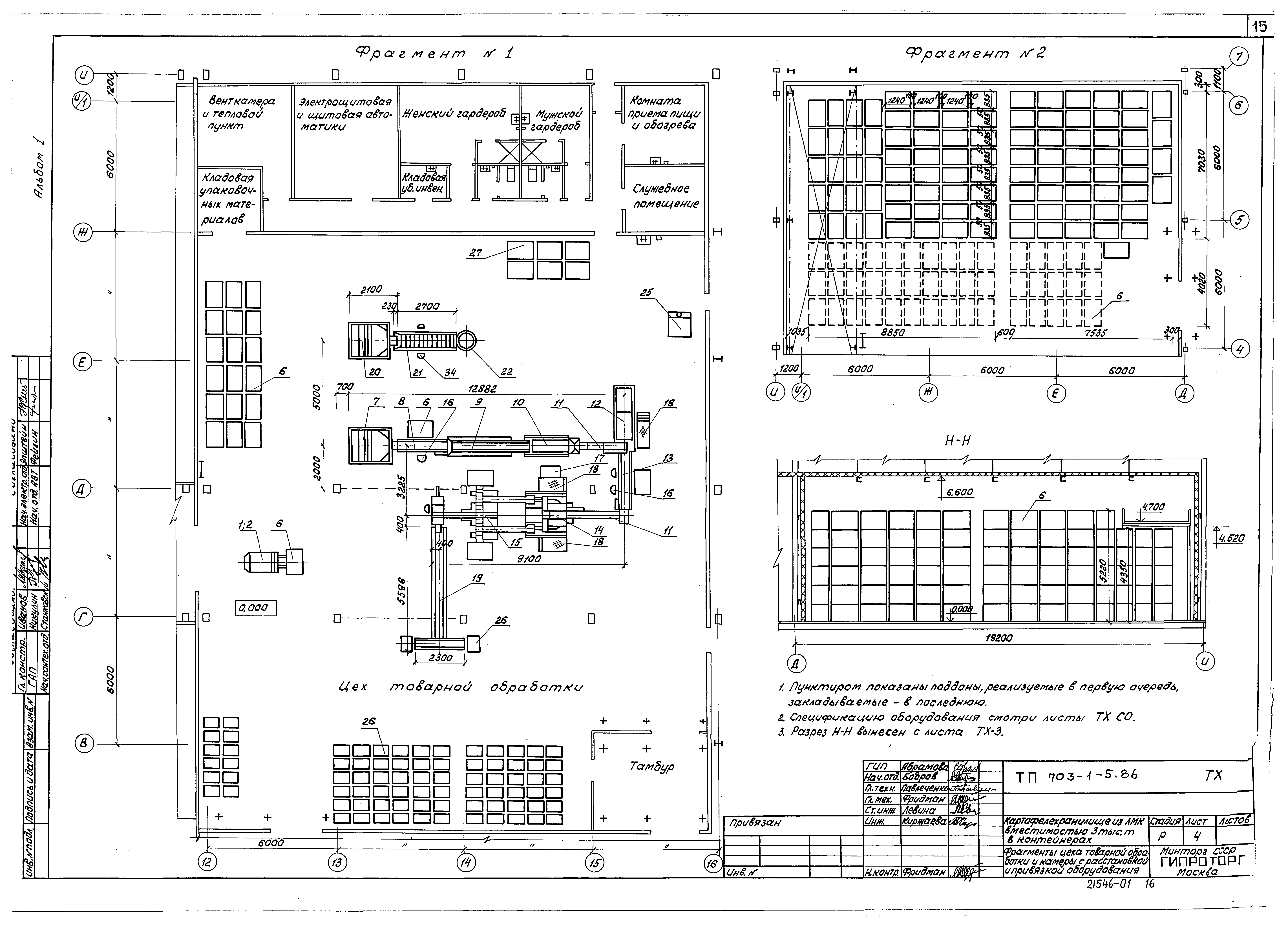
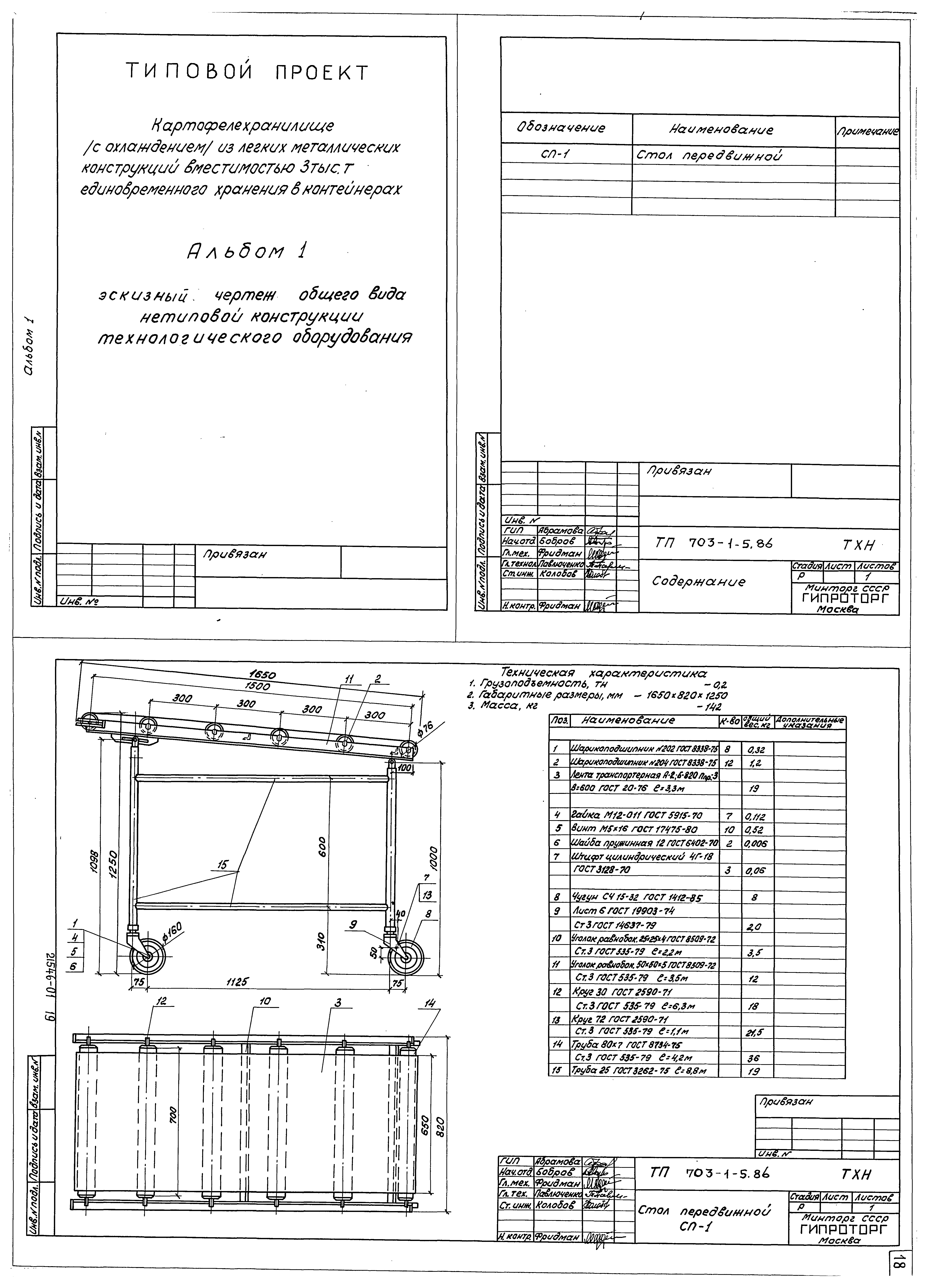
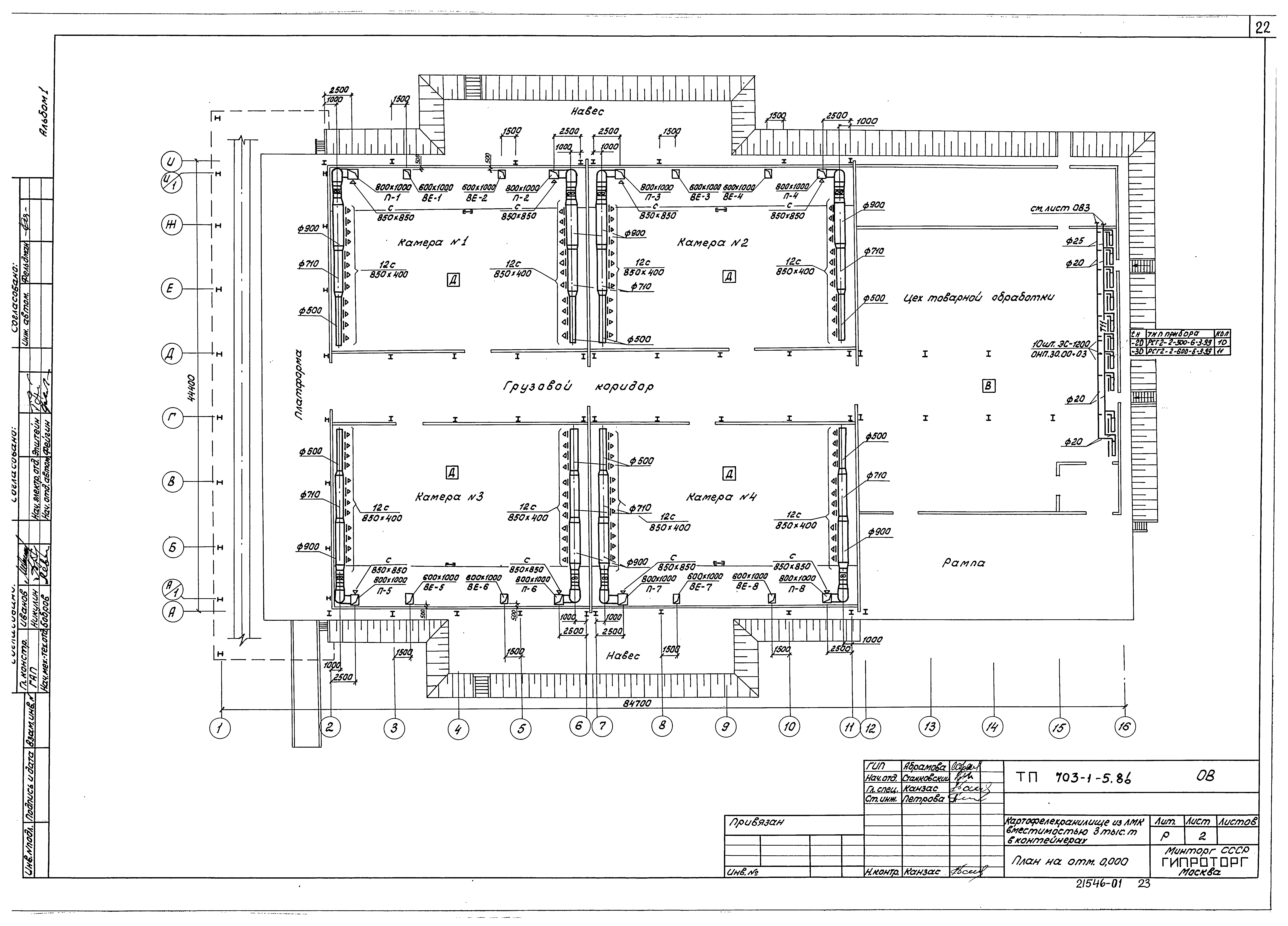
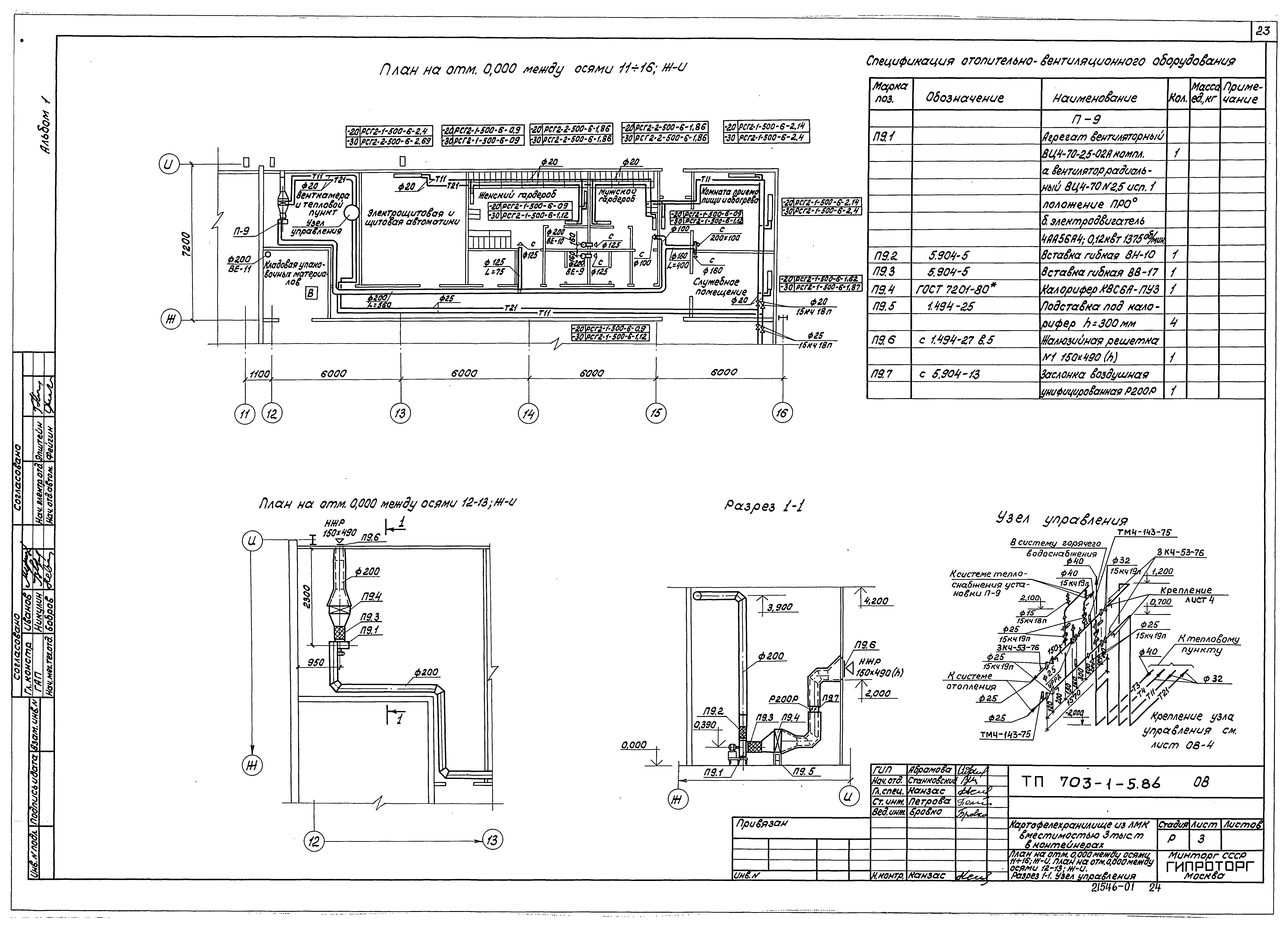
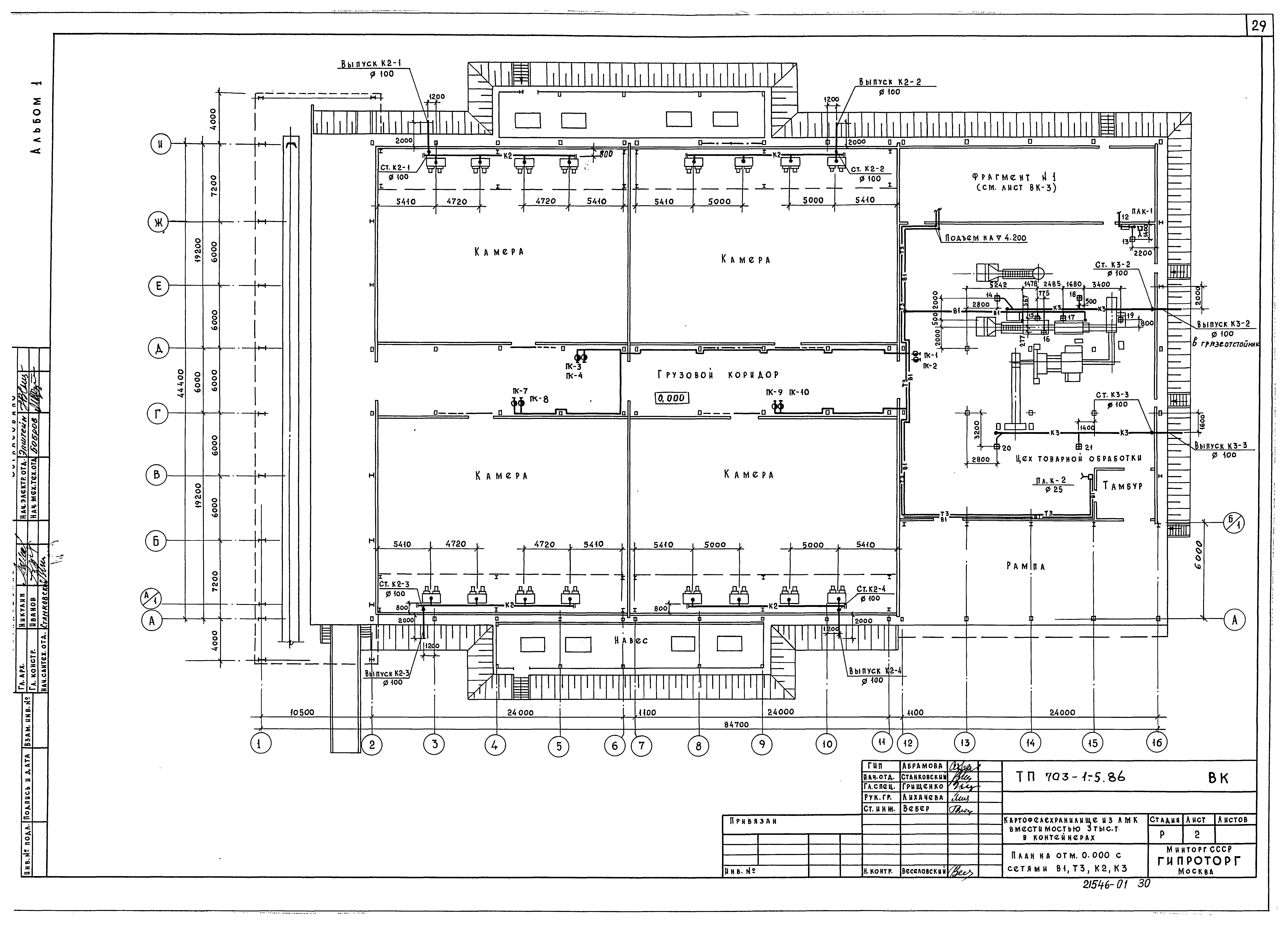
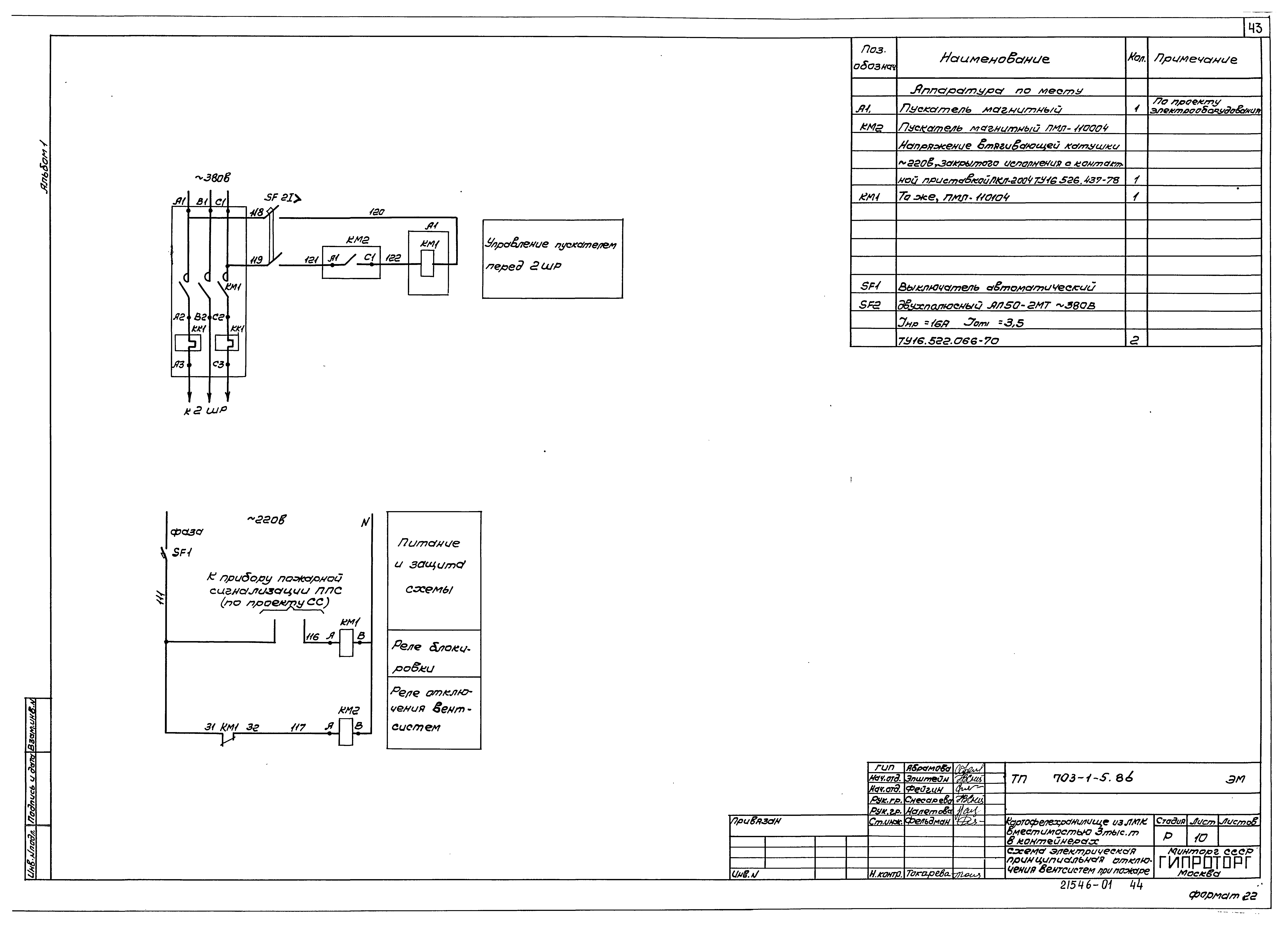
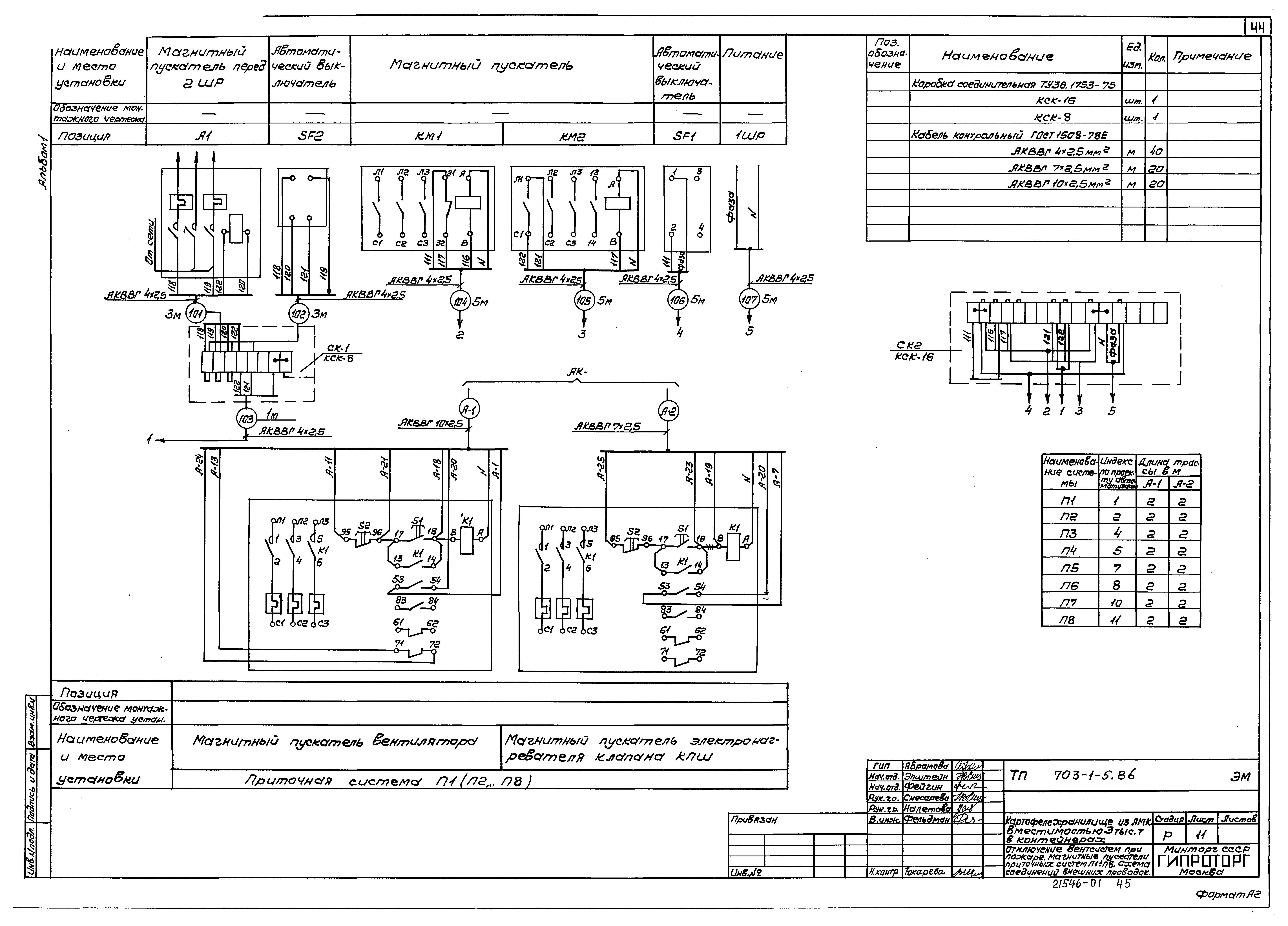
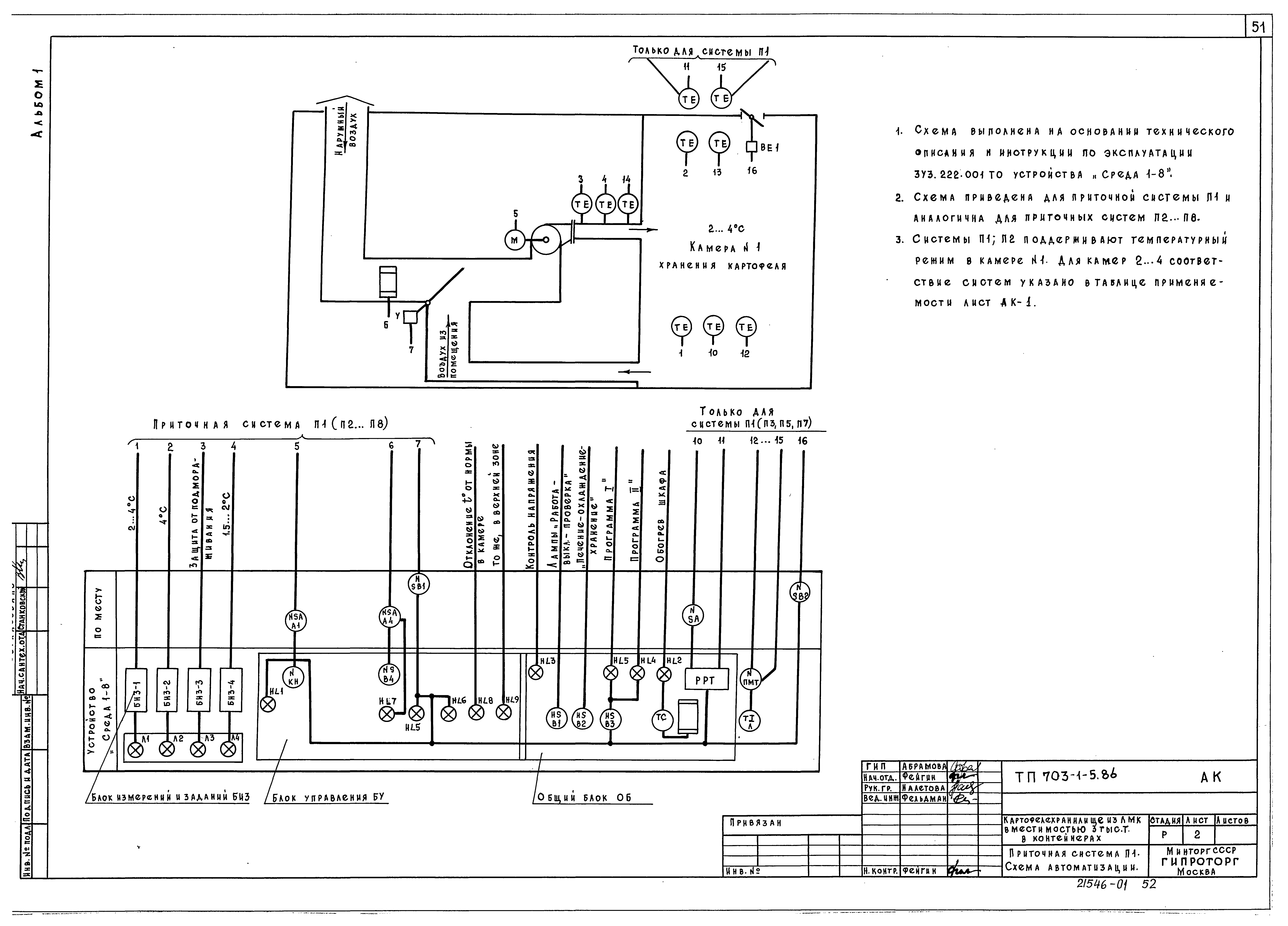
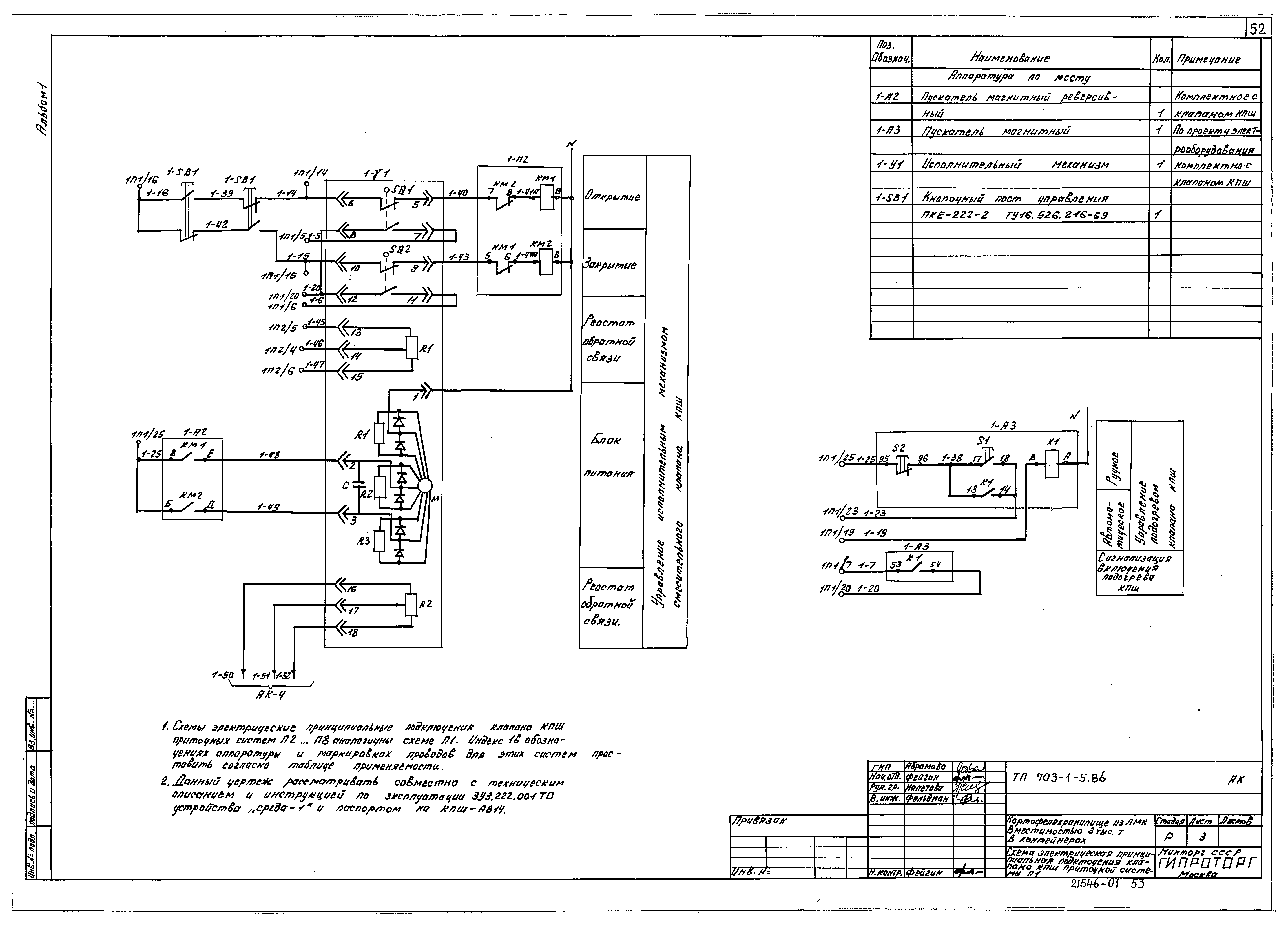
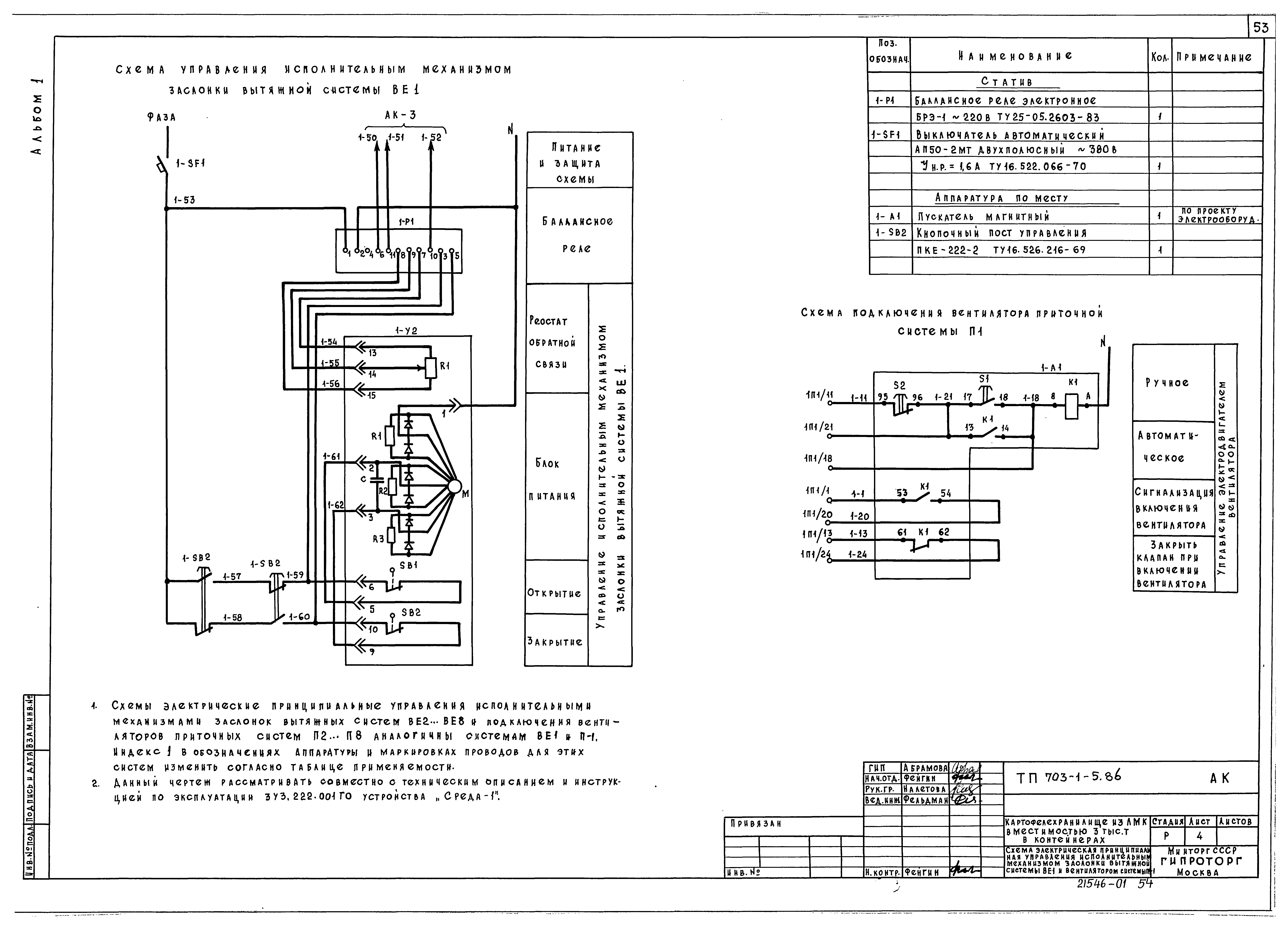
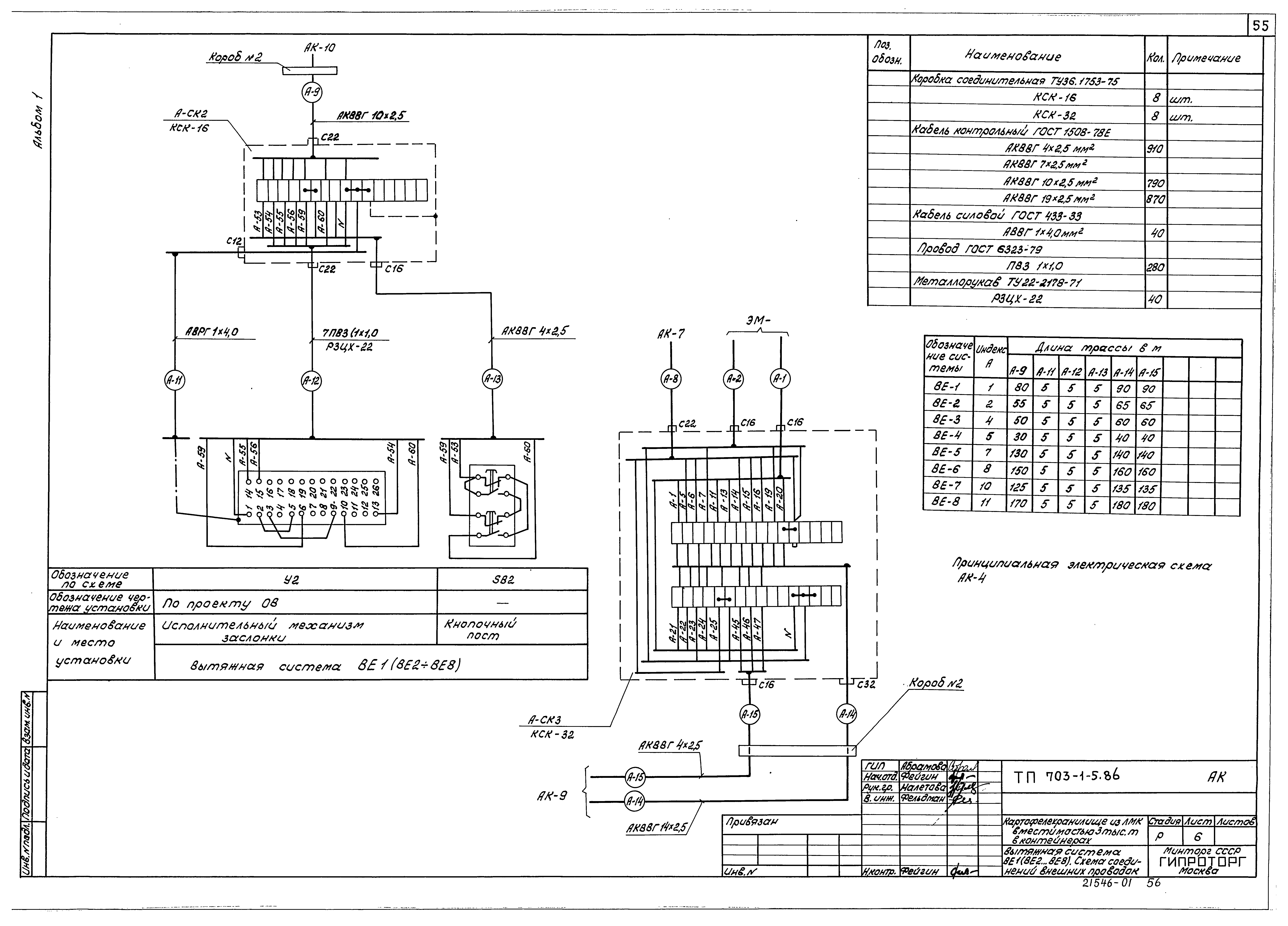
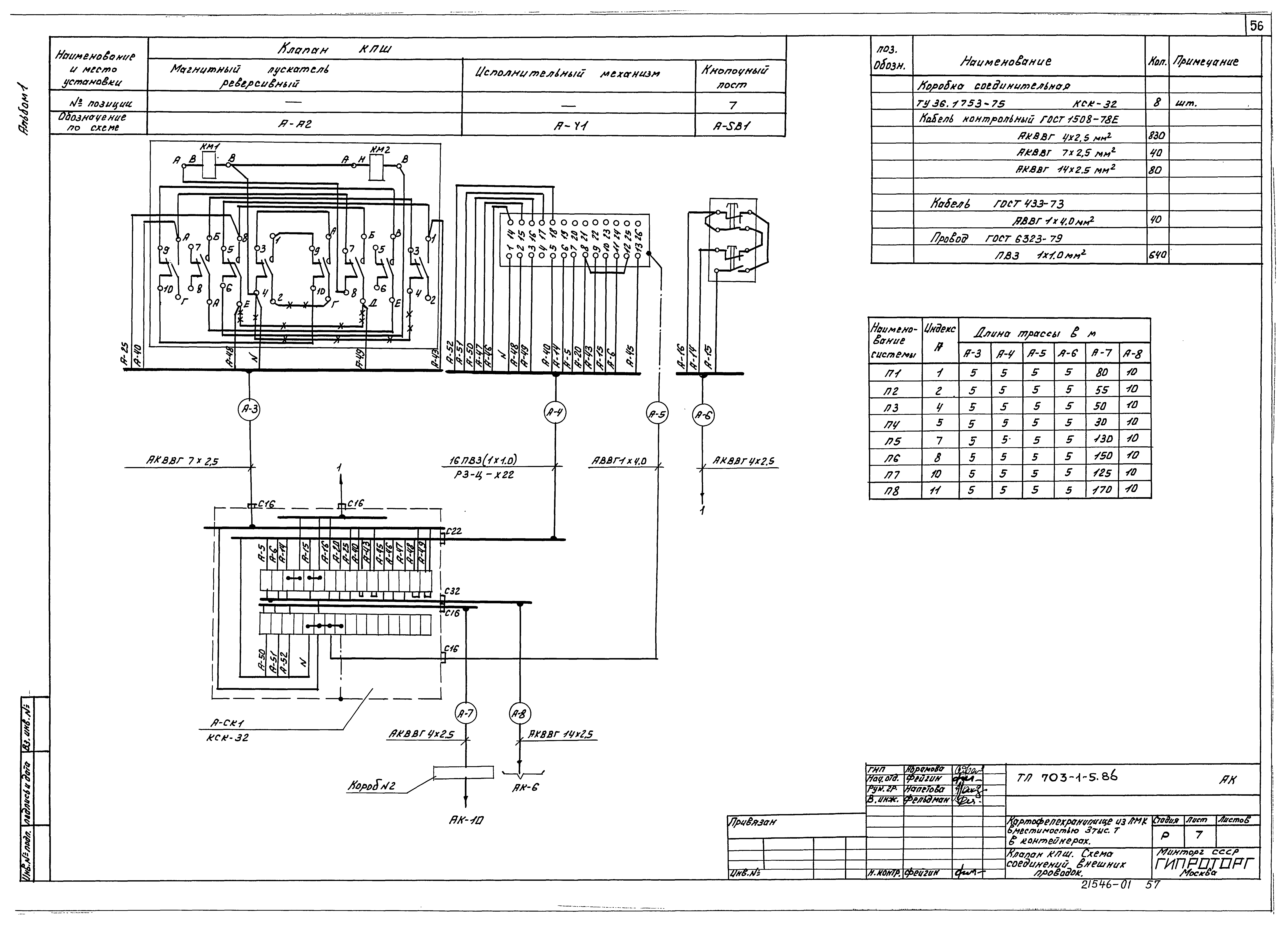
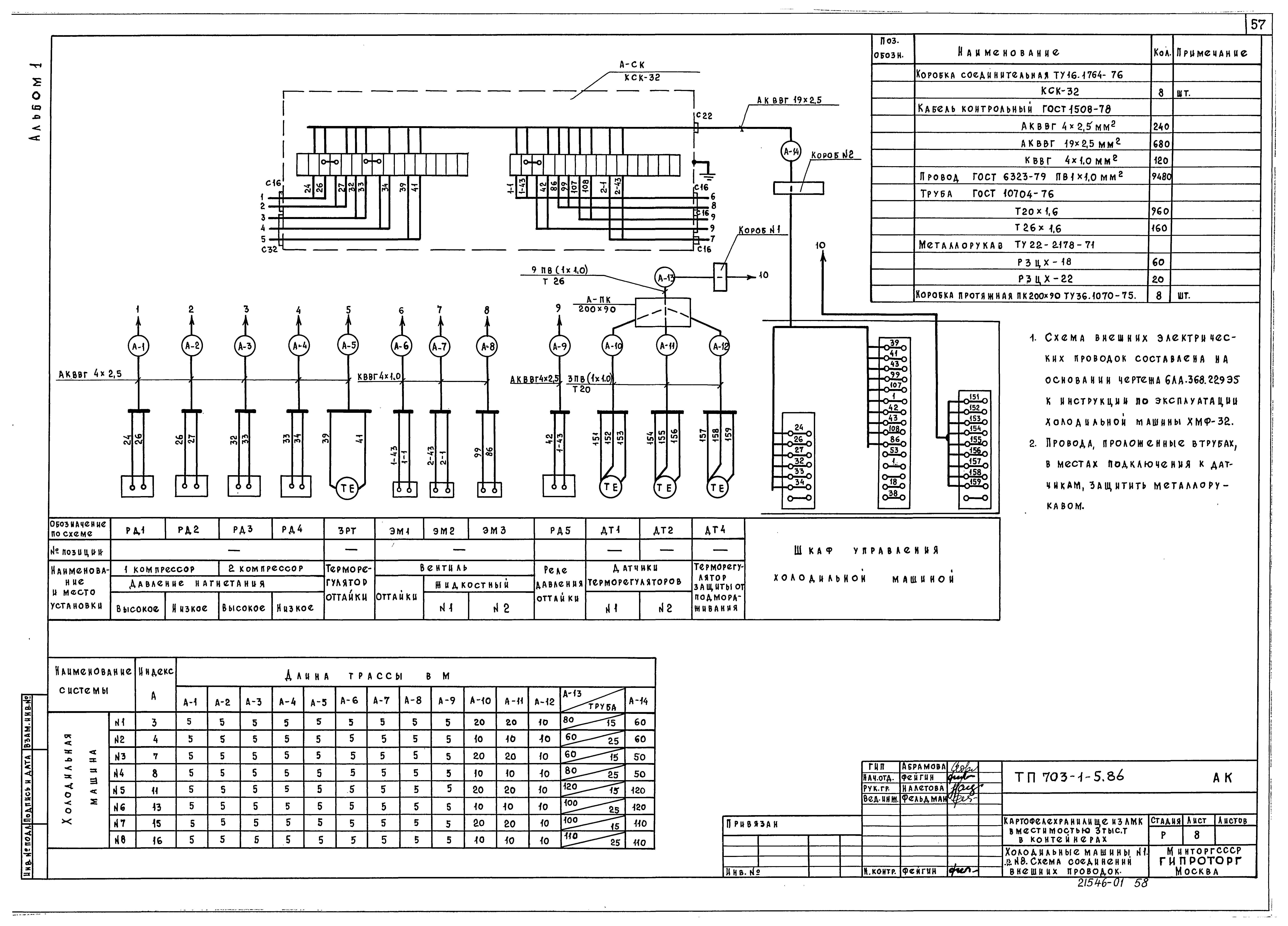
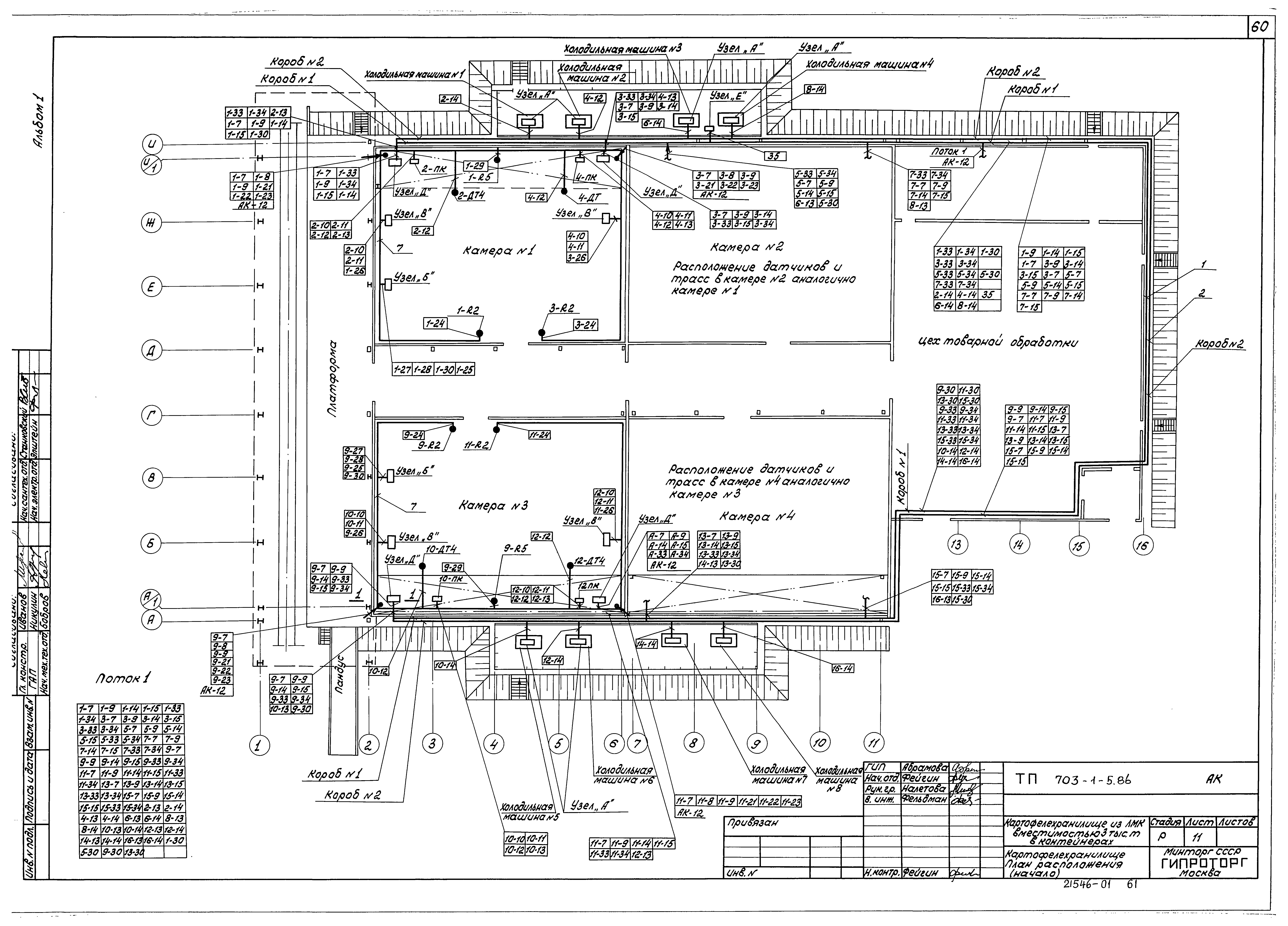
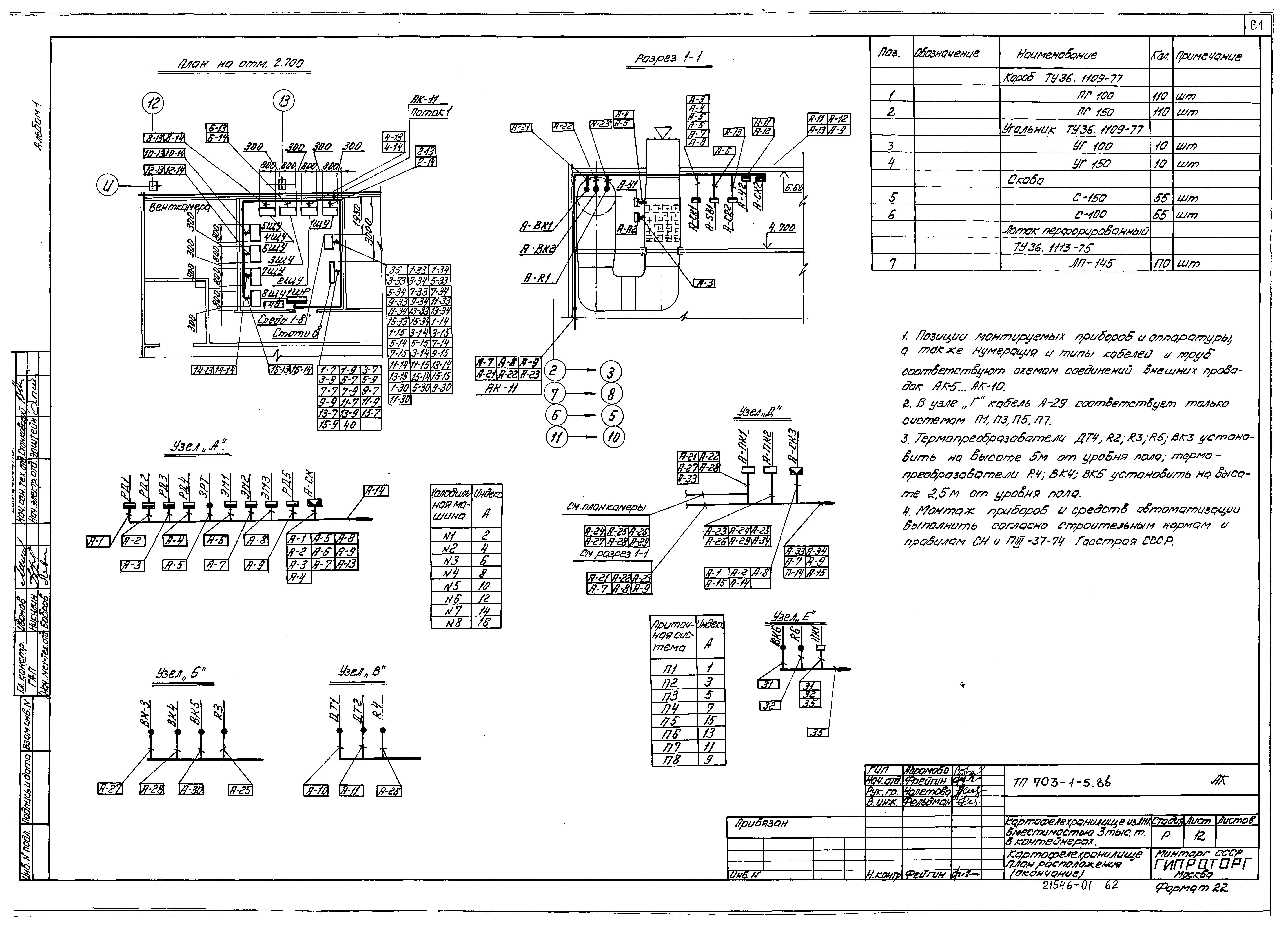
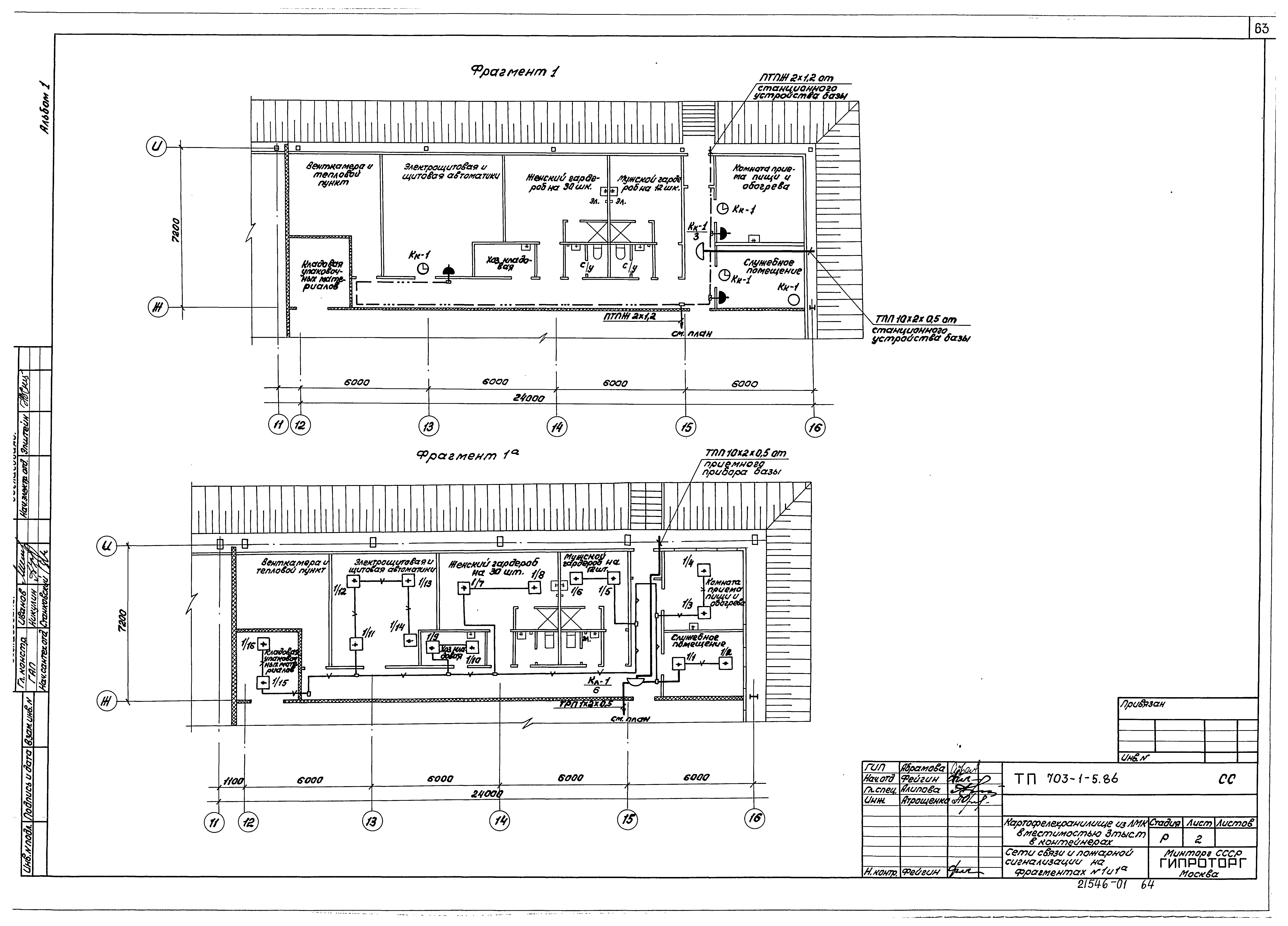
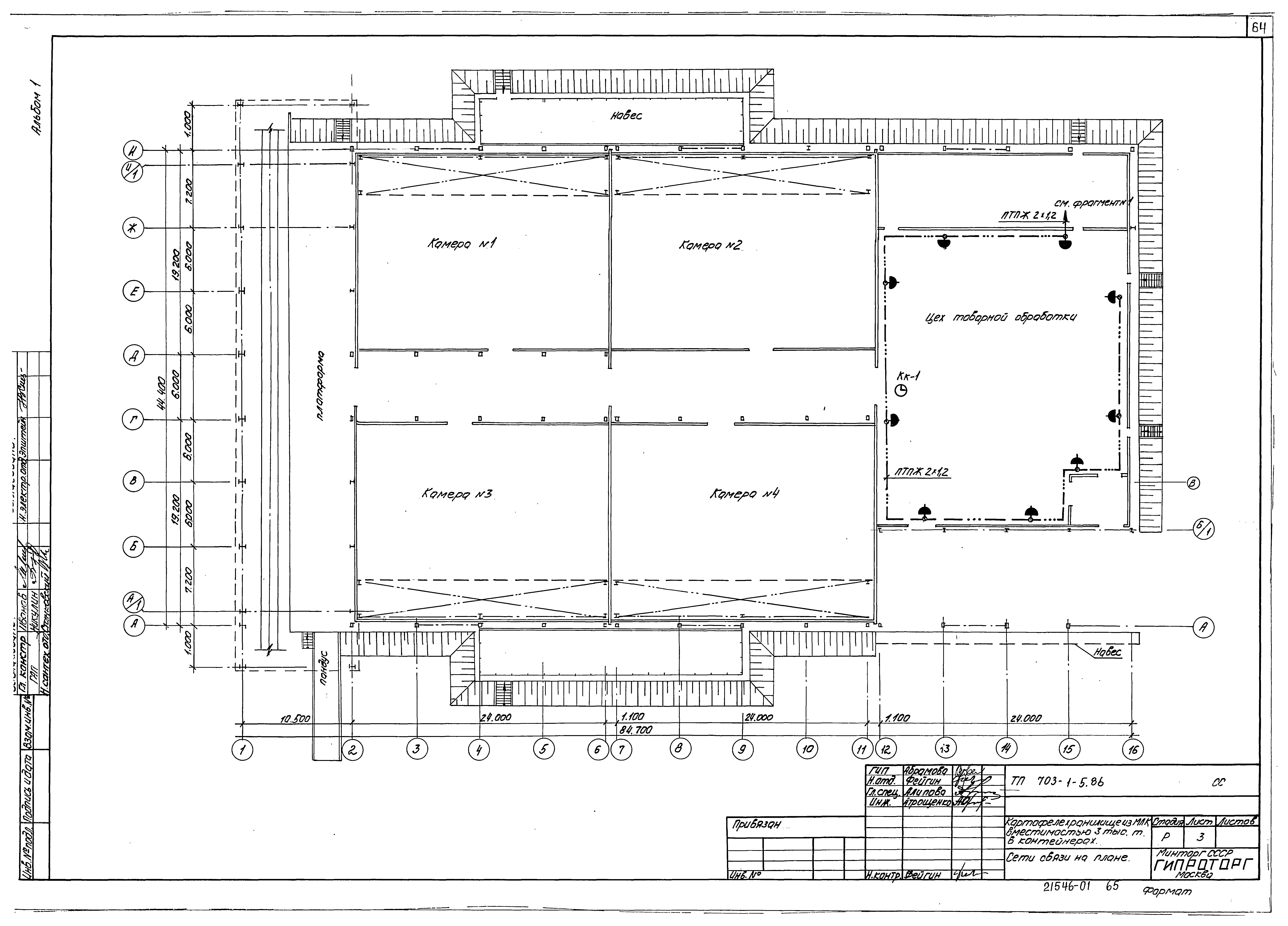
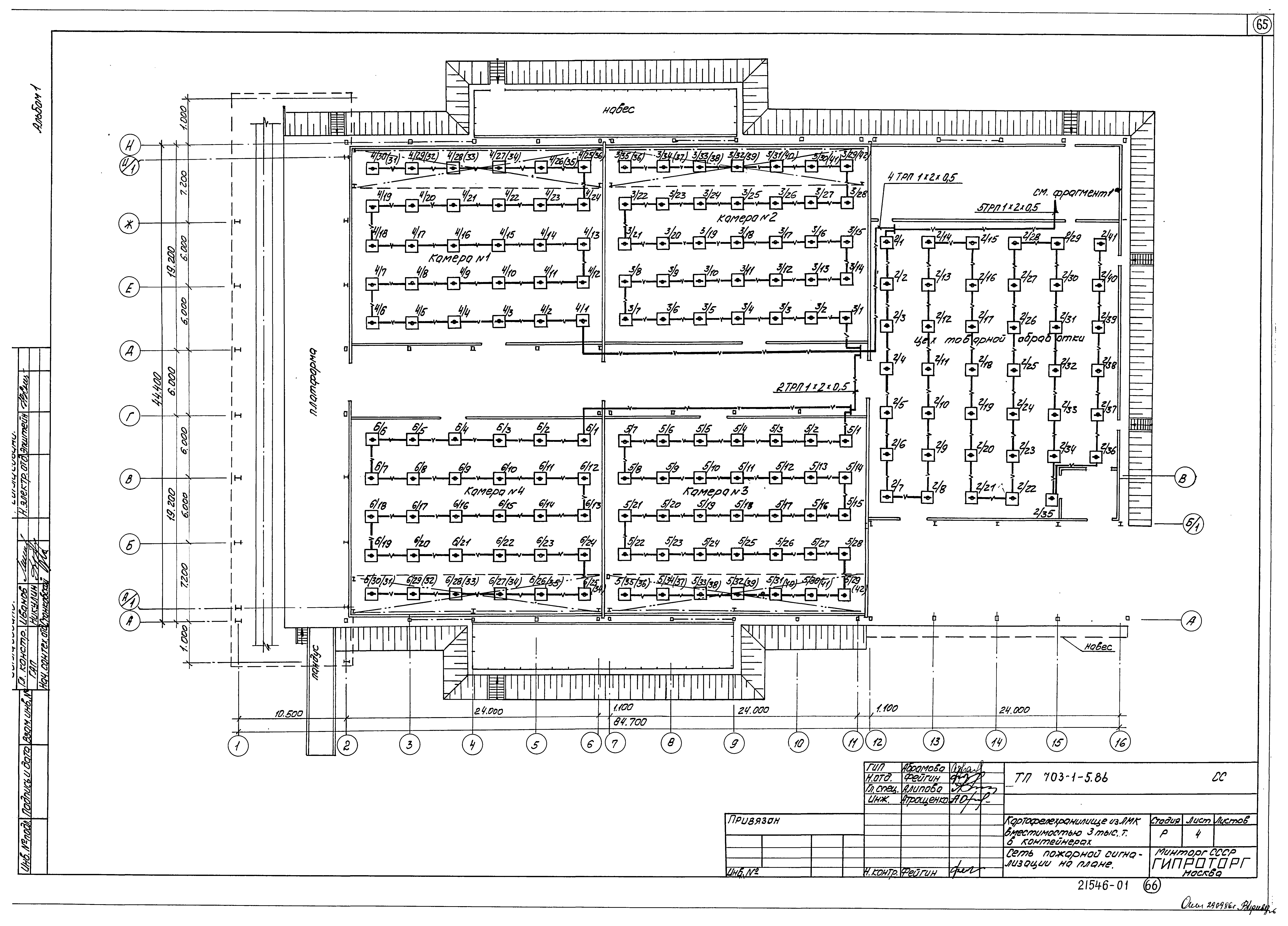
| Оглавление: | Содержание альбома ТП 703-1-5.86 ПЗ-1÷ПЗ8 Пояснительная записка ТП 703-1-5.86 ГП-1Схема генерального плана ТП 703-1-5.86 ТХ Технология ТП 703-1-5.86 ТХ-1 Общие данные ТП 703-1-5.86 ТХ-2 Принципиальная схема технологических процессов и механизации производства ТП 703-1-5.86 ТХ-3 План на отм. 0.000 с расстановкой технологического и подъемно-транспортного оборудования. Схема грузопотоков ТП 703-1-5.86 ТХ-4 Фрагменты цеха товарной обработки и камеры с расстановкой и привязкой оборудования ТП 703-1-5.86 ТХ-5 Разрезы А-А;Б-Б;В-В;Г-Г;Д-Д;Е-Е;Ж-Ж ТП 703-1-5.86 ТХ-6 Разрезы И-И;К-К;Л-Л;М-М ТП 703-1-5.86 ТХН Стол передвижной ТП 703-1-5.86 Х Холодоснабжение ТП 703-1-5.86 Х-1 Общие данные ТП 703-1-5.86 Х-2 План машинных отделений и холодильных камер. Разрез 1-1. Схема хладоновых трубопроводов ТП 703-1-5.86 ОВ Отопление и вентиляция ТП 703-1-5.86 ОВ-1 Общие данные ТП 703-1-5.86 ОВ-2 План на отм. 0.000 ТП 703-1-5.86 ОВ-3 План на отм. 0.000 между осями 11-11;Ж-И. План на отм. 0.000 между осями 12-13;Ж-И. Разрез 1-1. Узел управления ТП 703-1-5.86 ОВ-4 План установок П1-П8. Разрез 1-1;2-2. Узел крепления радиатора типа РСГ2. Крепление узла управления ТП 703-1-5.86 ОВ-5 Схема систем П-1÷П-9;ВЕ1÷ВЕ11. Схема системы теплоснабжения установки П-9. Схема системы отопления ТП 703-1-5.86 ОВН-1 Лючок для измерения параметров воздуха ТП 703-1-5.86 ОВН-2 Конструкция тепловой изоляции трубопроводов ТП 703-1-5.86 ОВН-3 Дроссельная втулка ТП 703-1-5.86 ВК Внутренние водопровод и канализация ТП 703-1-5.86 ВК-1 Общие данные ТП 703-1-5.86 ВК-2 План на отм. 0.000 с сетями В1;Т3;К2;К3 ТП 703-1-5.86 ВК-3 Фрагмент №1 на отм. 0.000 с сетями В1;Т3;К1;К3 ТП 703-1-5.86 ВК-4 Схемы систем В1 и Т3 ТП 703-1-5.86 ВК-5 Схема системы К2 ТП 703-1-5.86 ВКН-1 Конструкция изоляции трубопроводов ТП 703-1-5.86 ЭМ Электрооборудование ТП 703-1-5.86 ЭМ-1 Общие данные ТП 703-1-5.86 ЭМ-2 Общие данные ТП 703-1-5.86 ЭМ-3 Схема принципиальная питающей сети ТП 703-1-5.86 ЭМ-4 Схема принципиальная распределительной сети ТП 703-1-5.86 ЭМ-5 Схема принципиальная распределительной сети ТП 703-1-5.86 ЭМ-6 Схема принципиальная распределительной сети ТП 703-1-5.86 ЭМ-7 Схема принципиальная распределительной сети ТП 703-1-5.86 ЭМ-8 Схема принципиальная распределительной сети ТП 703-1-5.86 ЭМ-9 Схема принципиальная распределительной сети ТП 703-1-5.86 ЭМ-10 Схема электрическая принципиальная отключения вентсистем при пожаре ТП 703-1-5.86 ЭМ-11 Отключения вентсистем при пожаре. Магнитные пускатели приточных систем П1-П4. Схема соединений внешних проводок ТП 703-1-5.86 ЭМ-12 План распределительной сети в осях 1-12;А-И ТП 703-1-5.86 ЭМ-13 План распределительной сети в осях 12-16;А-И ТП 703-1-5.86 ЭМ-14 План сети оборудования ТП 703-1-5.86 ЭМ-15 План сети освещения фрагмента в осях 11-16;Ж-И ТП 703-1-5.86 Э-1 Опросный лист на изготовление щитов ВРУ1 ТП 703-1-5.86 АК Автоматизация ТП 703-1-5.86 АК-1 Общие данные ТП 703-1-5.86 АК-2 Приточная система П1. Схема автоматизации ТП 703-1-5.86 АК-3 Схема электрическая принципиальная подключения клапана КПШ приточной системы П1 ТП 703-1-5.86 АК-4 Схема электрическая принципиальная управления исполнительным механизмов заслонки систем ВЕ1 и вентилятором системы П1 ТП 703-1-5.86 АК-5 Контроль температуры в камере. Схема соединений внешних проводок ТП 703-1-5.86 АК-6 Вытяжная система ВЕ1(ВЕ2...ВЕ8). Схема соединений внешних проводок ТП 703-1-5.86 АК-7 Клапан КПШ. Схема соединений внешних проводок ТП 703-1-5.86 АК-8 Холодильные машины №1...№8. Схема соединений внешних проводок ТП 703-1-5.86 АК-9 "Среда 1-8". Схема подключений ТП 703-1-5.86 АК-10 Статив. Схема подключений ТП 703-1-5.86 АК-11 Картофелехранилище. План расположения (начало) ТП 703-1-5.86 АК-12 Картофелехранилище. План расположения (окончание) ТП 703-1-5.86 СС Связь и сигнализация ТП 703-1-5.86 СС-1 Общие данные ТП 703-1-5.86 СС-2 Сети связи и пожарной сигнализации на фрагментах №1 и 1ª ТП 703-1-5.86 СС-3 Сети связи на плане ТП 703-1-5.86 СС-4 Сеть пожарной сигнализации на плане |
| Разработан: | Гипроторг Гипропромтеплица |
| Утверждён: | 17.02.1986 Министерство торговли СССР (USSR Ministry of Commerce 31/П-3) |

































































