Скачать Типовой проект 703-1-5.86 Альбом 4. Конструкции металлическиеДата актуализации: 01.01.2021
|
| Обозначение: | Типовой проект 703-1-5.86 |
| Обозначение англ: | 703-1-5.86 |
| Статус: | не определен законодательством |
| Название рус.: | Альбом 4. Конструкции металлические |
| Дата добавления в базу: | 01.09.2013 |
| Дата актуализации: | 01.01.2021 |
| Дата введения: | 23.05.1986 |
| Дата окончания срока действия: | 30.06.2003 |
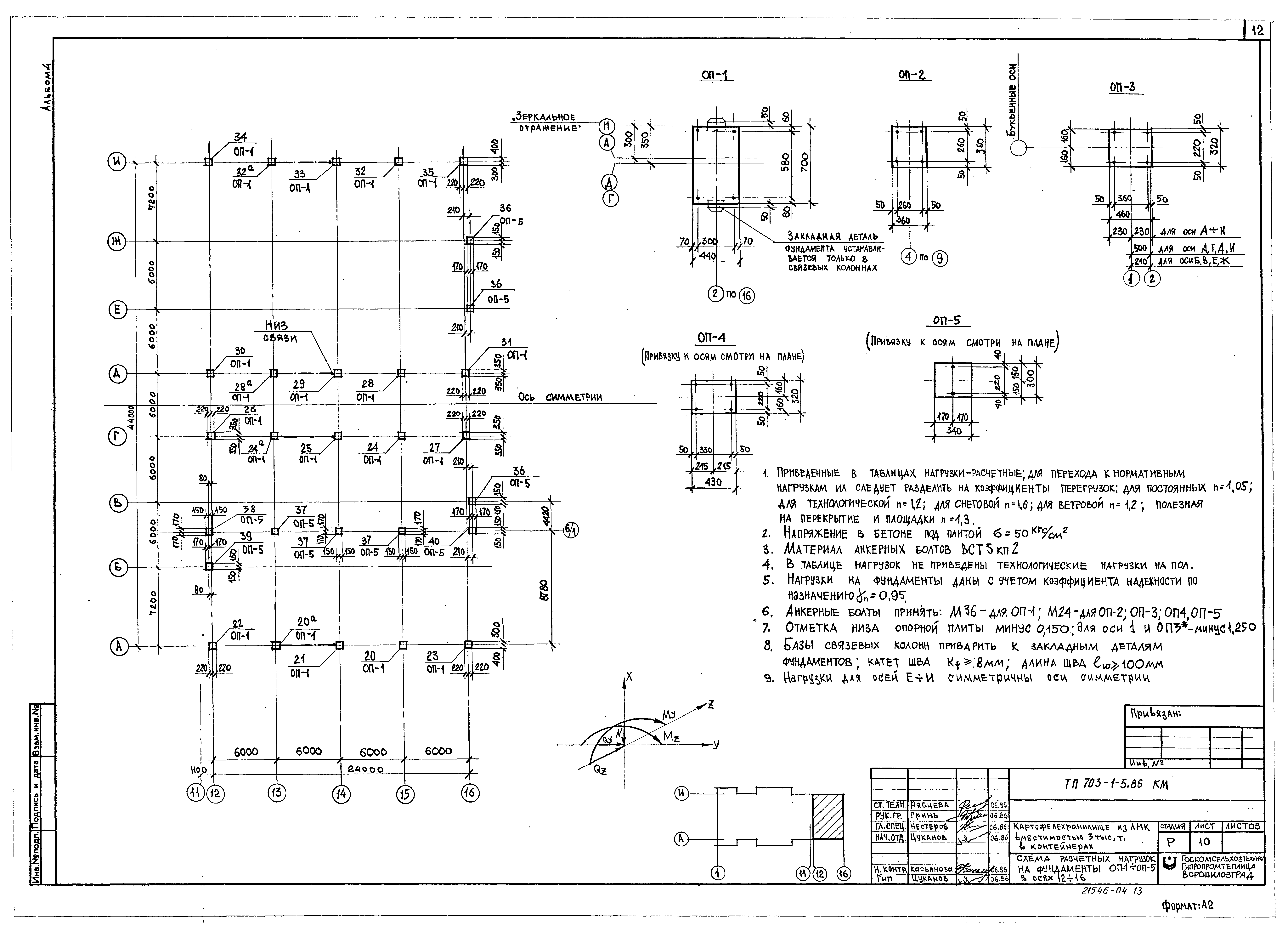
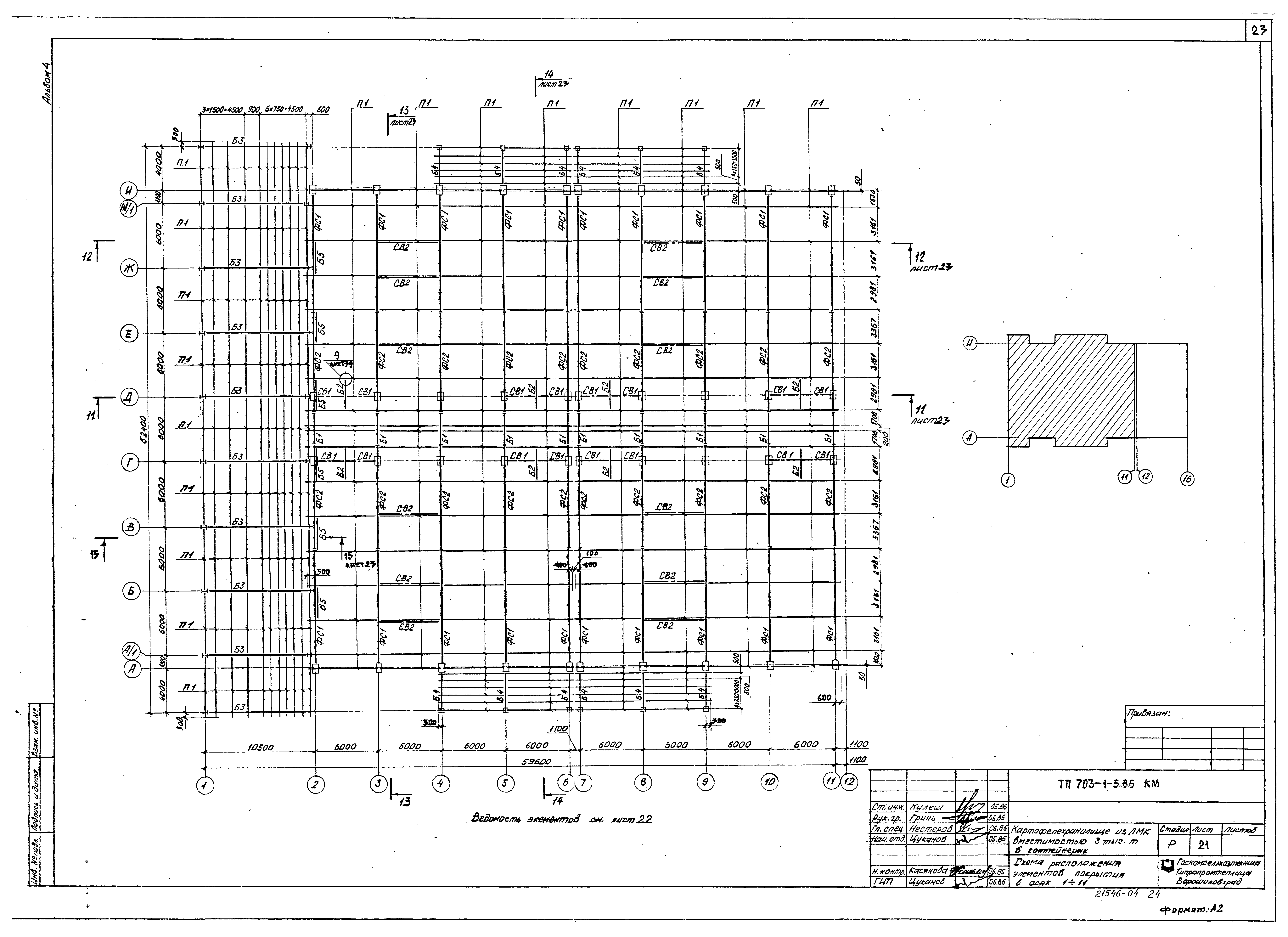
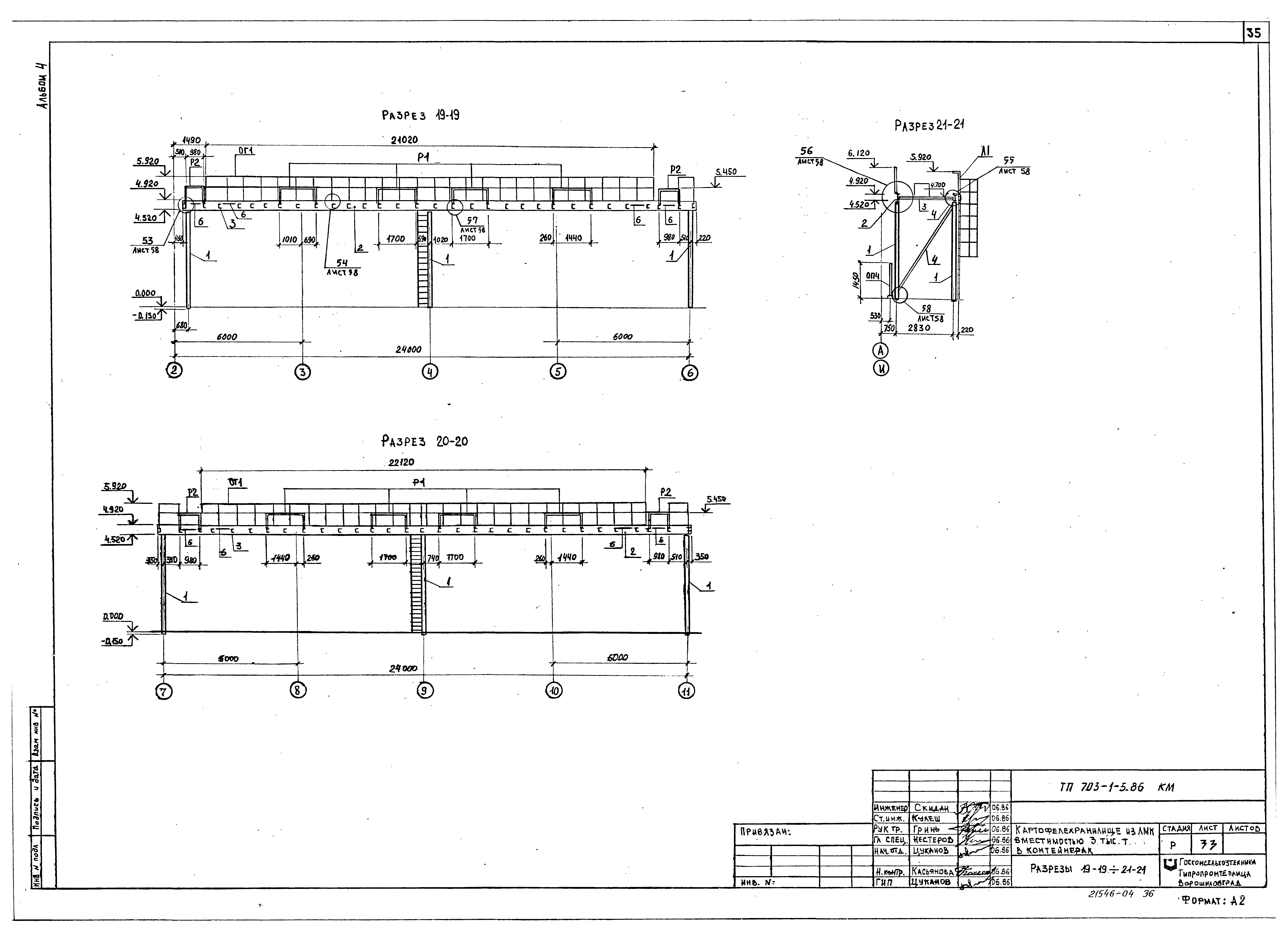
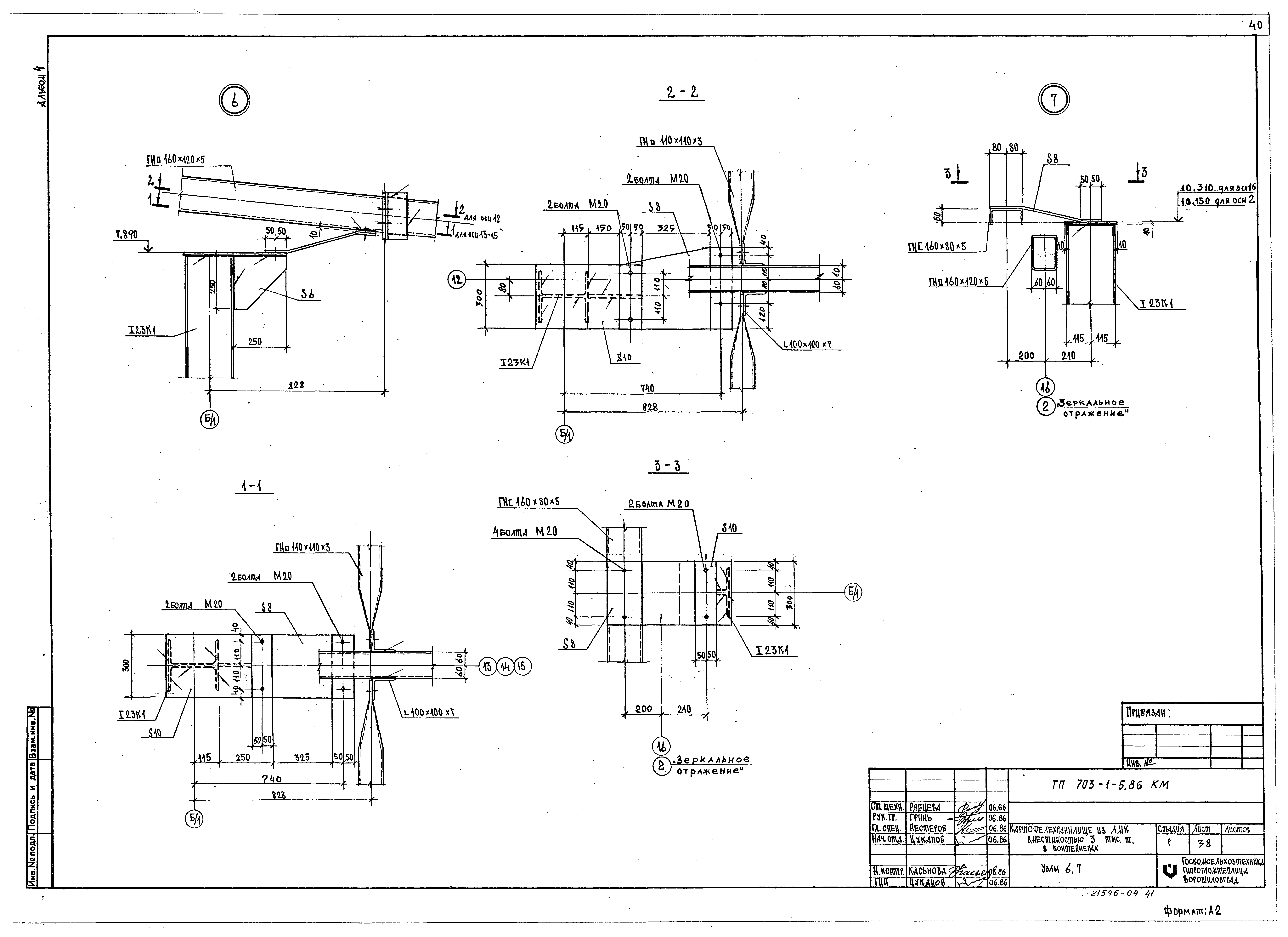
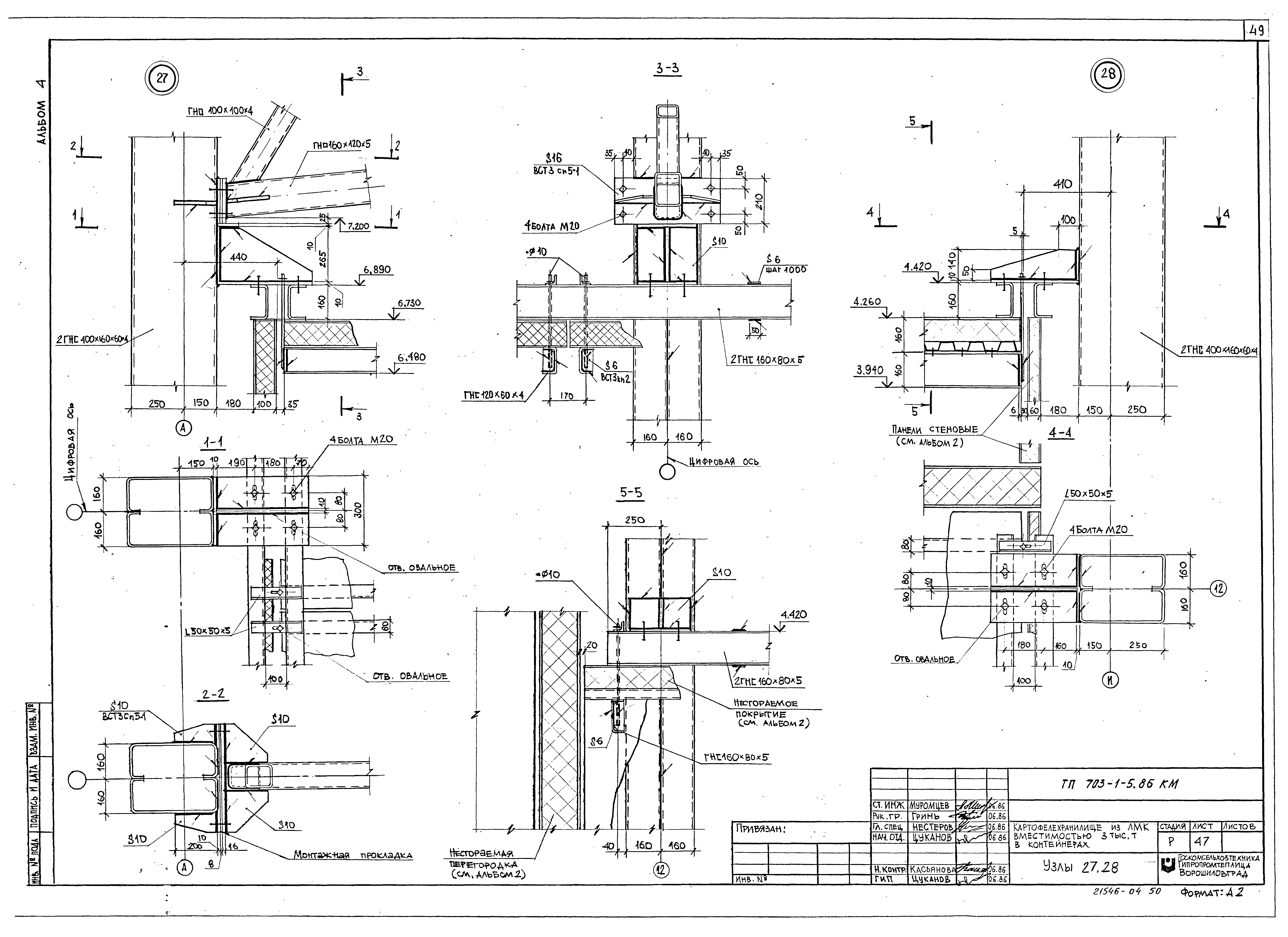
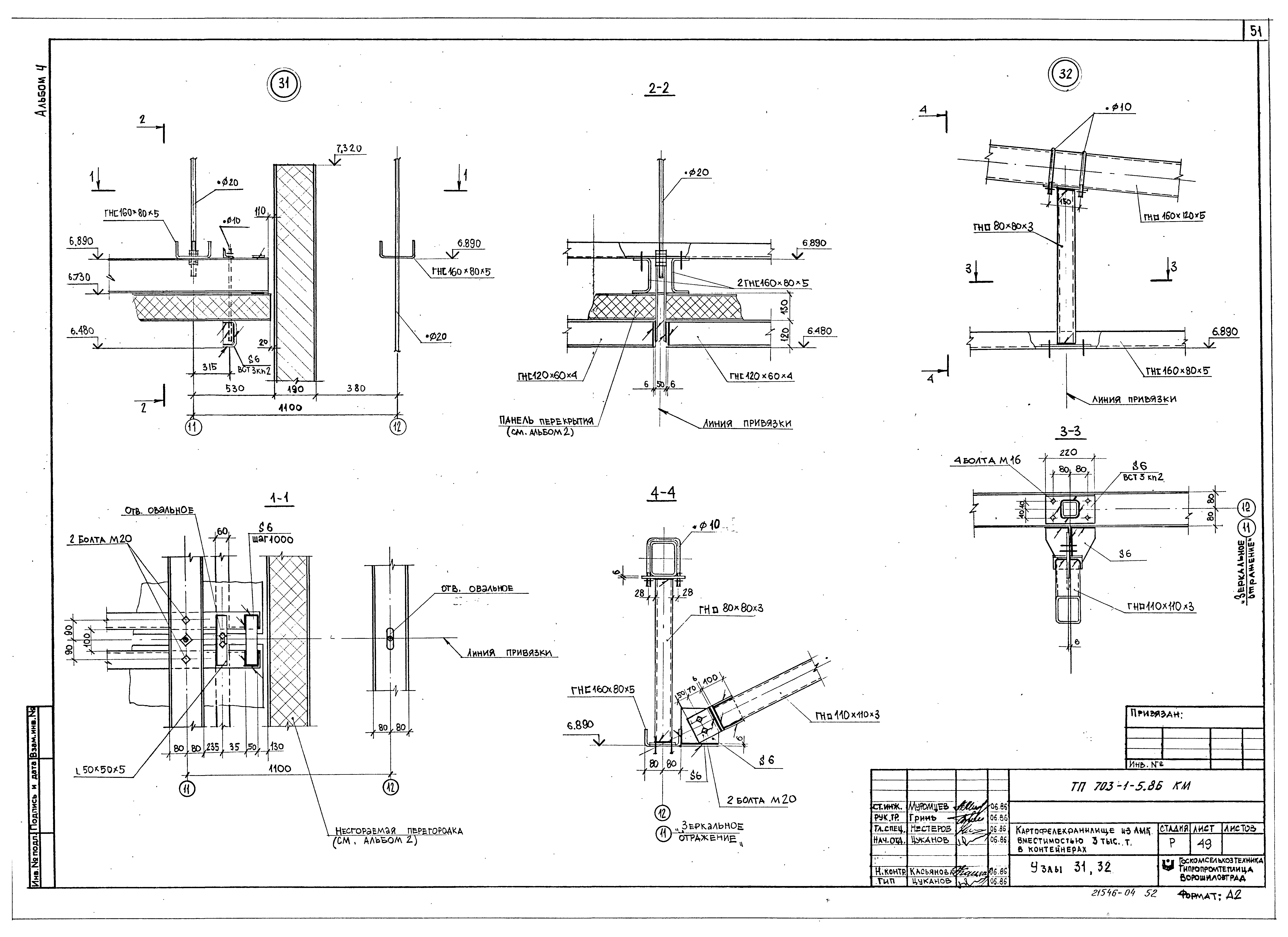
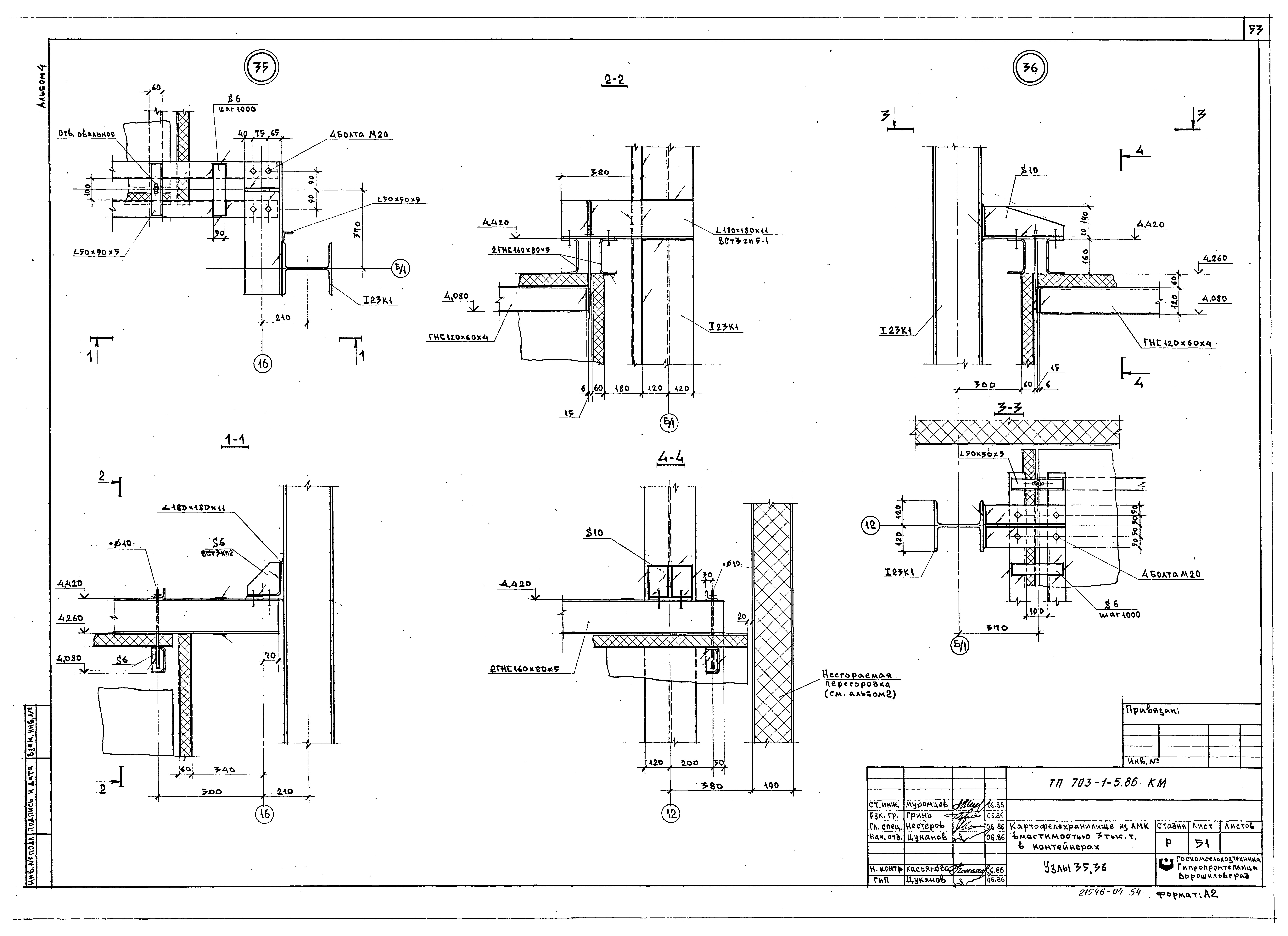
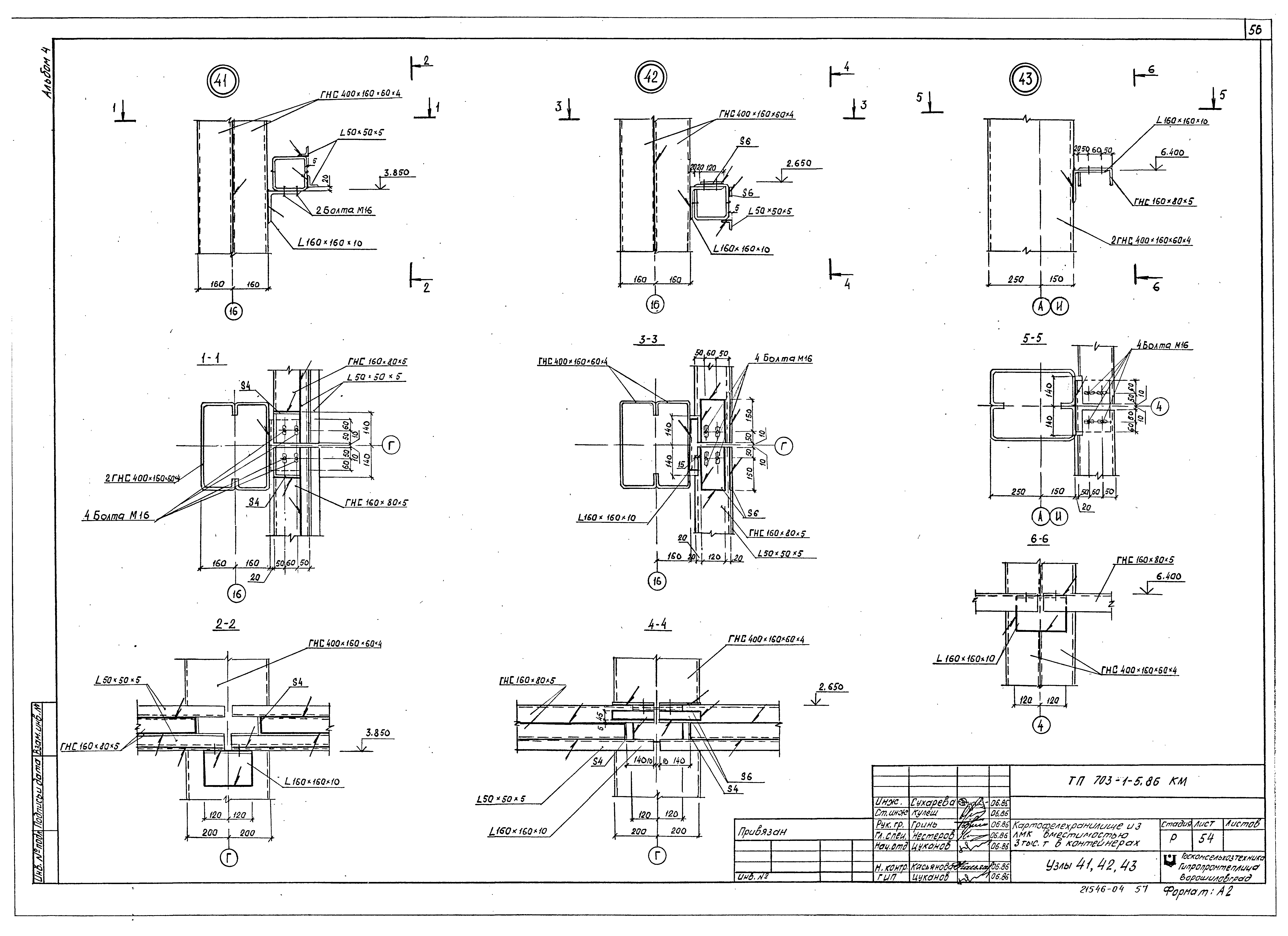
| Оглавление: | ТП 703-1-5.86 Титульный лист ТП 703-1-5.86 Содержание альбома ТП 703-1-5.86 КМ-1 Общие данные (начало) ТП 703-1-5.86 КМ-2 Общие данные (продолжение) ТП 703-1-5.86 КМ-3 Общие данные (окончание) ТП 703-1-5.86 КМ-4 Техническая спецификация металла (начало) ТП 703-1-5.86 КМ-5 Техническая спецификация металла (продолжение) ТП 703-1-5.86 КМ-6 Техническая спецификация металла (продолжение) ТП 703-1-5.86 КМ-7 Техническая спецификация металла (окончание) ТП 703-1-5.86 КМ-8 Ведомость металлоконструкций по видам профилей ТП 703-1-5.86 КМ-9 Схема расчетных нагрузок на фундаменты ОП1-ОП5 в осях 1-11 ТП 703-1-5.86 КМ-10 Схема расчетных нагрузок на фундаменты ОП1-ОП5 в осях 12-16 ТП 703-1-5.86 КМ-11 Таблица нагрузок на фундаменты (начало) ТП 703-1-5.86 КМ-12 Таблица нагрузок на фундаменты (продолжение) ТП 703-1-5.86 КМ-13 Таблица нагрузок на фундаменты (окончание) ТП 703-1-5.86 КМ-14 Схема расположения баз колонн. Фрагмент 1-6 ТП 703-1-5.86 КМ-15 Типы баз колонн. Сечения 1-1÷6-6 ТП 703-1-5.86 КМ-16 Схема расположения колонн и связей в осях 1-11 ТП 703-1-5.86 КМ-17 Схема расположения колонн и связей в осях 12-16 ТП 703-1-5.86 КМ-18 Разрезы 1-1;2-2 ТП 703-1-5.86 КМ-19 Разрезы 3-3;4-4;5-5 ТП 703-1-5.86 КМ-20 Разрезы 6-6;7-7;8-8;9-9;10-10 ТП 703-1-5.86 КМ-21 Схема расположения элементов покрытия в осях 1-11 ТП 703-1-5.86 КМ-22 Схема расположения элементов покрытия в осях 12-16 ТП 703-1-5.86 КМ-23 Разрезы 11-11÷15-15 ТП 703-1-5.86 КМ-24 Схема раскладки настила каркаса и навесов. Стык постов. Фрагмент1 ТП 703-1-5.86 КМ-25 Схема расположения элементов подвесного перекрытия ТП 703-1-5.86 КМ-26 Схема расположения элементов подвесного перекрытия. Разрезы 16-16;17-17;18-18 ТП 703-1-5.86 КМ-27 Схема расположения ригелей фахверка по осям А;И;16 ТП 703-1-5.86 КМ-28 Схема расположения ригелей фахверка по осям 2;Б/1 между осями 11-12 и 6-7 ТП 703-1-5.86 КМ-29 Схема расположения ригелей фахверка по осям Г и Д ТП 703-1-5.86 КМ-30 Схема расположения крепления коммуникаций ТП 703-1-5.86 КМ-31 Опоры ОП1-ОП3. Сечения 1-1÷9-9 ТП 703-1-5.86 КМ-32 Площадки металлические ПМ1-ПМ4 ТП 703-1-5.86 КМ-33 Разрезы 19-19÷21-21 ТП 703-1-5.86 КМ-34 Рамы Р1,Р2. Лестница Л1. Опора ОП4 ТП 703-1-5.86 КМ-35 Схемы расположения лестниц Л2,Л3,Л4 и площадок ПМ5 ТП 703-1-5.86 КМ-36 Узлы 1,2 ТП 703-1-5.86 КМ-37 Узлы 3,4,5 ТП 703-1-5.86 КМ-38 Узлы 6,7 ТП 703-1-5.86 КМ-39 Узлы 8,9 ТП 703-1-5.86 КМ-40 Узлы 10,11 ТП 703-1-5.86 КМ-41 Узлы 12,13,14 ТП 703-1-5.86 КМ-42 Узлы 15,16 ТП 703-1-5.86 КМ-43 Узлы 17,18,19 ТП 703-1-5.86 КМ-44 Узлы 20,21,22 ТП 703-1-5.86 КМ-45 Узлы 23,24 ТП 703-1-5.86 КМ-46 Узлы 25,26 ТП 703-1-5.86 КМ-47 Узлы 27,28 ТП 703-1-5.86 КМ-48 Узлы 29,30 ТП 703-1-5.86 КМ-49 Узлы 31,32 ТП 703-1-5.86 КМ-50 Узлы 33,34 ТП 703-1-5.86 КМ-51 Узлы 35,36 ТП 703-1-5.86 КМ-52 Узлы 37,38,39 ТП 703-1-5.86 КМ-53 Узлы 40 ТП 703-1-5.86 КМ-54 Узлы 41,42,43 ТП 703-1-5.86 КМ-55 Узлы 44,45 ТП 703-1-5.86 КМ-56 Узлы 46,47,48,49 ТП 703-1-5.86 КМ-57 Узлы 50,51,52 ТП 703-1-5.86 КМ-58 Узлы 53-39 ТП 703-1-5.86 КМ-59 Фермы ФС1,ФС2. Узлы 60,61,62,63,64,65,66,67 ТП 703-1-5.86 КМ-60 Схема расположения ворот. Узлы 68-70 |
| Разработан: | Гипропромтеплица |
| Утверждён: | 17.02.1986 Министерство торговли СССР (USSR Ministry of Commerce 31/П-3) |






























































