Скачать Типовой проект 703-1-6.86 Альбом 1. Пояснительная записка. Схема генерального плана. Технология. Холодоснабжение. Отопление и вентиляция. Внутренние водопровод и канализация. Электрооборудование. Автоматизация. Связь и сигнализацияДата актуализации: 01.01.2021
|
| Обозначение: | Типовой проект 703-1-6.86 |
| Обозначение англ: | 703-1-6.86 |
| Статус: | не определен законодательством |
| Название рус.: | Альбом 1. Пояснительная записка. Схема генерального плана. Технология. Холодоснабжение. Отопление и вентиляция. Внутренние водопровод и канализация. Электрооборудование. Автоматизация. Связь и сигнализация |
| Дата добавления в базу: | 01.09.2013 |
| Дата актуализации: | 01.01.2021 |
| Дата введения: | 23.05.1986 |
| Дата окончания срока действия: | 30.06.2003 |
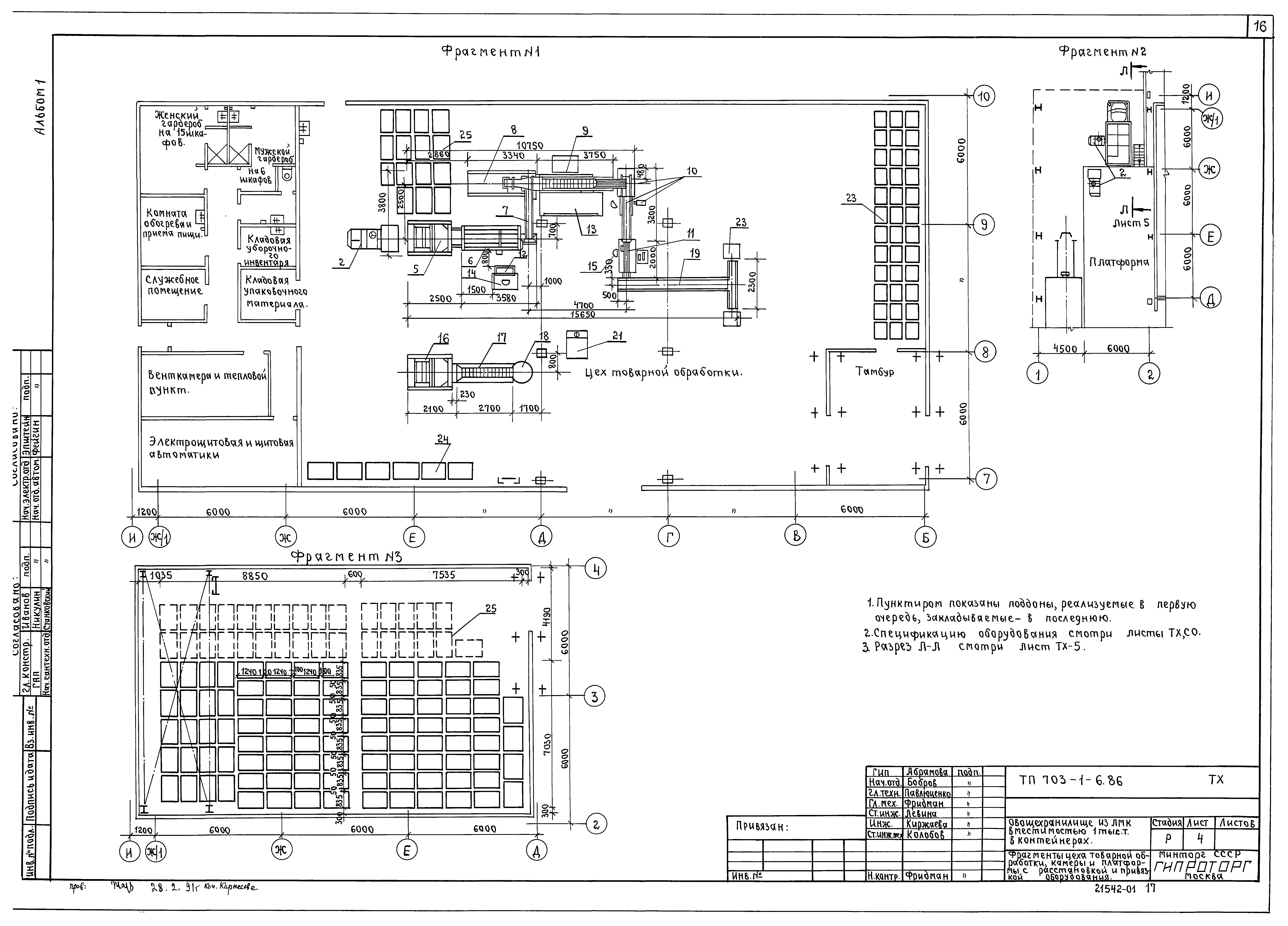
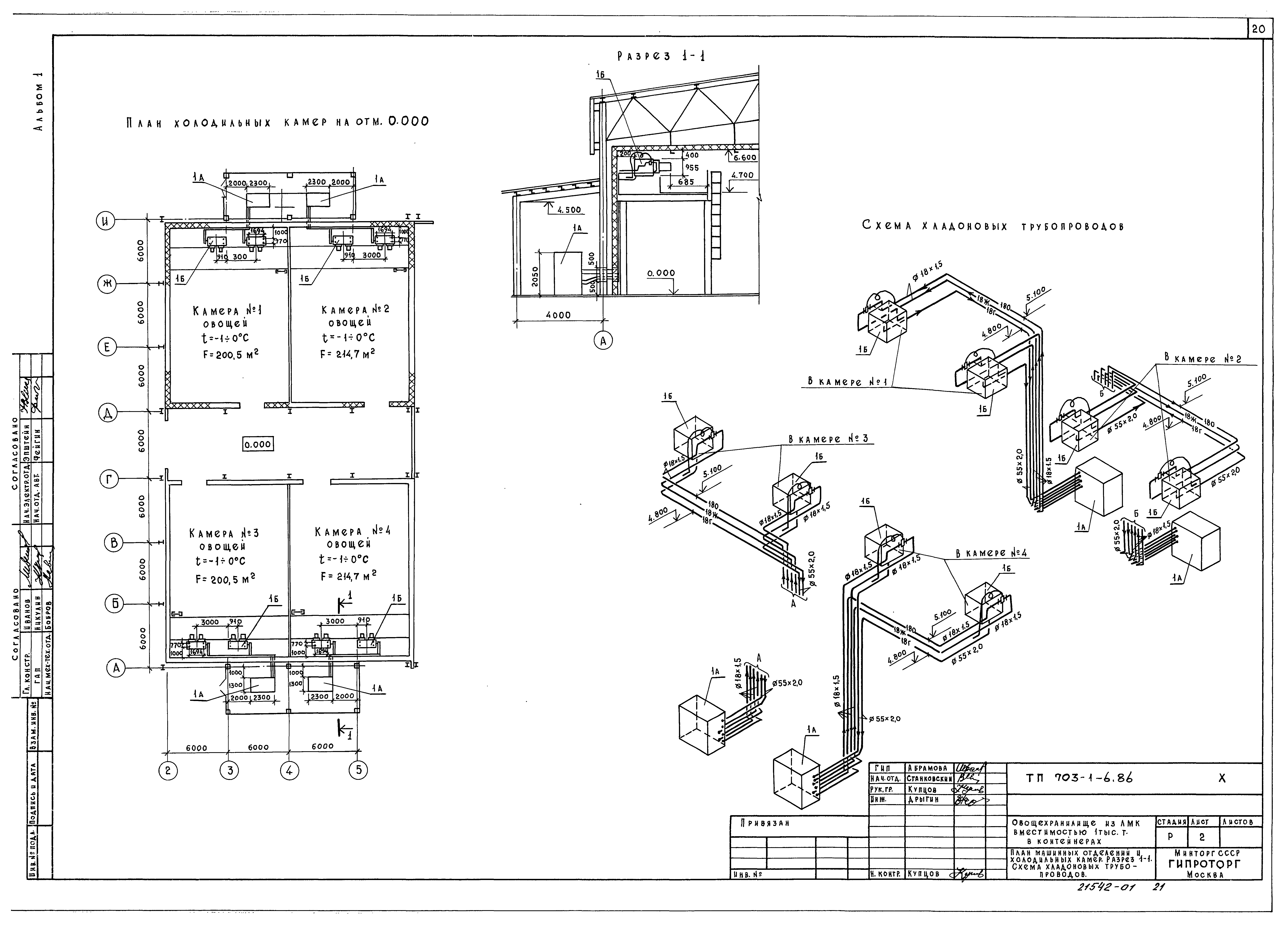
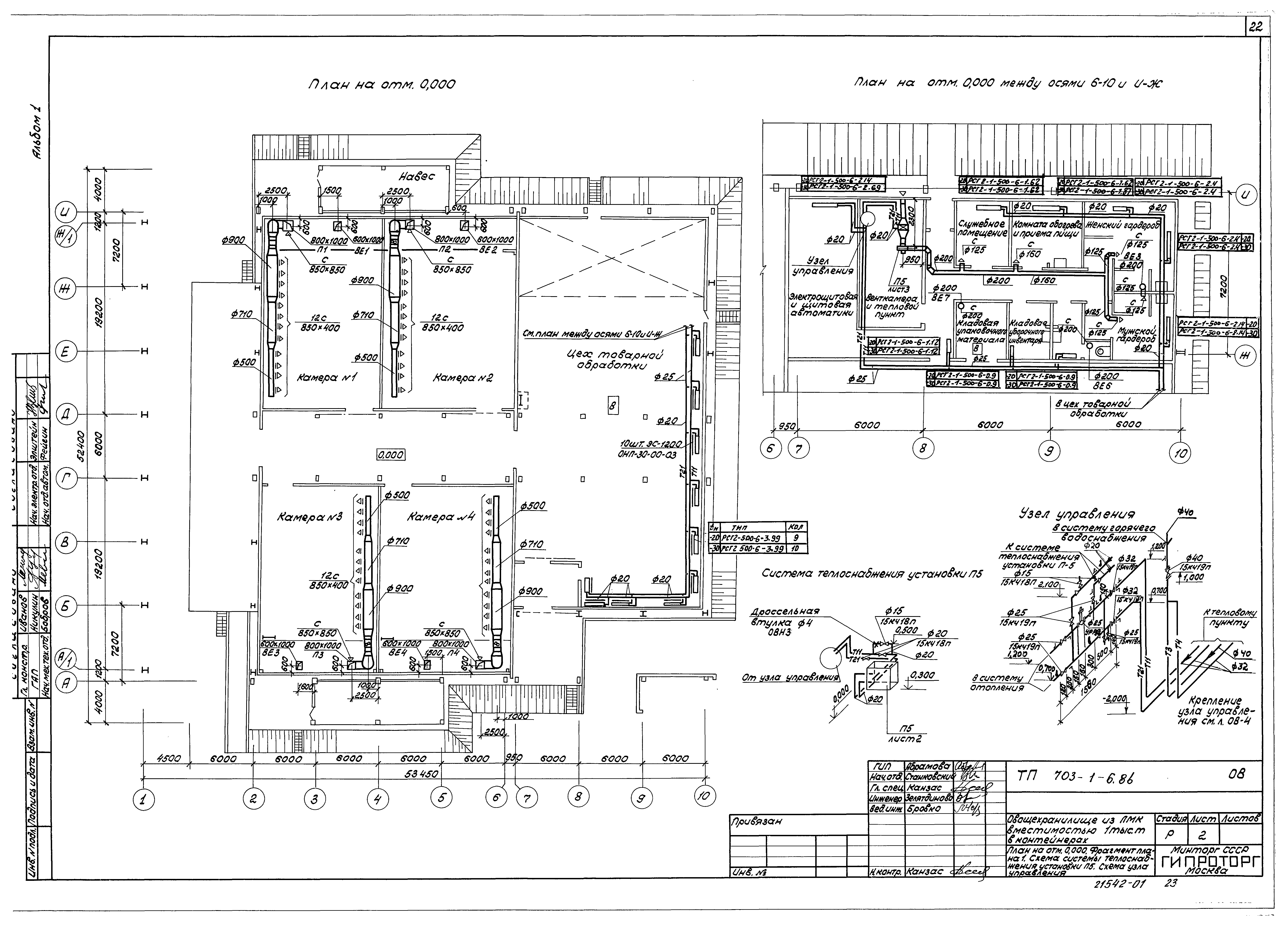
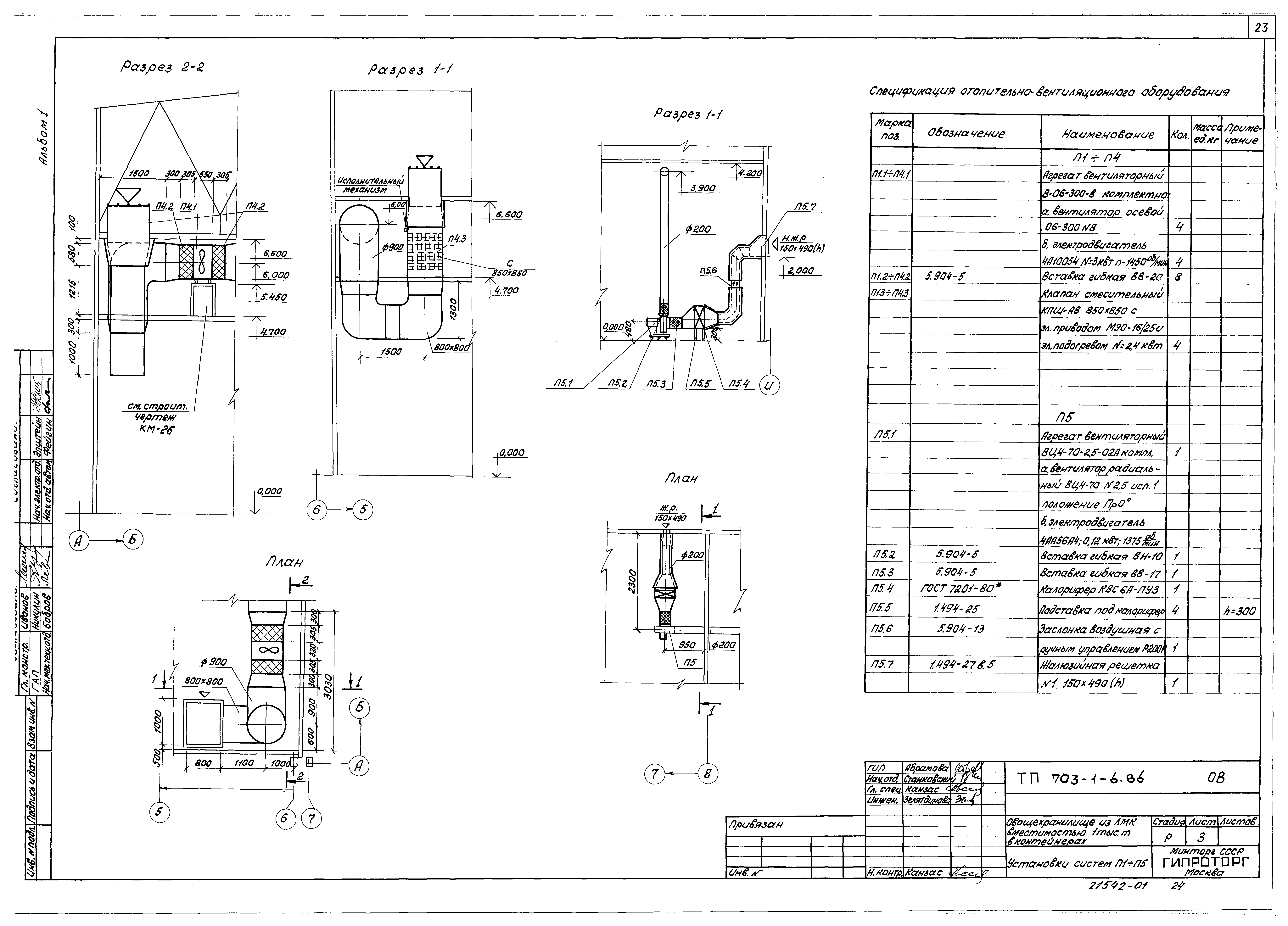
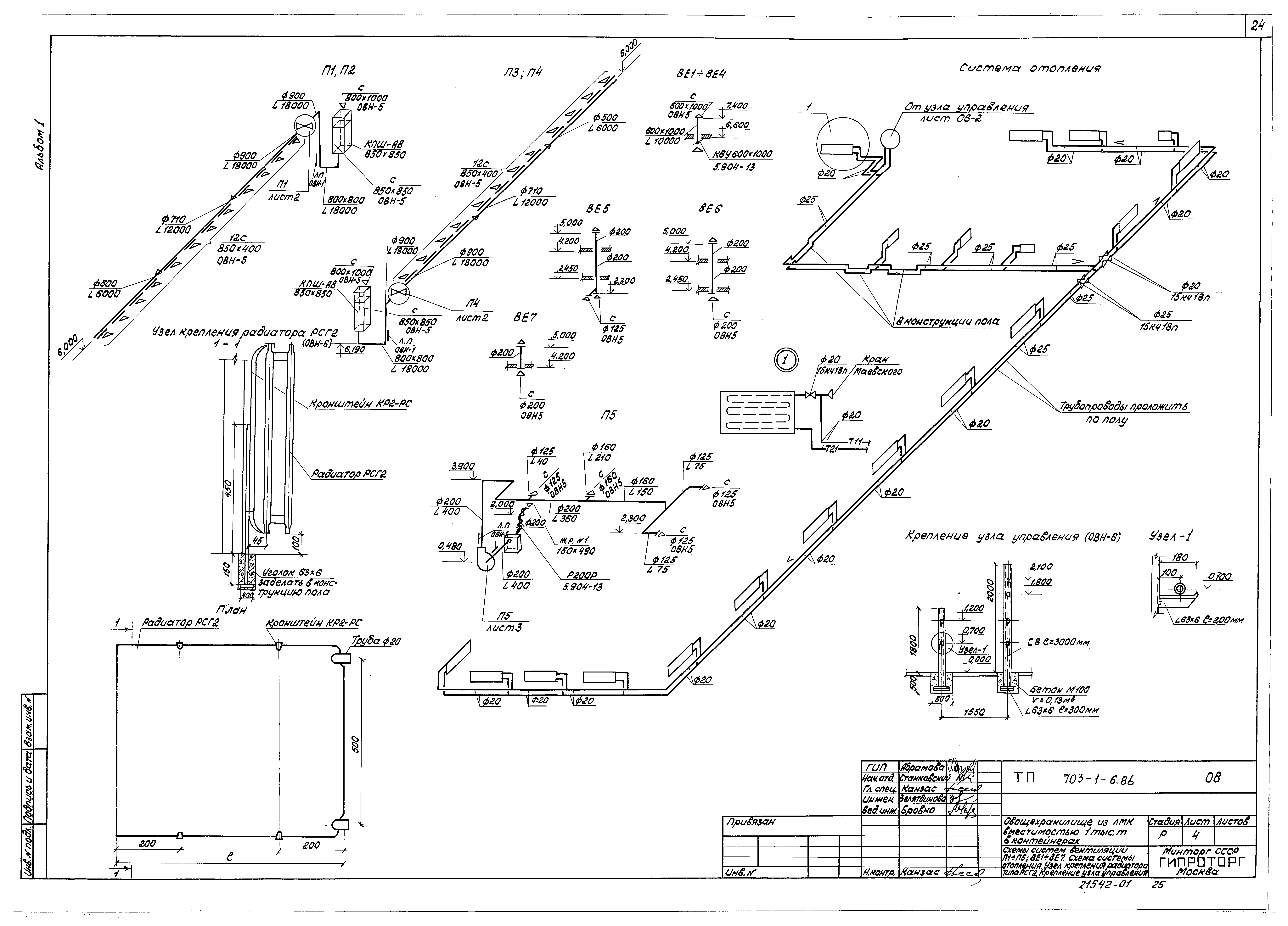
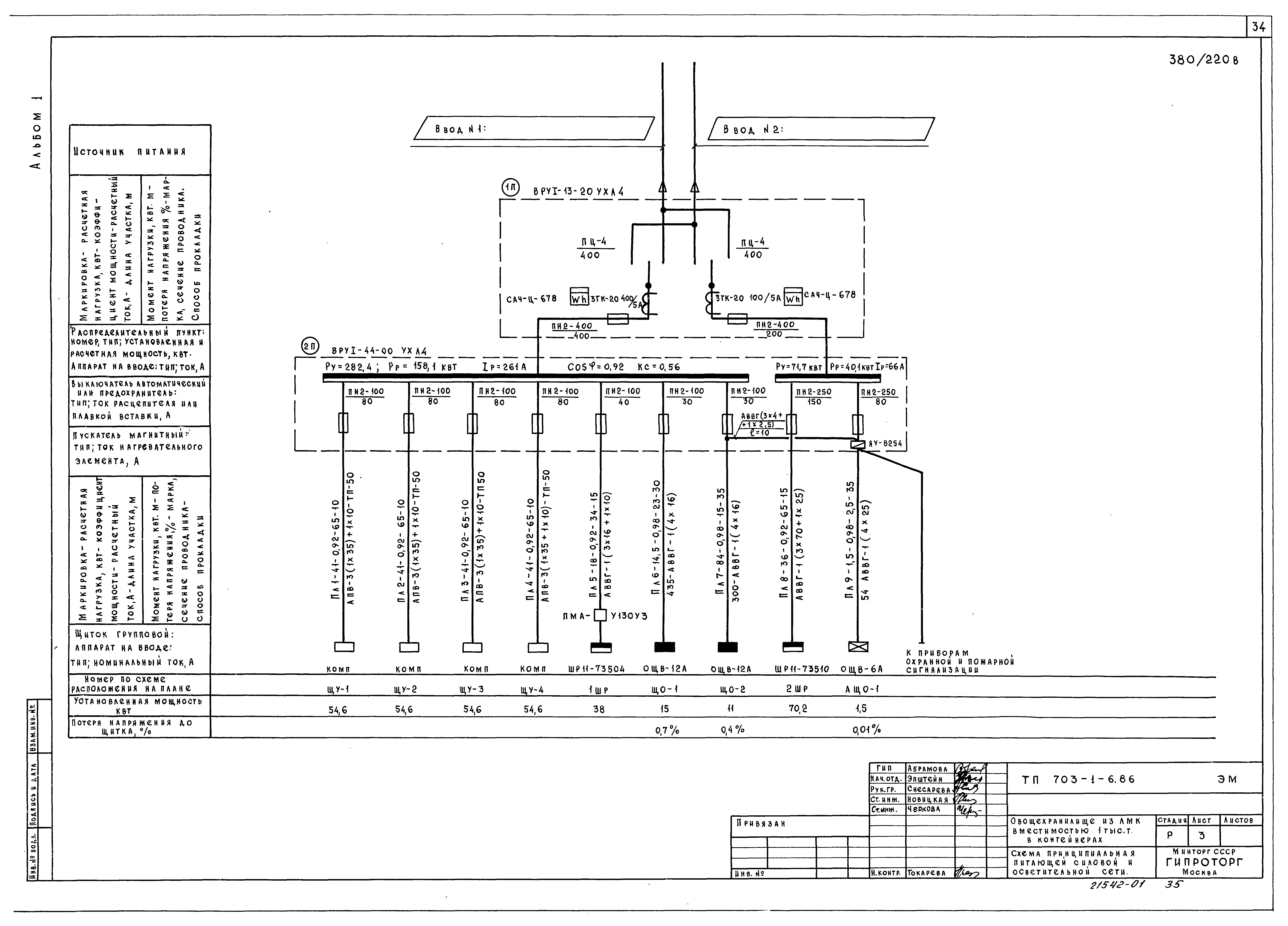
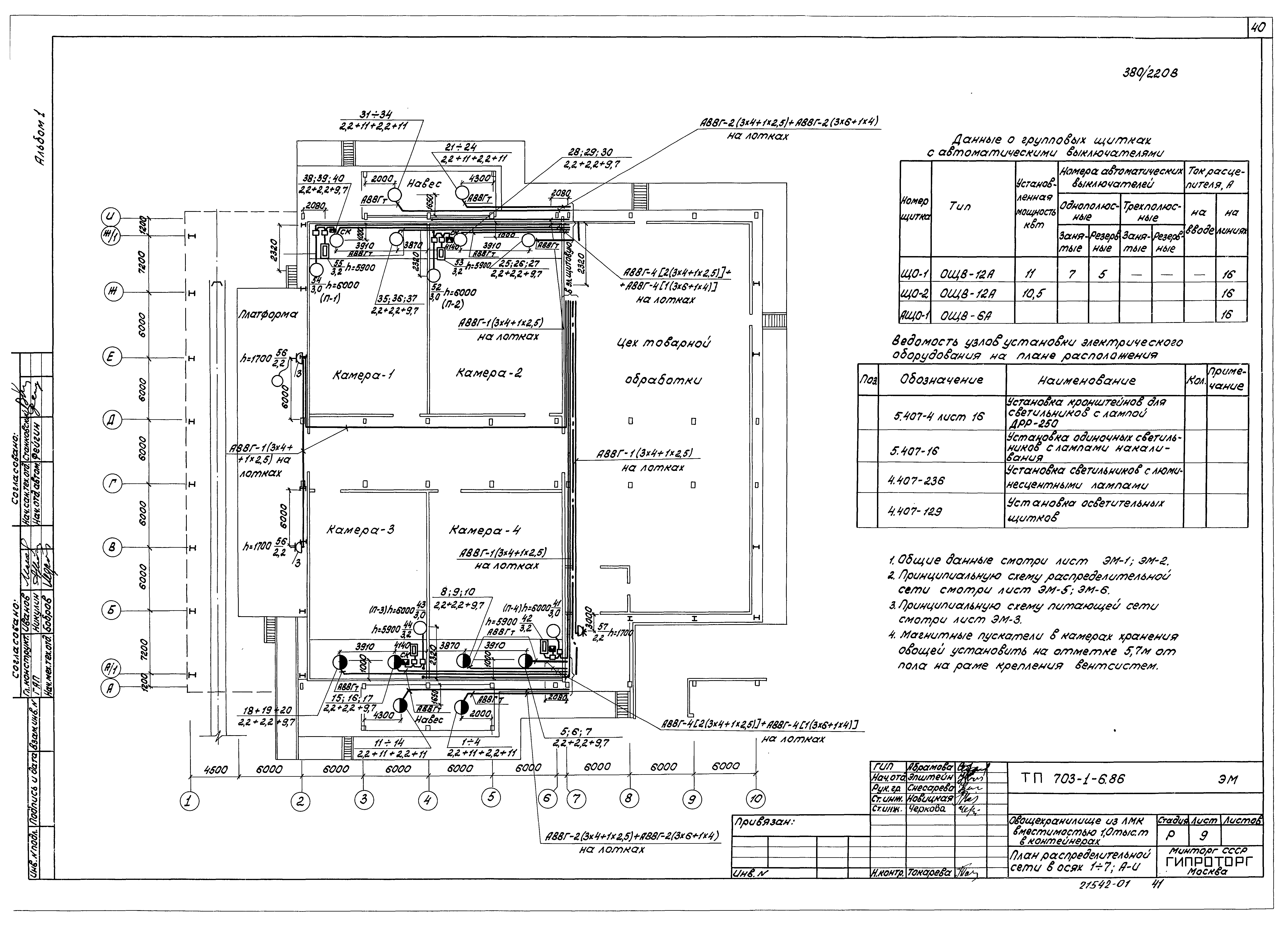
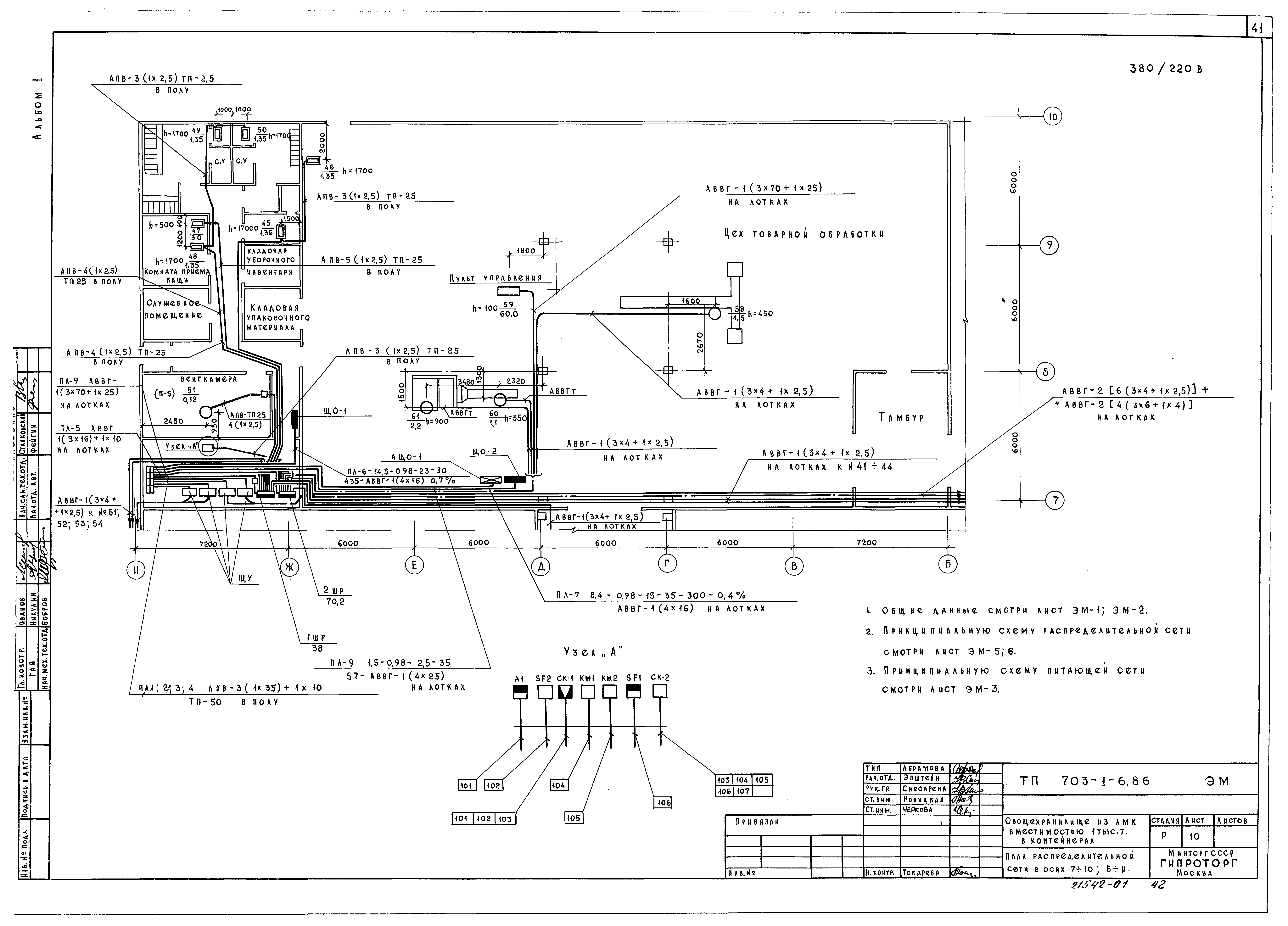
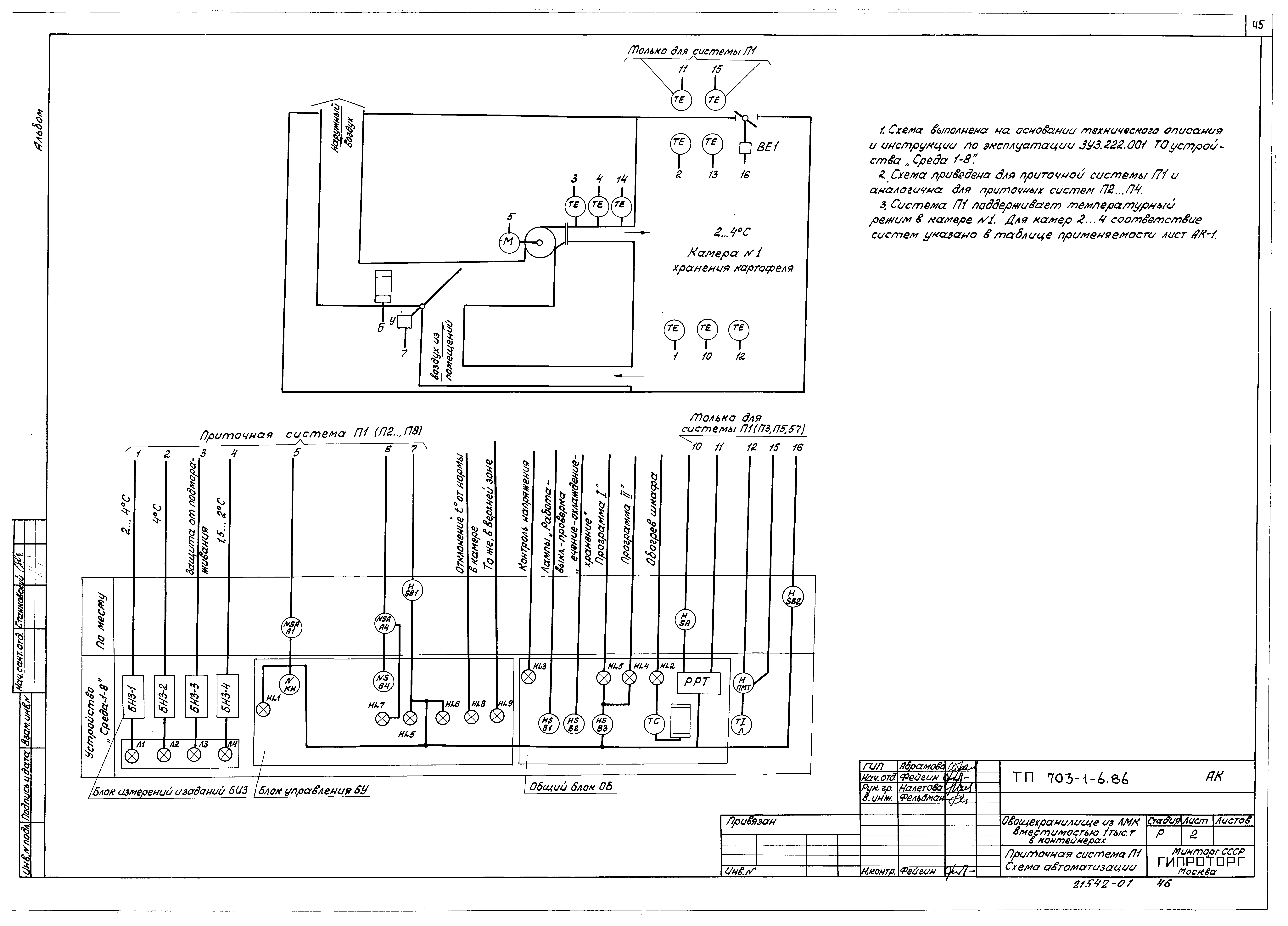
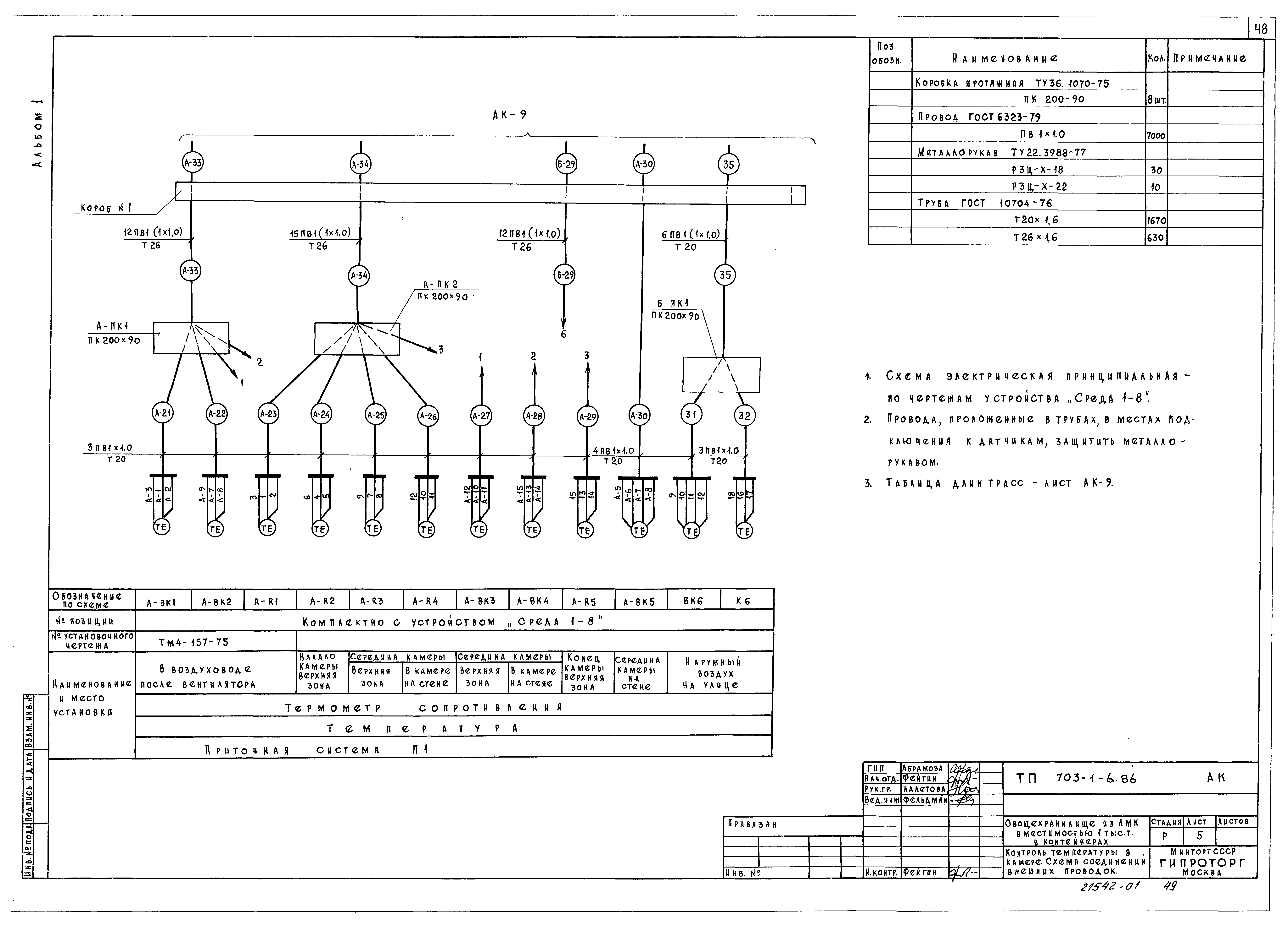
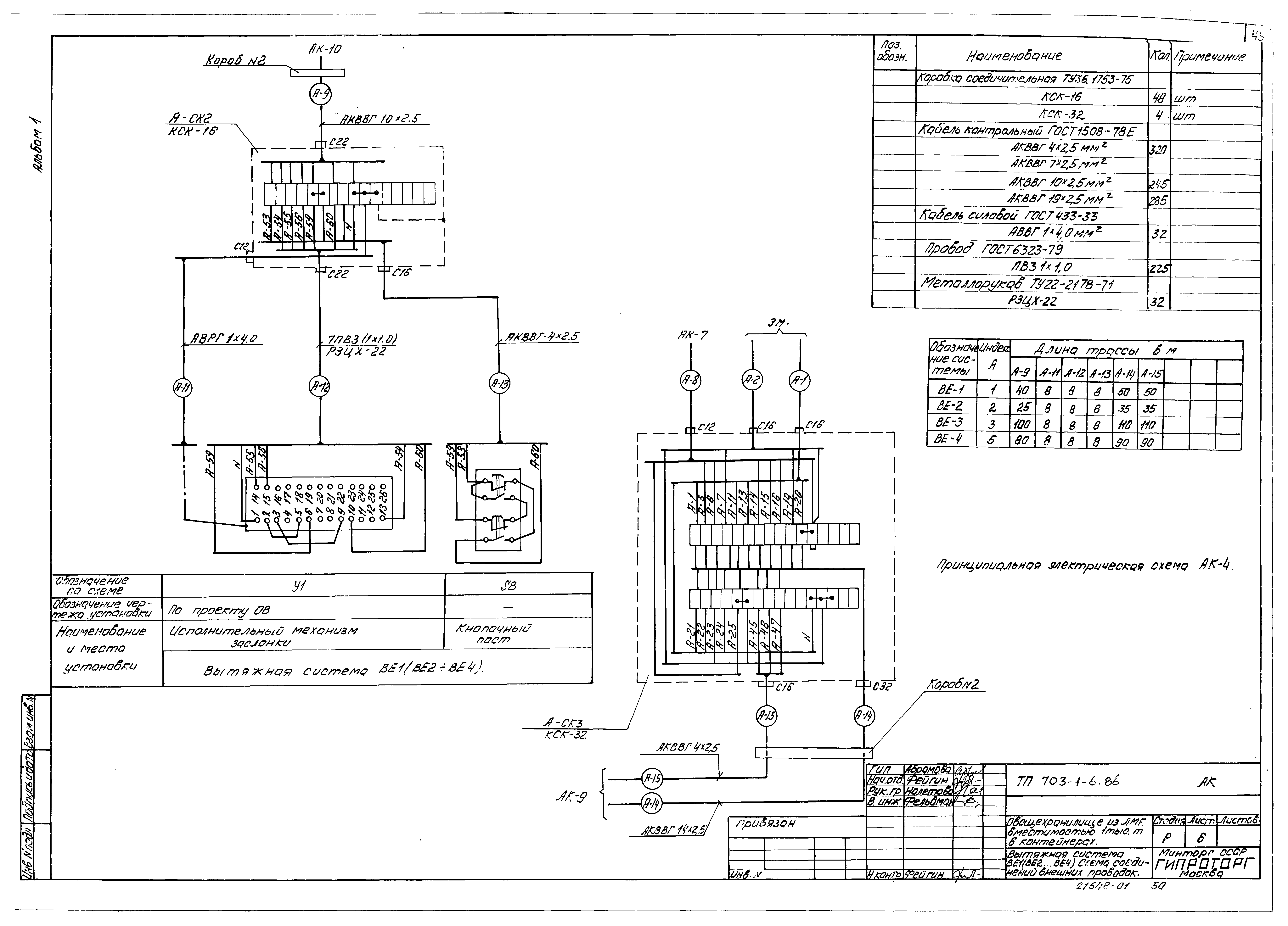
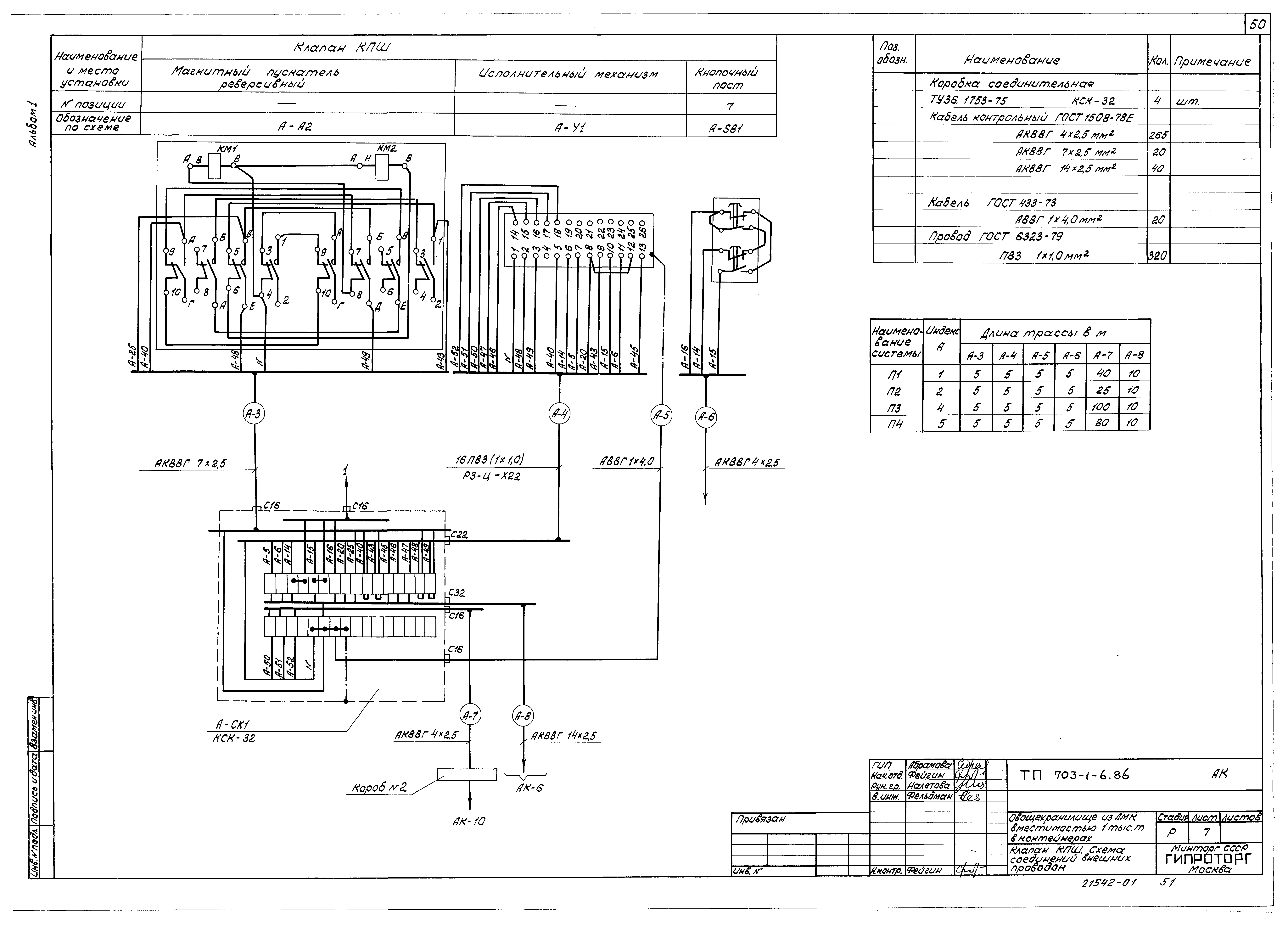
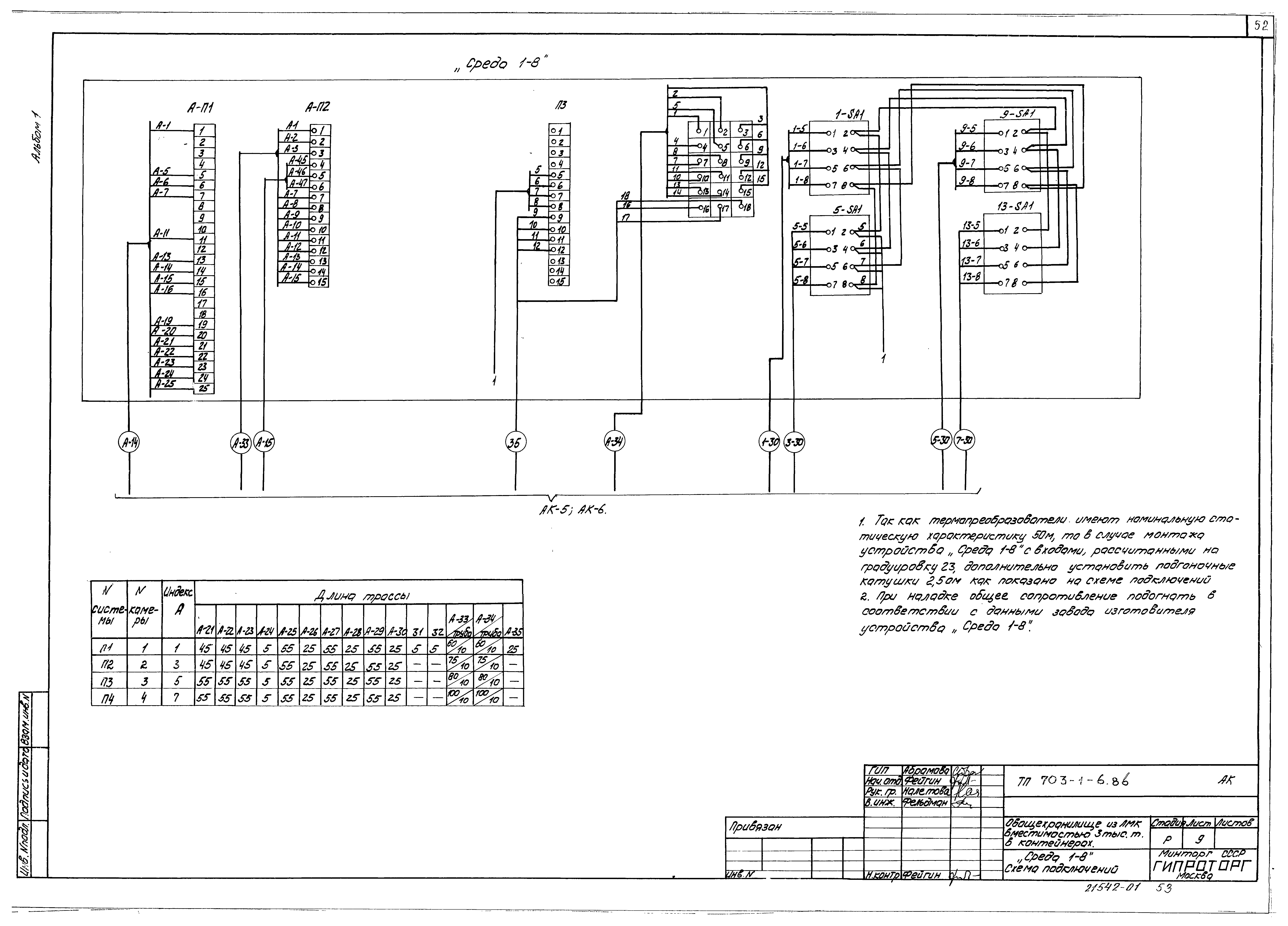
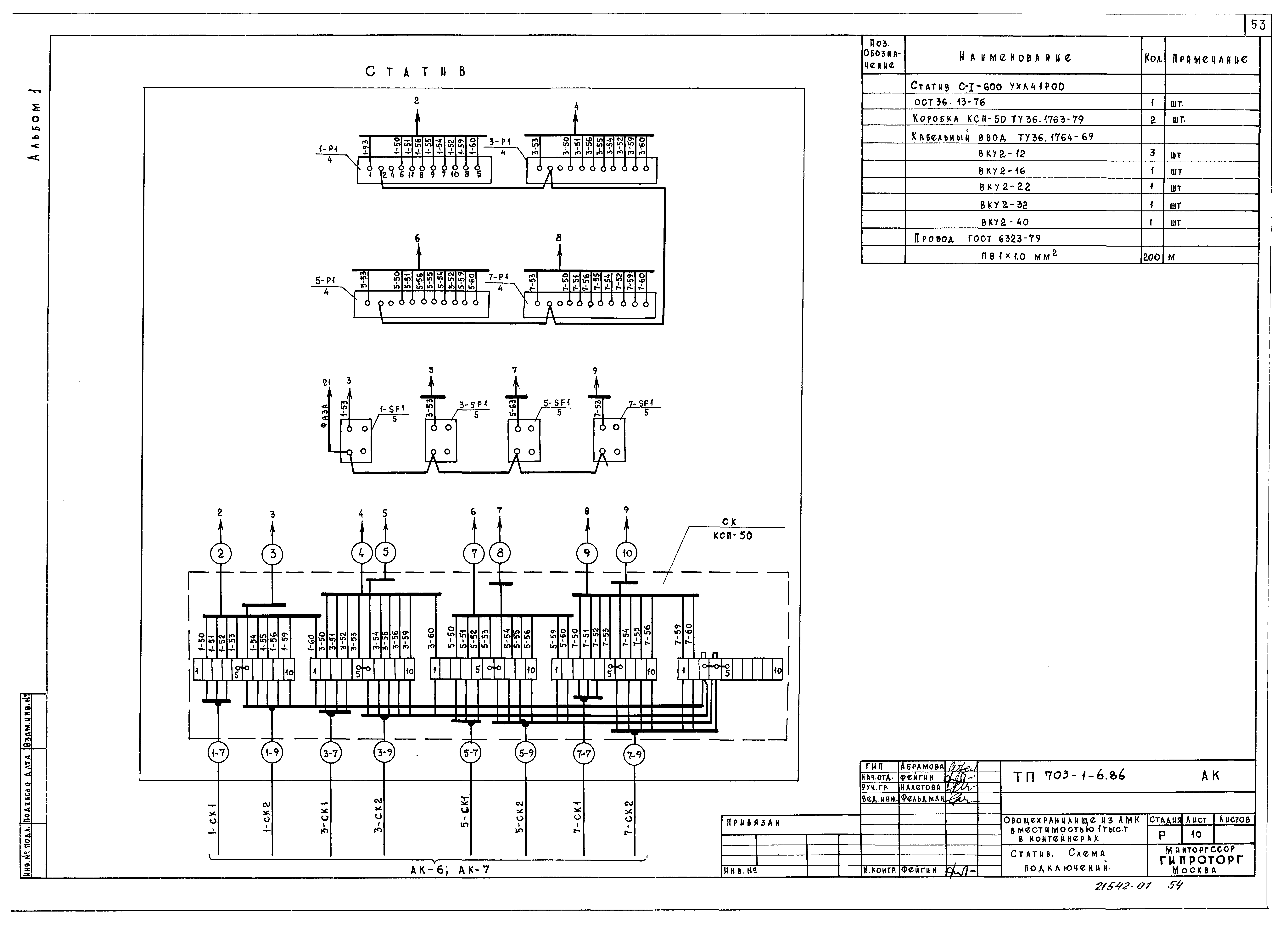
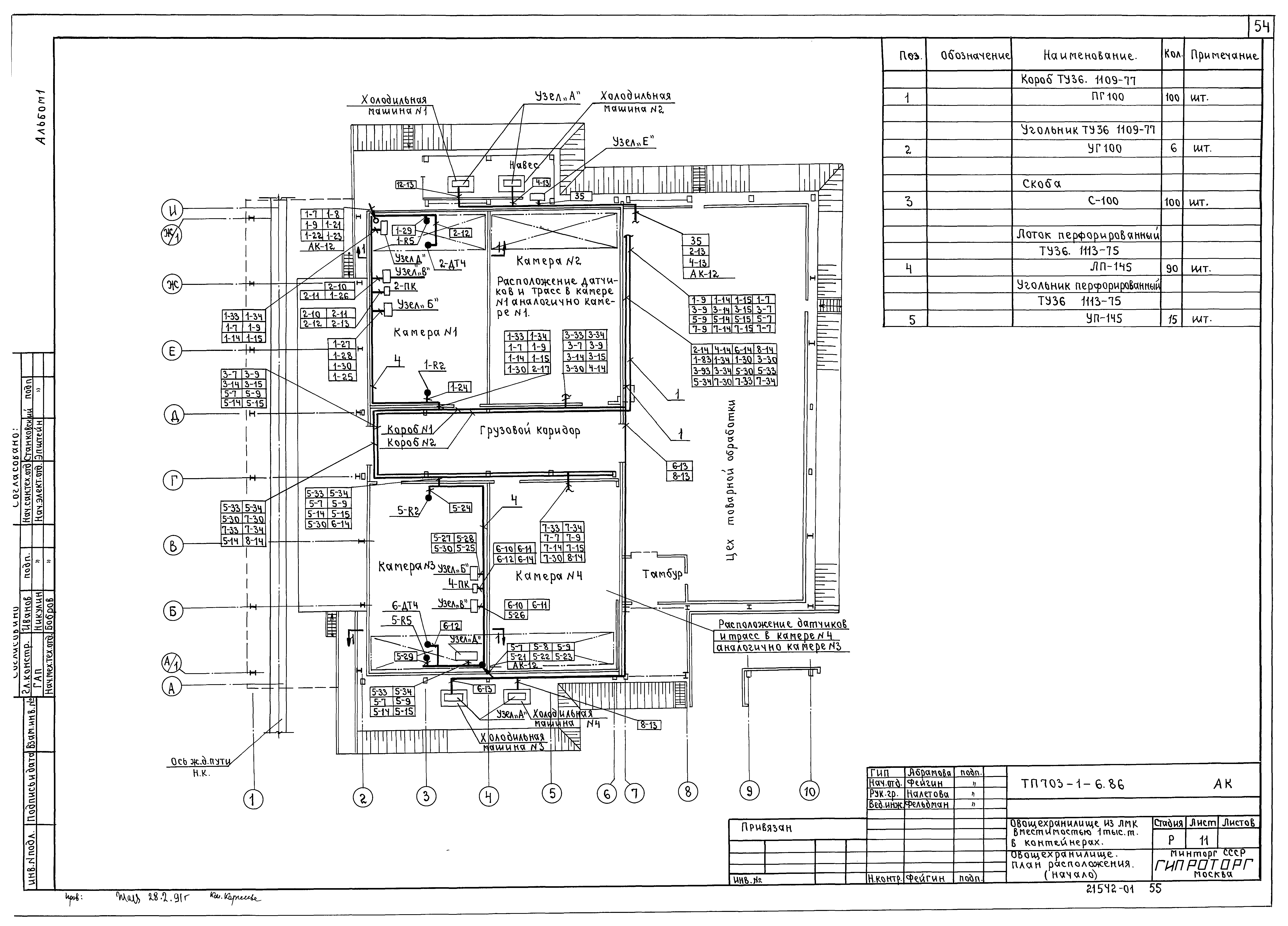
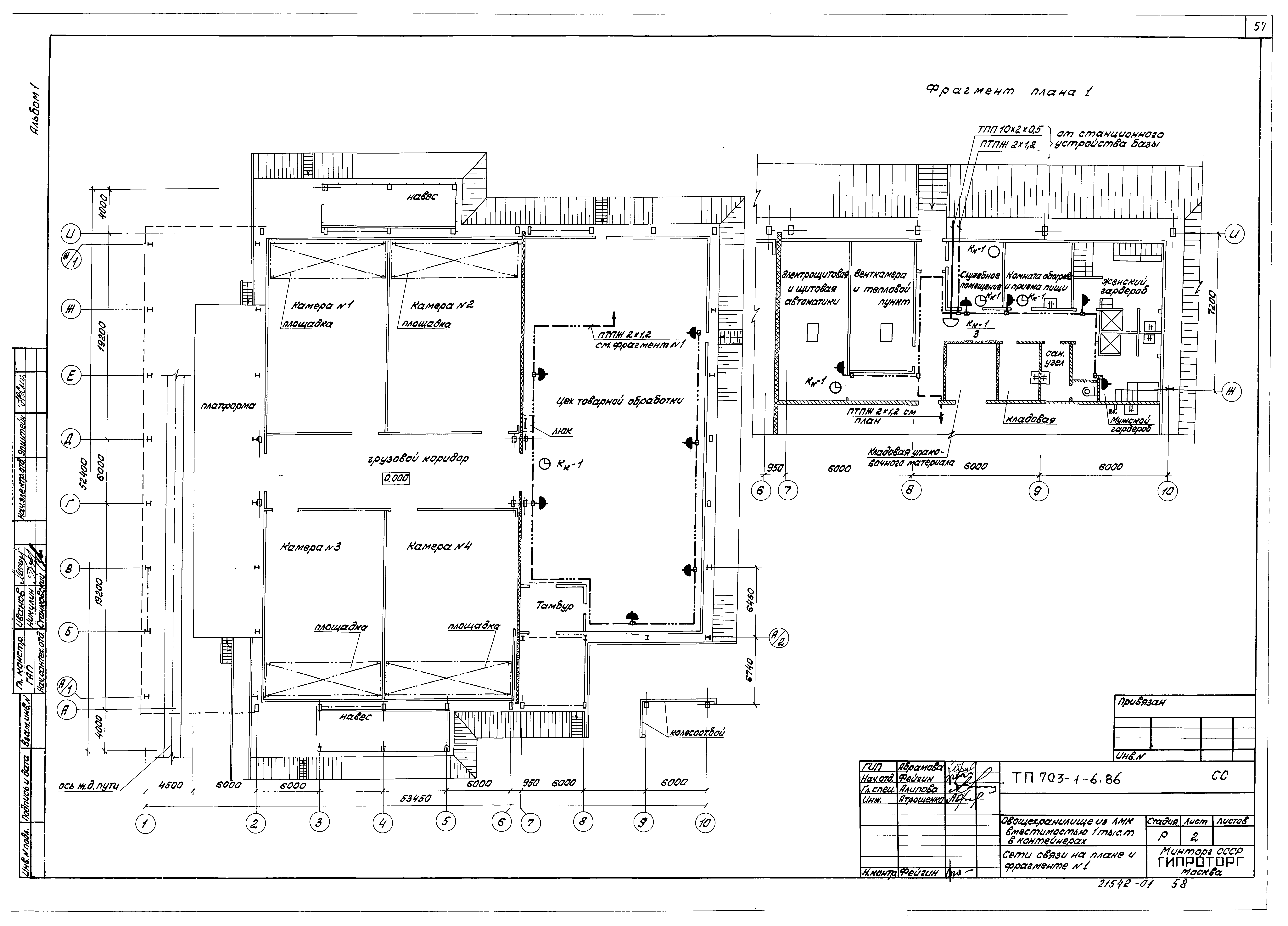
| Оглавление: | Содержание альбома ТП 703-1-6.86 ПЗ-1÷ПЗ8 Пояснительная записка ТП 703-1-6.86 ГП-1Схема генерального плана ТП 703-1-6.86 ТХ Технология ТП 703-1-6.86 ТХ-1 Общие данные ТП 703-1-6.86 ТХ-2 Принципиальная схема технологических процессов и механизации производства ТП 703-1-6.86 ТХ-3 План на отм. 0.000 с расстановкой технологического и подъемно-транспортного оборудования. Схема грузопотоков ТП 703-1-6.86 ТХ-4 Фрагменты цеха товарной обработки, камеры и платформы с расстановкой и привязкой оборудования ТП 703-1-6.86 ТХ-5 Разрезы Б-Б;В-В;Г-Г;Д-Д;Е-Е;Ж-Ж;И-И;К-К;Л-Л ТП 703-1-6.86 ТХН Стол передвижной ТП 703-1-6.86 Х Холодоснабжение ТП 703-1-6.86 Х-1 Общие данные ТП 703-1-6.86 Х-2 План машинных отделений и холодильных камер. Разрез 1-1. Схема хладоновых трубопроводов ТП 703-1-6.86 ОВ Отопление и вентиляция ТП 703-1-6.86 ОВ-1 Общие данные ТП 703-1-6.86 ОВ-2 План на отм. 0.000. Фрагмент плана 1. Схема системы теплоснабжения установки П5. Схема узла управления ТП 703-1-6.86 ОВ-3 Установки систем П1-П5 ТП 703-1-6.86 ОВ-4 Схемы систем вентиляции П1-П5;ВЕ1-ВЕ7. Схема системы отопления. Узел крепления радиатора типа РСГ2. Крепление узла управления ТП 703-1-6.86 ОВН-1 Лючок для измерения параметров воздуха ТП 703-1-6.86 ОВН-2 Конструкция тепловой изоляции трубопроводов ТП 703-1-6.86 ОВН-3 Дроссельная втулка ТП 703-1-6.86 ВК Внутренние водопровод и канализация ТП 703-1-6.86 ВК-1 Общие данные ТП 703-1-6.86 ВК-2 План и фрагмент №1 на отм. 0.000 с сетями В1;Т3;К1;К2;К3 ТП 703-1-6.86 ВК-3 Схемы систем В1 и Т3 ТП 703-1-6.86 ВК-4 Схема системы К-1;К-2;К-3 ТП 703-1-6.86 ВКН-1 Конструкция изоляции трубопроводов ТП 703-1-6.86 ЭМ Электрооборудование ТП 703-1-6.86 ЭМ-1 Общие данные ТП 703-1-6.86 ЭМ-2 Общие данные ТП 703-1-6.86 ЭМ-3 Схема принципиальная питающей сети ТП 703-1-6.86 ЭМ-4 Схема принципиальная распределительной сети ТП 703-1-6.86 ЭМ-5 Схема принципиальная распределительной сети ТП 703-1-6.86 ЭМ-6 Схема принципиальная распределительной сети ТП 703-1-6.86 ЭМ-7 Схема электрическая принципиальная отключения вентсистем при пожаре ТП 703-1-6.86 ЭМ-8 Отключения вентсистем при пожаре. Магнитные пускатели приточных систем П1-П4. Схема соединений внешних проводок ТП 703-1-6.86 ЭМ-9 План распределительной сети в осях 1-7;А-И ТП 703-1-6.86 ЭМ-10 План распределительной сети в осях 7-10;Б-И ТП 703-1-6.86 ЭМ-11 План сети освещения ТП 703-1-6.86 Э-1 Опросный лист на изготовление щитов ВРУ1 ТП 703-1-6.86 АК Автоматизация ТП 703-1-6.86 АК-1 Общие данные ТП 703-1-6.86 АК-2 Приточная система П1. Схема автоматизации ТП 703-1-6.86 АК-3 Схема электрическая принципиальная подключения клапана КПШ приточной системы П1 ТП 703-1-6.86 АК-4 Схема электрическая принципиальная управления исполнительным механизмов заслонки системы ВЕ-1 и вентилятором системы П1 ТП 703-1-6.86 АК-5 Контроль температуры в камере. Схема соединений внешних проводок ТП 703-1-6.86 АК-6 Вытяжная система ВЕ1(ВЕ2...ВЕ8). Схема соединений внешних проводок ТП 703-1-6.86 АК-7 Клапан КПШ. Схема соединений внешних проводок ТП 703-1-6.86 АК-8 Холодильные машины №1...№4. Схема соединений внешних проводок ТП 703-1-6.86 АК-9 "Среда 1-8". Схема подключений ТП 703-1-6.86 АК-10 Статив. Схема подключений ТП 703-1-6.86 АК-11 Овощехранилище. План расположения (начало) ТП 703-1-6.86 АК-12 Овощехранилище. План расположения (окончание) ТП 703-1-6.86 СС Связь и сигнализация ТП 703-1-6.86 СС-1 Общие данные ТП 703-1-6.86 СС-2 Сети связи на плане и фрагменте №1 ТП 703-1-6.86 СС-3 Сети пожарной и тревожной сигнализации на плане и фрагменте №1 |
| Разработан: | Гипроторг Гипропромтеплица |
| Утверждён: | 17.02.1986 Министерство торговли СССР (USSR Ministry of Commerce 31/П-3) |


























































