Скачать Типовой проект 703-1-6.86 Альбом 4. Конструкции металлическиеДата актуализации: 01.01.2021
|
| Обозначение: | Типовой проект 703-1-6.86 |
| Обозначение англ: | 703-1-6.86 |
| Статус: | не определен законодательством |
| Название рус.: | Альбом 4. Конструкции металлические |
| Дата добавления в базу: | 01.09.2013 |
| Дата актуализации: | 01.01.2021 |
| Дата введения: | 23.05.1986 |
| Дата окончания срока действия: | 30.06.2003 |
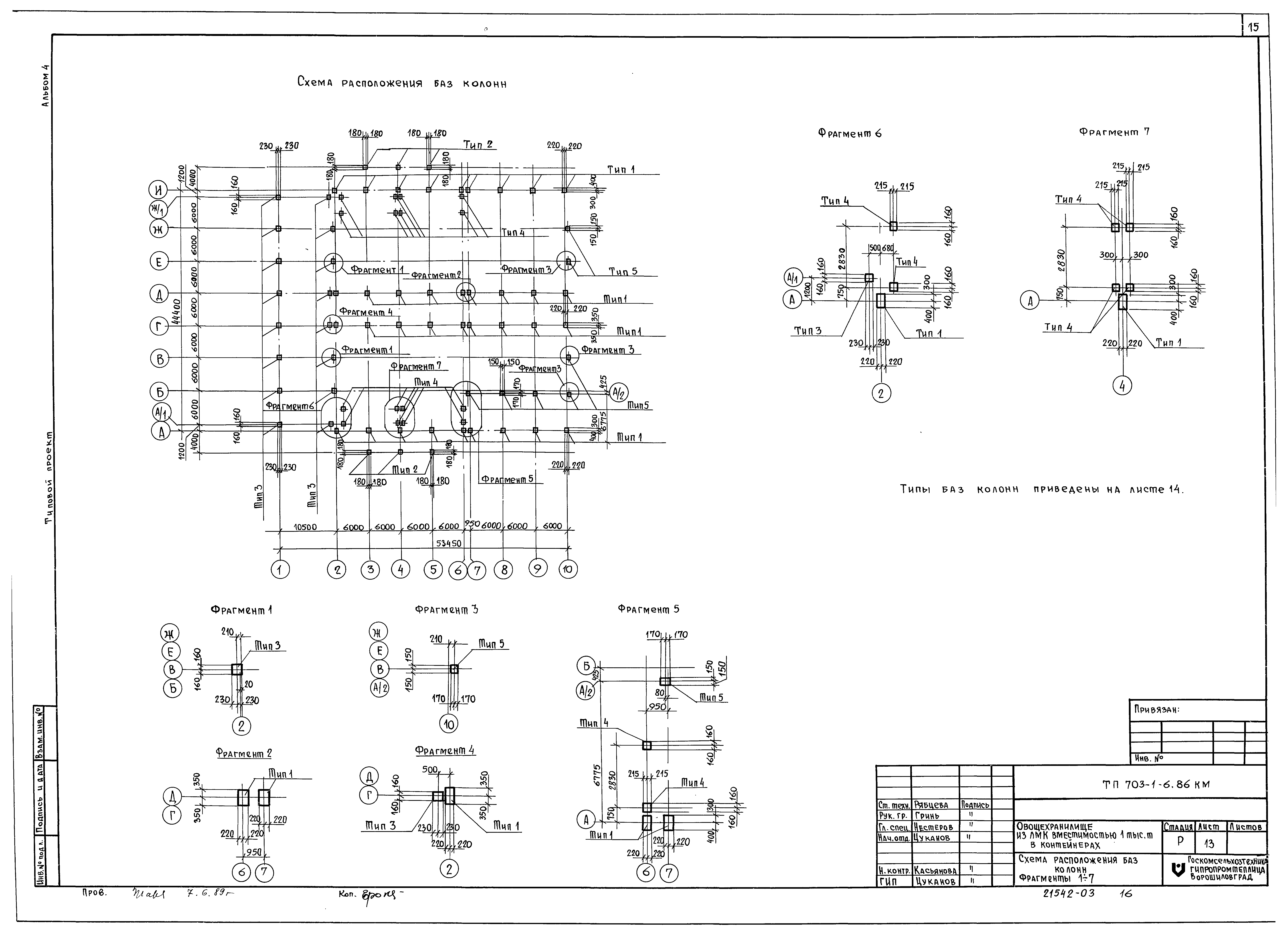
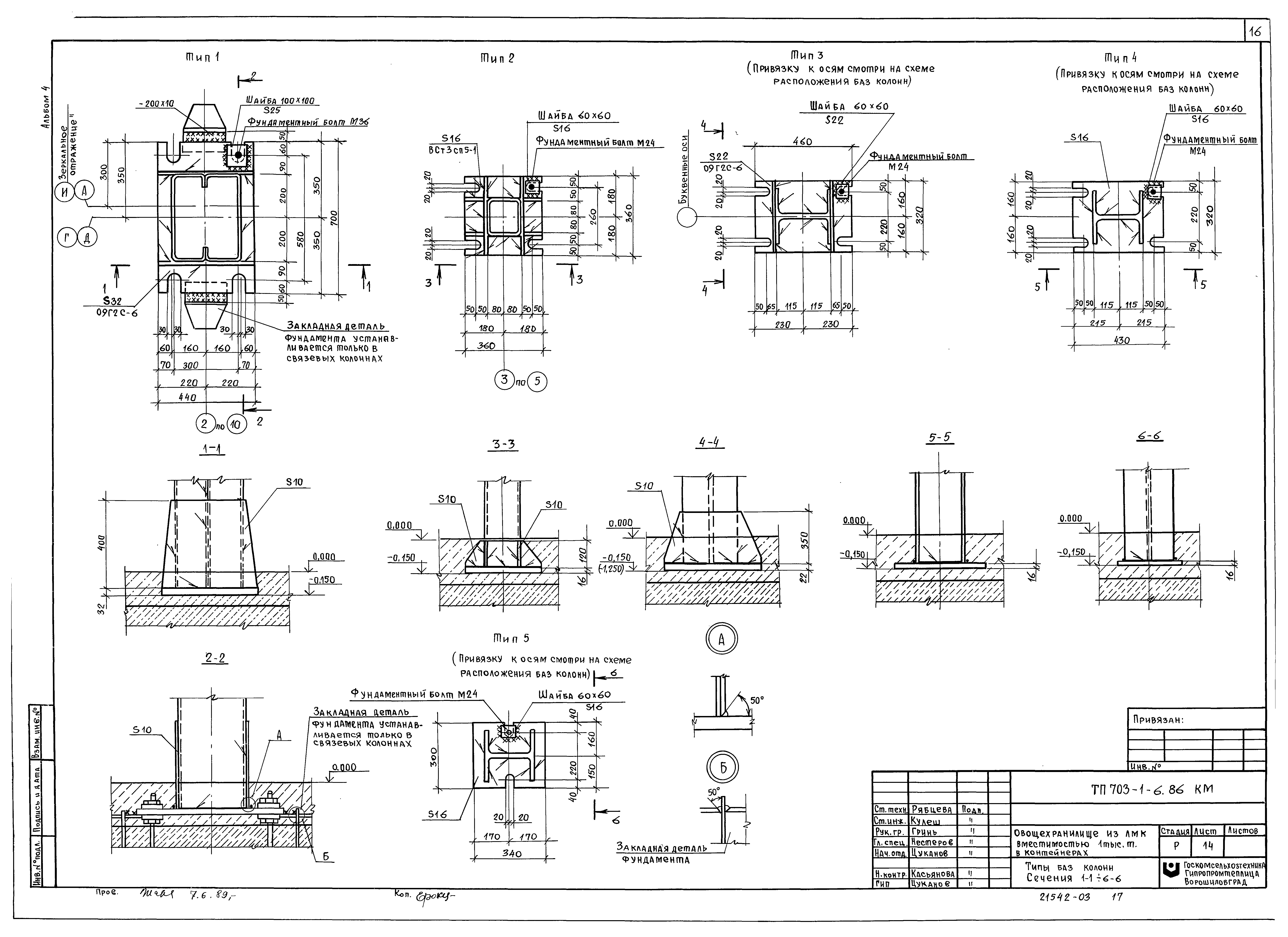
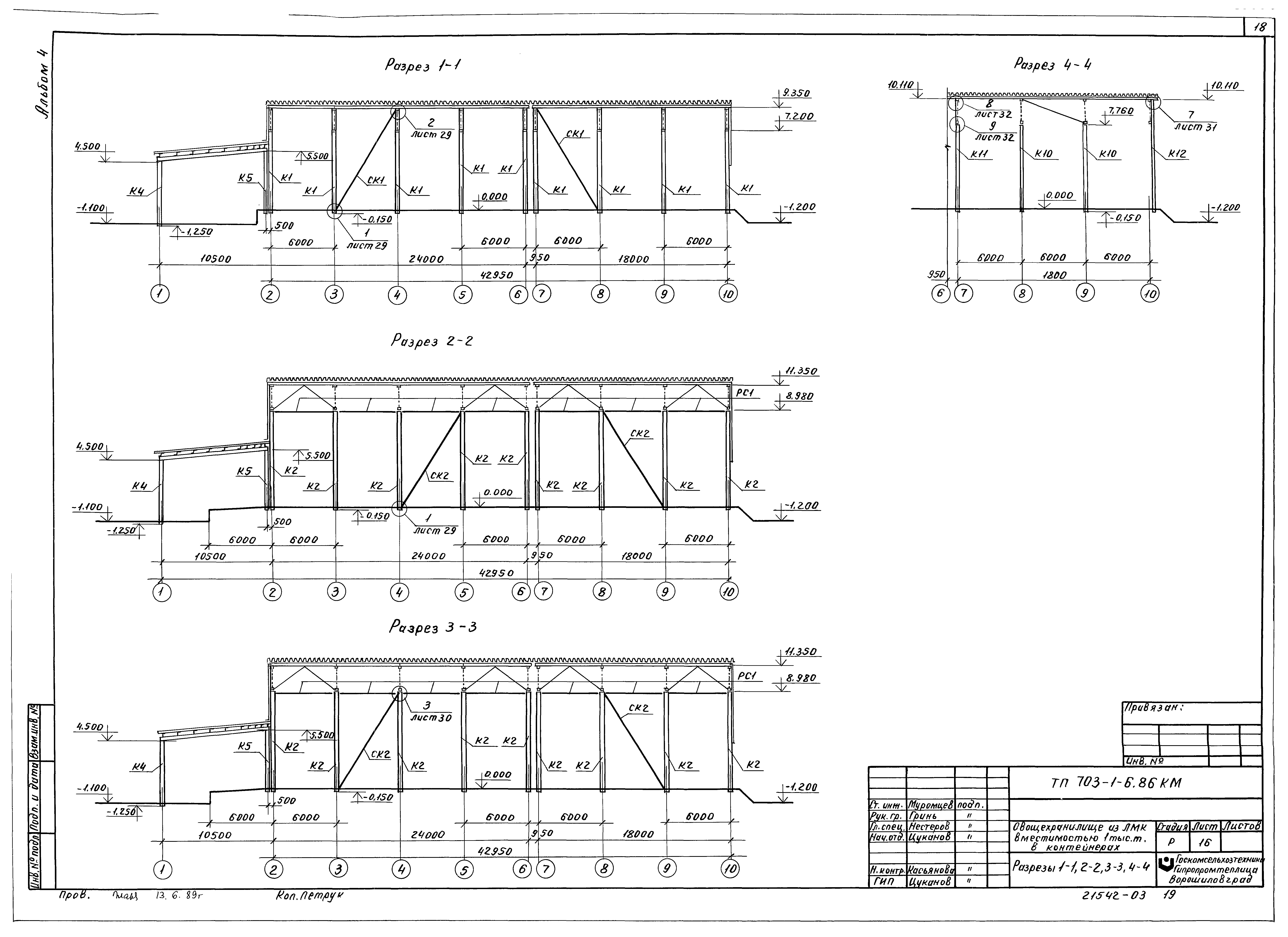
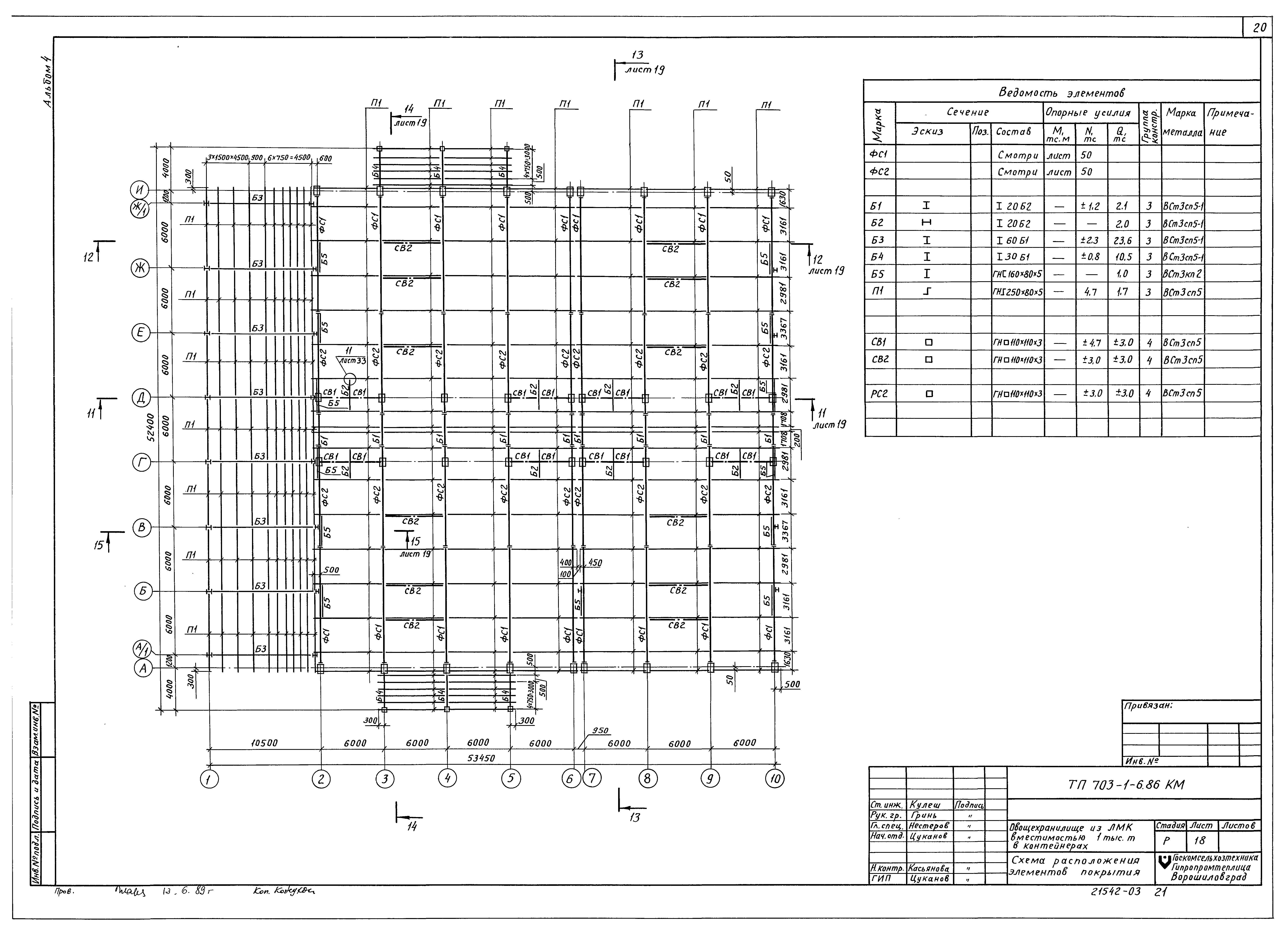
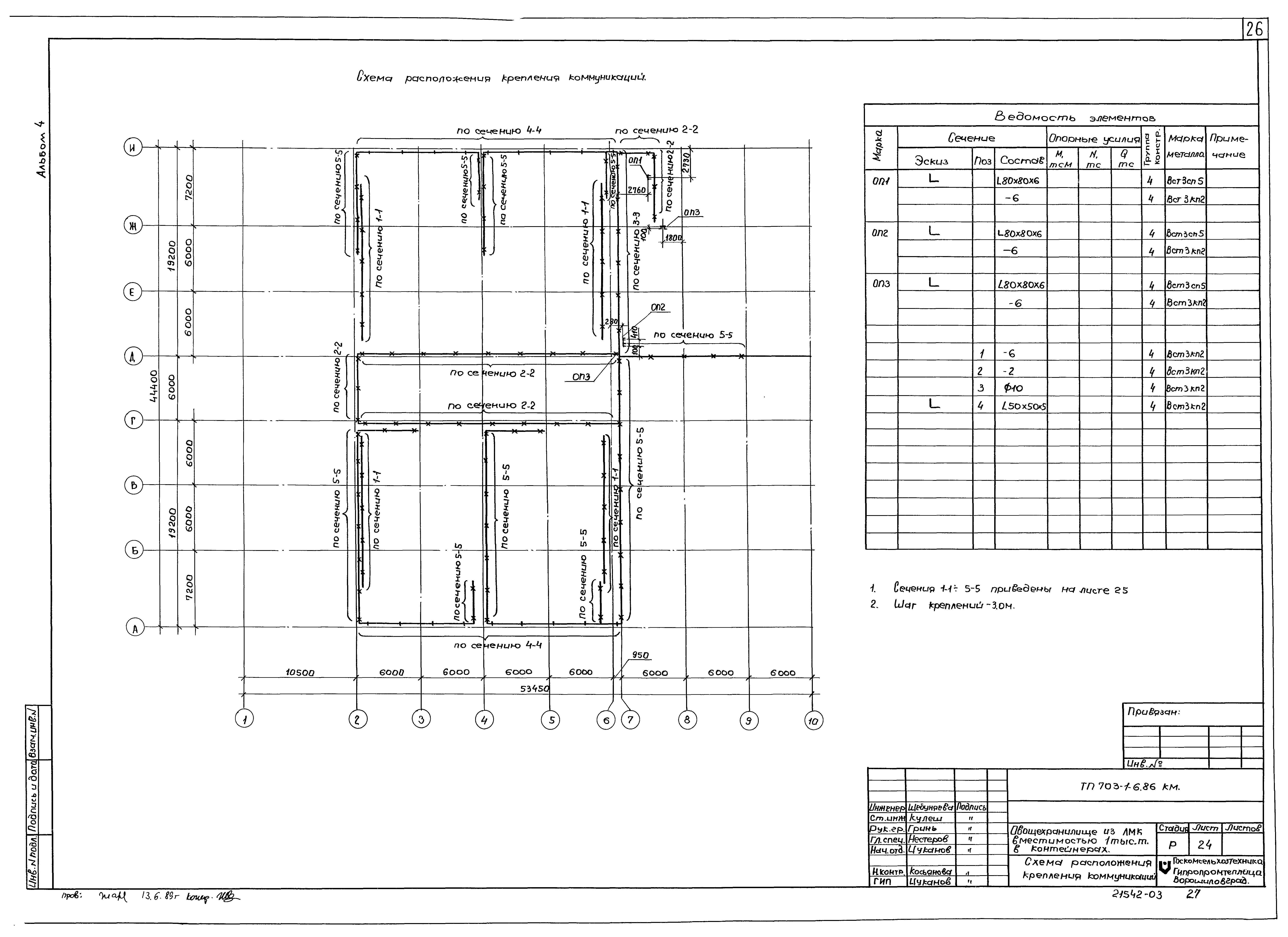
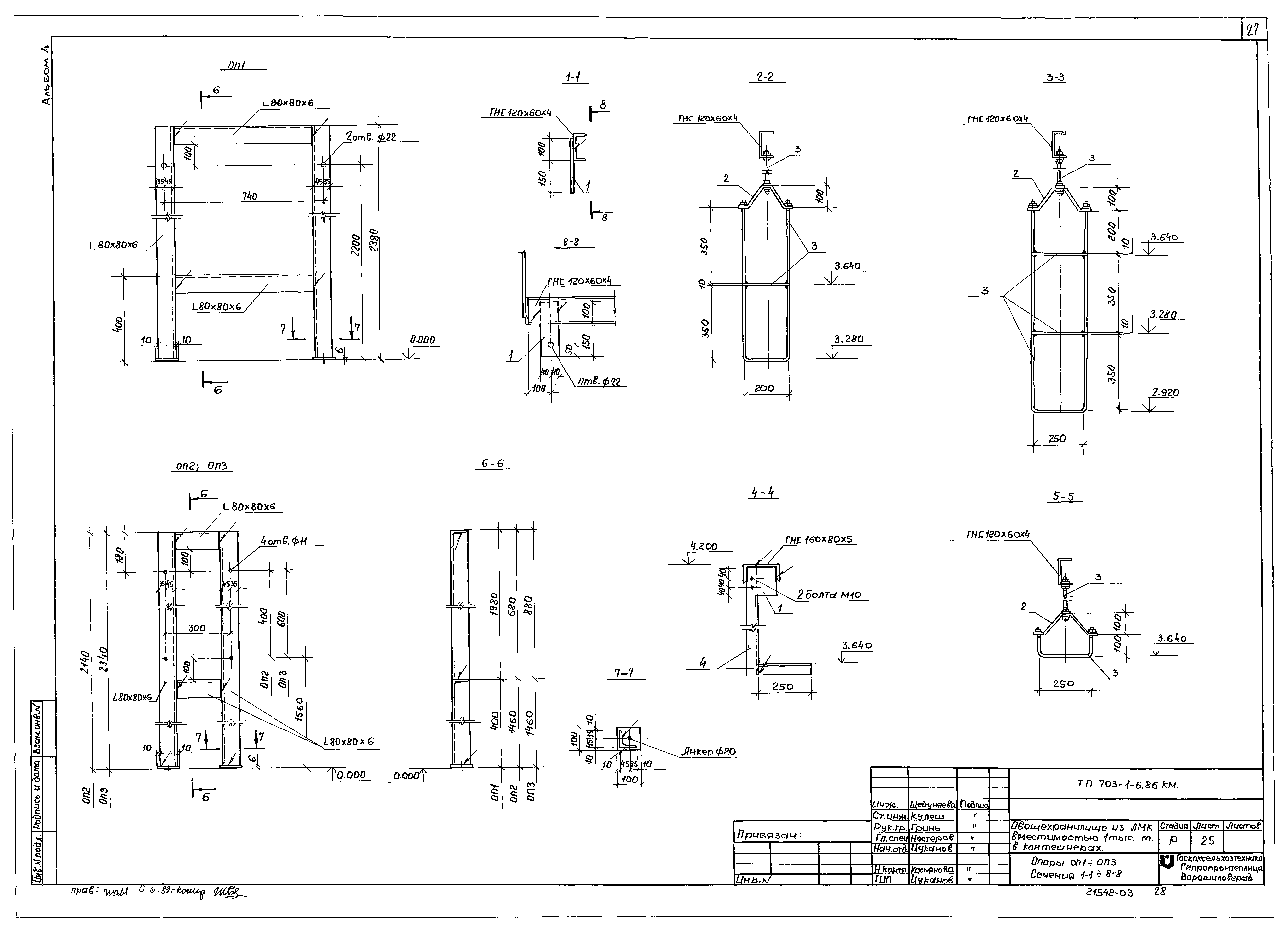
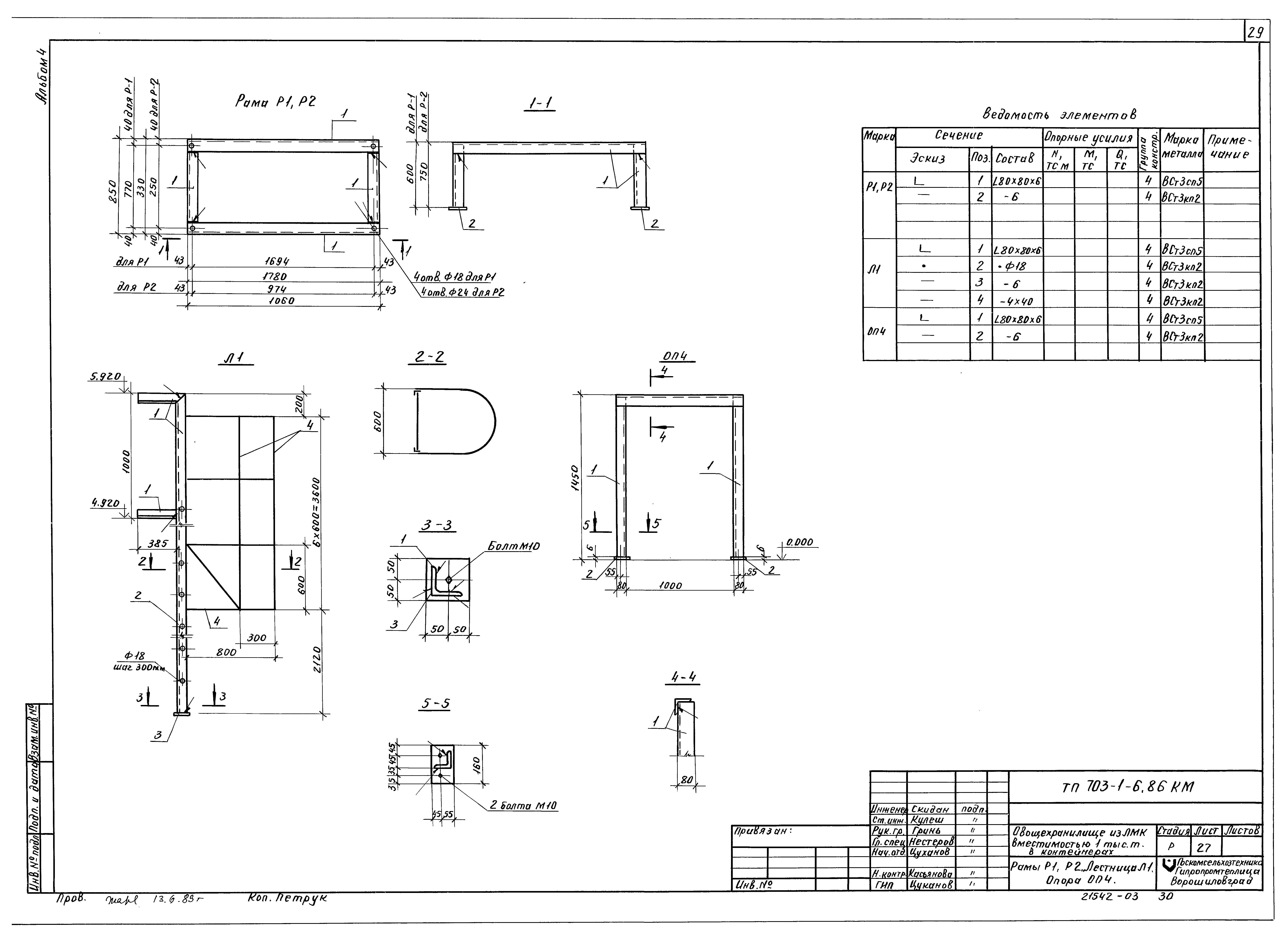
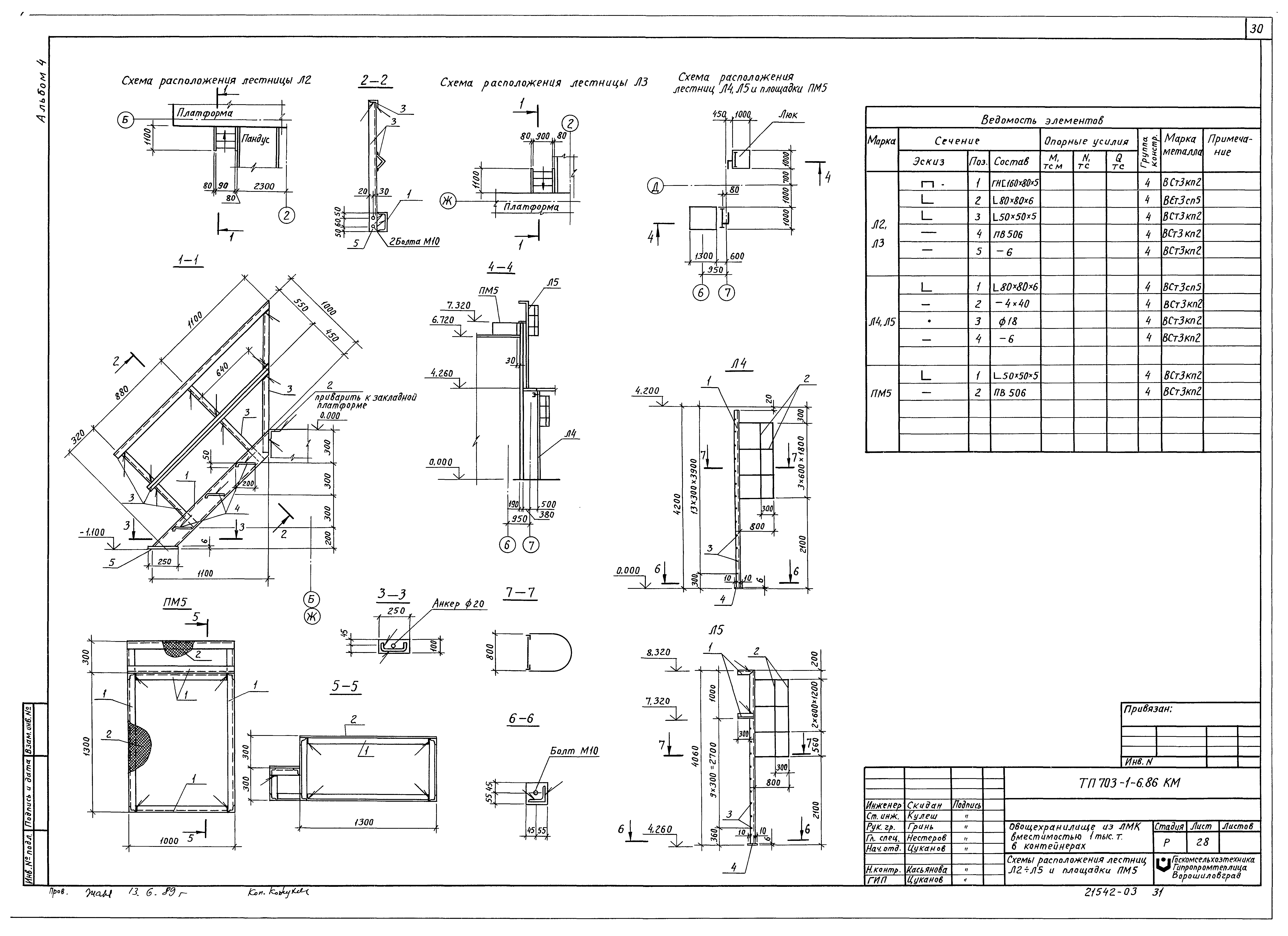
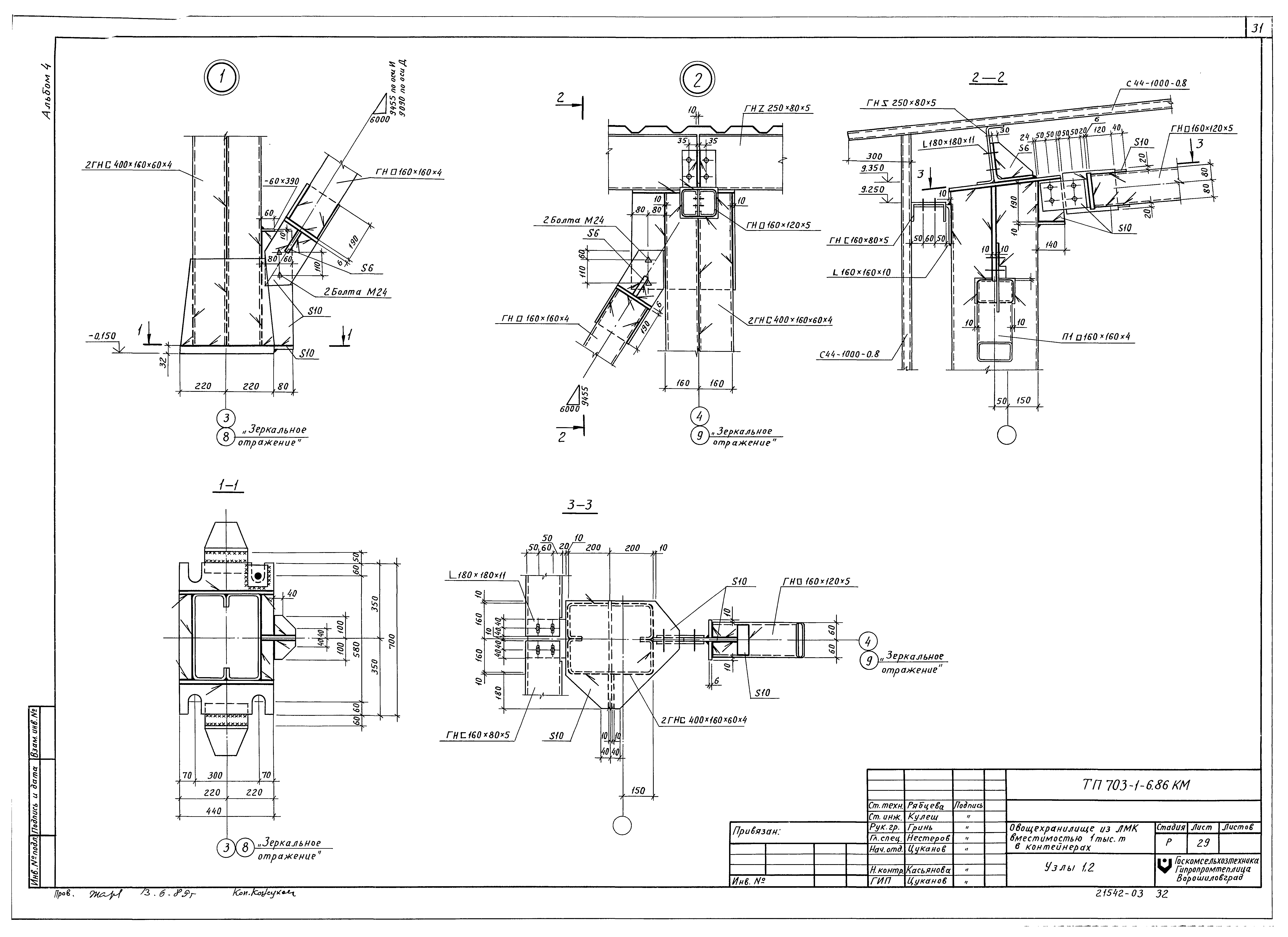
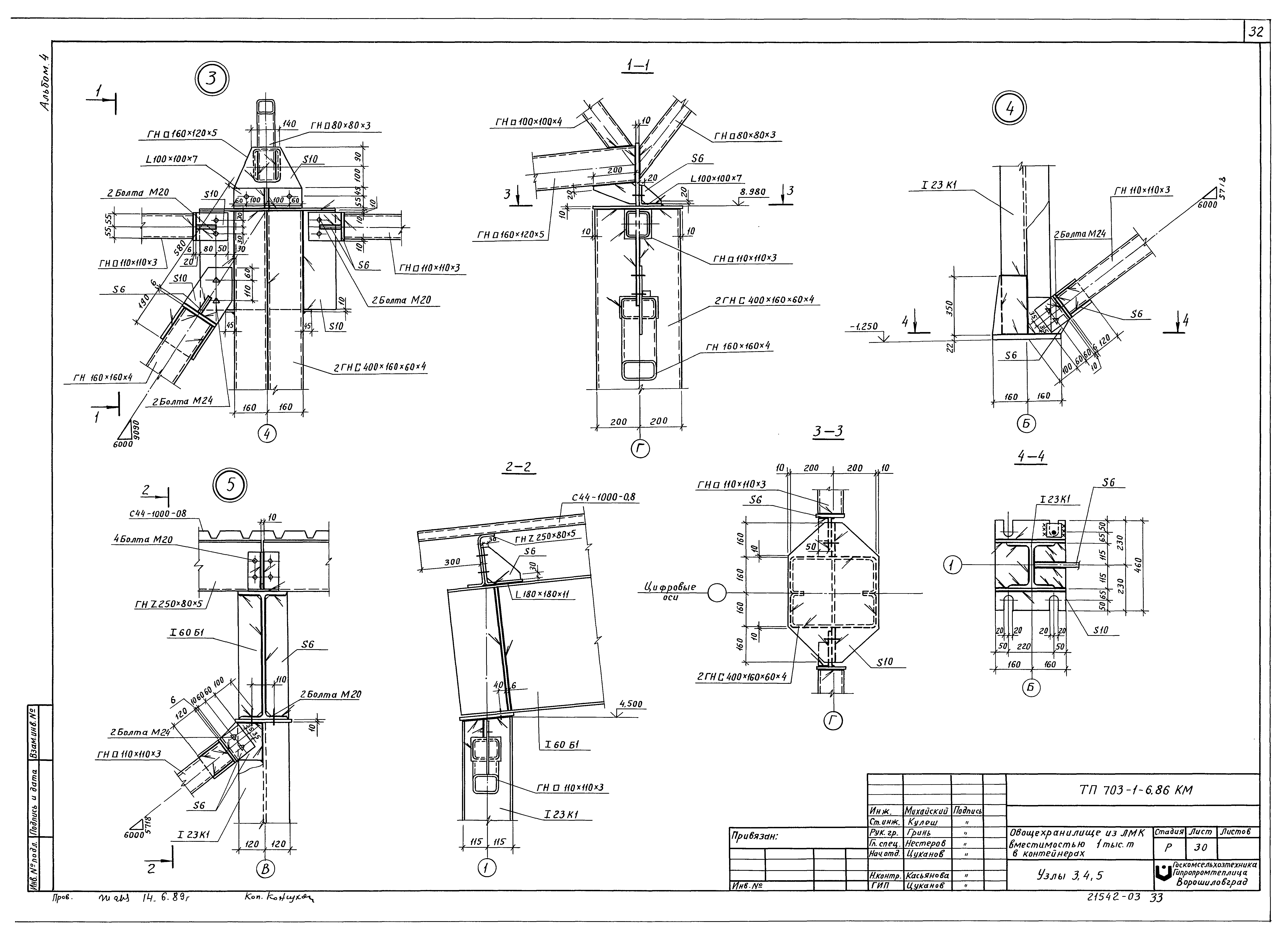
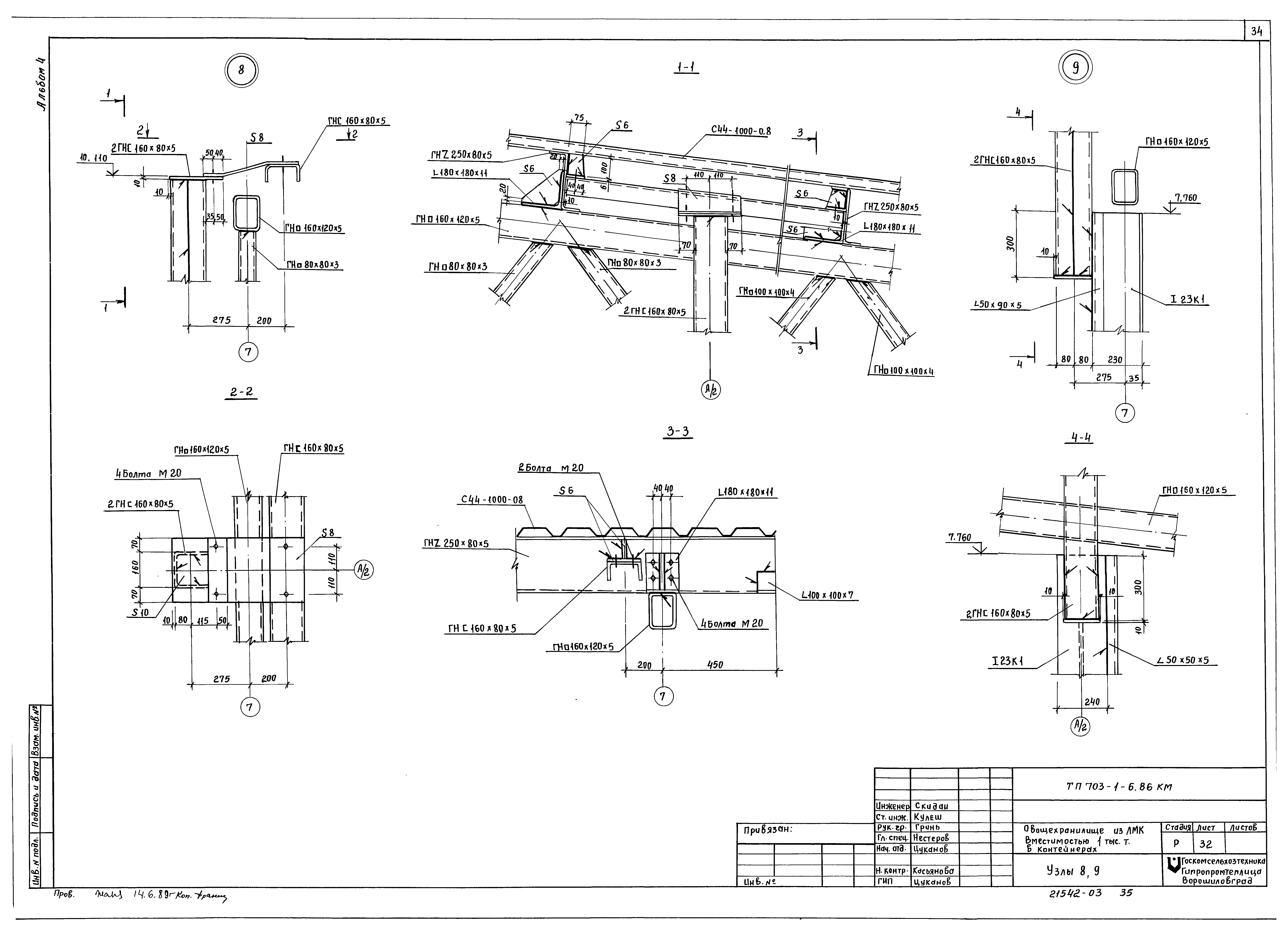
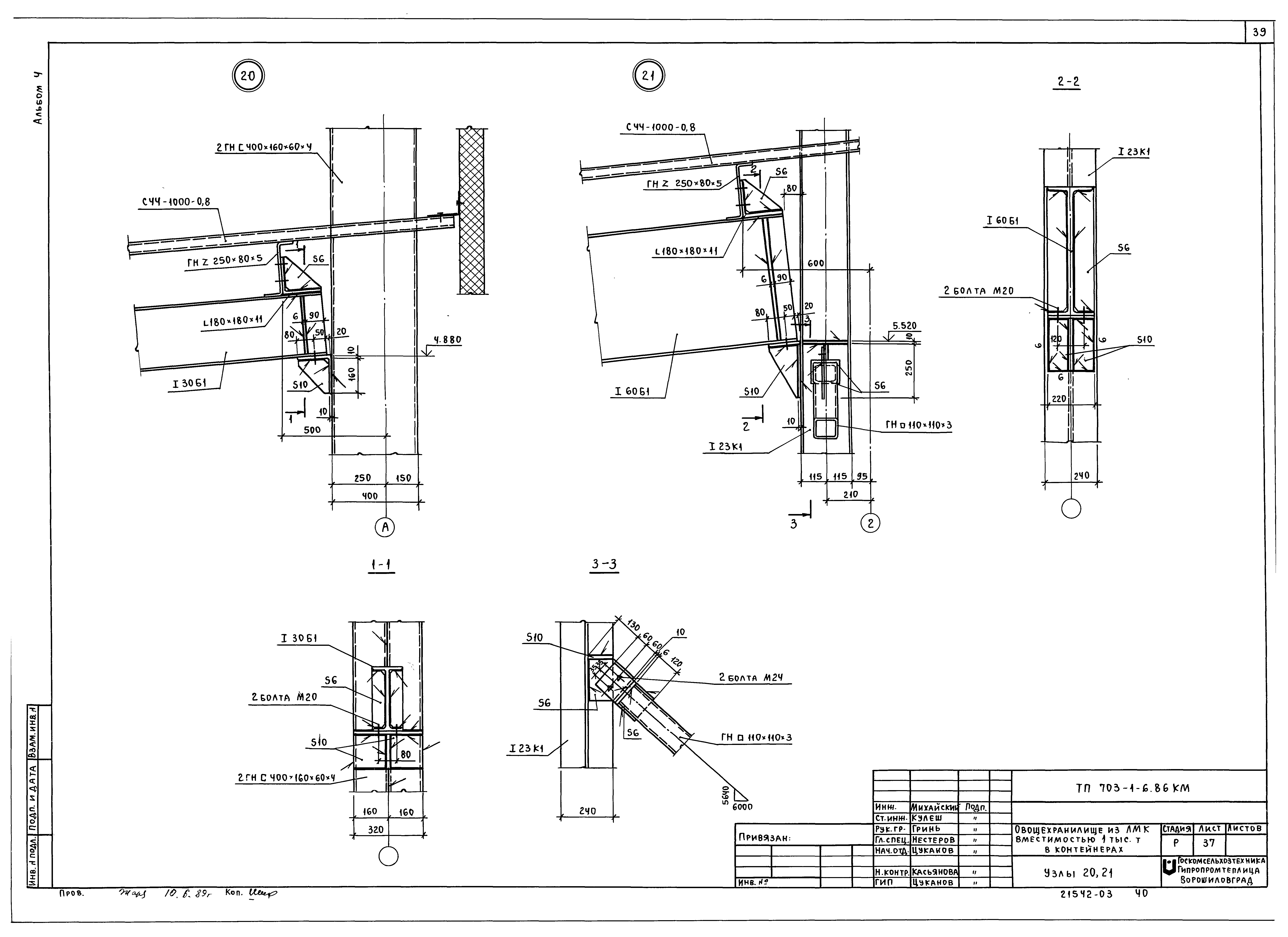
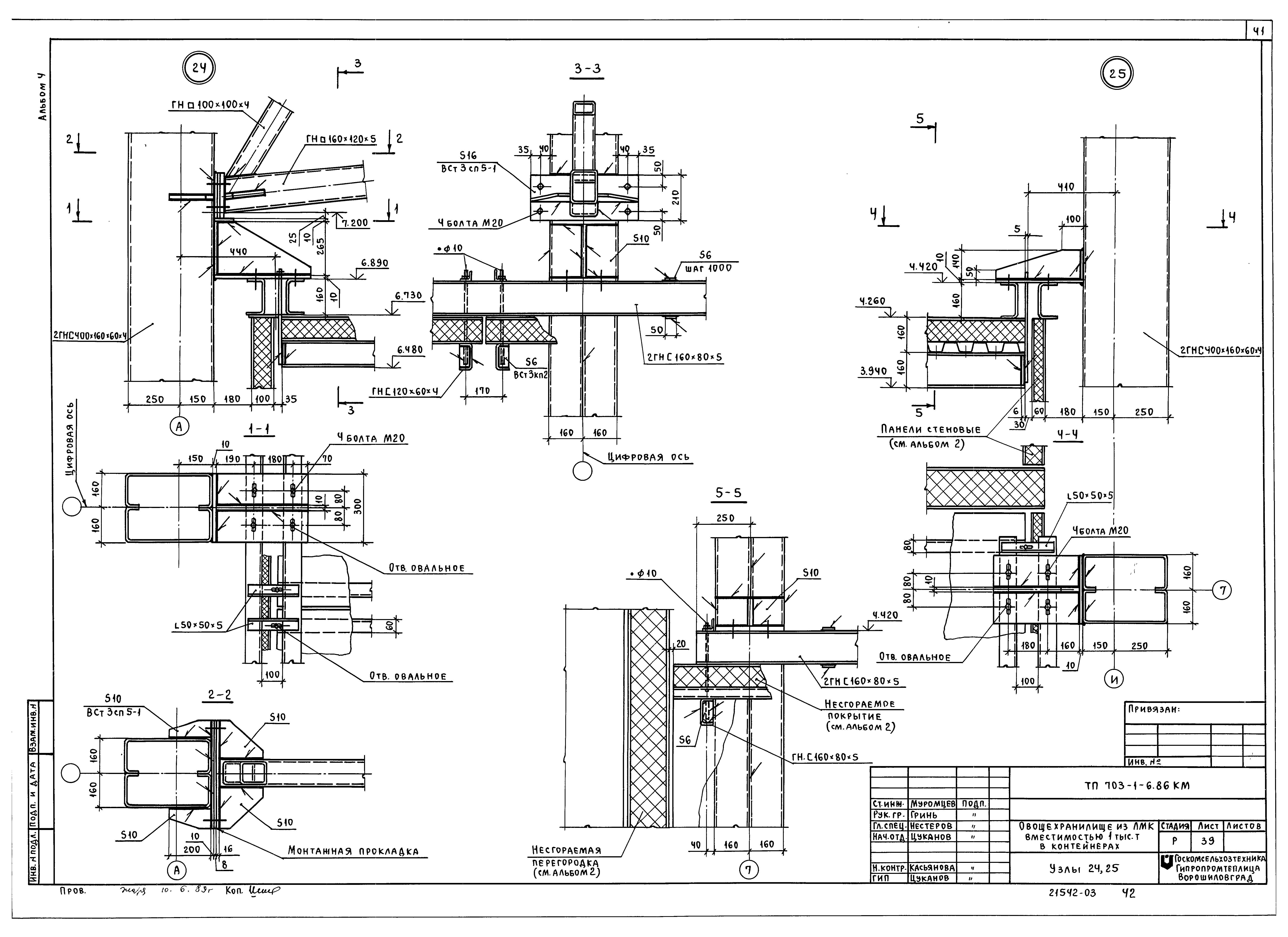
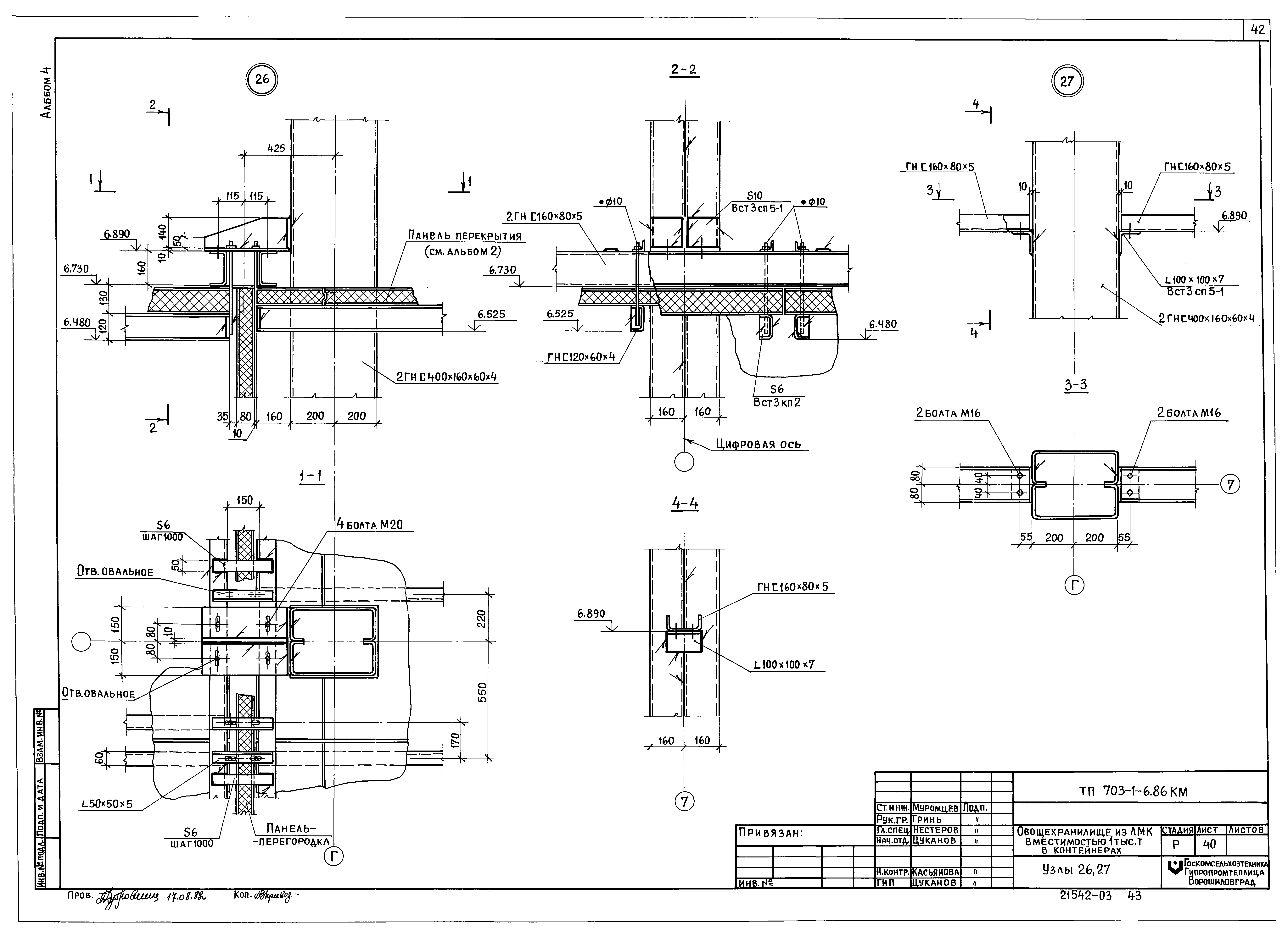
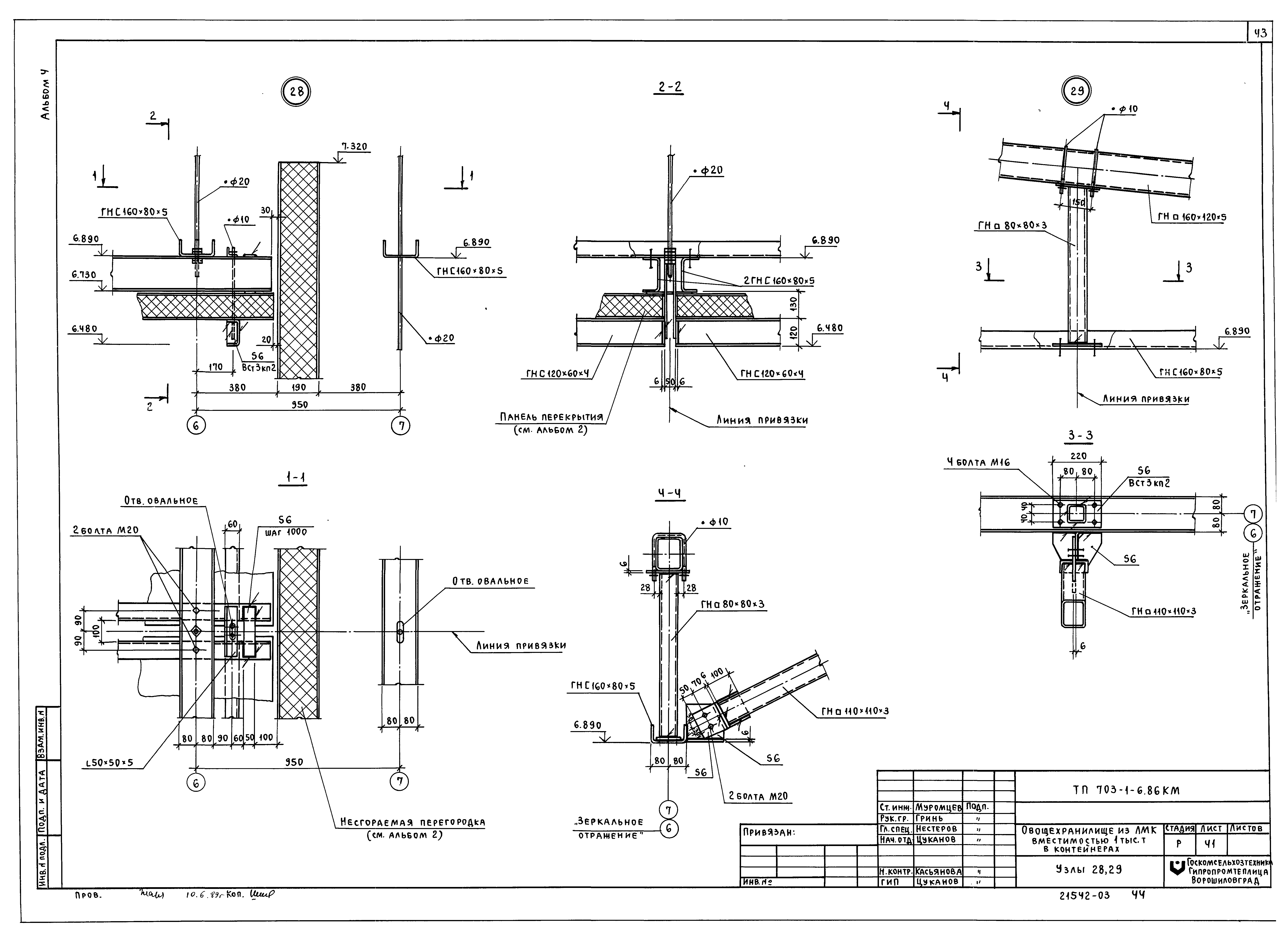
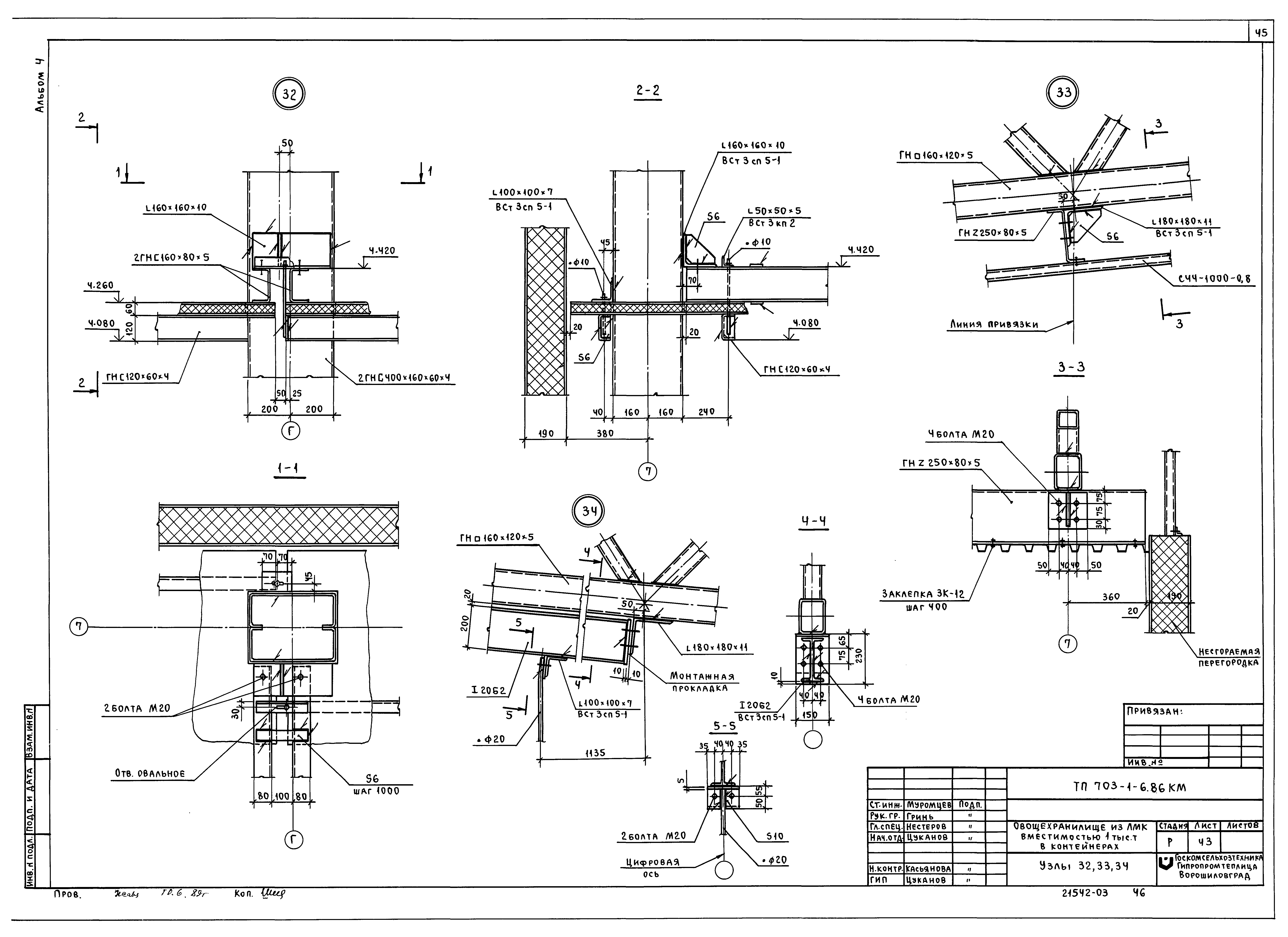
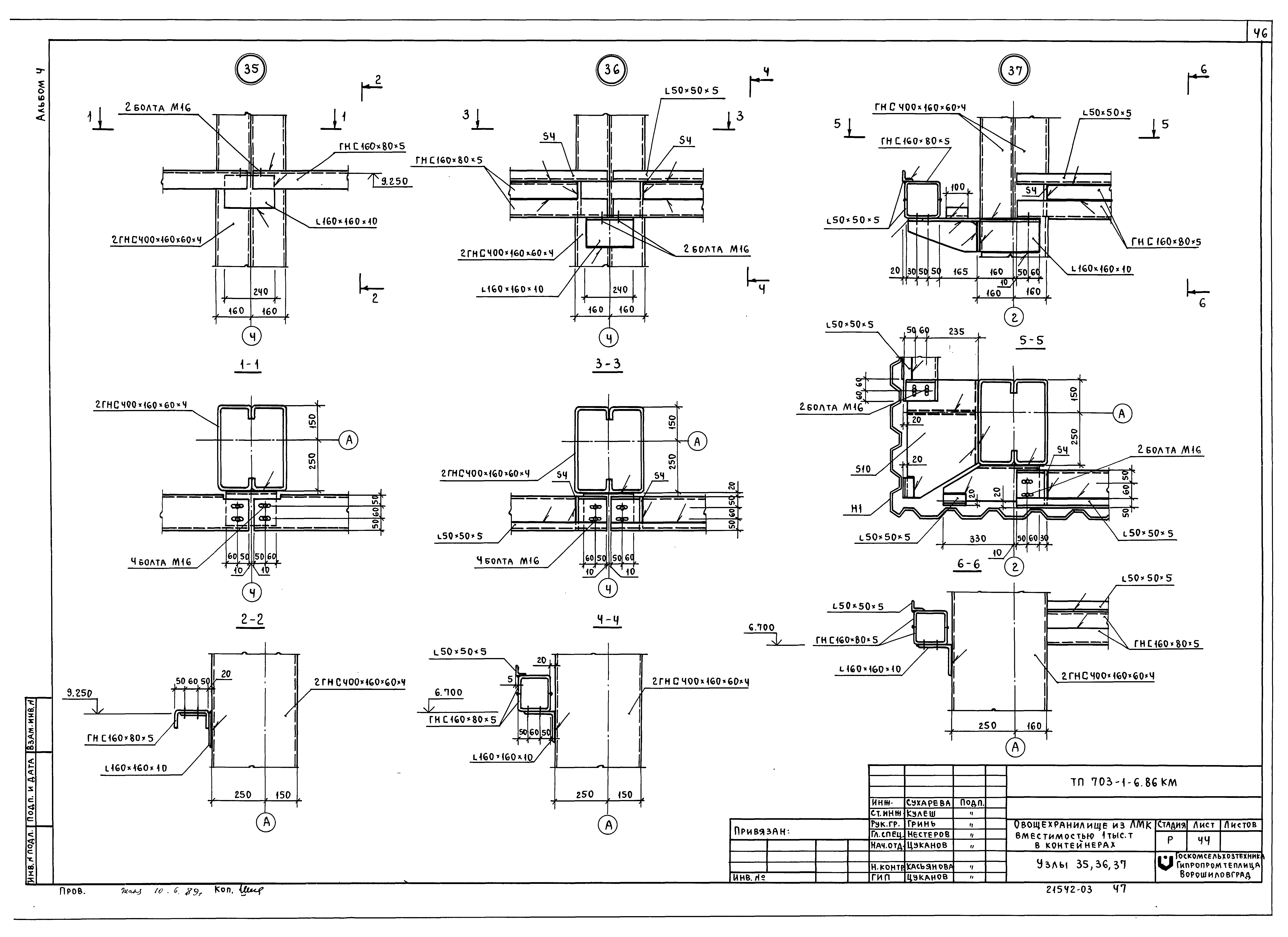
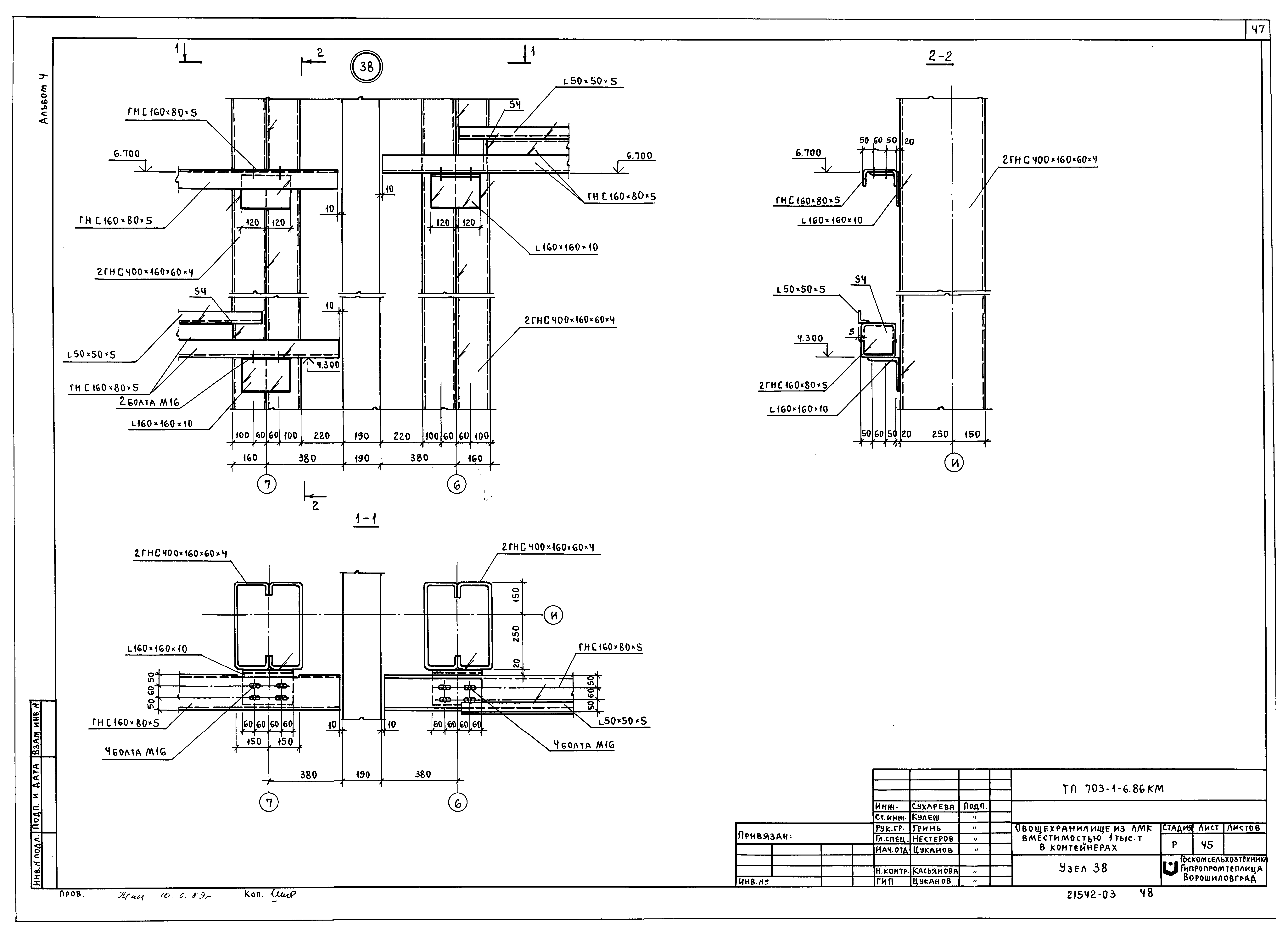
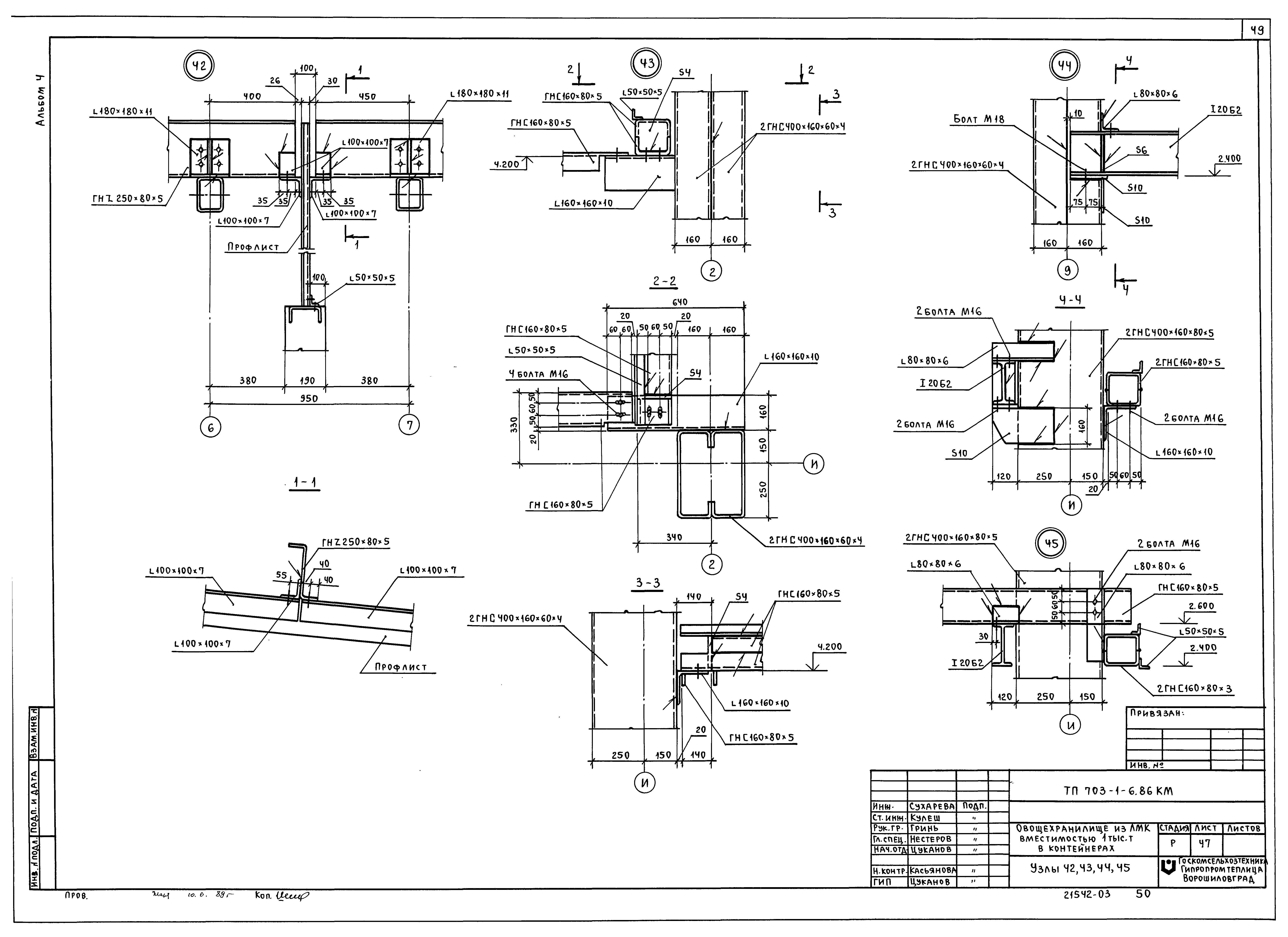
| Оглавление: | ТП 703-1-6.86 Титульный лист ТП 703-1-6.86 Содержание альбома ТП 703-1-6.86 КМ-1 Общие данные (начало) ТП 703-1-6.86 КМ-2 Общие данные (продолжение) ТП 703-1-6.86 КМ-3 Общие данные (окончание) ТП 703-1-6.86 КМ-4 Техническая спецификация металла (начало) ТП 703-1-6.86 КМ-5 Техническая спецификация металла (продолжение) ТП 703-1-6.86 КМ-6 Техническая спецификация металла (продолжение) ТП 703-1-6.86 КМ-7 Техническая спецификация металла (окончание) ТП 703-1-6.86 КМ-8 Ведомость металлоконструкций по видам профилей ТП 703-1-6.86 КМ-9 Схема расчетных нагрузок на фундаменты ОП1-ОП5 ТП 703-1-6.86 КМ-10 Таблица нагрузок на фундаменты (начало) ТП 703-1-6.86 КМ-11 Таблица нагрузок на фундаменты (продолжение) ТП 703-1-6.86 КМ-12 Таблица нагрузок на фундаменты (окончание) ТП 703-1-6.86 КМ-13 Схема расположения баз колонн. Фрагменты 1-7 ТП 703-1-6.86 КМ-14 Типы баз колонн. Сечения 1-1÷6-6 ТП 703-1-6.86 КМ-15 Схема расположения колонн и связей ТП 703-1-6.86 КМ-16 Разрезы 1-1;2-2;3-3;4-4 ТП 703-1-6.86 КМ-17 Разрезы 5-5;6-6;7-7;8-8;9-9;10-10 ТП 703-1-6.86 КМ-18 Схема расположения элементов покрытия ТП 703-1-6.86 КМ-19 Разрезы 11-11÷15-15 ТП 703-1-6.86 КМ-20 Схема раскладки настила каркаса и навесов. Стык постов. Фрагмент1 ТП 703-1-6.86 КМ-21 Схема расположения элементов подвесного перекрытия ТП 703-1-6.86 КМ-22 Схема расположения ригелей фахверка по осям А;И;16 ТП 703-1-6.86 КМ-23 Схема расположения ригелей фахверка по осям 2;Б/1,Г,Д и между осями 6-7 ТП 703-1-6.86 КМ-24 Схема расположения крепления коммуникаций ТП 703-1-6.86 КМ-25 Опоры ОП1-ОП3. Сечения 1-1÷8-8 ТП 703-1-6.86 КМ-26 Площадки металлические ПМ1-ПМ4 ТП 703-1-6.86 КМ-27 Рамы Р1,Р2. Лестница Л1. Опора ОП4 ТП 703-1-6.86 КМ-28 Схемы расположения лестниц Л2-Л5 и площадки ПМ5 ТП 703-1-6.86 КМ-29 Узлы 1,2 ТП 703-1-6.86 КМ-30 Узлы 3,4,5 ТП 703-1-6.86 КМ-31 Узлы 6,7 ТП 703-1-6.86 КМ-32 Узлы 8,9 ТП 703-1-6.86 КМ-33 Узлы 10,11 ТП 703-1-6.86 КМ-34 Узлы 12,13 ТП 703-1-6.86 КМ-35 Узлы 14,15,16 ТП 703-1-6.86 КМ-36 Узлы 17,18,19 ТП 703-1-6.86 КМ-37 Узлы 20,21 ТП 703-1-6.86 КМ-38 Узлы 22,23 ТП 703-1-6.86 КМ-39 Узлы 24,25 ТП 703-1-6.86 КМ-40 Узлы 26,27 ТП 703-1-6.86 КМ-41 Узлы 28,29 ТП 703-1-6.86 КМ-42 Узлы 30,31 ТП 703-1-6.86 КМ-43 Узлы 32,33,34 ТП 703-1-6.86 КМ-44 Узлы 35,36,37 ТП 703-1-6.86 КМ-45 Узлы 38 ТП 703-1-6.86 КМ-46 Узлы 39,40,41 ТП 703-1-6.86 КМ-47 Узлы 42,43,44,45 ТП 703-1-6.86 КМ-48 Узлы 46,47 ТП 703-1-6.86 КМ-49 Узлы 48-54 ТП 703-1-6.86 КМ-50 Фермы ФС1 и ФС2. Узлы 55-62 ТП 703-1-6.86 КМ-51 Схема расположения ворот. Узлы 63,64,65 |
| Разработан: | Гипропромтеплица |
| Утверждён: | 17.02.1986 Министерство торговли СССР (USSR Ministry of Commerce 31/П-3) |





















































