Скачать Типовой проект 901-8-10.83 Альбом I. Архитектурно-строительная частьДата актуализации: 01.01.2021
|
| Обозначение: | Типовой проект 901-8-10.83 |
| Обозначение англ: | 901-8-10.83 |
| Статус: | не определен законодательством |
| Название рус.: | Альбом I. Архитектурно-строительная часть |
| Дата добавления в базу: | 01.09.2013 |
| Дата актуализации: | 01.01.2021 |
| Дата введения: | 17.12.1982 |
| Дата окончания срока действия: | 30.06.2003 |
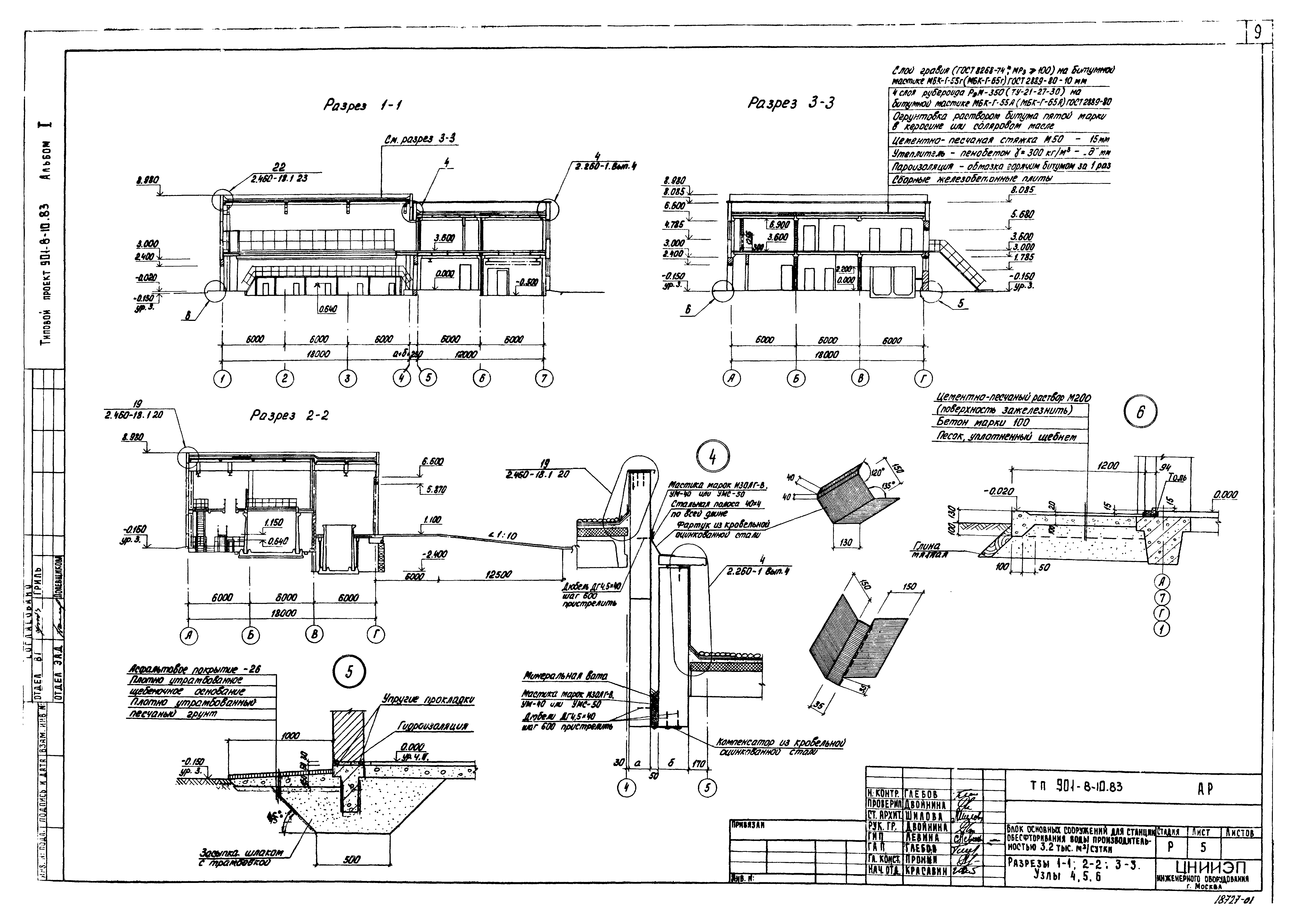
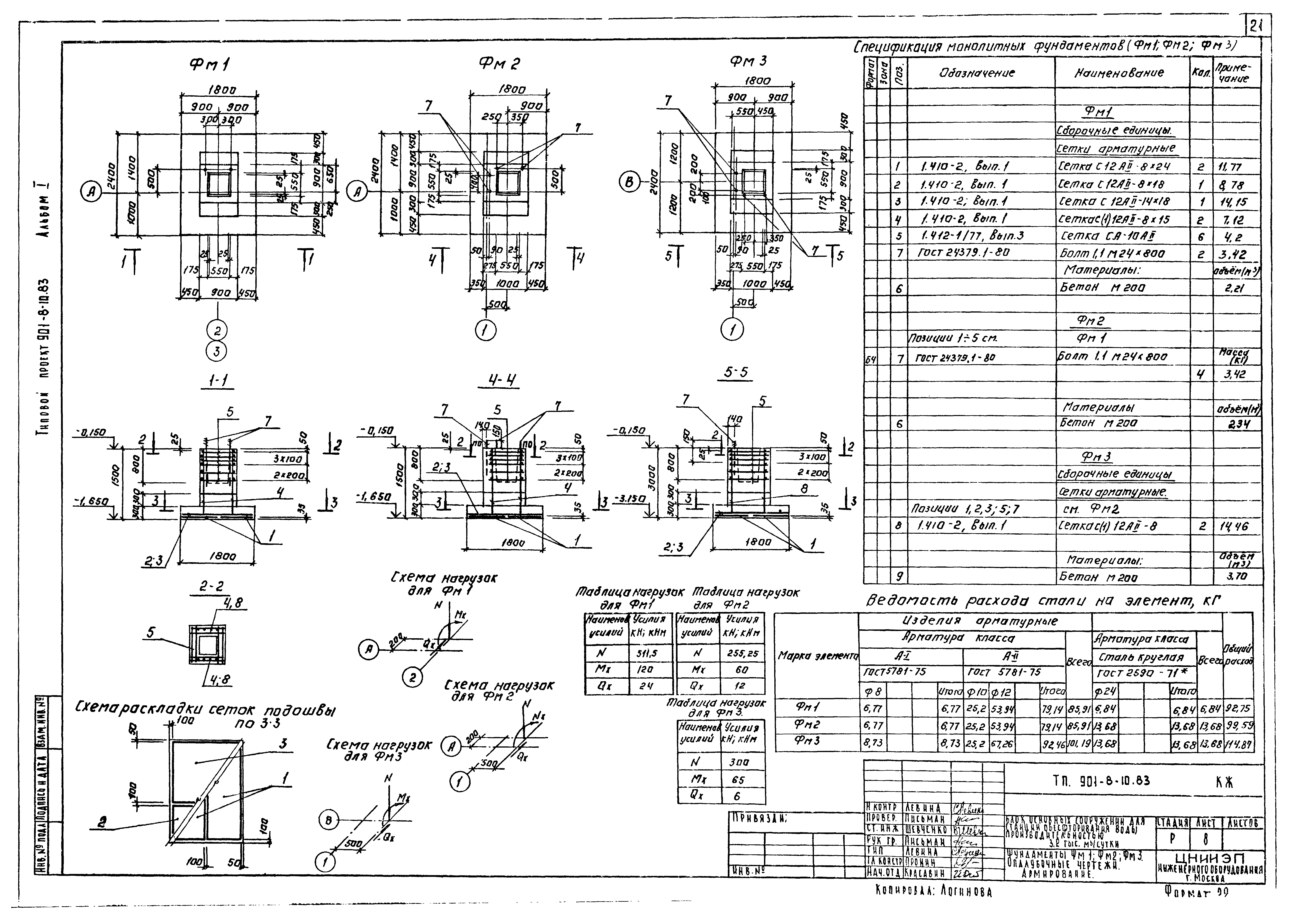
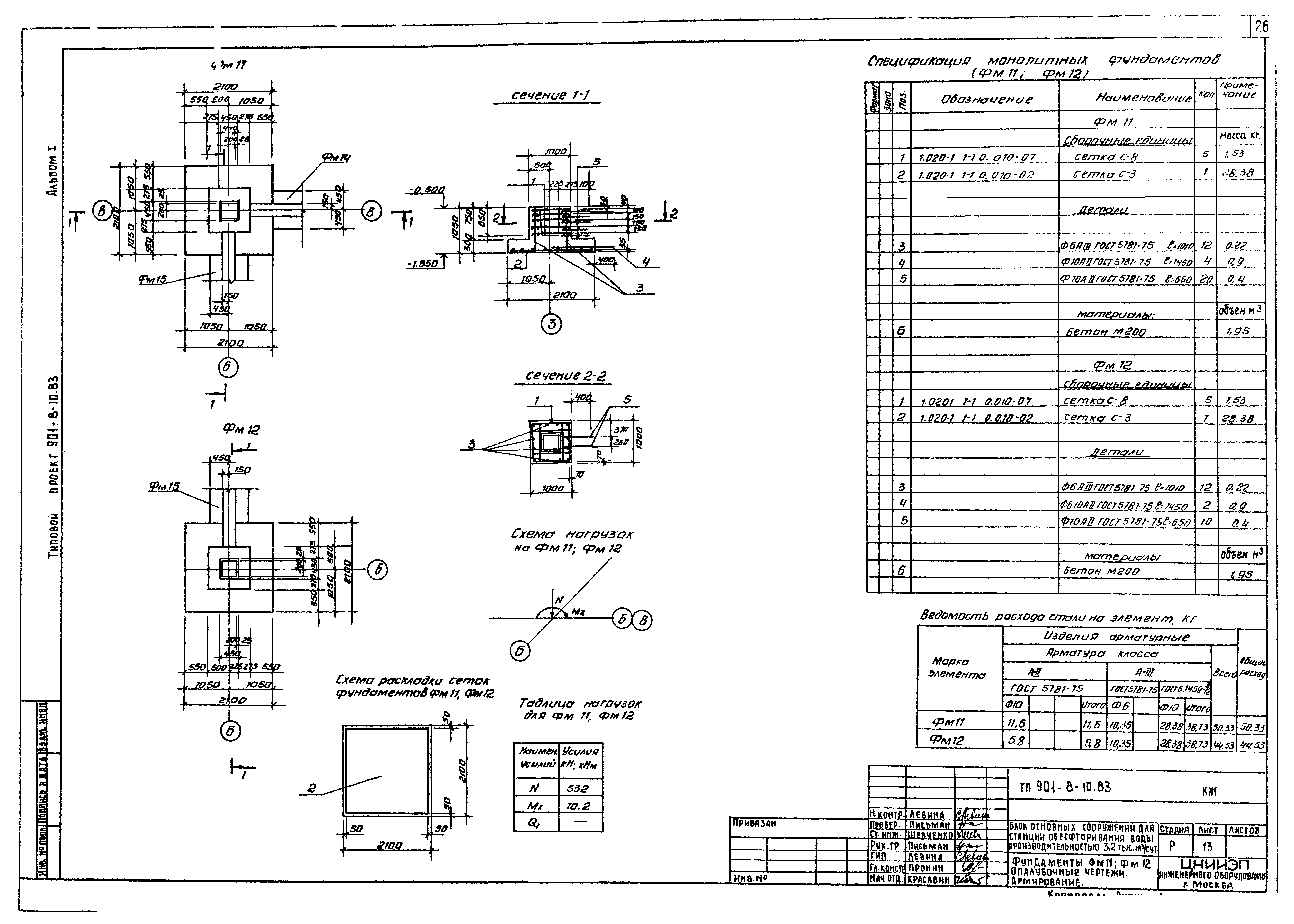
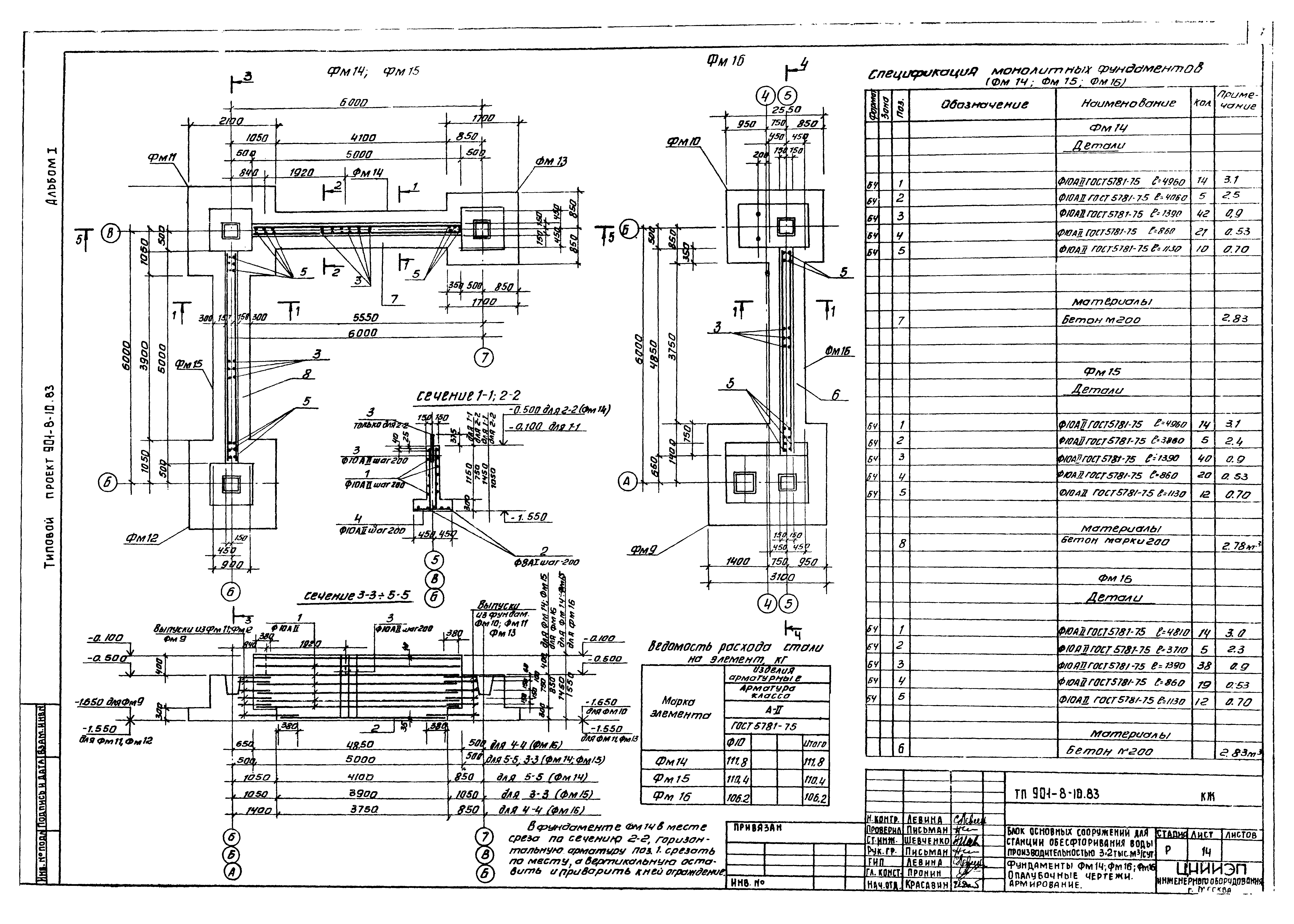
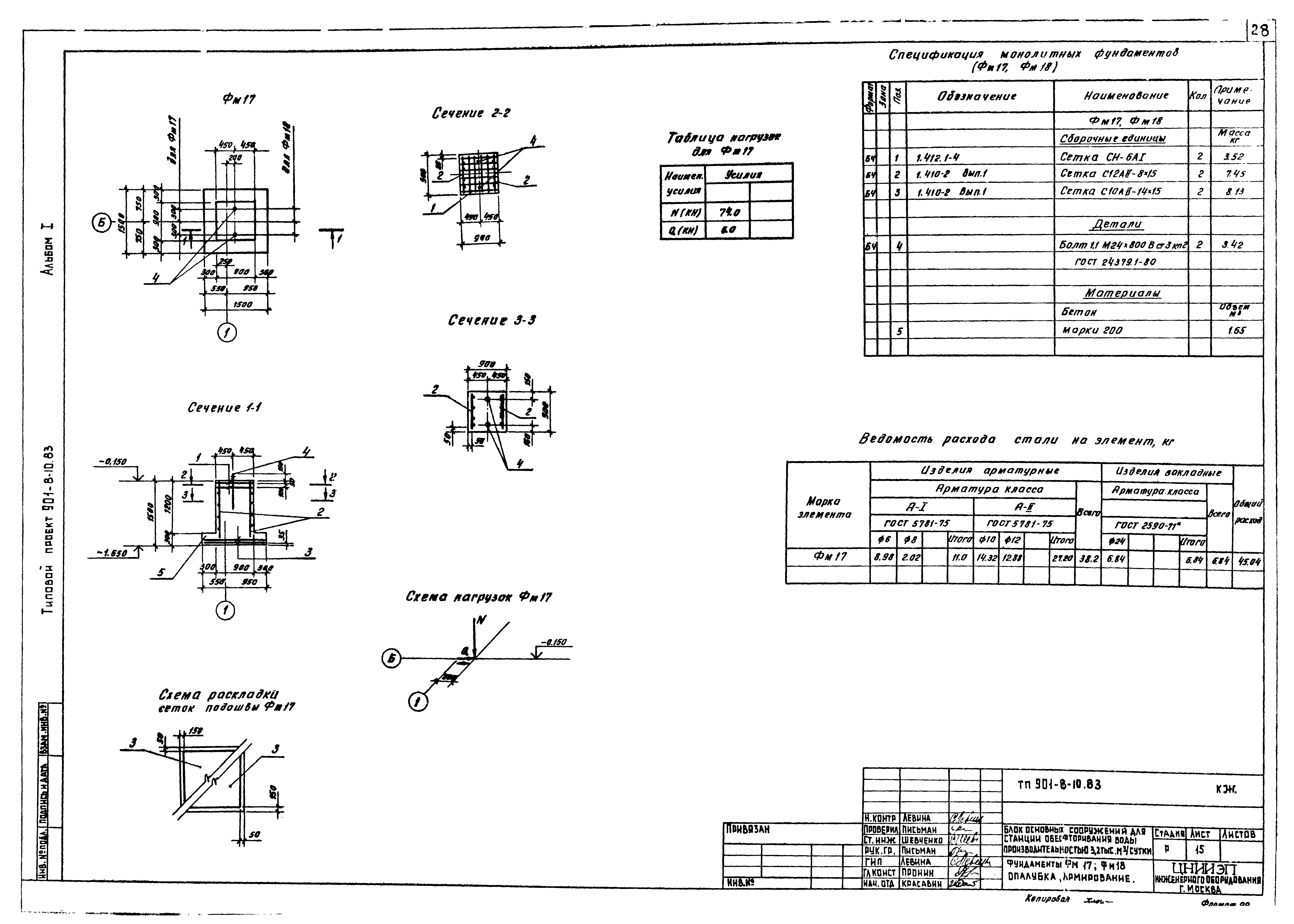
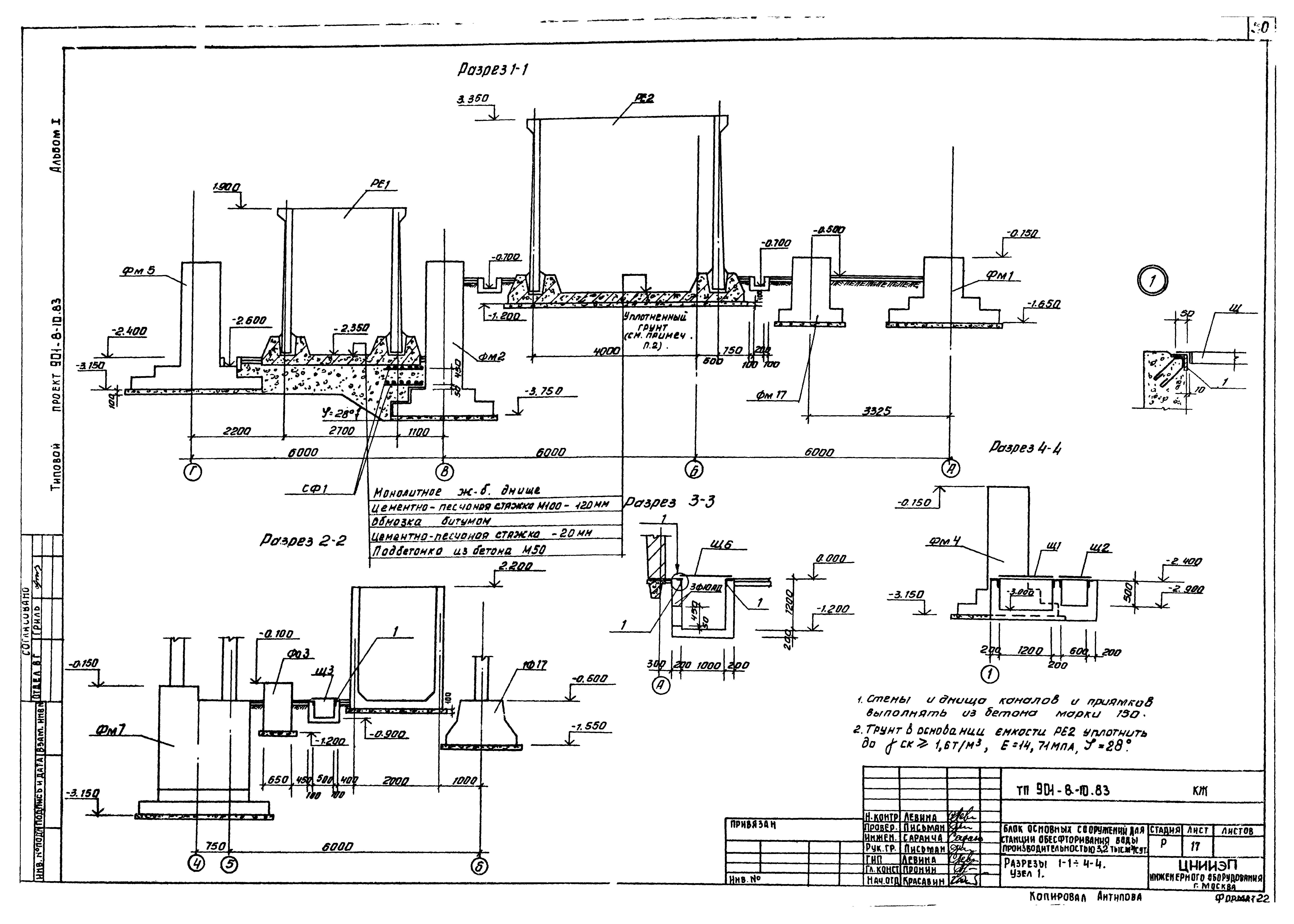
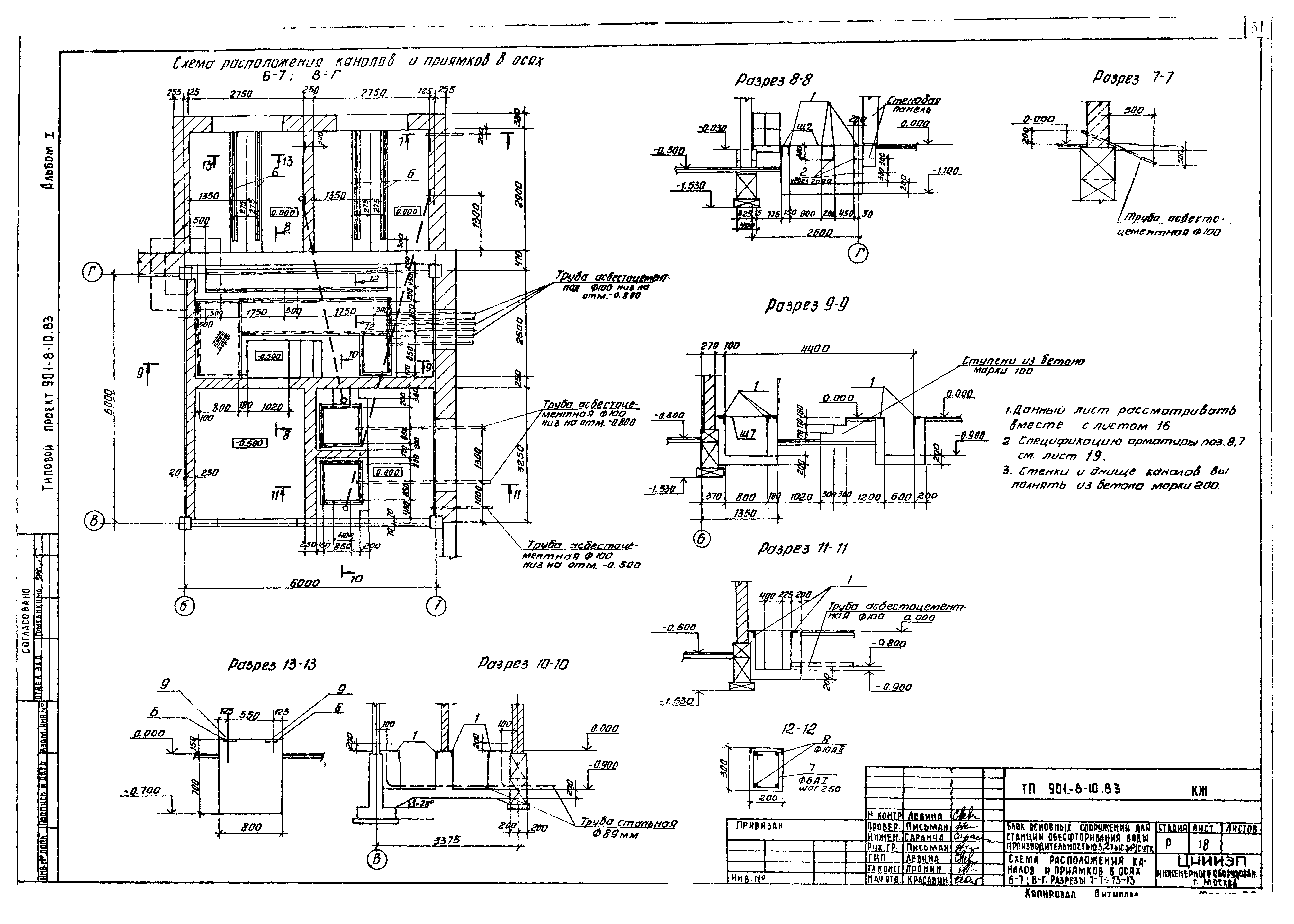
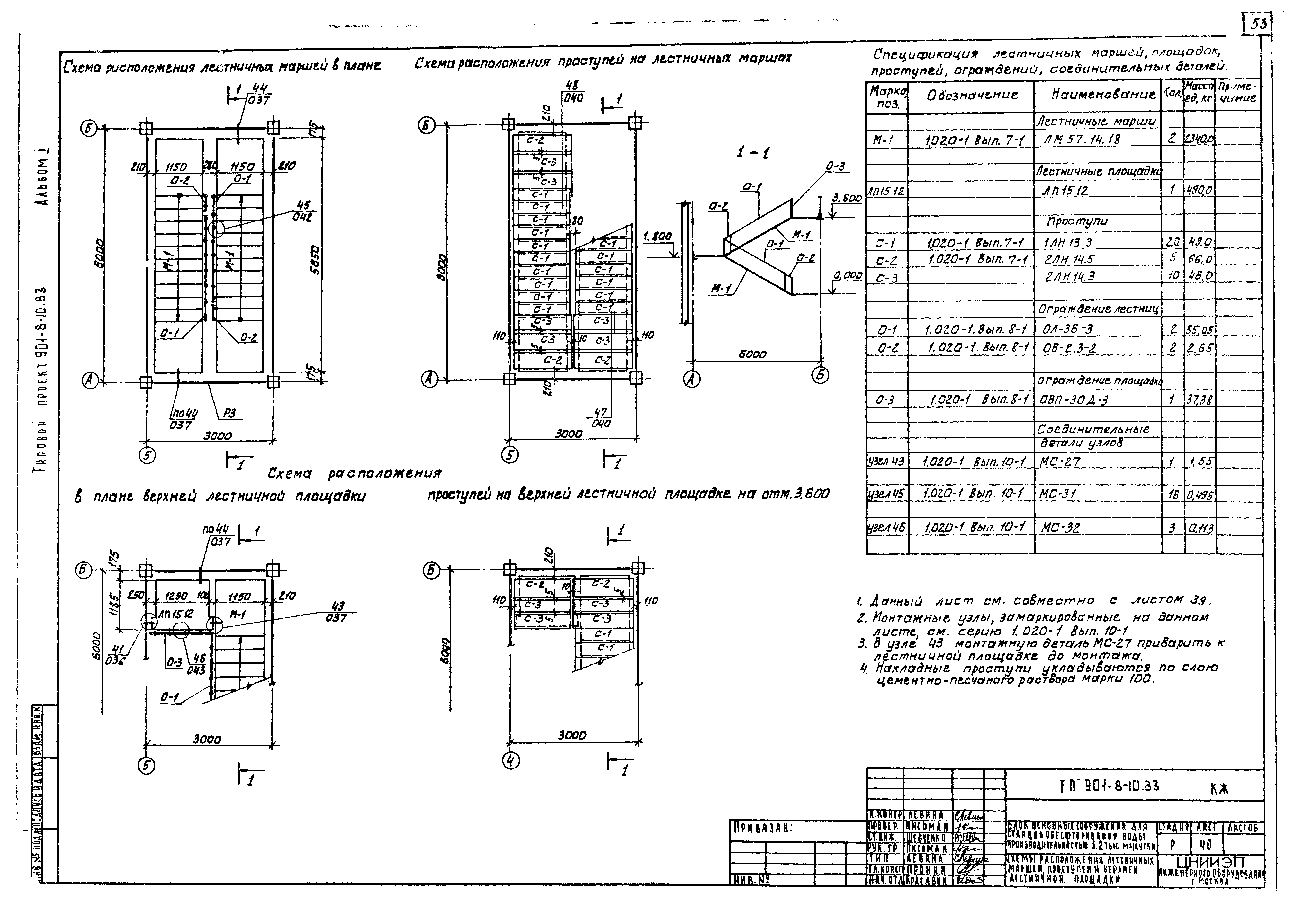
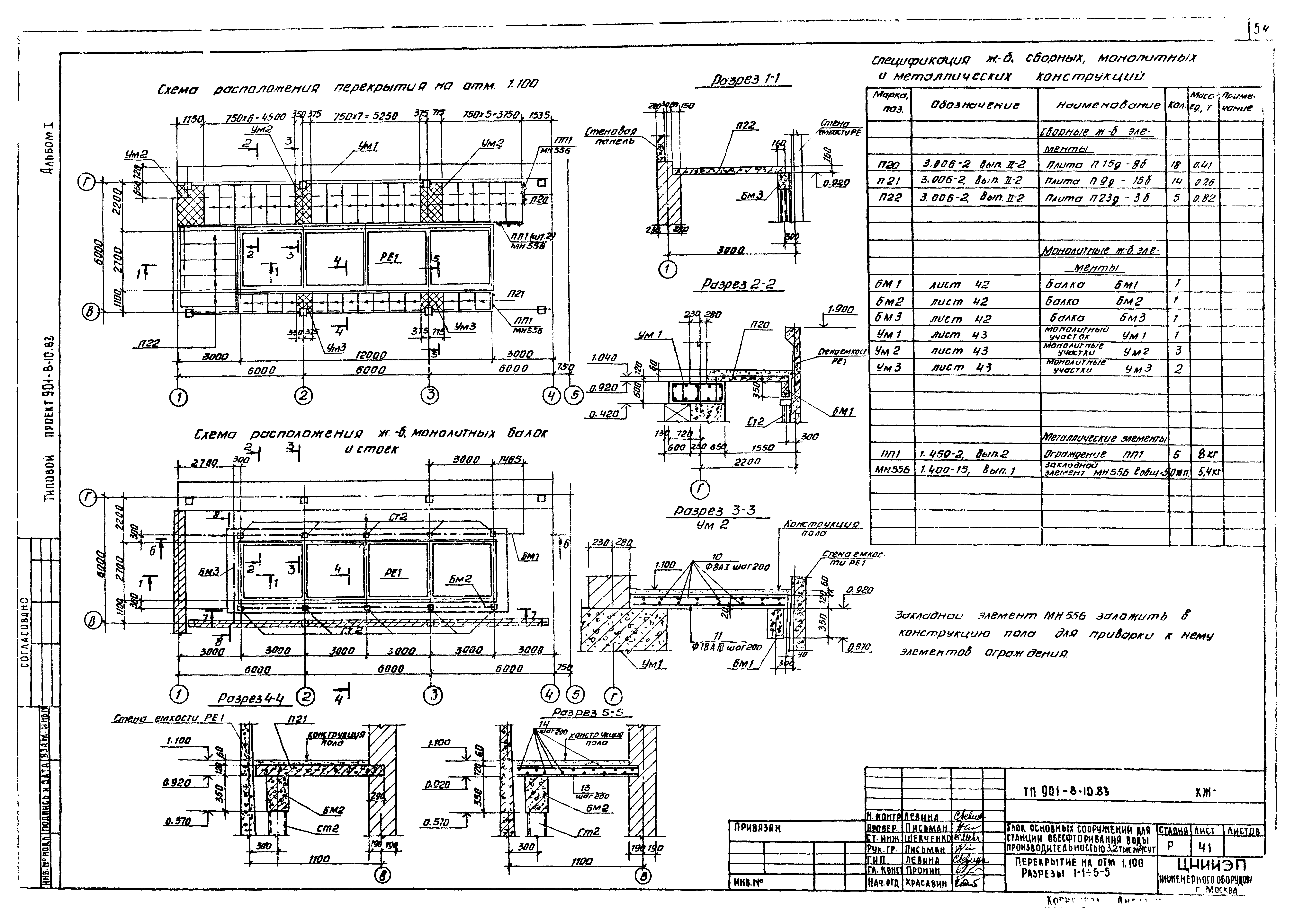
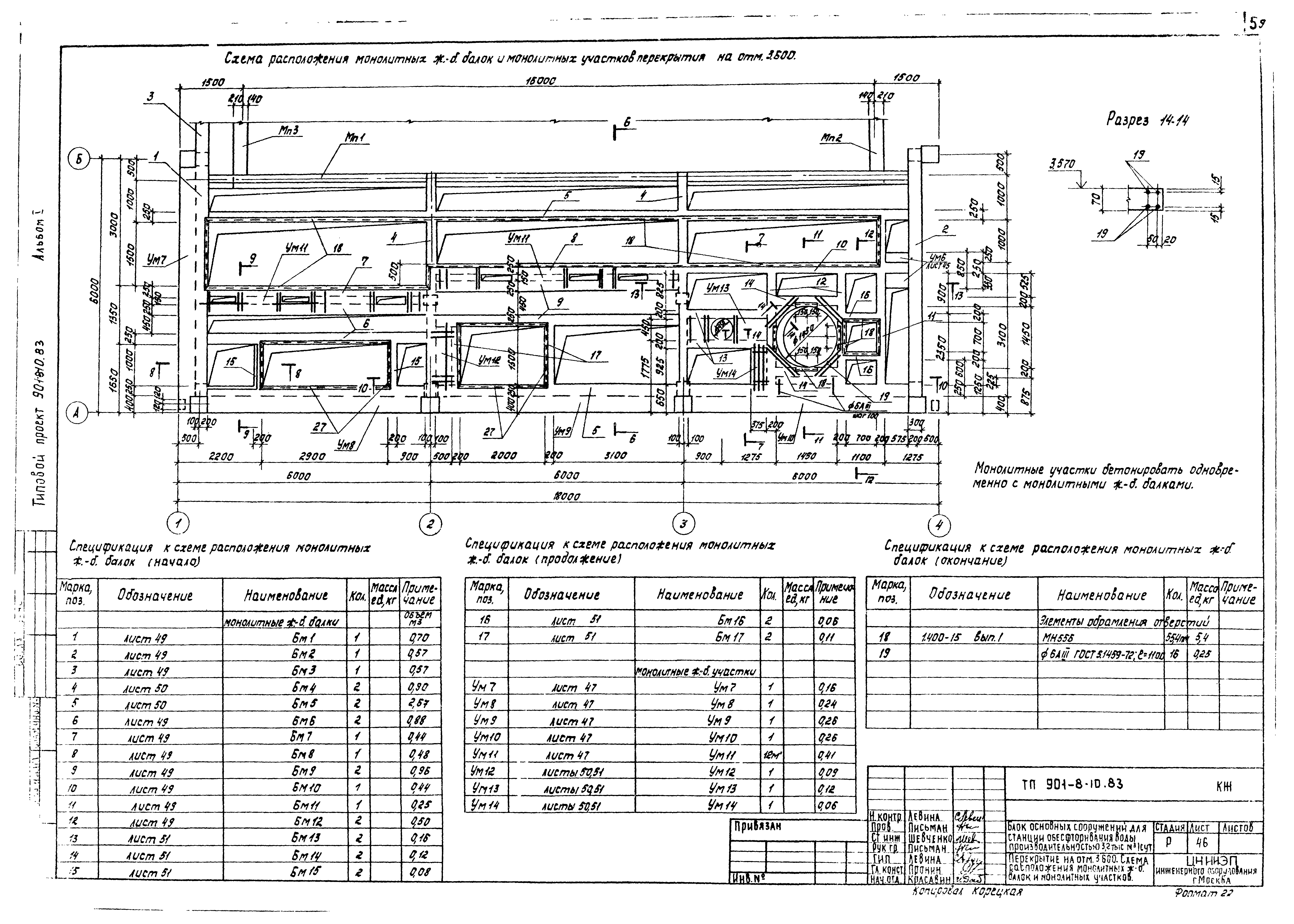
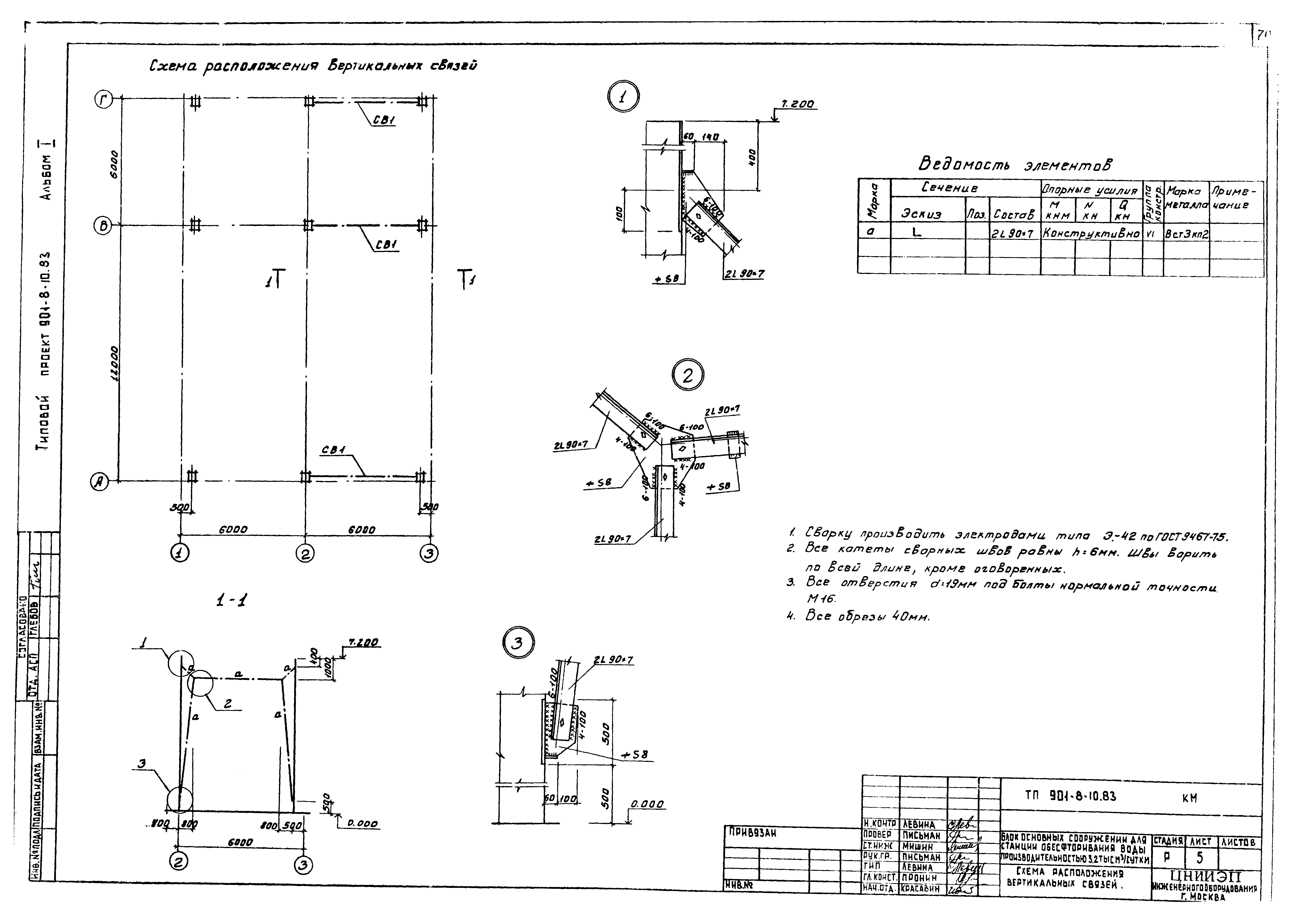
| Оглавление: | ТП 901-8-10.83 АР Листы марки АР ТП 901-8-10.83 АР-1 Общие данные ТП 901-8-10.83 АР-2 План на отм. - 2.400. Спецификация элементов заполнения проемов. Спецификация гардеробного оборудования. Узлы 1,2,3 ТП 901-8-10.83 АР-3 План на отм. 0.000 ТП 901-8-10.83 АР-4 План на отм. 3.600 ТП 901-8-10.83 АР-5 Разрезы 1-1;2-2;3-3. Узлы 4;5;6 ТП 901-8-10.83 АР-6 Фасады 1-7;7-1;А-Г;Г-А ТП 901-8-10.83 АР-7 Схема расположения перегородок в осях 1-4 ТП 901-8-10.83 АР-8 Ведомость и спецификация перемычек. Ведомость проемов ворот и дверей ТП 901-8-10.83 АР-9 Ведомость отделки ТП 901-8-10.83 АР-10 Планы полов и кровли. Экспликация полов ТП 901-8-10.83 КЖ Листы марки КЖ ТП 901-8-10.83 КЖ-1-3 Общие данные ТП 901-8-10.83 КЖ-4 Схема расположения фундаментов, фундаментных балок и подпорных стен ТП 901-8-10.83 КЖ-5 Схема расположения фундаментов, фундаментных балок и подпорных стен. Виды 1-1÷4-4. Сечения 5-5÷9-9;27-27 ТП 901-8-10.83 КЖ-6 Схема расположения фундаментов, фундаментных балок и подпорных стен. Виды 10-10÷13-13. Сечения 14-14÷17-17 ТП 901-8-10.83 КЖ-7 Схема расположения фундаментов, фундаментных балок и подпорных стен. Виды 18-18÷20-20. Сечения 21-21÷26-26 ТП 901-8-10.83 КЖ-8 Фундаменты ФМ1-ФМ3. Опалубочные чертежи. Армирование ТП 901-8-10.83 КЖ-9 Фундаменты ФМ4;ФМ5;ФМ6. Опалубочные чертежи. Армирование ТП 901-8-10.83 КЖ-10 Фундаменты ФМ7-ФМ10. Опалубочные чертежи ТП 901-8-10.83 КЖ-11 Фундаменты ФМ7-ФМ9. Армирование ТП 901-8-10.83 КЖ-12 Фундамент ФМ10. Армирование. Фундамент ФМ13. Опалубочный чертеж. Армирование ТП 901-8-10.83 КЖ-13 Фундаменты ФМ11;ФМ12. Опалубочные чертежи. Армирование ТП 901-8-10.83 КЖ-14 Фундаменты ФМ14;ФМ15;ФМ16. Опалубочные чертежи. Армирование ТП 901-8-10.83 КЖ-15 Фундаменты ФМ17;ФМ18. Опалубочные чертежи. Армирование ТП 901-8-10.83 КЖ-16 Схема расположения емкостей, фундаментов под оборудование, каналов и приямков ТП 901-8-10.83 КЖ-17 Разрезы 1-1÷4-4. Узел 1 ТП 901-8-10.83 КЖ-18 Схема расположения каналов и приямков в осях 6-7,В-Г. Разрезы 7-7÷13-13 ТП 901-8-10.83 КЖ-19 Схема расположения закладных деталей и труб на отм. -0.500. Разрезы 1-1÷3-3 ТП 901-8-10.83 КЖ-20 Фундаменты под оборудование ФО1-ФО10 ТП 901-8-10.83 КЖ-21 Антикоррозионная защита каналов и фундаментов под оборудование ТП 901-8-10.83 КЖ-22 Растворно-хранилищные баки коагулянта и соды (РЕ1). Схема расположения стеновых панелей и монолитных участков. Разрезы 1-1÷3-3. Узлы 3-4 ТП 901-8-10.83 КЖ-23 Схема расположения монолитных участков и закладных деталей. Армирование УМ1,УМ2,УМ3 в емкости РЕ1 ТП 901-8-10.83 КЖ-24 Армирование монолитного ж.б. днища емкости РЕ1 ТП 901-8-10.83 КЖ-25 Схема расположения каркасов в зубе днища емкости РЕ1 ТП 901-8-10.83 КЖ-26 Антикоррозионная защита и схема деревянной обрешетки в емкости РЕ1 ТП 901-8-10.83 КЖ-27 Контактные осветители (РЕ2). Схема расположения стеновых панелей и монолитных участков. Разрез 1-1 ТП 901-8-10.83 КЖ-28 Контактные осветители (РЕ2). Разрезы 2-2÷5-5. Узлы 3,4 ТП 901-8-10.83 КЖ-29 Контактные осветители (РЕ2). Узлы 1,2,5-8 ТП 901-8-10.83 КЖ-30 Контактные осветители (РЕ2). Схема расположения закладных изделий в монолитных участках. Армирование монолитных участков УМ1-УМ3 ТП 901-8-10.83 КЖ-31 Контактные осветители (РЕ2). Армирование днища ТП 901-8-10.83 КЖ-32 Контактные осветители (РЕ2). Схема расположения каркасов в зубе днища емкости ТП 901-8-10.83 КЖ-33 Расходные баки коагулянта (РЕ3). Опалубочные чертежи ТП 901-8-10.83 КЖ-34 Расходные баки коагулянта (РЕ3). Армирование ТП 901-8-10.83 КЖ-35 Схема расположения стеновых панелей по осям "А","Г","1","4","5","7" ТП 901-8-10.83 КЖ-36 Спецификация стеновых панелей и стальных элементов крепления каркаса ТП 901-8-10.83 КЖ-37 Схемы расположения поит покрытия и перекрытия. Разрезы 1-1÷3-3 ТП 901-8-10.83 КЖ-38 Схемы расположения колонн, балок, ригелей. Разрезы 1-1;2-2. Вид 3-3 ТП 901-8-10.83 КЖ-39 Схемы расположения колонн, балок, ригелей. Разрезы 5-6;6-6;8-8;9-9. Виды 4-4;7-7 ТП 901-8-10.83 КЖ-40 Схемы расположения лестничных маршей, проступей и верхней лестничной площадки ТП 901-8-10.83 КЖ-41 Перекрытие на отм. 1.100. Разрезы 1-1÷5-5 ТП 901-8-10.83 КЖ-42 Перекрытие на отм. 1.100. Армирование монолитных участков УМ1-УМ4 ТП 901-8-10.83 КЖ-43 Перекрытие на отм. 1.100. Баки БМ1-БМ3. Разрезы 6-6÷8-8. Узлы 1-2 ТП 901-8-10.83 КЖ-44 Схема расположения приточной венткамеры на отм. 3.600 ТП 901-8-10.83 КЖ-45 Перекрытие на отм. 3.600. Схема расположения перекрытия. Разрезы 1-1÷7-7. Монолитные участки УМ5-УМ6 ТП 901-8-10.83 КЖ-46 Перекрытие на отм. 3.600. Схема расположения монолитных ж.б. балок и монолитных участков ТП 901-8-10.83 КЖ-47 Перекрытие на отм. 3.600. Разрезы 8-8÷13-13. Монолитные участки УМ7-УМ11 ТП 901-8-10.83 КЖ-48 Перекрытие на отм. 3.600. Схема армирования монолитных ж.б. поясов МП1-МП4. Сечения 1-1÷3-3 ТП 901-8-10.83 КЖ-49 Перекрытие на отм. 3.600. Балки БМ1-БМ3;БМ6-БМ12 ТП 901-8-10.83 КЖ-50 Перекрытие на отм. 3.600. Балки БМ4-БМ5. Монолитные участки УМ12-УМ14 ТП 901-8-10.83 КЖ-51 Перекрытие на отм. 3.600. Балки БМ13-БМ15 ТП 901-8-10.83 КЖ-52 Схема расположения закладных деталей на отм.3.600 ТП 901-8-10.83 КЖ-53 Схема расположения закладных деталей в полу ТП 901-8-10.83 КМ Листы марки КМ ТП 901-8-10.83 КМ-1 Общие данные. Техническая спецификация металла ТП 901-8-10.83 КМ-2 Техническая спецификация стали ТП 901-8-10.83 КМ-3 Техническая спецификация стали на типовые конструкции ТП 901-8-10.83 КМ-4 Выборка стали по видам профилей ТП 901-8-10.83 КМ-5 Схема расположения вертикальных связей ТП 901-8-10.83 КМ-6 Схема расположения подкрановых путей и монорельсов ТП 901-8-10.83 КМ-7 Узлы монорельсов 1-3 ТП 901-8-10.83 КМ-8 Схемы расположения металлических площадок ТП 901-8-10.83 КМ-9 Лестницы металлические ТП 901-8-10.83 КМ-10 Узлы 1-4 ТП 901-8-10.83 КМ-11 Узлы 5-7 ТП 901-8-10.83 КМ-12 Схема расположения ограждений ТП 901-8-10.83 КМ-13 Схема расположения элементов ограждения контактного осветителя |
| Разработан: | ЦНИИЭП |
| Утверждён: | 22.07.1981 Госгражданстрой (Gosgrazhdanstroy 219) |














































































