Скачать Типовой проект 901-8-10.83 Альбом III. Электротехническая часть. Связь и сигнализацияДата актуализации: 01.01.2021
|
| Обозначение: | Типовой проект 901-8-10.83 |
| Обозначение англ: | 901-8-10.83 |
| Статус: | не определен законодательством |
| Название рус.: | Альбом III. Электротехническая часть. Связь и сигнализация |
| Дата добавления в базу: | 01.09.2013 |
| Дата актуализации: | 01.01.2021 |
| Дата введения: | 17.12.1982 |
| Дата окончания срока действия: | 30.06.2003 |
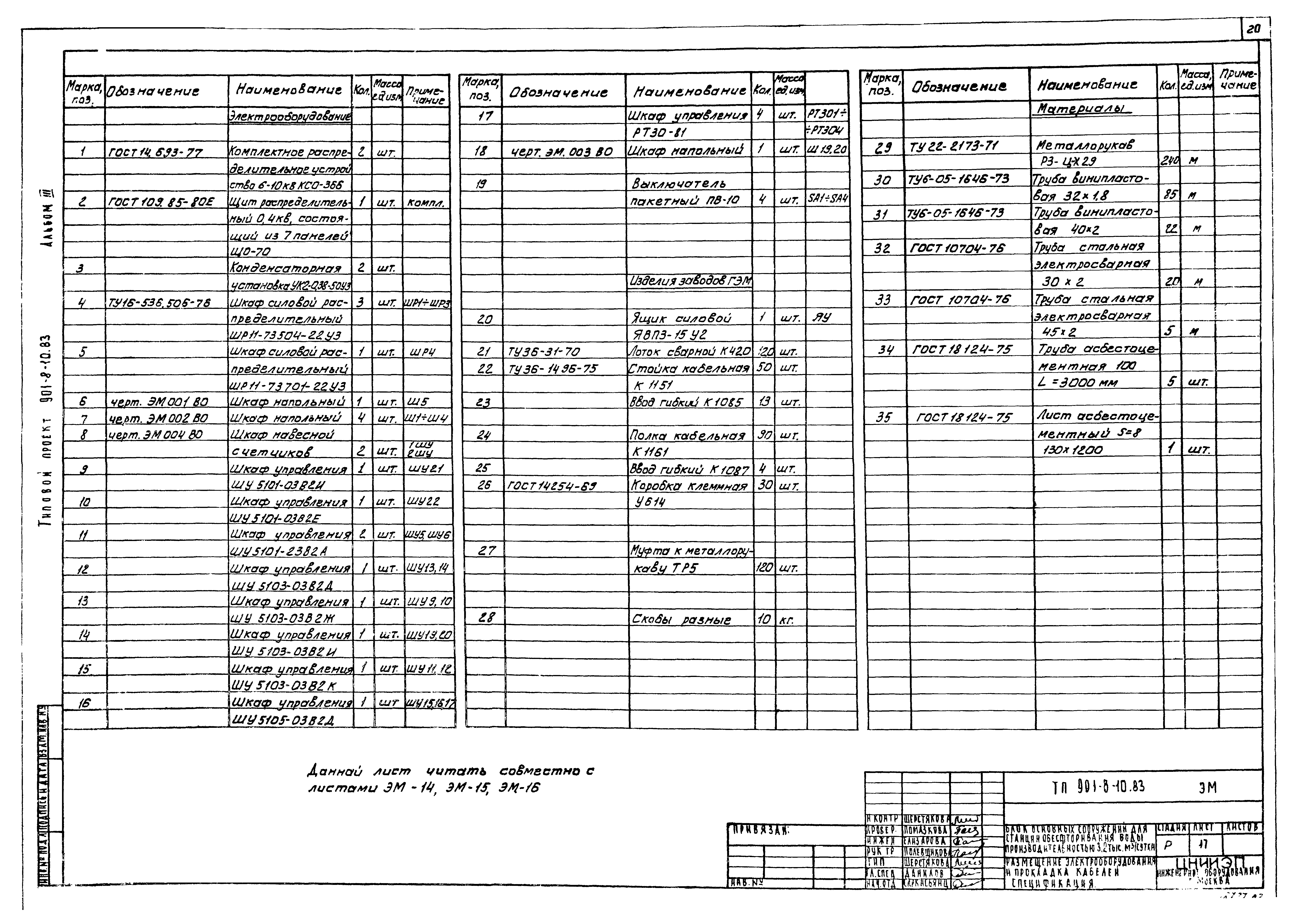
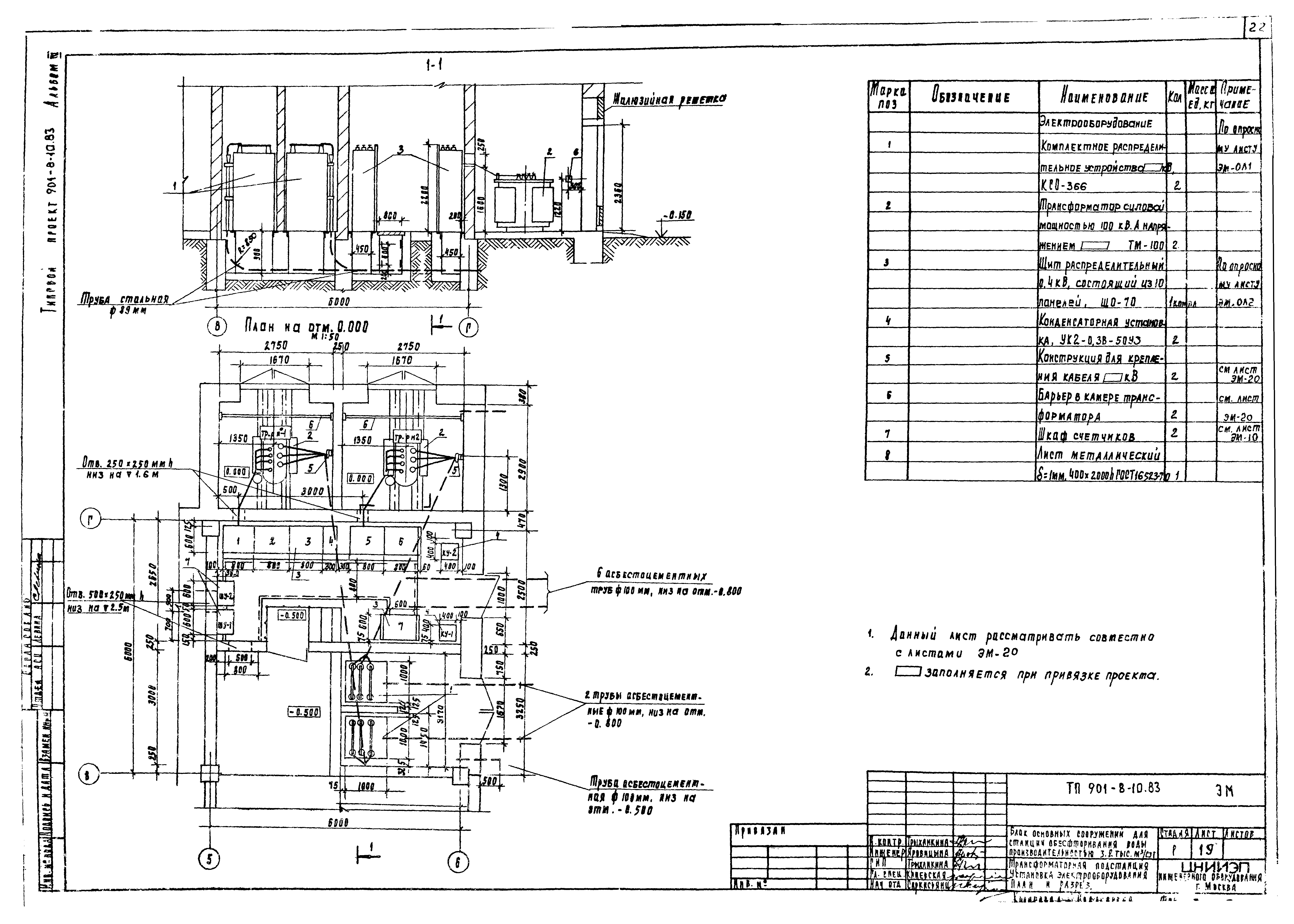
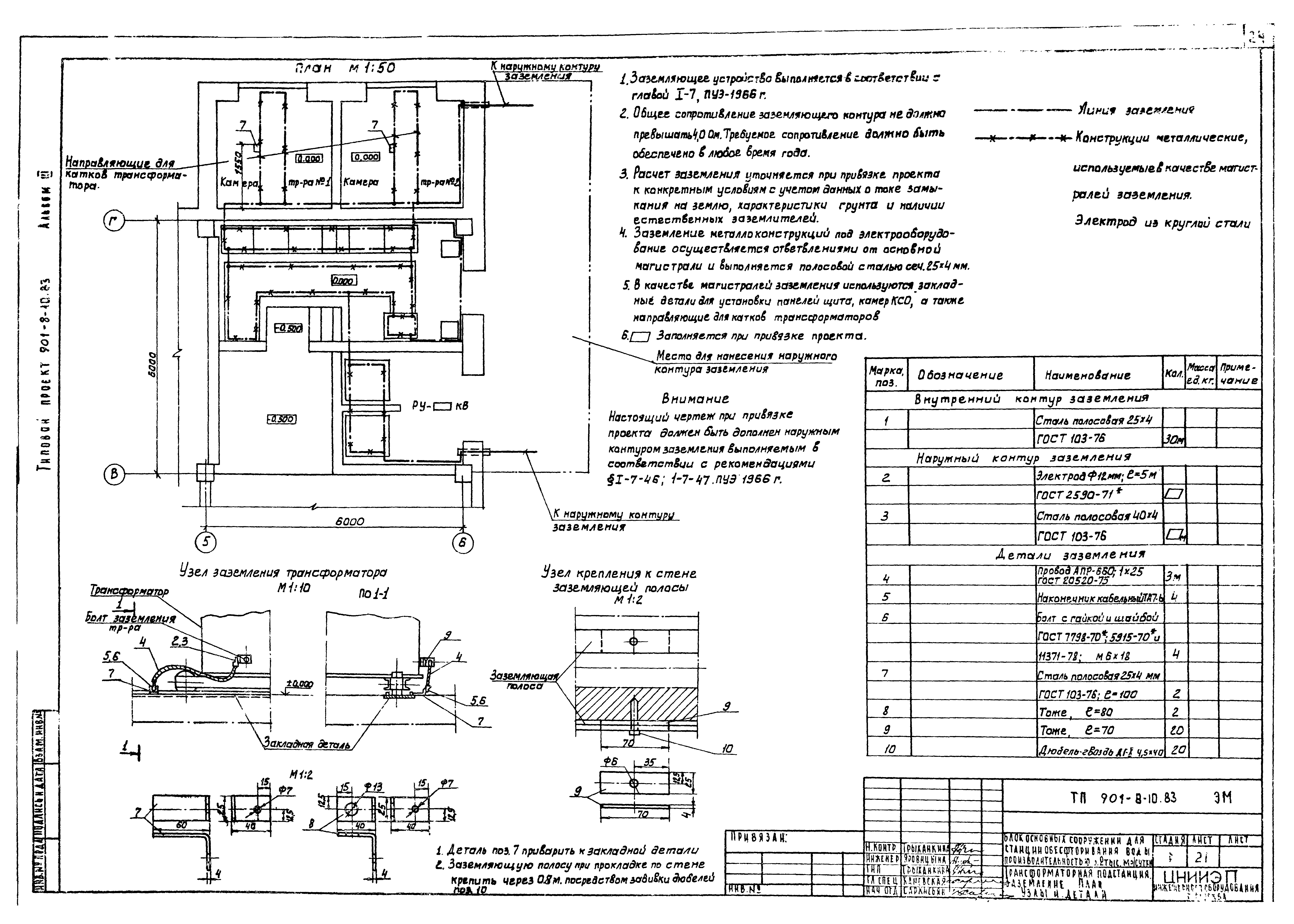
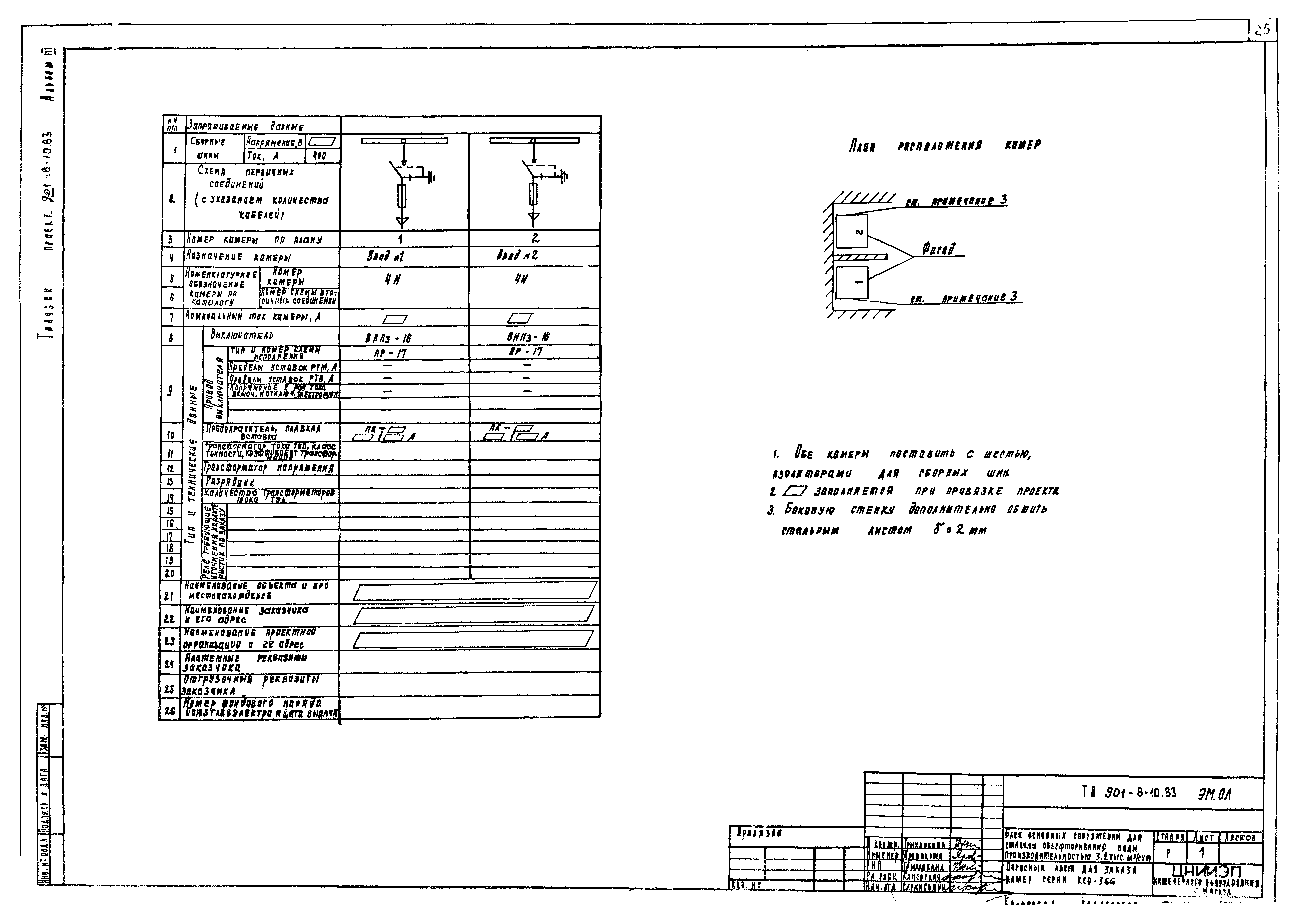
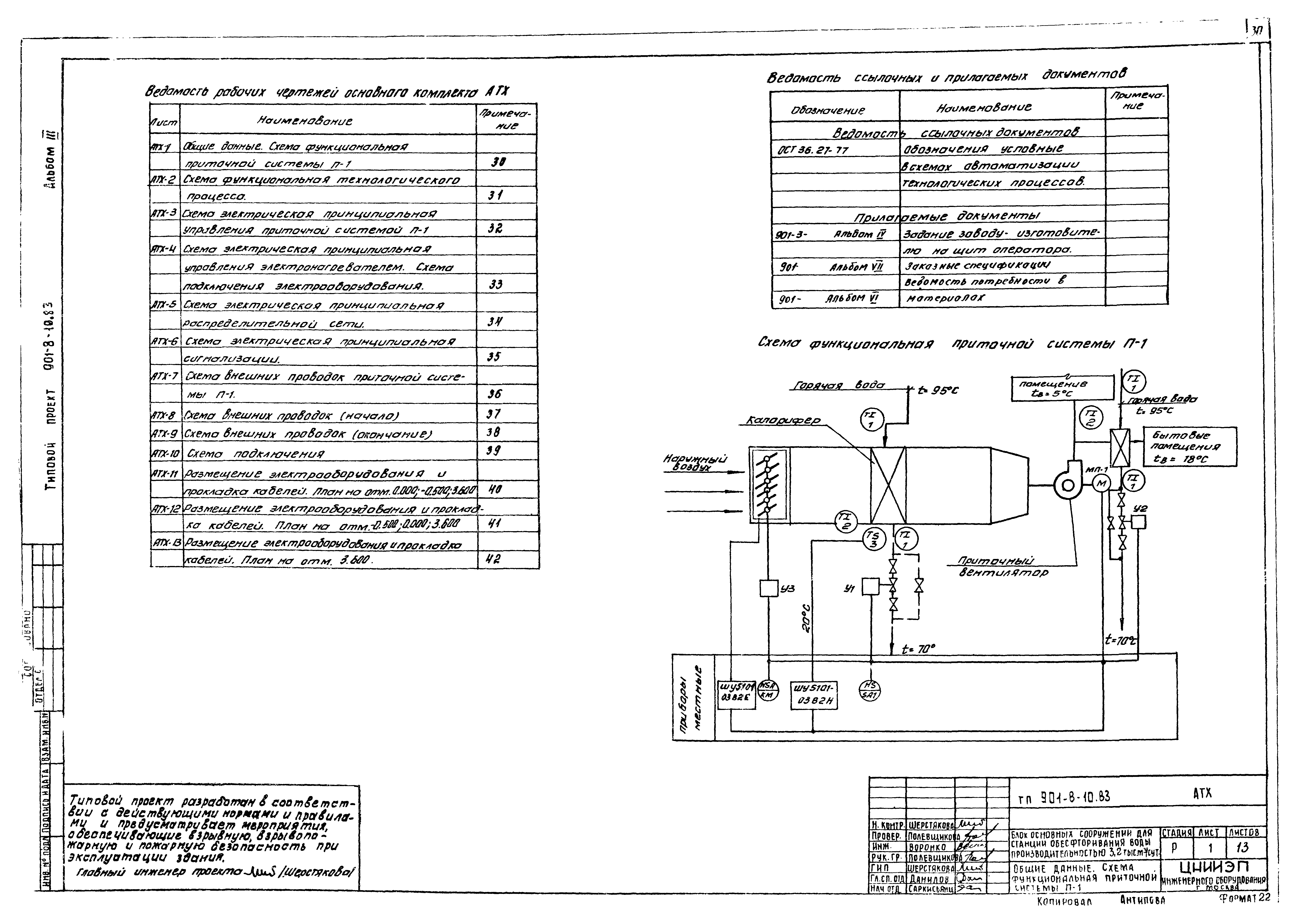
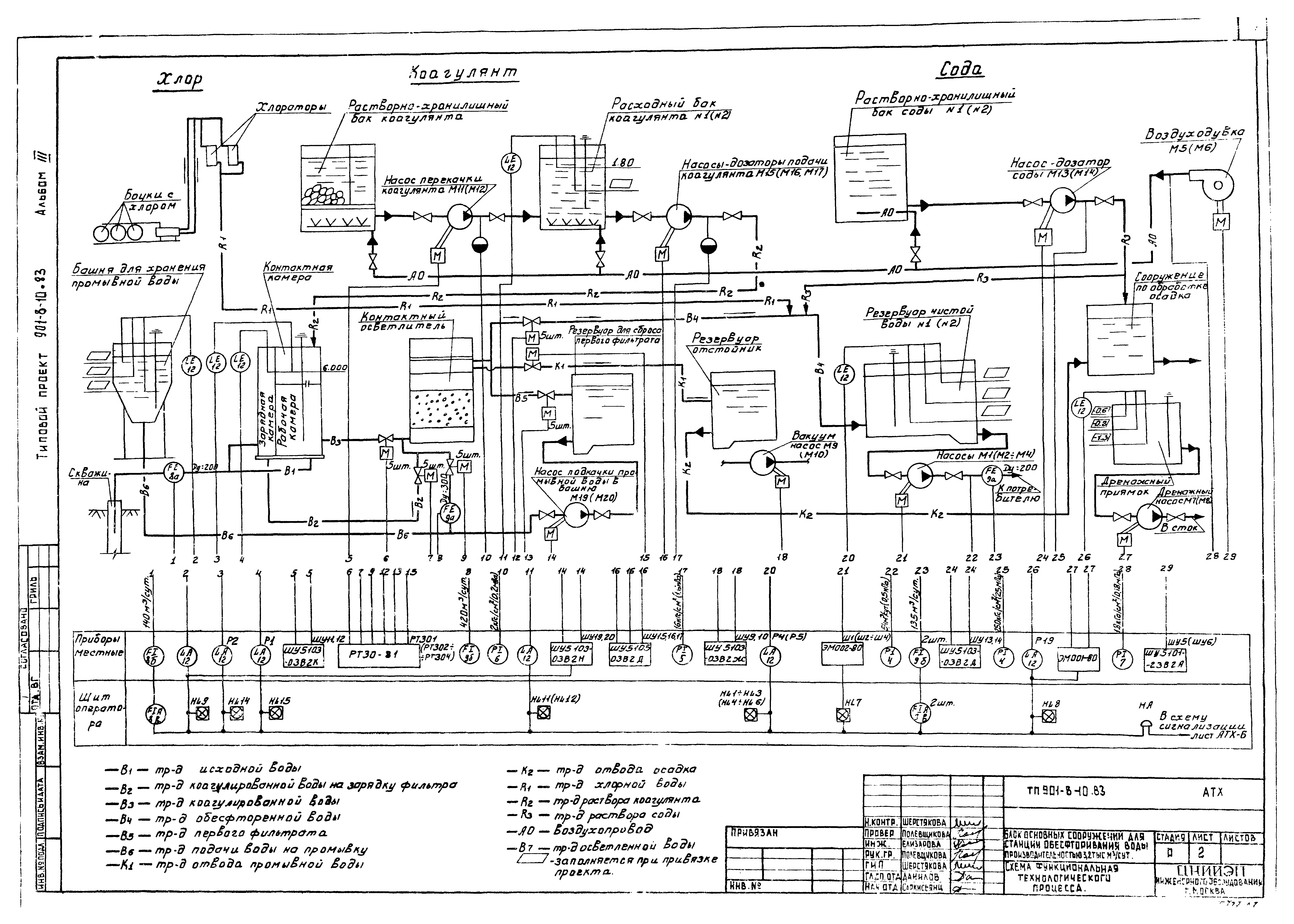
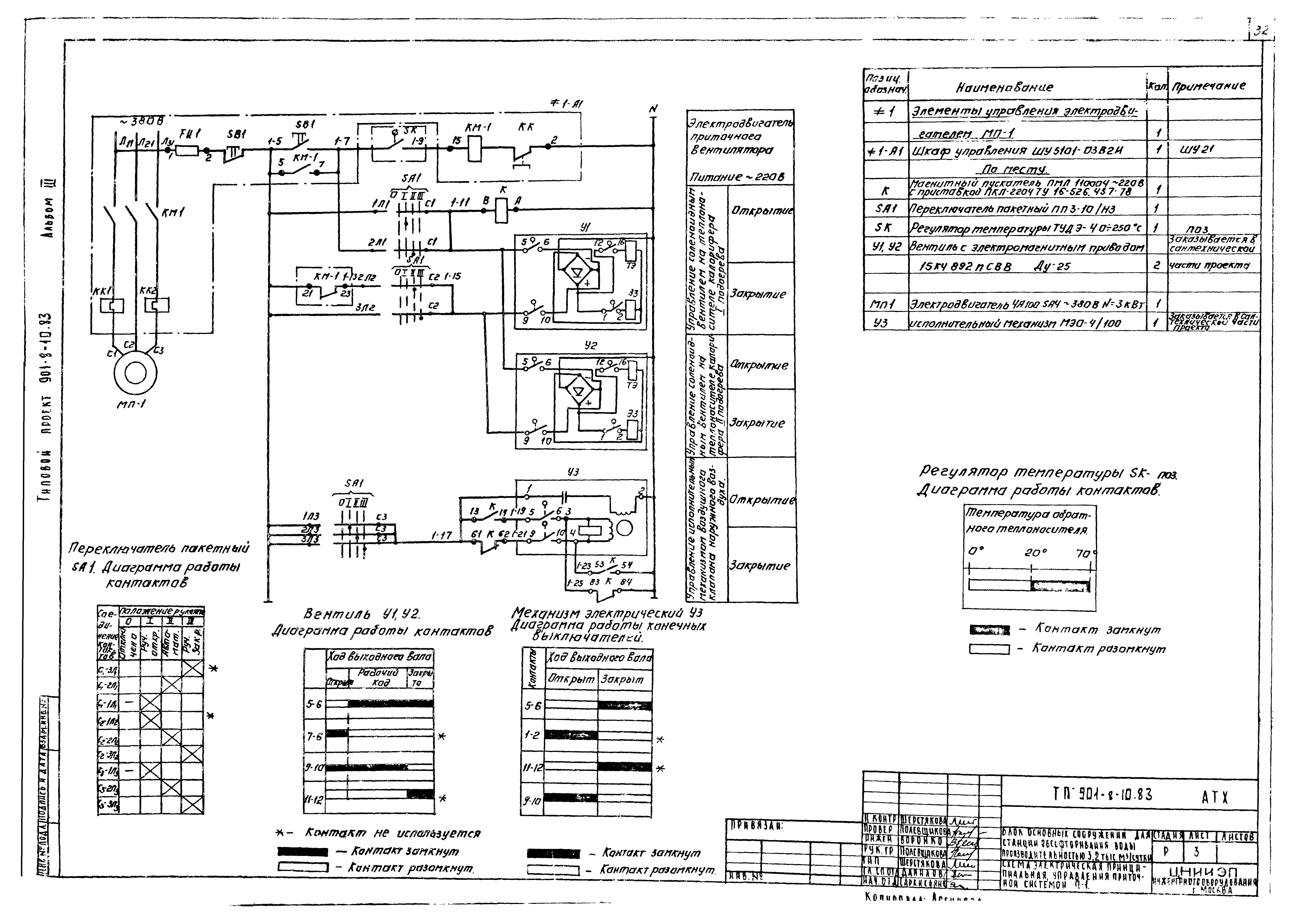
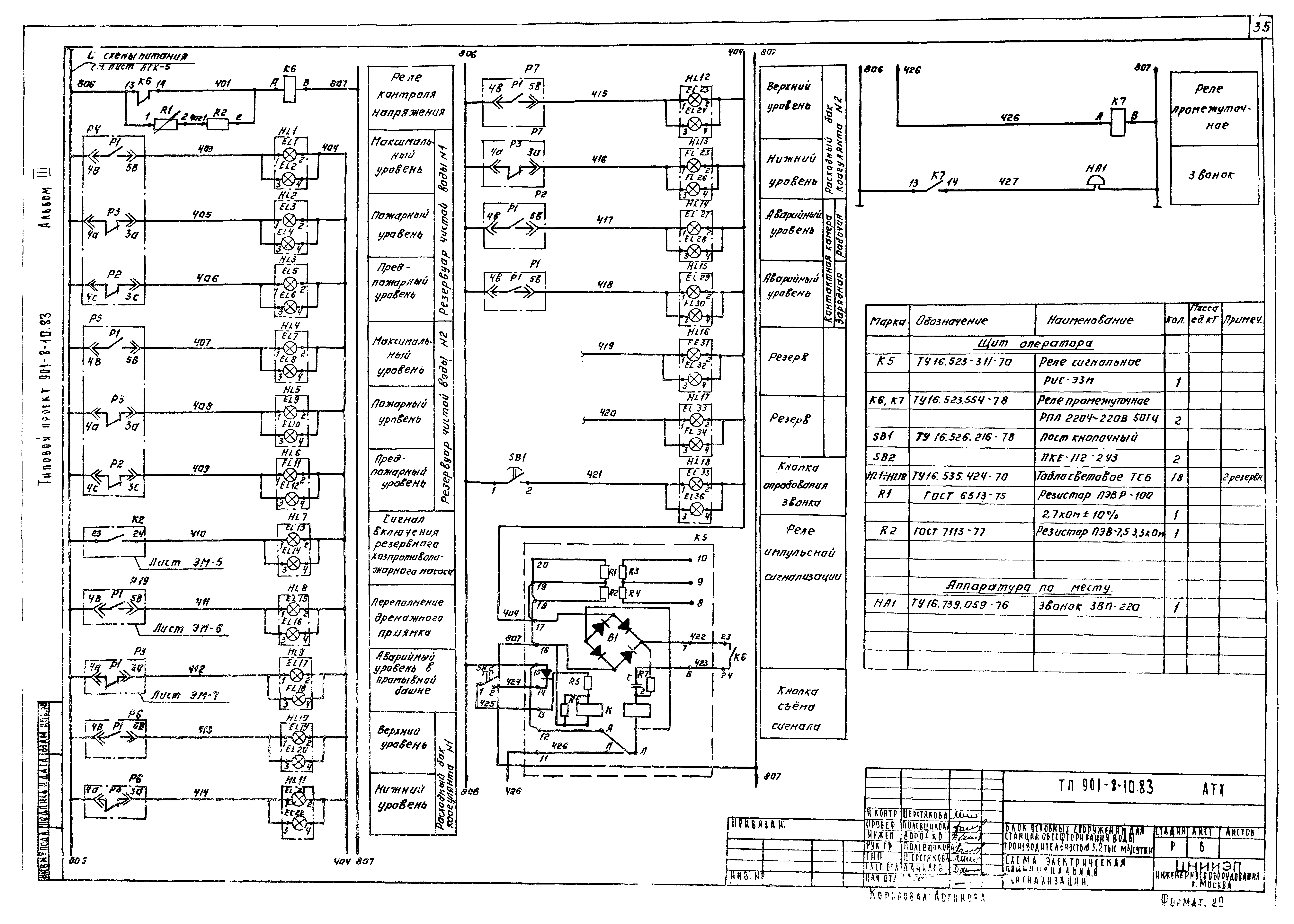
| Оглавление: | ТП 901-8-10.83 Содержание альбома ТП 901-8-10.83 ЭМ Силовое электрооборудование ТП 901-8-10.83 ЭМ-1 Общие данные ТП 901-8-10.83 ЭМ-2 Трансформаторная подстанция. Схема принципиальная электрическая ТП 901-8-10.83 ЭМ-3 Схема электрическая принципиальная распределительной сети ~380/220В /Начало/ ТП 901-8-10.83 ЭМ-4 Схема электрическая принципиальная распределительной сети ~380/220В /Окончание/ ТП 901-8-10.83 ЭМ-5 Схема электрическая принципиальная управления хозпротивопожарными насосами М1(М2-М4) ТП 901-8-10.83 ЭМ-6 Схема электрическая принципиальная управления дренажными насосами М7;М8 ТП 901-8-10.83 ЭМ-7 Схема электрическая принципиальная управления подкачивающими насосами М19;М20 ТП 901-8-10.83 ЭМ-8 Схема электрическая принципиальная управления задвижками М21-М25 ТП 901-8-10.83 ЭМ-9 Схема подключения задвижек М21-М25 ТП 901-8-10.83 ЭМ-10 Шкаф навесной счетчиков. Общий вид. Принципиальная схема. Схема соединений ТП 901-8-10.83 ЭМ-11 Кабельный журнал (Начало) ТП 901-8-10.83 ЭМ-12 Кабельный журнал (Продолжение) ТП 901-8-10.83 ЭМ-13 Кабельный журнал (Окончание) ТП 901-8-10.83 ЭМ-14 Размещение электрооборудования и прокладка кабелей. Планы на отм. -0.500;0.000 ТП 901-8-10.83 ЭМ-15 Размещение электрооборудования и прокладка кабелей. Планы на отм. 0.000;3.600 ТП 901-8-10.83 ЭМ-16 Размещение электрооборудования и прокладка кабелей. Планы на отм. -2.400;-0.500;0.00;3.600 ТП 901-8-10.83 ЭМ-17 Размещение электрооборудования и прокладка кабелей. Спецификация ТП 901-8-10.83 ЭМ-18 План прокладки троллейного шинопровода для электрической тали ТП 901-8-10.83 ЭМ-19 Трансформаторная подстанция. Установка электрооборудования. План и разрез ТП 901-8-10.83 ЭМ-20 Трансформаторная подстанция. Выводы н.н в камере трансформатора. Конструкции ТП 901-8-10.83 ЭМ-21 Трансформаторная подстанция. Заземление. План. Узлы и детали ТП 901-8-10.83 ЭМ.ОЛ1 Опросный лист для заказа камер серии КСО-366 ТП 901-8-10.83 ЭМ.ОЛ2 Опросный лист для заказа щита из панелей ЩО70 ТП 901-8-10.83 ЭО Электроосвещение ТП 901-8-10.83 ЭО-1 Общие данные ТП 901-8-10.83 ЭО-2 Электрическое освещение. Планы на отм. -0.500;0.000 ТП 901-8-10.83 ЭО-3 Электрическое освещение. План на отм. 3.600 ТП 901-8-10.83 АТХ Автоматизация технологического процесса ТП 901-8-10.83 АТХ-1 Общие данные. Схема функциональная приточной системы П-1 ТП 901-8-10.83 АТХ-2 Схема функциональная технологического процесса ТП 901-8-10.83 АТХ-3 Схема электрическая принципиальная управления приточной системой П-1 ТП 901-8-10.83 АТХ-4 Схема электрическая принципиальная управления электронагревателем. Схема подключения электрооборудования ТП 901-8-10.83 АТХ-5 Схема электрическая принципиальная распределительной сети ТП 901-8-10.83 АТХ-6 Схема электрическая принципиальная сигнализации ТП 901-8-10.83 АТХ-7 Схема внешних проводок приточной системы П-1 ТП 901-8-10.83 АТХ-8 Схема внешних проводок (Начало) ТП 901-8-10.83 АТХ-9 Схема внешних проводок (Окончание) ТП 901-8-10.83 АТХ-10 Схема подключения ТП 901-8-10.83 АТХ-11 Размещение электрооборудования и прокладка кабелей. План на отм. 0.000;-0.500;3.600 ТП 901-8-10.83 АТХ-12 Размещение электрооборудования и прокладка кабелей. План на отм. -0.500;0.000;3.600 ТП 901-8-10.83 АТХ-13 Размещение электрооборудования и прокладка кабелей. План на отм. 3.600 ТП 901-8-10.83 СС Связь и сигнализация ТП 901-8-10.83 СС-1 Общие данные. План на отм. 0.000 и 3.600 с сетями связи |
| Разработан: | ЦНИИЭП |
| Утверждён: | 22.07.1981 Госгражданстрой (Gosgrazhdanstroy 219) |











































