Скачать Типовой проект 902-1-106.86 Альбом 2. Технологические решения. Внутренний водопровод и канализация. Отопление и вентиляция (из ТП 902-1-104.86)Дата актуализации: 01.01.2021
|
| Обозначение: | Типовой проект 902-1-106.86 |
| Обозначение англ: | 902-1-106.86 |
| Статус: | не определен законодательством |
| Название рус.: | Альбом 2. Технологические решения. Внутренний водопровод и канализация. Отопление и вентиляция (из ТП 902-1-104.86) |
| Дата добавления в базу: | 01.09.2013 |
| Дата актуализации: | 01.01.2021 |
| Дата введения: | 01.03.1987 |
| Дата окончания срока действия: | 30.06.2003 |
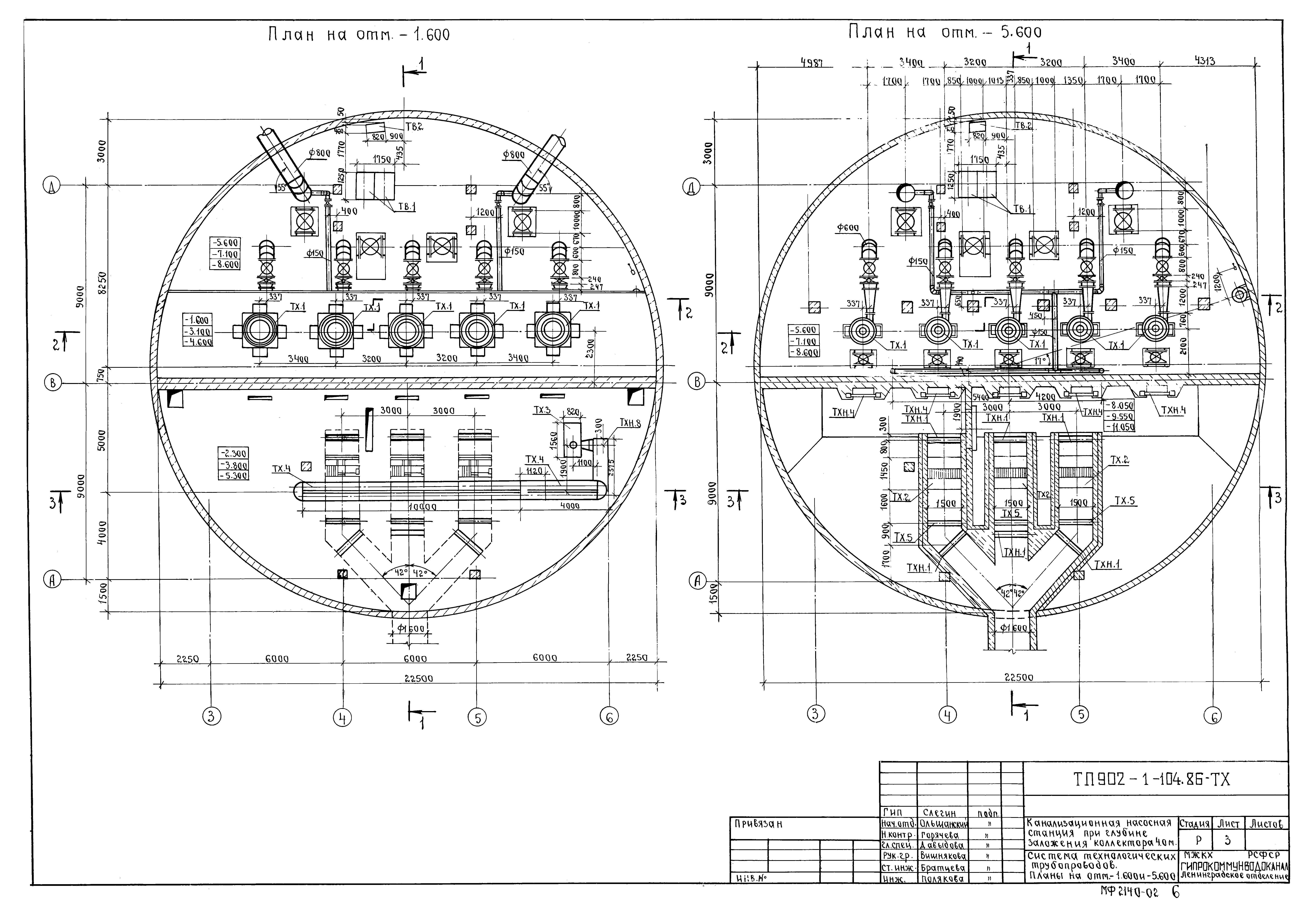
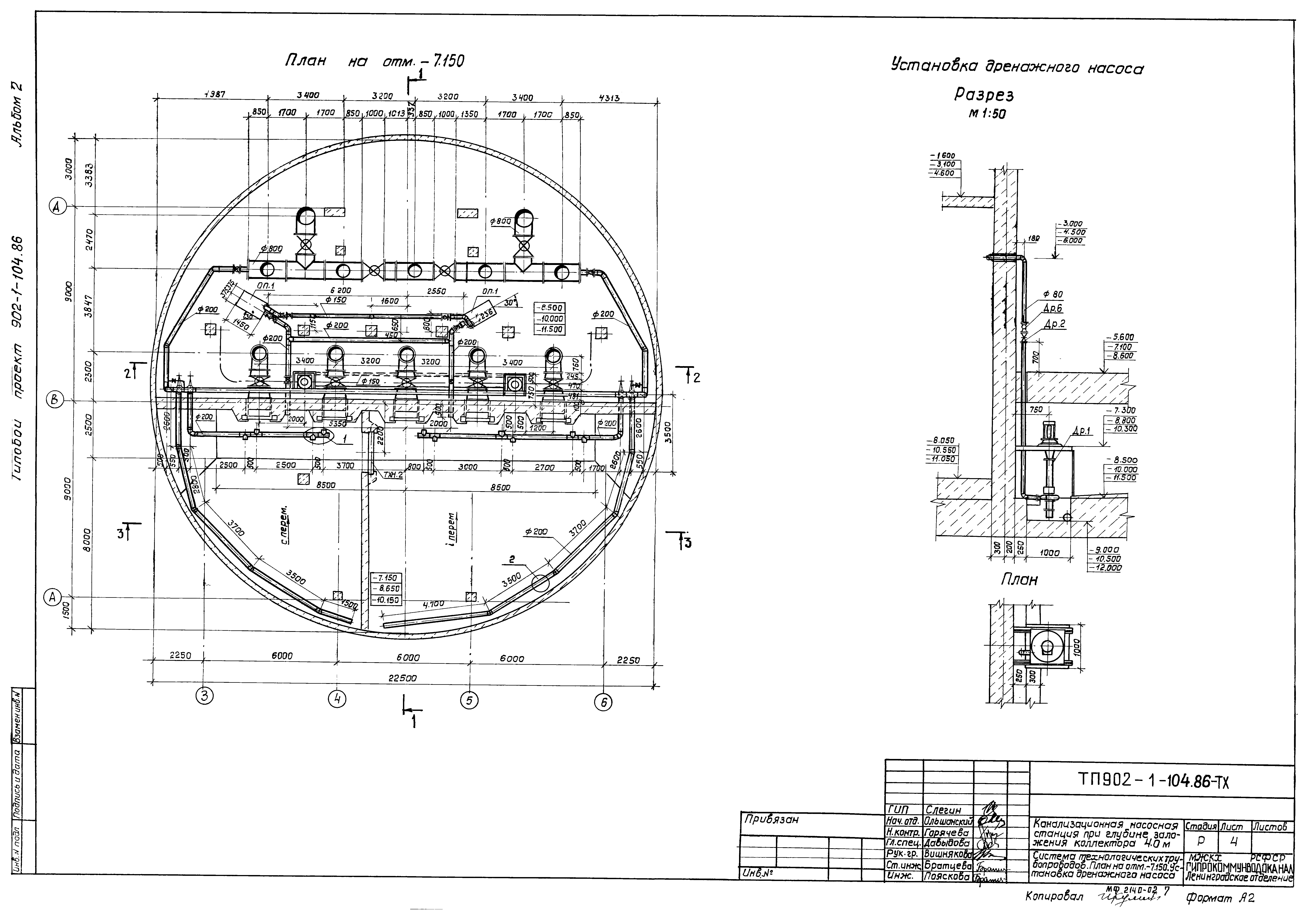
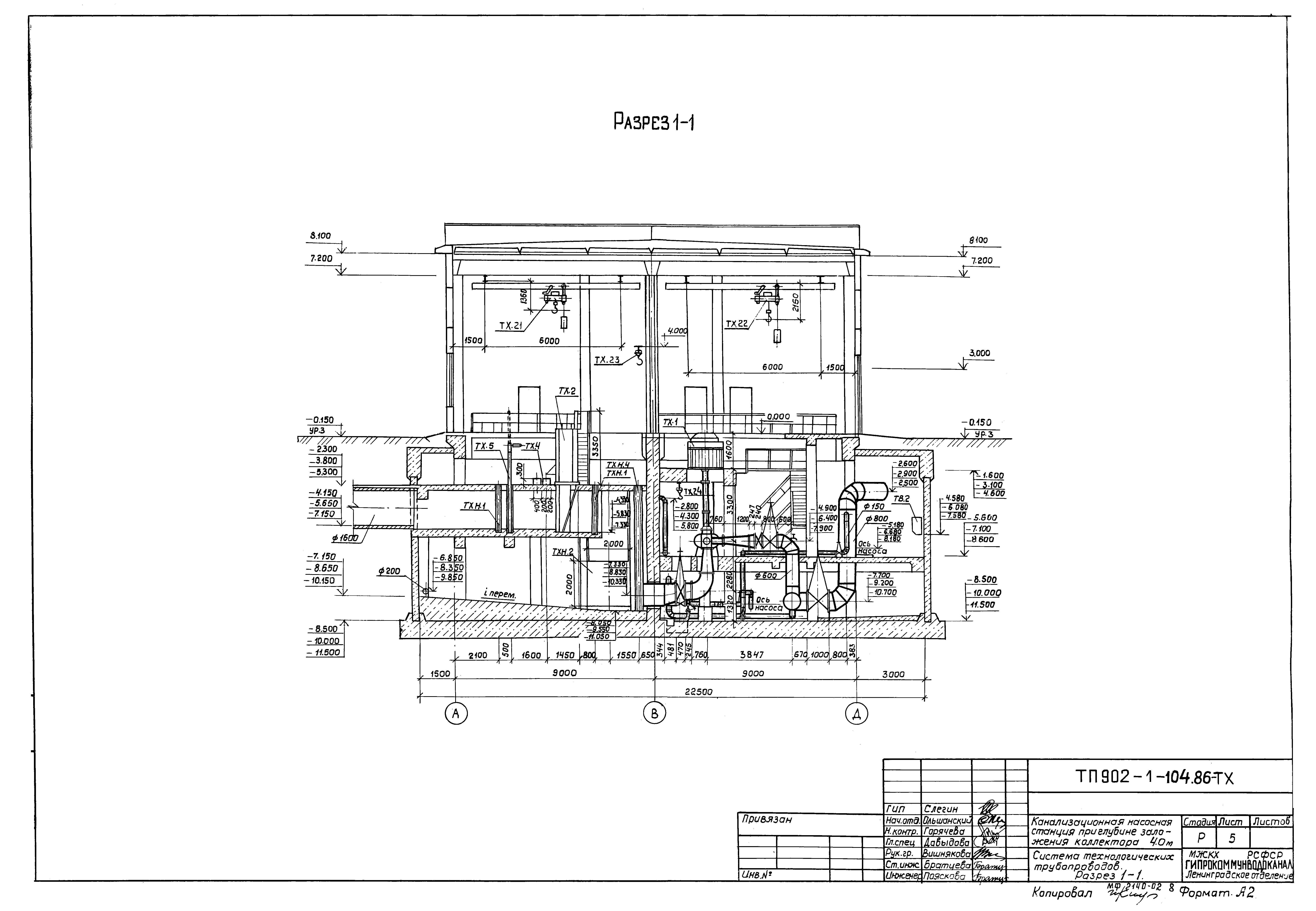
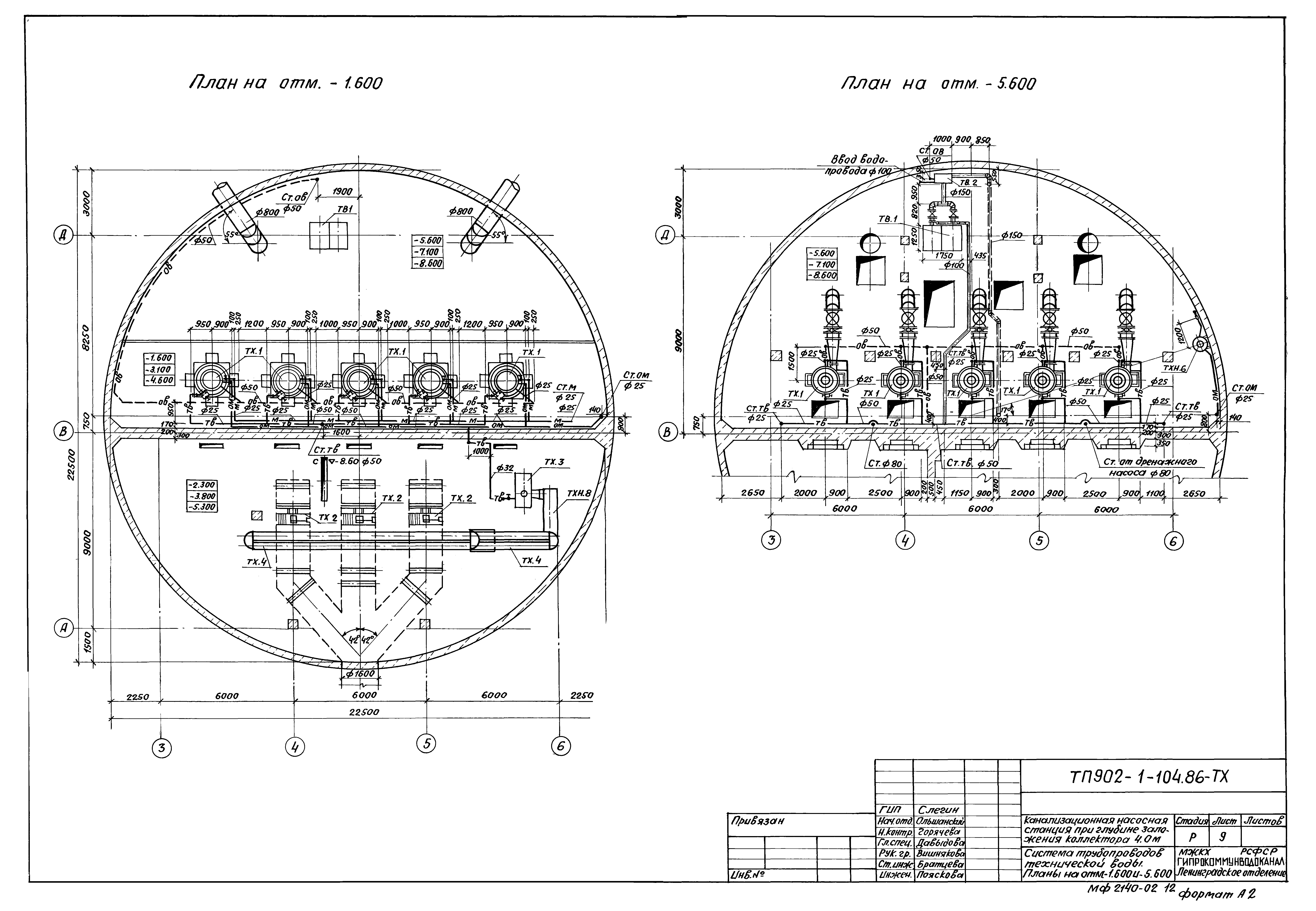
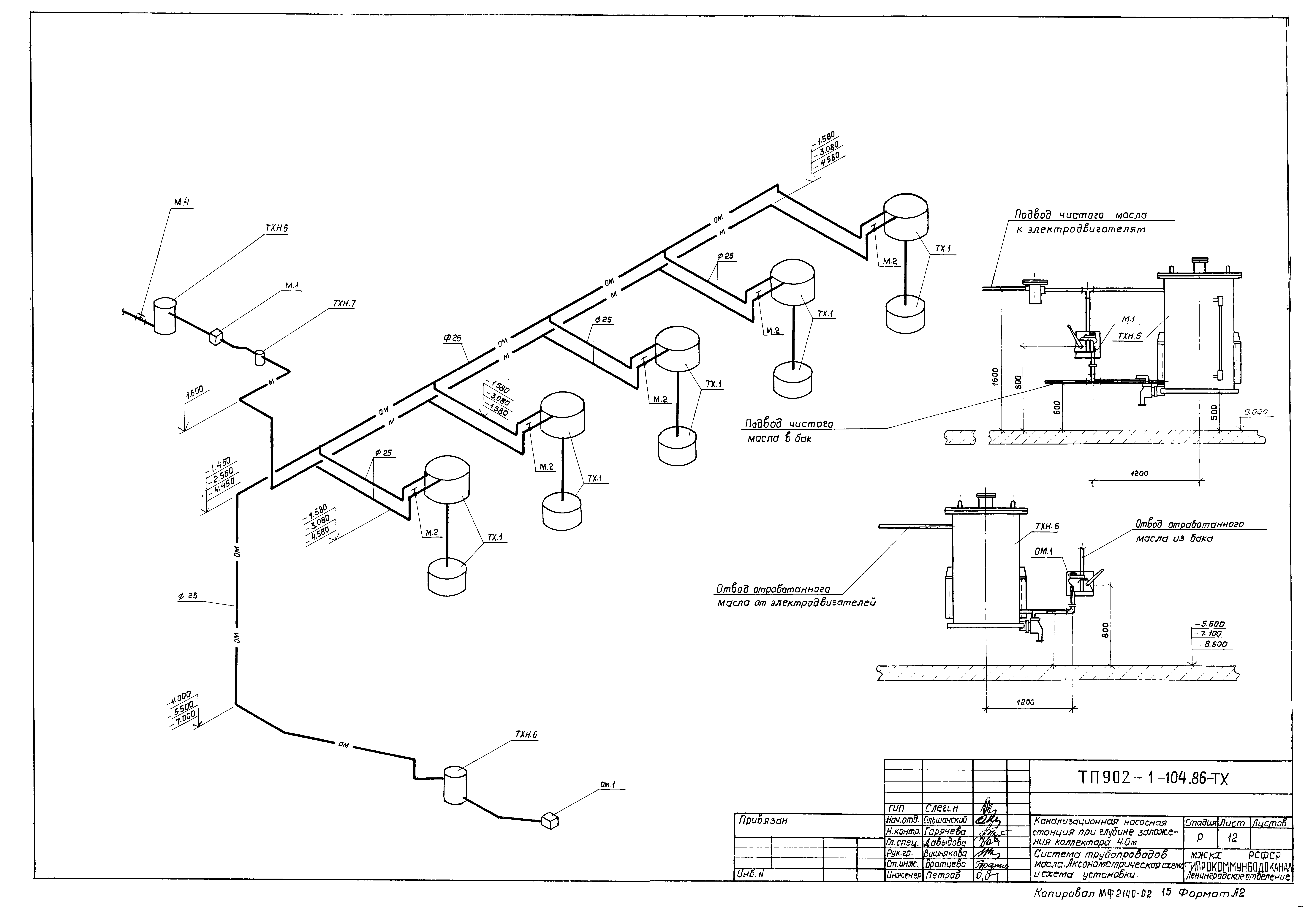
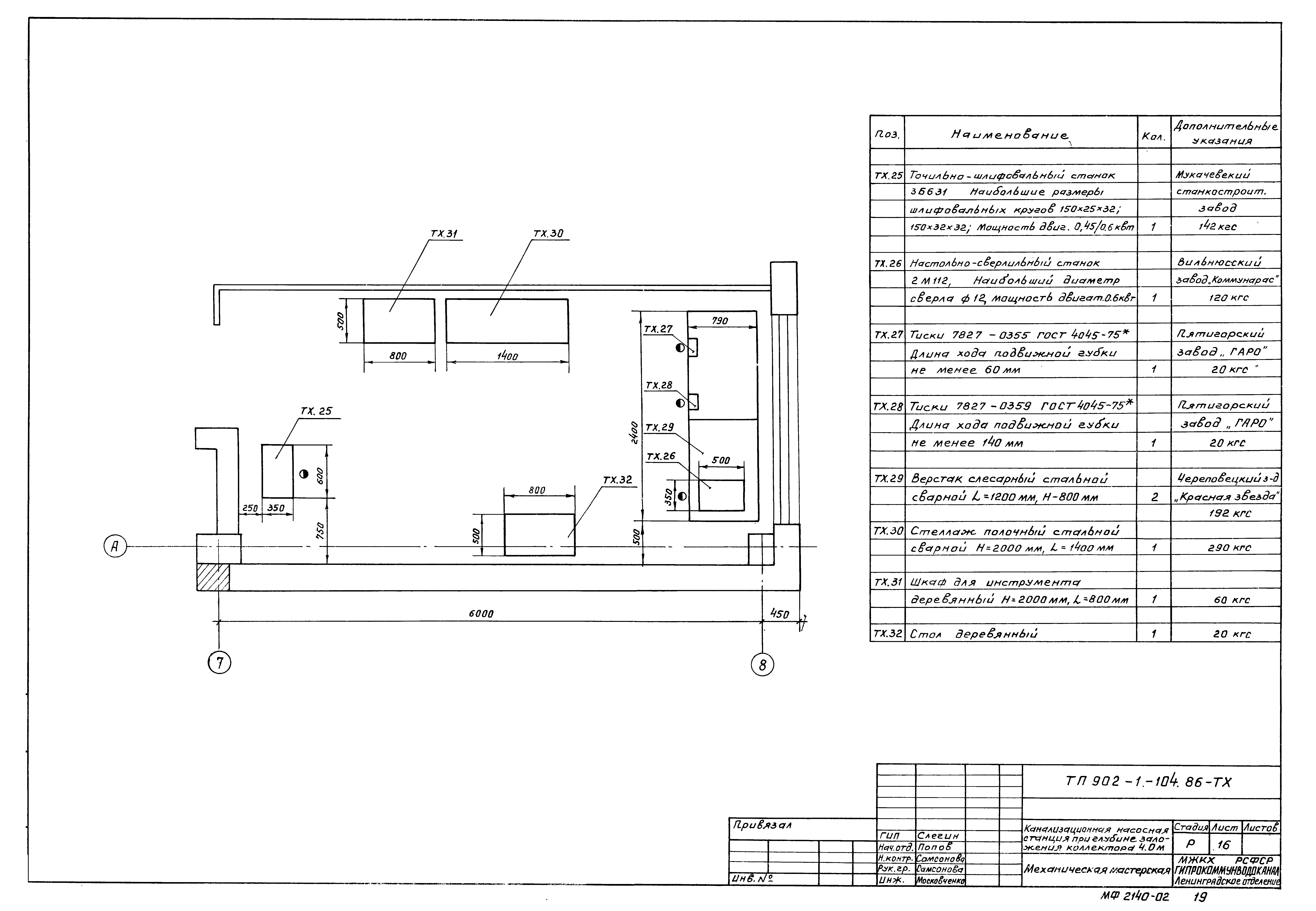
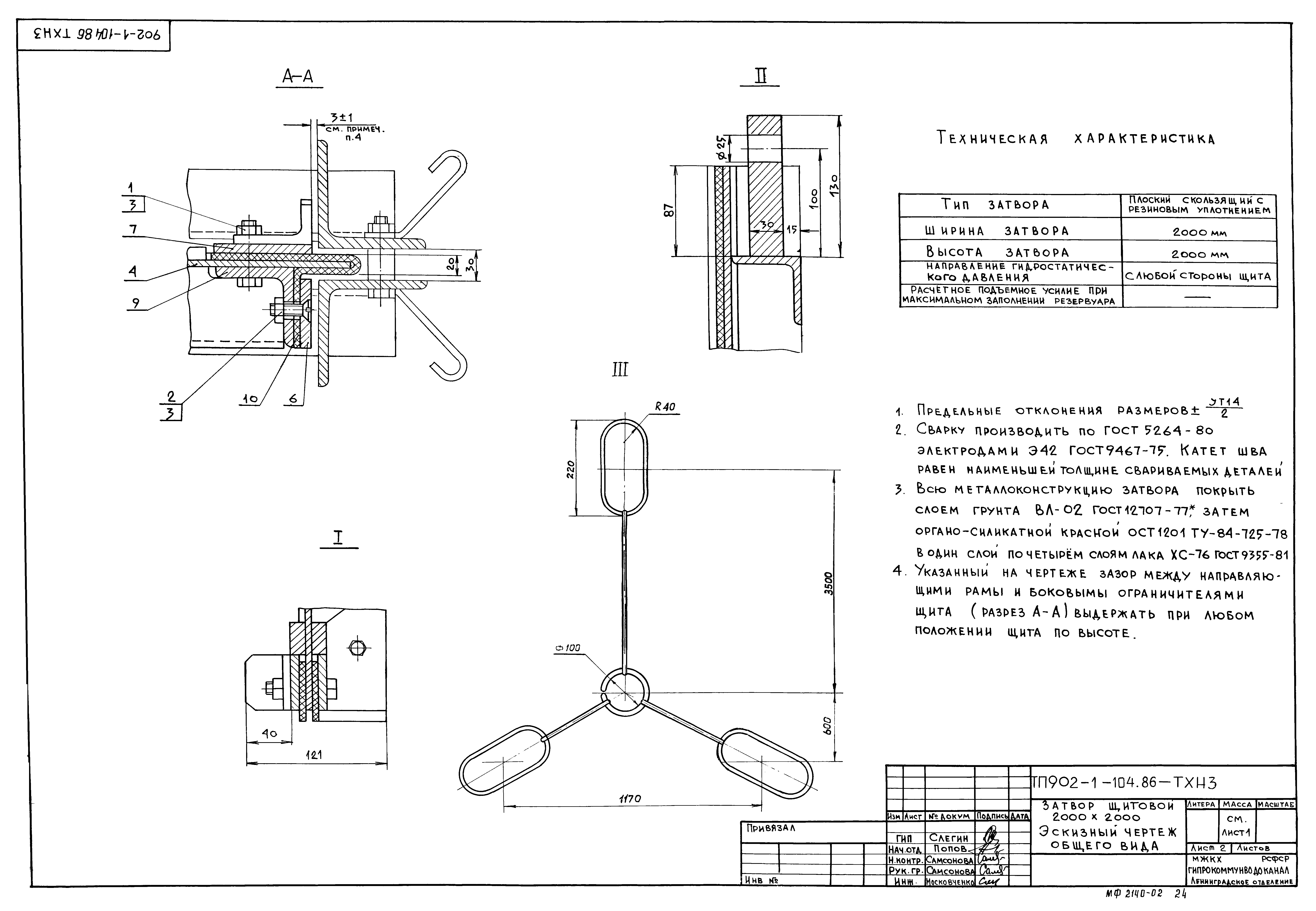
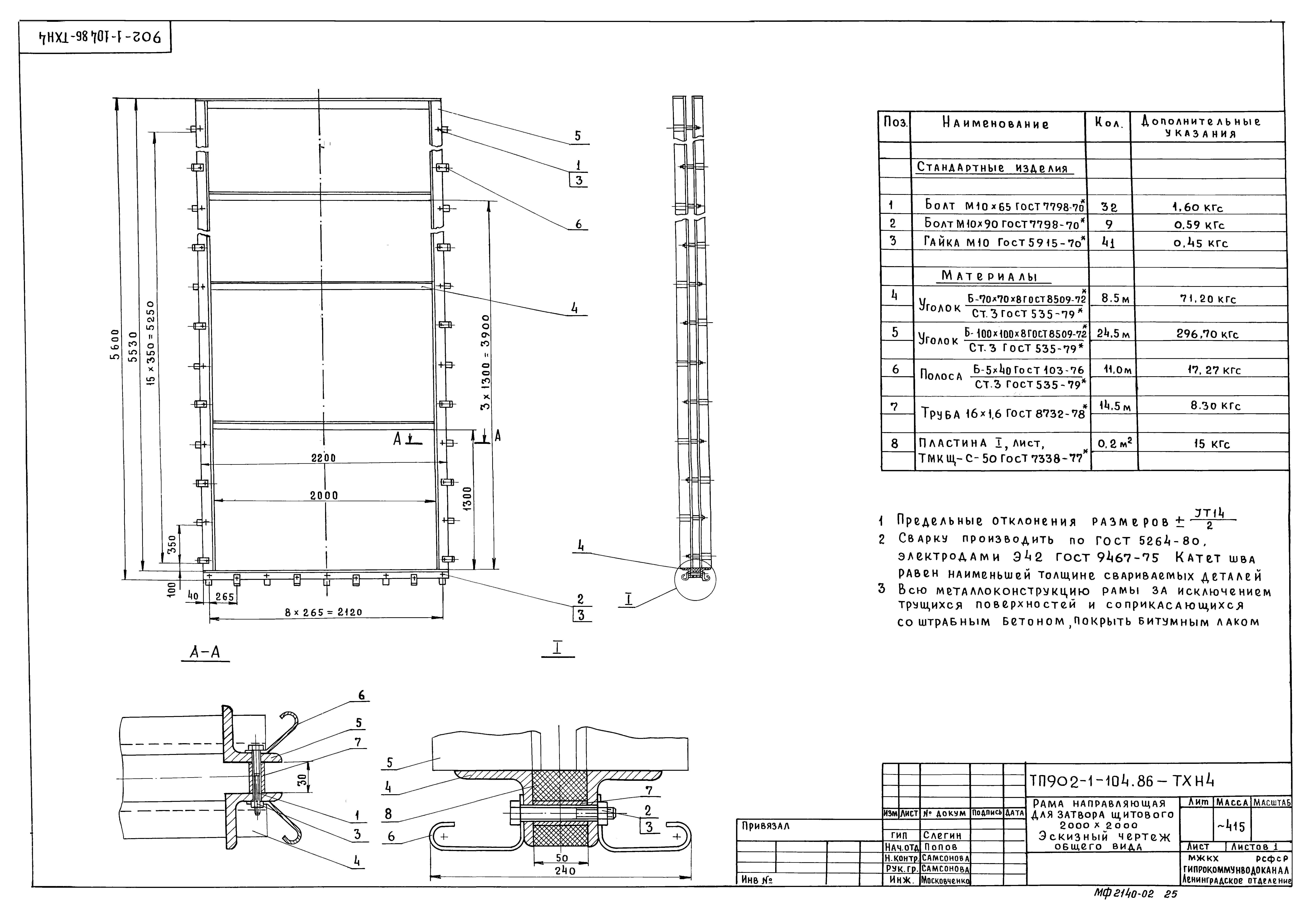
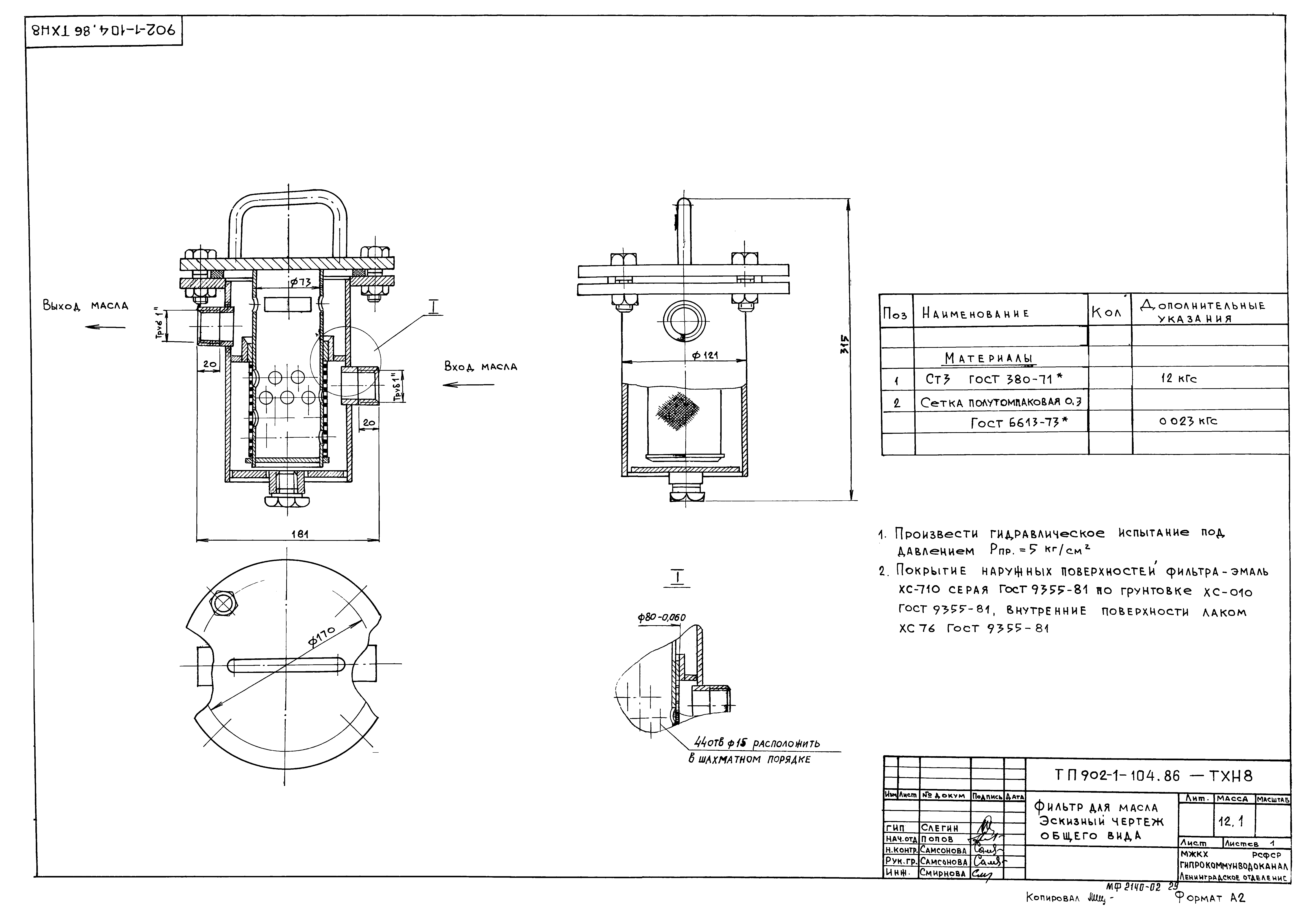
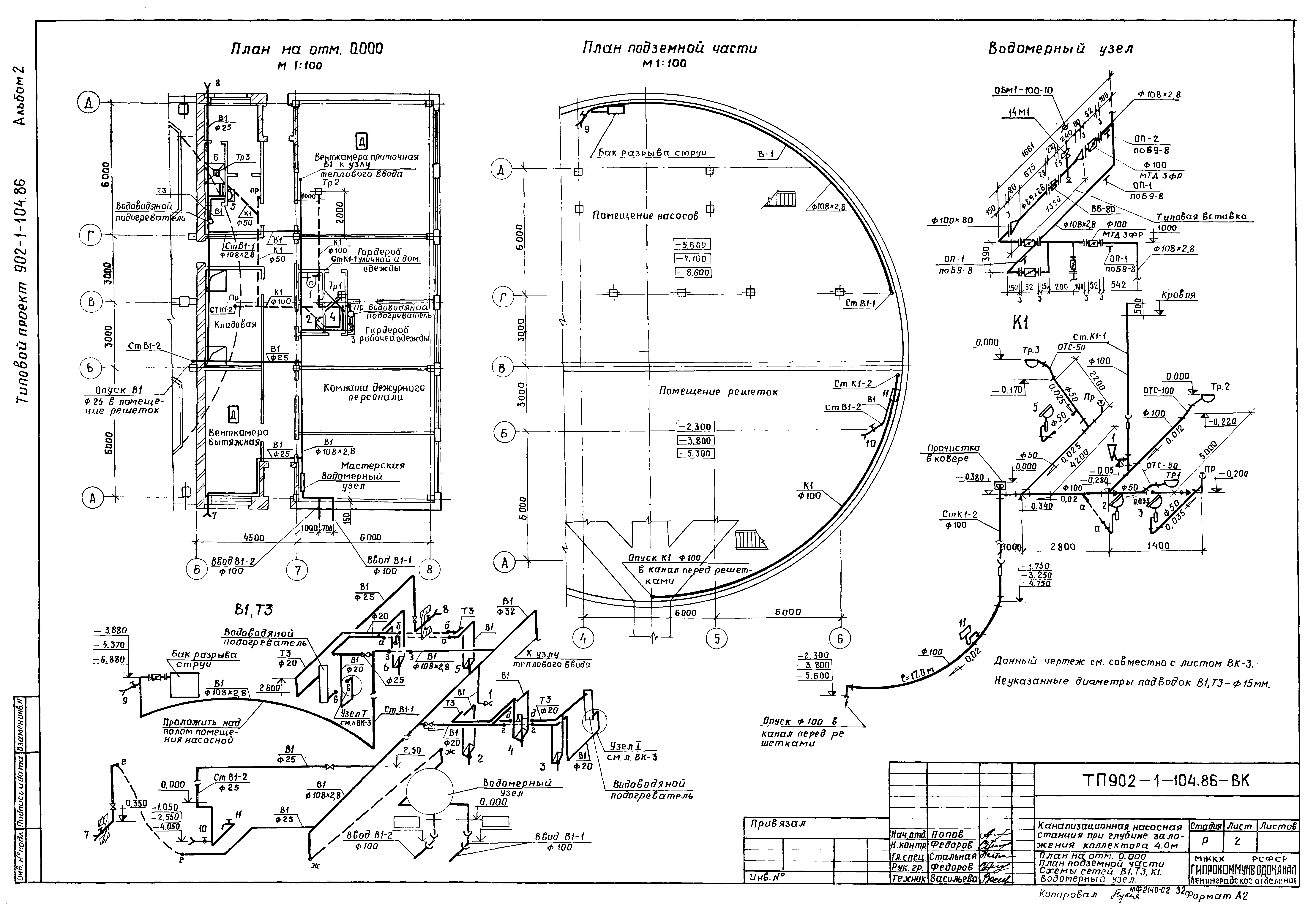
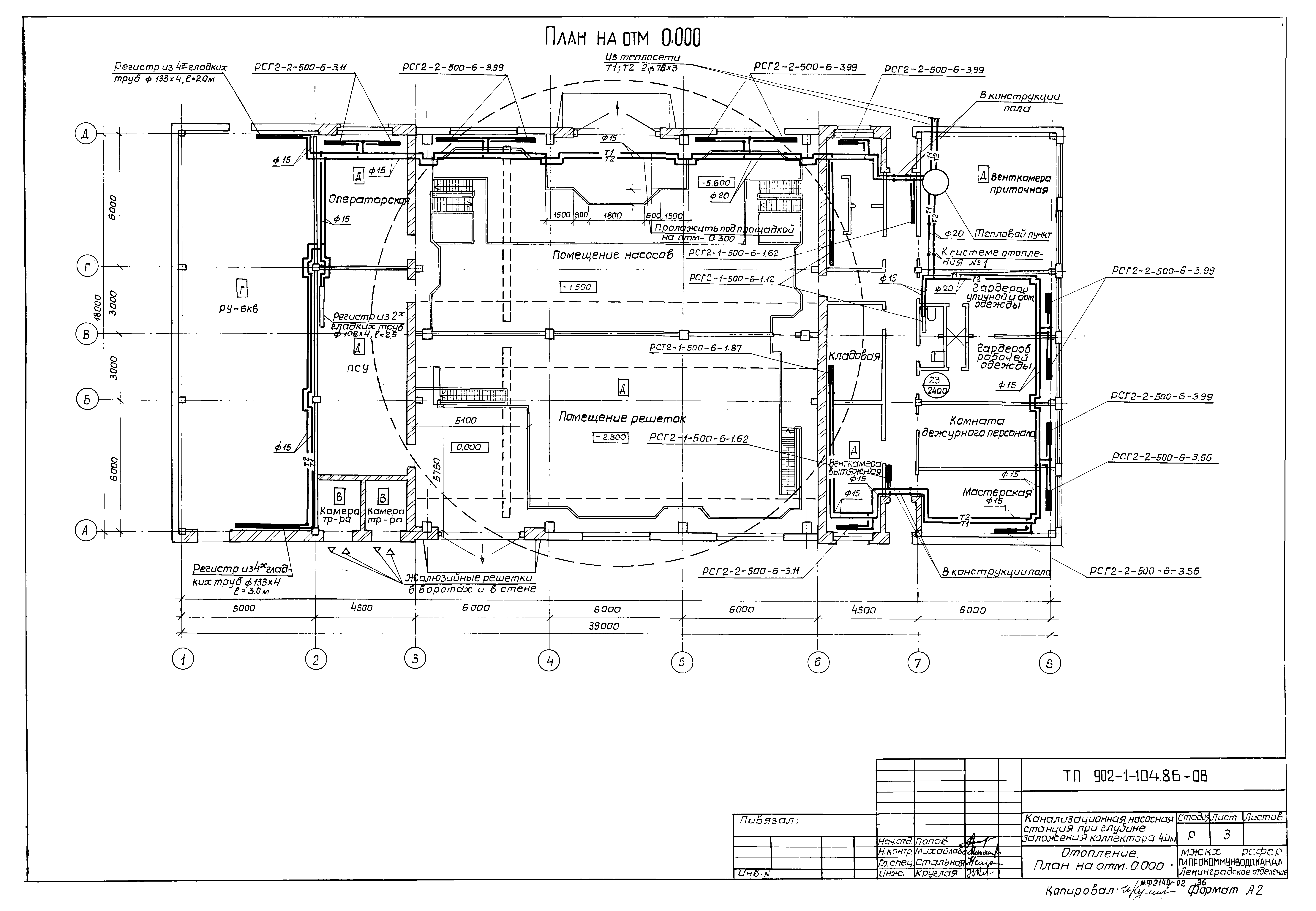
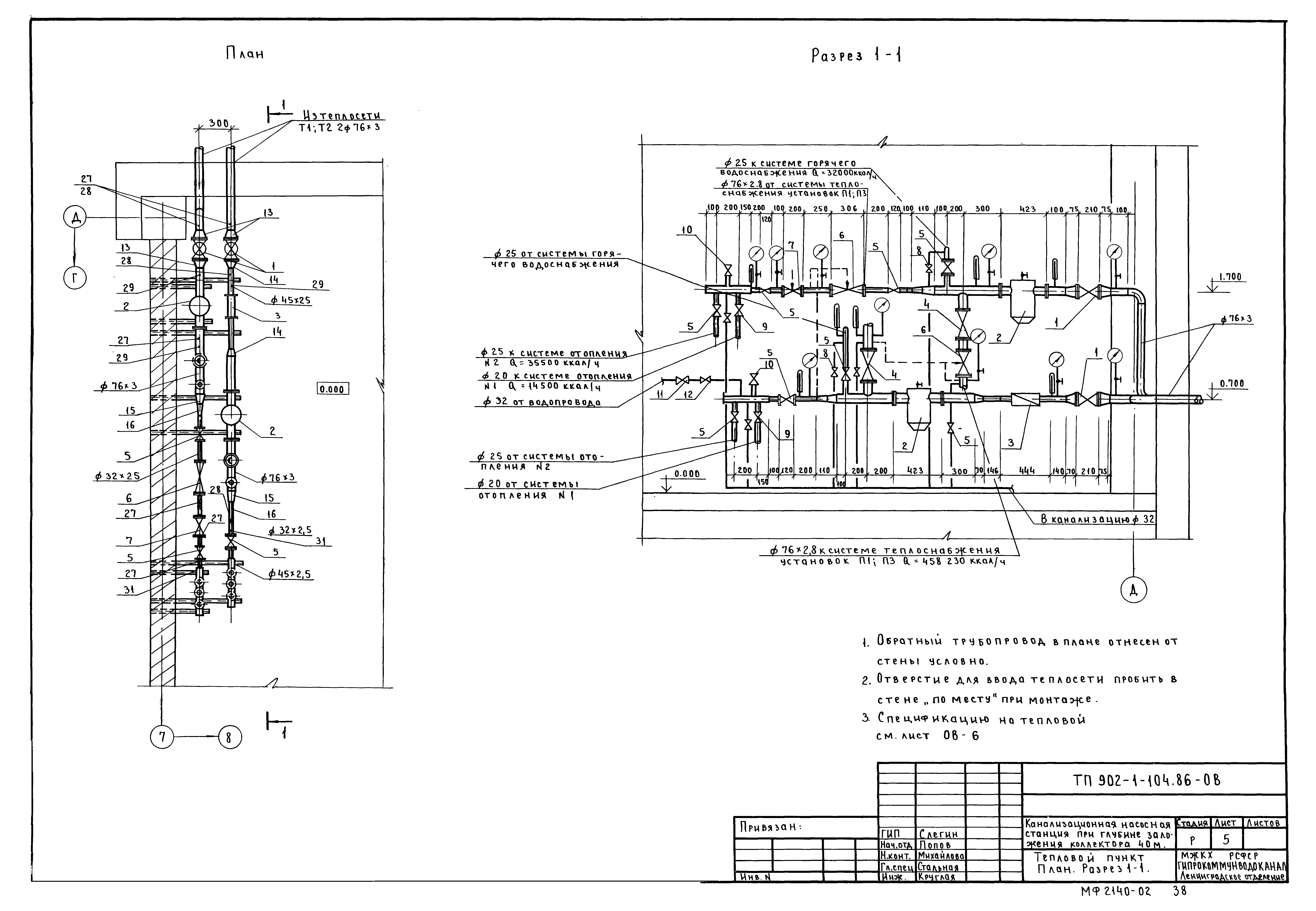
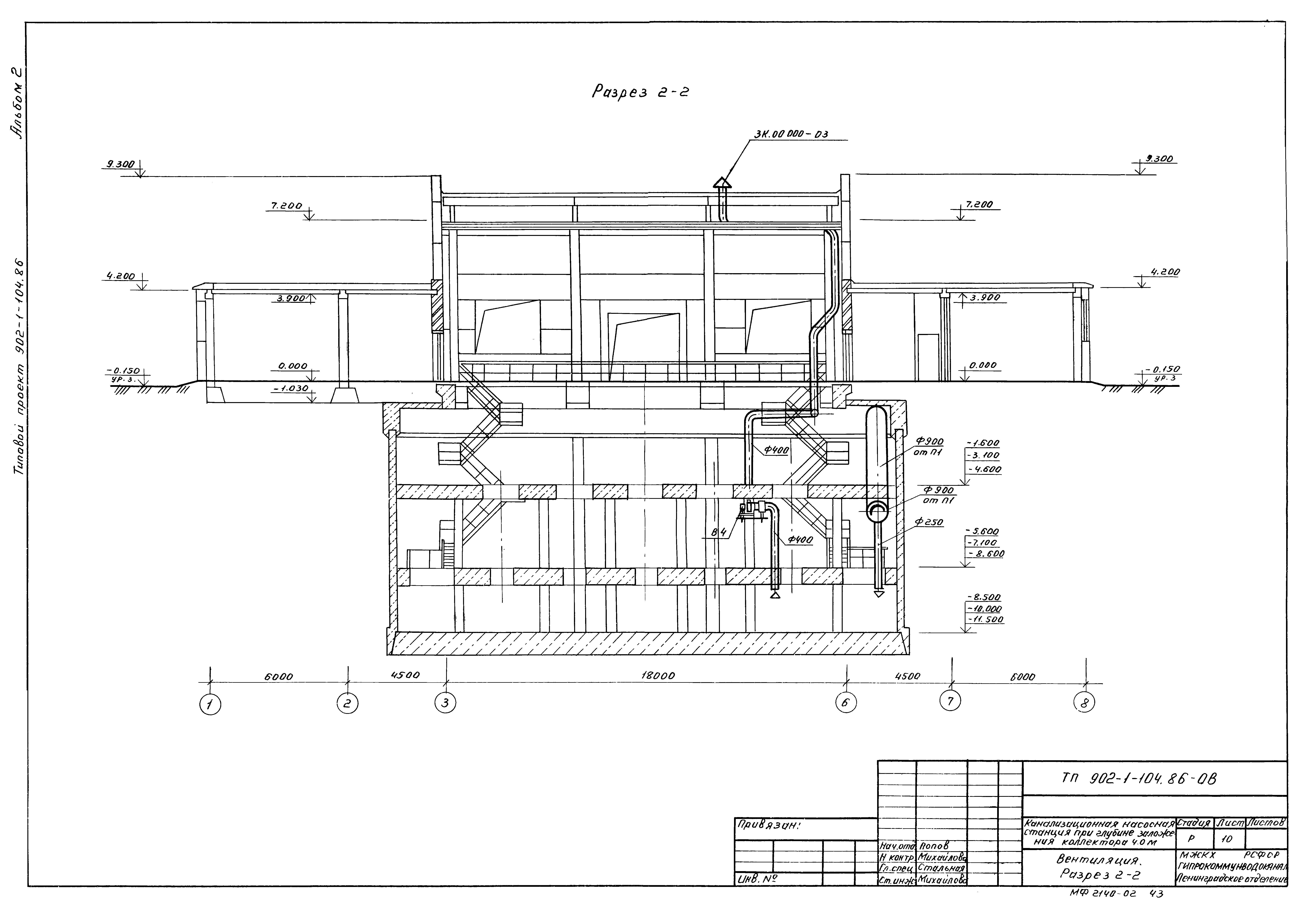
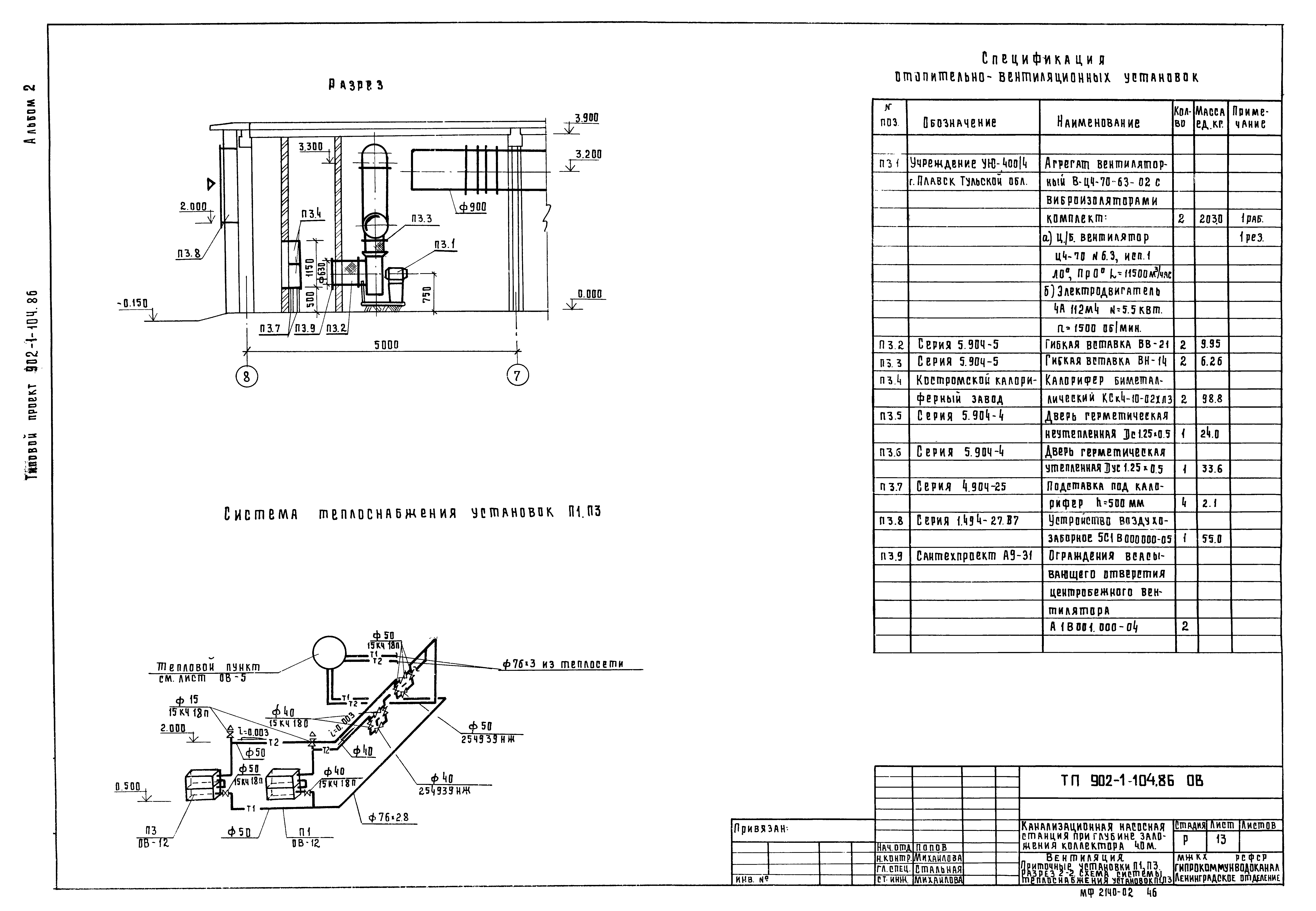
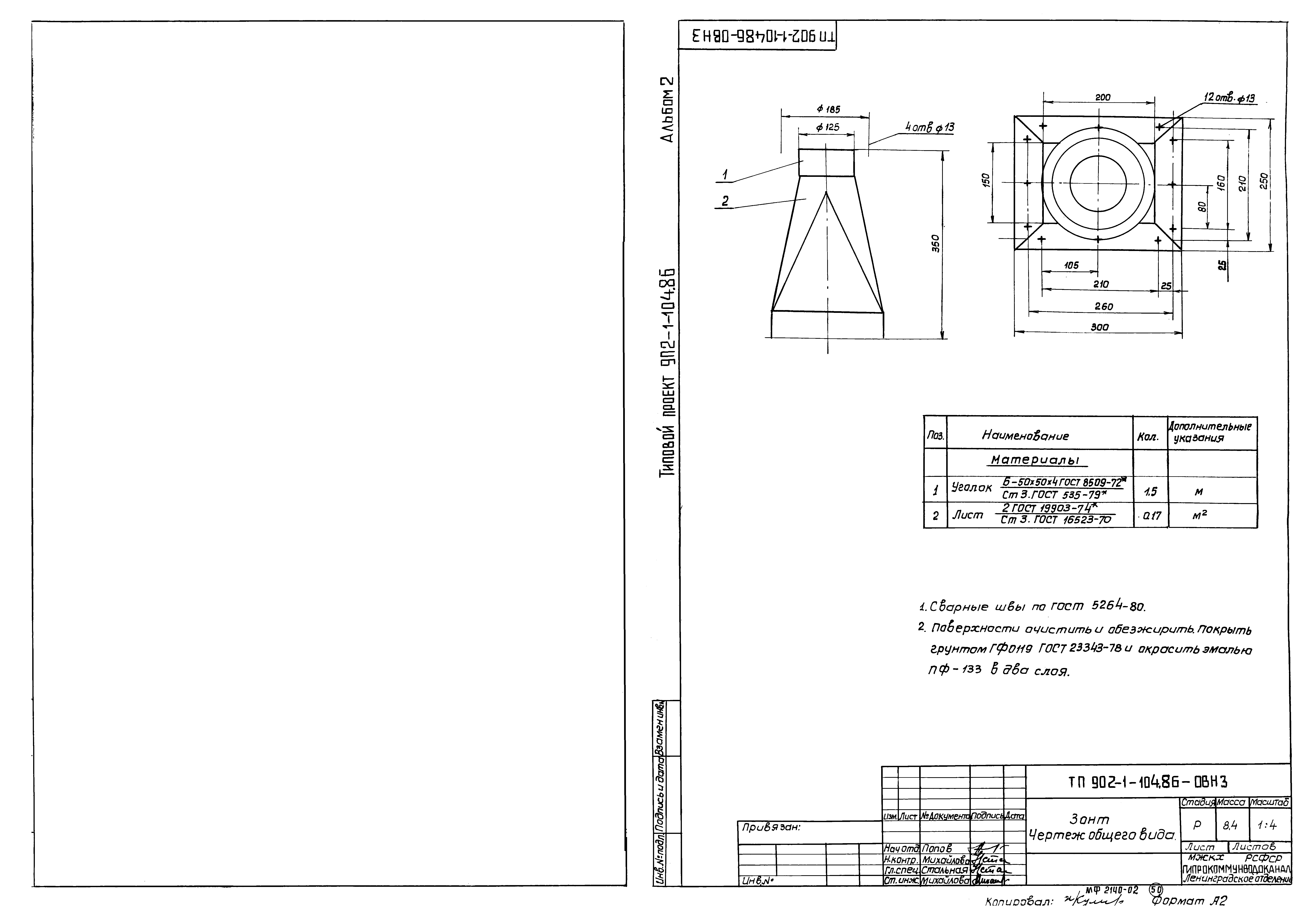
| Оглавление: | ТП 902-1-104.86 Содержание альбома ТП 902-1-104.86-ТХ Основной комплект марки ТХ ТП 902-1-104.86-ТХ-1 Общие данные ТП 902-1-104.86-ТХ-2 План на отм. 0.000 ТП 902-1-104.86-ТХ-3 Система технологических трубопроводов. Планы на отм. -1.600 и -5.600 ТП 902-1-104.86-ТХ-4 Система технологических трубопроводов. Планы на отм. -7.150. Установка дренажного насоса ТП 902-1-104.86-ТХ-5 Система технологических трубопроводов. Разрез 1-1 ТП 902-1-104.86-ТХ-6 Система технологических трубопроводов. Разрез 2-2 ТП 902-1-104.86-ТХ-7 Система технологических трубопроводов. Разрез 3-3 ТП 902-1-104.86-ТХ-8 Система технологических трубопроводов. Аксонометрическая схема. Узлы 1,2 ТП 902-1-104.86-ТХ-9 Система трубопроводов технической воды. Планы на отм. -1.600 и -5.600 ТП 902-1-104.86-ТХ-10 Система трубопроводов технической воды. Планы на отм. -8.050 ТП 902-1-104.86-ТХ-11 Система трубопроводов технической воды. Аксонометрическая схема ТП 902-1-104.86-ТХ-12 Система трубопроводов технической масла. Аксонометрическая схема и схема установки ТП 902-1-104.86-ТХ-13 Система трубопроводов опорожнения и дренажных вод. Аксонометрические схемы ТП 902-1-104.86-ТХ-14 Экспликация оборудования, арматуры и трубопроводов (начало) ТП 902-1-104.86-ТХ-15 Экспликация оборудования, арматуры и трубопроводов (окончание) ТП 902-1-104.86-ТН-16 Механическая мастерская ТП 902-1-104.86-ТН-17 Установка транспортера скребкового ТСН-160А ТП 902-1-104.86-ТН-18 Установка насоса СДВ 2700/26.5 (ФВ2700/26.5 с электродвигателем ВАН 118/23-843 ТП 902-1-104.86-ТХН Основной комплект марки ТХН ТП 902-1-104.86-ТХН-1 Щит шандора. Эскизный чертеж общего вида ТП 902-1-104.86-ТХН-2 Затвор щитовой 2000х2000. Эскизный чертеж общего вида ТП 902-1-104.86-ТХН-3 Затвор щитовой 2000х2000. Эскизный чертеж общего вида ТП 902-1-104.86-ТХН-4 Рама направляющая для затвора щитового 2000х2000. Эскизный чертеж общего вида ТП 902-1-104.86-ТХН-5 Затвор щитовой 1000х1000. Эскизный чертеж общего вида ТП 902-1-104.86-ТХН-6 Рама направляющая для затвора щитового 1000х1000. Эскизный чертеж общего вида ТП 902-1-104.86-ТХН-7 Установка бака для масла. Эскизный чертеж общего вида ТП 902-1-104.86-ТХН-8 Фильтр для масла. Эскизный чертеж общего вида ТП 902-1-104.86-ТХН-9 Сортировочный стол. Эскизный чертеж общего вида ТП 902-1-104.86-ВК Основной комплект марки ВК ТП 902-1-104.86-ВК-1 Общие данные ТП 902-1-104.86-ВК-2 План на отм. 0.000. План подземной части. Схемы сетей В1;73;К1. Водомерный узел ТП 902-1-104.86-ВК-3 Водоводяной подогреватель ТП 902-1-104.86-ОВ Основной комплект марки ОВ ТП 902-1-104.86-ОВ-1 Общие данные (начало) ТП 902-1-104.86-ОВ-2 Общие данные (окончание) ТП 902-1-104.86-ОВ-3 Отопление. План на отм. 0.000 ТП 902-1-104.86-ОВ-4 Схемы систем отопления ТП 902-1-104.86-ОВ-5 Тепловой пункт. План, разрез 1-1 ТП 902-1-104.86-ОВ-6 Тепловой пункт. Спецификация ТП 902-1-104.86-ОВ-7 Вентиляция. План на отм. 0.000 ТП 902-1-104.86-ОВ-8 Вентиляция. План на отм. -5.600;-7.100;-8.600 ТП 902-1-104.86-ОВ-9 Вентиляция. Разрез 1-1. Схемы систем В5;В8;В12 ТП 902-1-104.86-ОВ-10 Вентиляция. Разрез 2-2 ТП 902-1-104.86-ОВ-11 Вентиляция. Схемы систем П1,П2,П3,В1,В2,В3,В4,В9,В11 ТП 902-1-104.86-ОВ-12 Вентиляция. Приточные установки П1,П3. План. Разрез 1-1 ТП 902-1-104.86-ОВ-13 Вентиляция. Приточные установки П1,П3. Разрез 2-2. Схема системы теплоснабжения установок П1,П3 ТП 902-1-104.86-ОВ-14 Вентиляция. Вытяжные установки В5,В8,В9,В12 ТП 902-1-104.86-ОВН-1 Лючок с заглушкой. Чертеж общего вида ТП 902-1-104.86-ОВН-2 Короб воздухосборный. Чертеж общего вида ТП 902-1-104.86-ОВН-3 Зонт. Чертеж общего вида |
| Разработан: | Ленинградское отделение Гипрокоммунводоканала |
| Утверждён: | 27.10.1986 МЖКХ РСФСР (462) |


















































