Скачать Типовой проект 901-8-12.83 Альбом I. Архитектурно-строительная частьДата актуализации: 01.01.2021
|
| Обозначение: | Типовой проект 901-8-12.83 |
| Обозначение англ: | 901-8-12.83 |
| Статус: | не определен законодательством |
| Название рус.: | Альбом I. Архитектурно-строительная часть |
| Дата добавления в базу: | 01.09.2013 |
| Дата актуализации: | 01.01.2021 |
| Дата введения: | 17.12.1982 |
| Дата окончания срока действия: | 30.06.2003 |
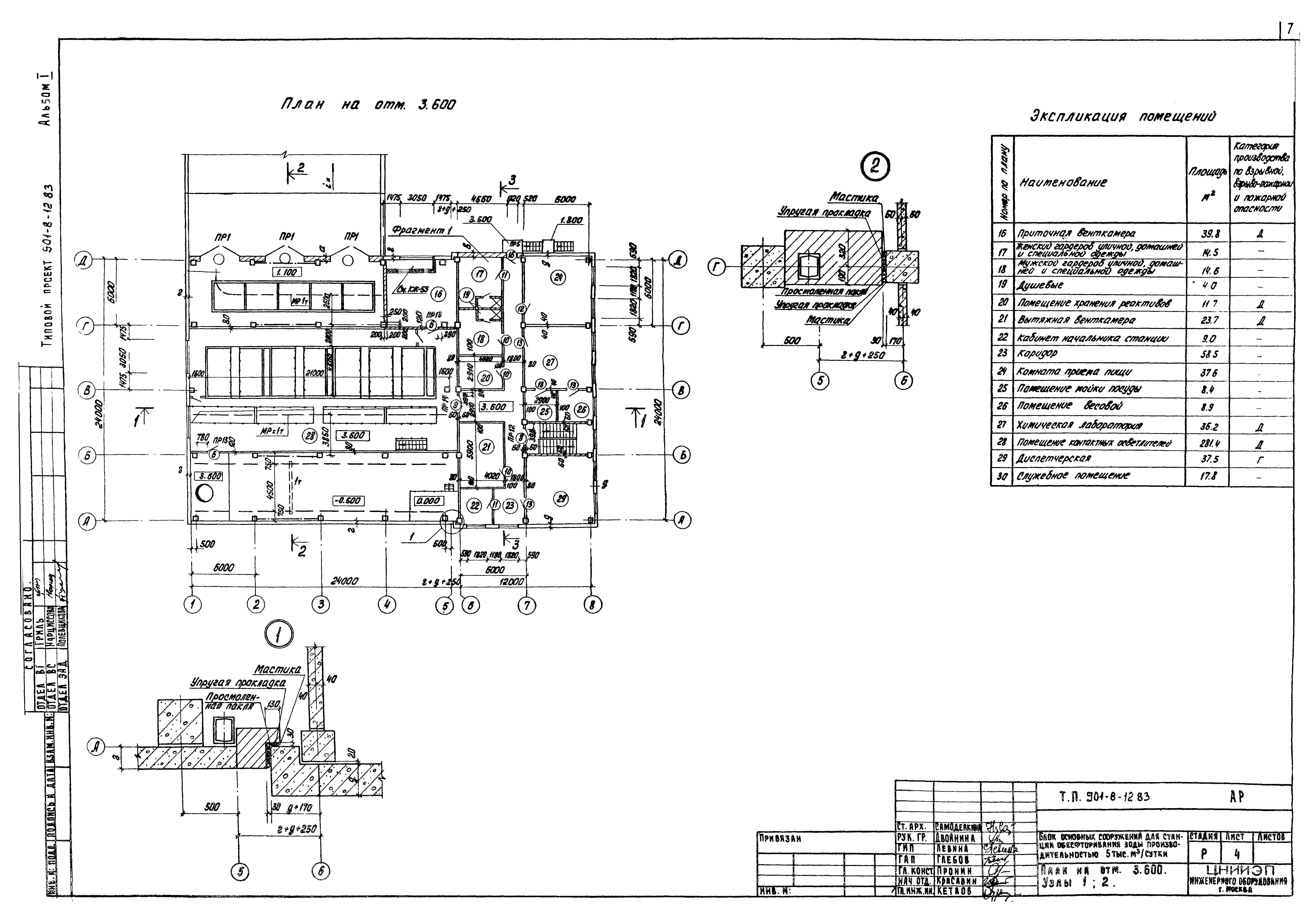
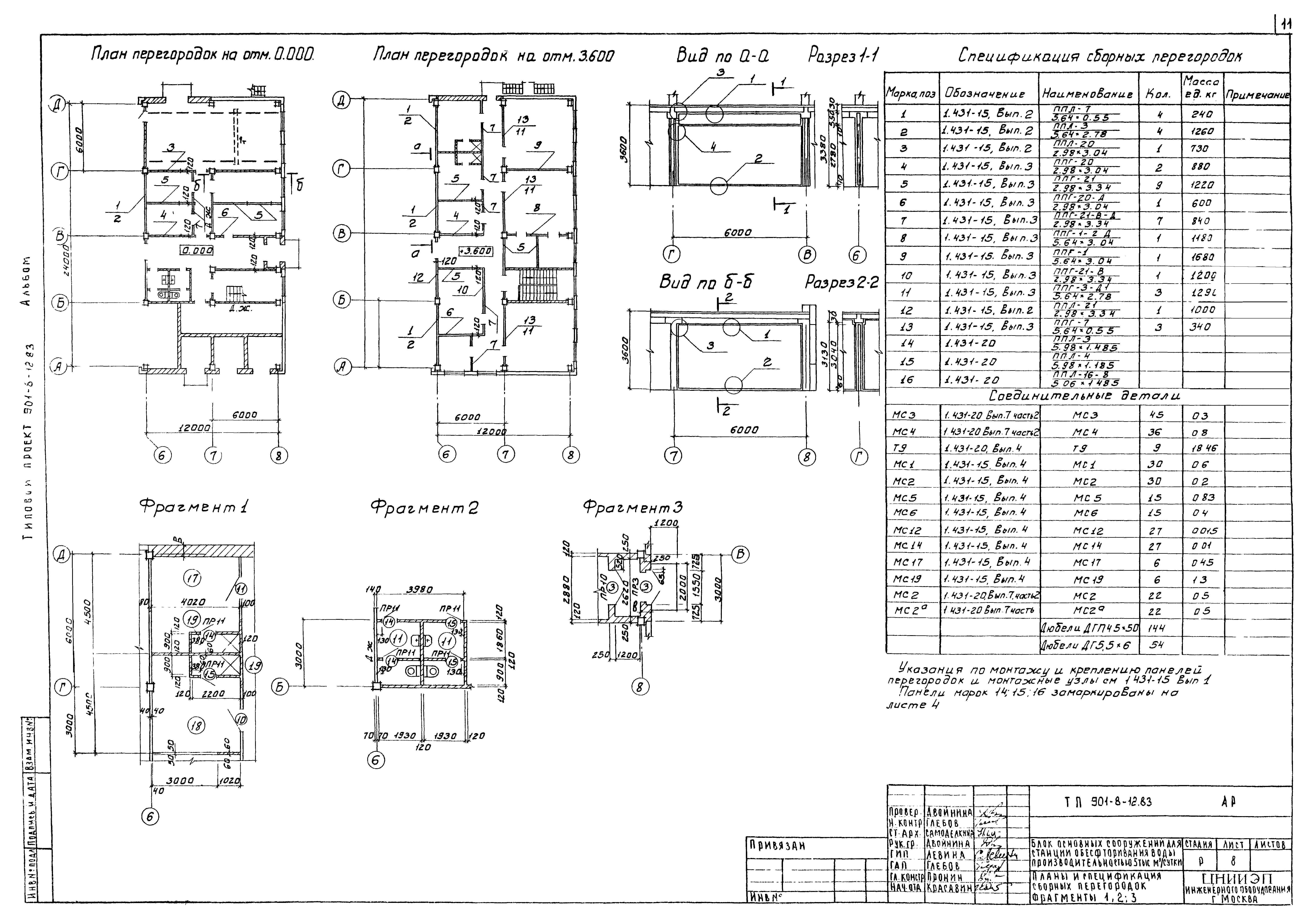
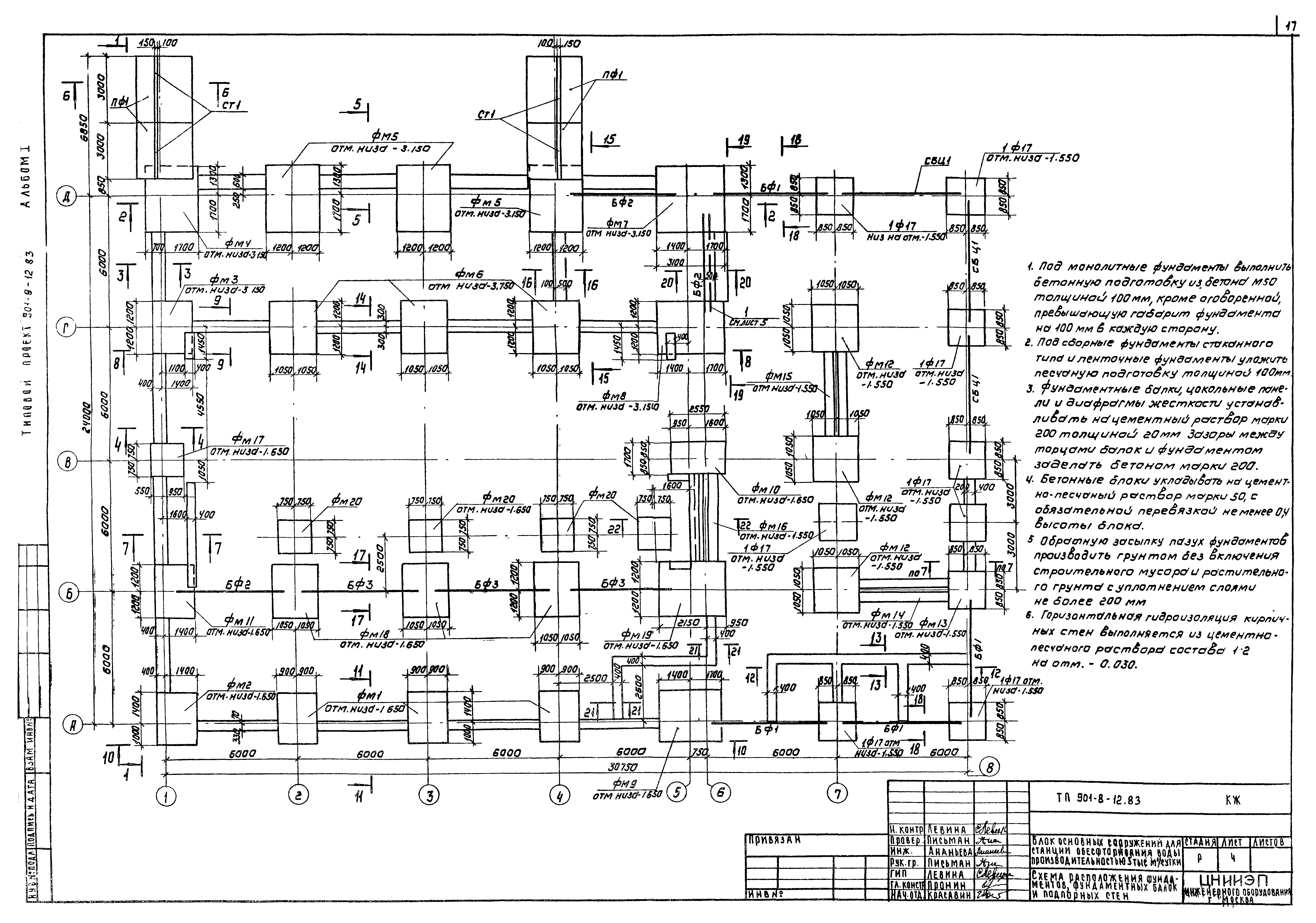
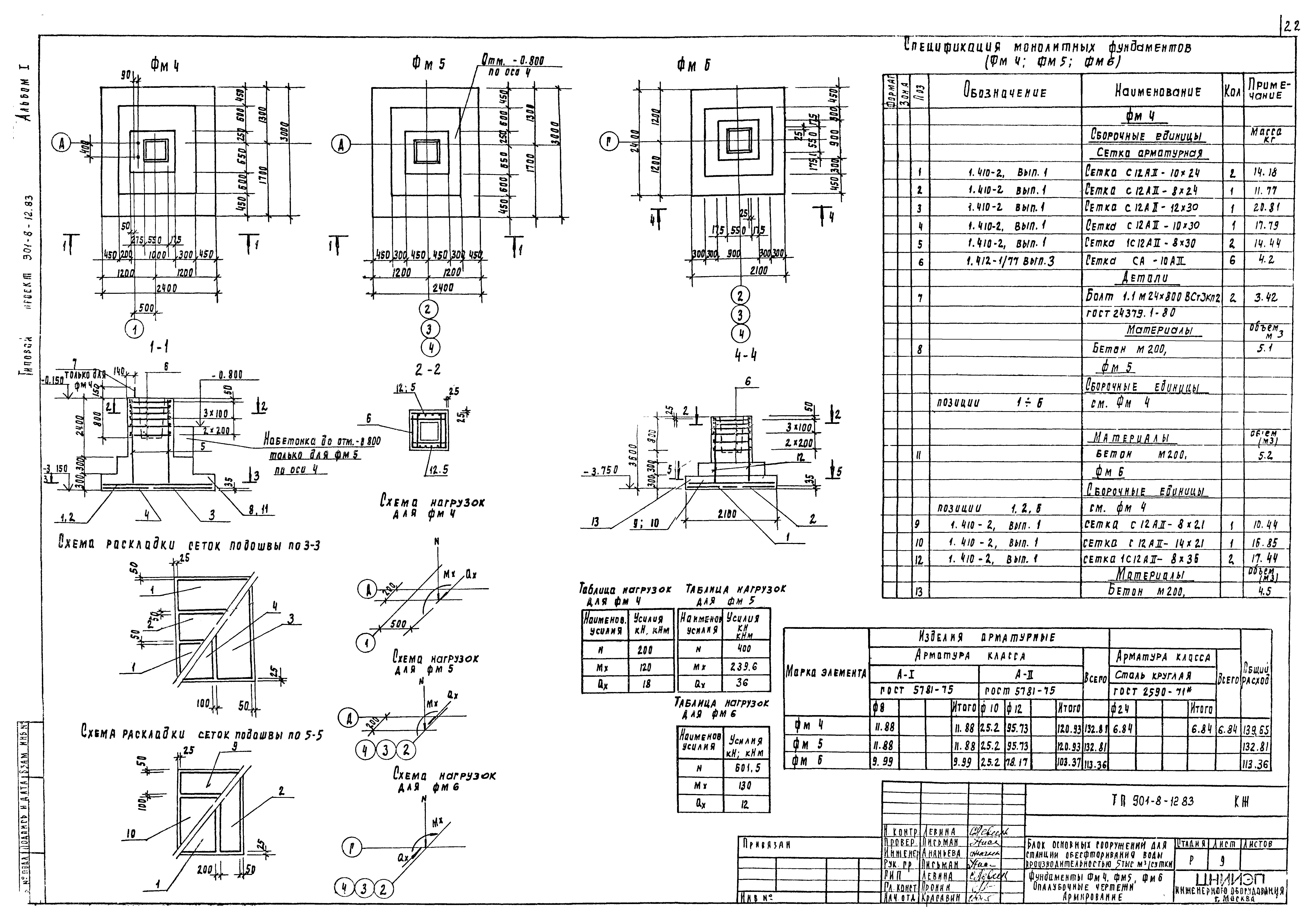
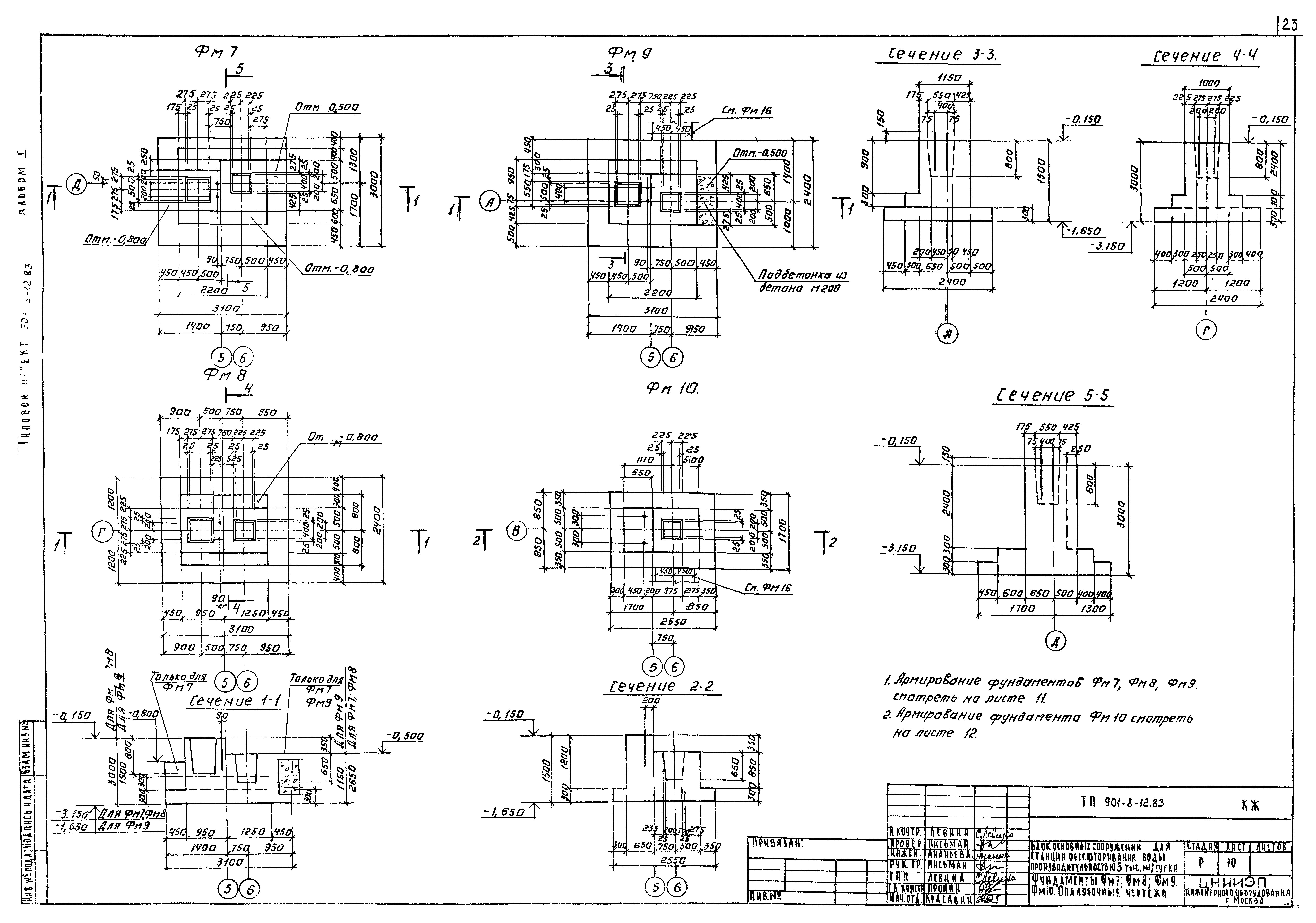
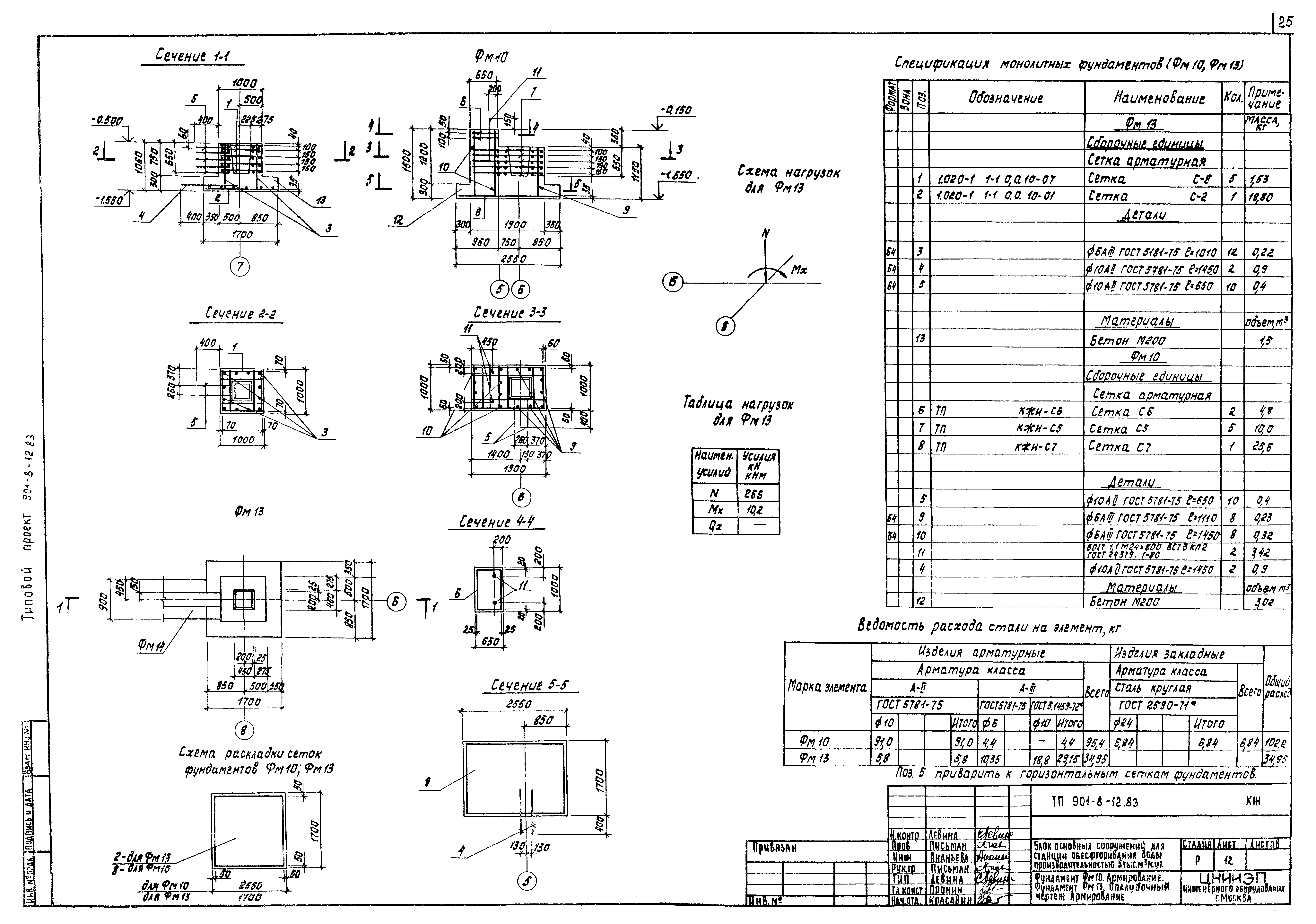
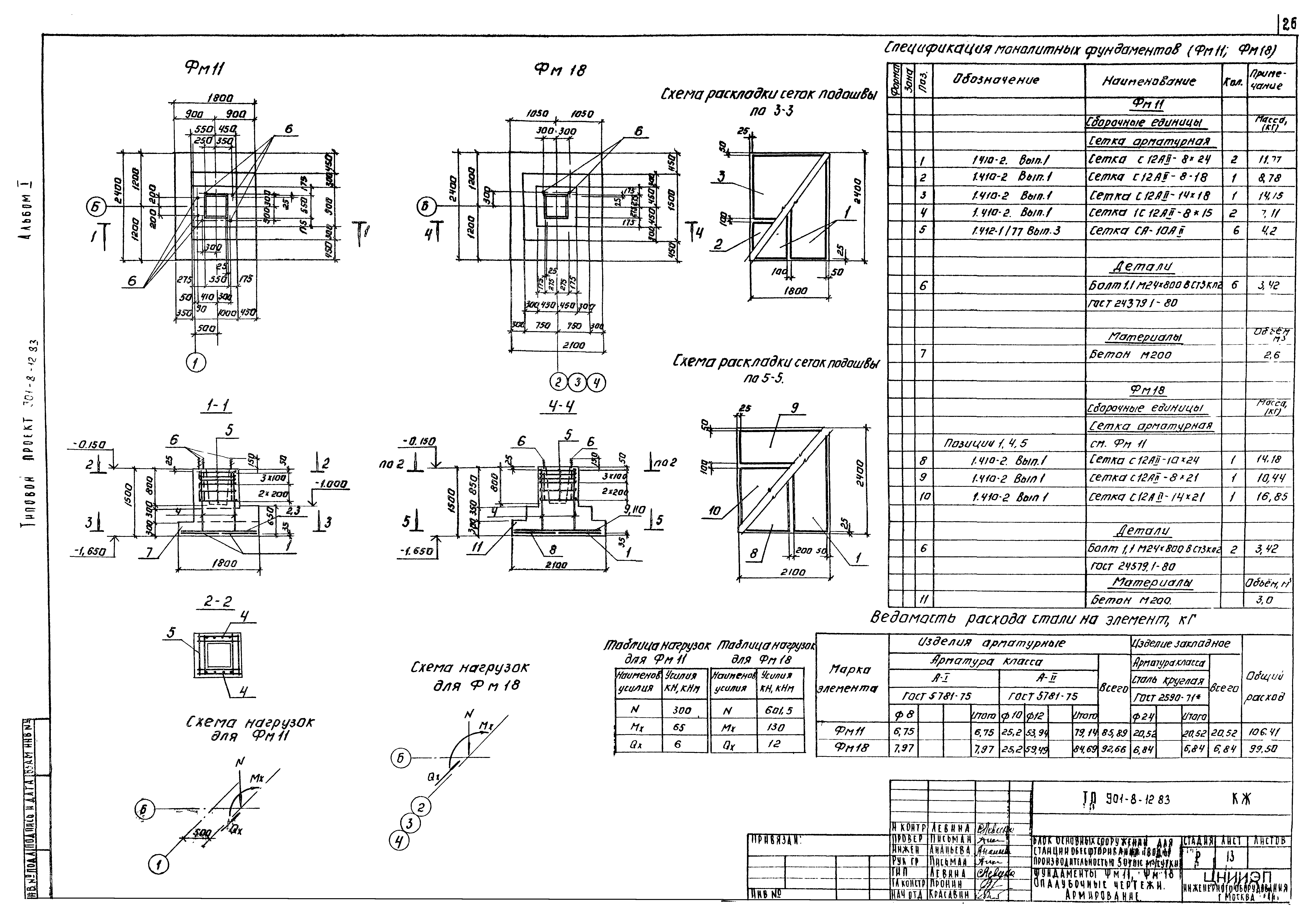
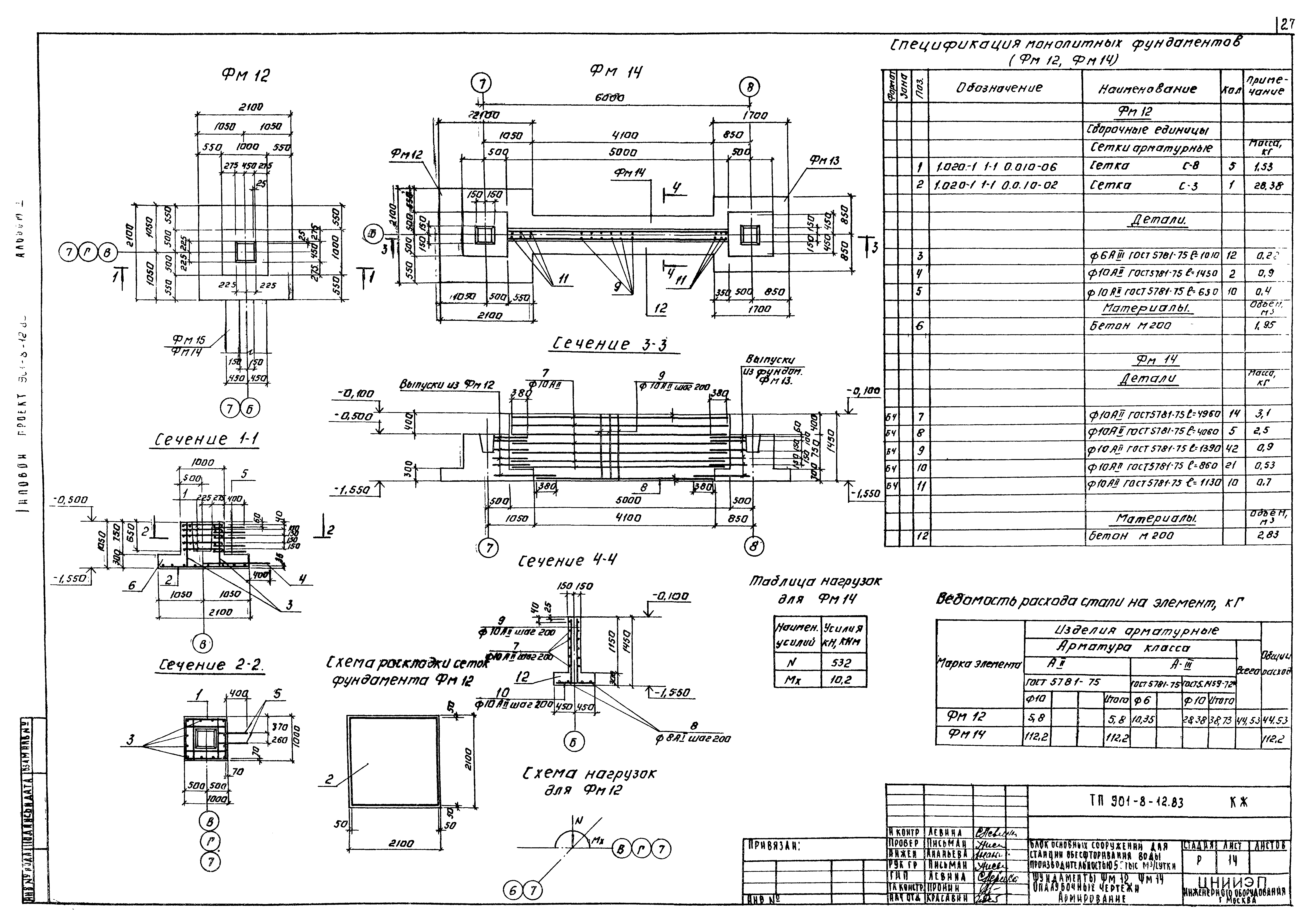
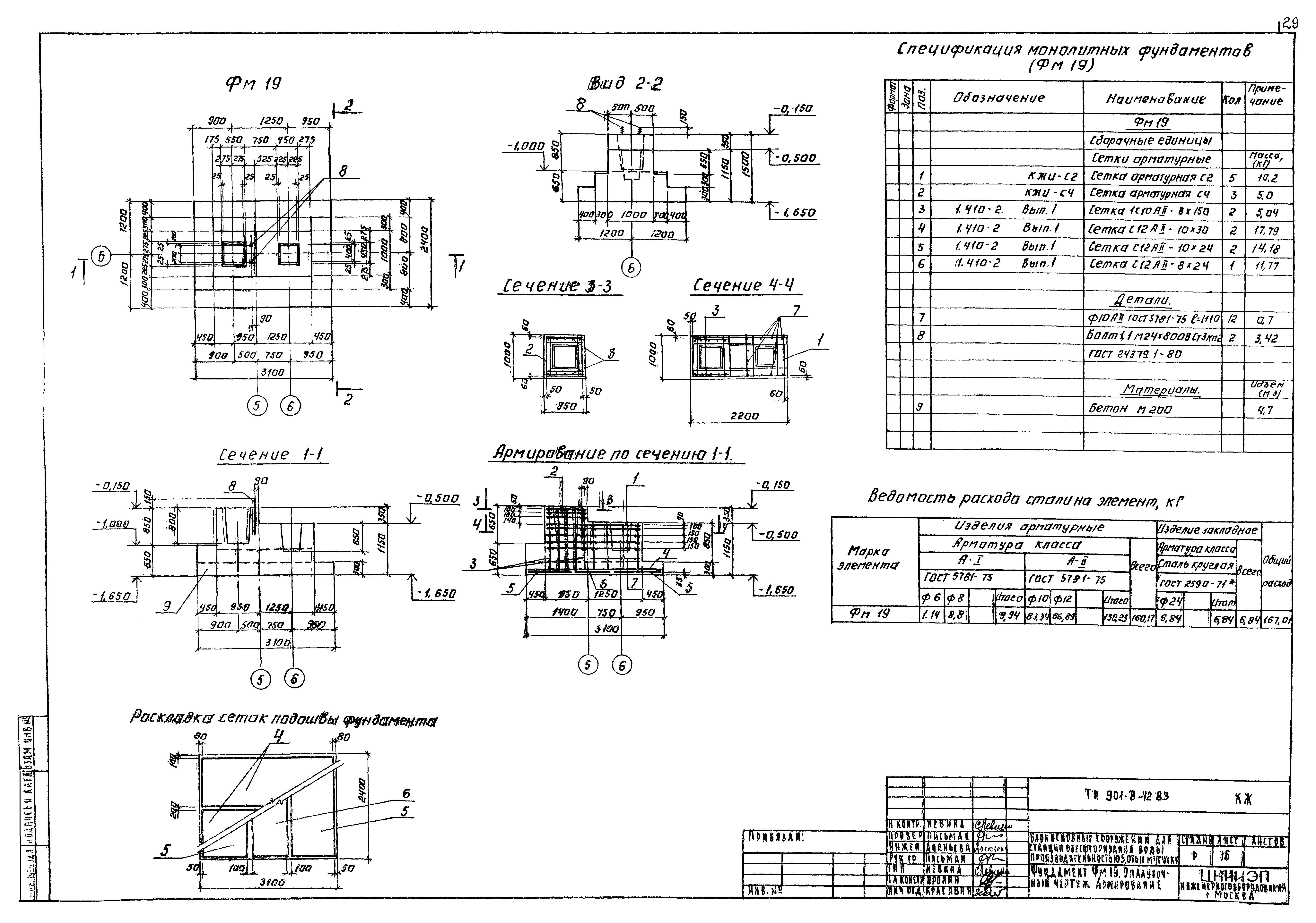
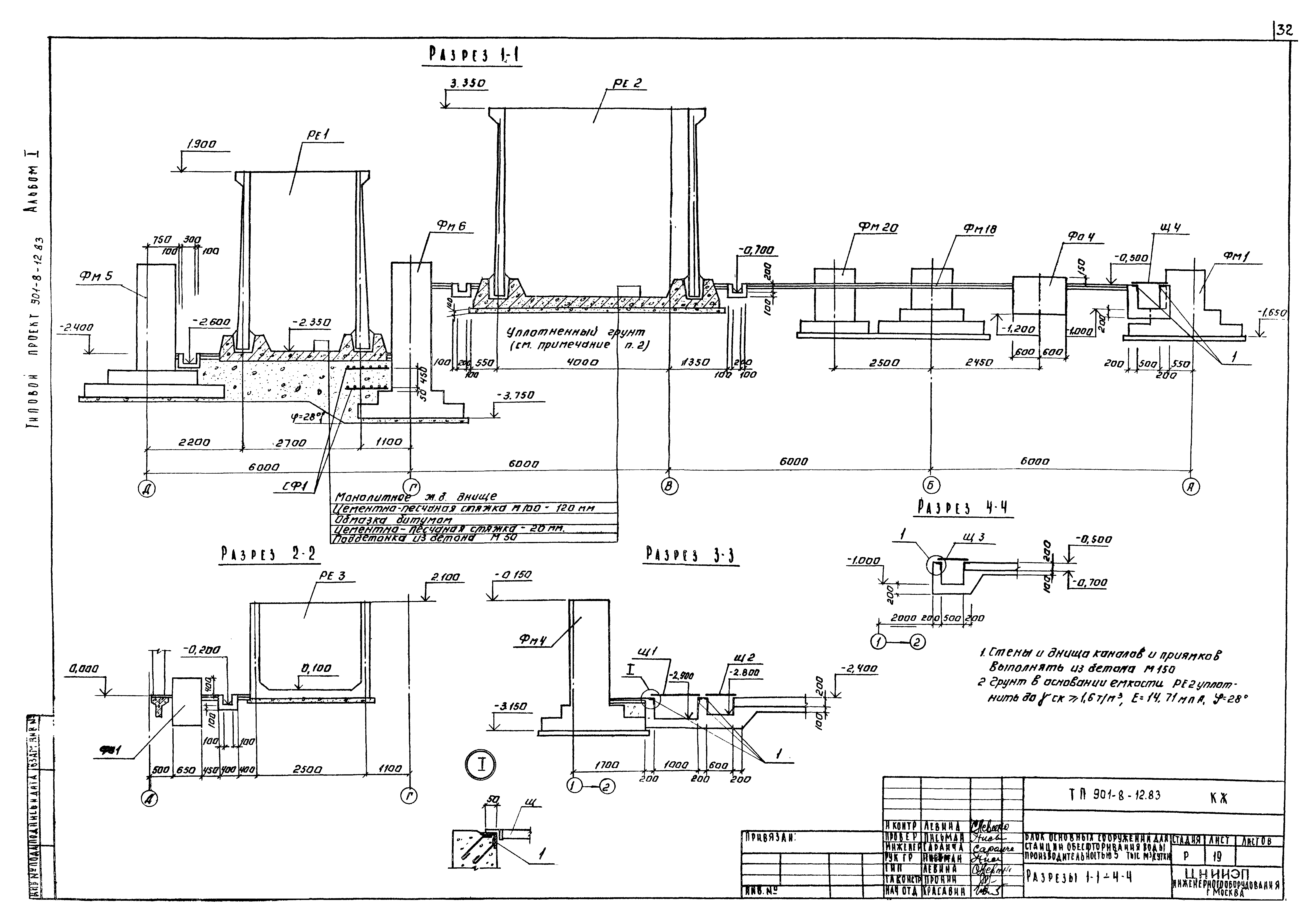
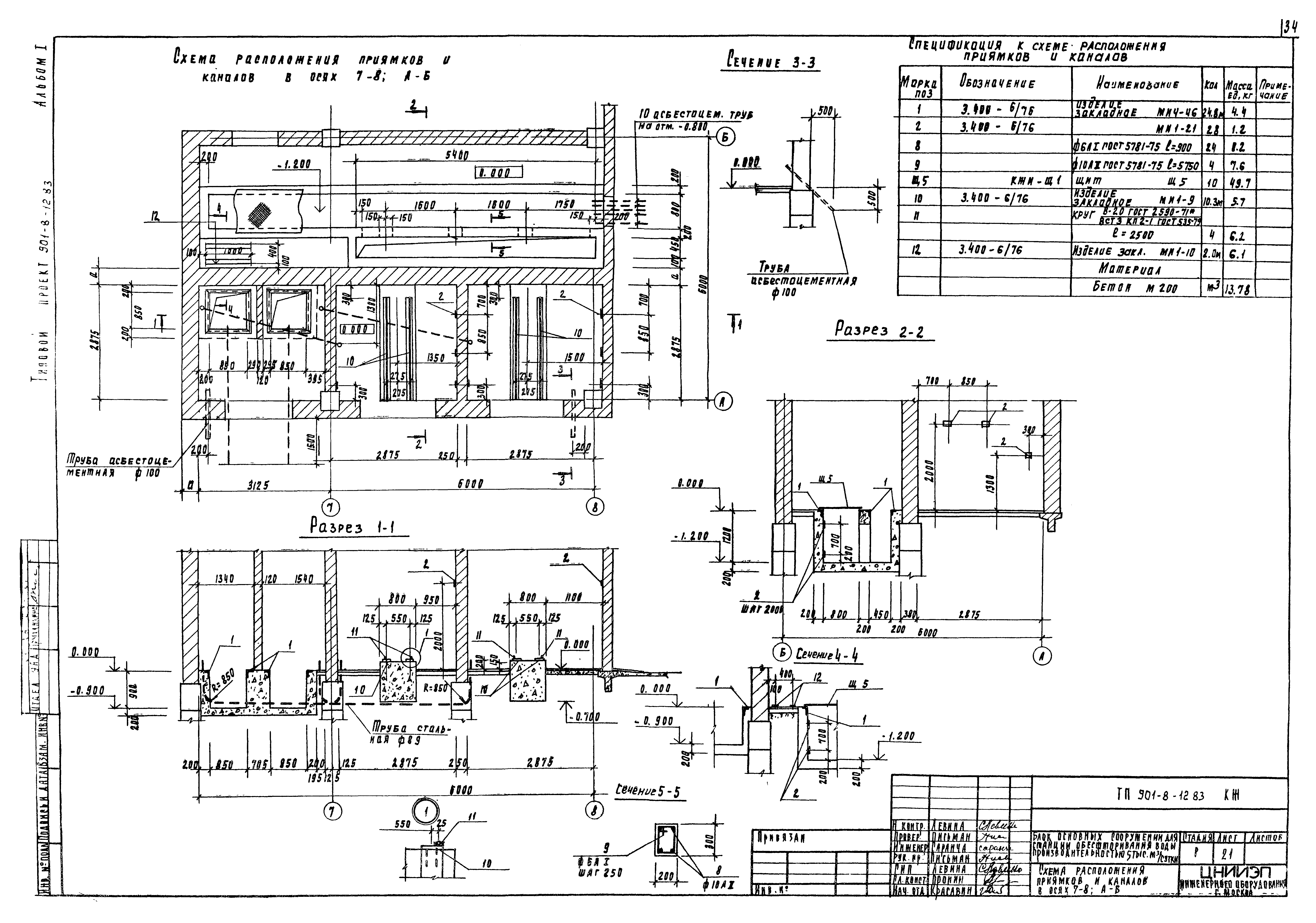
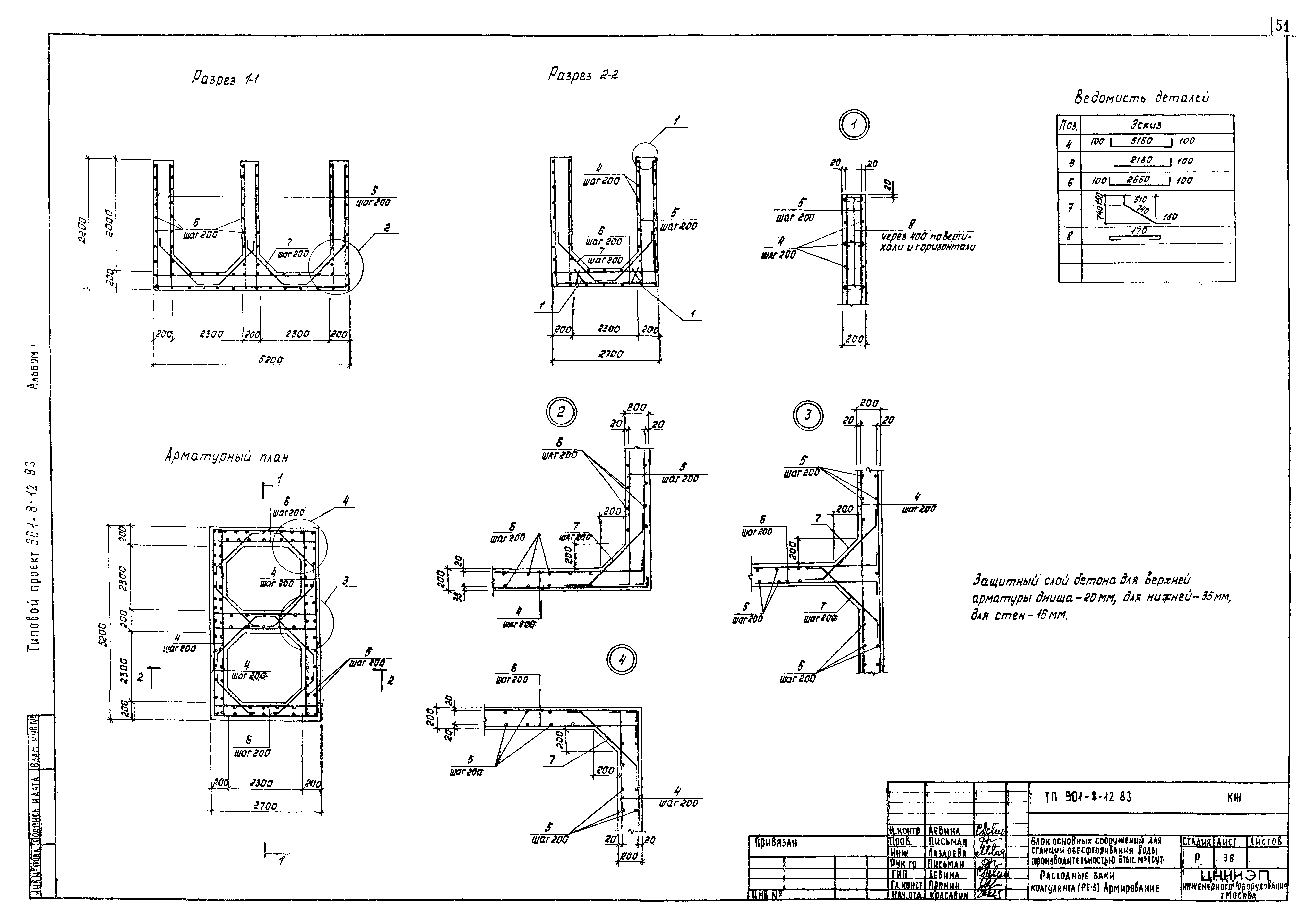
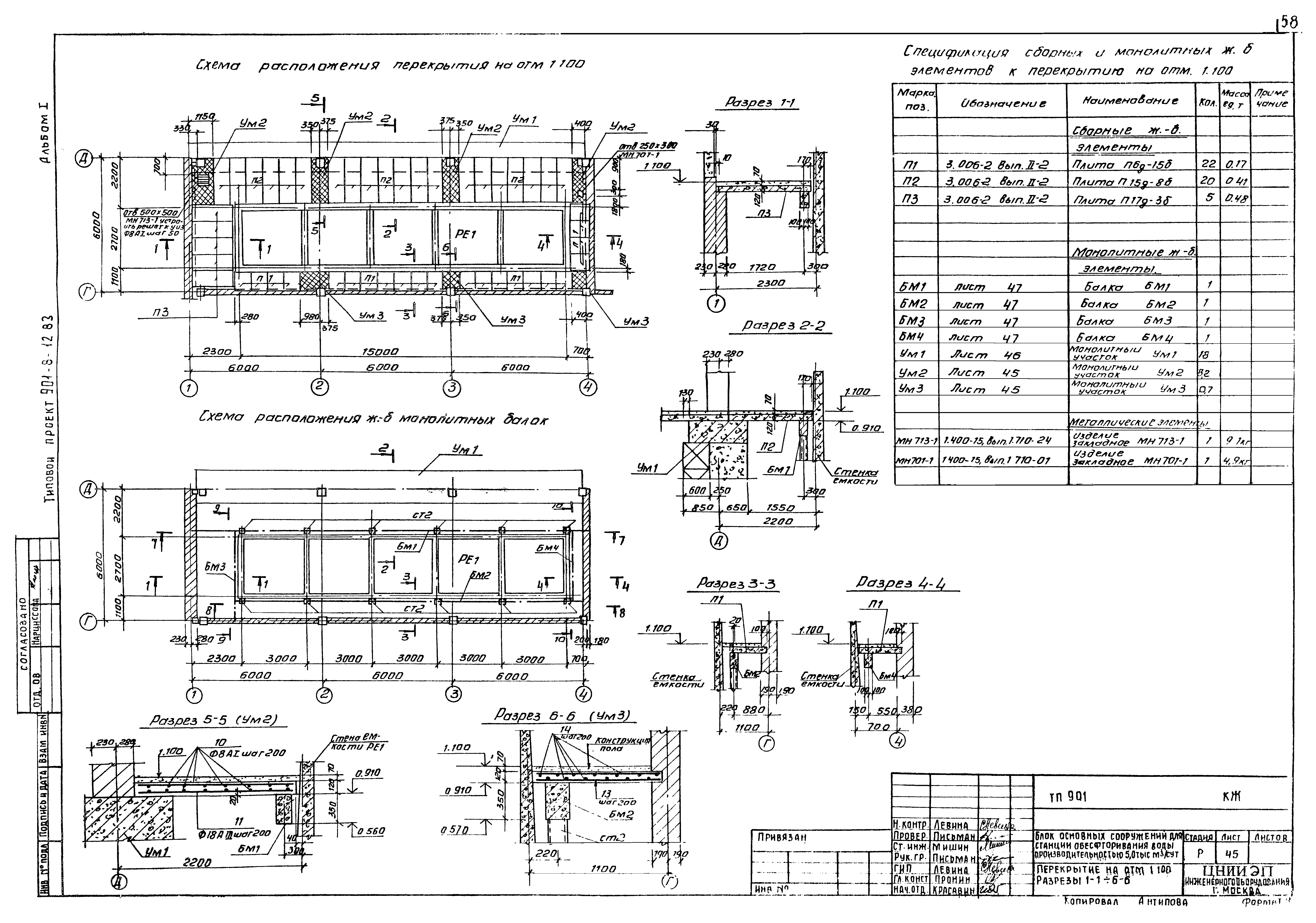
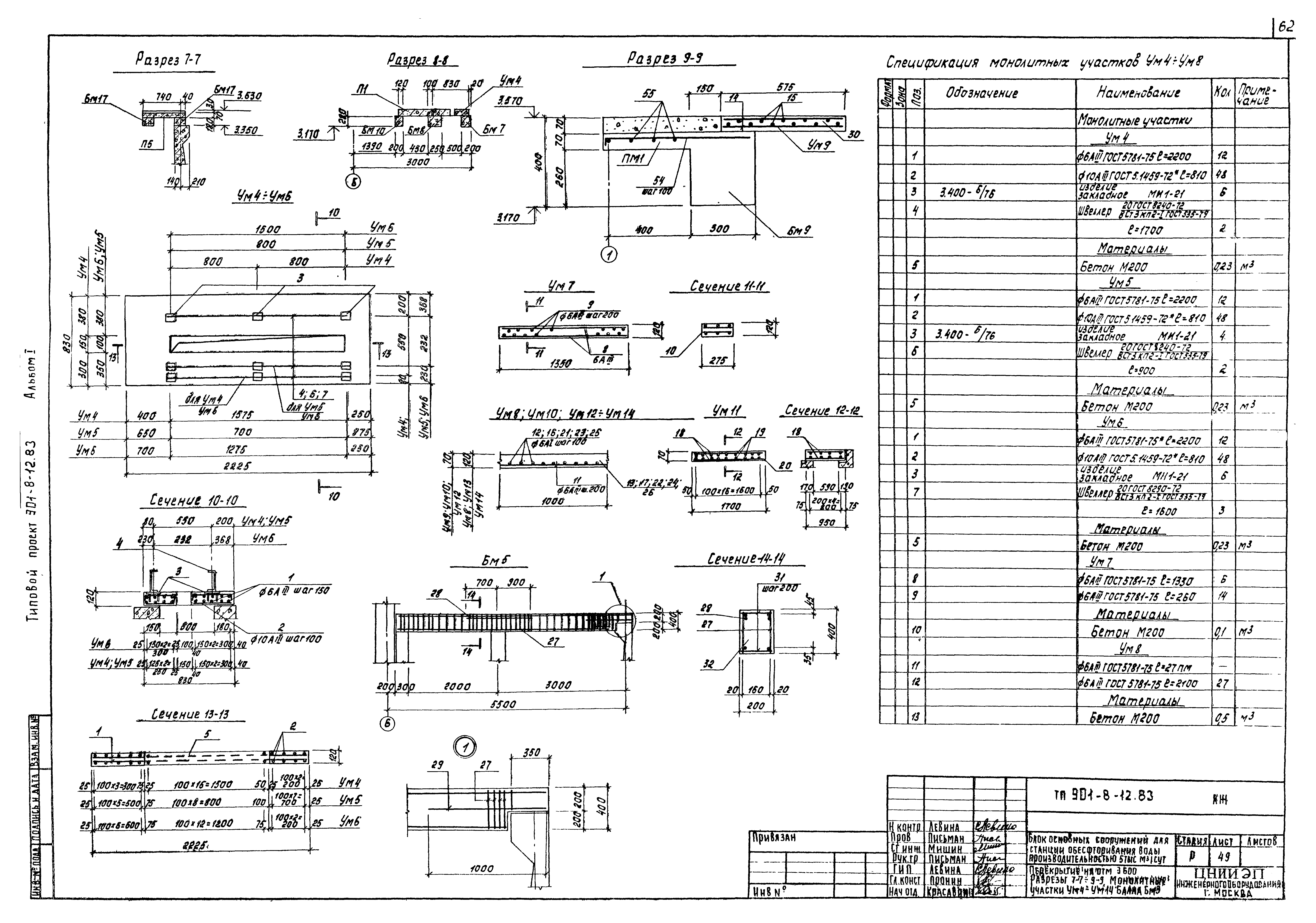
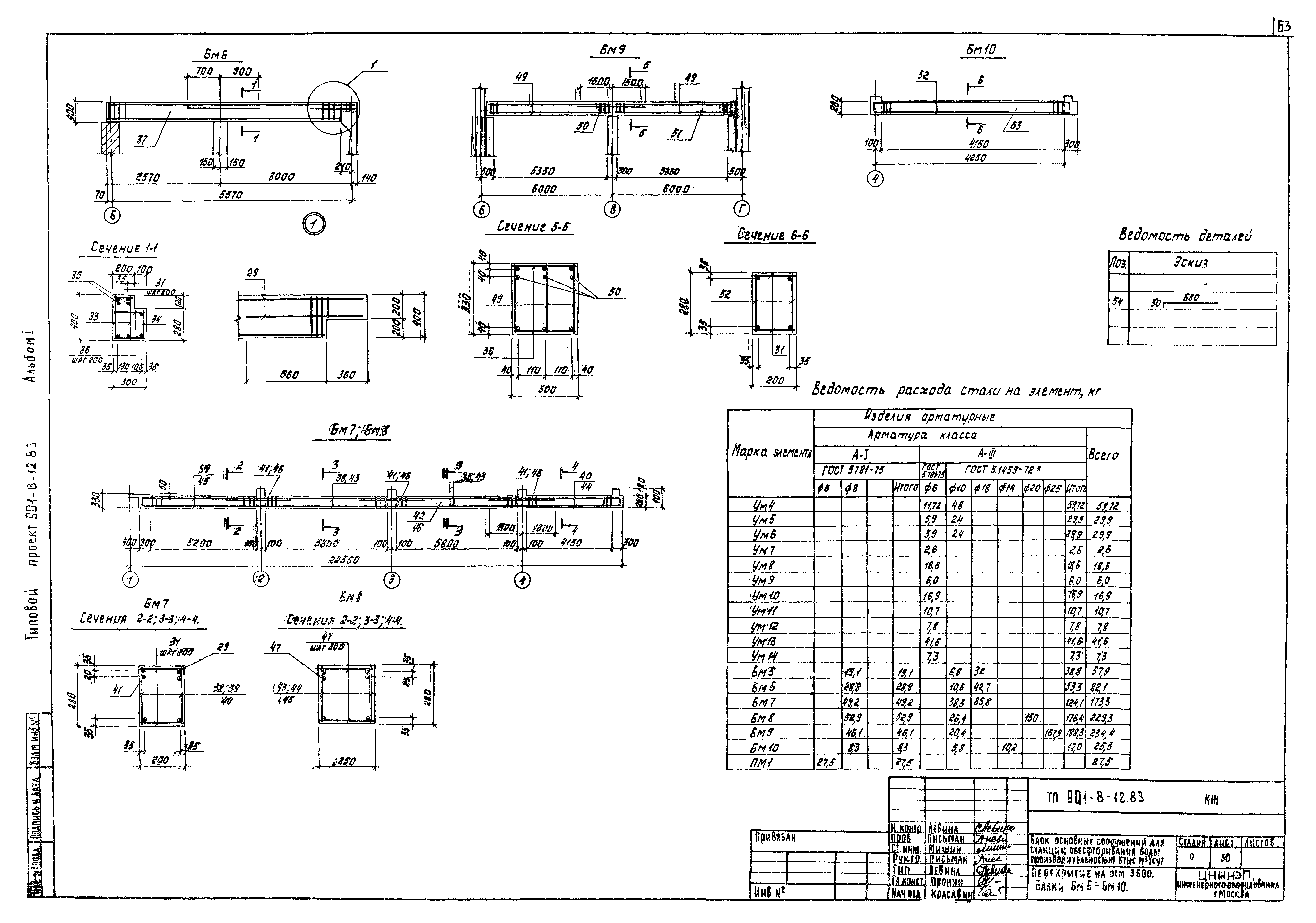
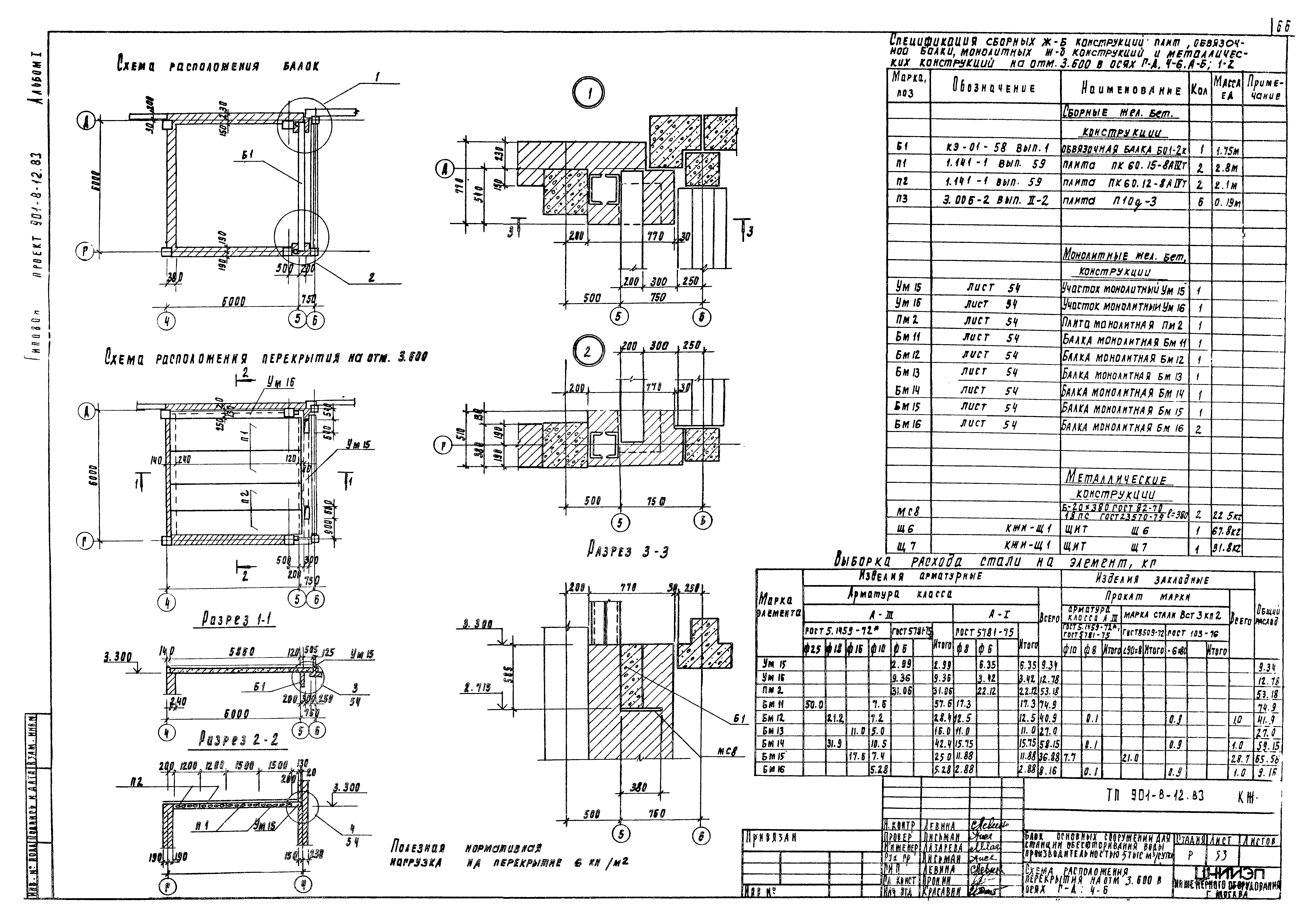
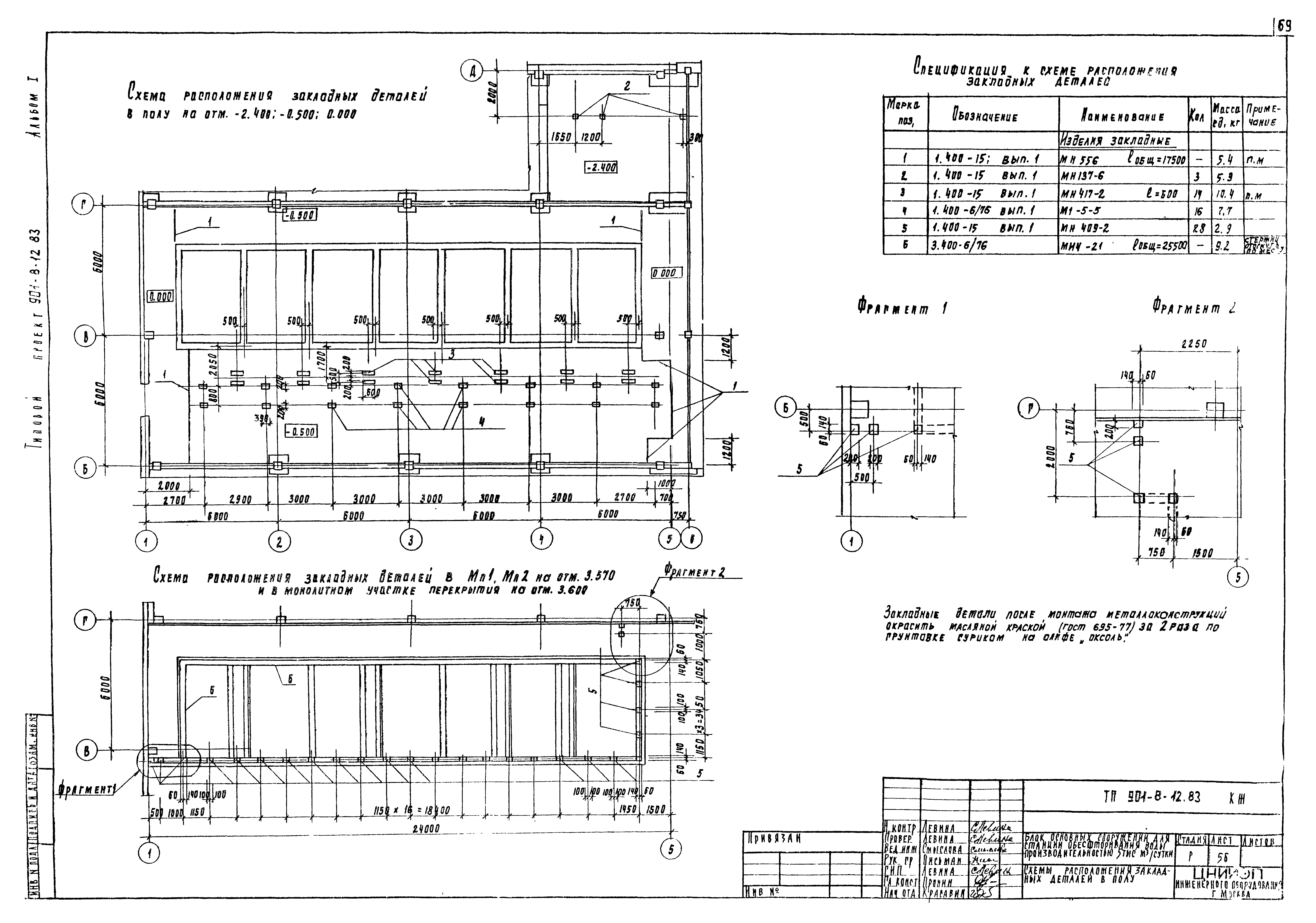
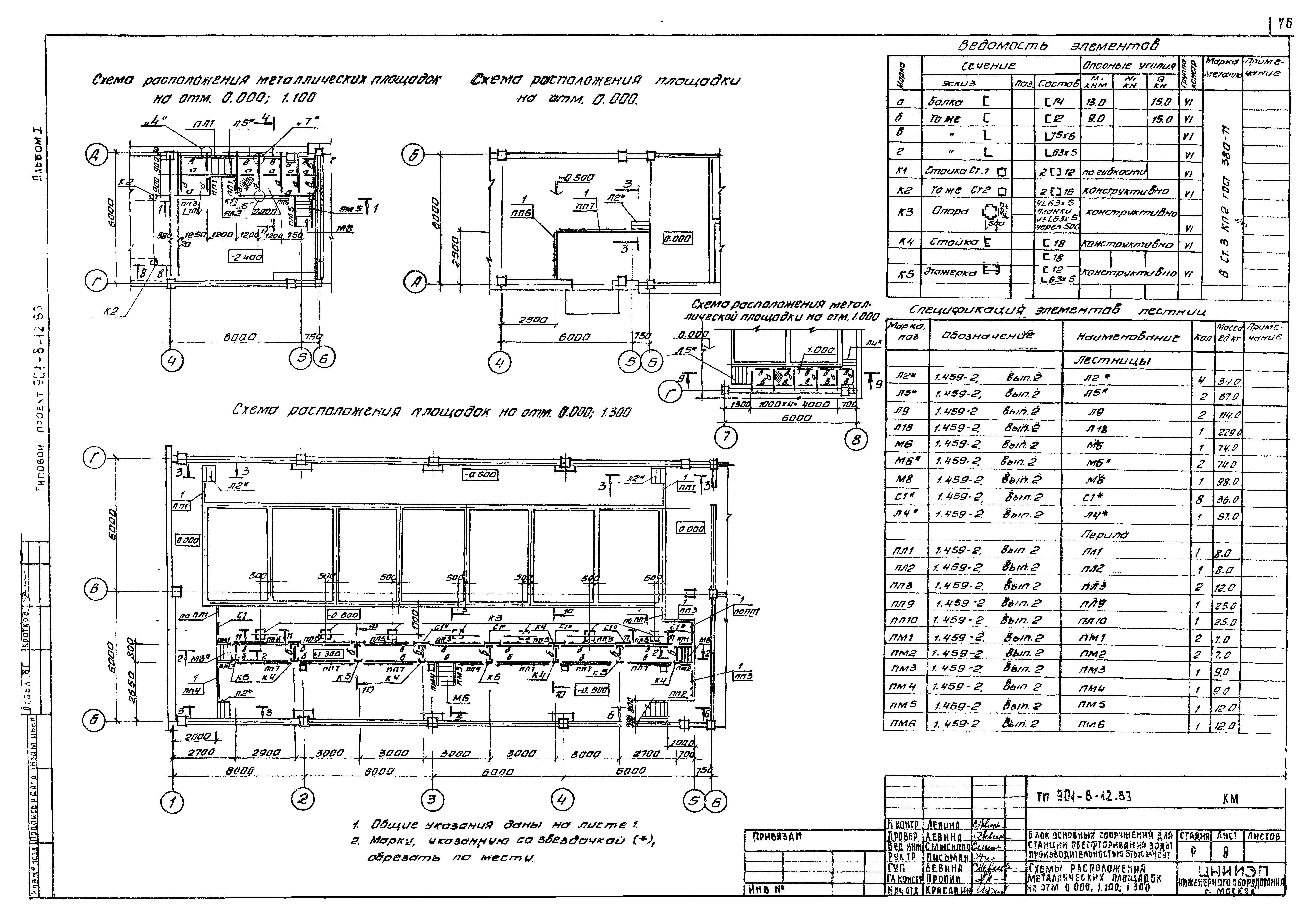
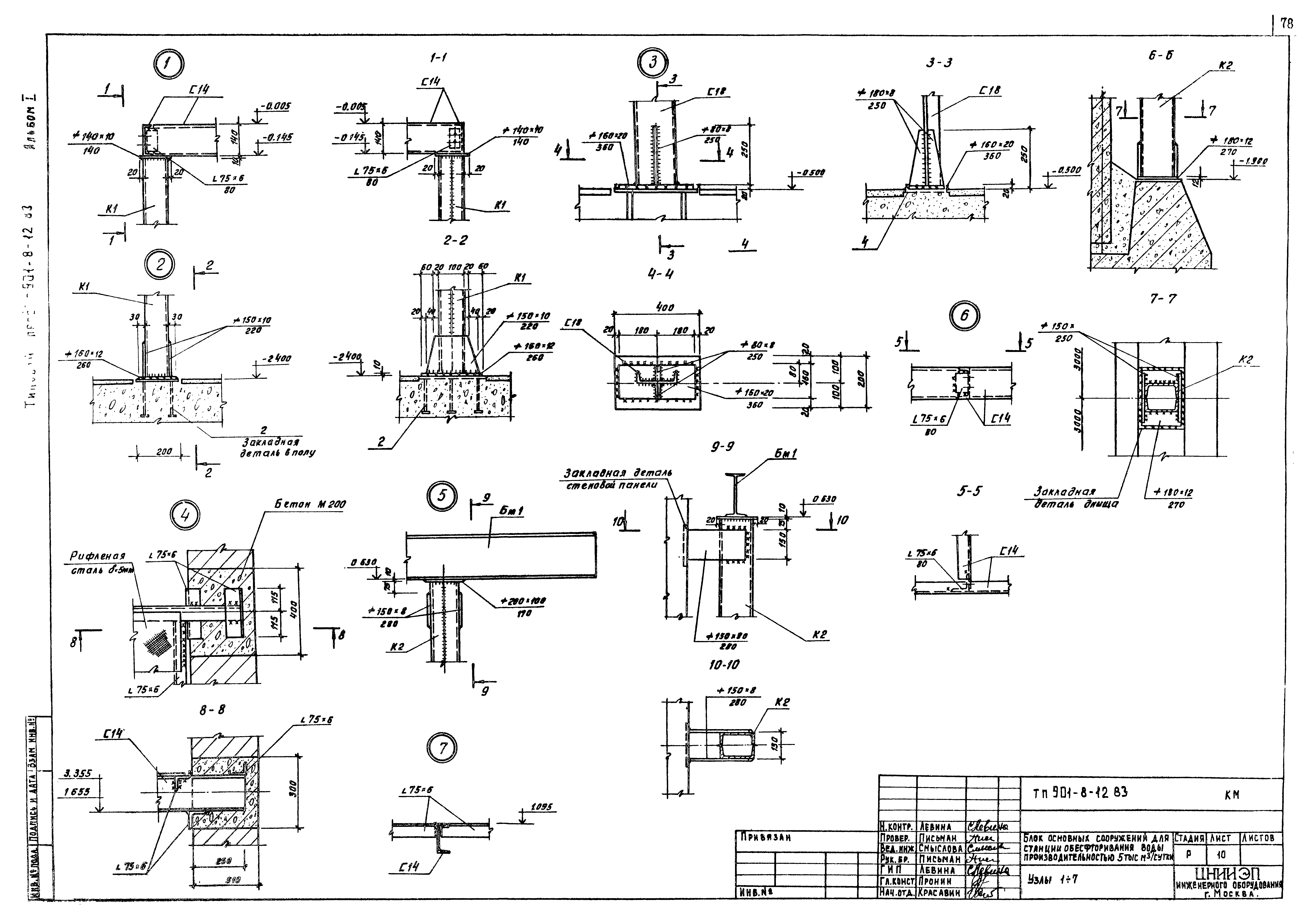
| Оглавление: | ТП 901-8-12.83 АР Листы марки АР ТП 901-8-12.83 АР-1 Общие данные ТП 901-8-12.83 АР-2 Ведомость отделки помещений. Спецификация элементов заполнения проемов ТП 901-8-12.83 АР-3 План на отм. - 2.400;-0.500 и 0.000 ТП 901-8-12.83 АР-4 План на отм. 3.600. Узлы 1;2 ТП 901-8-12.83 АР-5 Разрезы 1-1;2-2;3-3. Узлы 3;4 ТП 901-8-12.83 АР-6 Фасады 1-8;8-1;Д-А;А-Д. Узел 5 ТП 901-8-12.83 АР-7 Ведомость и спецификация перемычек ТП 901-8-12.83 АР-8 Планы и спецификация сборных перегородок. Фрагменты 1,2,3 ТП 901-8-12.83 АР-9 План отверстий на отм. 0.000 и 3.600 ТП 901-8-12.83 АР-10 Планы полов и кровли. Экспликация полов ТП 901-8-12.83 КЖ Листы марки КЖ ТП 901-8-12.83 КЖ-1-3 Общие данные ТП 901-8-12.83 КЖ-4 Схема расположения фундаментов, фундаментных балок и подпорных стен ТП 901-8-12.83 КЖ-5 Схема расположения фундаментов, фундаментных балок и подпорных стен. Вид 1-1. Развертка по 2-2, сечения 3-3,4-4,5-5,7-7 ТП 901-8-12.83 КЖ-6 Схема расположения фундаментов, фундаментных балок и подпорных стен. Развертки по 8-8;10-10. Сечения 6-6;9-9;11-11÷14-14;21-21;22-22 ТП 901-8-12.83 КЖ-7 Схема расположения фундаментов, фундаментных балок, подпорных стен. Развертка по 15-15. Сечения 16-16÷20-20 ТП 901-8-12.83 КЖ-8 Фундаменты ФМ1;ФМ2;ФМ3. Опалубочные чертежи. Армирование ТП 901-8-12.83 КЖ-9 Фундаменты ФМ4;ФМ5;ФМ6. Опалубочные чертежи. Армирование ТП 901-8-12.83 КЖ-10 Фундаменты ФМ7;ФМ8;ФМ9;ФМ10. Опалубочные чертежи ТП 901-8-12.83 КЖ-11 Фундаменты ФМ7;ФМ8;ФМ9. Армирование ТП 901-8-12.83 КЖ-12 Фундамент ФМ10. Армирование. Фундамент ФМ13. Опалубочный чертеж. Армирование ТП 901-8-12.83 КЖ-13 Фундаменты ФМ11;ФМ18. Опалубочные чертежи. Армирование ТП 901-8-12.83 КЖ-14 Фундаменты ФМ12;ФМ14. Опалубочные чертежи. Армирование ТП 901-8-12.83 КЖ-15 Фундаменты ФМ15;ФМ16. Опалубочные чертежи. Армирование ТП 901-8-12.83 КЖ-16 Фундамент ФМ19. Опалубочный чертеж. Армирование ТП 901-8-12.83 КЖ-17 Фундаменты ФМ17;ФМ20. Опалубочные чертежи. Армирование ТП 901-8-12.83 КЖ-18 Схема расположения емкостей, фундаментов под оборудование, каналов и приямков ТП 901-8-12.83 КЖ-19 Разрезы 1-1÷4-4 ТП 901-8-12.83 КЖ-20 Фундаменты под оборудование ФО1-ФО8 ТП 901-8-12.83 КЖ-21 Схема расположения приямков и каналов в осях 7-8,А-Б ТП 901-8-12.83 КЖ-22 Схема расположения труб и закладных деталей на отм.-2.400;-0.500;0.000;3.600 ТП 901-8-12.83 КЖ-23 Антикоррозионная защита каналов и фундаментов под оборудование ТП 901-8-12.83 КЖ-24 Растворно-хранилищные баки коагулянта и соды (РЕ1). Схема расположения стеновых панелей и монолитных участков. Вид 1-1. Разрез2-2 ТП 901-8-12.83 КЖ-25 Растворно-хранилищные баки коагулянта и соды (РЕ1). Узлы 3,4. Разрез 3-3. Схема расположения монолитных участков стен ТП 901-8-12.83 КЖ-26 Растворно-хранилищные баки коагулянта и соды (РЕ1). Армирование монолитных участков стен Ум1-Ум3 ТП 901-8-12.83 КЖ-27 Растворно-хранилищные баки коагулянта и соды (РЕ1). Армирование днища ТП 901-8-12.83 КЖ-28 Схема расположения каркасов в зубе днища емкости РЕ1 ТП 901-8-12.83 КЖ-29 Антикоррозионная защита и схема деревянной обрешетки в емкости РЕ1 ТП 901-8-12.83 КЖ-30 Контактные осветители (РЕ2). Схема расположения стеновых панелей и монолитных участков. Вид 1-1 ТП 901-8-12.83 КЖ-31 Контактные осветители (РЕ2). Разрезы 2-2÷5-5. Узлы 3,4 ТП 901-8-12.83 КЖ-32 Контактные осветители (РЕ2). Узлы 1,2,5-8 ТП 901-8-12.83 КЖ-33 Контактные осветители (РЕ2). Схема расположения закладных изделий в монолитных участках. Армирование монолитных участков УМ1-УМ3 ТП 901-8-12.83 КЖ-34 Контактные осветители (РЕ2). Армирование днища ТП 901-8-12.83 КЖ-35 Контактные осветители (РЕ2). Схема расположения каркасов в зубе днища емкости ТП 901-8-12.83 КЖ-36 Контактные осветители (РЕ2). Армирование днища и монолитных участков ТП 901-8-12.83 КЖ-37 Расходные баки коагулянта (РЕ3). Опалубочные чертежи ТП 901-8-12.83 КЖ-38 Расходные баки коагулянта (РЕ3). Армирование ТП 901-8-12.83 КЖ-39 Схема расположения стеновых панелей по осям "А,Д","1,5,6,8". Сечения 1-1÷3-3 ТП 901-8-12.83 КЖ-40 Спецификация стеновых панелей. Спецификация стальных элементов крепления каркаса ТП 901-8-12.83 КЖ-41 Схемы расположения поит покрытия и перекрытия. Разрезы 1-1÷3-3 ТП 901-8-12.83 КЖ-42 Схемы расположения колонн, балок покрытия, ригелей. Разрезы 1-1;2-2. Вид 3-3 ТП 901-8-12.83 КЖ-43 Схемы расположения колонн, балок покрытия, ригелей. Разрезы 4-4÷6-6,8-8,9-9. Вид 7-7. Узел 1 ТП 901-8-12.83 КЖ-44 Схемы расположения лестничных маршей, проступей и верхней лестничной площадки ТП 901-8-12.83 КЖ-45 Перекрытие на отм. 1.100. Разрезы 1-1÷6-6 ТП 901-8-12.83 КЖ-46 Перекрытие на отм. 1.100. Армирование монолитных участков УМ1-УМ3 ТП 901-8-12.83 КЖ-47 Перекрытие на отм. 1.100. Балки БМ1-БМ4. Разрезы 7-7÷11-11. Узлы 1-2 ТП 901-8-12.83 КЖ-48 Схема расположения перекрытия на отм. 3.600. Разрезы 1-1÷6-6,15-15 ТП 901-8-12.83 КЖ-49 Перекрытие на отм. 3.600. Разрезы 7-7;9-9. Монолитные участки УМ4-УМ14. Балка БМ5 ТП 901-8-12.83 КЖ-50 Перекрытие на отм. 3.600. Балки БМ5-БМ10 ТП 901-8-12.83 КЖ-51 Перекрытие на отм. 3.600. Спецификация к монолитным участкам и балкам ТП 901-8-12.83 КЖ-52 Перекрытие на отм. 3.600. Схема армирования монолитных железобетонных поясов МП1-МП2 ТП 901-8-12.83 КЖ-53 Схема расположения перекрытия на отм. 3.600 в осях "Г-Д","4-6" ТП 901-8-12.83 КЖ-54 Схема расположения перекрытия на отм. 3.600 в осях "А-Б","1-2" ТП 901-8-12.83 КЖ-55 Схема расположения приточной венткамеры на отм. 3.600 ТП 901-8-12.83 КЖ-56 Схема расположения закладных деталей в полу ТП 901-8-12.83 КМ Листы марки КМ ТП 901-8-12.83 КМ-1 Общие данные. Техническая спецификация металла ТП 901-8-12.83 КМ-2 Техническая спецификация стали ТП 901-8-12.83 КМ-3 Техническая спецификация стали на типовые конструкции ТП 901-8-12.83 КМ-4 Ведомость металлоконструкций по видам профилей ТП 901-8-12.83 КМ-5 Схема расположения вертикальных связей ТП 901-8-12.83 КМ-6 Схема расположения подкрановых путей и монорельсов ТП 901-8-12.83 КМ-7 Узлы монорельсов 1-5 ТП 901-8-12.83 КМ-8 Схемы расположения металлических площадок на отм. 0.000;1.100;1.100;1.300 ТП 901-8-12.83 КМ-9 Схемы расположения металлических площадок на отм. 1.800;3.500. Разрезы 1-1÷8-9 ТП 901-8-12.83 КМ-10 Узлы 1-7 ТП 901-8-12.83 КМ-11 Схема расположения ограждений ТП 901-8-12.83 КМ-12 Схема расположения элементов ограждения контактного осветителя |
| Разработан: | ЦНИИЭП |
| Утверждён: | 22.07.1982 Госгражданстрой (Gosgrazhdanstroy 219) |
















































































