Скачать Типовой проект 901-8-12.83 Альбом II. Технологическая, санитарно-техническая части и нестандартизированное оборудованиеДата актуализации: 01.01.2021
|
| Обозначение: | Типовой проект 901-8-12.83 |
| Обозначение англ: | 901-8-12.83 |
| Статус: | не определен законодательством |
| Название рус.: | Альбом II. Технологическая, санитарно-техническая части и нестандартизированное оборудование |
| Дата добавления в базу: | 01.09.2013 |
| Дата актуализации: | 01.01.2021 |
| Дата введения: | 17.12.1982 |
| Дата окончания срока действия: | 30.06.2003 |
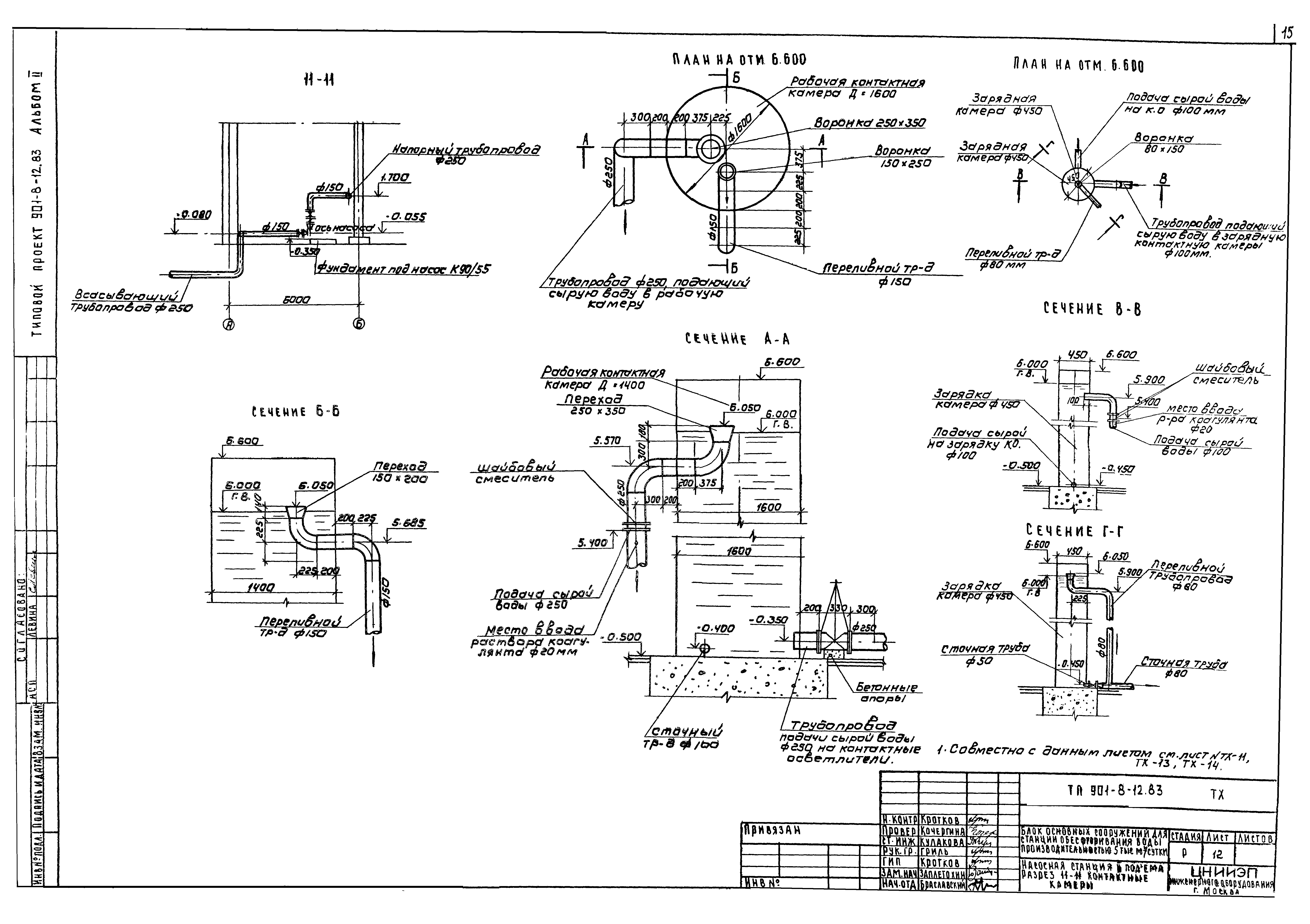
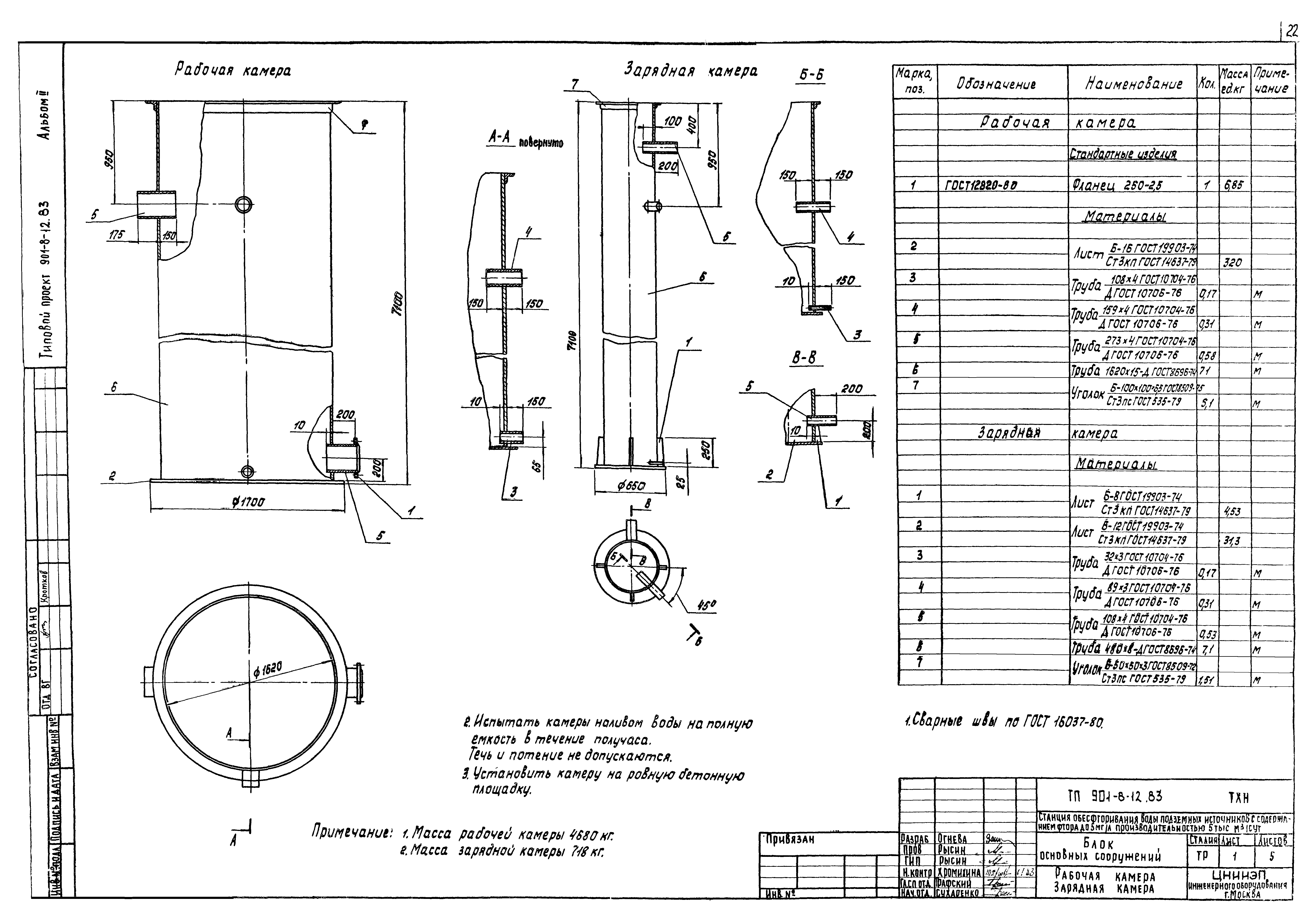
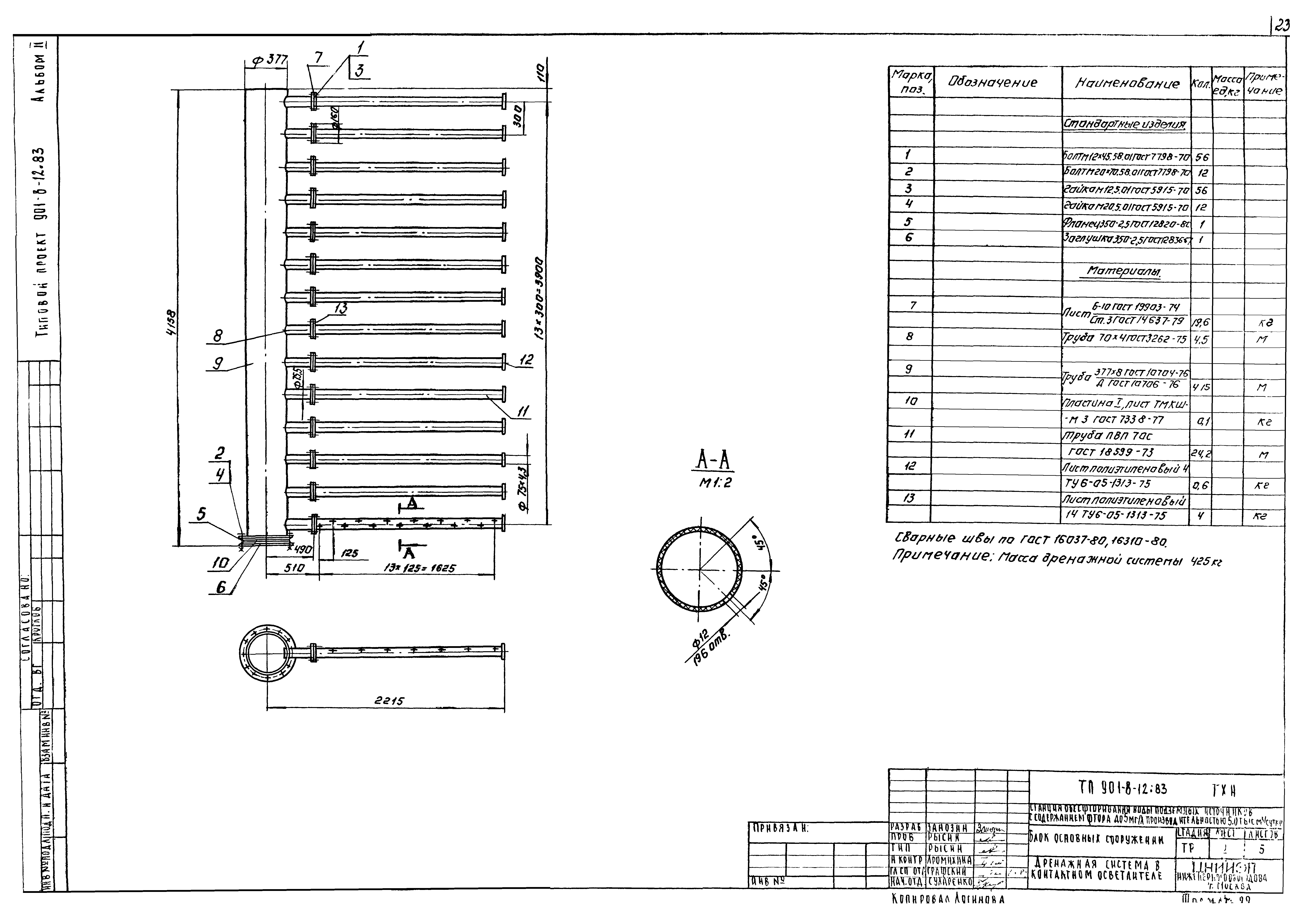
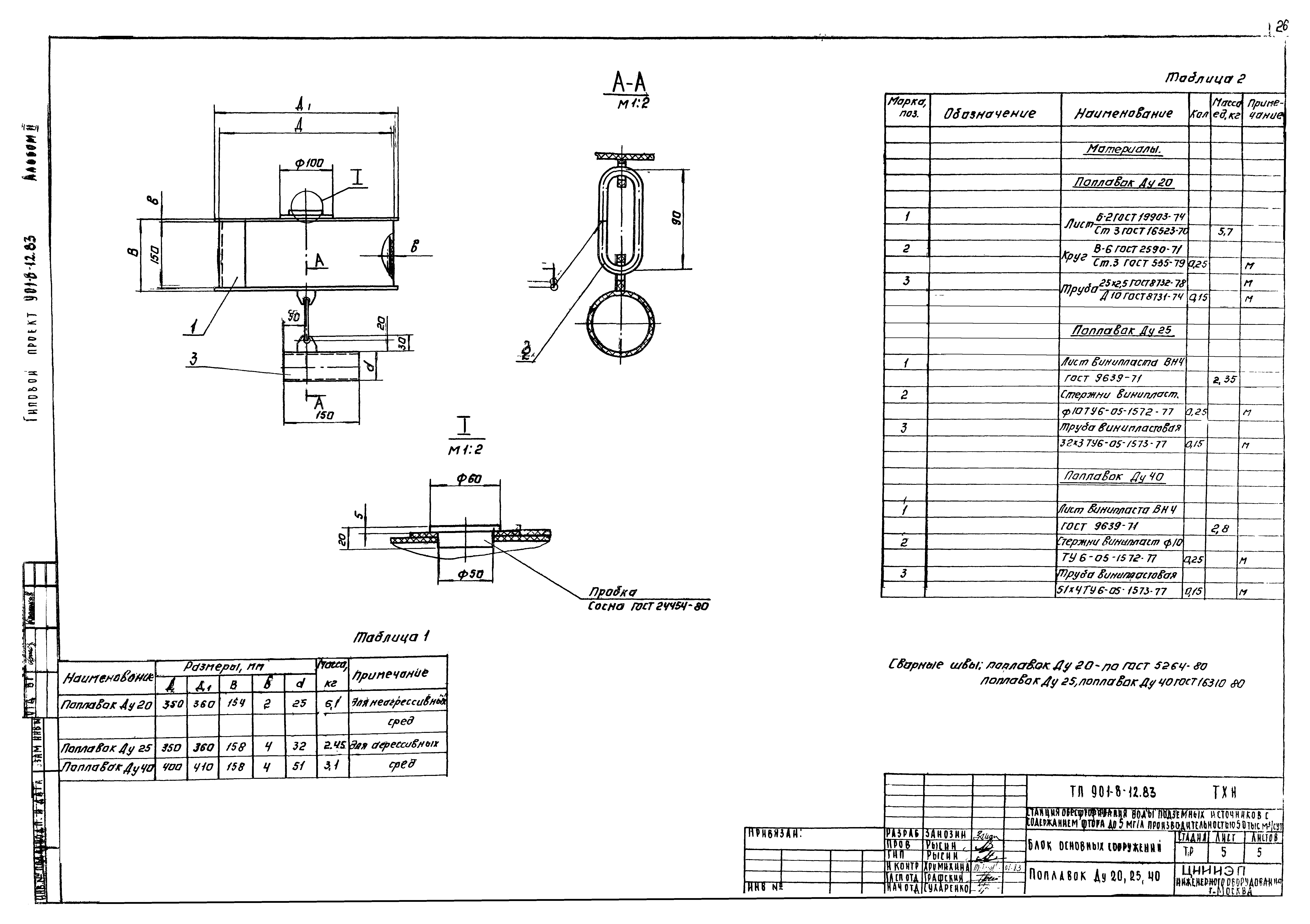
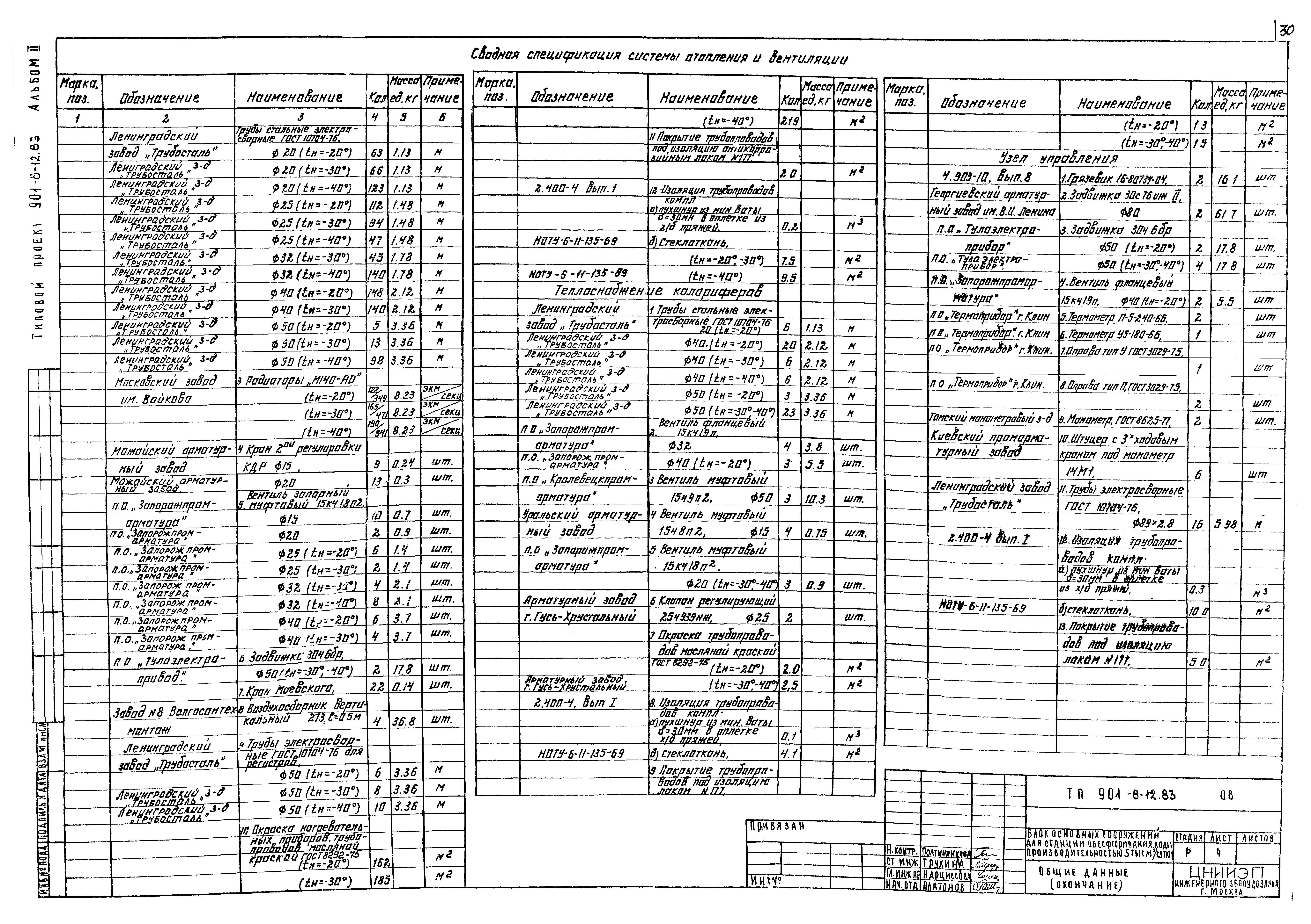
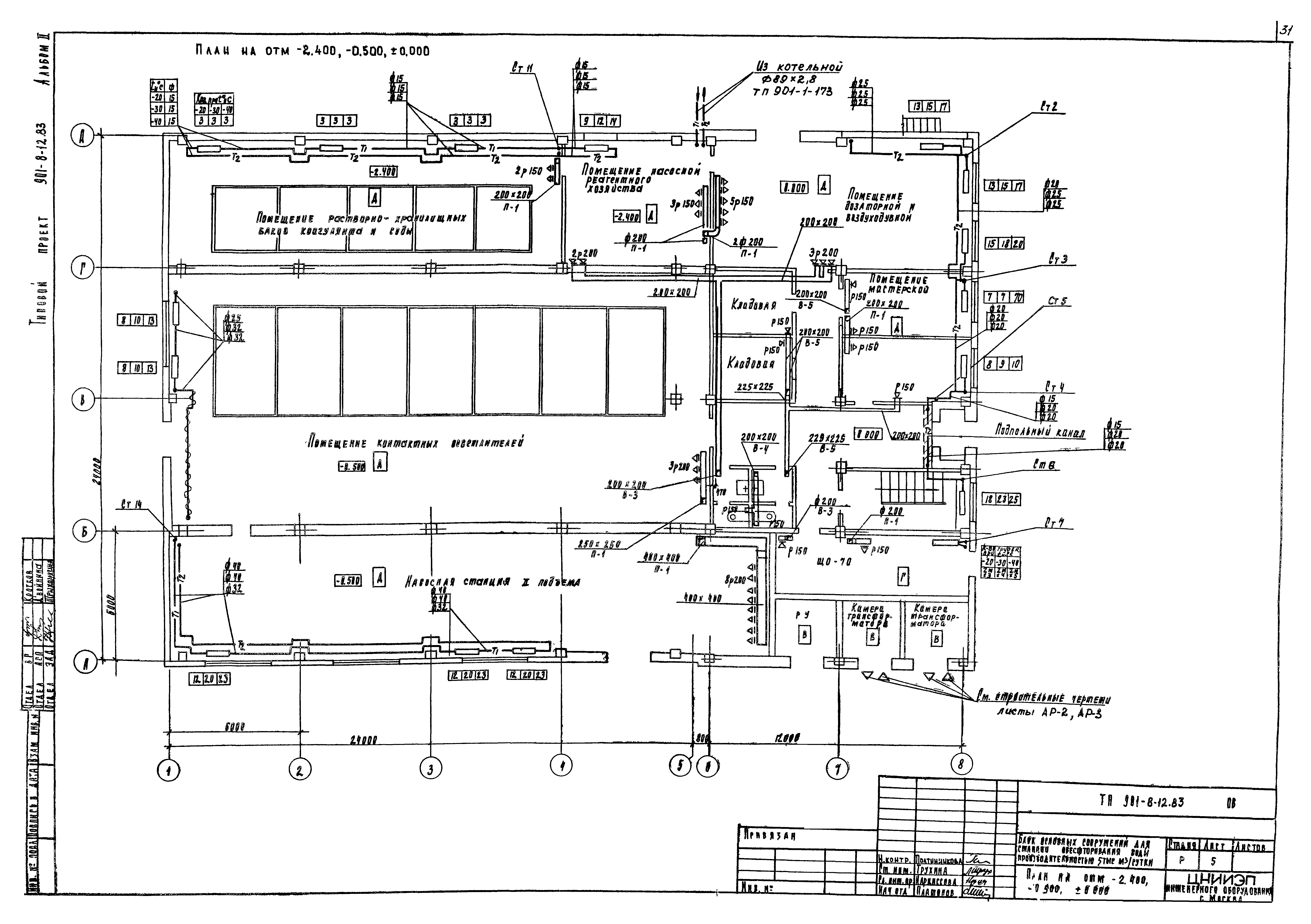
| Оглавление: | ТП 901-8-12.83 ТХ Технологическая часть ТП 901-8-12.83 ТХ-1 Общие данные ТП 901-8-12.83 ТХ-2 Принципиальная схема обработки воды ТП 901-8-12.83 ТХ-3 Общеувязочный чертеж. План на отм. -0.500, 0.000. План на отм. 3.600. Разрезы 1-1,2-2 ТП 901-8-12.83 ТХ-4 Помещение контактных осветлителей. План на отм. -0.500, 0.000 ТП 901-8-12.83 ТХ-5 Помещение контактных осветлителей. Разрезы 3-3;4-4 ТП 901-8-12.83 ТХ-6 Помещение контактных осветлителей. Аксонометрические схемы технологических трубопроводов ТП 901-8-12.83 ТХ-7 Помещение контактных осветлителей. Спецификация материалов и оборудования ТП 901-8-12.83 ТХ-8 Реагентное хозяйство. План на отм. -2.400,-0.000 и 1.100. Разрезы 5-5;6-6 и 7-7 ТП 901-8-12.83 ТХ-9 Реагентное хозяйство. Аксонометрические схемы ТП 901-8-12.83 ТХ-10 Реагентное хозяйство. Спецификация материалов и оборудования ТП 901-8-12.83 ТХ-11 Насосная станция 2го подъема. План на отм. -0.500. Разрезы 8-8,9-9;10-10 ТП 901-8-12.83 ТХ-12 Насосная станция 2го подъема. Разрез 11-11. Контактные камеры ТП 901-8-12.83 ТХ-13 Насосная станция 2го подъема. Аксонометрическая схема трубопроводов ТП 901-8-12.83 ТХ-14 Насосная станция 2го подъема. Спецификация материалов и оборудования ТП 901-8-12.83 ТХ-15 Лаборатории. Спецификация мебели и оборудования. Экспликация помещений ТП 901-8-12.83 ВК Санитарно-техническая часть ТП 901-8-12.83 ВК-1 Общие данные ТП 901-8-12.83 ВК-2 Внутренний водопровод и канализация. Планы и схемы. Спецификация материалов ТП 901-8-12.83 ВК-3 Водостоки. Схемы. Спецификация материалов ТП 901-8-12.83 ТХН-1 Рабочая камера, зарядка камера ТП 901-8-12.83 ТХН-2 Дренажная система в контактном осветлителе ТП 901-8-12.83 ТХН-3 Коллектор гидросмыва, коллектор воздухораспределительный в растворно-хранилищном баке коагулянта и соды ТП 901-8-12.83 ТХН-4 Воздухозаборное устройство Ду-150, коллектор воздухораспределительный в растворно-хранилищном баке коагулянта и соды ТП 901-8-12.83 ТХН-5 Поплавок Ду20,25,40 ТП 901-8-12.83 ОВ Отопление и вентиляция ТП 901-8-12.83 ОВ-1 Общие данные (начало) ТП 901-8-12.83 ОВ-2 Общие данные (продолжение) ТП 901-8-12.83 ОВ-3 Общие данные (продолжение) ТП 901-8-12.83 ОВ-4 Общие данные (окончание) ТП 901-8-12.83 ОВ-5 План на отм. -2.400;-0.500;0.000 ТП 901-8-12.83 ОВ-6 План на отм. 3.600 ТП 901-8-12.83 ОВ-7 Установка системы П1,В-3÷5 ТП 901-8-12.83 ОВ-8 Схема системы отопления ТП 901-8-12.83 ОВ-9 Схемы систем вентиляции П-1;В-1÷В-6;ВЕ-1÷ВЕ-5 ТП 901-8-12.83 ОВ-10 Схема системы теплоснабжения установки П-1 ТП 901-8-12.83 ОВН-1 Переходы ТП 901-8-12.83 ОВН-2 Воздуховод из асбестоцементных листов ТП 901-8-12.83 ОВН-3 Узлы соединений |
| Разработан: | ЦНИИЭП |
| Утверждён: | 22.07.1981 Госгражданстрой (Gosgrazhdanstroy 219) |






































