Скачать Типовой проект 901-9-14.84 Альбом III. Архитектурно-строительные решенияДата актуализации: 01.01.2021
|
| Обозначение: | Типовой проект 901-9-14.84 |
| Обозначение англ: | 901-9-14.84 |
| Статус: | не определен законодательством |
| Название рус.: | Альбом III. Архитектурно-строительные решения |
| Дата добавления в базу: | 01.09.2013 |
| Дата актуализации: | 01.01.2021 |
| Дата введения: | 14.12.1984 |
| Дата окончания срока действия: | 30.06.2003 |
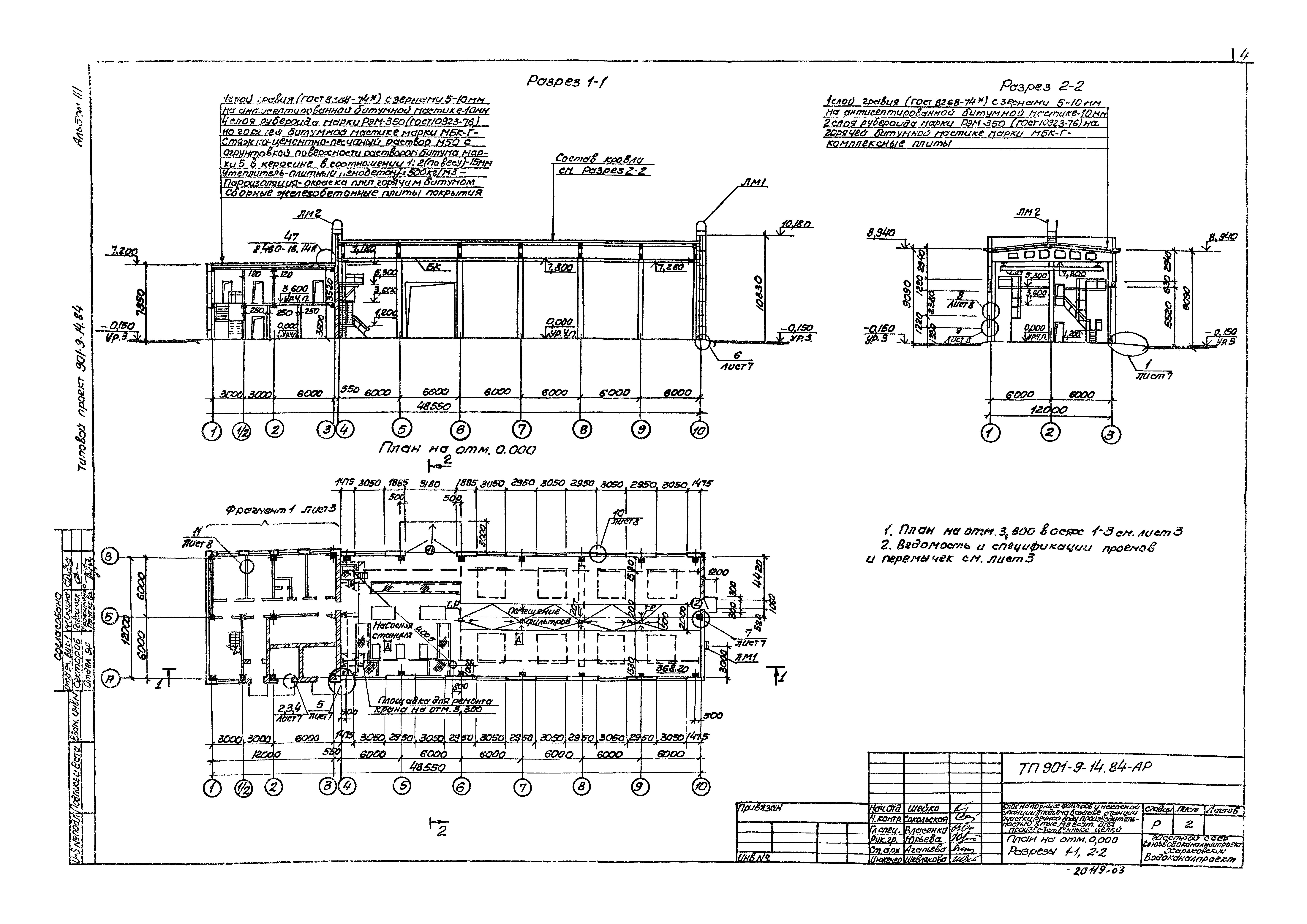
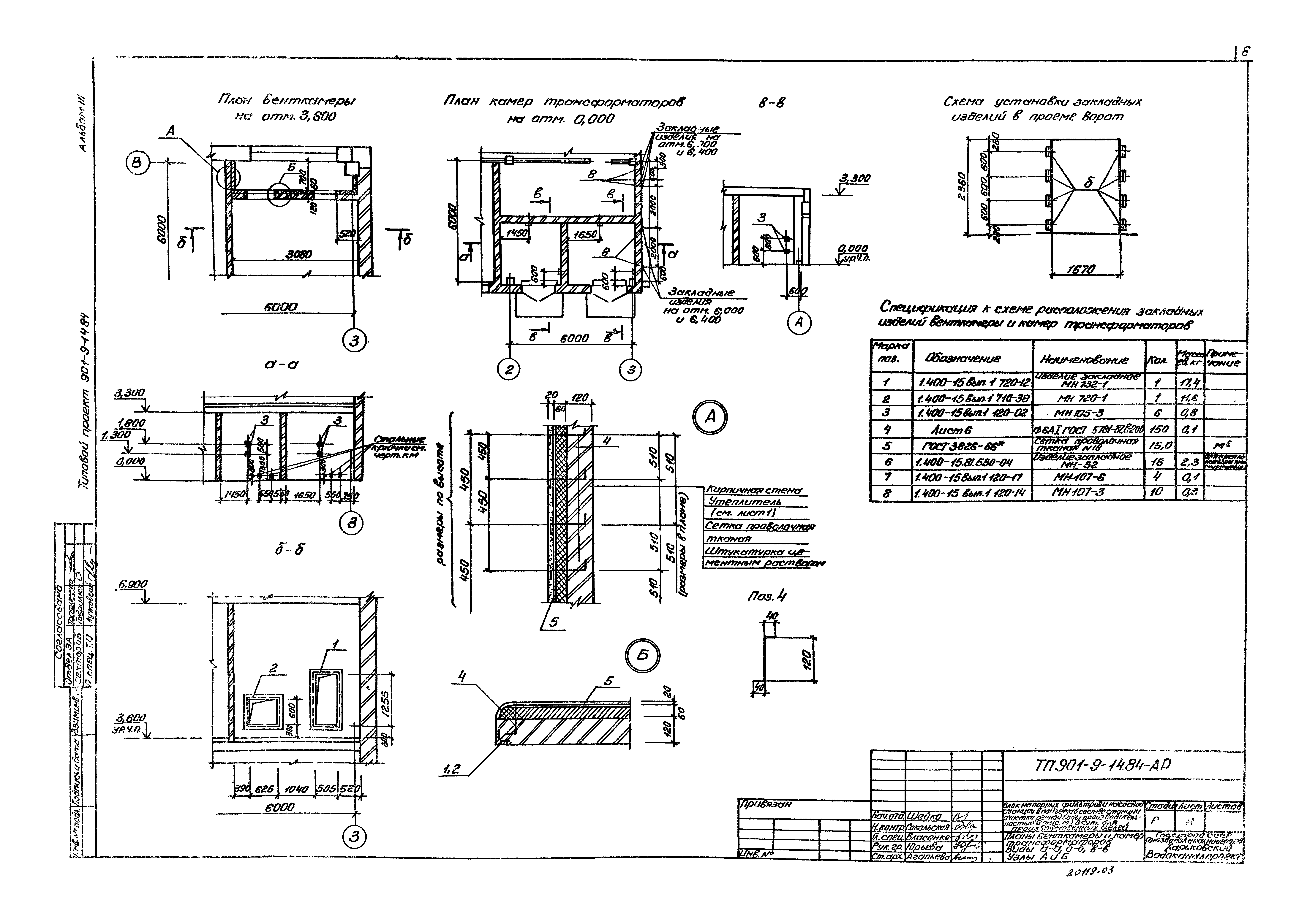
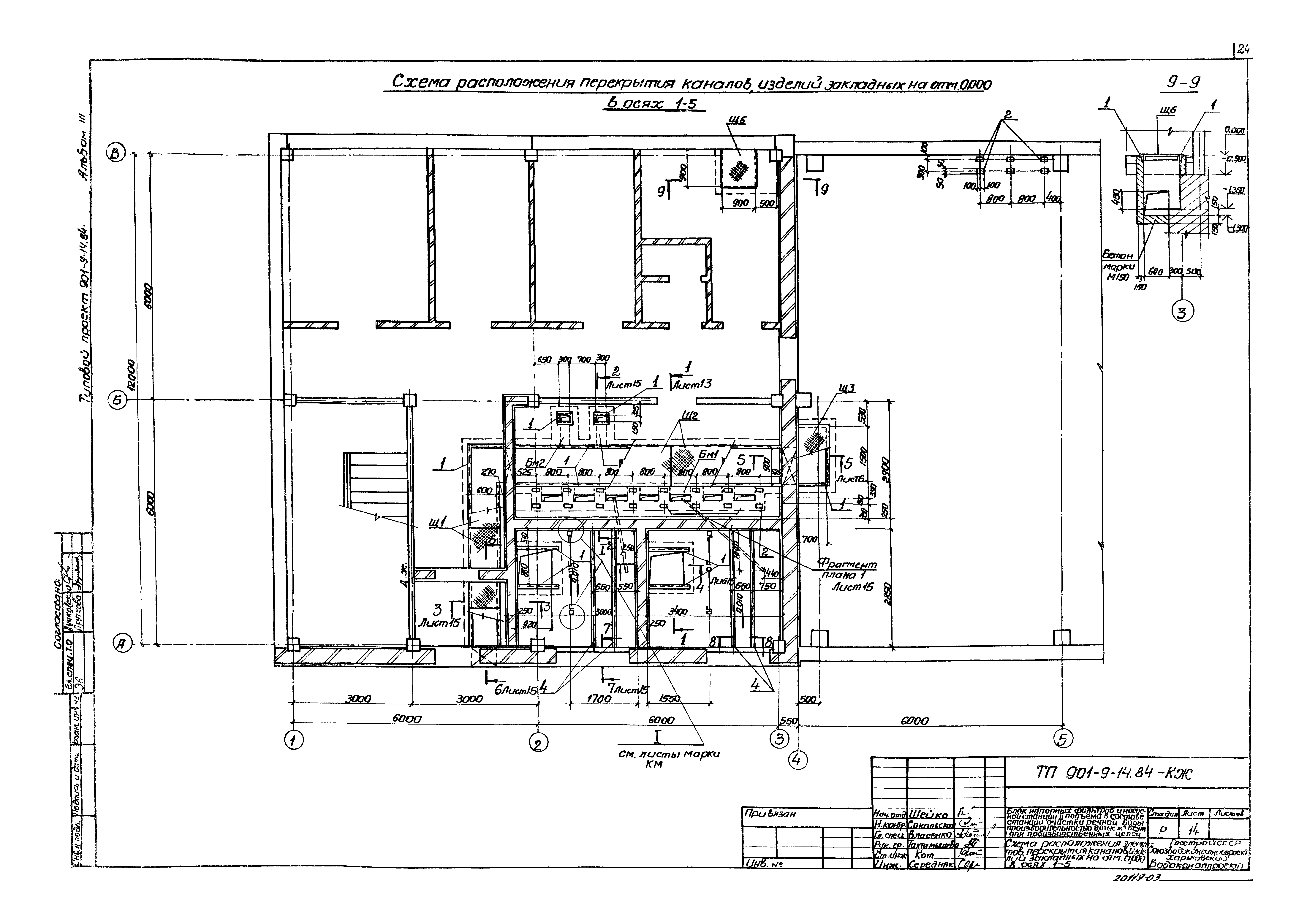
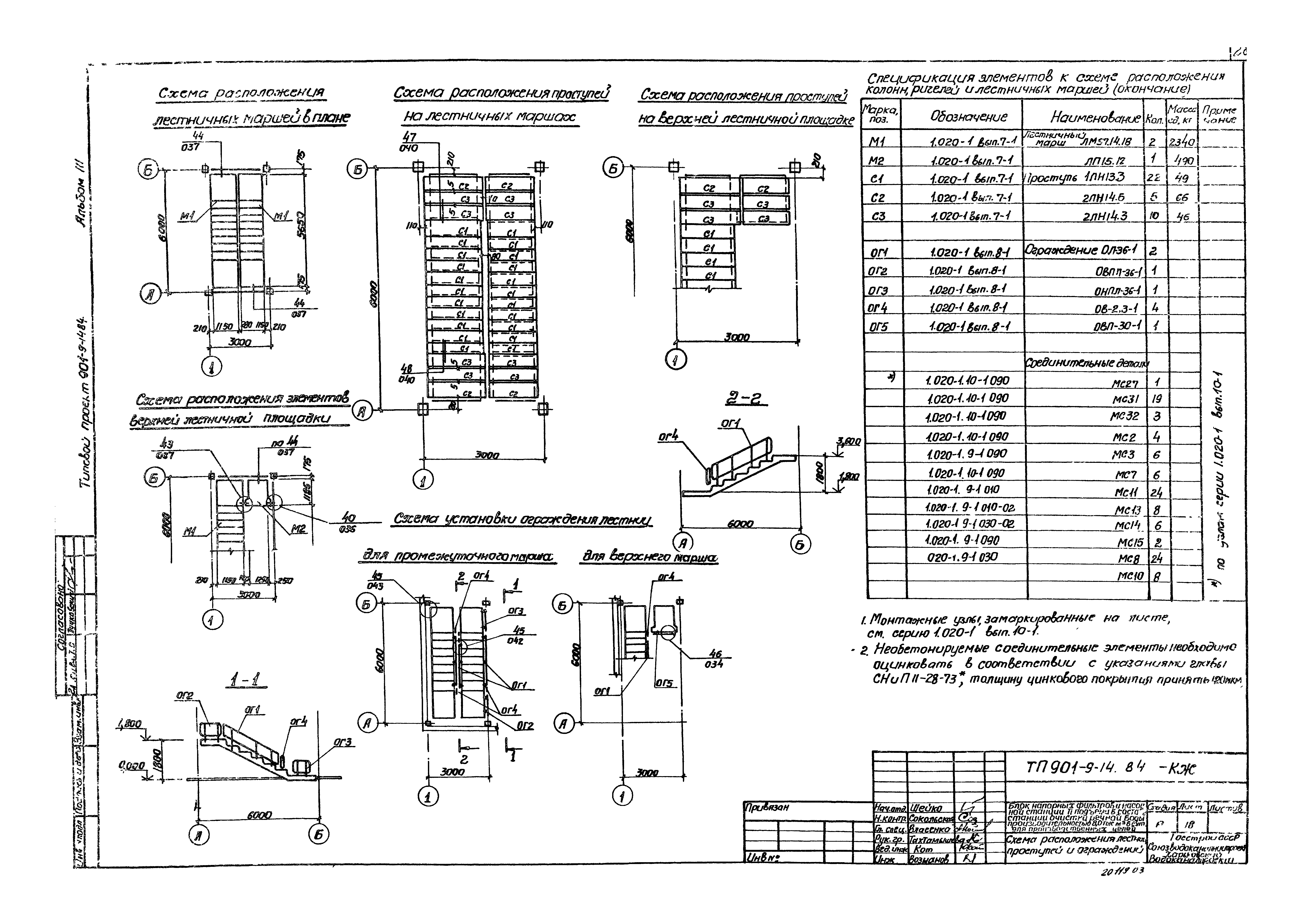
| Оглавление: | ТП 901-9-14.84 Содержание альбома ТП 901-9-14.84-АР Основной комплект марки АР ТП 901-9-14.84-АР Общие данные ТП 901-9-14.84-АР План на отм. 3.600 ТП 901-9-14.84-АР Фасады. Схемы расположения элементов заполнения оконных проемов ТП 901-9-14.84-АР План кровли. План полов. Экспликация полов. Ведомость отделки помещений ТП 901-9-14.84-АР Планы венткамеры и камер трансформаторов. Виды а-а,б-б,в-в. Узлы А и Б ТП 901-9-14.84-АР Детали 1-7 ТП 901-9-14.84-АР Детали 8-17 ТП 901-9-14.84-КЖ Основной комплект марки КЖ ТП 901-9-14.84-КЖ Общие данные (начало) ТП 901-9-14.84-КЖ Общие данные (окончание) ТП 901-9-14.84-КЖ Схема расположения фундаментов и фундаментных балок. Узлы 1-5 ТП 901-9-14.84-КЖ Схема расположения фундаментов и фундаментных балок. Узлы 6-7. Сечения 7-7÷14-14 ТП 901-9-14.84-КЖ Монолитные фундаменты ФМ1,ФМ2 ТП 901-9-14.84-КЖ Монолитные фундаменты ФМ3,ФМ3Н,ФМ5 ТП 901-9-14.84-КЖ Монолитные фундаменты ФМ3,ФМ3Н,ФМ6 ТП 901-9-14.84-КЖ Монолитные фундаменты ФМ5,ФМ7,ФМ7Н,ФМ8 ТП 901-9-14.84-КЖ Монолитные фундаменты ФМ4. Узлы 1-3 ТП 901-9-14.84-КЖ Схема расположения фундаментов, каналов опор под трубопроводы в осях 4-10 на отм. 0.000 ТП 901-9-14.84-КЖ Фундаменты под оборудование ФОМ1-ФОМ3. Опоры под трубопроводы ОП1-ОП12 ТП 901-9-14.84-КЖ Схема расположения фундаментов перекрытия каналов и приямков. Приямки ПРм1-ПРм4. Узлы 1-4 ТП 901-9-14.84-КЖ Приямки ПРм1-ПРм4. Сечения 3-3÷10-10. Узел 5 ТП 901-9-14.84-КЖ Схема расположения каналов в осях 1-5 ТП 901-9-14.84-КЖ Схема расположения элементов в перекрытиях каналов, изделий, закладных на отм. 0.000 в осях 1-5 ТП 901-9-14.84-КЖ Схема расположения каналов в осях 1-5. Разрезы 2-2÷8-8. Узел 1 ТП 901-9-14.84-КЖ Схема расположения каналов в осях 1-5. Балки БМ1,БМ2. Армирование ТП 901-9-14.84-КЖ Схема расположения колонн и ригелей перекрытия и покрытия ТП 901-9-14.84-КЖ Схема расположения лестниц, проступей и ограждений ТП 901-9-14.84-КЖ Схема расположения плит перекрытия на отм. 3.600 и покрытия в осях 1-3 ТП 901-9-14.84-КЖ Схемы расположения стеновых панелей в осях 1-3,3-1 ТП 901-9-14.84-КЖ Схема расположения плит покрытия в осях В-А ТП 901-9-14.84-КЖ Схема расположения колонн и балок покрытия в осях 4-10 ТП 901-9-14.84-КЖ Схема расположения плит покрытия в осях В-4-10 ТП 901-9-14.84-КЖ Схема расположения стеновых панелей в осях 4-10 ТП 901-9-14.84-КЖ Схема расположения стеновых панелей. Фрагменты 1-10 ТП 901-9-14.84-КЖ Схема расположения перегородок в осях 1-3 на отм. 0.000 и на отм.3.600 ТП 901-9-14.84-КЖ Схема использования ж.б. конструкций зданий в качестве заземлителей ТП 901-9-14.84-КМ Основной комплект марки КМ ТП 901-9-14.84-КМ Общие данные (начало) ТП 901-9-14.84-КМ Общие данные (окончание) ТП 901-9-14.84-КМ Схема расположения подвесных путей ТП 901-9-14.84-КМ Схема расположения обслуживающих площадок ТП 901-9-14.84-КМ Схема расположения площадок на отм. 3.600,1.100 и 1.200 ТП 901-9-14.84-КМ ДМ1,ФМ1,ПП6 и ТП 901-9-14.84-КМ Рама Р-1, щиты Щ1-Щ7 ТП 901-9-14.84-КМ Пожарная лестница ЛМ1,ЛМ2 ТП 901-9-14.84-КМ Пожарная лестница ЛВ1,ЛП1-ЛП3,ЛН1,ОВ1,ОВ1А,ОП1,ОП1Н |
| Разработан: | Харьковский Водоканалпроект |
| Утверждён: | 17.11.1982 Главпромстройпроект Госстроя СССР (19/5-5004) |





























