Скачать Типовой проект 901-9-14.84 Альбом V. Электрооборудование. Автоматизация и технологический контрольДата актуализации: 01.01.2021
|
| Обозначение: | Типовой проект 901-9-14.84 |
| Обозначение англ: | 901-9-14.84 |
| Статус: | не определен законодательством |
| Название рус.: | Альбом V. Электрооборудование. Автоматизация и технологический контроль |
| Дата добавления в базу: | 01.09.2013 |
| Дата актуализации: | 01.01.2021 |
| Дата введения: | 14.12.1984 |
| Дата окончания срока действия: | 30.06.2003 |
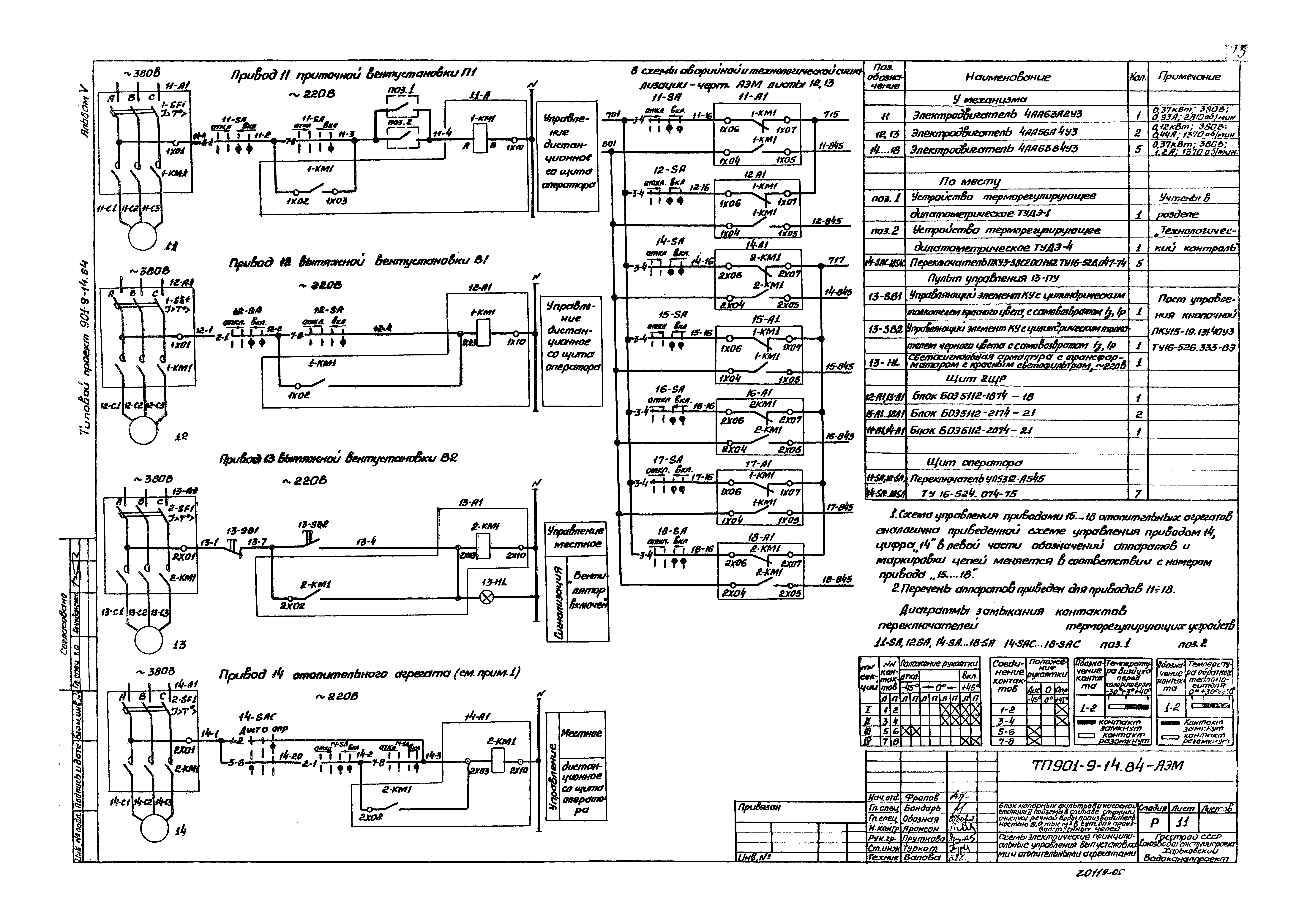
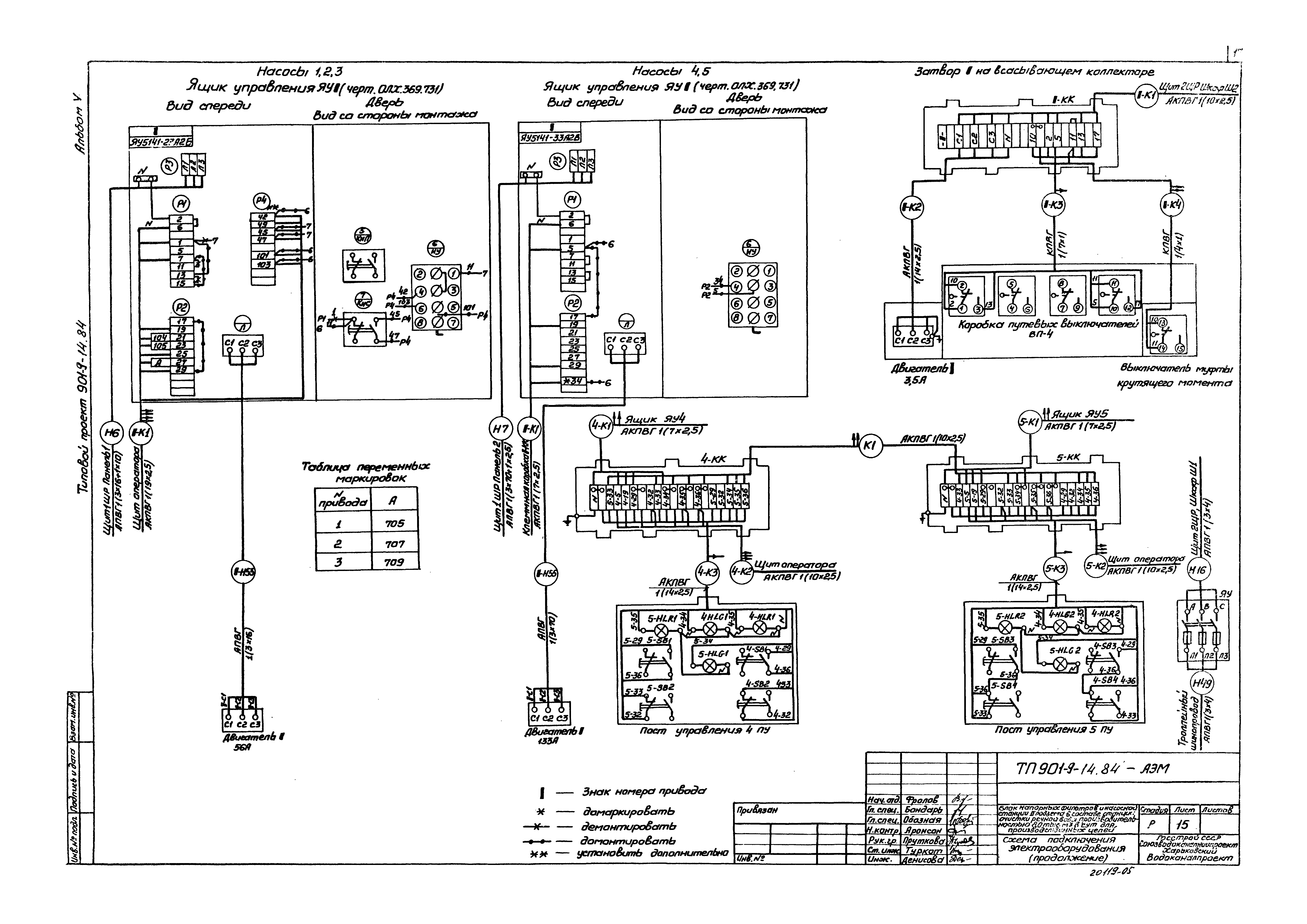
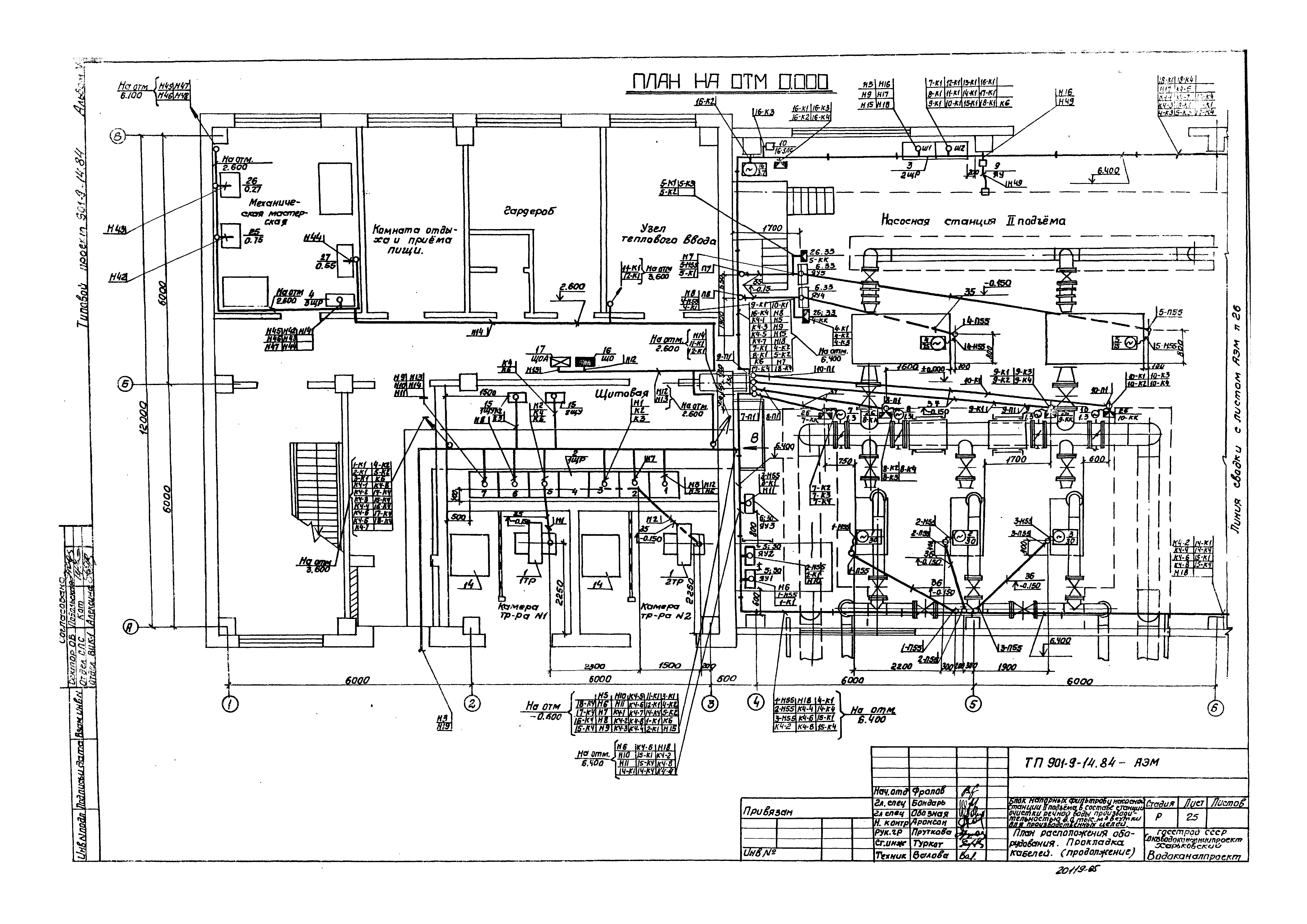
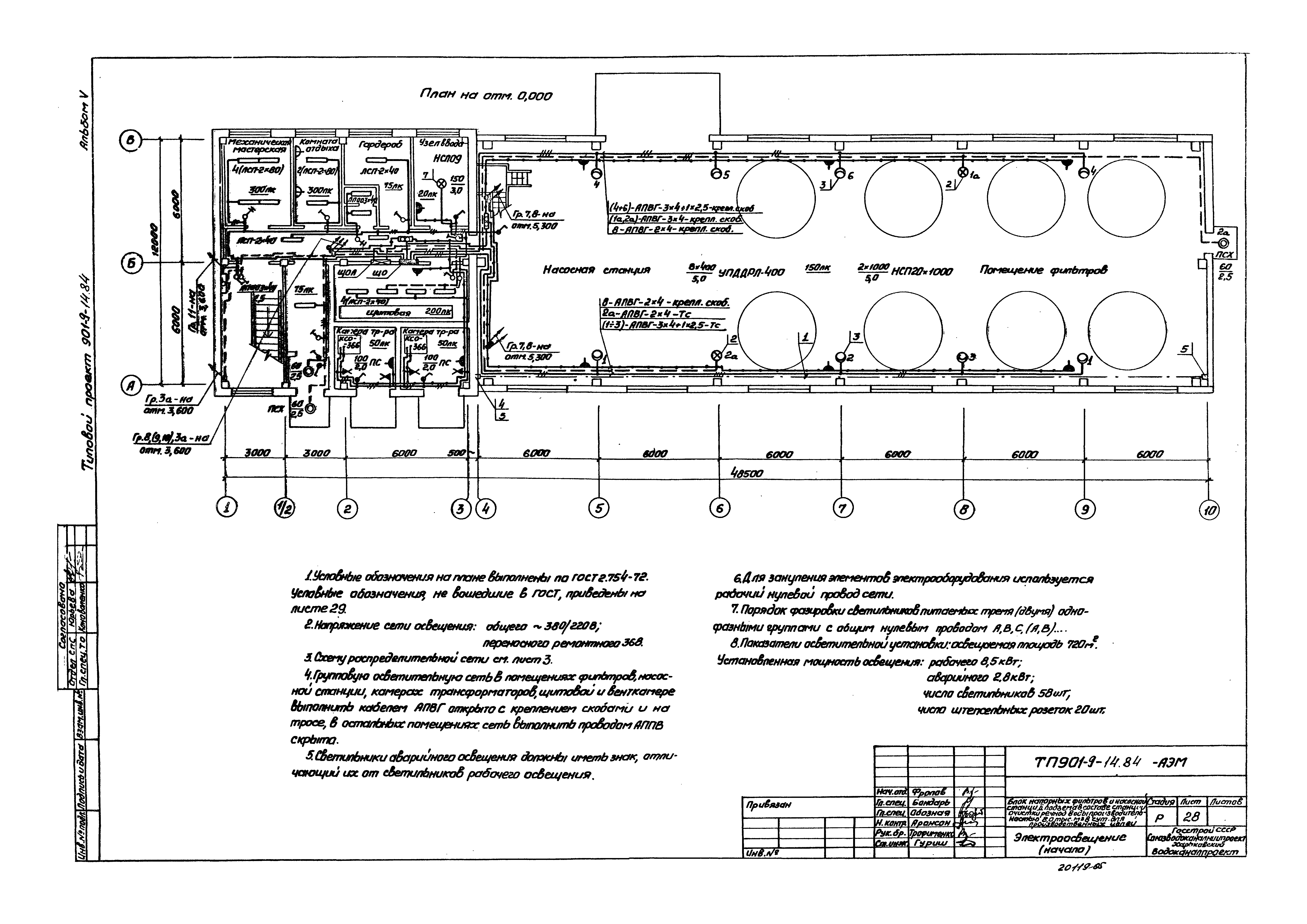
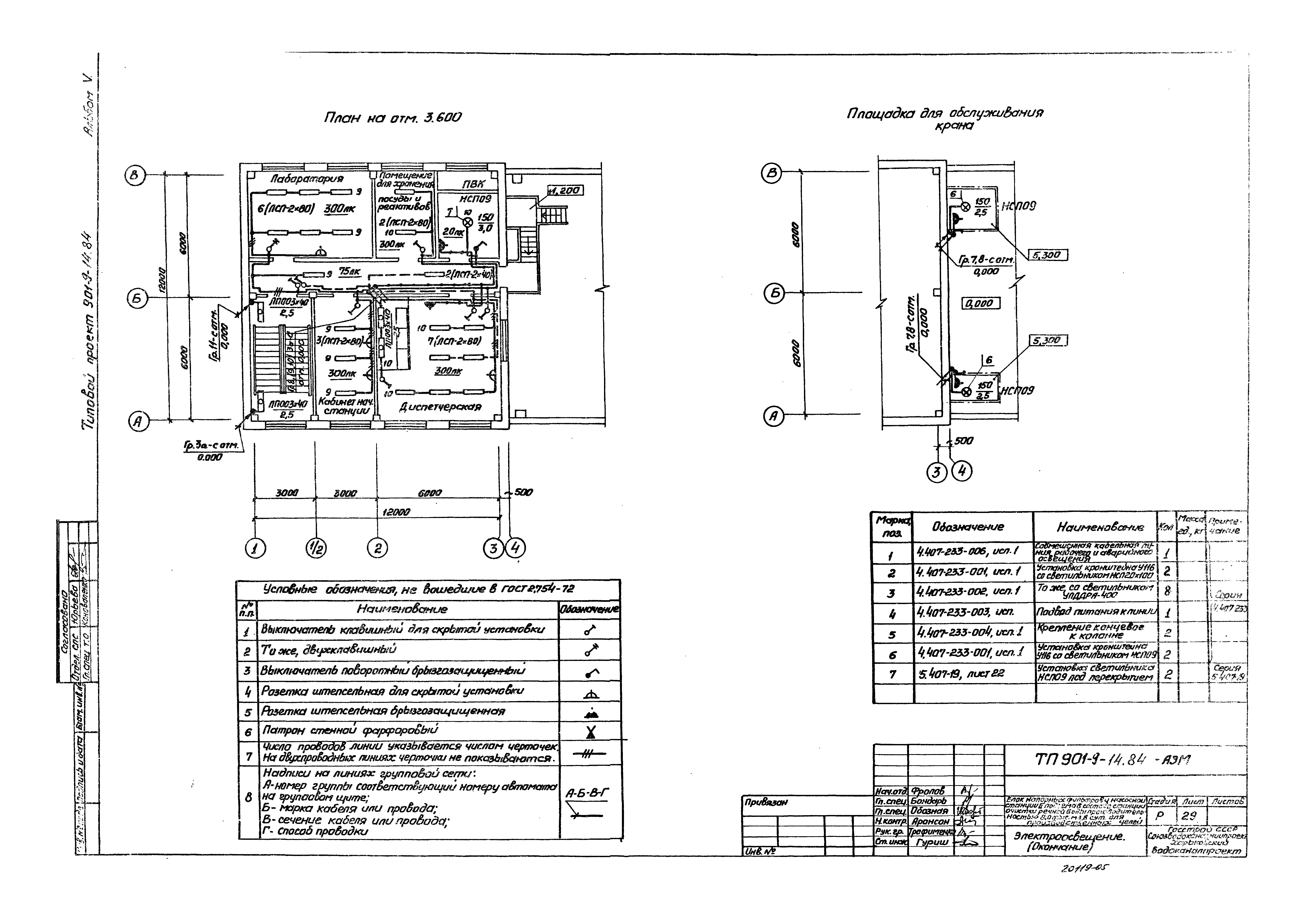
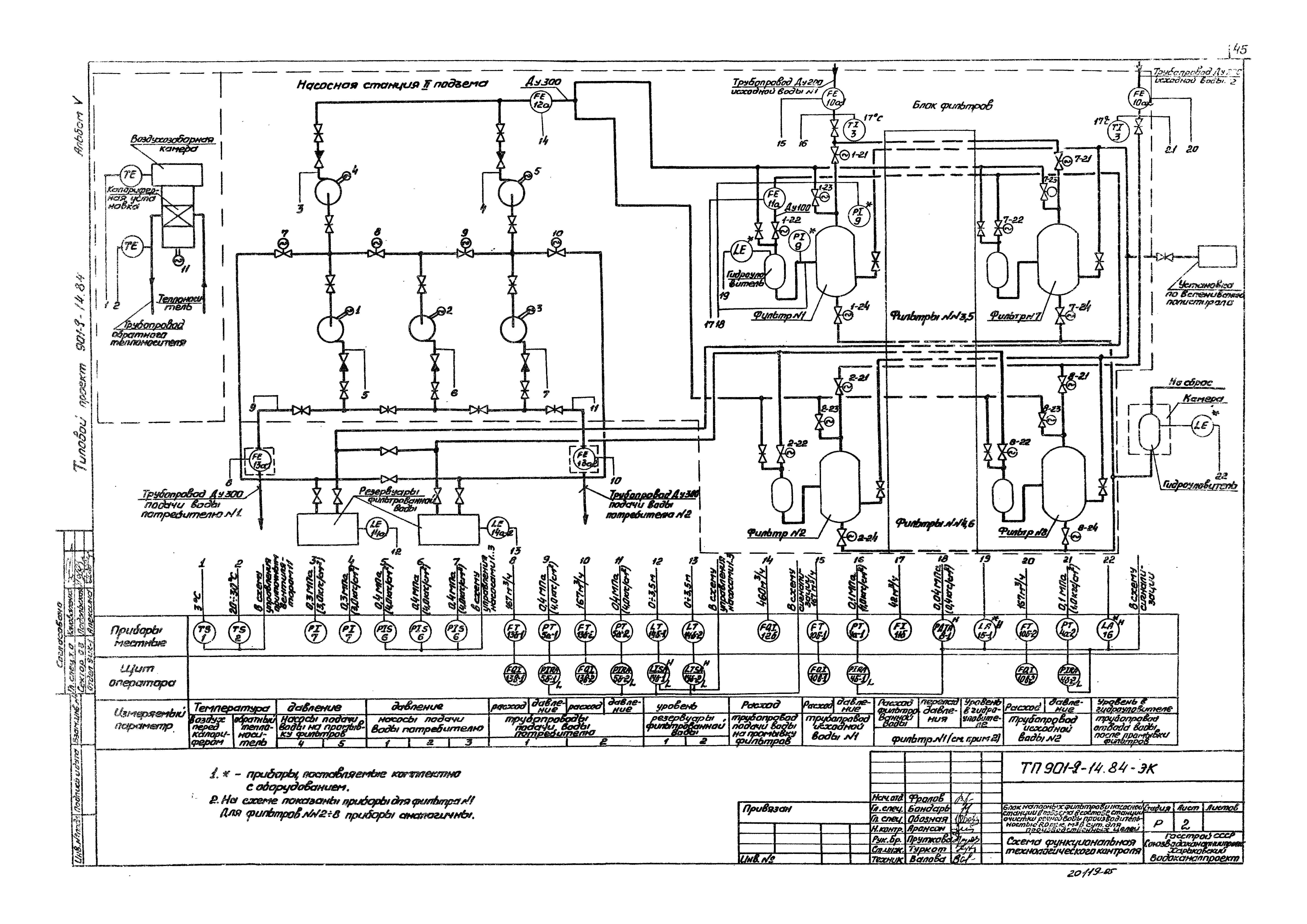
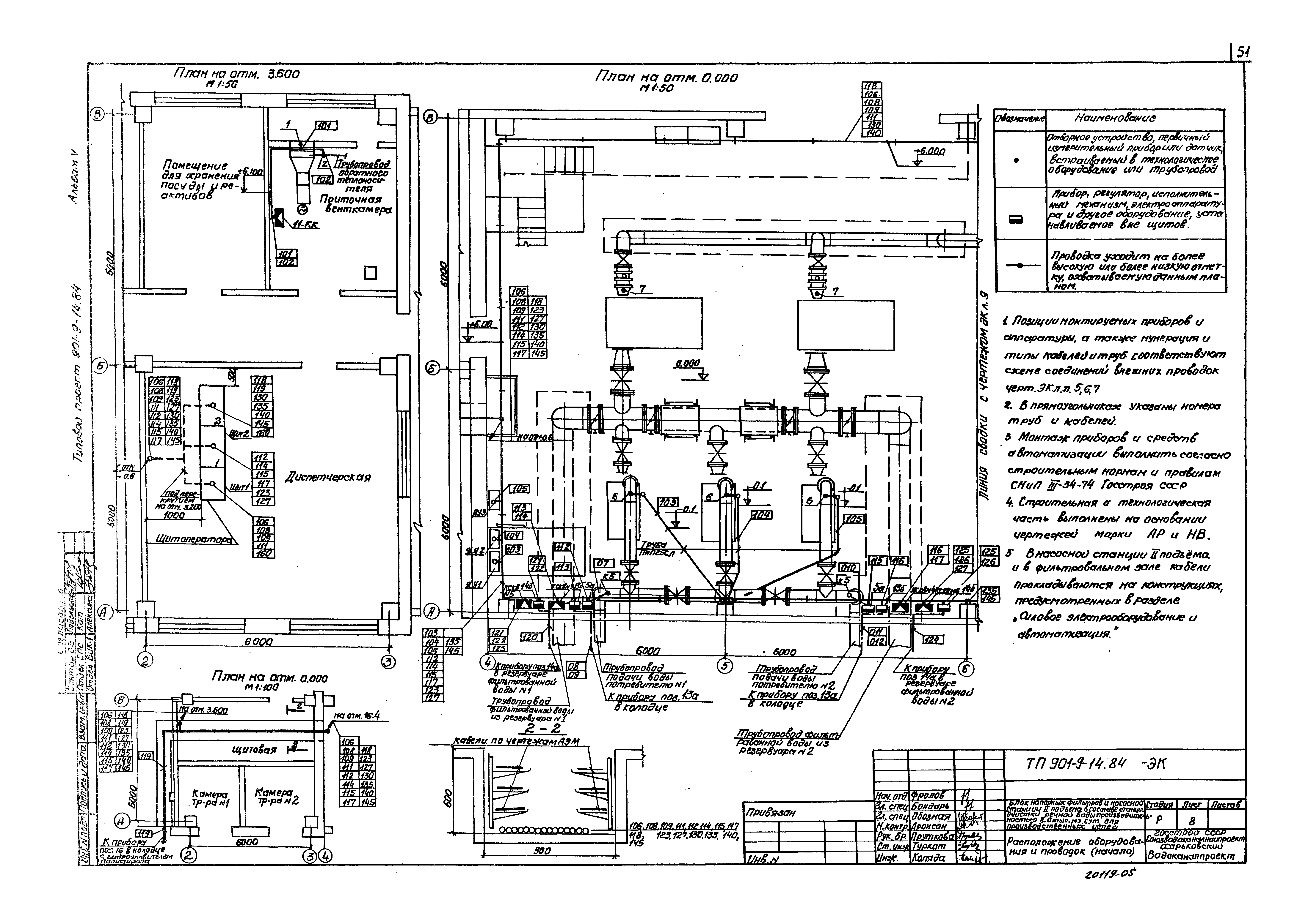
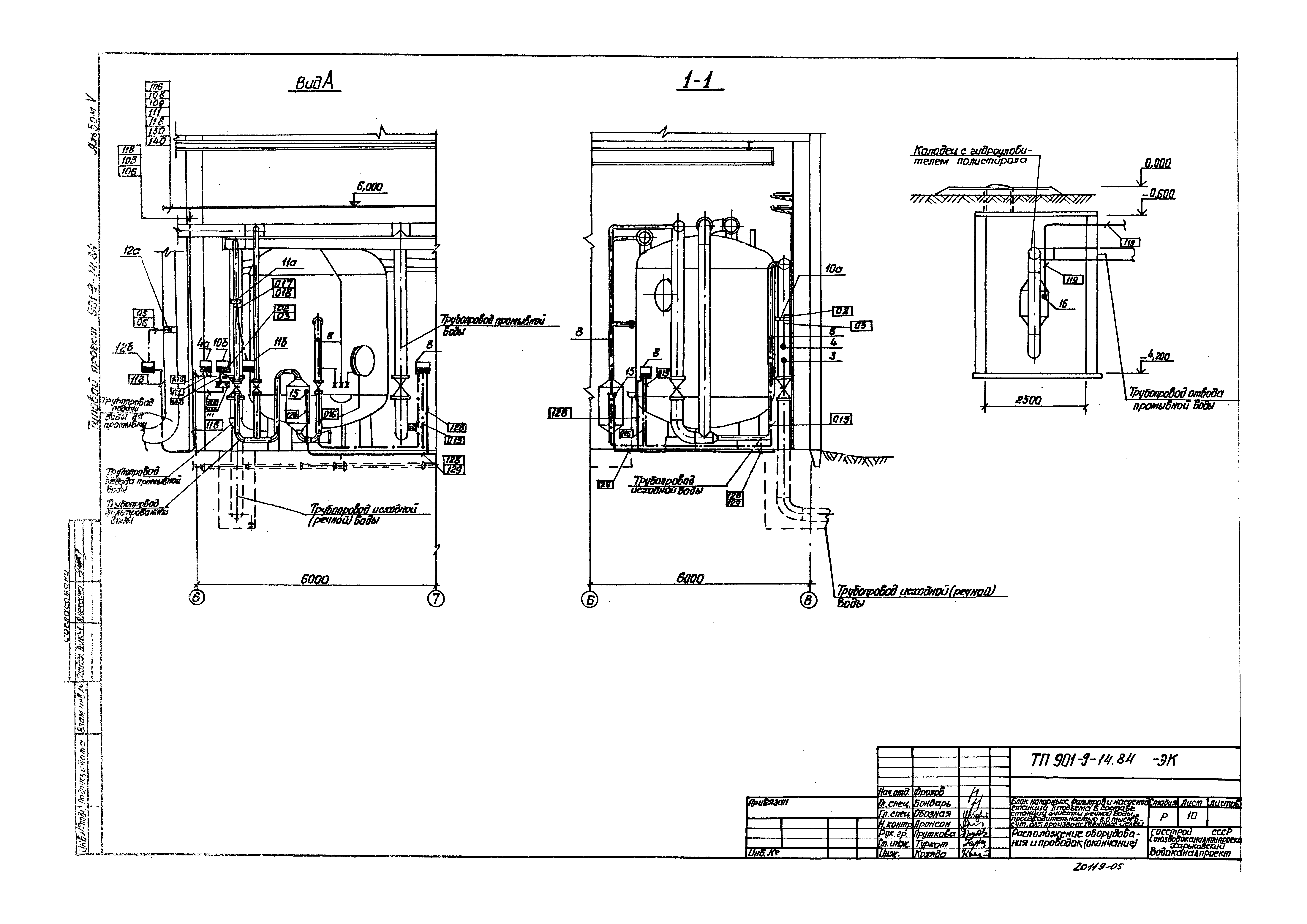
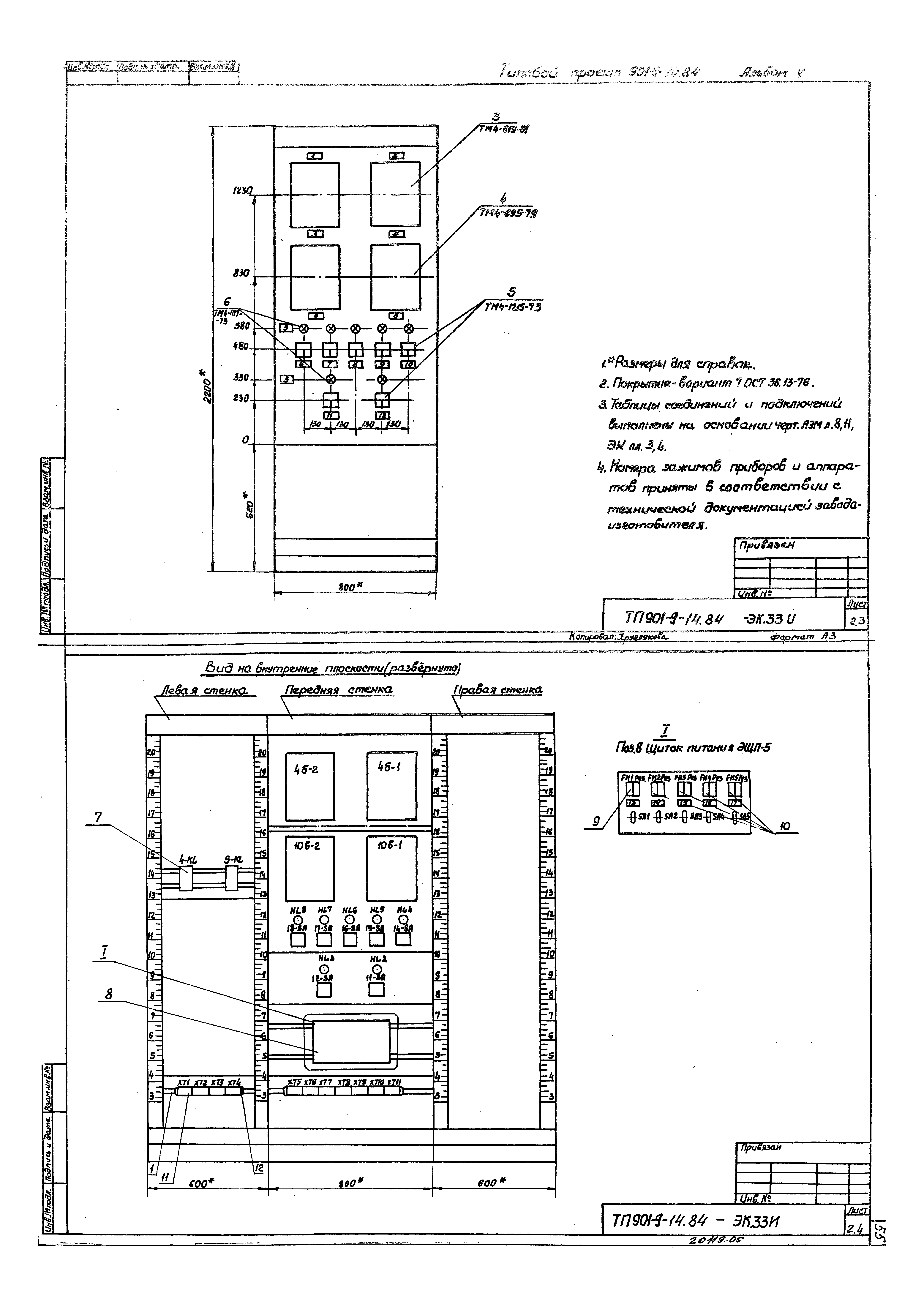
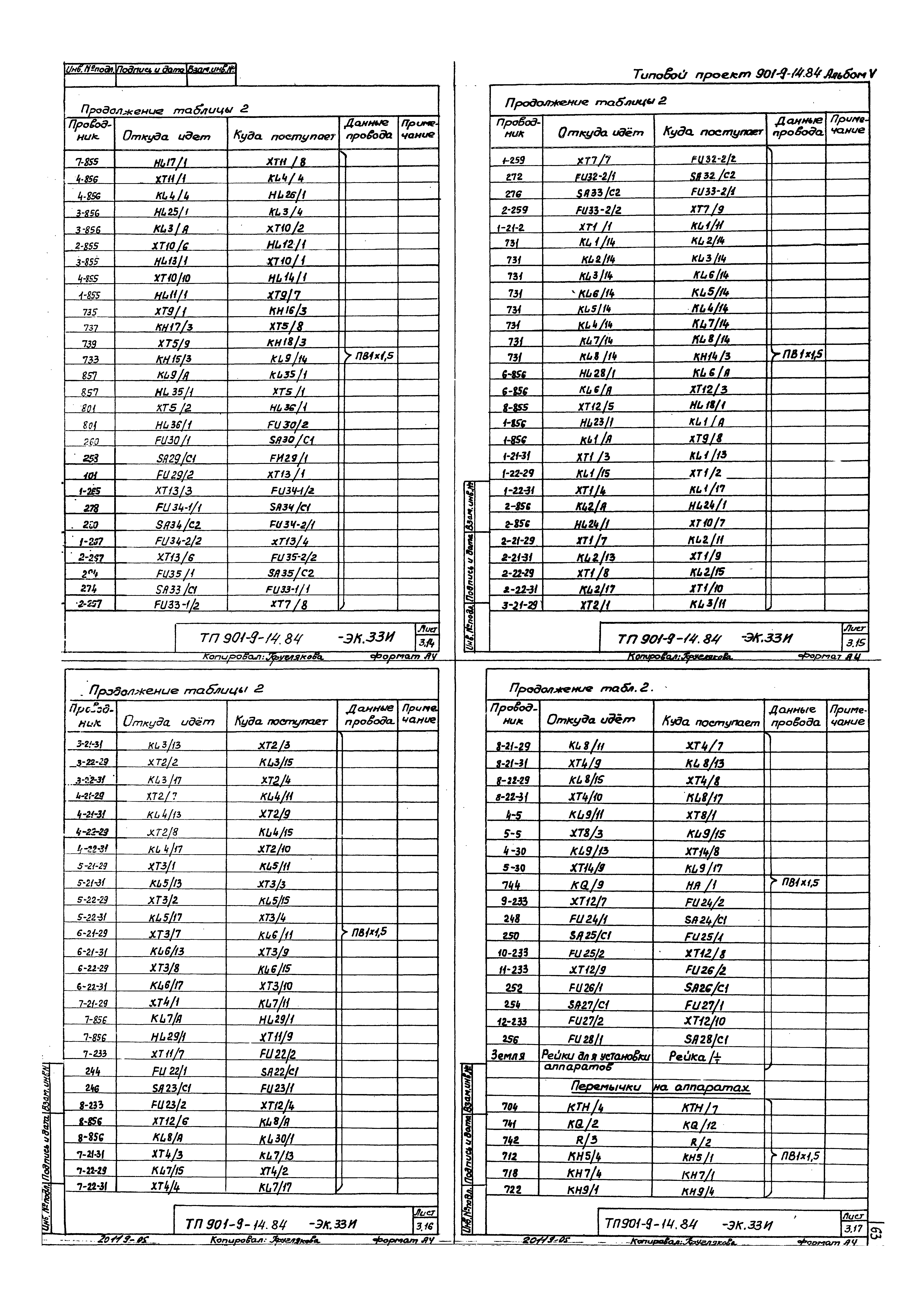
| Оглавление: | ТП 901-9-14.84 Содержание альбома ТП 901-9-14.84-АЭМ Основной комплект марки АЭМ ТП 901-9-14.84-АЭМ-1 Общие данные (начало) ТП 901-9-14.84-АЭМ-2 Общие данные (окончание) ТП 901-9-14.84-АЭМ-3 Схема электрическая принципиальная однолинейная распределительной сети ~380/220В (начало) ТП 901-9-14.84-АЭМ-4 Схема электрическая принципиальная однолинейная распределительной сети ~380/220В (продолжение) ТП 901-9-14.84-АЭМ-5 Схема электрическая принципиальная однолинейная распределительной сети ~380/220В (окончание) ТП 901-9-14.84-АЭМ-6 Схема электрическая принципиальная управления насосами подачи воды потребителю (начало) ТП 901-9-14.84-АЭМ-7 Схема электрическая принципиальная управления насосами подачи воды потребителю (окончание) ТП 901-9-14.84-АЭМ-8 Схема электрическая принципиальная управления насосами промывки фильтров ТП 901-9-14.84-АЭМ-9 Схема электрическая принципиальная управления затвором на всасывающем коллекторе ТП 901-9-14.84-АЭМ-10 Схема электрическая принципиальная управления задвижками фильтра ТП 901-9-14.84-АЭМ-11 Схема электрическая принципиальная управления вентустановками и отопительными агрегатами ТП 901-9-14.84-АЭМ-12 Схема электрическая принципиальная аварийной сигнализации ТП 901-9-14.84-АЭМ-13 Схема электрическая принципиальная технологической сигнализации ТП 901-9-14.84-АЭМ-14 Схема подключения электрооборудования (начало) ТП 901-9-14.84-АЭМ-15 Схема подключения электрооборудования (продолжение) ТП 901-9-14.84-АЭМ-16 Схема подключения электрооборудования (продолжение) ТП 901-9-14.84-АЭМ-17 Схема подключения электрооборудования (продолжение) ТП 901-9-14.84-АЭМ-18 Схема подключения электрооборудования (окончание) ТП 901-9-14.84-АЭМ-19 Схема подключения щита 2ЩР ТП 901-9-14.84-АЭМ-20 Кабельный журнал (начало) ТП 901-9-14.84-АЭМ-21 Кабельный журнал (продолжение) ТП 901-9-14.84-АЭМ-22 Кабельный журнал (продолжение) ТП 901-9-14.84-АЭМ-23 Кабельный журнал (окончание) ТП 901-9-14.84-АЭМ-24 План расположения электрооборудования. Прокладка кабелей (начало) ТП 901-9-14.84-АЭМ-25 План расположения электрооборудования. Прокладка кабелей (продолжение) ТП 901-9-14.84-АЭМ-26 План расположения электрооборудования. Прокладка кабелей (продолжение) ТП 901-9-14.84-АЭМ-27 План расположения электрооборудования. Прокладка кабелей (окончание) ТП 901-9-14.84-АЭМ-28 Электроосвещение (начало) ТП 901-9-14.84-АЭМ-29 Электроосвещение (окончание) ТП 901-9-14.84-АЭМ-30 Заземление и зануление. План прокладки троллейного шинопровода ШТА75 на 250А для крана ТП 901-9-14.84-АЭМ-31 Установка высоковольтного оборудования в камере. План и разрезы ТП 901-9-14.84-АЭМ-32 Установка ящика управления ЯУ4 ТП 901-9-14.84-АЭМ-33 Установка ящика управления 1-1ЯУ ТП 901-9-14.84-АЭМ.ЗМ Задание МЭЗ марки АЭМ ЗМ ТП 901-9-14.84-АЭМ.ЗМ-1 Ведомость чертежей и изделий МЭЗ. Трубозаготовительная ведомость (начало) ТП 901-9-14.84-АЭМ.ЗМ-2 Трубозаготовительная ведомость (окончание) ТП 901-9-14.84-АЭМ.ЗМ-3 Конструкция для установки поручня ТП 901-9-14.84-АЭМ.ЗМ-4 Конструкция для установки трех изоляторов ИО-О-375У1 ТП 901-9-14.84-АЭМ.ЗМ-5 Конструкция для установки ящика управления ТП 901-9-14.84-АЭМ.ВР Ведомость объемов электромонтажных и строительных работ марки АЭМ-ВР ТП 901-9-14.84-АЭМ.З3И1 Опросный лист для заказа щита распределительного 380В из панелей ПАР11 марки АЭМ.33И1 ТП 901-9-14.84-АЭМ.33И2 Задание на изготовление щита 2ЩР марки АЭМ33И2 ТП 901-9-14.84-АЭМ.33И2-1 Щит 2ЩР. Опись документов ТП 901-9-14.84-АЭМ.33И2-2 Щит 2ЩР. Таблица НКУ и технических данных аппаратуры по заказу ТП 901-9-14.84-АЭМ.33И2-3 Щит 2ЩР. Опросный лист ТП 901-9-14.84-АЭМ.33И2-4 Щит 2ЩР. Таблица надписей ТП 901-9-14.84-АЭМ.33И2-6 Щит 2ЩР. Шкаф №1. Схема электрическая соединений ТП 901-9-14.84-АЭМ.33И2-7 Щит 2ЩР. Шкаф №2. Схема электрическая соединений ТП 901-9-14.84-АЭМ.33И3-1 Эскизы лицевых постов управления ПКУ15 марки АЭМ.33И3 ТП 901-9-14.84-АЭМ.33И4-1 Опросный лист для заказа камер серии КСО-366 марки АЭМ.33И4 ТП 901-9-14.84-ЭК Основной комплект марки ЭК ТП 901-9-14.84-ЭК-1 Общие данные ТП 901-9-14.84-ЭК-2 Схема функциональная технологического контроля ТП 901-9-14.84-ЭК-3 Схема электрическая питания приборов ТП 901-9-14.84-ЭК-4 Схемы электрические принципиальные измерения расхода и давления исходной воды и воды к потребителю, уровня в резервуарах фильтрованной воды ТП 901-9-14.84-ЭК-5 Схема внешних проводок (начало) ТП 901-9-14.84-ЭК-6 Схема внешних проводок (продолжение) ТП 901-9-14.84-ЭК-7 Схема внешних проводок (окончание) ТП 901-9-14.84-ЭК-8 Расположение оборудования и проводок (начало) ТП 901-9-14.84-ЭК-9 Расположение оборудования и проводок (продолжение) ТП 901-9-14.84-ЭК-10 Расположение оборудования и проводок (окончание) ТП 901-9-14.84-ЭК.33И Задание на изготовление щита операторами марки ЭК.33И ТП 901-9-14.84-ЭК.33И-1 Щит оператора. Общий вид ТП 901-9-14.84-ЭК.33И-2 Щит 1. Общий вид ТП 901-9-14.84-ЭК.33И-3 Щит 2. Общий вид ТП 901-9-14.84-ЭК.ВР Ведомость объемов электромонтажных и строительных работ марки ЭК-ВР |
| Разработан: | Харьковский Водоканалпроект |
| Утверждён: | 17.11.1982 Главпромстройпроект Госстроя СССР (19/5-5004) |







































































