Скачать Типовые проектные решения 902-2-0440.87 Альбом II. Нестандартизированное оборудованиеДата актуализации: 01.01.2021
|
| Обозначение: | Типовые проектные решения 902-2-0440.87 |
| Обозначение англ: | 902-2-0440.87 |
| Статус: | справочные материалы, мп, тпр |
| Название рус.: | Альбом II. Нестандартизированное оборудование |
| Дата добавления в базу: | 01.09.2013 |
| Дата актуализации: | 01.01.2021 |
| Дата введения: | 11.09.1987 |
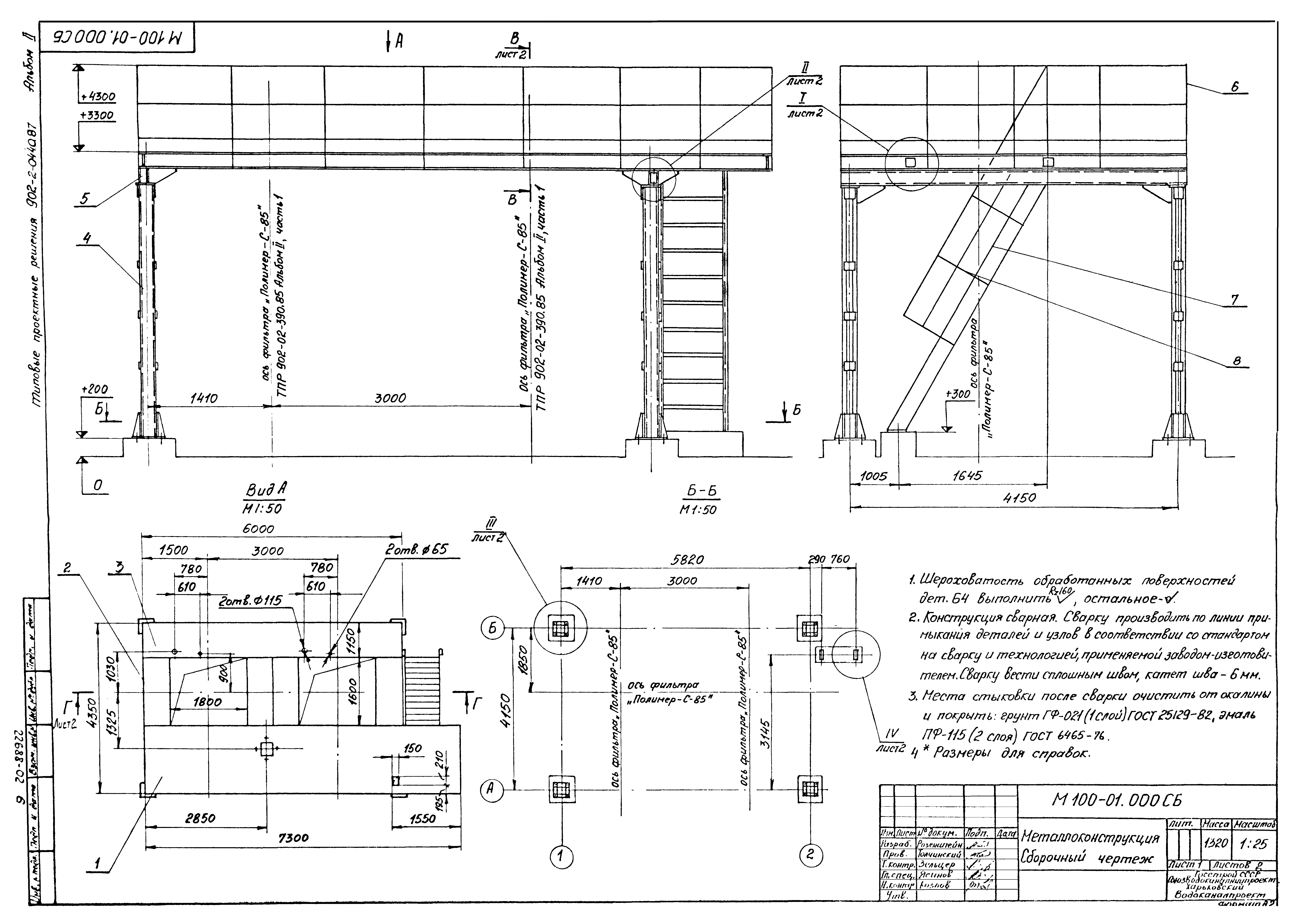
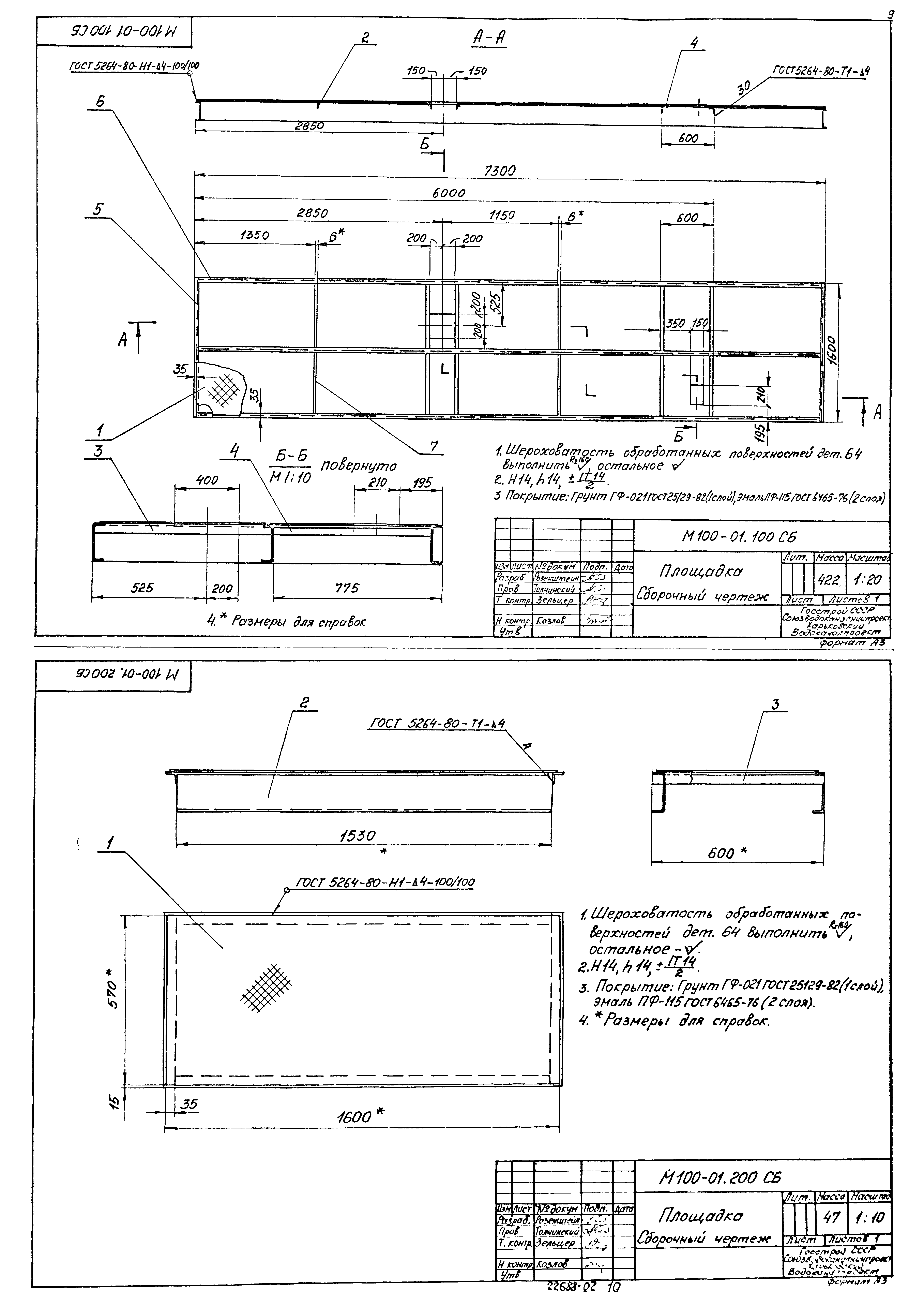
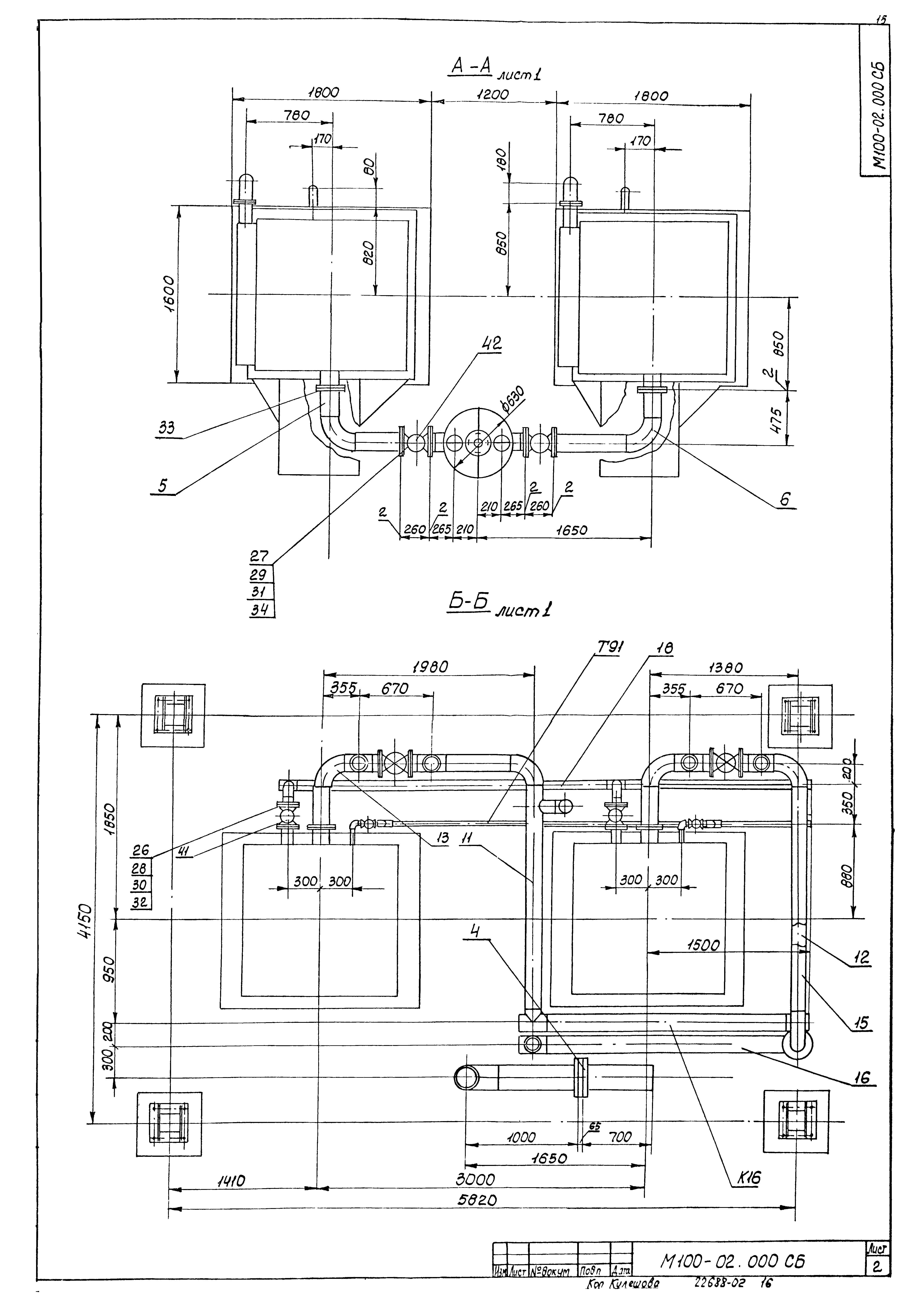
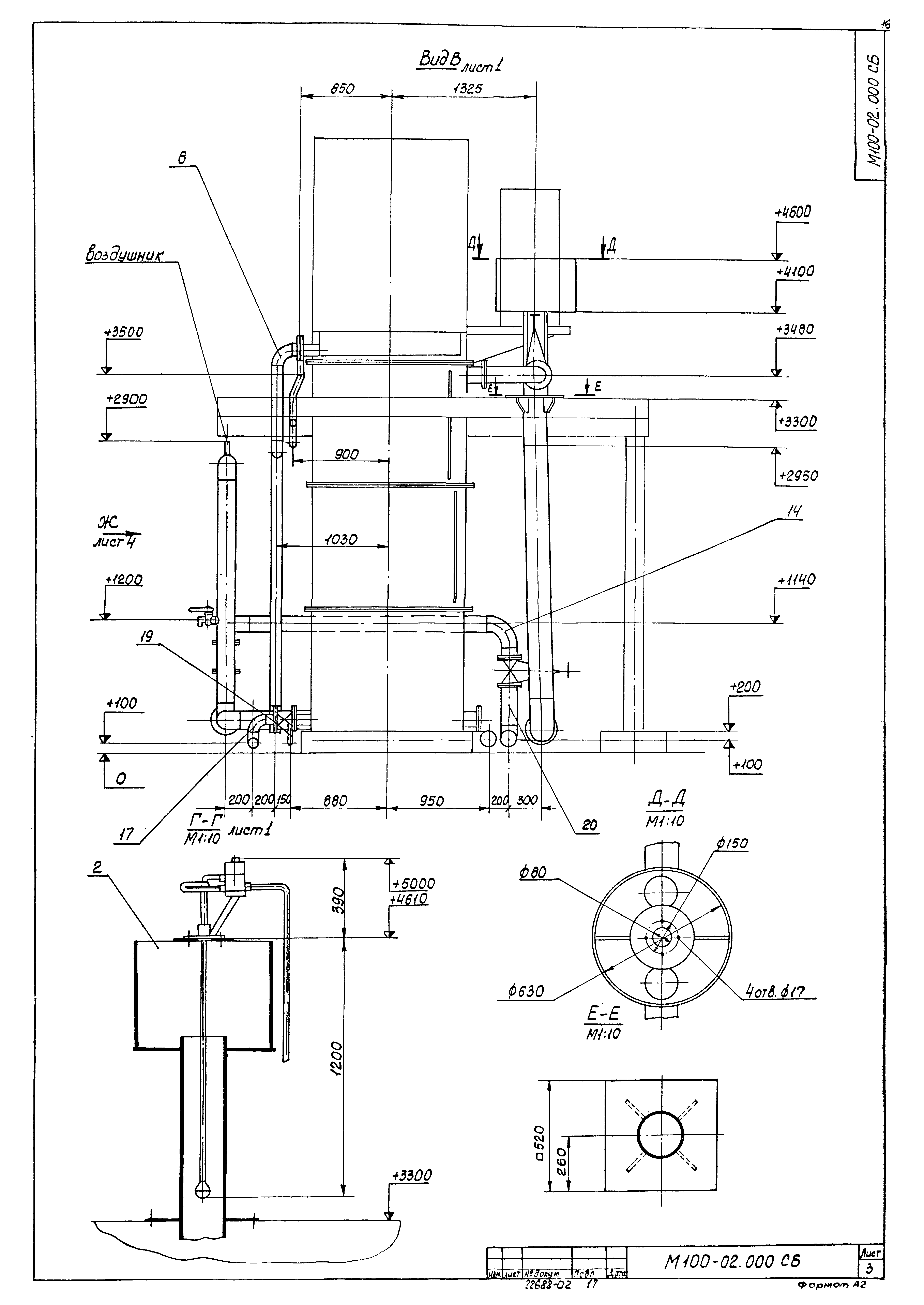
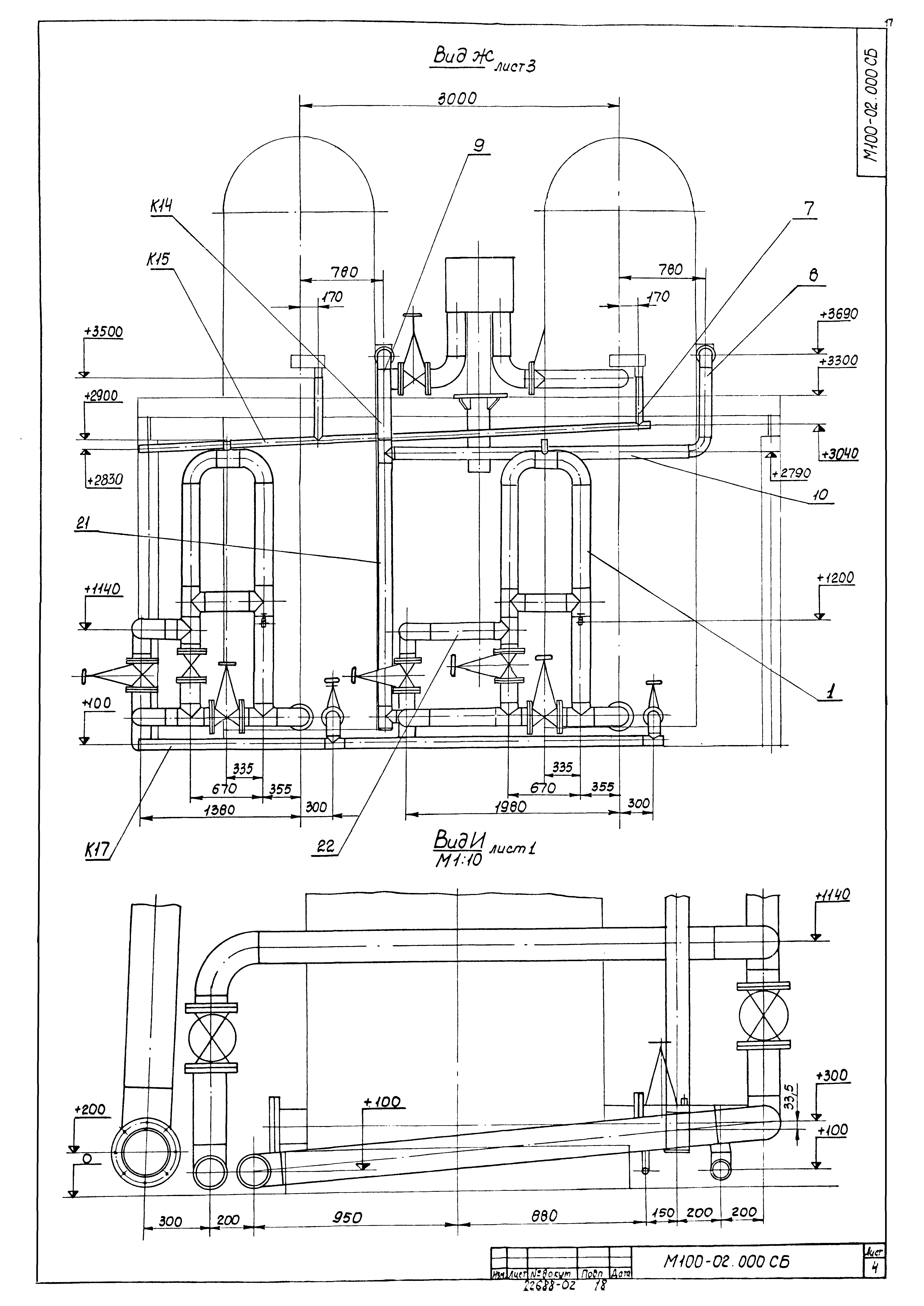
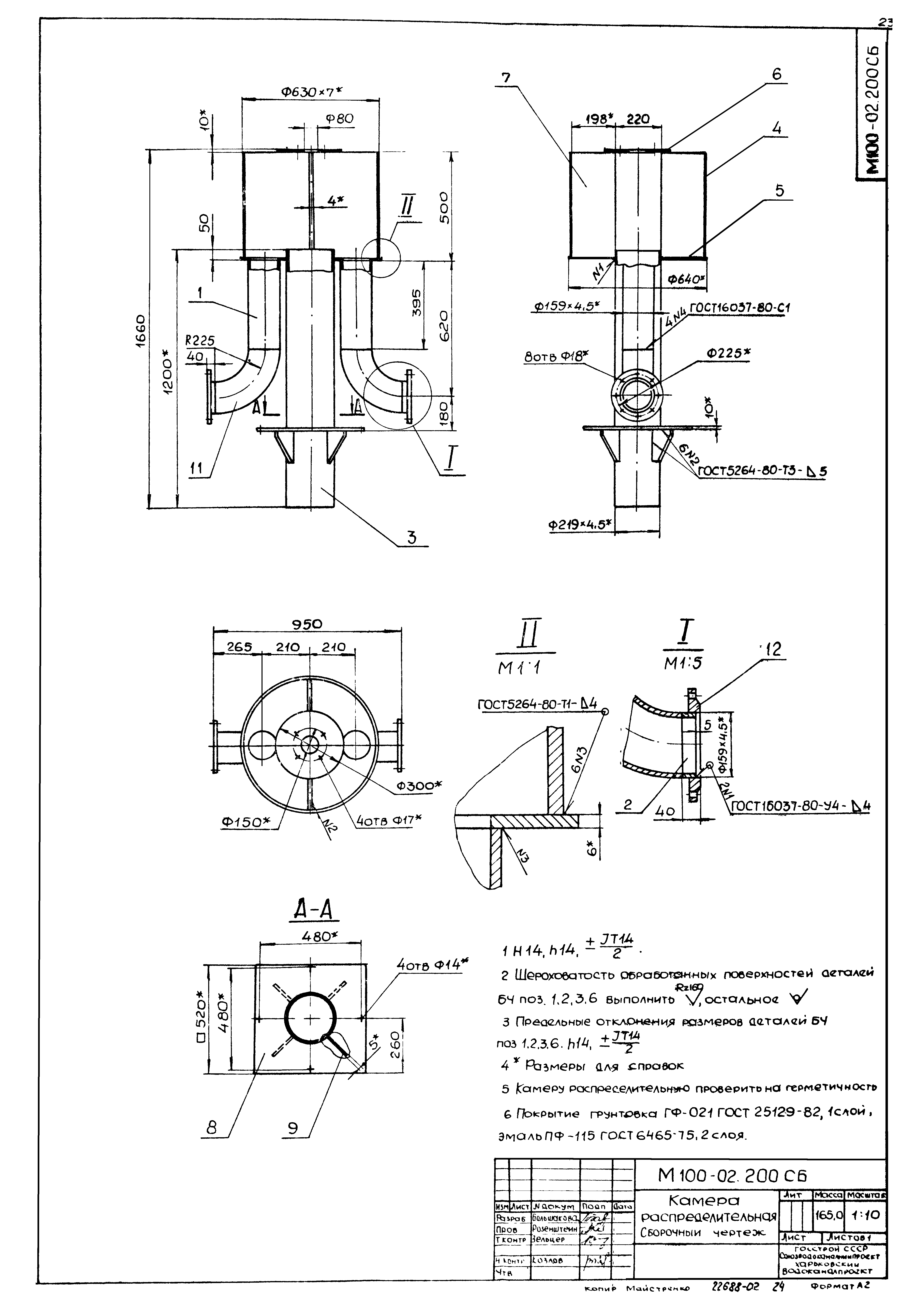
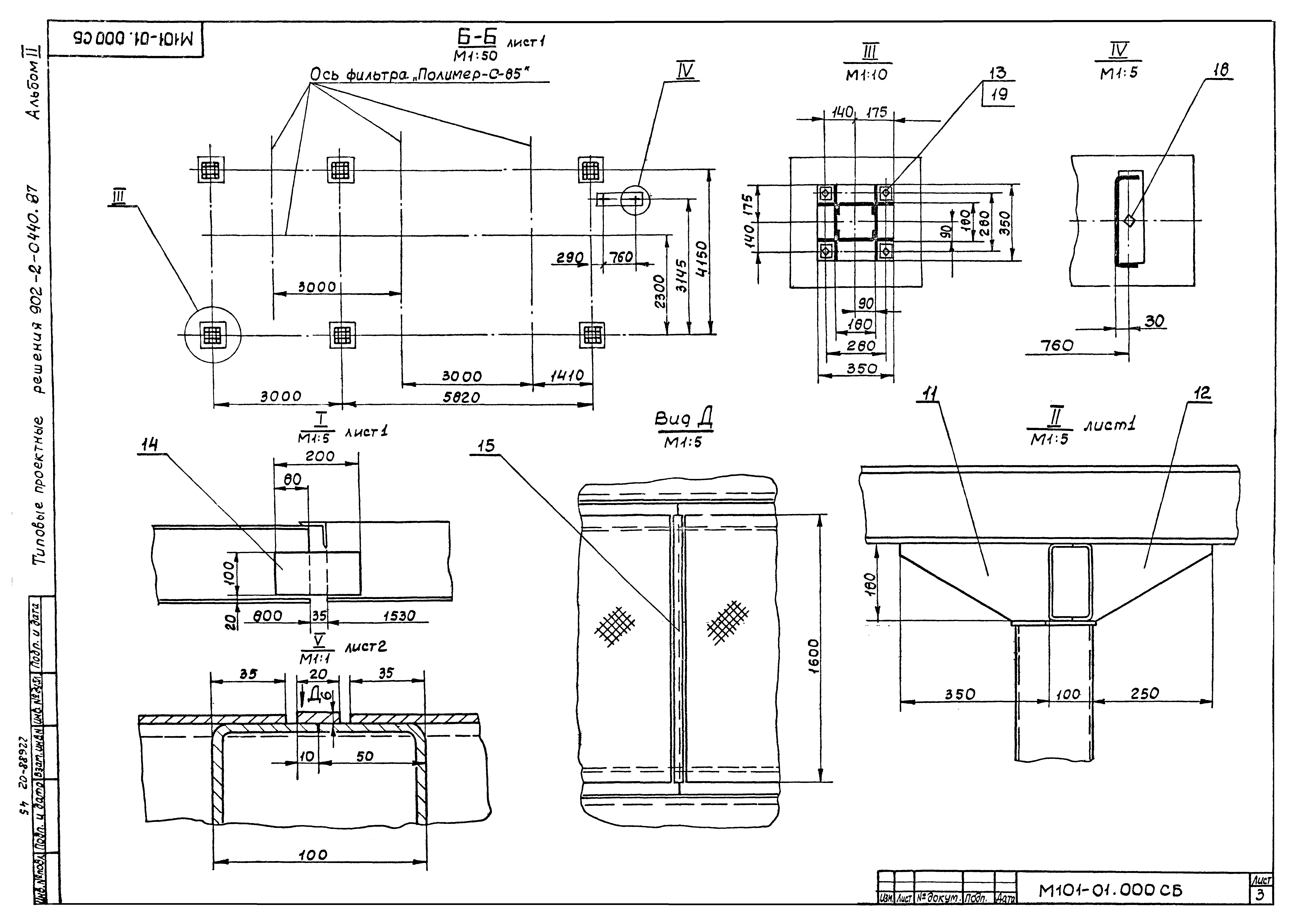
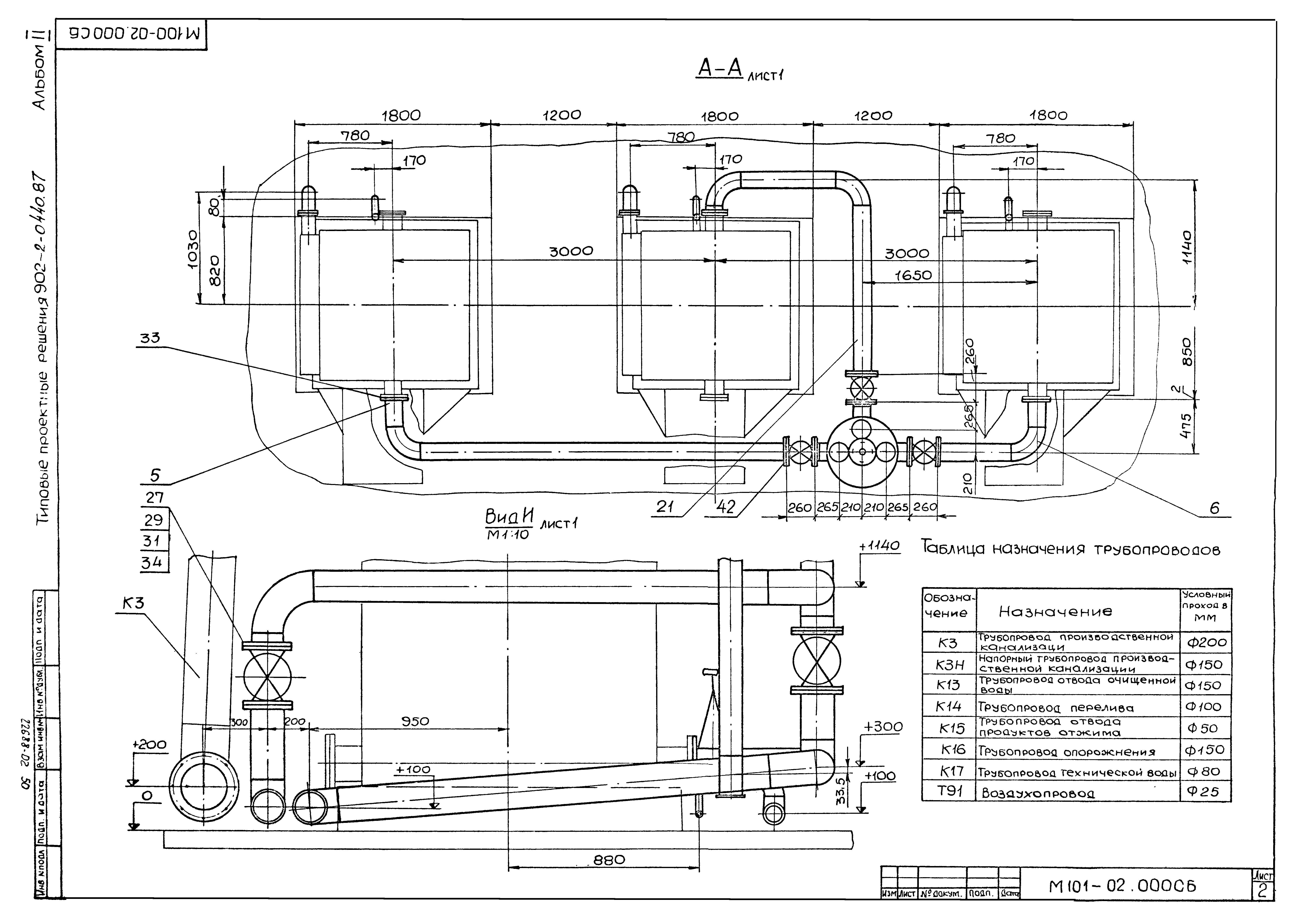
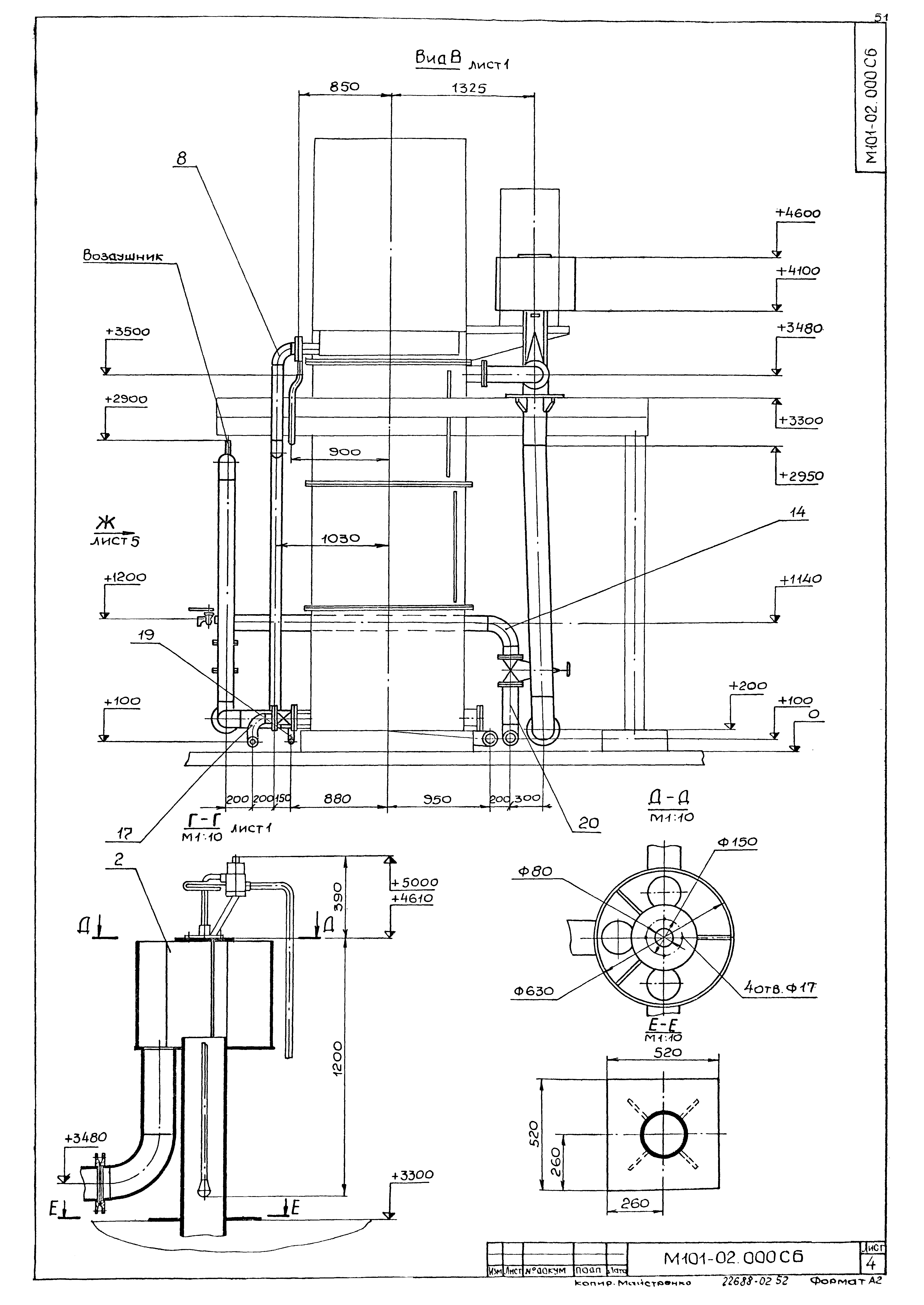
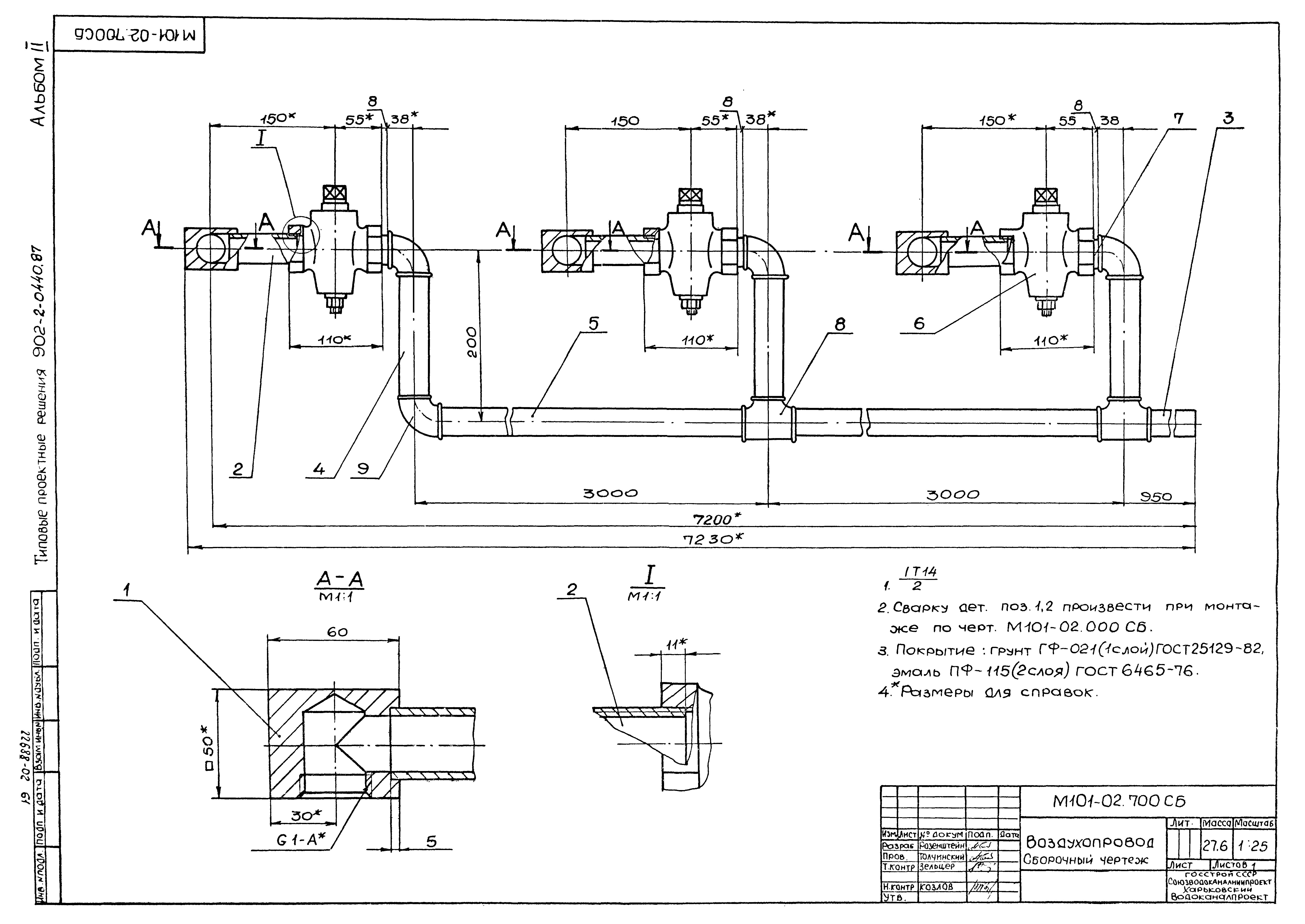
| Оглавление: | ТП 902-2-0440.87 Титульный лист ТП 902-2-0440.87 Содержание ТП 902-2-0440.87 М100-01.000 Металлоконструкция ТП 902-2-0440.87 М100-01.100 Площадка ТП 902-2-0440.87 М100-01.200 Площадка ТП 902-2-0440.87 М100-01.000 СБ Металлоконструкция. Сборочный чертеж ТП 902-2-0440.87 М100-01.000 ВС Металлоконструкция. Ведомость спецификаций ТП 902-2-0440.87 М100-01.000 ВП Металлоконструкция. Ведомость покупных изделий ТП 902-2-0440.87 М100-01.001 Косынка ТП 902-2-0440.87 М100-01.002 Косынка ТП 902-2-0440.87 М100-01.003 Косынка ТП 902-2-0440.87 М100-01.004 Подкладка ТП 902-2-0440.87 М100-01.100 СБ Площадка. Сборочный чертеж ТП 902-2-0440.87 М100-01.200 СБ Площадка. Сборочный чертеж ТП 902-2-0440.87 М100-01.102 Ребро ТП 902-2-0440.87 М100-01.103 Уголок ТП 902-2-0440.87 М100-01.300 Площадка ТП 902-2-0440.87 М100-01.400 Колонна ТП 902-2-0440.87 М100-01.300 СБ Площадка. Сборочный чертеж ТП 902-2-0440.87 М100-01.400 СБ Колонна. Сборочный чертеж ТП 902-2-0440.87 М100-01.302 Ребро ТП 902-2-0440.87 М100-01.403 Косынка ТП 902-2-0440.87 М100-01.404 Ребро ТП 902-2-0440.87 М100-01.500 СБ Балка. Сборочный чертеж ТП 902-2-0440.87 М100-01.500 Балка ТП 902-2-0440.87 М100-02.000 Трубопроводы технологические ТП 902-2-0440.87 М100-02.000 СБ Трубопроводы технологические. Сборочный чертеж ТП 902-2-0440.87 М100-02.000 ВС Трубопроводы технологические. Ведомость спецификаций ТП 902-2-0440.87 М100-02.000 ВП Трубопроводы технологические. Ведомость покупных изделий ТП 902-2-0440.87 М100-02.100 Гидрозатвор ТП 902-2-0440.87 М100-02.110 Перемычка ТП 902-2-0440.87 М100-02.120 Колено ТП 902-2-0440.87 М100-02.120 СБ Колено ТП 902-2-0440.87 М100-02.100 СБ Гидрозатвор. Сборочный чертеж ТП 902-2-0440.87 М100-02.110 СБ Перемычка ТП 902-2-0440.87 М100-02.200 Камера распределительная ТП 902-2-0440.87 М100-02.200 СБ Камера распределительная. Сборочный чертеж ТП 902-2-0440.87 М100-02.205 Дно ТП 902-2-0440.87 М100-02.206 Фланец ТП 902-2-0440.87 М100-02.208 Фланец ТП 902-2-0440.87 М100-02.209 Ребро ТП 902-2-0440.87 М100-02.300 Стояк ТП 902-2-0440.87 М100-02.300 СБ Стояк. Сборочный чертеж ТП 902-2-0440.87 М100-02.301 Труба ТП 902-2-0440.87 М100-02.400 Узел установки диафрагмы ТП 902-2-0440.87 М100-02.400 СБ Узел установки диафрагмы. Сборочный чертеж ТП 902-2-0440.87 М100-02.401 Прокладка ТП 902-2-0440.87 М100-02.402 Кольцо ТП 902-2-0440.87 М100-02.410 СБ Патрубок. Сборочный чертеж ТП 902-2-0440.87 М100-02.411 Фланец ТП 902-2-0440.87 М100-02.412 Труба ТП 902-2-0440.87 М100-02.410 Патрубок ТП 902-2-0440.87 М100-02.500 Отвод в сборе ТП 902-2-0440.87 М100-02.600 Коллектор ТП 902-2-0440.87 М100-02.500 СБ Отвод в сборе. Сборочный чертеж ТП 902-2-0440.87 М100-02.600 СБ Коллектор. Сборочный чертеж ТП 902-2-0440.87 М100-02.601 Труба ТП 902-2-0440.87 М100-02.602 Патрубок ТП 902-2-0440.87 М100-02.603 Патрубок ТП 902-2-0440.87 М100-02.604 Патрубок ТП 902-2-0440.87 М100-02.700 Отвод в сборе ТП 902-2-0440.87 М100-02.800 Коллектор ТП 902-2-0440.87 М100-02.810 Трубопровод ТП 902-2-0440.87 М100-02.700 СБ Отвод в сборе. Сборочный чертеж ТП 902-2-0440.87 М100-02.800 СБ Коллектор. Сборочный чертеж ТП 902-2-0440.87 М100-02.810 СБ Трубопровод. Сборочный чертеж ТП 902-2-0440.87 М100-02.900 СБ Трубопровод. Сборочный чертеж ТП 902-2-0440.87 М100-02.900 Трубопровод ТП 902-2-0440.87 М100-02.910 Трубопровод ТП 902-2-0440.87 М100-02.910 СБ Трубопровод. Сборочный чертеж ТП 902-2-0440.87 М100-02.930 Отвод в сборе ТП 902-2-0440.87 М100-02.902 Труба ТП 902-2-0440.87 М100-02.903 Труба ТП 902-2-0440.87 М100-02.920 Отвод в сборе ТП 902-2-0440.87 М100-02.920 СБ Отвод в сборе. Сборочный чертеж ТП 902-2-0440.87 М100-02.930 СБ Отвод в сборе. Сборочный чертеж ТП 902-2-0440.87 М100-02.940 СБ Коллектор. Сборочный чертеж ТП 902-2-0440.87 М100-02.940 Коллектор ТП 902-2-0440.87 М100-02.950 Отвод в сборе ТП 902-2-0440.87 М100-02.960 Коллектор ТП 902-2-0440.87 М100-02.970 Воздухопровод ТП 902-2-0440.87 М100-02.950 СБ Отвод в сборе. Сборочный чертеж ТП 902-2-0440.87 М100-02.960 СБ Коллектор. Сборочный чертеж ТП 902-2-0440.87 М100-02.980 СБ Патрубок в сборе. Сборочный чертеж ТП 902-2-0440.87 М100-02.970 СБ Воздуховод. Сборочный чертеж ТП 902-2-0440.87 М100-02.971 Угольник ТП 902-2-0440.87 М100-02.972 Патрубок ТП 902-2-0440.87 М100-02.980 Патрубок в сборе ТП 902-2-0440.87 М100-02.973 Патрубок ТП 902-2-0440.87 М100-02.990 Стояк ТП 902-2-0440.87 М100-02.990 СБ Стояк. Сборочный чертеж ТП 902-2-0440.87 М100-02.203 Стояк ТП 902-2-0440.87 М101-01.000 Металлоконструкция ТП 902-2-0440.87 М101-01.100 Площадка ТП 902-2-0440.87 М101-01.000 СБ Металлоконструкция. Сборочный чертеж ТП 902-2-0440.87 М101-01.000 ВС Металлоконструкция. Ведомость спецификаций ТП 902-2-0440.87 М101-01.000 ВП Металлоконструкция. Ведомость покупных изделий ТП 902-2-0440.87 М101-01.100 СБ Площадка. Сборочный чертеж ТП 902-2-0440.87 М101-01.200 СБ Площадка. Сборочный чертеж ТП 902-2-0440.87 М101-01.200 Площадка ТП 902-2-0440.87 М101-02.000 Трубопроводы технологические ТП 902-2-0440.87 М101-02.000 СБ Трубопроводы технологические. Сборочный чертеж ТП 902-2-0440.87 М101-02.000 ВС Трубопроводы технологические. Ведомость спецификаций ТП 902-2-0440.87 М101-02.000 ВП Трубопроводы технологические. Ведомость покупных изделий ТП 902-2-0440.87 М101-02.100 Камера распределительная ТП 902-2-0440.87 М101-02.200 Отвод в сборе ТП 902-2-0440.87 М101-02.300 Коллектор ТП 902-2-0440.87 М101-02.100 СБ Камера распределительная. Сборочный чертеж ТП 902-2-0440.87 М101-02.101 Дно ТП 902-2-0440.87 М101-02.301 Труба ТП 902-2-0440.87 М101-02.400 Коллектор ТП 902-2-0440.87 М101-02.500 Коллектор ТП 902-2-0440.87 М101-02.200 СБ Отвод в сборе. Сборочный чертеж ТП 902-2-0440.87 М101-02.300 СБ Коллектор. Сборочный чертеж ТП 902-2-0440.87 М101-02.400 СБ Коллектор. Сборочный чертеж ТП 902-2-0440.87 М101-02.600 Коллектор ТП 902-2-0440.87 М101-02.600 СБ Коллектор. Сборочный чертеж ТП 902-2-0440.87 М101-02.700 СБ Воздуховод. Сборочный чертеж ТП 902-2-0440.87 М101-02.700 Воздуховод ТП 902-2-0440.87 М101-02.800 Отвод в сборе ТП 902-2-0440.87 М101-02.800 СБ Отвод в сборе. Сборочный чертеж ТП 902-2-0440.87 М101-02.900 Трубопровод ТП 902-2-0440.87 М101-02.900 СБ Трубопровод. Сборочный чертеж ТП 902-2-0440.87 М101-02.500 Коллектор. Сборочный чертеж |
| Разработан: | Харьковский Водоканалпроект |
| Утверждён: | 11.09.1987 Госстрой СССР (Государственный комитет Совета Министров СССР по делам строительства) (USSR Gosstroy 65) |































































