Скачать Типовой проект 903-1-244.87 Альбом 9. Силовое электрооборудование. Электрическое освещение. Связь и сигнализация. Чертежи монтажной зоныДата актуализации: 01.01.2021
|
| Обозначение: | Типовой проект 903-1-244.87 |
| Обозначение англ: | 903-1-244.87 |
| Статус: | не определен законодательством |
| Название рус.: | Альбом 9. Силовое электрооборудование. Электрическое освещение. Связь и сигнализация. Чертежи монтажной зоны |
| Дата добавления в базу: | 01.09.2013 |
| Дата актуализации: | 01.01.2021 |
| Дата введения: | 17.04.1987 |
| Дата окончания срока действия: | 30.06.2003 |
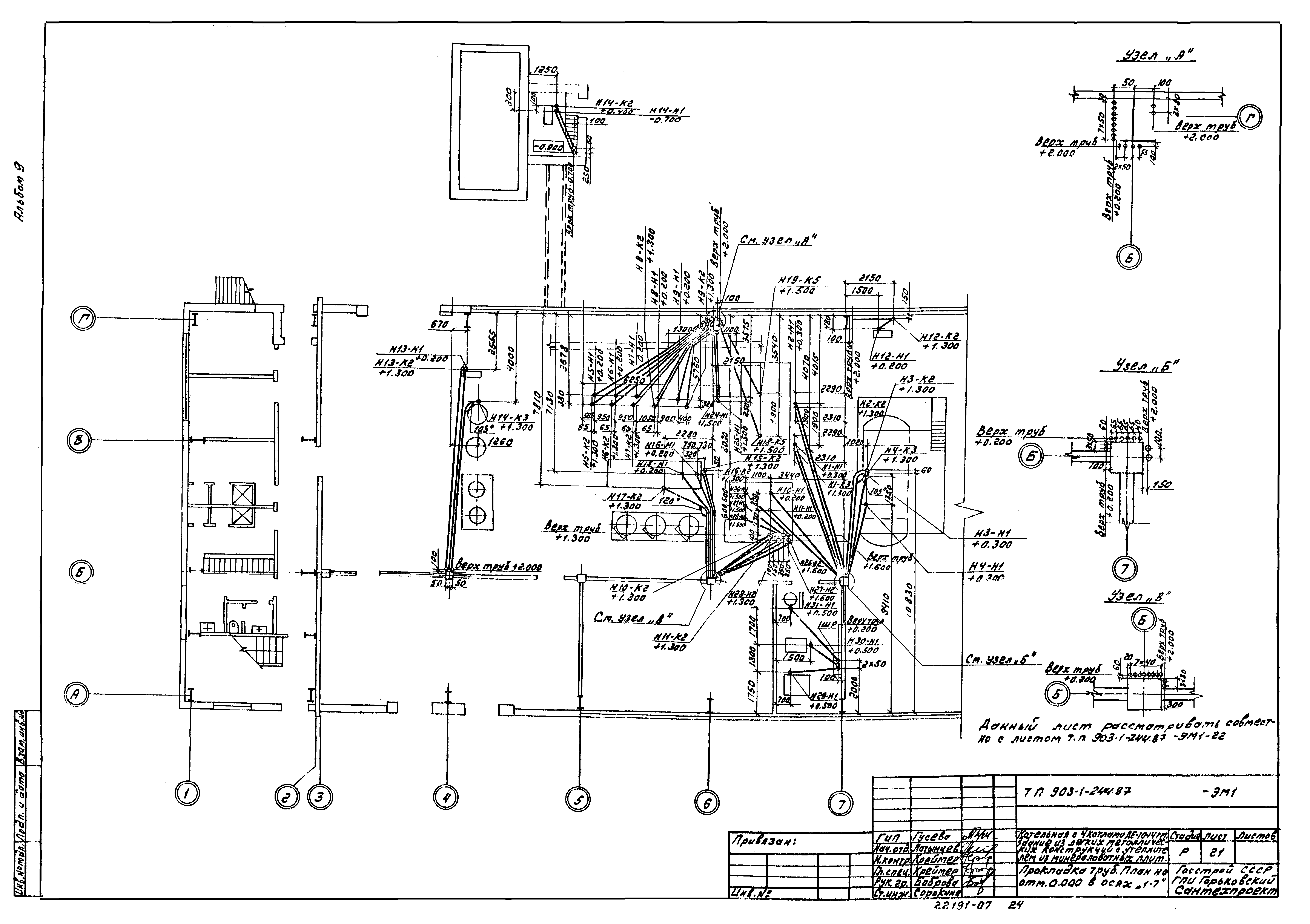
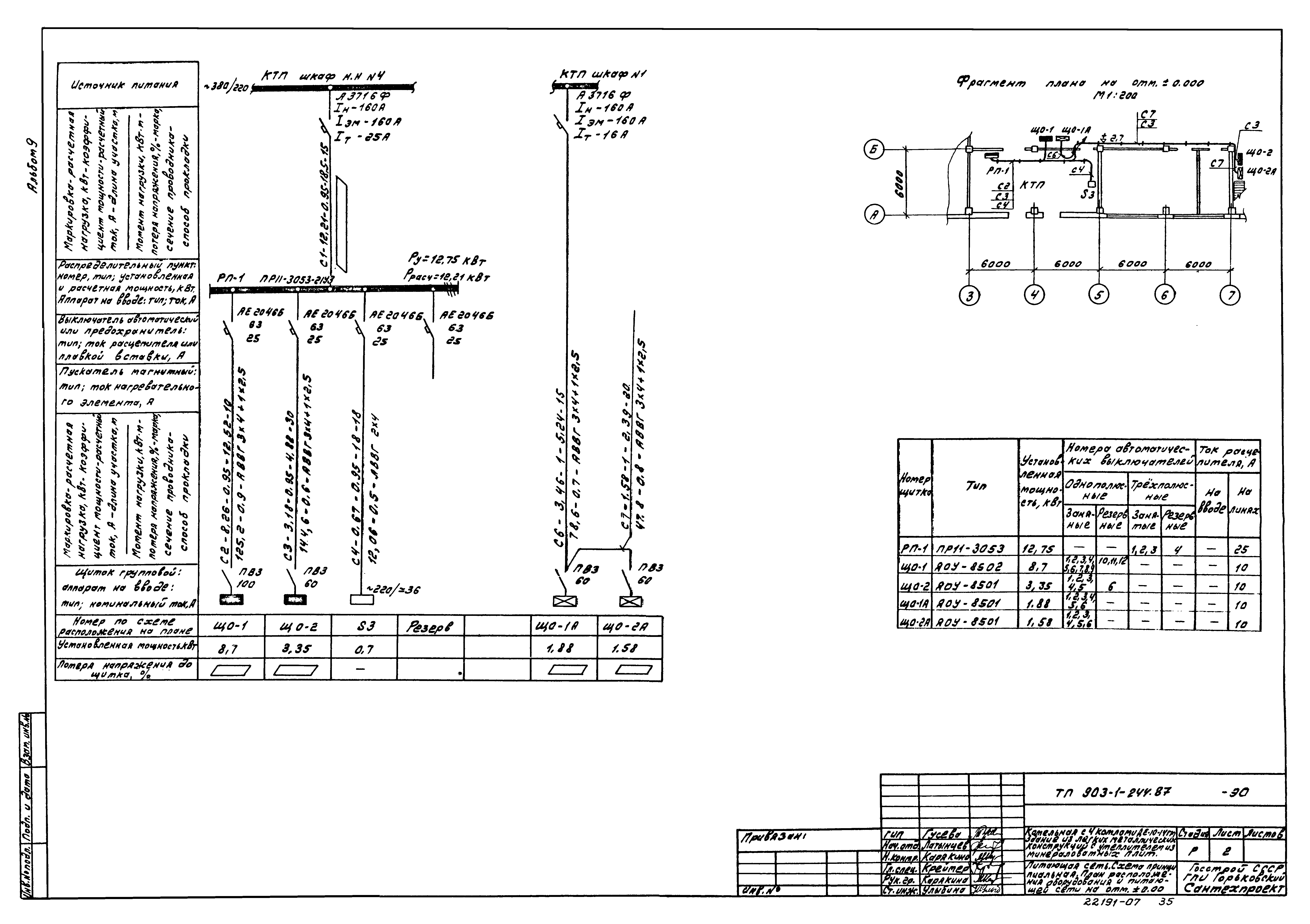
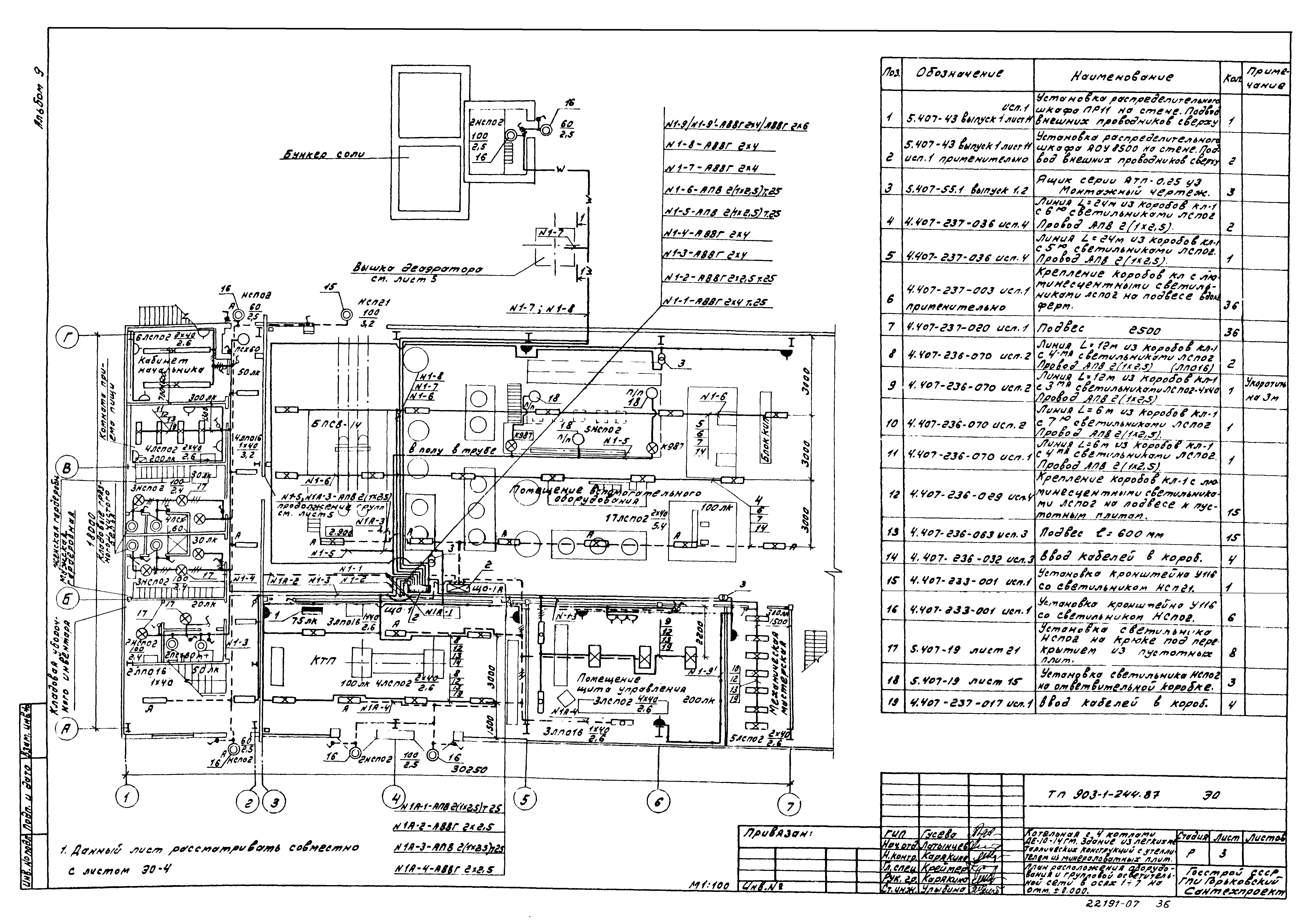
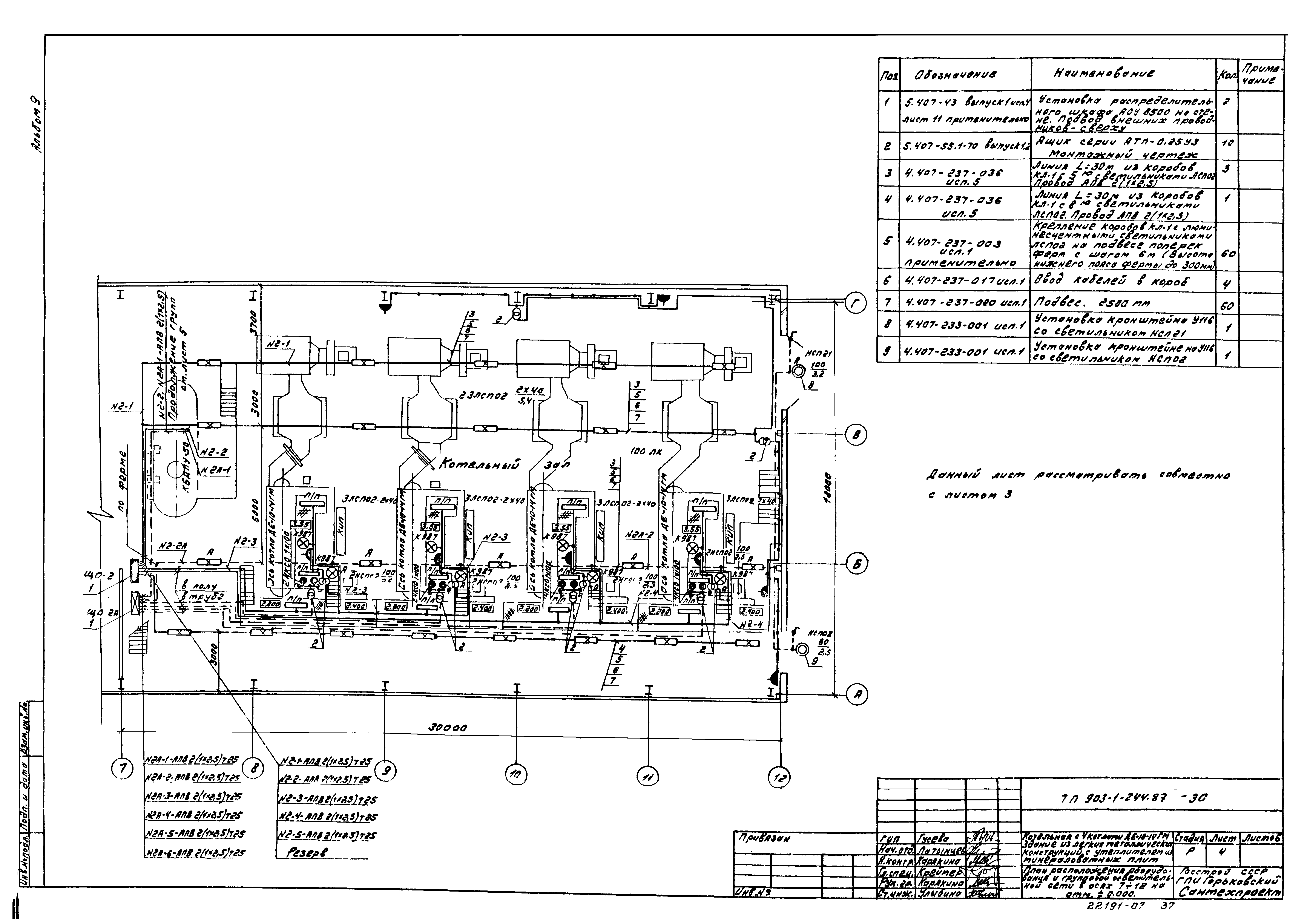
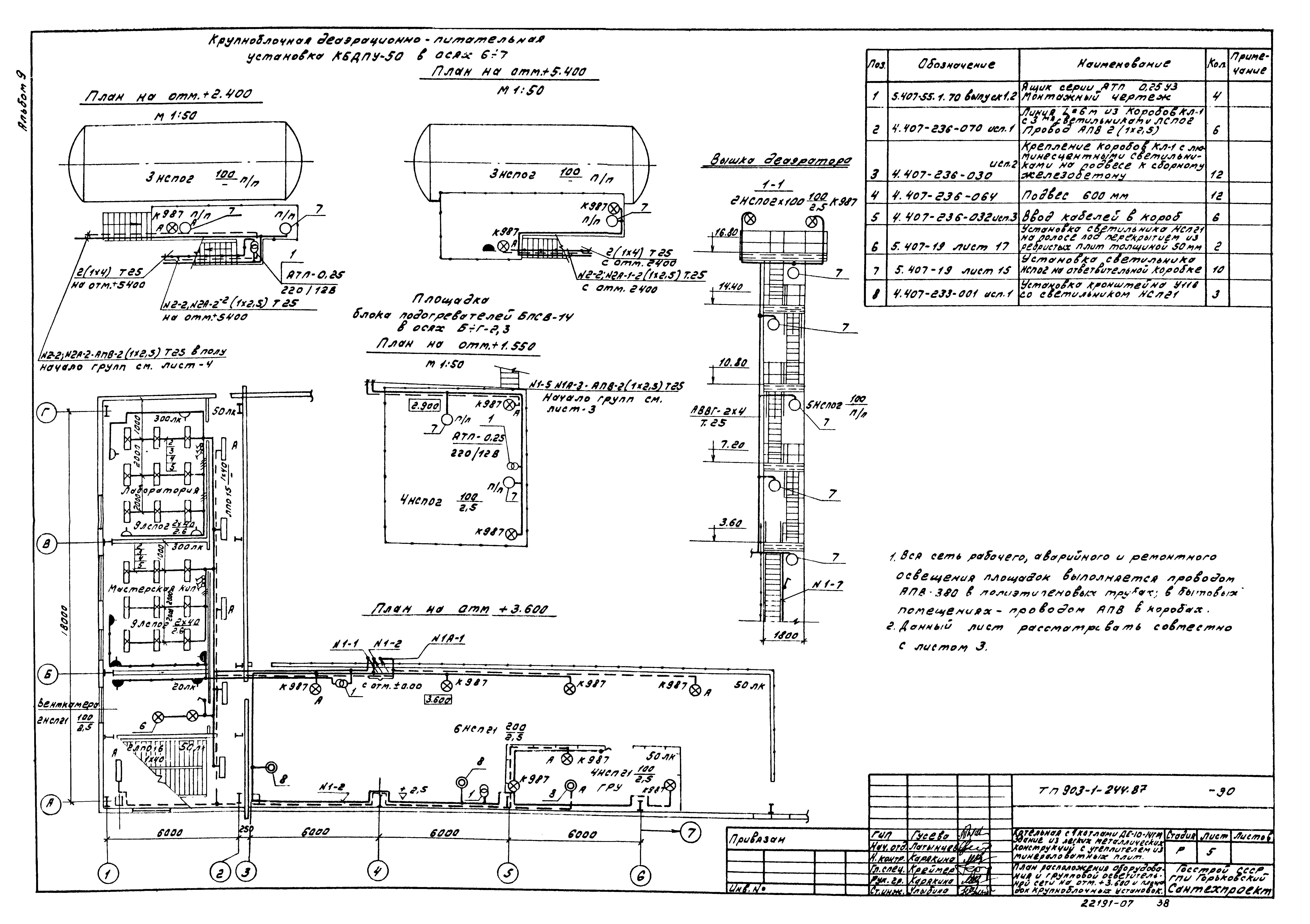
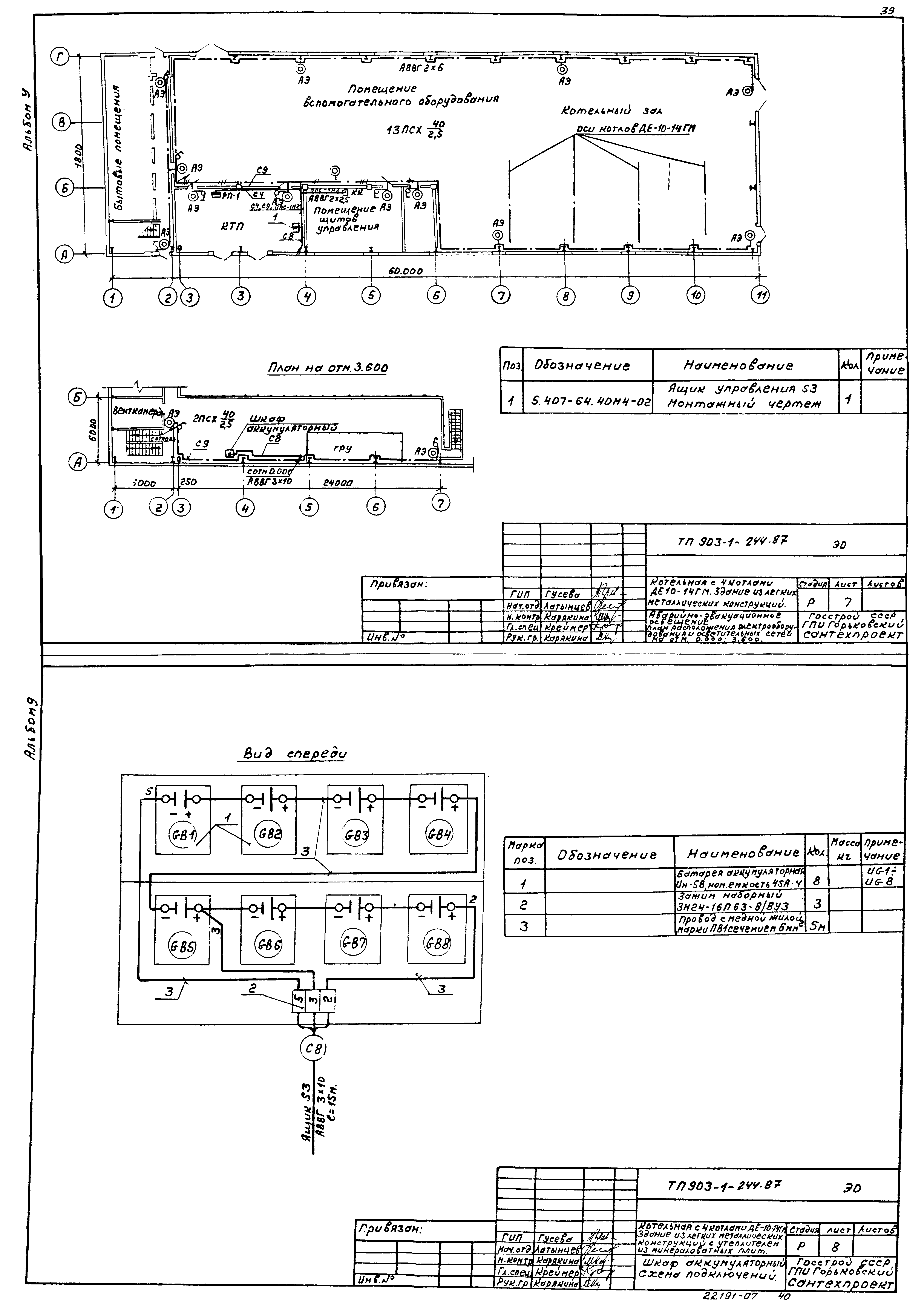
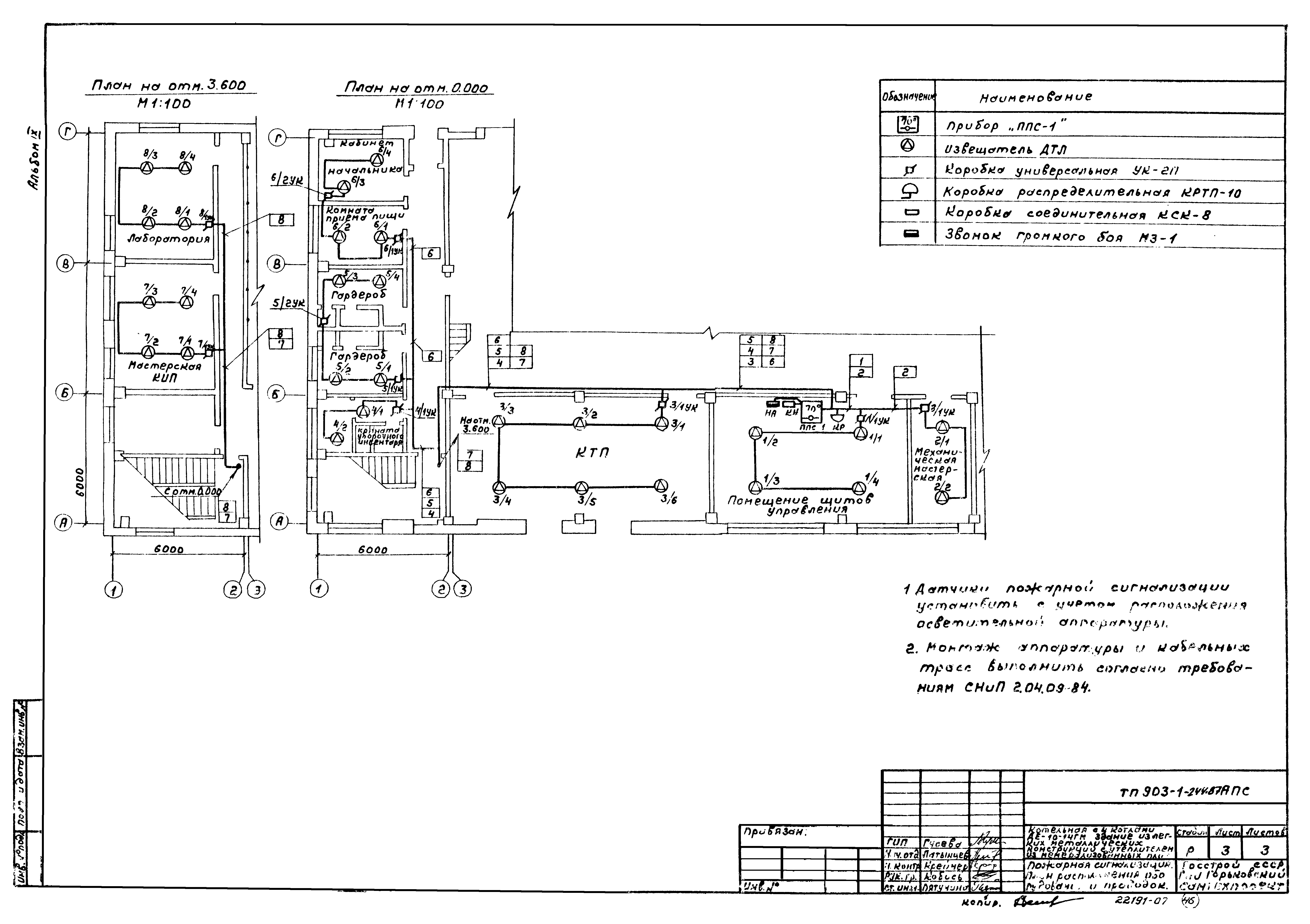
| Оглавление: | ТП 903-1-244.87 Содержание альбома ТП 903-1-244.87 ЭМ1 Марка ЭМ1 ТП 903-1-244.87 ЭМ1-1 Силовое электрооборудование. Общие данные (начало) ТП 903-1-244.87 ЭМ1-2 Силовое электрооборудование. Общие данные (окончание) ТП 903-1-244.87 ЭМ1-3 КТП-2х400кВ.А,1 секция. Схема принципиальная однолинейная ТП 903-1-244.87 ЭМ1-4 КТП-2х400кВ.А,2 секция. Схема принципиальная однолинейная ТП 903-1-244.87 ЭМ1-5 Щит 1Щ(2Щ). Схема принципиальная однолинейная ТП 903-1-244.87 ЭМ1-6 Щит 3Щ, 1 секция. Схема принципиальная однолинейная ТП 903-1-244.87 ЭМ1-7 Щит 3Щ, 2 секция. Схема принципиальная однолинейная ТП 903-1-244.87 ЭМ1-8 1ШР,2ШР,3ШР. Распределительная сеть ~380/220В. Схема принципиальная однолинейная ТП 903-1-244.87 ЭМ1-9 Схема подключений 1Щ,2Щ ТП 903-1-244.87 ЭМ1-10 Схема подключений 3Щ (начало) ТП 903-1-244.87 ЭМ1-11 Схема подключений 3Щ (продолжение) ТП 903-1-244.87 ЭМ1-12 Схема подключений 3Щ (окончание) ТП 903-1-244.87 ЭМ1-13 Кабельный журнал (начало) ТП 903-1-244.87 ЭМ1-14 Кабельный журнал (продолжение) ТП 903-1-244.87 ЭМ1-15 Кабельный журнал (окончание) ТП 903-1-244.87 ЭМ1-16 Расположение электрооборудования и прокладка кабелей. План (начало) ТП 903-1-244.87 ЭМ1-17 Расположение электрооборудования и прокладка кабелей. План (продолжение) ТП 903-1-244.87 ЭМ1-18 Расположение электрооборудования и прокладка кабелей. План (продолжение) ТП 903-1-244.87 ЭМ1-19 Расположение электрооборудования и прокладка кабелей. План. Разрезы (окончание) ТП 903-1-244.87 ЭМ1-20 Расположение электрооборудования и прокладка кабелей. Спецификация ТП 903-1-244.87 ЭМ1-21 Прокладка труб. План на отм. 0.000 в осях 1-7 ТП 903-1-244.87 ЭМ1-22 Прокладка труб. План на отм. 0.000 в осях 7-12 ТП 903-1-244.87 ЭМ1-23 Трубозаготовительная ведомость (начало) ТП 903-1-244.87 ЭМ1-24 Трубозаготовительная ведомость (окончание) ТП 903-1-244.87 ЭМ1-25 Ведомость заполнения труб кабелями ТП 903-1-244.87 ЭМ1-26 Заземление. План (начало) ТП 903-1-244.87 ЭМ1-27 Заземление. План (окончание). Спецификация ТП 903-1-244.87 ЭМ1-28 КТП и ПСУ. Установка оборудования. План ТП 903-1-244.87 Прилагаемые документы к листам марки ЭМ1 ТП 903-1-244.87 ЭМ1.И.ВБ Ведомость изделий МЭЗ ТП 903-1-244.87 ЭМ1.И.ВА Ведомость изделий и материалов для изготовления изделий МЭЗ ТП 903-1-244.87 ЭМ1.ОЛ КТП-2х400кВ.А. Опросный лист ТП 903-1-244.87 ЭО Марка ЭО ТП 903-1-244.87 ЭО-1 Общие данные ТП 903-1-244.87 ЭО-2 Питающая сеть. Схема принципиальная. План расположение оборудования и питающей сети на отм.±0.000 ТП 903-1-244.87 ЭО-3 План расположения оборудования и групповой осветительной сети в осях 1-7 на отм. ±0.000 ТП 903-1-244.87 ЭО-4 План расположения оборудования и групповой осветительной сети в осях 7-12 на отм. ±0.000 ТП 903-1-244.87 ЭО-5 План расположения оборудования и групповой осветительной сети на отм. +3.600 и площадок крупноблочных установок ТП 903-1-244.87 ЭО-6 Аварийно-эвакуационное освещение. Схема принципиальная ТП 903-1-244.87 ЭО-7 Аварийно-эвакуационное освещение. План расположения оборудования и осветительных сетей на отм. ±0.000;+3.600 ТП 903-1-244.87 ЭО-8 Шкаф аккумуляторный. Схема подключений ТП 903-1-244.87 ЭО Прилагаемые документы к листам марки ЭО ТП 903-1-244.87 ЭО.И.ВБ Ведомость изделий МЭЗ ТП 903-1-244.87 ЭО.И.ВА Ведомость изделий и материалов для изготовления изделий МЭЗ ТП 903-1-244.87 СС Марка СС ТП 903-1-244.87 СС-1 Общие данные. План расположения сетей ТП 903-1-244.87 АПС Марка АПС ТП 903-1-244.87 АПС-1 Пожарная сигнализация. Общие данные. Схема электрическая принципиальная ТП 903-1-244.87 АПС-2 Пожарная сигнализация. Схема внешних проводок ТП 903-1-244.87 АПС-3 Пожарная сигнализация. План расположения оборудования и проводок |
| Разработан: | Горьковский Сантехпроект |
| Утверждён: | 17.04.1987 Госстрой СССР (Государственный комитет Совета Министров СССР по делам строительства) (USSR Gosstroy А4-43) |














































