Скачать Типовые проектные решения 503-0-17 Элементы ограждений автомобильных дорогДата актуализации: 01.01.2021
|
| Обозначение: | Типовые проектные решения 503-0-17 |
| Обозначение англ: | 503-0-17 |
| Статус: | справочные материалы, мп, тпр |
| Название рус.: | Элементы ограждений автомобильных дорог |
| Дата добавления в базу: | 01.09.2013 |
| Дата актуализации: | 01.01.2021 |
| Дата окончания срока действия: | 01.03.1977 |
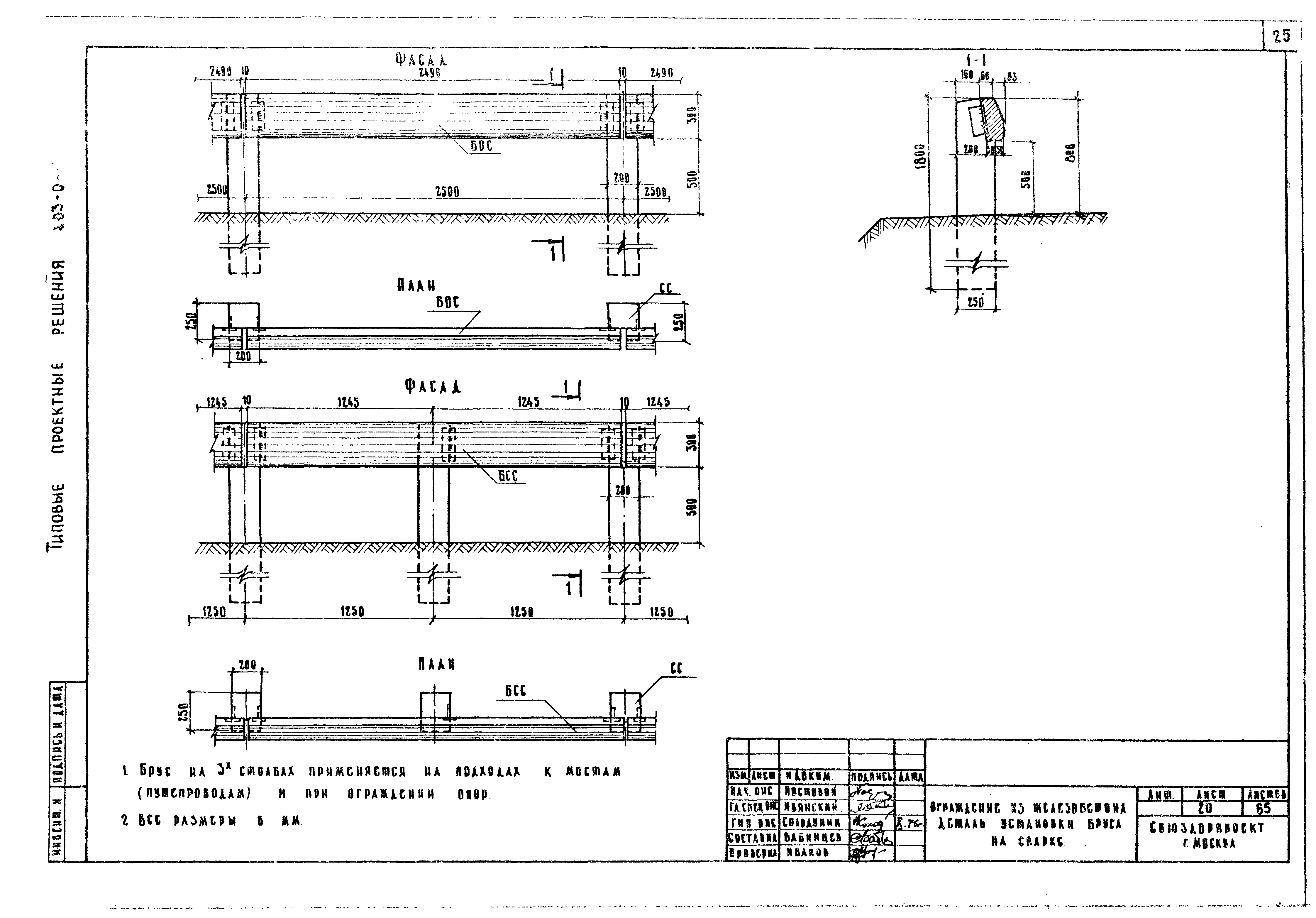
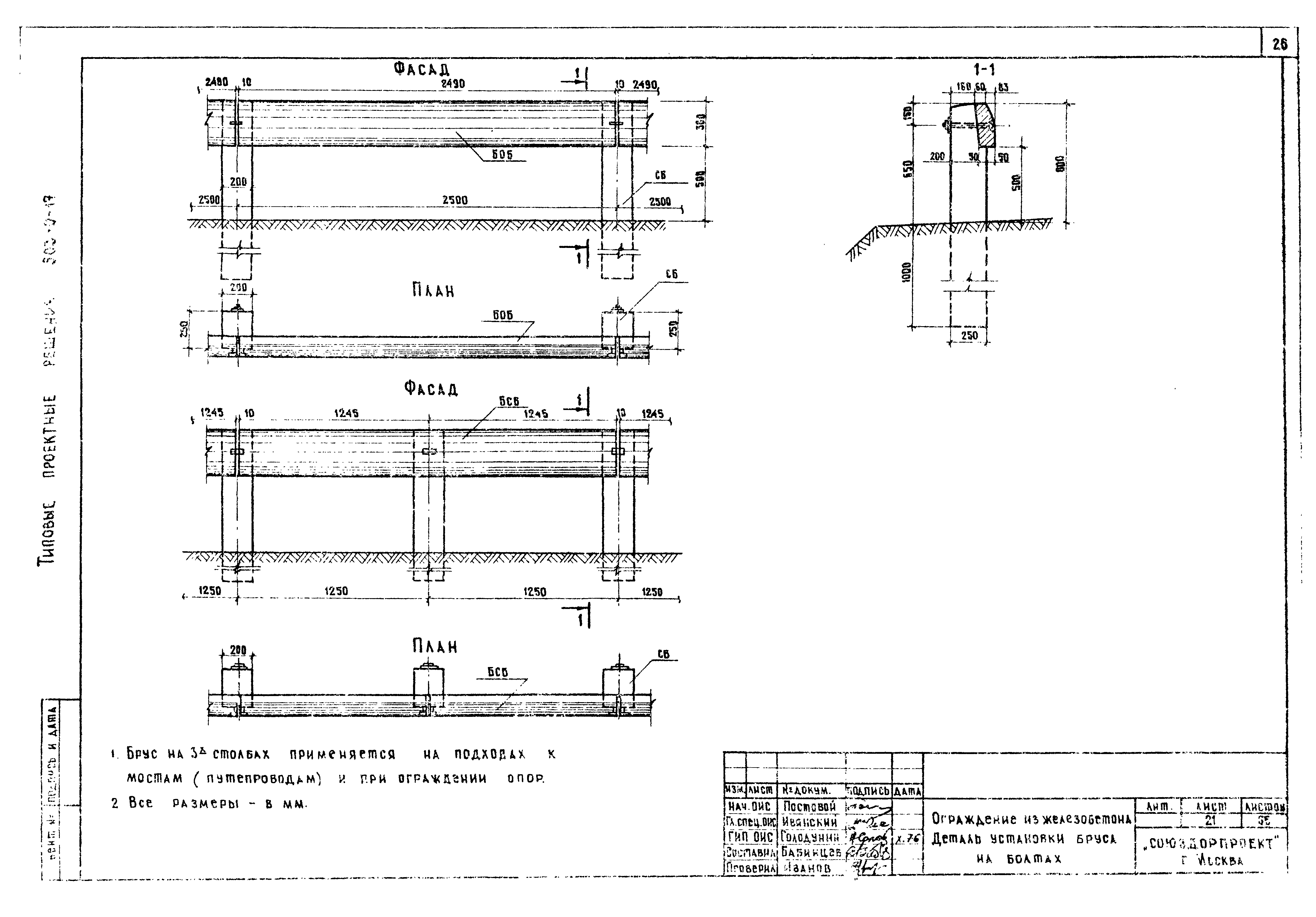
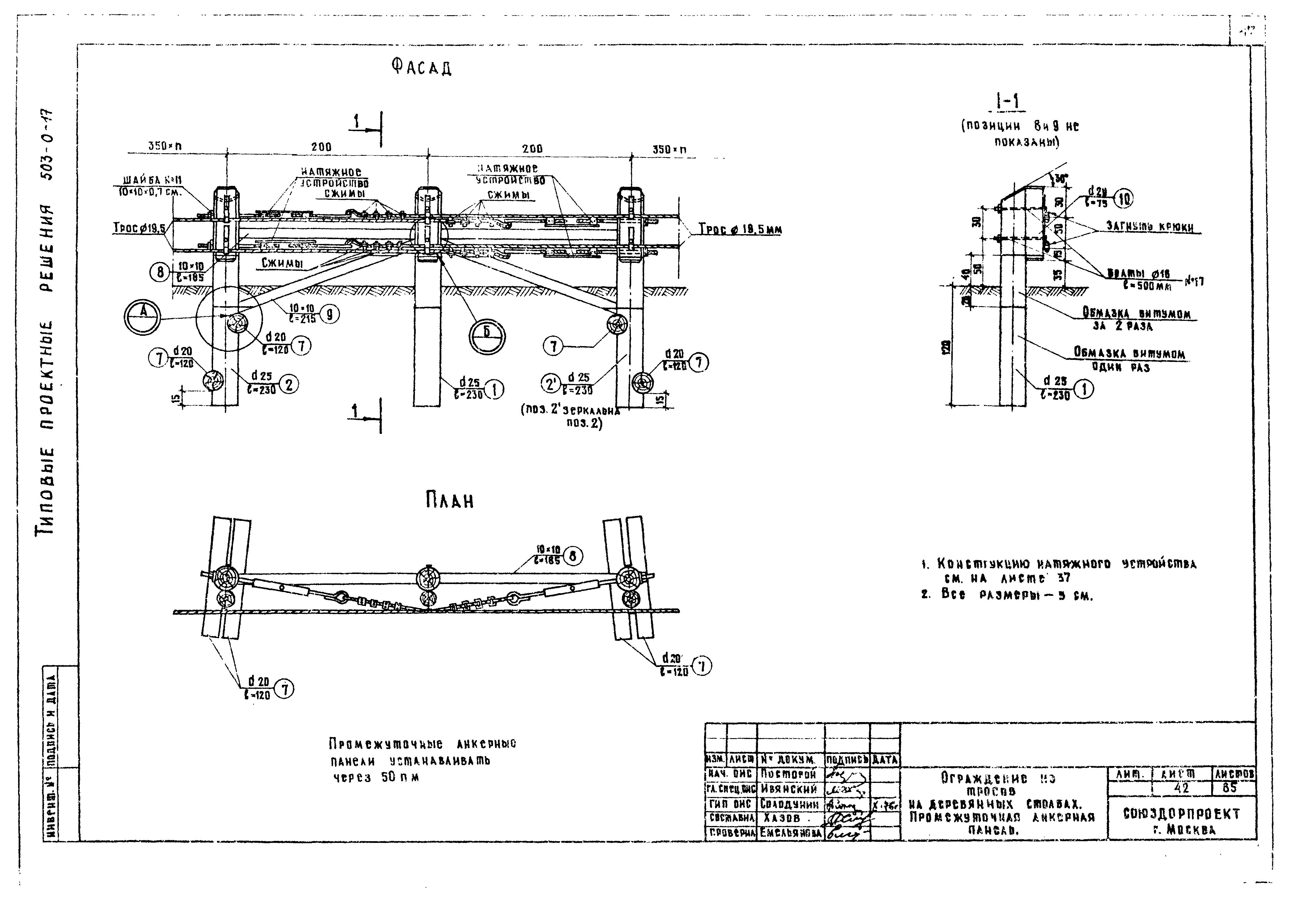
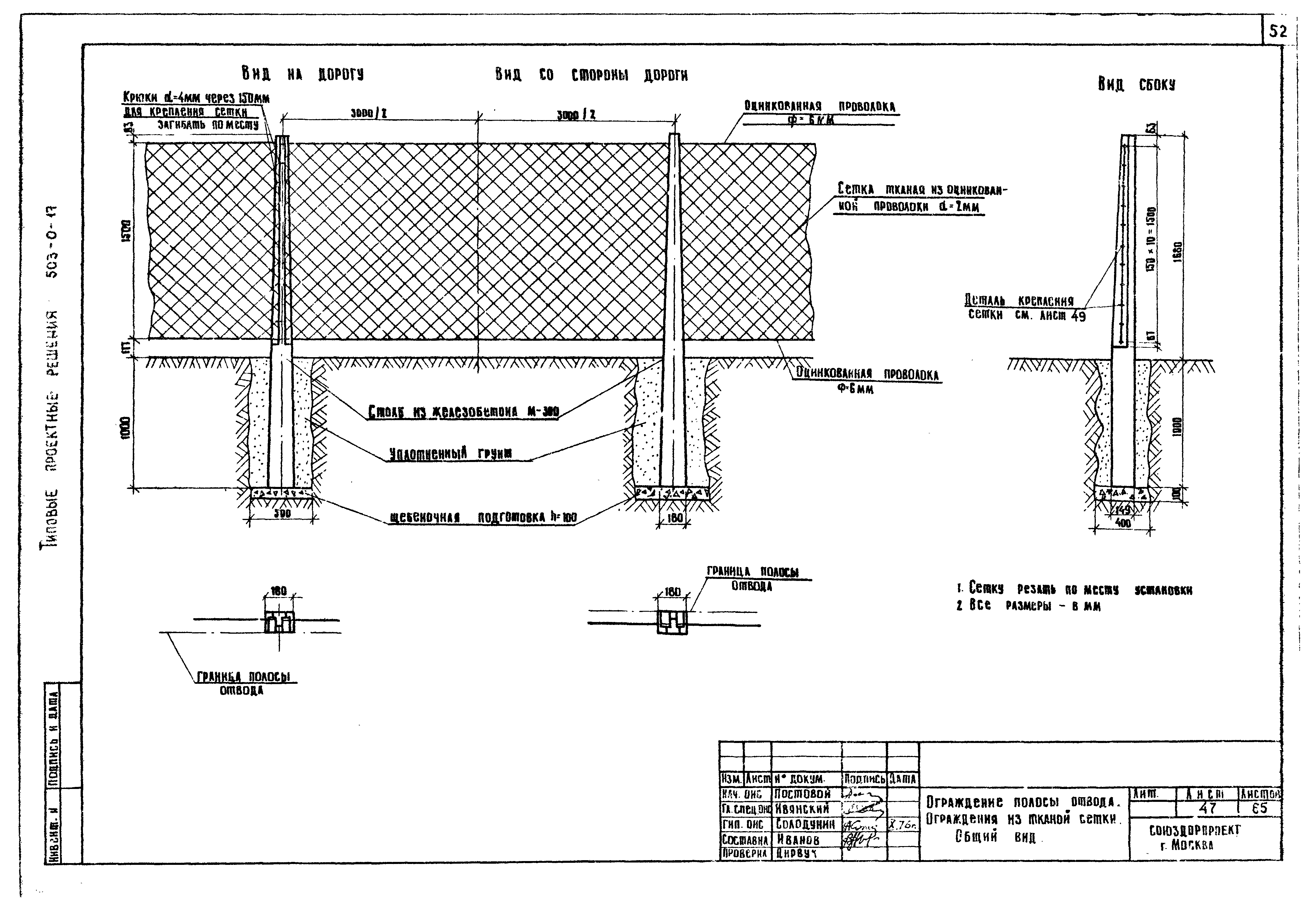
| Оглавление: | ТП 503-0-17 Пояснительная записка Часть I Схемы установки ограждений ТП 503-0-17 Ограждение на прямолинейных участках дорог при высоте насыпи более 3-х м ТП 503-0-17 Ограждение на криволинейных участках дорог при высоте насыпи более 2 м ТП 503-0-17 Ограждение на участках дорог, проходящих параллельно железнодорожным линиям ТП 503-0-17 Ограждение опор путепроводов, стоек знаков и опор освещения ТП 503-0-17 Ограждение из стали на подходах к мостам и путепроводам ТП 503-0-17 Ограждение из железобетона на подходах к мостам и путепроводам ТП 503-0-17 Ограждение из тросов на подходах к мостам и путепроводам ТП 503-0-17 Сигнальные столбики на прямолинейных и криволинейных участках дорог ТП 503-0-17 Сигнальные столбики в зоне расположения малых искусственных сооружений ТП 503-0-17 Сигнальные столбики на пересечениях и примыканиях дорог в одном уровне ТП 503-0-17 Ограждения на примыканиях в разных уровнях. Вариант с установкой ограждений из стали ТП 503-0-17 Ограждение на пересечениях в разных уровнях. Вариант с установкой ограждений из железобетона ТП 503-0-17 Ограждение металлической сеткой Часть II Конструкции ограждений. Ограждение из стали ТП 503-0-17 Деталь установки средних и концевых элементов ТП 503-0-17 Деталь установки начального элемента ТП 503-0-17 Средний элемент ТП 503-0-17 Концевой элемент ТП 503-0-17 Энергопоглащающая вставка ТП 503-0-17 Столбы ограждения ТП 503-0-17 Ограждение из железобетона ТП 503-0-17 Деталь установки бруса на сварке ТП 503-0-17 Деталь установки бруса на болтах ТП 503-0-17 Брус БОС. Конструкция ТП 503-0-17 Брус БСС. Конструкция ТП 503-0-17 Брус БОБ. Конструкция ТП 503-0-17 Брус БСБ. Конструкция ТП 503-0-17 Брус БИСн(в степени т) и БИБн(в степени т). Опалубочные чертежи ТП 503-0-17 Брусья БИСн(в степени т) и БИБн(в степени т). Арматурные чертежи ТП 503-0-17 Брус БКСн(в степени т). Конструкция ТП 503-0-17 Брус БКБн(в степени т). Конструкция ТП 503-0-17 Столб СС. Конструкция ТП 503-0-17 Столб СВ. Конструкция ТП 503-0-17 Сопровождающее устройство. Общий вид ТП 503-0-17 Сопровождающее устройство. Детали ТП 503-0-17 Сопровождающее устройство. Деталь установки ТП 503-0-17 Узлы "А","Б","В" ТП 503-0-17 Ограждение из тросов на железобетонных столбах ТП 503-0-17 Общий вид ТП 503-0-17 Натягивающее устройство ТП 503-0-17 Столб С-1 и упор У-1. Конструкция ТП 503-0-17 Столб С-2. Конструкция ТП 503-0-17 Компенсатор ТП 503-0-17 Ограждение из тросов на деревянных столбах ТП 503-0-17 Общий вид с крайней анкерной панелью ТП 503-0-17 Промежуточная анкерная панель ТП 503-0-17 Узлы ТП 503-0-17 Спецификация стали и лесоматериалов Часть III Конструкция направляющего устройства ТП 503-0-17 Сигнальный столбик НС из железобетона Часть IV Ограждение полосы отвода ТП 503-0-17 Ограждение из крученой сетки. Общий вид ТП 503-0-17 Ограждение из тканой сетки. Общий вид ТП 503-0-17 Ограждение из проволоки. Общий вид ТП 503-0-17 Столб ограждения СО. Опалубочный чертеж ТП 503-0-17 Столб ограждения СО. Армирование Часть V. Лестничные сходы ТП 503-0-17 Маркировочные схемы ТП 503-0-17 Общий вид лестничного схода при высоте насыпи 7 м и ширине лестничного марша 1,5 м ТП 503-0-17 Узлы и детали ТП 503-0-17 Спецификации сборных элементов к маркировочной схеме. Расход материалов на перильное ограждение ТП 503-0-17 Расчетные схемы разгрузок ТП 503-0-17 Ступени ПС-1;ПС-1´;ПС-2;ПС-2 ТП 503-0-17 Площадки П-1;П-2;П-3 ТП 503-0-17 Косоуры К-1;К-2 ТП 503-0-17 Косоуры К-3;К-4 ТП 503-0-17 Опорные плиты ОП-1;ОП-2 ТП 503-0-17 Закладные детали ТП 503-0-17 Спецификации для косоуров К-1;К-2 ТП 503-0-17 Спецификации для косоуров К-3;К-4 ТП 503-0-17 Приложение Объемы работ. Ограждение из стали и тросов ТП 503-0-17 Приложение Объемы работ. Ограждение из железобетона. Ограждение металлической сеткой. Сигнальные столбики |
| Разработан: | ГПИ Союздорпроект |
| Утверждён: | 18.01.1977 Минтрансстрой СССР (USSR Mintransstroy Л-89) |
| Заменяет собой: |
|







































































