Скачать Типовой проект 902-5-36.86 Альбом II. Технологическая и санитарно-техническая частиДата актуализации: 01.01.2021
|
| Обозначение: | Типовой проект 902-5-36.86 |
| Обозначение англ: | 902-5-36.86 |
| Статус: | не определен законодательством |
| Название рус.: | Альбом II. Технологическая и санитарно-техническая части |
| Дата добавления в базу: | 01.09.2013 |
| Дата актуализации: | 01.01.2021 |
| Дата введения: | 05.06.1986 |
| Дата окончания срока действия: | 30.06.2003 |
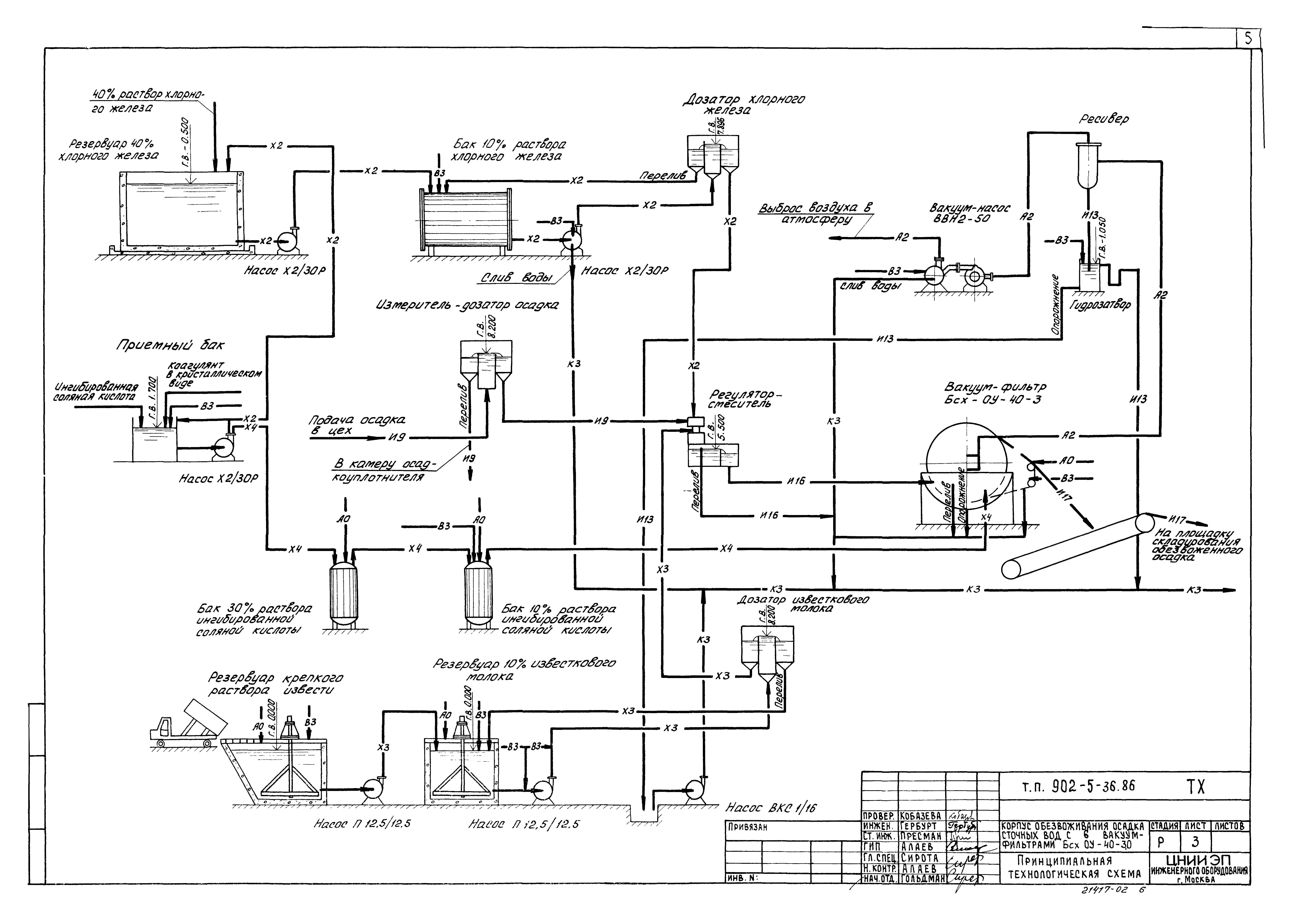
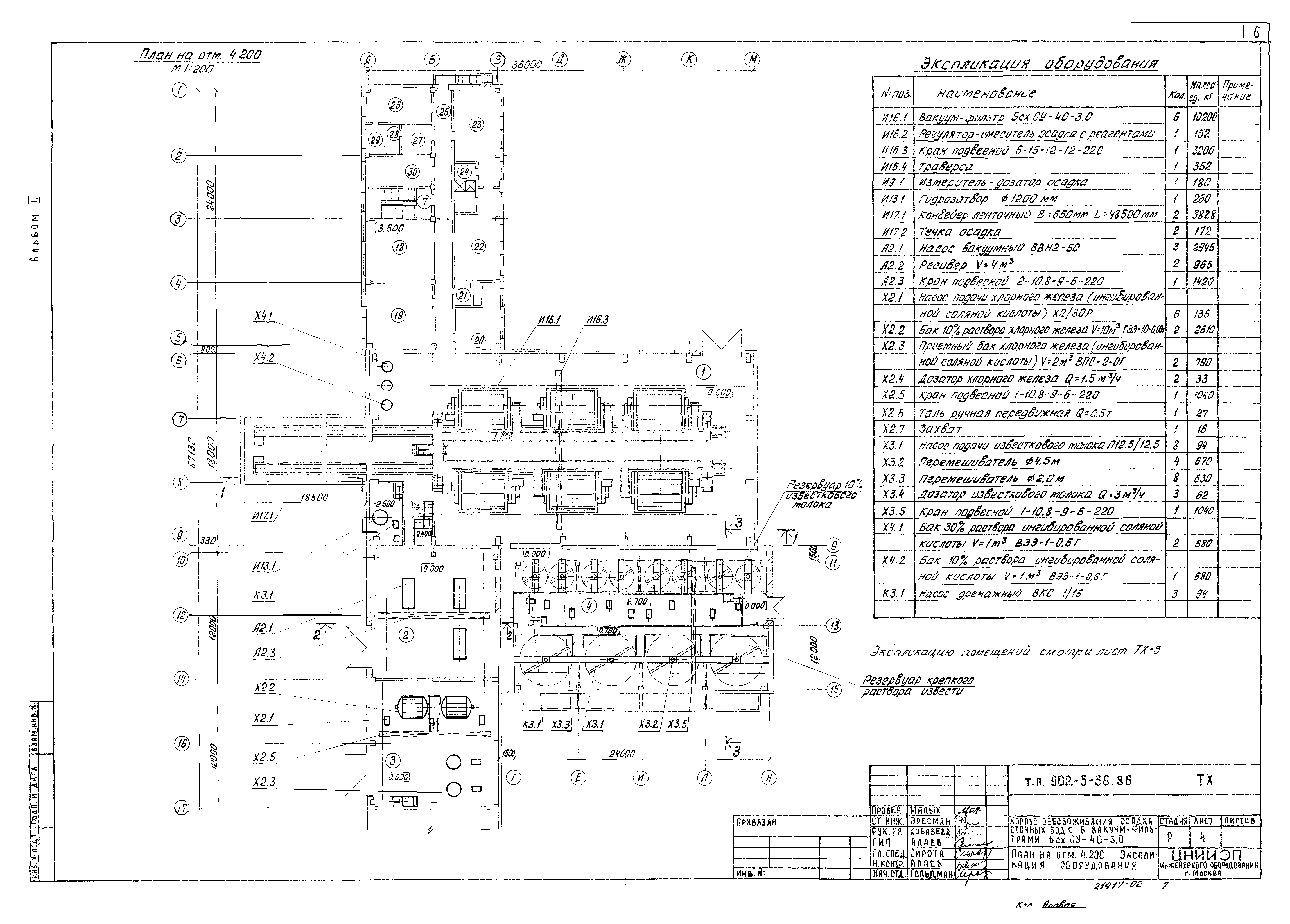
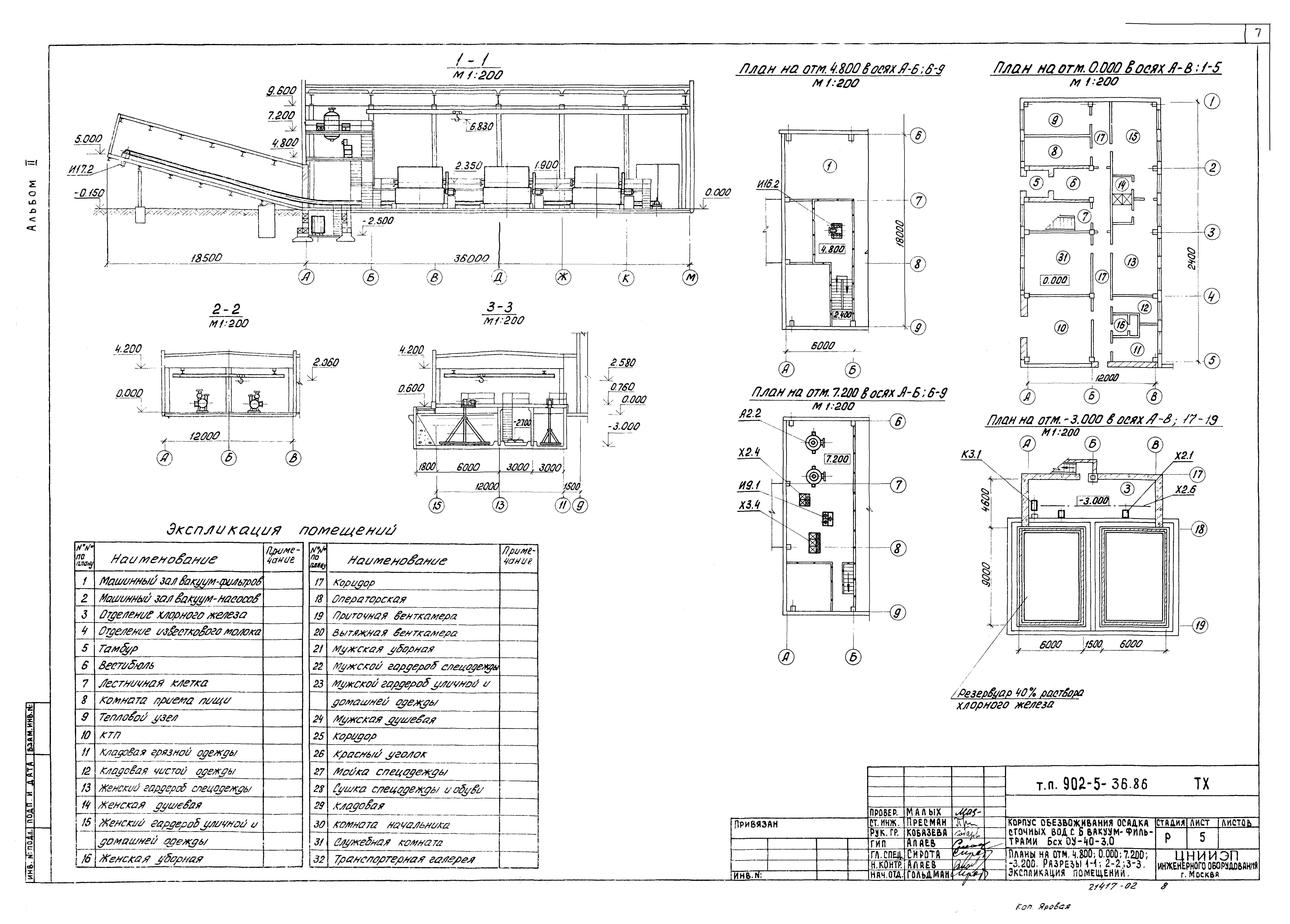
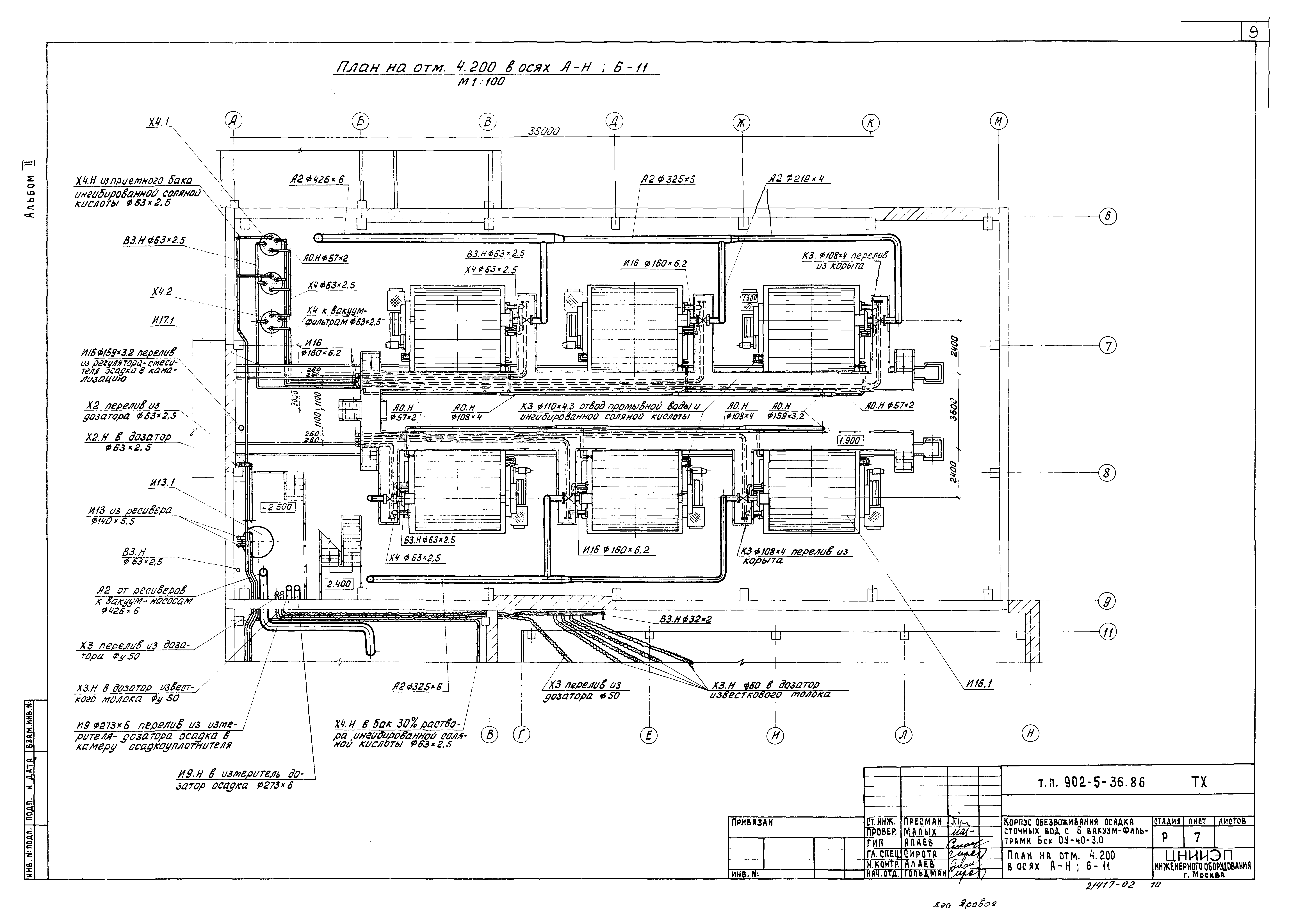
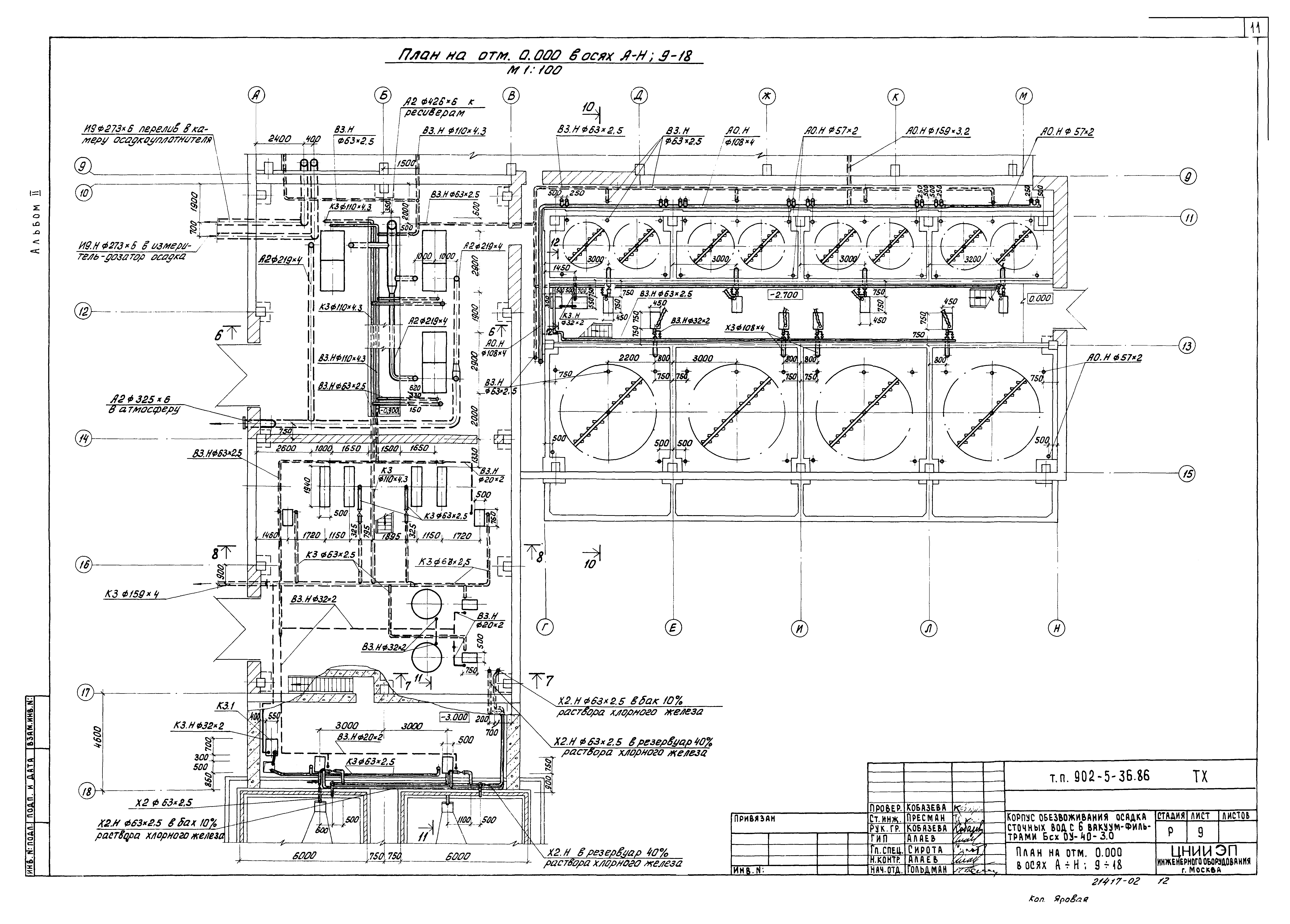
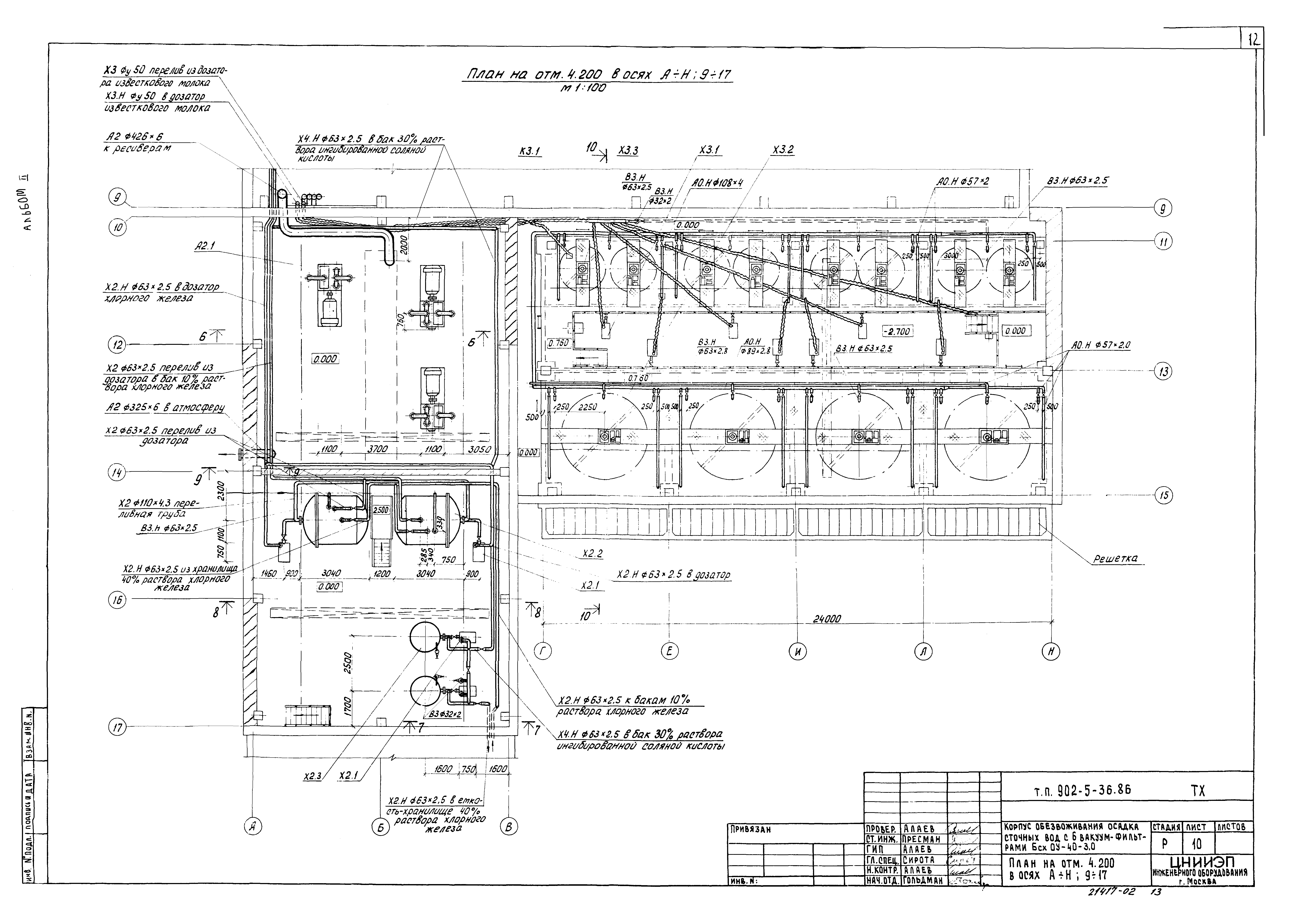
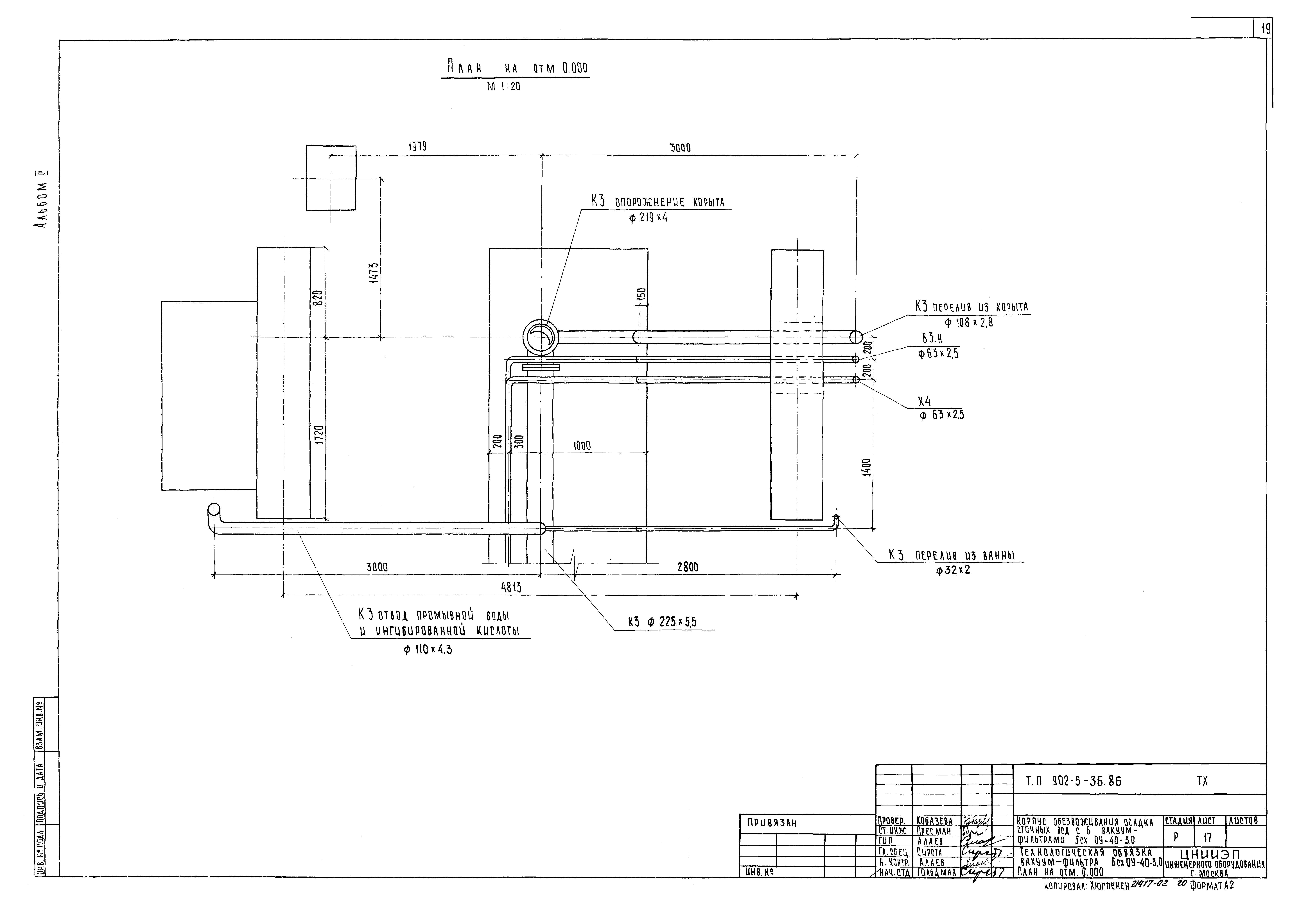
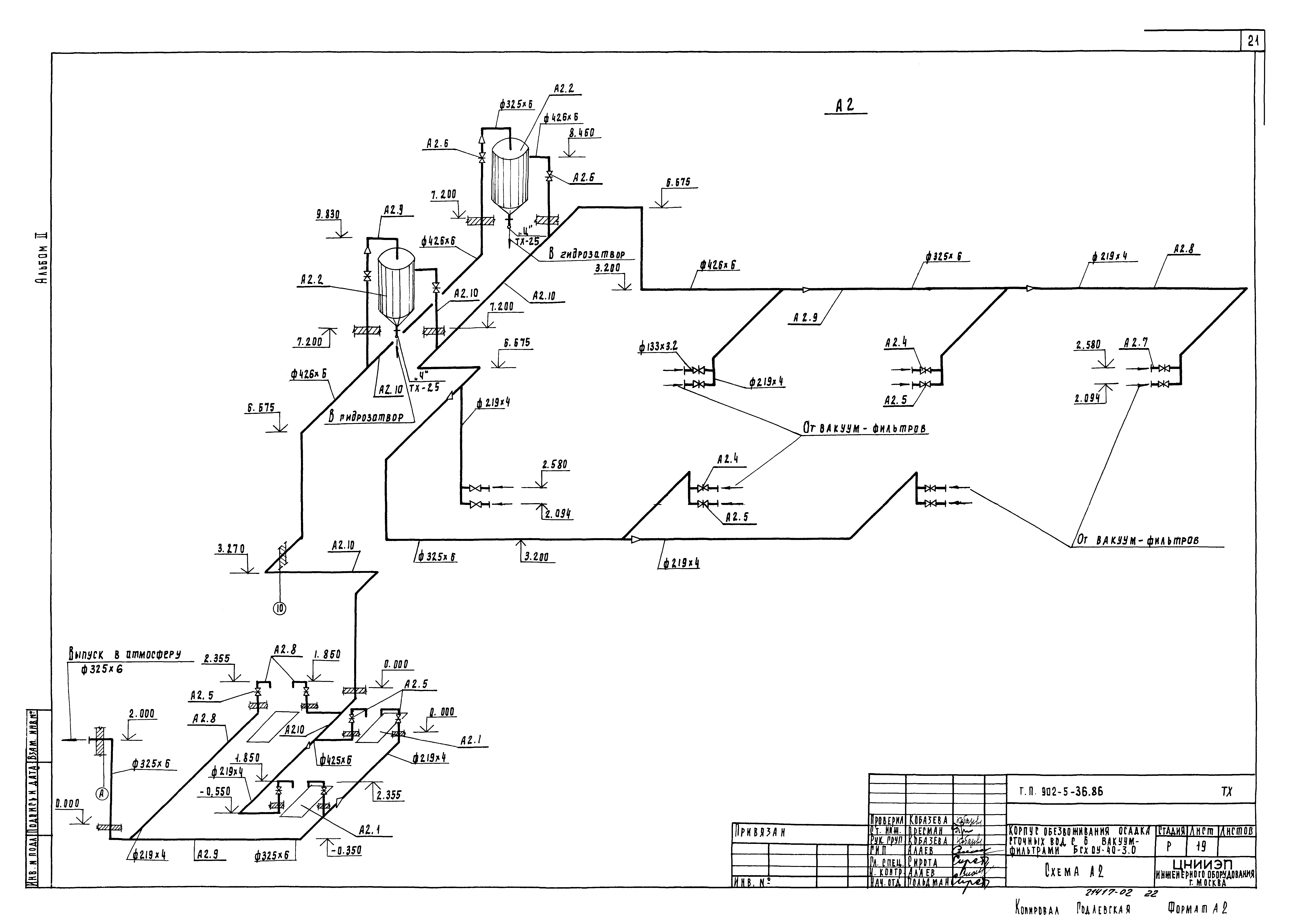
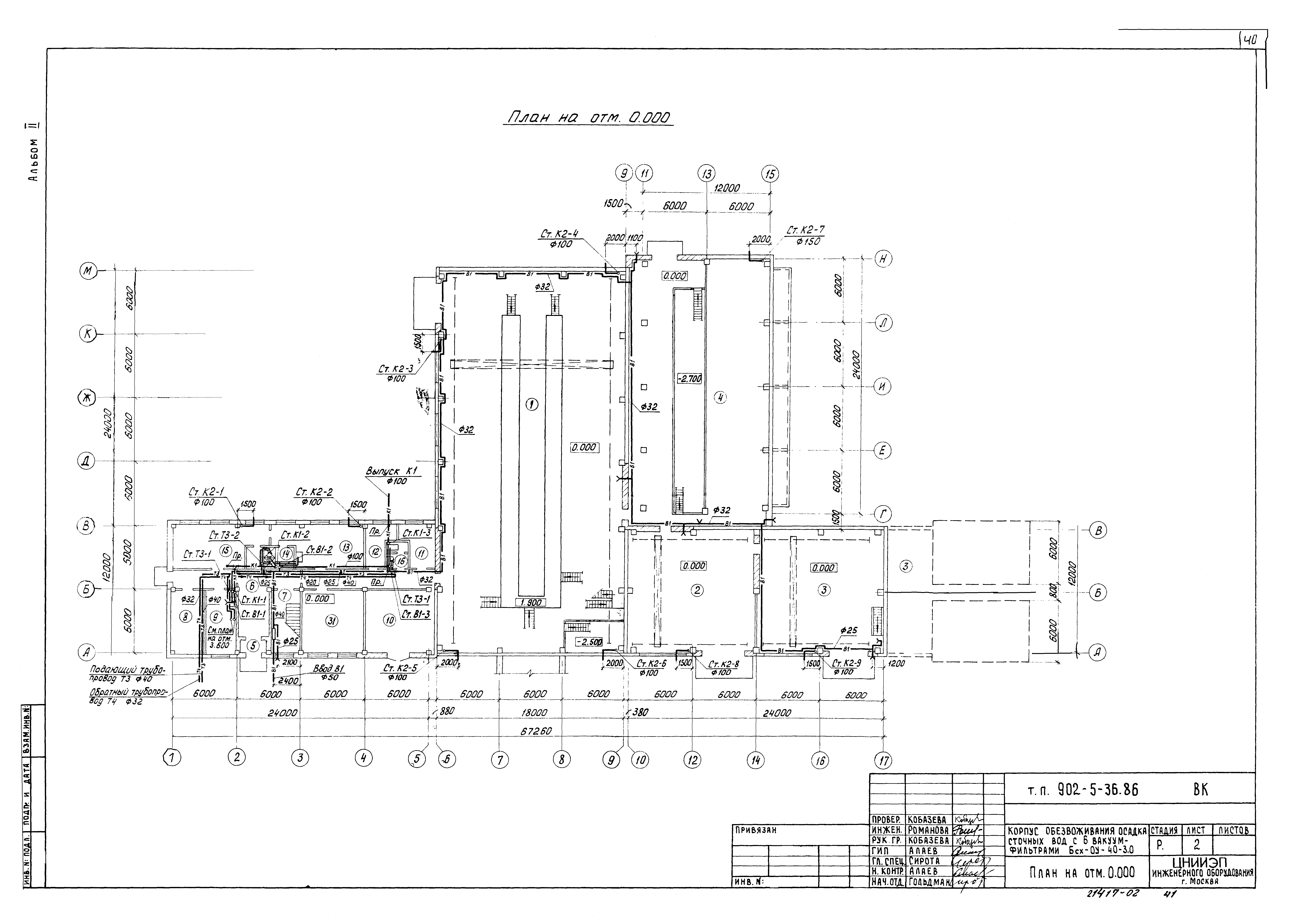
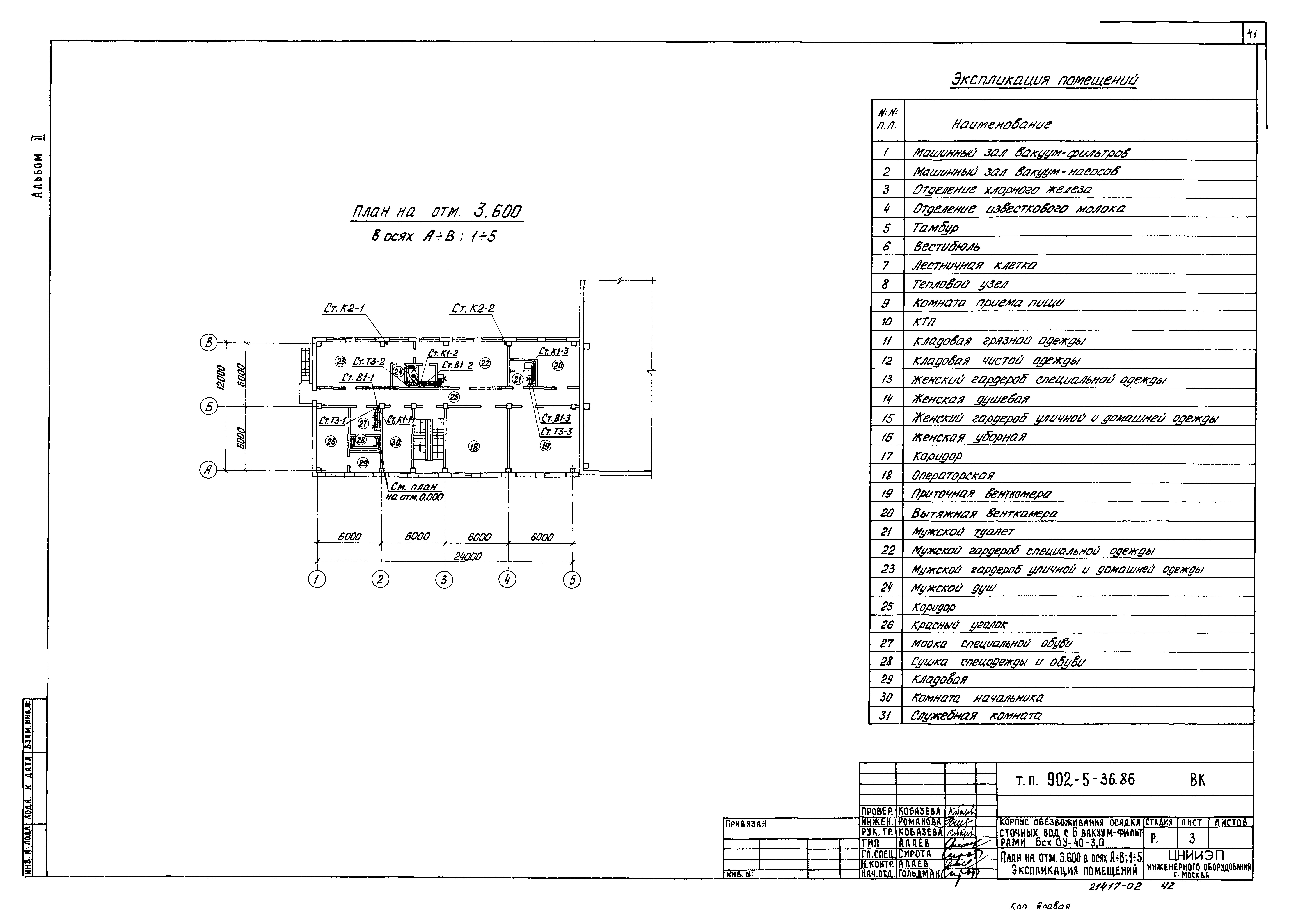
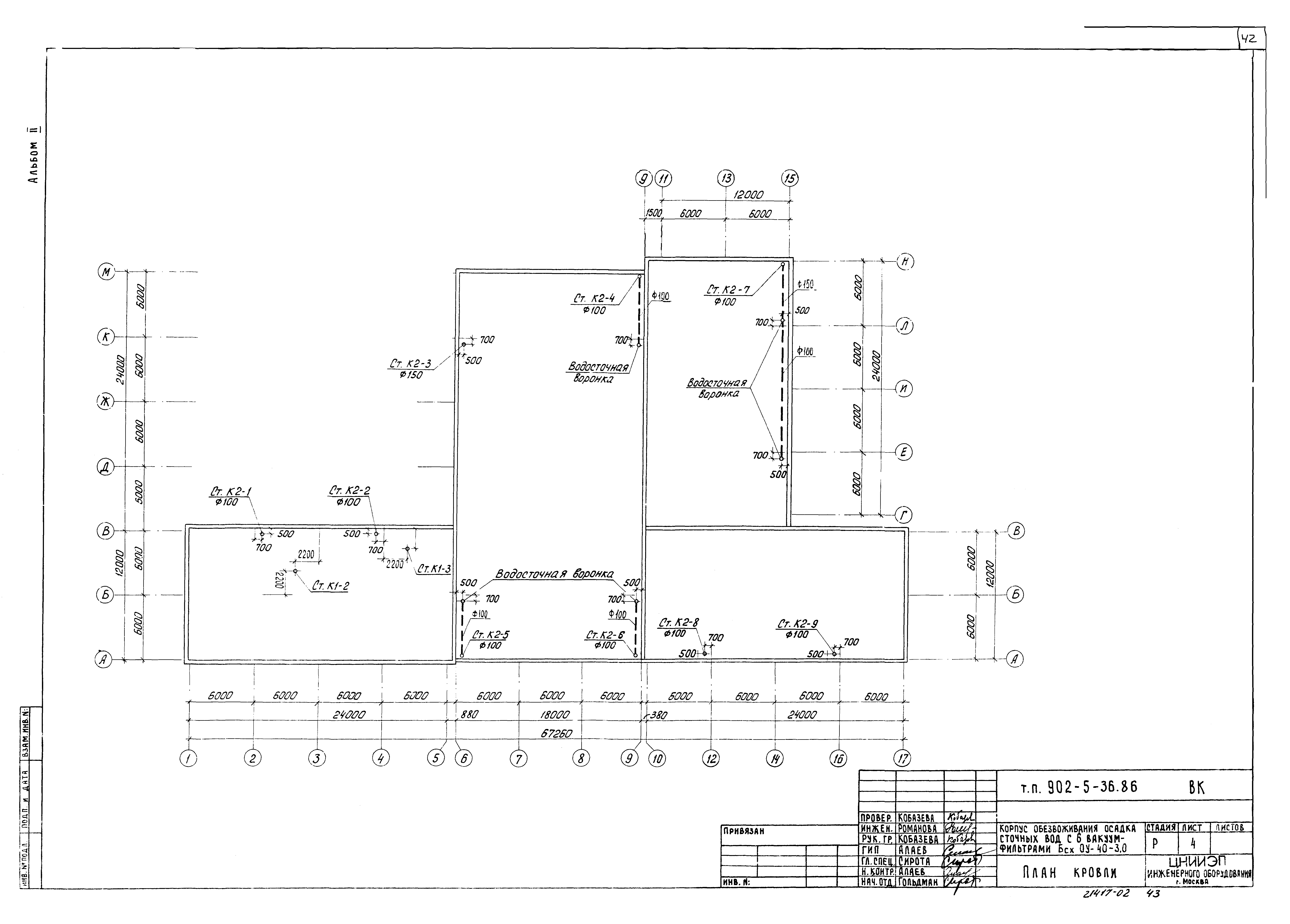
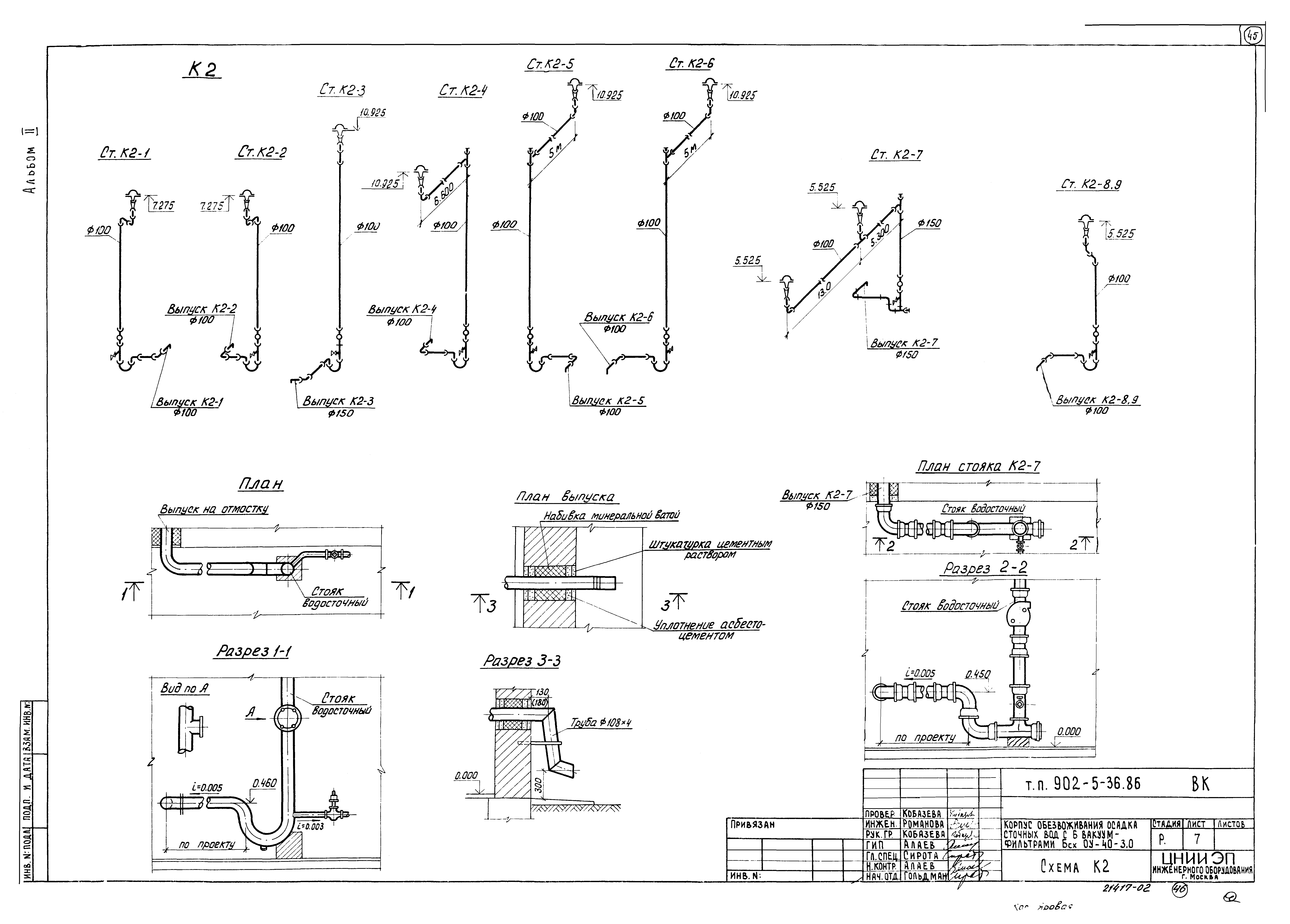
| Оглавление: | ТП 902-5-36.86 Содержание альбома ТП 902-5-36.86 ТХ Технологическая часть ТП 902-5-36.86 ТХ-1 Общие данные ТП 902-5-36.86 ТХ-2 Пример размещения корпуса обезвоживания осадка на генплане станции биологической очистки сточных вод Q=200тыс.м³/сут ТП 902-5-36.86 ТХ-3 Принципиальная технологическая схема ТП 902-5-36.86 ТХ-4 План на отм. 4.200. Экспликация оборудования ТП 902-5-36.86 ТХ-5 Планы на отм. 4.800;0.000;7.200;-3.000. Разрезы 1-1;2-2;3-3. Экспликация помещений ТП 902-5-36.86 ТХ-6 План на отм. 0.000 в осях А-Н, 5-10 ТП 902-5-36.86 ТХ-7 План на отм. 4.200 в осях А-Н, 6-11 ТП 902-5-36.86 ТХ-8 План на отм. 4.800;7.200 в осях А-Б, 5-9 ТП 902-5-36.86 ТХ-9 План на отм. 0.000 в осях А-Н, 9-18 ТП 902-5-36.86 ТХ-10 План на отм. 4.200 в осях А-Н, 9-17 ТП 902-5-36.86 ТХ-11 Разрез 4-4 ТП 902-5-36.86 ТХ-12 Разрез 5-5 ТП 902-5-36.86 ТХ-13 Разрезы 6-6;7-7;8-8;9-9 ТП 902-5-36.86 ТХ-14 Разрезы 10-10;11-11;12-12 ТП 902-5-36.86 ТХ-15 Технологическая обвязка вакуум-фильтра БСХОУ-40-3.0 ТП 902-5-36.86 ТХ-16 Технологическая обвязка вакуум-фильтра БСХОУ-40-3.0. Вид А ТП 902-5-36.86 ТХ-17 Технологическая обвязка вакуум-фильтра БСХОУ-40-3.0. План на отм. 0.000 ТП 902-5-36.86 ТХ-18 Схема И9,И16 ТП 902-5-36.86 ТХ-19 Схема А2 ТП 902-5-36.86 ТХ-20 Схема АО ТП 902-5-36.86 ТХ-21 Схема Х2 ТП 902-5-36.86 ТХ-22 Схема Х3 ТП 902-5-36.86 ТХ-23 Схема Х4 ТП 902-5-36.86 ТХ-24 Схема В3 ТП 902-5-36.86 ТХ-25 Схема И13,К3 ТП 902-5-36.86 ТХ-26 Линия транспорта обезвоженного осадка. Общий вид ТП 902-5-36.86 ТХ-27 Линия транспорта обезвоженного осадка. Выносные элементы. Разрезы ТП 902-5-36.86 ТХ-28 Линия транспорта обезвоженного осадка. Выносные элементы. Разрез ТП 902-5-36.86 ОВ Санитарно-техническая часть. Отопление и вентиляция ТП 902-5-36.86 ОВ-1 Общие данные ТП 902-5-36.86 ОВ-2 План на отм. -2.700;-3.000;0.000;3.600 ТП 902-5-36.86 ОВ-3 Схема системы отопления. Схемы систем П1;В1-В8;ВЕ1-ВЕ5. Узел управления ТП 902-5-36.86 ОВ-4 Установка системы П1. Схема системы теплоснабжения ТП 902-5-36.86 ОВ-5 Установка систем В4;В5;В6 ТП 902-5-36.86 ОВН-1 Конфузор ТП 902-5-36.86 ОВН-2 Переход ТП 902-5-36.86 ОВН-3 Воздуховод из асбестоцементных листов. Узлы соединения ТП 902-5-36.86 ОВН-4 Конструкция изоляции перехода ТП 902-5-36.86 ОВН-5 Конструкция изоляции трубопроводов ТП 902-5-36.86 ВК Водопровод и канализация ТП 902-5-36.86 ВК-1 Общие данные ТП 902-5-36.86 ВК-2 План на отм. 0.000 ТП 902-5-36.86 ВК-3 План на отм. 3.600 в осях А-В;1-5. Экспликация помещений ТП 902-5-36.86 ВК-4 План кровли ТП 902-5-36.86 ВК-5 Схема В1 ТП 902-5-36.86 ВК-6 Схемы Т3;Т4 и К1 ТП 902-5-36.86 ВК-7 Схема К2 |
| Разработан: | ЦНИИЭП |
| Утверждён: | 14.03.1986 Госгражданстрой (Gosgrazhdanstroy 88) |














































