Скачать Типовой проект 904-1-53.83 Альбом I. Технологические решения. Электротехническая часть. Автоматизация технологических процессов. Сигнализация и связьДата актуализации: 01.01.2021
|
| Обозначение: | Типовой проект 904-1-53.83 |
| Обозначение англ: | 904-1-53.83 |
| Статус: | действует |
| Название рус.: | Альбом I. Технологические решения. Электротехническая часть. Автоматизация технологических процессов. Сигнализация и связь |
| Дата добавления в базу: | 01.09.2013 |
| Дата актуализации: | 01.01.2021 |
| Дата введения: | 30.03.1983 |
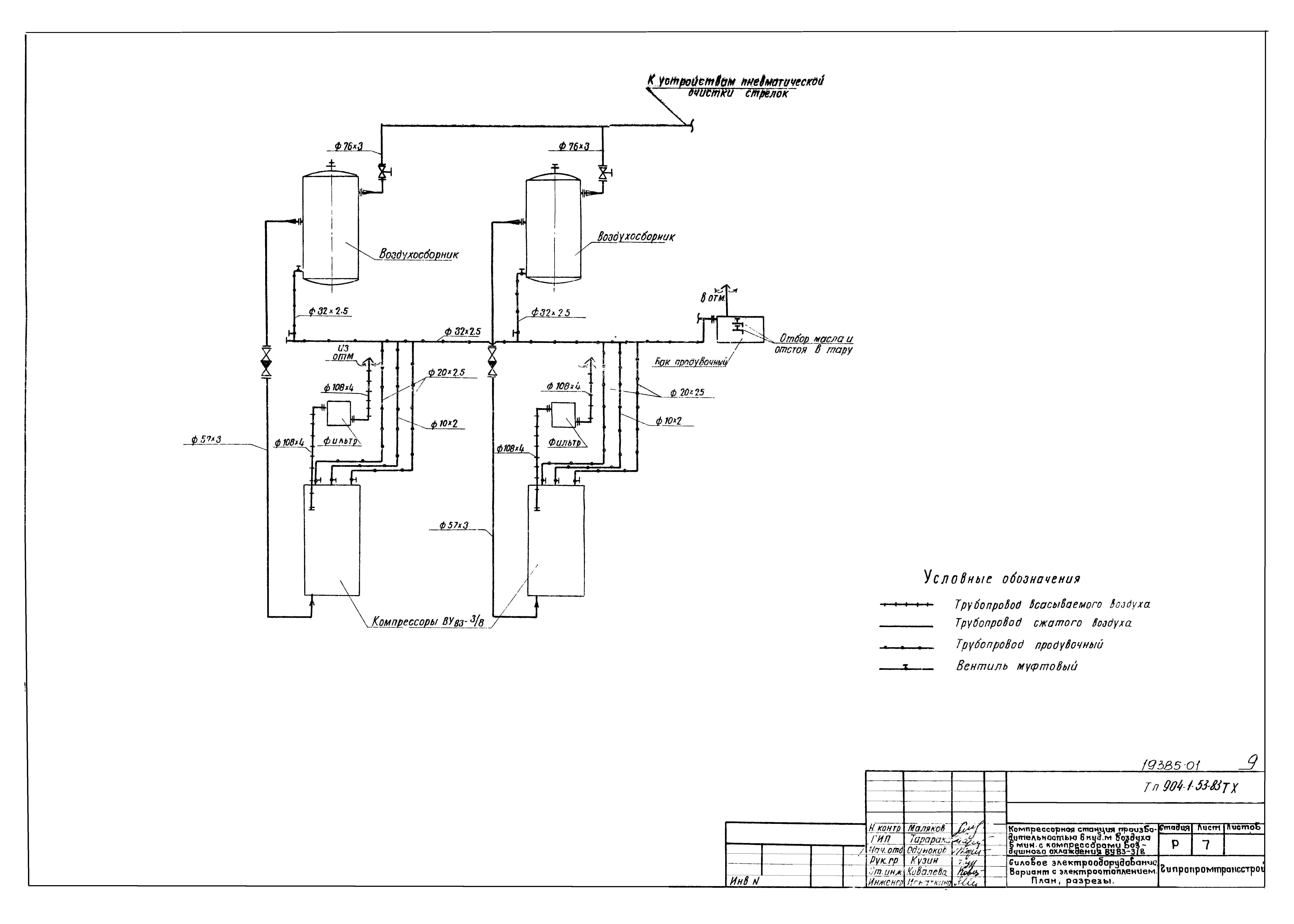
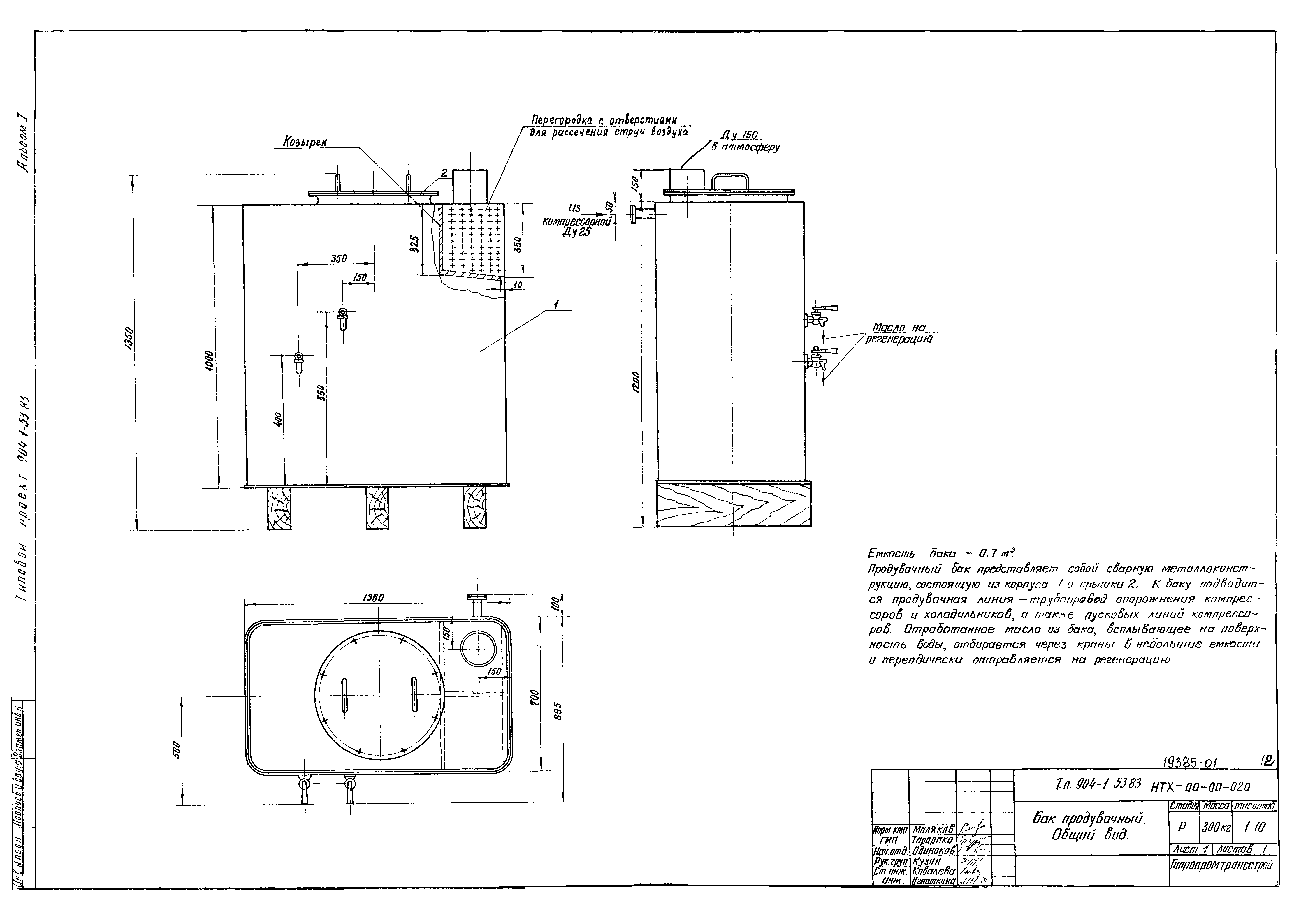
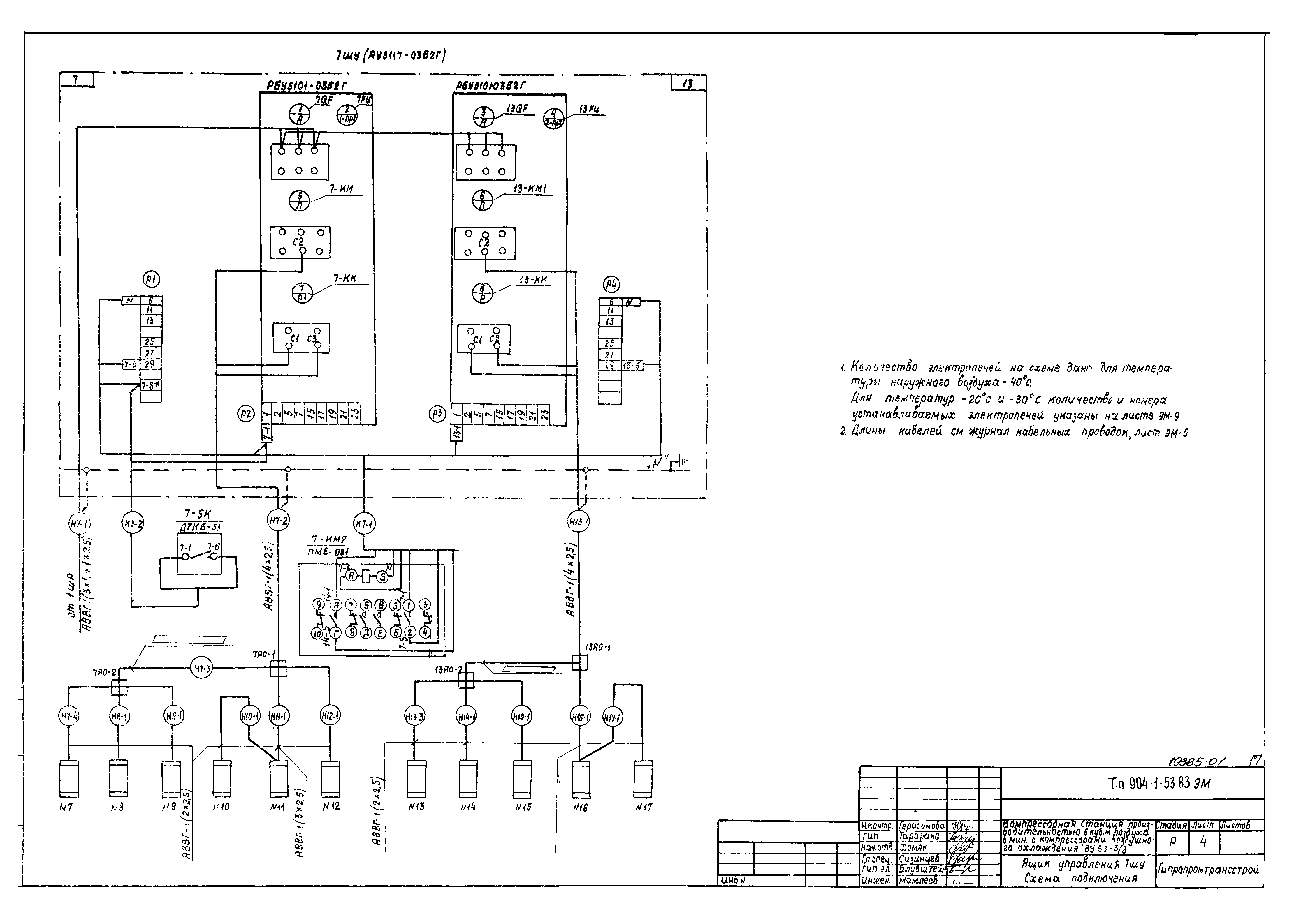
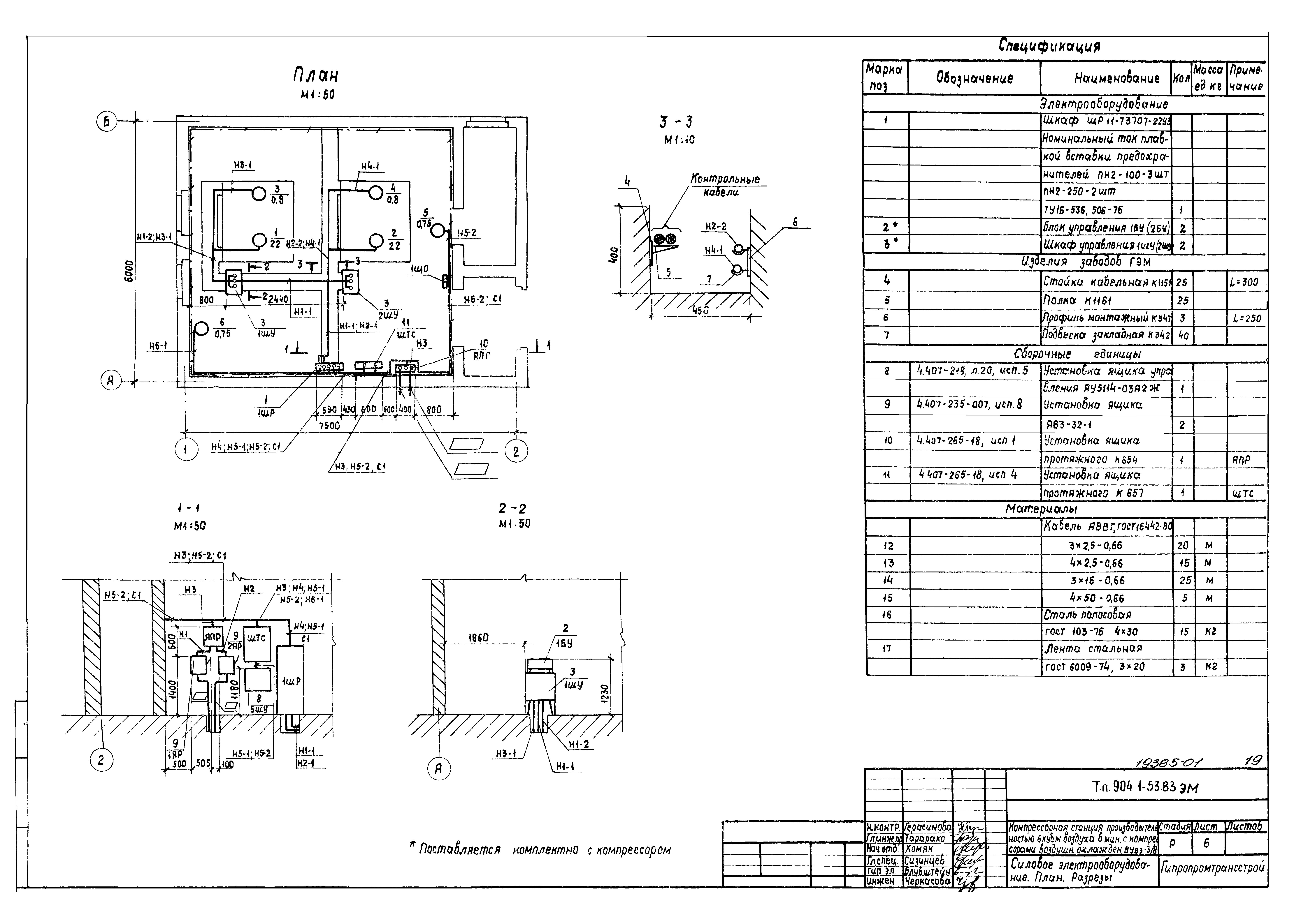
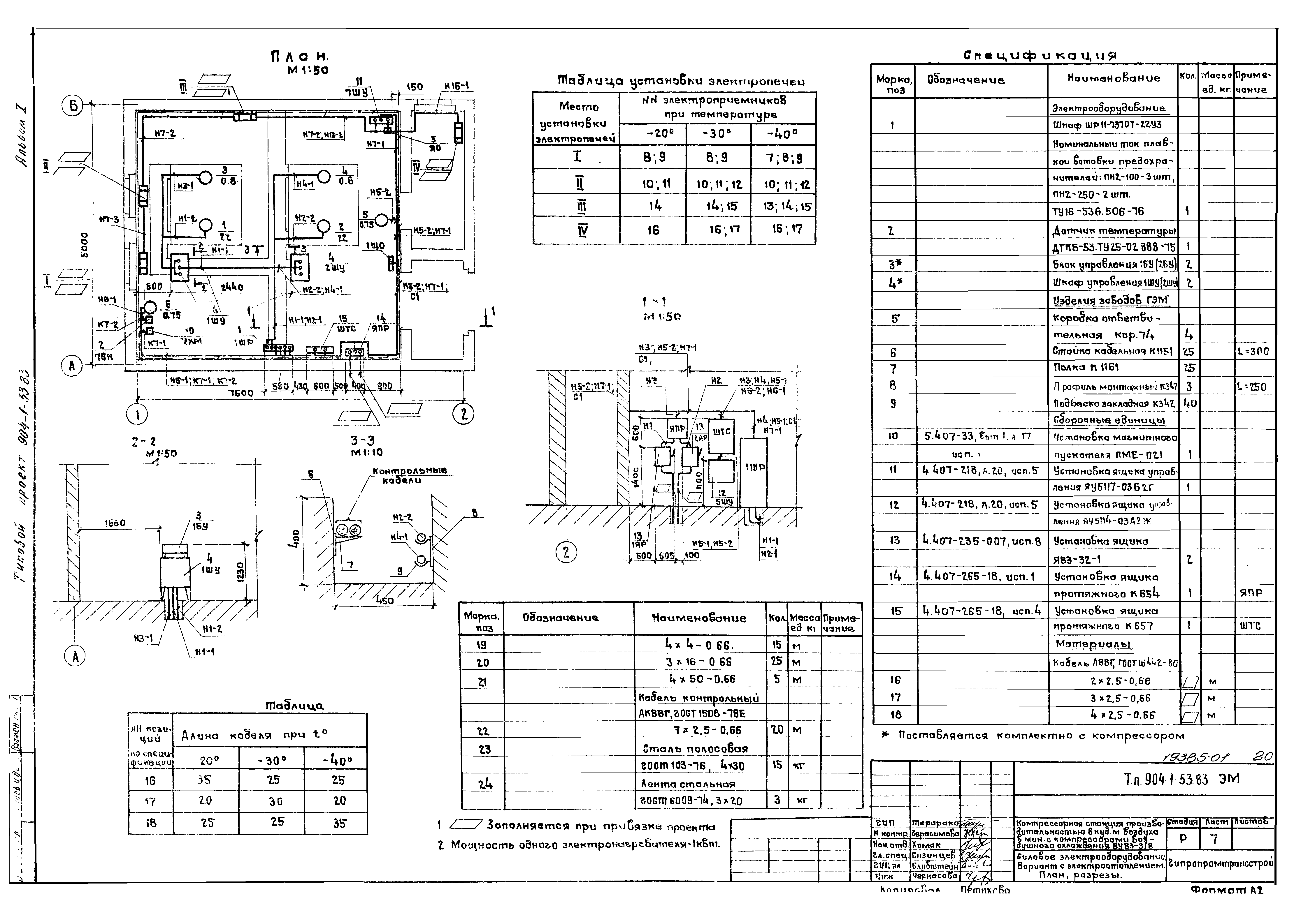
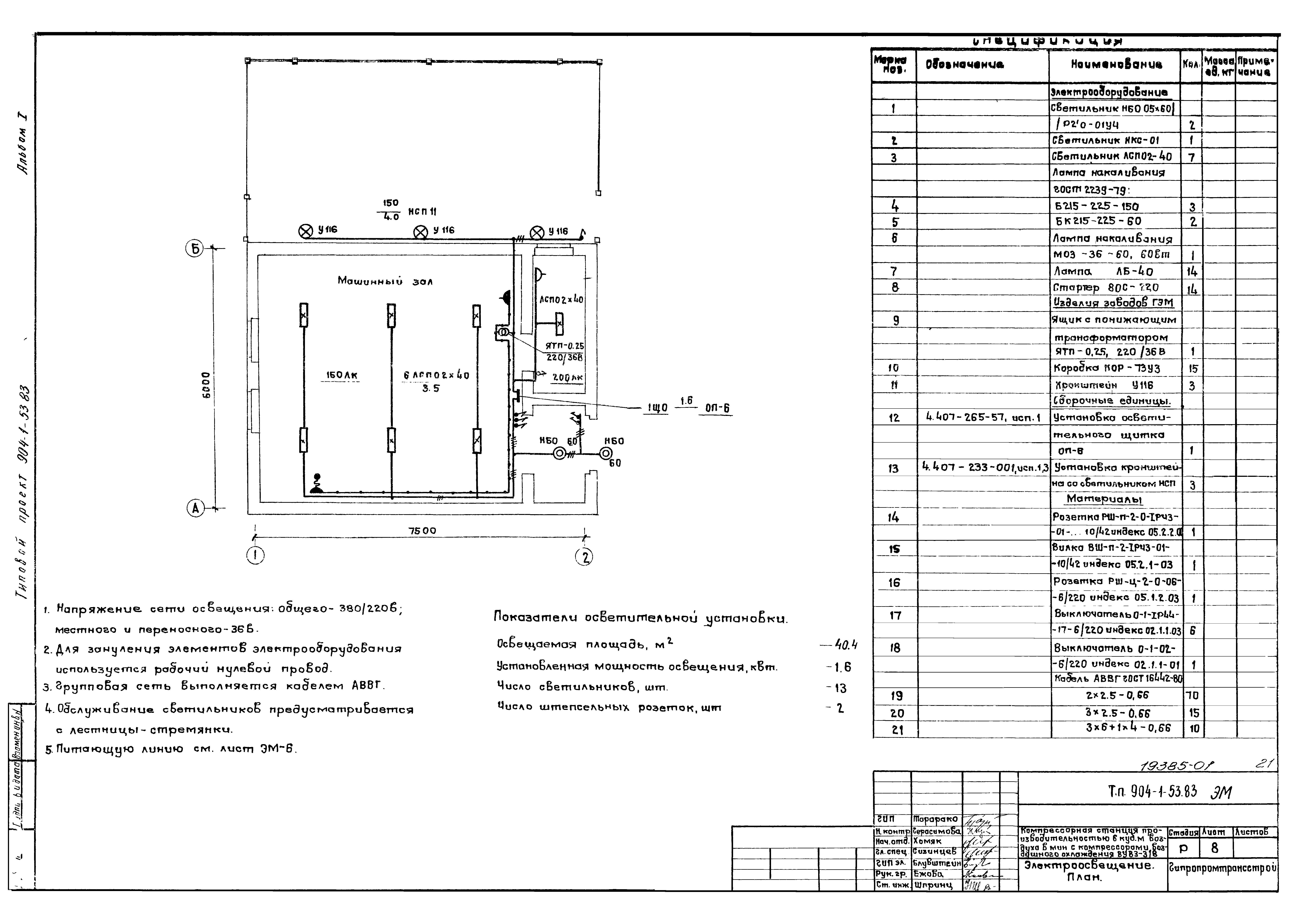
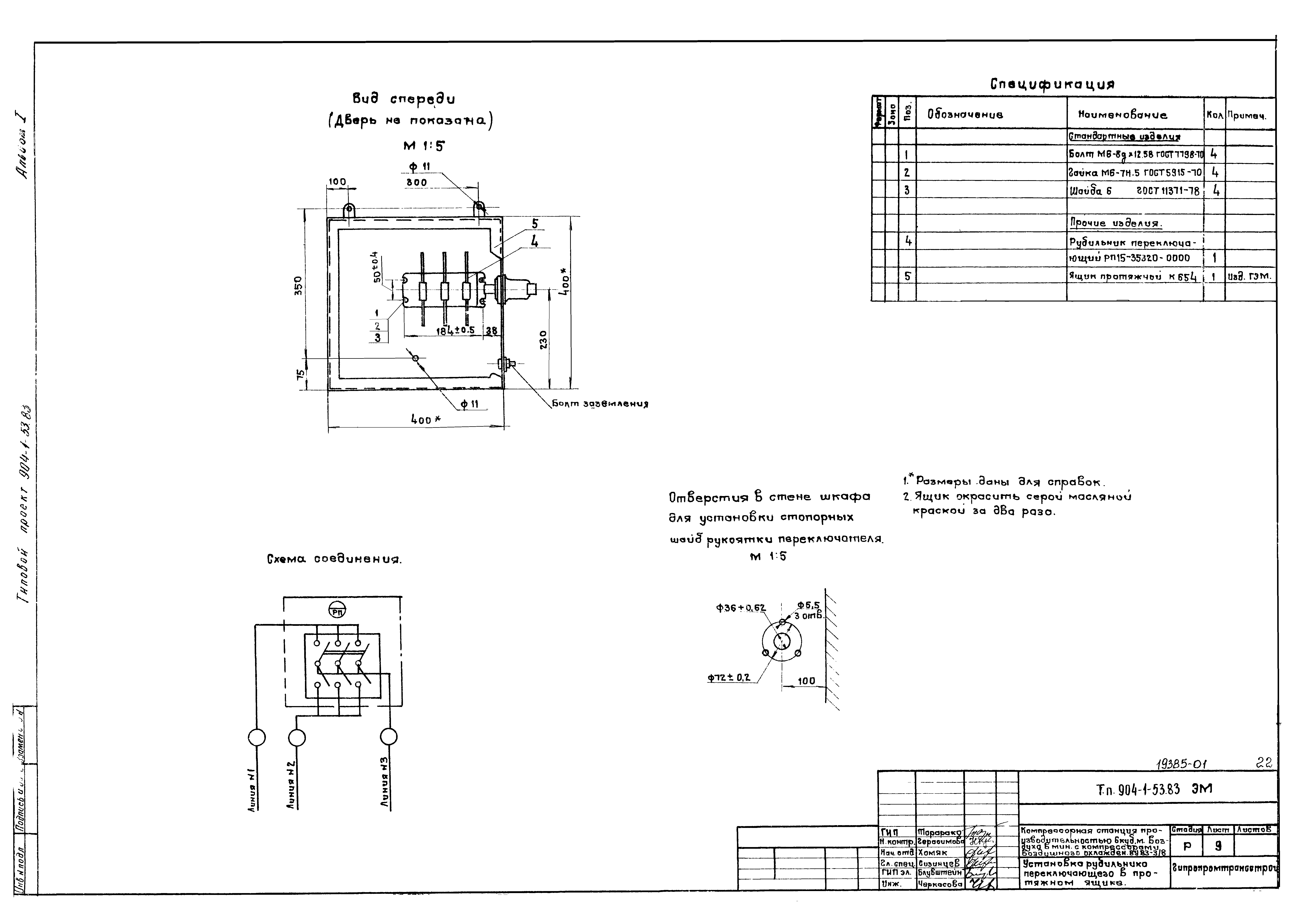
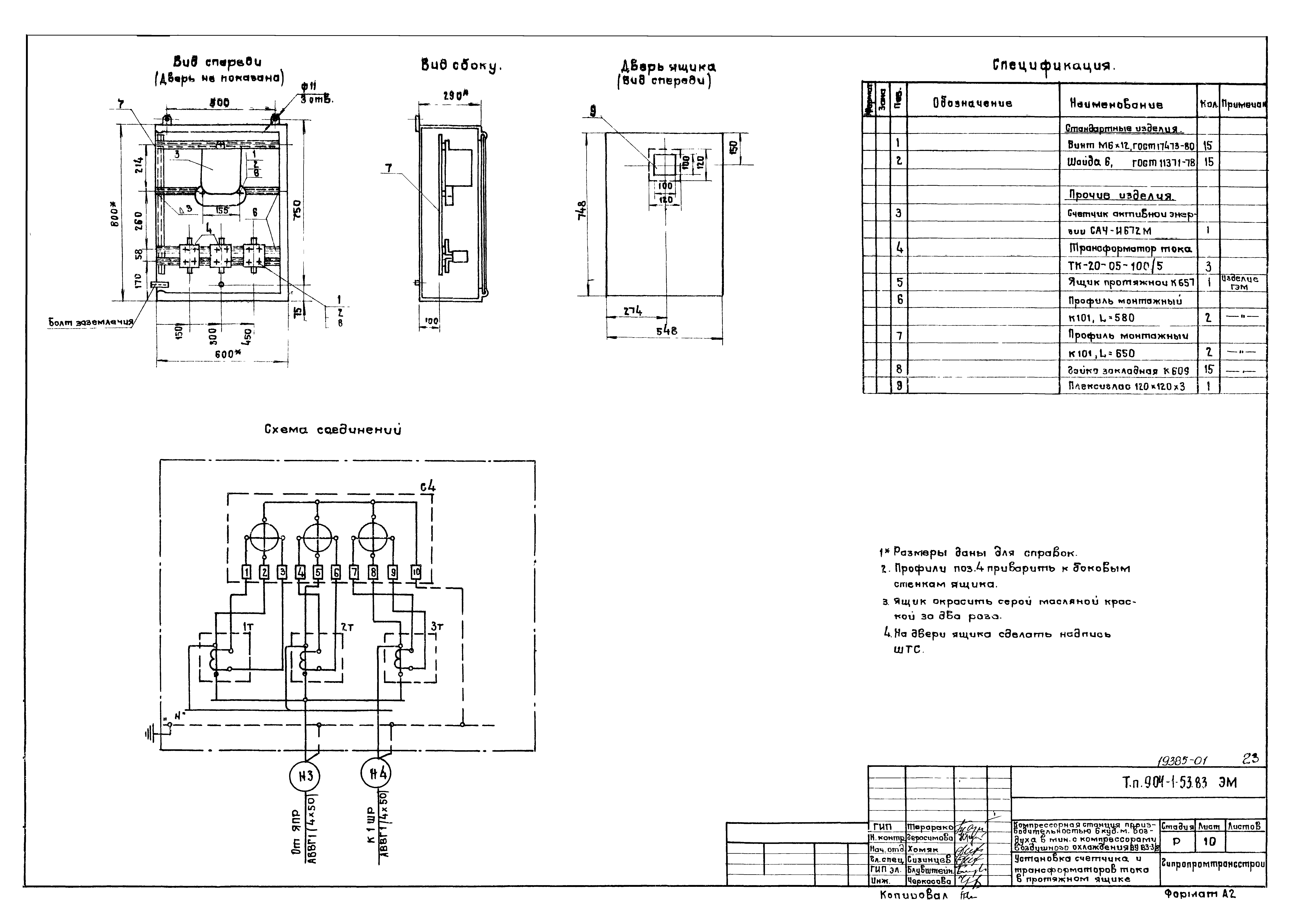
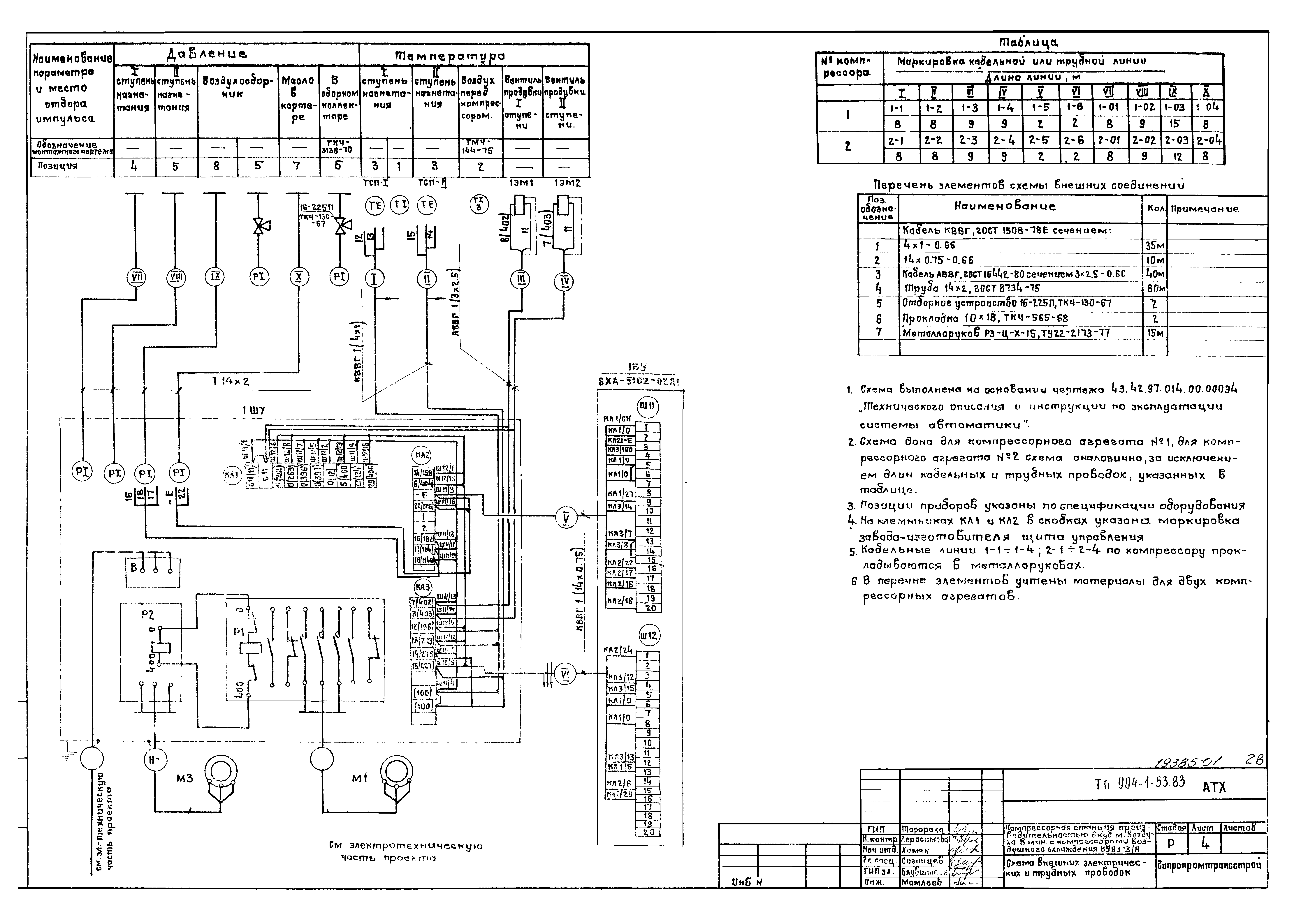
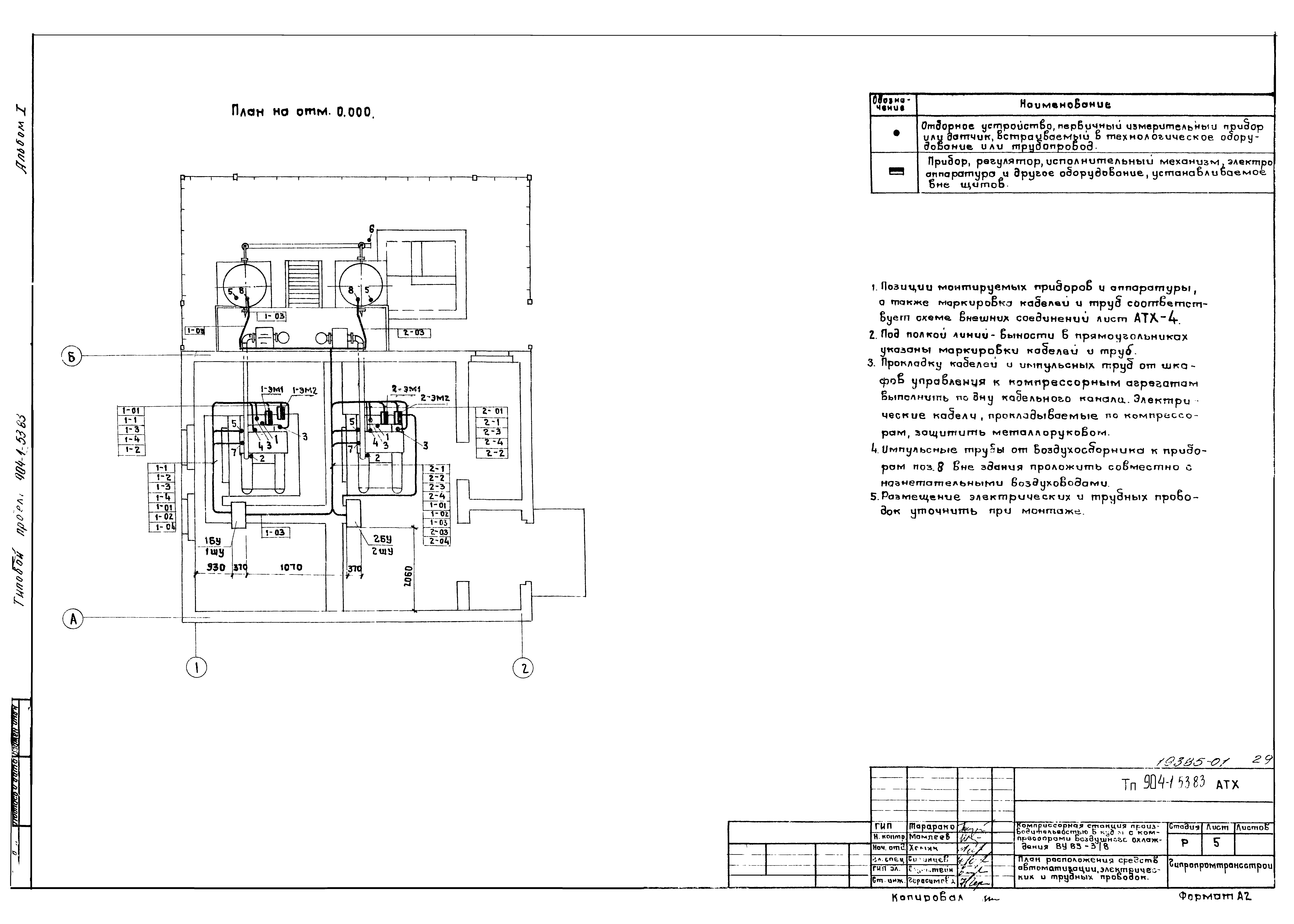
| Оглавление: | ТП 904-1-53.83 Титульный лист ТП 904-1-53.83 Опись альбома ТП 904-1-53.83 ПЗ1...3 Пояснительная записка ТП 904-1-53.83 ТХ Технологические решения ТП 904-1-53.83 ТХ-1 Общие данные ТП 904-1-53.83 ТХ-2 План на отм. 0.000 с расстановкой технологического оборудования. Разрезы А-А,Б-Б,В-В ТП 904-1-53.83 ТХ-3 Спецификация технологического оборудования, трубопроводов, арматуры и инвентаря ТП 904-1-53.83 ТХ-4 Принципиальная схема технологических трубопроводов ТП 904-1-53.83 ТХ-5 Техномонтажная ведомость на изоляционные работы ТП 904-1-53.83 НТХ-00-00-010 Фильтр воздушный. Общий вид ТП 904-1-53.83 НТХ-00-00-020 Бак продувочный. Общий вид ТП 904-1-53.83 НИХ-00-00-030 Всасывающая труба с насадкой и глушителем. Общий вид ТП 904-1-53.83 НТХ-00-00-040 Выхлопная труба продувочного бака. Общий вид ТП 904-1-53.83 ЭМ Электротехническая часть ТП 904-1-53.83 ЭМ-1 Общие данные ТП 904-1-53.83 ЭМ-2 Схема принципиальная однолинейная распределительной сети ТП 904-1-53.83 ЭМ-3 Управление электроотоплением. Схема электрическая принципиальная ТП 904-1-53.83 ЭМ-4 Ящик управления 7ШУ. Схема подключения ТП 904-1-53.83 ЭМ-5 Силовое электрооборудование. Журнал кабельных проводок ТП 904-1-53.83 ЭМ-6 Силовое электрооборудование. План. Разрезы ТП 904-1-53.83 ЭМ-7 Силовое электрооборудование. Вариант с электроотоплением. План. Разрезы ТП 904-1-53.83 ЭМ-8 Электроосвещение. План ТП 904-1-53.83 ЭМ-9 Установка рубильника переключающего в протяжном ящике ТП 904-1-53.83 ЭМ-10 Установка счетчика и трансформаторов тока в протяжном ящике ТП 904-1-53.83 ЭМ-11 Ведомости объемов работ и изделий МЭЗ ТП 904-1-53.83 АТХ Автоматизация технологических процессов ТП 904-1-53.83 АТХ-1 Общие данные ТП 904-1-53.83 АТХ-2 Управление компрессорным агрегатом. Схема функциональная ТП 904-1-53.83 АТХ-3 Управление компрессорным агрегатом. Схема электрическая, принципиальная ТП 904-1-53.83 АТХ-4 Схема внешних электрических и трубных проводок ТП 904-1-53.83 АТХ-5 План расположения средств автоматизации электрических и трубных проводок ТП 904-1-53.83 СС Сигнализация и связь ТП 904-1-53.83 СС-1 План слаботочных сетей. Общие данные. Спецификация |
| Разработан: | Гипропромтрансстрой |
| Утверждён: | 28.10.1980 МПС (Ministry of Railroads Ш-35604) |































