Скачать Типовой проект 904-1-58.85 Альбом 2. Силовое электрооборудование электрическое. Освещение, связь и сигнализацияДата актуализации: 01.01.2021
|
| Обозначение: | Типовой проект 904-1-58.85 |
| Обозначение англ: | 904-1-58.85 |
| Статус: | не действует |
| Название рус.: | Альбом 2. Силовое электрооборудование электрическое. Освещение, связь и сигнализация |
| Дата добавления в базу: | 01.09.2013 |
| Дата актуализации: | 01.01.2021 |
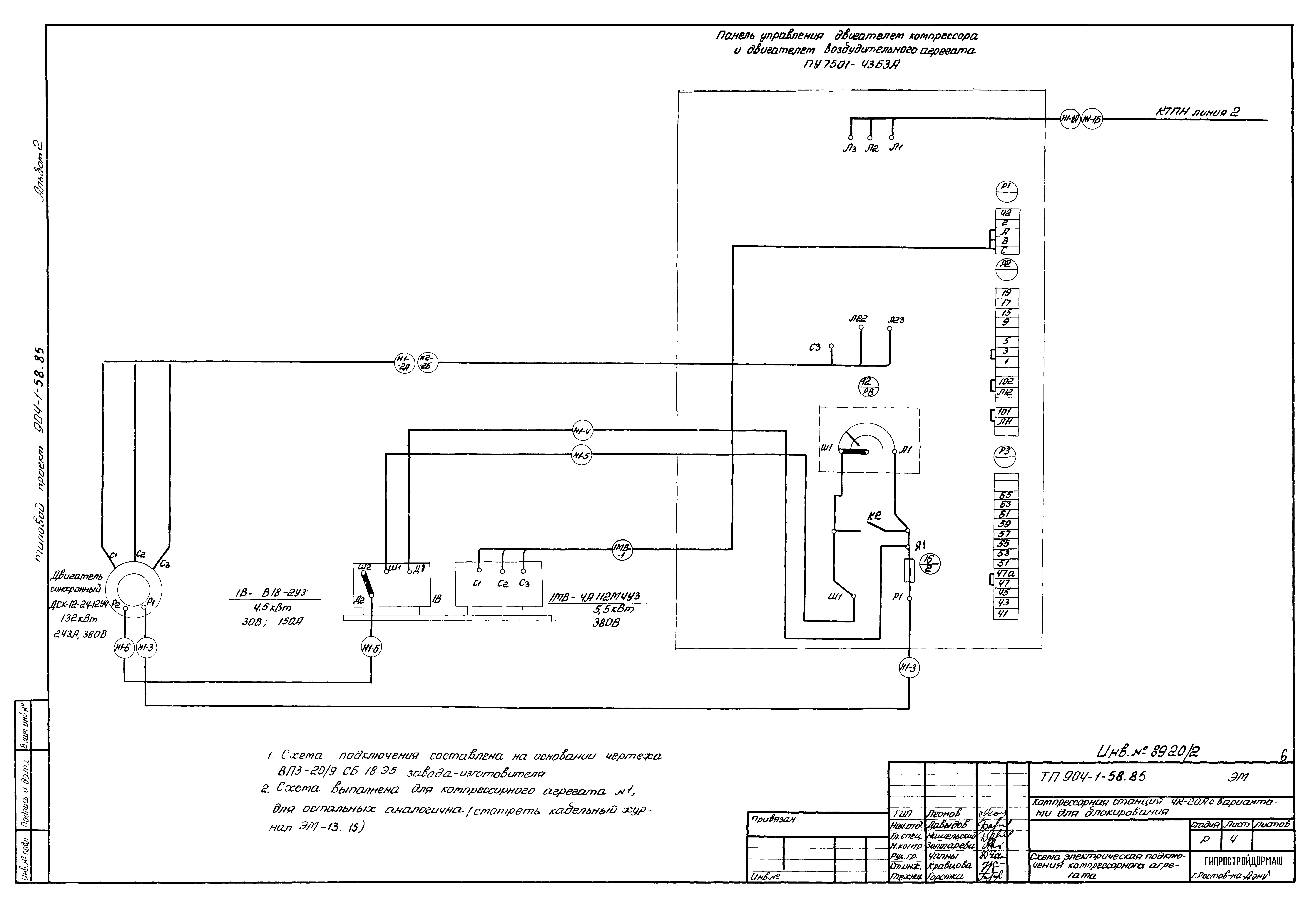
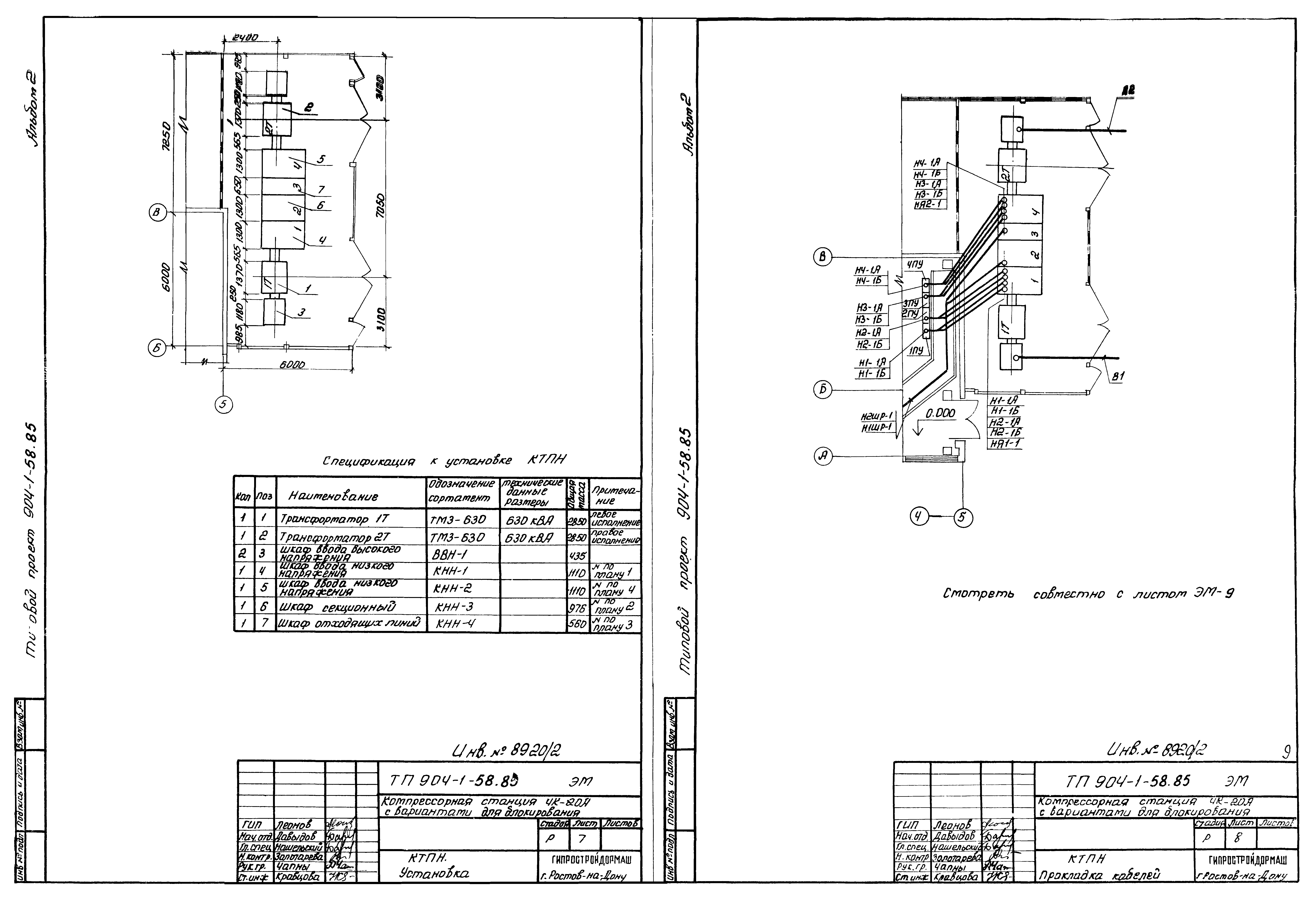
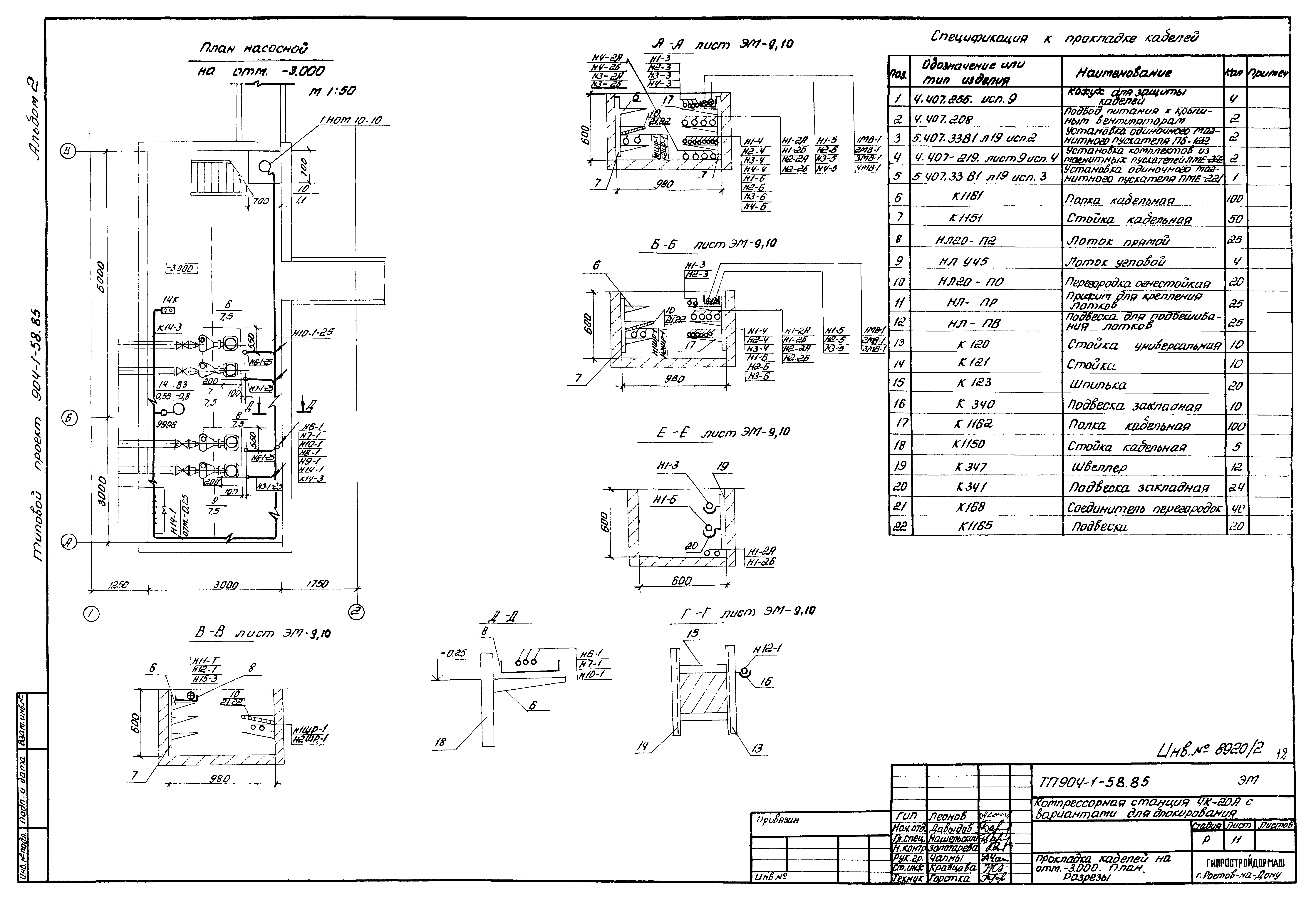
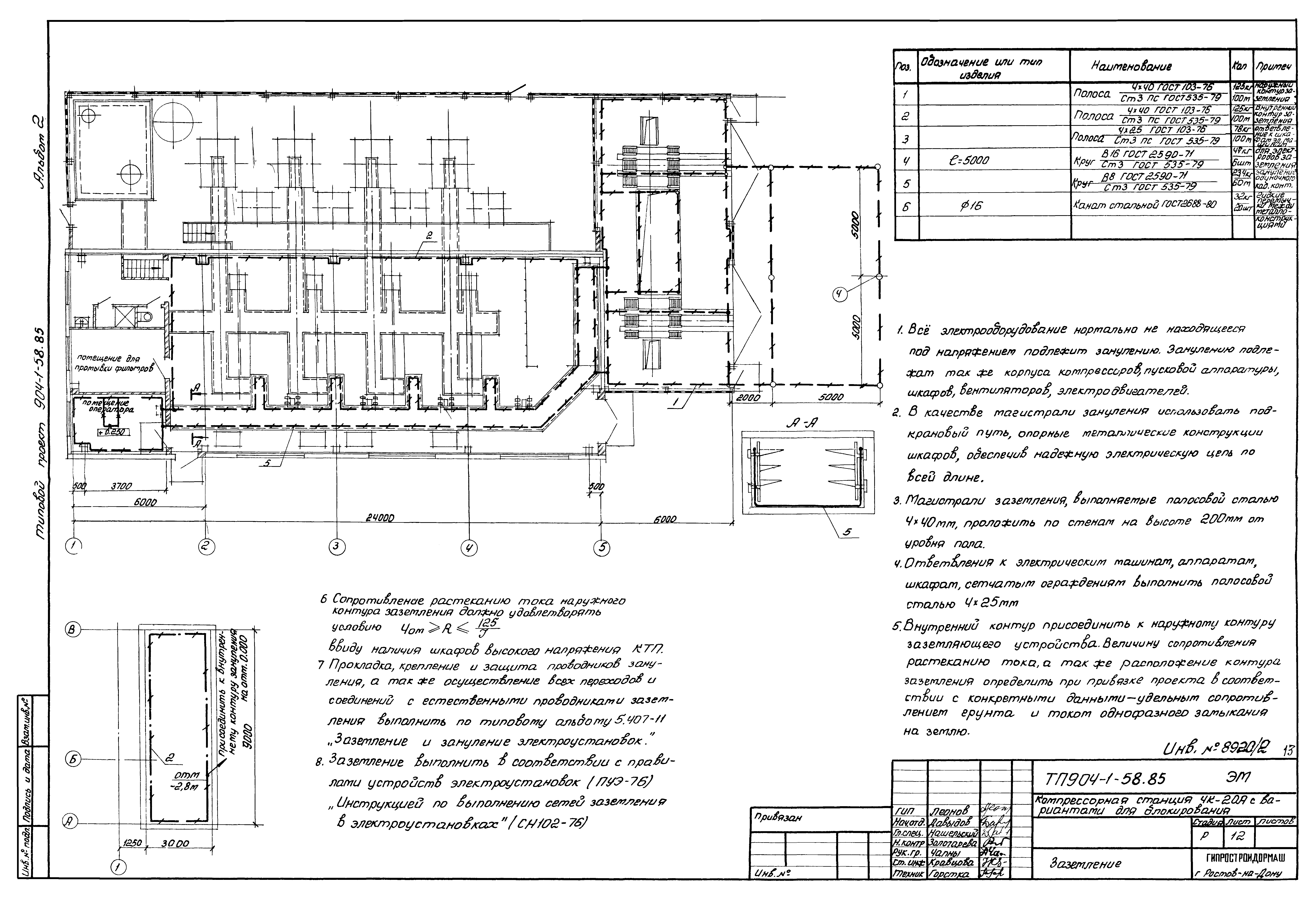
| Оглавление: | ТП 904-1-58.85 Титульный лист ТП 904-1-58.85 Содержание альбома ТП 904-1-58.85-ЭМ Общие данные ТП 904-1-58.85-ЭМ Таблица технических данных электроприемников ТП 904-1-58.85-ЭМ Схема электрическая подключения компрессорного агрегата ТП 904-1-58.85-ЭМ Комплектная трансформаторная подстанция КТПН. Принципиальная однолинейная схема ТП 904-1-58.85-ЭМ Шкафы распределительные 1ШР,2ШР. Расчетная схема ТП 904-1-58.85-ЭМ КТПН. Установка ТП 904-1-58.85-ЭМ КТПН. Прокладка кабелей ТП 904-1-58.85-ЭМ Прокладка кабелей на отм. 000. План. Вариант 1 ТП 904-1-58.85-ЭМ Прокладка кабелей на отм. 0.000. План. Вариант 2 ТП 904-1-58.85-ЭМ Прокладка кабелей на отм. 3.000. План. Разрезы ТП 904-1-58.85-ЭМ Заземление ТП 904-1-58.85-ЭМ Кабельный журнал ТП 904-1-58.85-ЭМ Вытяжная установка В2. Электрические схемы ТП 904-1-58.85-ЭМ Комплектная трансформаторная подстанция КТПН-2х630. Опросный лист ТП 904-1-58.85-ЭМ Ведомость потребности в кабелях и проводах с использованием меди ТП 904-1-58.85-ЭО Электроосвещение ТП 904-1-58.85-ЭО Общие данные ТП 904-1-58.85-ЭО Рабочее электроосвещение. План на отм. 0.000, -3.000 ТП 904-1-58.85-ЭО Аварийное и ремонтное электроосвещение. План на отм. 0.000 ТП 904-1-58.85-ЭО Разрезы ТП 904-1-58.85-ЭО Питательная сеть 380В. Принципиальная схема ТП 904-1-58.85-СС Связь и сигнализация ТП 904-1-58.85-СС Общие данные ТП 904-1-58.85-СС План расположения сети ТП 904-1-58.85-СС Схемы расположения сетей |
| Разработан: | Гипростройдормаш |
| Утверждён: | 27.09.1984 Минстройдормаш (Minstroydormash 16/84) |
| Заменяет собой: |






























