Скачать Типовой проект 904-1-58.85 Альбом 3. Автоматизация и КИПДата актуализации: 01.01.2021
|
| Обозначение: | Типовой проект 904-1-58.85 |
| Обозначение англ: | 904-1-58.85 |
| Статус: | не действует |
| Название рус.: | Альбом 3. Автоматизация и КИП |
| Дата добавления в базу: | 01.09.2013 |
| Дата актуализации: | 01.01.2021 |
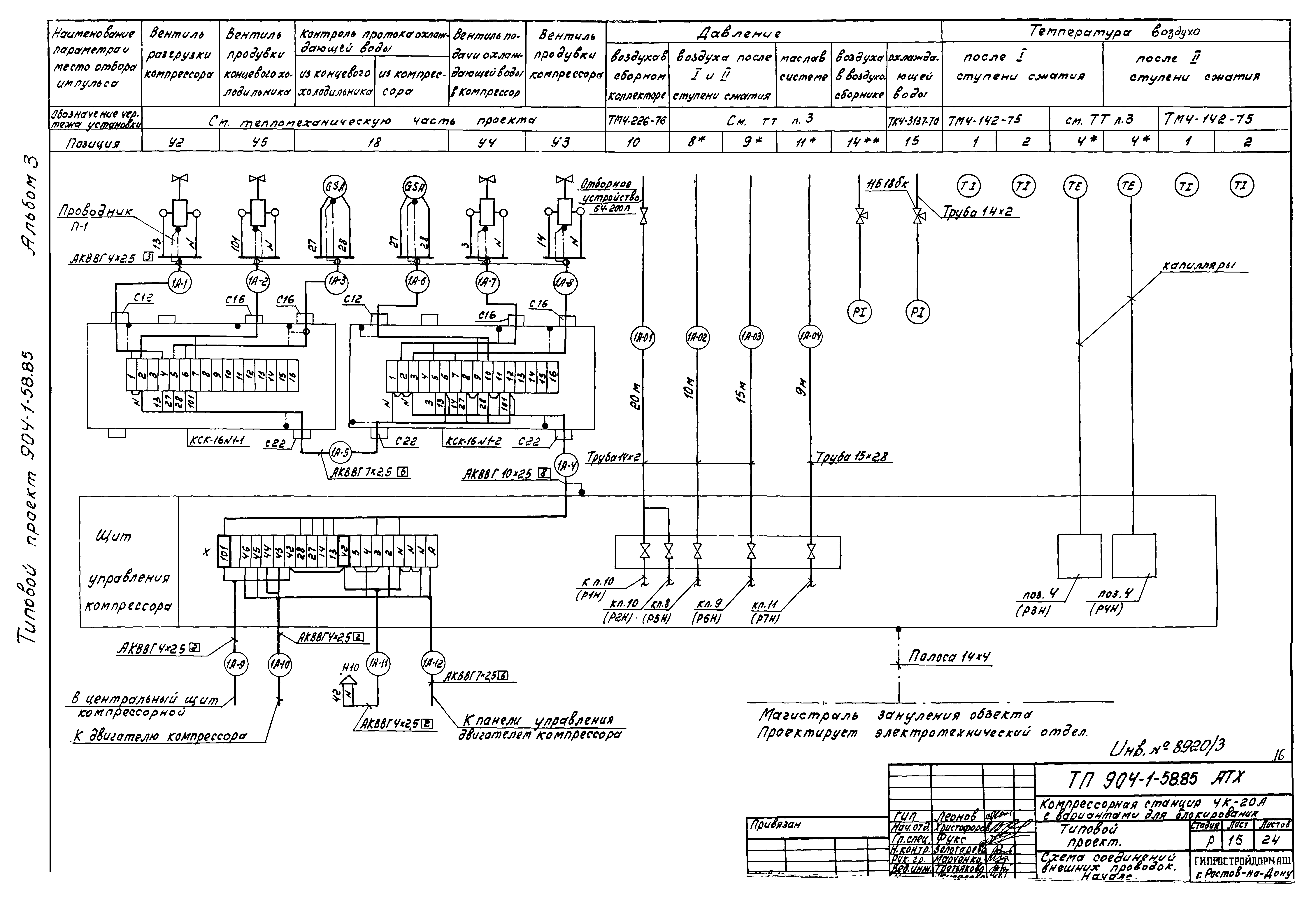
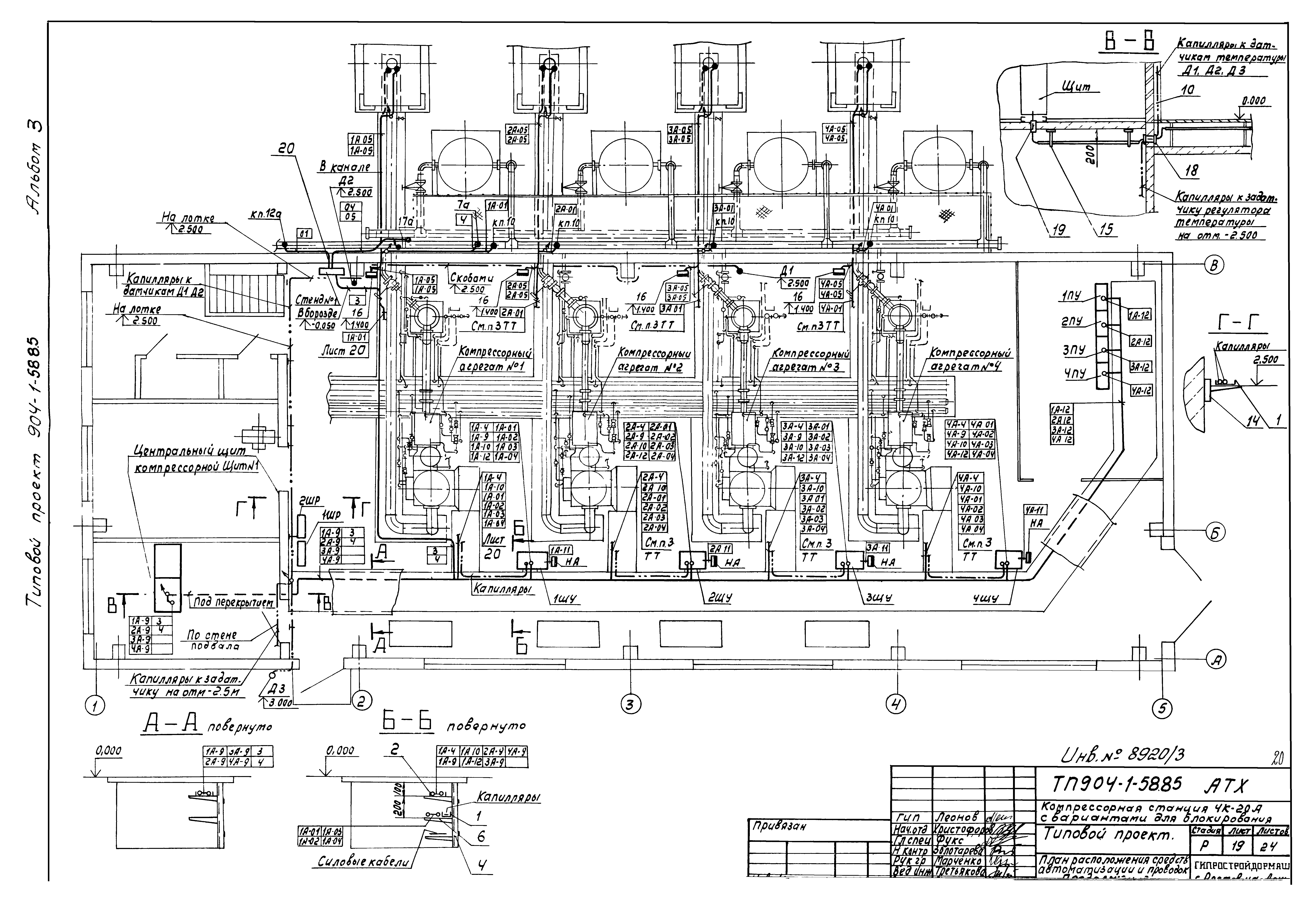
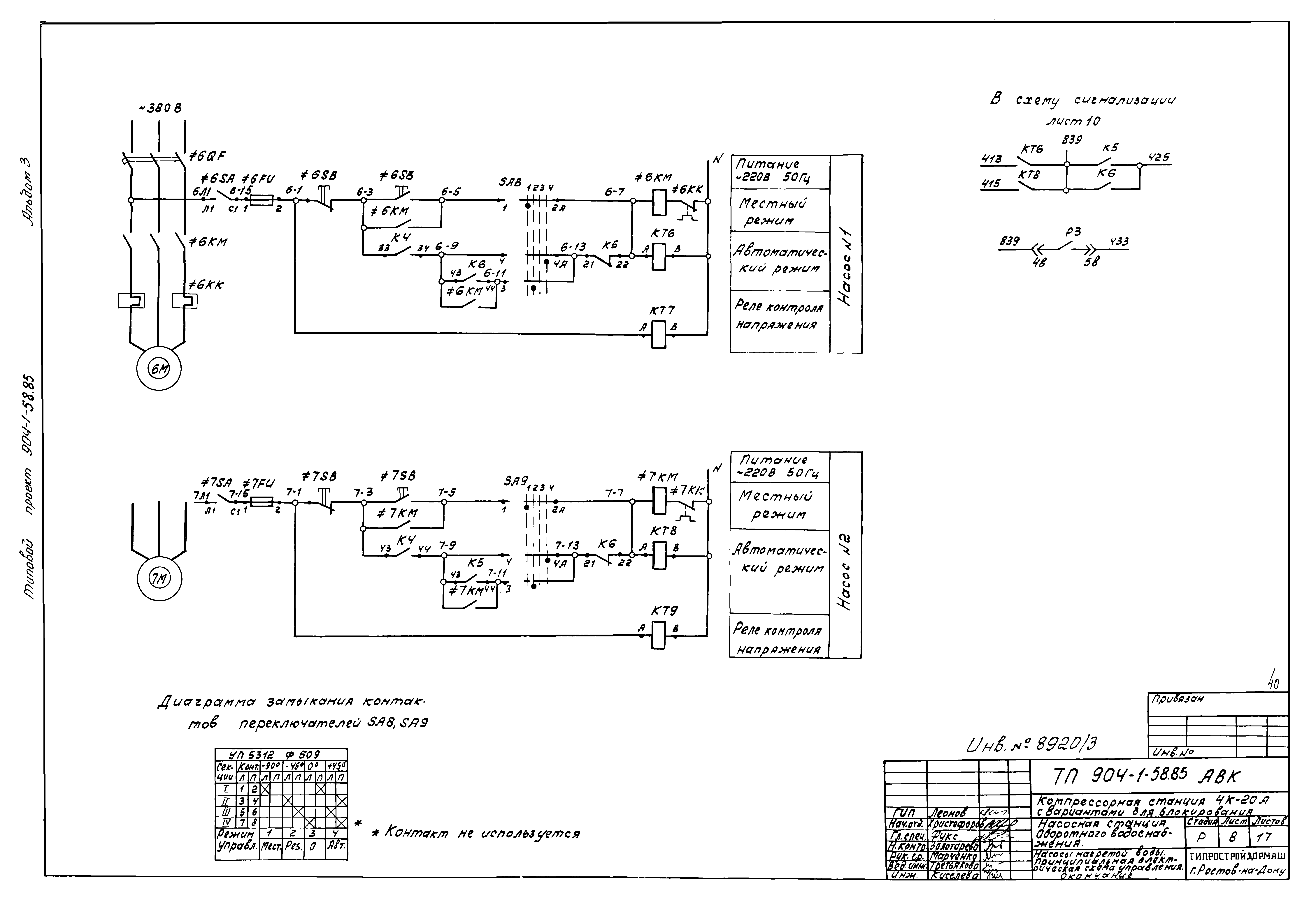
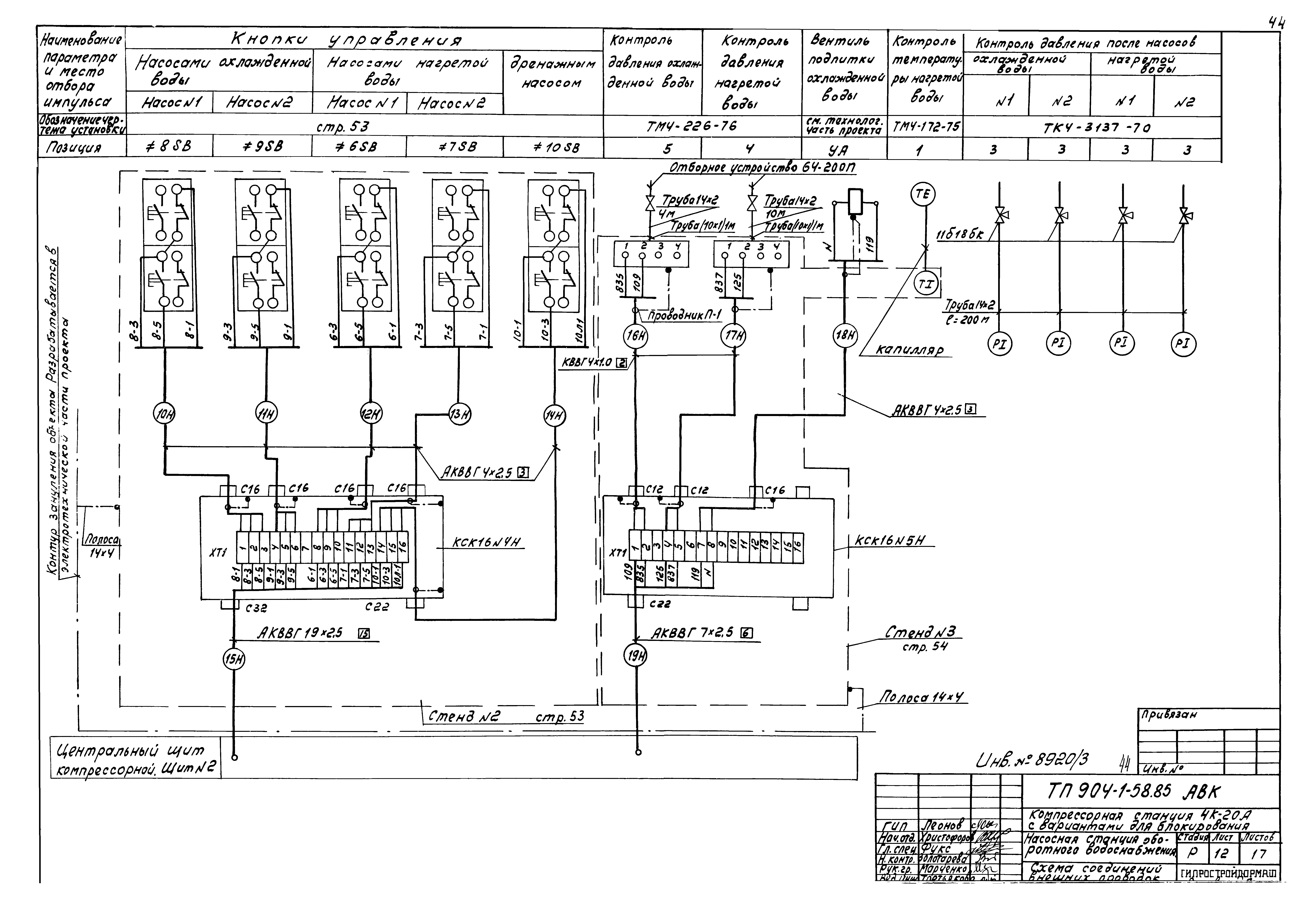
| Оглавление: | ТП 904-1-53.83 Титульный лист ТП 904-1-53.83 Опись альбома ТП 904-1-53.83-ТХ.ВМ ВМ по рабочим чертежам основного комплекта марки ТХ ТП 904-1-53.83-АР.ВМ ВМ по рабочим чертежам основного комплекта марки АР ТП 904-1-53.83-КЖ.ВМ1 ВМ по рабочим чертежам основного комплекта марки КЖ. Монолитные конструкции ТП 904-1-53.83-КЖ.ВМ2 ВМ по рабочим чертежам основного комплекта марки КЖ. Сборные конструкции ТП 904-1-53.83-КЖ.ВМ2 ВМ по рабочим чертежам основного комплекта марки КЖ. Сборные конструкции. ТП 904-1-53.83-ОВ.ВМ ВМ по рабочим чертежам основного комплекта марки ОВ (вариант: теплоноситель - вода) ТП 904-1-53.83-ОВ.ВМ ВМ по рабочим чертежам основного комплекта марки ОВ (вариант: теплоноситель - электроэнергия) ТП 904-1-53.83-ЭМ.ВМ ВМ по рабочим чертежам основного комплекта марки ЭМ. Силовое электрооборудование. Вариант с электроотоплением ТП 904-1-53.83-ЭМ.ВМ ВМ по рабочим чертежам основного комплекта марки ЭМ. Силовое электрооборудование. Вариант без электроотопления ТП 904-1-53.83-ЭМ.ВМ ВМ по рабочим чертежам основного комплекта марки ЭМ. Электроосвещение ТП 904-1-53.83-СС.ВМ ВМ по рабочим чертежам основного комплекта марки СС |
| Разработан: | Гипростройдормаш |
| Утверждён: | 27.09.1984 Минстройдормаш (Minstroydormash 16/84) |
| Заменяет собой: |
























































































