Скачать Типовой проект 904-1-65.86 Альбом 1. Технология производстваДата актуализации: 01.01.2021
|
| Обозначение: | Типовой проект 904-1-65.86 |
| Обозначение англ: | 904-1-65.86 |
| Статус: | не действует |
| Название рус.: | Альбом 1. Технология производства |
| Дата добавления в базу: | 01.09.2013 |
| Дата актуализации: | 01.01.2021 |
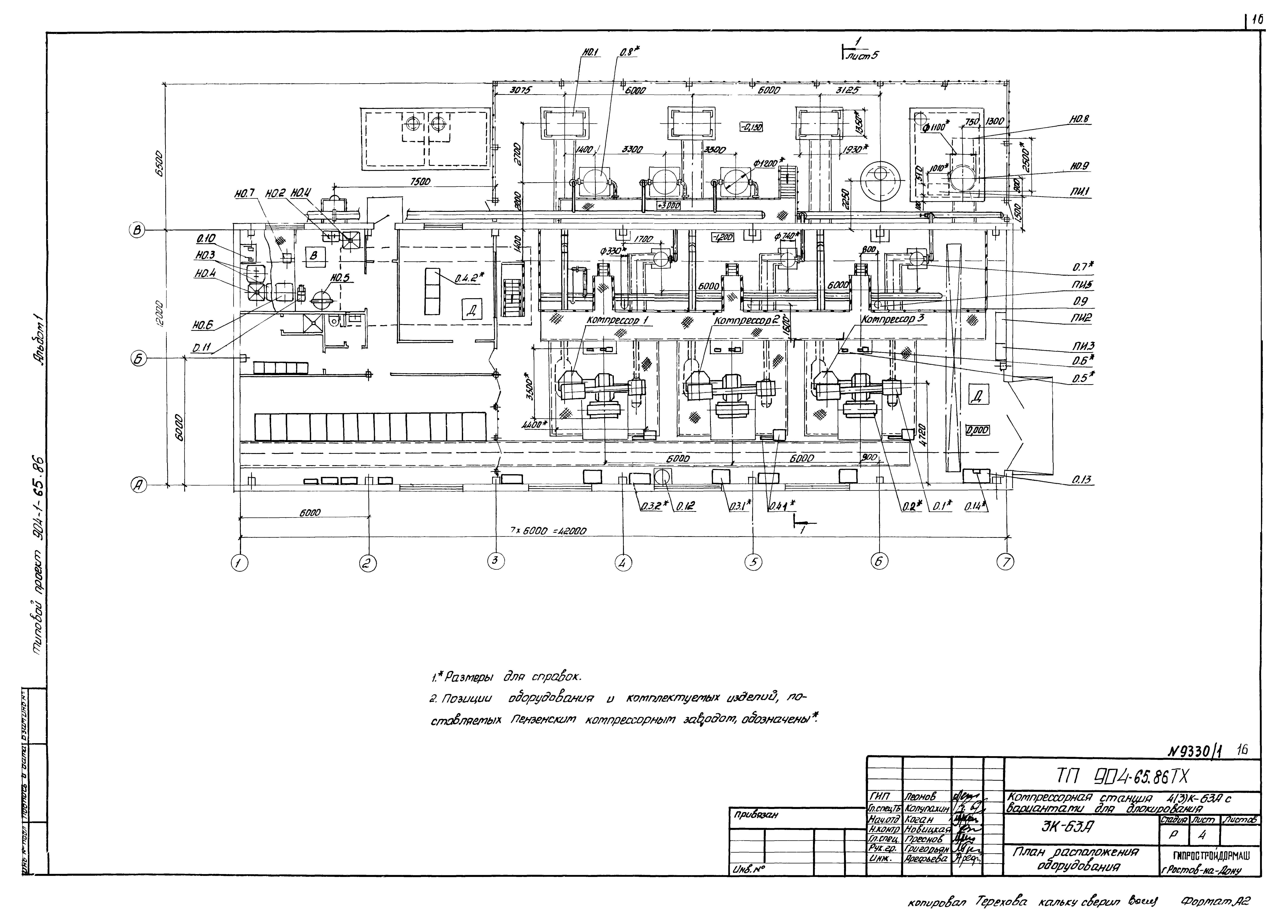
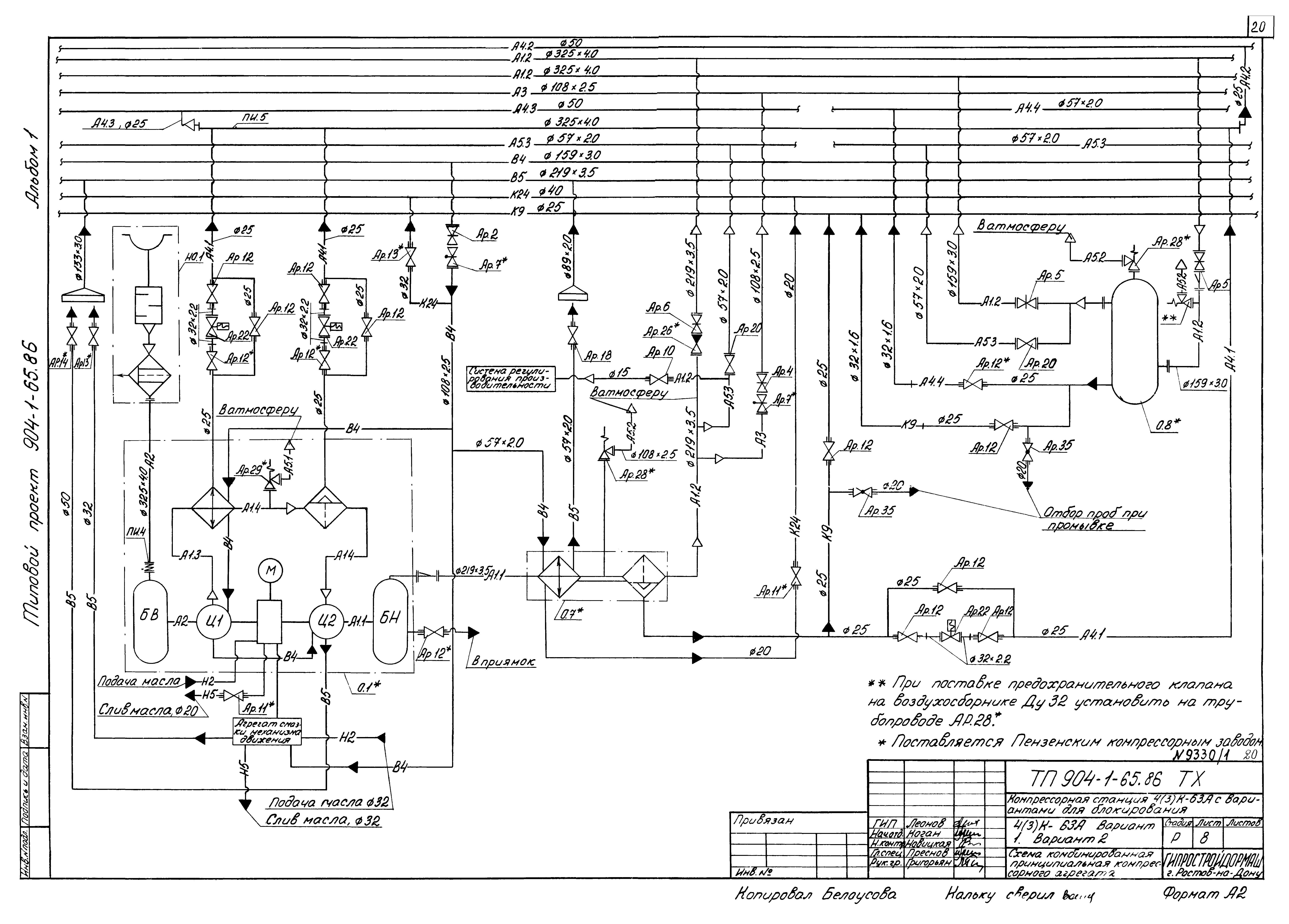
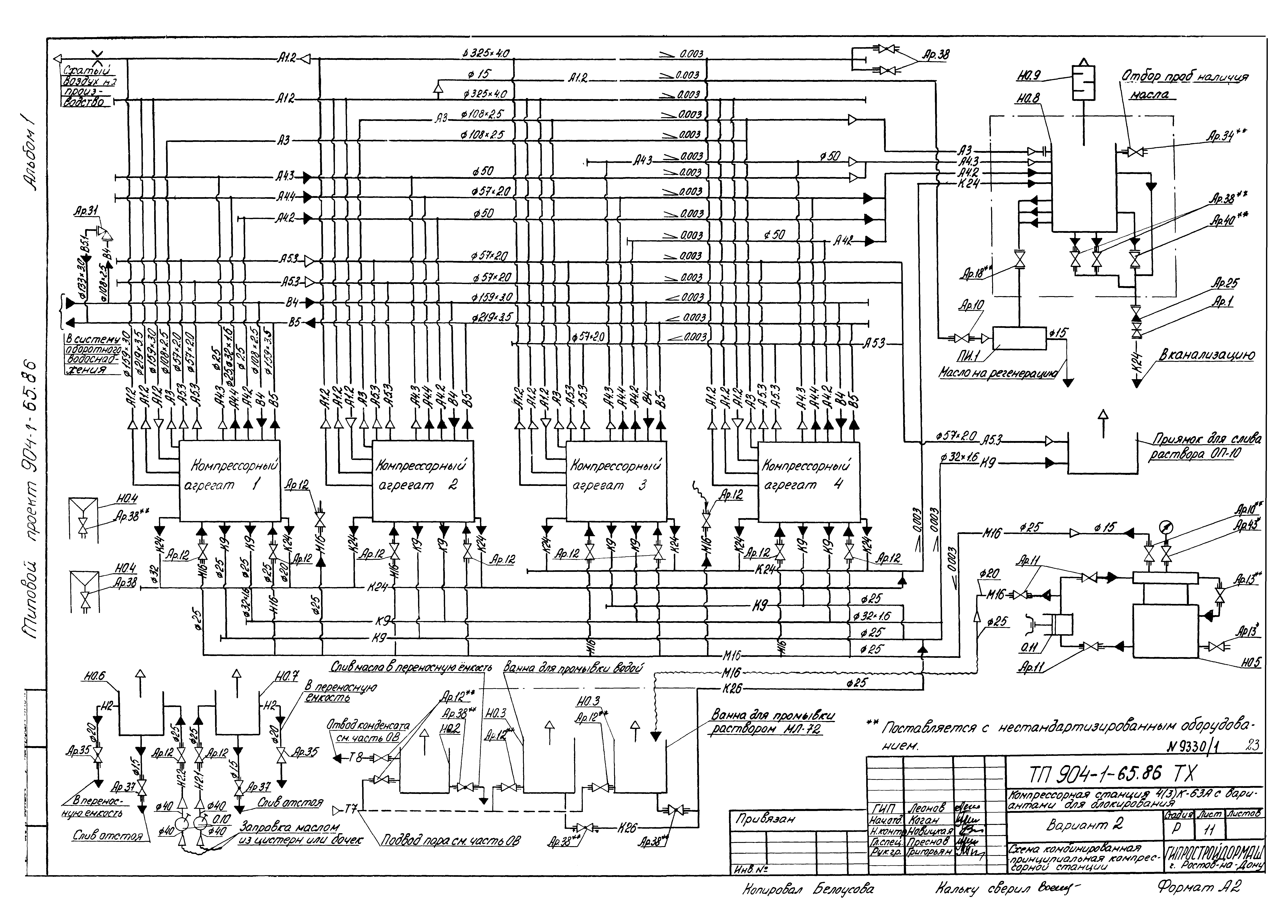
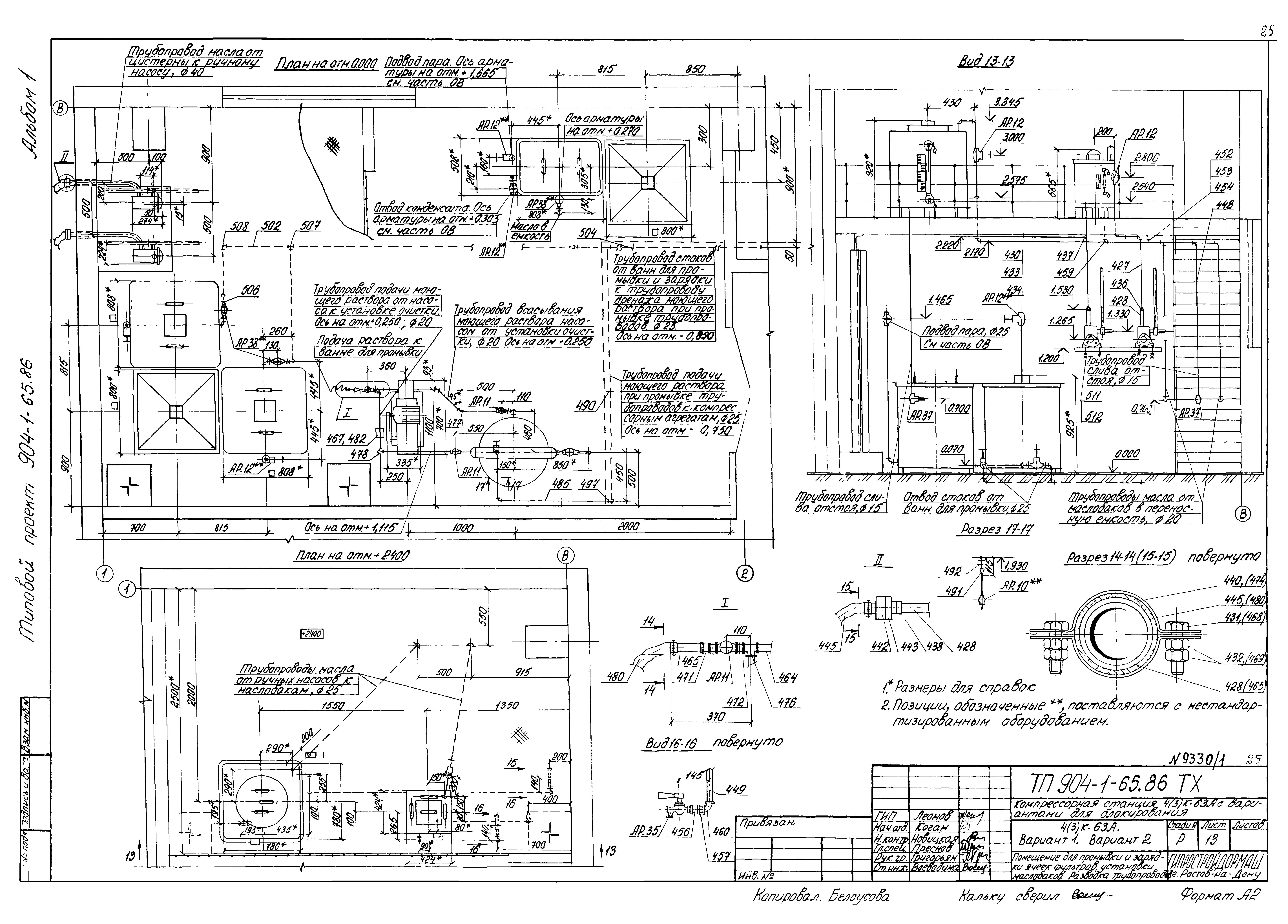
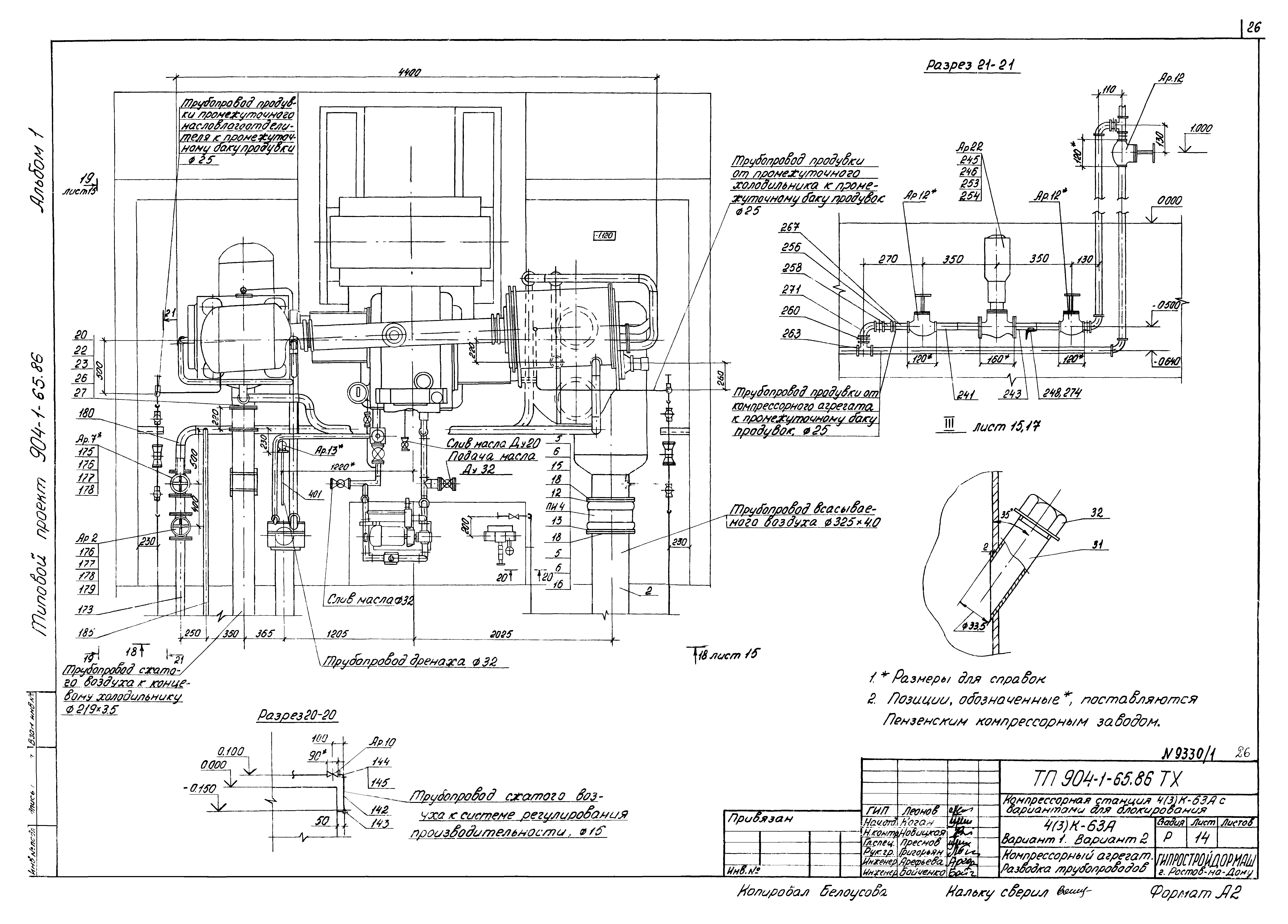
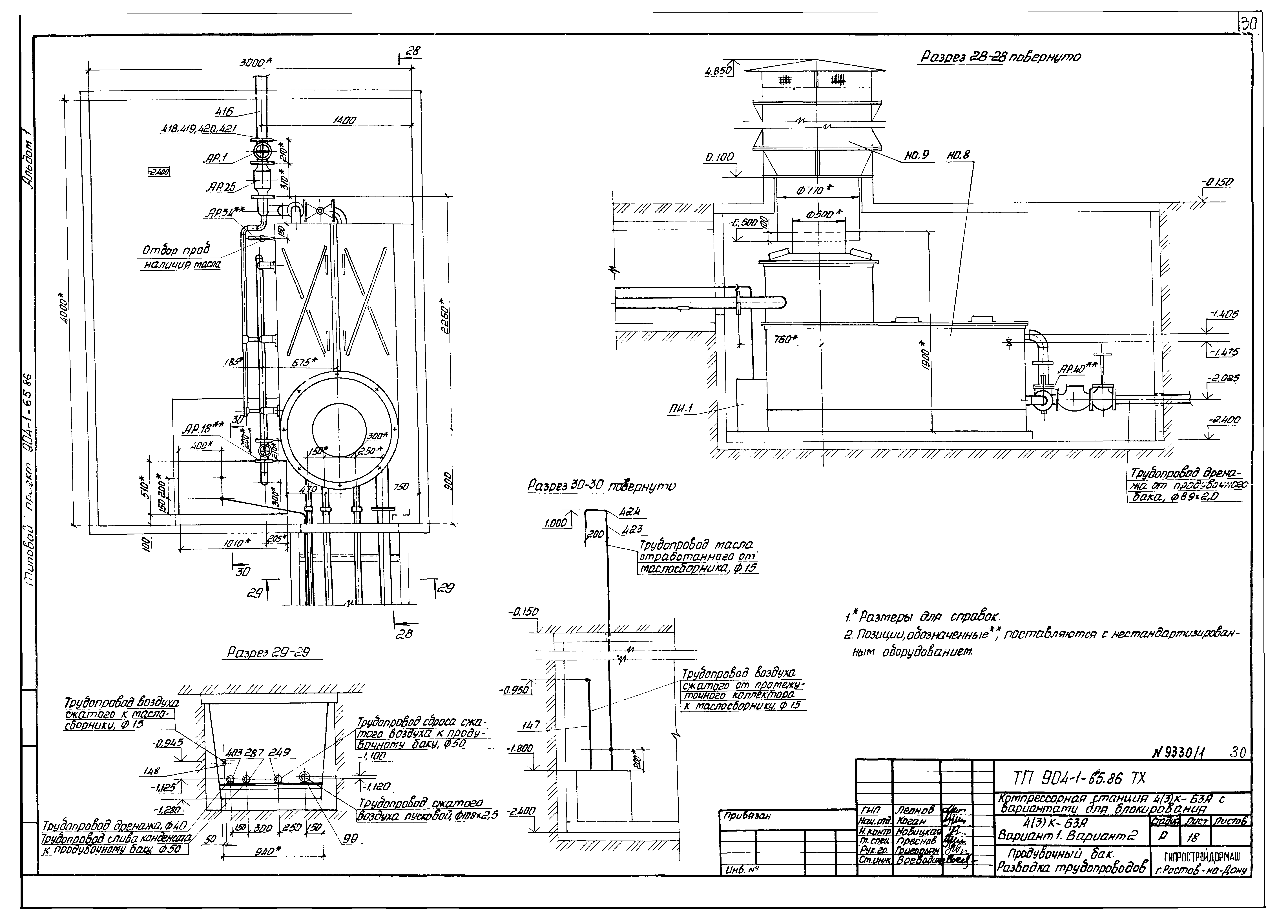
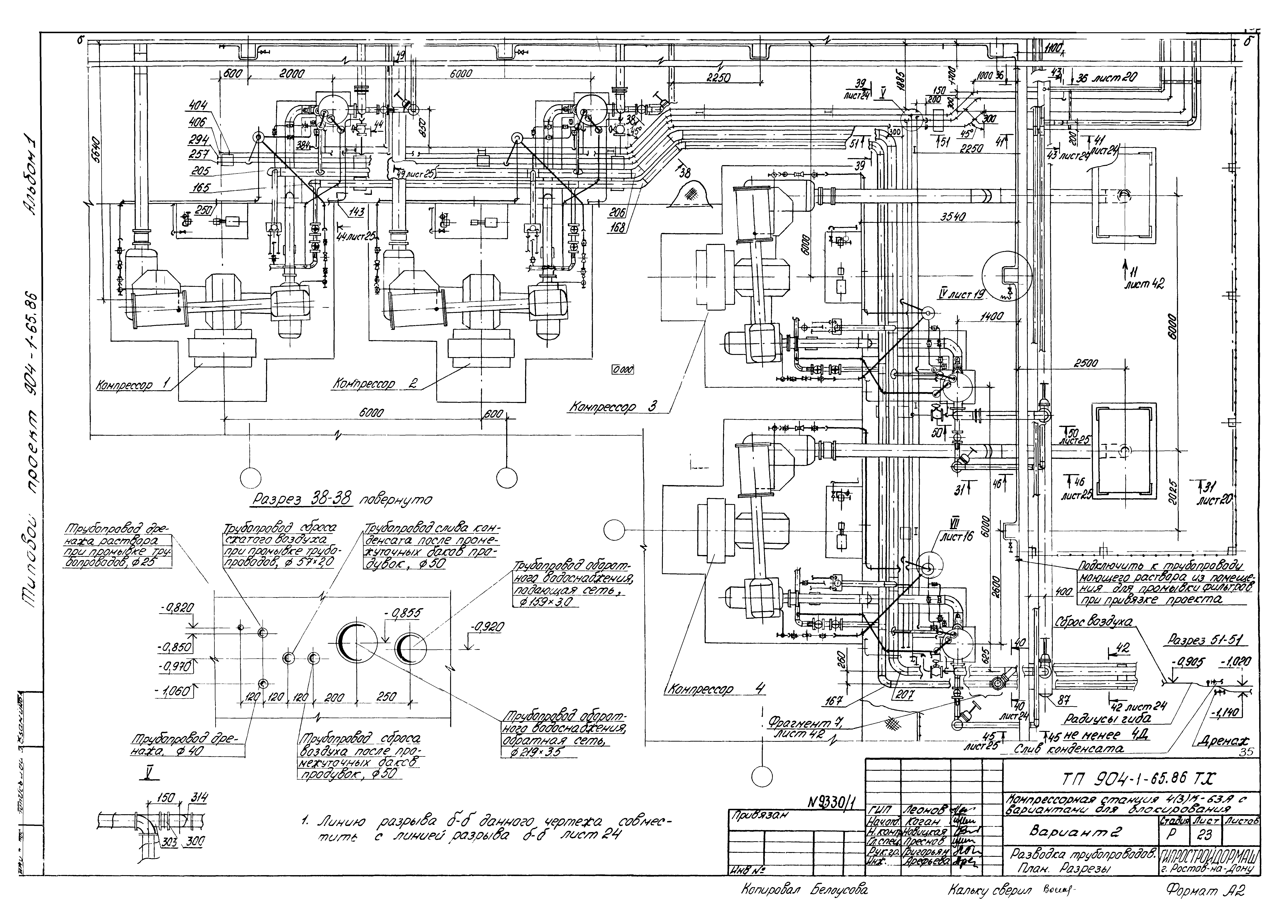
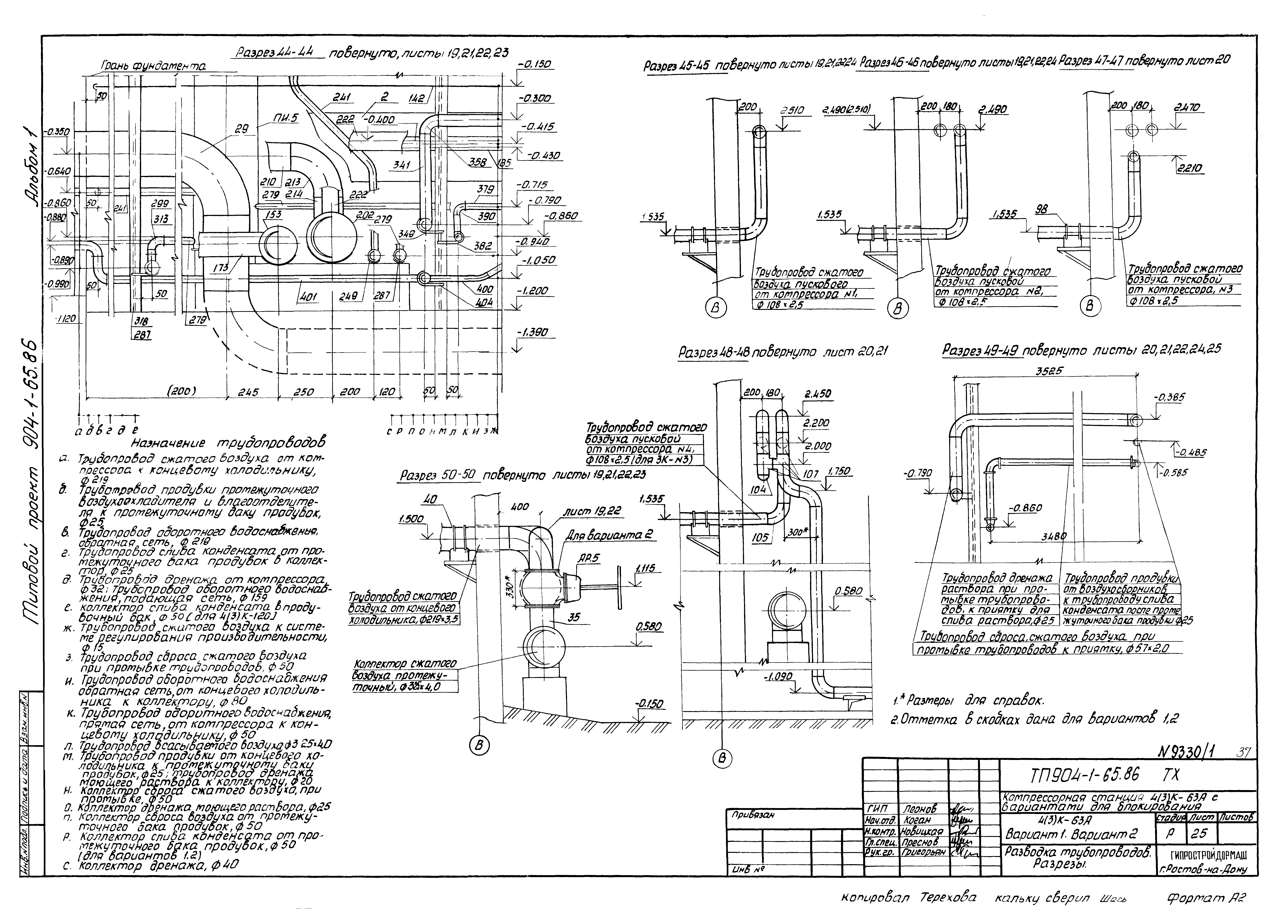
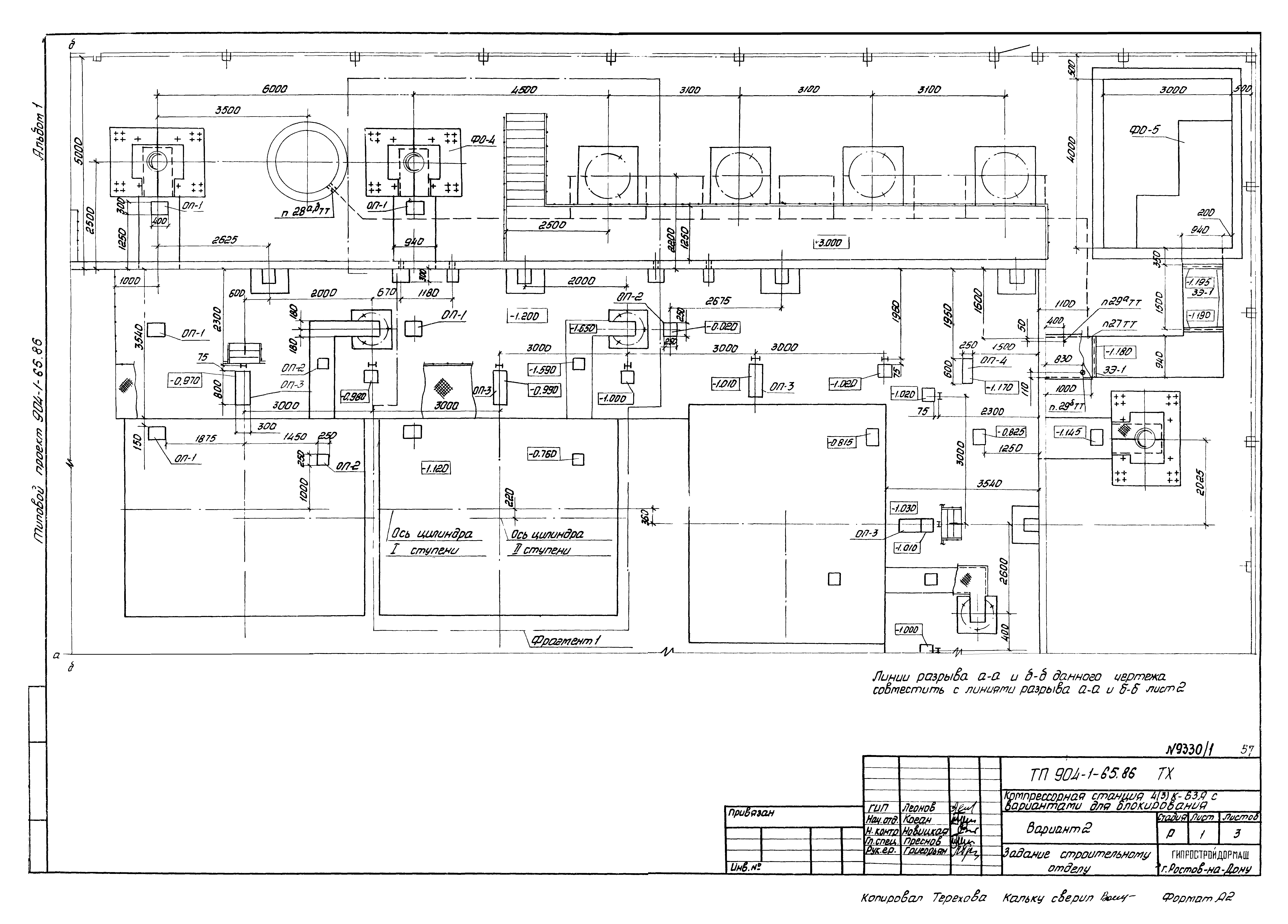
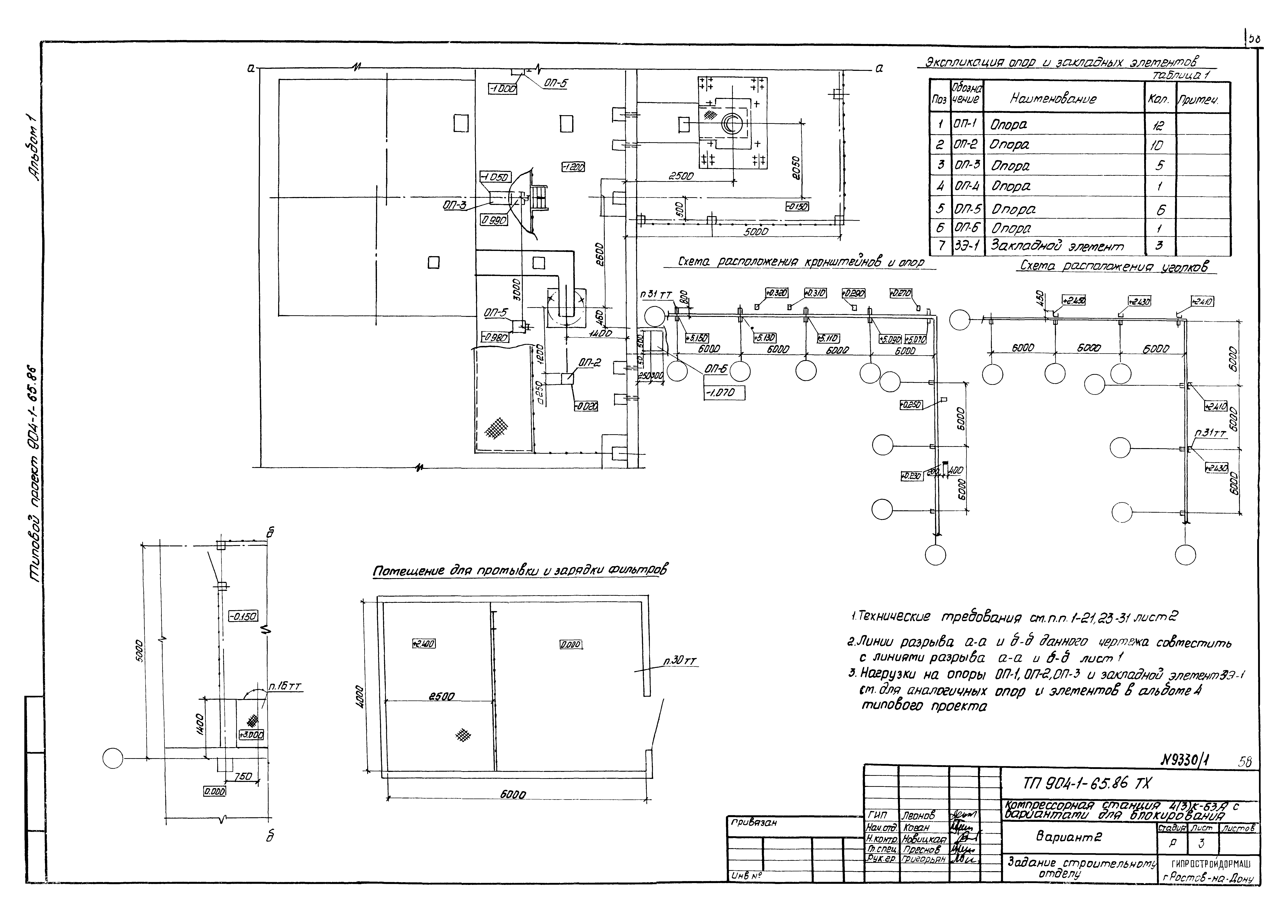
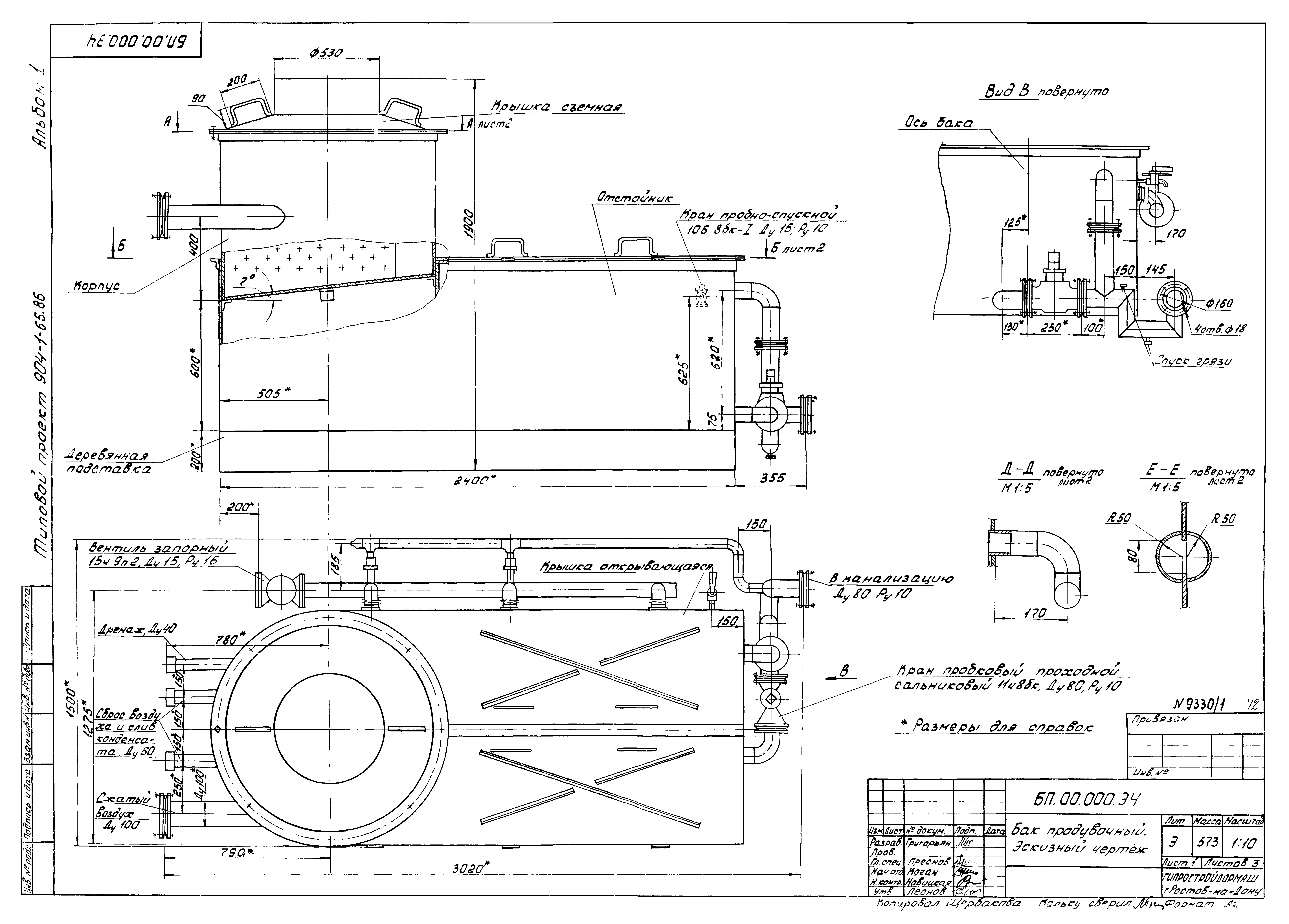
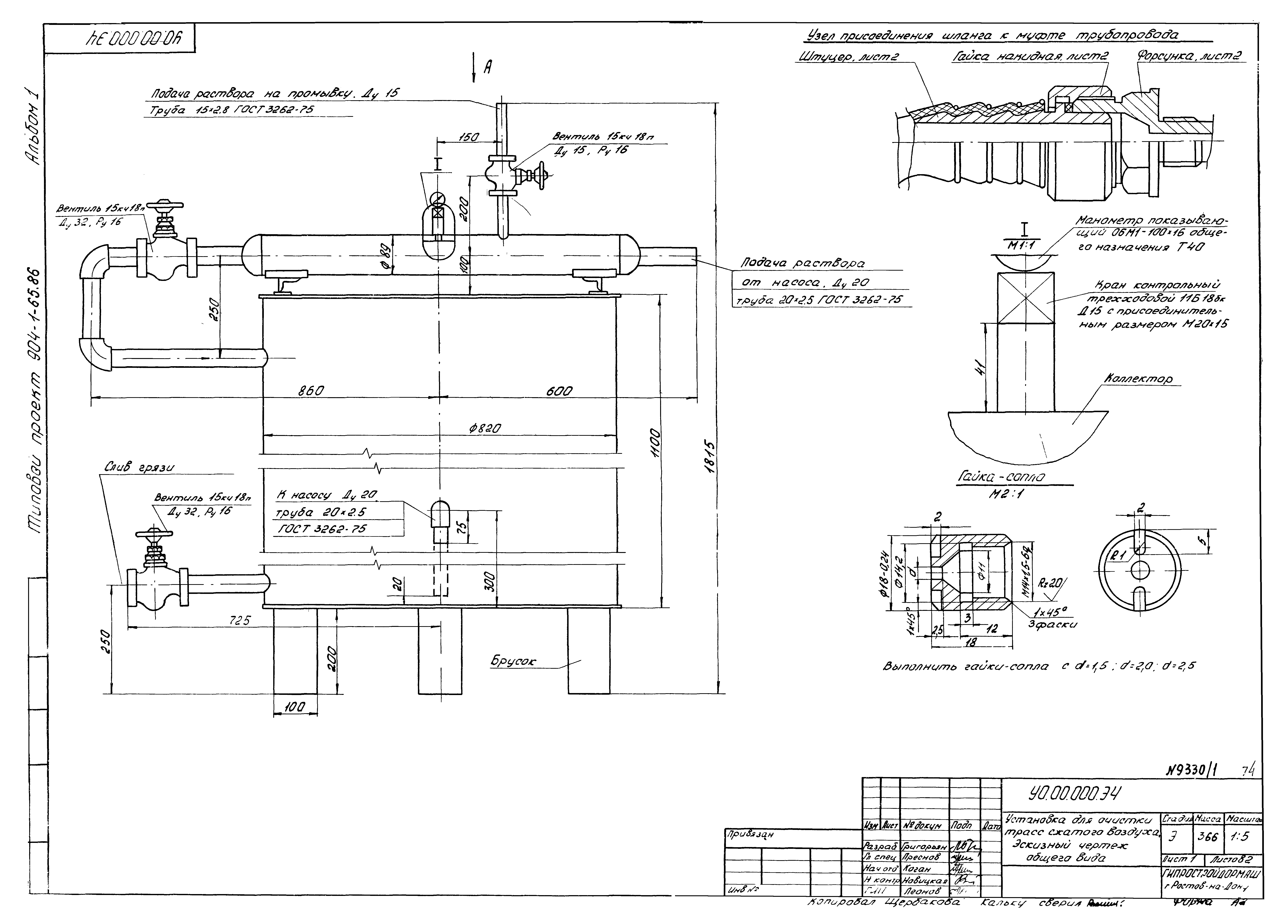
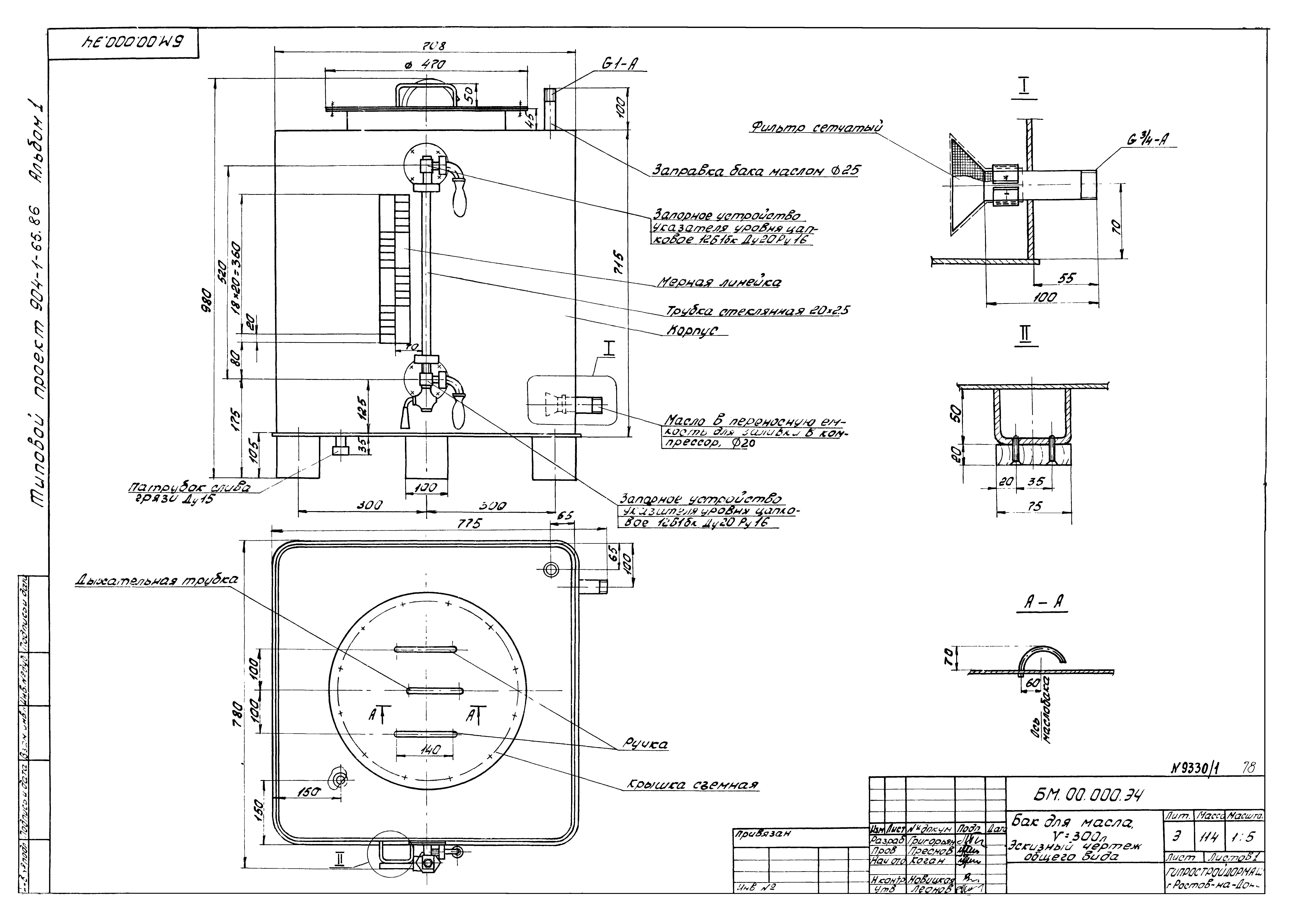
| Оглавление: | ТП 904-1-65.86 Титульный лист ТП 904-1-65.86-ТХ Содержание ТП 904-1-65.86-ПЗ Пояснительная записка (начало) ТП 904-1-65.86-ПЗ Пояснительная записка (продолжение) ТП 904-1-65.86-ПЗ Пояснительная записка (окончание) ТП 904-1-65.86-ПЗ Общие данные (начало) ТП 904-1-65.86-ТХ Общие данные (окончание) ТП 904-1-65.86-ТХ План расположения оборудования ТП 904-1-65.86-ТХ Разрез 1-1 ТП 904-1-65.86-ТХ План расположения оборудования. Разрез 2-2 ТП 904-1-65.86-ТХ Схема комбинированная принципиальная компрессорного агрегата ТП 904-1-65.86-ТХ Схема комбинированная принципиальная компрессорной станции ТП 904-1-65.86-ТХ Условные обозначения ТП 904-1-65.86-ТХ Помещение для промывки и зарядки ячеек фильтров, установкой маслобаков. Разводка трубопроводов ТП 904-1-65.86-ТХ Компрессорный агрегат. Разводка трубопроводов ТП 904-1-65.86-ТХ Концевой холодильник. Разводка трубопроводов ТП 904-1-65.86-ТХ Воздухосборник. Разводка трубопроводов ТП 904-1-65.86-ТХ Продувочный бак. Разводка трубопроводов ТП 904-1-65.86-ТХ Разводка трубопроводов. План. Разрезы ТП 904-1-65.86-ТХ Разводка трубопроводов. План ТП 904-1-65.86-ТХ Разводка трубопроводов. План. Разрезы ТП 904-1-65.86-ТХ Разводка трубопроводов. Разрезы ТП 904-1-65.86-ТХ Спецификация оборудования, арматуры и монтажных материалов трубопроводов ТП 904-1-65.86-ТХ Ведомость теплоизоляционных конструкций ТП 904-1-65.86-ТХ Размещение отборных устройств КИП ТП 904-1-65.86-ТХ Задание строительному отделу ТП 904-1-65.86-ТХ Задание на проектирование разделов ОВ и ВК ТП 904-1-65.86 Опросный лист на кран ТП 904-1-65.86-ТД-1 Муфта, ТД-1 ТП 904-1-65.86-ТД-2 Пробка, ТД-2 ТП 904-1-65.86-ТД-3 Фланец, ТД-3,ТД-4 ТП 904-1-65.86-ТУ-1;-2-3-4 Опора ТУ-1,-2,-3,-4 ТП 904-1-65.86-ТУ-ПБ.00.000 Промежуточный бак продувок, ПБ.00.000 ТП 904-1-65.86-ТУ-МС.000.000 Маслосборник, МС.000.000 ТП 904-1-65.86-ТУ-2ШС.120.00.000.ЭЧ Глушитель шума стравливания. Эскизный чертеж 2ШС.120.00.000.ЭЧ ТП 904-1-65.86-ТУ-ГФ.00.00.00.000.ИТ Фильтр с глушителем. Исходные требования ГФ.00.00.00.000.ИТ ТП 904-1-65.86-ТУ-ГШС.120.00.000.ИТ Глушитель шума стравливания. Исходные требования ГШС.120.00.000.ИТ ТП 904-1-65.86-ТУ-ГФ.00.00.00.000.ЭЧ Фильтр с глушителем. Эскизный чертеж. ГФ.00.00.00.000.ЭЧ ТП 904-1-65.86-ТУ-БП.00.000.ИТ Бак продувочный. Исходные требования. БП.00.000.ИТ ТП 904-1-65.86-ТУ-БП.00.000.ТО Бак продувочный. Технические описания. БП.00.000.ТО ТП 904-1-65.86-ТУ-БП.00.000.ЭЧ Бак продувочный. Эскизный чертеж. БП.00.000.ЭЧ ТП 904-1-65.86-ТУ-УО.00.000.ЭЧ Установка для очистки трасс сжатого воздуха. Эскизный чертеж. УО.00.000.ЭЧ ТП 904-1-65.86-ТУ-УО.00.000.ТО Установка для очистки трасс сжатого воздуха. Техническое описание и инструкция по эксплуатации УО.00.000.ТО ТП 904-1-65.86-ТУ-УО.00.000.ИТ Установка для очистки трасс сжатого воздуха. Исходные требования. УО.00.000.ИТ ТП 904-1-65.86-ТУ-БМ.00.000.ИТ Бак для масла V=300л. Исходные требования БМ.00.000.ИТ ТП 904-1-65.86-ТУ-БМ.00.000.ЭЧ Бак для масла V=300л. Эскизный чертеж. БМ.00.000.ЭЧ ТП 904-1-65.86-ТУ-БР.00.000.ИТ Бак для масла V=50л. Исходные требования БР.00.000.ИТ ТП 904-1-65.86-ТУ-БР.00.000.ЭЧ Бак для масла V=50л. Эскизный чертеж. БР.00.000.ЭЧ ТП 904-1-65.86-ТУ-ВП.00.000.ИТ Ванна для промывки ячеек фильтров. Исходные требования. ВП.00.000.ИТ ТП 904-1-65.86-ТУ-ВЗ.00.000.ИТ Ванна для зарядки ячеек фильтров. Исходные требования. ВЗ.00.000.ИТ ТП 904-1-65.86-ТУ-ВЗ.00.000.ЭЧ Ванна для зарядки ячеек фильтров. Эскизный чертеж. ВЗ.00.000.ЭЧ ТП 904-1-65.86-ТУ-ВП.00.000.94 Ванна для промывки ячеек фильтров. Эскизный чертеж ВП.00.000.94 ТП 904-1-65.86-ТУ-СО.00.000.ИТ Стол для отстоя ячеек фильтров. Исходные требования. СО.00.000.ИТ ТП 904-1-65.86-ТУ-СО.00.000.ЭЧ Стол для отстоя ячеек фильтров. Эскизный чертеж. СО.00.000.ЭЧ |
| Разработан: | Гипростройдормаш |
| Утверждён: | 16.07.1986 Минстройдормаш (Minstroydormash 26/86) |


















































































