Скачать Типовой проект 904-1-65.86 Альбом 2. Силовое электрооборудование, электрическое освещение, связь и сигнализацияДата актуализации: 01.01.2021
|
| Обозначение: | Типовой проект 904-1-65.86 |
| Обозначение англ: | 904-1-65.86 |
| Статус: | не действует |
| Название рус.: | Альбом 2. Силовое электрооборудование, электрическое освещение, связь и сигнализация |
| Дата добавления в базу: | 01.09.2013 |
| Дата актуализации: | 01.01.2021 |
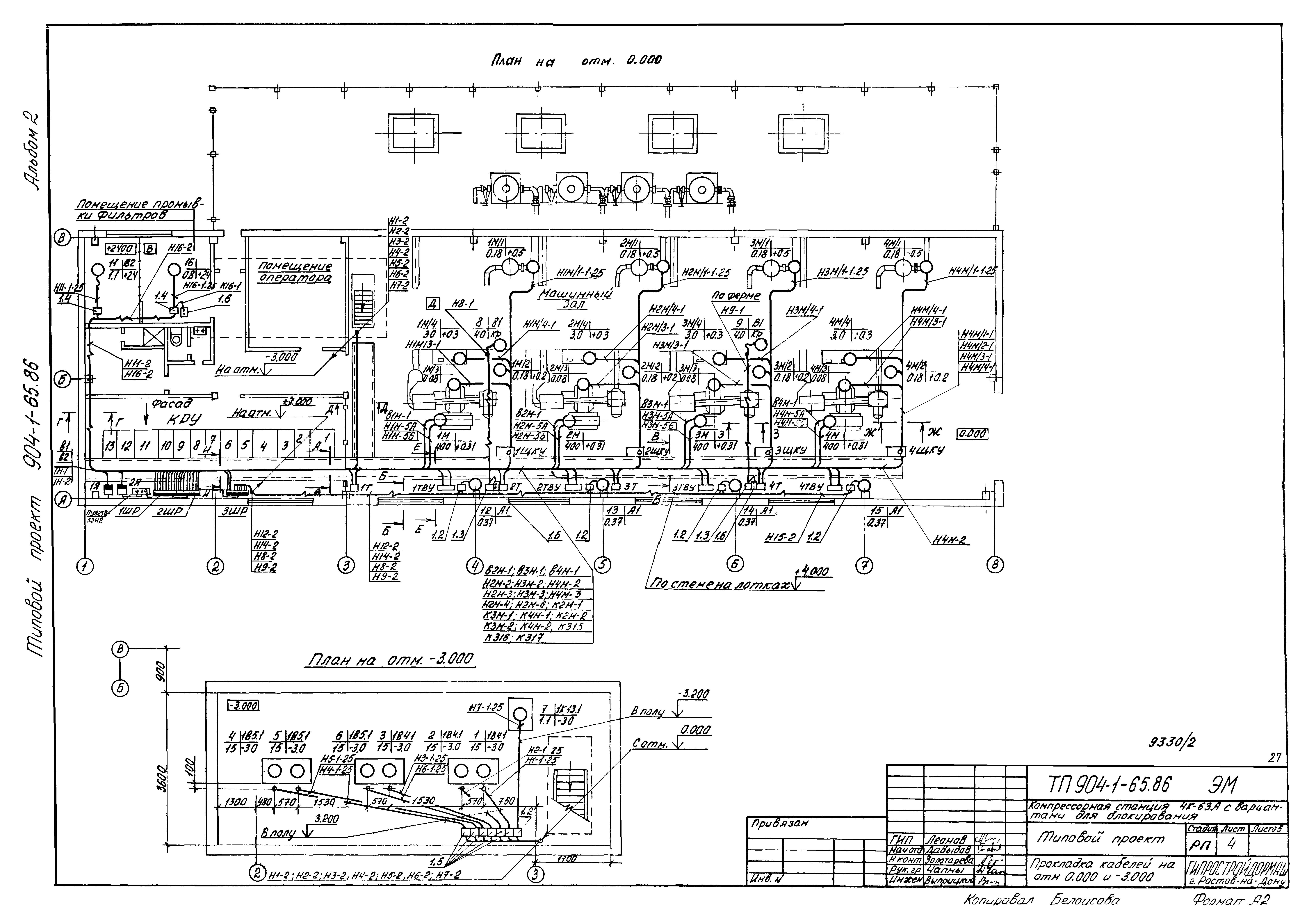
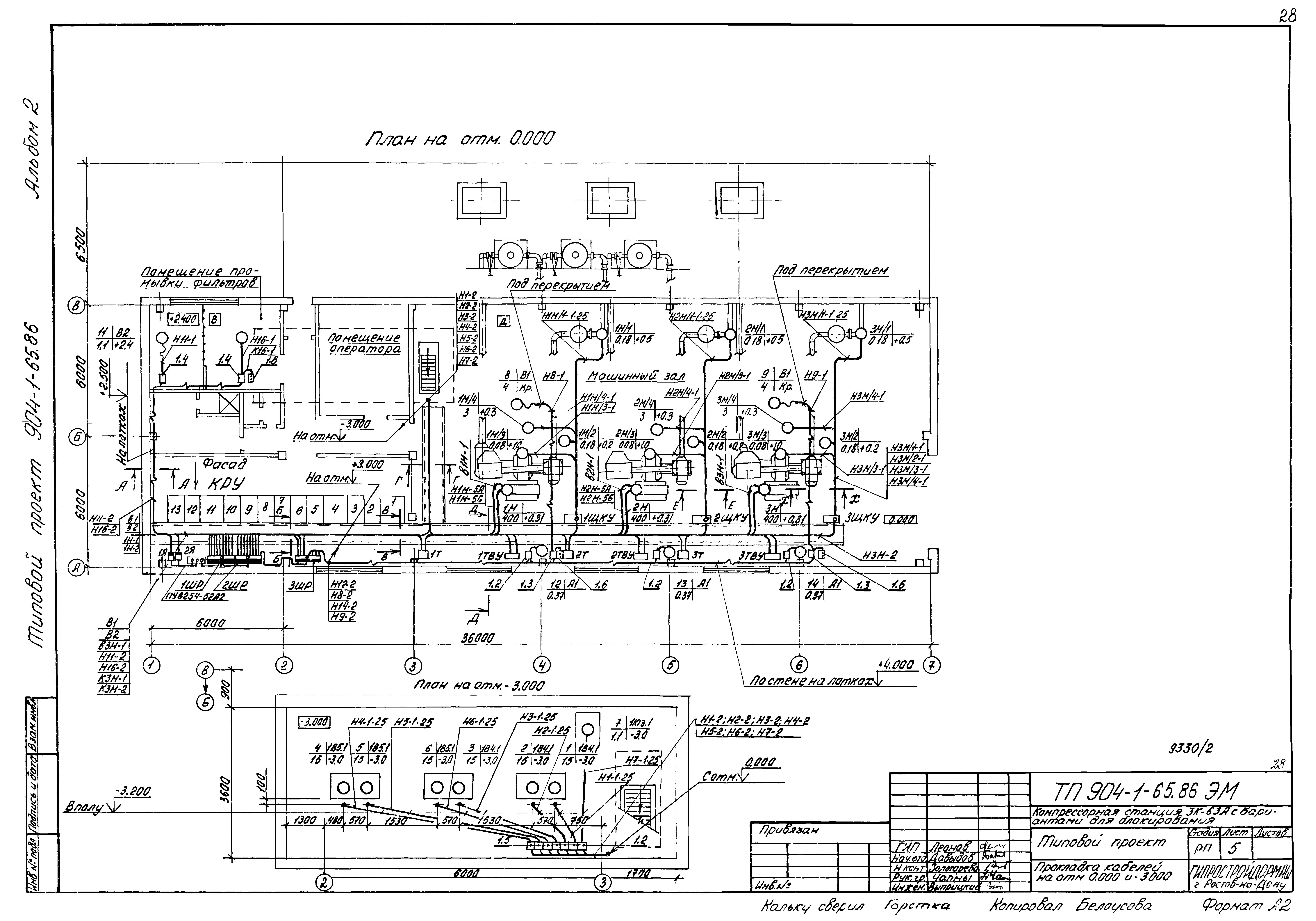
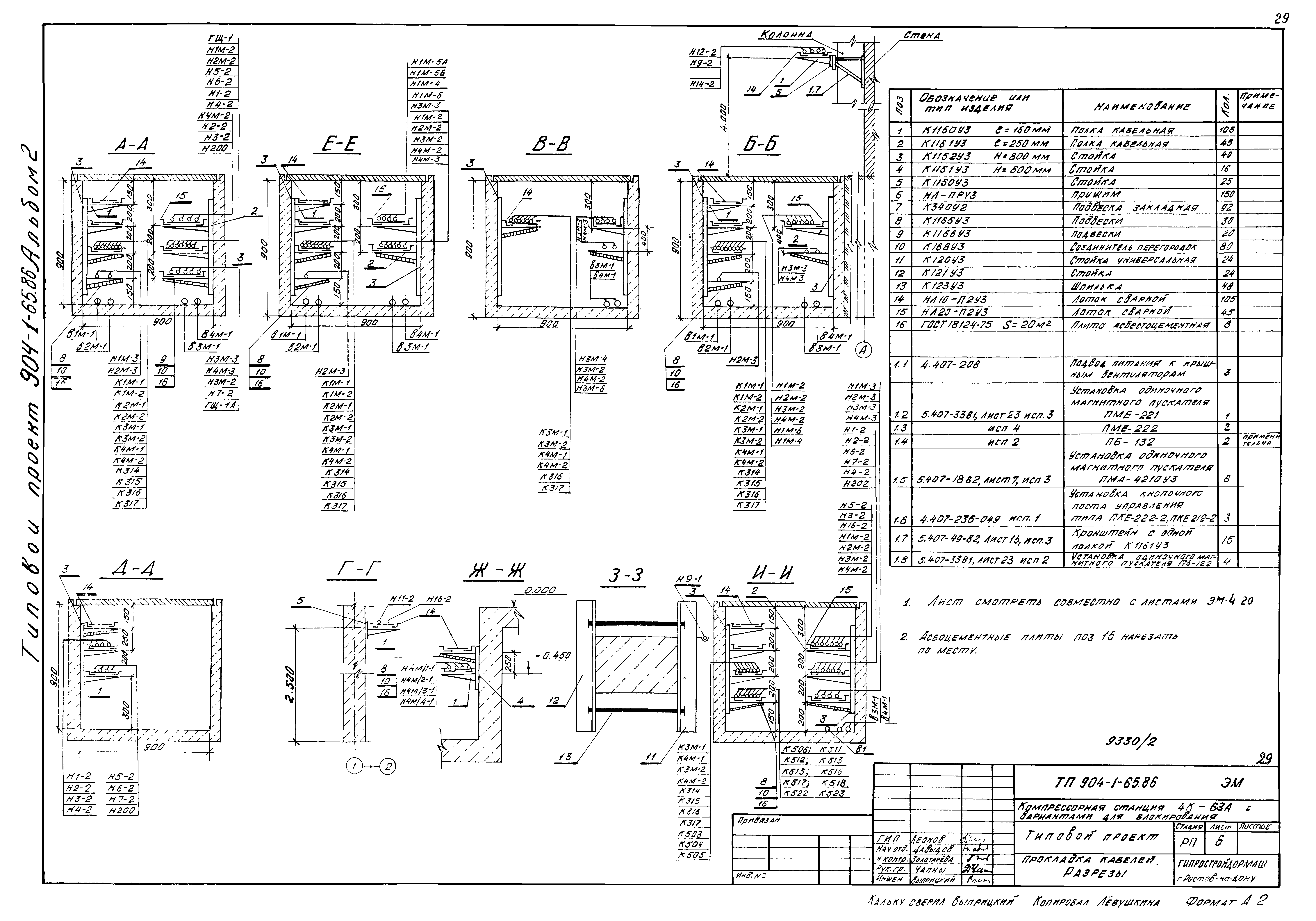
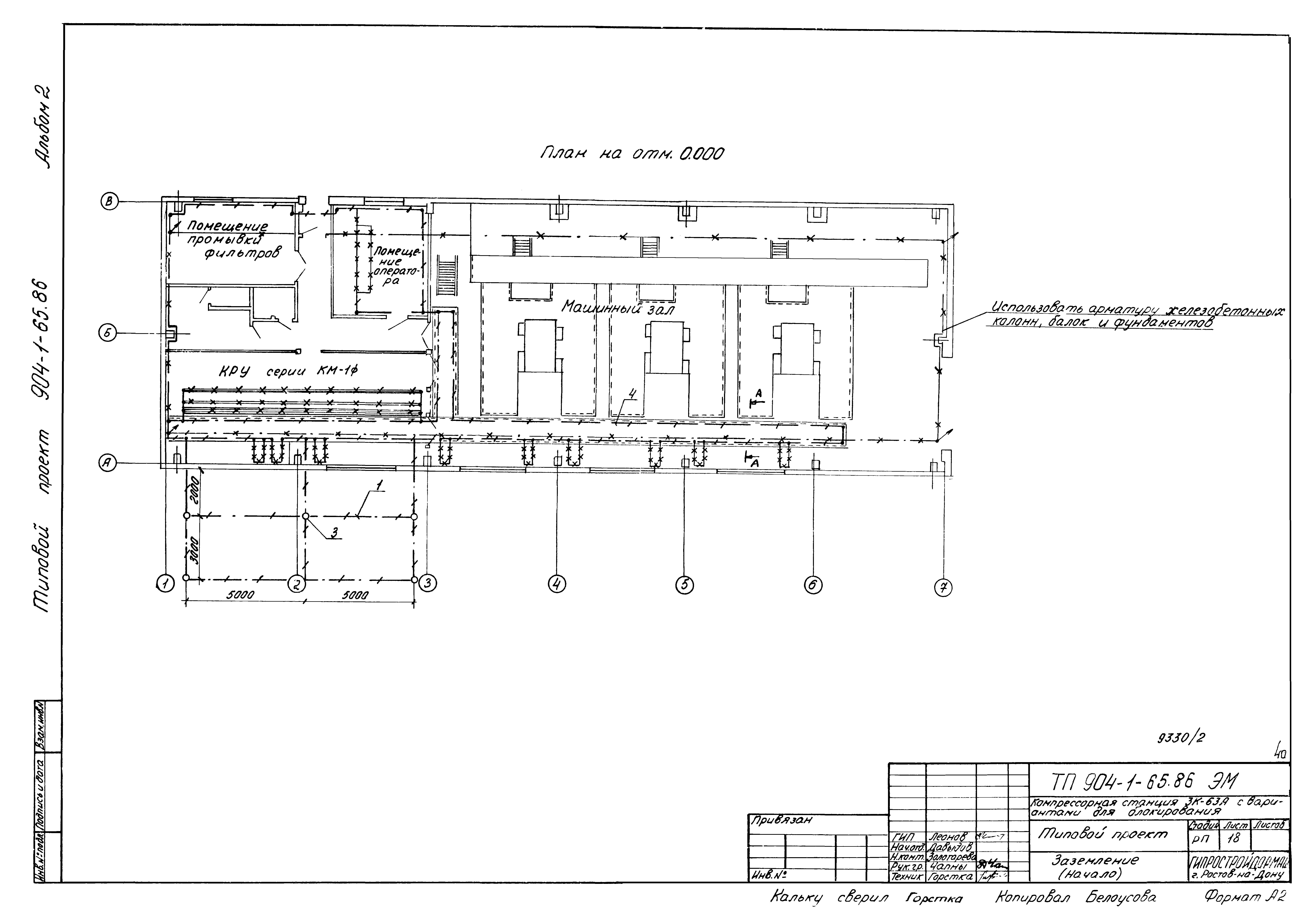
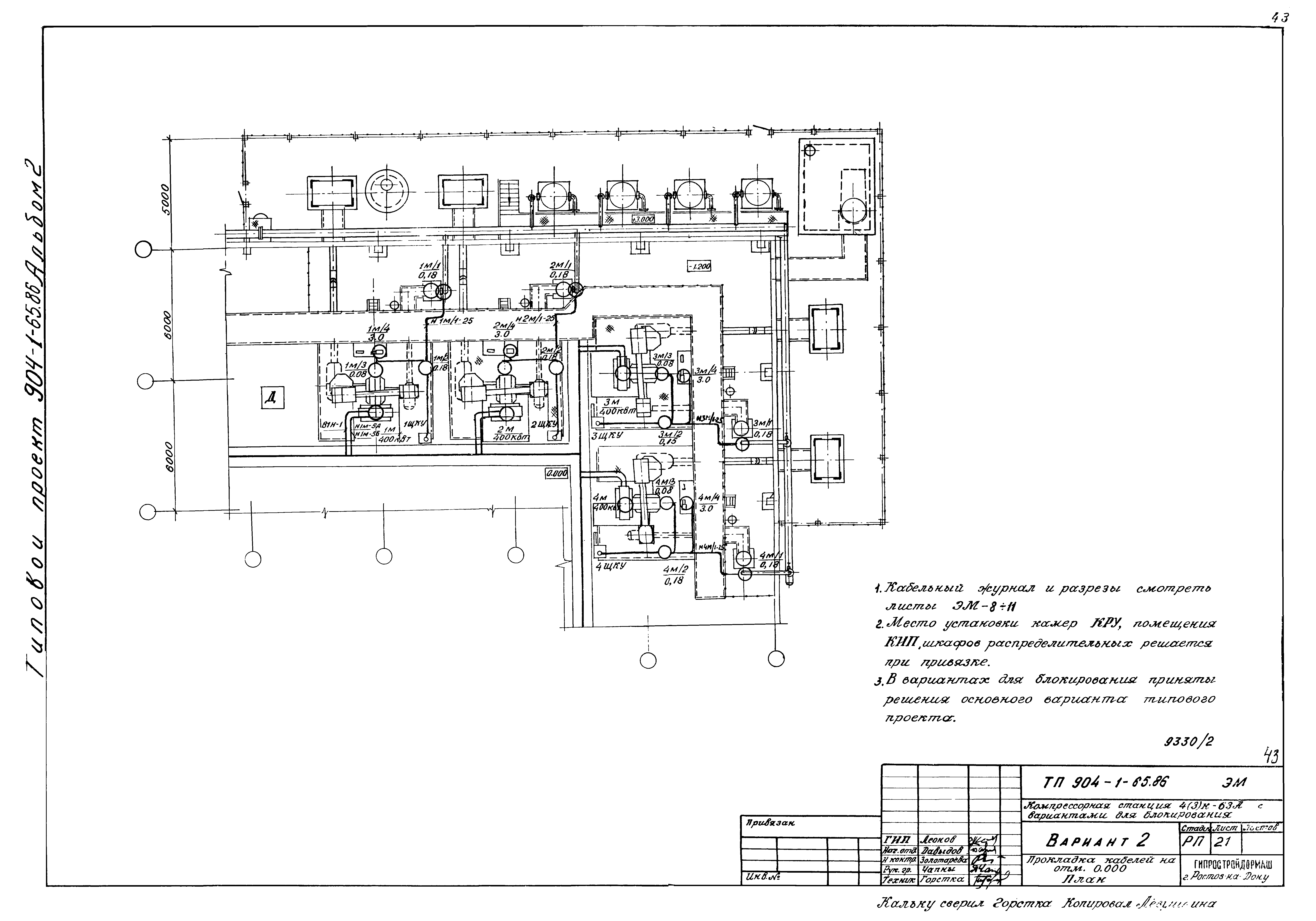
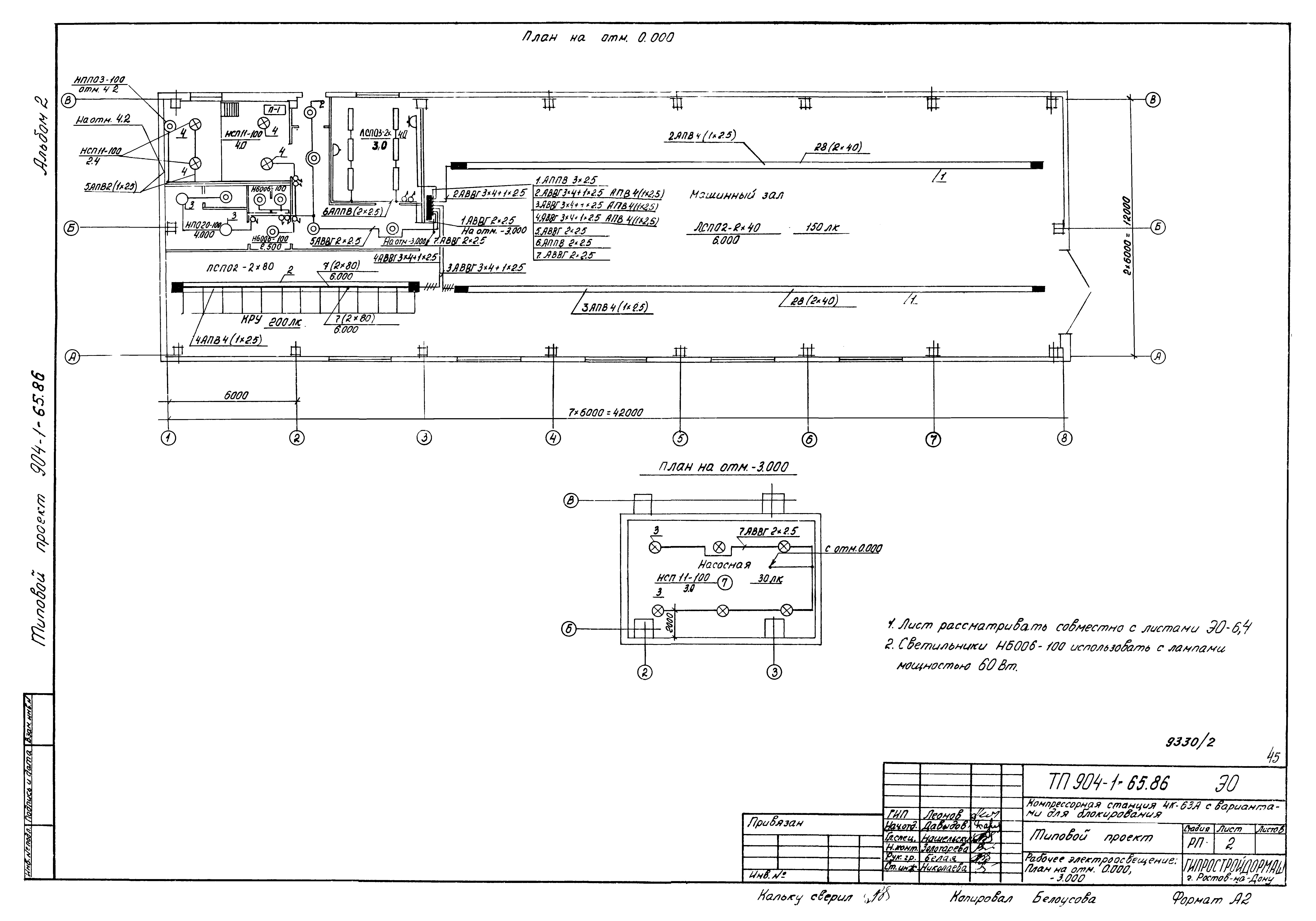
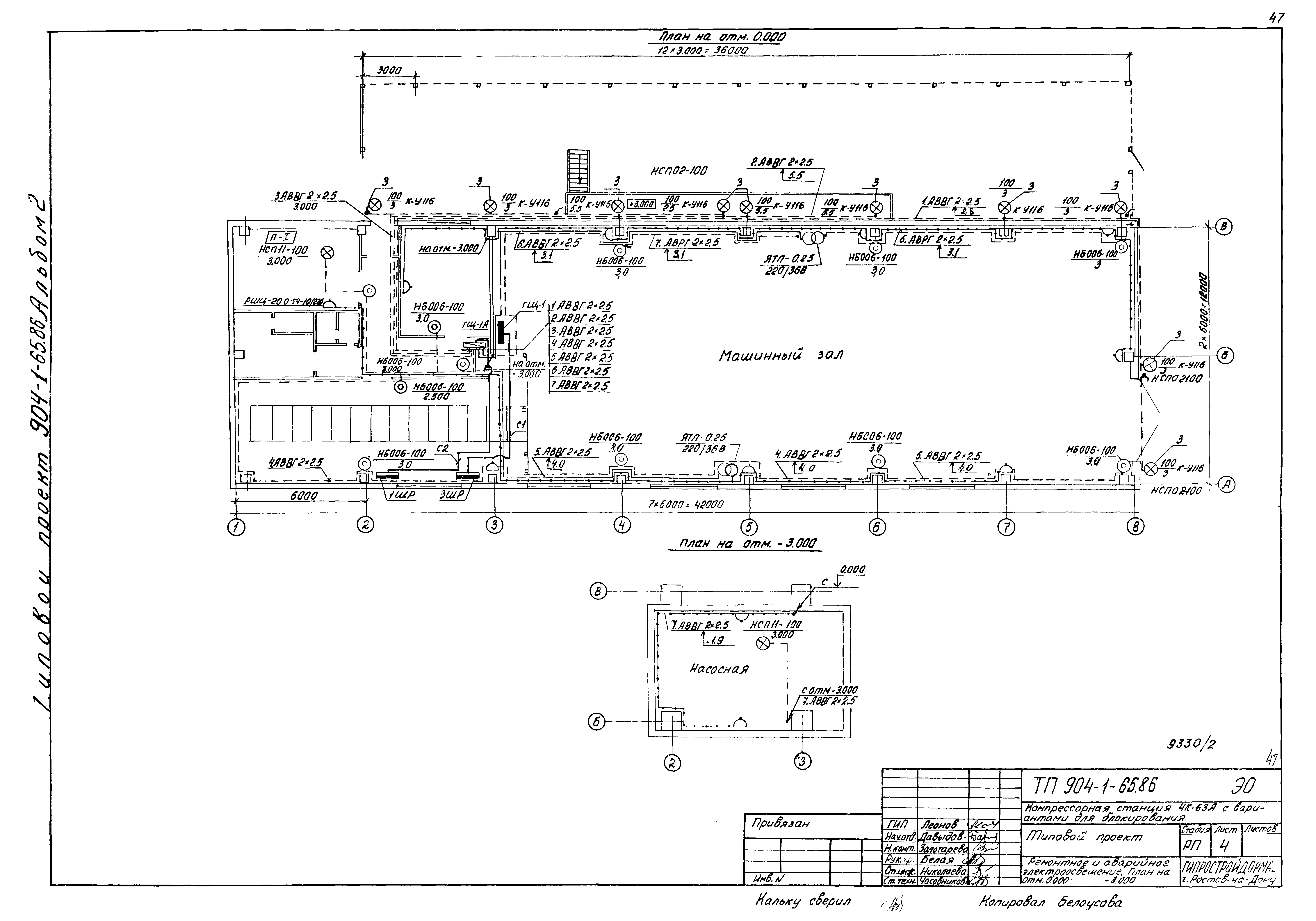
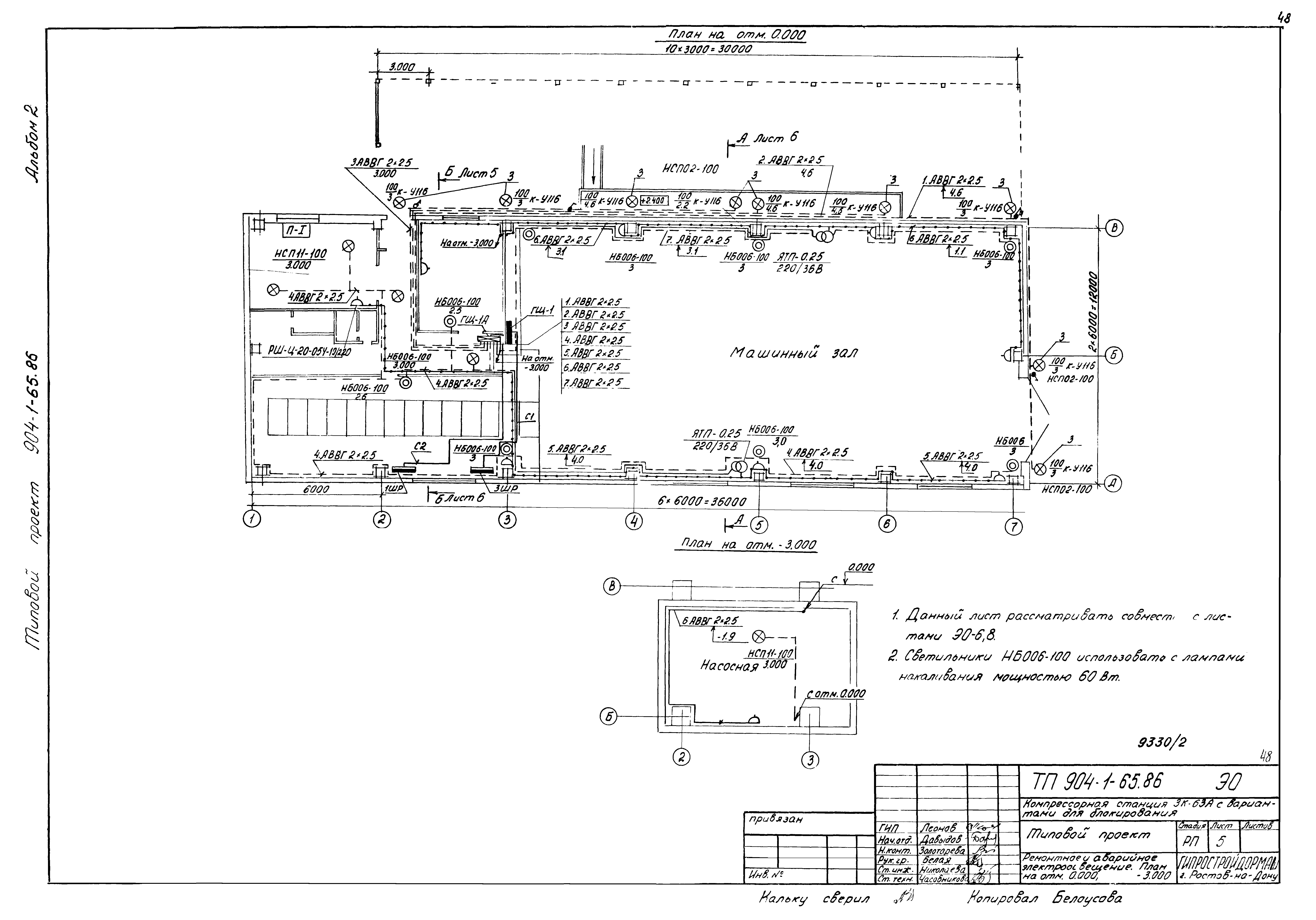
| Оглавление: | ТП 904-1-65.86-ЭС-1 Общие данные ТП 904-1-65.86-ЭС-2 Размещение электрооборудования. Элемент плана на отм. 0.000 ТП 904-1-65.86-ЭС-3 Прокладка кабелей на отм. 0.000. Элемент плана ТП 904-1-65.86-ЭС-4 Распредустройство 6(10)кВ. Принципиальная однолинейная схема (Начало) ТП 904-1-65.86-ЭС-5 Распредустройство 6(10)кВ. Принципиальная однолинейная схема (Окончание) ТП 904-1-65.86-ЭС-6 Ввод 1(2). Схема электрическая принципиальная (Полная) ТП 904-1-65.86-ЭС-7 Секционный выключатель. Схема электрическая принципиальная (Полная) ТП 904-1-65.86-ЭС-8 Трансформатор напряжения 1(2). Схема электрическая принципиальная (Полная) ТП 904-1-65.86-ЭС-9 Трансформатор собственных нужд 1(2). Схема электрическая принципиальная (Полная) ТП 904-1-65.86-ЭС-10 Шкаф с низковольтной аппаратурой собственных нужд 1(2). Схема электрическая принципиальная (Полная) ТП 904-1-65.86-ЭС-11 Синхронный электродвигатель. Схема электрическая принципиальная (Полная) ТП 904-1-65.86-ЭС-12 Расчет релейных защит ТП 904-1-65.86-ЭС-13 Лист опросный на поставку устройства комплектного распределительного типа КМ-1Ф-10-20-У3 (Начало) ТП 904-1-65.86-ЭС-14 Лист опросный на поставку устройства комплектного распределительного типа КМ-1Ф-10-20-У3 (Продолжение) ТП 904-1-65.86-ЭС-15 Лист опросный на поставку устройства комплектного распределительного типа КМ-1Ф-10-20-У3 (Окончание) ТП 904-1-65.86-ЭС-16 Синхронный электродвигатель. Схема подключения ТП 904-1-65.86-ЭС-17 Ввод 1(2). Схема подключения ТП 904-1-65.86-ЭС-18 Секционный выключатель и секционный разъединитель. Схема подключения ТП 904-1-65.86-ЭС-19 Трансформатор напряжения 1(2). Схема подключения ТП 904-1-65.86-ЭС-20 Трансформатор собственных нужд 1(2). Схема подключения ТП 904-1-65.86-ЭС-21 Шкаф с низковольтной аппаратурой собственных нужд. Схема подключения ТП 904-1-65.86-ЭМ-1 Общие данные (Начало) ТП 904-1-65.86-ЭМ-2 Общие данные (Окончание) ТП 904-1-65.86-ЭМ-3 Технические данные электроприемников ТП 904-1-65.86-ЭМ-4 Прокладка кабелей на отм. 0.000,-3.000. План ТП 904-1-65.86-ЭМ-5 Прокладка кабелей на отм. 0.000,-3.000. План ТП 904-1-65.86-ЭМ-6 Прокладка кабелей. Разрезы ТП 904-1-65.86-ЭМ-7 Прокладка кабелей. Разрезы ТП 904-1-65.86-ЭМ-8 Кабельный журнал (Начало) ТП 904-1-65.86-ЭМ-9 Кабельный журнал (Продолжение) ТП 904-1-65.86-ЭМ-10 Кабельный журнал (Продолжение) ТП 904-1-65.86-ЭМ-11 Кабельный журнал (Окончание) ТП 904-1-65.86-ЭМ-12 Щит управления 1ЩКУ(2ЩКУ,3ЩКУ,4ЩКУ). Расчетная схема и подключения ТП 904-1-65.86-ЭМ-13 Шкаф распределительный 1ШР,2ШР. Расчетная схема ТП 904-1-65.86-ЭМ-14 Шкаф распределительный 3ШР. Расчетная схема ТП 904-1-65.86-ЭМ-15 Схема подключения контрольных цепей тиристорного возбудительного устройства ТП 904-1-65.86-ЭМ-16 Схема подключения силовых цепей привода компрессорного агрегата ТП 904-1-65.86-ЭМ-17 Заземление (Начало) ТП 904-1-65.86-ЭМ-18 Заземление (Начало) ТП 904-1-65.86-ЭМ-19 Заземление (Окончание) ТП 904-1-65.86-ЭМ-20 Прокладка кабелей на отм. 0.000. План. Вариант 1 ТП 904-1-65.86-ЭМ-21 Прокладка кабелей на отм. 0.000. План. Вариант 2 ТП 904-1-65.86-ЭО-1 Общие данные ТП 904-1-65.86-ЭО-2 Рабочее электрическое освещение. План на отм. 0.000 и -3.000 ТП 904-1-65.86-ЭО-3 Рабочее электрическое освещение. План на отм. 0.000 и -3.000 ТП 904-1-65.86-ЭО-4 Ремонтное и аварийное электрическое освещение. План на отм. 0.000 и -3.000 ТП 904-1-65.86-ЭО-5 Ремонтное и аварийное электрическое освещение. План на отм. 0.000 и -3.001 ТП 904-1-65.86-ЭО-6 Электрическое освещение. Питательная сеть 380В. Принципиальная однолинейная схема ТП 904-1-65.86-ЭО-7 Электрическое освещение. Питательная сеть 380В. Принципиальная однолинейная схема ТП 904-1-65.86-СС-1 Общие данные (Начало) ТП 904-1-65.86-СС-2 Общие данные (Окончание) ТП 904-1-65.86-СС-3 План расположение сети ТП 904-1-65.86-СС-4 План расположение сети ТП 904-1-65.86-СС-5 Схемы расположение сети ТП 904-1-65.86-СС-6 Схемы расположение сети ТП 904-1-65.86-СС-7 Схема расположение сети пожарной сигнализации |
| Разработан: | Гипростройдормаш |
| Утверждён: | 16.07.1986 Минстройдормаш (Minstroydormash 26/86) |

























































