Скачать Типовой проект 902-2-401.86 Альбом III. Архитектурные решения. Конструкции железобетонные. Конструкции металлические. Отопление и вентиляцияДата актуализации: 01.01.2021
|
| Обозначение: | Типовой проект 902-2-401.86 |
| Обозначение англ: | 902-2-401.86 |
| Статус: | заменен |
| Название рус.: | Альбом III. Архитектурные решения. Конструкции железобетонные. Конструкции металлические. Отопление и вентиляция |
| Дата добавления в базу: | 01.09.2013 |
| Дата актуализации: | 01.01.2021 |
| Дата введения: | 27.03.1987 |
| Дата окончания срока действия: | 01.10.1987 |
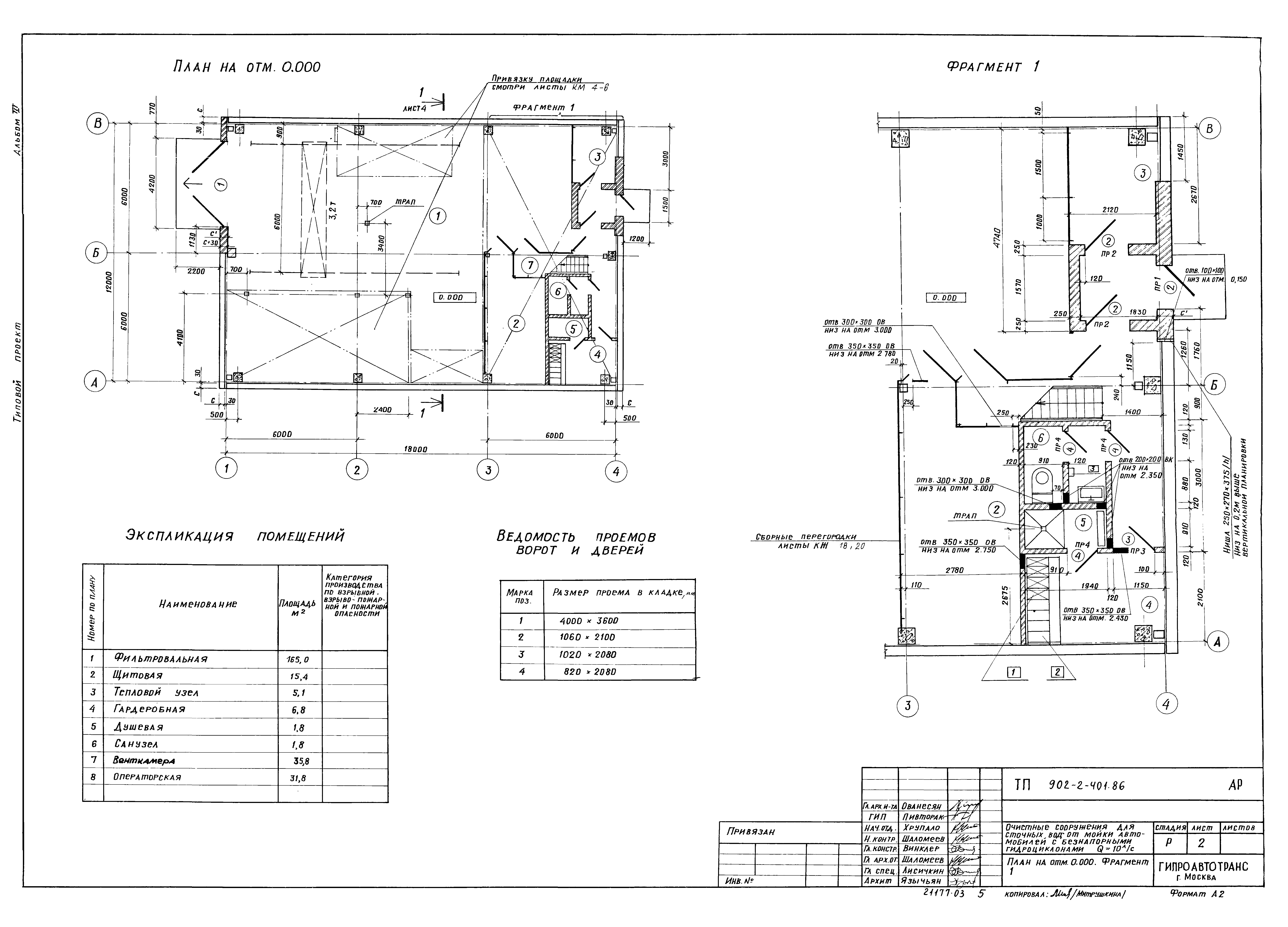
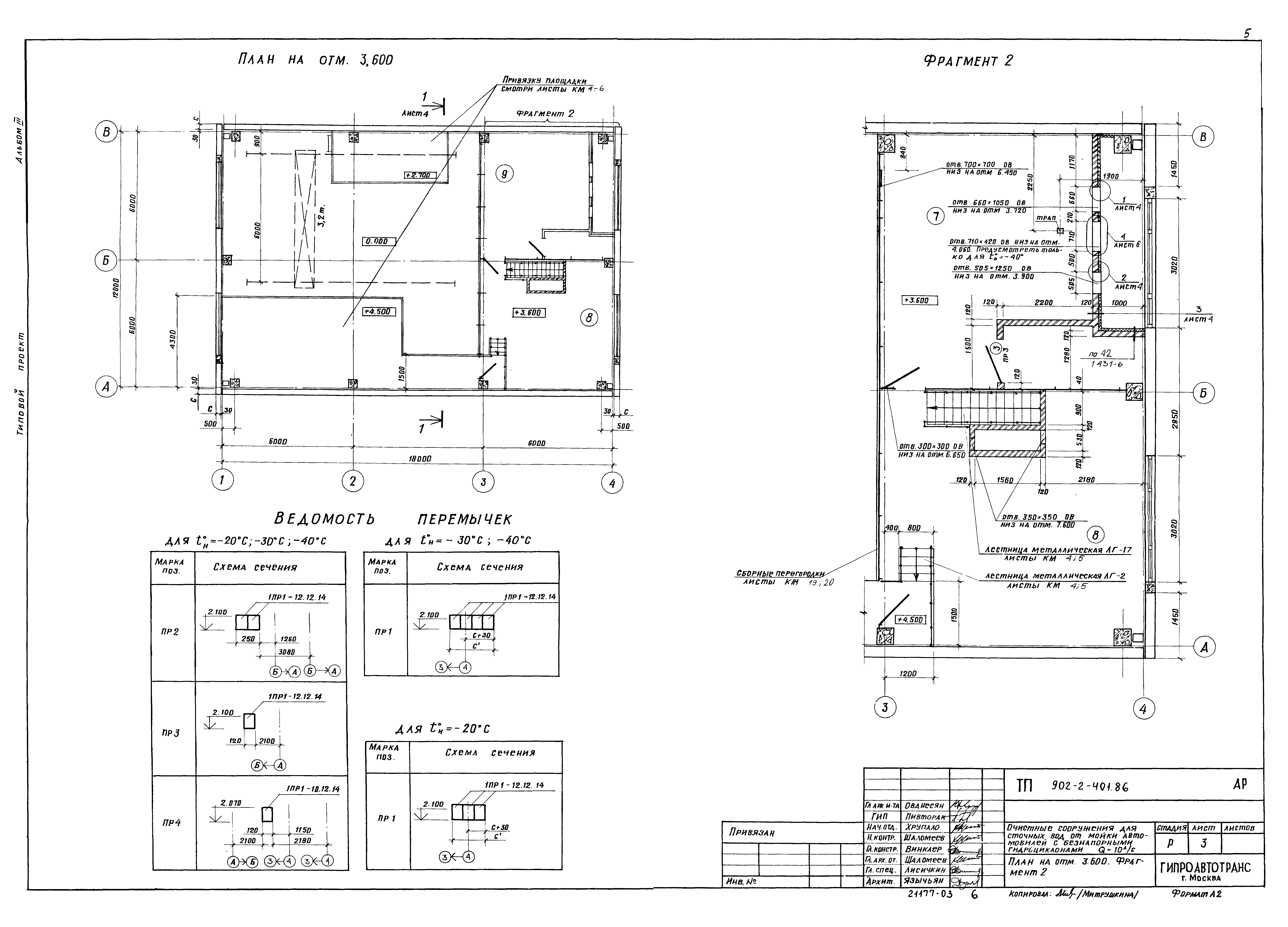
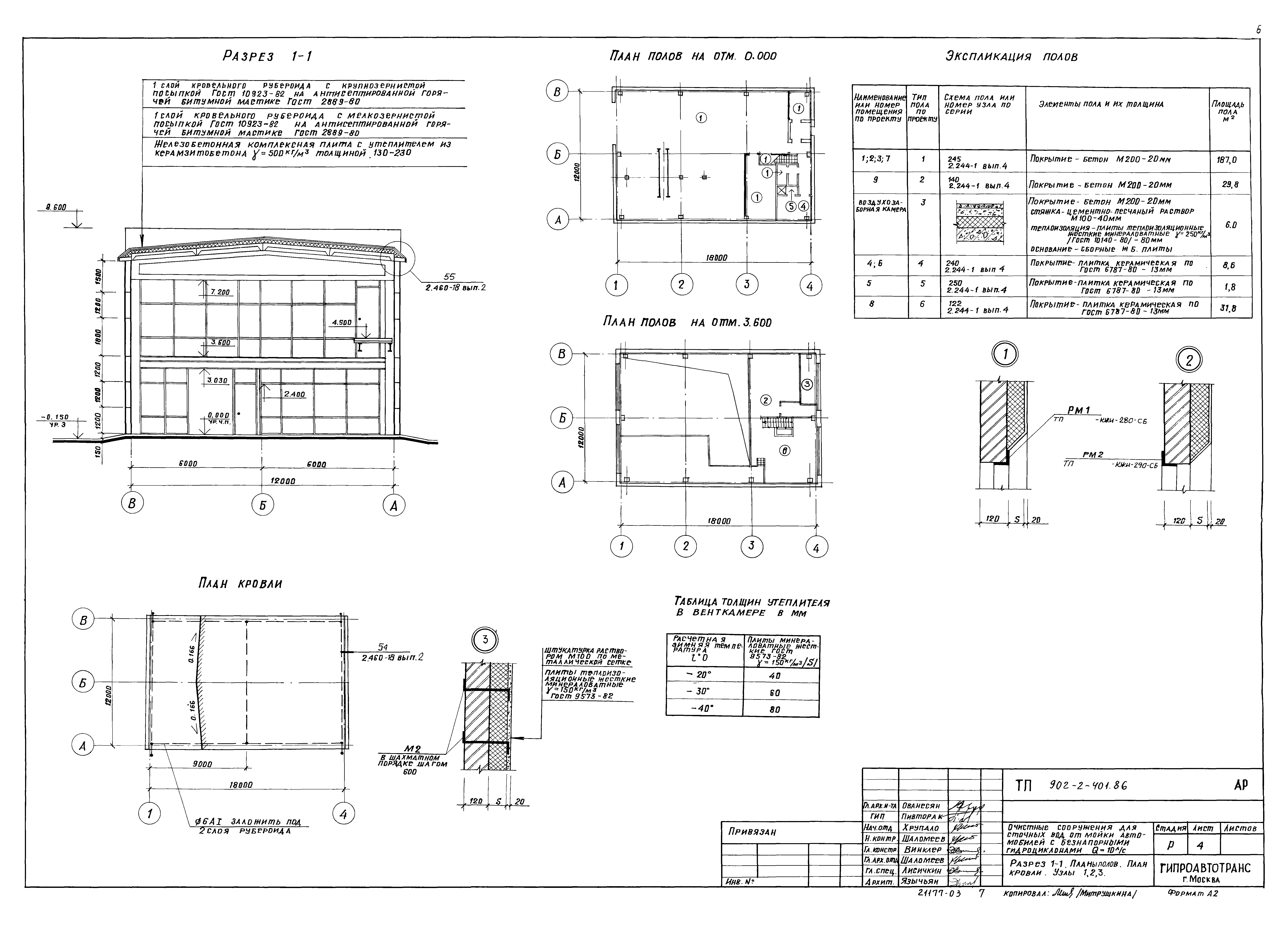
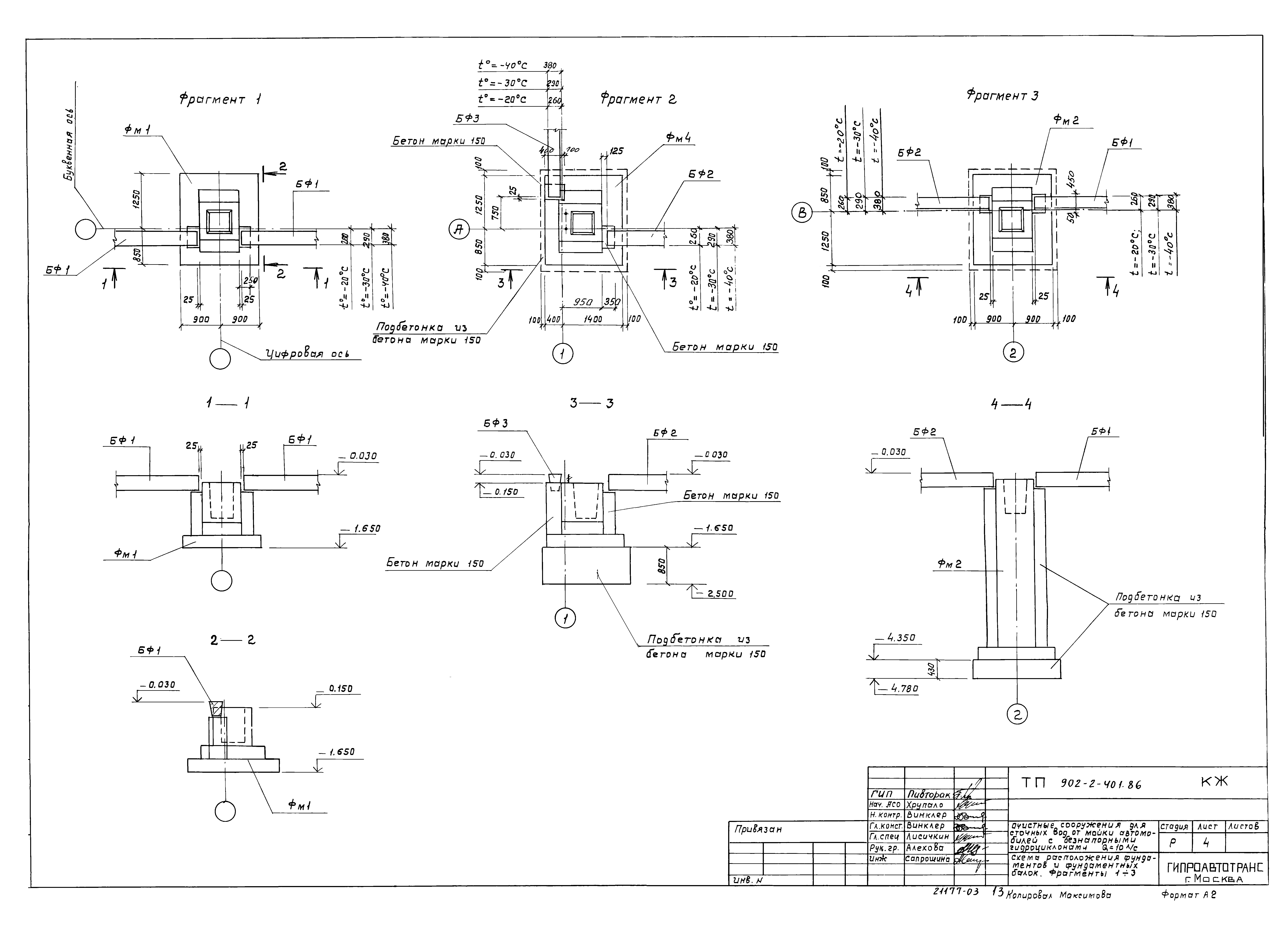
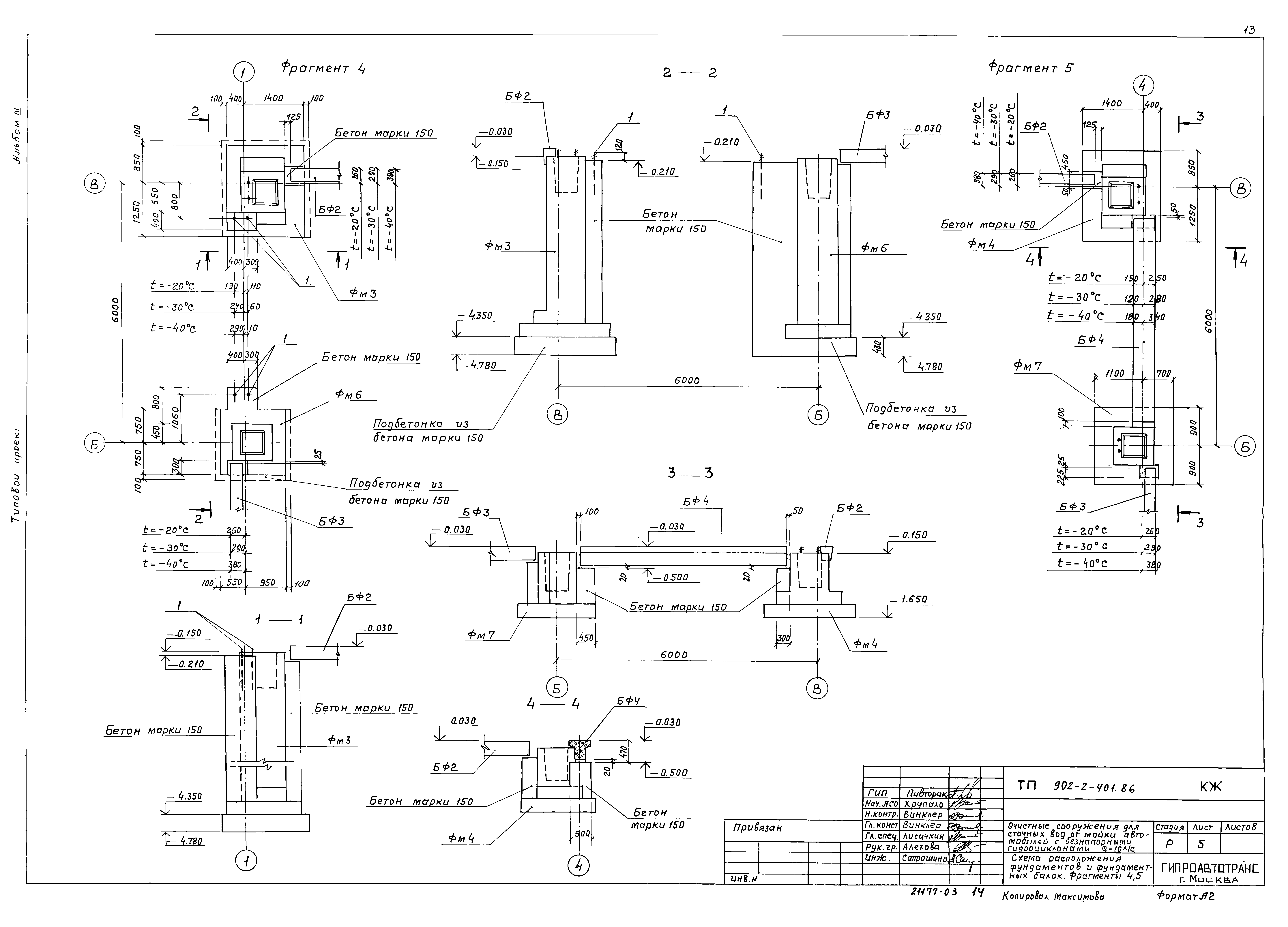
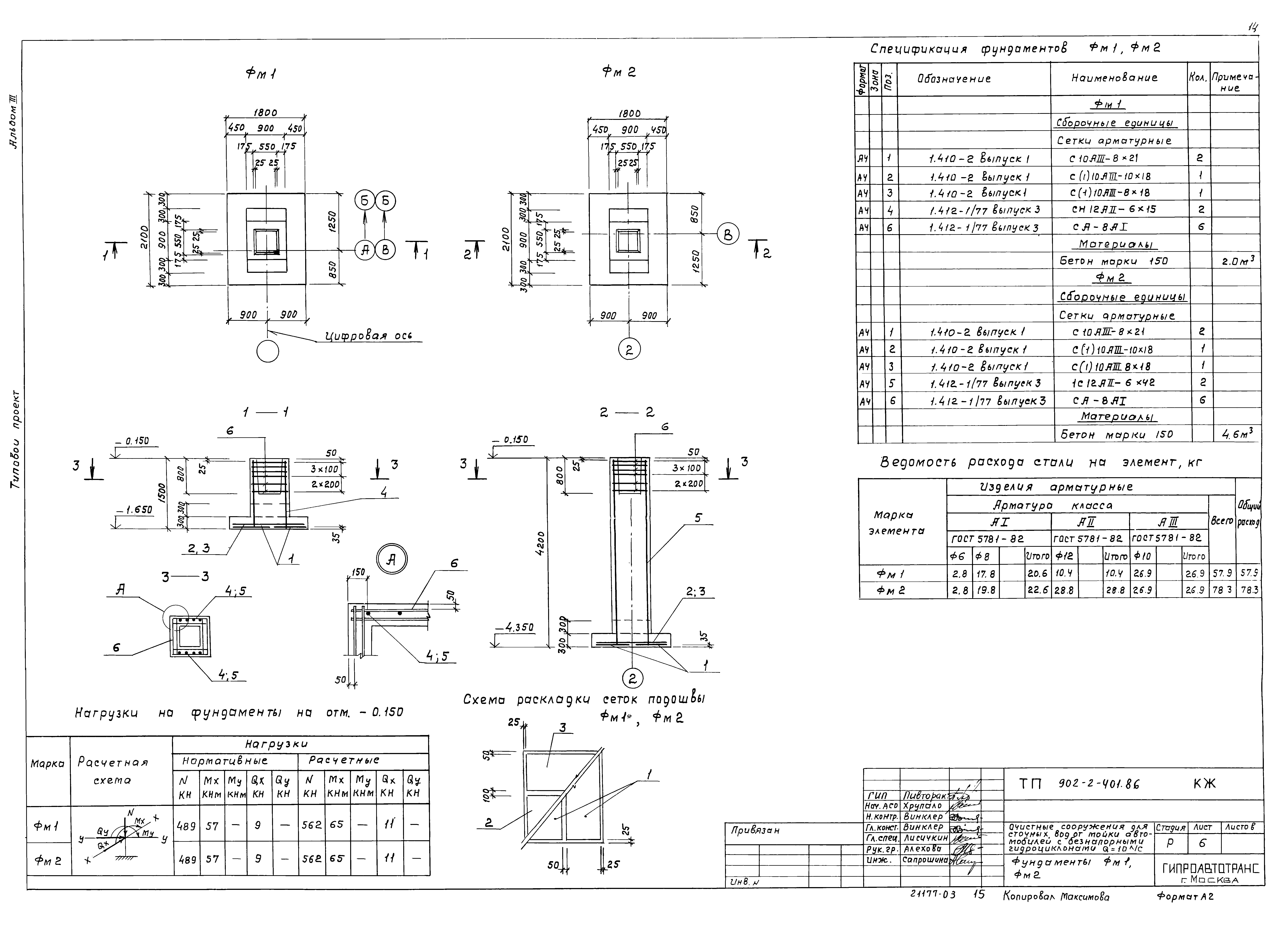
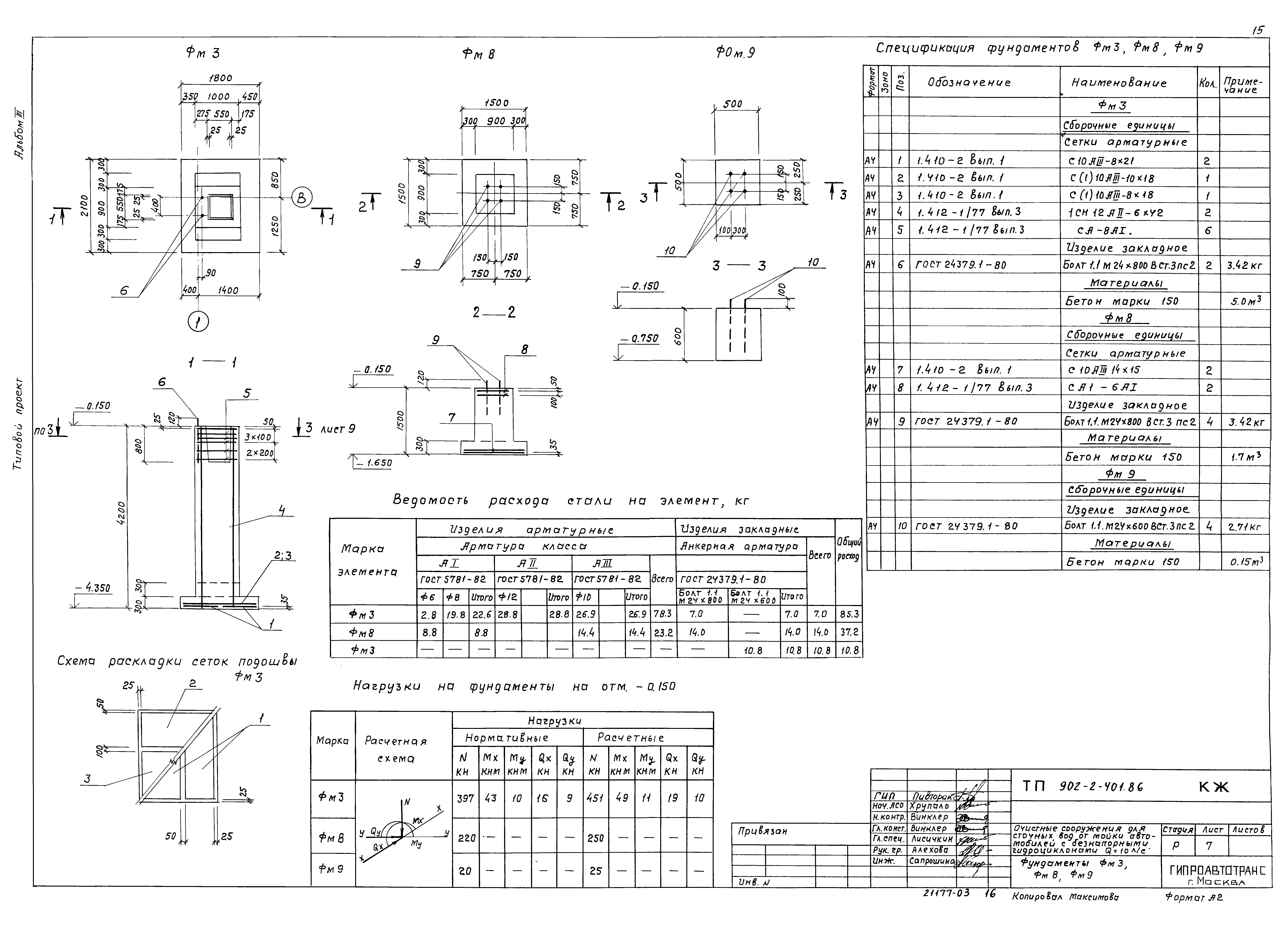
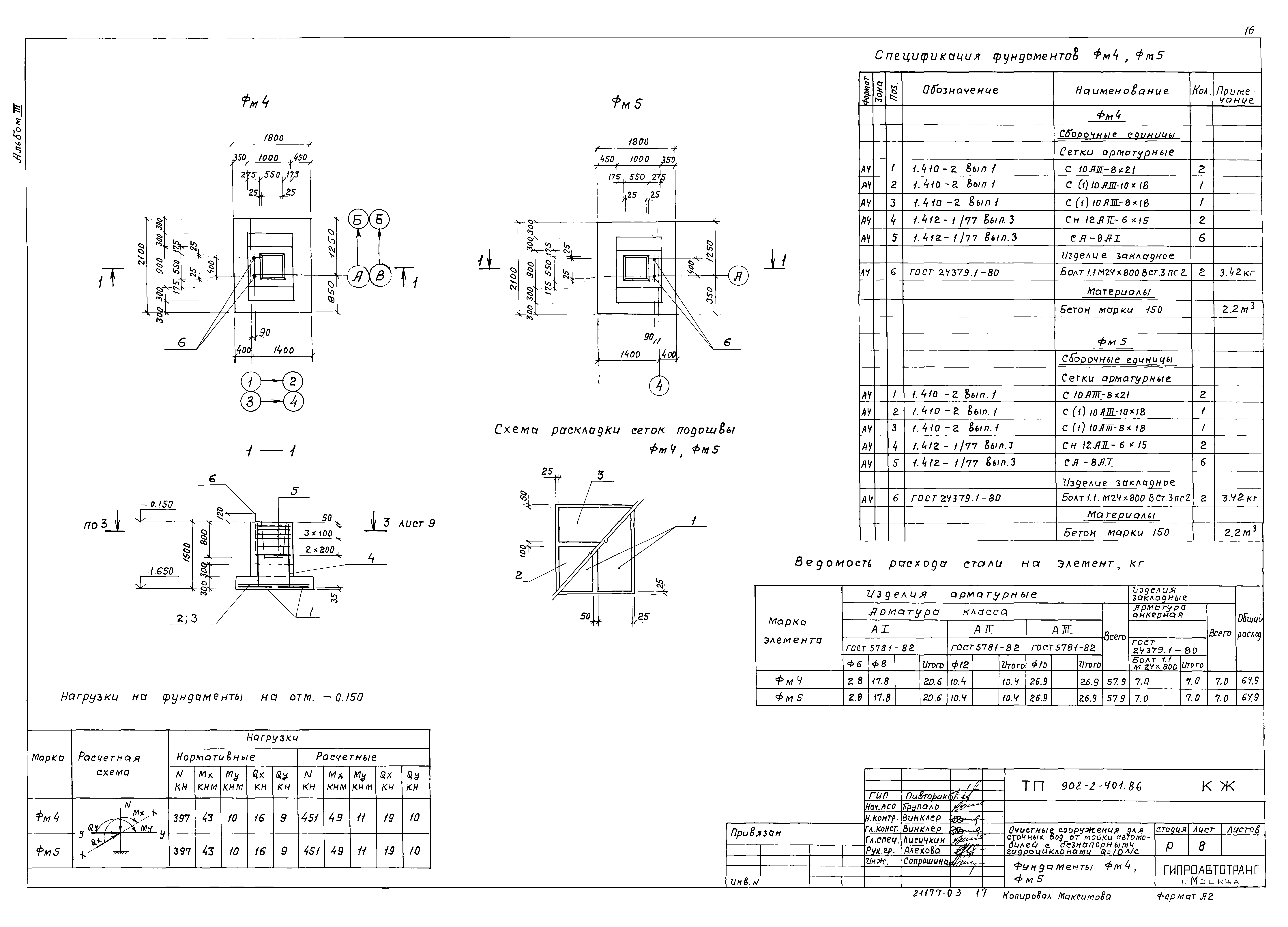
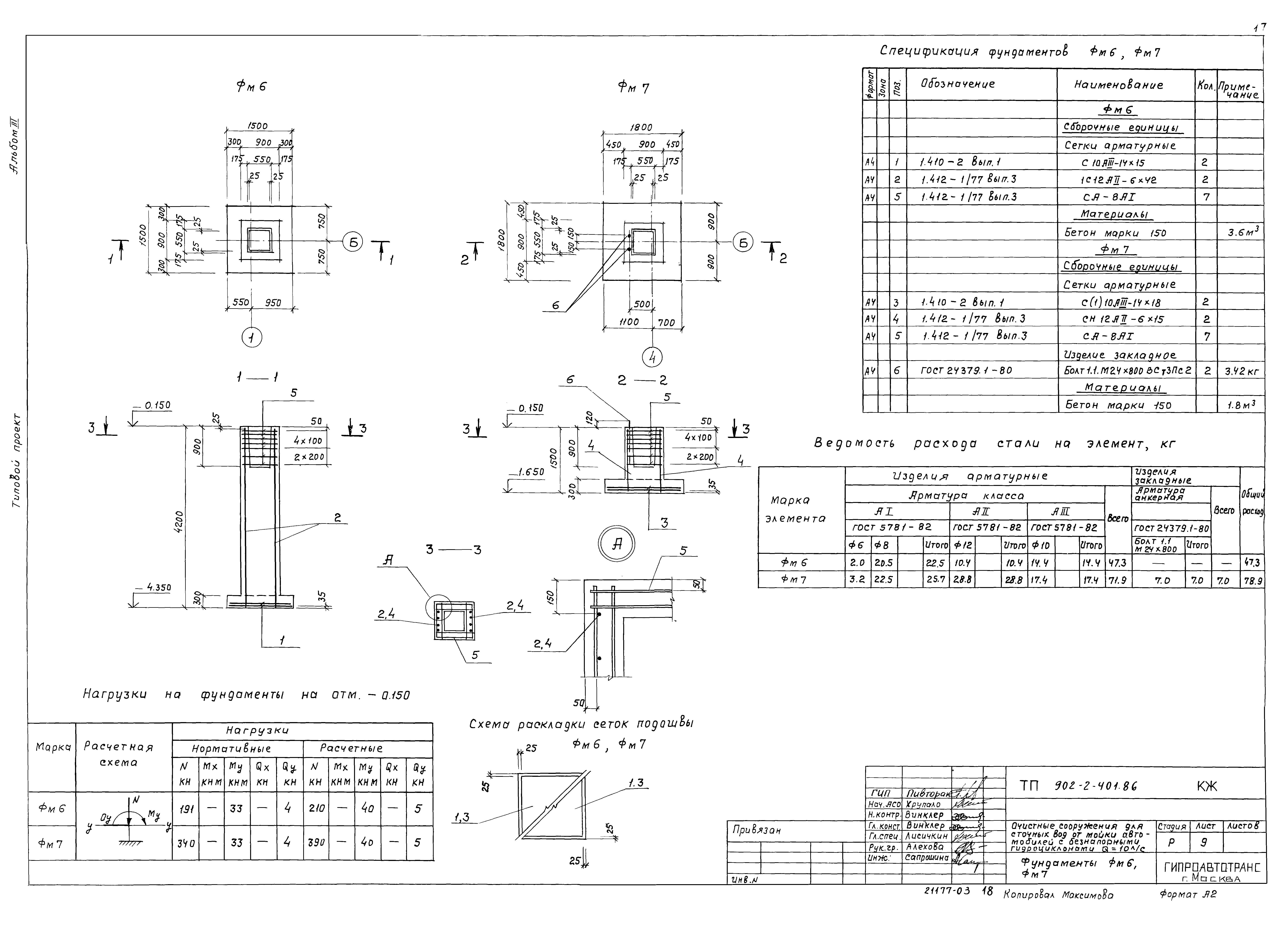
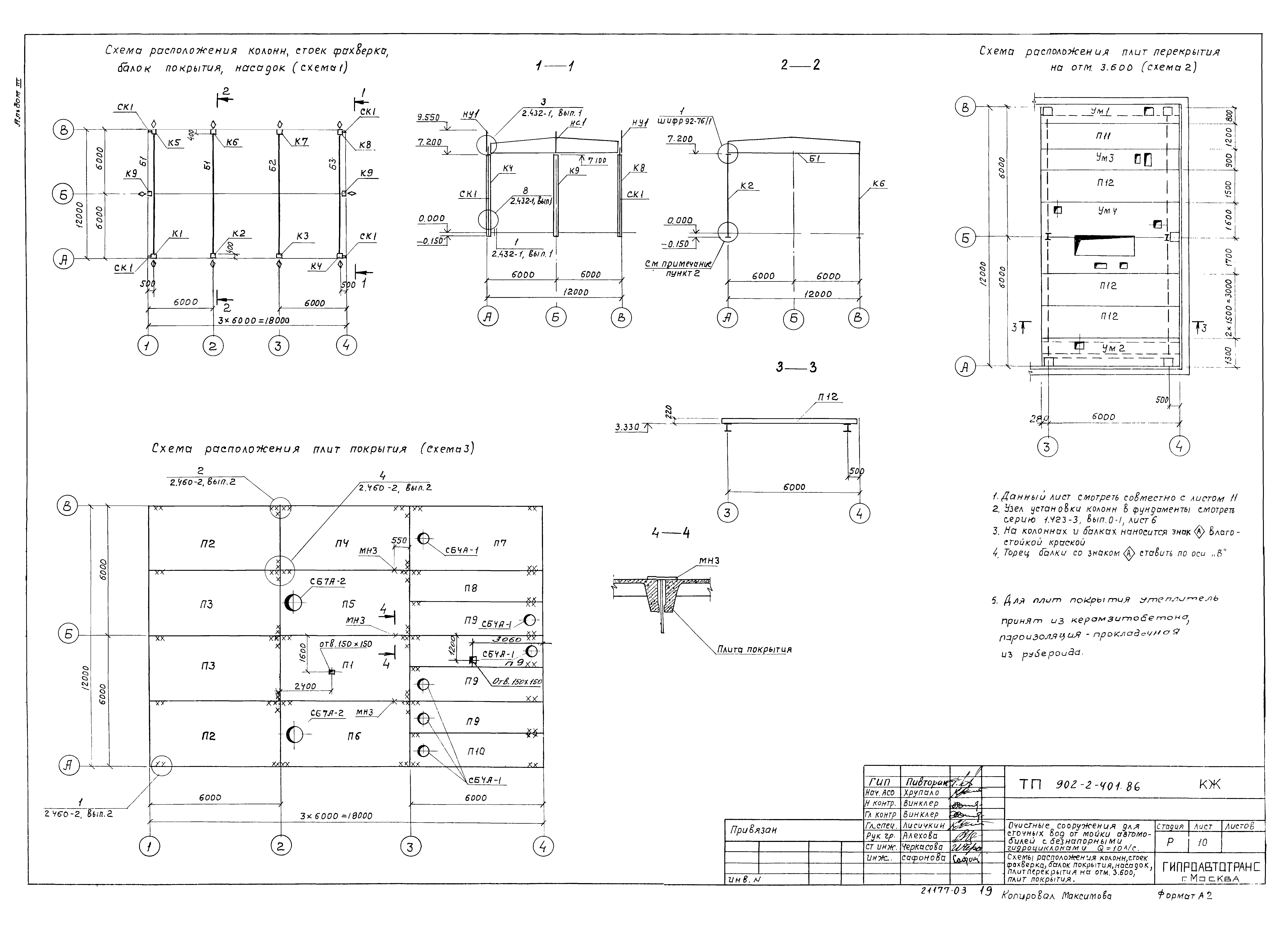
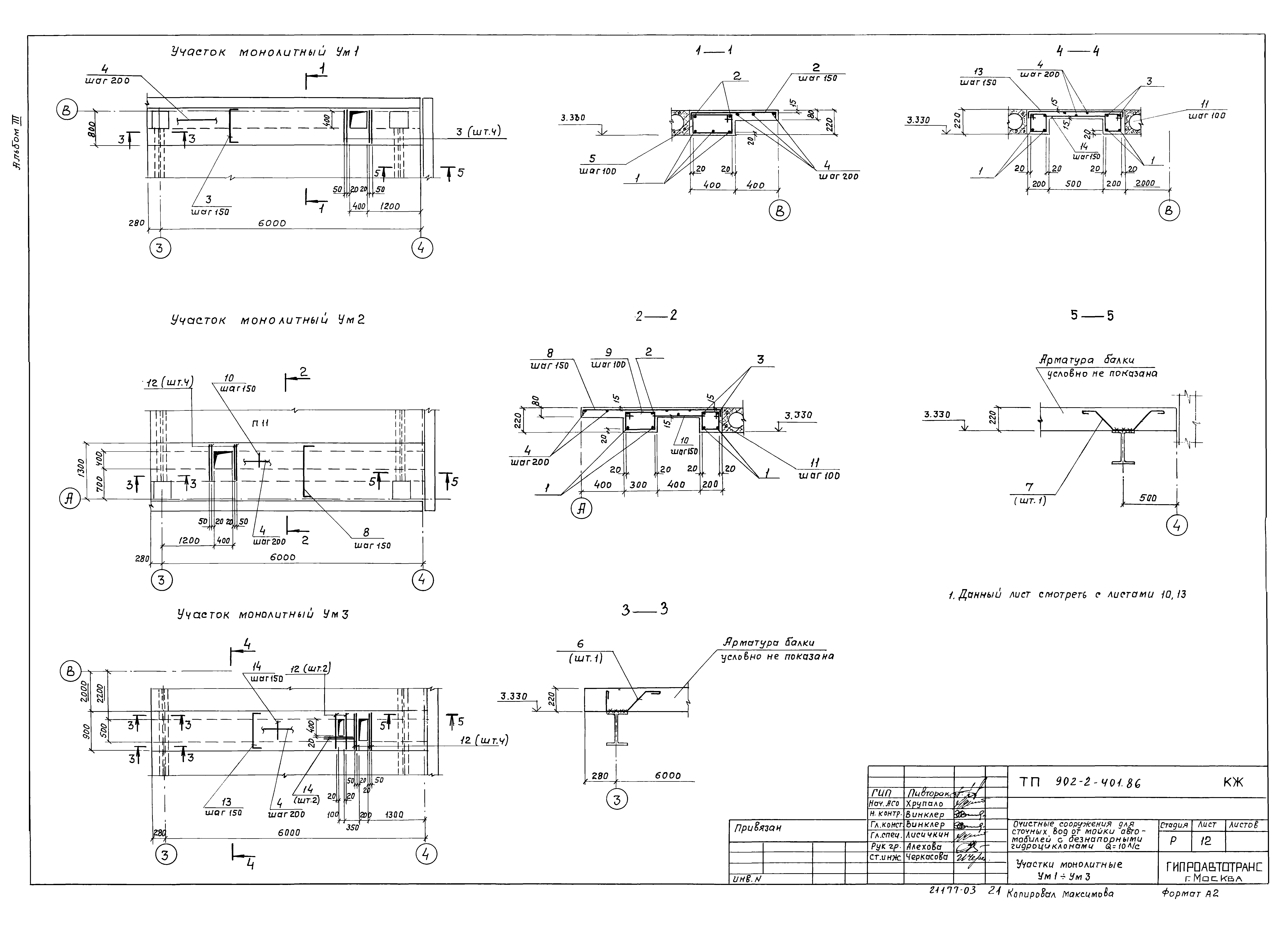
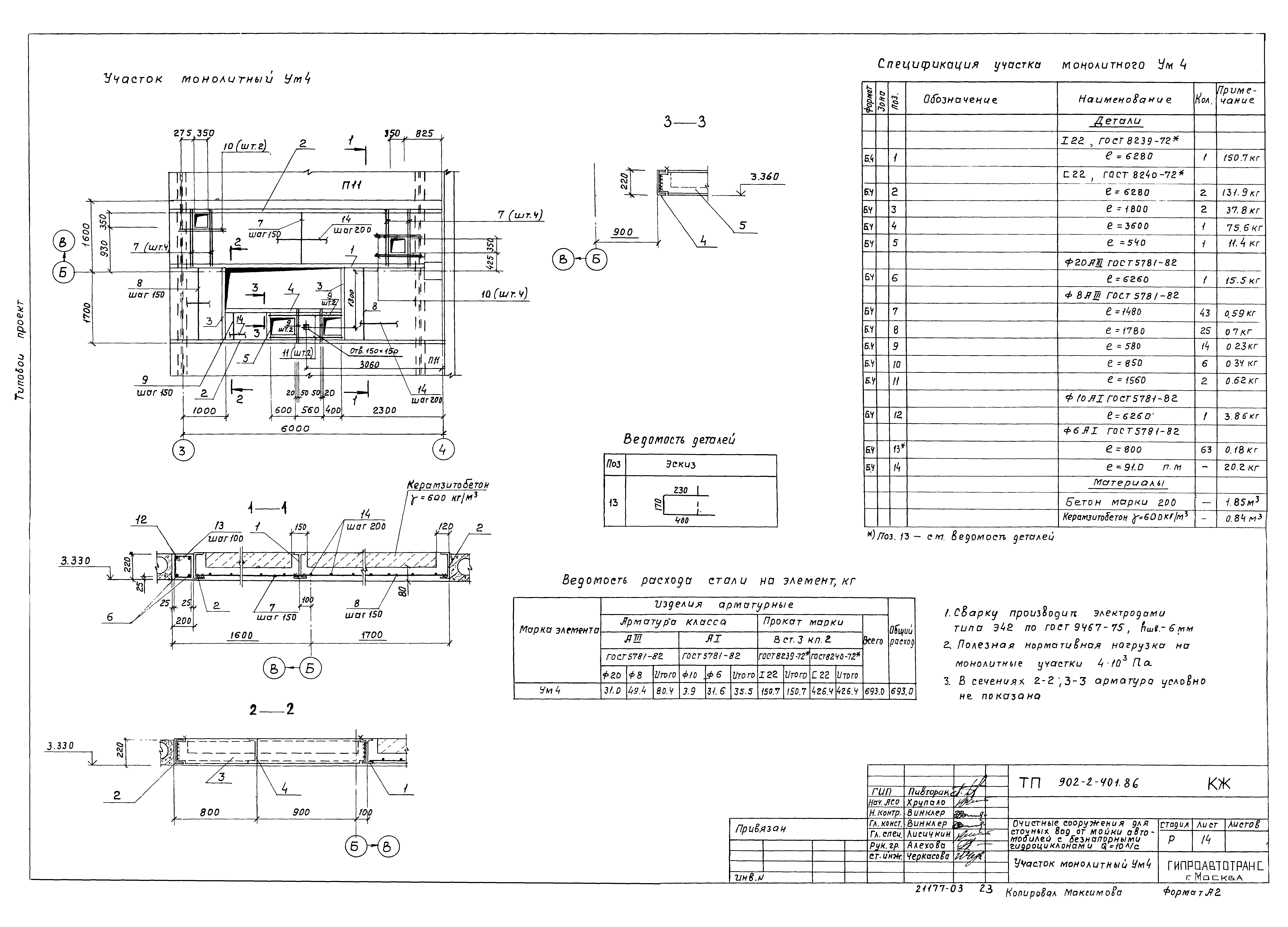
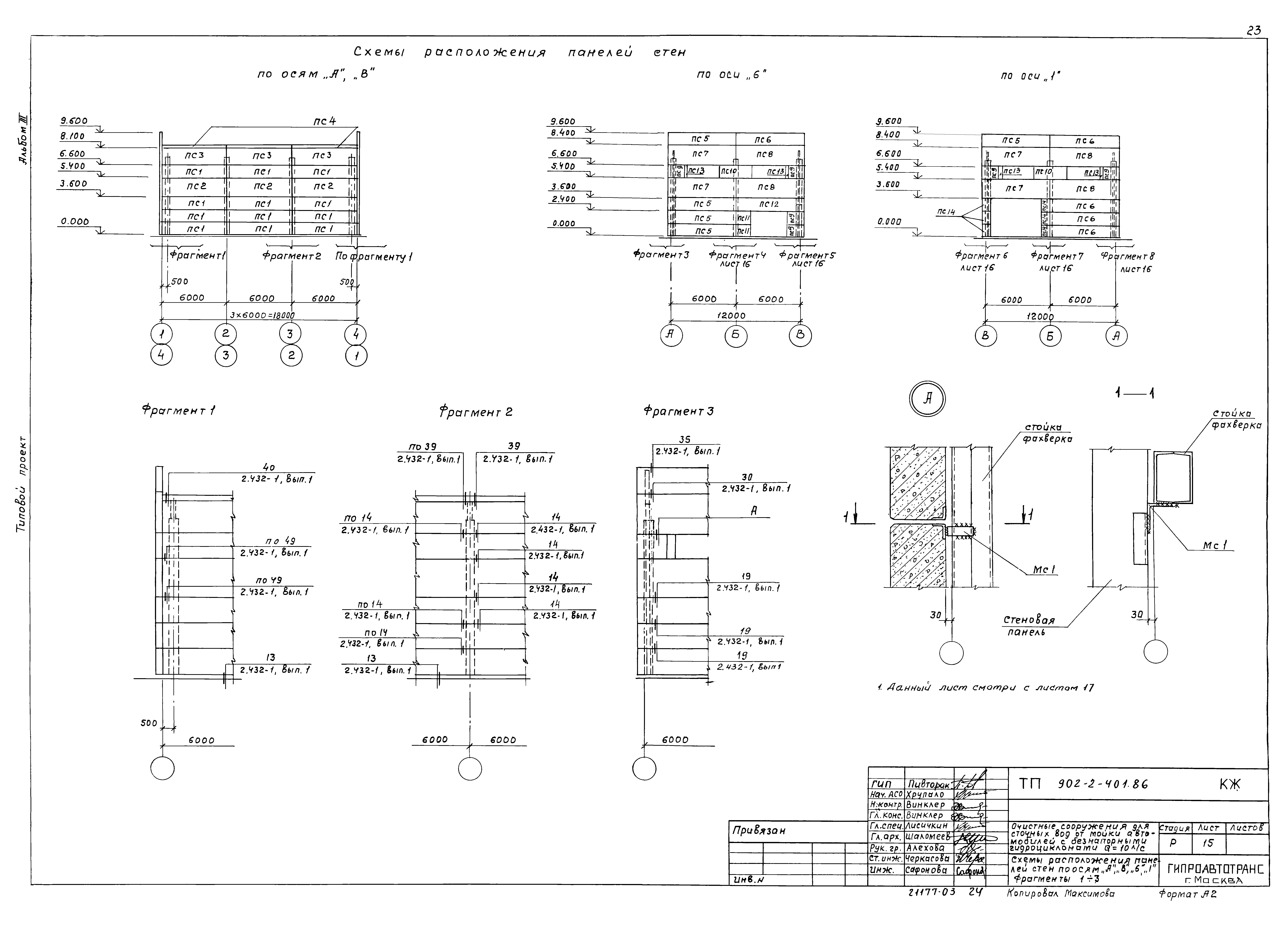
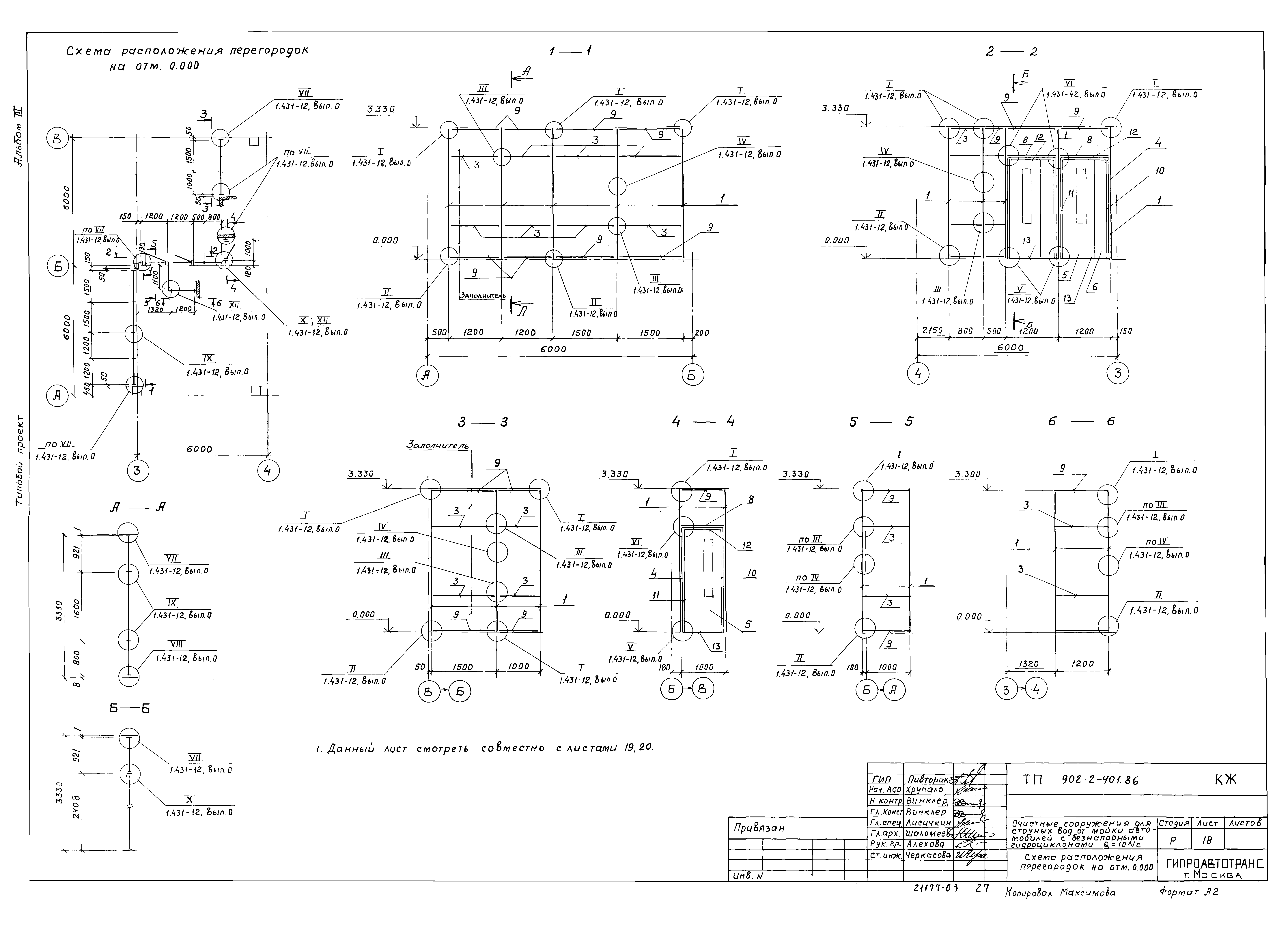
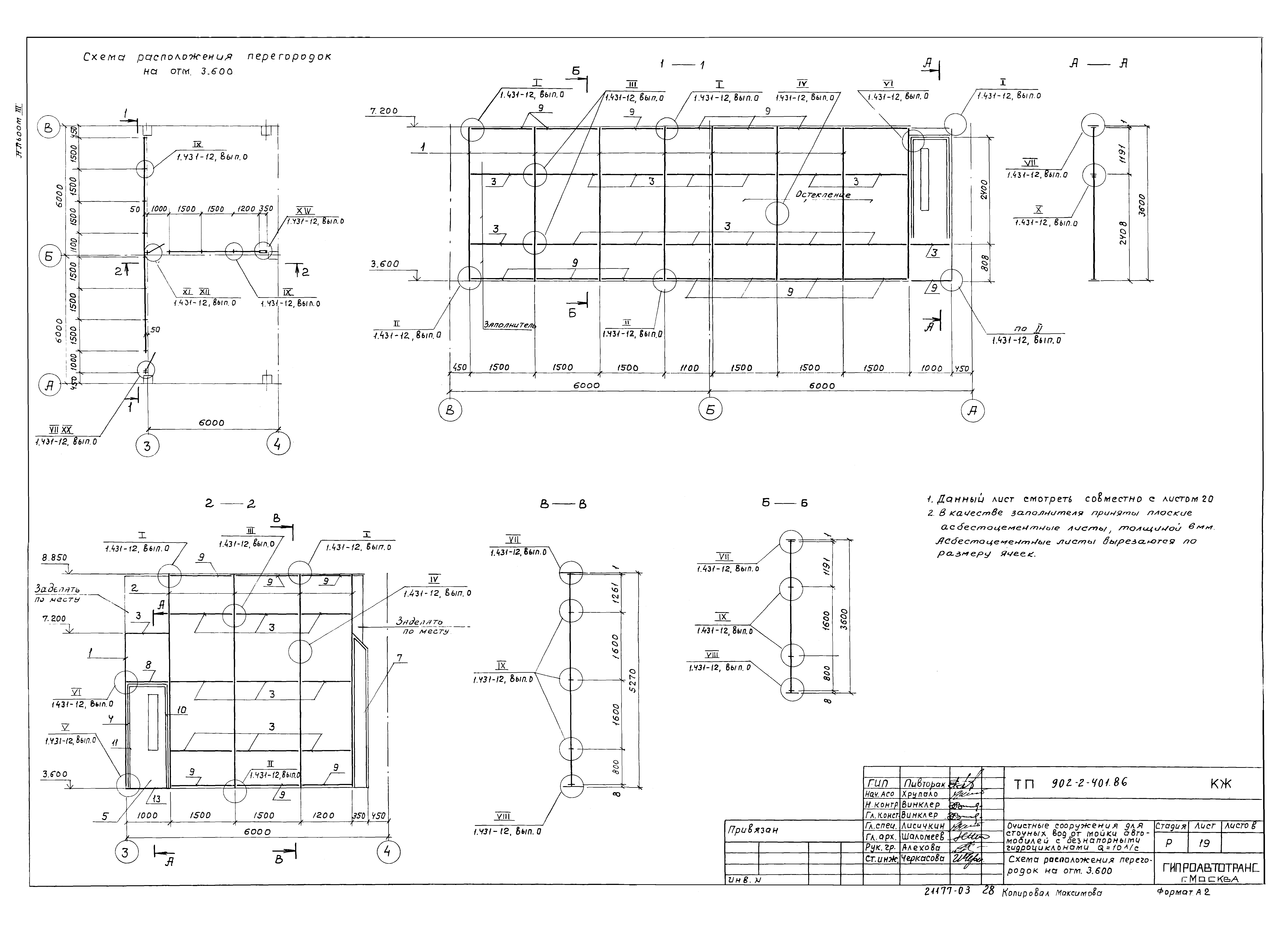
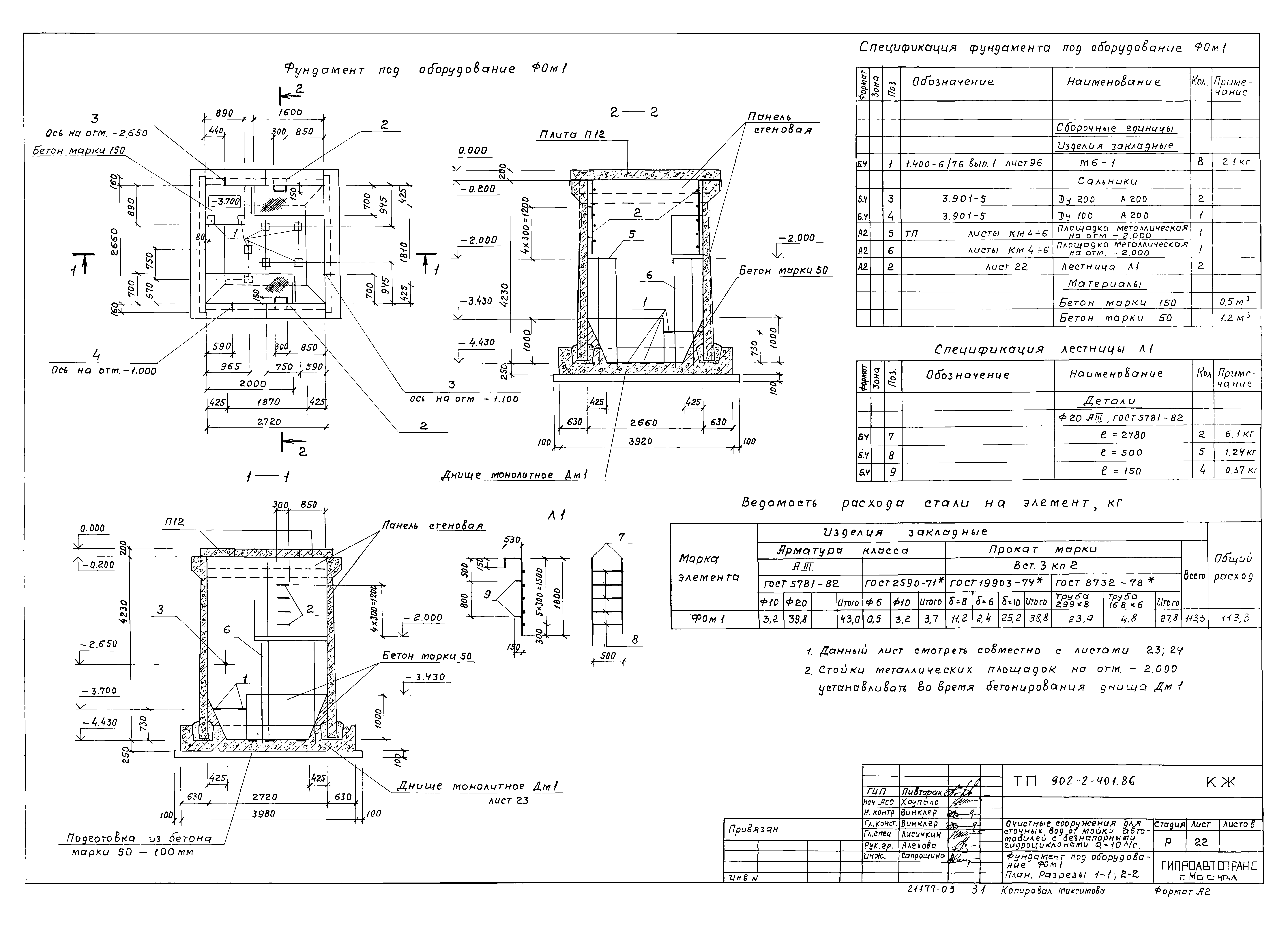
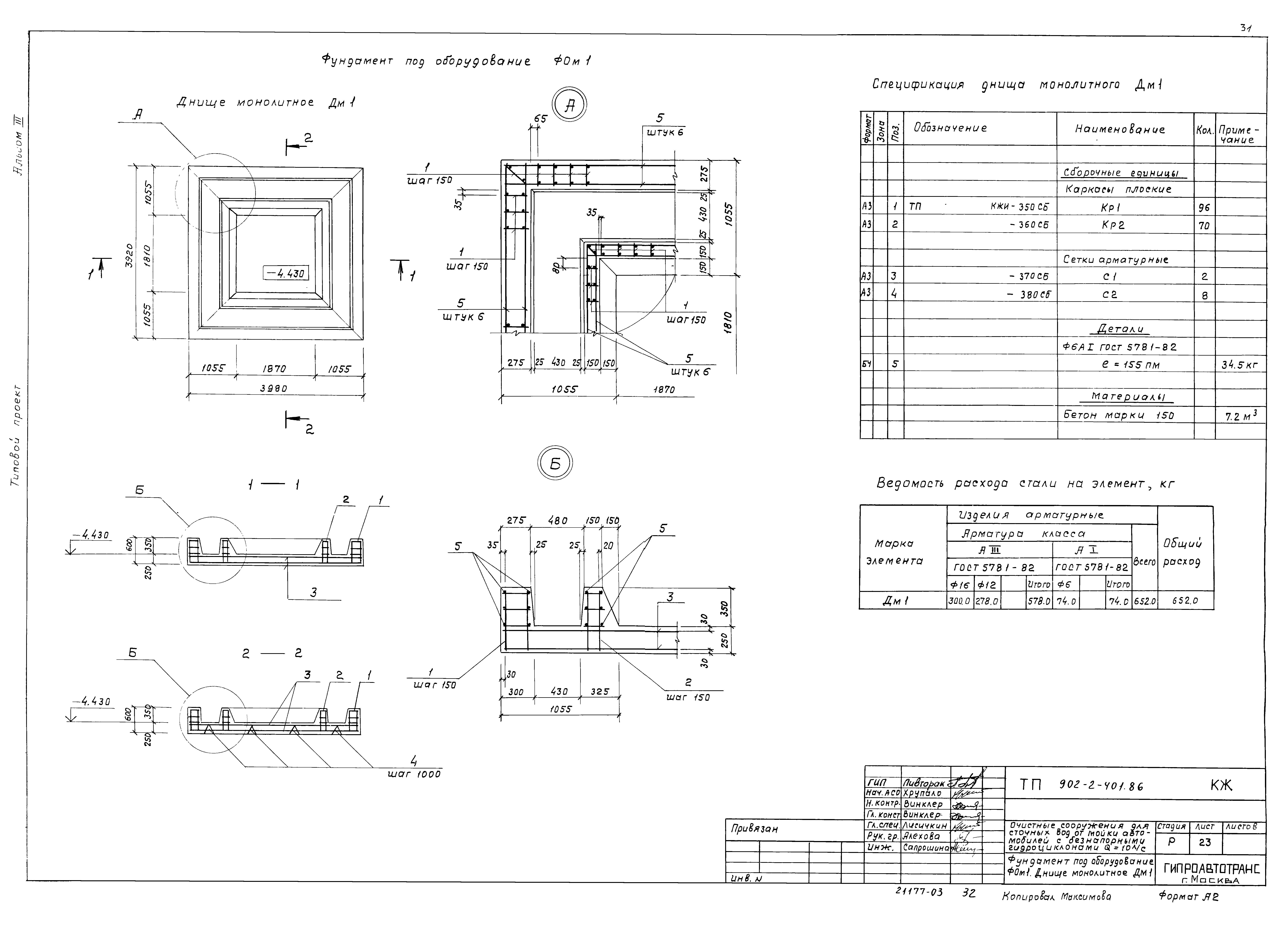
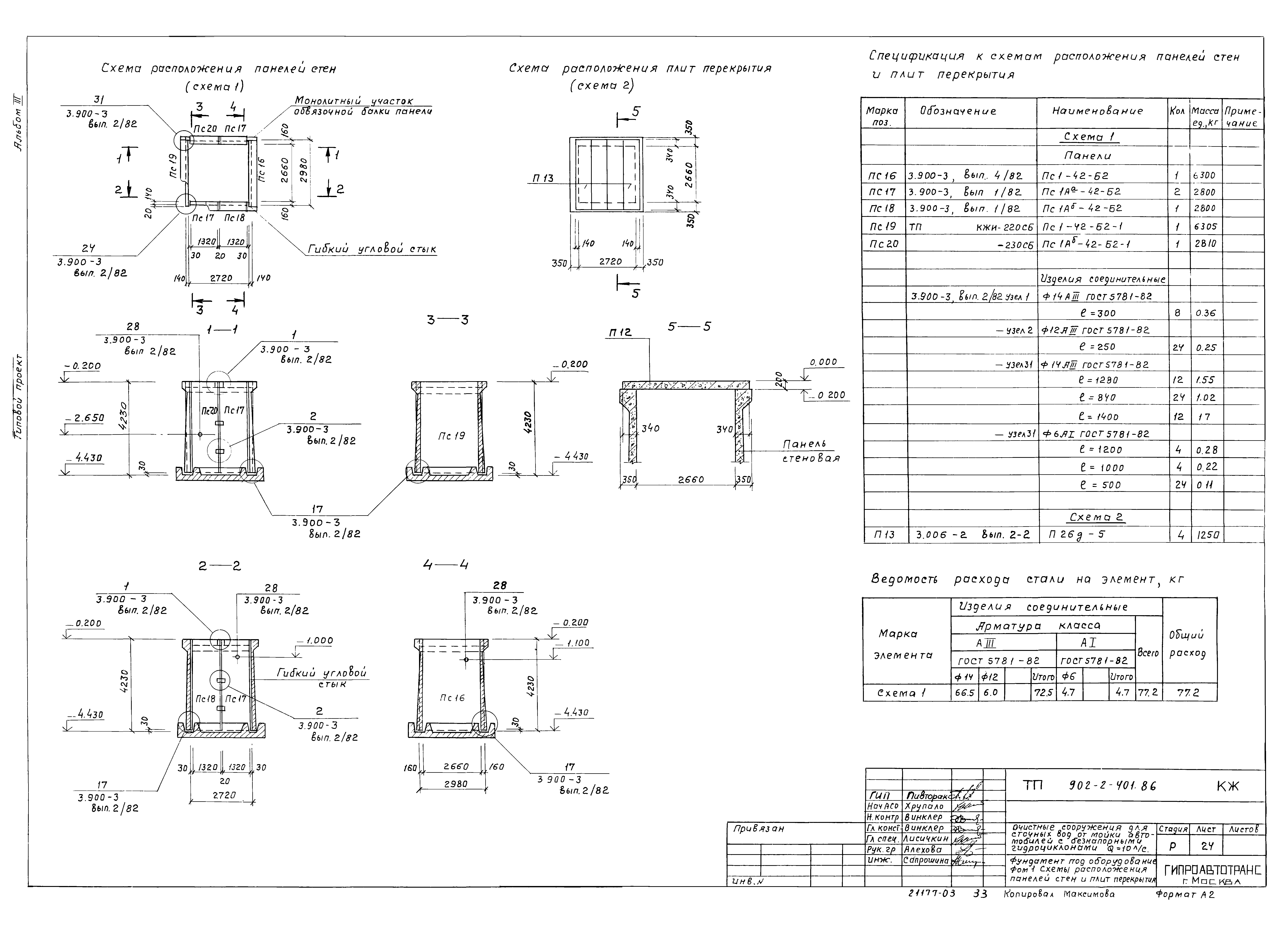
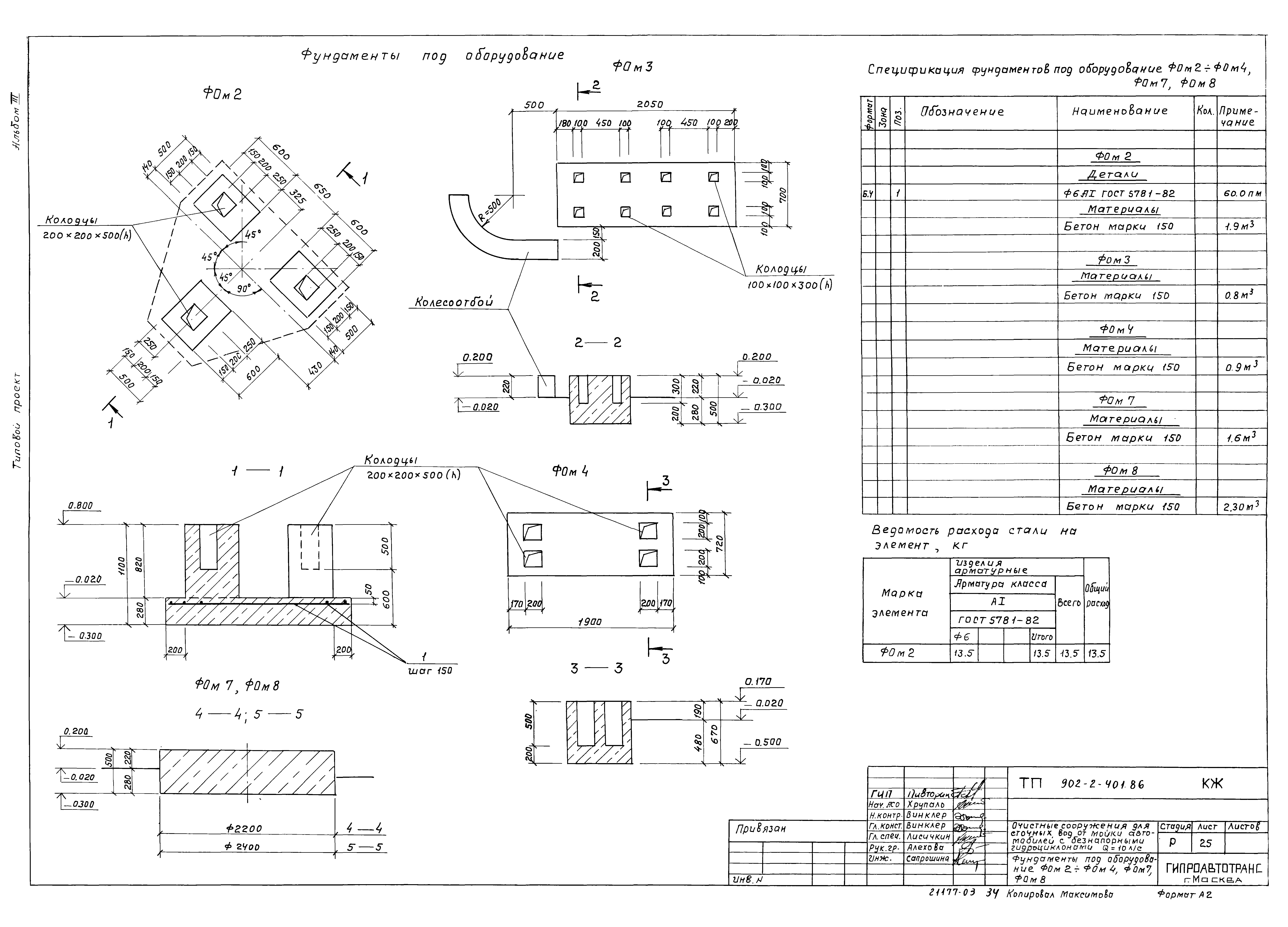
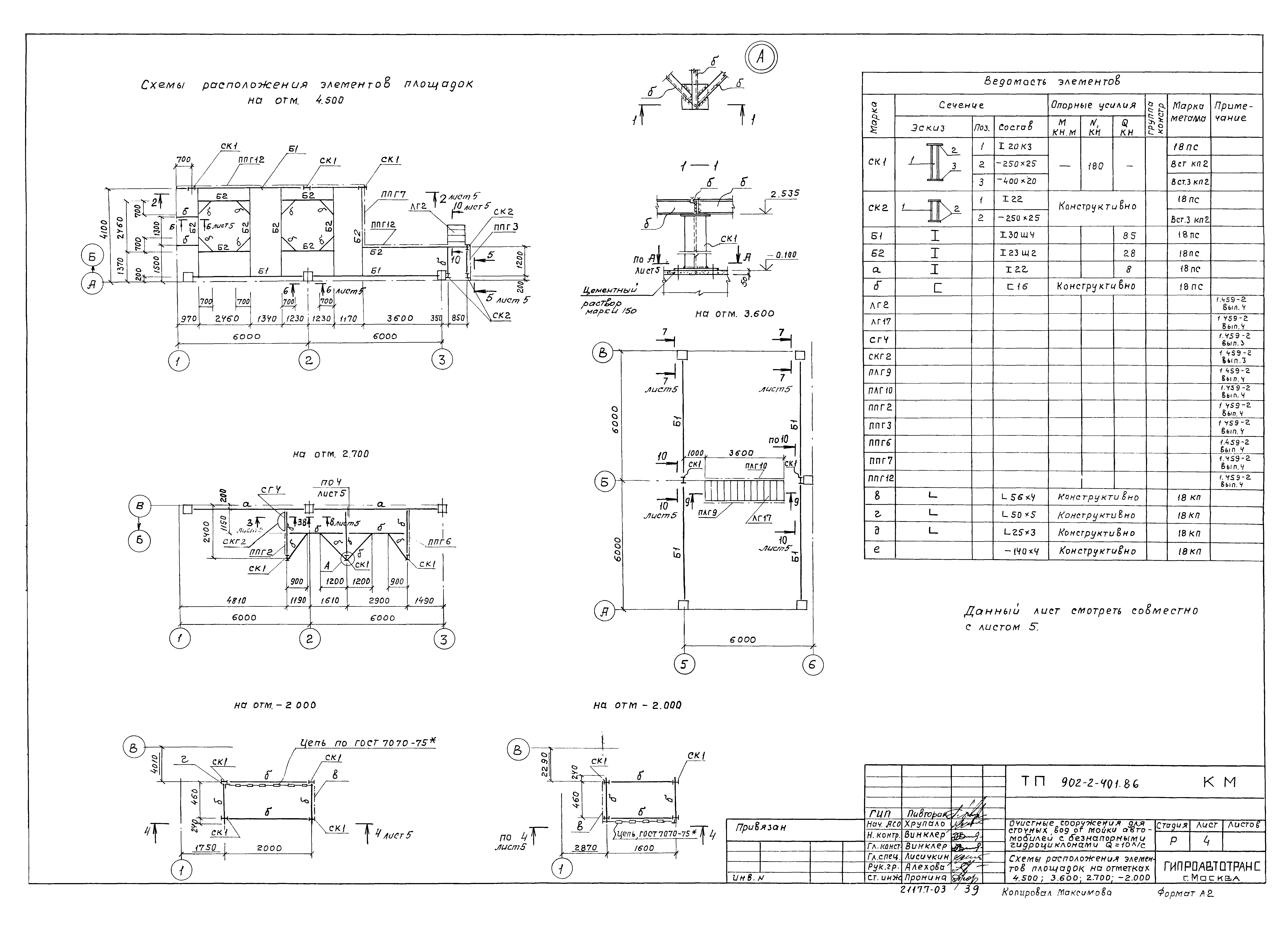
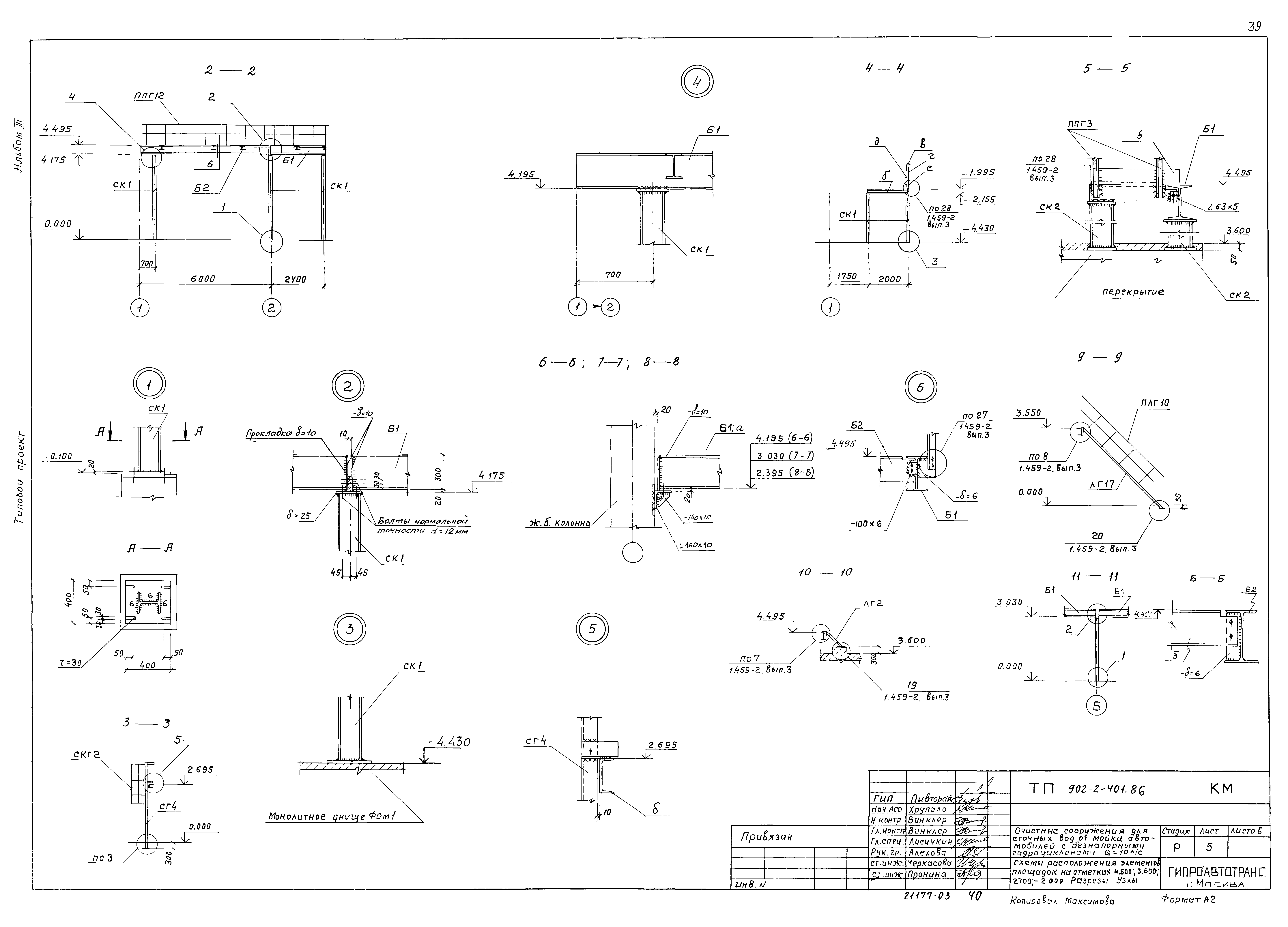
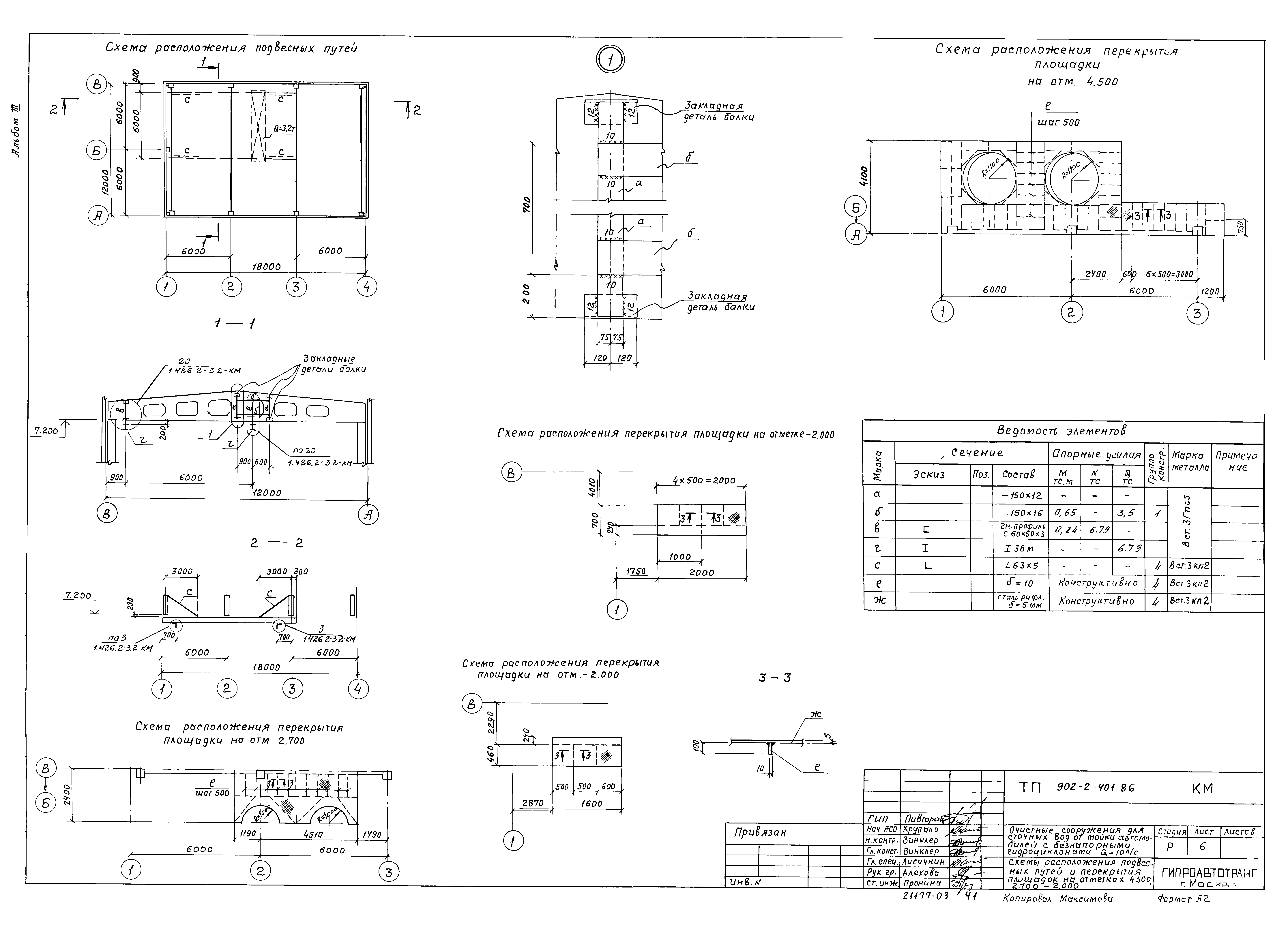
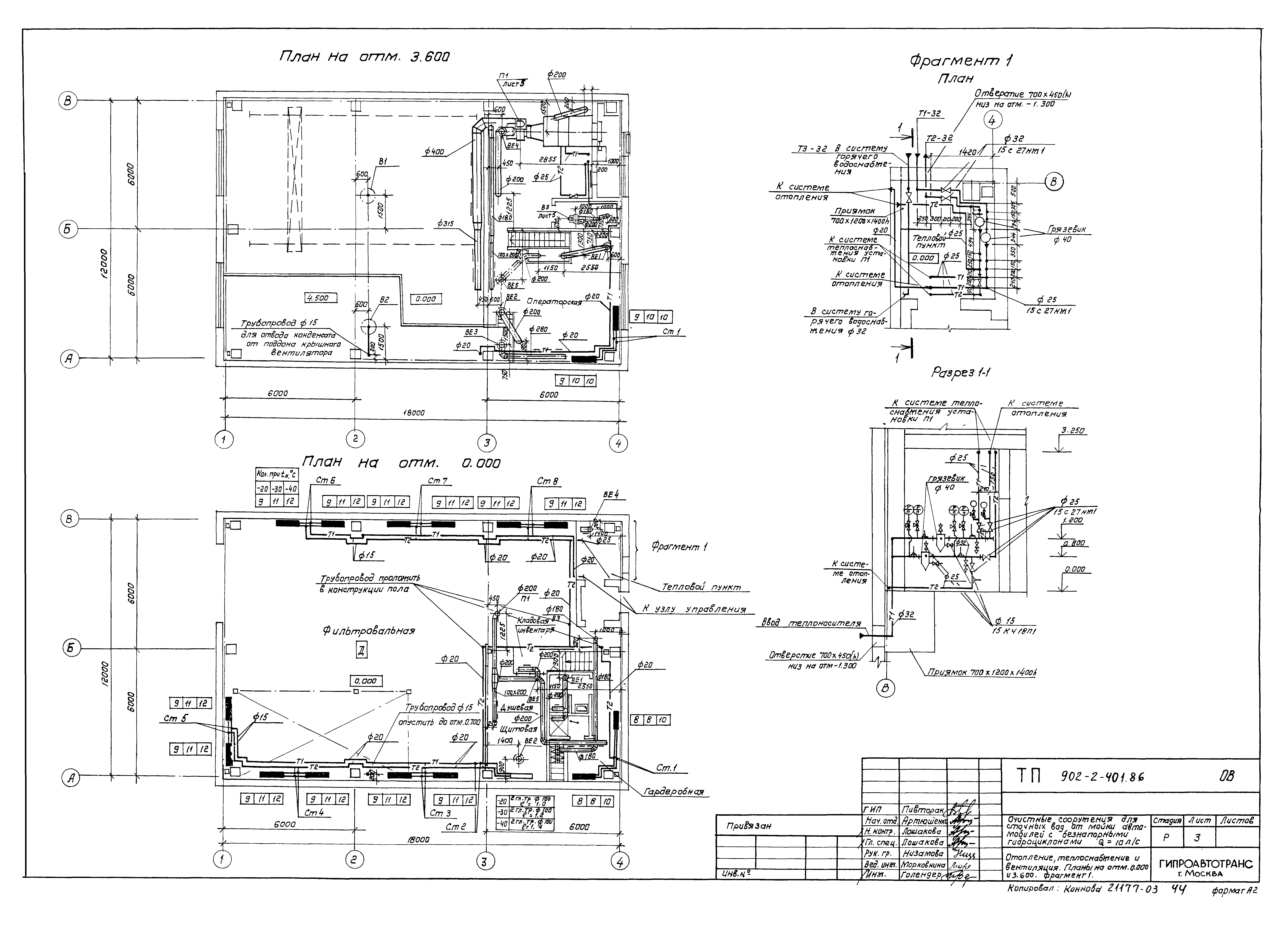
| Оглавление: | ТП 902-2-401.86 Титульный лист ТП 902-2-401.86 Содержание ТП 902-2-401.86-АР Архитектурные решения АР ТП 902-2-401.86-АР-1 Общие данные ТП 902-2-401.86-АР-2 План на отм. 0.000. Фрагмент 1 ТП 902-2-401.86-АР-3 План на отм. 3.600. Фрагмент 2 ТП 902-2-401.86-АР-4 Разрез 1-1. План полов. План кровли. Узлы 1,2,3 ТП 902-2-401.86-АР-5 Фасады ТП 902-2-401.86-АР-6 Схемы элементов заполнения оконных проемов. Спецификации. Узлы 4,5 ТП 902-2-401.86-КЖ Конструкции железобетонные КЖ ТП 902-2-401.86-КЖ-1 Общие данные (начало) ТП 902-2-401.86-КЖ-2 Общие данные (окончание) ТП 902-2-401.86-КЖ-3 Схема расположения фундаментов и фундаментных балок ТП 902-2-401.86-КЖ-4 Схема расположения фундаментов и фундаментных балок. Фрагменты 1-3 ТП 902-2-401.86-КЖ-5 Схема расположения фундаментов и фундаментных балок. Фрагменты 4,5 ТП 902-2-401.86-КЖ-6 Фундаменты ФМ1,ФМ2 ТП 902-2-401.86-КЖ-7 Фундаменты ФМ3,ФМ8,ФМ9 ТП 902-2-401.86-КЖ-8 Фундаменты ФМ4,ФМ5 ТП 902-2-401.86-КЖ-9 Фундаменты ФМ6,ФМ7 ТП 902-2-401.86-КЖ-10 Схемы расположения колонн, стоек, фахверка, балок покрытия, насадок, плит перекрытия на отм. 3.600, плит покрытия ТП 902-2-401.86-КЖ-11 Спецификация к схемам расположения колонн, стоек фахверка, балок покрытия, насадок, плит перекрытия на отм. 3.600, плит покрытия ТП 902-2-401.86-КЖ-12 Участки монолитные УМ1-УМ3 ТП 902-2-401.86-КЖ-13 Спецификация участков монолитных УМ1-УМ3 ТП 902-2-401.86-КЖ-14 Участок монолитный УМ4 ТП 902-2-401.86-КЖ-15 Схемы расположения панелей стен по осям "А","В",-"6","1". Фрагменты 1-3 ТП 902-2-401.86-КЖ-16 Схемы расположения панелей стен по осям "А","В","С","1". Фрагменты 4-8 ТП 902-2-401.86-КЖ-17 Схемы расположения панелей стен ТП 902-2-401.86-КЖ-18 Схемы расположения перегородок на отм. 0.000 ТП 902-2-401.86-КЖ-19 Схемы расположения перегородок на отм. 3.600 ТП 902-2-401.86-КЖ-20 Спецификация к схемам расположения перегородок 0.000,3.600. Спецификация на узлы к схемам расположения перегородок на отм. 0.000,3.600 ТП 902-2-401.86-КЖ-21 Схемы расположения фундаментов под оборудование ТП 902-2-401.86-КЖ-22 Фундаменты под оборудование ФОМ1. Разрез 1-1;2-2 ТП 902-2-401.86-КЖ-23 Фундаменты под оборудование ФОМ1. Днище монолитное ДМ1 ТП 902-2-401.86-КЖ-24 Фрагмент под оборудование ФОМ1. Схемы расположения панелей стен и плит перекрытия ТП 902-2-401.86-КЖ-25 Фундаменты под оборудование ФОМ2-ФОМ4,ФОМ7,ФОМ8 ТП 902-2-401.86-КЖ-26 Фундаменты под оборудование ФОМ5,ФОМ6,ФОМ9. Приямок ПР1 ТП 902-2-401.86-КМ Конструкции металлические КМ ТП 902-2-401.86-КМ-1 Общие данные (начало) ТП 902-2-401.86-КМ-2 Общие данные (продолжение) ТП 902-2-401.86-КМ-3 Общие данные (окончание) ТП 902-2-401.86-КМ-4 Схемы расположения элементов площадок на отметках 4.500,3.600,2.700-2.000 ТП 902-2-401.86-КМ-5 Схемы расположения элементов, площадок на отметках 4.500,3.600,2.700-2.000. Разрезы. Узлы ТП 902-2-401.86-КМ-6 Схемы расположения подвесных путей и перекрытия площадок на отметках УТ00,2.700-2.000 ТП 902-2-401.86-ОВ Отопление и вентиляция ОВ ТП 902-2-401.86-ОВ-1 Общие данные (начало) ТП 902-2-401.86-ОВ-2 Общие данные (окончание) ТП 902-2-401.86-ОВ-3 Отопление, теплоснабжение и вентиляция. Планы на отм. 0.000 и 3.600. Фрагмент 1 ТП 902-2-401.86-ОВ-4 Схемы узла управления систем отопления, теплоснабжения, установки П1, систем вентиляции П1, В1-В3, ВЕ1-ВЕ5 ТП 902-2-401.86-ОВ-5 Установка систем П1,В3 ТП 902-2-401.86-ОВН Чертежи общих видов нетиповых конструкций ОВН ТП 902-2-401.86-ОВН Содержание ТП 902-2-401.86-ОВН-1 Поддон к стакану Ф700 для крышного вентилятора ТП 902-2-401.86-ОВН-2 Регистр из гладких труб ТП 902-2-401.86-ОВН-3 Конструкция тепловой изоляции |
| Разработан: | Гипроавтотранс |
| Утверждён: | 27.03.1985 Минавтотранс РСФСР (Russian Federation Minavtotrans 55) |
| Чем заменён: |
















































