Скачать Серия 2.445-1 Выпуск 0. Указания по проектированиюДата актуализации: 01.01.2021
|
| Обозначение: | Серия 2.445-1 |
| Обозначение англ: | Series 2.445-1 |
| Статус: | не действует |
| Название рус.: | Выпуск 0. Указания по проектированию |
| Дата добавления в базу: | 01.09.2013 |
| Дата актуализации: | 01.01.2021 |
| Дата введения: | 01.09.1974 |
| Дата окончания срока действия: | 01.06.1988 |
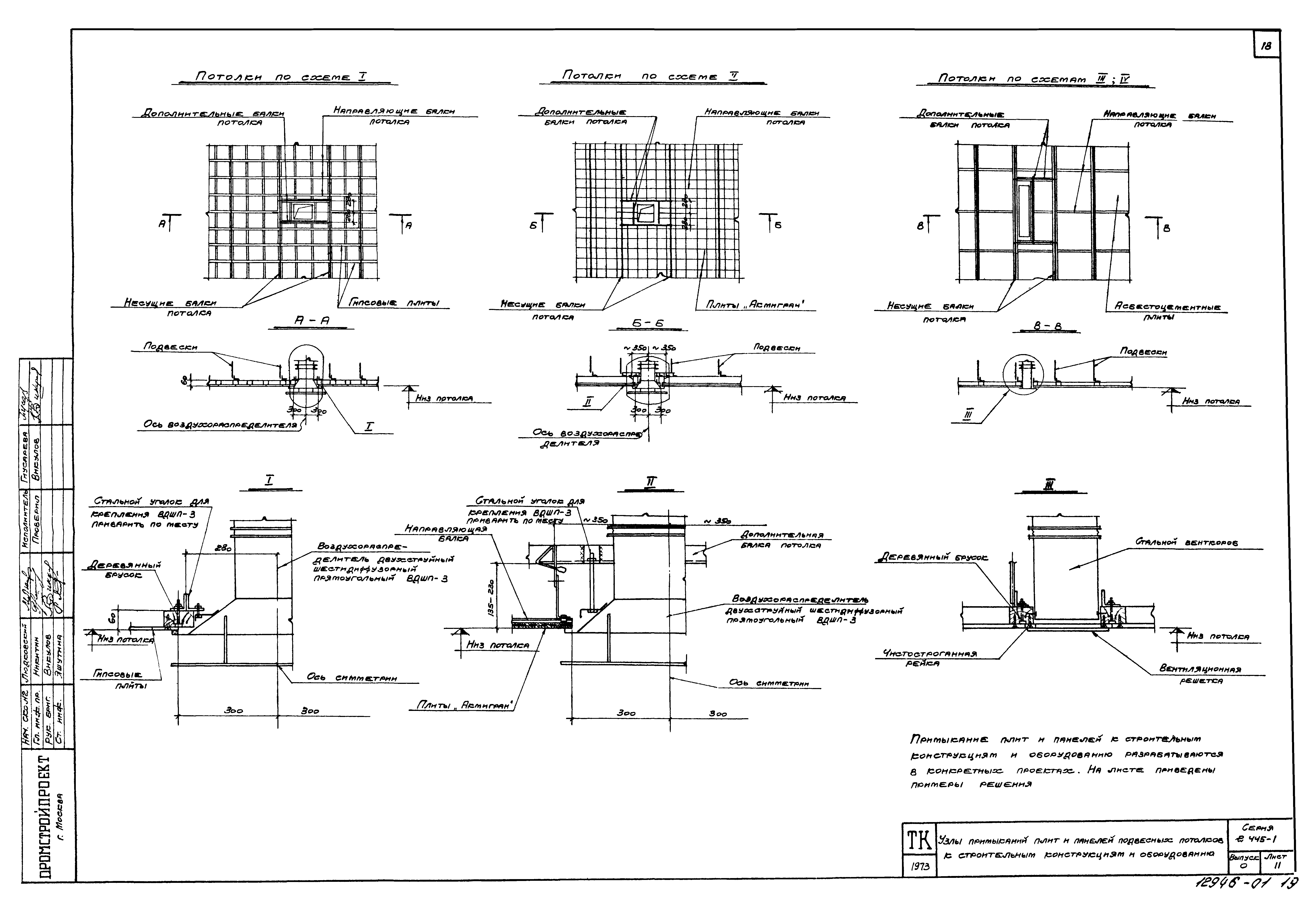
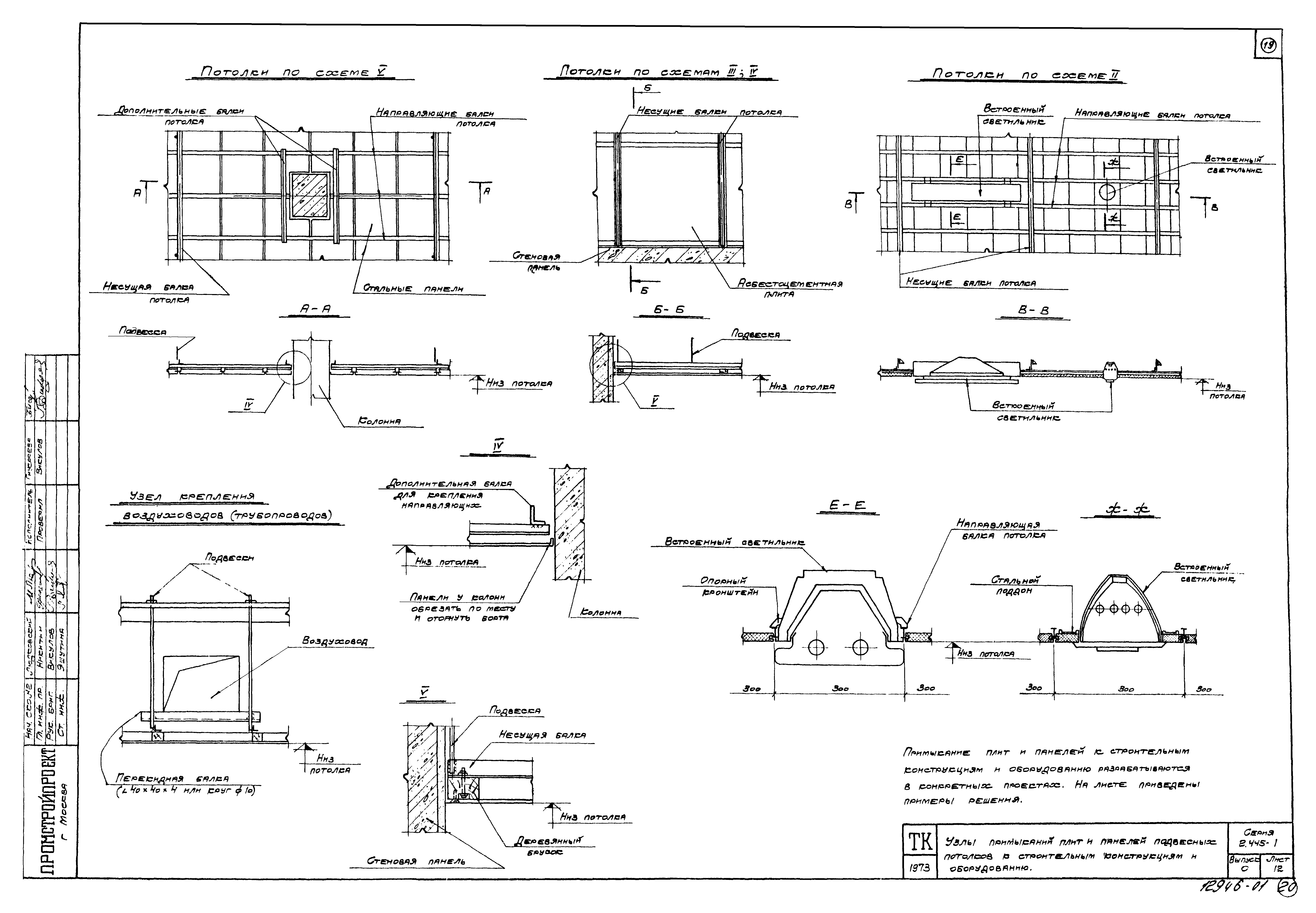
| Оглавление: | 2.445-1 Титульный лист 2.445-1 Содержание 2.445-1 Пояснительная записка 2.445-1 Пояснительная записка (продолжение) 2.445-1 Номенклатура непроходных подвесных потолков 2.445-1 Таблица возможного расположения светильников относительно несущих балок подвесных потолков 2.445-1 Унифицированная схема стального каркаса подвесного потолка 2.445-1 Схема 1. Потолок из акустических перфорированных гипсовых плит 500х500х10 мм 2.445-1 Схема 2. Потолок из акустических плит типа "Акмигран" 300х300х20 мм 2.445-1 Схема 3. Потолок из асбестоцементных прессованных плит 1200х1200х8 мм 2.445-1 Схема 4. Потолок из асбестоцементных перфорированных плит 1200х750х5 мм 2.445-1 Схема 5. Потолок из стальных перфорированных панелей 499х499 мм 2.445-1 Схема 6. Потолок из алюминиевых перфорированных панелей 499х499 мм 2.445-1 Схема 7. Потолок из алюминиевых перфорированных панелей 599х599 мм и 599х1199 мм 2.445-1 Схема 8. Потолок из усиленных асбестоцементных плит с потолочными светильниками 2.445-1 Схема 9. Потолок из усиленных асбестоцементных плит со встроенными светильниками 2.445-1 Узлы примыканий плит и панелей подвесных потолков к строительным конструкциям и оборудованию |
| Разработан: | Промстройпроект |
| Утверждён: | 30.01.1973 Госстрой СССР (Государственный комитет Совета Министров СССР по делам строительства) (USSR Gosstroy ) |




















