Скачать Серия 2.445-1 Выпуск 4. Изделия крепления светильниковДата актуализации: 01.01.2021
|
| Обозначение: | Серия 2.445-1 |
| Обозначение англ: | Series 2.445-1 |
| Статус: | не действует |
| Название рус.: | Выпуск 4. Изделия крепления светильников |
| Дата добавления в базу: | 01.09.2013 |
| Дата актуализации: | 01.01.2021 |
| Дата введения: | 01.09.1974 |
| Дата окончания срока действия: | 01.06.1988 |
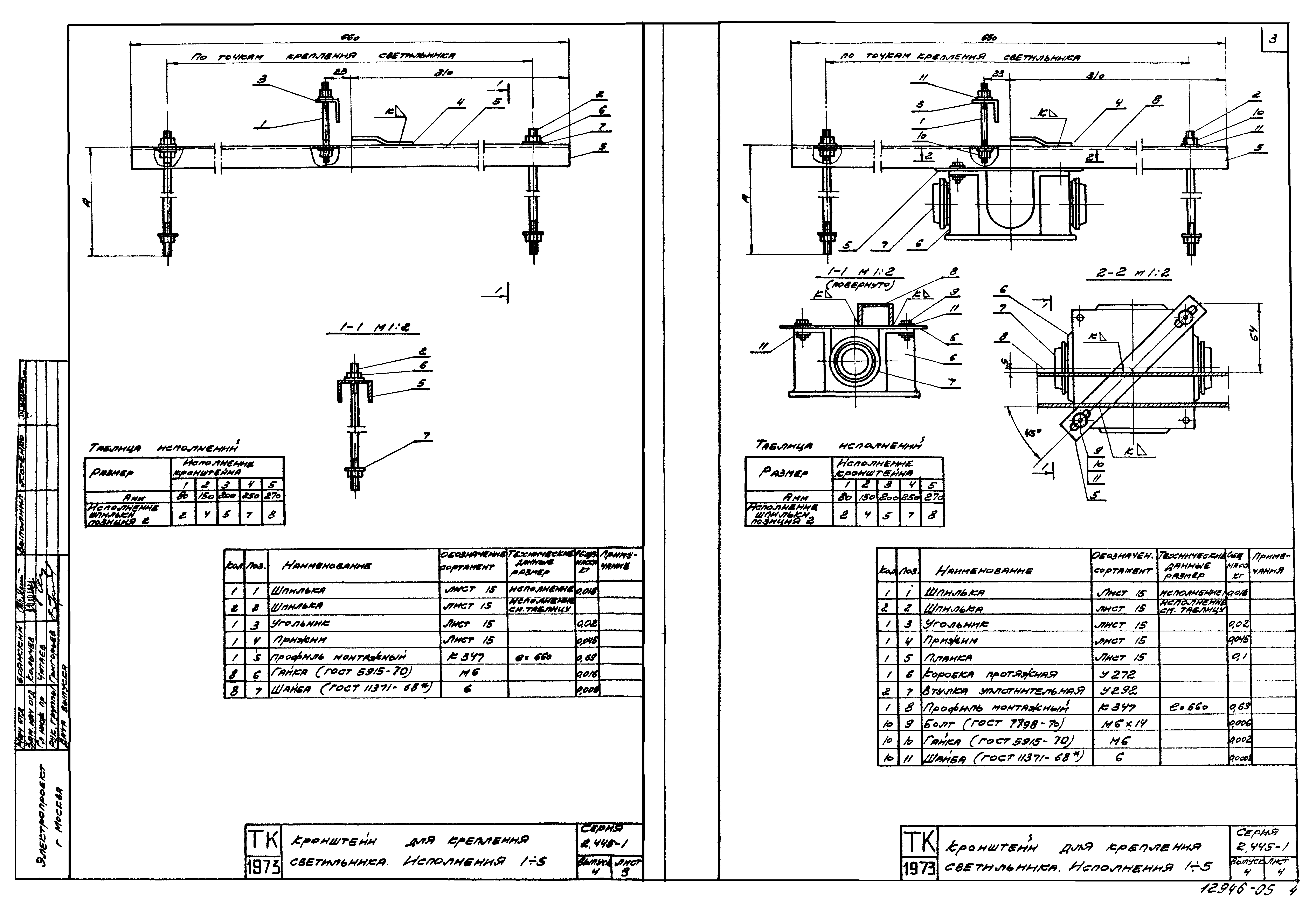
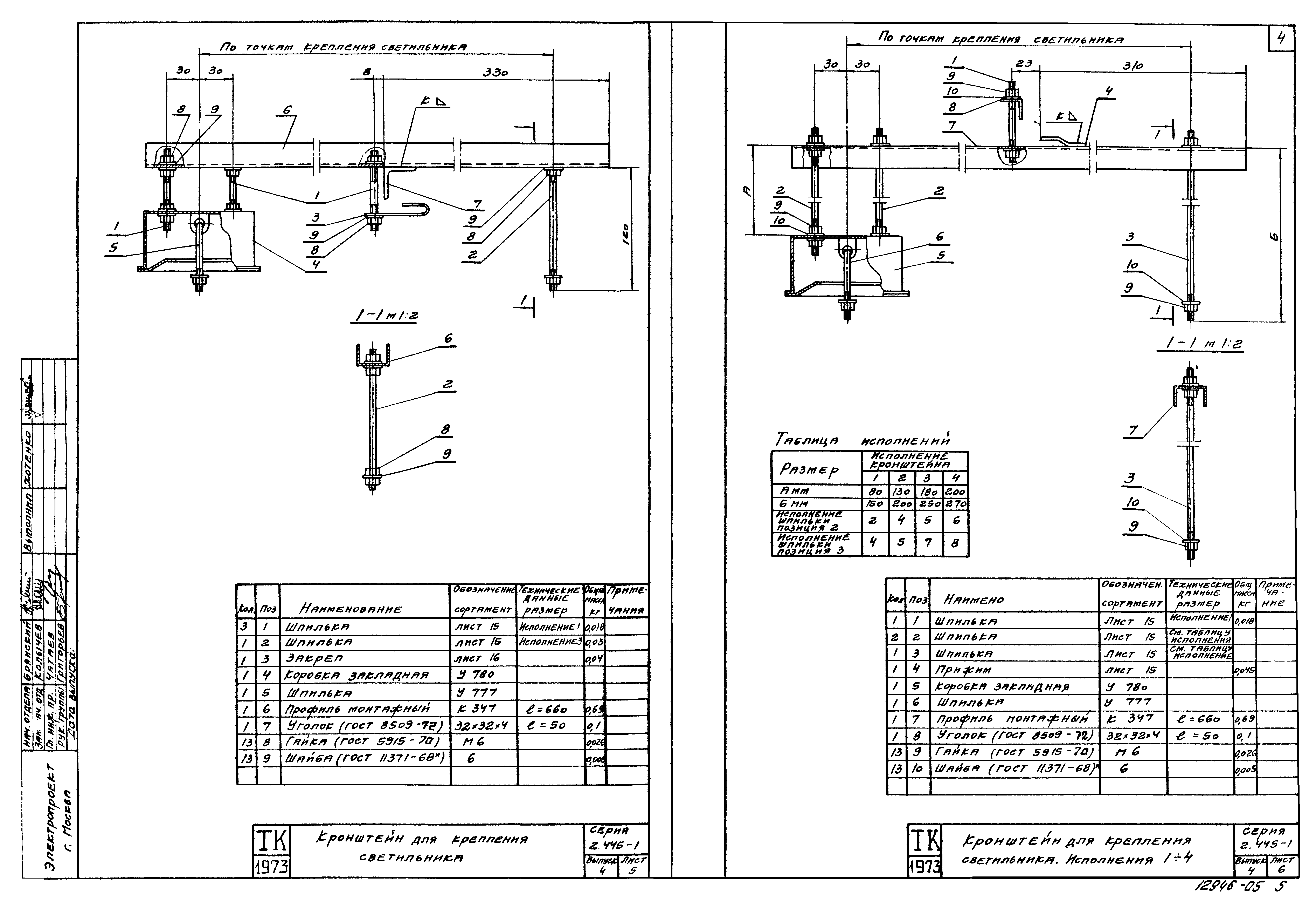
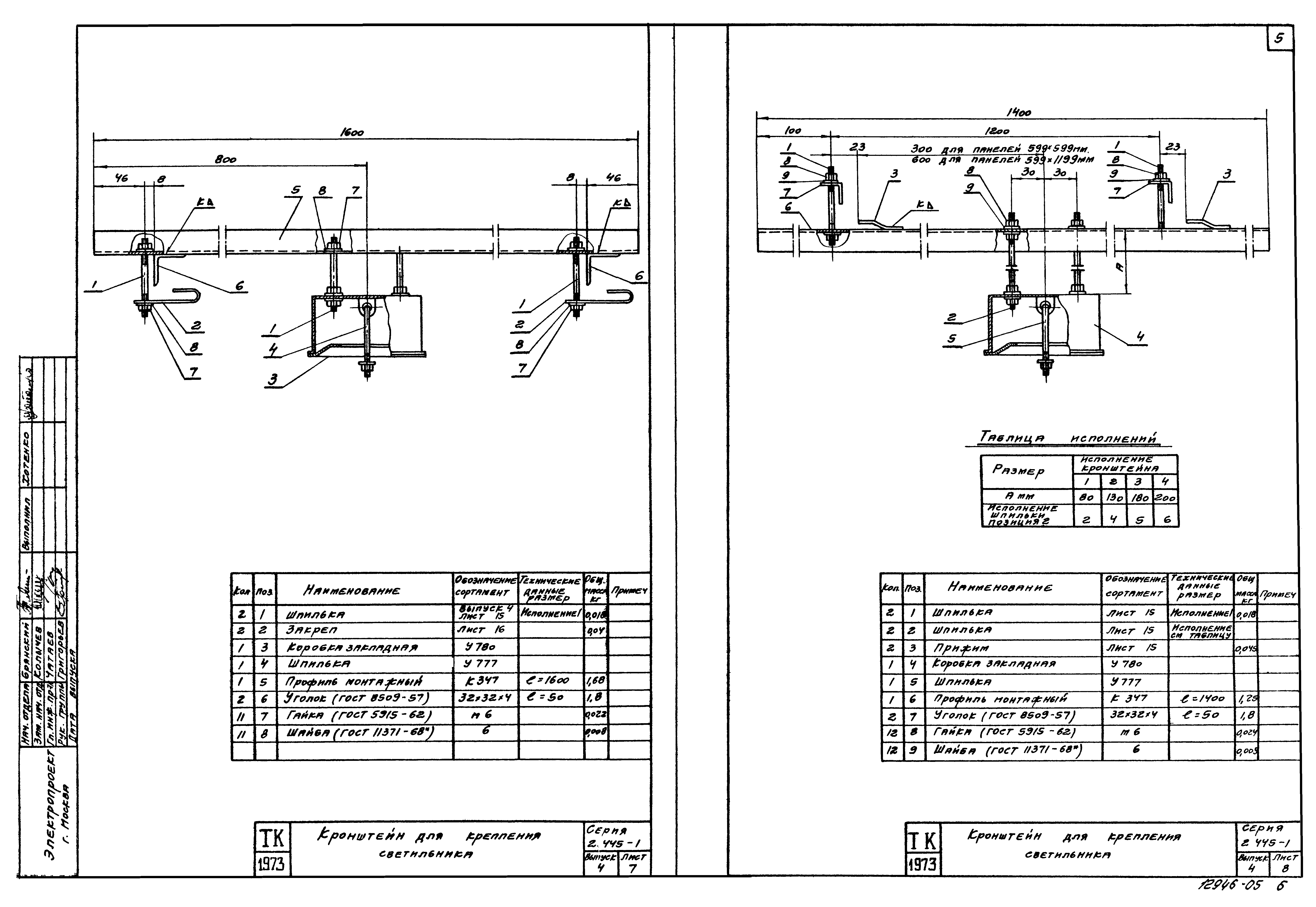
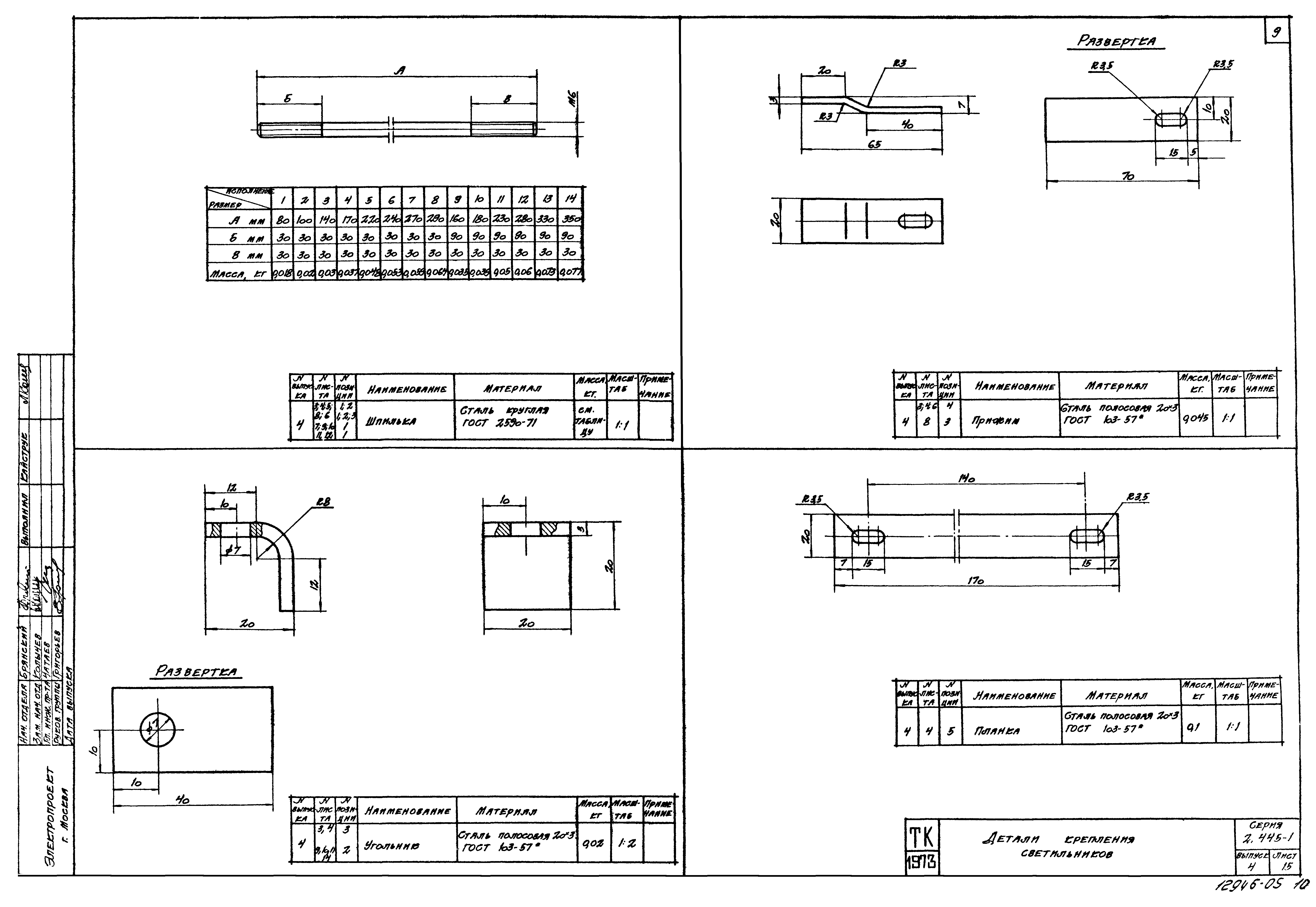
| Оглавление: | 2.445-1 Титульный лист 2.445-1 Содержание 2.445-1 Кронштейн для крепления светильника. Исполнения 1-5 2.445-1 Кронштейн для крепления светильника 2.445-1 Кронштейн для крепления светильника. Исполнения 1-4 2.445-1 Кронштейн для крепления светильника 2.445-1 Кронштейн для крепления светильника. Исполнения 1-4 2.445-1 Коробка комплектная. Исполнения 1,2 2.445-1 Коробка комплектная. Исполнения 1-4 2.445-1 Коробка комплектная 2.445-1 Закреп. Исполнения 1-6 2.445-1 Детали крепления светильников |
| Разработан: | ГПИ Электропроект |
| Утверждён: | 30.01.1973 Госстрой СССР (Государственный комитет Совета Министров СССР по делам строительства) (USSR Gosstroy ) |











