Скачать Типовой проект 902-2-377.83 Альбом II. Строительная частьДата актуализации: 01.01.2021
|
| Обозначение: | Типовой проект 902-2-377.83 |
| Обозначение англ: | 902-2-377.83 |
| Статус: | заменен |
| Название рус.: | Альбом II. Строительная часть |
| Дата добавления в базу: | 01.09.2013 |
| Дата актуализации: | 01.01.2021 |
| Дата введения: | 27.07.1983 |
| Дата окончания срока действия: | 01.03.1990 |
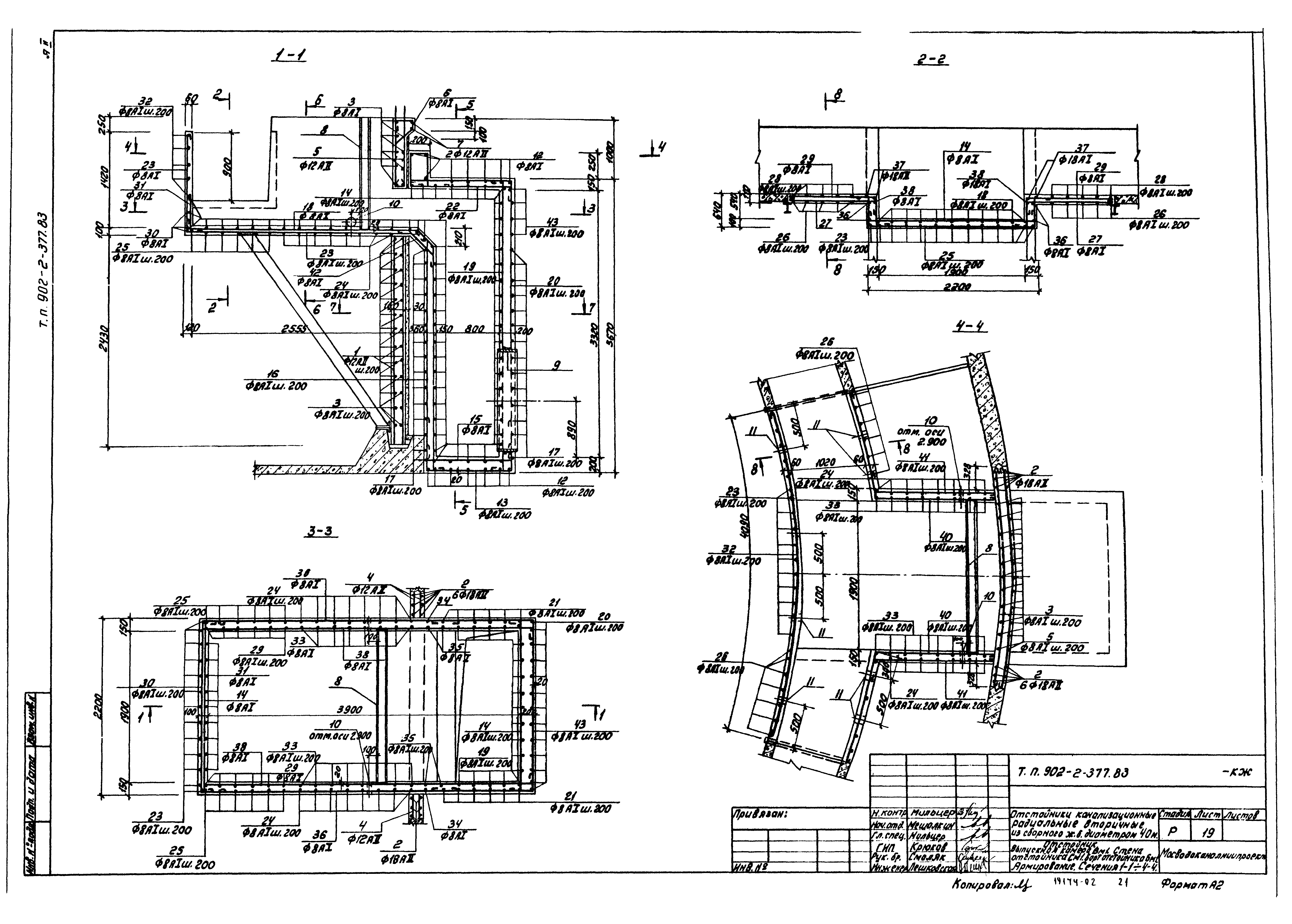
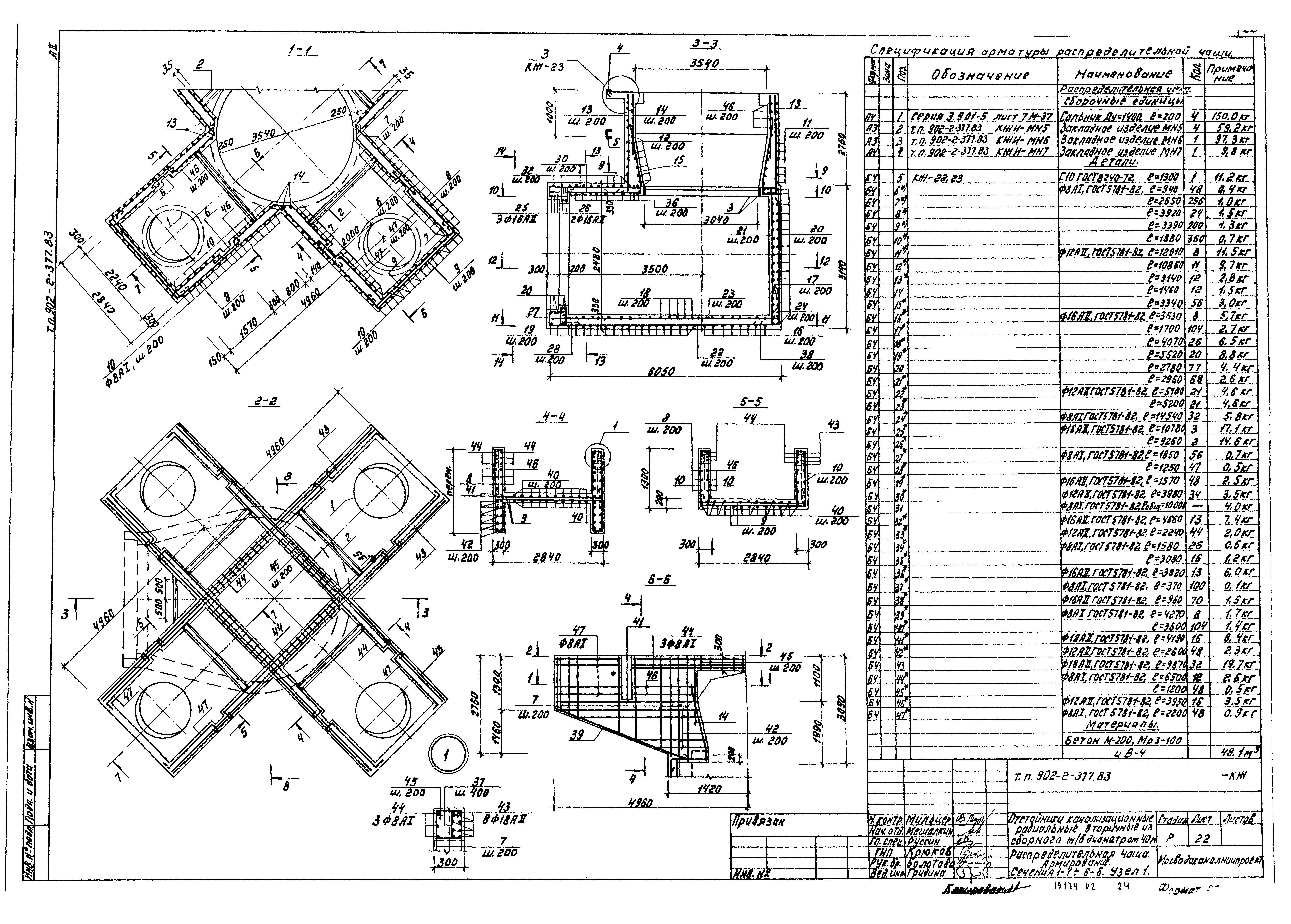
| Оглавление: | ТП 902-2-377.83 Общие данные (начало) ТП 902-2-377.83 Общие данные (продолжение) ТП 902-2-377.83 Общие данные (окончание) ТП 902-2-377.83-КЖ План группы отстойников и коммуникаций ТП 902-2-377.83-КЖ Отстойник. Сечение 1-1. План 2-2 ТП 902-2-377.83-КЖ Отстойник. Сечения 3-3÷5-5 ТП 902-2-377.83-КЖ Отстойник. Сечения 6-6÷12-12 ТП 902-2-377.83-КЖ Отстойник. Днище. Армирование. Спецификации ТП 902-2-377.83-КЖ Отстойник. Днище. Опалубка и армирование. Узел 1 ТП 902-2-377.83-КЖ Отстойник. Днище. Армирование. Сечения 2-2÷6-6. Узел 2 ТП 902-2-377.83-КЖ Отстойник. Днище. Армирование. План 8-8. Сечения 7-7,9-9÷11-11 ТП 902-2-377.83-КЖ Отстойник. Схема расположения стеновых панелей. Узлы 1,2. Сечение 1-1 ТП 902-2-377.83-КЖ Отстойник. Узлы 4-7. Деталь навивки кольцевой арматуры ТП 902-2-377.83-КЖ Отстойник. Схема расположения стеновых лотков. Узел 8. Сечения 1-1÷4-4 ТП 902-2-377.83-КЖ Отстойник. Выпускная камера ВМ1. Сечения 1-1÷6-6 ТП 902-2-377.83-КЖ Отстойник. Выпускная камера ВМ1. Стена отстойника СМ1. Борт отстойника БМ1 ТП 902-2-377.83-КЖ Отстойник. Выпускная камера ВМ1. Стена отстойника СМ1. Борт отстойника БМ1. Армирование. Сечения 1-1÷4-4 ТП 902-2-377.83-КЖ Отстойник. Выпускная камера ВМ1. Стена отстойника СМ1. Борт отстойника БМ1. Армирование. Сечения 5-5÷10-10 ТП 902-2-377.83-КЖ Распределительная чаша. Планы 1-1;2-2;5-5. Сечения 3-3;4-4;6-6÷8-8. Узел 1 ТП 902-2-377.83-КЖ Распределительная чаша. Армирование. Сечения 1-1÷6-6. Узел 1 ТП 902-2-377.83-КЖ Распределительная чаша. Армирование. Сечения 7-7÷14-14 ТП 902-2-377.83-КЖ Камеры ОВ1 и ОВ2. Планы, сечения ТП 902-2-377.83-КЖ Камера ОВ1. Армирование. План 1-1. План перекрытия. Сечения 2-2÷4-4 ТП 902-2-377.83-КЖ Камера ОВ2. Армирование. План 1-1. План перекрытия. Сечения 2-2÷4-4 ТП 902-2-377.83-КЖ Иловая камера ИК1. Сечения 1-1÷3-3. Планы 4-4 и 5-5 ТП 902-2-377.83-КЖ Иловая камера ИК1. Армирование. Сечения 1-1,3-3. Планы 2-2,4-4 ТП 902-2-377.83-КЖ Иловая камера ИК1. Армирование. План перекрытия. Сечения. Узел 1 |
| Разработан: | МосводоканалНИИпроект |
| Утверждён: | 27.07.1983 МосводоканалНИИпроект (169) |
| Заменяет собой: |
|
| Чем заменён: |






























