Скачать Типовой проект 902-2-377.83 Альбом VI. Часть 2. Нестандартизированное оборудование. ИлососДата актуализации: 01.01.2021
|
| Обозначение: | Типовой проект 902-2-377.83 |
| Обозначение англ: | 902-2-377.83 |
| Статус: | заменен |
| Название рус.: | Альбом VI. Часть 2. Нестандартизированное оборудование. Илосос |
| Дата добавления в базу: | 01.09.2013 |
| Дата актуализации: | 01.01.2021 |
| Дата введения: | 27.07.1983 |
| Дата окончания срока действия: | 01.03.1990 |
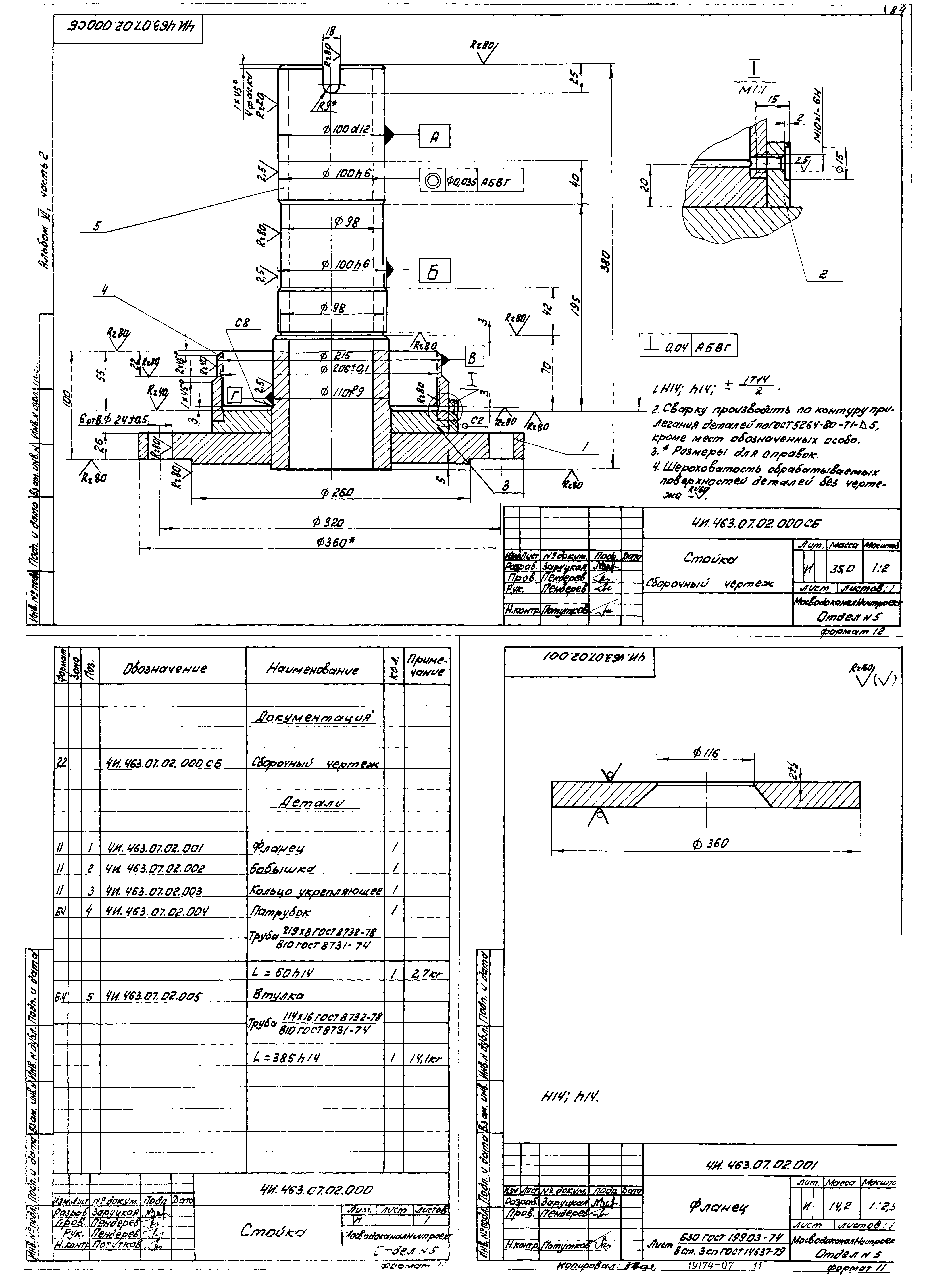
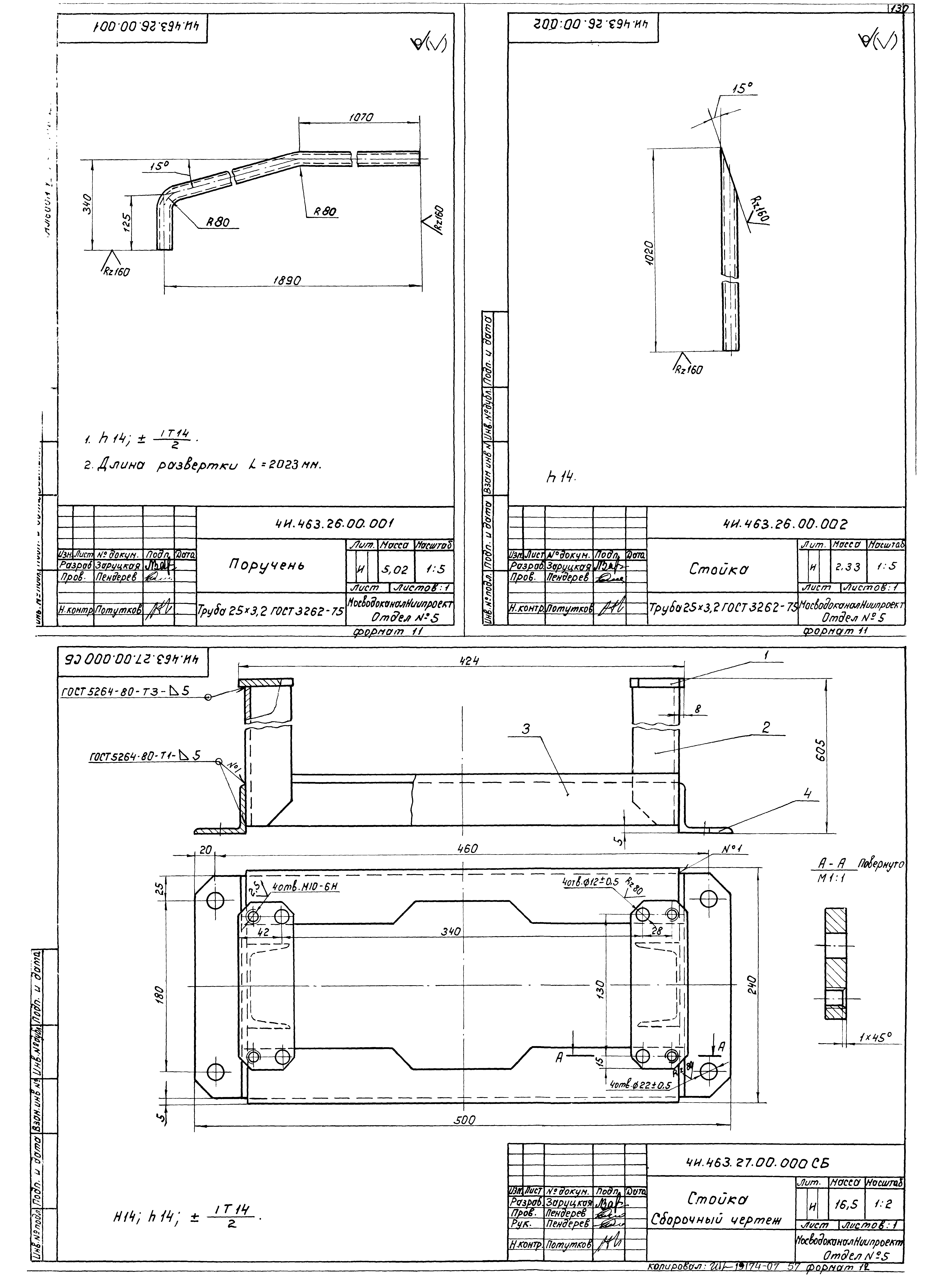
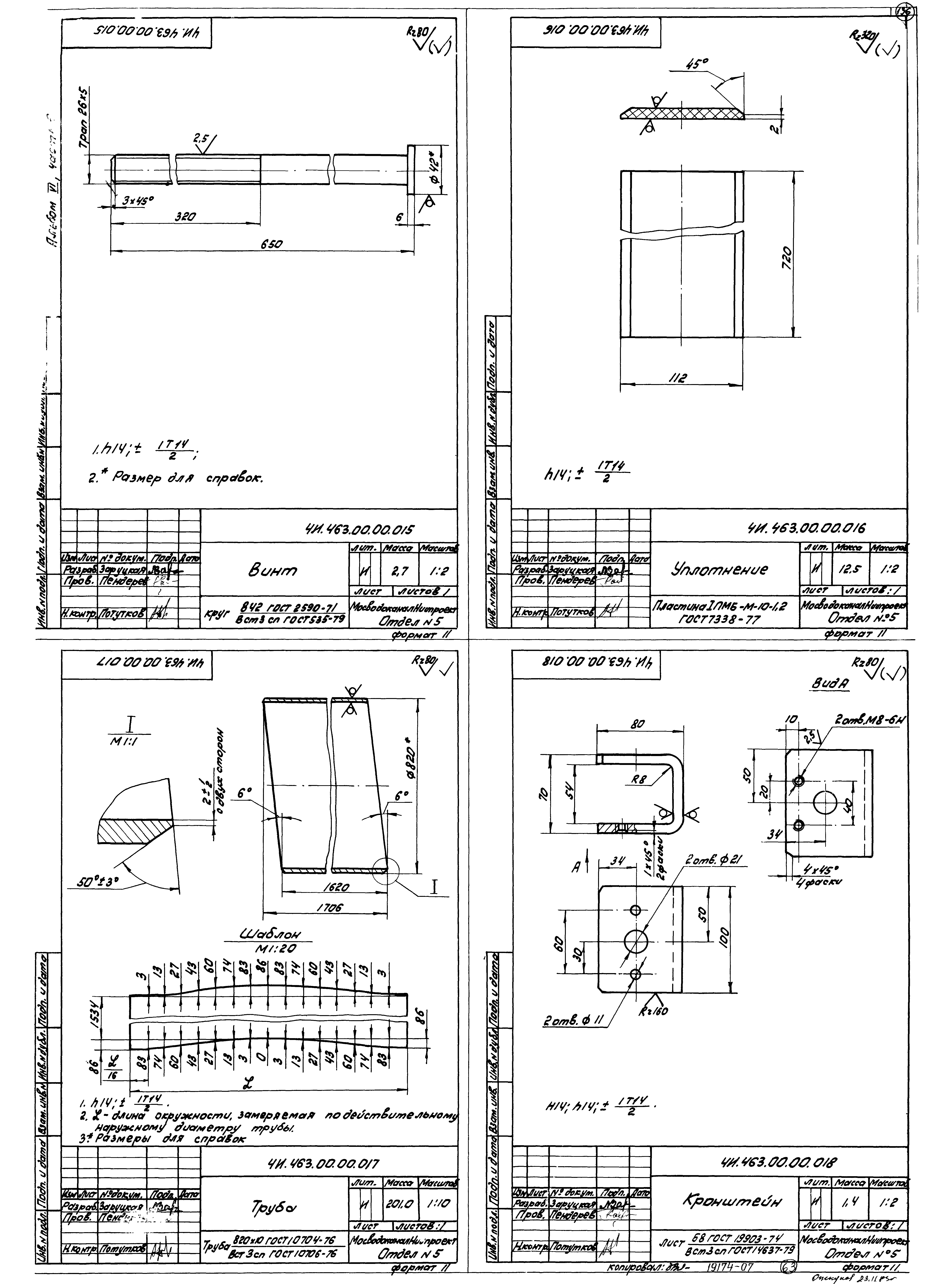
| Оглавление: | Часть 2 ТП 902-2-377.83 4И.463.05.00.000 СБ Труба сосуна ТП 902-2-377.83 4И.463.05.00.000 Труба сосуна. Спецификация. Лист 1-2 ТП 902-2-377.83 4И.463.05.00.001 Ушко ТП 902-2-377.83 4И.463.05.00.002 Лапа ТП 902-2-377.83 4И.463.05.00.003 Ребро ТП 902-2-377.83 4И.463.05.00.004 Ушко ТП 902-2-377.83 4И.463.05.00.005 Ушко ТП 902-2-377.83 4И.463.05.00.006 Фланец ТП 902-2-377.83 4И.463.05.00.007 Цапфа ТП 902-2-377.83 4И.463.05.00.008 Кольцо ТП 902-2-377.83 4И.463.05.00.009 Переход ТП 902-2-377.83 4И.463.05.00.011 Отросток ТП 902-2-377.83 4И.463.05.00.015 Труба ТП 902-2-377.83 4И.463.05.00.016 Опора ТП 902-2-377.83 4И.463.06.00.000 Хомут. Спецификация. Лист 1 ТП 902-2-377.83 4И.463.06.00.000 СБ Хомут ТП 902-2-377.83 4И.463.06.01.000 СБ Полухомут ТП 902-2-377.83 4И.463.06.01.000 Полухомут. Спецификация. Лист 1 ТП 902-2-377.83 4И.463.06.01.001 Полукольцо ТП 902-2-377.83 4И.463.06.01.002 Ушко ТП 902-2-377.83 4И.463.06.00.001 Прокладка ТП 902-2-377.83 4И.463.07.00.000 СБ Шпиль ТП 902-2-377.83 4И.463.07.00.000 Шпиль. Спецификация. Лист 1-2 ТП 902-2-377.83 4И.463.07.01.000 СБ Крышка ТП 902-2-377.83 4И.463.07.01.000 Крышка. Спецификация. Лист 1 ТП 902-2-377.83 4И.463.07.01.001 Крышка ТП 902-2-377.83 4И.463.07.01.002 Труба ТП 902-2-377.83 4И.463.07.02.000 СБ Стойка ТП 902-2-377.83 4И.463.07.02.000 Стойка. Спецификация. Лист 1 ТП 902-2-377.83 4И.463.07.02.001 Фланец ТП 902-2-377.83 4И.463.07.02.002 Бобышка ТП 902-2-377.83 4И.463.07.02.003 Кольцо укрепляющее ТП 902-2-377.83 4И.463.07.00.001 Корпус ТП 902-2-377.83 4И.463.07.00.002 Кольцо сферическое верхнее ТП 902-2-377.83 4И.463.07.00.003 Кольцо сферическое нижнее ТП 902-2-377.83 4И.463.07.00.004 Кольцо центрирующее ТП 902-2-377.83 4И.463.07.00.005 Пробка ТП 902-2-377.83 4И.463.08.00.000 Отражатель. Спецификация. Лист 1 ТП 902-2-377.83 4И.463.08.00.000 СБ Отражатель ТП 902-2-377.83 4И.463.08.01.000 СБ Секция ТП 902-2-377.83 4И.463.08.01.000 Секция. Спецификация. Лист 1 ТП 902-2-377.83 4И.463.08.01.001 Угольник ТП 902-2-377.83 4И.463.08.01.002 Обечайка ТП 902-2-377.83 4И.463.08.01.003 Угольник ТП 902-2-377.83 4И.463.08.01.004 Винт ТП 902-2-377.83 4И.463.08.01.005 Угольник ТП 902-2-377.83 4И.463.09.00.000 Опора центральная. Спецификация. Лист 1-2 ТП 902-2-377.83 4И.463.09.00.000 СБ Опора центральная. Лист 1 ТП 902-2-377.83 4И.463.09.00.000 СБ Опора центральная. Лист 2 ТП 902-2-377.83 4И.463.09.01.000 СБ Конус. Лист 1 ТП 902-2-377.83 4И.463.09.01.000 СБ Конус. Лист 2 ТП 902-2-377.83 4И.463.09.01.000 Конус. Спецификация. Лист 1-2 ТП 902-2-377.83 4И.463.09.01.100 СБ Фланец верхний ТП 902-2-377.83 4И.463.09.01.100 Фланец верхний. Спецификация. Лист 1 ТП 902-2-377.83 4И.463.09.01.101 Ребро ТП 902-2-377.83 4И.463.09.01.001 Стойка ТП 902-2-377.83 4И.463.09.01.002 Ребро кольцевое ТП 902-2-377.83 4И.463.09.01.003 Обечайка верхняя ТП 902-2-377.83 4И.463.09.01.004 Ребро ТП 902-2-377.83 4И.463.09.01.005 Обечайка внутренняя ТП 902-2-377.83 4И.463.09.01.006 Секция нижней обечайки ТП 902-2-377.83 4И.463.09.01.007 Секция пояса ТП 902-2-377.83 4И.463.09.01.008 Фланец нижний ТП 902-2-377.83 4И.463.09.01.009 Уголок ТП 902-2-377.83 4И.463.09.01.011 Бобышка ТП 902-2-377.83 4И.463.09.02.000 СБ Направляющая нижняя ТП 902-2-377.83 4И.463.09.02.000 Направляющая нижняя. Спецификация ТП 902-2-377.83 4И.463.09.02.001 Обечайка ТП 902-2-377.83 4И.463.09.02.002 Рубашка ТП 902-2-377.83 4И.463.09.02.003 Фланец ТП 902-2-377.83 4И.463.09.03.000 СБ Направляющая верхняя ТП 902-2-377.83 4И.463.09.03.000 Направляющая верхняя. Спецификация ТП 902-2-377.83 4И.463.09.03.001 Обечайка ТП 902-2-377.83 4И.463.09.03.002 Фланец ТП 902-2-377.83 4И.463.09.04.000 Основание. Спецификация ТП 902-2-377.83 4И.463.09.04.001 Фланец ТП 902-2-377.83 4И.463.09.04.000 СБ Основание. Лист 1 ТП 902-2-377.83 4И.463.09.04.000 СБ Основание. Лист 2 ТП 902-2-377.83 4И.463.09.04.002 Труба ТП 902-2-377.83 4И.463.09.04.003 Обечайка ТП 902-2-377.83 4И.463.09.04.004 Фланец ТП 902-2-377.83 4И.463.09.04.005 Ребро ТП 902-2-377.83 4И.463.09.04.006 Фланец ТП 902-2-377.83 4И.463.09.05.000 Труба для кабеля. Спецификация ТП 902-2-377.83 4И.463.09.05.000 СБ Труба для кабеля ТП 902-2-377.83 4И.463.09.05.001 Труба ТП 902-2-377.83 4И.463.09.00.001 Труба ТП 902-2-377.83 4И.463.09.00.002 Прокладка ТП 902-2-377.83 4И.463.10.00.000 СБ Лестница ТП 902-2-377.83 4И.463.10.00.000 Лестница. Спецификация ТП 902-2-377.83 4И.463.10.00.001 Стойка ТП 902-2-377.83 4И.463.10.00.002 Стяжка ТП 902-2-377.83 4И.463.10.00.003 Ушко ТП 902-2-377.83 4И.463.11.00.000 Сосун. Спецификация ТП 902-2-377.83 4И.463.11.01.000 Корпус сосуна. Спецификация ТП 902-2-377.83 4И.463.11.00.000 СБ Сосун ТП 902-2-377.83 4И.463.11.01.000 СБ Корпус сосуна ТП 902-2-377.83 4И.463.11.01.001 Стенка боковая ТП 902-2-377.83 4И.463.11.01.002 Отросток ТП 902-2-377.83 4И.463.11.01.005 Угольник ТП 902-2-377.83 4И.463.11.01.003 Стенка верхняя ТП 902-2-377.83 4И.463.11.01.004 Днище ТП 902-2-377.83 4И.463.00.00.021 Ролик ТП 902-2-377.83 4И.463.11.01.006 Угольник ТП 902-2-377.83 4И.463.11.01.007 Угольник ТП 902-2-377.83 4И.463.11.02.000 Скребок торцевой. Спецификация ТП 902-2-377.83 4И.463.11.02.000 СБ Скребок торцевой ТП 902-2-377.83 4И.463.11.02.001 Скребок ТП 902-2-377.83 4И.463.11.02.002 Накладка ТП 902-2-377.83 4И.463.11.02.003 Угольник ТП 902-2-377.83 4И.463.00.00.022 Палец ТП 902-2-377.83 4И.463.11.03.000 СБ Скребок ТП 902-2-377.83 4И.463.11.03.000 Скребок. Спецификация ТП 902-2-377.83 4И.463.11.03.001 Скребок ТП 902-2-377.83 4И.463.11.03.002 Угольник ТП 902-2-377.83 4И.463.11.03.003 Накладка ТП 902-2-377.83 4И.463.12.00.000 СБ Тяга ТП 902-2-377.83 4И.463.12.00.000 Тяга. Спецификация. Лист 1-2 ТП 902-2-377.83 4И.463.12.00.001 Вилка ТП 902-2-377.83 4И.463.12.00.002 Стержень ТП 902-2-377.83 4И.463.13.00.000 СБ Расчалка ТП 902-2-377.83 4И.463.13.00.000 Расчалка. Спецификация ТП 902-2-377.83 4И.463.13.00.001 Серьга ТП 902-2-377.83 4И.463.14.00.000 Вилка ТП 902-2-377.83 4И.463.14.00.001 Вилка ТП 902-2-377.83 4И.463.14.00.002 Вставка ТП 902-2-377.83 4И.463.15.00.000 Скребок. Спецификация. Лист 1 ТП 902-2-377.83 4И.463.15.00.000 Скребок. Спецификация. Лист 2 ТП 902-2-377.83 4И.463.15.01.000 Корпус. Спецификация. Лист 1-2 ТП 902-2-377.83 4И.463.15.01.002 Полоса ТП 902-2-377.83 4И.463.15.00.000 СБ Скребок ТП 902-2-377.83 4И.463.15.01.000 СБ Корпус ТП 902-2-377.83 4И.463.15.01.003 Ребро ТП 902-2-377.83 4И.463.15.00.001 Полоса ТП 902-2-377.83 4И.463.15.00.002 Фартук ТП 902-2-377.83 4И.463.16.00.000 СБ Стойка ТП 902-2-377.83 4И.463.16.00.000 Стойка. Спецификация ТП 902-2-377.83 4И.463.16.00.001 Патрубок ТП 902-2-377.83 4И.463.16.00.002 Палец ТП 902-2-377.83 4И.463.17.00.000 Фиксатор ТП 902-2-377.83 4И.463.17.00.001 Хомут ТП 902-2-377.83 4И.463.17.00.002 Бобышка ТП 902-2-377.83 4И.463.18.00.000 Труба для взятия проб ТП 902-2-377.83 4И.463.18.00.001 Труба ТП 902-2-377.83 4И.463.19.00.000 Заслонка. Спецификация ТП 902-2-377.83 4И.463.19.00.000 СБ Заслонка ТП 902-2-377.83 4И.463.19.00.001 Втулка ТП 902-2-377.83 4И.463.19.00.002 Ребро ТП 902-2-377.83 4И.463.20.00.000 Распорка. Спецификация ТП 902-2-377.83 4И.463.20.00.000 СБ Распорка ТП 902-2-377.83 4И.463.21.00.000 СБ Лестница ТП 902-2-377.83 4И.463.21.00.000 Лестница. Спецификация ТП 902-2-377.83 4И.463.22.00.000 Подставка. Спецификация ТП 902-2-377.83 4И.463.22.00.000 СБ Подставка ТП 902-2-377.83 4И.463.23.00.000 Щит съемный. Спецификация ТП 902-2-377.83 4И.463.23.00.000 СБ Щит съемный ТП 902-2-377.83 4И.463.24.00.000 Кожух. Спецификация ТП 902-2-377.83 4И.463.24.00.000 СБ Кожух ТП 902-2-377.83 4И.463.24.00.001 Лист ТП 902-2-377.83 4И.463.24.00.002 Кожух ТП 902-2-377.83 4И.463.24.00.003 Ушко ТП 902-2-377.83 4И.463.24.00.003-01 Ушко ТП 902-2-377.83 4И.463.25.00.000 Отвод ТП 902-2-377.83 4И.463.25.00.001 Полусектор ТП 902-2-377.83 4И.463.25.00.002 Сектор ТП 902-2-377.83 4И.463.26.00.000 Поручень ТП 902-2-377.83 4И.463.26.00.001 Поручень ТП 902-2-377.83 4И.463.26.00.002 Стойка ТП 902-2-377.83 4И.463.27.00.000 СБ Стойка ТП 902-2-377.83 4И.463.27.00.000 Стойка. Спецификация ТП 902-2-377.83 4И.463.27.00.001 Пластина ТП 902-2-377.83 4И.463.27.00.002 Ножка ТП 902-2-377.83 4И.463.27.00.003 Распорка ТП 902-2-377.83 4И.463.27.00.004 Лапа ТП 902-2-377.83 4И.463.28.00.000 Упор. Спецификация ТП 902-2-377.83 4И.463.28.00.000 СБ Упор ТП 902-2-377.83 4И.463.00.00.001 Направляющая ТП 902-2-377.83 4И.463.00.00.002 Гайка ТП 902-2-377.83 4И.463.00.00.003 Поручень ТП 902-2-377.83 4И.463.00.00.004 Муфта стяжная ТП 902-2-377.83 4И.463.00.00.005 Наконечник ТП 902-2-377.83 4И.463.00.00.006 Уплотнение ТП 902-2-377.83 4И.463.00.00.007 Крышка ТП 902-2-377.83 4И.463.00.00.008 Прокладка ТП 902-2-377.83 4И.463.00.00.009 Винт установочный ТП 902-2-377.83 4И.463.00.00.011 Груз ТП 902-2-377.83 4И.463.00.00.012 Ось ТП 902-2-377.83 4И.463.00.00.013 Стойка ТП 902-2-377.83 4И.463.00.00.014 Ребро ТП 902-2-377.83 4И.463.00.00.015 Винт ТП 902-2-377.83 4И.463.00.00.016 Уплотнение ТП 902-2-377.83 4И.463.00.00.017 Труба ТП 902-2-377.83 4И.463.00.00.018 Кронштейн |
| Разработан: | МосводоканалНИИпроект |
| Утверждён: | 27.07.1983 МосводоканалНИИпроект (169) |
| Заменяет собой: |
|
| Чем заменён: |






























































