Скачать Типовой проект 902-1-99.85 Альбом V. Строительные решения. Подземная частьДата актуализации: 01.01.2021
|
| Обозначение: | Типовой проект 902-1-99.85 |
| Обозначение англ: | 902-1-99.85 |
| Статус: | действует |
| Название рус.: | Альбом V. Строительные решения. Подземная часть |
| Дата добавления в базу: | 01.09.2013 |
| Дата актуализации: | 01.01.2021 |
| Дата введения: | 18.09.1985 |
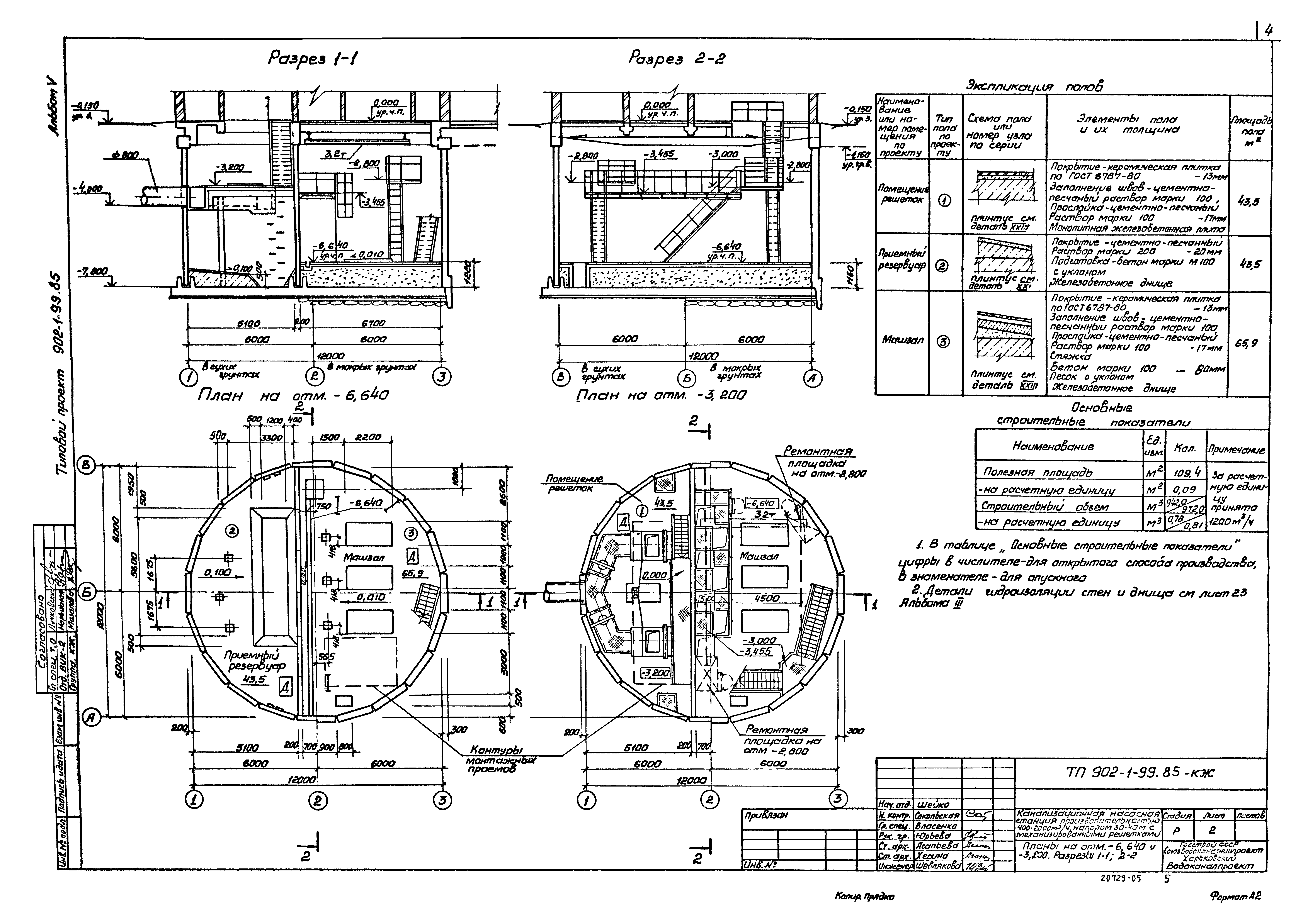
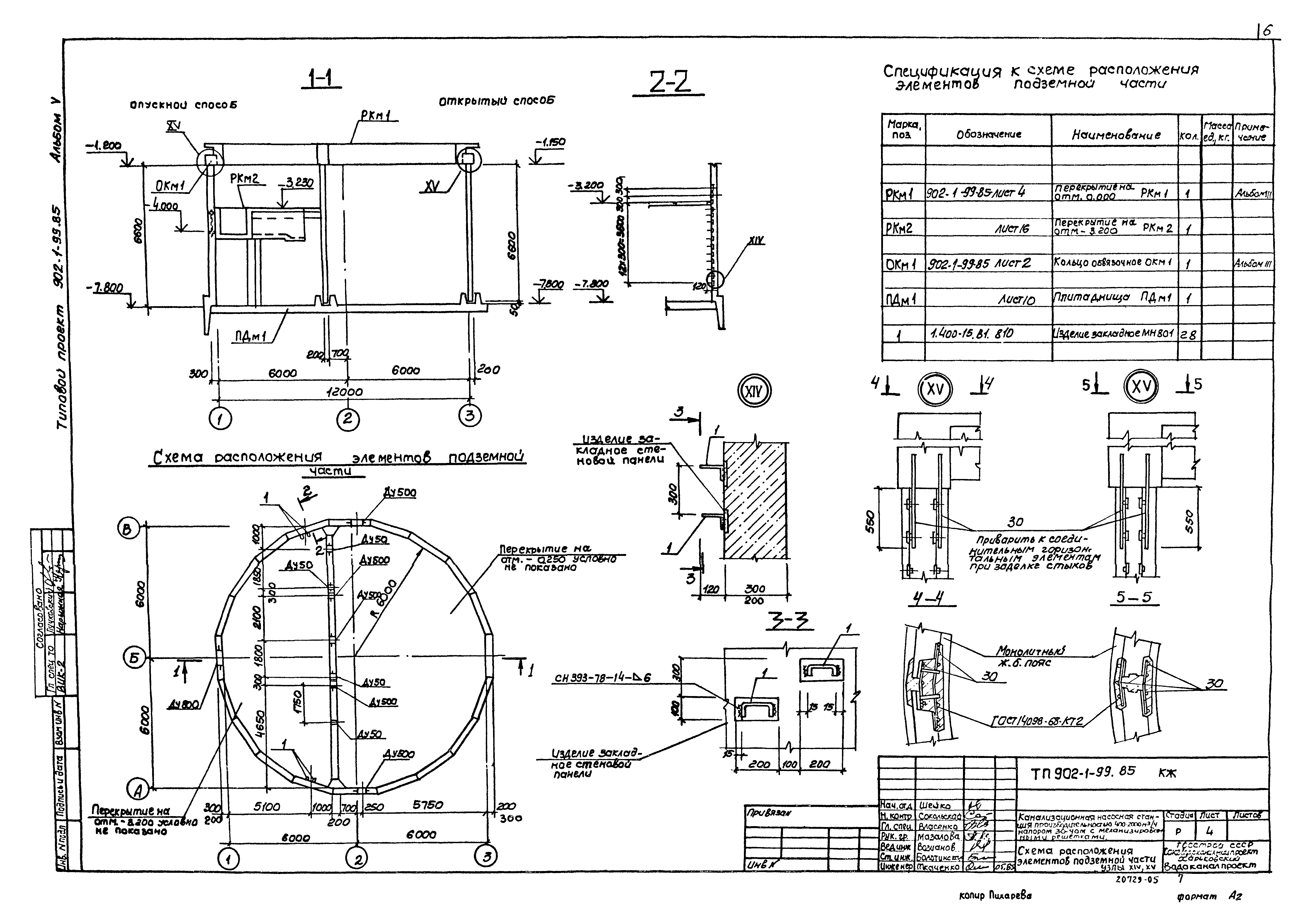
| Оглавление: | ТП 902-1-99.85 Содержание ТП 902-1-99.85-КЖ Основной комплект КЖ ТП 902-1-99.85-КЖ-1 Общие данные ТП 902-1-99.85-КЖ-2 Планы на отм. -6.640 и 3.200. Разрезы 1-1,2-2 ТП 902-1-99.85-КЖ-3 Схема расположения опорных блоков и форшахты ТП 902-1-99.85-КЖ-4 Схема расположения элементов подземной части. Узлы 14,15 ТП 902-1-99.85-КЖ-5 Схема расположения стеновых панелей. Узел 1 ТП 902-1-99.85-КЖ-6 Схема расположения стеновых панелей. Узлы 1,4-6,13 ТП 902-1-99.85-КЖ-7 Схема расположения стеновых панелей. Узлы 2,3 ТП 902-1-99.85-КЖ-8 Схема расположения стеновых панелей. Узлы 7-12 ТП 902-1-99.85-КЖ-9 Схема расположения стеновых панелей. Спецификация (начало) ТП 902-1-99.85-КЖ-10 Плита днища ПДм1. Схема армирования (открытый способ) ТП 902-1-99.85-КЖ-11 Плита днища ПДм1. Схема армирования (открытый способ) ТП 902-1-99.85-КЖ-12 Плита днища ПДм1. Схема армирования (опускной способ) ТП 902-1-99.85-КЖ-13 Плита днища ПДм1. Схема расположения каркасов (опускной способ) ТП 902-1-99.85-КЖ-14 Плита днища ПДм1. Спецификация ТП 902-1-99.85-КЖ-15 Перекрытие РКМ2 на отм. -3.200. Общий вид ТП 902-1-99.85-КЖ-16 Перекрытие РКМ2 на отм. -3.200. Плита ПМ1. Балки БМ1-БМ4. Общие виды и схемы армирования ТП 902-1-99.85-КЖ-17 Перекрытие РКМ2 на отм. -3.200. Лоток ЛТМ1. Схема армирования ТП 902-1-99.85-КЖ-18 Перекрытие РКМ2 на отм. -3.200. Балки БМ1-БМ4. Колонна КМ1. Общий вид и схемы армирования ТП 902-1-99.85-КЖ-19 Перекрытие РКМ2 на отм. -3.200. Спецификация (начало) ТП 902-1-99.85-КЖ-20 Перекрытие РКМ2 на отм. -3.200. Спецификация (окончание) ТП 902-1-99.85-КМ Основной комплект КМ ТП 902-1-99.85-КМ-1 Общие данные (начало) ТП 902-1-99.85-КМ-2 Общие данные (окончание) ТП 902-1-99.85-КМ-3 Схема расположения лестниц и переходных площадок (начало) ТП 902-1-99.85-КМ-4 Схема расположения лестниц и переходных площадок (окончание) |
| Разработан: | Харьковский Водоканалпроект |
| Утверждён: | 21.06.1985 Госстрой СССР (Государственный комитет Совета Министров СССР по делам строительства) (USSR Gosstroy А4-23) |



























