Скачать Типовой проект 902-1-99.85 Альбом VII. Силовое электрооборудование. Технологический контрольДата актуализации: 01.01.2021
|
| Обозначение: | Типовой проект 902-1-99.85 |
| Обозначение англ: | 902-1-99.85 |
| Статус: | не действует |
| Название рус.: | Альбом VII. Силовое электрооборудование. Технологический контроль |
| Дата добавления в базу: | 01.09.2013 |
| Дата актуализации: | 01.01.2021 |
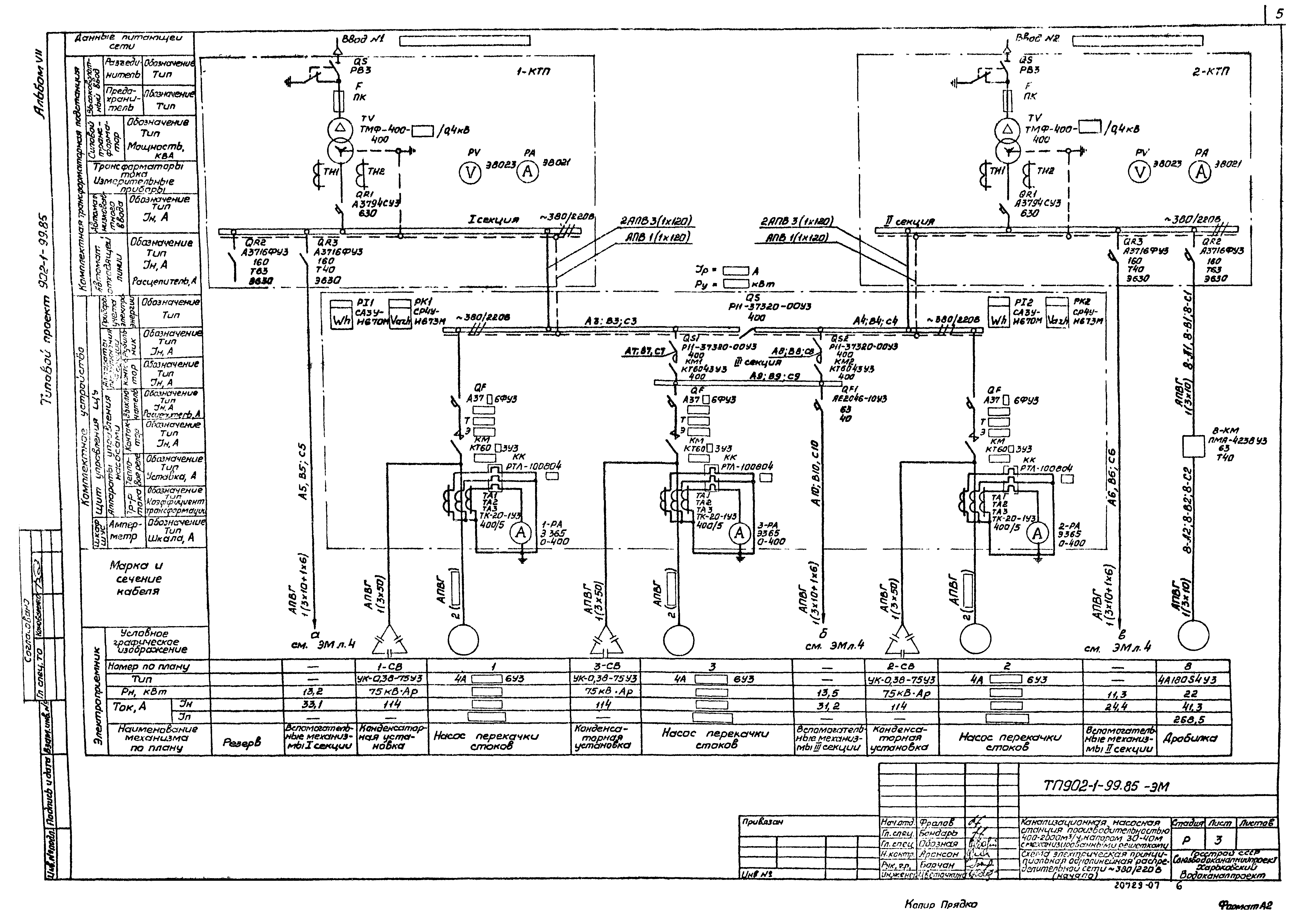
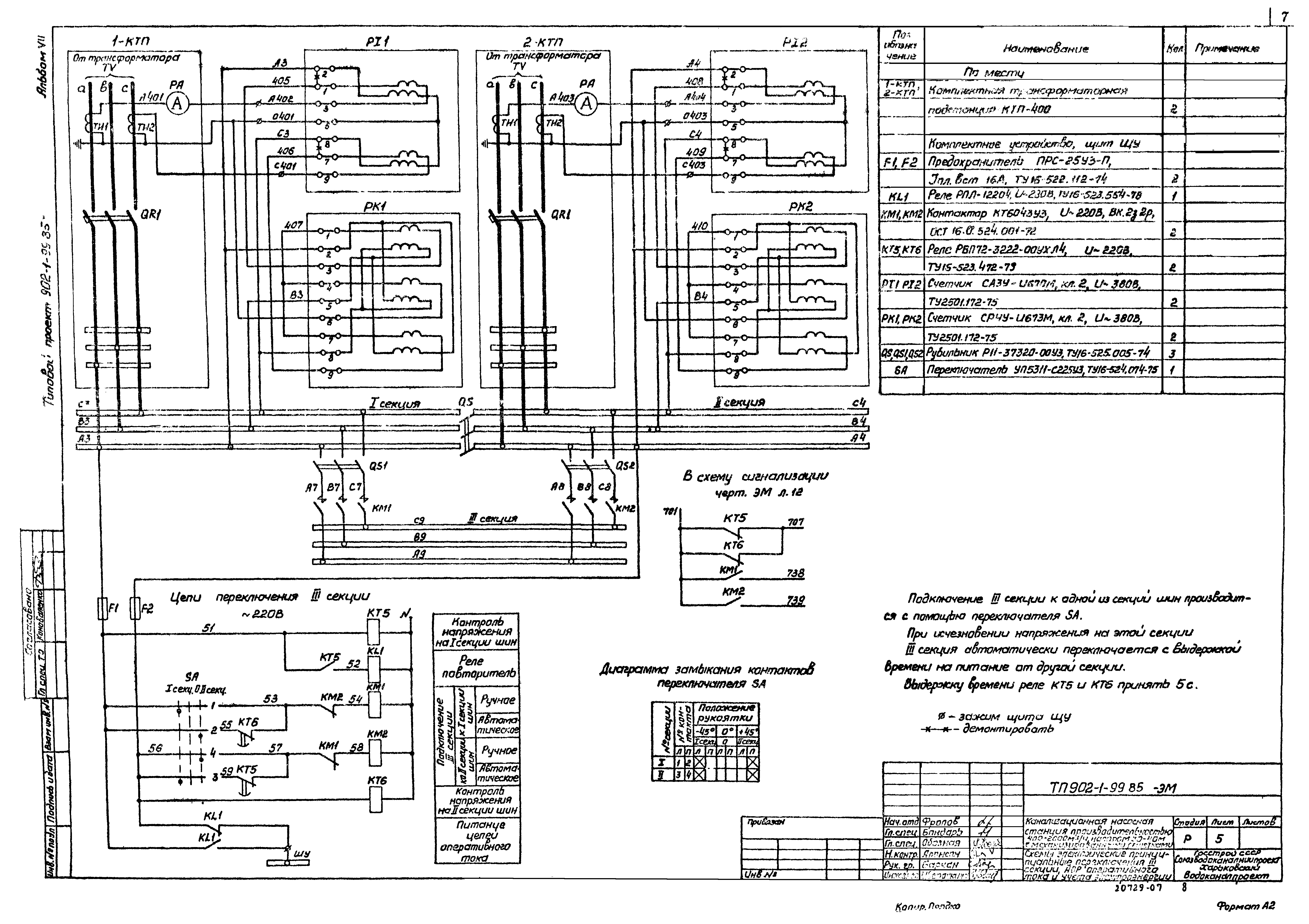
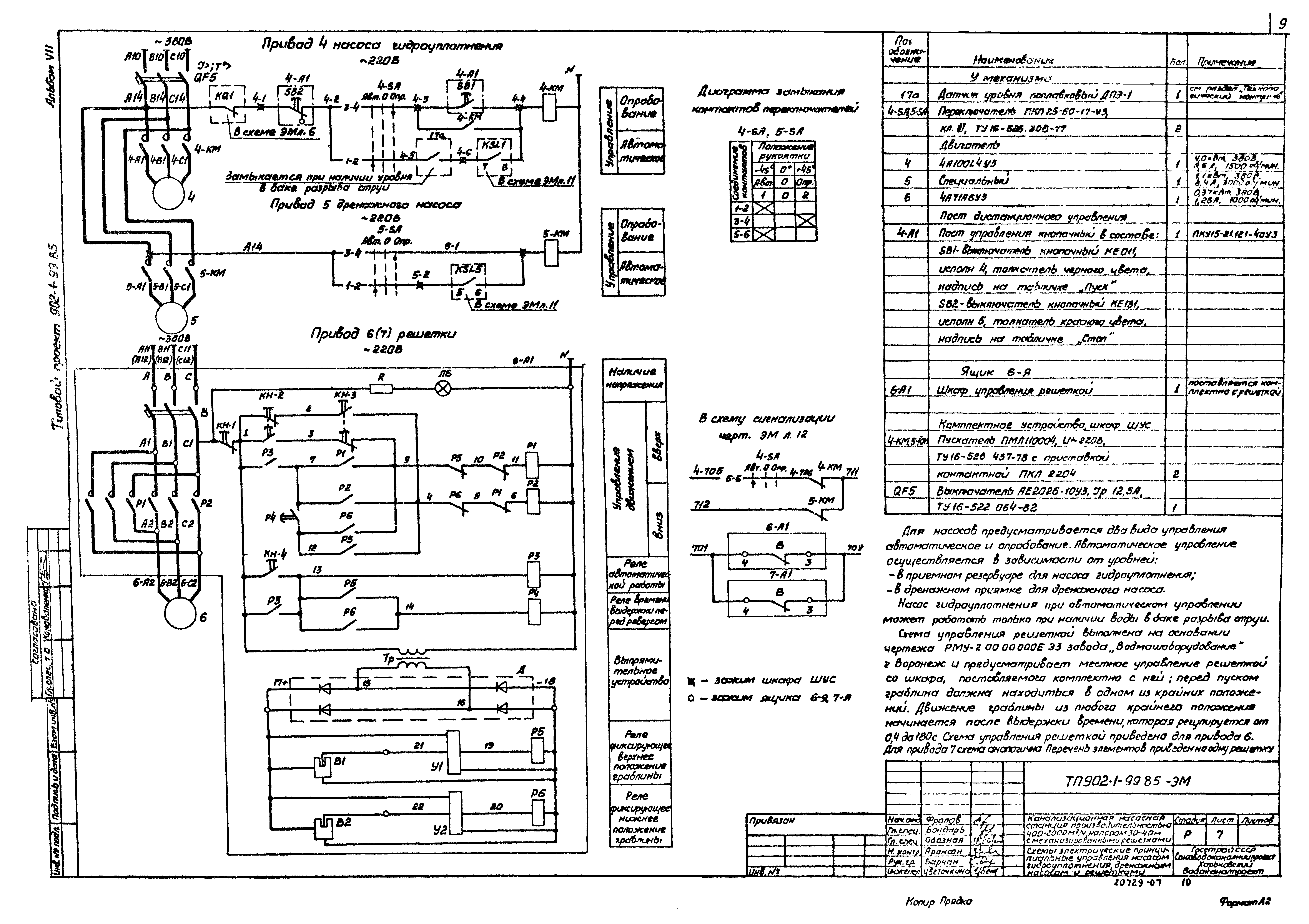
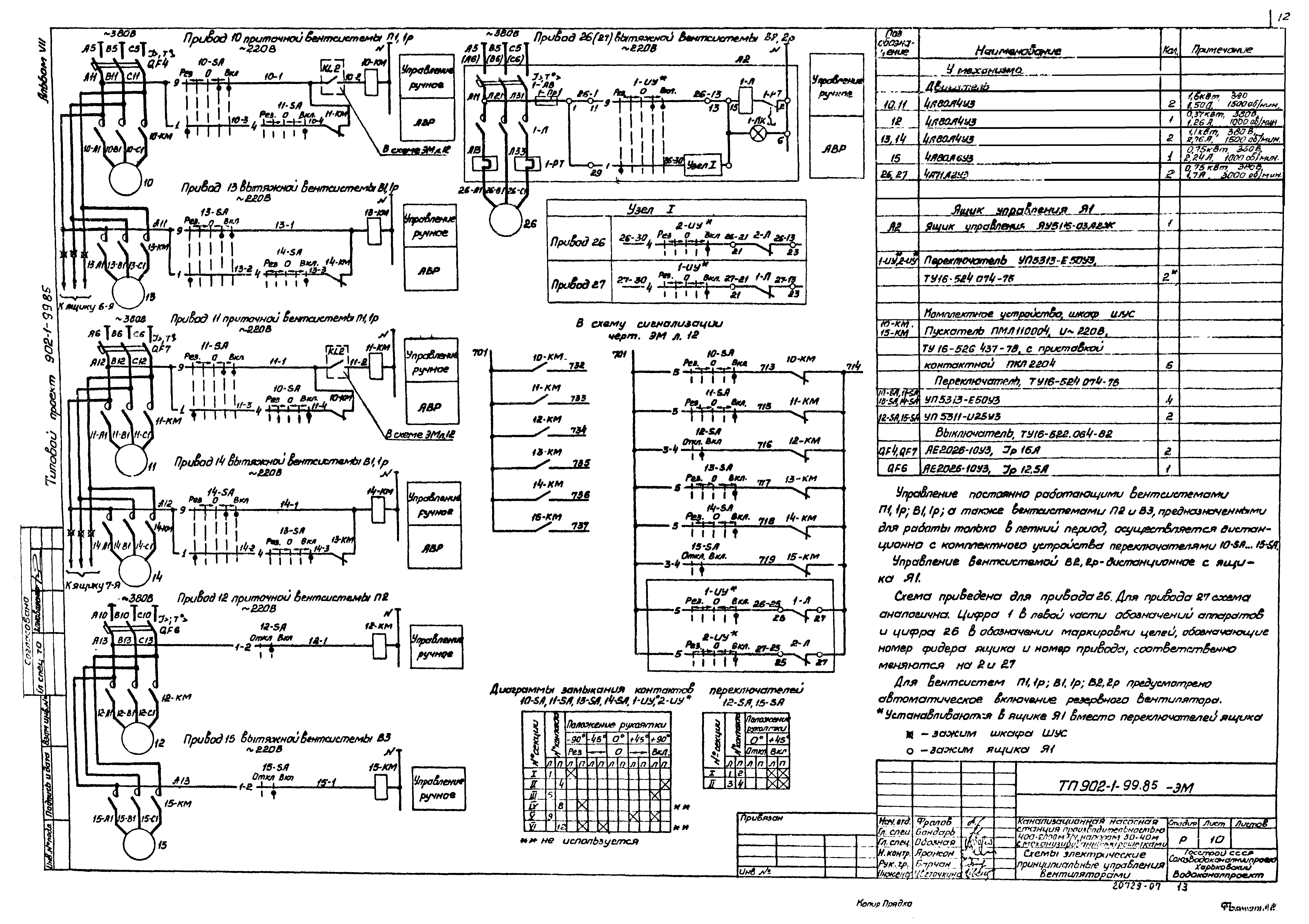
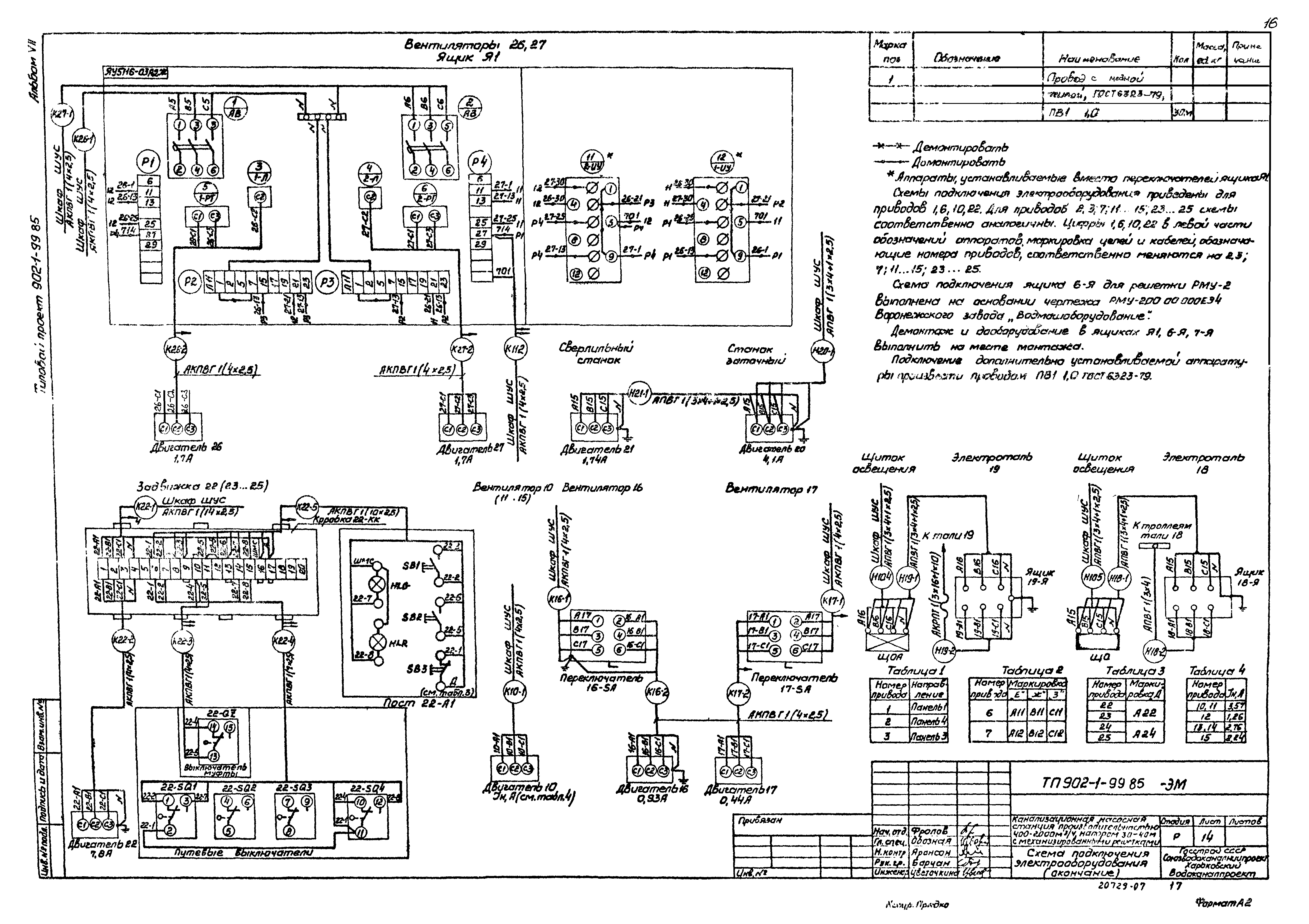
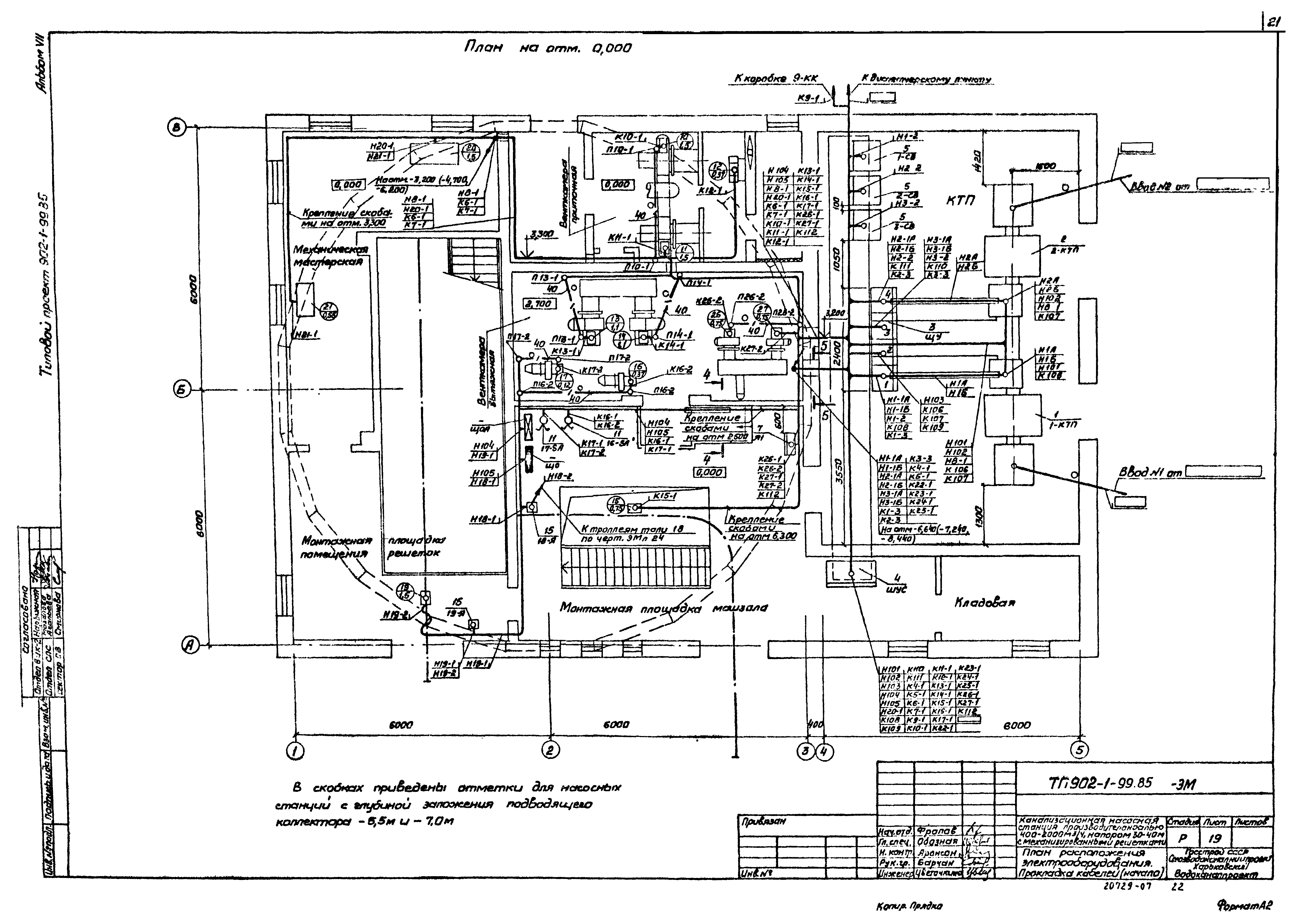
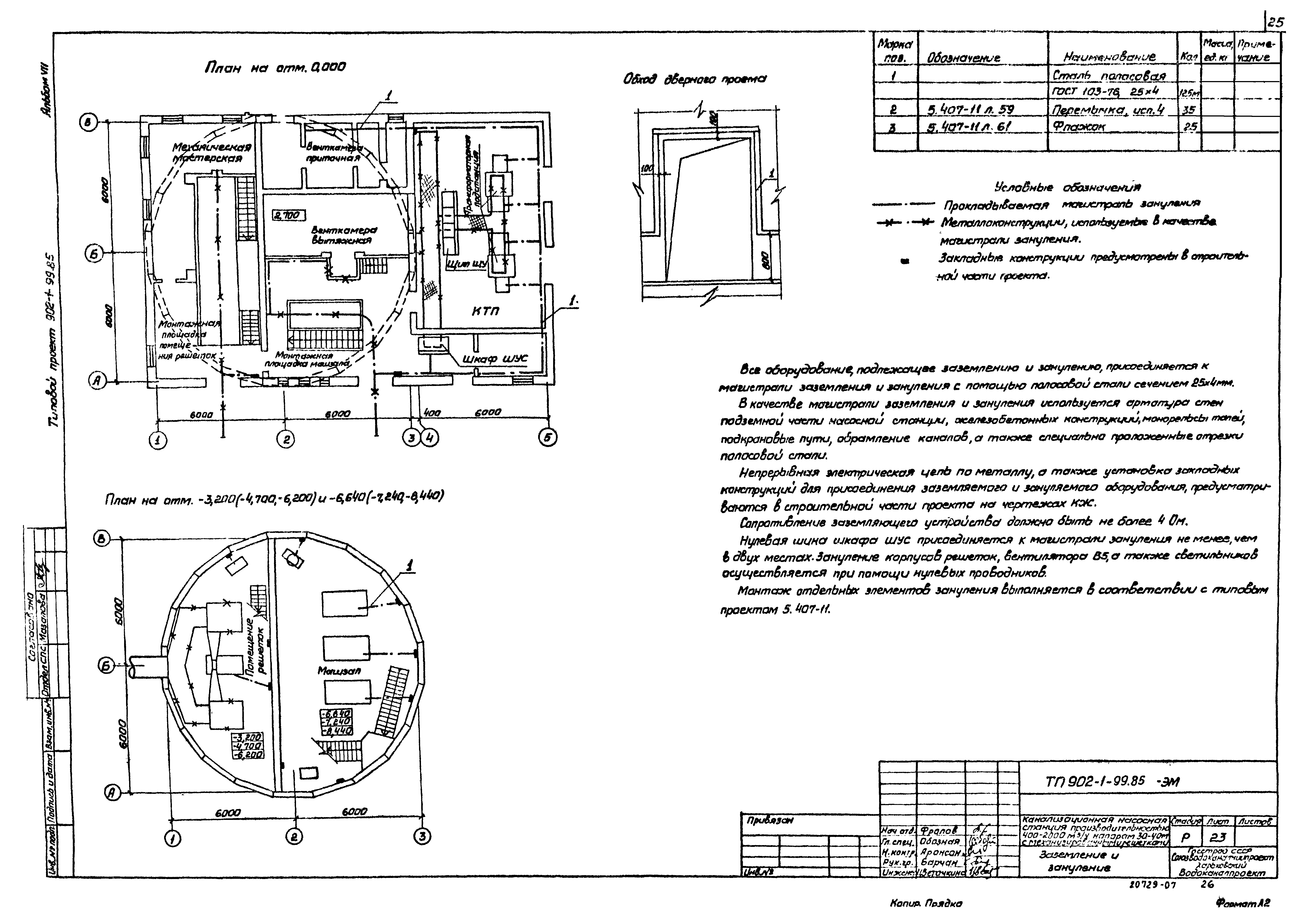
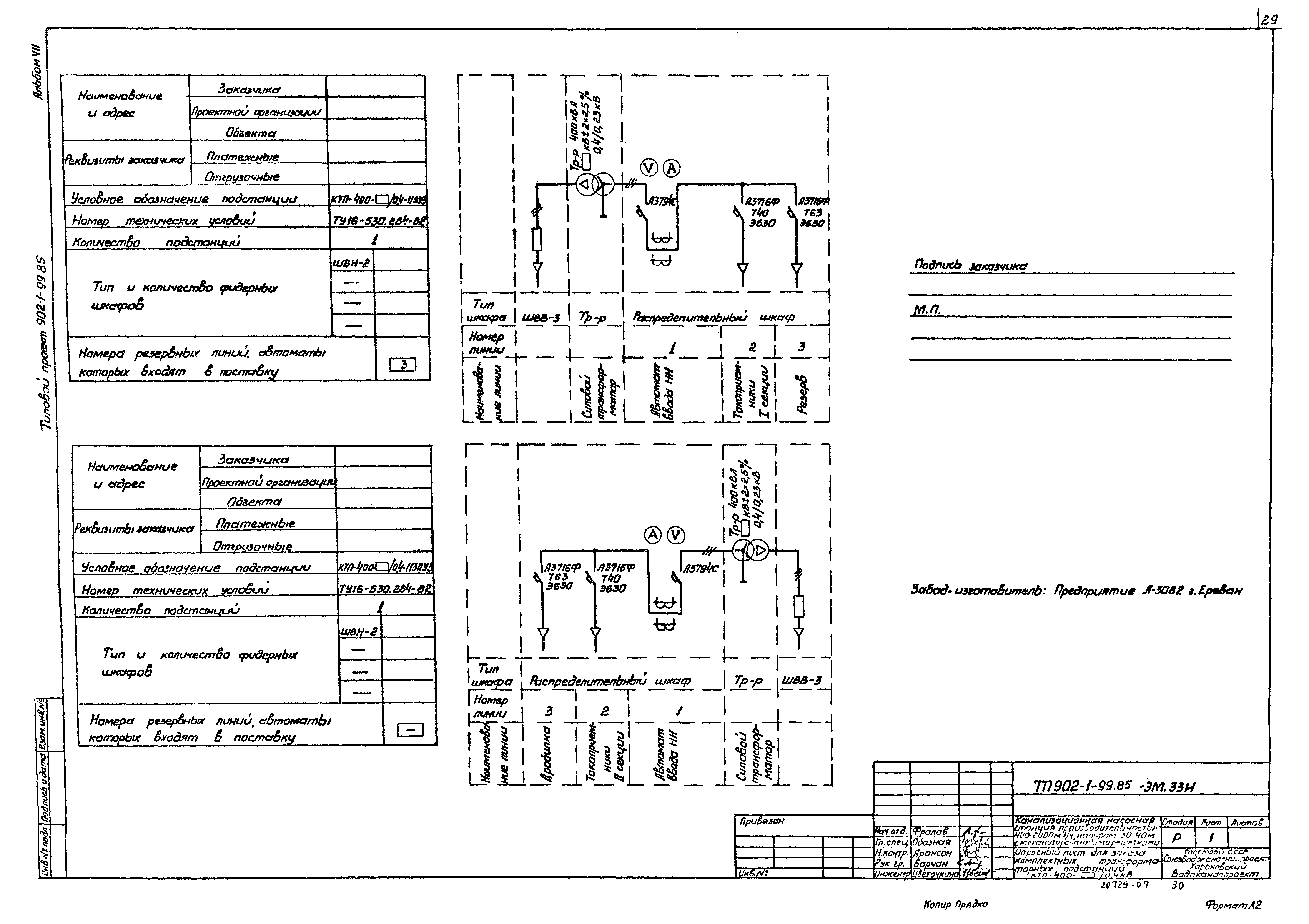
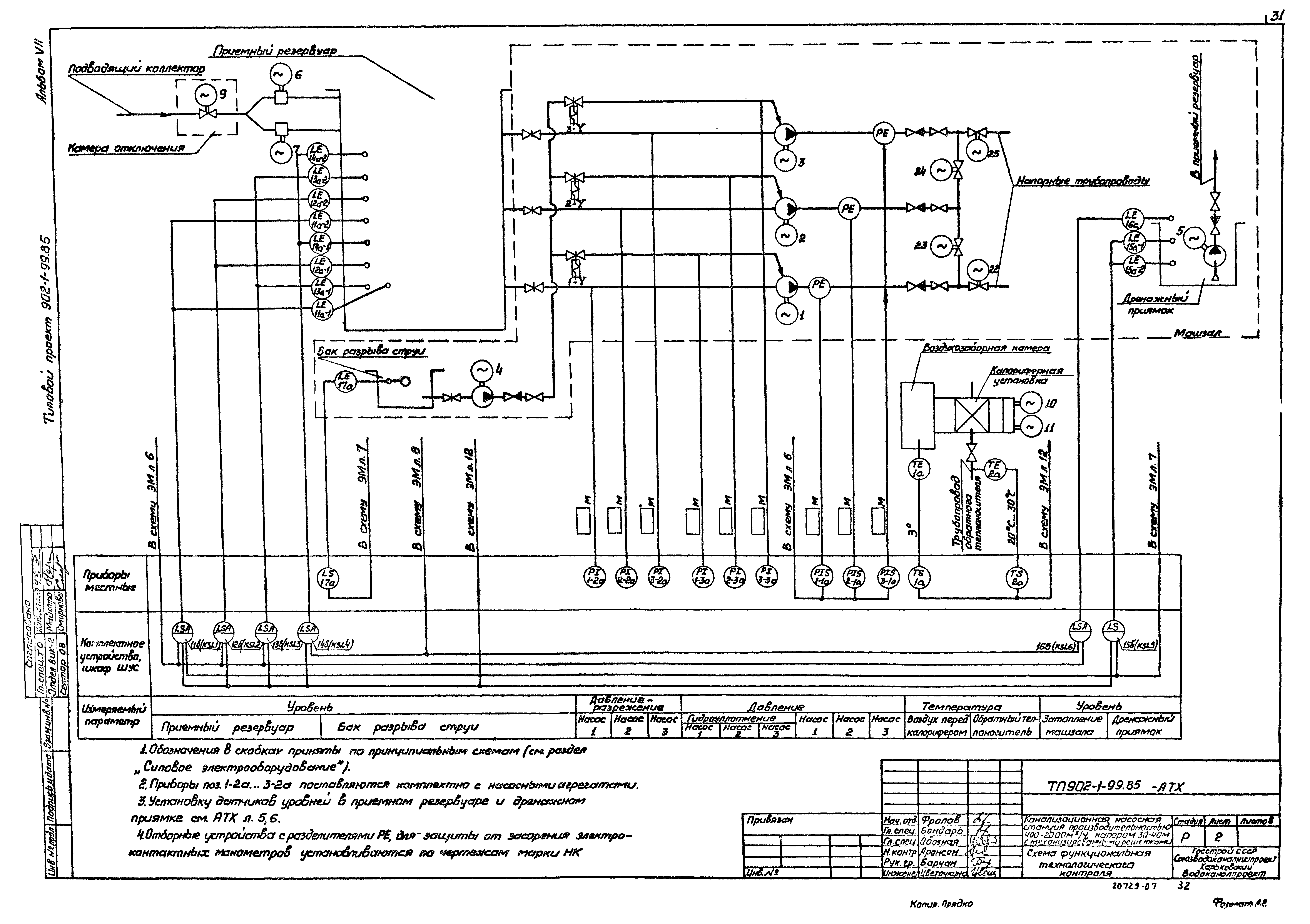
| Оглавление: | ТП 902-1-99.85 Содержание альбома ТП 902-1-99.85-ЭМ Основной комплект марки ЭМ ТП 902-1-99.85-ЭМ-1 Общие данные ТП 902-1-99.85-ЭМ-2 Общие данные ТП 902-1-99.85-ЭМ-3 Схема электрическая принципиальная однолинейная распределительной сети ~380/220В ТП 902-1-99.85-ЭМ-4 Схема электрическая принципиальная однолинейная распределительной сети ~380/220В ТП 902-1-99.85-ЭМ-5 Схемы электрические принципиальные переключения 3 секции, АВР оперативного тока и учета электроэнергии ТП 902-1-99.85-ЭМ-6 Схема электрическая принципиальная управления насосами перекачки стоков ТП 902-1-99.85-ЭМ-7 Схемы электрические принципиальные управления насосом гидроуплотнения, дренажным насосом и решетками ТП 902-1-99.85-ЭМ-8 Схема электрическая принципиальная управления задвижкой на подводящем коллекторе ТП 902-1-99.85-ЭМ-9 Схемы электрические принципиальные управления задвижками на напорном коллекторе ТП 902-1-99.85-ЭМ-10 Схемы электрические принципиальные управления вентиляторами ТП 902-1-99.85-ЭМ-11 Схема электрическая принципиальная контроля уровней ТП 902-1-99.85-ЭМ-12 Схема электрическая принципиальная сигнализации ТП 902-1-99.85-ЭМ-13 Схема подключения электрооборудования ТП 902-1-99.85-ЭМ-14 Схема подключения электрооборудования ТП 902-1-99.85-ЭМ-15 Схема подключения щита ЩУ ТП 902-1-99.85-ЭМ-16 Схема подключения шкафа ШУС ТП 902-1-99.85-ЭМ-17 Кабельный журнал ТП 902-1-99.85-ЭМ-18 Кабельный журнал ТП 902-1-99.85-ЭМ-19 План расположения электрооборудования. Прокладка кабелей ТП 902-1-99.85-ЭМ-20 План расположения электрооборудования. Прокладка кабелей ТП 902-1-99.85-ЭМ-21 План расположения электрооборудования. Прокладка кабелей ТП 902-1-99.85-ЭМ-22 План расположения электрооборудования. Прокладка кабелей. Спецификация ТП 902-1-99.85-ЭМ-23 Заземление и зануление ТП 902-1-99.85-ЭМ-24 План прокладки троллейного шинопровода ТП 902-1-99.85-ЭМ-25 Прокладка коробов. План и разрез ТП 902-1-99.85-ЭМ-26 Электроосвещение ТП 902-1-99.85-ЭМ.ЗМ Задание МЭЗ марки ЭМ.ЗМ ТП 902-1-99.85-ЭМ.ЗЗИ Задание заводу-изготовителю марки ЭМ.ЗЗИ ТП 902-1-99.85-ЭМ.ЗЗИ Опросный лист для заказа комплектных трансформаторных подстанций КТП-400□/0.4кВ ТП 902-1-99.85-АТХ Основной комплект марки АТХ ТП 902-1-99.85-АТХ-1 Общие данные. Ведомости ТП 902-1-99.85-АТХ-2 Схема функциональная технологического контроля ТП 902-1-99.85-АТХ-3 Схема соединений внешних проводок. План расположения ТП 902-1-99.85-АТХ-4 Схема соединений внешних проводок. План расположения ТП 902-1-99.85-АТХ-5 Статив датчиков ст.1. Монтажный чертеж ТП 902-1-99.85-АТХ-6 Статив датчиков ст.2. Монтажный чертеж ТП 902-1-99.85-АТХ-7 Кронштейн. Монтажный чертеж ТП 902-1-99.85-АТХ-8 Стойка. Монтажный чертеж |
| Разработан: | Харьковский Водоканалпроект |
| Утверждён: | 21.06.1985 Госстрой СССР (Государственный комитет Совета Министров СССР по делам строительства) (USSR Gosstroy А4-23) |




































