Скачать Типовой проект 901-3-207.85 Альбом I. Технологическая, санитарно-техническая части и нестандартизированное оборудованиеДата актуализации: 01.01.2021
|
| Обозначение: | Типовой проект 901-3-207.85 |
| Обозначение англ: | 901-3-207.85 |
| Статус: | не определен законодательством |
| Название рус.: | Альбом I. Технологическая, санитарно-техническая части и нестандартизированное оборудование |
| Дата добавления в базу: | 01.09.2013 |
| Дата актуализации: | 01.01.2021 |
| Дата введения: | 21.12.1984 |
| Дата окончания срока действия: | 30.06.2003 |
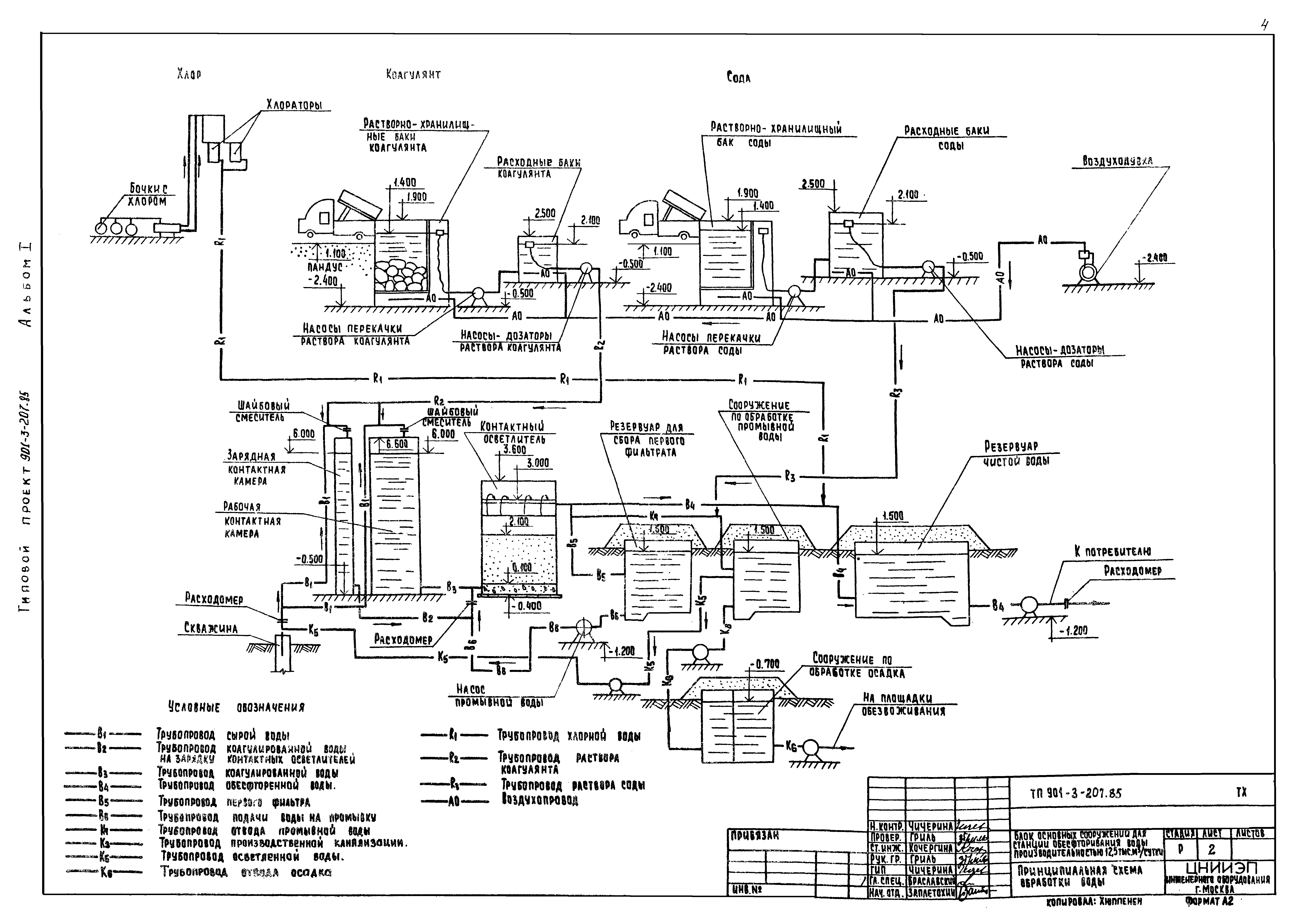
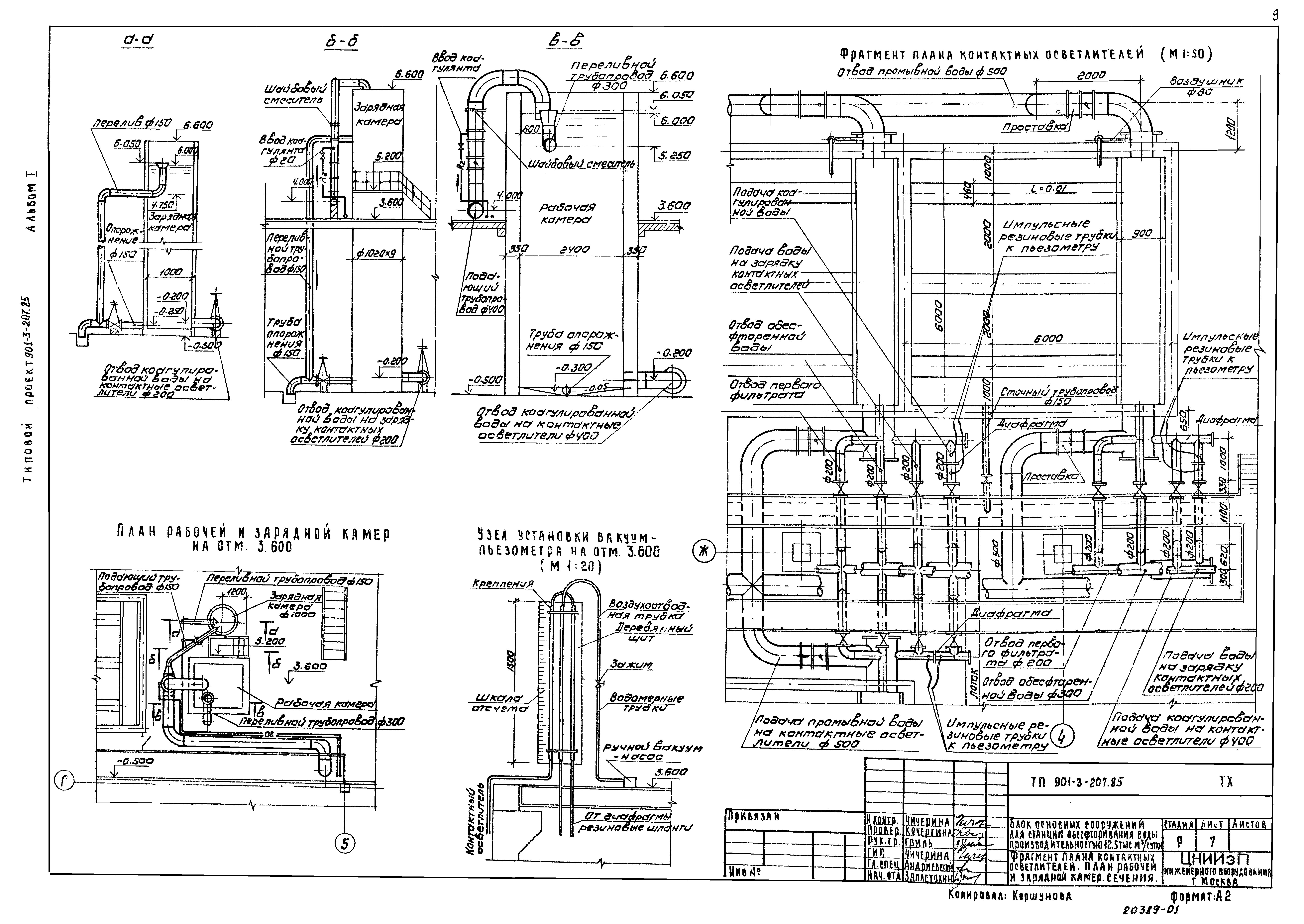
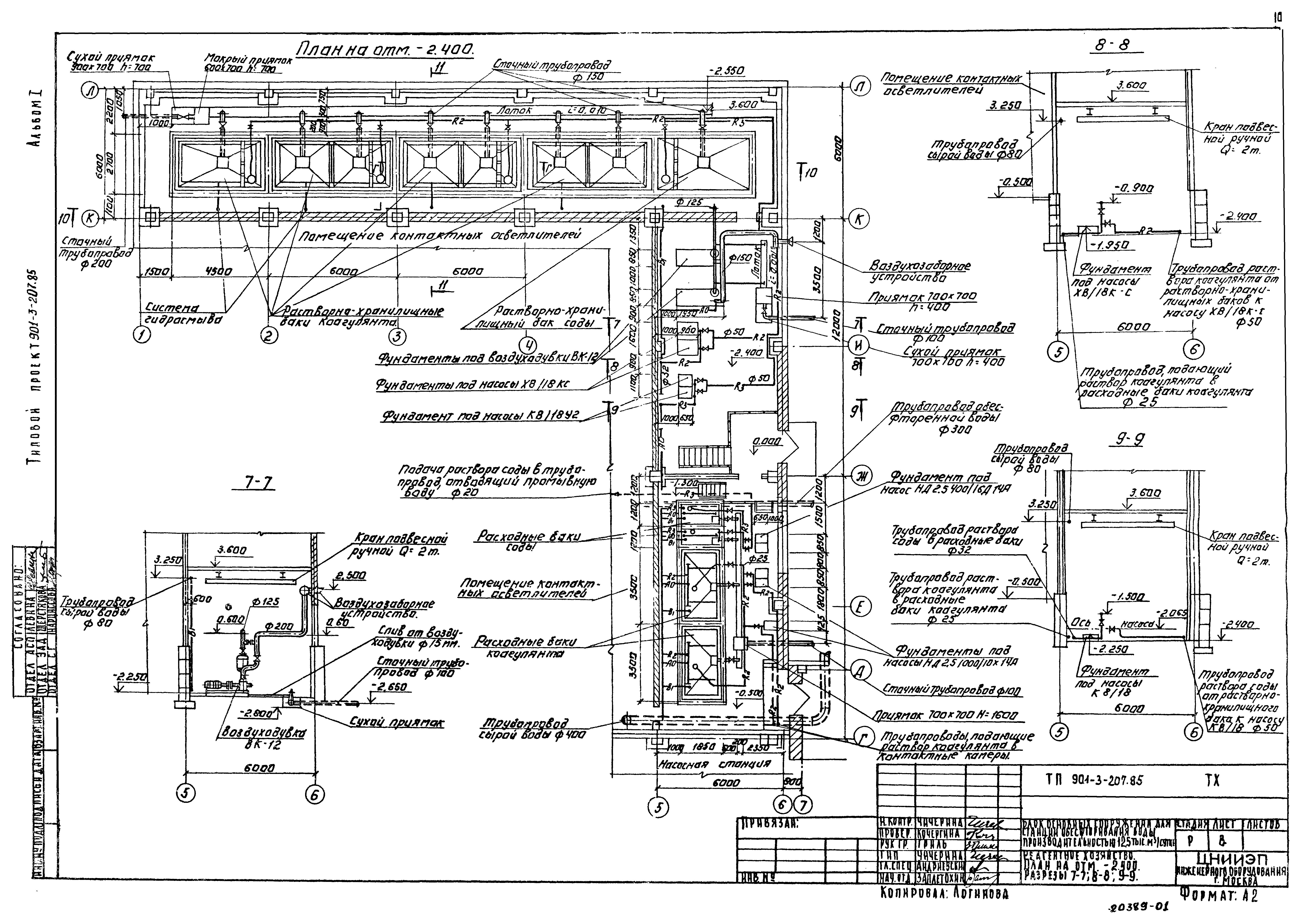
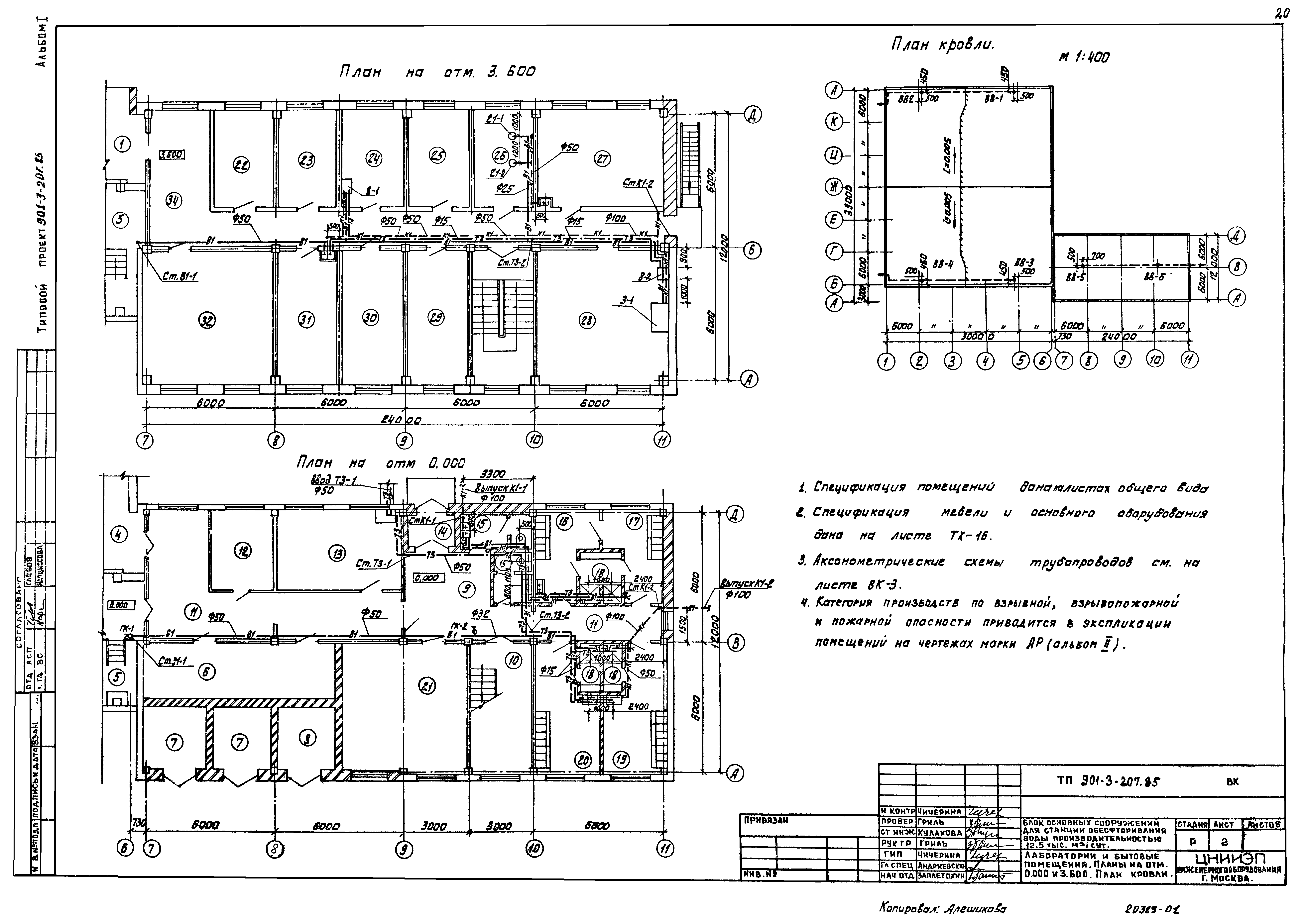
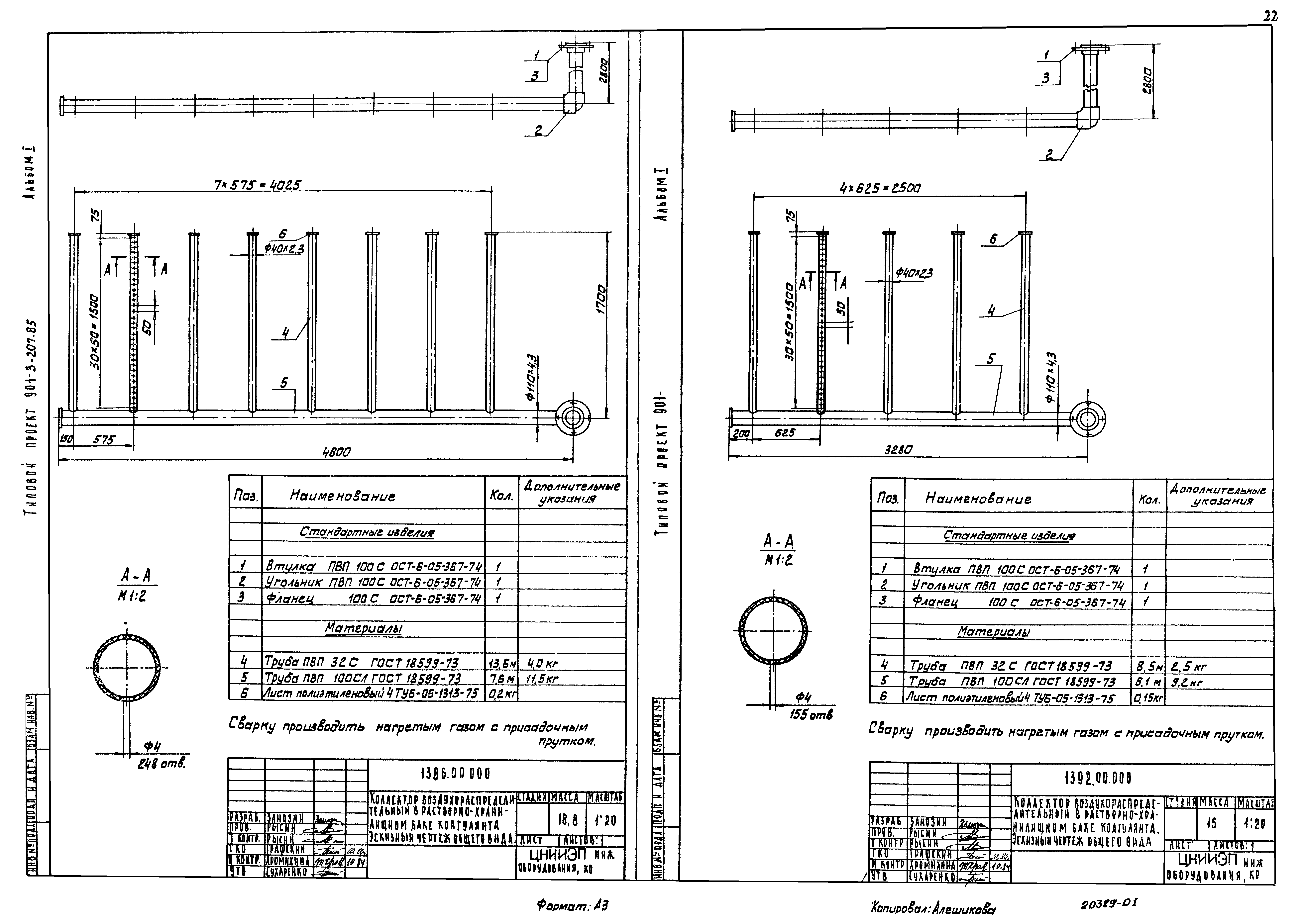
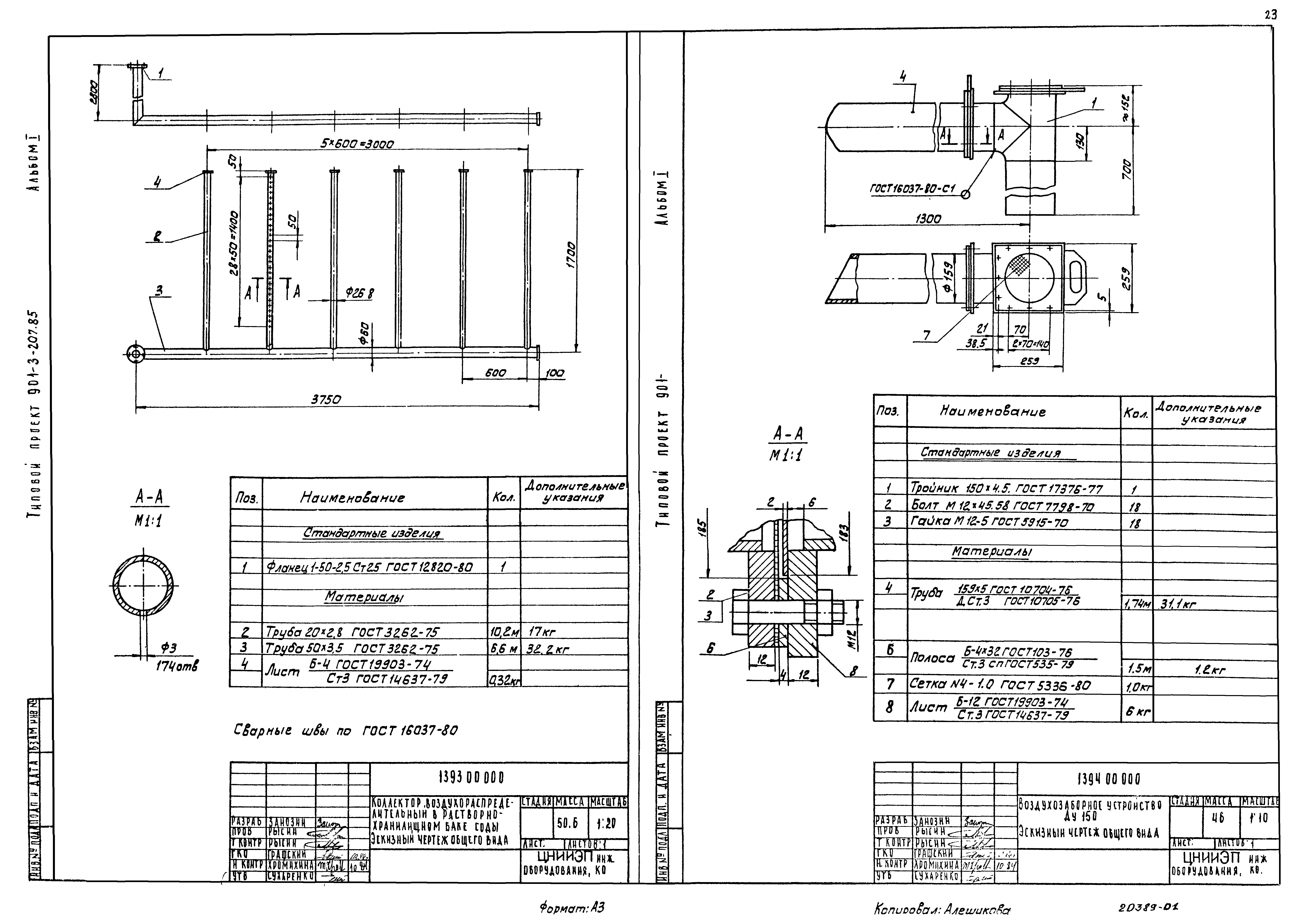
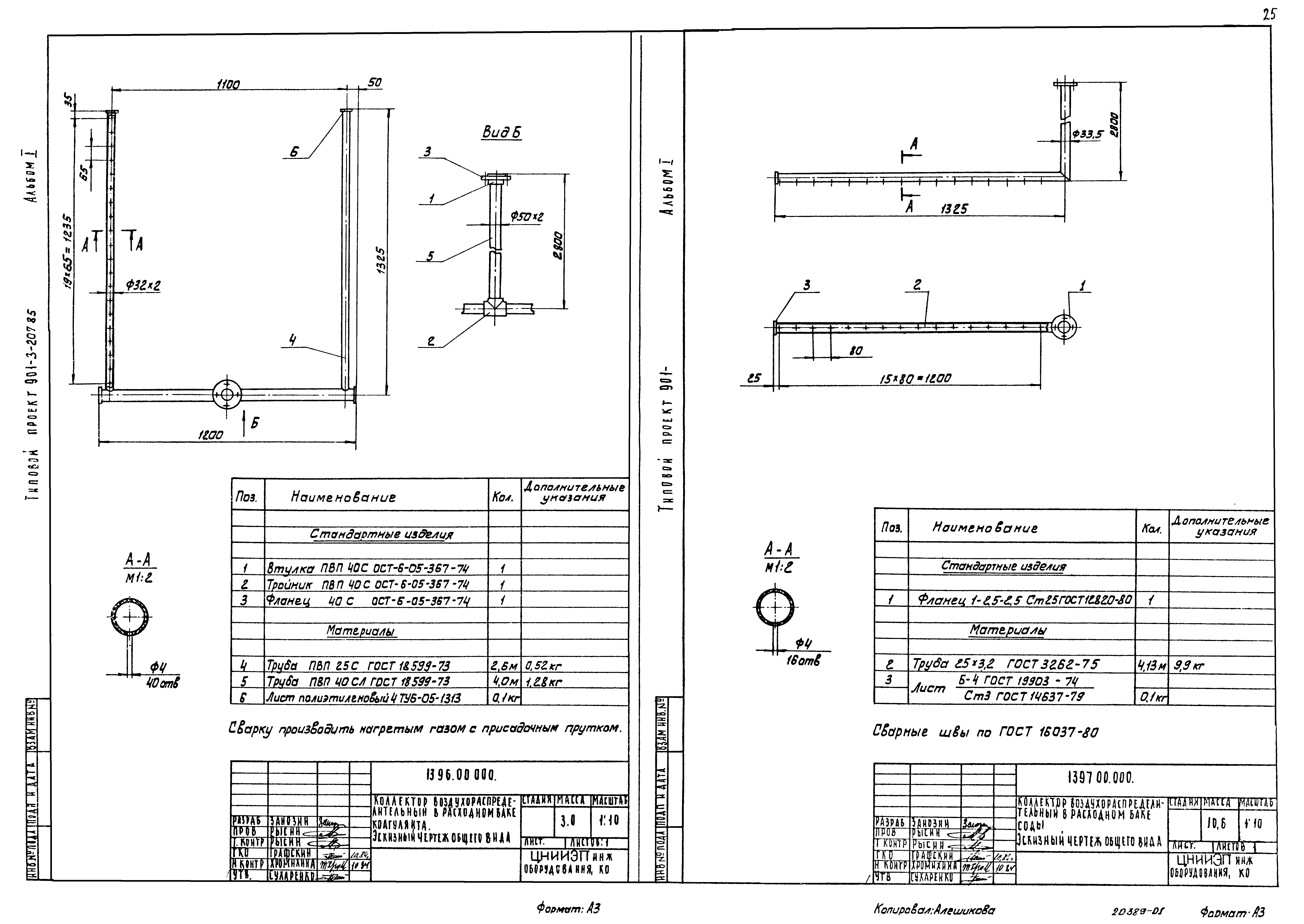
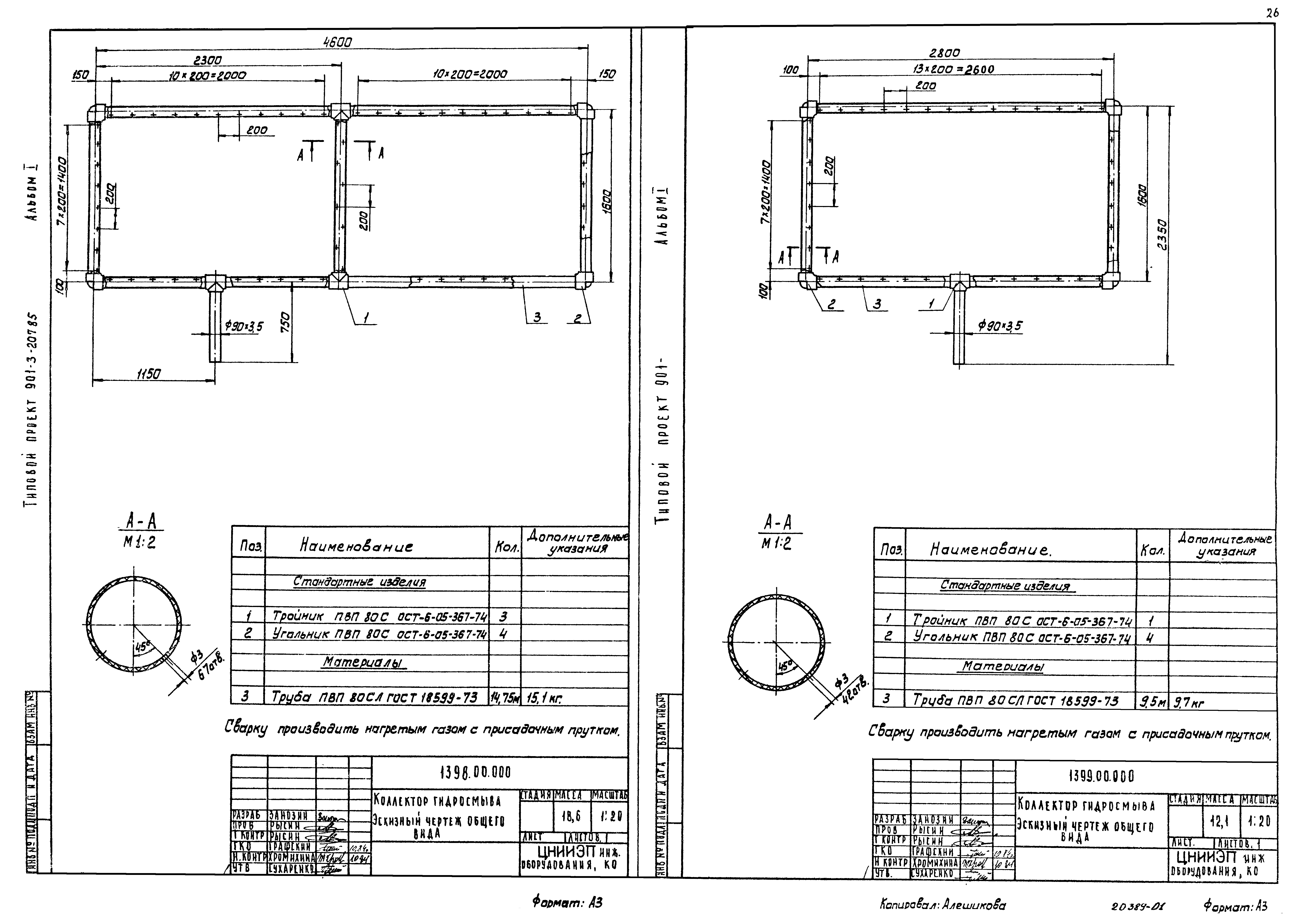
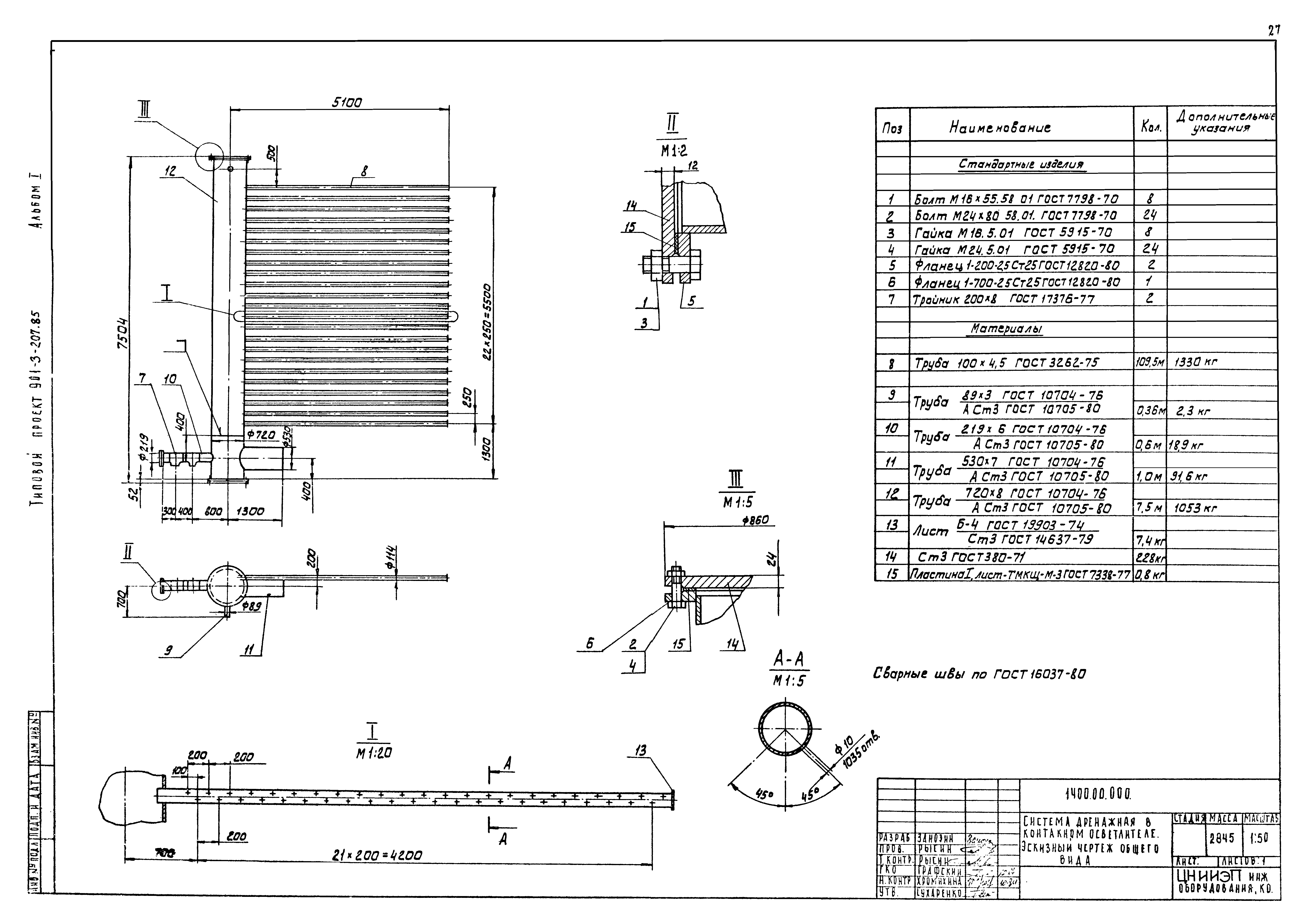
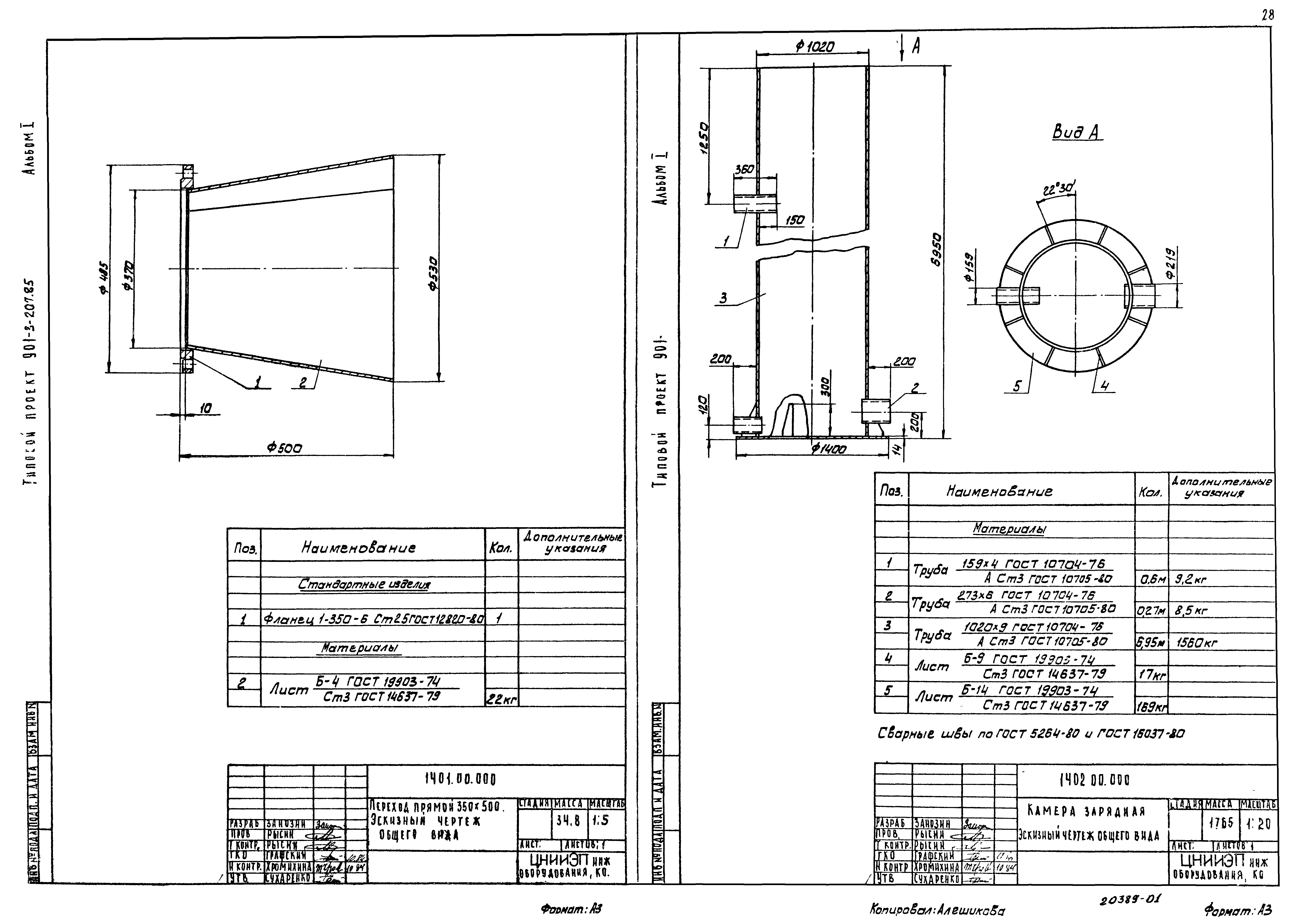
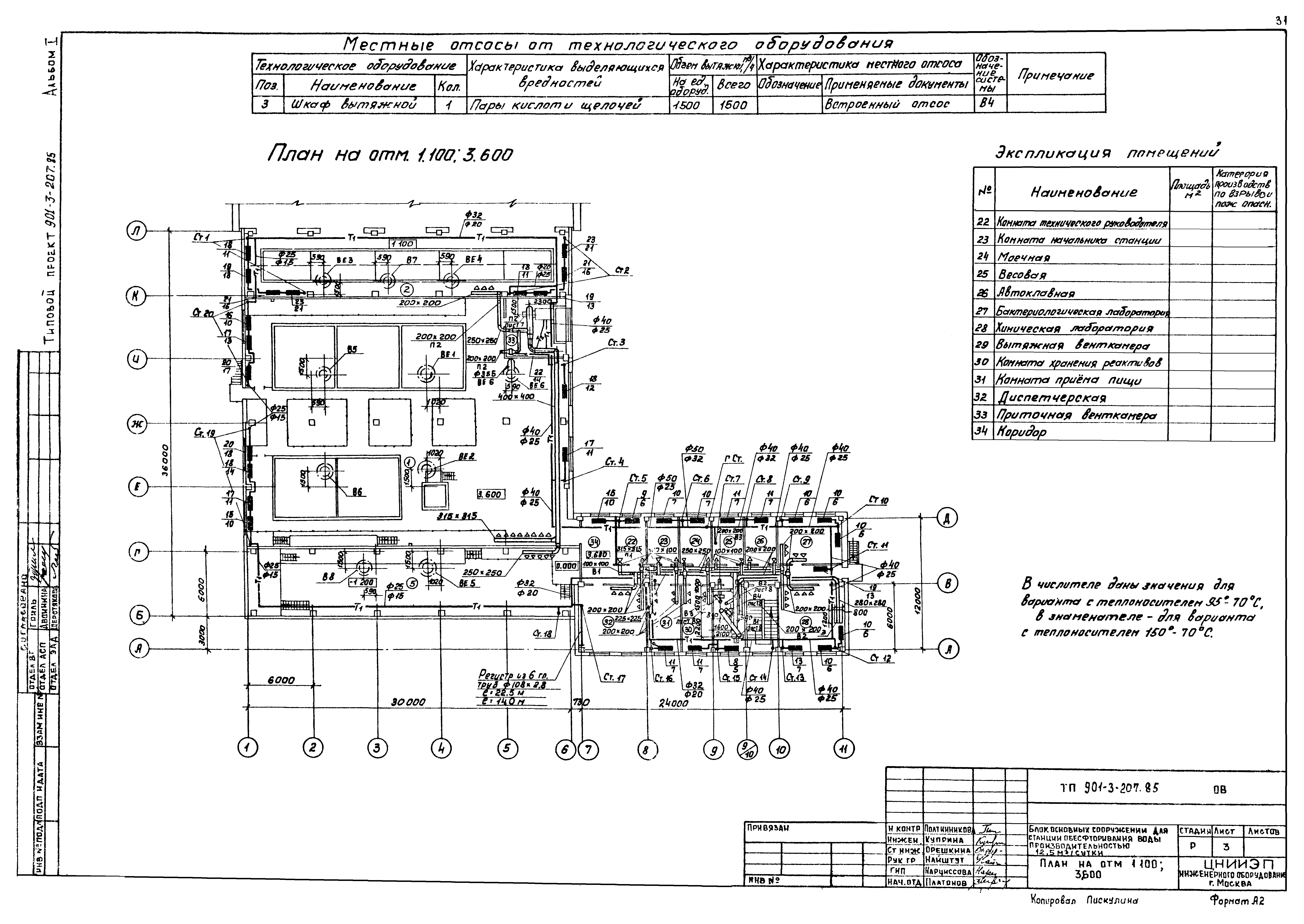
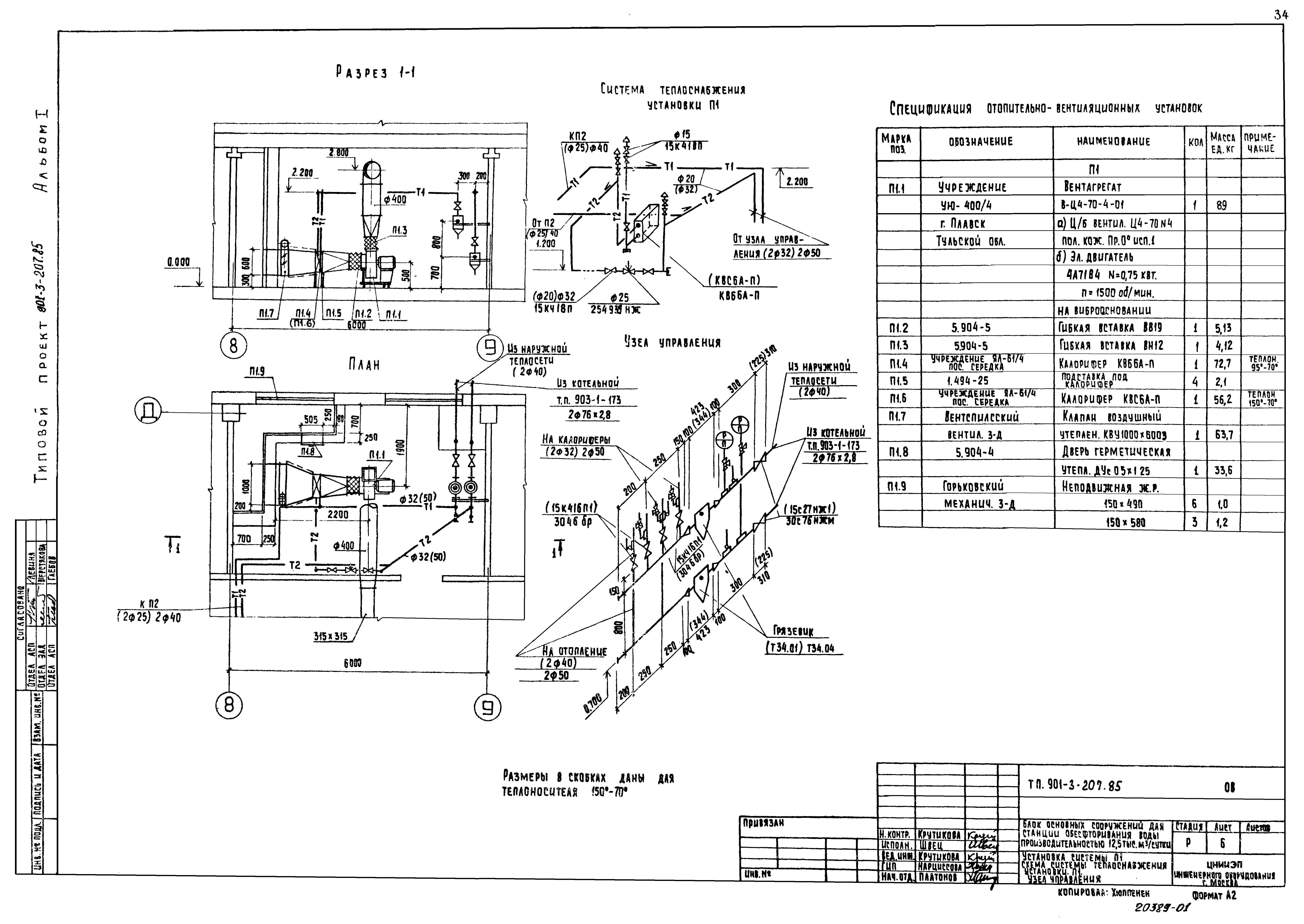
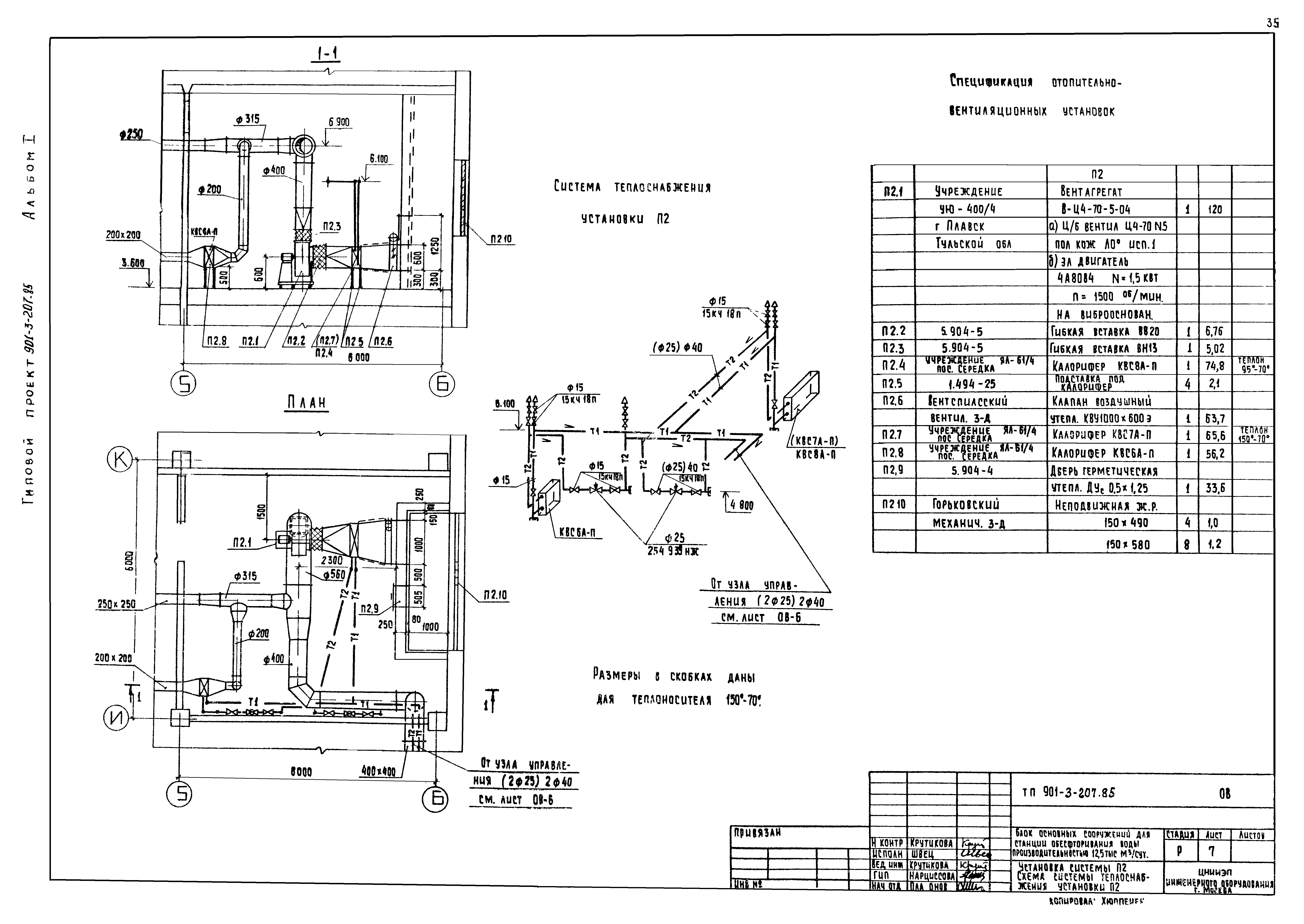
| Оглавление: | ТП 901-3-207.85 Содержание альбома ТП 901-3-207.85-ТХ Технологическая часть. Чертежи марки ТХ ТП 901-3-207.85-ТХ-1 Общие данные ТП 901-3-207.85-ТХ-2 Принципиальная схема обработки воды ТП 901-3-207.85-ТХ-3 Общий вид. План на отм. -2.400,0.000,1.100. Экспликация помещений ТП 901-3-207.85-ТХ-4 Общий вид. План на отм. 3.600. Разрезы 1-1,2-2. Экспликация помещений ТП 901-3-207.85-ТХ-5 Помещение контактных осветлителей. План на отм. -0.500,0.000. Разрезы 3-3,4-4 ТП 901-3-207.85-ТХ-6 Помещение контактных осветлителей. Разрезы 3-3;6-6 ТП 901-3-207.85-ТХ-7 Фрагмент плана контактных осветлителей. План рабочей и зарядной камер ТП 901-3-207.85-ТХ-8 Реагентное хозяйство. План на отм. -2.400. Разрезы 7-7;8-8;9-9 ТП 901-3-207.85-ТХ-9 Реагентное хозяйство. План на отм. 1.100. Разрез 10-10. Сечения д-д;г-г ТП 901-3-207.85-ТХ-10 Реагентное хозяйство. Разрезы 11-11÷14-14. Пробоотборный узел ТП 901-3-207.85-ТХ-11 Насосная станция 2го подъема. План на отм. -1.200. Разрезы 15-15;16-16;17-17 ТП 901-3-207.85-ТХ-12 Аксонометрические схемы В1,В2,В3,В6 ТП 901-3-207.85-ТХ-13 Аксонометрические схемы В4,В5,А2,К1,К2,К4,К3 ТП 901-3-207.85-ТХ-14 Аксонометрические схемы К3,А0 ТП 901-3-207.85-ТХ-15 Аксонометрические схемы R1,R2,R3 ТП 901-3-207.85-ТХ-16 Лаборатории. Мастерская. Экспликация оборудования ТП 901-3-207.85-ВК Внутренний водопровод и канализация ТП 901-3-207.85-ВК-1 Общие данные ТП 901-3-207.85-ВК-2 Лаборатории и бытовые помещения. Планы на отм. 0.000 и 3.600. План кровли ТП 901-3-207.85-ВК-3 Внутренний водопровод, канализация и водостоки ТП 901-3-207.85 Аксонометрические схемы ТП 901-3-207.85-1386.00.000 Коллектор воздухораспределительный в растворно-хранилищном баке коагулянта 1386.00.000 ТП 901-3-207.85-1392.00.000 Коллектор воздухораспределительный в растворно-хранилищном баке коагулянта 1392.00.000 ТП 901-3-207.85-1393.00.000 Коллектор воздухораспределительный в растворно-хранилищном баке соды 1393.00.000 ТП 901-3-207.85-1394.00.000 Воздухораспределительное устройство Ду150 1394.00.000 ТП 901-3-207.85-1395.00.000 Поплавок 1395.00.000,1395.00.000-01,1395.00.000-02,1395.00.000-03 (не агр. Ду20.50;Агр.25.50) ТП 901-3-207.85-1396.00.000 Коллектор воздухораспределительный в расходном баке коагулянта 1396.00.000 ТП 901-3-207.85-1397.00.000 Коллектор воздухораспределительный в расходном баке соды 1397.00.000 ТП 901-3-207.85-1398.00.000 Коллектор гидросмыва 1398.00.000 ТП 901-3-207.85-1399.00.000 Коллектор гидросмыва 1399.00.000 ТП 901-3-207.85-1400.00.000 Система дренажа в контактном осветлителе 1400.00.000,1440.00.000-01 ТП 901-3-207.85-1401.00.000 Переход прямой 350х500 1401.00.000 ТП 901-3-207.85-1402.00.000 Камера зарядная 1402.00.000 ТП 901-3-207.85-ОВ Отопление и вентиляция. Чертежи марки ОВ ТП 901-3-207.85-ОВ-1 Общие данные ТП 901-3-207.85-ОВ-2 План на отм. 0.000, 1.100 ТП 901-3-207.85-ОВ-3 План на отм. 1.100,3.600 ТП 901-3-207.85-ОВ-4 Схема систем отопления ТП 901-3-207.85-ОВ-5 Схема систем П1;П2;В1-В8;ВЕ1-ВЕ6 ТП 901-3-207.85-ОВ-6 Установка системы П1. Схема системы теплоснабжения установки П1. Узел управления ТП 901-3-207.85-ОВ-7 Установка системы П2. Схема системы теплоснабжения установки П2 ТП 901-3-207.85-ОВ-8 Установки систем В1-В4 ТП 901-3-207.85-ОВН-1 Переход ТП 901-3-207.85-ОВН-2 Конфузор ТП 901-3-207.85-ОВН-3 Воздуховод из асбесто-цементных листов. Узлы соединений |
| Разработан: | ЦНИИЭП |
| Утверждён: | 22.07.1981 Госгражданстрой (Gosgrazhdanstroy 219) |







































