Скачать Типовой проект 901-3-207.85 Альбом II. Архитектурно-строительная частьДата актуализации: 01.01.2021
|
| Обозначение: | Типовой проект 901-3-207.85 |
| Обозначение англ: | 901-3-207.85 |
| Статус: | не определен законодательством |
| Название рус.: | Альбом II. Архитектурно-строительная часть |
| Дата добавления в базу: | 01.09.2013 |
| Дата актуализации: | 01.01.2021 |
| Дата введения: | 21.12.1984 |
| Дата окончания срока действия: | 30.06.2003 |
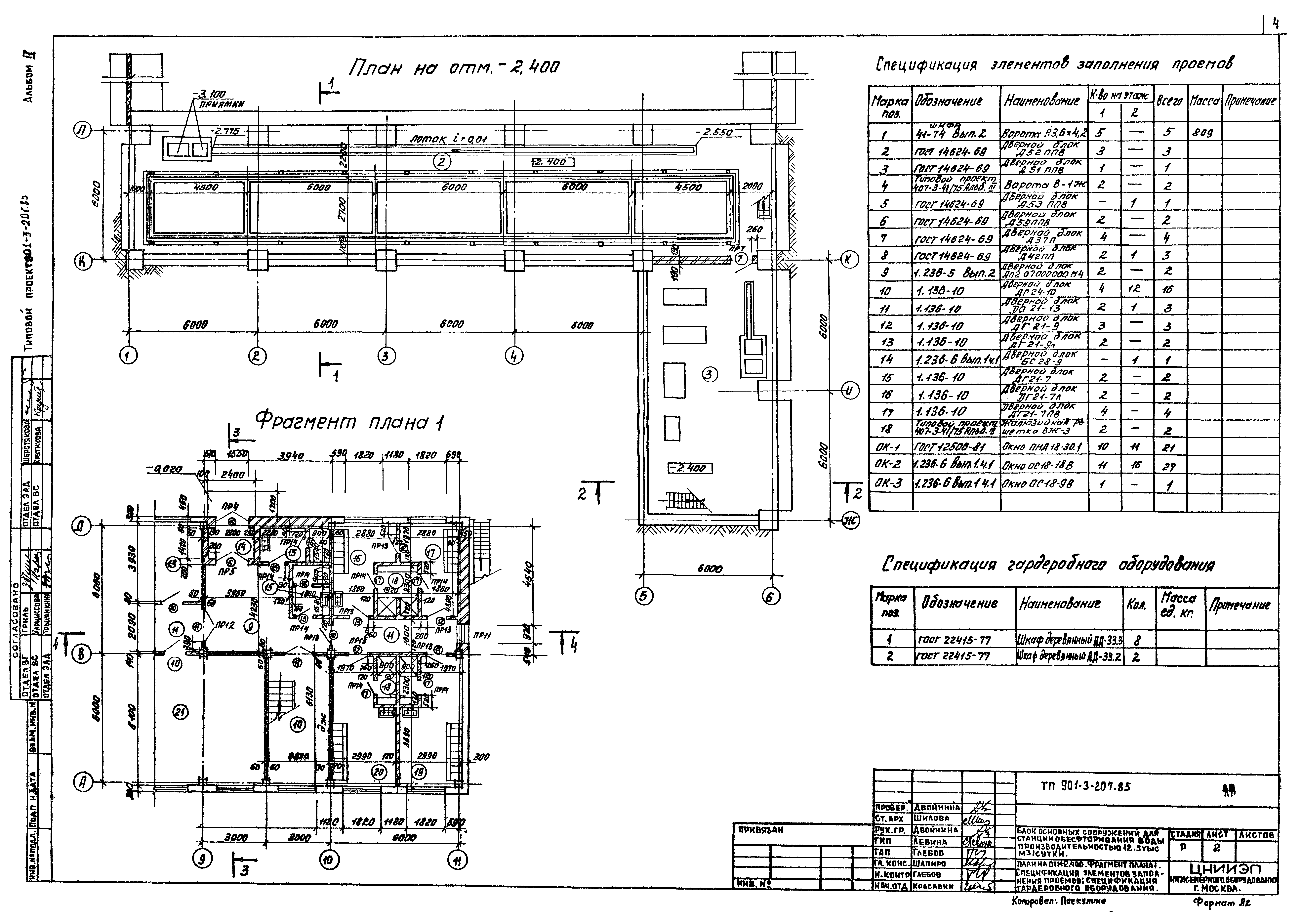
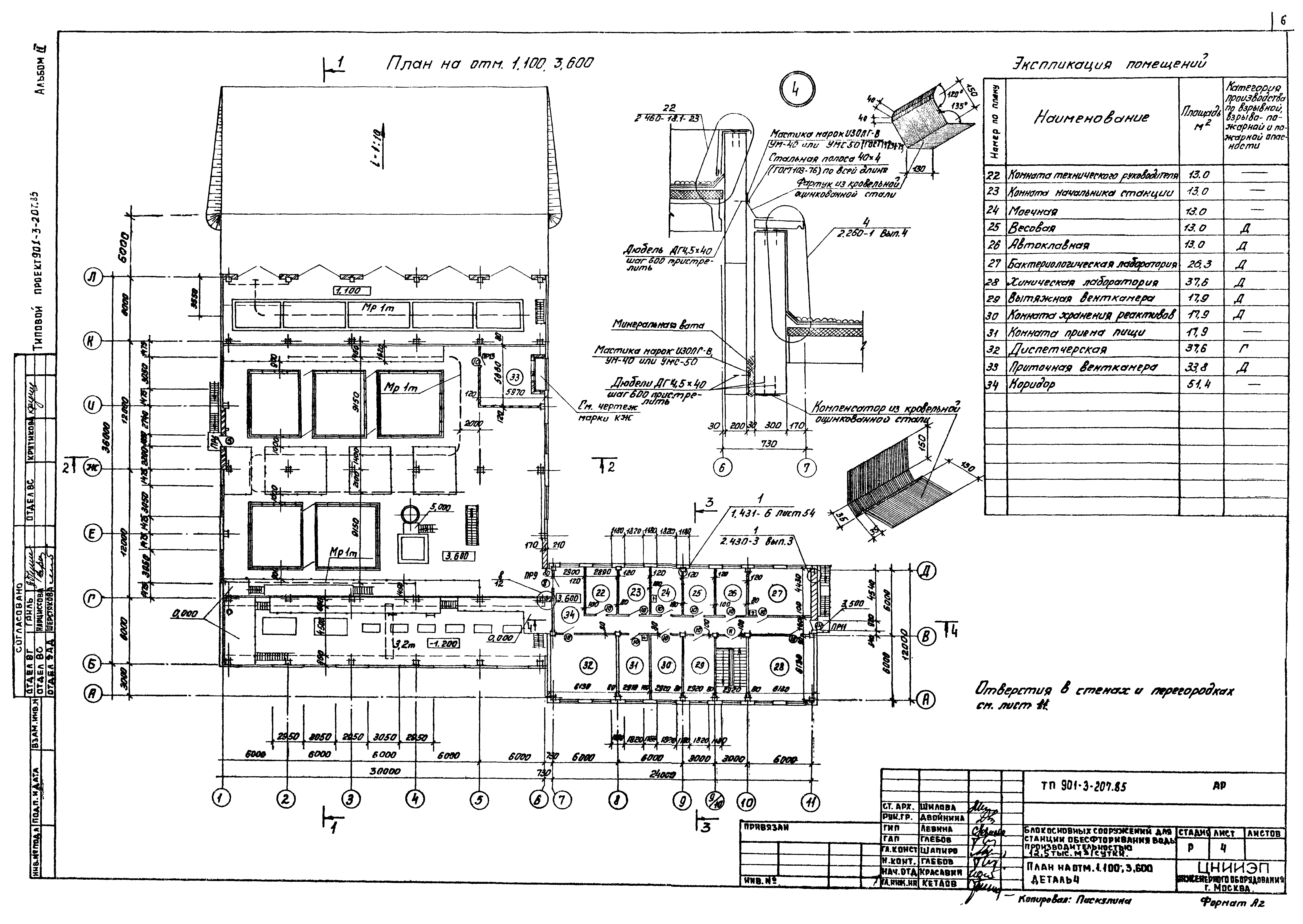
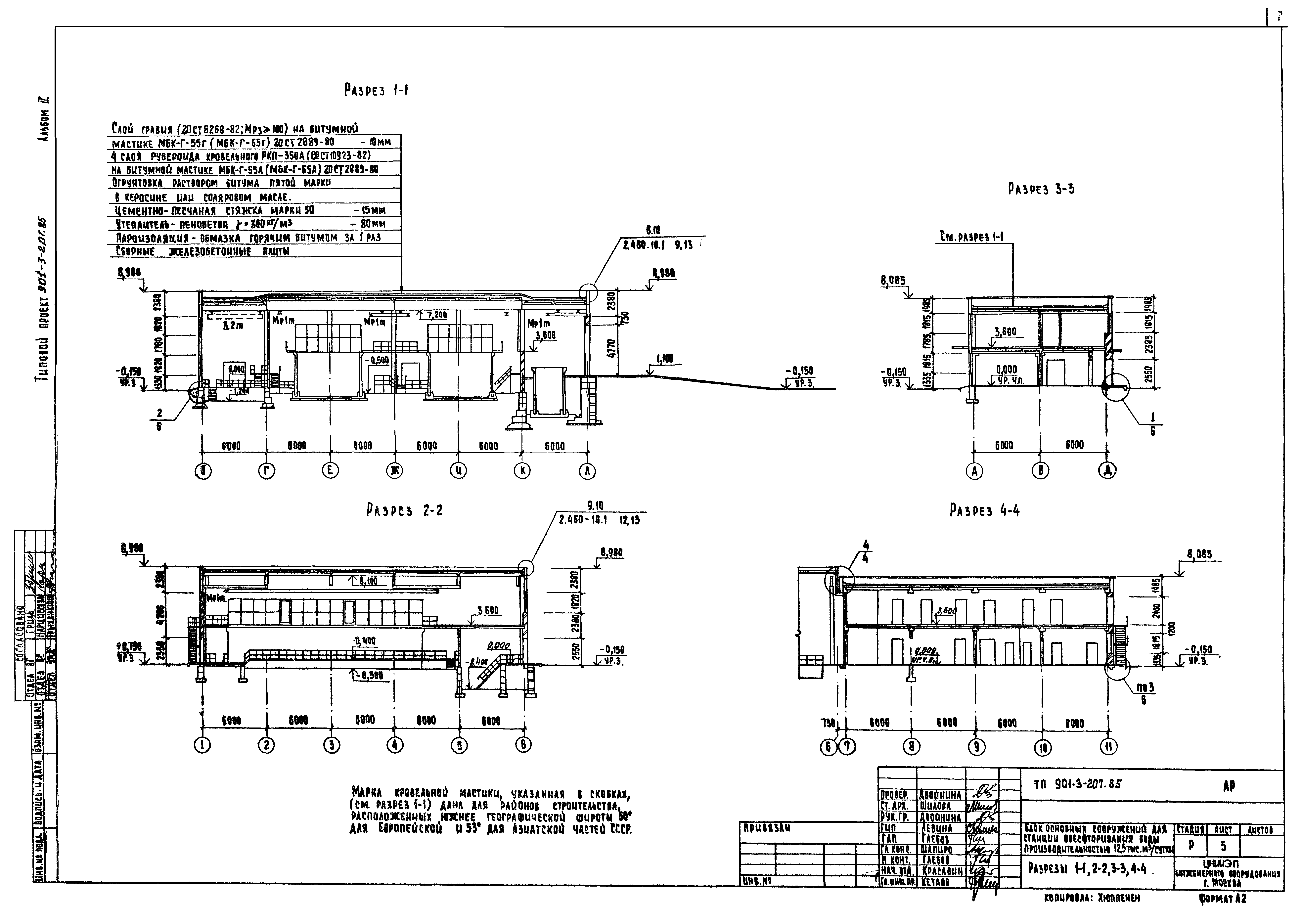
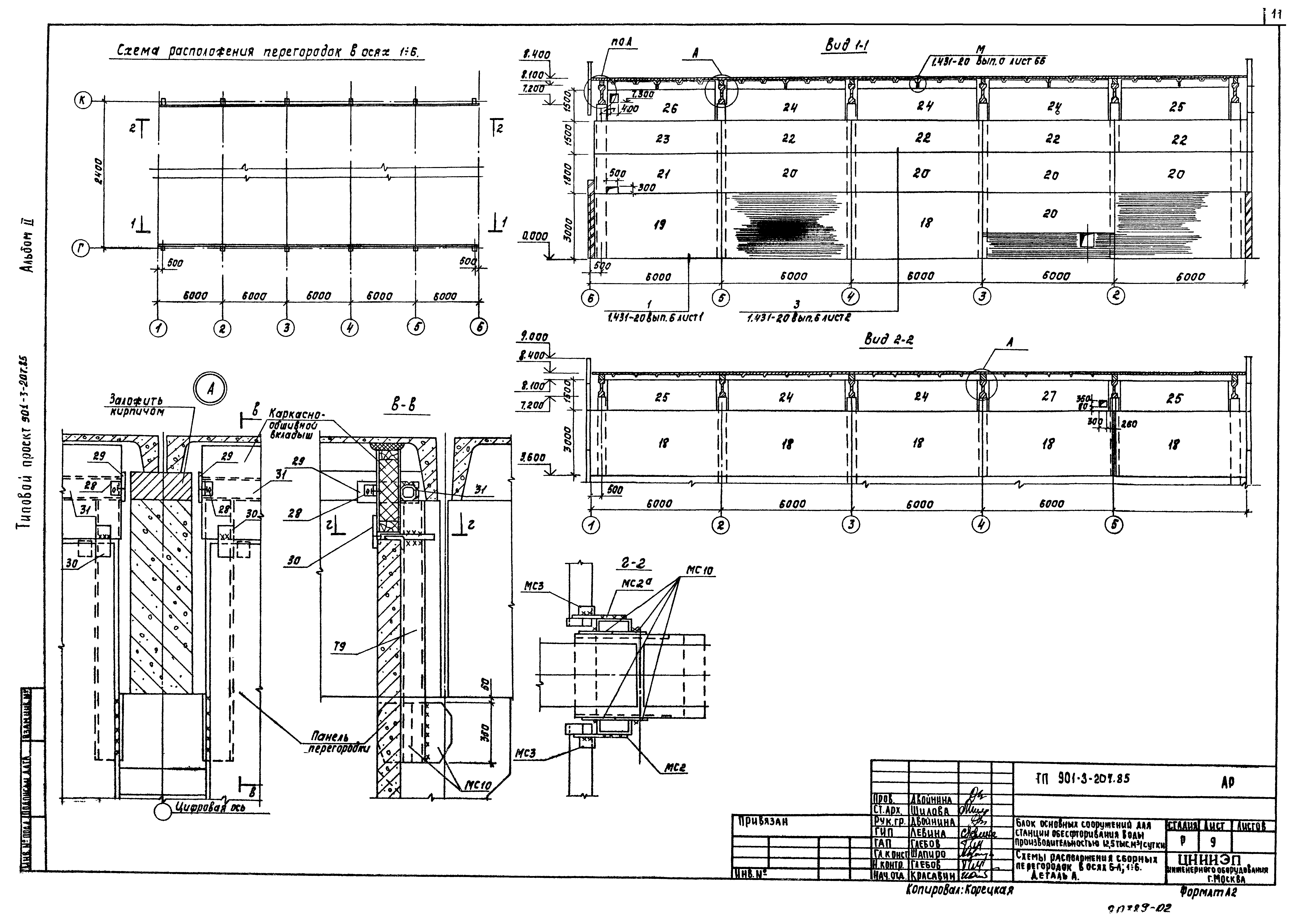
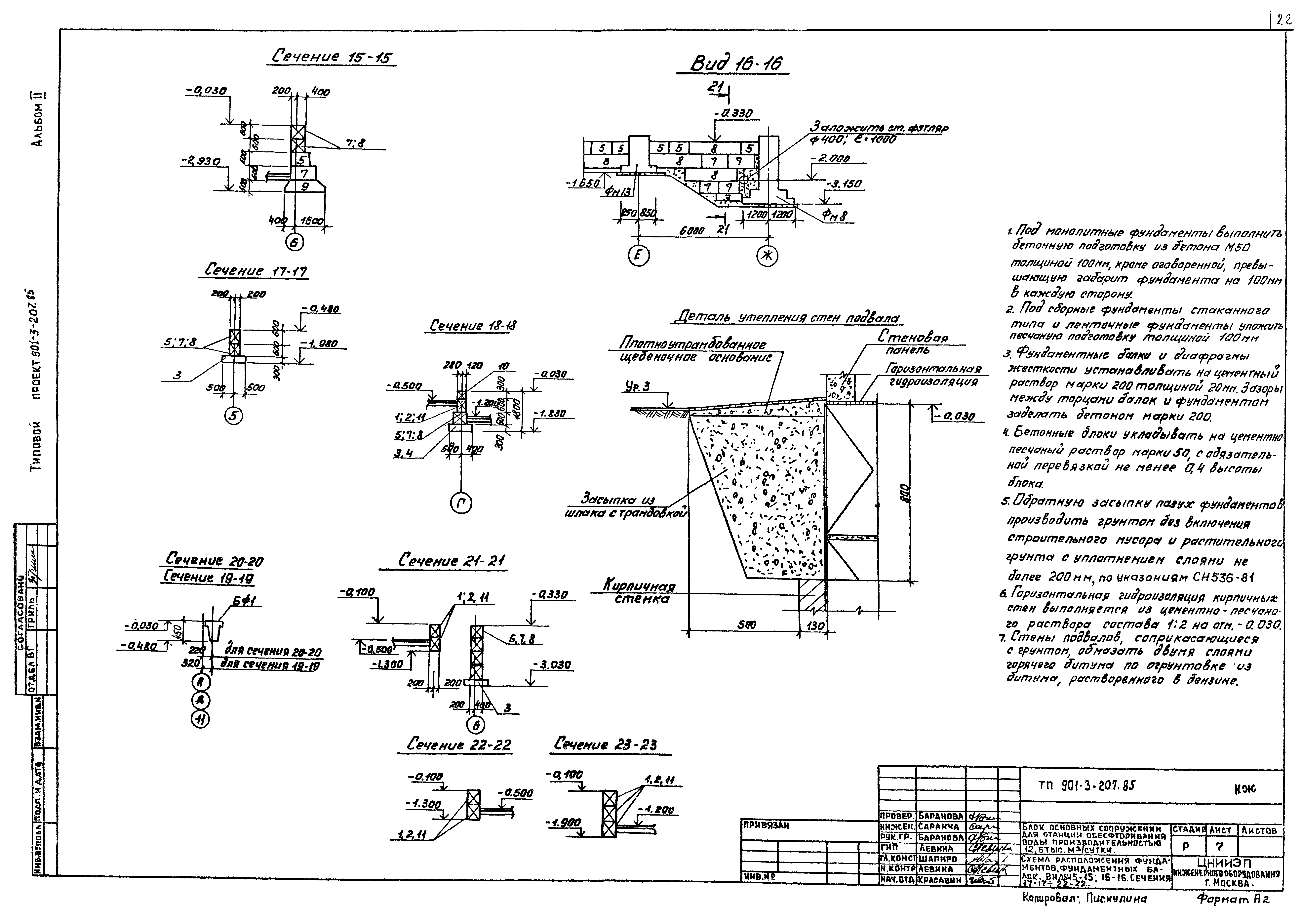
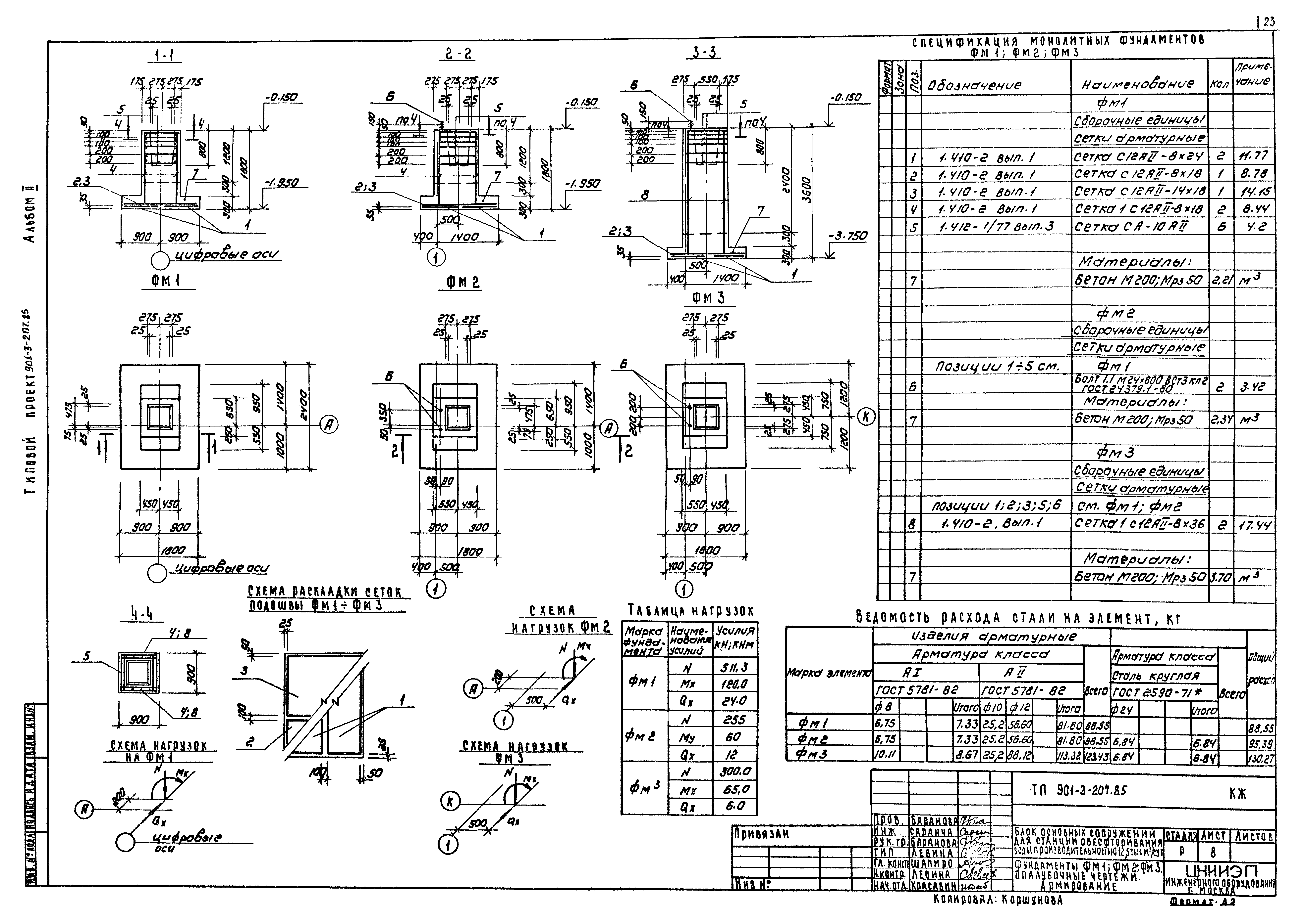
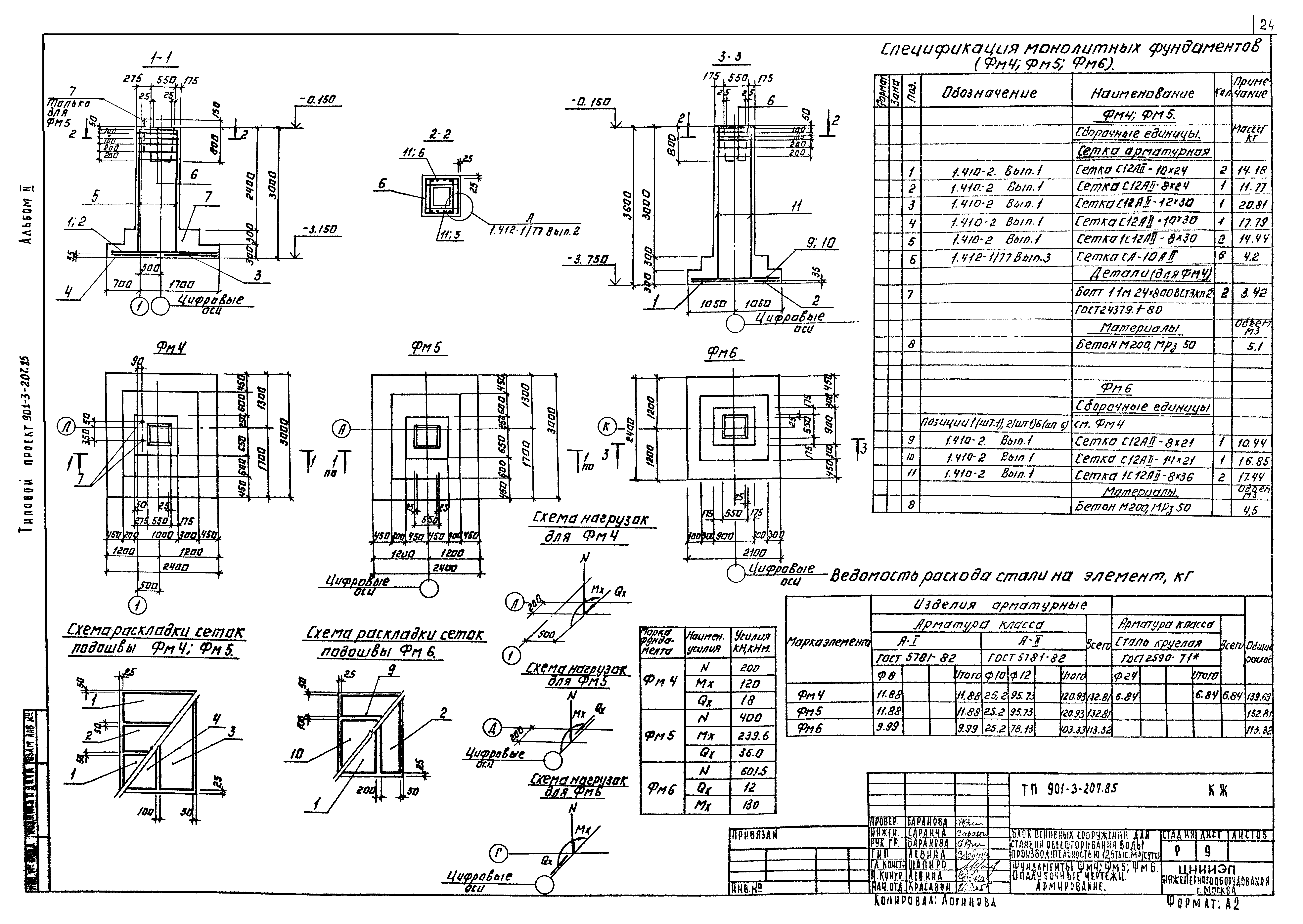
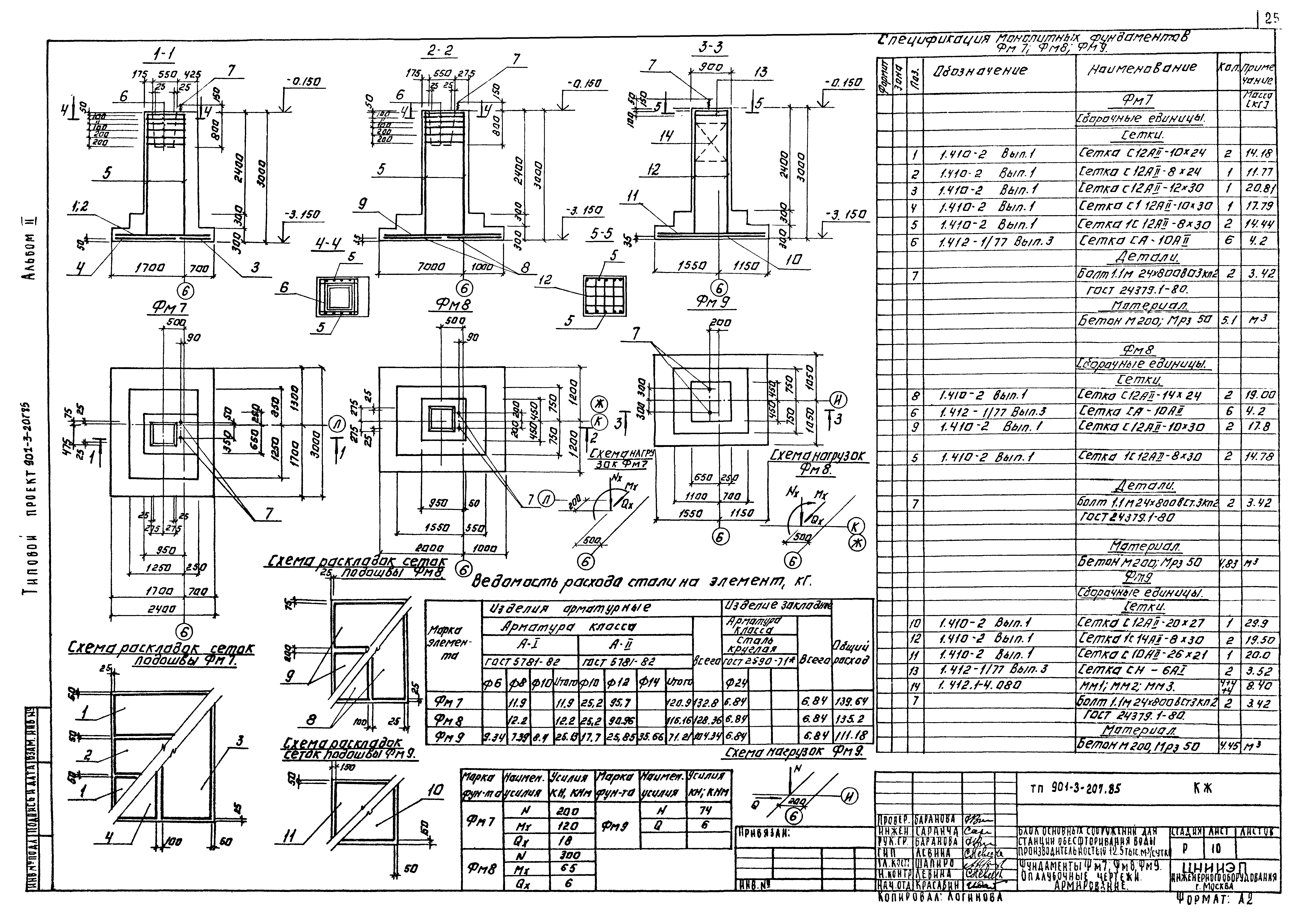
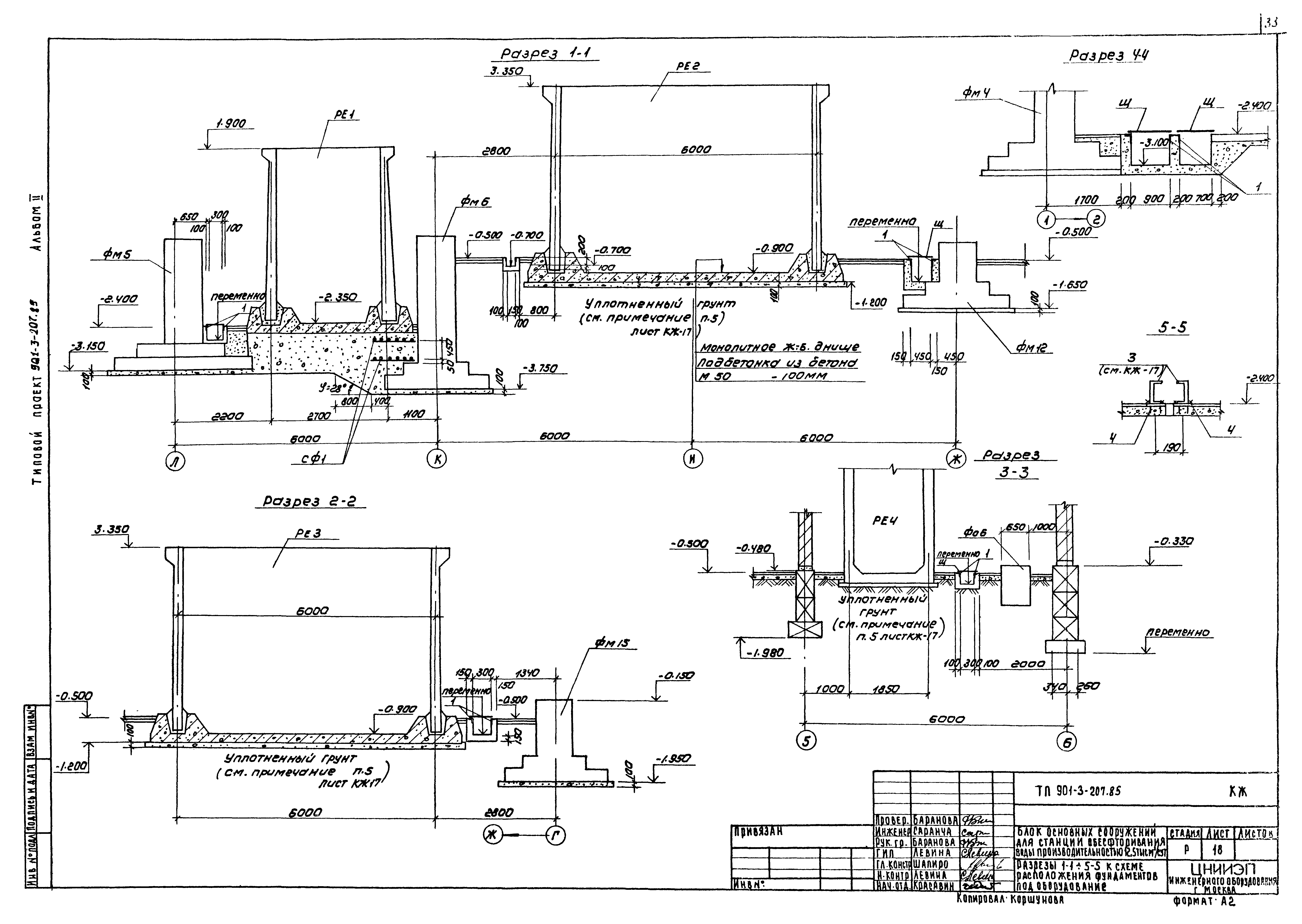
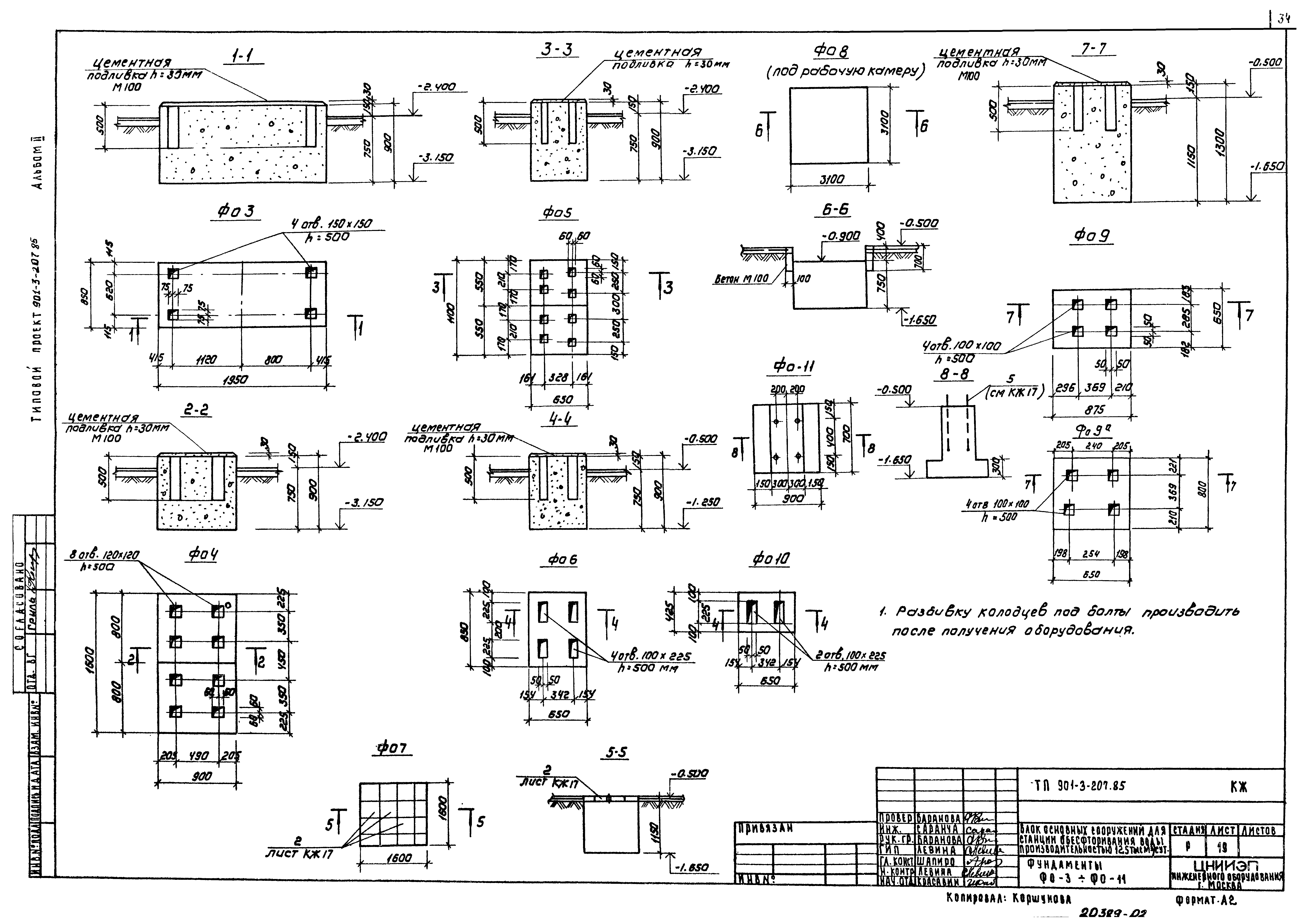
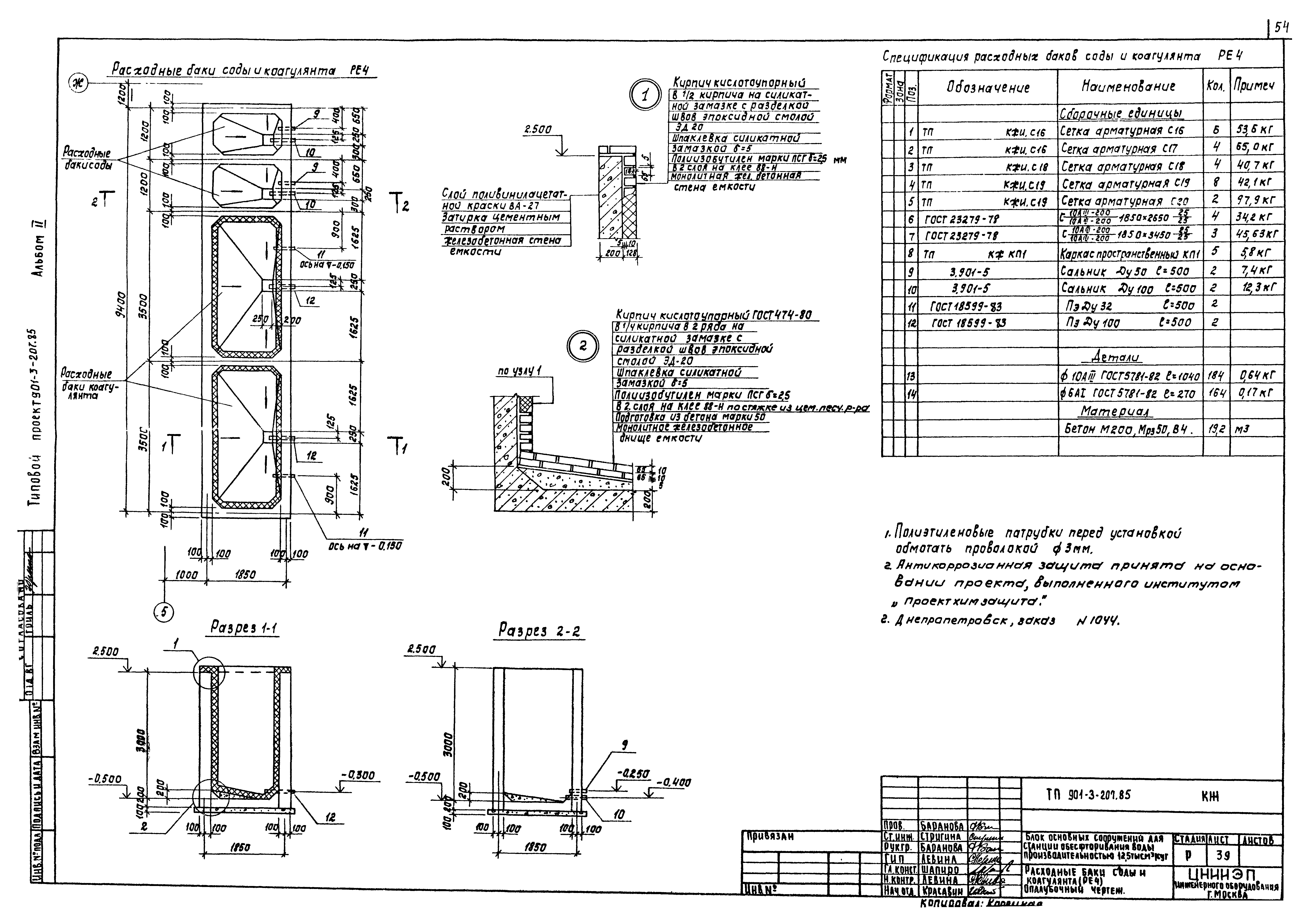
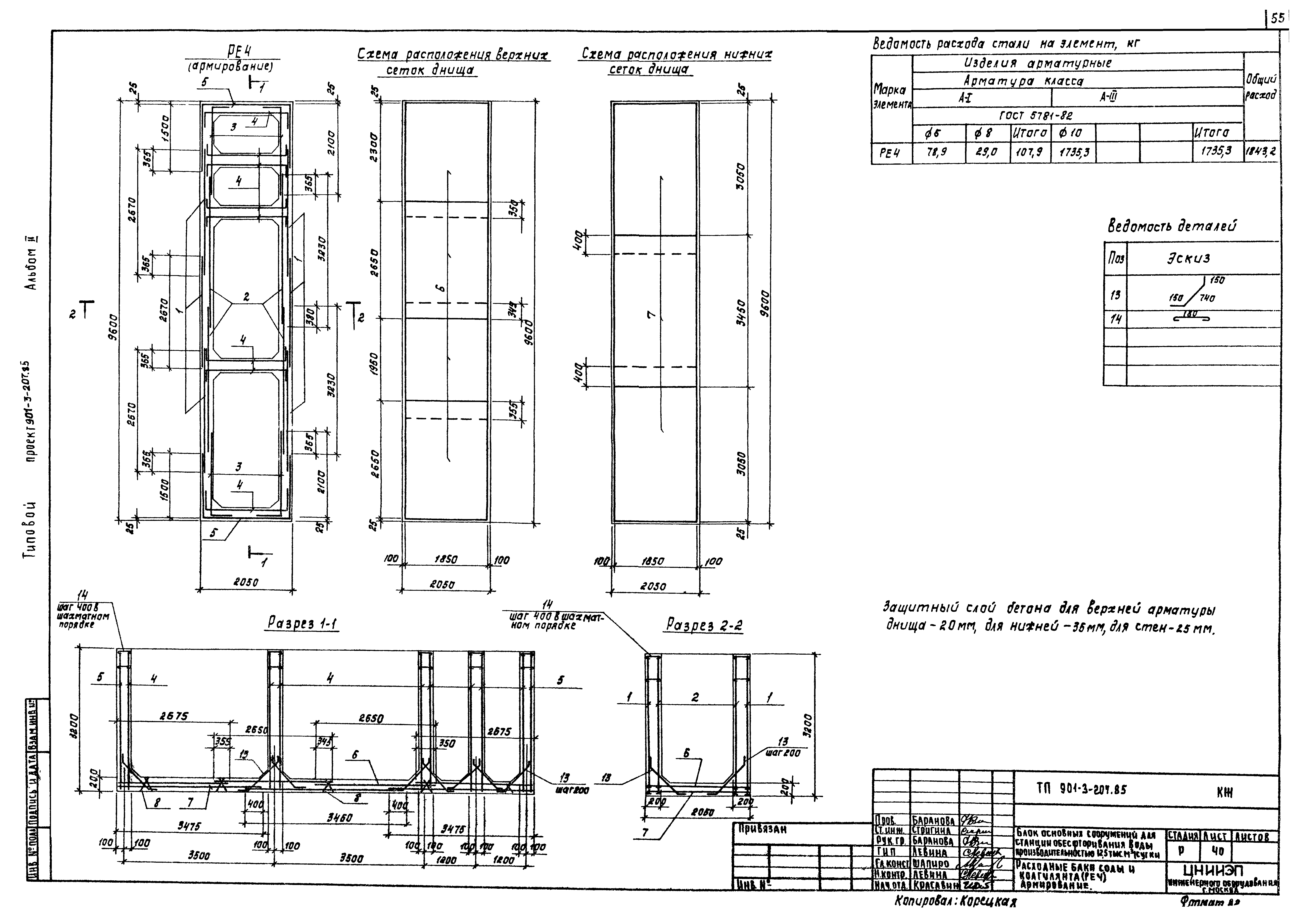
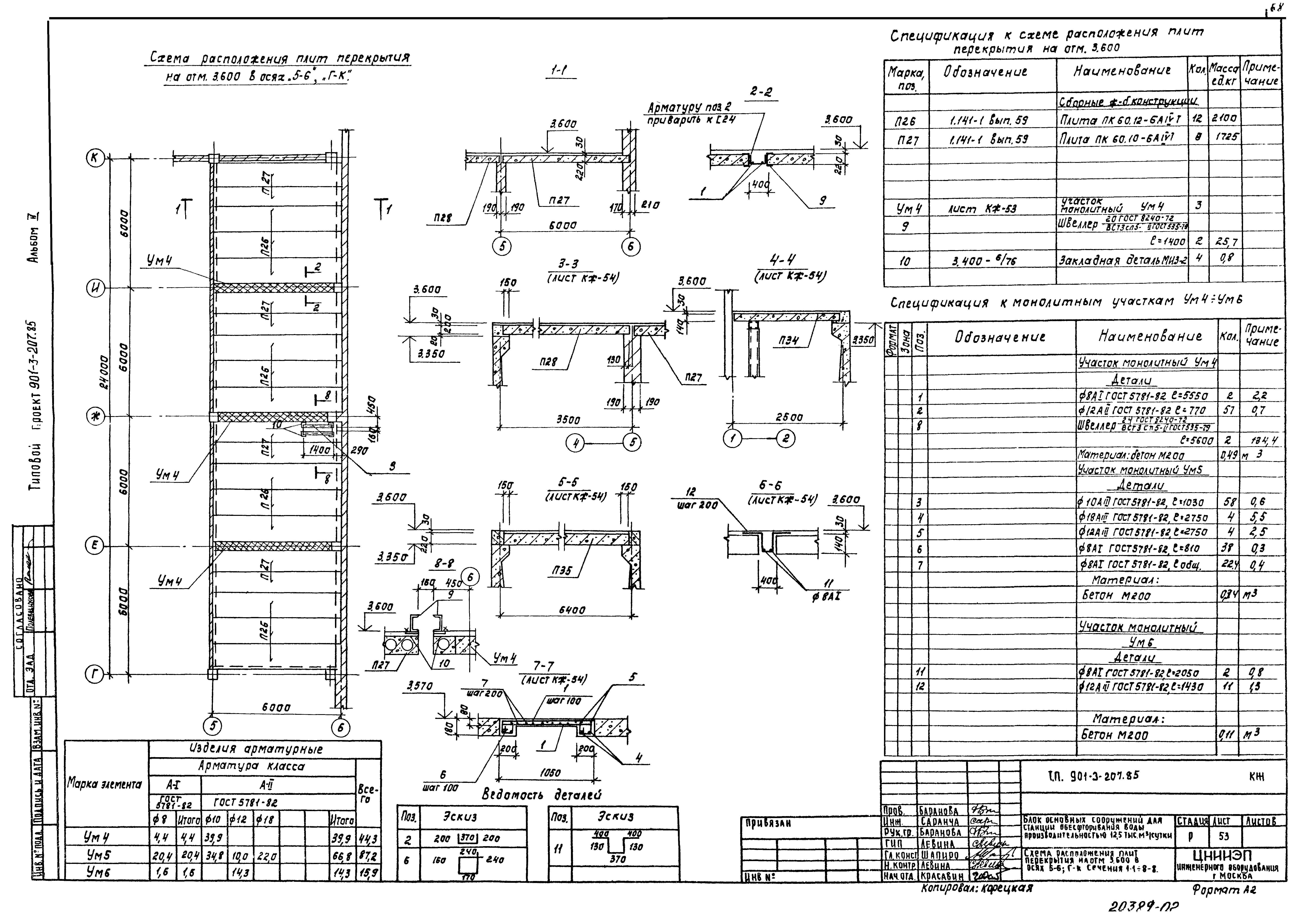
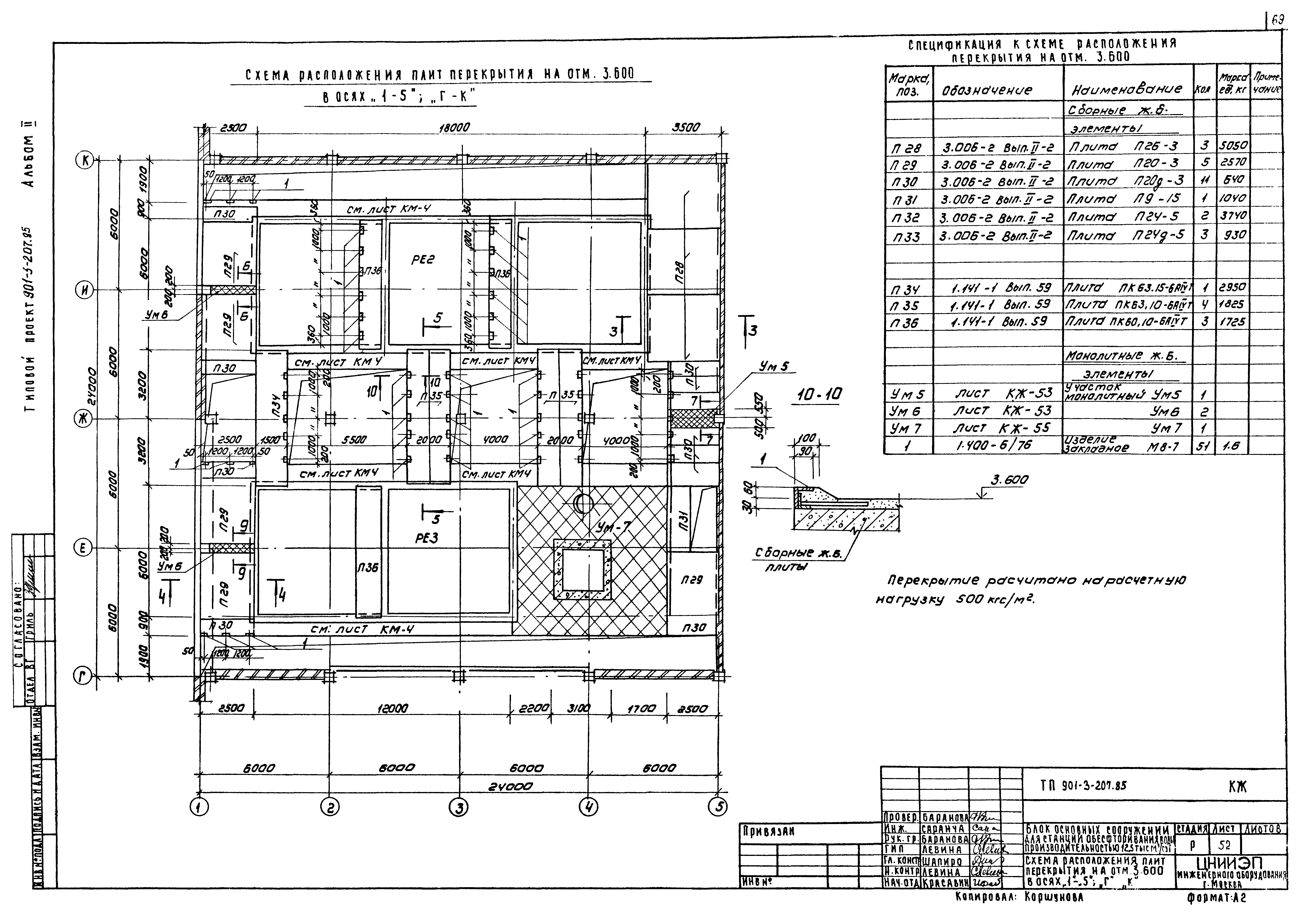
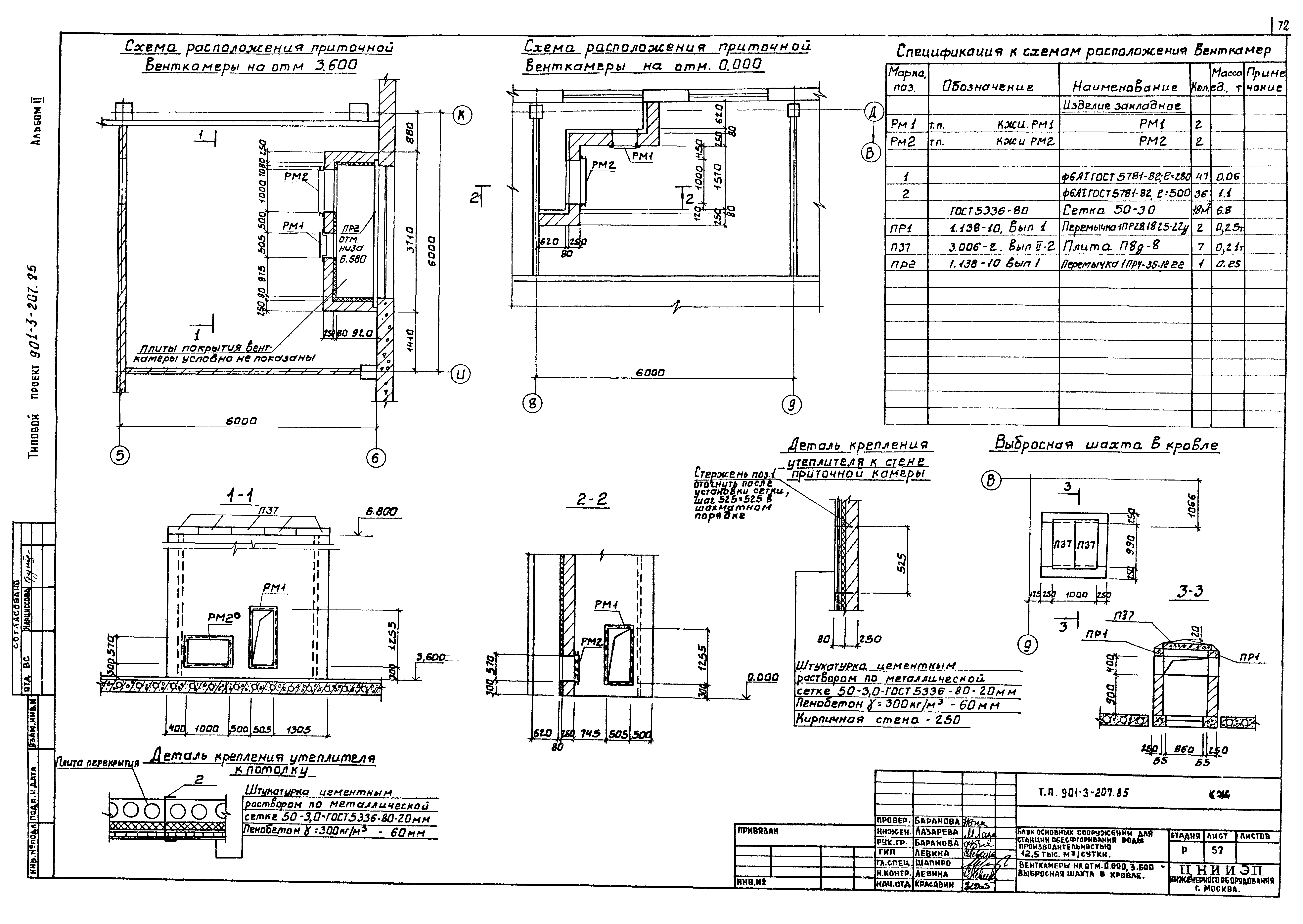
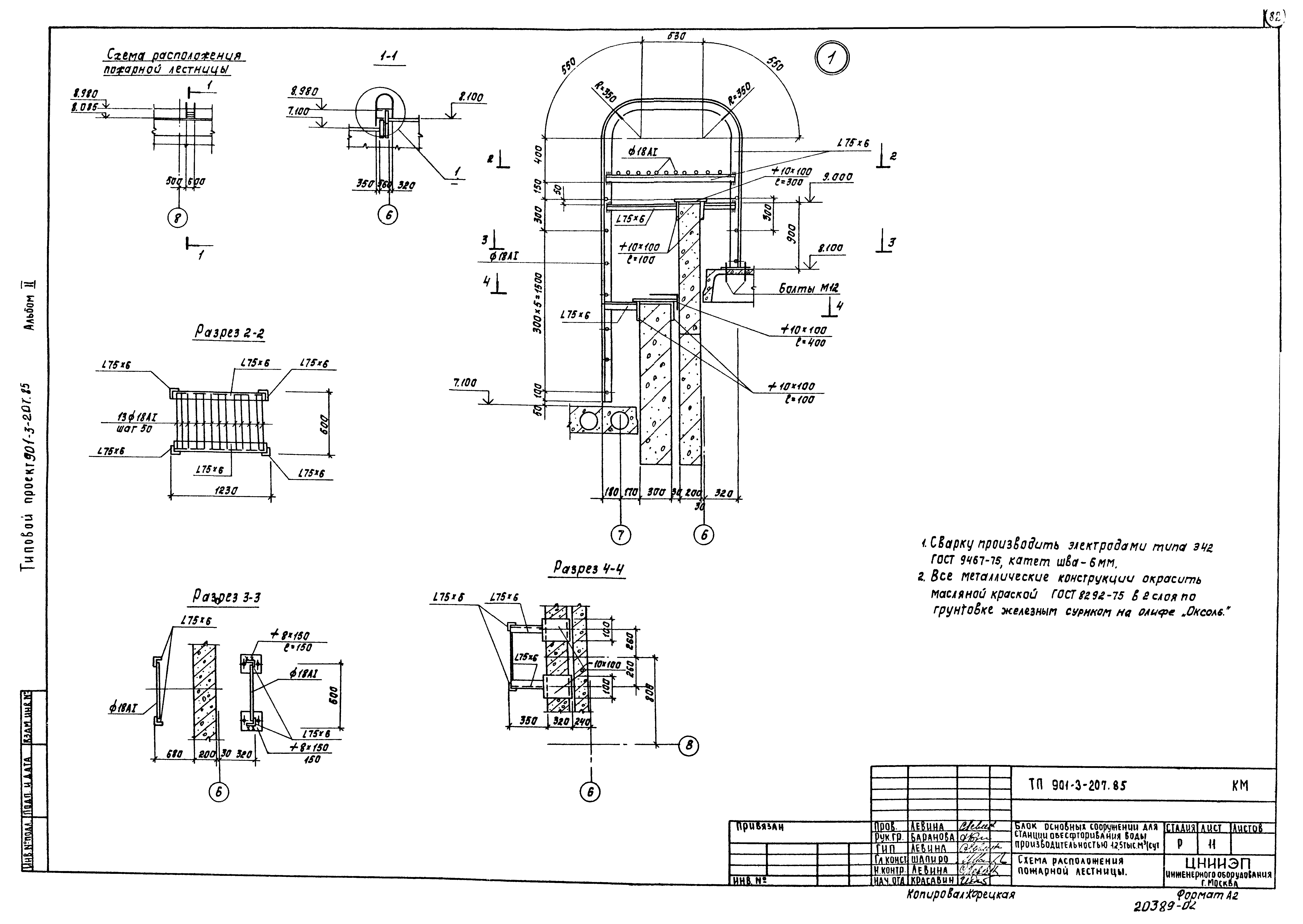
| Оглавление: | ТП 901-3-207.85-АР Листы марки АР ТП 901-3-207.85-АР-1 Общие данные ТП 901-3-207.85-АР-2 План на отм. - 2.400. Фрагмент плана 1. Спецификация элементов заполнения проемов. Спецификация гардеробного оборудования ТП 901-3-207.85-АР-3 План на отм. 0.000,1.100. Фрагмент плана 2 ТП 901-3-207.85-АР-4 План на отм. 1.100. Деталь 4 ТП 901-3-207.85-АР-5 Разрезы 1-1,2-2,3-3,4-4 ТП 901-3-207.85-АР-6 Фасады 1-11;11-1. Детали 1,2,3 ТП 901-3-207.85-АР-7 Фасады А-Л,Л-А ТП 901-3-207.85-АР-8 Схемы расположения сборных перегородок в осях А-Д,7-11. Спецификация ТП 901-3-207.85-АР-9 Схемы расположения сборных перегородок в осях Б-Л;1-6. Деталь А ТП 901-3-207.85-АР-10 Ведомость проемов ворот и дверей, ведомость и спецификация перемычек ТП 901-3-207.85-АР-11 Планы отверстий на отм. 0.000 и 3.600 ТП 901-3-207.85-АР-12 Ведомость отделки помещений. Детали ТП 901-3-207.85-АР-13 Планы полов и кровли. Экспликация полов ТП 901-3-207.85-КЖ Листы марки КЖ ТП 901-3-207.85-КЖ-1 Общие данные (начало) ТП 901-3-207.85-КЖ-2 Общие данные (продолжение) ТП 901-3-207.85-КЖ-3 Общие данные (окончание) ТП 901-3-207.85-КЖ-4 Схема расположения фундаментных балок и подпорных стен ТП 901-3-207.85-КЖ-5 Схема расположения фундаментов, фундаментных балок, подпорных стен. Виды 1-1,2-2. Сечения 3-3÷7-7 ТП 901-3-207.85-КЖ-6 Схема расположения фундаментов, фундаментных балок. Виды 8-8÷10-10. Сечения 11-11÷14-14 ТП 901-3-207.85-КЖ-7 Схема расположения фундаментов, фундаментных балок. Виды 15-15;16-16. Сечения 17-17÷23-23 ТП 901-3-207.85-КЖ-8 Фундаменты ФМ1;ФМ2;ФМ3. Опалубочные чертежи. Армирование ТП 901-3-207.85-КЖ-9 Фундаменты ФМ4;ФМ5;ФМ6. Опалубочные чертежи. Армирование ТП 901-3-207.85-КЖ-10 Фундаменты ФМ7;ФМ8;ФМ9. Опалубочные чертежи. Армирование ТП 901-3-207.85-КЖ-11 Фундаменты ФМ10-ФМ12. Опалубочные чертежи. Армирование ТП 901-3-207.85-КЖ-12 Фундаменты ФМ13÷ФМ15-1. Опалубочные чертежи. Армирование ТП 901-3-207.85-КЖ-13 Фундаменты ФМ17;ФМ18. Опалубочные чертежи. Армирование ТП 901-3-207.85-КЖ-14 Фундаменты ФМ19;ФМ20. Опалубочные чертежи. Армирование ТП 901-3-207.85-КЖ-15 Фундаменты ФМ21-ФМ22. Опалубочные чертежи. Армирование ТП 901-3-207.85-КЖ-16 Схема расположения фундаментов под оборудование в осях 1-6;В-Г ТП 901-3-207.85-КЖ-17 Схема расположения фундаментов под оборудование. Спецификация ТП 901-3-207.85-КЖ-18 Разрезы 1-1÷5-5 к схеме расположения фундаментов под оборудование ТП 901-3-207.85-КЖ-19 Фундаменты под оборудование ФО3-ФО10 ТП 901-3-207.85-КЖ-20 Антикоррозионная защита каналов и фундаментов под оборудование ТП 901-3-207.85-КЖ-21 Схема расположения каналов приямков в осях 7-8;А-В ТП 901-3-207.85-КЖ-22 Растворно-хранилищные баки коагулянта и баки-хранилища соды (РЕ1). План на отм. 1.900 и план набетонок днища ТП 901-3-207.85-КЖ-23 Растворно-хранилищные баки коагулянта и баки-хранилища соды (РЕ1). Разрезы 3-3÷4-4 ТП 901-3-207.85-КЖ-24 Растворно-хранилищные баки коагулянта (РЕ1). Планы раскладки верхних и нижних сеток днища ДМ1 ТП 901-3-207.85-КЖ-25 Растворно-хранилищные баки коагулянта (РЕ1). Планы раскладки каркасов днища ДМ1 ТП 901-3-207.85-КЖ-26 Растворно-хранилищные баки коагулянта (РЕ1). УМ1-УМ3 ТП 901-3-207.85-КЖ-27 Антикоррозионная защита и схема деревянной обрешетки в емкости РЕ1 ТП 901-3-207.85-КЖ-28 Контактные осветлители (РЕ-2). Схема расположения стеновых панелей и монолитных участков. Виды 1-1 и 6-6 ТП 901-3-207.85-КЖ-29 Контактные осветлители (РЕ-2;РЕ3). Разрезы 2-2÷5-5 ТП 901-3-207.85-КЖ-30 Контактные осветлители (РЕ-2;РЕ3). Узлы 1-4;8 ТП 901-3-207.85-КЖ-31 Контактные осветлители (РЕ-2;РЕ3). Узлы 5-7 ТП 901-3-207.85-КЖ-32 Контактные осветлители (РЕ-2). Схема расположения каркасов в зубе днища емкости ДМ2 ТП 901-3-207.85-КЖ-33 Контактные осветлители (РЕ-2). Армирование днища ДМ2 ТП 901-3-207.85-КЖ-34 Контактные осветлители (РЕ-2;РЕ3). Армирование днища и зуба днища емкостей ДМ2,ДМ3 ТП 901-3-207.85-КЖ-35 Контактные осветлители (РЕ-2;РЕ3). Армирование монолитных участков УМ4-УМ7;УМ8т/н ТП 901-3-207.85-КЖ-36 Контактные осветлители (РЕ3). Схема расположения стеновых панелей и монолитных участков. Вид 1-1 ТП 901-3-207.85-КЖ-37 Контактные осветлители (РЕ3). Схема расположения каркасов в зубе днища емкости ДМ3 ТП 901-3-207.85-КЖ-38 Контактные осветлители (РЕ3). Армирование днища ДМ3 ТП 901-3-207.85-КЖ-39 Расходные балки соды и коагулянта (РЕ4). Опалубочный чертеж ТП 901-3-207.85-КЖ-40 Расходные балки соды и коагулянта (РЕ4). Армирование ТП 901-3-207.85-КЖ-41 Рабочая камера. Опалубочный чертеж. Армирование ТП 901-3-207.85-КЖ-42 Схема расположения колонн, балок покрытия ТП 901-3-207.85-КЖ-43 Разрезы 3-3÷6-6. Спецификация ТП 901-3-207.85-КЖ-44 Схема расположения плит покрытия на отм. 7.800. Разрезы 1-1÷2-2 ТП 901-3-207.85-КЖ-45 Схема расположения стеновых панелей по осям "Б","А","Б","1" ТП 901-3-207.85-КЖ-46 Схемы расположения колонн, балок покрытия, ригелей. Разрезы ТП 901-3-207.85-КЖ-47 Схема расположения плит покрытия и перекрытия. Разрезы ТП 901-3-207.85-КЖ-48 Схемы расположения стеновых панелей по осям "А","Д","11","7". Сечения 1-1;3-3 ТП 901-3-207.85-КЖ-49 Схема расположения лестничных маршей, проступей, верхней лестничной площадки ТП 901-3-207.85-КЖ-50 Схема расположения монолитных участков и плит перекрытия по отм. 1.100. Разрезы 1-1,2-2 ТП 901-3-207.85-КЖ-51 Перекрытия на отм. 1.100. Монолитные участки УМ1-УМ3. Разрезы 3-3÷5-5,10-10 ТП 901-3-207.85-КЖ-52 Перекрытия на отм. 1.100. Балки БМ1-БМ3. Разрезы 6-6÷9-9. Узлы 1,2 ТП 901-3-207.85-КЖ-53 Схема расположения плит перекрытия на отм. 3.600 в осях 5-6÷Г-К. Сечения 1-1÷8-8 ТП 901-3-207.85-КЖ-54 Схема расположения плит перекрытия на отм. 3.600 в осях "1"-"5";"Г"-"К" ТП 901-3-207.85-КЖ-55 Монолитный участок МУ7. Армирование ТП 901-3-207.85-КЖ-56 Монолитные ж.б. пояса. Опалубочный чертеж. Армирование ТП 901-3-207.85-КЖ-57 Венткамеры на отм. 0.000;3.600. Выбросная шахта в кровле ТП 901-3-207.85-КМ Листы марки КМ ТП 901-3-207.85-КМ-1 Общие данные. Техническая спецификация металла ТП 901-3-207.85-КМ-2 Техническая спецификация металла и типовые конструкции ТП 901-3-207.85-КМ-3 Выборка стали по видам профилей ТП 901-3-207.85-КМ-4 Схема расположения площадки на отм. 3.600 ТП 901-3-207.85-КМ-5 Площадка на отм. 3.600. Разрезы 1-1÷3-3 ТП 901-3-207.85-КМ-6 Схема расположения площадок на отм. 1.100;3.500;1.800 ТП 901-3-207.85-КМ-7 Схема расположения площадок на отм. 0.000;0.400;1.400 ТП 901-3-207.85-КМ-8 Схема расположения площадок на отм. 0.000;1.300 ТП 901-3-207.85-КМ-9 Схема расположения элементов контактного осветлителя ТП 901-3-207.85-КМ-10 Схема расположения подкрановых путей и монорельсов ТП 901-3-207.85-КМ-11 Схема расположения пожарной лестницы |
| Разработан: | ЦНИИЭП |
| Утверждён: | 22.07.1981 Госгражданстрой (Gosgrazhdanstroy 219) |



















































































