Скачать Типовой проект 902-2-344 Альбом I. Технологическая частьДата актуализации: 01.01.2021
|
| Обозначение: | Типовой проект 902-2-344 |
| Обозначение англ: | 902-2-344 |
| Статус: | не определен законодательством |
| Название рус.: | Альбом I. Технологическая часть |
| Дата добавления в базу: | 01.09.2013 |
| Дата актуализации: | 01.01.2021 |
| Дата введения: | 05.02.1981 |
| Дата окончания срока действия: | 30.06.2003 |
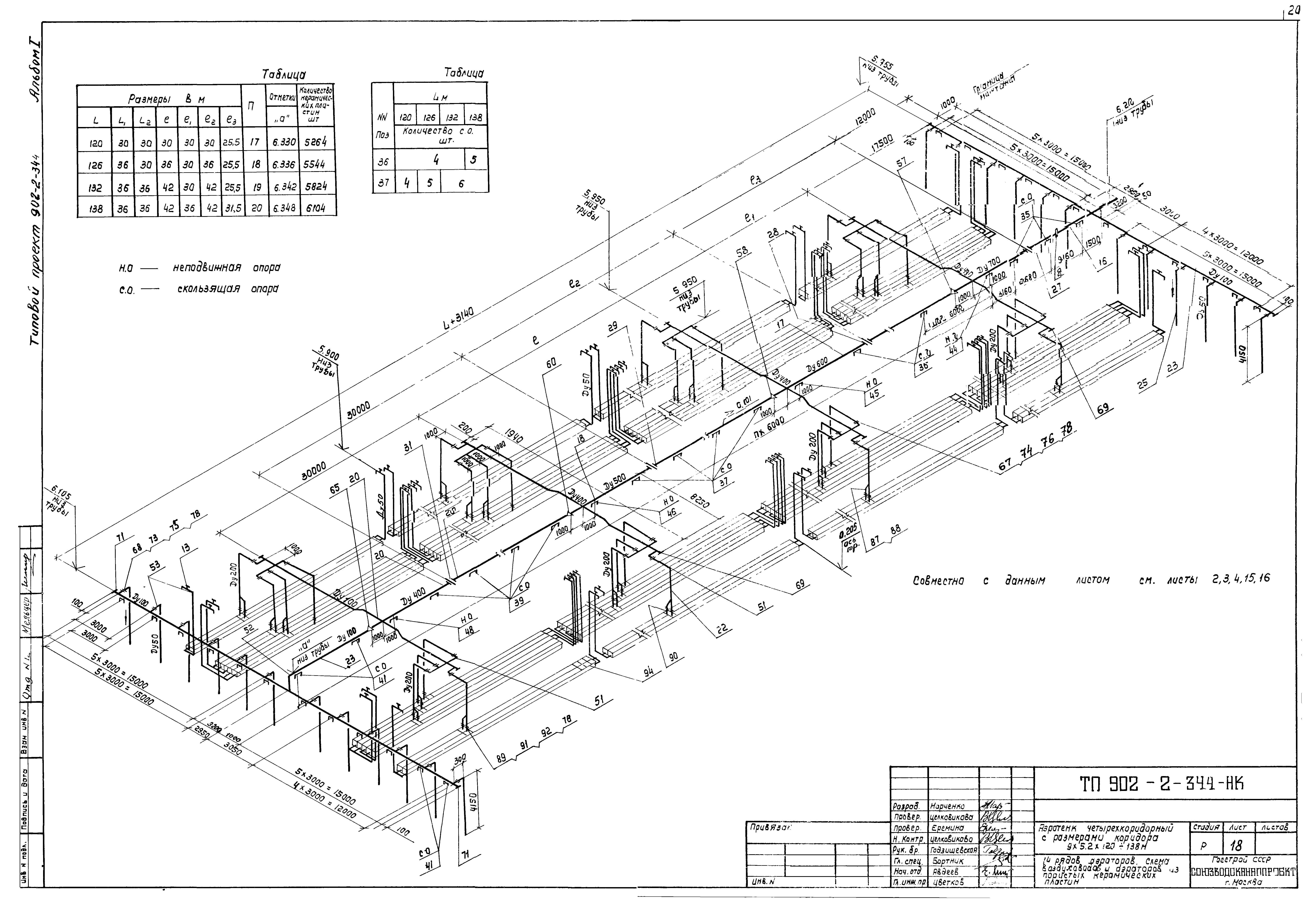
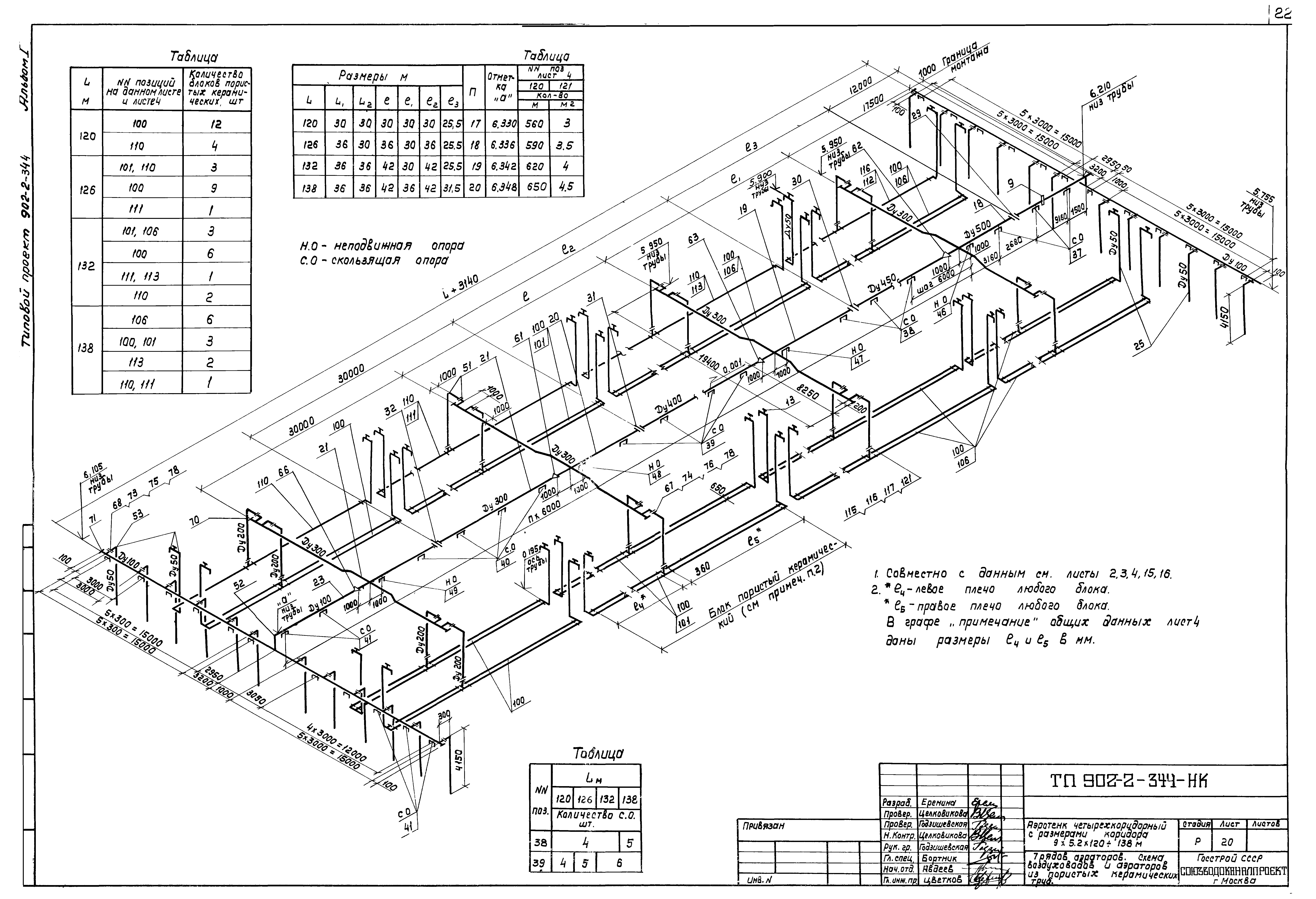
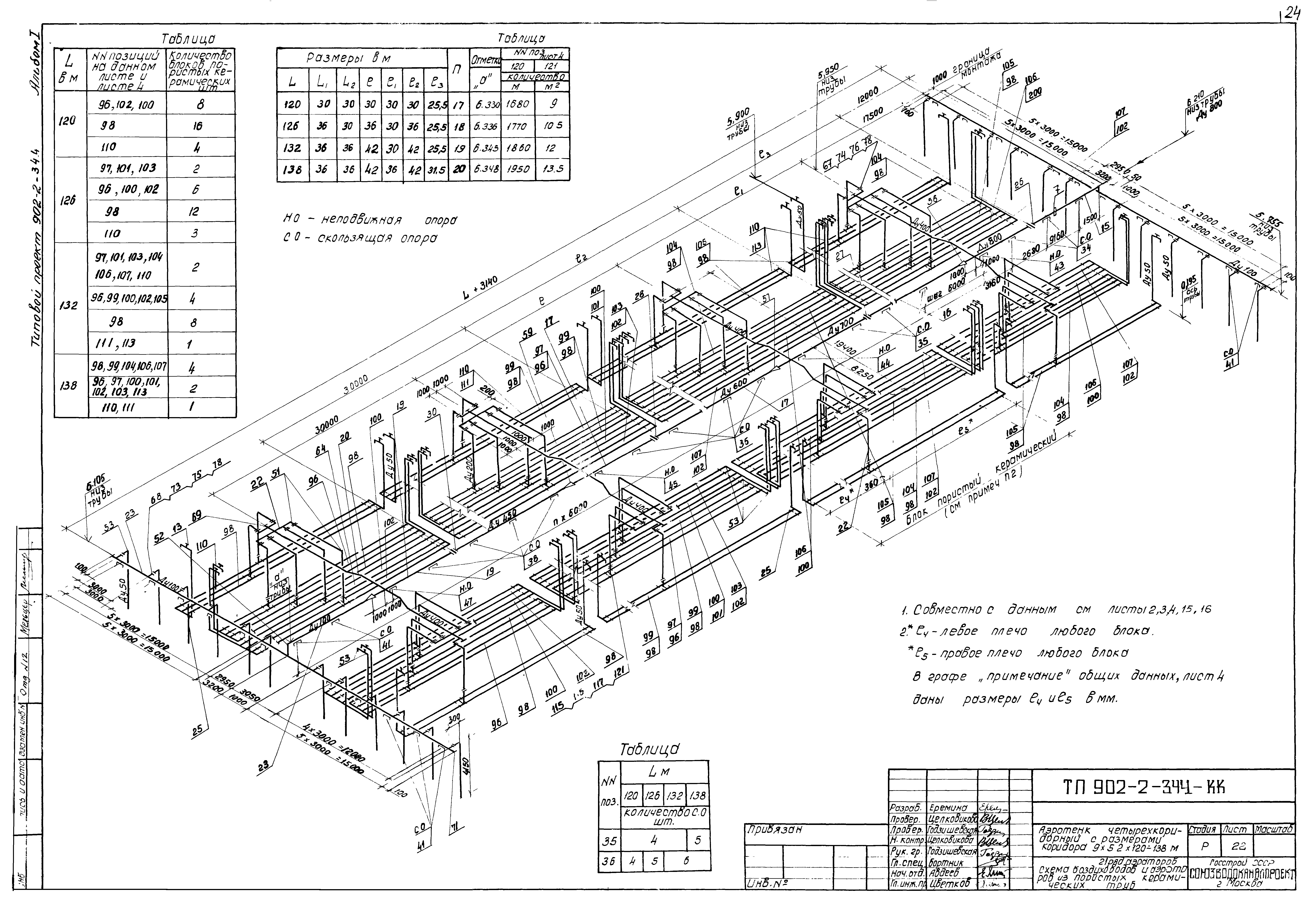
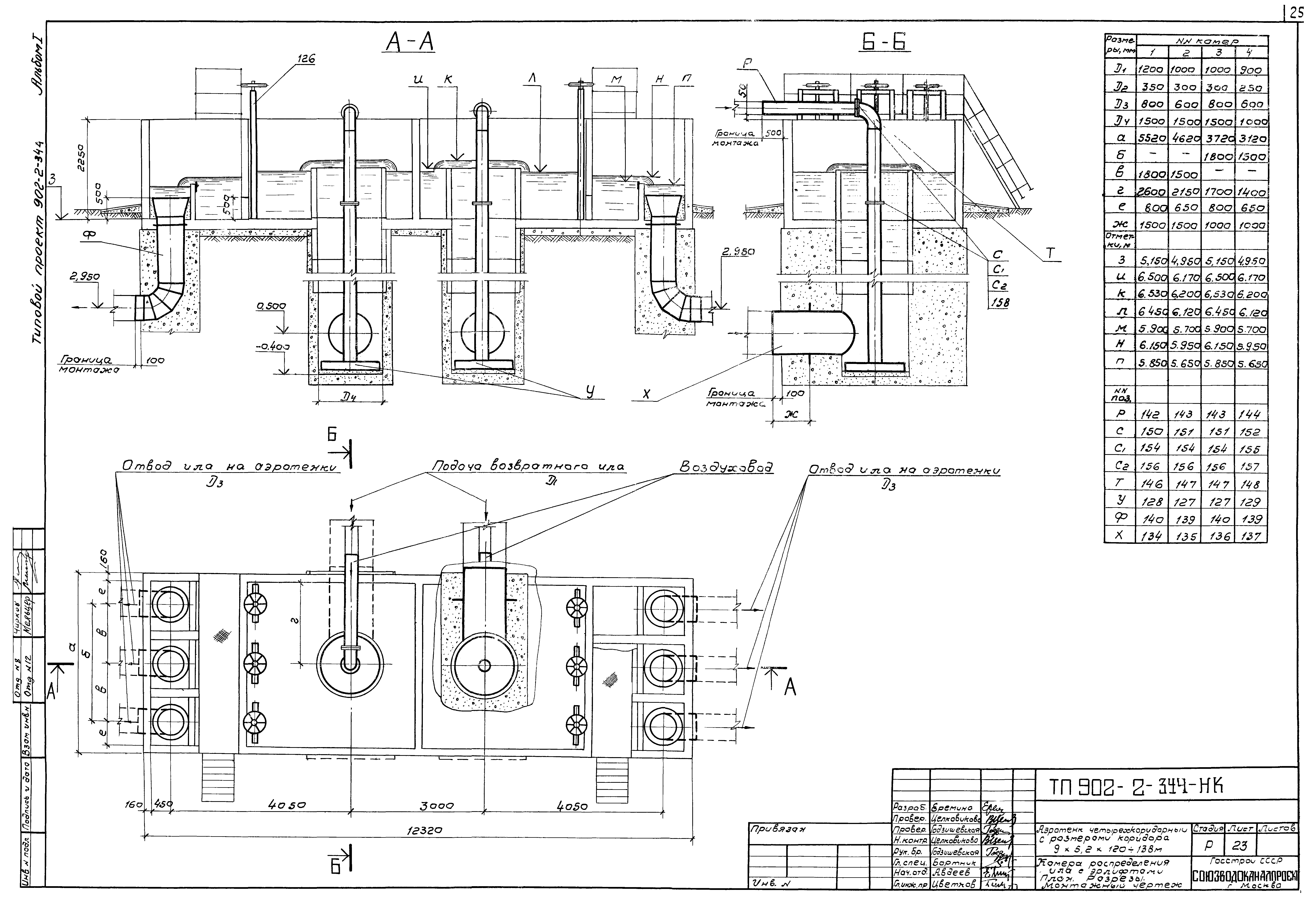
| Оглавление: | ТП 902-2-344-НК-1 Общие данные (начало) ТП 902-2-344-НК-2 Общие данные (продолжение) ТП 902-2-344-НК-3 Общие данные (продолжение) ТП 902-2-344-НК-4 Общие данные (продолжение) ТП 902-2-344-НК-5 Общие данные (продолжение) ТП 902-2-344-НК-6 Общие данные (продолжение) ТП 902-2-344-НК-7 Общие данные (продолжение) ТП 902-2-344-НК-8 Общие данные (продолжение) ТП 902-2-344-НК-9 Общие данные (продолжение) ТП 902-2-344-НК-10 Общие данные (продолжение) ТП 902-2-344-НК-11 Общие данные (продолжение) ТП 902-2-344-НК-12 Общие данные (продолжение) ТП 902-2-344-НК-13 Общие данные (окончание) ТП 902-2-344-НК-14 Схемы компоновки аэротенка ТП 902-2-344-НК-15 План одной секции аэротенка. Разрезы. Монтажный чертеж ТП 902-2-344-НК-16 Разрезы. Монтажный чертеж ТП 902-2-344-НК-17 7 рядов аэраторов. Схема воздуховодов и аэраторов с пористыми керамическими пластинами ТП 902-2-344-НК-18 14 рядов аэраторов. Схема воздуховодов и аэраторов с пористыми керамическими пластинами ТП 902-2-344-НК-19 21 рядов аэраторов. Схема воздуховодов и аэраторов с пористыми керамическими пластинами ТП 902-2-344-НК-20 7 рядов аэраторов. Схема воздуховодов и аэраторов с пористыми керамическими пластинами ТП 902-2-344-НК-21 14 рядов аэраторов. Схема воздуховодов и аэраторов с пористыми керамическими пластинами ТП 902-2-344-НК-22 21 рядов аэраторов. Схема воздуховодов и аэраторов с пористыми керамическими пластинами ТП 902-2-344-НК-23 Камеры распределения ила с эрлифтами. План, разрезы. Монтажный чертеж ТП 902-2-344-НК-24 Камеры распределения ила с распределительными чашами. План, разрезы. Монтажный чертеж ТП 902-2-344-НК-25 Отопление шкафов КИП с сжатым воздухом. План. Схема трубопроводов |
| Разработан: | Союзводоканалпроект |
| Утверждён: | 12.09.1980 Союзводоканалпроект (Soyuzvodokanalproject 57) |



























