Скачать Типовой проект 902-2-344 Альбом II. Конструкции железобетонныеДата актуализации: 01.01.2021
|
| Обозначение: | Типовой проект 902-2-344 |
| Обозначение англ: | 902-2-344 |
| Статус: | не определен законодательством |
| Название рус.: | Альбом II. Конструкции железобетонные |
| Дата добавления в базу: | 01.09.2013 |
| Дата актуализации: | 01.01.2021 |
| Дата введения: | 05.02.1981 |
| Дата окончания срока действия: | 30.06.2003 |
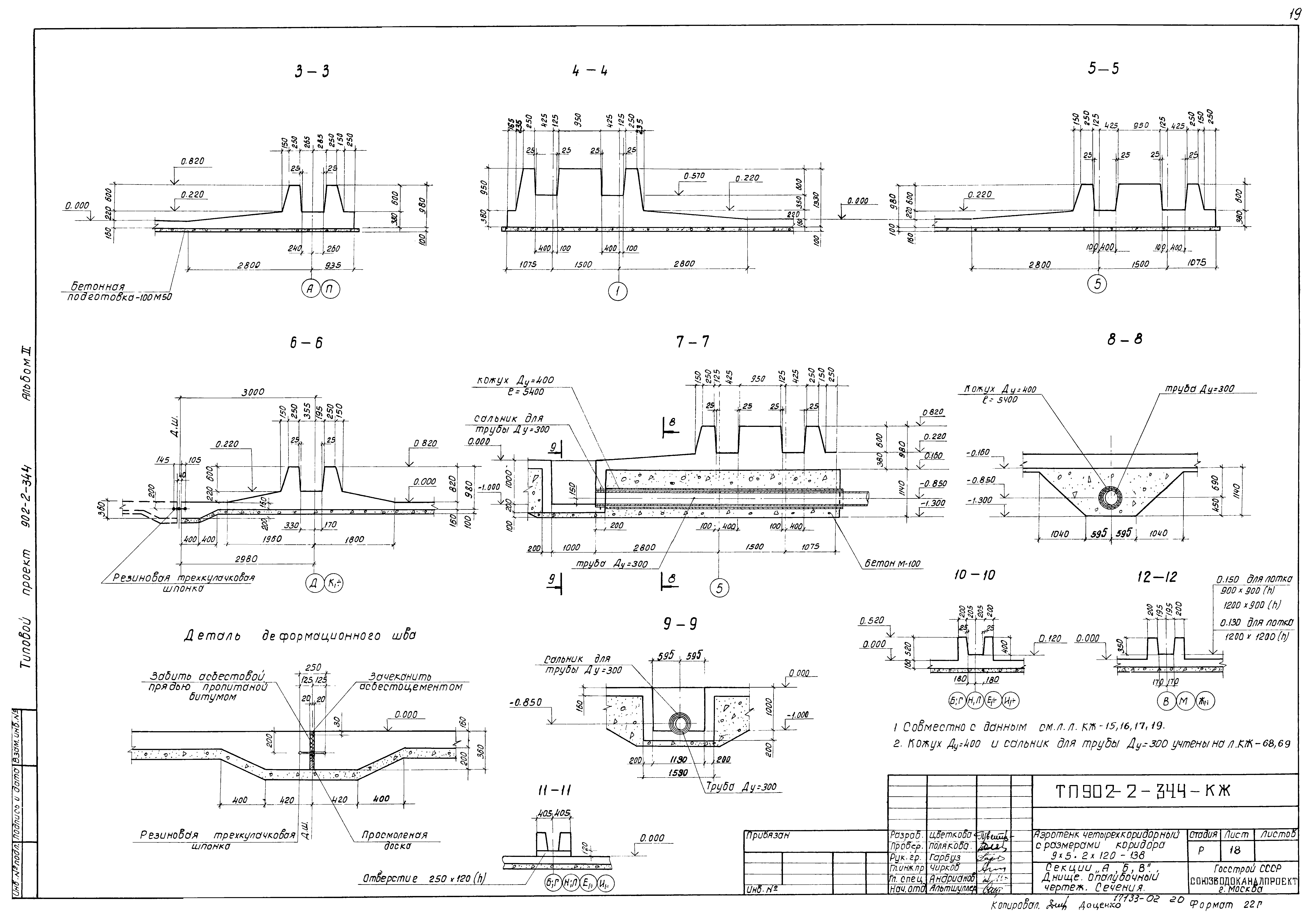
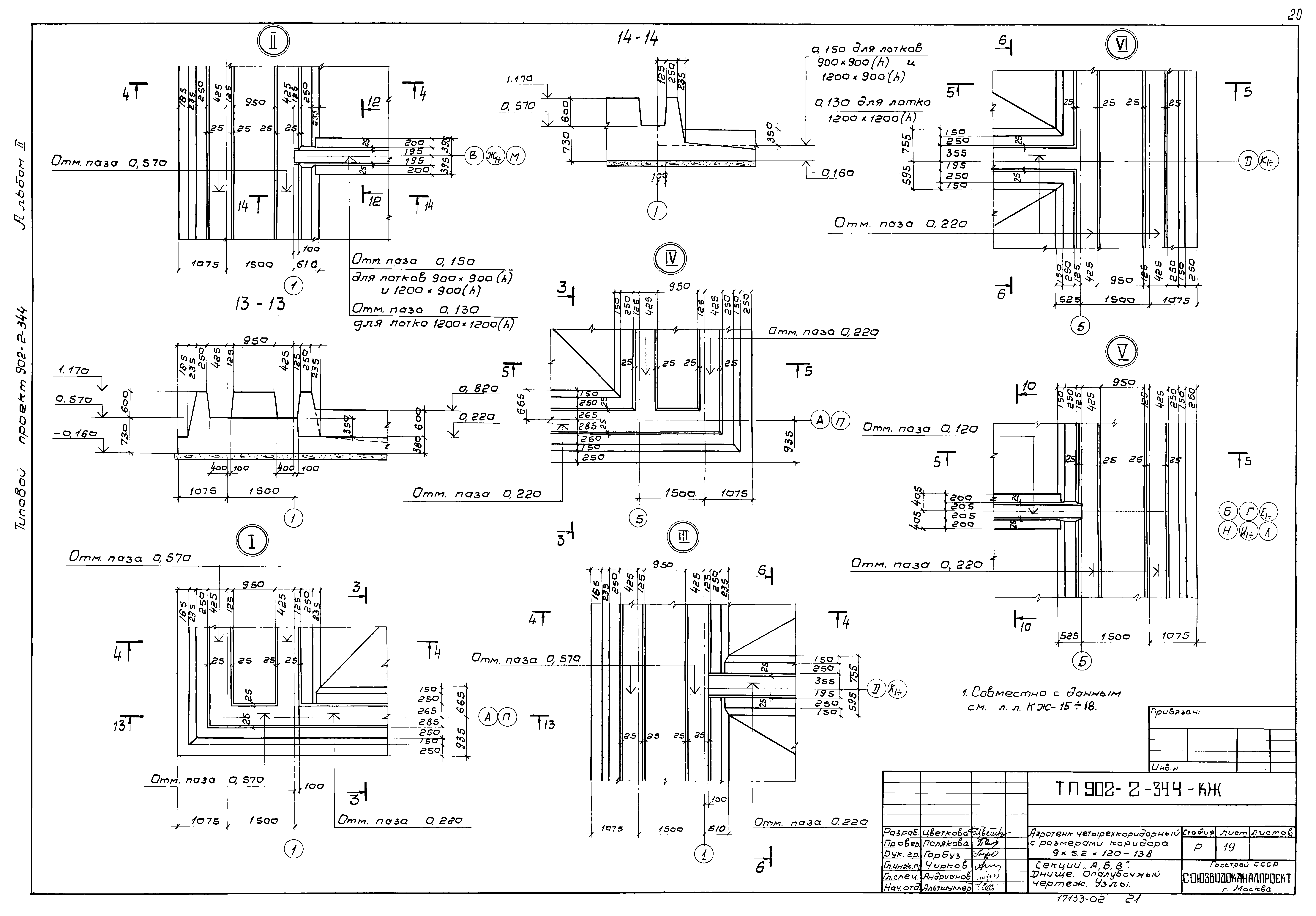
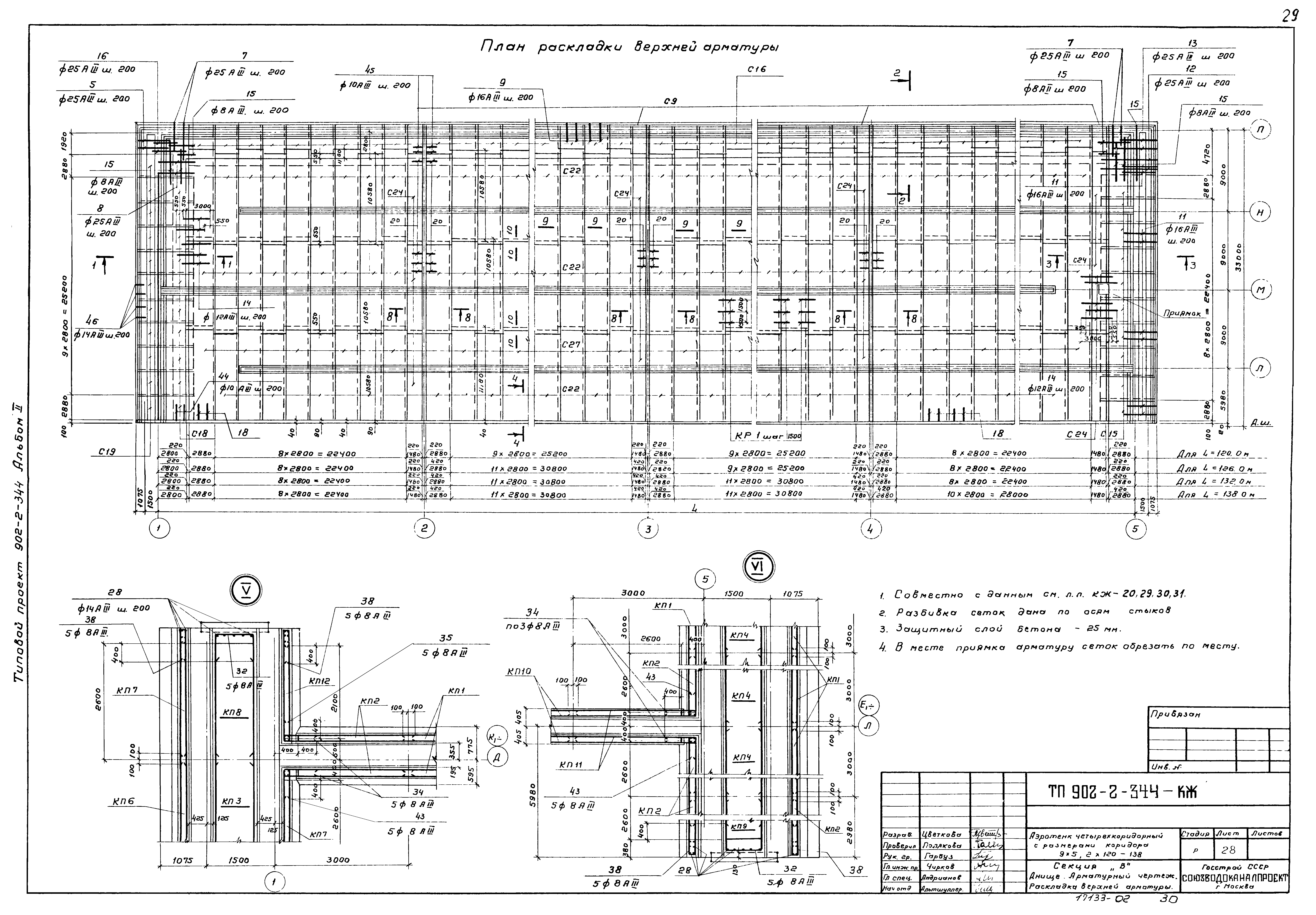
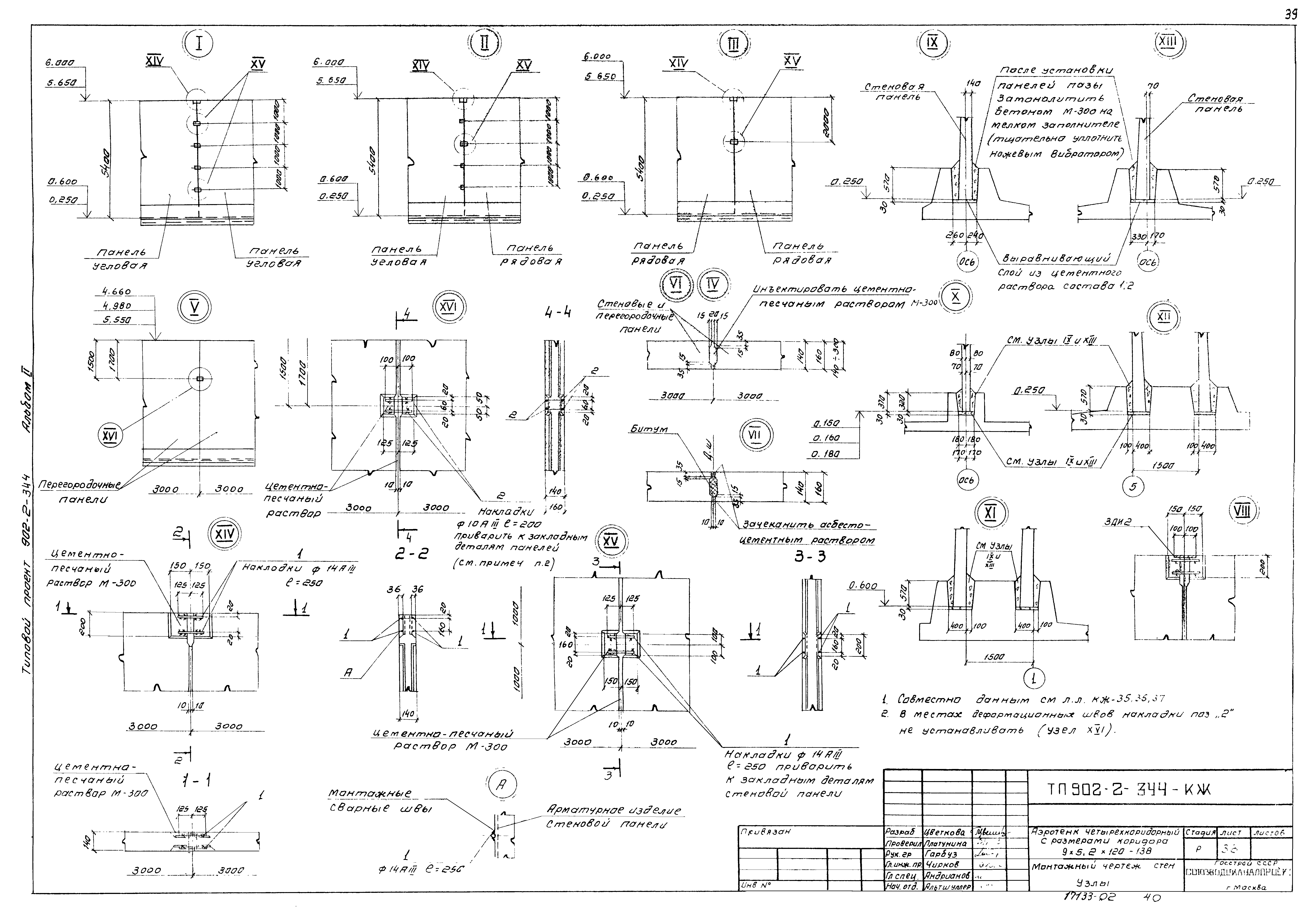
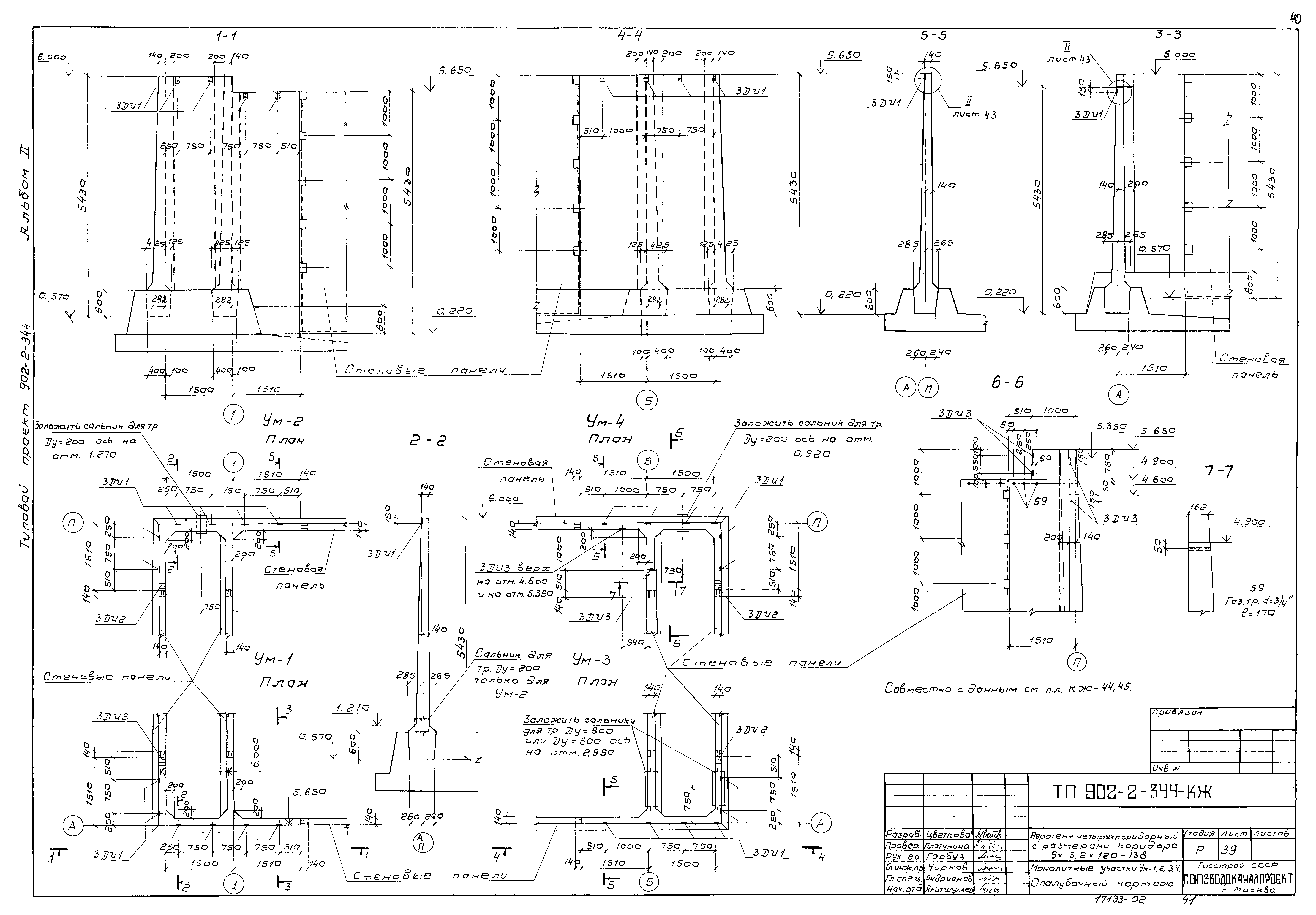
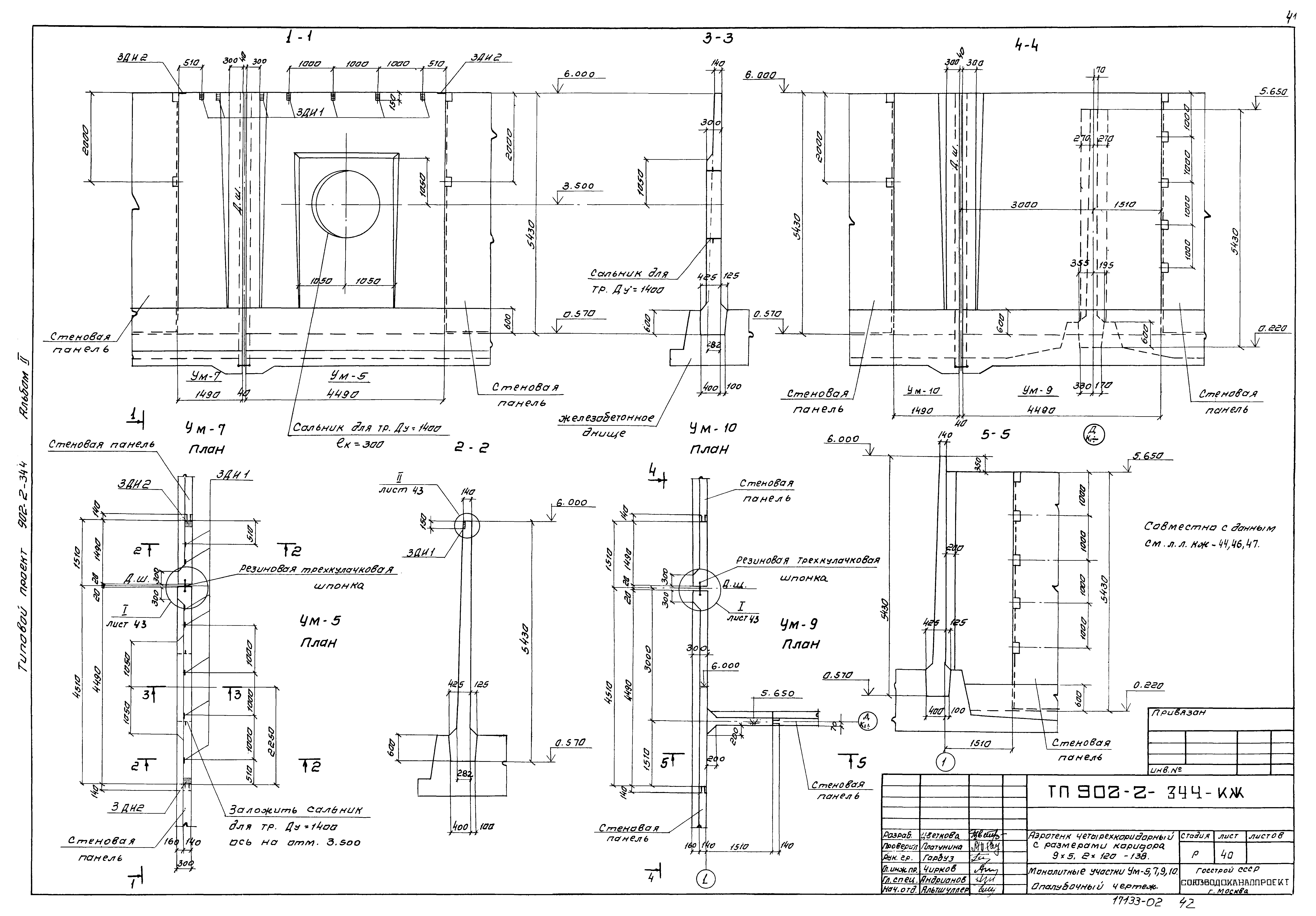
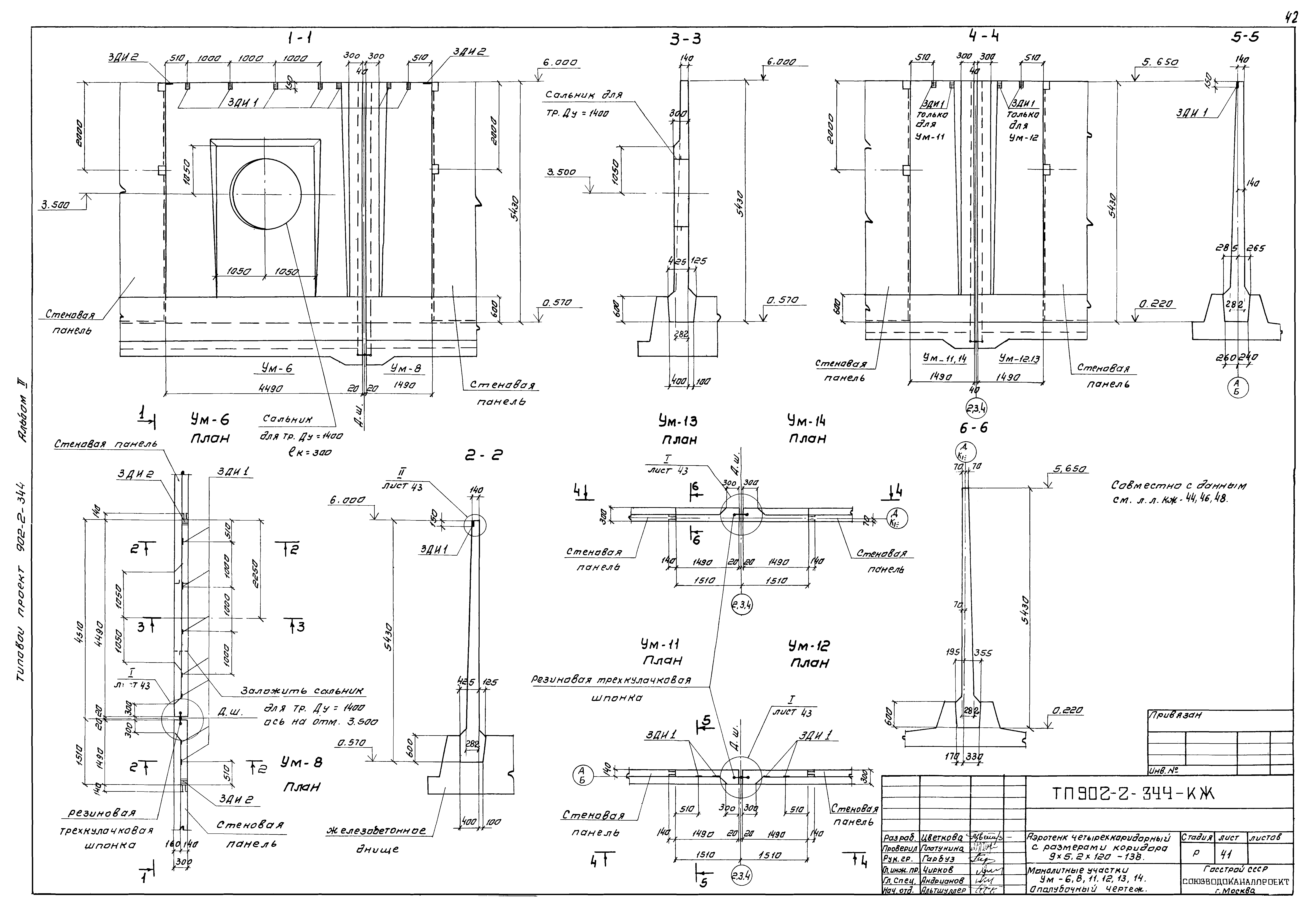
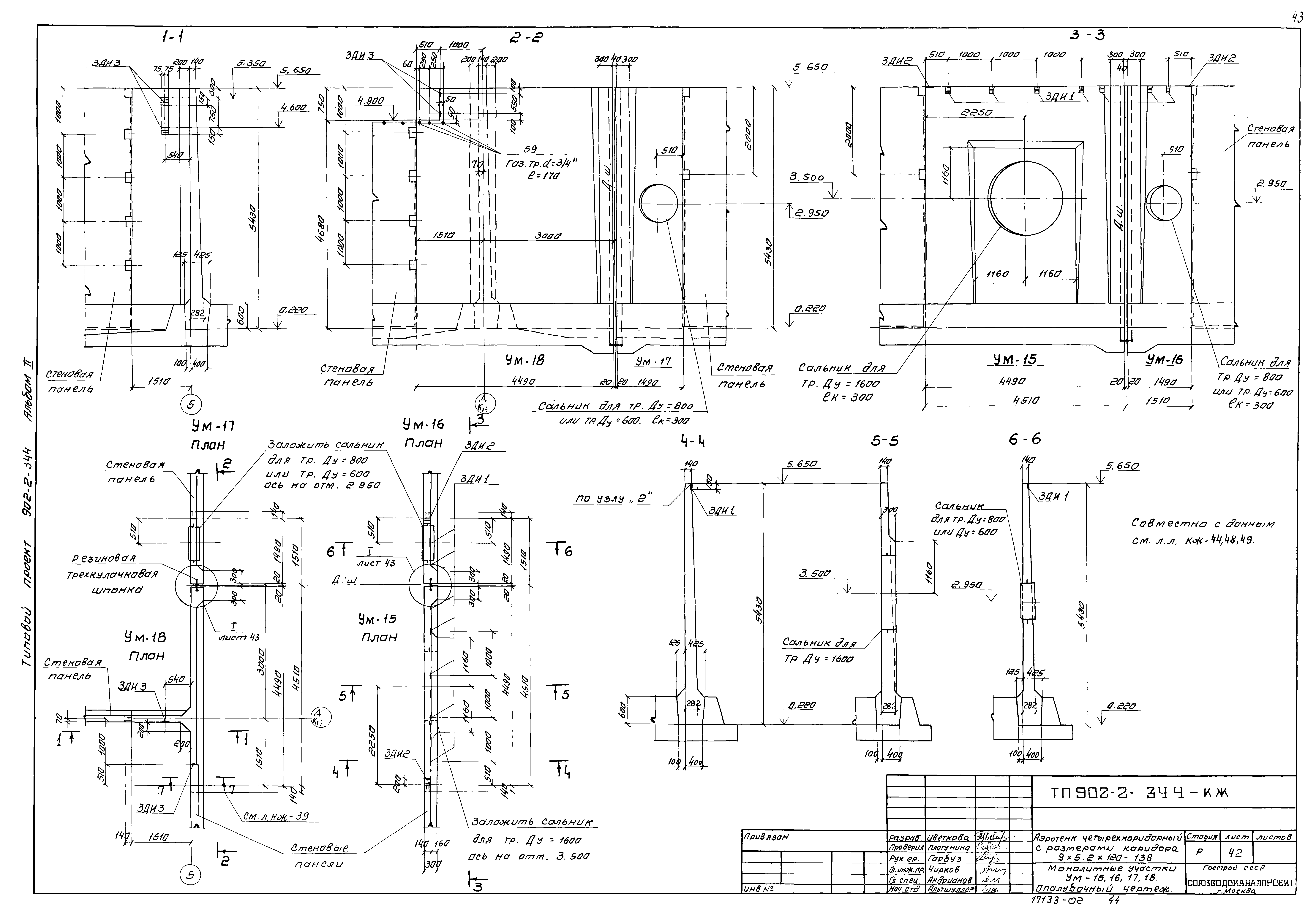
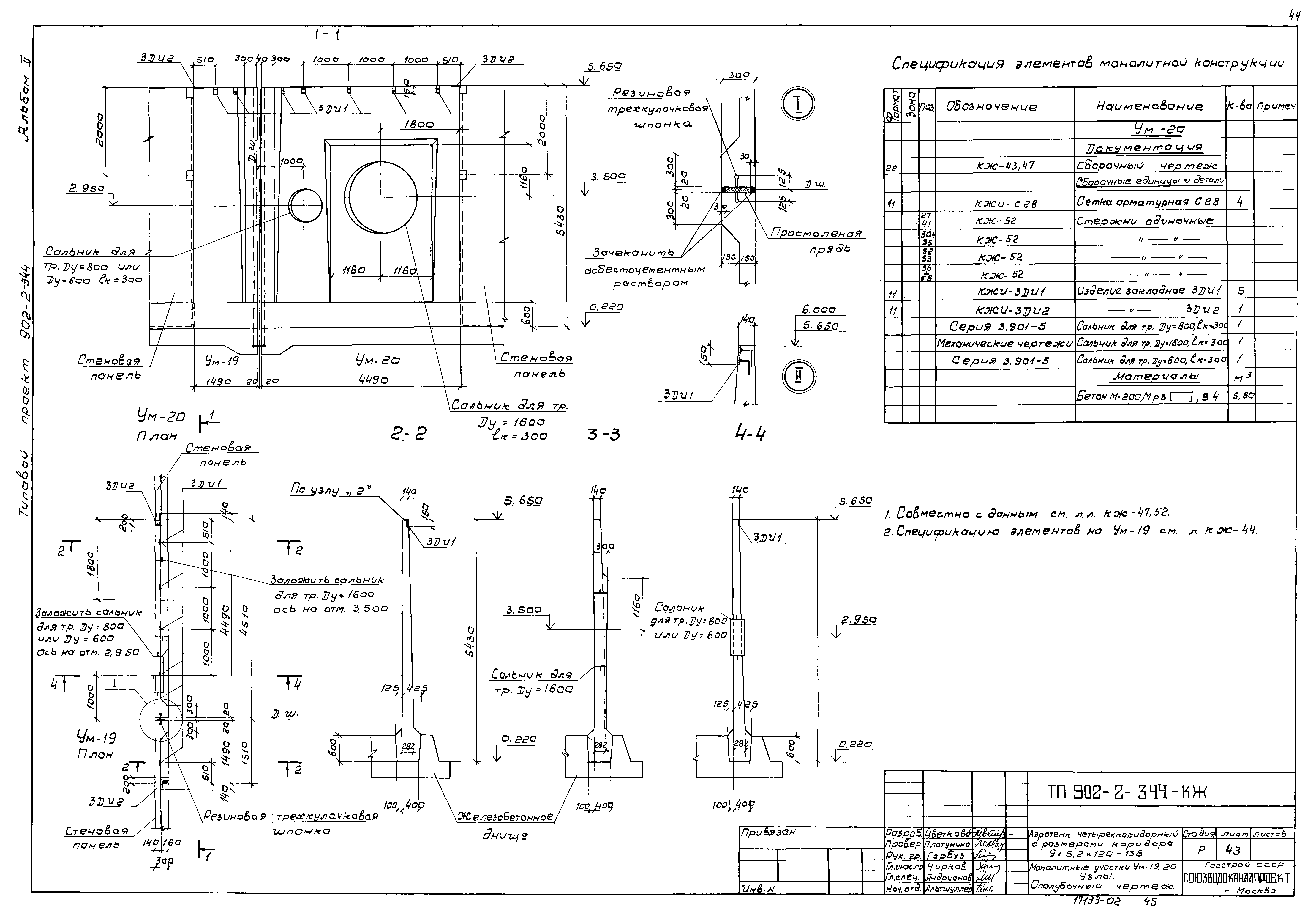
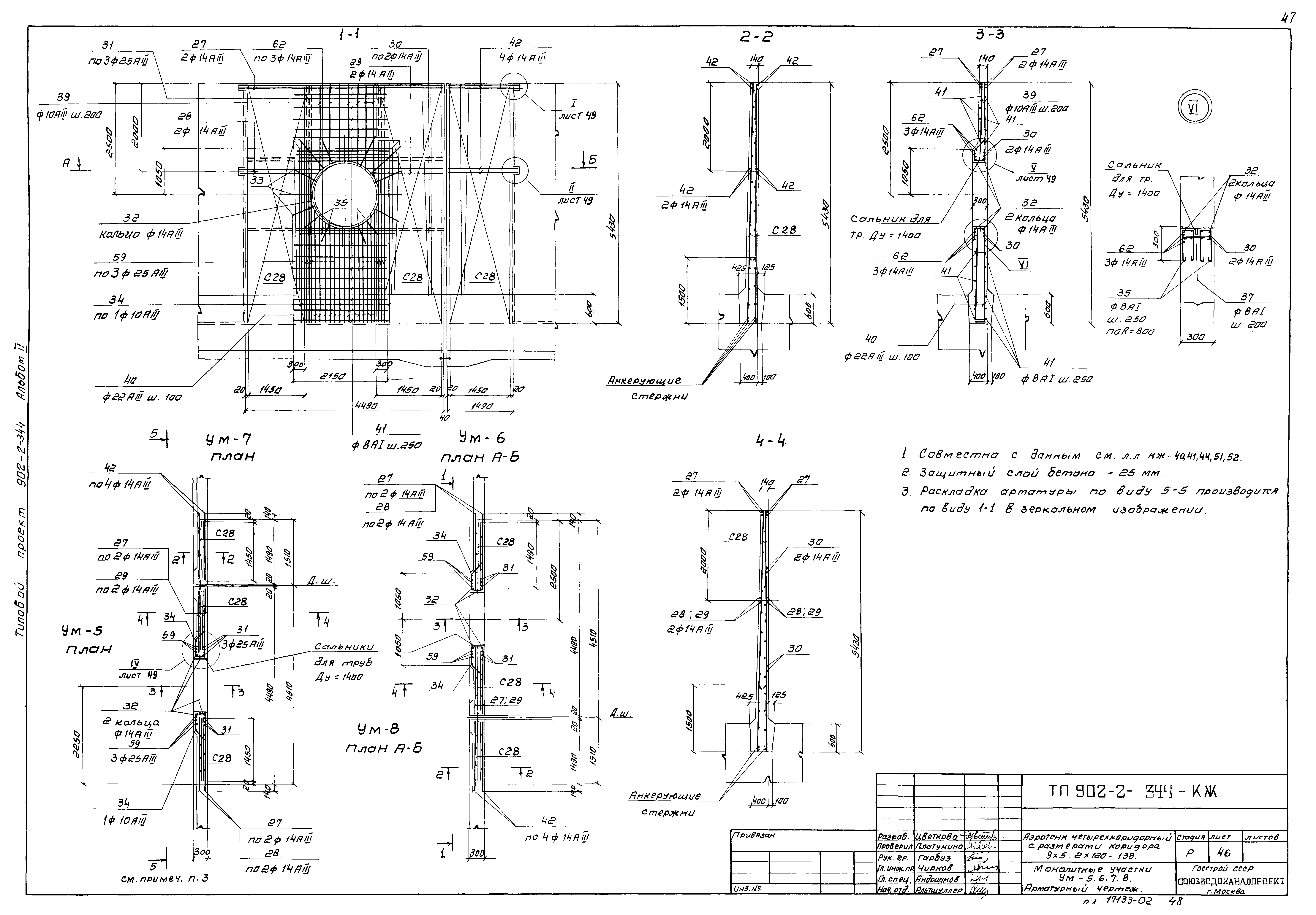
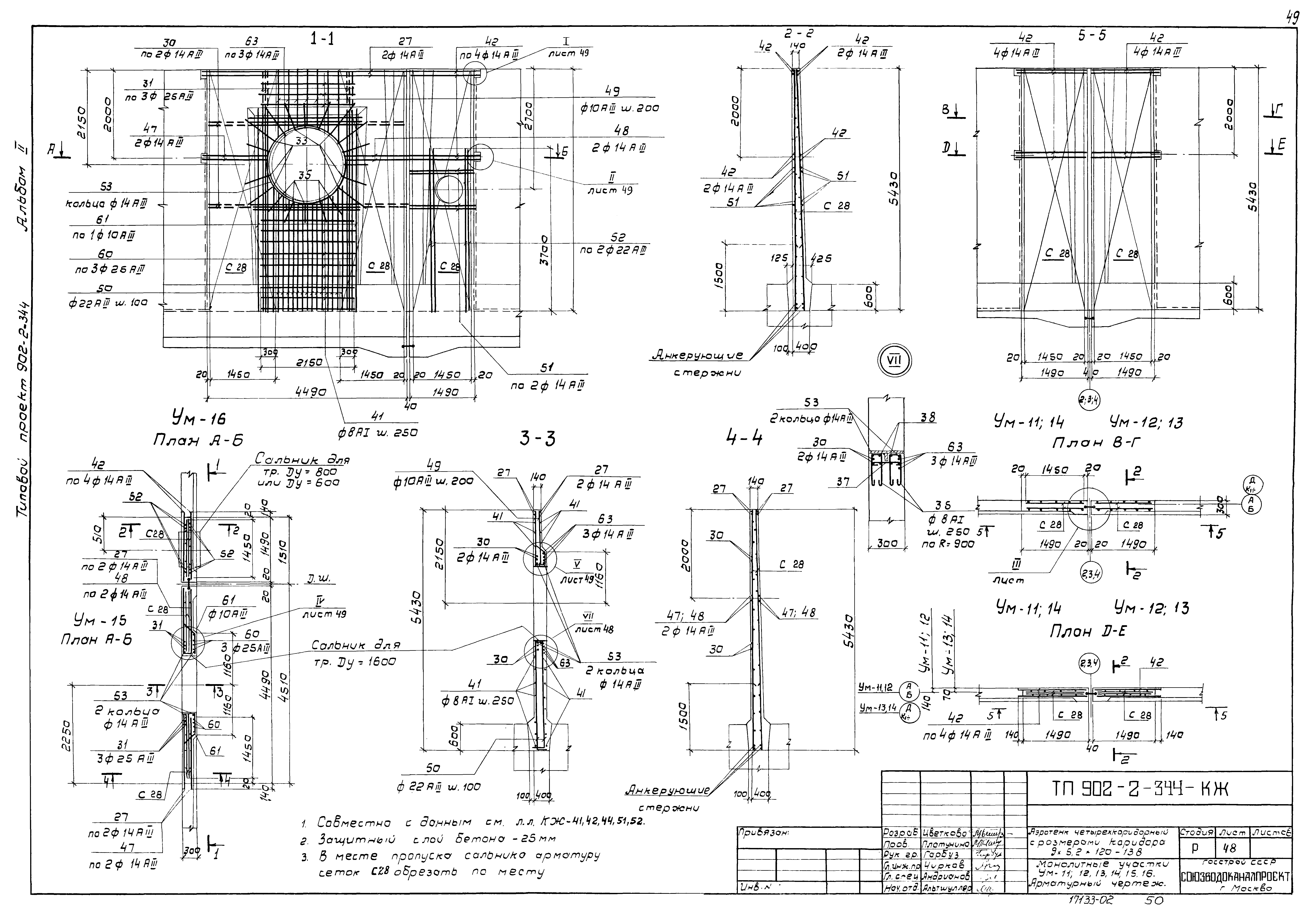
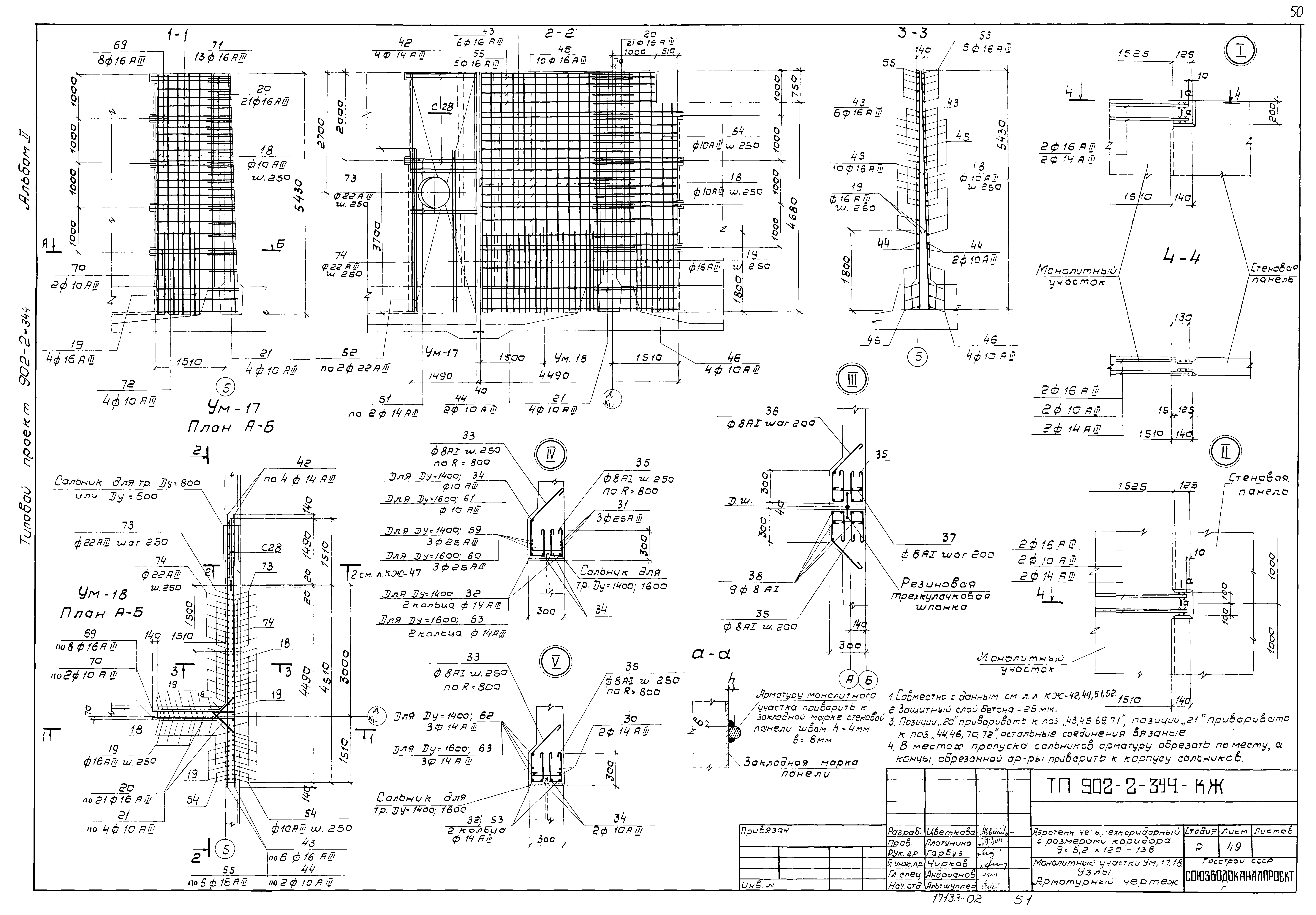
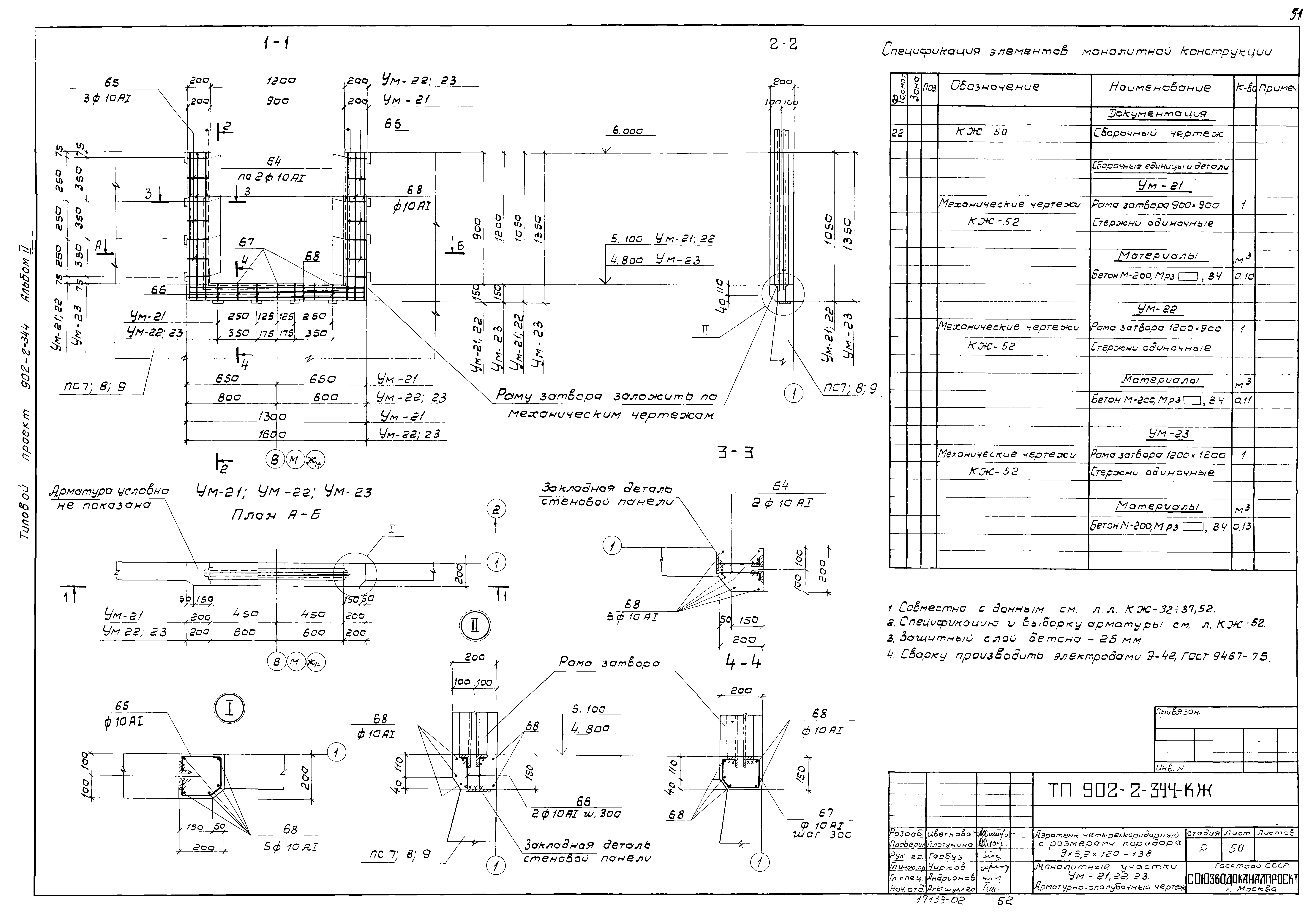
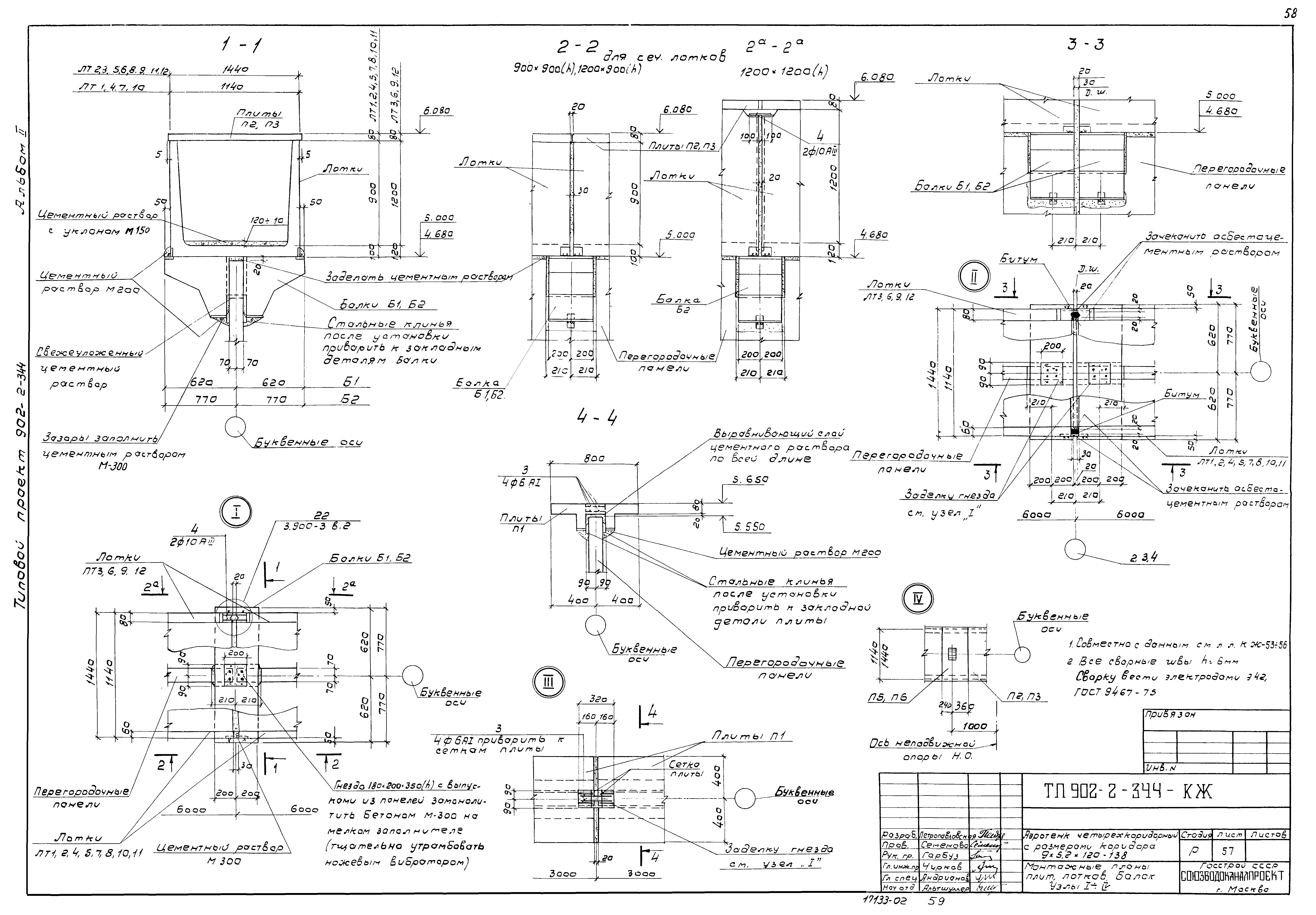
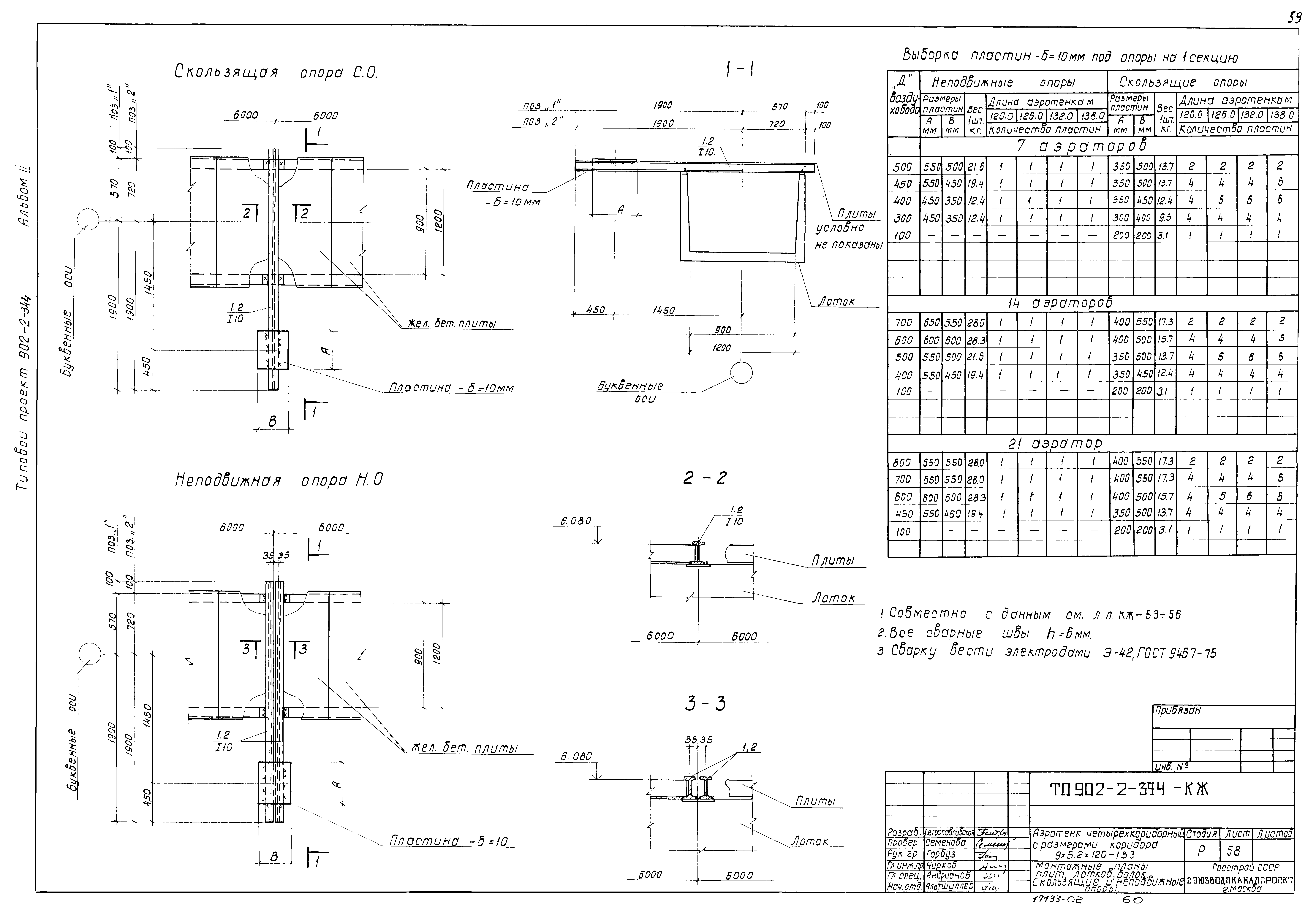
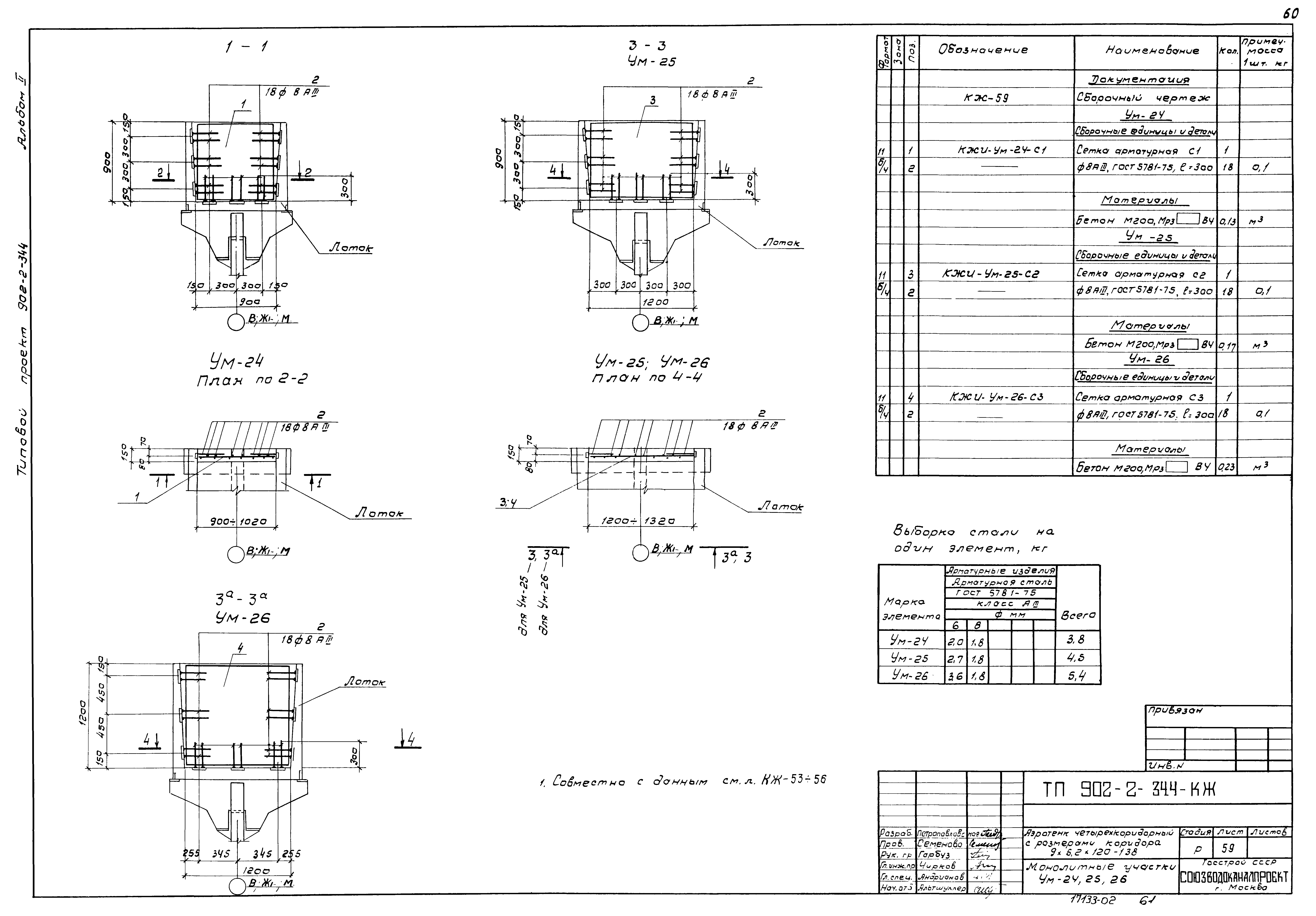
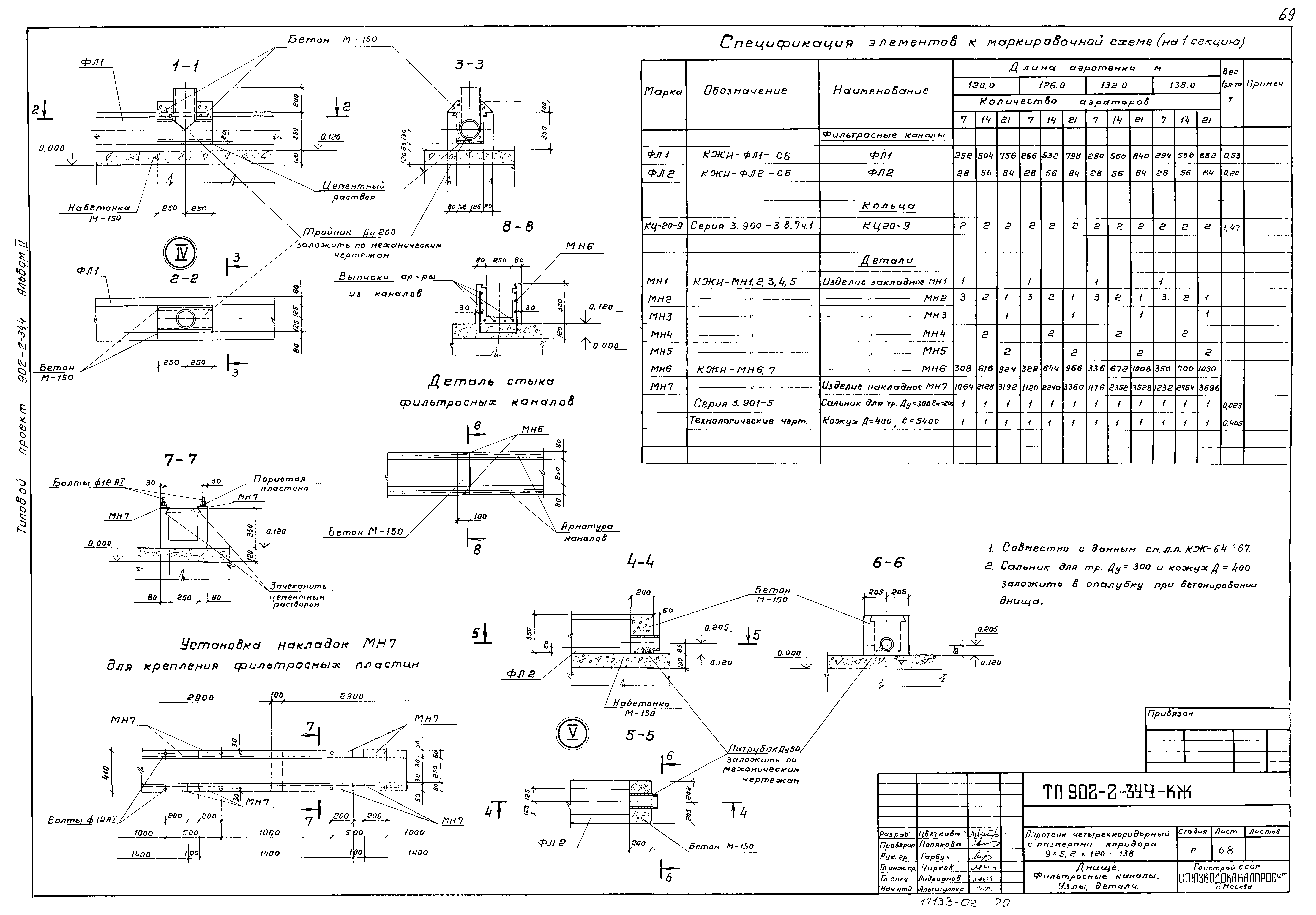
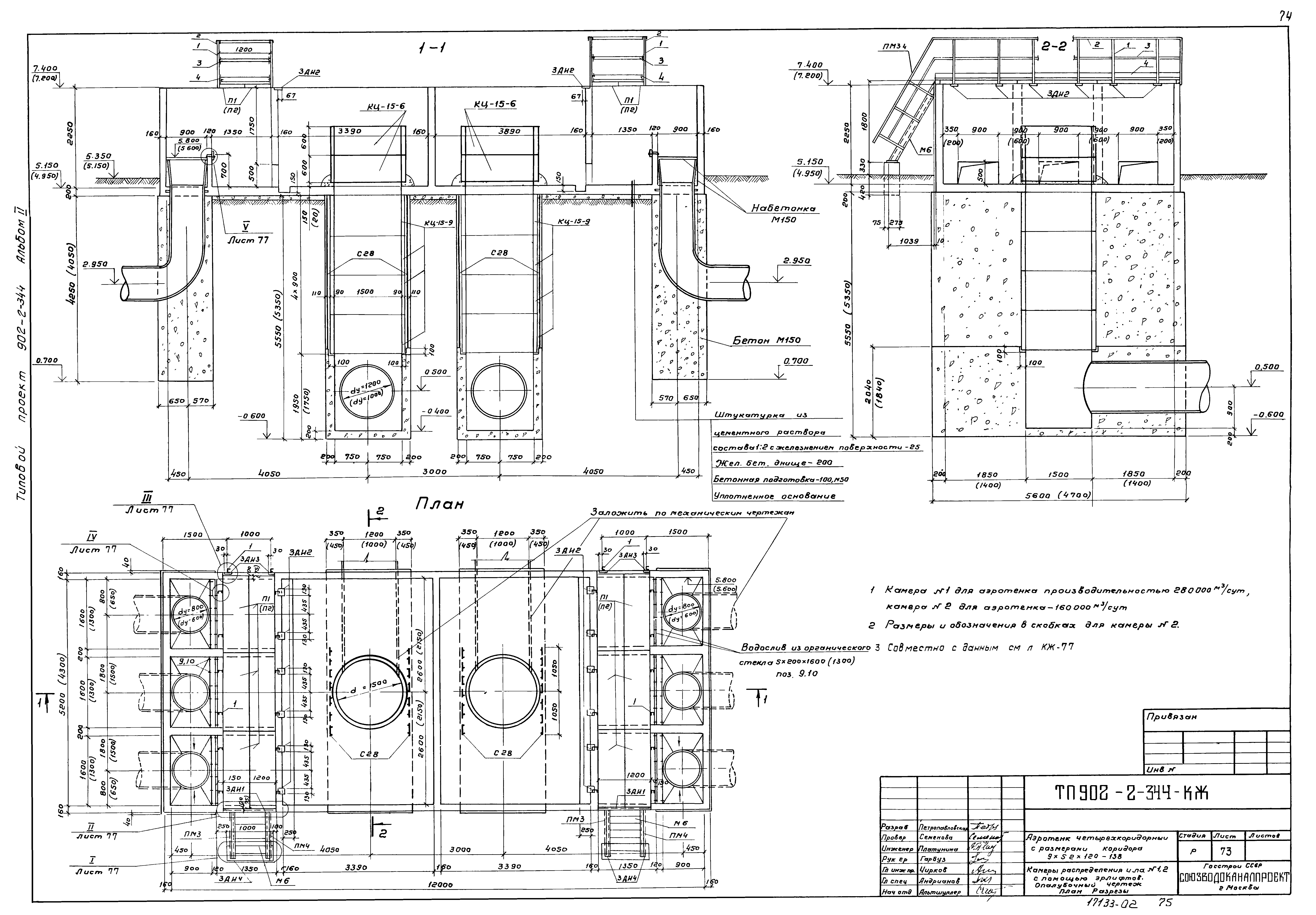
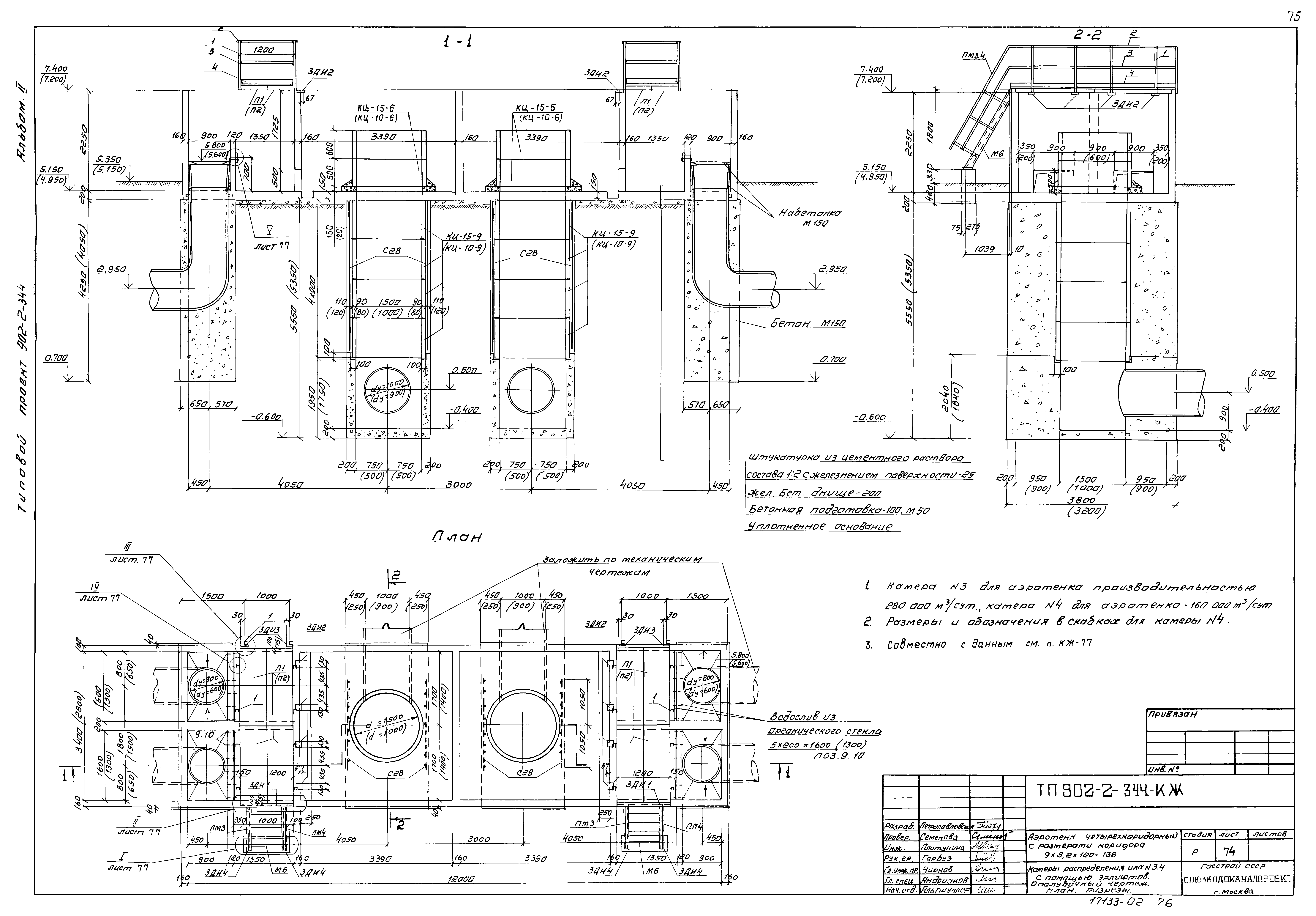
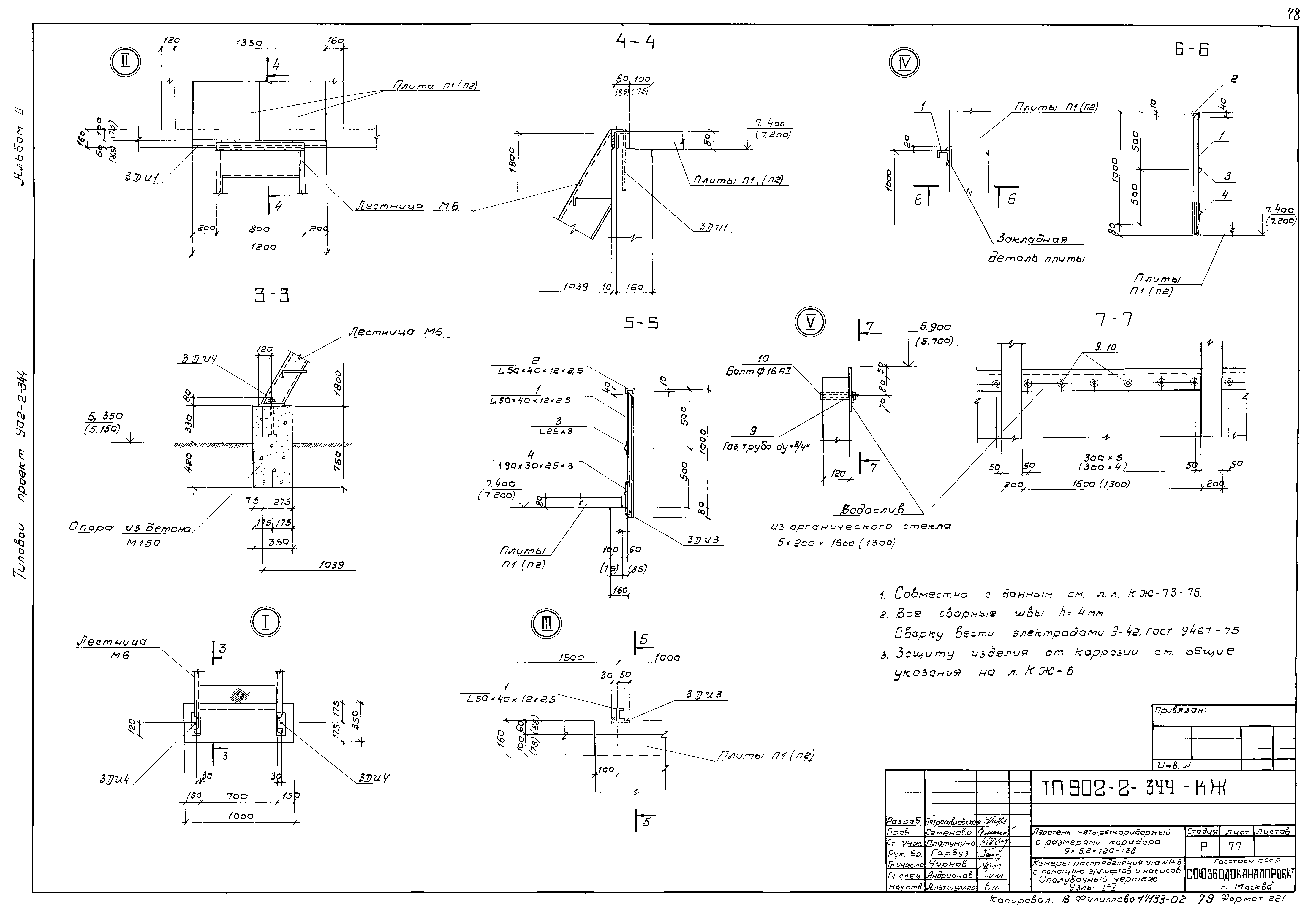
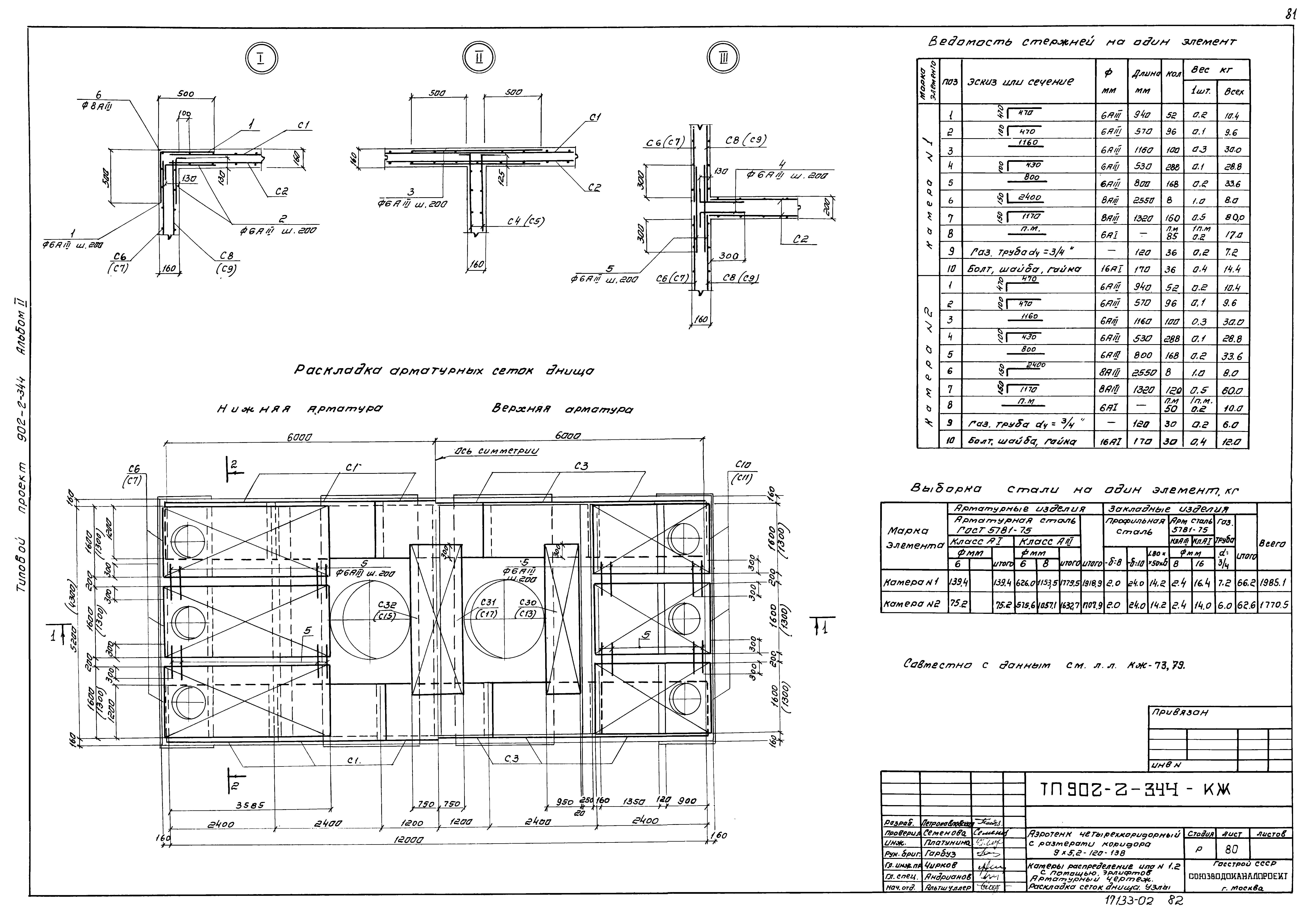
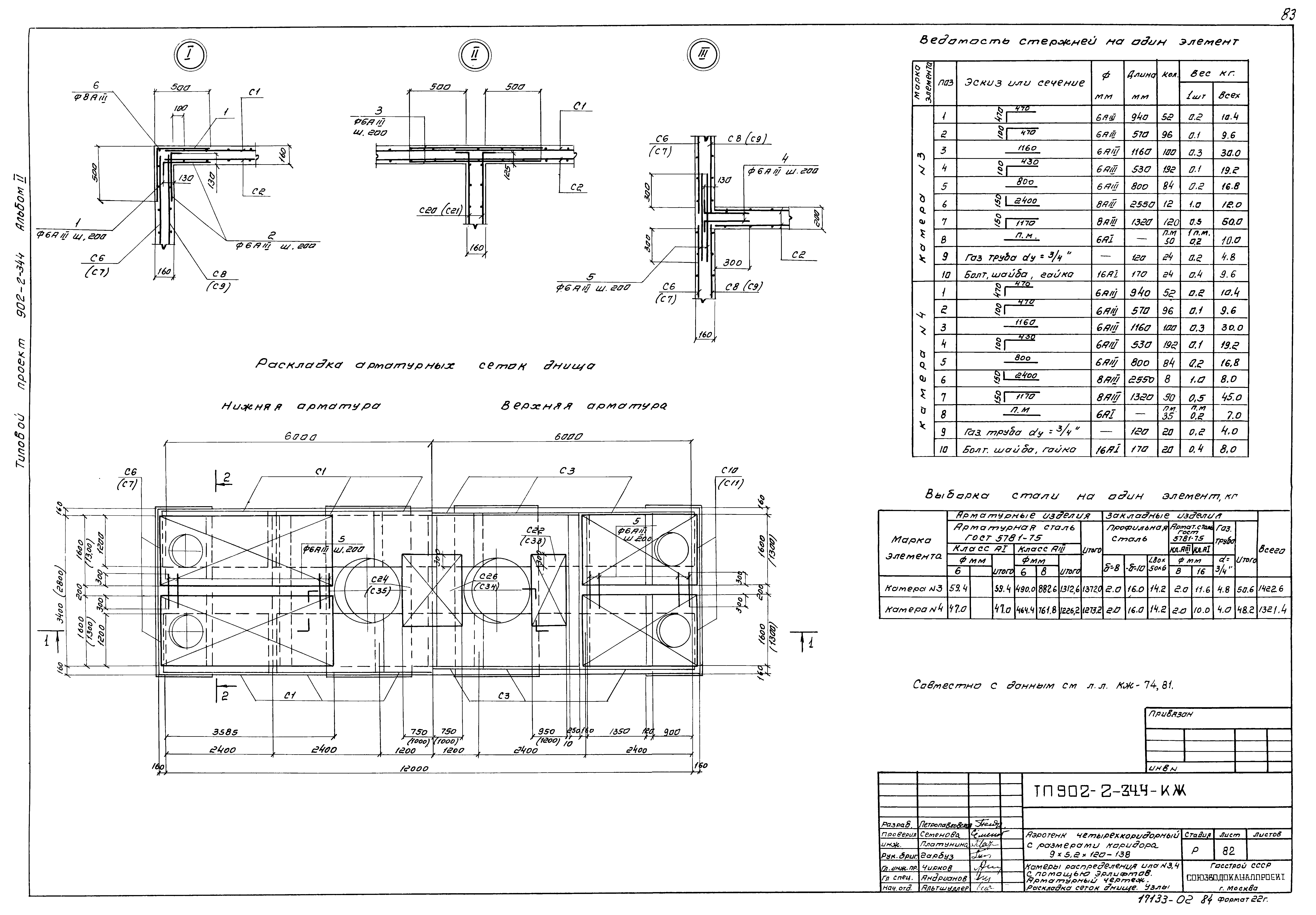
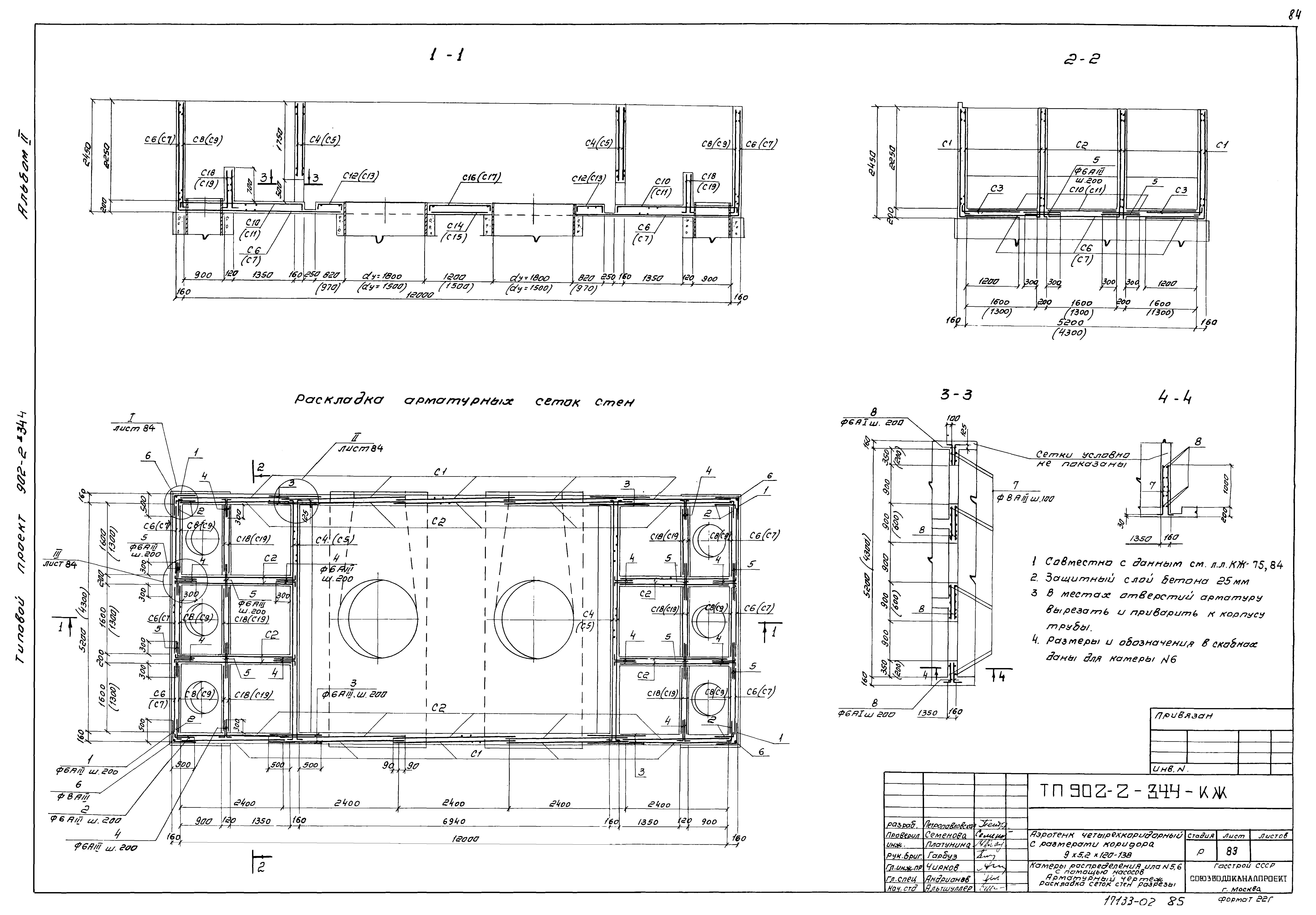
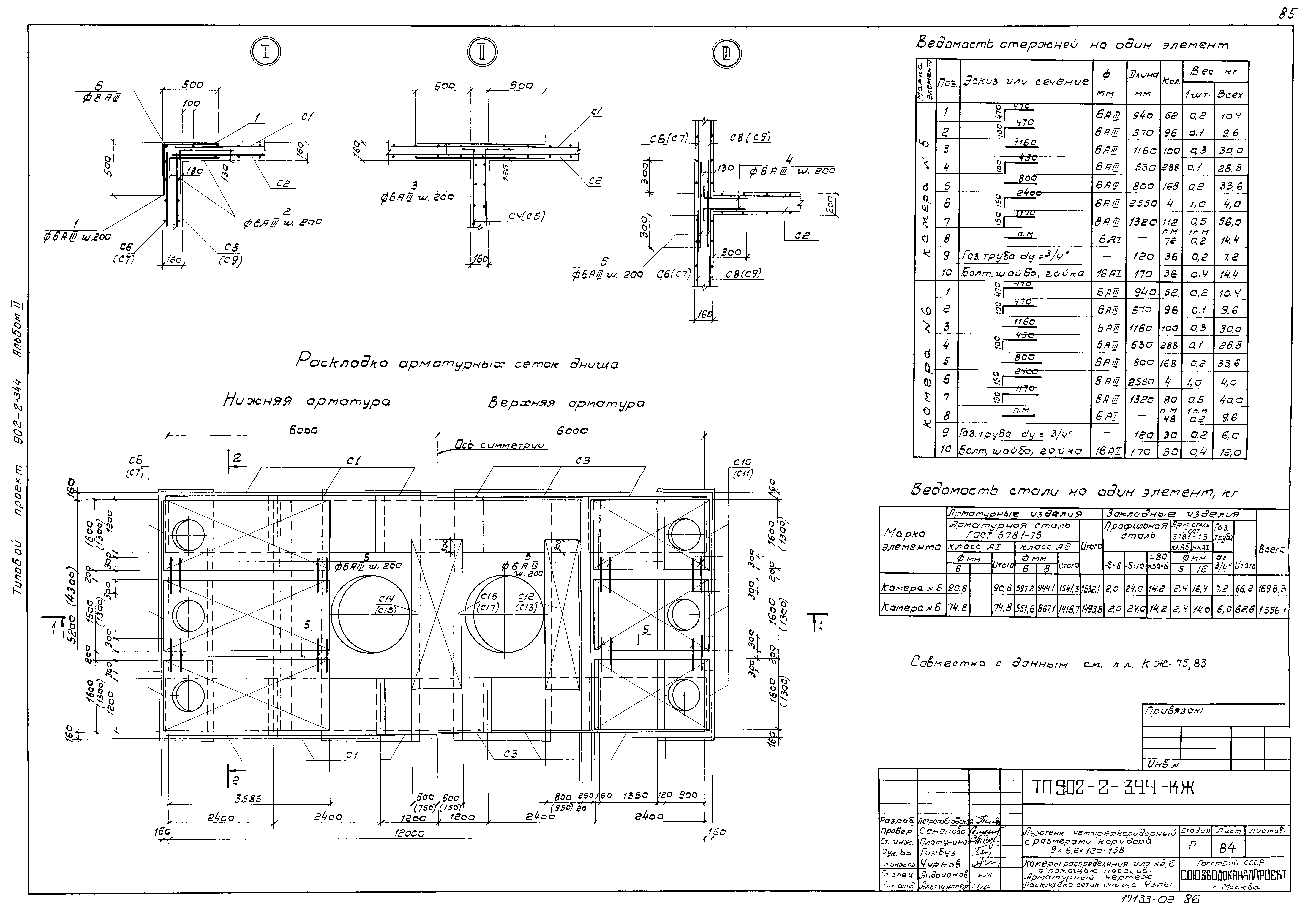
| Оглавление: | ТП 902-2-344-КЖ-1 Общие данные (начало) ТП 902-2-344-КЖ-2 Общие данные (продолжение) ТП 902-2-344-КЖ-3 Общие данные (продолжение) ТП 902-2-344-КЖ-4 Общие данные (продолжение) ТП 902-2-344-КЖ-5 Общие данные (продолжение) ТП 902-2-344-КЖ-6 Общие данные (продолжение) ТП 902-2-344-КЖ-7 Общие данные (продолжение) ТП 902-2-344-КЖ-8 Общие данные (продолжение) ТП 902-2-344-КЖ-9 Общие данные (окончание) ТП 902-2-344-КЖ-10 Компоновочные планы на 5 и 10 секций ТП 902-2-344-КЖ-11 Компоновочные планы на 6 и 9 секций ТП 902-2-344-КЖ-12 Компоновочные планы на 7 и 8 секций ТП 902-2-344-КЖ-13 План, узлы ТП 902-2-344-КЖ-14 Разрезы ТП 902-2-344-КЖ-15 Секция "А". Днище. Опалубочный чертеж. План, разрезы ТП 902-2-344-КЖ-16 Секция "Б". Днище. Опалубочный чертеж. План, разрезы ТП 902-2-344-КЖ-17 Секция "В". Днище. Опалубочный чертеж. План, разрезы ТП 902-2-344-КЖ-18 Секции "А,Б,В". Днище. Опалубочный чертеж. Сечения ТП 902-2-344-КЖ-19 Секции "А,Б,В". Днище. Опалубочный чертеж. Узлы ТП 902-2-344-КЖ-20 Секции "А,Б,В". Днище. Спецификация элементов монолитной конструкции ТП 902-2-344-КЖ-21 Секция "А". Днище. Арматурный чертеж. Раскладка нижней арматуры ТП 902-2-344-КЖ-22 Секция "А". Днище. Арматурный чертеж. Раскладка верхней арматуры ТП 902-2-344-КЖ-23 Секция "А". Днище. Ведомость одиночных стержней ТП 902-2-344-КЖ-24 Секция "Б". Днище. Арматурный чертеж. Раскладка нижней арматуры ТП 902-2-344-КЖ-25 Секция "Б". Днище. Арматурный чертеж. Раскладка верхней арматуры ТП 902-2-344-КЖ-26 Секция "Б". Днище. Ведомость одиночных стержней ТП 902-2-344-КЖ-27 Секция "В". Днище. Арматурный чертеж. Раскладка нижней арматуры ТП 902-2-344-КЖ-28 Секция "В". Днище. Арматурный чертеж. Раскладка верхней арматуры ТП 902-2-344-КЖ-29 Секция "В". Днище. Ведомость одиночных стержней ТП 902-2-344-КЖ-30 Секции "А,Б,В". Днище. Арматурный чертеж. Сечения 1-1÷6-6 ТП 902-2-344-КЖ-31 Секции "А,Б,В". Днище. Арматурный чертеж. Сечения 7-7÷11. Выборка стали ТП 902-2-344-КЖ-32 Секция "А". Монтажный чертеж стен. План ТП 902-2-344-КЖ-33 Секция "Б". Монтажный чертеж стен. План ТП 902-2-344-КЖ-34 Секция "В". Монтажный чертеж стен. План ТП 902-2-344-КЖ-35 Монтажный чертеж стен. Виды 1-1÷4-4 ТП 902-2-344-КЖ-36 Монтажный чертеж стен. Виды 5-5÷9-9 ТП 902-2-344-КЖ-37 Монтажный чертеж стен. Виды 10-10÷17-17 ТП 902-2-344-КЖ-38 Монтажный чертеж стен. Узлы ТП 902-2-344-КЖ-39 Монолитные участки УМ-1,2,3,4. Опалубочный чертеж ТП 902-2-344-КЖ-40 Монолитные участки УМ-5,7,9,10. Опалубочный чертеж ТП 902-2-344-КЖ-41 Монолитные участки УМ-6,8,11,12,13,14. Опалубочный чертеж ТП 902-2-344-КЖ-42 Монолитные участки УМ-15,16,17,18 Опалубочный чертеж ТП 902-2-344-КЖ-43 Монолитные участки УМ-19,20. Узлы. Опалубочный чертеж ТП 902-2-344-КЖ-44 Монолитные участки стен. Спецификация элементов монолитной конструкции ТП 902-2-344-КЖ-45 Монолитные участки УМ-1,2,3,4. Арматурный чертеж ТП 902-2-344-КЖ-46 Монолитные участки УМ-5,6,7,8. Арматурный чертеж ТП 902-2-344-КЖ-47 Монолитные участки УМ-9,10,19,20. Арматурный чертеж ТП 902-2-344-КЖ-48 Монолитные участки УМ-11,12,13,14,15,16. Арматурный чертеж ТП 902-2-344-КЖ-49 Монолитные участки УМ-17,18. Узлы. Арматурный чертеж ТП 902-2-344-КЖ-50 Монолитные участки УМ-21,22,23.. Арматурно-опалубочный чертеж ТП 902-2-344-КЖ-51 Монолитные участки УМ-1÷17,19. Спецификация арматуры ТП 902-2-344-КЖ-52 Монолитные участки УМ-18,20÷23. Спецификация и выборка арматуры ТП 902-2-344-КЖ-53 Монтажные планы плит, лотков и балок (L аэротенка - 120м) ТП 902-2-344-КЖ-54 Монтажные планы плит, лотков и балок (L аэротенка - 126м) ТП 902-2-344-КЖ-55 Монтажные планы плит, лотков и балок (L аэротенка - 132м) ТП 902-2-344-КЖ-56 Монтажные планы плит, лотков и балок (L аэротенка - 138м) ТП 902-2-344-КЖ-57 Монтажные планы плит, лотков и балок. Узлы 1-4 ТП 902-2-344-КЖ-58 Монтажные планы плит, лотков, балок. Скользящие и неподвижные опоры ТП 902-2-344-КЖ-59 Монолитные участки УМ-24,25,26 ТП 902-2-344-КЖ-60 Монтажный план площадок ТП 902-2-344-КЖ-61 Монтажный план площадок. Узлы 1-6 ТП 902-2-344-КЖ-62 Монтажный план площадок. Узлы 7-10 ТП 902-2-344-КЖ-63 Конструкция водослива ТП 902-2-344-КЖ-64 Днище. Разбивка закладных деталей в набетонке. Вариант с фильтросными каналами ТП 902-2-344-КЖ-65 Днище. План набетонки и фильтросных каналов (7 рядов аэраторов) ТП 902-2-344-КЖ-66 Днище. План набетонки и фильтросных каналов (14 рядов аэраторов) ТП 902-2-344-КЖ-67 Днище. План набетонки и фильтросных каналов (21 рядов аэраторов) ТП 902-2-344-КЖ-68 Днище. Фильтросные каналы. Узлы, детали ТП 902-2-344-КЖ-69 Днище. Разбивка закладных деталей в набетонке. Вариант с пористыми трубами ТП 902-2-344-КЖ-70 Днище. План набетонки под пористые трубы (7 рядов аэраторов) ТП 902-2-344-КЖ-71 Днище. План набетонки под пористые трубы (14 рядов аэраторов) ТП 902-2-344-КЖ-72 Днище. План набетонки под пористые трубы (21 рядов аэраторов) ТП 902-2-344-КЖ-73 Камеры распределения ила №1,2 с помощью эрлифтов. Опалубочный чертеж. План, разрезы ТП 902-2-344-КЖ-74 Камеры распределения ила №3,4 с помощью эрлифтов. Опалубочный чертеж. План, разрезы ТП 902-2-344-КЖ-75 Камеры распределения ила №5,6 с помощью эрлифтов. Опалубочный чертеж. План, разрезы ТП 902-2-344-КЖ-76 Камеры распределения ила №7,8 с помощью эрлифтов. Опалубочный чертеж. План, разрезы ТП 902-2-344-КЖ-77 Камеры распределения ила №1-8 с помощью эрлифтов. Опалубочный чертеж. Узлы 1-5 ТП 902-2-344-КЖ-78 Камеры распределения ила №1-8. Общие данные ТП 902-2-344-КЖ-79 Камеры распределения ила №1,2 с помощью эрлифтов. Арматурный чертеж. Раскладка сеток стен. Разрезы ТП 902-2-344-КЖ-80 Камеры распределения ила №1,2 с помощью эрлифтов. Арматурный чертеж. Раскладка сеток днища. Узлы ТП 902-2-344-КЖ-81 Камеры распределения ила №3,4 с помощью эрлифтов. Арматурный чертеж. Раскладка сеток стен. Разрезы ТП 902-2-344-КЖ-82 Камеры распределения ила №3,4 с помощью эрлифтов. Арматурный чертеж. Раскладка сеток днища. Узлы ТП 902-2-344-КЖ-83 Камеры распределения ила №5,6 с помощью насосов. Арматурный чертеж. Раскладка сеток стен. Разрезы ТП 902-2-344-КЖ-84 Камеры распределения ила №5,6 с помощью насосов. Арматурный чертеж. Раскладка сеток днища. Узлы ТП 902-2-344-КЖ-85 Камеры распределения ила №7,8 с помощью насосов. Арматурный чертеж. Раскладка сеток стен. Разрезы ТП 902-2-344-КЖ-86 Камеры распределения ила №7,8 с помощью насосов. Арматурный чертеж. Раскладка сеток днища. Узлы ТП 902-2-344-КЖ-87 Посты гидрогеологических наблюдений за движением уровня грунтовых вод |
| Разработан: | Союзводоканалпроект |
| Утверждён: | 12.09.1980 Союзводоканалпроект (Soyuzvodokanalproject 57) |

























































































