Скачать Типовой проект 902-2-344 Альбом IV. Электротехническая частьДата актуализации: 01.01.2021
|
| Обозначение: | Типовой проект 902-2-344 |
| Обозначение англ: | 902-2-344 |
| Статус: | не определен законодательством |
| Название рус.: | Альбом IV. Электротехническая часть |
| Дата добавления в базу: | 01.09.2013 |
| Дата актуализации: | 01.01.2021 |
| Дата введения: | 05.02.1981 |
| Дата окончания срока действия: | 30.06.2003 |
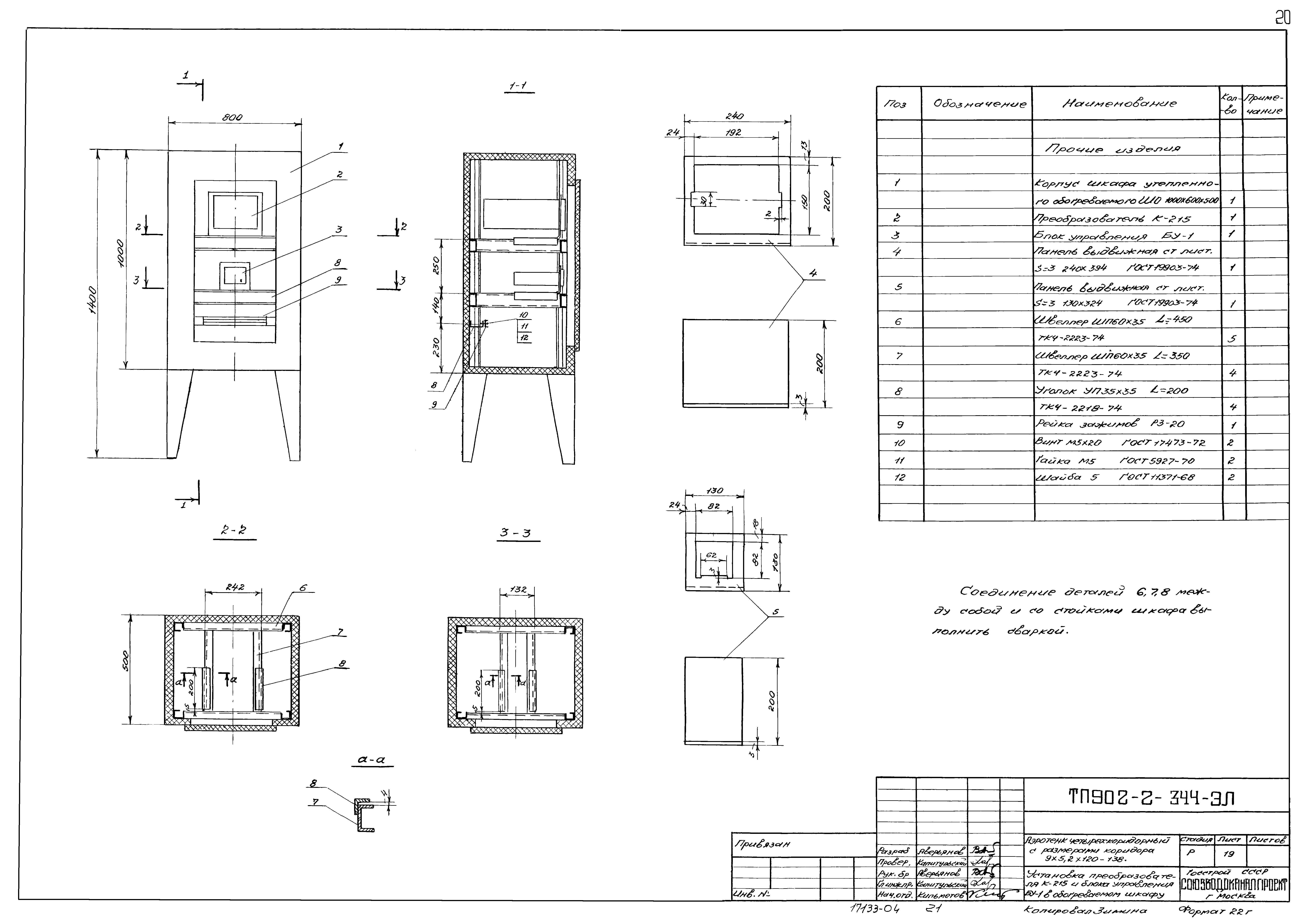
| Оглавление: | ТП 902-2-344-ЭЛ-1 Общие данные (начало) ТП 902-2-344-ЭЛ-2 Общие данные (продолжение) ТП 902-2-344-ЭЛ-3 Общие данные (продолжение) ТП 902-2-344-ЭЛ-4 Общие данные (продолжение) ТП 902-2-344-ЭЛ-5 Общие данные (окончание) ТП 902-2-344-ЭЛ-6 Схема принципиальная технологического контроля ТП 902-2-344-ЭЛ-7 Камеры распределения активного ила. Схема принципиальная технологического контроля ТП 902-2-344-ЭЛ-8 Схема электрическая проводок ТП 902-2-344-ЭЛ-9 Секции №№1-6. Схема электрических и трубных проводок ТП 902-2-344-ЭЛ-10 Секции №№7-10. Схема электрических и трубных проводок ТП 902-2-344-ЭЛ-11 Камера распределения активного ила №1 (2,5,6). Схема электрических и трубных проводок ТП 902-2-344-ЭЛ-12 Камера распределения активного ила №3 (4,7,8). Схема электрических и трубных проводок ТП 902-2-344-ЭЛ-13 Расположение оборудования КИП и прокладка кабелей и труб (начало) ТП 902-2-344-ЭЛ-14 Расположение оборудования КИП и прокладка кабелей и труб (окончание) ТП 902-2-344-ЭЛ-15 Расположение оборудования КИП и прокладка кабелей и труб в камерах распределения ила ТП 902-2-344-ЭЛ-16 Электроосвещение ТП 902-2-344-ЭЛ-17 Шкаф обогреваемый 1-Ш2(Ш5) □-Ш2(Ш5). Схема соединений ТП 902-2-344-ЭЛ-18 Шкаф обогреваемый Ш3,1-Ш4 □-Ш4. Схема соединений ТП 902-2-344-ЭЛ-19 Установка преобразователя К-215 и блока управления БУ-1 в обогреваемом шкафу ТП 902-2-344-ЭЛ-20 Установка дифманометра ДНМП-100 в обогреваемом шкафу ТП 902-2-344-ЭЛ-21 Опросный лист для заказа дифманометра-расходомера жидкости |
| Разработан: | Союзводоканалпроект |
| Утверждён: | 12.09.1980 Союзводоканалпроект (Soyuzvodokanalproject 57) |























