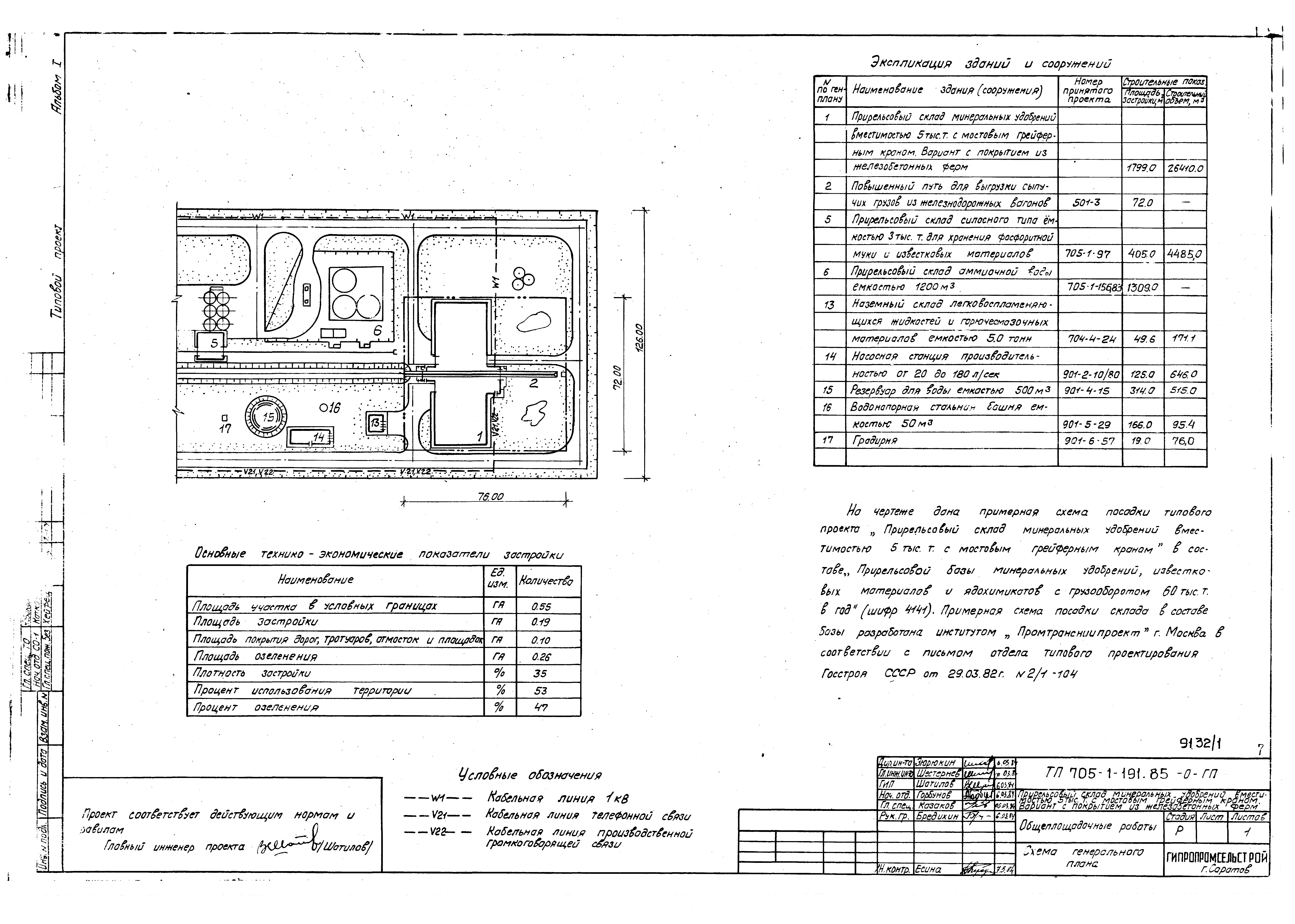
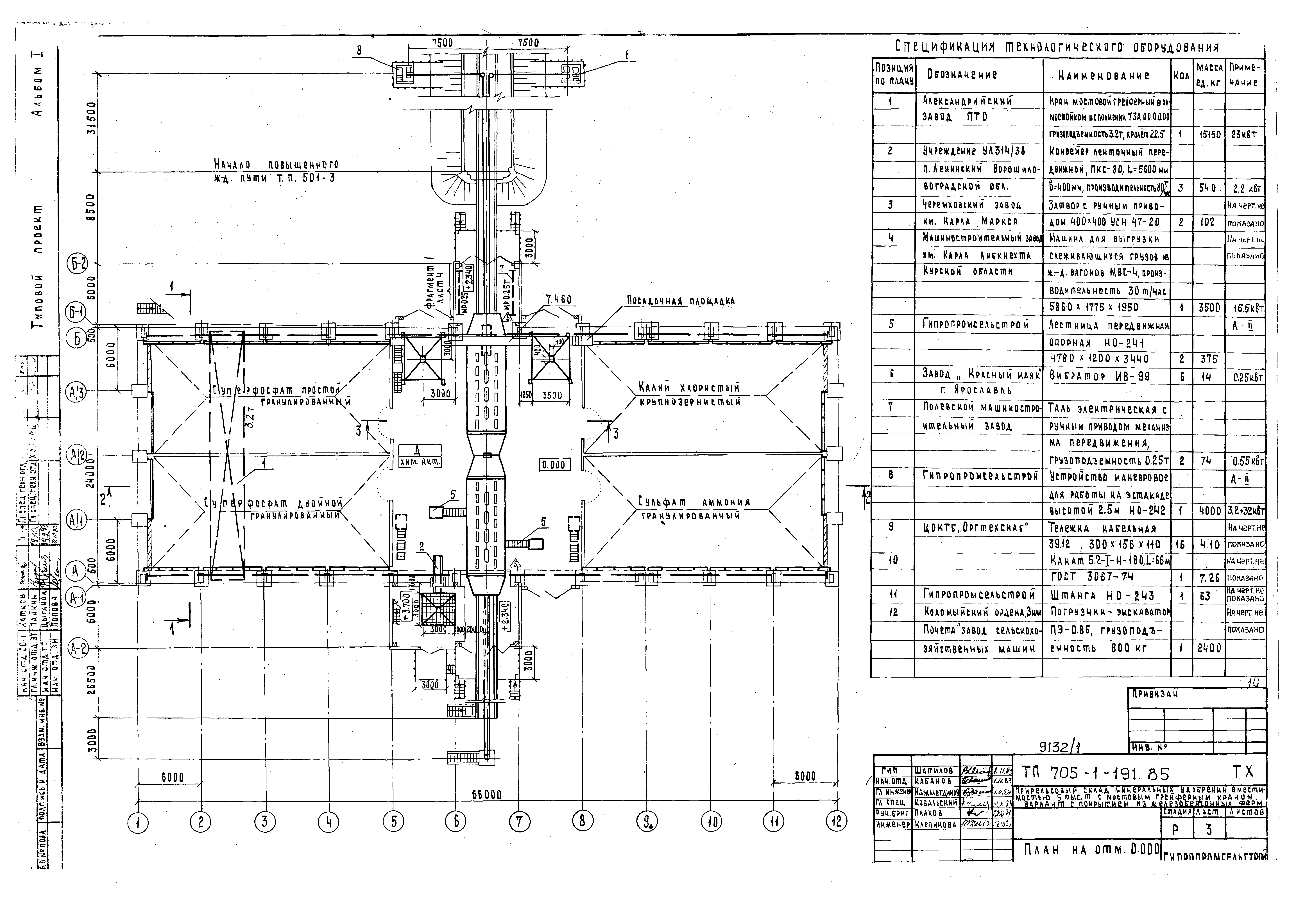
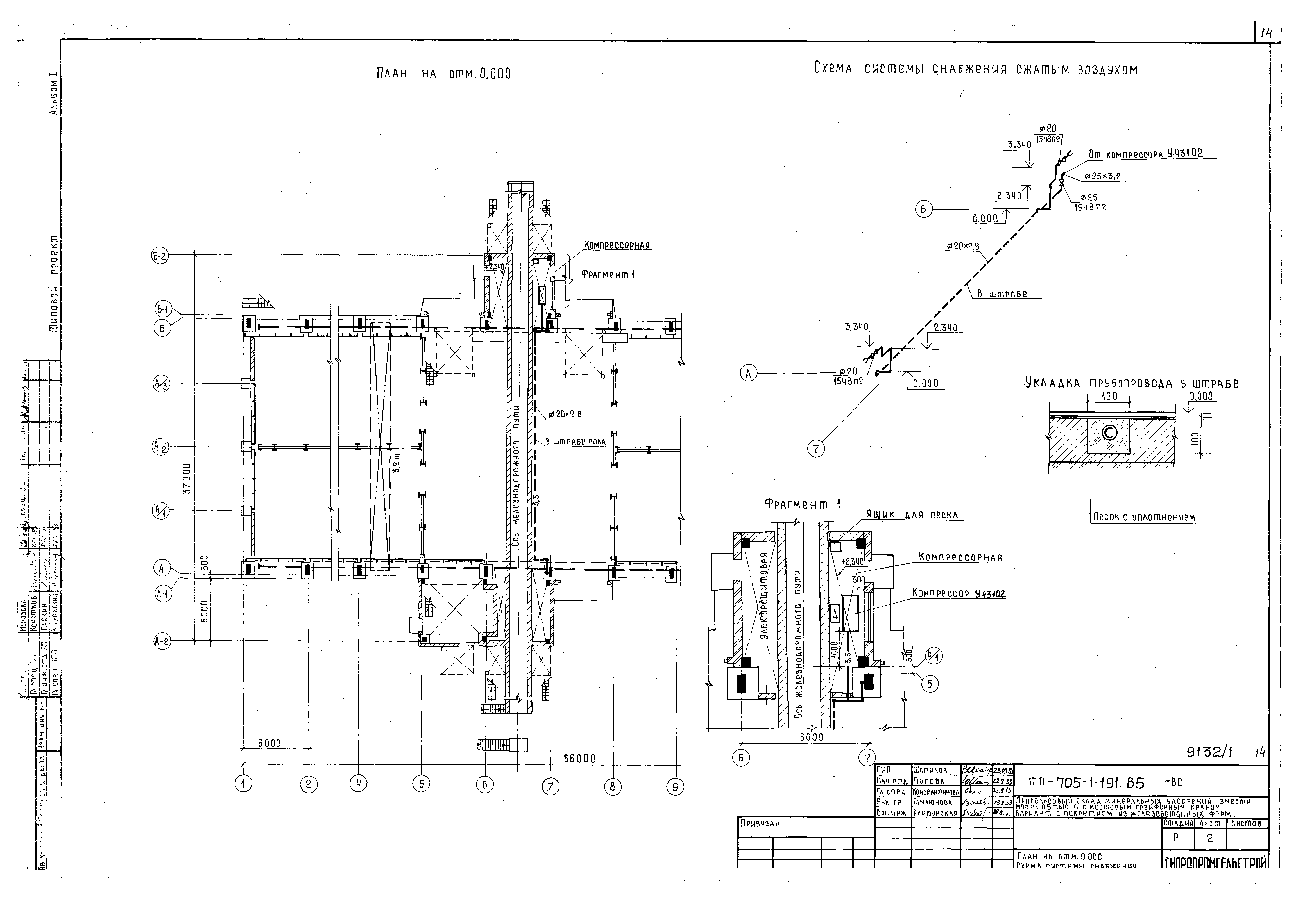
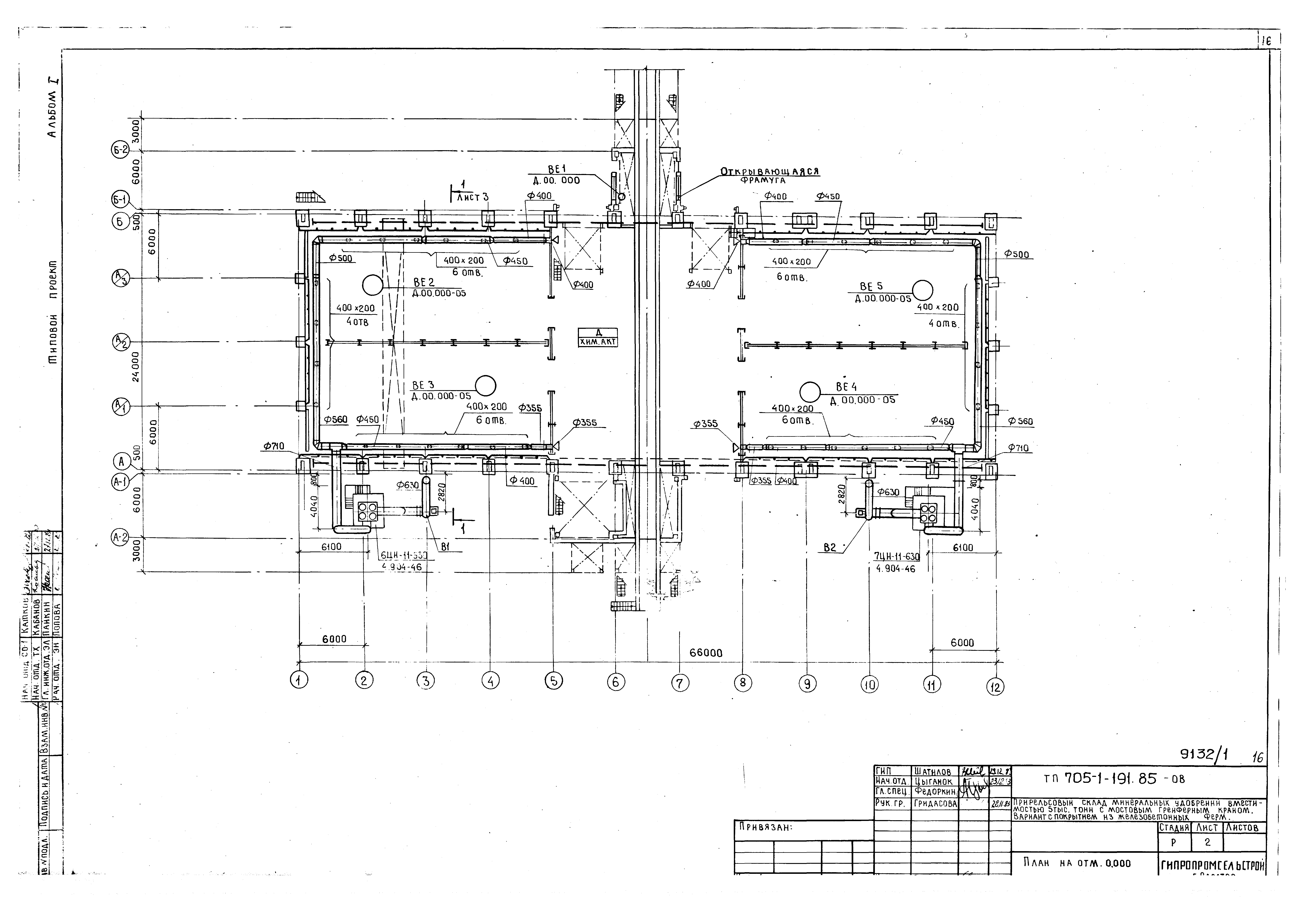
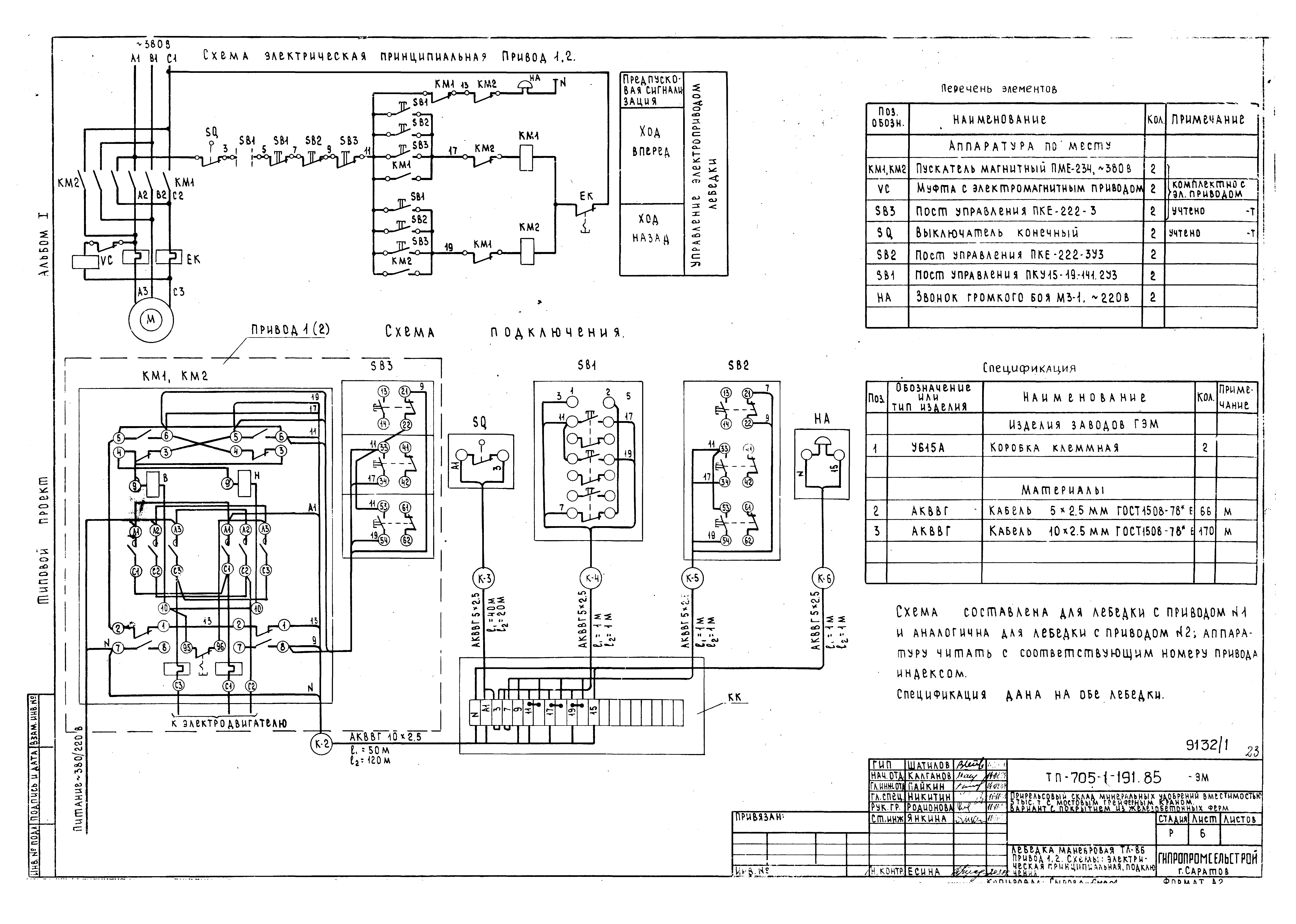
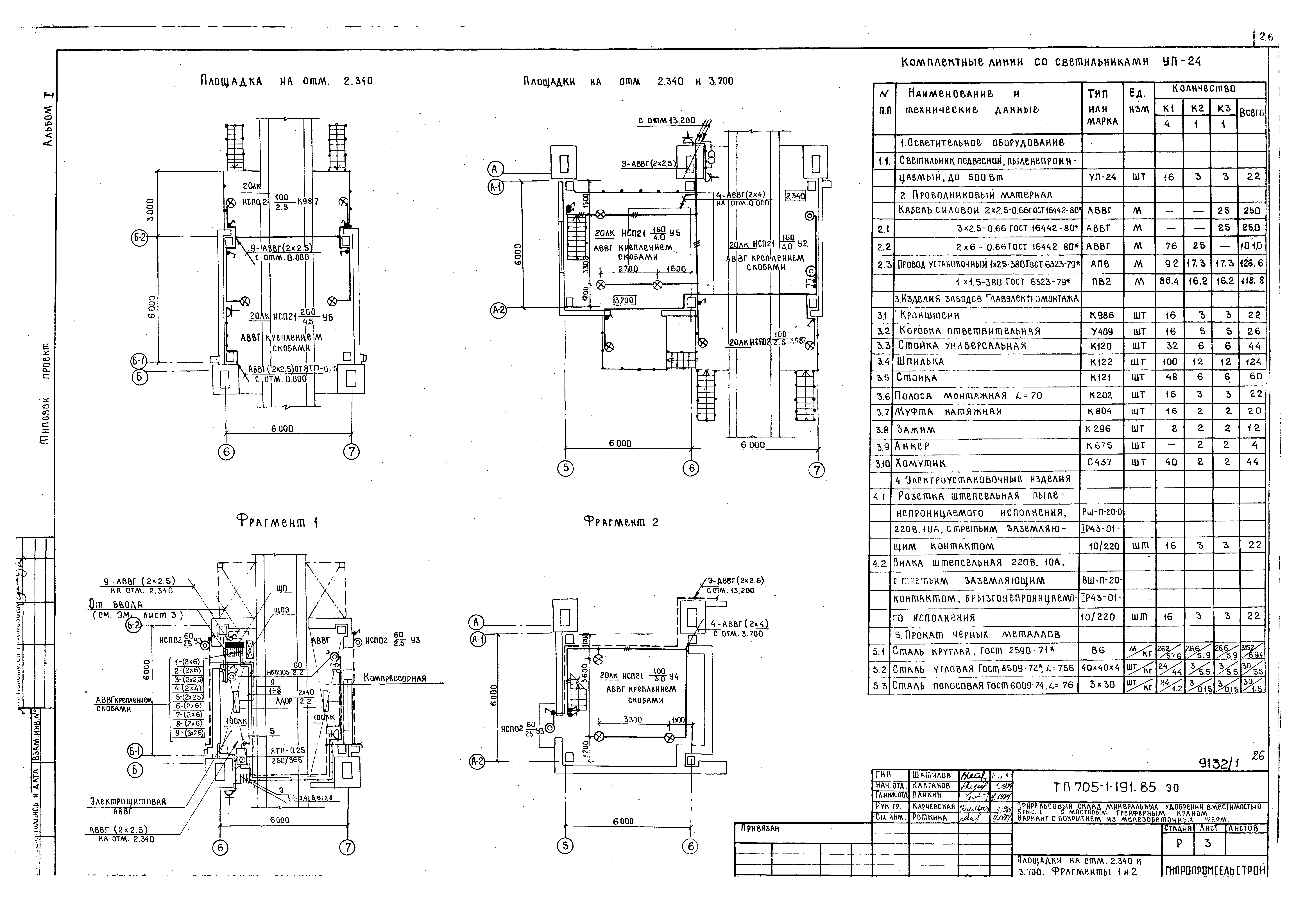
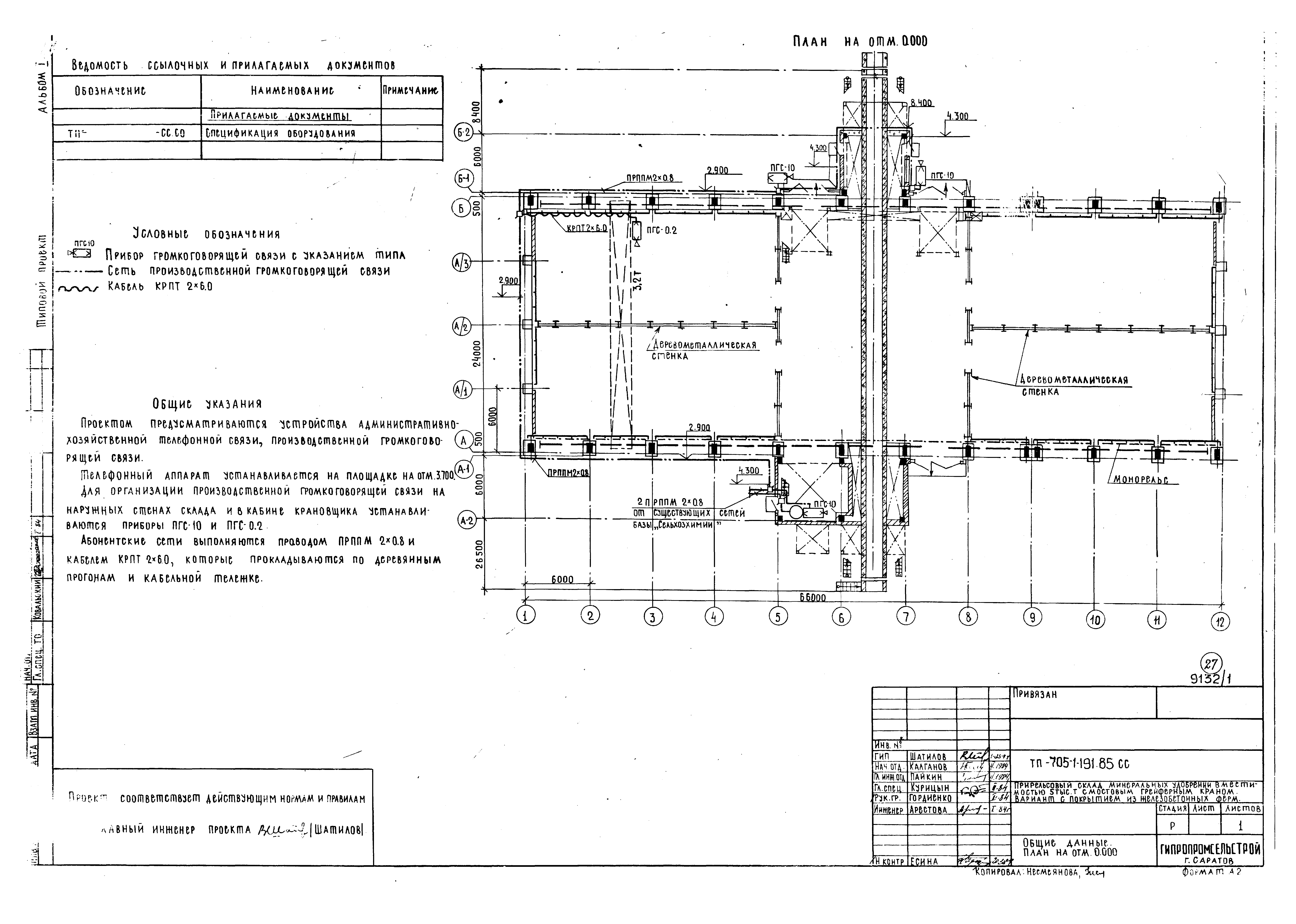
Скачать Типовой проект 705-1-191.85 Альбом I. Общая пояснительная записка. Технология производства. Воздухоснабжение. Вентиляция. Силовое электрооборудование. Электрическое освещение. Связь и сигнализацияДата актуализации: 01.01.2021 Типовой проект 705-1-191.85
Альбом I. Общая пояснительная записка. Технология производства. Воздухоснабжение. Вентиляция. Силовое электрооборудование. Электрическое освещение. Связь и сигнализация| Обозначение: | Типовой проект 705-1-191.85 | | Обозначение англ: | 705-1-191.85 | | Статус: | не действует | | Название рус.: | Альбом I. Общая пояснительная записка. Технология производства. Воздухоснабжение. Вентиляция. Силовое электрооборудование. Электрическое освещение. Связь и сигнализация | | Дата добавления в базу: | 01.09.2013 | | Дата актуализации: | 01.01.2021 | | Разработан: | Гипропромсельстрой
| | Утверждён: | 20.12.1984 Министерство сельского хозяйства и продовольствия Российской Федерации (105-ЭГ)
|
                           
|