Скачать Типовой проект 705-1-179.85 Альбом I. Пояснительная записка. Технология производства. Архитектурные решения. Конструкции железобетонные. Вентиляция. Силовое электрооборудованиеДата актуализации: 01.01.2021
|
| Обозначение: | Типовой проект 705-1-179.85 |
| Обозначение англ: | 705-1-179.85 |
| Статус: | не определен законодательством |
| Название рус.: | Альбом I. Пояснительная записка. Технология производства. Архитектурные решения. Конструкции железобетонные. Вентиляция. Силовое электрооборудование |
| Дата добавления в базу: | 01.09.2013 |
| Дата актуализации: | 01.01.2021 |
| Дата введения: | 05.03.1985 |
| Дата окончания срока действия: | 30.06.2003 |
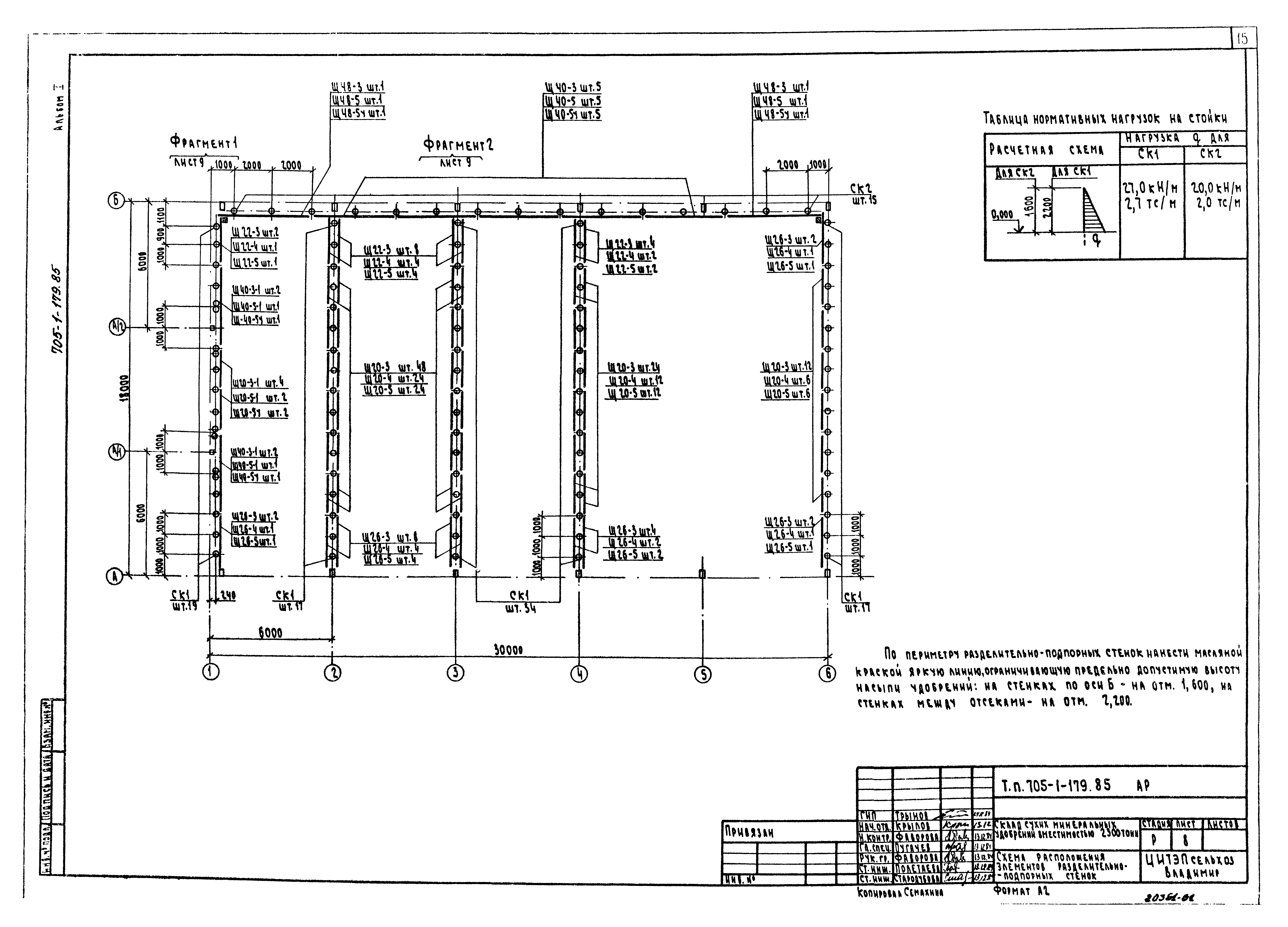
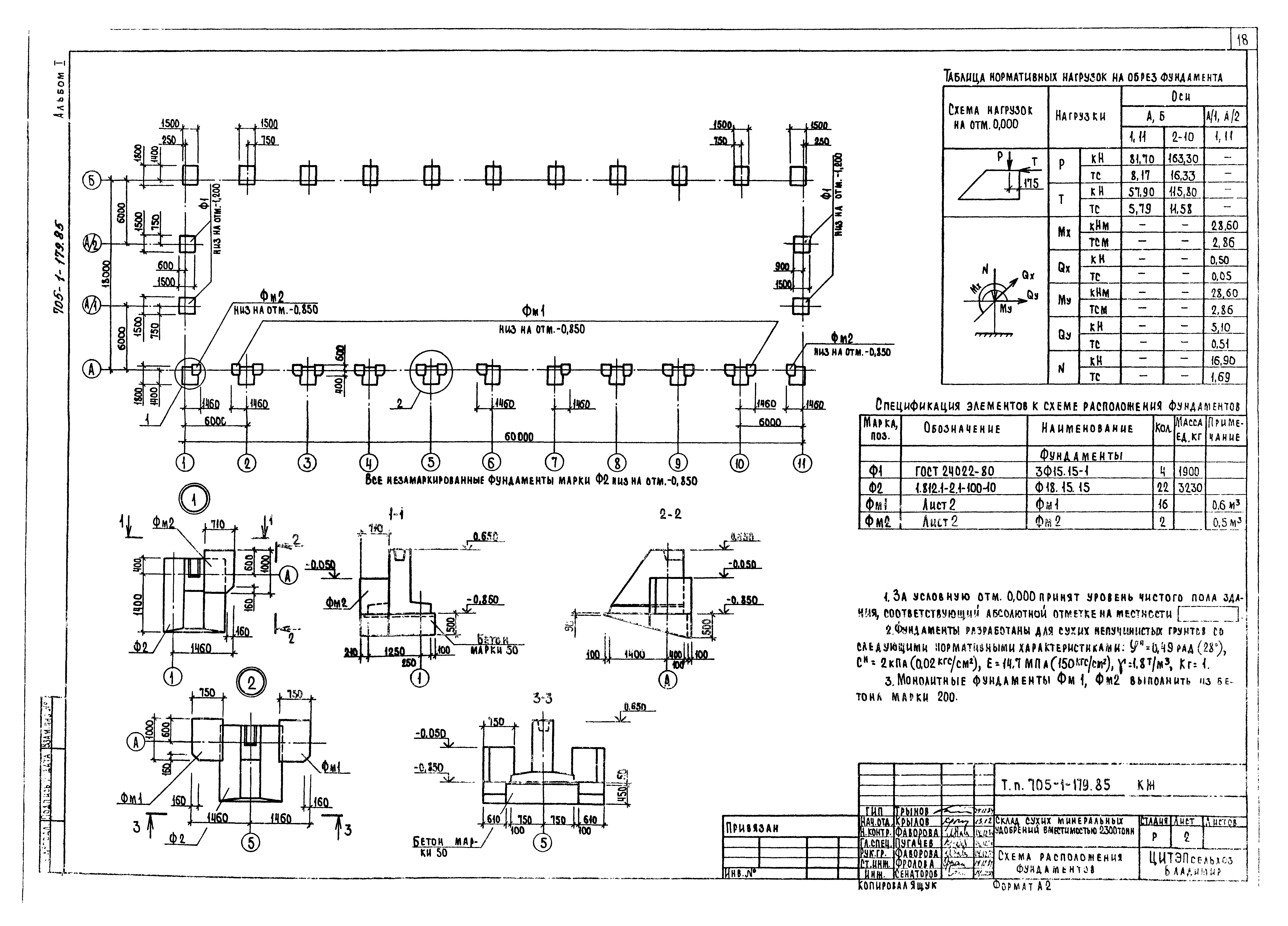
| Оглавление: | ТП 705-1-179.85 Содержание альбома ТП 705-1-179.85-ПЗ-1 Пояснительная записка ТП 705-1-179.85-ПЗ-2 Пояснительная записка ТП 705-1-179.85-ПЗ-3 Пояснительная записка ТП 705-1-179.85-ПЗ-4 Пояснительная записка ТП 705-1-179.85-ТХ-1 План на отм. 0.000. Разрез 1-1;2-2 ТП 705-1-179.85-АР-1 Общие данные ТП 705-1-179.85-АР-2 План на отм. 0.000. Разрез 1-1 ТП 705-1-179.85-АР-3 Фасады 1-11,11-1,А-Б ТП 705-1-179.85-АР-4 Схемы расположения элементов фахверка ТП 705-1-179.85-АР-5 Схемы расположения элементов стен ТП 705-1-179.85-АР-6 План кровли. Схемы расположения элементов кровли ТП 705-1-179.85-АР-8 Узлы 3-11 ТП 705-1-179.85-АР-9 Схемы расположения элементов разделительно-подпорных стенок ТП 705-1-179.85-АР-10 Фрагменты 1,2 ТП 705-1-179.85-КЖ-1 Общие данные ТП 705-1-179.85-КЖ-2 Схемы расположения фундаментов ТП 705-1-179.85-КЖ-3 Схемы расположения полурам, колонн и связей ТП 705-1-179.85-КЖ-4 Схемы расположения прогонов покрытия. Узел 3 ТП 705-1-179.85-ОВ-1 Общие данные. План на отм. 0.000. Установки систем В1-В4 ТП 705-1-179.85-ЭМ-1 Общие данные ТП 705-1-179.85-ЭМ-2 Силовое электрооборудование. План на отм. 0.000 ТП 705-1-179.85-ЭМ-3 Силовое электрооборудование. Принципиальная расчетная схема. Молниезащита ТП 705-1-179.85-ЭМ-4 Электрическое освещение. План на отм. 0.000 ТП 705-1-179.85-ЭМ.ВИ Ведомость изделий мастерских электромонтажных заготовок МЭЗ ТП 705-1-179.85-ЭМ.ВИМ Ведомость изделий и материалов для изготовления изделий МЭЗ ТП 705-1-179.85-ЭМ.ВР Ведомость объемов строительных монтажных работ по чертежам |
| Разработан: | Проектный институт ЦИТЭПсельхоз |
| Утверждён: | 20.09.1984 Главсельстройпроект Минсельхоза СССР (Glavselstroyproject, USSR Minselkhoz 73-ЭГ) |



























