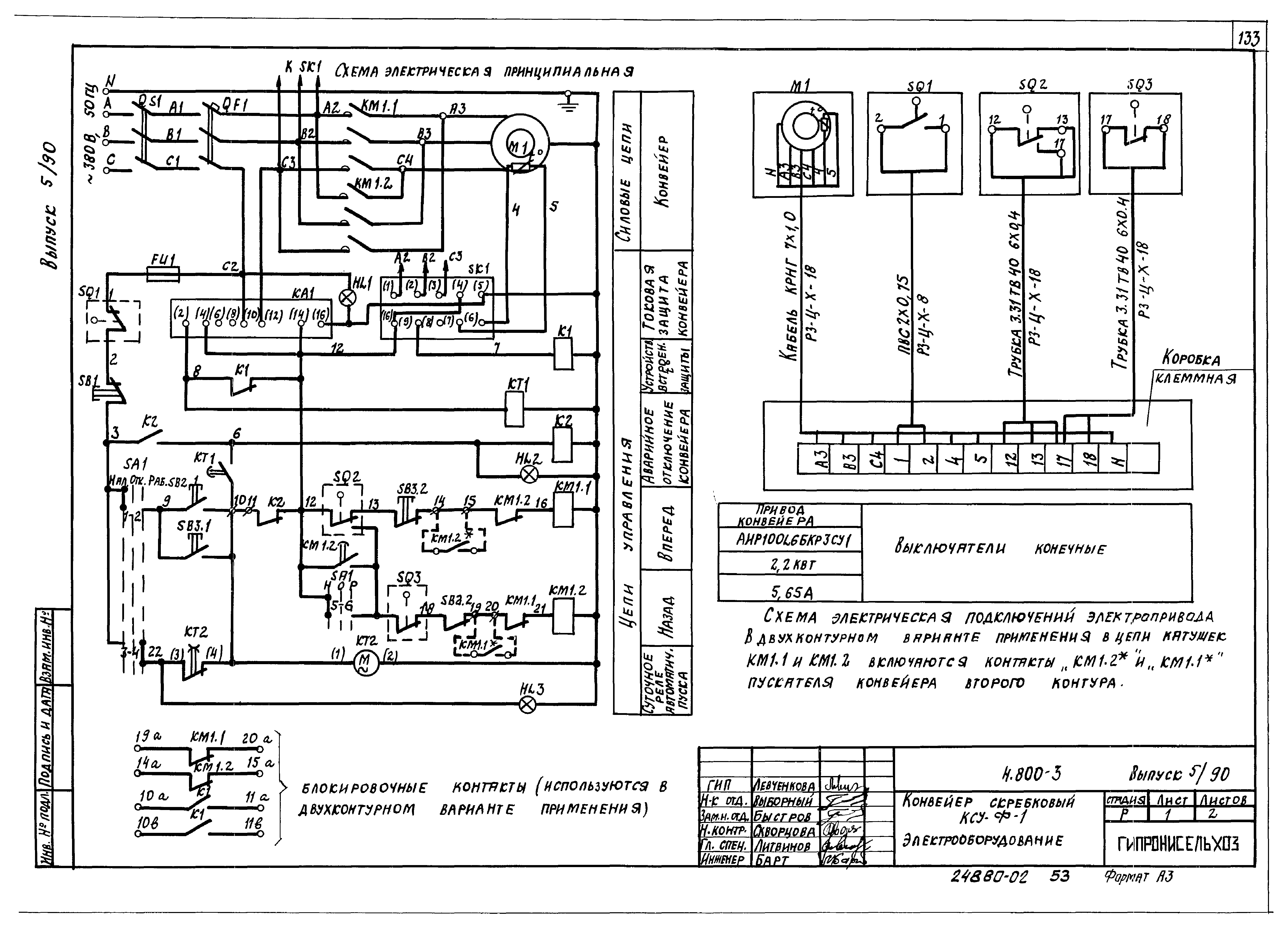
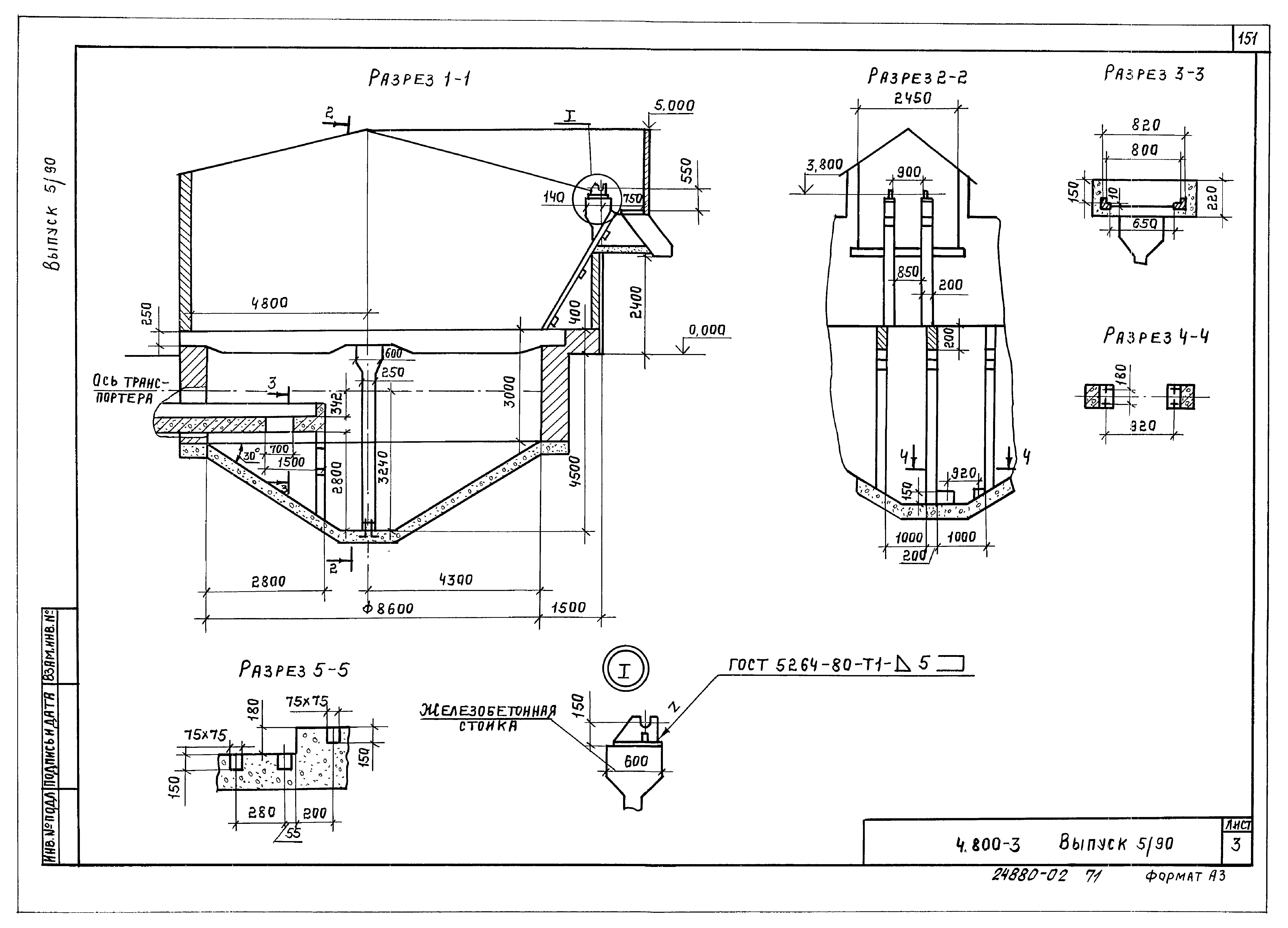
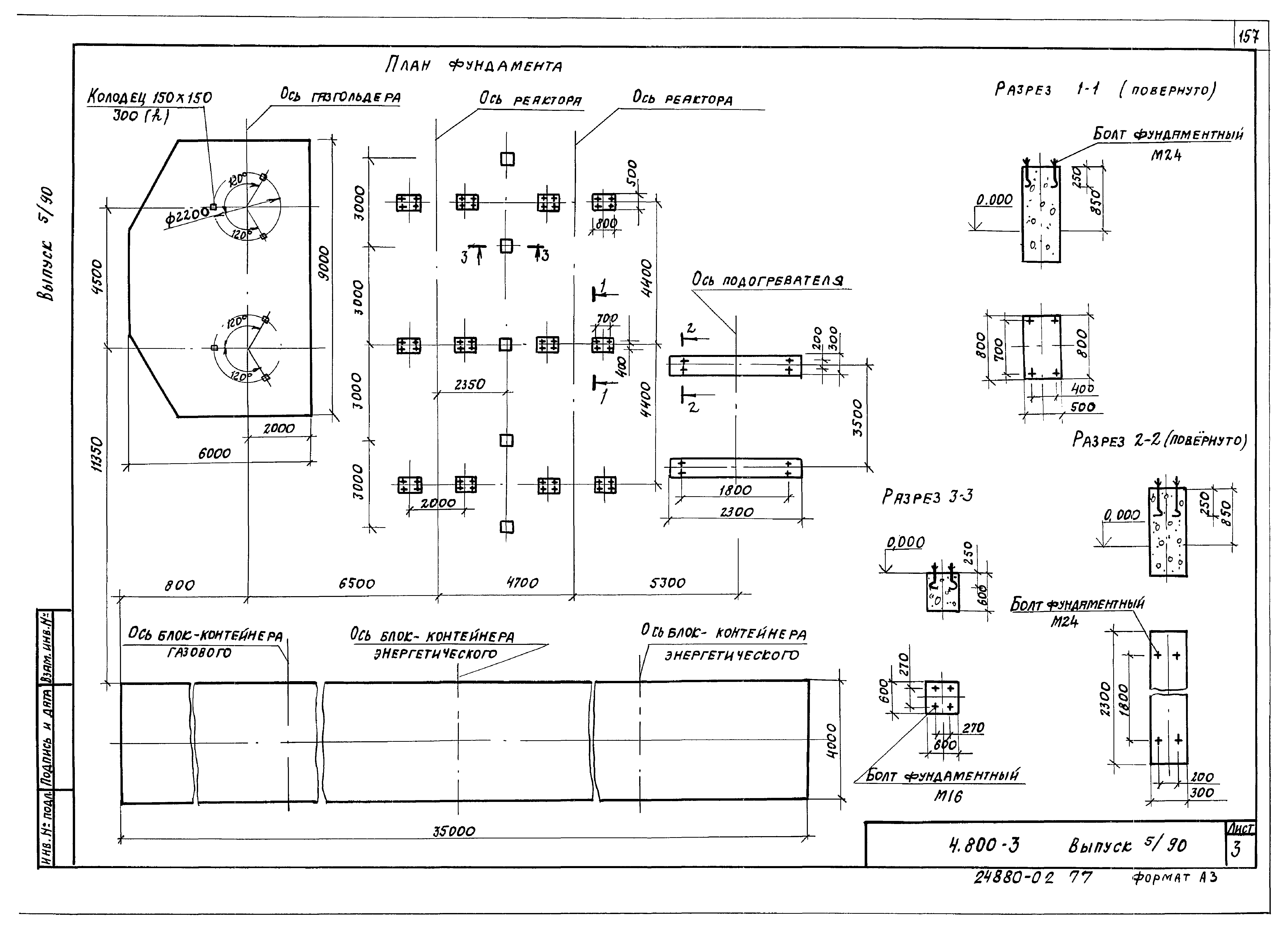
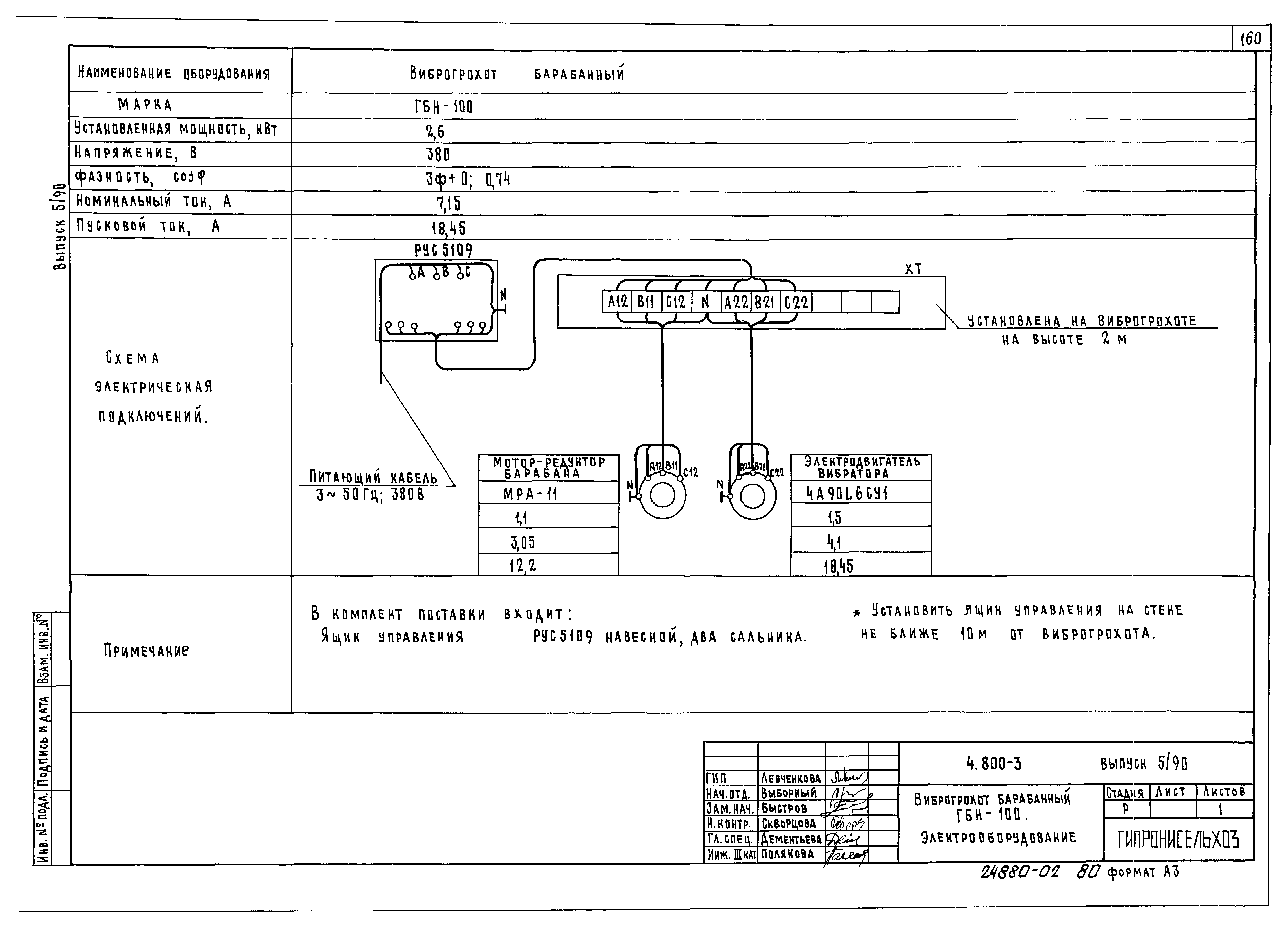
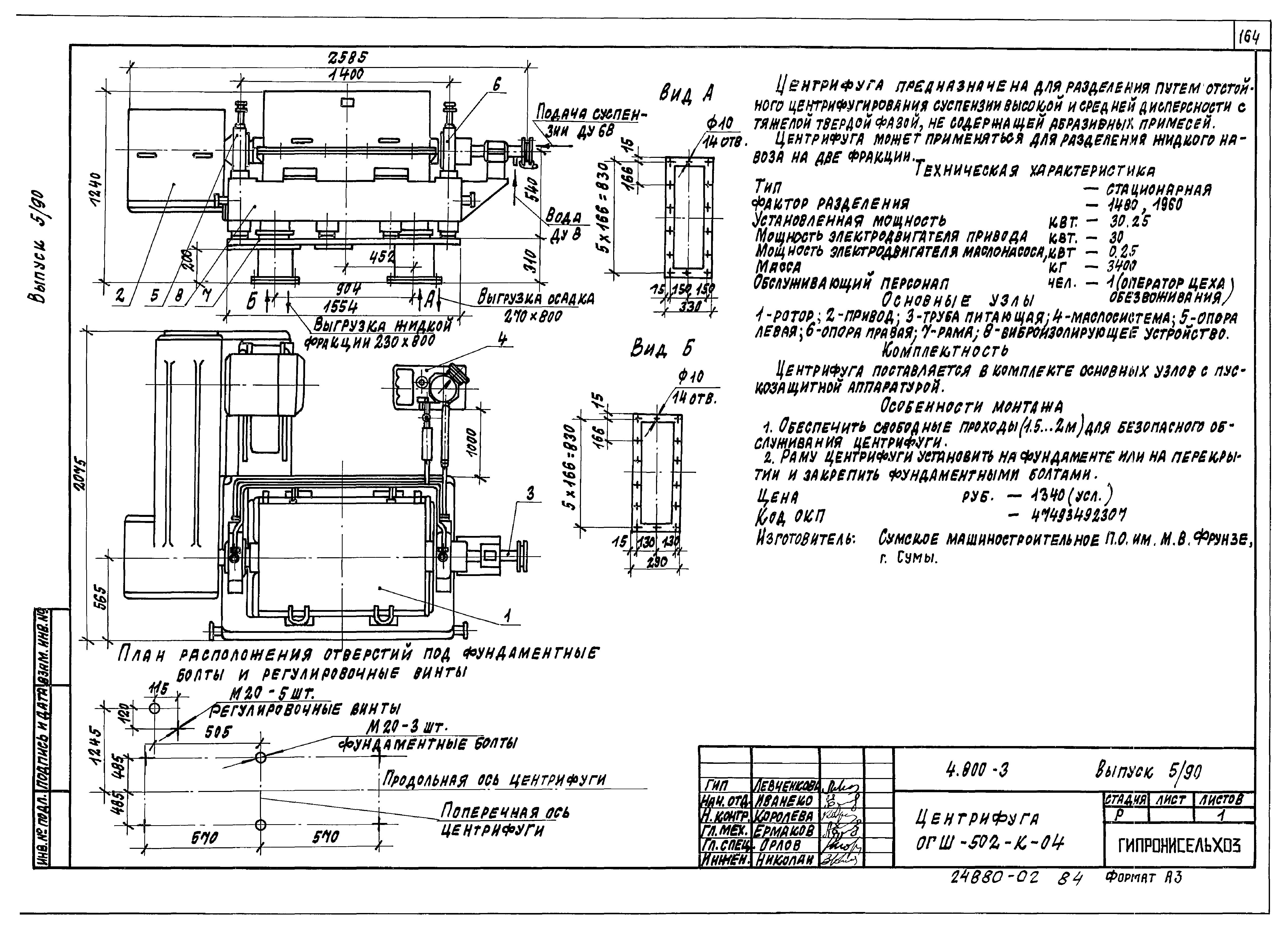
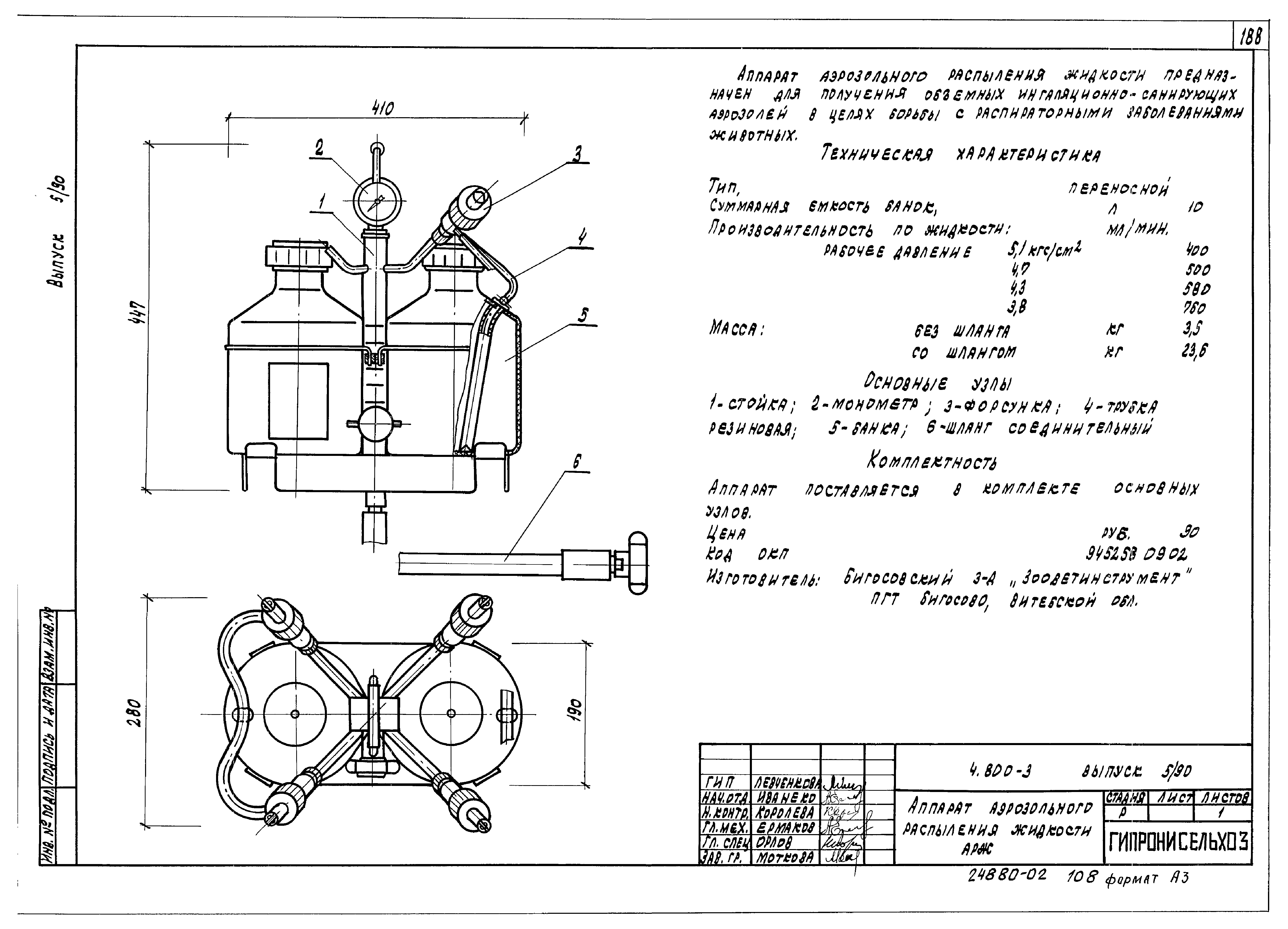
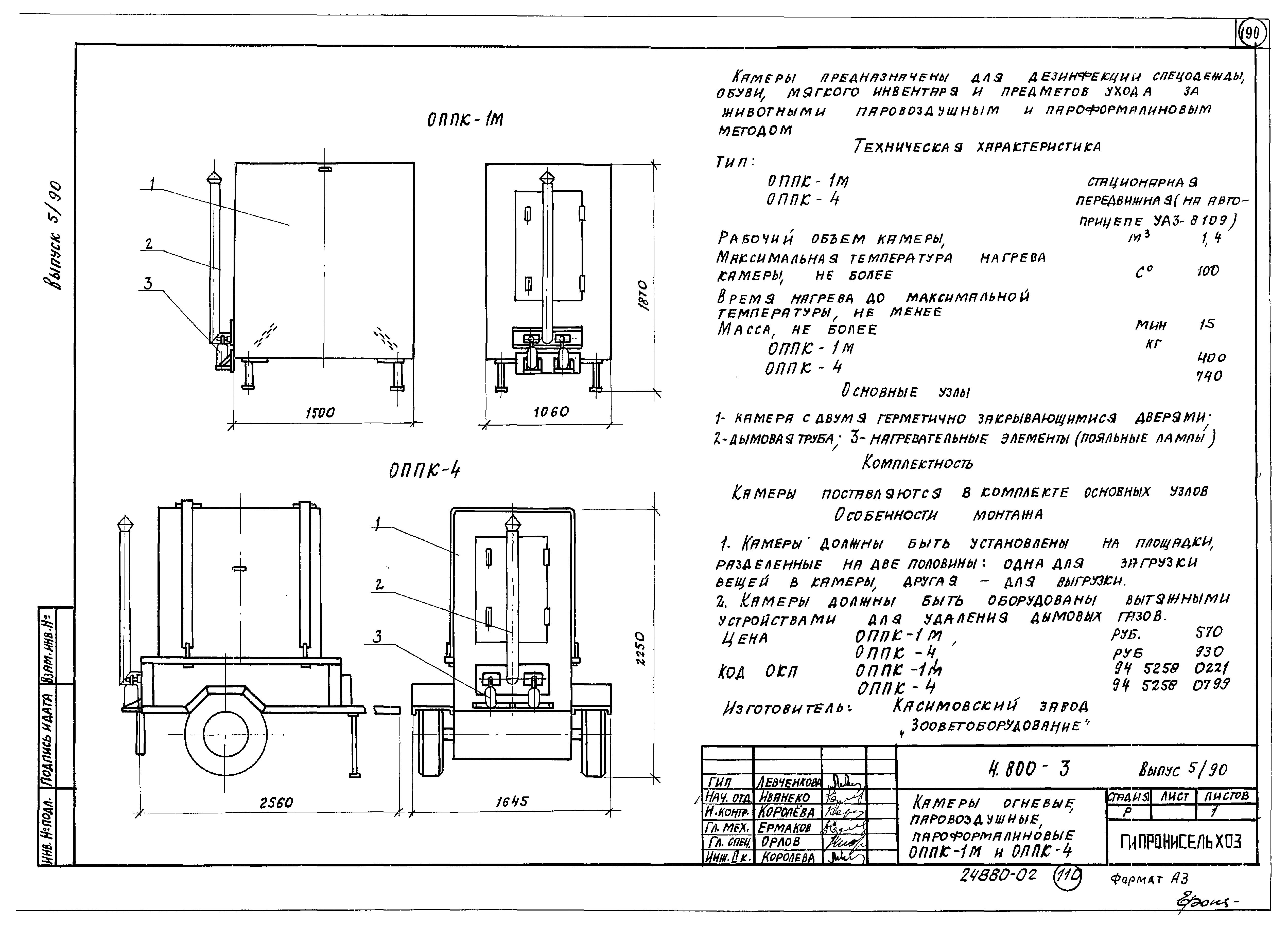
Скачать Серия 4.800-3 Выпуск 5/90. Часть 2. Установочные чертежи машин и механизмов общего назначенияДата актуализации: 01.01.2021
|
| Обозначение: | Серия 4.800-3 |
| Обозначение англ: | Series 4.800-3 |
| Статус: | не определен законодательством |
| Название рус.: | Выпуск 5/90. Часть 2. Установочные чертежи машин и механизмов общего назначения |
| Дата добавления в базу: | 01.02.2020 |
| Дата актуализации: | 01.01.2021 |
| Дата введения: | 01.06.1991 |
| Дата окончания срока действия: | 30.06.2003 |
| Разработан: | ГипроНИсельхоз (Институт Гипронисельхоз ) |
| Утверждён: | 21.01.1991 Главагропромнаучпроект Госкомиссии СМ СССР по продовольствию и закупкам (073-3/112) |













































































































