Скачать Типовой проект 903-1-224.86 Альбом 2.2. Строительно-технологическая блок-секция котлоагрегата КВ-ТС(В)-10. Тепломеханическая часть (вариант с воздухоподогревателем)Дата актуализации: 01.01.2021
|
| Обозначение: | Типовой проект 903-1-224.86 |
| Обозначение англ: | 903-1-224.86 |
| Статус: | действует |
| Название рус.: | Альбом 2.2. Строительно-технологическая блок-секция котлоагрегата КВ-ТС(В)-10. Тепломеханическая часть (вариант с воздухоподогревателем) |
| Дата добавления в базу: | 01.10.2014 |
| Дата актуализации: | 01.01.2021 |
| Дата введения: | 20.05.1986 |
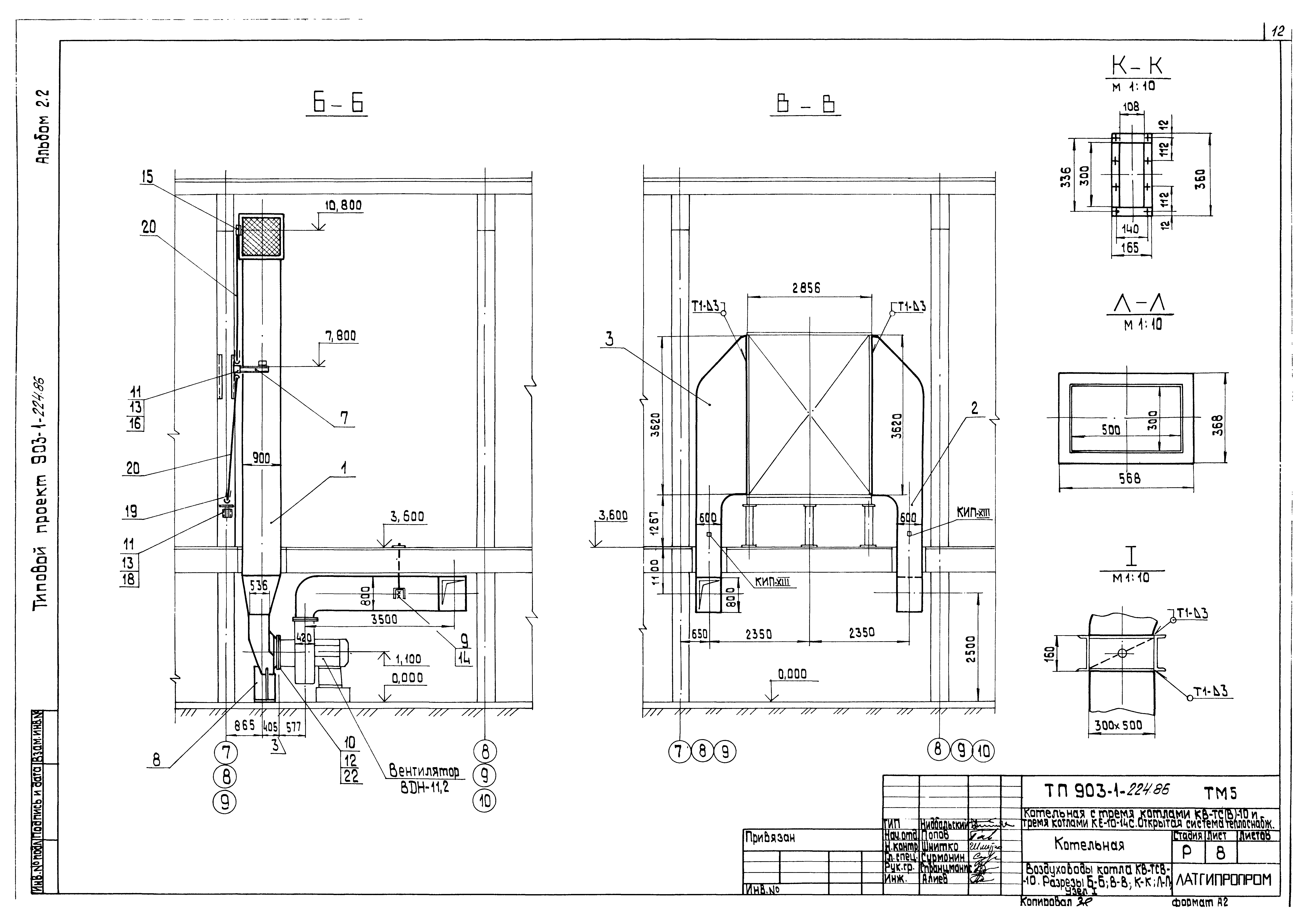
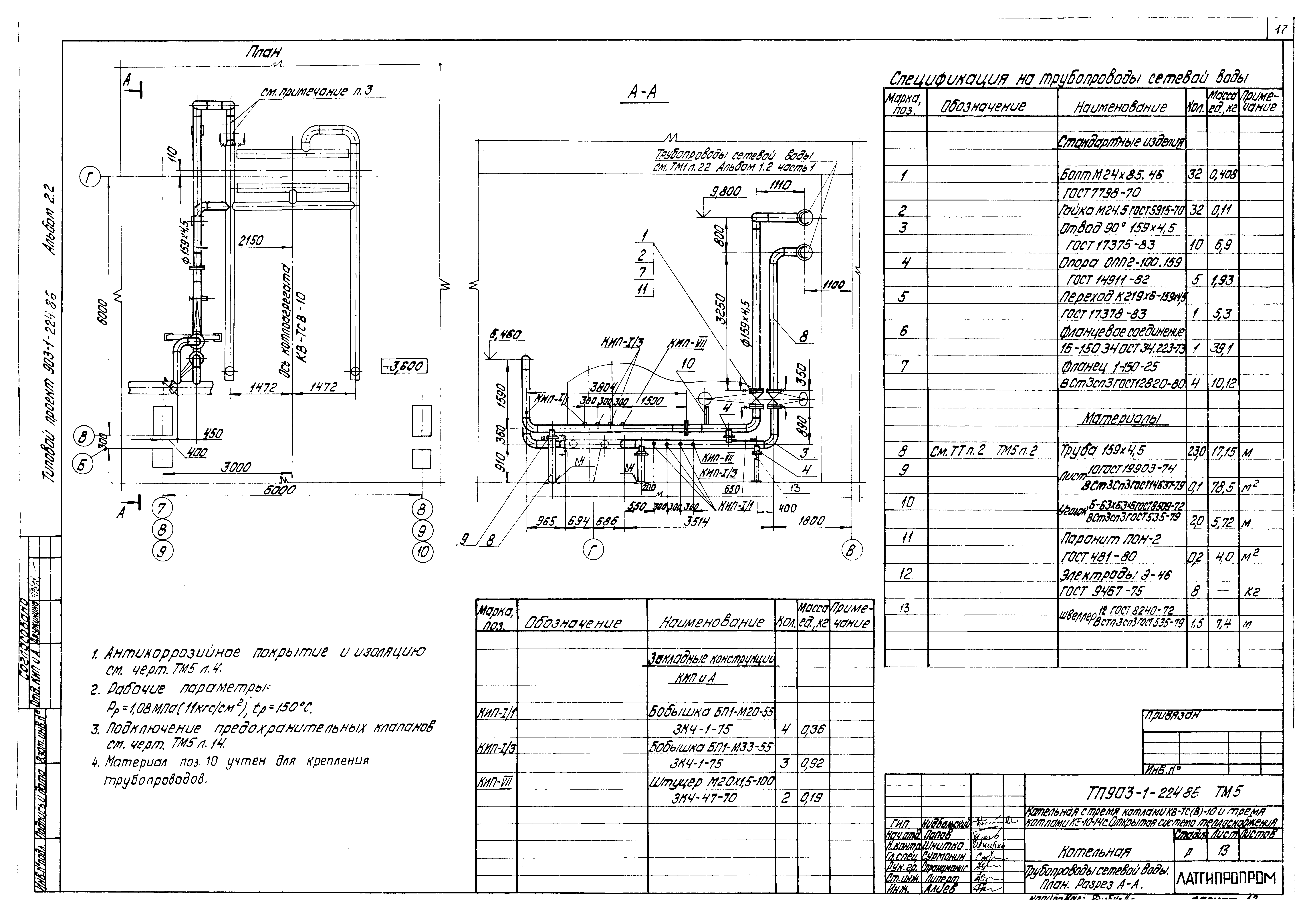
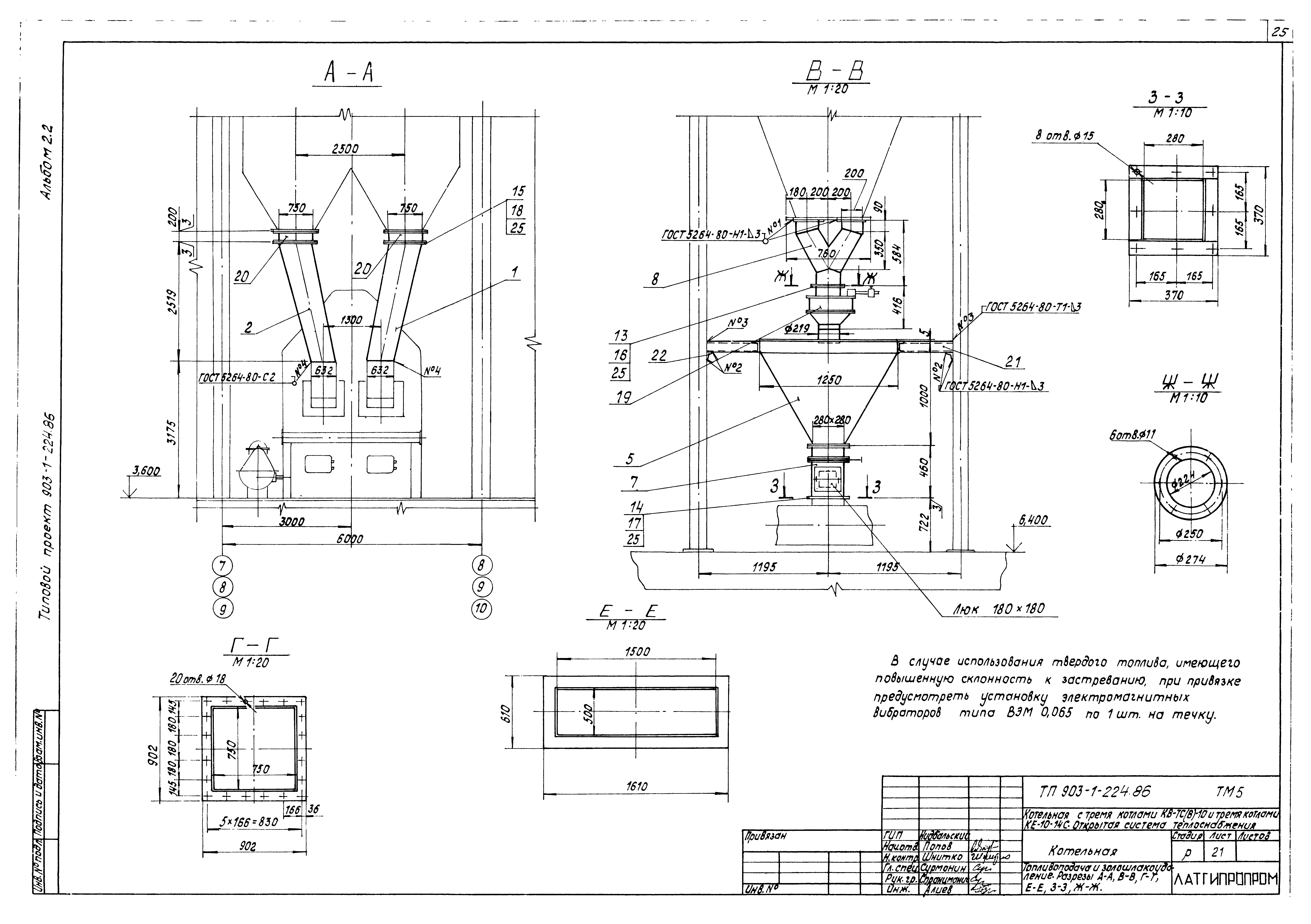
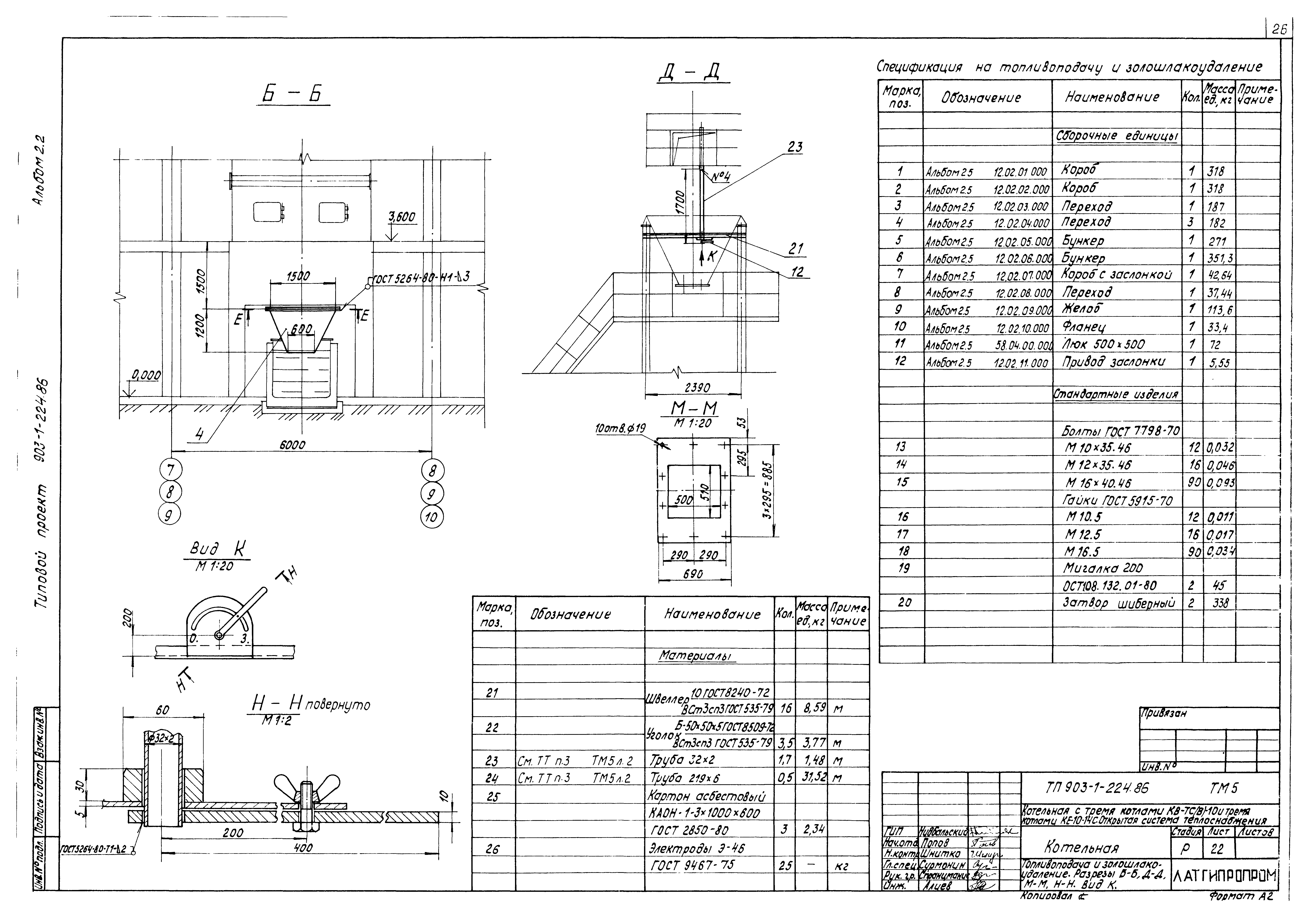
| Оглавление: | Основной комплект рабочих чертежей марки ТМ5 Общие данные Ведомость теплоизоляционных конструкций и антикоррозийных покрытий Блок-секция котлоагрегата КВ-ТСВ-10. Вид сверху. План Б-Б Блок-секция котлоагрегата КВ-ТСВ-10. Разрез А-А Воздуховоды котла КВ-ТСВ-10. Разрез А-А. Фланцы Воздуховоды котла КВ-ТСВ-10. Разрезы Б-Б, В-В, К-К, Л-Л. Узел I Воздуховоды котла КВ-ТСВ-10. План. Разрез Д-Д Газоходы котла КВ-ТСВ-10. Вид сверху. Разрез Г-Г. Фланцы Газоходы котла КВ-ТСВ-10. Разрезы А-А, В-В Газоходы котла КВ-ТСВ-10. Разрез Б-Б. Узлы I, II Трубопроводы сетевой воды. Разрез А-А Трубопроводы подключения предохранительных клапанов. План. Разрез А-А Схема дренажа и продувки котла КВ-ТСВ-10 Подъемник ПСК для шлакоудаления. План. Узлы I, II. Таблица комплектации и характеристика Подъемник ПСК для шлакоудаления. Разрезы А-А, Б-Б Подъемник ПСК для шлакоудаления. Узлы III, IV. Разрезы В-В, Г-Г, Д-Д, Е-Е Подъемник ПСК для шлакоудаления. Принципиальная схема монтажа каната Топливоподача и золошлакоудаление. Общий вид Топливоподача и золошлакоудаление. Разрезы А-А, В-В, Г-Г, Е-Е, З-З, Ж-Ж Топливоподача и золошлакоудаление. Разрезы Б-Б, Д-Д, М-М, Н-Н. Вид К Трубопровод острого дутья и возврата уноса. План. Разрезы А-А, Б-Б, В-В Обмуровка предтопка и шлакового бункера. Общий вид. Разрез А-А. Узел I |
| Разработан: | Латгипропром |
| Утверждён: | 20.05.1986 Госстрой СССР (Государственный комитет Совета Министров СССР по делам строительства) (USSR Gosstroy АЧ-29) |
| Заменяет собой: |
|





























