Скачать Типовой проект 903-1-224.86 Альбом 2.3. Строительно-технологическая блок-секция котлоагрегата КВ-ТС(В)-10. Конструкции железобетонные. АвтоматизацияДата актуализации: 01.01.2021
|
| Обозначение: | Типовой проект 903-1-224.86 |
| Обозначение англ: | 903-1-224.86 |
| Статус: | действует |
| Название рус.: | Альбом 2.3. Строительно-технологическая блок-секция котлоагрегата КВ-ТС(В)-10. Конструкции железобетонные. Автоматизация |
| Дата добавления в базу: | 01.10.2014 |
| Дата актуализации: | 01.01.2021 |
| Дата введения: | 20.05.1986 |
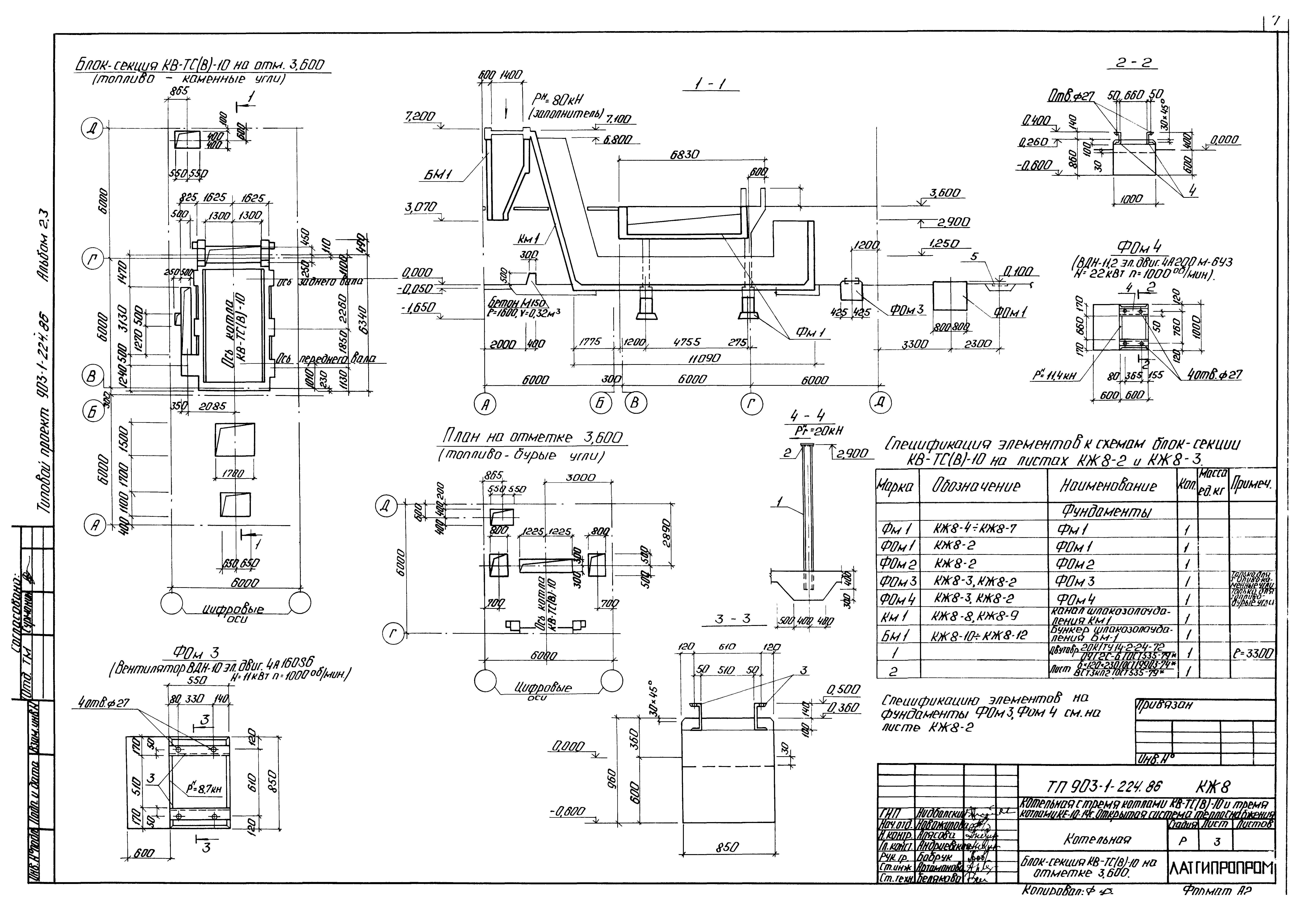
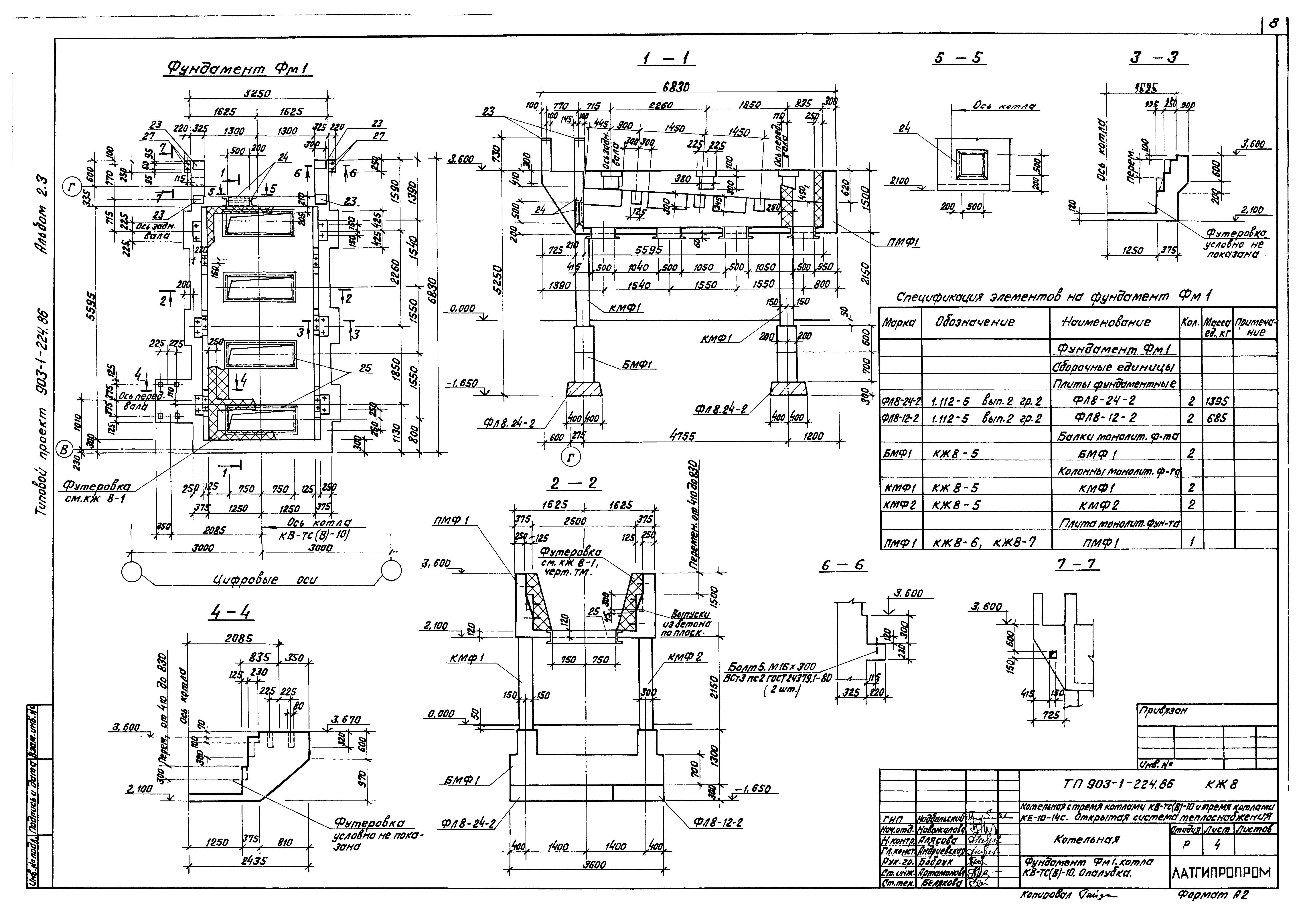
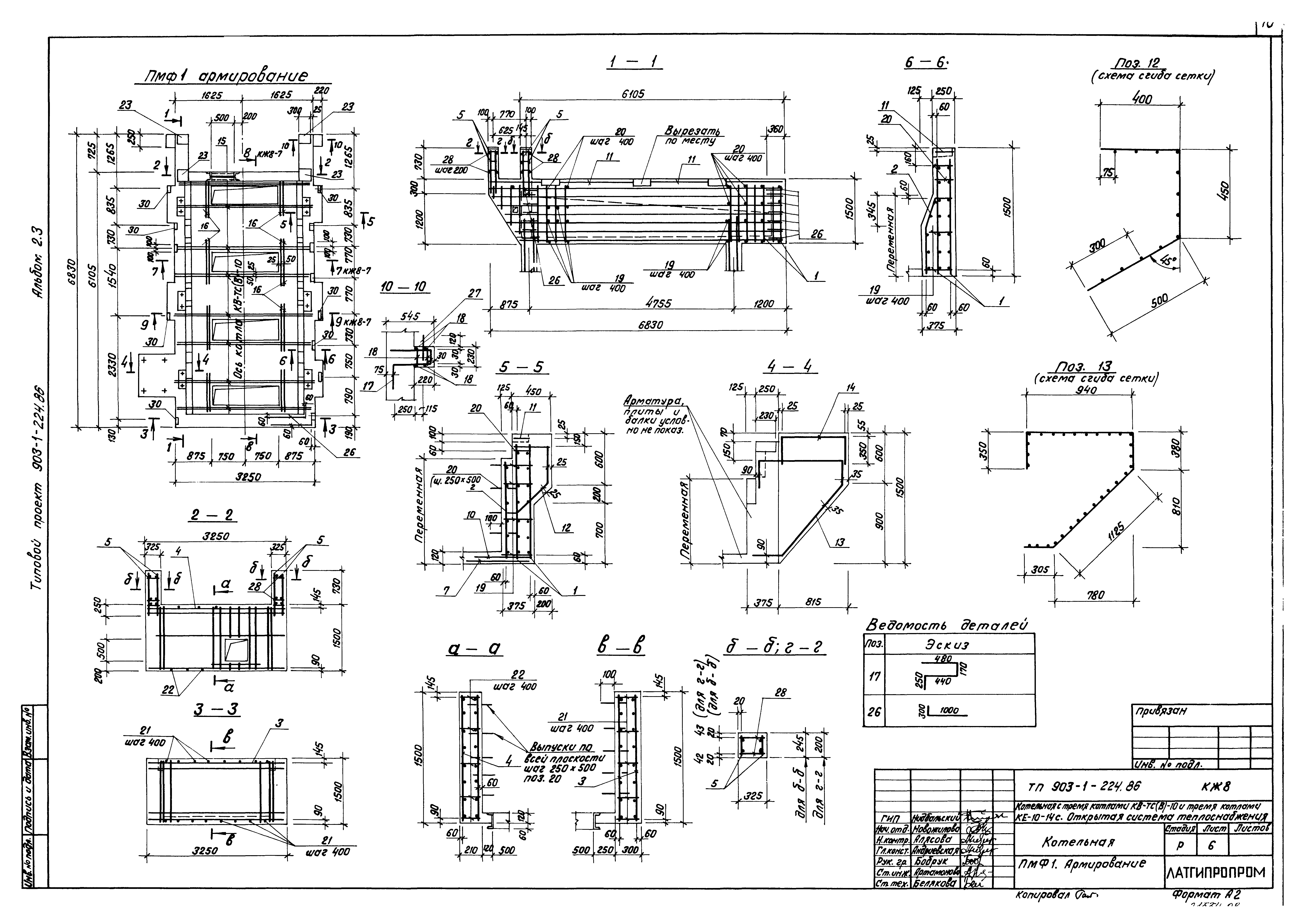
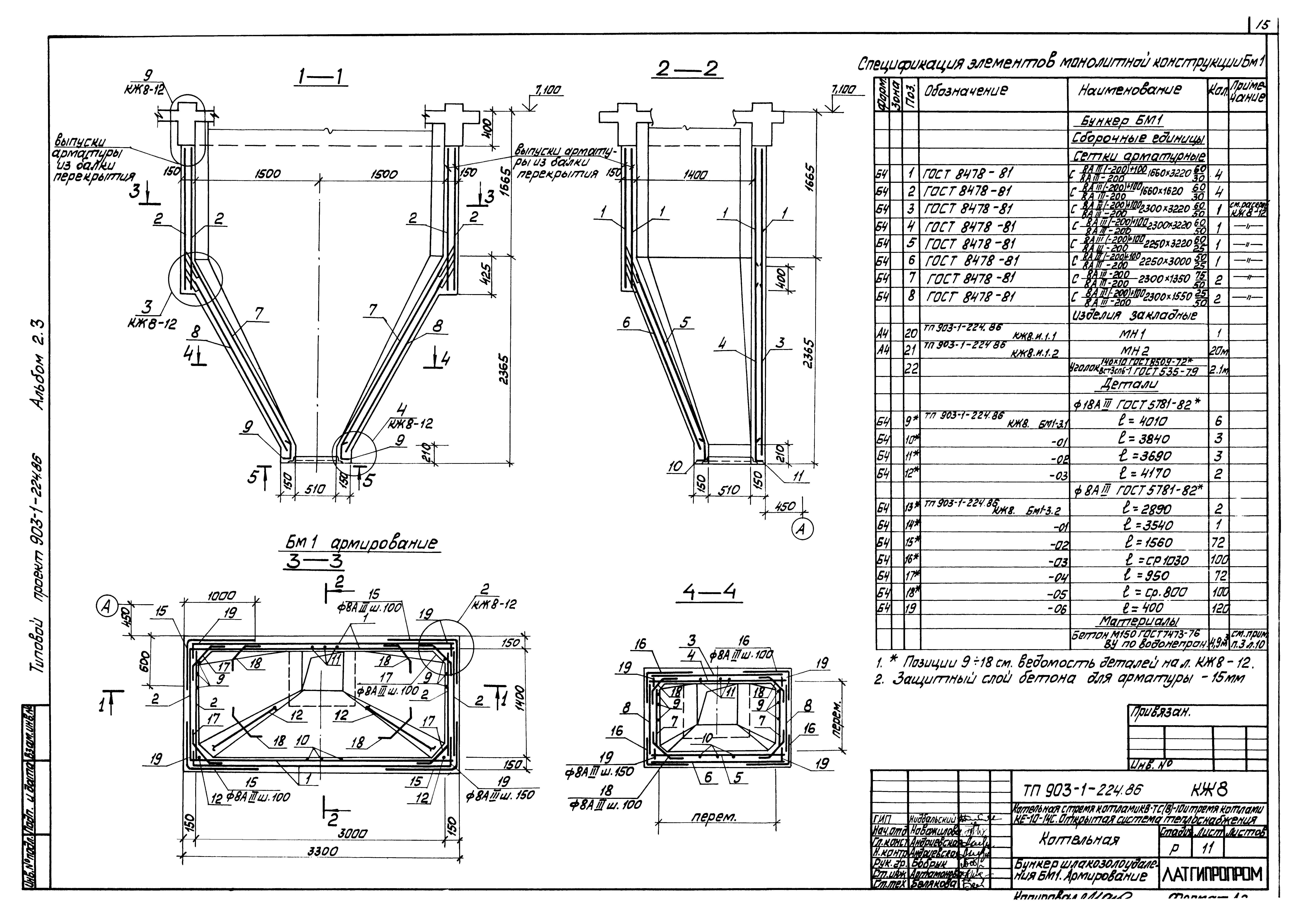
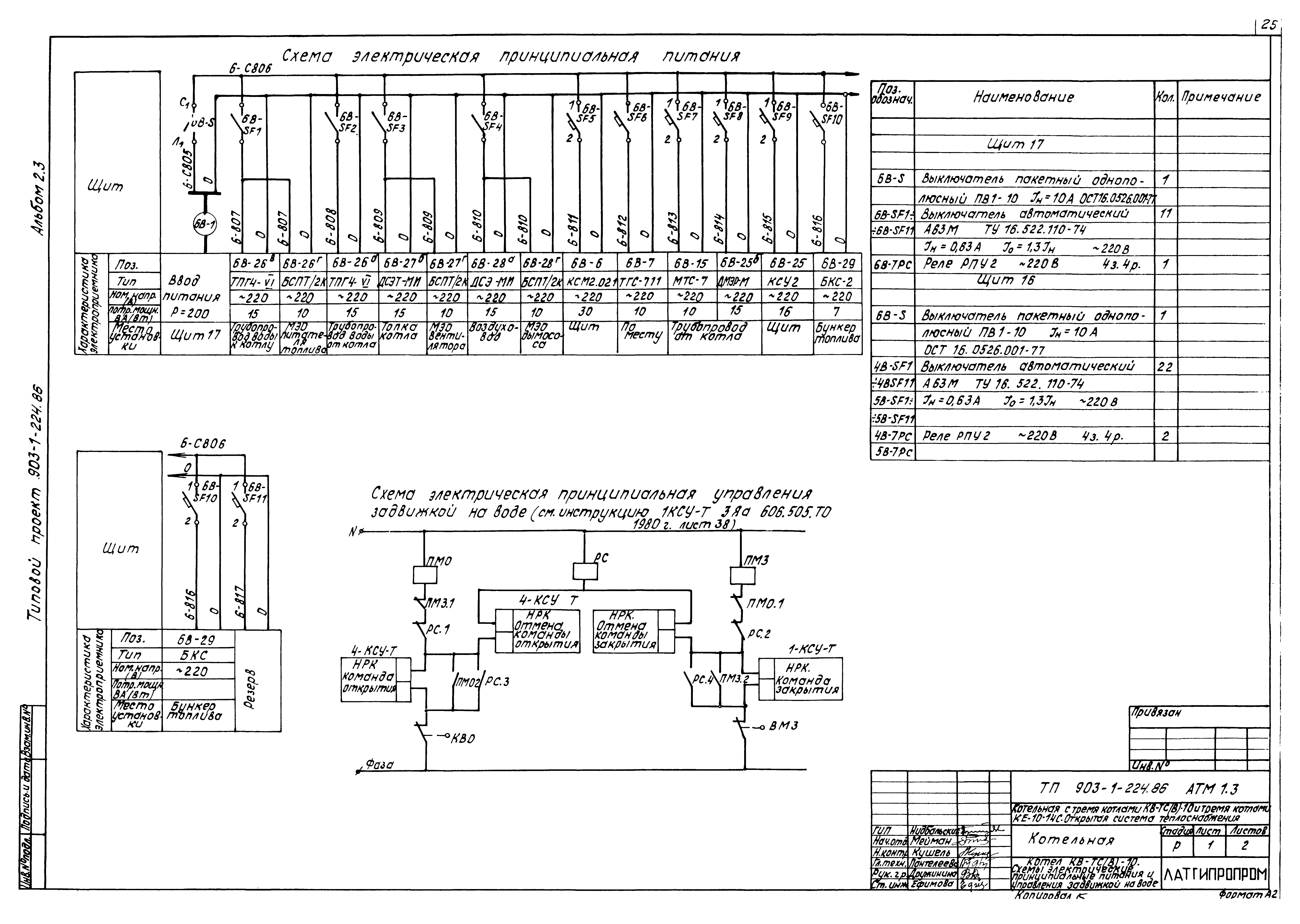
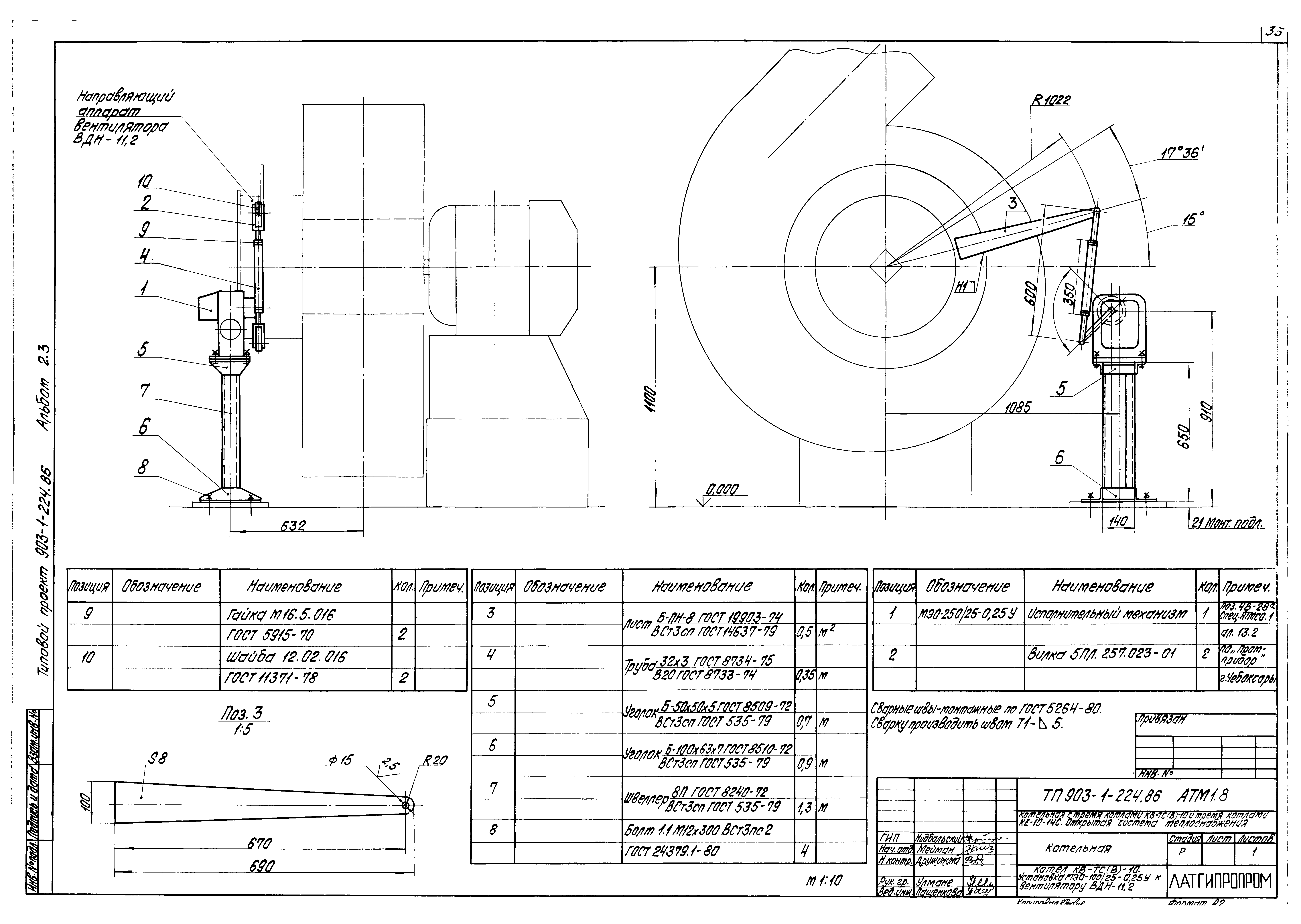
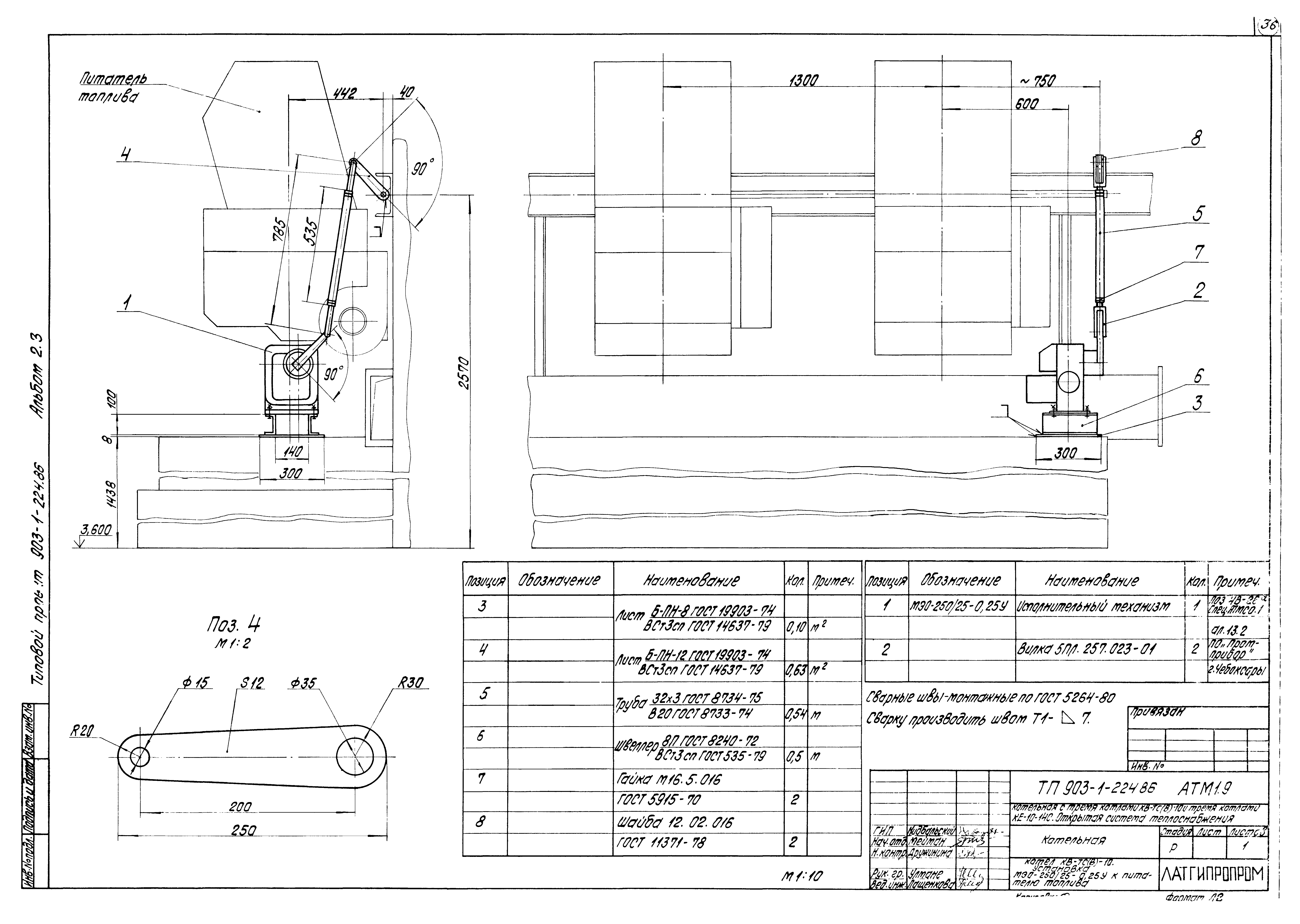
| Оглавление: | Конструкции железобетонные КЖ8 Общие данные Блок-секция КВ-ТС(В)-10 на отм. 0.000. Узел 1 Блок-секция КВ-ТС(В)-10 на отм. 3.600 Фундамент Фм1 котла КВ-ТС(В)-10. Опалубка Схема расположения элементов фундамента Фм1 на отм. 0.000 ПмФ1. Армирование ПмФ1. Армирование. Спецификации Канал шлакозолоудаления Км1. Опалубка и армирование. Узел 2 Канал шлакозолоудаления Км1. Опалубка и армирование. Узлы 3, 4 Бункер шлакозолоудаления Бм1. Опалубка. Узел 5 Бункер шлакозолоудаления Бм1. Армирование Бункер шлакозолоудаления Бм1. Узлы 6 - 9 Прилагаемые документы Изделие закладное МН1 Изделие закладное МН2 Изделие закладное МН3 Изделие закладное МН4 Изделие закладное МН5 Изделие закладное МН6 Изделие закладное МН7 Изделие закладное МН8 Изделие закладное МН9 Изделие закладное МН10 Каркас плоский КР1 Каркас плоский КР2 Каркас плоский КР3 Каркас плоский КР4 Каркас плоский КР5 Каркас плоский КР6 Каркас плоский КР7 Каркас плоский КР8 Автоматизация АТМ1 Общие данные Котел КВ-ТС(В)-10. Схема функциональная Котел КВ-ТС(В)-10. Схемы электрические питания и управления задвижкой на воде Котел КВ-ТС(В)-10. Схема соединений внешних проводок Котел КВ-ТС(В)-10. Схема подключения внешних проводок Котел КВ-ТС(В)-10. План расположения Котел КВ-ТС(В)-10. Установка МЭО-250/63-0,25У к дымососу ДН-15 Котел КВ-ТС(В)-10. Установка МЭО-100/25-0,25У к вентилятору ВДН-11,2 Котел КВ-ТС(В)-10. Установка МЭО-250/25-0,25У к питателю топлива |
| Разработан: | Латгипропром |
| Утверждён: | 20.05.1986 Госстрой СССР (Государственный комитет Совета Министров СССР по делам строительства) (USSR Gosstroy АЧ-29) |
| Заменяет собой: |
|





































