Скачать Типовой проект 903-1-224.86 Альбом 2.6. Строительно-технологическая блок-секция котлоагрегата КЕ-10-14С. Тепломеханическая часть (вариант без воздухоподогревателя)Дата актуализации: 01.01.2021
|
| Обозначение: | Типовой проект 903-1-224.86 |
| Обозначение англ: | 903-1-224.86 |
| Статус: | действует |
| Название рус.: | Альбом 2.6. Строительно-технологическая блок-секция котлоагрегата КЕ-10-14С. Тепломеханическая часть (вариант без воздухоподогревателя) |
| Дата добавления в базу: | 01.10.2014 |
| Дата актуализации: | 01.01.2021 |
| Дата введения: | 20.05.1986 |
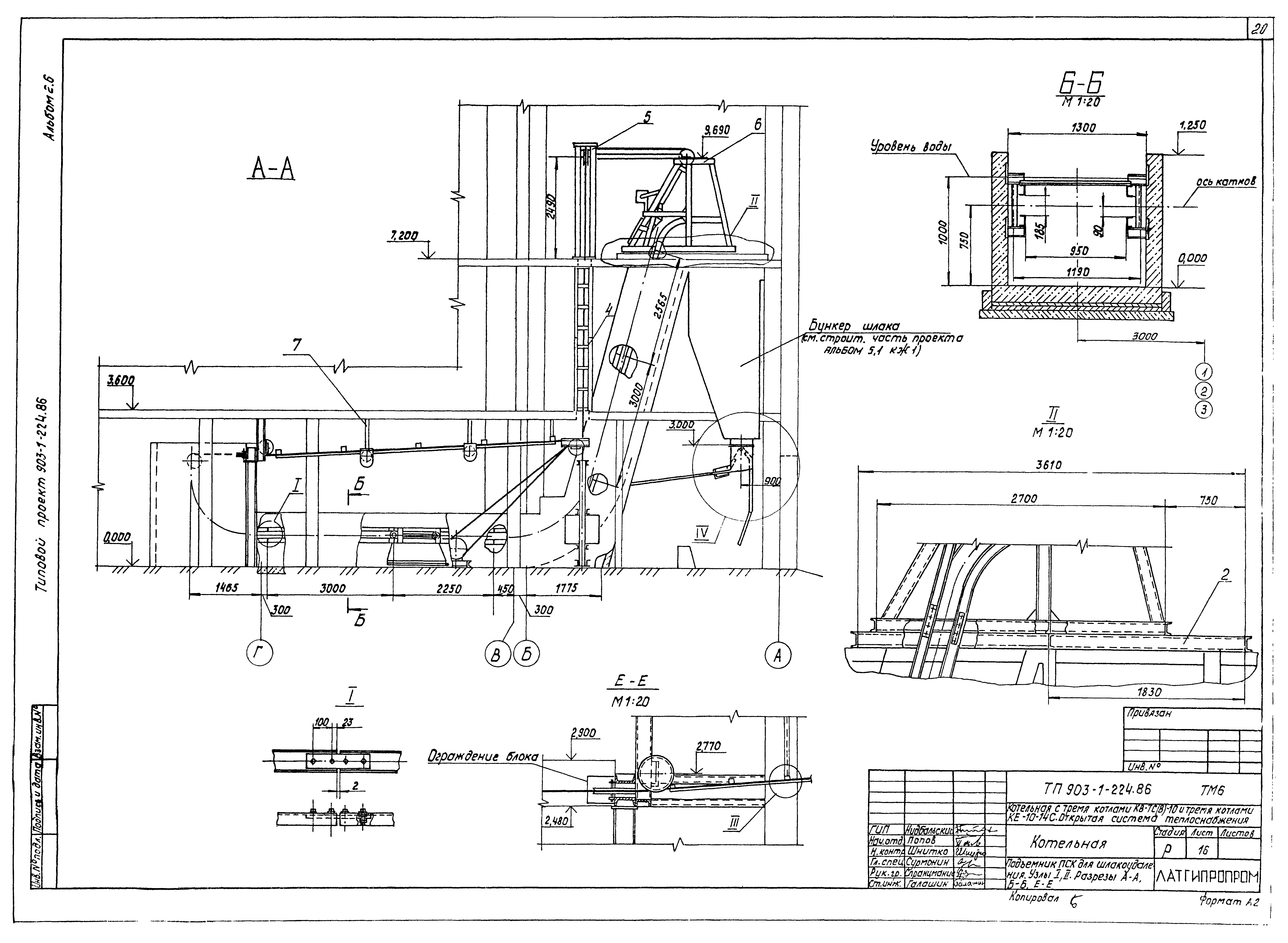
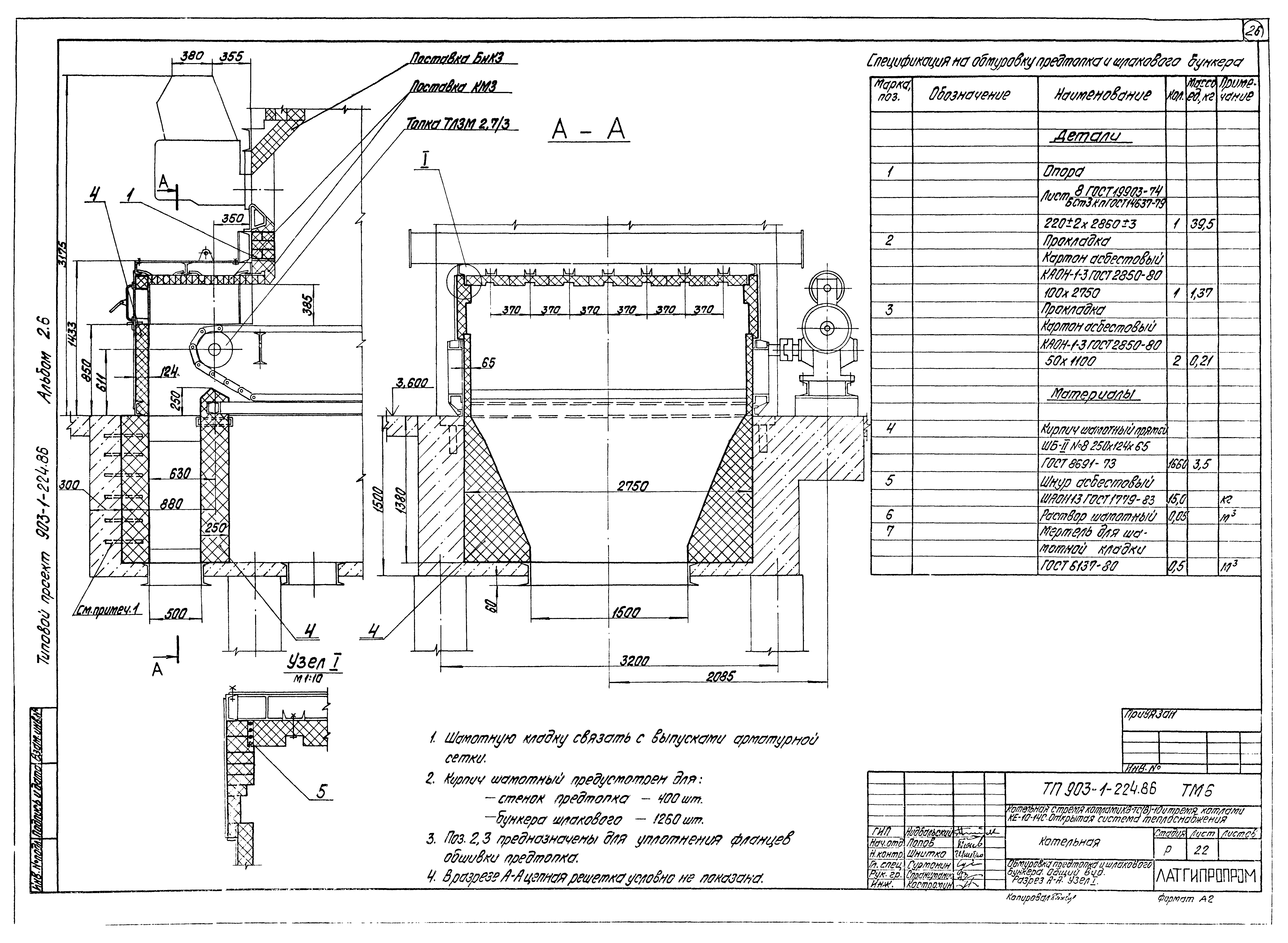
| Оглавление: | Основной комплект рабочих чертежей марки ТМ6 Общие данные Ведомость теплоизоляционных конструкций и антикоррозийных покрытий Блок-секция котлоагрегата КЕ-10-14С. Вид сверху. План Б-Б Блок-секция котлоагрегата КЕ-10-14С. Разрез А-А Воздуховоды котла КЕ-10-14С. Разрез Б-Б. Фланцы Воздуховоды котла КЕ-10-14С. План А-А. Разрезы В-В, Д-Д, Е-Е Воздуховоды котла КЕ-10-14С. Разрез Г-Г Газоходы котла КЕ-10-14С. Вид сверху. Разрез В-В. Фланцы Газоходы котла КЕ-10-14С. Разрез А-А Газоходы котла КЕ-10-14С. Разрез Б-Б. Узлы I, II Трубопроводы пара и выхлопа. Вид сверху. Разрезы А-А, Б-Б Аксонометрическая схема обвязки котлоагрегата КЕ-10-14С Подъемник ПСК для шлакоудаления. План. Таблица комплектации и характеристика Подъемник ПСК для шлакоудаления. Узлы I, II. Разрезы А-А, Б-Б, Е-Е Подъемник ПСК для шлакоудаления. Узел III. Разрезы В-В, Г-Г, Д-Д, К-К, Л-Л Подъемник ПСК для шлакоудаления. Принципиальная схема монтажа каната Топливоподача и золошлакоудаление. Общий вид Топливоподача и золошлакоудаление. Разрезы А-А, Б-Б, Г-Г, Е-Е, З-З, Ж-Ж, К-К, Л-Л Топливоподача и золошлакоудаление. Разрезы В-В, Д-Д, Н-Н. Вид М Обмуровка предтопка и шлакового бункера. Общий вид. Разрез А-А. Узел I |
| Разработан: | Латгипропром |
| Утверждён: | 20.05.1986 Госстрой СССР (Государственный комитет Совета Министров СССР по делам строительства) (USSR Gosstroy АЧ-29) |
| Заменяет собой: |
|



























